UCLAN, MSc Building Conservation and Regeneration - BN4606 Building Recording and Analysis
Silvia Rossi, G20635985, Assignment Part 2: Building Record, May 2014 p. 1/81
Assignment Part 2: Building Record
The Quaker Meeting House,
Yealand Conyers, Lancashire
Address: Yealand Friends Meeting House,
18 Yealand Road, Yealand Conyers, Carnforth, LA5 9SH
OS Grid Reference: SD 50382 74420
Dates of recording: Survey 04 April 2014
Photographic record 22 April 2014
Author: Silvia Rossi
UCLAN, MSc Building Conservation and Regeneration - BN4606 Building Recording and Analysis
Silvia Rossi, G20635985, Assignment Part 2: Building Record, May 2014 p. 2/81
Contents
1.0 Summary……………………………………………………………………………....p. 3
2.0 Introduction………………………………………………………………………….. .p. 4
2.1 Purpose and format…………………………………………………………....p. 4
2.2 The author……………………………………………………………………..p. 4
2.3 Recording procedure…………………………………………………………..p. 4
2.4 Archiving……………………………………………………………………….p. 4
3.0 General Description……………………………………………………………………p. 5
3.1 Site location…………………………………………………………………….p. 5
3.2 Site description…………………………………………………………………p. 6
3.3 Topography…………………………………………………………………….p. 6
4.0 Building Record………………………………………………………………………...p. 7
4.1 Written Record………………………………………………………………….p.7
4.1.1 Orientation………………………………………………………….... p. 7
4.1.2 Plan form and materials……………………………………………...p. 7
4.1.3 Detailed written description………………………………………… p. 8
4.2 Photographic Record…………………………………………………………...p. 11
4.3 Drawn Record…………………………………………………………………..p. 53
References…………………………………………………………………………………. p. 60
Appendix 1: Statement of Significance (Assignment 1)………………………………… p. 61
Appendix 2: Pictures composed with Microsoft ICE…………………………………… p. 77
UCLAN, MSc Building Conservation and Regeneration - BN4606 Building Recording and Analysis
Silvia Rossi, G20635985, Assignment Part 2: Building Record, May 2014 p. 3/81
1.0 Summary
The Quaker Meeting House of Yealand Conyers is situated at the centre of a plot of land adjacent
to the main road through the village. From the main road the entrance to the building is reached
by a gently sloping path running west to east. Its position, along with its orientation - the front
elevation is perpendicular to the main road - renders the Meeting House invisible from the main
road.
The building plan is of the ‘cottage type’ rectangular form with the entrance on the long side
wall, through a porch, and a projecting chimney breast on the gable end, to which was added a
rectangular extension, housing a service area with kitchen and toilets.
The main building was built in 1692 and its function has always been that of a Quaker place of
worship. This is reflected in the building’s layout with its a subdivision into two areas of different
sizes: the larger meeting room, with access to an upper gallery and the women’s meeting room.
The latter was also used as a classroom until the middle of the eighteenth century. Today this
space is used as the entrance hall and the library.
The building underwent some external alterations after the 1737 fire, which destroyed the
original thatched roof, whose structure is still visible on the North elevation. Following the
accident, a slate roof was installed. Probably at the same time the original stone mullioned
windows of the front elevation were enlarged and replaced with sash windows. The internal
woodwork dates from the same period. The seventeenth century window with stone mullion and
transom in the North wall was reinstated 10 years ago after being blocked off for many years. At
the same time the cement render covering the external walls was removed from the North
elevation, revealing the original rubble stonework facing.
Internally, a ceiling and beam boxing were added at some point in the nineteenth century and
more recently one of the three original shutters (i.e. the top-hung partitions closing the internal
windows separating the two rooms) was replaced by a double door, making the main access door
to the meeting room redundant.
UCLAN, MSc Building Conservation and Regeneration - BN4606 Building Recording and Analysis
Silvia Rossi, G20635985, Assignment Part 2: Building Record, May 2014 p. 4/81
2.0 Introduction
2.1 Purpose and format
The content of this document has been developed for the purposes - academic and professional
development - of the module Building Recording and Analysis of the MSc Building
Conservation and Regeneration of the University of Central Lancashire (UCLAN). This is the
second part of the assessment for the module aimed at furthering the student’s ability to appraise
and assess the value of historic buildings.
The format of this document, following the assignment brief, adheres closely to the guidance
given in the English Heritage publication ‘Understanding Historic Buildings: A Guide to Good
Recording Practice’ (English Heritage, 2006). The main body of this document is the Building
Record, made up of a detailed written account illustrated by a photographic record and a drawn
record.
2.2 The Author
Silvia Rossi, the author, is a student on the MSc Building Conservation and Regeneration at the
University of Central Lancashire. She has a degree in Architecture and an MSc in Advanced
Environmental and Energy Studies in Architecture; her professional background is as an architect
in the UK and Italy.
2.3 Recording procedure
Following visual inspections of the property, a detailed survey of the building was carried out
with manual instruments: 5- and 30-metre measuring tapes and a 5-metre staff. Measurements
were recorded on both sketched drawings and copies of previous planning application drawings
(Lancaster City Council, 1966). A photographic record was taken soon afterwards.
2.4 Archiving
The Building Record is submitted through the UCLAN Virtual University Platform in electronic
form, in PDF format. The page setup for printing is in colour on A4 paper.
UCLAN, MSc Building Conservation and Regeneration - BN4606 Building Recording and Analysis
Silvia Rossi, G20635985, Assignment Part 2: Building Record, May 2014 p. 5/81
3.0 General Description
3.1 Site location
Figure 1 – Location plan (OS/EDINA, 2014)
The meeting house is located at National Grid Reference SD 50382 74420, near the centre of
Yealand Conyers, on a site adjacent to the main road (Yealand Road) crossing the village (Figure
1).
UCLAN, MSc Building Conservation and Regeneration - BN4606 Building Recording and Analysis
Silvia Rossi, G20635985, Assignment Part 2: Building Record, May 2014 p. 6/81
3.2 Site description
Figure 2 – Site plan (OS/EDINA, 2014)
The Meeting House sits in the middle of the elongated quasi-rectangular plot of land shown in
Figure 2 and is accessible from the pedestrian pavement through a signposted gate. The plot,
whose boundaries merge with those of the Old Quaker School to the South-West, has always
been used as a burial ground, with the oldest graves being at the top, on the west side.
3.3 Topography
The site of the Meeting house lies upon a hilly ridge at an altitude of around 400ft (122 m) above
sea level (Farrer, 1914). The building’s entrance is at about 25 metres from the access gate, and is
reached by a gently sloping path running west to east. This position makes the building invisible
from the main road. The gradient becomes steeper for a short distance at the east side of building
before becoming more gentle again down to the East boundary, which affords beautiful views
over the adjacent valley and farmland.
UCLAN, MSc Building Conservation and Regeneration - BN4606 Building Recording and Analysis
Silvia Rossi, G20635985, Assignment Part 2: Building Record, May 2014 p. 7/81
4.0 Building Record
4.1 Written Record
4.1.1 Orientation
The front elevation of the Meeting House, with the main entrance, is south facing and almost
perpendicular to the main road
4.1.2 Plan form and materials
The plan of the Meeting House comprises firstly the original rectangular body with the porch,
and then the 1967 extension on the east side. From the porch, two doors lead respectively to a
larger room to the right, used for worship meetings, and to a smaller room to the left, half the
size. This latter space, once the women’s’ meeting room, has become an entrance hall and library
from which access is given on the right hand side to the service area in the extension and on the
left hand side to the meeting room.
The main room is subdivided by the wooden structure supporting the gallery floor into a) a large
double height space with facing benches and b) an entrance corridor which runs from the door to
a staircase leading to an upper gallery.
Two large windows on the front elevation provide direct natural light to the main room. On the
rear wall a smaller former window has been recently reinstated. Smaller windows on opposite
sides give light to both the hall and the gallery above.
The material used for the original walls is limestone in random rubble, only visible in the rear
elevation (recently repointed) while all other outer wall surfaces are covered with cement render.
Dressed cut stone is used in the segmental arch and jambs of the porch doorway and the
surrounds of the entrance doors and some of the windows. Inside, including in the porch, the
walls are plastered. A slate roof has been used since 1737, when a fire destroyed the original
thatched roof and part of the walls (Butler, 1999). The main roof structure consists of kingpost
trusses, purlins and rafters.
UCLAN, MSc Building Conservation and Regeneration - BN4606 Building Recording and Analysis
Silvia Rossi, G20635985, Assignment Part 2: Building Record, May 2014 p. 8/81
4.1.3 Detailed written description
Introduction
The following description will give an account of the characteristics and features of the building
fabric externally and internally. On the exteriors, the account will follow the sequence illustrated
in the photographic record, starting from the front elevation and going clockwise around the
building. The chimney and the roof will be described at the end of the section. On the interiors,
the various zones of the building and their main features and details will be described.
Exteriors
The design of the front elevation gives some indications of the internal layout of the meeting
house, with the two tall sash windows of the meeting room to the left, the entrance sheltered by
the porch in an eccentric position and the two smaller square windows of the hall and gallery to
the right (pictures 1, 2 and 3).
The porch (picture 4) has a gable roof with a raking gable coping finished by kneelers (pictures 8,
9 and 10) and a frontal opening with chamfered stone jambs and a segmental arch with the date
of construction ‘1692’ carved at the impost as shown in pictures 5 and 6. The keystone shows
signs of a fixed decorative feature that has been removed (picture 7).
As described in English Heritage’s listing (English Heritage, 1968) the eighteenth century sash
windows, to the left of the porch, have ‘glazing bars and plain stone surrounds with narrow cyma
moulding’ (pictures 11 and 12). To the right of the porch is ‘a fixed window with one rebated and
chamfered jamb. Above, lighting the gallery is a rebated and chamfered surround for a former 2-
light window’ (pictures 13 and 14).
The West elevation has a plain gable end; this wall is covered with cement render (pictures 15
and 16) as are the exterior walls of the front elevation and the porch. The north facing rear
elevation (pictures 17 and 18) is of stone facing and shows evidence of an old wooden structure
consisting of three round timber sections, roughly at the height of the gallery window sill
(pictures 19, 20 and 22), which is likely to be part of the old thatched roof structure. The walls
were raised, reducing the roof gradient to accommodate a slate roof, after the 1737 fire (Butler,
1990).
UCLAN, MSc Building Conservation and Regeneration - BN4606 Building Recording and Analysis
Silvia Rossi, G20635985, Assignment Part 2: Building Record, May 2014 p. 9/81
On the rear elevation, a new door was opened in 1966 to provide a fire escape. The original 1692
window with stone mullion and transom was restored and re-instated some 10 years ago, after
being previously blocked off (Lancaster City Council, 2005). Iron pintles, for hinges of a former
shutter, are still visible on the left stone window margin (picture 21). The left hand side windows,
lighting both the hall at ground floor level and the gallery above, are encased in plain square
reveals and are single glazed with bars and top opening (pictures 22 and 23).
The gable end of the East elevation is partially covered at ground floor level by the 1967
extension (pictures 24 and 25) and features an imposing projecting chimney stack with moulded
weathering at the top and water tabling of projecting stone slabs at the bottom (pictures 27 and
28). At each side of the stack, under the roof board, ventilation openings closed with mesh were
provided in more recent times; to the left of the stack there is evidence of a small blocked off
opening (picture 26).
The current slate roof was installed recently, replacing the original 1737 damaged slate roof, and
the original stone ridge was restored to its position. The roof is finished with moulded
bargeboards on the gable ends and a fascia on the rear elevation (pictures 29 and 30).
Interiors
Inside the porch, a built-in seat spans the left hand side wall (picture 31). The faux ashlar stone
wall surfaces simulate neatly cut blocks of 610 mm x 305 mm and thin and regular mortar joints
(NB this is contrary to what was previously observed and stated in the first report in Appendix 1).
The wall finish is revealed at points of plaster detachment (picture 32) and at junctions between
walls where the plaster is cracked. A similar surface treatment of faux stone blocks painted over
is found inside the building.
The two inner doorways have chamfered stone surrounds and doors with raised and fielded
panels and original ironmongery (pictures 35, 36 and 38).
The former women’s meeting room, now functioning as the entrance hall and library, has two
opposite windows with glazing bars, both on splayed reveals (pictures 37 and 40). The
connection with the meeting room, on the left hand side, is through the middle former shutter
opening, recently changed into a door (picture 39). The other two openings and shutters have
been conserved, but they are not in use. On the low ceiling of the hall the three original shutter
UCLAN, MSc Building Conservation and Regeneration - BN4606 Building Recording and Analysis
Silvia Rossi, G20635985, Assignment Part 2: Building Record, May 2014 p. 10/81
hooks have been left in place (picture 41). On the meeting room side of the dividing wall, the
original raised-panel shutters and one remaining broken hook are still visible (picture 46 and 47).
The buffer zone between the hall and the meeting room originally functioned as a corridor from
the access door - currently not in use - to the L-shape staircase leading to the gallery (pictures 44
and 45). The enclosing walls are lined with, and the partitions are made of, raised wooden
panels. Thick curtains are used to complete the enclosure of spaces.
The meeting room is a double height space lighted by the two sash windows of the South wall
and from the seventeenth century window with painted mullion and transom of the North wall
(pictures 48 to 51). It is furnished with facing benches running perpendicularly to the entrance
from the buffer zone and two long benches, one of which is on a raised floor, facing the gallery
(pictures 53 and 54). The pew on a raised floor faces a wooden parapet equipped with pivotally
mounted book holders. Wooden raised and fielded panellings line the lower part of the wall up to
window sill height. Similarly decorated panels are used for the gallery front and for the infill
partitions between fluted pilasters with moulded capitals supporting the gallery floor (picture 52).
Elaborate iron brackets for oil lamps enrich the wooden structure (picture 55).
The gallery has a stepped floor and is furnished with long rows of seats (pictures 59, 60 and 61).
It is not often in use and it is kept closed with removable wooden boards. It is lighted by two
opposite windows with splayed reveals, of which the one on the South wall is a re-adaptation of a
stone mullioned window, as shown by the mullion foot on the lower part of the frame. This is in
an eccentric position, indicating that the window might have been resized (picture 62).
The former warden, Mr J. Jarvis, informed the present author that the current ceiling and beam
boxing was provided in 1880, but no written record of this information was found. The blocked-
off opening at the height of the internal ceiling in the East elevation (picture 26) indicates that
originally the roof structure was visible from the inside of the meeting room. This roof structure
consists of three kingpost trusses supported on the side walls, with purlins carried by the trusses
and by the gable walls and rafters (picture 63).
UCLAN, MSc Building Conservation and Regeneration - BN4606 Building Recording and Analysis
Silvia Rossi, G20635985, Assignment Part 2: Building Record, May 2014 p. 11/81
4.2 Photographic Record
The photographic record of the building consists of general views from the exteriors and the
interiors and close ups showing significant details. Pictures are accompanied by captions which
supplement the information in the written record. The direction from which the pictures were
taken is marked on the location plans of each floor as shown in figure 3.
UCLAN, MSc Building Conservation and Regeneration - BN4606 Building Recording and Analysis
Silvia Rossi, G20635985, Assignment Part 2: Building Record, May 2014 p. 12/81
Figure 3 – Location plans of photographs (starts at page 11). In this page: roof, gallery and loft plans
UCLAN, MSc Building Conservation and Regeneration - BN4606 Building Recording and Analysis
Silvia Rossi, G20635985, Assignment Part 2: Building Record, May 2014 p. 13/81
Picture 1 - Front elevation (South facing).
UCLAN, MSc Building Conservation and Regeneration - BN4606 Building Recording and Analysis
Silvia Rossi, G20635985, Assignment Part 2: Building Record, May 2014 p. 14/81
Picture 2 – View of front elevation from South-East. The water tabling of the bottom part of the chimney stack is
easily visible from this angle.
Picture 3 – View of front elevation and West elevation from South-West.
UCLAN, MSc Building Conservation and Regeneration - BN4606 Building Recording and Analysis
Silvia Rossi, G20635985, Assignment Part 2: Building Record, May 2014 p. 15/81
Picture 4 – Close up of the front elevation of the porch showing the stone elements of the porch and their ‘patina’
(i.e. the thin layer that forms on the surface of materials through age and exposure) left visible on the roughcast
cement rendered surface.
UCLAN, MSc Building Conservation and Regeneration - BN4606 Building Recording and Analysis
Silvia Rossi, G20635985, Assignment Part 2: Building Record, May 2014 p. 16/81
Picture 5 – The first two digits of the construction date, ‘16’, inscribed in a square (175mm x 130mm) in bas-relief
on the left hand side impost block.
Picture 6 - The last two digits of the construction date ‘92’ inscribed in a square (180mm x 125mm) in bas-rilief on
the right hand side impost block.
UCLAN, MSc Building Conservation and Regeneration - BN4606 Building Recording and Analysis
Silvia Rossi, G20635985, Assignment Part 2: Building Record, May 2014 p. 17/81
Picture 7 – Keystone with imprint of missing decorative element and fixing holes.
Picture 8 – Detail of the left kneeler with coping above. Both elements feature classical moulding: the kneeler has the
shape of a ‘cyma reversa’ (upper convex curve and a lower concave curve) while the coping that of a ‘cavetto’ (a
concave moulding) (Pagliacco Milling and Turning, 2005).
UCLAN, MSc Building Conservation and Regeneration - BN4606 Building Recording and Analysis
Silvia Rossi, G20635985, Assignment Part 2: Building Record, May 2014 p. 18/81
Picture 9 – Shaped apex stone of the gable coping.
Picture 10 – Raking gable coping and kneeler as seen from the gallery window. The stone ridge abutting on the apex
stone is also visible.
UCLAN, MSc Building Conservation and Regeneration - BN4606 Building Recording and Analysis
Silvia Rossi, G20635985, Assignment Part 2: Building Record, May 2014 p. 19/81
Picture 11 – Close up of eighteenth century
sash window on the front elevation. Raised
plain stone surround with narrow cyma
mouldings.
Picture 12 (below): Detail of sill and lower
part of jamb of eighteenth century sash
window on the front elevation. The jamb is
rebated and moulded with a ‘cyma reversa’.
UCLAN, MSc Building Conservation and Regeneration - BN4606 Building Recording and Analysis
Silvia Rossi, G20635985, Assignment Part 2: Building Record, May 2014 p. 20/81
Picture 13 – Detail of ground
floor window on the front
elevation, to the right of the
porch. The window is fixed
with one rebated and
chamfered jamb.
Picture 14 - Detail of first
floor window on the front
elevation, to the right of the
porch. The window is fixed
with a rebated and chamfered
surround for a former 2-light
window.
UCLAN, MSc Building Conservation and Regeneration - BN4606 Building Recording and Analysis
Silvia Rossi, G20635985, Assignment Part 2: Building Record, May 2014 p. 21/81
Picture 15 – West elevation. From this angle the gable end are partially concealed by a tree.
Picture 16 - View of the rear elevation and West elevation from North -West.
UCLAN, MSc Building Conservation and Regeneration - BN4606 Building Recording and Analysis
Silvia Rossi, G20635985, Assignment Part 2: Building Record, May 2014 p. 22/81
Picture 17 – Rear elevation (North facing) partially covered by the boundary wall. The remains of an old wooden
structure consisting of three round timber sections are visible on the wall surface, roughly at the height of the gallery
window sill.
Picture 18 – View of rear elevation from the left.
UCLAN, MSc Building Conservation and Regeneration - BN4606 Building Recording and Analysis
Silvia Rossi, G20635985, Assignment Part 2: Building Record, May 2014 p. 23/81
Picture 19 – Detail of timber section of the old thatched roof structure, positioned above the seventeenth century
mullioned window of the rear elevation, at gallery window sill height.
Picture 20 - Detail of the middle timber section of the old thatched roof structure, positioned at gallery window sill
height.
UCLAN, MSc Building Conservation and Regeneration - BN4606 Building Recording and Analysis
Silvia Rossi, G20635985, Assignment Part 2: Building Record, May 2014 p. 24/81
Picture 21 – Rear elevation. Close up of the seventeenth century original window with stone mullion and transom
restored (including the provision of new timber frames and glazing) and re-instated some 10 years ago (Lancaster
City Council, 2005), after being previously blocked off. Iron pintles for the hinges of a former shutter are still visible
on the left stone window margin.
UCLAN, MSc Building Conservation and Regeneration - BN4606 Building Recording and Analysis
Silvia Rossi, G20635985, Assignment Part 2: Building Record, May 2014 p. 25/81
Picture 22 – Close up of
gallery window on the rear
elevation. Plain square reveal,
single glazing with bars and
top opening. The timber
section of the old roof
structure is visible to the right
of the sill.
Picture 23 - Close up of gallery
window on the rear elevation.
Stone lintel, plain square
reveal, single glazing with bars
and top opening.
UCLAN, MSc Building Conservation and Regeneration - BN4606 Building Recording and Analysis
Silvia Rossi, G20635985, Assignment Part 2: Building Record, May 2014 p. 26/81
Picture 24 – View of the East elevation and part of the North elevation from North-East.
Picture 25 – East elevation partially covered by the 1967 extension.
UCLAN, MSc Building Conservation and Regeneration - BN4606 Building Recording and Analysis
Silvia Rossi, G20635985, Assignment Part 2: Building Record, May 2014 p. 27/81
Picture 26 – Close up of the projecting chimney stack on the East elevation with moulded (‘cavetto’) weathering at
the top and water tabling of projecting stone slabs at the bottom. At each side of the stack, under the roof board,
ventilation openings closed with mesh were provided in more recent times; also, evidence of a small blocked-off
opening is visible to the left of the stack (Picture composed with Microsoft ICE, see Appendix 2).
UCLAN, MSc Building Conservation and Regeneration - BN4606 Building Recording and Analysis
Silvia Rossi, G20635985, Assignment Part 2: Building Record, May 2014 p. 28/81
Picture 27 – Detail of water tabling of projecting stone slabs at the bottom of chimney stack (rear elevation) and of
the junction with the roof of the 1967 extension at ridge height. The provision of modern lead flashing replaces the
waterproofing function of the projecting stone slab.
Picture 28 – Detail of top of chimney stack with its moulded (‘cavetto’) weathering. View from South.
UCLAN, MSc Building Conservation and Regeneration - BN4606 Building Recording and Analysis
Silvia Rossi, G20635985, Assignment Part 2: Building Record, May 2014 p. 29/81
Picture 29 – Detail of original stone ridge and end stone on recent slate roof. View from South.
Picture 30 – Detail of slate roof at top of gable end. The roof is finished with a moulded bargeboard. The ridge beam
end appears to have been replaced by a steel element. (Picture composed with Microsoft ICE, see Appendix 2)
UCLAN, MSc Building Conservation and Regeneration - BN4606 Building Recording and Analysis
Silvia Rossi, G20635985, Assignment Part 2: Building Record, May 2014 p. 30/81
Picture 31 – Porch interior. A built-in seat spans the left hand wall. The faux ashlar stone wall surfaces simulate
neatly cut blocks of 610 mm x 305 mm and thin mortar joints (Picture composed with Microsoft ICE, see Appendix
2).
Picture 32 – Detail showing plaster detachment under the porch seat.
UCLAN, MSc Building Conservation and Regeneration - BN4606 Building Recording and Analysis
Silvia Rossi, G20635985, Assignment Part 2: Building Record, May 2014 p. 31/81
Picture 33 – Porch interior. View of right hand wall.
UCLAN, MSc Building Conservation and Regeneration - BN4606 Building Recording and Analysis
Silvia Rossi, G20635985, Assignment Part 2: Building Record, May 2014 p. 32/81
Picture 34 – Porch interior. Sloping ceiling and ridge beam.
Picture 35 – Porch interior. The two inner doorways have chamfered stone surrounds and doors with raised and
fielded panels.
UCLAN, MSc Building Conservation and Regeneration - BN4606 Building Recording and Analysis
Silvia Rossi, G20635985, Assignment Part 2: Building Record, May 2014 p. 33/81
Picture 36 – Porch interior. Detail of seventeenth century ironmongery: keyhole and vertical door handle with
thumb-plate operating the latch to the other side of the door (Hall, 1999).
UCLAN, MSc Building Conservation and Regeneration - BN4606 Building Recording and Analysis
Silvia Rossi, G20635985, Assignment Part 2: Building Record, May 2014 p. 34/81
Picture 37 – Entrance hall/library interior, originally the women’s meeting room. View of the window and of the
entrance door with long wrought iron hinges.
Picture 38 - Detail of seventeenth century latch on inner face of entrance door.
UCLAN, MSc Building Conservation and Regeneration - BN4606 Building Recording and Analysis
Silvia Rossi, G20635985, Assignment Part 2: Building Record, May 2014 p. 35/81
Picture 39 - Entrance hall/library interior. View of the wall with two of the original ‘shutters’ openings. The third
shutter opening has been changed into a doorway for a double door. On the ceiling, the three wrought-iron hooks
which were used to hold the top-hung shutters open have been left in place. …the shutters were not opened in a
systematic way, rather only when the whole space was needed for larger occasions (Butler, 1990).
Picture 40 - View of the far end wall of entrance hall/library with the projecting staircase to the gallery.
UCLAN, MSc Building Conservation and Regeneration - BN4606 Building Recording and Analysis
Silvia Rossi, G20635985, Assignment Part 2: Building Record, May 2014 p. 36/81
Picture 41- Detail of wrought-iron hooks used to hold the shutters open.
UCLAN, MSc Building Conservation and Regeneration - BN4606 Building Recording and Analysis
Silvia Rossi, G20635985, Assignment Part 2: Building Record, May 2014 p. 37/81
Picture 42 - Entrance hall/library interior. View of opening connecting the hall with the toilet area in the extension.
Picture 43 - Entrance hall/library interior. View of the library bookshelves.
UCLAN, MSc Building Conservation and Regeneration - BN4606 Building Recording and Analysis
Silvia Rossi, G20635985, Assignment Part 2: Building Record, May 2014 p. 38/81
Picture 44 – Corridor between the hall/library and the meeting room. View of the staircase leading up to the gallery
and of the separating door.
UCLAN, MSc Building Conservation and Regeneration - BN4606 Building Recording and Analysis
Silvia Rossi, G20635985, Assignment Part 2: Building Record, May 2014 p. 39/81
Picture 45 – View of the inner face of the meeting room access door from the porch. The door is currently not in use.
UCLAN, MSc Building Conservation and Regeneration - BN4606 Building Recording and Analysis
Silvia Rossi, G20635985, Assignment Part 2: Building Record, May 2014 p. 40/81
Picture 46 – Corridor: view of one of the raised and fielded panelled shutters.
UCLAN, MSc Building Conservation and Regeneration - BN4606 Building Recording and Analysis
Silvia Rossi, G20635985, Assignment Part 2: Building Record, May 2014 p. 41/81
Picture 47 – Corridor: detail of broken shutter hook.
UCLAN, MSc Building Conservation and Regeneration - BN4606 Building Recording and Analysis
Silvia Rossi, G20635985, Assignment Part 2: Building Record, May 2014 p. 42/81
Picture 48 – View of the meeting room interior from the North-East corner looking to South wall. Furniture consists
of facing benches running perpendicularly to the entrance and two long benches facing the gallery.
Picture 49 - View of the meeting room interior from the South-East corner, looking to West wall.
UCLAN, MSc Building Conservation and Regeneration - BN4606 Building Recording and Analysis
Silvia Rossi, G20635985, Assignment Part 2: Building Record, May 2014 p. 43/81
Picture 50 - View of the meeting room interior from the South-West corner, looking to North wall (Picture composed
with Microsoft ICE, see Appendix 2).
Picture 51 – Close up of inner side of seventeenth century window with splayed reveal.
UCLAN, MSc Building Conservation and Regeneration - BN4606 Building Recording and Analysis
Silvia Rossi, G20635985, Assignment Part 2: Building Record, May 2014 p. 44/81
Picture 52 – View of long bench facing the gallery used by the Ministers and/or the Elders.
Picture 53 - View of long bench on raised floor facing the gallery and of reclining book holder.
UCLAN, MSc Building Conservation and Regeneration - BN4606 Building Recording and Analysis
Silvia Rossi, G20635985, Assignment Part 2: Building Record, May 2014 p. 45/81
Picture 54 - View of the meeting room interior from the West wall, looking to gallery and panelled partition
underneath.
UCLAN, MSc Building Conservation and Regeneration - BN4606 Building Recording and Analysis
Silvia Rossi, G20635985, Assignment Part 2: Building Record, May 2014 p. 46/81
Picture 55 – Meeting room interior. Close up of the wooden raised and fielded panels between wood pilaster and
wall, of the fluted pilaster with moulded capital and of the iron brackets for oil lamps.
UCLAN, MSc Building Conservation and Regeneration - BN4606 Building Recording and Analysis
Silvia Rossi, G20635985, Assignment Part 2: Building Record, May 2014 p. 47/81
Picture 56 – Detail of woodwork on the gallery parapet.
UCLAN, MSc Building Conservation and Regeneration - BN4606 Building Recording and Analysis
Silvia Rossi, G20635985, Assignment Part 2: Building Record, May 2014 p. 48/81
Picture 57 – View of the L-shaped stairs to the gallery and of the door on landing.
UCLAN, MSc Building Conservation and Regeneration - BN4606 Building Recording and Analysis
Silvia Rossi, G20635985, Assignment Part 2: Building Record, May 2014 p. 49/81
Picture 58 - Detail of seventeenth century ironmongery: vertical door handle fixed on the door with no plate, with
thumb-plate operating the latch to the other side of the door.
UCLAN, MSc Building Conservation and Regeneration - BN4606 Building Recording and Analysis
Silvia Rossi, G20635985, Assignment Part 2: Building Record, May 2014 p. 50/81
Picture 59 – View of the gallery from North-East corner.
Picture 60 - View of the gallery from South. Boards are used to close up the gallery when not in use.
UCLAN, MSc Building Conservation and Regeneration - BN4606 Building Recording and Analysis
Silvia Rossi, G20635985, Assignment Part 2: Building Record, May 2014 p. 51/81
Picture 61 - View of the gallery from North.
Picture 62 – Gallery. Close up of window on South wall previously a stone mullioned window, as shown by the
mullion foot in eccentric position on the lower part of the frame.
UCLAN, MSc Building Conservation and Regeneration - BN4606 Building Recording and Analysis
Silvia Rossi, G20635985, Assignment Part 2: Building Record, May 2014 p. 52/81
Picture 63 – View of the loft from hatch showing the roof structure: kingpost trusses, purlins and rafters.
UCLAN, MSc Building Conservation and Regeneration - BN4606 Building Recording and Analysis
Silvia Rossi, G20635985, Assignment Part 2: Building Record, May 2014 p. 53/81
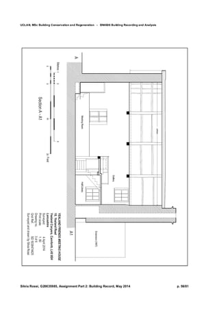
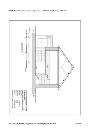
4.3 Drawn Record
List of drawings:
- Ground floor plan
- Gallery plan
- Longitudinal section A – A1
- Cross section B – B1
- Front elevation (South facing)
- Side elevation (West facing)
- Rear elevation ( North facing)
- Side elevation (East facing)
UCLAN, MSc Building Conservation and Regeneration - BN4606 Building Recording and Analysis
Silvia Rossi, G20635985, Assignment Part 2: Building Record, May 2014 p. 54/81
UCLAN, MSc Building Conservation and Regeneration - BN4606 Building Recording and Analysis
Silvia Rossi, G20635985, Assignment Part 2: Building Record, May 2014 p. 55/81
UCLAN, MSc Building Conservation and Regeneration - BN4606 Building Recording and Analysis
Silvia Rossi, G20635985, Assignment Part 2: Building Record, May 2014 p. 56/81
UCLAN, MSc Building Conservation and Regeneration - BN4606 Building Recording and Analysis
Silvia Rossi, G20635985, Assignment Part 2: Building Record, May 2014 p. 57/81
UCLAN, MSc Building Conservation and Regeneration - BN4606 Building Recording and Analysis
Silvia Rossi, G20635985, Assignment Part 2: Building Record, May 2014 p. 58/81
UCLAN, MSc Building Conservation and Regeneration - BN4606 Building Recording and Analysis
Silvia Rossi, G20635985, Assignment Part 2: Building Record, May 2014 p. 59/81
UCLAN, MSc Building Conservation and Regeneration - BN4606 Building Recording and Analysis
Silvia Rossi, G20635985, Assignment Part 2: Building Record, May 2014 p. 60/81
REFERENCES
BUTLER, D. (1990) Quaker Meeting Houses in America and England: Impressions and
Comparisons, Quaker History, Volume 79, Number 2, pp.93-104 (Article), London: Friends
Historical Association.
BUTLER, D. (1999) The Quaker Meeting Houses of Britain, Volume I, London: Friends
Historical Society.
English Heritage (1968) British Listed Buildings: Quaker Meeting House, Yealand Conyers.
English Heritage [online] Available at: http://www.britishlistedbuildings.co.uk/en-182052-
quaker-meeting-house-yealand-conyers-lan [Accessed 31 March 2014].
English Heritage (2006) Understanding Historic Buildings: A Guide to Good Recording
Practice, English Heritage Publishing.
FARRER, W. (1914) ‘Townships: Yealand Conyers’, A History of the County of Lancaster,
Volume 8, pp.177-180 [online] Available at: http://www.british-
history.ac.uk/report.aspx?compid=53291 [Accessed 31 March 2014].
HALL, L. (1999), Early and Vernacular Door Fittings, The Building Conservation Directory
1999 [online] Available at:
http://www.buildingconservation.com/articles/doors/door_furniture.htm [Accessed 5 May 2014]
Lancaster City Council (1966) Planning Application: Re-building of toilets and provision of
kitchen, Ref. 4317, Lancaster Planning Applications Register 1900-1974, Lancaster: Planning
Department.
Lancaster City Council (2005) Listed Building Application for alterations to toilet and repair to
windows, Ref. 05/00387/LB, Lancaster: Planning Department.
Ordnance Service/ EDINA (2014) Digimap [online] Available at:
http://digimap.edina.ac.uk/digimap/home [Accessed 2 May 2014].
Pagliacco Milling and Turning (2005) Illustrated Glossary of Classical Architecture [online]
Available at: http://www.doric-column.com/glossary_classical_architecture.html#B [Accessed 5
May 2014]
UCLAN, MSc Building Conservation and Regeneration - BN4606 Building Recording and Analysis
Silvia Rossi, G20635985, Assignment Part 2: Building Record, May 2014 p. 61/81
Appendix 1: Statement of Significance (Assignment 1)
Assignment Part 1: Assessment of Significance
The Quaker Meeting House
in Yealand Conyers, Lancashire
Figure 1 - Sketch illustrating the Yealand Meeting House front elevation and its surroundings.
Author: David Butler, 1981. Source: Butler (1999)
UCLAN, MSc Building Conservation and Regeneration - BN4606 Building Recording and Analysis
Silvia Rossi, G20635985, Assignment Part 2: Building Record, May 2014 p. 62/81
INTRODUCTION
The purpose of the assignment is to produce an ‘assessment of significance’ of the Yealand
Meeting House, a Grade II* listed building, using the headings laid down in English Heritage’s
‘Conservation Principles, Policies and Guidance’ (Drury & McPherson, 2008). Some preliminary
information will be offered on the location of the building, its local history and its setting, plan
form and materials. Some representative photographs will illustrate its external appearance.
LOCATION DETAILS OF YEALAND QUAKER MEETING HOUSE
Figure 2 – Yealand Conyers location map, scale 1: 5000 with the position of the Quaker Meeting House –
Source: Lancashire County Council (2014)
Address: Yealand Friends Meeting House, 18 Yealand Road, Yealand Conyers, Carnforth,
LA5 9SH (Lancashire Central and North Area Meeting, 2014)
OS Grid Reference: SD5038474425 OS Grid Coordinates: 350384, 474425
(Lancashire County Council, 2014)
The village of Yealand Conyers is about 1 mile to the west of the A6 and about 3 miles to the
north of Carnforth, the nearest market town. Although it is set in a rural location, junction 35 of
Quaker Meeting House
UCLAN, MSc Building Conservation and Regeneration - BN4606 Building Recording and Analysis
Silvia Rossi, G20635985, Assignment Part 2: Building Record, May 2014 p. 63/81
the M6 is only 3.6 miles away to the South. The meeting house is situated on a site next to the
main road crossing the village (Figure 2) and accessible through a signposted gate.
RELEVANT KEY FEATURES OF THE AREA
Figure 3 – National Character Area 20: Morecambe Bay Limestones. Source: Natural England (2013)
In 2013 Natural England produced a document identifying areas that share similar landscape
characteristics, and which follow natural lines in the landscape … (Natural England, 2013, p.2).
The key features of the rural landscape and settlements in the area which includes Yealand
Conyers (Figure 3) are:
UCLAN, MSc Building Conservation and Regeneration - BN4606 Building Recording and Analysis
Silvia Rossi, G20635985, Assignment Part 2: Building Record, May 2014 p. 64/81
 The limestones – which give structure to the landscape - support a mixed pastoral
farming and woodland landscape, often in tight mosaics, with orchards surrounding the
farmsteads and fields bounded by limestone drystone walls.
 Settlements are generally dispersed and rural in character, having usually grown around
large farmsteads.
 Large parts of farmland were, and remain, owned by estates, with stately homes set in
parkland and associated tenant farms. (p.10)
 A vernacular building style common to all settlements and farmsteads based on the use of
local limestone for walls and Lake District slate.
(Natural England, 2013, pp.7-8)
The natural and heritage significance of the Yealand Conyers area is statutorily recognised by
two designations: Area of Outstanding Natural Beauty (The Arnside and Silverdale AONB) and
Conservation Area (The Yealands 1981).
BRIEF HISTORICAL BACKGROUND, SITE DESCRIPTION AND ITS
HISTORICAL EVOLUTION
Yealand is mentioned in the Domesday Book, the earliest surviving public record of the land and
people in England and part of Wales, 1086 (The National Archives, 2014) by the name ‘Jalant’,
(which) derives from the Anglo-Saxon word meaning ‘high ground’. The part of Yealand
Conyers where the meeting house was built lies upon a hilly ridge at an altitude of 400ft (122 m)
above sea level (Farrer, 1914). The name Conyers comes from past Lords of the Manor (Yealand
Conyers Parish Council, 2014) in the mid 13th century (Farrer, 1914).
During the mid 17th century the villages of Conyers and Redmayne became associated with the
persecuted Quaker movement. George Fox, Quaker leader, preached in Yealand Conyers in
1652. The Meeting House was built in 1692 and is still in regular use, as is the burial ground
within its wall boundaries (Yealand Conyers Parish Council, 2014).
UCLAN, MSc Building Conservation and Regeneration - BN4606 Building Recording and Analysis
Silvia Rossi, G20635985, Assignment Part 2: Building Record, May 2014 p. 65/81
Figure 4 – Extract from1840s historic map. Source:
Lancashire County Council, 2014.
Figure 5 – View from the entrance. Source: Present
author (2014)
The Meeting House is not visible from the
main road, being discretely set on a quiet part
of the site, originally on its North-East far
corner as illustrated on the 1840s map (Figure
4).
The building’s entrance is at about 35 m. from
the access gate, and it is reached through a
gently sloping path running west to east. The
site has always been used as a burial ground,
with the oldest graves being at the top, on the
west side. A few mature trees create a sort of
coulisse of vegetation around the building,
marking the visual path to the bottom of the
site, which affords beautiful views over the
sloping valley and farmland (Figure 5).
The 1970 map (Figure 6) shows the new
boundaries of the enlarged site, to the east; this
area is currently in use as a burial ground. The
evolution of the developments around the
Meeting House, following the acquisition of
the land by the Society of Friends (the name of
the Quakers’ organisation), can be traced
trough the sequence of historic maps from the
1890s, 1910, 1930 and 1970, as shown in
Appendix A.
UCLAN, MSc Building Conservation and Regeneration - BN4606 Building Recording and Analysis
Silvia Rossi, G20635985, Assignment Part 2: Building Record, May 2014 p. 66/81
Figure 6 - Extract from 1970 historic map.
Source: Lancashire County Council, 2014.
The Old School (the complex of
buildings named Hall in the 1970 map
– now a hostel) and the old School
Master’s house (n. 20 – recently
restored to create additional
accommodation) were enlarged (Butler,
1990 and Winchester, 1993) at some
point before the 1890s. In the same
period small service outbuildings were
added to the Meeting House, then
demolished in 1967 to create an
extension housing a kitchen and
visitors’ toilets (Lancaster City
Council, 1966).
DESCRIPTION OF PLAN FORM AND MATERIALS
Figure 7 - Sketch plan of ground floor and balcony. Source: (Butler, 1999)
The plan of the Meeting House comprises the original rectangular body with the porch and the
1967 extension on the east side (Figure 7). From the porch, two doors lead respectively to a larger
room to the right, used for worship meetings as it was in the past and to a smaller room to the left,
half the size. This space, once the women’s’ meeting room, has become an entrance hall which
continues into a wide corridor, giving access to the service area in the extension.
UCLAN, MSc Building Conservation and Regeneration - BN4606 Building Recording and Analysis
Silvia Rossi, G20635985, Assignment Part 2: Building Record, May 2014 p. 67/81
The main room is subdivided by a wooden partition into a large double height space with facing
benches and a corridor running from the door to a staircase leading to an upper gallery.
Two large windows on the front elevation provide direct natural light to the main room. On the
rear wall a smaller former window has been recently reinstated. Smaller windows on the opposite
side give light to both the hall and the gallery above.
The material used for the original walls is limestone, only visible in the rear elevation as random
rubble stonework (recently repointed – Figure 10) while in the porch dressed cut ‘ashlar’ stone
(Morriss, 2004) is used and visible on the inside. The outer surfaces of the West and South
elevations, including the porch, and the East elevation are covered with cement render. A slate
roof has been used since 1737, when a fire destroyed the original thatched roof and part of the
walls (Butler, 1999).
REPRESENTATIVE PHOTOGRAPHS
Figure 8 - South-West view: the west elevation is partially hidden by a tree. Present author (2014)
UCLAN, MSc Building Conservation and Regeneration - BN4606 Building Recording and Analysis
Silvia Rossi, G20635985, Assignment Part 2: Building Record, May 2014 p. 68/81
Figure 9 – Front elevation (south facing). Present author (2014) – composed with Microsoft ICE
Figure 10 – Rear elevation (north facing). Present author (2014)
UCLAN, MSc Building Conservation and Regeneration - BN4606 Building Recording and Analysis
Silvia Rossi, G20635985, Assignment Part 2: Building Record, May 2014 p. 69/81
Figure 11 – Side elevation (east facing). Present author (2014)
ASSESSMENT OF SIGNIFICANCE
Introduction
The following assessment of the heritage significance of the Yealand Meeting house is structured
according with the four main heritage values identified in English Heritage ‘Conservation
Principles’ (Drury & McPherson, 2008): evidential, historical, aesthetic and communal values. A
quoted summary describing each value will appear in boxes at the beginning of each section.
Evidential value
Evidential value derives from the potential of a place to yield evidence about past human
activities. Physical remains…..are the primary source of evidence…(p.28)
UCLAN, MSc Building Conservation and Regeneration - BN4606 Building Recording and Analysis
Silvia Rossi, G20635985, Assignment Part 2: Building Record, May 2014 p. 70/81
The Yealand Meeting House is an example of the ‘cottage’ type of English meeting house,
(accounting for some 60% of them) whose entrance is on the long side wall (Figure 7), whereas in
the ‘chapel’ type the entrance is under the gable. The former are usually older, and are more
typical of country than town. They differ little from cottages and are often of much the same size,
say 16 by 30 feet inside (Butler 1990 p.94). Inside, the internal layout with the division into two
rooms with a fireplace on the gable end, the facing benches and the presence of an upper gallery,
reflects the typical arrangements of this building type (Butler, 1990).
The date, 1692, carved at each side of the impost of the segmental arch of the porch doorway is
the obvious indicator of the year of construction. This detail can also be ascribed to a late sub-
medieval phase as described in Brunskill (2000), although the only decorative feature is the
carved date and the doorway is a segmental arch and not a lintel.
The porch has a raking gable coping finished by kneelers. This detail is found in many stone
walling districts…(Brunskill, 1974, pp. 116-118).
The main building materials used for the walls and the roof - limestone and slate - and the
combination of random rubble and ashlar stonework are evidence of past methods of
construction. There is also visible evidence, on the north wall, of the wooden structure of the old
thatched roof, roughly at the height of the line of the gallery window sill (Figure 10), as pointed
out by J. Jarvis, the former warden of the Meeting House for 22 year, in a conversation with the
present author. The walls were then raised, reducing the roof gradient to accommodate a slate
roof after the 1737 fire (Butler, 1990).
An original window from the end 17th century with stone mullion and transom (Brunskill, 1974)
in the North wall (Figure 10) was re-instated some 10 years ago, after being previously blocked
off (Lancaster City Council, 2005), showing what the front elevation must have looked like prior
to the replacement of two similar sized windows on the front elevation with larger Georgian
windows, probably after the 1737 fire.
Another substantial feature of the building is the imposing chimney breast and stack projecting
from the east side wall: an element found in the vernacular of Lake Counties (Brunskill, 1974).
This has now been boxed in inside and incorporated in the extension.
UCLAN, MSc Building Conservation and Regeneration - BN4606 Building Recording and Analysis
Silvia Rossi, G20635985, Assignment Part 2: Building Record, May 2014 p. 71/81
Historic value
Historical value derives from the ways in which past people, events and aspects of life can be
connected through a place to the present. It tends to be ‘illustrative’ or ‘associative’(p.28)
The meeting house was arranged as it was solely to suit the way it was used, nothing more
(Butler, 1990 p.97), reflecting the Quaker principles of truth and simplicity still upheld today. Its
layout illustrates the way meetings were conducted in the past, with the separation of men and
women for certain parts of the meeting: In England, from the earliest times, men and women
entered one room by one door, to sit for worship each on their side of that room. When the time
for business came the women would rise and move away to their separate room behind the
shutters… (p.98). In Yealand, the women’s meeting room was also used as a classroom by the
Quaker school, established by 1709, until in 1764 a nearby cottage was bought… ( Butler, 1999
p. 350).
The village of Yealand, and then the meeting house, have a strong association with the father of
Quakerism George Fox, who preached there in 1652, and with other important missionary figures
of the early years of the movement.
The emergence of Yealand as a place of pilgrimage from around 1930 (Winchester, 1993) and its
continuance today, has substantially enhanced the associative value of the place. The presence
and use of the meeting house has created shared experiences and associations both for the
‘pilgrims’ themselves, to do with the building and with a number of especially significant
individual women, and - when the pilgrims return home – among the people in Quaker circles
across the world to whom they promote the importance of Yealand meeting history.
Aesthetic value
Aesthetic value derives from the ways in which people draw sensory and intellectual stimulation
from a place (p.30)
The aesthetic value of the building is related to the age of the place, to its design qualities in
terms of composition, detailing, craftsmanship and setting and to the associations of the spiritual
values of the place.
UCLAN, MSc Building Conservation and Regeneration - BN4606 Building Recording and Analysis
Silvia Rossi, G20635985, Assignment Part 2: Building Record, May 2014 p. 72/81
On design qualities, the simple domestic vernacular building form is especially appreciated, with
its well proportioned porch and the plain exterior decoration of the window frames and the porch
doorway. All these elements embody the search for truth and simplicity in Quaker spirituality.
Furthermore, the natural setting with the presence of mature trees and well maintained grounds
and the surrounding views of the countryside enhance the sensory appreciation of the building
and convey a sense of calm and mindfulness.
Back in the 18th century, the different window style chosen in the reconstruction – sash windows
with glazing bars and plain stone surrounds with narrow cyma mouldings (English Heritage,
1968) - shows a change in taste and fashion shifting toward a ‘polite’ architectural style.
Similarly inside, the wookwork dated c. 1742 shows some quite elaborate detailing and a high
level of craftsmanship. It is more than usually moulded and fielded, with pilasters and built-up
classical mouldings where plainer work would have done before (Butler, 1999 p.350).
Communal values
Communal value derives from the meaning of a place for the people who relate to it, or for
whom it figures in their collective experience or memory (p.31)
The communal value of the meeting house is closely related to the historical associative value
from the early years of Quakerism and its founders, as discussed in the historical value section.
The historical events reinforcing the communal value are the ‘testimony’ against tithes - the
refusal to pay tributes to the church or to the local landlords - and the early Quakers affirmation
of their rights to meet together for worship, both of which incurred in fines and persecutions
(Winchester, 1993). The persecution related to worship ended when the 1689 Toleration Act
allowed the construction of a meeting house dedicated to worship, while refusal to pay tithes
remained illegal until well into the 19th century.
Of greater importance under the heading of communal value is the spiritual value of the place for
today’s Quaker community, at all levels, from local to international (Winchester, 1993). For
many visitors to Yealand the object of their journey is to tour the “1652 Country” where in that
year the Society of Friends was established as a result of George Fox’s visits (Yealand Conyers
Parish Council, 2014)
UCLAN, MSc Building Conservation and Regeneration - BN4606 Building Recording and Analysis
Silvia Rossi, G20635985, Assignment Part 2: Building Record, May 2014 p. 73/81
Pilgrimages started in the 1930s, thanks to the vision of a few determined women who spent
much money and time in developing educational activities, offering opportunities for ‘spiritual
refreshment’ and creating in the vicinity of the meeting house the facilities needed to receive
large numbers of visitors.
Statement of Significance
The Yealand Meeting House is an early example of this building type in rural North of England,
whose construction started in various parts of the region after the promulgation of the Toleration
Act of 1689 (Butler, 1999).
By far the most important values of the building are the interlinked historical and communal
values, which take us back to the mid 17th
century, at the troubled start of the Quaker movement.
Those values, and especially the strong association with George Fox, the founder of the
movement, and other important names of the early Quakerism was reinforced by the start in the
1930s of pilgrimages to the ‘1652 country’, which came to include other important sites and
buildings linked to early Quakerism in the North of England. After the Second World War, the
pilgrimages grew in number and resonance within the international Quaker community. As a
result, various premises have been acquired in Yealand by the Society of Friends, for use as
accommodation and other facilities.
The high evidential value of the building, although not essential to support its communal value,
reinforces its historically illustrative value relating to the way meetings were conducted in the
past. It also demonstrates the adoption of the ‘cottage’ type and internal layout chosen for the
majority of Quaker meeting houses in the countryside, and the methods of construction and
detailing which are characteristics of the regional vernacular. The 1967 extension, with its modest
appearance and concealment from the entrance, does not detract from the character of the original
building.
Its aesthetic value is to be found outside, both in the simplicity of its forms and balanced
proportions and in the natural setting. On the inside, the detailing of the woodwork in the main
room shows a higher level of elaboration, which gives evidential value of the change of taste and
wealth in the 18th
C.
UCLAN, MSc Building Conservation and Regeneration - BN4606 Building Recording and Analysis
Silvia Rossi, G20635985, Assignment Part 2: Building Record, May 2014 p. 74/81
CONCLUSIONS
This study has demonstrated the significance of the Yealand Meeting House by identifying and
analysing the key elements which constitutes its heritage values.
Consideration of change in the future management of the building should take into account the
assessment of significance here contained to preserve – or enhance – these values.
REFERENCES
BRUNSKILL, R.W. (1974) Vernacular Architecture of the Lake Counties, London: Faber and
Faber.
BRUNSKILL, R.W. (2000) Vernacular Architecture: An Illustrated Handbook, London: Faber
and Faber.
BUTLER, D. (1990) Quaker Meeting Houses in America and England: Impressions and
Comparisons, Quaker History, Volume 79, Number 2, pp.93-104 (Article), London: Friends
Historical Association.
BUTLER, D. (1999) The Quaker Meeting Houses of Britain, Volume I, London: Friends
Historical Society.
DRURY, P. and MCPHERSON, A. (2008) Conservation Principles Policies and Guidance: for
Sustainable Management of the Historic Environment. London: English Heritage.
English Heritage (1968) British Listed Buildings: Quaker Meeting House, Yealand Conyers.
English Heritage [online] Available at: http://www.britishlistedbuildings.co.uk/en-182052-
quaker-meeting-house-yealand-conyers-lan [Accessed 31 March 2014].
FARRER, W. (1914) ‘Townships: Yealand Conyers’, A History of the County of Lancaster,
Volume 8, pp.177-180 [online] Available at: http://www.british-
history.ac.uk/report.aspx?compid=53291 [Accessed 31 March 2014].
UCLAN, MSc Building Conservation and Regeneration - BN4606 Building Recording and Analysis
Silvia Rossi, G20635985, Assignment Part 2: Building Record, May 2014 p. 75/81
Lancashire Central and North Area Meeting, (2014) Yealand Quakers. [online] Available at:
http://www.lancsquakers.org.uk/yealand.php [Accessed 31 March 2014].
Lancashire County Council, (2014) MARIO – Maps and Related Information Online [online]
Available at: http://mario.lancashire.gov.uk/agsmario/default.aspx[Accessed 29 March 2014].
Lancaster City Council (1966) Planning Application: Re-building of toilets and provision of
kitchen, Ref. 4317, Lancaster Planning Applications Register 1900-1974, ref. RDLA/acc/9884,
Lancashire Record Office.
Lancaster City Council (2005) Listed Building Application for alterations to toilet and repair to
windows, Ref. 05/00387/LB, Lancaster: Planning Department.
MORRISS, R.K. (2004) The Archeology of Buildings. Stroud: Tempus Publishing Ltd.
Natural England, (2013) 20 Morecambe Bay Limestones [online] Available at:
http://www.naturalengland.org.uk/publications/nca/morecambe_bay_limestones.aspx [Accessed
29 March 2014].
The National Archives, (2014) Domesday: Britain finest treasure [online] Available at:
http://www.nationalarchives.gov.uk/domesday/ [Accessed 30 March 2014].
WINCHESTER, A. (1993) Yealand Quakers: the history of a country meeting. A.J.L.
Winchester.
Yealand Conyers Parish Council, (2014) Yealand Conyers [online] Available at:
http://www.yealandconyers.org.uk/ [Accessed 31 March 2014].
UCLAN, MSc Building Conservation and Regeneration - BN4606 Building Recording and Analysis
Silvia Rossi, G20635985, Assignment Part 2: Building Record, May 2014 p. 76/81
APPENDIX A: Evolution of the site from 1890s to 1970
Extract from 1890s map Extract from 1910 map
Extract from 1930 map Extract from 1970 map
Source: Lancashire County Council, 2014.
UCLAN, MSc Building Conservation and Regeneration - BN4606 Building Recording and Analysis
Silvia Rossi, G20635985, Assignment Part 2: Building Record, May 2014 p. 77/81
Appendix 2: Pictures composed with the software Microsoft ICE
Picture 26 is a stitch of pictures 1, 2 and 3 to
the right.
Picture 1
Picture 2
Picture 3
UCLAN, MSc Building Conservation and Regeneration - BN4606 Building Recording and Analysis
Silvia Rossi, G20635985, Assignment Part 2: Building Record, May 2014 p. 78/81
Picture 30 is a stitch of pictures 4 and 5 below
Picture 4
Picture 5
UCLAN, MSc Building Conservation and Regeneration - BN4606 Building Recording and Analysis
Silvia Rossi, G20635985, Assignment Part 2: Building Record, May 2014 p. 79/81
Picture 31 is a stitch of pictures 6 and 7 below
Picture 6
Picture 7
UCLAN, MSc Building Conservation and Regeneration - BN4606 Building Recording and Analysis
Silvia Rossi, G20635985, Assignment Part 2: Building Record, May 2014 p. 80/81
Picture 33 is a stitch of pictures 8 and 9 below
Picture 8 Picture 9
UCLAN, MSc Building Conservation and Regeneration - BN4606 Building Recording and Analysis
Silvia Rossi, G20635985, Assignment Part 2: Building Record, May 2014 p. 81/81
Picture 50 is a stitch of pictures 10 and 11 below
Picture 10
Picture 11

S_Rossi_Building-Record_Assessment-of-Significance-2014

  • 1.
    UCLAN, MSc BuildingConservation and Regeneration - BN4606 Building Recording and Analysis Silvia Rossi, G20635985, Assignment Part 2: Building Record, May 2014 p. 1/81 Assignment Part 2: Building Record The Quaker Meeting House, Yealand Conyers, Lancashire Address: Yealand Friends Meeting House, 18 Yealand Road, Yealand Conyers, Carnforth, LA5 9SH OS Grid Reference: SD 50382 74420 Dates of recording: Survey 04 April 2014 Photographic record 22 April 2014 Author: Silvia Rossi
  • 2.
    UCLAN, MSc BuildingConservation and Regeneration - BN4606 Building Recording and Analysis Silvia Rossi, G20635985, Assignment Part 2: Building Record, May 2014 p. 2/81 Contents 1.0 Summary……………………………………………………………………………....p. 3 2.0 Introduction………………………………………………………………………….. .p. 4 2.1 Purpose and format…………………………………………………………....p. 4 2.2 The author……………………………………………………………………..p. 4 2.3 Recording procedure…………………………………………………………..p. 4 2.4 Archiving……………………………………………………………………….p. 4 3.0 General Description……………………………………………………………………p. 5 3.1 Site location…………………………………………………………………….p. 5 3.2 Site description…………………………………………………………………p. 6 3.3 Topography…………………………………………………………………….p. 6 4.0 Building Record………………………………………………………………………...p. 7 4.1 Written Record………………………………………………………………….p.7 4.1.1 Orientation………………………………………………………….... p. 7 4.1.2 Plan form and materials……………………………………………...p. 7 4.1.3 Detailed written description………………………………………… p. 8 4.2 Photographic Record…………………………………………………………...p. 11 4.3 Drawn Record…………………………………………………………………..p. 53 References…………………………………………………………………………………. p. 60 Appendix 1: Statement of Significance (Assignment 1)………………………………… p. 61 Appendix 2: Pictures composed with Microsoft ICE…………………………………… p. 77
  • 3.
    UCLAN, MSc BuildingConservation and Regeneration - BN4606 Building Recording and Analysis Silvia Rossi, G20635985, Assignment Part 2: Building Record, May 2014 p. 3/81 1.0 Summary The Quaker Meeting House of Yealand Conyers is situated at the centre of a plot of land adjacent to the main road through the village. From the main road the entrance to the building is reached by a gently sloping path running west to east. Its position, along with its orientation - the front elevation is perpendicular to the main road - renders the Meeting House invisible from the main road. The building plan is of the ‘cottage type’ rectangular form with the entrance on the long side wall, through a porch, and a projecting chimney breast on the gable end, to which was added a rectangular extension, housing a service area with kitchen and toilets. The main building was built in 1692 and its function has always been that of a Quaker place of worship. This is reflected in the building’s layout with its a subdivision into two areas of different sizes: the larger meeting room, with access to an upper gallery and the women’s meeting room. The latter was also used as a classroom until the middle of the eighteenth century. Today this space is used as the entrance hall and the library. The building underwent some external alterations after the 1737 fire, which destroyed the original thatched roof, whose structure is still visible on the North elevation. Following the accident, a slate roof was installed. Probably at the same time the original stone mullioned windows of the front elevation were enlarged and replaced with sash windows. The internal woodwork dates from the same period. The seventeenth century window with stone mullion and transom in the North wall was reinstated 10 years ago after being blocked off for many years. At the same time the cement render covering the external walls was removed from the North elevation, revealing the original rubble stonework facing. Internally, a ceiling and beam boxing were added at some point in the nineteenth century and more recently one of the three original shutters (i.e. the top-hung partitions closing the internal windows separating the two rooms) was replaced by a double door, making the main access door to the meeting room redundant.
  • 4.
    UCLAN, MSc BuildingConservation and Regeneration - BN4606 Building Recording and Analysis Silvia Rossi, G20635985, Assignment Part 2: Building Record, May 2014 p. 4/81 2.0 Introduction 2.1 Purpose and format The content of this document has been developed for the purposes - academic and professional development - of the module Building Recording and Analysis of the MSc Building Conservation and Regeneration of the University of Central Lancashire (UCLAN). This is the second part of the assessment for the module aimed at furthering the student’s ability to appraise and assess the value of historic buildings. The format of this document, following the assignment brief, adheres closely to the guidance given in the English Heritage publication ‘Understanding Historic Buildings: A Guide to Good Recording Practice’ (English Heritage, 2006). The main body of this document is the Building Record, made up of a detailed written account illustrated by a photographic record and a drawn record. 2.2 The Author Silvia Rossi, the author, is a student on the MSc Building Conservation and Regeneration at the University of Central Lancashire. She has a degree in Architecture and an MSc in Advanced Environmental and Energy Studies in Architecture; her professional background is as an architect in the UK and Italy. 2.3 Recording procedure Following visual inspections of the property, a detailed survey of the building was carried out with manual instruments: 5- and 30-metre measuring tapes and a 5-metre staff. Measurements were recorded on both sketched drawings and copies of previous planning application drawings (Lancaster City Council, 1966). A photographic record was taken soon afterwards. 2.4 Archiving The Building Record is submitted through the UCLAN Virtual University Platform in electronic form, in PDF format. The page setup for printing is in colour on A4 paper.
  • 5.
    UCLAN, MSc BuildingConservation and Regeneration - BN4606 Building Recording and Analysis Silvia Rossi, G20635985, Assignment Part 2: Building Record, May 2014 p. 5/81 3.0 General Description 3.1 Site location Figure 1 – Location plan (OS/EDINA, 2014) The meeting house is located at National Grid Reference SD 50382 74420, near the centre of Yealand Conyers, on a site adjacent to the main road (Yealand Road) crossing the village (Figure 1).
  • 6.
    UCLAN, MSc BuildingConservation and Regeneration - BN4606 Building Recording and Analysis Silvia Rossi, G20635985, Assignment Part 2: Building Record, May 2014 p. 6/81 3.2 Site description Figure 2 – Site plan (OS/EDINA, 2014) The Meeting House sits in the middle of the elongated quasi-rectangular plot of land shown in Figure 2 and is accessible from the pedestrian pavement through a signposted gate. The plot, whose boundaries merge with those of the Old Quaker School to the South-West, has always been used as a burial ground, with the oldest graves being at the top, on the west side. 3.3 Topography The site of the Meeting house lies upon a hilly ridge at an altitude of around 400ft (122 m) above sea level (Farrer, 1914). The building’s entrance is at about 25 metres from the access gate, and is reached by a gently sloping path running west to east. This position makes the building invisible from the main road. The gradient becomes steeper for a short distance at the east side of building before becoming more gentle again down to the East boundary, which affords beautiful views over the adjacent valley and farmland.
  • 7.
    UCLAN, MSc BuildingConservation and Regeneration - BN4606 Building Recording and Analysis Silvia Rossi, G20635985, Assignment Part 2: Building Record, May 2014 p. 7/81 4.0 Building Record 4.1 Written Record 4.1.1 Orientation The front elevation of the Meeting House, with the main entrance, is south facing and almost perpendicular to the main road 4.1.2 Plan form and materials The plan of the Meeting House comprises firstly the original rectangular body with the porch, and then the 1967 extension on the east side. From the porch, two doors lead respectively to a larger room to the right, used for worship meetings, and to a smaller room to the left, half the size. This latter space, once the women’s’ meeting room, has become an entrance hall and library from which access is given on the right hand side to the service area in the extension and on the left hand side to the meeting room. The main room is subdivided by the wooden structure supporting the gallery floor into a) a large double height space with facing benches and b) an entrance corridor which runs from the door to a staircase leading to an upper gallery. Two large windows on the front elevation provide direct natural light to the main room. On the rear wall a smaller former window has been recently reinstated. Smaller windows on opposite sides give light to both the hall and the gallery above. The material used for the original walls is limestone in random rubble, only visible in the rear elevation (recently repointed) while all other outer wall surfaces are covered with cement render. Dressed cut stone is used in the segmental arch and jambs of the porch doorway and the surrounds of the entrance doors and some of the windows. Inside, including in the porch, the walls are plastered. A slate roof has been used since 1737, when a fire destroyed the original thatched roof and part of the walls (Butler, 1999). The main roof structure consists of kingpost trusses, purlins and rafters.
  • 8.
    UCLAN, MSc BuildingConservation and Regeneration - BN4606 Building Recording and Analysis Silvia Rossi, G20635985, Assignment Part 2: Building Record, May 2014 p. 8/81 4.1.3 Detailed written description Introduction The following description will give an account of the characteristics and features of the building fabric externally and internally. On the exteriors, the account will follow the sequence illustrated in the photographic record, starting from the front elevation and going clockwise around the building. The chimney and the roof will be described at the end of the section. On the interiors, the various zones of the building and their main features and details will be described. Exteriors The design of the front elevation gives some indications of the internal layout of the meeting house, with the two tall sash windows of the meeting room to the left, the entrance sheltered by the porch in an eccentric position and the two smaller square windows of the hall and gallery to the right (pictures 1, 2 and 3). The porch (picture 4) has a gable roof with a raking gable coping finished by kneelers (pictures 8, 9 and 10) and a frontal opening with chamfered stone jambs and a segmental arch with the date of construction ‘1692’ carved at the impost as shown in pictures 5 and 6. The keystone shows signs of a fixed decorative feature that has been removed (picture 7). As described in English Heritage’s listing (English Heritage, 1968) the eighteenth century sash windows, to the left of the porch, have ‘glazing bars and plain stone surrounds with narrow cyma moulding’ (pictures 11 and 12). To the right of the porch is ‘a fixed window with one rebated and chamfered jamb. Above, lighting the gallery is a rebated and chamfered surround for a former 2- light window’ (pictures 13 and 14). The West elevation has a plain gable end; this wall is covered with cement render (pictures 15 and 16) as are the exterior walls of the front elevation and the porch. The north facing rear elevation (pictures 17 and 18) is of stone facing and shows evidence of an old wooden structure consisting of three round timber sections, roughly at the height of the gallery window sill (pictures 19, 20 and 22), which is likely to be part of the old thatched roof structure. The walls were raised, reducing the roof gradient to accommodate a slate roof, after the 1737 fire (Butler, 1990).
  • 9.
    UCLAN, MSc BuildingConservation and Regeneration - BN4606 Building Recording and Analysis Silvia Rossi, G20635985, Assignment Part 2: Building Record, May 2014 p. 9/81 On the rear elevation, a new door was opened in 1966 to provide a fire escape. The original 1692 window with stone mullion and transom was restored and re-instated some 10 years ago, after being previously blocked off (Lancaster City Council, 2005). Iron pintles, for hinges of a former shutter, are still visible on the left stone window margin (picture 21). The left hand side windows, lighting both the hall at ground floor level and the gallery above, are encased in plain square reveals and are single glazed with bars and top opening (pictures 22 and 23). The gable end of the East elevation is partially covered at ground floor level by the 1967 extension (pictures 24 and 25) and features an imposing projecting chimney stack with moulded weathering at the top and water tabling of projecting stone slabs at the bottom (pictures 27 and 28). At each side of the stack, under the roof board, ventilation openings closed with mesh were provided in more recent times; to the left of the stack there is evidence of a small blocked off opening (picture 26). The current slate roof was installed recently, replacing the original 1737 damaged slate roof, and the original stone ridge was restored to its position. The roof is finished with moulded bargeboards on the gable ends and a fascia on the rear elevation (pictures 29 and 30). Interiors Inside the porch, a built-in seat spans the left hand side wall (picture 31). The faux ashlar stone wall surfaces simulate neatly cut blocks of 610 mm x 305 mm and thin and regular mortar joints (NB this is contrary to what was previously observed and stated in the first report in Appendix 1). The wall finish is revealed at points of plaster detachment (picture 32) and at junctions between walls where the plaster is cracked. A similar surface treatment of faux stone blocks painted over is found inside the building. The two inner doorways have chamfered stone surrounds and doors with raised and fielded panels and original ironmongery (pictures 35, 36 and 38). The former women’s meeting room, now functioning as the entrance hall and library, has two opposite windows with glazing bars, both on splayed reveals (pictures 37 and 40). The connection with the meeting room, on the left hand side, is through the middle former shutter opening, recently changed into a door (picture 39). The other two openings and shutters have been conserved, but they are not in use. On the low ceiling of the hall the three original shutter
  • 10.
    UCLAN, MSc BuildingConservation and Regeneration - BN4606 Building Recording and Analysis Silvia Rossi, G20635985, Assignment Part 2: Building Record, May 2014 p. 10/81 hooks have been left in place (picture 41). On the meeting room side of the dividing wall, the original raised-panel shutters and one remaining broken hook are still visible (picture 46 and 47). The buffer zone between the hall and the meeting room originally functioned as a corridor from the access door - currently not in use - to the L-shape staircase leading to the gallery (pictures 44 and 45). The enclosing walls are lined with, and the partitions are made of, raised wooden panels. Thick curtains are used to complete the enclosure of spaces. The meeting room is a double height space lighted by the two sash windows of the South wall and from the seventeenth century window with painted mullion and transom of the North wall (pictures 48 to 51). It is furnished with facing benches running perpendicularly to the entrance from the buffer zone and two long benches, one of which is on a raised floor, facing the gallery (pictures 53 and 54). The pew on a raised floor faces a wooden parapet equipped with pivotally mounted book holders. Wooden raised and fielded panellings line the lower part of the wall up to window sill height. Similarly decorated panels are used for the gallery front and for the infill partitions between fluted pilasters with moulded capitals supporting the gallery floor (picture 52). Elaborate iron brackets for oil lamps enrich the wooden structure (picture 55). The gallery has a stepped floor and is furnished with long rows of seats (pictures 59, 60 and 61). It is not often in use and it is kept closed with removable wooden boards. It is lighted by two opposite windows with splayed reveals, of which the one on the South wall is a re-adaptation of a stone mullioned window, as shown by the mullion foot on the lower part of the frame. This is in an eccentric position, indicating that the window might have been resized (picture 62). The former warden, Mr J. Jarvis, informed the present author that the current ceiling and beam boxing was provided in 1880, but no written record of this information was found. The blocked- off opening at the height of the internal ceiling in the East elevation (picture 26) indicates that originally the roof structure was visible from the inside of the meeting room. This roof structure consists of three kingpost trusses supported on the side walls, with purlins carried by the trusses and by the gable walls and rafters (picture 63).
  • 11.
    UCLAN, MSc BuildingConservation and Regeneration - BN4606 Building Recording and Analysis Silvia Rossi, G20635985, Assignment Part 2: Building Record, May 2014 p. 11/81 4.2 Photographic Record The photographic record of the building consists of general views from the exteriors and the interiors and close ups showing significant details. Pictures are accompanied by captions which supplement the information in the written record. The direction from which the pictures were taken is marked on the location plans of each floor as shown in figure 3.
  • 12.
    UCLAN, MSc BuildingConservation and Regeneration - BN4606 Building Recording and Analysis Silvia Rossi, G20635985, Assignment Part 2: Building Record, May 2014 p. 12/81 Figure 3 – Location plans of photographs (starts at page 11). In this page: roof, gallery and loft plans
  • 13.
    UCLAN, MSc BuildingConservation and Regeneration - BN4606 Building Recording and Analysis Silvia Rossi, G20635985, Assignment Part 2: Building Record, May 2014 p. 13/81 Picture 1 - Front elevation (South facing).
  • 14.
    UCLAN, MSc BuildingConservation and Regeneration - BN4606 Building Recording and Analysis Silvia Rossi, G20635985, Assignment Part 2: Building Record, May 2014 p. 14/81 Picture 2 – View of front elevation from South-East. The water tabling of the bottom part of the chimney stack is easily visible from this angle. Picture 3 – View of front elevation and West elevation from South-West.
  • 15.
    UCLAN, MSc BuildingConservation and Regeneration - BN4606 Building Recording and Analysis Silvia Rossi, G20635985, Assignment Part 2: Building Record, May 2014 p. 15/81 Picture 4 – Close up of the front elevation of the porch showing the stone elements of the porch and their ‘patina’ (i.e. the thin layer that forms on the surface of materials through age and exposure) left visible on the roughcast cement rendered surface.
  • 16.
    UCLAN, MSc BuildingConservation and Regeneration - BN4606 Building Recording and Analysis Silvia Rossi, G20635985, Assignment Part 2: Building Record, May 2014 p. 16/81 Picture 5 – The first two digits of the construction date, ‘16’, inscribed in a square (175mm x 130mm) in bas-relief on the left hand side impost block. Picture 6 - The last two digits of the construction date ‘92’ inscribed in a square (180mm x 125mm) in bas-rilief on the right hand side impost block.
  • 17.
    UCLAN, MSc BuildingConservation and Regeneration - BN4606 Building Recording and Analysis Silvia Rossi, G20635985, Assignment Part 2: Building Record, May 2014 p. 17/81 Picture 7 – Keystone with imprint of missing decorative element and fixing holes. Picture 8 – Detail of the left kneeler with coping above. Both elements feature classical moulding: the kneeler has the shape of a ‘cyma reversa’ (upper convex curve and a lower concave curve) while the coping that of a ‘cavetto’ (a concave moulding) (Pagliacco Milling and Turning, 2005).
  • 18.
    UCLAN, MSc BuildingConservation and Regeneration - BN4606 Building Recording and Analysis Silvia Rossi, G20635985, Assignment Part 2: Building Record, May 2014 p. 18/81 Picture 9 – Shaped apex stone of the gable coping. Picture 10 – Raking gable coping and kneeler as seen from the gallery window. The stone ridge abutting on the apex stone is also visible.
  • 19.
    UCLAN, MSc BuildingConservation and Regeneration - BN4606 Building Recording and Analysis Silvia Rossi, G20635985, Assignment Part 2: Building Record, May 2014 p. 19/81 Picture 11 – Close up of eighteenth century sash window on the front elevation. Raised plain stone surround with narrow cyma mouldings. Picture 12 (below): Detail of sill and lower part of jamb of eighteenth century sash window on the front elevation. The jamb is rebated and moulded with a ‘cyma reversa’.
  • 20.
    UCLAN, MSc BuildingConservation and Regeneration - BN4606 Building Recording and Analysis Silvia Rossi, G20635985, Assignment Part 2: Building Record, May 2014 p. 20/81 Picture 13 – Detail of ground floor window on the front elevation, to the right of the porch. The window is fixed with one rebated and chamfered jamb. Picture 14 - Detail of first floor window on the front elevation, to the right of the porch. The window is fixed with a rebated and chamfered surround for a former 2-light window.
  • 21.
    UCLAN, MSc BuildingConservation and Regeneration - BN4606 Building Recording and Analysis Silvia Rossi, G20635985, Assignment Part 2: Building Record, May 2014 p. 21/81 Picture 15 – West elevation. From this angle the gable end are partially concealed by a tree. Picture 16 - View of the rear elevation and West elevation from North -West.
  • 22.
    UCLAN, MSc BuildingConservation and Regeneration - BN4606 Building Recording and Analysis Silvia Rossi, G20635985, Assignment Part 2: Building Record, May 2014 p. 22/81 Picture 17 – Rear elevation (North facing) partially covered by the boundary wall. The remains of an old wooden structure consisting of three round timber sections are visible on the wall surface, roughly at the height of the gallery window sill. Picture 18 – View of rear elevation from the left.
  • 23.
    UCLAN, MSc BuildingConservation and Regeneration - BN4606 Building Recording and Analysis Silvia Rossi, G20635985, Assignment Part 2: Building Record, May 2014 p. 23/81 Picture 19 – Detail of timber section of the old thatched roof structure, positioned above the seventeenth century mullioned window of the rear elevation, at gallery window sill height. Picture 20 - Detail of the middle timber section of the old thatched roof structure, positioned at gallery window sill height.
  • 24.
    UCLAN, MSc BuildingConservation and Regeneration - BN4606 Building Recording and Analysis Silvia Rossi, G20635985, Assignment Part 2: Building Record, May 2014 p. 24/81 Picture 21 – Rear elevation. Close up of the seventeenth century original window with stone mullion and transom restored (including the provision of new timber frames and glazing) and re-instated some 10 years ago (Lancaster City Council, 2005), after being previously blocked off. Iron pintles for the hinges of a former shutter are still visible on the left stone window margin.
  • 25.
    UCLAN, MSc BuildingConservation and Regeneration - BN4606 Building Recording and Analysis Silvia Rossi, G20635985, Assignment Part 2: Building Record, May 2014 p. 25/81 Picture 22 – Close up of gallery window on the rear elevation. Plain square reveal, single glazing with bars and top opening. The timber section of the old roof structure is visible to the right of the sill. Picture 23 - Close up of gallery window on the rear elevation. Stone lintel, plain square reveal, single glazing with bars and top opening.
  • 26.
    UCLAN, MSc BuildingConservation and Regeneration - BN4606 Building Recording and Analysis Silvia Rossi, G20635985, Assignment Part 2: Building Record, May 2014 p. 26/81 Picture 24 – View of the East elevation and part of the North elevation from North-East. Picture 25 – East elevation partially covered by the 1967 extension.
  • 27.
    UCLAN, MSc BuildingConservation and Regeneration - BN4606 Building Recording and Analysis Silvia Rossi, G20635985, Assignment Part 2: Building Record, May 2014 p. 27/81 Picture 26 – Close up of the projecting chimney stack on the East elevation with moulded (‘cavetto’) weathering at the top and water tabling of projecting stone slabs at the bottom. At each side of the stack, under the roof board, ventilation openings closed with mesh were provided in more recent times; also, evidence of a small blocked-off opening is visible to the left of the stack (Picture composed with Microsoft ICE, see Appendix 2).
  • 28.
    UCLAN, MSc BuildingConservation and Regeneration - BN4606 Building Recording and Analysis Silvia Rossi, G20635985, Assignment Part 2: Building Record, May 2014 p. 28/81 Picture 27 – Detail of water tabling of projecting stone slabs at the bottom of chimney stack (rear elevation) and of the junction with the roof of the 1967 extension at ridge height. The provision of modern lead flashing replaces the waterproofing function of the projecting stone slab. Picture 28 – Detail of top of chimney stack with its moulded (‘cavetto’) weathering. View from South.
  • 29.
    UCLAN, MSc BuildingConservation and Regeneration - BN4606 Building Recording and Analysis Silvia Rossi, G20635985, Assignment Part 2: Building Record, May 2014 p. 29/81 Picture 29 – Detail of original stone ridge and end stone on recent slate roof. View from South. Picture 30 – Detail of slate roof at top of gable end. The roof is finished with a moulded bargeboard. The ridge beam end appears to have been replaced by a steel element. (Picture composed with Microsoft ICE, see Appendix 2)
  • 30.
    UCLAN, MSc BuildingConservation and Regeneration - BN4606 Building Recording and Analysis Silvia Rossi, G20635985, Assignment Part 2: Building Record, May 2014 p. 30/81 Picture 31 – Porch interior. A built-in seat spans the left hand wall. The faux ashlar stone wall surfaces simulate neatly cut blocks of 610 mm x 305 mm and thin mortar joints (Picture composed with Microsoft ICE, see Appendix 2). Picture 32 – Detail showing plaster detachment under the porch seat.
  • 31.
    UCLAN, MSc BuildingConservation and Regeneration - BN4606 Building Recording and Analysis Silvia Rossi, G20635985, Assignment Part 2: Building Record, May 2014 p. 31/81 Picture 33 – Porch interior. View of right hand wall.
  • 32.
    UCLAN, MSc BuildingConservation and Regeneration - BN4606 Building Recording and Analysis Silvia Rossi, G20635985, Assignment Part 2: Building Record, May 2014 p. 32/81 Picture 34 – Porch interior. Sloping ceiling and ridge beam. Picture 35 – Porch interior. The two inner doorways have chamfered stone surrounds and doors with raised and fielded panels.
  • 33.
    UCLAN, MSc BuildingConservation and Regeneration - BN4606 Building Recording and Analysis Silvia Rossi, G20635985, Assignment Part 2: Building Record, May 2014 p. 33/81 Picture 36 – Porch interior. Detail of seventeenth century ironmongery: keyhole and vertical door handle with thumb-plate operating the latch to the other side of the door (Hall, 1999).
  • 34.
    UCLAN, MSc BuildingConservation and Regeneration - BN4606 Building Recording and Analysis Silvia Rossi, G20635985, Assignment Part 2: Building Record, May 2014 p. 34/81 Picture 37 – Entrance hall/library interior, originally the women’s meeting room. View of the window and of the entrance door with long wrought iron hinges. Picture 38 - Detail of seventeenth century latch on inner face of entrance door.
  • 35.
    UCLAN, MSc BuildingConservation and Regeneration - BN4606 Building Recording and Analysis Silvia Rossi, G20635985, Assignment Part 2: Building Record, May 2014 p. 35/81 Picture 39 - Entrance hall/library interior. View of the wall with two of the original ‘shutters’ openings. The third shutter opening has been changed into a doorway for a double door. On the ceiling, the three wrought-iron hooks which were used to hold the top-hung shutters open have been left in place. …the shutters were not opened in a systematic way, rather only when the whole space was needed for larger occasions (Butler, 1990). Picture 40 - View of the far end wall of entrance hall/library with the projecting staircase to the gallery.
  • 36.
    UCLAN, MSc BuildingConservation and Regeneration - BN4606 Building Recording and Analysis Silvia Rossi, G20635985, Assignment Part 2: Building Record, May 2014 p. 36/81 Picture 41- Detail of wrought-iron hooks used to hold the shutters open.
  • 37.
    UCLAN, MSc BuildingConservation and Regeneration - BN4606 Building Recording and Analysis Silvia Rossi, G20635985, Assignment Part 2: Building Record, May 2014 p. 37/81 Picture 42 - Entrance hall/library interior. View of opening connecting the hall with the toilet area in the extension. Picture 43 - Entrance hall/library interior. View of the library bookshelves.
  • 38.
    UCLAN, MSc BuildingConservation and Regeneration - BN4606 Building Recording and Analysis Silvia Rossi, G20635985, Assignment Part 2: Building Record, May 2014 p. 38/81 Picture 44 – Corridor between the hall/library and the meeting room. View of the staircase leading up to the gallery and of the separating door.
  • 39.
    UCLAN, MSc BuildingConservation and Regeneration - BN4606 Building Recording and Analysis Silvia Rossi, G20635985, Assignment Part 2: Building Record, May 2014 p. 39/81 Picture 45 – View of the inner face of the meeting room access door from the porch. The door is currently not in use.
  • 40.
    UCLAN, MSc BuildingConservation and Regeneration - BN4606 Building Recording and Analysis Silvia Rossi, G20635985, Assignment Part 2: Building Record, May 2014 p. 40/81 Picture 46 – Corridor: view of one of the raised and fielded panelled shutters.
  • 41.
    UCLAN, MSc BuildingConservation and Regeneration - BN4606 Building Recording and Analysis Silvia Rossi, G20635985, Assignment Part 2: Building Record, May 2014 p. 41/81 Picture 47 – Corridor: detail of broken shutter hook.
  • 42.
    UCLAN, MSc BuildingConservation and Regeneration - BN4606 Building Recording and Analysis Silvia Rossi, G20635985, Assignment Part 2: Building Record, May 2014 p. 42/81 Picture 48 – View of the meeting room interior from the North-East corner looking to South wall. Furniture consists of facing benches running perpendicularly to the entrance and two long benches facing the gallery. Picture 49 - View of the meeting room interior from the South-East corner, looking to West wall.
  • 43.
    UCLAN, MSc BuildingConservation and Regeneration - BN4606 Building Recording and Analysis Silvia Rossi, G20635985, Assignment Part 2: Building Record, May 2014 p. 43/81 Picture 50 - View of the meeting room interior from the South-West corner, looking to North wall (Picture composed with Microsoft ICE, see Appendix 2). Picture 51 – Close up of inner side of seventeenth century window with splayed reveal.
  • 44.
    UCLAN, MSc BuildingConservation and Regeneration - BN4606 Building Recording and Analysis Silvia Rossi, G20635985, Assignment Part 2: Building Record, May 2014 p. 44/81 Picture 52 – View of long bench facing the gallery used by the Ministers and/or the Elders. Picture 53 - View of long bench on raised floor facing the gallery and of reclining book holder.
  • 45.
    UCLAN, MSc BuildingConservation and Regeneration - BN4606 Building Recording and Analysis Silvia Rossi, G20635985, Assignment Part 2: Building Record, May 2014 p. 45/81 Picture 54 - View of the meeting room interior from the West wall, looking to gallery and panelled partition underneath.
  • 46.
    UCLAN, MSc BuildingConservation and Regeneration - BN4606 Building Recording and Analysis Silvia Rossi, G20635985, Assignment Part 2: Building Record, May 2014 p. 46/81 Picture 55 – Meeting room interior. Close up of the wooden raised and fielded panels between wood pilaster and wall, of the fluted pilaster with moulded capital and of the iron brackets for oil lamps.
  • 47.
    UCLAN, MSc BuildingConservation and Regeneration - BN4606 Building Recording and Analysis Silvia Rossi, G20635985, Assignment Part 2: Building Record, May 2014 p. 47/81 Picture 56 – Detail of woodwork on the gallery parapet.
  • 48.
    UCLAN, MSc BuildingConservation and Regeneration - BN4606 Building Recording and Analysis Silvia Rossi, G20635985, Assignment Part 2: Building Record, May 2014 p. 48/81 Picture 57 – View of the L-shaped stairs to the gallery and of the door on landing.
  • 49.
    UCLAN, MSc BuildingConservation and Regeneration - BN4606 Building Recording and Analysis Silvia Rossi, G20635985, Assignment Part 2: Building Record, May 2014 p. 49/81 Picture 58 - Detail of seventeenth century ironmongery: vertical door handle fixed on the door with no plate, with thumb-plate operating the latch to the other side of the door.
  • 50.
    UCLAN, MSc BuildingConservation and Regeneration - BN4606 Building Recording and Analysis Silvia Rossi, G20635985, Assignment Part 2: Building Record, May 2014 p. 50/81 Picture 59 – View of the gallery from North-East corner. Picture 60 - View of the gallery from South. Boards are used to close up the gallery when not in use.
  • 51.
    UCLAN, MSc BuildingConservation and Regeneration - BN4606 Building Recording and Analysis Silvia Rossi, G20635985, Assignment Part 2: Building Record, May 2014 p. 51/81 Picture 61 - View of the gallery from North. Picture 62 – Gallery. Close up of window on South wall previously a stone mullioned window, as shown by the mullion foot in eccentric position on the lower part of the frame.
  • 52.
    UCLAN, MSc BuildingConservation and Regeneration - BN4606 Building Recording and Analysis Silvia Rossi, G20635985, Assignment Part 2: Building Record, May 2014 p. 52/81 Picture 63 – View of the loft from hatch showing the roof structure: kingpost trusses, purlins and rafters.
  • 53.
    UCLAN, MSc BuildingConservation and Regeneration - BN4606 Building Recording and Analysis Silvia Rossi, G20635985, Assignment Part 2: Building Record, May 2014 p. 53/81 4.3 Drawn Record List of drawings: - Ground floor plan - Gallery plan - Longitudinal section A – A1 - Cross section B – B1 - Front elevation (South facing) - Side elevation (West facing) - Rear elevation ( North facing) - Side elevation (East facing)
  • 54.
    UCLAN, MSc BuildingConservation and Regeneration - BN4606 Building Recording and Analysis Silvia Rossi, G20635985, Assignment Part 2: Building Record, May 2014 p. 54/81
  • 55.
    UCLAN, MSc BuildingConservation and Regeneration - BN4606 Building Recording and Analysis Silvia Rossi, G20635985, Assignment Part 2: Building Record, May 2014 p. 55/81
  • 56.
    UCLAN, MSc BuildingConservation and Regeneration - BN4606 Building Recording and Analysis Silvia Rossi, G20635985, Assignment Part 2: Building Record, May 2014 p. 56/81
  • 57.
    UCLAN, MSc BuildingConservation and Regeneration - BN4606 Building Recording and Analysis Silvia Rossi, G20635985, Assignment Part 2: Building Record, May 2014 p. 57/81
  • 58.
    UCLAN, MSc BuildingConservation and Regeneration - BN4606 Building Recording and Analysis Silvia Rossi, G20635985, Assignment Part 2: Building Record, May 2014 p. 58/81
  • 59.
    UCLAN, MSc BuildingConservation and Regeneration - BN4606 Building Recording and Analysis Silvia Rossi, G20635985, Assignment Part 2: Building Record, May 2014 p. 59/81
  • 60.
    UCLAN, MSc BuildingConservation and Regeneration - BN4606 Building Recording and Analysis Silvia Rossi, G20635985, Assignment Part 2: Building Record, May 2014 p. 60/81 REFERENCES BUTLER, D. (1990) Quaker Meeting Houses in America and England: Impressions and Comparisons, Quaker History, Volume 79, Number 2, pp.93-104 (Article), London: Friends Historical Association. BUTLER, D. (1999) The Quaker Meeting Houses of Britain, Volume I, London: Friends Historical Society. English Heritage (1968) British Listed Buildings: Quaker Meeting House, Yealand Conyers. English Heritage [online] Available at: http://www.britishlistedbuildings.co.uk/en-182052- quaker-meeting-house-yealand-conyers-lan [Accessed 31 March 2014]. English Heritage (2006) Understanding Historic Buildings: A Guide to Good Recording Practice, English Heritage Publishing. FARRER, W. (1914) ‘Townships: Yealand Conyers’, A History of the County of Lancaster, Volume 8, pp.177-180 [online] Available at: http://www.british- history.ac.uk/report.aspx?compid=53291 [Accessed 31 March 2014]. HALL, L. (1999), Early and Vernacular Door Fittings, The Building Conservation Directory 1999 [online] Available at: http://www.buildingconservation.com/articles/doors/door_furniture.htm [Accessed 5 May 2014] Lancaster City Council (1966) Planning Application: Re-building of toilets and provision of kitchen, Ref. 4317, Lancaster Planning Applications Register 1900-1974, Lancaster: Planning Department. Lancaster City Council (2005) Listed Building Application for alterations to toilet and repair to windows, Ref. 05/00387/LB, Lancaster: Planning Department. Ordnance Service/ EDINA (2014) Digimap [online] Available at: http://digimap.edina.ac.uk/digimap/home [Accessed 2 May 2014]. Pagliacco Milling and Turning (2005) Illustrated Glossary of Classical Architecture [online] Available at: http://www.doric-column.com/glossary_classical_architecture.html#B [Accessed 5 May 2014]
  • 61.
    UCLAN, MSc BuildingConservation and Regeneration - BN4606 Building Recording and Analysis Silvia Rossi, G20635985, Assignment Part 2: Building Record, May 2014 p. 61/81 Appendix 1: Statement of Significance (Assignment 1) Assignment Part 1: Assessment of Significance The Quaker Meeting House in Yealand Conyers, Lancashire Figure 1 - Sketch illustrating the Yealand Meeting House front elevation and its surroundings. Author: David Butler, 1981. Source: Butler (1999)
  • 62.
    UCLAN, MSc BuildingConservation and Regeneration - BN4606 Building Recording and Analysis Silvia Rossi, G20635985, Assignment Part 2: Building Record, May 2014 p. 62/81 INTRODUCTION The purpose of the assignment is to produce an ‘assessment of significance’ of the Yealand Meeting House, a Grade II* listed building, using the headings laid down in English Heritage’s ‘Conservation Principles, Policies and Guidance’ (Drury & McPherson, 2008). Some preliminary information will be offered on the location of the building, its local history and its setting, plan form and materials. Some representative photographs will illustrate its external appearance. LOCATION DETAILS OF YEALAND QUAKER MEETING HOUSE Figure 2 – Yealand Conyers location map, scale 1: 5000 with the position of the Quaker Meeting House – Source: Lancashire County Council (2014) Address: Yealand Friends Meeting House, 18 Yealand Road, Yealand Conyers, Carnforth, LA5 9SH (Lancashire Central and North Area Meeting, 2014) OS Grid Reference: SD5038474425 OS Grid Coordinates: 350384, 474425 (Lancashire County Council, 2014) The village of Yealand Conyers is about 1 mile to the west of the A6 and about 3 miles to the north of Carnforth, the nearest market town. Although it is set in a rural location, junction 35 of Quaker Meeting House
  • 63.
    UCLAN, MSc BuildingConservation and Regeneration - BN4606 Building Recording and Analysis Silvia Rossi, G20635985, Assignment Part 2: Building Record, May 2014 p. 63/81 the M6 is only 3.6 miles away to the South. The meeting house is situated on a site next to the main road crossing the village (Figure 2) and accessible through a signposted gate. RELEVANT KEY FEATURES OF THE AREA Figure 3 – National Character Area 20: Morecambe Bay Limestones. Source: Natural England (2013) In 2013 Natural England produced a document identifying areas that share similar landscape characteristics, and which follow natural lines in the landscape … (Natural England, 2013, p.2). The key features of the rural landscape and settlements in the area which includes Yealand Conyers (Figure 3) are:
  • 64.
    UCLAN, MSc BuildingConservation and Regeneration - BN4606 Building Recording and Analysis Silvia Rossi, G20635985, Assignment Part 2: Building Record, May 2014 p. 64/81  The limestones – which give structure to the landscape - support a mixed pastoral farming and woodland landscape, often in tight mosaics, with orchards surrounding the farmsteads and fields bounded by limestone drystone walls.  Settlements are generally dispersed and rural in character, having usually grown around large farmsteads.  Large parts of farmland were, and remain, owned by estates, with stately homes set in parkland and associated tenant farms. (p.10)  A vernacular building style common to all settlements and farmsteads based on the use of local limestone for walls and Lake District slate. (Natural England, 2013, pp.7-8) The natural and heritage significance of the Yealand Conyers area is statutorily recognised by two designations: Area of Outstanding Natural Beauty (The Arnside and Silverdale AONB) and Conservation Area (The Yealands 1981). BRIEF HISTORICAL BACKGROUND, SITE DESCRIPTION AND ITS HISTORICAL EVOLUTION Yealand is mentioned in the Domesday Book, the earliest surviving public record of the land and people in England and part of Wales, 1086 (The National Archives, 2014) by the name ‘Jalant’, (which) derives from the Anglo-Saxon word meaning ‘high ground’. The part of Yealand Conyers where the meeting house was built lies upon a hilly ridge at an altitude of 400ft (122 m) above sea level (Farrer, 1914). The name Conyers comes from past Lords of the Manor (Yealand Conyers Parish Council, 2014) in the mid 13th century (Farrer, 1914). During the mid 17th century the villages of Conyers and Redmayne became associated with the persecuted Quaker movement. George Fox, Quaker leader, preached in Yealand Conyers in 1652. The Meeting House was built in 1692 and is still in regular use, as is the burial ground within its wall boundaries (Yealand Conyers Parish Council, 2014).
  • 65.
    UCLAN, MSc BuildingConservation and Regeneration - BN4606 Building Recording and Analysis Silvia Rossi, G20635985, Assignment Part 2: Building Record, May 2014 p. 65/81 Figure 4 – Extract from1840s historic map. Source: Lancashire County Council, 2014. Figure 5 – View from the entrance. Source: Present author (2014) The Meeting House is not visible from the main road, being discretely set on a quiet part of the site, originally on its North-East far corner as illustrated on the 1840s map (Figure 4). The building’s entrance is at about 35 m. from the access gate, and it is reached through a gently sloping path running west to east. The site has always been used as a burial ground, with the oldest graves being at the top, on the west side. A few mature trees create a sort of coulisse of vegetation around the building, marking the visual path to the bottom of the site, which affords beautiful views over the sloping valley and farmland (Figure 5). The 1970 map (Figure 6) shows the new boundaries of the enlarged site, to the east; this area is currently in use as a burial ground. The evolution of the developments around the Meeting House, following the acquisition of the land by the Society of Friends (the name of the Quakers’ organisation), can be traced trough the sequence of historic maps from the 1890s, 1910, 1930 and 1970, as shown in Appendix A.
  • 66.
    UCLAN, MSc BuildingConservation and Regeneration - BN4606 Building Recording and Analysis Silvia Rossi, G20635985, Assignment Part 2: Building Record, May 2014 p. 66/81 Figure 6 - Extract from 1970 historic map. Source: Lancashire County Council, 2014. The Old School (the complex of buildings named Hall in the 1970 map – now a hostel) and the old School Master’s house (n. 20 – recently restored to create additional accommodation) were enlarged (Butler, 1990 and Winchester, 1993) at some point before the 1890s. In the same period small service outbuildings were added to the Meeting House, then demolished in 1967 to create an extension housing a kitchen and visitors’ toilets (Lancaster City Council, 1966). DESCRIPTION OF PLAN FORM AND MATERIALS Figure 7 - Sketch plan of ground floor and balcony. Source: (Butler, 1999) The plan of the Meeting House comprises the original rectangular body with the porch and the 1967 extension on the east side (Figure 7). From the porch, two doors lead respectively to a larger room to the right, used for worship meetings as it was in the past and to a smaller room to the left, half the size. This space, once the women’s’ meeting room, has become an entrance hall which continues into a wide corridor, giving access to the service area in the extension.
  • 67.
    UCLAN, MSc BuildingConservation and Regeneration - BN4606 Building Recording and Analysis Silvia Rossi, G20635985, Assignment Part 2: Building Record, May 2014 p. 67/81 The main room is subdivided by a wooden partition into a large double height space with facing benches and a corridor running from the door to a staircase leading to an upper gallery. Two large windows on the front elevation provide direct natural light to the main room. On the rear wall a smaller former window has been recently reinstated. Smaller windows on the opposite side give light to both the hall and the gallery above. The material used for the original walls is limestone, only visible in the rear elevation as random rubble stonework (recently repointed – Figure 10) while in the porch dressed cut ‘ashlar’ stone (Morriss, 2004) is used and visible on the inside. The outer surfaces of the West and South elevations, including the porch, and the East elevation are covered with cement render. A slate roof has been used since 1737, when a fire destroyed the original thatched roof and part of the walls (Butler, 1999). REPRESENTATIVE PHOTOGRAPHS Figure 8 - South-West view: the west elevation is partially hidden by a tree. Present author (2014)
  • 68.
    UCLAN, MSc BuildingConservation and Regeneration - BN4606 Building Recording and Analysis Silvia Rossi, G20635985, Assignment Part 2: Building Record, May 2014 p. 68/81 Figure 9 – Front elevation (south facing). Present author (2014) – composed with Microsoft ICE Figure 10 – Rear elevation (north facing). Present author (2014)
  • 69.
    UCLAN, MSc BuildingConservation and Regeneration - BN4606 Building Recording and Analysis Silvia Rossi, G20635985, Assignment Part 2: Building Record, May 2014 p. 69/81 Figure 11 – Side elevation (east facing). Present author (2014) ASSESSMENT OF SIGNIFICANCE Introduction The following assessment of the heritage significance of the Yealand Meeting house is structured according with the four main heritage values identified in English Heritage ‘Conservation Principles’ (Drury & McPherson, 2008): evidential, historical, aesthetic and communal values. A quoted summary describing each value will appear in boxes at the beginning of each section. Evidential value Evidential value derives from the potential of a place to yield evidence about past human activities. Physical remains…..are the primary source of evidence…(p.28)
  • 70.
    UCLAN, MSc BuildingConservation and Regeneration - BN4606 Building Recording and Analysis Silvia Rossi, G20635985, Assignment Part 2: Building Record, May 2014 p. 70/81 The Yealand Meeting House is an example of the ‘cottage’ type of English meeting house, (accounting for some 60% of them) whose entrance is on the long side wall (Figure 7), whereas in the ‘chapel’ type the entrance is under the gable. The former are usually older, and are more typical of country than town. They differ little from cottages and are often of much the same size, say 16 by 30 feet inside (Butler 1990 p.94). Inside, the internal layout with the division into two rooms with a fireplace on the gable end, the facing benches and the presence of an upper gallery, reflects the typical arrangements of this building type (Butler, 1990). The date, 1692, carved at each side of the impost of the segmental arch of the porch doorway is the obvious indicator of the year of construction. This detail can also be ascribed to a late sub- medieval phase as described in Brunskill (2000), although the only decorative feature is the carved date and the doorway is a segmental arch and not a lintel. The porch has a raking gable coping finished by kneelers. This detail is found in many stone walling districts…(Brunskill, 1974, pp. 116-118). The main building materials used for the walls and the roof - limestone and slate - and the combination of random rubble and ashlar stonework are evidence of past methods of construction. There is also visible evidence, on the north wall, of the wooden structure of the old thatched roof, roughly at the height of the line of the gallery window sill (Figure 10), as pointed out by J. Jarvis, the former warden of the Meeting House for 22 year, in a conversation with the present author. The walls were then raised, reducing the roof gradient to accommodate a slate roof after the 1737 fire (Butler, 1990). An original window from the end 17th century with stone mullion and transom (Brunskill, 1974) in the North wall (Figure 10) was re-instated some 10 years ago, after being previously blocked off (Lancaster City Council, 2005), showing what the front elevation must have looked like prior to the replacement of two similar sized windows on the front elevation with larger Georgian windows, probably after the 1737 fire. Another substantial feature of the building is the imposing chimney breast and stack projecting from the east side wall: an element found in the vernacular of Lake Counties (Brunskill, 1974). This has now been boxed in inside and incorporated in the extension.
  • 71.
    UCLAN, MSc BuildingConservation and Regeneration - BN4606 Building Recording and Analysis Silvia Rossi, G20635985, Assignment Part 2: Building Record, May 2014 p. 71/81 Historic value Historical value derives from the ways in which past people, events and aspects of life can be connected through a place to the present. It tends to be ‘illustrative’ or ‘associative’(p.28) The meeting house was arranged as it was solely to suit the way it was used, nothing more (Butler, 1990 p.97), reflecting the Quaker principles of truth and simplicity still upheld today. Its layout illustrates the way meetings were conducted in the past, with the separation of men and women for certain parts of the meeting: In England, from the earliest times, men and women entered one room by one door, to sit for worship each on their side of that room. When the time for business came the women would rise and move away to their separate room behind the shutters… (p.98). In Yealand, the women’s meeting room was also used as a classroom by the Quaker school, established by 1709, until in 1764 a nearby cottage was bought… ( Butler, 1999 p. 350). The village of Yealand, and then the meeting house, have a strong association with the father of Quakerism George Fox, who preached there in 1652, and with other important missionary figures of the early years of the movement. The emergence of Yealand as a place of pilgrimage from around 1930 (Winchester, 1993) and its continuance today, has substantially enhanced the associative value of the place. The presence and use of the meeting house has created shared experiences and associations both for the ‘pilgrims’ themselves, to do with the building and with a number of especially significant individual women, and - when the pilgrims return home – among the people in Quaker circles across the world to whom they promote the importance of Yealand meeting history. Aesthetic value Aesthetic value derives from the ways in which people draw sensory and intellectual stimulation from a place (p.30) The aesthetic value of the building is related to the age of the place, to its design qualities in terms of composition, detailing, craftsmanship and setting and to the associations of the spiritual values of the place.
  • 72.
    UCLAN, MSc BuildingConservation and Regeneration - BN4606 Building Recording and Analysis Silvia Rossi, G20635985, Assignment Part 2: Building Record, May 2014 p. 72/81 On design qualities, the simple domestic vernacular building form is especially appreciated, with its well proportioned porch and the plain exterior decoration of the window frames and the porch doorway. All these elements embody the search for truth and simplicity in Quaker spirituality. Furthermore, the natural setting with the presence of mature trees and well maintained grounds and the surrounding views of the countryside enhance the sensory appreciation of the building and convey a sense of calm and mindfulness. Back in the 18th century, the different window style chosen in the reconstruction – sash windows with glazing bars and plain stone surrounds with narrow cyma mouldings (English Heritage, 1968) - shows a change in taste and fashion shifting toward a ‘polite’ architectural style. Similarly inside, the wookwork dated c. 1742 shows some quite elaborate detailing and a high level of craftsmanship. It is more than usually moulded and fielded, with pilasters and built-up classical mouldings where plainer work would have done before (Butler, 1999 p.350). Communal values Communal value derives from the meaning of a place for the people who relate to it, or for whom it figures in their collective experience or memory (p.31) The communal value of the meeting house is closely related to the historical associative value from the early years of Quakerism and its founders, as discussed in the historical value section. The historical events reinforcing the communal value are the ‘testimony’ against tithes - the refusal to pay tributes to the church or to the local landlords - and the early Quakers affirmation of their rights to meet together for worship, both of which incurred in fines and persecutions (Winchester, 1993). The persecution related to worship ended when the 1689 Toleration Act allowed the construction of a meeting house dedicated to worship, while refusal to pay tithes remained illegal until well into the 19th century. Of greater importance under the heading of communal value is the spiritual value of the place for today’s Quaker community, at all levels, from local to international (Winchester, 1993). For many visitors to Yealand the object of their journey is to tour the “1652 Country” where in that year the Society of Friends was established as a result of George Fox’s visits (Yealand Conyers Parish Council, 2014)
  • 73.
    UCLAN, MSc BuildingConservation and Regeneration - BN4606 Building Recording and Analysis Silvia Rossi, G20635985, Assignment Part 2: Building Record, May 2014 p. 73/81 Pilgrimages started in the 1930s, thanks to the vision of a few determined women who spent much money and time in developing educational activities, offering opportunities for ‘spiritual refreshment’ and creating in the vicinity of the meeting house the facilities needed to receive large numbers of visitors. Statement of Significance The Yealand Meeting House is an early example of this building type in rural North of England, whose construction started in various parts of the region after the promulgation of the Toleration Act of 1689 (Butler, 1999). By far the most important values of the building are the interlinked historical and communal values, which take us back to the mid 17th century, at the troubled start of the Quaker movement. Those values, and especially the strong association with George Fox, the founder of the movement, and other important names of the early Quakerism was reinforced by the start in the 1930s of pilgrimages to the ‘1652 country’, which came to include other important sites and buildings linked to early Quakerism in the North of England. After the Second World War, the pilgrimages grew in number and resonance within the international Quaker community. As a result, various premises have been acquired in Yealand by the Society of Friends, for use as accommodation and other facilities. The high evidential value of the building, although not essential to support its communal value, reinforces its historically illustrative value relating to the way meetings were conducted in the past. It also demonstrates the adoption of the ‘cottage’ type and internal layout chosen for the majority of Quaker meeting houses in the countryside, and the methods of construction and detailing which are characteristics of the regional vernacular. The 1967 extension, with its modest appearance and concealment from the entrance, does not detract from the character of the original building. Its aesthetic value is to be found outside, both in the simplicity of its forms and balanced proportions and in the natural setting. On the inside, the detailing of the woodwork in the main room shows a higher level of elaboration, which gives evidential value of the change of taste and wealth in the 18th C.
  • 74.
    UCLAN, MSc BuildingConservation and Regeneration - BN4606 Building Recording and Analysis Silvia Rossi, G20635985, Assignment Part 2: Building Record, May 2014 p. 74/81 CONCLUSIONS This study has demonstrated the significance of the Yealand Meeting House by identifying and analysing the key elements which constitutes its heritage values. Consideration of change in the future management of the building should take into account the assessment of significance here contained to preserve – or enhance – these values. REFERENCES BRUNSKILL, R.W. (1974) Vernacular Architecture of the Lake Counties, London: Faber and Faber. BRUNSKILL, R.W. (2000) Vernacular Architecture: An Illustrated Handbook, London: Faber and Faber. BUTLER, D. (1990) Quaker Meeting Houses in America and England: Impressions and Comparisons, Quaker History, Volume 79, Number 2, pp.93-104 (Article), London: Friends Historical Association. BUTLER, D. (1999) The Quaker Meeting Houses of Britain, Volume I, London: Friends Historical Society. DRURY, P. and MCPHERSON, A. (2008) Conservation Principles Policies and Guidance: for Sustainable Management of the Historic Environment. London: English Heritage. English Heritage (1968) British Listed Buildings: Quaker Meeting House, Yealand Conyers. English Heritage [online] Available at: http://www.britishlistedbuildings.co.uk/en-182052- quaker-meeting-house-yealand-conyers-lan [Accessed 31 March 2014]. FARRER, W. (1914) ‘Townships: Yealand Conyers’, A History of the County of Lancaster, Volume 8, pp.177-180 [online] Available at: http://www.british- history.ac.uk/report.aspx?compid=53291 [Accessed 31 March 2014].
  • 75.
    UCLAN, MSc BuildingConservation and Regeneration - BN4606 Building Recording and Analysis Silvia Rossi, G20635985, Assignment Part 2: Building Record, May 2014 p. 75/81 Lancashire Central and North Area Meeting, (2014) Yealand Quakers. [online] Available at: http://www.lancsquakers.org.uk/yealand.php [Accessed 31 March 2014]. Lancashire County Council, (2014) MARIO – Maps and Related Information Online [online] Available at: http://mario.lancashire.gov.uk/agsmario/default.aspx[Accessed 29 March 2014]. Lancaster City Council (1966) Planning Application: Re-building of toilets and provision of kitchen, Ref. 4317, Lancaster Planning Applications Register 1900-1974, ref. RDLA/acc/9884, Lancashire Record Office. Lancaster City Council (2005) Listed Building Application for alterations to toilet and repair to windows, Ref. 05/00387/LB, Lancaster: Planning Department. MORRISS, R.K. (2004) The Archeology of Buildings. Stroud: Tempus Publishing Ltd. Natural England, (2013) 20 Morecambe Bay Limestones [online] Available at: http://www.naturalengland.org.uk/publications/nca/morecambe_bay_limestones.aspx [Accessed 29 March 2014]. The National Archives, (2014) Domesday: Britain finest treasure [online] Available at: http://www.nationalarchives.gov.uk/domesday/ [Accessed 30 March 2014]. WINCHESTER, A. (1993) Yealand Quakers: the history of a country meeting. A.J.L. Winchester. Yealand Conyers Parish Council, (2014) Yealand Conyers [online] Available at: http://www.yealandconyers.org.uk/ [Accessed 31 March 2014].
  • 76.
    UCLAN, MSc BuildingConservation and Regeneration - BN4606 Building Recording and Analysis Silvia Rossi, G20635985, Assignment Part 2: Building Record, May 2014 p. 76/81 APPENDIX A: Evolution of the site from 1890s to 1970 Extract from 1890s map Extract from 1910 map Extract from 1930 map Extract from 1970 map Source: Lancashire County Council, 2014.
  • 77.
    UCLAN, MSc BuildingConservation and Regeneration - BN4606 Building Recording and Analysis Silvia Rossi, G20635985, Assignment Part 2: Building Record, May 2014 p. 77/81 Appendix 2: Pictures composed with the software Microsoft ICE Picture 26 is a stitch of pictures 1, 2 and 3 to the right. Picture 1 Picture 2 Picture 3
  • 78.
    UCLAN, MSc BuildingConservation and Regeneration - BN4606 Building Recording and Analysis Silvia Rossi, G20635985, Assignment Part 2: Building Record, May 2014 p. 78/81 Picture 30 is a stitch of pictures 4 and 5 below Picture 4 Picture 5
  • 79.
    UCLAN, MSc BuildingConservation and Regeneration - BN4606 Building Recording and Analysis Silvia Rossi, G20635985, Assignment Part 2: Building Record, May 2014 p. 79/81 Picture 31 is a stitch of pictures 6 and 7 below Picture 6 Picture 7
  • 80.
    UCLAN, MSc BuildingConservation and Regeneration - BN4606 Building Recording and Analysis Silvia Rossi, G20635985, Assignment Part 2: Building Record, May 2014 p. 80/81 Picture 33 is a stitch of pictures 8 and 9 below Picture 8 Picture 9
  • 81.
    UCLAN, MSc BuildingConservation and Regeneration - BN4606 Building Recording and Analysis Silvia Rossi, G20635985, Assignment Part 2: Building Record, May 2014 p. 81/81 Picture 50 is a stitch of pictures 10 and 11 below Picture 10 Picture 11