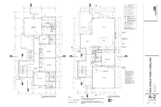
28'-5"
13'-3"10'-6"15'-3"
4'-6"
5'-3"
6'-5"3'-6"
31'-3"
20'-0"10'-0"
14'-0"
53'-5"9'-6"
3'-6"
8'-1"
1'-10"12'-0"
62'-11"
19'-0"
5'-8"
2'-6"
15" MIN
5'-6"
15"MIN
2'-7"
24" MIN
1'-10"
GARAGE
BEDROOM 5
33'-8"
19'-8"12'-9"
12'-0"
21'-10"15'-3"
4'-6"
5'-3"
6'-5"3'-6"
28'-9"
12'-0"15'-6"
15'-6"
58'-5"9'-6"
63'-11"
5'-6"
33'-8"
11'-3"12'-9"
7'-6"
8'-0"12'-0"
15" MIN
2'-6"
5'-6"
2'-11"
BALCONY
15"MIN
11'-8"
8'-0"
5'-3"
8'-0"
5'-9"
6'-6"8'-6"
5'-6"
15"MIN
8'-5"
3'-2"
15" MIN
24"MIN
5'-0"
LAUNDRY
MASTER
BEDROOM 1
4'-6"
BALCONY
BEDROOM 2
BEDROOM 3
BEDROOM 4
MASTER
CLOSET
MASTER
BATHROOM
7'-6"
W/D
DN UP
ROOF BELOW
LIVING
DINING
1/4"=1'-0"
FIRST FLOOR PLAN
11/4"=1'-0"
SECOND FLOOR PLAN
2
(E) WALL TO REMAIN
(E) WALL TO DEMO
LEGEND
NEW WALLS
1/A4 1/A41/A4 1/A4
2/A4
4/A3
1/A3
2/A4
3/A3
2/A3
2/A4
2/A4
S
S
S
S
S
SD/CM
SD/CM
SD/CM
F
F
F
F
24" MIN
24" MIN
24"MIN
2'-4"
NOTES:
1. FANS SHALL BE ENERGY STAR COMPLAINT AND BE DUCTED
TO THE OUTSIDE OF THE BUILDING
2. FANS NOT FUNCTIONINGFOR THE WHOLE HOUSE
VENTILATION SYSTEM MUST BE CONTROLLED BY A HUMIDITY
CONTROL
THRESHOLD < 1.5"
(TYP.)
THRESHOLD < 1.5"
(TYP.)
(N) STAIR
MIN. 10" RUN
MAX. 7.75" HEIGHT
(TYPICAL)
KITCHEN
CLOSET
CLOSET
CLOSET
CLOSET
5'-1"
8'-2"
7'-6"
13'-9"
2'-7"
14'-5"
11'-6"
11'-11"2'-11"
F
F
2'-0"
8'-3"
1'-10"
4'-8"3'-0"8'-1"
5'-6" 14'-2"
2'-1"
7'-31/4"
13'-9"
5'-0"
8'-6"
6'-0"
A/C
A/C
1'-1"9'-1"
7'-3"
2'-6"
(N) TANKLESS
WATER HEATERS
1" CONDUIT
TERMINAL FOR
FUTURE EVSE
NOTES:
“THE PANEL OR SUBPANEL SHALL
PROVIDE CAPACITY TO INSTALL
A 40-AMPERE MINIMUM DEDICATED
BRANCH CIRCUIT AND
SPACE(S) RESERVED TO PERMIT
INSTALLATION OF A BRANCH
CIRCUIT OVERCURRENT
PROTECTIVE DEVICE.”
“THE SERVICE PANEL OR SUBPANEL
CIRCUIT DIRECTORY SHALL
IDENTIFY THE OVERCURRENT
PROTECTIVE DEVICE
SPACE(S) RESERVED FOR FUTURE
EV CHARGING AS EV CAPABLE. THE
RACEWAY TERMINATION LOCATION
SHALL BE PERMANENT AND VISIBLY
MARKED EV CAPABLE.”
FUTURE SOLAR
INVERTER EQUIPMENT
LOCATION
(N) MAIN PANEL
(200 A) MIN.
8'-5"
GUARDRAIL - 42" MIN.
STARIWAY
HANDRAIL - 42" MIN.
STARIWAY
HANDRAIL - 42" MIN.
(N) STAIR
(TYP)
1- HR FIRE RATED
CONSTRUCTION
CEILING LIGHT FIXTURE
FLUORESCENT LIGHT
LIGHTING PENDANT
RECESSED LIGHT
SYMBOL DESCRIPTION
EXTERIOR FLUORESCENT
LIGHTING
SYMBOLS TABLE
UNLESS NOTED OTHERWISE
PLUG @ 12" A.F.F.
SWITCH @ 44" A.F.F.
UNLESS NOTED OTHERWISE
ARC FAULT INTERRUPTOR
INTERRUPTOR (GFI)
GROUND FAULT
(GFI)
CARBON MONOXIDE ALARM
F EXHAUST FAN
SMOKE DETECTOR /
SD/CM
SMOKE DETECTOR
S
NORTH
205/240
EVSE
3/A43/A4
3/A43/A4
A-2FLOOR PLAN
DRAWN BY: ALF
DATE: SEP.27.16
PROJECT:
NEWSINGLEFAMILYDWELLING
ADDRESS:3563PURDUEAVE.
LOSANGELES,CA90066

PURDUE A2 FLOOR PLANS SEP.27.16

  • 1.
    28'-5" 13'-3"10'-6"15'-3" 4'-6" 5'-3" 6'-5"3'-6" 31'-3" 20'-0"10'-0" 14'-0" 53'-5"9'-6" 3'-6" 8'-1" 1'-10"12'-0" 62'-11" 19'-0" 5'-8" 2'-6" 15" MIN 5'-6" 15"MIN 2'-7" 24" MIN 1'-10" GARAGE BEDROOM5 33'-8" 19'-8"12'-9" 12'-0" 21'-10"15'-3" 4'-6" 5'-3" 6'-5"3'-6" 28'-9" 12'-0"15'-6" 15'-6" 58'-5"9'-6" 63'-11" 5'-6" 33'-8" 11'-3"12'-9" 7'-6" 8'-0"12'-0" 15" MIN 2'-6" 5'-6" 2'-11" BALCONY 15"MIN 11'-8" 8'-0" 5'-3" 8'-0" 5'-9" 6'-6"8'-6" 5'-6" 15"MIN 8'-5" 3'-2" 15" MIN 24"MIN 5'-0" LAUNDRY MASTER BEDROOM 1 4'-6" BALCONY BEDROOM 2 BEDROOM 3 BEDROOM 4 MASTER CLOSET MASTER BATHROOM 7'-6" W/D DN UP ROOF BELOW LIVING DINING 1/4"=1'-0" FIRST FLOOR PLAN 11/4"=1'-0" SECOND FLOOR PLAN 2 (E) WALL TO REMAIN (E) WALL TO DEMO LEGEND NEW WALLS 1/A4 1/A41/A4 1/A4 2/A4 4/A3 1/A3 2/A4 3/A3 2/A3 2/A4 2/A4 S S S S S SD/CM SD/CM SD/CM F F F F 24" MIN 24" MIN 24"MIN 2'-4" NOTES: 1. FANS SHALL BE ENERGY STAR COMPLAINT AND BE DUCTED TO THE OUTSIDE OF THE BUILDING 2. FANS NOT FUNCTIONINGFOR THE WHOLE HOUSE VENTILATION SYSTEM MUST BE CONTROLLED BY A HUMIDITY CONTROL THRESHOLD < 1.5" (TYP.) THRESHOLD < 1.5" (TYP.) (N) STAIR MIN. 10" RUN MAX. 7.75" HEIGHT (TYPICAL) KITCHEN CLOSET CLOSET CLOSET CLOSET 5'-1" 8'-2" 7'-6" 13'-9" 2'-7" 14'-5" 11'-6" 11'-11"2'-11" F F 2'-0" 8'-3" 1'-10" 4'-8"3'-0"8'-1" 5'-6" 14'-2" 2'-1" 7'-31/4" 13'-9" 5'-0" 8'-6" 6'-0" A/C A/C 1'-1"9'-1" 7'-3" 2'-6" (N) TANKLESS WATER HEATERS 1" CONDUIT TERMINAL FOR FUTURE EVSE NOTES: “THE PANEL OR SUBPANEL SHALL PROVIDE CAPACITY TO INSTALL A 40-AMPERE MINIMUM DEDICATED BRANCH CIRCUIT AND SPACE(S) RESERVED TO PERMIT INSTALLATION OF A BRANCH CIRCUIT OVERCURRENT PROTECTIVE DEVICE.” “THE SERVICE PANEL OR SUBPANEL CIRCUIT DIRECTORY SHALL IDENTIFY THE OVERCURRENT PROTECTIVE DEVICE SPACE(S) RESERVED FOR FUTURE EV CHARGING AS EV CAPABLE. THE RACEWAY TERMINATION LOCATION SHALL BE PERMANENT AND VISIBLY MARKED EV CAPABLE.” FUTURE SOLAR INVERTER EQUIPMENT LOCATION (N) MAIN PANEL (200 A) MIN. 8'-5" GUARDRAIL - 42" MIN. STARIWAY HANDRAIL - 42" MIN. STARIWAY HANDRAIL - 42" MIN. (N) STAIR (TYP) 1- HR FIRE RATED CONSTRUCTION CEILING LIGHT FIXTURE FLUORESCENT LIGHT LIGHTING PENDANT RECESSED LIGHT SYMBOL DESCRIPTION EXTERIOR FLUORESCENT LIGHTING SYMBOLS TABLE UNLESS NOTED OTHERWISE PLUG @ 12" A.F.F. SWITCH @ 44" A.F.F. UNLESS NOTED OTHERWISE ARC FAULT INTERRUPTOR INTERRUPTOR (GFI) GROUND FAULT (GFI) CARBON MONOXIDE ALARM F EXHAUST FAN SMOKE DETECTOR / SD/CM SMOKE DETECTOR S NORTH 205/240 EVSE 3/A43/A4 3/A43/A4 A-2FLOOR PLAN DRAWN BY: ALF DATE: SEP.27.16 PROJECT: NEWSINGLEFAMILYDWELLING ADDRESS:3563PURDUEAVE. LOSANGELES,CA90066