RESIDENCE AREAS
SHEET INDEX
LOWER LEVEL UNFINISHED AREA 1072 SQ. FT.
GARAGE AREA 887 SQ. FT.
GARAGE LOFT UNFINISHED AREA 595 SQ. FT.
PORCH AREA 174 SQ. FT.
LOWER LEVEL TERRACE AREA 291 SQ. FT.
FIRST LEVEL TERRACE AREA 318 SQ. FT.
LOWER LEVEL FINISHED AREA 1532 SQ. FT.
GARAGE MUDROOM 248 SQ. FT.
FIRST LEVEL LIVING AREA 2683 SQ. FT.
TOTAL FINISHED LIVING AREA 4,463 SQ. FT.
ARCHITECTURAL
A0 COVER SHEET / ARCH. SITE PLAN
A1 FOUNDATION PLAN
A2 FIRST FLOOR FRAMING PLAN
A3 BASEMENT FINISH PLAN
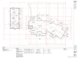
A4 FIRST FLOOR PLAN
A5 CEILING/ GAR. LOFT FRAMING PLAN
A6 ROOF FRAMING PLAN
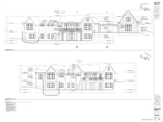
A7 BUILDING ELEVATIONS
A8 BUILDING ELEVATIONS
A9 BUILDING ELEVATIONS
A10 BUILDING SECTIONS
A11 BUILDING SECTION
STRUCTURAL
S1.0 GENERAL NOTES
S2.0 FOUNDATION DETAILS
S2.1 FOUNDATION DETAILS
S3.0 FRAMING DETAILS
S3.1 FRAMING DETAILS
S3.2 FRAMING DETAILS
S4.0 GENERAL BRACED WALL DETAILS
S4.1 GENERAL BRACED WALL DETAILS
910.00'
908.00'
906.00'
904.00'
912.00'
914.00'
916.00'
918.00'
920.00'
922.00'
924.00'
926.00'
928.00'
920.00'
922.00'
924.00'
926.00'
928.00'
922.00'
924.00'
926.00'
928.00'
930.00'
9
3
2
.
0
0
'
934.00'
936.00'
934.00'
932.00'
930.00'
928.00'
926.00'
924.00'
922.00'
904.00'
918.00'
916.00'
914.00'
912.00'
910.00'
908.00'
906.00'
920.00'
922.00'
EF
$
$
$
$
$
$
$
$
$
$
3
3
3
3
$
D3
$
$ $
D D
$
GAS
LANTERN
GAS
LANTERN
$
D
$
D
$
D
$
D3
$
$
D3
$
D3
$
D
$
D
$
D3
$
$
D3
GAS
LANTERN
GAS
LANTERN
$
EF
$
$
$
$
$
F
$
$
$
$
3
3
3
$
3
EF
$
$
$ $
F
$
$
$
F
F
3
$
3
$
EF
EF
$
D
$
3
$
3
$
3
$
3
$
3
$
3
$
$
D3
$
D3
$
$
F
$
$
F
$
3
$
3
$
D
$
3
$
3
$
D
$
$
F
$
$
F
9
2
8
.
0
'
9
2
6
.
0
'
9
2
4
.
0
'
922.0'
920.0'
918.0'
926.0'
924.0'
922.0'
920.0'
918.0'
920.0'
922.0'
918.0'
920.0'
922.0'
924.0'
926.0'
1. SITE SHALL BE EXCAVATED AND FILLED AS REQUIRED TO THE PROPER ELEVATIONS FOR FOOTINGS AND SLABS.
2. ALL FOOTINGS SHALL EXTEND BELOW A FROST LINE OF 36" WITH UNIFORM BEARING ON UNDISTURBED SOIL CAPABLE OF SUPPORTING A MINIMUM OF
2,000psf.
3. STOCK PILE DIRT FOR FILLS AND BACKFILL. DO NOT USE TOP SOIL FOR BACKFILL. BACKFILL WITH EXCAVATED MATERIAL THAT IS FREE OF ROCK,
ORGANIC MATERIAL, AND CONSTRUCTION MATERIAL. SETTLE BACKFILL WITH WATER PRIOR TO FINAL GRADING. BACKFILL AROUND BASEMENT WALLS
SHALL BE PLACED UNTIL THE FLOOR FRAMING AND SUBFLOOR HAVE BEEN INSTALLED.
4. USE TOP SOIL FOR FINAL GRADING PLACED TO LINES AND GRADES INDICATED SO AS TO SLOPE AWAY FROM FOUNDATIONS.
5. TERMITE PRE-TREATMENT SHALL BE PROVIDED BY CHEMICALLY TREATING PRIOR TO POURING GARAGE AND BASEMENT FLOOR SLABS. UPON
COMPLETION OF CONSTRUCTION, THE SOIL AROUND THE PERIMETER OF THE HOUSE WILL THEN BE TREATED. A MINIMUM OF 5 YEAR RENEWEABLE
WARRANTY SHALL ALSO BE PROVIDED.
6. MAINTAIN SOIL MOISTURE CONTENT EQUIVALENT TO WHAT EXISTED AT TIME OF EXCAVATION TO MINIMIZE DIFFERENTIAL SETTLEMENT OR
DISPLACEMENT UNLESS OTHERWISE DIRECTED BY GEOTECH. OR STRUCT.
7. FOOTINGS, FOUNDATION WALLS, PIERS, AND SLABS SHALL BE OF SIZES INDICATED, COMPLETED WITH ALL REINFORCING BARS, DOWELS, MESH, AND
TIES SPECIFIED.
8. PROVIDE EXPANSION JOINTS AS BOND BREAKER BETWEEN WALLS AND OTHER RESTRAINING CONCRETE CONSTRUCTION.
9. ALL OPENINGS OR PENETRATIONS THROUGH CONCRETE FNDN. WALL SHALL BE BLOCKED OUT OR SLEEVED PRIOR TO CONC. PLACEMENT.
10. PROVIDE CONTROL JOINTS CUT IN BASEMENT SLAB UNDER ALL STEEL BEAMS, HEADER LINES, AND AS OTHERWISE INDICATED. LIMIT CONTROLLED
AREAS TO NOT MORE THAN 625sf NOR GREATER THAN 25'-0" IN ANY ONE DIRECTION. CONTROL JOINTS IN EXTER SLABS SHALL BE PLACED AT 15'-0"o.c.
MAXIMUM.
11. WATERPROOFING AND FOUNDATION DRAINAGE AS SELECTED BY BUILDER TO MEET OR EXCEED CODE MINIMUM.
12. PROVIDE AND CONNECT ALL DOWNSPOUTS TO SUBTERRANEAN COLLECTION DRAIN PIPE AND DRAIN TO DAYLIGHT.
13. INSTALL 4"Ø PERIMETER EXTERIOR FOOTING DRAIN LINES. ALL FOOTING DRAINS SHALL DRAIN TO DAYLIGHT AS NO SUMP PUMP SHALL BE PROVIDED.
DARIN LINES SHALL BE WRAPPED IN FILTER FABRIC AND SURROUNDED BY CLEAN CRUSHED ROCK FILL WITH FILTER FABRIC COVER.
14. MUDSILL PLATES SHALL BE PRESSURE TREATED, DECAY AND TERMITE RESISTIVE LUMBER IN ACCORDANCE WITH 'AWPA' STANDARDS SET ON FOAM
SILL GASKET SET IN CONTINUOUS ACOUSTIC SEALANT BEAD (BOTH SIDES OF FOAM SILL SEALER) AND BOLTED TO FOUNDATION WALL w/ 1
2" min. BOLTS
(U.N.O.) AT 4'-0"o.c. MAX AND WITH ONE BOLT WITHIN 4" min AND 12" max OF END OF ANY PLATE. EMBED BOLTS 7" min. INTO CONCRETE.
15. DIMENSIONS ARE FROM FACE OF SHEATHING TO FACE OF FRAMING OF WALL, TYPICAL.
16. HATCHED WALLS INDICATE LOAD BEARING WALLS.
17. ALL SILLS AND SLEEPERS SUPPORTED ON CONCRETE OR MASONRY AND FURRING ATTACHED TO CONCRETE OR MASONRY SHALL BE OF
DECAY-RESISTANT MATERIALS AND SEPARATED WITH A FOAM SILL GASKET. SEAL FOAM SILL GASKET WITH CONCRETE AND TO BOTTOM PLATE FOR
AIR INFILTRATION.
18. FRAMING SHALL BE DONE IN ACCORDANCE WITH ADOPTED CODE, SECTION 'CONSTRUCTION CLASSIFICATION.'
18.1. WOOD STUDS SHALL BE DOUG FIR-LARCH, STUD GRADE OR EQUAL
18.2. WOOD JOISTS, RAFTERS, AND BEAMS SHALL BE #2 DOUGLAS FIR-LARCH WITH STRUCTURAL VALUES IN ACCORDANCE WITH THE WWPA OR EQUAL.
STUDS SHALL BE 2x6'S WITH 'CALIFORNIA' 2-STUD CORNERS.
18.3. STUDS SHALL BE DOUBLED AT OPENINGS WITH SINGLE SOLE PLATE AND DOUBLE TOP PLATE.
18.4. STUDS SUPPORTING ROOF AND CEILING ONLY SHALL BE SPACED 16" o.c. MAX.
18.5. STUDS SUPPORTING ONE FLOOR, ROOF, AND CEILING SHALL BE SPACED AT 16" o.c. MAX.
19. PROVIDE WOOD FLOOR JOISTS, SIZING AND SPACING AS INDICATED ON PLANS, DOUBLED UNDER BEARING PARTITIONS.
20. PROVIDE 1-1/8" SUBFLOOR (HUBER WOOD PRODUCTS 'ADVANTECH') GLUED AND SCREWED PERPENDICULAR TO FLOOR TRUSSES.
21. ALL HEADERS SHOULD BE (2) #2- 2x10 MINIMUM, U.N.O.
22. ROOF STRUCTURE SHALL BE DESIGNED FOR A TOTAL LOAD OF 35 LBS PER SQ. FT. w/ 20 LBS LIVE LOAD AND 15 LBS DEAD LOAD.
23. PROVIDE COMPOSITION ROOF OVER LAPPED 30# BUILDING FELTS OVER 9
16" OSB SHEATHING
24. PROVIDE PREFINISHED METAL STANDING SEAM ROOF WHERE INDICATED OVER LAPPED ICE & WATER SHIELD OVER 9
16" OSB SHEATHING.
25. OWNER OPTION: PROVIDE 16oz. COPPER FLASHINGS OVER ALL WINDOWS, EXTERIOR DOORS, ROOF EAVES, AND RAKES.
26. OWNER OPTION: PROVIDE 16oz. COPPER GUTTERS, SLOPED FRONT RECTANGULAR SHAPE, IN SIZES AS REQ'D PER IRC.
27. ALL SOLID BLOCKING FOR BEAM OR HEADER SUPPORT SHALL BE CONTINUOUS TO FOUNDATION OR STRUCTURE BELOW.
28. ENGINEERED LUMBER BEAMS AND HEADERS SHALL HAVE THE FOLLOWING MINIMUM ALLOWABLE DESIGN PROPERTIES:
PRODUCT BENDING STRESS (Fb) MOD. OF ELASTICITY (E)
LVL 2600 PSI 1.9 x 106
PSI
PSL 2900 PSI 2.0 x 106
PSI
LSL 2325 PSI 1.55 x 106
PSI
29. JOISTS FRAMING INTO A WOOD GIRDER OR BEAM SHALL BE SUPPORTED BY APPROVED FRAMING ANCHORS OR ON MIN. 2x2 LEDGER STRIPS
30. JOISTS AT SUPPORTS SHALL BE SUPPORTED LATERALLY AT THE ENDS BY FULL-DEPTH SOLID BLOCKING NOT LESS THAN 2" NOMINAL THICKNESS, OR
BY ATTACHMENT TO A HEADER BAND OR RIM JOIST, OR TO AN ADJOINING STUD OR OTHERWISE PROVIDED WITH LATERAL SUPPORT TO PREVENT
ROTATION.
31. PROVIDE ATTIC ACCESS AS INDICATED ON PLANS. THE OPENING SHALL BE NOT LESS THAN 32" X 30" WITH A MINMUM CLEAR HEAD ROOM OF 36"
PROVIDED ABOVE THE ACCESS OPENING.
32. STAIR TREADS TO COMPLY WITH IRC SECTION 311.7
32.1. WIDTH TO BE NOT LESS THAN 36"
32.2. RISER HEIGHT TO BE NOT MORE THAN 7-3/4"
32.3. TREAD DEPTH TO BE NOT LESS THAN 10" NOSE TO NOSE
32.4. CLEAR HEADROOM TO BE 6'-8" MINIMUM
33. PROVIDE APPROVED FIRESTOPPING IN WALLS AND CONCEALED SPACES AS REQUIRED BY CODE.
34. WALLS SHALL BE BRACED IN ACCORDANCE WITH APPLICABLE IRC CODE SECTION. WHERE BRACED PANEL SHEATHING IS USED, VERTICAL JOINTS
SHALL OCCUR OVER STUDS AND HORIZONTAL JOINTS SHALL OCCUR OVER MINIMUM 2x BLOCKING.
35. EXTERIOR CLADDING TO BE CEMENTITIOUS STUCCO AND MANUFACTURED THIN-BRICK PER ELEVATIONS.
36. PROVIDE 2" RIGID INSULATION ON INTERIOR FACE OF FOUNDATION WALLS OR TRENCH FOOTINGS AND BELOW CONCRETE SLAB AT WALK-OUT LOWER
LEVEL AREAS.
37. PROVIDE NOISE-BARRIER FIBERGLASS INSULATION BATTS AROUND ALL BATHROOM WALLS.
38. PROVIDE 2" FOAM INSULATION WRAPS AROUND ALL SOIL LINES ABOVE SLAB.
39. PROVIDE INSULATION AT THE FOLLOWING LEVELS:
39.1. 6" R-19 IN EXTERIOR WALLS
39.2. R-49 IN FLAT CEILINGS
39.3. R-30 IN VAULTED CEILINGS
39.4. 6" R-19 AROUND PERIMETER OF RIM JOISTS
40. ALL BATHROOMS SHALL HAVE EXHAUST FANS VENTED DIRECTLY TO THE EXTERIOR WITH THE VENTILATION RATE OF 50cfm FOR INTERMITTENT
VENTILATION AND 20cfm FOR CONTINUOUS VENTILATION.
41. DOORS BETWEEN THE GARAGE AND DWELLING SHALL BE A MINIMUM OF 1-3/8" SOLID CORE DOOR, HONEY COMBED STEEL DOOR, OR A 20-MINUTE FIRE
RATED DOOR WITH SELF-CLOSING HINGES.
42. GARAGE VEHICLE DOORS AND FRAMES SHALL BE DESIGNED AND INSTALLED TO MEET THE 115mph WIND LOAD RESISTANCE REQUIREMENTS OF
SECTION R301.2 OF 2018 IRC.
43. WEATHERSTRIP ALL APPLICABLE DOORS AND SEAL ALL JOINTS AND PENETRATIONS.
44. ALL EXTERIOR DOORS, INCLUDING THOSE TO GARAGES, SHOULD INCORPORATE ANY AND ALL LOCAL PHYSICAL SECURITY PROVISIONS.
45. PROVIDE SEALANT AT ALL JOINTS BETWEEN DISSIMILAR MATERIALS. FILL GAPS WITH LOW-EXPANDING FOAM AND SEAL ALL PENETRATIONS IN
EXTERIOR WALLS.
46. WINDOW DESIGNATIONS INDICATE PELLA IMPERVIA FIBERGLASS WITH BLACK EXTERIOR COLOR AND BLACK INTERIOR COLOR SELECTED BY OWNER.
HARDWARE FINISH TO BE SELECTED BY OWNER.
47. PROVIDE ONE WINDOW FROM EACH BEDROOM AND FROM THE BASEMENT THAT HAS A MINIMUM OPENABLE AREA OF 5.7 SQ. FT. WITH MINIMUM
OPENABLE HEIGHT OF 24" AND WIDTH OF 20".
48. SILL HEIGHT OF OPENABLE PORTION OF EGRESS WINDOWS SHALL NOT EXCEED 44" ABOVE THE ADJOINING FLOOR OR ADJOINING PERMANENT STEP.
49. OPERABLE WINDOWS WILL SILL HEIGHTS GREATER THAN 72" ABOVE EXTERIOR GRADE MUST BE MINIMUM 24" ABOVE THE FLOOR OR INCLUDE OPENING
LIMITER.
50. GLAZING SHALL COMPLY WITH CPSC (CONSUMER PRODUCTS SAFETY COMMISSION) 16 CFR, PART 1201 CRITERIA FOR CATEGORY 1 OR CATEGORY 2 AS
INDICATED IN TABLE R308.3.1(1) OF THE 2018 IRC.
51. APPROVED SAFETY GLAZING MATERIALS SHALL BE PROVIDED IN THE SPECIFIC HAZARDOUS LOCATIONS INDICATED IN SECTION R308.4 OF THE 2018
IRC, INCLUDING, BUT NOT LIMITED TO, THE FOLLOWING:
51.1. GLAZING IN STORM DOORS
51.2. GLAZING AN INDIVIDUAL OR OPERABLE PANEL ADJACENT TO A DOOR WHERE THE NEAREST VERTICAL EDGE IS WITHIN A 24" ARC OF THE DOOR IN
A CLOSED POSITION AND WHOSE BOTTOM EDGE IS LESS THAN 60" ABOVE THE FLOOR OR WALKING SURFACE
51.3. GLAZING IN DOORS AND ENCLOSURES FOR HOT TUBS, WHIRLPOOLS, SAUNAS, STEAM ROOMS, BATHTUBS, AND SHOWERS
51.4. GLAZING IN AN INDIVIDUAL FIXED OR OPERABLE PANEL (OTHER THAN THOSE DESCRIBED ABOVE) MEETING ALL OF THE FOLLOWING CONDITIONS
51.4.1. EXPOSED AREA OF AN INDIVIDUAL PANE LARGER THAN 9 SQ. FT.
51.4.2. BOTTOM EDGE LESS THAN 18" ABOVE THE FLOOR
51.4.3. TOP EDGE MORE THAN 36" ABOVE THE FLOOR
51.4.4. ONE OR MORE WALKING SURFACES WITHIN 36" HORIZONTALLY OF THE GLAZING
51.5. GLAZING IN FIXED AND SLIDING PANELS OF SLIDING DOOR ASSEMBLIES AND PANELS IN SLIDING AND BIFOLD CLOSET DOOR ASSEMBLIES
51.6. GLAZING IN SWINGING DOORS (EXCEPT JALOUSIES).
51.7. GLAZING ADJACENT TO STAIRWAYS, LANDINGS, AND RAMPS WITHIN 36" HORIZONTALLY OF A WALKING SURFACE WHEN THE EXPOSED SURFACE
OF THE GLASS IS LESS THAN 60" ABOVE THE PLANE OF THE ADJACENT WALKING SURFACE
52. PROVIDE 1
2" GYPSUM BOARD ON ALL INTERIOR FACES OF EXTERIOR WALLS AND BOTH FACES OF INTERIOR WALLS. PROVIDE 5
8" GYPSUM BOARD AT ALL
CEILINGS. PROVIDE 1
2" CEMENT, FIBER-CEMENT, OR GLASS MAT GYPSUM BACKER BOARD ON WALLS IN BATHS OR SHOWERS.
53. PROVIDE 1
2" GYPSUM BOARD ON GARAGE SIDE OF WALLS SEPARATING THE GARAGE FROM ALL LIVING SPACES. PROVIDE 5
8" TYPE-X GYPSUM BOARD AT
GARAGE CEILINGS.
54. ATTIC AND RAFTER SPACE VENITLATION SHALL BE PROVIDED USING A COMBINATION OF SOFFIT VENTS AND ROOF VENTS. TOTAL NET FREE
VENTILATING AREA WILL NO TBE LESS THAN A RATIO OF 1:300. ROOF VENTS LOCATED BELOW THE RIDGE, BUT A MINIMUM OF 3'-0" ABOVE THE EAVE,
SHALL PROVIDE AT LEAST 50%, BUT NO MORE THAN 80%, OF THE NET AREA OF VENTILATION WITH THE REMAINDER OF THE TOTAL PROVIDED BY THE
SOFFIT VENTS. WHERE EAVE VENTS ARE INSTALLED, PROVIDE VENT GUARD DEVICES TO MAINTAIN AT LEAST 1" AIR SPACE BETWEEN INSULATION AND
ROOF SHEATHING, INCLUDING IN VAULTED CEILING CONDITIONS.
55. THE DWELLINGS INDICATED ON THESE PLANS MUST MEET OR EXCEED THE MINIMUM REQUIREMENTS OF THE 2018 IRC TABLE N1102.1.1
56. THE THERMAL ENVELOPE OF THE BUILDING SHALL BE SEALED TO LIMIT AIR INFILTRATION AS REQUIRED PER 2018 IRC SECTION N1102.4.1.
57. RECESSED LIGHTING FIXTURES SHALL BE SEALED TO PREVENT LEAKAGE BETWEEN CONDITIONED AND UNCONDITIONED SPACE.
58. DUCTWORK, AIR HANDLERS, FILTER BOXES, AND BUILDING CAVITIES USED AS DUCTS, SHALL BE SEALED PER 2018 IRC SECTION N1103.2.
59. AIR CONDITIONING UNITS SHALL HAVE A MINIMUM SEER RATING OF 13.
60. FORCED AIR FURNACES SHALL HAVE A MINIMUM EFFICIENCY RATING OF 92%.
61. PROVIDE SMOKE ALARMS IN EACH SLEEPING ROOM, OUTSIDE OF EACH SLEEPING AREA, AND ON EACH FLOOR, INCLUDING BASEMENTS.
INTERCONNECT THE ALARMS IN SUCH A MANNER THAT THE ACTUATION OF ONE ALARM WILL ACTIVATE ALL OF THE ALARMS IN THE DWELLING.
62. CARBON MONOXIDE DETECTORS WILL BE INSTALLED PER IRC SECTION R315.
63. GFCI CIRCUITS AND RECEPTACLES SHALL BE FURNISHED IN THE KITCHEN, LAUNDRY, BATHROOMS, GARAGE, AND FOR ALL EXTERIOR RECEPTACLES.
LOCATION AND INSTALLATION OF ALL GFCI RECEPTACLES SHALL BE IN STRICT ACCORDANCE WITH THE 2011 NATIONAL ELECTRICAL CODE.
64. ALL STRUCTURAL STEEL SHALL CONFORM TO THE CURRENT AISC SPECIFICATIONS FOR THE DESIGN, FABRICATION, AND ERECTION OF STEEL FOR
BUILDINGS AND SHALL BE A36 GRADE STEEL.
65. FURNISH AND INSTALL ALL STRUCTURAL STEEL BEAMS, COLUMNS, BEAM CONNECTIONS, PLATES, BOLTS, AND ANGLES AS INDICATED OR REQUIRED.
STEEL COLUMNS SHALL BE 3-1/2" STD (SCH 40) STEEL PIPE, COMPLETE WITH BOTTOM BEARING PLATE AND TOP STEEL CHANNEL TO RECEIVE STEEL
BEAM. BOTH PLATE AND CHANNEL SHALL BE WELDED TO COLUMN.
66. COLUMNS SHALL EXTEND THROUGH SLAB AND BEAR DIRECTLY ON FOOTINGS OR FOUNDATION WALLS.
67. INTERIOR FIREPLACE TO BE PREMANUFACTURED GAS INSERT WITH LOG SET.
68. THIS STRUCTURE WILL BE PROVIDED WITH A 'UFER' GROUND PER IRC SECTION 3608.1.
69. PROVIDE AND INSTALL FROSTPROOF SILLCOCKS AND COORDINATE LOCATIONS WITH THE OWNER. ALL PLUMBING SUPPLY LINES IN OUTSIDE WALLS
AND/OR UNCONDITIONED SPACES SHALL RUN ON WARM SIDE OF INSULATION AND SHALL BE WRAPPED WITH PIPE INSULATION.
70. ALL PLUMBING VENTS TO TERMINATE ABOVE ROOF LINE PER 2018 IRC. CONSOLIDATE PLUMBING VENTS AS BEST ABLE. LOCATE VENTS ON REAR SIDE
OF RESIDENCE TO CONCEAL FROM VIEW.
GENERAL CONSTRUCTION NOTES
ADOPTED BUILDING CODES
CONSTRUCTION GENERAL REQUIREMENTS
ALL CONSTRUCTION SHALL COMPLY WITH THE FOLLOWING
ADOPTED BUILDING CODES OF PLATTE COUNTY, MISSOURI
· 2018 INTERNATIONAL RESIDENTIAL CODE FOR ONE- AND
TWO- FAMILY DWELLINGS
· 2018 INTERNATIONAL FIRE CODE
· 2018 INTERNATIONAL PLUMBING CODE
· 2018 INTERNATIONAL ENERGY CONSERVATION CODE
· 2018 INTERNATIONAL MECHANICAL CODE
· 2018 INTERNATIONAL FUEL GAS CODE
· 2018 INTERNATIONAL PROPERTY MAINTENANCE CODE
· 2018 INTERNATIONAL PRIVATE SEWAGE DISPOSAL CODE
· 2017 NFPA 70: NATIONAL ELECTRICAL CODE
· ALL AMENDMENTS AS ADOPTED BY THE PLATTE COUNTY
PLANNING & ZONING DEPARTMENT, PLATTE COUNTY, MO
· THE PLANS FOR THIS BUILDING WERE DESIGNED AND REVISED IN ACCORDANCE WITH THE PROVISIONS OF THE 2018 IRC AS ADOPTED BY PLATTE
COUNTY, MISSOURI.
· ALL WORK INCLUDED, INCLUDING ALL MATERIALS AND WORKMANSHIP, SHALL BE IN STRICT ACCORDANCE WITH APPLICABLE REQUIREMENTS OF THE
LAWS, CODES, ORDINANCES, AND STANDARDS OF ALL LOCAL, STATE, AND NATIONAL JURISDICTIONS.
· ALL SUBCONTRACTORS SHALL BE HELD RESPONSIBLE FOR ANY VIOLATIONS OF APPLICABLE REQUIREMENTS. FOR ANY CHANGES TO THE PROJECT
DURING CONSTRUCTION, THE CONTRACTOR SHALL NOTIFY THE ARCHITECT FOR APPROVAL PRIOR TO INSTALLATION.
· ALL MANUFACTURED MATERIALS, PRODUCTS, AND EQUIPMENT, SHALL BE INSTALLED, ERECTED, APPLIED, USED, CONDITIONED, ADJUSTED, AND
CLEANED IN ACCORDANCE TO THE CURRENT DIRECTIONS, INSTRUCTIONS, AND RECOMMENDATIONS OF THE MANUFACTURER AND WITH THE
CURRENT PRINTED STANDARD SPECIFICATIONS WHICH ARE ISSUED AND RECOMMENDED BY ORGANIZED ASSOCIATIONS OF MANUFACTURERS,
CRAFTS, TRADES, AND INSTALLERS.
· DO NOT SCALE DRAWINGS. REFER TO WRITTEN DIMENSIONS.
· SHOULD THE CONTRACTOR FIND DISCREPANCIES OR AMBIGUITIES IN, OR OMISSIONS FROM THE DRAWINGS, OR SHOULD BE IN DOUBT AS TO THEIR
MEANING, THE CONTRACTOR SHALL NOTIFY THE ARCHITECT FOR CLARIFICATION PRIOR TO CONSTRUCTION.
· COORDINATION OF ALL TRADES IS THE RESPONSIBILITY OF THE GENERAL CONTRACTOR.
· THE BUILDER OR THEIR SUB-CONTRACTOR IS RESPONSIBLE FOR SPECIFICATIONS FOR THE FOLLOWING TO MEET CODE (MIN.):
·· TERMITE TREATMENT
·· SOIL BEARING VERIFICATION OR GEOTECHNICAL REPORTS OR OBSERVATIONS
·· SITE DESIGN/ PLOT PLAN/ GRADING PLAN
·· GRUBBING, GRADING AND BACKFILL REQUIREMENTS
·· SITE UTILITY LOCATION AND CONNECTIONS
·· SITE DRAINAGE, INCLUDING DOWNSPOUT LOCATION AND ROUTING OF BELOW GROUND PIPING IF PROVIDED.
·· ALL LANDSCAPING AND PROTECTION OF EXISTING LANDSCAPING TO REMAIN
·· ASPHALT PAVEMENT (IF PROVIDED)
· REFER TO STRUCTURAL NOTES FOR THE FOLLOWING MINIMUM REQUIREMENTS
·· SOIL BEARING CAPACITY
·· CONCRETE SLAB SPECIFICATION
1
SITE PLAN
ARCHITECTURAL SITE PLAN
1" = 40'-0"
6655 NW STANDARDBRED DRIVE
PLATTE COUNTY, MISSOURI
6545 NW STANDARDBRED DRIVE
PLATTE COUNTY, MISSOURI
WATERFORD DOWNS, LOT 16
10.93 ACRES
6405 NW STANDARDBRED DRIVE
PLATTE COUNTY, MISSOURI
NW STANDARDBRED DRIVE
60.0' R.O.W.
N 75°22'45" W 311.37' N 86°45'-1" W 81.37'
392.74' PROPERTY LINE
30.0' UTILITY EASEMENT
100.0' BUILDING SETBACK
1
5
.
0
'
U
T
I
L
I
T
Y
E
A
S
E
M
E
N
T
1
5
.
0
'
U
T
I
L
I
T
Y
E
A
S
E
M
E
N
T
1
1
3
8
.
5
6
'
P
R
O
P
E
R
T
Y
L
I
N
E
N
1
0
°
3
1
'0
3
'
W
1
1
6
0
.
8
4
'
P
R
O
P
E
R
T
Y
L
I
N
E
S
1
3
°
5
2
'5
1
"
E
1
5
.
0
'
U
T
I
L
I
T
Y
E
A
S
E
M
E
N
T
1
5
.
0
'
U
T
I
L
I
T
Y
E
A
S
E
M
E
N
T
STREAM CENTERLINE
75.0' STREAM BUFFER
75.0' STREAM BUFFER
94'-3"
81'-11
1
4"
407
'-10
"
34'-01
8"
20'-3"
CONCRETE
DRIVEW
AY
24'-3"
CONCRETE
MOTOR COURT
EL: 927.92'+/-
SLOPE TO DRAIN
CIRC. DRIVE
EL: 927.58'+/-
NEW RESIDENCE
HIGH ROOF PEAK: 950.39'
1ST FLR ELEV: 929.55'
BSMT. SLAB ELEV: 918.42'
NEW GARAGE
HIGH ROOF
PEAK: 954.92'
1ST FLR ELEV:
928.00'
75.0' STREAM BUFFER
STREAM CENTERLINE
315.96' PROPERTY LINE
S 89°39'36" W
148.04' PROPERTY LINE
S 89°39'36" W
18.80' PROPERTY LINE
N 03°32'56" W
FOUND 3
8" IRON BAR
2.90' S OF LINE
FOUND 1
2" IRON BAR & LS
2074 CAP
15.0' UTILITY EASEMENT
15.0' UTILITY EASEMENT
4'-0"r INTR. CIRC. w/
SCULPTURE & PLANTINGS
18'-0"r OUTER CIRC.
STACKED LIMESTONE RET.
WALL w/ GRAVEL BACKFILL
DRIVEWAY APPROACH PER
PLATTE COUNTY PUBLIC WORKS
DRIVEWAY REDUCES TO 12'-0"
WIDTH
NEW TREES @ 30'-0"o.c., OFFSET
TO EACH SIDE OF DRIVE
6" REIN. CONC. DRIVEWAY PER
COUNTY STANDARD DETAILS TO
INCLUDE PITCH, CROWN, ETC.
PROVIDE DRAINAGE CULVERT
UNDER APPROACH AS REQ'D
GRADING TO INCLUDE DITCH AT
EA. SIDE OF DRIVEWAY, PER
PLATTE COUNTY
CONSTRUCTION SET
Adam Anthony
Pfeifer, NCARB
apd_studios+
design | fabrication
12214 w 79th terrace
lenexa, kansas 66215
p. 785.650.3563
e. adam@apdstudios.com
Troy & Eden Kearns
owner
804 W 33rd St
Kansas City, MO 64111
p. 702.556.4081
a. Troy Kearns
e. troyjkearns@gmail.com
Apex Engineering
structural engineer
1625 Locust St
Kansas City, MO 64108
p. 816.421.3222
a. Jason Gibson
e. jason@
apex-engineers.com
Kearns Custom
Residence
6545 Standardbred Drive
Kansas City, MO 64164
drawing title
project no. sheet no.
2020.26
drawn by
aap
date
11.09.2020
project title
release
seal
01.15.2021 _ Permit Set
10.06.2021 _ Fndn. Revs.
11.08.2021 _ Lighting Plan
11.11.2021 _ Lighting Revs.
11.13.2021 _ Const. Revisions
cover sheet/
site plan
A0
DATE:
CHECKED BY:
HD#:
HD
ENGINEERING
&
DESIGN,
INC
41698
CLS
NO. ISSUE/REVISION
Revision
Date
11656
W.
75TH
STREET
SHAWNEE,
KS
66214
WWW.HDENGINEERS.COM
913.631.2222
SERVICE@HDENGINEERS.COM
THIS DOCUMENT CONTAINS
COPYRIGHTED MATERIAL AND
CONFIDENTIAL INFORMATION
BELONGINING TO HD ENGINEERING.
UNAUTHORIZED USE, DISCLOSURE,
DISSEMINATION, OR DUPLICATION OF
ANY OF THE INFORMATION
CONTAINED HEREIN MAY RESULT IN
LIABILITY UNDER APPLICABLE LAW.
THIS PLAN HAS BEEN DESIGNED TO
CONFIRM WITH THE 2018 IRC
COPYRIGHT HD ENGINEERING & DESIGN
C
IT IS THE RESPONSIBILITY OF THE CONTRACTOR TO
CONSTRUCT THIS DWELLING IN COMPLIANCE WITH
ALL LOCAL BUILDING CODES AND REQUIREMENTS AS
ADOPTED BY THE AUTHORITY HAVING JURISDICTION.
5/4/2021
136'-67
8"
49'-21
2" 41'-43
8"
16'-0" 22'-0" 6'-21
2" 1'-103
4" 19'-57
8" 1'-8" 12'-11
2" 6'-23
8"
3'-6"
5'-11"
1'-8
3
4
"
136'-67
8"
44'-3" 46'-37
8"
5'-0" 13'-4" 22'-9" 1'-11" 1'-3" 6'-61
2" 11'-13
8" 14'-0" 11'-0"
45'-8
1
4
"
19'-0
5
8
"
5'-6"
5'-9
1
4
"
7'-0"
8'-4
3
8
"
5"
10'-7" 11'-0"
5"
1'-11"
12'-4" 12'-0"
12'-0 3
8 "
12'-10"
16'-2"
7
'
-
4
"
1
0
'
-
1
0
"
14'-8"
1'-4"
1'-0"
5'-2"
1'-0"
10'-6"
10'-6"
1'-11"
13'-4"
1'-10" 11'-10" 8'-5" 1'-11" 30°
2'-31
2"
1'-4"
8"
5'-0"
6'-6"
8'-6"
19'-6"
10'-6"
6'-0"
0"
5'-9"
16'-3"
3'-3"
3
'
-
9
1
2
"
22'-6"
11'-0"
6
'
-
8
"
DROP t/ FTG
DOWN 3'-0"
10"w X 5'-0"h REIN. CONC. FNDN.
WALL w/ #4 @ 24"o.c. HORIZ. AND
12"o.c. VERT w/ 6"x6" INT. BLOCK
OUT ON 20"w X 10"dp REIN. CONC.
FTG. w/ (2) #4 CONT.
WALL HEIGHT STEP
10"w X 3'-0"h BURIED REIN.
CONC. FNDN. WALL w/ #4 @
24"o.c. E/W & 6"x6" INT.
BLOCKOUT ON 20"w X 10"dp
REIN. CONC. FTG. w/ (2) #4
CONT.
18" SQ. x 42"dp
CONC. PIER
10"w X 10'-0"h REIN. CONC.
FNDN. WALL w/ #4 @ 24"o.c.
HORIZ. AND 12"o.c. VERT ON
20"w X 10"dp REIN. CONC.
FTG. w/ (2) #4 CONT.
10"w X 10'-0"h REIN. CONC.
FNDN. WALL w/ #4 @ 24"o.c.
HORIZ. AND 12"o.c. VERT ON
20"w X 10"dp REIN. CONC.
FTG. w/ (2) #4 CONT.
DROP t/ SLAB 1-1/2"
(42" x 96" AREA)
6"w X 6"h BLOCKOUT AT
INT. FACE OF WALL FOR
FLUSH SLAB SUPPORT
t/ WALL: 920.0'
t/ FTG: 915.0'
t/ FTG: 915.0'
t/ WALL: 928.0'
t/ FTG: 918.0'
t/ WALL: 928.0'
t/ FTG: 918.0'
t/ WALL: 928.0'
t/ WALL: 928.0'
t/ LEDGE: 927.5'
t/ WALL: 928.0'
t/ FTG: 918.0'
t/ WALL: 928.0'
10"w X 10'-0"h REIN. CONC.
FNDN. WALL w/ INTERIOR
BLOCKOUT w/ #4 @ 24"o.c.
HORIZ. AND 12"o.c. VERT ON
20"w X 10"dp REIN. CONC.
FTG. w/ (2) #4 CONT.
10"w X 10'-0"h REIN. CONC.
FNDN. WALL w/ #4 @ 24"o.c.
HORIZ. AND 12"o.c. VERT ON
20"w X 10"dp REIN. CONC.
FTG. w/ (2) #4 CONT.
t/ FTG: 915.0'
t/ STEM: 918.0'
t/ PIER: 918.75'
4" REIN. CONC. SLAB (EL: 918.33) w/ #4 @ 24"o.c.
E/W o/ 10mil VAPOR BARRIER (MIN.) o/ 2" RIGID
INSULATION o/ 4" CLEAN 3
4"Ø GRAVEL BASE
UNEXCAVATED
t/ FTG: 918.0'
t/ WALL: 928.0'
8"w X 6'-0"h REIN. CONC.
FNDN. WALL w/ #4 @ 24"o.c.
HORIZ. AND 12"o.c. VERT ON
16"w X 8"dp REIN. CONC. FTG.
w/ (2) #4 CONT.
t/ FTG: 923.5'
t/ WALL: 929.5'
t/ FTG: 918.0'
t/ WALL: 928.0'
10"w X 3'-0"h BURIED REIN.
CONC. FNDN. WALL w/ #4 @
24"o.c. E/W & 6"w X 6"h INT.
BLOCKOUT ON 20"w X 10"dp
REIN. CONC. FTG. w/ (2) #4
CONT.
t/ FTG: 915.0'
t/ STEM: 918.0'
30"x60" REIN. CONC. PAD w/
(4) #4 BARS LONG. AND (8) #4
BARS TRANS.
WALL HEIGHT
STEP
WALL HEIGHT
STEP
t/ FTG: 918.0'
t/ WALL: 926.0'
DROP t/ SLAB 1-1/2"
FOR MECHANICAL
EQUIP.
DROP t/
WALL 24"
10"w X 10'-0"h REIN. CONC.
FNDN. WALL w/ #4 @ 24"o.c.
HORIZ. AND 12"o.c. VERT ON
20"w X 10"dp REIN. CONC.
FTG. w/ (2) #4 CONT.
10"w X 8'-0"h REIN. CONC.
FNDN. WALL w/ #4 @ 24"o.c.
HORIZ. AND 12"o.c. VERT ON
20"w X 10"dp REIN. CONC.
FTG. w/ (2) #4 CONT.
DROP t/
WALL 48"
t/ FTG: 918.0'
t/ WALL: 926.0'
t/ WALL:
922.0'
t/ FTG:
918.0'
10"w X 4'-0"h REIN. CONC.
FNDN. WALL w/ #4 @ 24"o.c.
HORIZ. AND 12"o.c. VERT ON
20"w X 10"dp REIN. CONC.
FTG. w/ (2) #4 CONT.
DROP t/ FTG
DOWN 3'-0"
10"w X 7'-0"h REIN. CONC.
FNDN. WALL w/ #4 @ 24"o.c.
HORIZ. AND 12"o.c. VERT ON
20"w X 10"dp REIN. CONC.
FTG. w/ (2) #4 CONT.
t/ WALL: 922.0'
t/ FTG: 918.0'
t/ WALL: 922.0'
t/ FTG: 915.0'
10"w X 7'-0"h REIN. CONC.
FNDN. WALL w/ #4 @ 24"o.c.
E/W ON 20"w X 10"dp REIN.
CONC. FTG. w/ (2) #4 CONT.
t/ WALL 922.0'
t/ FTG: 915.0'
10"w X 3'-0"h BURIED REIN.
CONC. FNDN. WALL w/ #4 @
24"o.c. E/W & 6"w X 6"h INT.
BLOCKOUT ON 20"w X 10"dp
REIN. CONC. FTG. w/ (2) #4
CONT.
10"w X 3'-0"h BURIED REIN. CONC.
FNDN. WALL w/ #4 @ 24"o.c. E/W & 6"w
X 6"h INT. BLOCKOUT ON 20"w X 10"dp
REIN. CONC. FTG. w/ (2) #4 CONT.
t/ STEM: 918.0'
t/ FTG: 915.0'
t/ STEM: 918.0'
t/ FTG: 915.0'
F.D.
EL: 918.18'
F.D.
EL: 918.18'
3'-8"
8'-0"
56'-1
7
8
"
8'-4"
8"
10"
5'-0"
1'-4"
14'-0"
3
'
-
4
"
6'-4"
4'-2"
90'-67
8"
56'-1
7
8
"
10'-5
1
2
"
90'-67
8"
t/ STEM: 918.0'
t/ LEDGE: 917.6'
t/ LEDGE: 917.5'
t/ LEDGE: 917.5'
t/ LEDGE: 917.5'
t/ LEDGE: 917.5'
1
1
'
-
2
"
1
0
'
-
1
0
"
A
PAD
A
PAD
24" SQ. x 42"dp
CONC. PIER
18" SQ. x 42"dp
CONC. PIER
G
G
G G
B A
A
C
C
C
10'-1"
12'-8"
12'-1"
11'-7"
12'-9"
1
1
'
-
2
"
FINAL STAIR PIER
LOCATIONS TO BE
COORD. ON SITE, TYP.
STL. BM.
CENTERLINE
3
S2.0
1
A11
1'-4"
8"
51'-4"
1'-4"
1'-0"
6'-0"
1'-0"
6'-4"
9'-4"
CLR
2'-8"
9'-4"CLR
2'-8"
9'-4"CLR
2'-4"
7'-10"
1'-8"
9'-8"
12'-0"
12'-0"
6'-8"
7'-2" 7'-6"
8"
8"w X 4'-0"h REIN. CONC. FNDN. WALL
w/ 4"w X 12"h BLOCKOUT AT TOP w/ #4
@ 24"o.c. E/W ON 16"w X 8"dp REIN.
CONC. FTG. w/ (2) #4 CONT.
11'-0" 11'-0"
BLOCK DOWN t/ WALL 12" FOR
OHD LOCATIONS, TYP. OF (3)
8"w X 4'-0"h REIN. CONC. FNDN.
WALL w/ 4"w X 12"h BLOCKOUT
AT TOP w/ #4 @ 24"o.c. E/W ON
16"w X 8"dp REIN. CONC. FTG. w/
(2) #4 CONT.
16"w X 8"dp THICKENED SLAB or REIN.
CONC. FTG. w/ (2) #4 CONT.
DROP
t/ STEM 6"
8"w X 3'-6"h REIN. CONC. FNDN. WALL
w/ 4"w X 6"h BLOCKOUT AT TOP w/ #4
@ 24"o.c. E/W ON 16"w X 8"dp REIN.
CONC. FTG. w/ (2) #4 CONT.
CONT. INT. LEDGE HEIGHT THROUGH
WALL STEM HEIGHT STEP
CONT. INT. LEDGE
HEIGHT PAST STEM
HEIGHT STEP
8"
1'-4"
8"w X 4'-0"h REIN. CONC. FNDN. WALL
w/ 4"w X 12"h BLOCKOUT AT TOP w/ #4
@ 24"o.c. E/W ON 16"w X 8"dp REIN.
CONC. FTG. w/ (2) #4 CONT.
t/ LEDGE: 927.5'
t/ STEM: 928.5'
t/ LEDGE: 927.5'
t/ STEM: 928.5'
t/ LEDGE: 927.5'
t/ STEM: 928.5'
t/ STEM: 928.5'
t/ STEM: 928'
t/ LEDGE:
927.5'
t/ STEM:
928'
t/ LEDGE: 927.5'
t/ STEM: 928.5'
t/ LEDGE: 927.5'
t/ STEM: 928'
t/ LEDGE: 927.5'
t/ STEM: 928.5'
t/ LEDGE: 927.5'
t/ STEM: 928'
SLOPE SLAB 1
8" PER 1'-0" TO DRAIN
TOWARDS OVERHEAD DOORS, TYP.
WARP SLAB TO CREATE
FLUSH TRANSITION
INTO MUDROOM
UNEXCAVATED
F.D.
EL: 927.93'
F.D.
EL: 927.93'
F.D.
EL: 927.93'
6"w STEM
6"w STEM
6"w STEM
6"w STEM
6"w STEM
8'-0"
42'-0"
BREAK IN SLOPE TO
ALIGN w/ WALL; RE: PLAN
t/ FTG: 924.5'
t/ FTG: 924.5'
t/ FTG: 924.5'
t/ FTG: 924.5'
t/ FTG: 924.5'
t/ FTG: 924.5'
PFH
1
S4.0
PFH
1
S4.0
PFH
1
S4.0
PFH
1
S4.0
C
PAD
C
PAD
C
PAD
S2.1
2
REF. 1/S2.1 FOR STRUCT.
GARAGE SLAB DETAILS
UNEXCAVATED
UNEXCAVATED
16"w X 8"dp THICKENED
SLAB OR REIN. CONC.
FTG. w/ (2) #4 CONT.
1'-2"
7'-4"
2
A10
PIER PLAN
SEE FOUNDATION PLAN FOR DIMENSIONS
R.
FULLER
FOUNDATION
CO.
6545
NW
STANDARD
BRED
DRIVE
KANSAS
CITY,
MISSOURI
PIER
DESIGN
1
2
3
4
5
6
7
8
9
10
11 12
13 14 15 16
17 18
19
20
21
22
23
24
25
26
27
28
29
30
31
32
33
34
35
36
37
38
39
40
41
42
43
05/04/2021
S-0.1
44
45
46
47
48
49 50
5" CONC. SLAB W/ #4 BARS
@ 12" O.C. E.W. ON 1.5"
CHAIRS TYP.
5" CONC. SLAB W/ #4 BARS
@ 12" O.C. E.W. ON 1.5"
CHAIRS TYP.
51
52
53
54
55
56
57
58
59
60
61
62
(4) 8'-0" #4 BARS E/W ON
3 1/2" CHAIRS (TYP.)
(4) 8'-0" #4 BARS E/W ON
3 1/2" CHAIRS (TYP.)
-89 PIERS TOTAL FOR HOUSE SUPPORT
-PIERS ARE TO BE 18"∅
-PIERS TO TERMINATE SHALE, SANDSTONE OR
LIMESTONE.
CONTRACTUAL BENEFIT: HD ENGINEERING & DESIGN HAS
PRODUCED OR WORKED ON THESE DRAWINGS IN THE INTEREST
OF OUR CLIENT. NO CONTRACTUAL OBLIGATION OR BENEFIT IS
ASSUMED BETWEEN HD ENGINEERING & DESIGN AND ANY OTHER
ENTITY.
EXISTING CONDITIONS: HD ENGINEERING & DESIGN WILL ONLY
BE HELD LIABLE FOR THESE DRAWINGS. HD ENGINEERING &
DESIGN WILL NOT BE HELD LIABLE FOR EXISTING BUILDING
STRUCTURES, SITE CONDITIONS, EXISTING CONSTRUCTION
ELEMENTS, OR ANY OTHER DOCUMENTS, DRAWINGS, OR OTHER
INSTRUMENTS RELATED TO OR INTENDED TO BE USED FOR ANY
PART OF THIS PROJECT.
OUR DESIGN ASSUMES THAT THE BEARING CAPACITY OF THE
SHALE, LIMESTONE, OR SANDSTONE SHALL BE A MINIMUM OF
8000 PSF.
A PIER PLAN OF THIS NATURE IS ONLY INTENDED TO PROVIDE
EQUIVALENT BEARING FOR GRAVITY LOADS, NO MEASURES HAVE
BEEN TAKEN TO RESIST UPLIFT DUE TO THE EFFECTS OF
EXPANSIVE SOIL OR LATERAL RESTRAINT DUE TO SITE STABILITY
63
64
65
66
67
68
69
70
71
72
73
74 75
76
77
78
79
80
81
82
83 84 85 86
87
88
89
PIER DESIGN
1
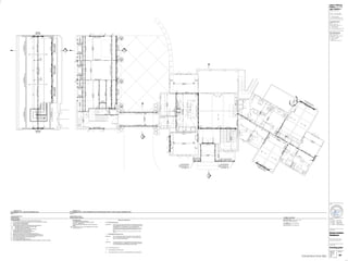
FLOOR PLAN
FOUNDATION PLAN
1/4" = 1'-0"
CONSTRUCTION NOTES
PLAN NOTES SYMBOL LEGEND
REIN. CONC. WALL w/ CONT.
REIN. CONC. FTG.
2x6 WD. FRAMED WALL
2x4 WD. FRAMED WALL
6" WALL
L
K
J
H
G
1. ALL PIERS TO BEAR ON ORIGINAL, UNDISTURBED SOIL OF 2,000psf BEARING
CAPACITY OR FILL COMPACTED AND TESTED
TO CONFORM TO THE RECOMMENDATIONS OF A GEOTECHNICAL ENGINEER.
2. PIERS SHALL EXTEND BELOW THE FROST LINE: MIN. DEPTH OF 36" BELOW
GRADE.
3. POST SHALL BE TREATED OR CEDAR WITH SIMPSON ABU66 POST BASE
28"
6x6
18"
6x6
24"
6x6
16"
6x6
12"
6x6
PIER DIA.
COLUMN SIZE
MARK
COLUMN & PIER SCHEDULE
ALTERNATE BRACED WALL PANEL
DETAIL
1
S4.0
TYPICAL DEAD MAN DETAIL
3
S2.0
TYPICAL OVERDIG DETAIL AT
BASEMENT SLAB
6
S2.1
COLUMN AND PIER PAD SCHEDULE (SHEET S2.0)
X
ALT.
APA NARROW WALL BRACING METHOD
WITHOUT HOLD-DOWNS
1
S4.0
DETAIL REFERENCES
STRUCTURAL GARAGE SLAB /
WALL SECTION
3
S2.1
STRUCTURAL GARAGE SLAB
PIER PAD DETAIL
2
S2.1
TYPICAL STRUCTURAL GARAGE SLAB PLAN
1
S2.1
COLUMN PAD DETAIL
5
S2.0
FOUNDATION WALL JUMP DETAIL
4
S2.0
TYPICAL "UNRESTRAINED" FOUNDATION
WALL DETAIL
2
S2.0
TYPICAL FOUNDATION WALL DETAIL
1
S2.0
136'-67
8"
22'-0" 24'-0"
49'-21
2" 41'-43
8"
1'-4" 20'-0"
16'-0" 22'-0" 6'-21
2" 1'-103
4" 19'-57
8" 1'-8" 12'-11
2" 6'-23
8"
77'-1
7
8
"
51'-4"
14'-8"
3'-6"
5'-11"
1'-8
3
4
"
136'-67
8"
11'-1
7
8
"
44'-3" 46'-37
8"
22'-0"
8"
24'-0"
5'-0" 13'-4" 22'-9" 1'-11" 1'-3" 6'-61
2" 11'-13
8" 14'-0" 11'-0"
77'-1
7
8
"
45'-8
1
4
"
19'-0
5
8
"
5'-6"
5'-9
1
4
"
7'-0"
8'-4
3
8
"
5"
10'-7" 11'-0"
5"
1'-11"
51'-4"
1'-4"
1'-0"
6'-0"
1'-0"
6'-4"
9'-4"
CLR
2'-8"
9'-4"CLR
2'-8"
9'-4"CLR
2'-4"
7'-10"
1'-8"
9'-8"
12'-0"
12'-0"
6'-8"
7'-2" 7'-6"
8"
8"w X 4'-0"h REIN. CONC. FNDN. WALL
w/ 4"w X 12"h BLOCKOUT AT TOP w/ #4
@ 24"o.c. E/W ON 16"w X 8"dp REIN.
CONC. FTG. w/ (2) #4 CONT.
11'-0" 11'-0"
BLOCK DOWN t/ WALL 12" FOR
OHD LOCATIONS, TYP. OF (3)
8"w X 4'-0"h REIN. CONC. FNDN.
WALL w/ 4"w X 12"h BLOCKOUT
AT TOP w/ #4 @ 24"o.c. E/W ON
16"w X 8"dp REIN. CONC. FTG. w/
(2) #4 CONT.
16"w X 8"dp THICKENED SLAB or REIN.
CONC. FTG. w/ (2) #4 CONT.
DROP
t/ STEM 6"
DROP
t/ STEM 6"
8"w X 3'-6"h REIN. CONC. FNDN. WALL
w/ 4"w X 6"h BLOCKOUT AT TOP w/ #4
@ 24"o.c. E/W ON 16"w X 8"dp REIN.
CONC. FTG. w/ (2) #4 CONT.
CONT. INT. LEDGE HEIGHT THROUGH
WALL STEM HEIGHT STEP
CONT. INT. LEDGE
HEIGHT PAST STEM
HEIGHT STEP
9'-10"
41'-6"
12'-2" 12'-0"
12'-0 3
8 "
12'-10"
16'-2"
7
'
-
4
"
1
0
'
-
1
0
"
14'-8"
1'-4"
1'-0"
5'-2"
1'-0"
10'-6"
10'-6"
1'-11"
13'-4"
1'-10" 11'-10" 8'-5" 1'-11" 30°
2'-31
2"
8"
1'-4" 20'-0" 1'-4"
8"
5'-0"
8"w X 4'-0"h REIN. CONC. FNDN. WALL
w/ 4"w X 12"h BLOCKOUT AT TOP w/ #4
@ 24"o.c. E/W ON 16"w X 8"dp REIN.
CONC. FTG. w/ (2) #4 CONT.
6'-6"
8'-6"
19'-6"
10'-6"
6'-0"
6'-9"
5'-9"
16'-3"
3'-3"
3
'
-
9
1
2
"
22'-6"
11'-0"
6
'
-
8
"
DROP t/ FTG
DOWN 4'-0"
8"w X 5'-0"h REIN. CONC. FNDN.
WALL w/ #4 @ 24"o.c. HORIZ. AND
12"o.c. VERT w/ 4"w x 6"h INT.
BLOCK OUT ON 16"w X 8"dp REIN.
CONC. FTG. w/ (2) #4 CONT.
WALL HEIGHT STEP
8"w X 3'-0"h BURIED REIN. CONC.
FNDN. WALL w/ #4 @ 24"o.c. E/W
& 4"w X 6"h INT. BLOCKOUT ON
16"w X 8"dp REIN. CONC. FTG. w/
(2) #4 CONT.
18" SQ. x 42"dp
CONC. PIER
8"w X 9'-0"h REIN. CONC.
FNDN. WALL w/ #4 @ 24"o.c.
HORIZ. AND 12"o.c. VERT ON
16"w X 8"dp REIN. CONC. FTG.
w/ (2) #4 CONT.
8"w X 9'-0"h REIN. CONC.
FNDN. WALL w/ #4 @ 24"o.c.
HORIZ. AND 12"o.c. VERT ON
16"w X 8"dp REIN. CONC. FTG.
w/ (2) #4 CONT.
DROP t/ SLAB 1-1/2"
(42" x 96" AREA)
4"w X 6"h BLOCKOUT AT
INT. FACE OF WALL FOR
FLUSH SLAB SUPPORT
t/ STEM: 928.5'
t/ LEDGE: 927.5'
t/ LEDGE: 927.5'
t/ STEM: 928.5'
t/ LEDGE: 927.5'
t/ STEM: 928.5'
t/ LEDGE: 927.5'
t/ STEM: 928.5'
t/ STEM: 928.5'
t/ STEM: 928'
t/ LEDGE:
927.5'
t/ STEM:
928'
t/ LEDGE: 927.5'
t/ STEM: 928.5'
t/ LEDGE: 927.5'
t/ STEM: 928'
t/ LEDGE: 927.5'
t/ STEM: 928.5'
t/ LEDGE: 927.5'
t/ STEM: 928'
t/ WALL: 920.0'
t/ FTG: 915.0'
t/ FTG: 915.0'
t/ WALL: 928.0'
t/ FTG: 919.0'
t/ WALL: 928.0'
t/ FTG: 919.0'
t/ WALL: 928.0'
t/ WALL: 928.0'
t/ LEDGE: 927.5'
t/ WALL: 928.0'
t/ FTG: 919.0'
t/ WALL: 928.0'
8"w X 9-0"h REIN. CONC.
FNDN. WALL w/ INTERIOR
BLOCKOUT w/ #4 @ 24"o.c.
HORIZ. AND 12"o.c. VERT ON
16"w X 8"dp REIN. CONC. FTG.
w/ (2) #4 CONT.
8"w X 9'-0"h REIN. CONC.
FNDN. WALL w/ #4 @ 24"o.c.
HORIZ. AND 12"o.c. VERT ON
16"w X 8"dp REIN. CONC. FTG.
w/ (2) #4 CONT.
t/ FTG: 915.0'
t/ STEM: 918.0'
t/ PIER: 918.75'
4" REIN. CONC. SLAB (EL: 918.33) w/ #4 @ 24"o.c.
E/W o/ 10mil VAPOR BARRIER (MIN.) o/ 2" RIGID
INSULATION o/ 4" CLEAN 3
4"Ø GRAVEL BASE
SLOPE SLAB 1
8" PER 1'-0" TO DRAIN
TOWARDS OVERHEAD DOORS, TYP.
WARP SLAB TO CREATE
FLUSH TRANSITION
INTO MUDROOM
UNEXCAVATED
UNEXCAVATED
t/ FTG: 919.0'
t/ WALL: 928.0'
8"w X 6'-0"h REIN. CONC.
FNDN. WALL w/ #4 @ 24"o.c.
HORIZ. AND 12"o.c. VERT ON
16"w X 8"dp REIN. CONC. FTG.
w/ (2) #4 CONT.
t/ FTG: 923.5'
t/ WALL: 929.5'
t/ FTG: 919.0'
t/ WALL: 928.0'
8"w X 3'-0"h BURIED REIN. CONC.
FNDN. WALL w/ #4 @ 24"o.c. E/W
& 4"w X 6"h INT. BLOCKOUT ON
16"w X 8"dp REIN. CONC. FTG. w/
(2) #4 CONT.
t/ FTG: 915.0'
t/ STEM: 918.0'
30"x60" REIN. CONC. PAD w/
(4) #4 BARS LONG. AND (8) #4
BARS TRANS.
WALL HEIGHT
STEP
WALL HEIGHT
STEP
t/ FTG: 919.0'
t/ WALL: 926.0'
DROP t/ SLAB 1-1/2"
FOR MECHANICAL
EQUIP.
DROP t/
WALL 24"
8"w X 9-0"h REIN. CONC.
FNDN. WALL w/ #4 @ 24"o.c.
HORIZ. AND 12"o.c. VERT ON
16"w X 8"dp REIN. CONC. FTG.
w/ (2) #4 CONT.
8"w X 7'-0"h REIN. CONC.
FNDN. WALL w/ #4 @ 24"o.c.
HORIZ. AND 12"o.c. VERT ON
16"w X 8"dp REIN. CONC. FTG.
w/ (2) #4 CONT.
DROP t/
WALL 48"
t/ FTG: 919.0'
t/ WALL: 926.0'
t/ WALL:
922.0'
t/ FTG:
919.0'
8"w X 3'-0"h REIN. CONC.
FNDN. WALL w/ #4 @ 24"o.c.
HORIZ. AND 12"o.c. VERT ON
16"w X 8"dp REIN. CONC. FTG.
w/ (2) #4 CONT.
DROP t/ FTG
DOWN 4'-0"
8"w X 7'-0"h REIN. CONC.
FNDN. WALL w/ #4 @ 24"o.c.
HORIZ. AND 12"o.c. VERT ON
16"w X 8"dp REIN. CONC. FTG.
w/ (2) #4 CONT.
t/ WALL: 922.0'
t/ FTG: 919.0'
t/ WALL: 922.0'
t/ FTG: 915.0'
8"w X 7'-0"h REIN. CONC.
FNDN. WALL w/ #4 @ 24"o.c.
E/W ON 16"w X 8"dp REIN.
CONC. FTG. w/ (2) #4 CONT.
t/ WALL 922.0'
t/ FTG: 915.0'
8"w X 3'-0"h BURIED REIN. CONC.
FNDN. WALL w/ #4 @ 24"o.c. E/W
& 4"w X 6"h INT. BLOCKOUT ON
16"w X 8"dp REIN. CONC. FTG. w/
(2) #4 CONT.
8"w X 3'-0"h BURIED REIN. CONC.
FNDN. WALL w/ #4 @ 24"o.c. E/W & 4"w
X 6"h INT. BLOCKOUT ON 16"w X 8"dp
REIN. CONC. FTG. w/ (2) #4 CONT.
t/ STEM: 918.0'
t/ FTG: 915.0'
t/ STEM: 918.0'
t/ FTG: 915.0'
F.D.
EL: 918.18'
F.D.
EL: 918.18'
F.D.
EL: 927.93'
F.D.
EL: 927.93'
F.D.
EL: 927.93'
6"w STEM
6"w STEM
6"w STEM
6"w STEM
6"w STEM
3'-8"
8'-0"
42'-0"
8'-0"
56'-1
7
8
"
8'-6"
8"
10"
5'-0"
1'-4"
3
'
-
4
"
6'-4"
4'-2"
90'-67
8"
56'-1
7
8
"
21'-0"
10'-5
1
2
"
90'-67
8"
BREAK IN SLOPE TO
ALIGN w/ WALL; RE: PLAN
t/ STEM: 918.0'
t/ LEDGE: 917.6'
t/ LEDGE: 917.5'
t/ LEDGE: 917.5'
t/ LEDGE: 917.5'
t/ LEDGE: 917.5'
1
1
'
-
2
"
1
0
'
-
1
0
"
GENERAL PLAN NOTES
1. WINDOWS SHALL HAVE FALL PROTECTION IRC 312.2.4
2. HOUSE WILL BE PROVIDED WITH A 'UFER' GROUND PER IRC SECTION 3608.1.5
3. OVERHEAD GARAGE DOORS MUST MEET DASMA REQUIREMENTS FOR 115mph.
4. ALL HEADERS NOT LABELED SHALL BE MIN (2) #2 2x10 DFL
5. DBL ALL JOISTS UNDER ISLAND
6. ICE AND WATER SHIELD AS REQUIRED PER IRC
7. SOILS IN THIS AREA COMMONLY HAVE A VERY HIGH SHRINK SWELL CAPACITY. IT IS RECOMMENDED THAT ALL SITES BE
EVALUATED BY A GEOTECHNICAL FIRM PRIOR TO PLACEMENT OF FOUNDATIONS.
8. FOUNDATION SHALL BE CONSTRUCTED PER PLATTE COUNTY GUIDELINES.
3" DIA.
3" DIA.
3" DIA.
31
2" DIA.
31
2" DIA.
S
C
H
E
D
U
L
E
4
0
S
T
E
E
L
P
I
P
E
(
F
y
=
3
6
k
s
i
M
I
N
.
)
COLUMN TYPE
1. COLUMN & PAD SIZES SHOWN ARE FOR MAXIMUM COLUMN HEIGHT OF 10'-0", REQUIRES SEPARATE ENGR'D DESIGN IF GREATER
THAN 10'-0" TALL.
2. COLUMN & PIER PAD SIZES SHOWN ARE BASED ON AN ASSUMED MINIMUM ALLOWABLE SOIL BEARING CAPACITY OF 2,000psf.
(10) #4 BAR E.W.
60" x 60" x 16"
F
(8) #4 BAR E.W.
54" x 54" x 16"
E
(6) #4 BAR E.W.
48" x 48" x 12"
D
C
B
A
COLUMN MARK
(5) #4 BAR E.W.
42" x 42" x 12"
3" DIA.
(4) #4 BAR E.W.
(4) #4 BAR E.W.
36" x 36" x 12"
COLUMN SIZE
REINFORCEMENT
30" x 30" x 12"
PAD SIZE
COLUMN & PIER PAD SCHEDULE (REF. 5/S2.0)
CONSTRUCTION NOTES
STRUCTURAL NOTES
t/ FTG: 924.5'
t/ FTG: 924.5'
t/ FTG: 924.5'
t/ FTG: 924.5'
t/ FTG: 924.5'
t/ FTG: 924.5'
PFH
1
S4.0
PFH
1
S4.0
PFH
1
S4.0
PFH
1
S4.0
C
PAD
C
PAD
C
PAD
S2.1
2
REF. 1/S2.1 FOR STRUCT.
GARAGE SLAB DETAILS
UNEXCAVATED
UNEXCAVATED
A
PAD
A
PAD
24" SQ. x 42"dp
CONC. PIER
18" SQ. x 42"dp
CONC. PIER
G
G
G G
B A
A
C
C
C
10'-1"
12'-8"
12'-1"
11'-7"
12'-9"
1
1
'
-
2
"
FINAL STAIR PIER
LOCATIONS TO BE
COORD. ON SITE, TYP.
STRUCTURAL NOTES:
- ALL UNMARKED HEADERS MIN (2)#2-2x10
- ALL HEADERS AND BEAMS MIN #2 GRADE DF/L (OR EQ.)
= BEARING WALL
- SHIPLAP SIDING MUST BE FASTENED AT BOTH UNDER LAP AND OVERLAP
DEFERRED JOIST SUBMITTAL:
- JOIST DESIGN SHALL BE SUBMITTED TO APEX ENGINEERS, INC. FOR REVIEW
PRIOR TO CONSTRUCTION AND INSTALLATION OF JOISTS.
- JOIST DESIGNER/ MANUFACTURER SHALL FOLLOW ASSUMED JOIST DIRECTIONS
AS CLOSELY AS POSSIBLE TO CONFORM WITH HOUSE STRUCTURE AS A WHOLE.
- IF DEVIATION FROM ASSUMED JOIST DESIGN ARE REQUIRED, MANUF. SHALL
CONTACT APEX ENGINEERS.
EXPANSIVE SOILS DISCLAIMER
THESE PLANS HAVE BEEN PREPARED BASED ON A PRESUMPTIVE ALLOWABLE
BEARING CAPACITY AS ALLOWED BY IRC CODE AND THE LOCAL ENFORCING
JURISDICTION.
APEX ENGINEERS, INC. (APEX) RECOMMENDS THAT ALL FOOTING EXCAVATIONS
BE EVALUATED BY A LICENSED GEOTECHNICAL ENGINEER PRIOR TO THE
PLACEMENT OF ANY FOUNDATION ELEMENTS. GEOTECHNICAL INVESTIGATION
AND/OR TESTING IS NOT A SERVICE PROVIDED OR OFFERED BY APEX.
APEX HAS NOT BEEN RETAINED TO DETERMINE THE EXPANSIVE SOIL
CHARACTERISTICS OF THE SUBGRADE SOIL AND THEREFORE CANNOT BE HELD
RESPONSIBLE FOR THE VOLUMETRIC CHANGES OF THE SOIL (INCLUDING BELOW
BASEMENT SLAB). BY USE OF THESE PLANS WITHOUT AN ACCOMPANYING
GEOTECHNICAL ENGINEERING REPORT, APEX SHALL NO BE HELD LIABLE FOR
ANY FUTURE MOVEMENT AND/OR DIFFERENTIAL MOVEMENT OF THE PROPOSED
STRUCTURE AND THE POSSIBLE DAMAGE THAT MAY BE CAUSED AS A RESULT OF
SUCH MOVEMENT.
STL. BM.
CENTERLINE
16"w X 8"dp THICKENED
SLAB OR REIN. CONC.
FTG. w/ (2) #4 CONT.
1'-2"
7'-4"
3
S2.0
2
A10
1
A11
24"Ø x 42"dp CONC. PIER, TYP.
OF (4)
5
'
-
8
"
13'-4" CENTER TO CENTER
8'-4"
7'-8"
9
'
-
0
"
CONSTRUCTION SET
Adam Anthony
Pfeifer, NCARB
apd_studios+
design | fabrication
12214 w 79th terrace
lenexa, kansas 66215
p. 785.650.3563
e. adam@apdstudios.com
Troy & Eden Kearns
owner
804 W 33rd St
Kansas City, MO 64111
p. 702.556.4081
a. Troy Kearns
e. troyjkearns@gmail.com
Apex Engineering
structural engineer
1625 Locust St
Kansas City, MO 64108
p. 816.421.3222
a. Jason Gibson
e. jason@
apex-engineers.com
Kearns Custom
Residence
6545 Standardbred Drive
Kansas City, MO 64164
drawing title
project no. sheet no.
2020.26
drawn by
aap
date
11.09.2020
project title
release
seal
01.15.2021 _ Permit Set
10.06.2021 _ Fndn. Revs.
11.08.2021 _ Lighting Plan
11.11.2021 _ Lighting Revs.
11.13.2021 _ Const. Revisions
foundation
plan
A1
1
FRAMING PLAN
FIRST FLOOR FRAMING PLAN
1/4" = 1'-0"
CONSTRUCTION NOTES
PLAN NOTES SYMBOL LEGEND
REIN. CONC. WALL w/ CONT.
REIN. CONC. FTG.
2x6 WD. FRAMED WALL
2x4 WD. FRAMED WALL
6" WALL
STRUCTURAL NOTES:
- ALL UNMARKED HEADERS MIN (2)#2-2x10
- ALL HEADERS AND BEAMS MIN #2 GRADE DF/L (OR EQ.)
= BEARING WALL
- SHIPLAP SIDING MUST BE FASTENED AT BOTH UNDER LAP AND
OVERLAP
- 2-PLY EXTERIOR WALL HEADERS SET FLUSH TO OUTSIDE FACE OF
FRAMING. INSULATE INNER CAVITY BEHIND HEADER w/ BATT
INSULATION.
DEFERRED JOIST SUBMITTAL:
- JOIST DESIGN SHALL BE SUBMITTED TO APEX ENGINEERS, INC. FOR
REVIEW PRIOR TO CONSTRUCTION AND INSTALLATION OF JOISTS.
- JOIST DESIGNER/ MANUFACTURER SHALL FOLLOW ASSUMED JOIST
DIRECTIONS AS CLOSELY AS POSSIBLE TO CONFORM WITH HOUSE
STRUCTURE AS A WHOLE.
- IF DEVIATION FROM ASSUMED JOIST DESIGN ARE REQUIRED, MANUF.
SHALL CONTACT APEX ENGINEERS.
SYMBOLS
POINT LOAD (KIPS)
w = ### plf DISTRIBUTED LOAD (lb/ft)
BRACED WALL METHODOLOGY
XXXX EXTERIOR BRACED WALLS:
WSP METHOD: WOOD STRUCTURAL PANEL SHEATHING WITH A THICKNESS NOT LESS THAN
3
8" WITH MINIMUM SPAN RATING OF 24/0 FOR 16" OC STUD SPACING WITH 6d
COMMON NAILS AT 6" OC EDGES AND 12" OC FIELD OR SHEATHING
THICKNESS NOT LESS THAN 7
16" WITH MINIMUM SPAN RATING OF 24
16 FOR
24" OC SPACING WITH 8d COMMON NAILS AT 6" OC EDGES AND 12" OC IN
FIELD.
(NOTE: FRAMING MEMBERS 16" OC MAX,UNBLOCKED, AND WITH SHEATHING APPLIED DIRECTLY TO FRAMING
MEMBERS)
/ / / / INTERIOR BRACED WALLS (REF 2-S4.0):
GB METHOD: 1
2" MIN. GYPSUM BOARD OVER STUDS SPACED 24" MAX. FASTENED WITH
No 6 - 11
4" TYPE 'W' OR 'S' DRYWALL SCREWS AT 7" OC EDGES AND FIELD
( MIN. 4'-0" SECTION FOR BOTH SIDES.)
OR
LIB METHOD: 1x4 WOOD FASTENED WITH (3) 8d COMMON NAILS OR SIMPSON / USP 16 GA.
TYPE WB (OR EQUAL) STL. X-BRACE(S) AT 45° TO 60° ANGLES, MAXIMUM 16"
OC STUD FASTENED PER MANUFACTURER'S SPECIFICATIONS.
XXXX = EXTERIOR BRACED WALLS
/ / / / = INTERIOR BRACED WALS (REF 2/S4.0)
EC = END CONDTION (REF 2/S4.1 FOR CONTINUOUS SHEATHED BRACED WALL END CONDTIONS
CONSTRUCTION NOTES
STRUCTURAL NOTES
0
.
2
w
=
2
2
0
p
l
f
S
P
E
C
I
A
L
T
R
U
S
S
B
Y
O
T
H
E
R
S
o
r
W
8
x
1
0
S
T
L
.
B
M
.
W
=
1
2
0
p
l
f
0
.
1
0
.
1
0
.
1
S
P
E
C
I
A
L
T
R
U
S
S
B
Y
O
T
H
E
R
S
o
r
W
8
x
1
0
S
T
L
.
B
M
.
W
=
1
2
0
p
l
f
0
.
2
0
.
4
S
P
E
C
I
A
L
T
R
U
S
S
B
Y
O
T
H
E
R
S
o
r
W
8
x
1
0
S
T
L
.
B
M
.
W
=
1
2
0
p
l
f
0
.
3
0
.
3
0
.
2
S
P
E
C
I
A
L
T
R
U
S
S
B
Y
O
T
H
E
R
S
o
r
W
8
x
1
0
S
T
L
.
B
M
.
(2)#2-2x12
(2)2x6
(2)2x6
M
I
N
I
M
U
M
1
6
"
d
p
W
O
O
D
T
R
U
S
S
E
S
B
Y
O
T
H
E
R
S
W8x21STLBM(CONT.)
2
S3.1
BM.
SPLICE
2'-11"
3"SCH.40
STL.COL.,
TYP
3"SCH.40
STL.COL.,
TYP
3"SCH.40
STL.COL.,
TYP
3"SCH.40
STL.COL.,
TYP
(2)#2-2x12
(2)#2-2x12
M
I
N
I
M
U
M
1
6
"
d
p
W
O
O
D
T
R
U
S
S
E
S
B
Y
O
T
H
E
R
S
COORD.FRAMING
HEIGHTOF
LANDINGONSITE
(
4
)
2
x
6
4.1
MI
N
I
M
UM
16"dp
GI
R
DER
TRUSS
BY
OTHERS
or
W8x10
STL.
BM.
3"SCH.40
STL.COL.,
TYP
3"SCH.40
STL.COL.,
TYP
3"SCH.40
STL.COL.,
TYP
3"SCH.40
STL.COL.,
TYP
W8x13STL.BM.(CONT.)
W8x28STL.BM.(UPSET)
(2)#2-2x10TRTD
(2)
#2-
2x10
TRTD
(2)#2-2x10TRTD
(2)
#2-
2x10
TRTD
(3)#2-2x12TRTD
(3)#2-2x12TRTD
6x6 TRTD POST ON
SIMPSON ABU66Z POST
BASE, TYP.
#2-
2x10
TRTD
@12"o.
c
.
#2-2x10TRTDLEDGERw/ 1
2"ØGALV.
LAGS@16"o.c.DOUBLEEVERYOTHER
(3)1-3/4"x11-7/8"LVL
(
3
)
2
x
6
(
3
)
2
x
6
#2-
2x10
TRTD
@12"o.
c
.
MI
N
.
16"dp
WOOD
TRUSSES
BY
OTHERS
W8x28STL.BM.(UPSET)
(
4
)
2
x
6
(2)#2-2x12
(
2
)
2
x
6
(
2
)
2
x
6
MI
N
.
16"dp
WOOD
TRUSSES
BY
OTHERS
3
S2.0
1. NOT APPLICABLE
4.1
2
A10
1
A11
(
2
)
1
-
3
/
4
"
x
1
6
"
L
V
L
(
2
)
1
-
3
/
4
"
x
1
6
"
L
V
L
(3)1-3/4"x16"LVL
8x8 CEDAR POST ON ABU66Z
POST BASE, TYP. OF (4)
#
2
-
2
x
1
0
F
J
s
@
1
6
"
o
.
c
.
#
2
-
2
x
4
C
J
s
@
1
6
"
o
.
c
.
F
L
U
S
H
T
O
b
/
L
V
L
#2-2x10TRTDLEDGERw/
1
2"ØGALV.
LAGS@16"o.c.DOUBLEEVERYOTHER
(2)#2-2x12TRTD
(2)#2-2x12TRTD
(
2
)
#
2
-
2
x
1
2
T
R
T
D
#
2
-
2
x
8
T
R
T
D
D
J
s
@
1
6
"
o
.
c
.
CONSTRUCTION SET
Adam Anthony
Pfeifer, NCARB
apd_studios+
design | fabrication
12214 w 79th terrace
lenexa, kansas 66215
p. 785.650.3563
e. adam@apdstudios.com
Troy & Eden Kearns
owner
804 W 33rd St
Kansas City, MO 64111
p. 702.556.4081
a. Troy Kearns
e. troyjkearns@gmail.com
Apex Engineering
structural engineer
1625 Locust St
Kansas City, MO 64108
p. 816.421.3222
a. Jason Gibson
e. jason@
apex-engineers.com
Kearns Custom
Residence
6545 Standardbred Drive
Kansas City, MO 64164
drawing title
project no. sheet no.
2020.26
drawn by
aap
date
11.09.2020
project title
release
seal
01.15.2021 _ Permit Set
10.06.2021 _ Fndn. Revs.
11.08.2021 _ Lighting Plan
11.11.2021 _ Lighting Revs.
11.13.2021 _ Const. Revisions
framing plan
A2
seal
1
FLOOR PLAN
BASEMENT FINISH PLAN
1/4" = 1'-0"
CONSTRUCTION NOTES
PLAN NOTES SYMBOL LEGEND
REIN. CONC. WALL w/ CONT.
REIN. CONC. FTG.
2x6 WD. FRAMED WALL
2x4 WD. FRAMED WALL
6" WALL
MEDIA
LOUNGE
8'-8" CLG
VINYL FLR
AUDIO/ VISUAL
CLOSET
8'-8" CLG
CONCRETE FLR
STORAGE
8'-8" CLG
CONCRETE FLR
UNEXCAVATED
UNEXCAVATED
GAME
ROOM
8'-8" BEAMED CLG
VINYL FLR
COVERED
TERRACE
8'-8" CLG
CONC. SLAB
WET BAR
8'-8" CLG
VINYL FLR
UP 18R
CLOSET
8'-8" CLG
VINYL FLR
HALF
BATH
8'-0" CLG
VINYL FLR
W.I.C.
8'-8" CLG
CARPET
BED 4
8'-8" CLG
CARPET
BED 5
8'-8" CLG
CARPET
BATH 3
8'-8" CLG
VINYL FLR
STORAGE
8'-8" CLG
CONCRETE FLR
UNEXCAVATED
UNEXCAVATED
UNEXCAVATED
UP 18R
4'-1" 15'-9"
10"
21'-2"
7'-2" 8'-0" 10'-9" 11'-3"
15'-4" 22'-0" 6'-21
2" 1'-103
4"
22'-6"
3'-8"
5'-2"
8'-8"
5'-0"
14'-0"
7'-0"
7'-0"
30°
2'-8"
2'-9"
2'-6"
18'-11
1
2
"
4'-2"
6'-10"
2'-11"
7'-4"
11'-4"
10" 4'-33
8"
1'-2 1
8 "
5'-4" 1'-41
2"
3'-21
2"
6'-6"
2'-0"
4'-3"
27'-7"
6'-9"
4'-0"
7'-8"
24'-2"
6
'
-
0
"
4
'
-
4
"
2
'
-
8
"
3
'
-
4
"
2'-4"
10"
7"
3'-10"
5'-0"
15'-4" 11'-3" 10"
7'-0" 1'-5"
8T
@
11"ea
=
7'-4"
7"
1'-0"
3'-0"
1'-1"
6'-9"
4'-5"
6"
5'-4"
28
70
24
70
2
0
7
0
2 0
7 0
2
4
7
0
2 8
7 0
2
8
7
0
2
8
7
0
5 0
7
BYPASS
0
2
0
7
0
20
70
120
8 SLIDING DR
0
26
56
CSMT
8'-0" HD. HT.
26
56
CSMT
8'-0" HD. HT.
36
56
PICT.
8'-0" HD. HT.
24"h LEDGE
2 6
5 6
CSMT
8'-0" HD. HT.
**EGRESS**
2 6
5 6
CSMT
8'-0" HD. HT.
**EGRESS**
(2) 2 6
5 6
CSMT
8'-0" HD. HT.
**EGRESS**
2 6
5 6
CSMT
8'-0" HD. HT.
**EGRESS*
2 6
5 6
CSMT
8'-0" HD. HT.
**EGRESS**
3 6
5 6
PICT.
8'-0" HD. HT.
1'-4"
40"h KNEE WALL
1
1
'
-
8
"
24"dp
LOW
CABINETS
18"dp, 32"h LOWER CABS w/ STONE TOP
PROJECTOR SCREEN
DOUBLE
STUD
WALL
DBL
WALL
8'-0"
HDR
8"dp FAUX BEAM
6"dp
FAUX
BEAM
8"dp FAUX BEAM
6"dp
FAUX
BEAM
6"dp
FAUX
BEAM
6"dp
FAUX
BEAM
6"dp
FAUX
BEAM
6"dp
FAUX
BEAM
40"h LWR CABS w/ STONE TOP
SINK
D/W
U/CAB
REFR.
U/CAB
FRZR.
LWR
CAB
8'-0"
HDR,
CUT
TO
STAIR
3" WD STAIR/
LANDING NOSING
48"x36"
GAS
FIREPLACE
INSERT
w/
LOG
SET
w/
MANTLE
ABOVE
LWR
CABS
w/
STONE
TOP
w/
UPR
SHLVNG
60"x108"
BARN
DOOR
60"x108"
BARN
DOOR
2R/
1S
5 SHLVS
36"
VANITY
(5) 24"dp
SHLVS
(
5
)
1
5
"
d
p
S
H
L
V
S
WALL EXTENDS
UNDER RISERS
GWB
WRAP
STRINGERS
72" DUAL VANITY
36x60 TILE
SHOWER w/
84"h GL. ENCL.
2R/ 1S
GENERAL PLAN NOTES
1. 5/8" TYPE-X GWB COLUMNS AND BEAMS
2. EXTENTS OF REAR PATIO TO BE CONFIRMED WITH BUILDER
3. PROVIDE EXHAUST FAN IN BATHROOMS
4. PROVIDE SMOKE DETECTORS IN ACCORDANCE WITH IRC REQUIREMENTS
4.1. ONE SMOKE ALARM AT EACH LEVEL OF RESIDENCE
4.2. ONE SMOKE ALARM IN EACH BEDROOM
4.3. ONE SMOKE ALARM OUTSIDE OF EACH SLEEPING AREA
5. PROVIDE CARBON MONOXIDE DETECTORS
6. CONFIRM DOOR HEIGHT w/ BUILDER PRIOR TO ORDER
7. ALL EXTERIOR WALLS ARE 2x6 CONSTRUCTION
8. WINDOWS SHALL HAVE FALL PROTECTION PER IRC SECTION 312.2.4
9. HOUSE WILL BE PROVIDED WITH A 'UFER' GROUND PER IRC SECTION 3608.1.5
10. OVERHEAD GARAGE DOORS MUST MEET DASMA REQUIREMENTS FOR 115mph.
11. ALL HEADERS NOT LABELED SHALL BE MIN (2) #2 2x10 DFL
12. DBL ALL JOISTS UNDER ISLAND
13. ICE AND WATER SHIELD AS REQUIRED PER IRC
14. ALL FUEL BURNING APPLIANCES SHALL BE HIGH EFFICIENCY AND DIRECTLY VENTED TO THE OUTSIDE.
SD
CO
SD
SD
SD CO
SD CO
F.D.
H.W.H.
HVAC #1
HVAC #1 H.W.H.
F.D.
OPEN
RAILING
PLANTING
BED
CONSTRUCTION NOTES
STRUCTURAL NOTES
EF
EF
ELEC. PANEL
4" WD. FURR OUT
AROUND LANDING
1. NOT APPLICABLE
2
A10
1
A11
8'-4"
RISER
WIDTH
CONSTRUCTION SET
Adam Anthony
Pfeifer, NCARB
apd_studios+
design | fabrication
12214 w 79th terrace
lenexa, kansas 66215
p. 785.650.3563
e. adam@apdstudios.com
Troy & Eden Kearns
owner
804 W 33rd St
Kansas City, MO 64111
p. 702.556.4081
a. Troy Kearns
e. troyjkearns@gmail.com
Apex Engineering
structural engineer
1625 Locust St
Kansas City, MO 64108
p. 816.421.3222
a. Jason Gibson
e. jason@
apex-engineers.com
Kearns Custom
Residence
6545 Standardbred Drive
Kansas City, MO 64164
drawing title
project no. sheet no.
2020.26
drawn by
aap
date
11.09.2020
project title
release
seal
01.15.2021 _ Permit Set
10.06.2021 _ Fndn. Revs.
11.08.2021 _ Lighting Plan
11.11.2021 _ Lighting Revs.
11.13.2021 _ Const. Revisions
floor plan
A3
seal
1
FLOOR PLAN
FIRST FLOOR PLAN
1/4" = 1'-0"
CONSTRUCTION NOTES
PLAN NOTES SYMBOL LEGEND
REIN. CONC. WALL w/ CONT.
REIN. CONC. FTG.
2x6 WD. FRAMED WALL
2x4 WD. FRAMED WALL
6" WALL
3-CAR
GARAGE
9'-8" CLG
CONCRETE FLR
BATH 4
9'-8" CLG
TILE FLR
MUDROOM 1
9'-8" CLG
TILE FLR
COVERED
BREEZEWAY
8'-8"+/- CLG
CONC. SLAB
UP 17R TO
STORAGE
LOFT
BUTLER'S
PANTRY
9'-0" CLG
HDWD FLR
MUDROOM
10'-4"+/- CLG
TILE FLR
UP 3R
KITCHEN
9'-0" CLG
HDWD FLR
DINING
11'-0" VAULT CLG
HDWD FLR
GREAT ROOM
VAULT CLG UP FROM 11'-0"
HDWD FLR
OFFICE
11'-0" VAULT CLG
HDWD FLR
ENTRY
9'-0" CLG / VAULT
HDWD FLR
DN 18R
POWDER
ROOM
9'-0" CLG
TILE FLR
W.I.C.
9'-0" CLG
HDWD FLR
18"dp
LINENS
BED 3
10'-0" VAULT CLG
HDWD FLR
BATH 2
9'-0" CLG
TILE FLR
BED 2
9'-0" CLG
HDWD FLR
W.I.C.
9'-0" CLG
HDWD FLR
M. BED
VAULT UP FROM 7'-6"
HDWD FLR
M. BATH
9'-0" CLG
TILE FLR
M. CLOSET 1
9'-0" CLG
CARPET
LAUNDRY
9'-0" CLG
TILE FLR
DN 18R
OUTDOOR
TERRACE
OPEN TO SKY
CONC. SLAB
MOTOR
COURT
CONC. SLAB
77'-1
7
8
"
51'-4"
14'-8"
20'-4"
12'-0"
12'-0"
7'-0"
136'-67
8"
22'-0" 24'-0" 90'-67
8"
11'-0" 11'-0"
5'-0" 16'-0" 22'-0" 6'-21
2" 1'-103
4" 19'-57
8" 4'-8" 12'-11
2" 3'-23
8"
8'-0" 8'-0"
4'-7" 6'-2" 6'-2" 5'-1"
5'-3"
5'-3"
1'-11"
1'-0"
6'-9" 7'-8" 7'-2"
5"
3'-9"
7"
77'-1
7
8
"
19'-0
5
8
"
16'-5
5
8
"
7'-0"
3'-2"
10'-5
1
2
"
45'-8
1
4
"
10'-5
1
2
"
136'-67
8"
44'-3" 46'-37
8"
22'-0" 24'-0"
5'-0" 16'-0" 11'-0" 11'-0" 1'-3"
11'-0" 11'-0"
8'-0" 8'-0" 5'-3" 5'-9" 5'-6" 5'-6"
6'-61
2" 11'-13
8" 3'-8" 14'-0" 11'-0"
2'-0 1
2 "
9'-9"
6'-5"
6'-5"
7'-9"
8'-5"
16'-2"
12'-10"
11'-9 1
2 "
2
'
-
6
"
8
'
-
6
"
8
'
-
6
"
2
'
-
6
"
2
2
'
-
0
"
5'-10"
5'-2" 11'-0"
7'-0"
7'-0" 14'-0"
5'-0"
8'-8"
5'-2"
3'-8"
22'-6"
3'-9"
4'-4"
3'-4"
3'-4"
40'-4"
1'-8"
8"
1'-4" 20'-0" 1'-4"
8"
5'-0"
1'-4"
1'-0"
2'-0"
4'-0"
1'-0"
6'-6"
9'-0"
3'-0"
9'-0"
3'-0"
9'-0"
2'-6"
8'-0"
42'-0"
51'-4"
90'-67
8"
11'-1
7
8
"
49'-21
2" 41'-43
8"
30°
56'-1
7
8
"
21'-0"
6'-10" 3'-4" 6'-2"
9'-4"
3'-6" 1'-4"
8"
4'-2" 4'-4" 12'-0"
10"
18'-10" 6'-8"
2'-4"
3'-6" 1'-5" 4'-4" 6'-3" 10" 1'-0" 9'-1" 1'-8" 3'-10"
1'-2"
3'-5" 1'-0" 10" 3'-21
2"
12'-8"
6"
2'-10"
3'-0"
2'-6"
6"
12'-0"
10'-11"
3'-4"
2'-10"
6"
1'-6"
1'-6"
16'-10"
1'-6"
6'-6"
5'-1"
LANDING
7'-1"
1'-10"
3'-0"
1'-7"
6'-6"
6'-7"
8T
@
11"ea
=
7'-4"
1'-2 1
8 "
3'-3"
2'-2"
2'-2"
4'-7"
6'-3"
5'-11"
3'-9"
1'-1" 8"
6'-11"
4'-3"
5'-10"
4
'
-
0
"
3'-7"
2'-10"
4'-4"
7'-2"
4'-1"
6'-1 1
2 "
6'-2"
5'-0"
2'-10"
4'-8"
5'-2"
11'-6"
2'-8"
4'-0"
10"
10"
10"
3'-4"
6
'
-
8
"
4
'
-
4
"
4
'
-
4
"
6
'
-
8
"
1
2
'
-
8
"
3
'
-
4
"
7
'
-
4
"
1
'
-
0
"
6
'
-
2
"
5
'
-
1
0
"
7
'
-
4
"
2'-10"
5'-0"
3
0
7
0
S.C.
SOLID
CORE
2
0
6
F
.
V
.
0
26
70
30
70 3
4 VIEW
EXT. DR.
30
70 3
4 VIEW
EXT. DR.
3
0
7
C.O.
0
3
0
7
C.O.
0
P
R
2
0
7
0
PR 30
80 3
4 VIEW
ARCH TOP EXT. DR.
PR 26
70
FULL
VIEW EXT. DR. w/
24"h TRANSOM
2
4
7
0
2
8
7
0
2 4
7 0
2
0
7
0
P
R
2
0
7
0
2
0
7
0
2 8
7 0
2 0
7 0
2 0
7 0
2 0
7 0
2
0
7
0
P
R
2
0
7
0
2 0
7 0
2
0
7
0
2
0
7
0
2
8
7
C
.
O
.
0
26
20
PICT
26
56
CSMT
9'-0" HD. HT.
36
20
PICT
36
56
PICT
9'-0" HD. HT.
26
20
PICT
26
56
CSMT
9'-0" HD. HT.
(2)
2
6
5
6
FIXED
7'-0"
HD.
HT.
45'-0"
14'-8"
1'-4"
8'-0"
10'-6"
10'-6"
3'-10"
5'-6"
5'-4"
1'-0"
2'-6"
3'-6"
1'-0"
2'-4"
5'-10"
2'-4"
5'-3"
5'-3"
3'-0" 3'-21
2"
(2)
2
6
5
6
FIXED
7'-0"
HD.
HT.
(2) 26
20
PICT
(2) 26
56
FIXED
9'-0" HD. HT.
(2) 26
20
PICT
(2) 26
56
FIXED
9'-0" HD. HT. (2) 26
20
PICT
7'-0" HD. HT.
2 6
2 0
PICT
8'-0" HD. HT.
2 6
2 0
PICT
8'-0" HD. HT.
(2) 2 6
2 0
PICT
8'-0" HD. HT.
2 6
2 0
PICT
2 6
5 6
CSMT
9'-0" HD. HT.
3 6
2 0
PICT
3 6
5 6
PICT
9'-0" HD. HT.
2 6
2 0
PICT
2 6
5 6
CSMT
9'-0" HD. HT.
(2) 2 6
5 6
CSMT
7'-0" HD. HT.
2
6
2
0
P
I
C
T
7
'
-
0
"
H
D
.
H
T
.
2
6
2
0
P
I
C
T
7
'
-
0
"
H
D
.
H
T
.
2
6
2
0
P
I
C
T
7
'
-
0
"
H
D
.
H
T
.
(3) 2 6
2 0
PICT
9'-0" HD. HT.
2 6
2 0
PICT
2 6
5 6
CSMT
9'-0" HD. HT.
2 6
2 0
PICT
2 6
5 6
FIXED
9'-0" HD. HT.
2 6
2 0
PICT
2 6
5 6
CSMT
9'-0" HD. HT.
2 0
3 6
CSMT
7'-0" HD. HT.
(2) 26
56
FIXED
7'-0" HD. HT.
26
20
PICT
26
56
CSMT
9'-0" HD. HT.
26
20
PICT
26
56
FIXED
9'-0" HD. HT.
26
20
PICT
26
56
CSMT
9'-0" HD. HT.
2
6
5
6
CSMT
7'-0"
HD.
HT.
2
6
5
6
CSMT
7'-0"
HD.
HT.
2
0
3
6
CSMT
7'-0"
HD.
HT.
2
0
3
6
CSMT
7'-0"
HD.
HT.
26
20
PICT
26
56
CSMT
9'-0" HD. HT.
26
20
PICT
26
56
FIXED
9'-0" HD. HT.
26
20
PICT
26
56
CSMT
9'-0" HD. HT.
9
0
8
0
ARCH
TOP
INSULATED
OHD
9
0
8
0
ARCH
TOP
INSULATED
OHD
9
0
8
0
ARCH
TOP
INSULATED
OHD
26
20
PICT
26
56
CSMT
9'-0" HD. HT.
26
20
PICT
26
56
FIXED
9'-0" HD. HT.
26
20
PICT
26
56
CSMT
9'-0" HD. HT.
26
40
PICT
(IN ATTIC, FROST)
15'-10" HD. HT.
26
40
PICT
(IN ATTIC, FROST)
15'-10" HD. HT.
GENERAL PLAN NOTES
1. FIRE RATED SELF CLOSING DOOR TO GARAGE MUDROOM FROM GARAGE
2. 5
8" TYPE-X GWB WALLS AND CEILING IN GARAGE - MUD, TAPE, FINISH IN PREP FOR PAINT
3. 5/8" TYPE-X GWB COLUMNS AND BEAMS
4. PROVIDE EXHAUST FAN IN BATHROOMS
5. PROVIDE SMOKE DETECTORS IN ACCORDANCE WITH IRC REQUIREMENTS
5.1. ONE SMOKE ALARM AT EACH LEVEL OF RESIDENCE
5.2. ONE SMOKE ALARM IN EACH BEDROOM
5.3. ONE SMOKE ALARM OUTSIDE OF EACH SLEEPING AREA
6. PROVIDE CARBON MONOXIDE DETECTORS
7. CONFIRM DOOR HEIGHT w/ BUILDER PRIOR TO ORDER
8. ALL EXTERIOR WALLS ARE 2x6 CONSTRUCTION
9. WINDOWS SHALL HAVE FALL PROTECTION PER IRC SECTION 312.2.4
10. HOUSE WILL BE PROVIDED WITH A 'UFER' GROUND PER IRC SECTION 3608.1.5
11. OVERHEAD GARAGE DOORS MUST MEET DASMA REQUIREMENTS FOR 115mph.
12. ALL HEADERS NOT LABELED SHALL BE MIN (2) #2 2x10 DFL
13. DBL ALL JOISTS UNDER ISLAND
14. ICE AND WATER SHIELD AS REQUIRED PER IRC
15. ALL FUEL BURNING APPLIANCES SHALL BE HIGH EFFICIENCY AND DIRECTLY VENTED TO OUTSIDE
SD
CO
TRASH/ RECYCLE BIN
STORAGE
36x54 TILED
SHOWER w/ 12"h
TILED CURB
18"dp
X
18"h
BENCH
36"
VANITY
MECH.
EQUIP.
UNDER
STAIR
OPEN RAILING
WALL UNDER STAIR
PLANTING
BED
PLANTING
BED
PLANTING
BED
PLANTING
BED
S4S WD
BRACKET,
TYP.
ROOF
OVERHANG
ABOVE
S4S WD
BRACKET,
TYP.
S4S WD
BRACKET,
TYP.
S4S WD
BRACKET,
TYP.
STACKED
LIMESTONE
RETAINING
WALL
S
T
A
C
K
E
D
L
I
M
E
S
T
O
N
E
R
E
T
A
I
N
I
N
G
W
A
L
L
WARP MOTOR COURT
SLAB TO DRAIN
LOW CUBBIES w/
UPR SHLVS/ HKS
STEP TURNS
CORNER
OPEN
SHLVING
LOW
CUBBY
w/
UPR
SHLVS
12"h
LOW
CAB/
BENCH
12"h
LOW
CAB/
BENCH
BKSHLVS
BKS
BKS
PROVIDE FLOOR
OUTLET AT EACH
END OF DECK
AREA
8x8 POST w/ 1x1
TOP TRIM & 1x6
BASE TRIM, TYP.
5" REIN. CONC.
PORCH SLAB,
SLOPED TO DRAIN
11'-6"w X 2'-0"dp STEPS
DOWN TO WALKWAY
DROPPED BEAM
DROPPED
BEAM
COVERED
PORCH
SLOPED T&G CLG
CONC. SLAB
OPEN
RAILING
VAULT
CLG
ABOVE
VAULT
CLG
ABOVE
9'-0" HDR 9'-0" HDR
10"dp FAUX BEAM
6"dp
FAUX
BEAM
6"dp
FAUX
BEAM
6"dp
FAUX
BEAM
6"dp
FAUX
BEAM
11'-0" PLATE LINE
11'-0" PLATE LINE
15"w
PANT.
BUILT-IN
MICRO./
WARM DRWR
30"w
PANTRY
48"w BUILT-IN
REFR.
15"w
PANT.
36"
GAS
RANGE
w/
HOOD
UPR
CABS
LWR
CABS
UPR
CABS
LWR
CABS
36"w REFR.
6"w
COL.
6"w
COL.
LWR CABS
UPR CABS
LWR
CABS
7'-0" HDR
9'-0"
HDR
9'-0"
HDR
36"w
FARM
FRONT
SINK
D/W
TRASH
12"dp
LWR
CABS
120x54 ISLAND
3-1/2" LTWT. CONC. TOPPING
SLAB o/ DRAINAGE MAT o/
WP MEMBRANE o/ 3
4" P.T. WD
DECKING o/ SLOPED
SLEEPERS o/ FLR JSTS
36" RAILING, TYP.
42"h COL.
42"h COL.
36"
RAILING,
TYP.
LWR
CABS
w/
STONE
TOP
w/
UPR
SHLVNG
48"x24"
GAS
FIREPLACE
INSERT
w/
LOG
SET
w/
MANTLE
ABOVE
OPEN RAILING
WASH
DRY
CTOP
o/
LAUND.
SINK
1R/ 1S
4
8
"
V
A
N
I
T
Y
2R/ 1S
SHLVS
DRWRS w/
TOP
1R/ 1S
18" LIN.
24" LIN.
2R/ 1S
CLG
CLIP
CLG
CLIP
C
L
G
C
L
I
P
120" VANITY
70x44 TILED
SHOWER w/ 7'-0"h
GL. ENCL.
MAGAZINE
RACK
O
P
T
.
5
4
"
L
I
N
E
A
R
F
/
P
w
/
T
V
A
B
V
8
"
d
p
F
A
U
X
B
M
4"dp FAUX BM
4"dp FAUX BM
4"dp FAUX BM
4"dp FAUX BM
7'-0" HDR
U
/
C
A
B
R
E
F
R
.
U
P
R
S
H
L
V
S
5 SHLVS
2
R
/
1
S
39" VAN.
CLG CLIP
7
'
-
0
"
h
W
A
L
L
36x60 TUB/
SHWR w/ TILE
SURROUND
39" VAN.
8
"
d
p
F
A
U
X
B
M
4"dp FAUX BM
4"dp FAUX BM
4"dp FAUX BM
4"dp FAUX BM
2R/ 1S
5
S
H
L
V
S
FLOOR
OUTLET
FLOOR
OUTLET
SD
CO
SD
SD
SD
SD
SD
CLG
CLIPS
(TYP.
@
BOTH
SIDES)
7
'
-
6
"
P
L
A
T
E
L
I
N
E
7
'
-
6
"
P
L
A
T
E
L
I
N
E
7
'
-
6
"
P
L
A
T
E
L
I
N
E
7
'
-
6
"
P
L
A
T
E
L
I
N
E
7'-6"
PLATE
LINE
CO
SD
CONSTRUCTION NOTES
STRUCTURAL NOTES
EF
EF
EF
EF
EF
30x36 ATTIC
ACCESS w/
INSUL. HATCH
2'-2"
2
A10
1
A10
1
A11
2
4
7
0
M. CLOSET 2
9'-0" CLG
CARPET
10'-0"
7
'
-
0
"
4"dp FAUX BM
4"dp FAUX BM
2 8
6 8
FULL
LITE EXTR.
7
'
-
4
"
24x12 LIN.
2'-6"
4
8
7
C
.
O
.
0
9
0
8
0
ARCH
TOP
INSULATED
OHD
CONSTRUCTION SET
Adam Anthony
Pfeifer, NCARB
apd_studios+
design | fabrication
12214 w 79th terrace
lenexa, kansas 66215
p. 785.650.3563
e. adam@apdstudios.com
Troy & Eden Kearns
owner
804 W 33rd St
Kansas City, MO 64111
p. 702.556.4081
a. Troy Kearns
e. troyjkearns@gmail.com
Apex Engineering
structural engineer
1625 Locust St
Kansas City, MO 64108
p. 816.421.3222
a. Jason Gibson
e. jason@
apex-engineers.com
Kearns Custom
Residence
6545 Standardbred Drive
Kansas City, MO 64164
drawing title
project no. sheet no.
2020.26
drawn by
aap
date
11.09.2020
project title
release
seal
01.15.2021 _ Permit Set
10.06.2021 _ Fndn. Revs.
11.08.2021 _ Lighting Plan
11.11.2021 _ Lighting Revs.
11.13.2021 _ Const. Revisions
floor plan
A4
1
FRAMING PLAN
GARAGE LOFT FLOOR FRAMING PLAN & MAIN HOUSE FIRST FLOOR CEILING FRAMING PLAN
1/4" = 1'-0"
CONSTRUCTION NOTES
PLAN NOTES SYMBOL LEGEND
REIN. CONC. WALL w/ CONT.
REIN. CONC. FTG.
2x6 WD. FRAMED WALL
2x4 WD. FRAMED WALL
6" WALL
(2) 26
46
CSMT
7'-0" HD. HT. IN
STRG LOFT
(2) 26
46
CSMT
7'-0" HD. HT. IN
STRG LOFT
(3)
2
0
3
6
CSMT/
FIXED/
CSMT
6'-6"
HD.
HT.
IN
STRG
LOFT
(3)
2
0
3
6
CSMT/
FIXED/
CSMT
6'-6"
HD.
HT.
IN
STRG
LOFT
(3)
2
0
3
6
CSMT/
FIXED/
CSMT
6'-6"
HD.
HT.
IN
STRG
LOFT
CONSTRUCTION NOTES
STRUCTURAL NOTES
R
STRUCTURAL NOTES:
- ALL UNMARKED HEADERS MIN (2)#2-2x10
- ALL HEADERS AND BEAMS MIN #2 GRADE DF/L (OR EQ.)
= BEARING WALL
- SHIPLAP SIDING MUST BE FASTENED AT BOTH UNDERLAP AND
OVERLAP
- FASTEN RAFTERS TO CLG JOISTS w/ MINIMUM (4) 16d FACE NAILS
AS PER IRC 802.5.2, TYP.
BRACED WALL METHODOLOGY
XXXX EXTERIOR BRACED WALLS:
WSP METHOD: WOOD STRUCTURAL PANEL SHEATHING WITH A THICKNESS NOT LESS THAN
3
8" WITH MINIMUM SPAN RATING OF 24/0 FOR 16" OC STUD SPACING WITH 6d
COMMON NAILS AT 6" OC EDGES AND 12" OC FIELD OR SHEATHING
THICKNESS NOT LESS THAN 7
16" WITH MINIMUM SPAN RATING OF 24
16 FOR
24" OC SPACING WITH 8d COMMON NAILS AT 6" OC EDGES AND 12" OC IN
FIELD.
(NOTE: FRAMING MEMBERS 16" OC MAX,UNBLOCKED, AND WITH SHEATHING APPLIED DIRECTLY TO FRAMING
MEMBERS)
/ / / / INTERIOR BRACED WALLS (REF 2-S4.0):
GB METHOD: 1
2" MIN. GYPSUM BOARD OVER STUDS SPACED 24" MAX. FASTENED WITH
No 6 - 11
4" TYPE 'W' OR 'S' DRYWALL SCREWS AT 7" OC EDGES AND FIELD
( MIN. 4'-0" SECTION FOR BOTH SIDES.)
OR
LIB METHOD: 1x4 WOOD FASTENED WITH (3) 8d COMMON NAILS OR SIMPSON / USP 16 GA.
TYPE WB (OR EQUAL) STL. X-BRACE(S) AT 45° TO 60° ANGLES, MAXIMUM 16"
OC STUD FASTENED PER MANUFACTURER'S SPECIFICATIONS.
XXXX = EXTERIOR BRACED WALLS
/ / / / = INTERIOR BRACED WALLS (REF 2/S4.0)
EC = END CONDITION (REF 2/S4.1 FOR CONT. SHEATHED BRACED WALL END CONDITIONS
(2)2x6
(2)2x6
(
2
)
#
2
-
2
x
1
0
(2)1-3/4"x9-1/4"LVL(FLUSH)
(2)2x4
/
/
/
/
/
/
/
/
/
/
/
/
/
/
/
/
/
/
/
/
/
/
/
/
/
/
/
/
/
/
/
L
I
B
(
8
'
-
0
"
)
#2-2x6CJs
@16"o.c.
LIB(8'-0")
///////////////////////////////
#
2
-
2
x
6
C
J
s
@
1
6
"
o
.
c
.
#
2
-
2
x
6
R
J
s
@
1
6
"
o
.
c
.
(2)#2-2x10
(2)2x4
(
2
)
#
2
-
2
x
1
0
(
F
L
U
S
H
)
(
2
)
#
2
-
2
x
1
0
(2)2x6
(2)2x6
(3)#2-2x10
VAULT
VAULT
(
2
)
#
2
-
2
x
1
0
(
2
)
#
2
-
2
x
1
0
(
F
L
U
S
H
)
#2-2x6CJs
@16"o.c.
(2)#2-2x10
(2)2x4
(
2
)
#
2
-
2
x
1
0
(
F
L
U
S
H
)
(
2
)
#
2
-
2
x
1
0
#2-2x6CJs
@16"o.c.
VAULT
VAULT
(2)2x6
(2)2x6
(3)#2-2x10
FULLHEIGHTSTUD@TALL
GABLEWALLS,TYP.
FULLHEIGHTSTUD@TALL
GABLEWALLS,TYP.
/
/
/
/
/
/
/
/
/
/
/
/
/
/
/
/
/
/
/
/
/
/
/
/
/
/
L
I
B
(
6
'
-
0
"
)
#
2
-
2
x
6
C
J
s
@
1
6
"
o
.
c
.
#
2
-
2
x
6
C
J
s
@
1
6
"
o
.
c
.
////////////////////////////////////////////////////////////////////////////
LIB
#
2
-
2
x
6
C
J
s
@
1
6
"
o
.
c
.
(2)2x4
(2)#2-2x10(FLUSH)
(3)2x4
LI
B
(8'
-
0")
/
/
/
/
/
/
/
/
/
/
/
/
/
/
/
/
/
/
/
/
/
/
/
/
/
/
/
/
/
/
/
(
2
)
2
x
4
(2)
#2-
2x10
/
/
/
/
/
/
/
/
/
/
/
/
/
/
/
/
/
/
/
/
/
/
/
/
/
/
LI
B
(6'
-
0")
(
2
)
2
x
6
V
A
U
L
T
VAULT
(2)2x6
(
2
)
2
x
6
(
2
)
2
x
6
(
2
)
2
x
6
(3)#2-2x12
#2-
2x6
CJs
@
16"o.
c
.
(3)#2-2x12
(3)#2-2x10
(2)
#2-
2x10
(2)
#2-
2x10
(2)#2-2x10CANTIw/800lbMIN.
CAPACITYCLIP@EA.BRG.POINT
(2)#2-2x10CANTIw/
800lbMIN.CAPACITY
CLIP@EA.BRG.POINT
8x8TRTDPOSTON
SIMPSONABU88ZPOST
w/ 5
8"ØANCHORBOLTw/
6"minEMBED,TYP.
8x8TRTDPOSTON
SIMPSONABU88ZPOST
w/ 5
8"ØANCHORBOLTw/
6"minEMBED,TYP.
#2-
2x6
CJs
@
16"o.
c
.
SEEROOF
PLAN
(2)
#2-
2x10
#2-2x6CJs
@16"o.c.
R R
(3)
#2-
2x10
(
2
)
2
x
6
(
2
)
2
x
6
(
2
)
2
x
4
///////////////////////////////////////////
LIB(10'-0")
(3)
1-3/
4
"x16"
LVL
(SPAN:
19'
-
6"
+/
-
)
#2-
2x8
CJs
@
16"o.
c
.
THI
S
AREA
(
3
)
2
x
6
(2)#2-2x12
#2-2x6CJs
@16"o.c.
R R
(
2
)
2
x
6
(2)
1-3/
4
"x11-1/
4
"
LVL
(FLUSH)
SPAN:
12'
-
6"+/
-
(
3
)
2
x
6
(2)
#2-
2x10
LI
B
(6'
-
0")
/
/
/
/
/
/
/
/
/
/
/
/
/
/
/
/
/
/
/
/
/
/
/
/
/
/
#2-
2x6
CJs
@
16"o.
c
.
#2-
2x6
CJs
@
16"o.
c
.
(
3
)
2
x
4
(2)1-3/4"x11-7/8"LVL
(2)1-3/4"x11-7/8"LVL
#2-
2x6
CJs
@
16"o.
c
.
R
R
(2)#2-2x12(UPSET)
(
3
)
2
x
6
(3)
1-3/
4
"x9-1/
4
"
LVL
(FLUSH)
#2-
2x10
FJs
@
16"o.
c
.
(2)#2-2x12(FLUSH)
(2)2x6
(
2
)
2
x
6
(2)2x6
(
2
)
2
x
6
(
2
)
2
x
6
(2)2x6
(2)
#2-
2x12
CONT.
(SPAN
13'
-
6"+/
-
)
(2)
#2-
2x12
(2)
#2-
2x12
CONT.
(SPAN
15'
-
0"+/
-
)
PFH
1
S4.0
PFH
1
S4.0
PFH
1
S4.0
PFH
1
S4.0
2
FRAMING PLAN
GARAGE LOFT CEILING FRAMING PLAN
1/4" = 1'-0"
V
A
U
L
T
V
A
U
L
T
VAULT VAULT
VAULT
VAULT
(
3
)
2
x
4
(
3
)
2
x
4
(
3
)
2
x
4
(
2
)
2
x
6
GENERAL PLAN NOTES
1. FIRE RATED SELF CLOSING DOOR TO GARAGE MUDROOM FROM GARAGE
2. 5
8" TYPE-X GWB WALLS AND CEILING IN GARAGE - MUD, TAPE, FINISH IN PREP FOR PAINT
3. 5/8" TYPE-X GWB COLUMNS AND BEAMS
4. PROVIDE EXHAUST FAN IN BATHROOMS
5. PROVIDE SMOKE DETECTORS IN ACCORDANCE WITH IRC REQUIREMENTS
5.1. ONE SMOKE ALARM AT EACH LEVEL OF RESIDENCE
5.2. ONE SMOKE ALARM IN EACH BEDROOM
5.3. ONE SMOKE ALARM OUTSIDE OF EACH SLEEPING AREA
6. PROVIDE CARBON MONOXIDE DETECTORS
7. CONFIRM DOOR HEIGHT w/ BUILDER PRIOR TO ORDER
8. ALL EXTERIOR WALLS ARE 2x6 CONSTRUCTION
9. WINDOWS SHALL HAVE FALL PROTECTION PER IRC SECTION 312.2.4
10. HOUSE WILL BE PROVIDED WITH A 'UFER' GROUND PER IRC SECTION 3608.1.5
11. OVERHEAD GARAGE DOORS MUST MEET DASMA REQUIREMENTS FOR 115mph.
12. ALL HEADERS NOT LABELED SHALL BE MIN (2) #2 2x10 DFL
13. DBL ALL JOISTS UNDER ISLAND
14. ICE AND WATER SHIELD AS REQUIRED PER IRC
15. ALL FUEL BURNING APPLIANCES SHALL BE HIGH EFFICIENCY AND DIRECTLY VENTED TO OUTSIDE
SD
CO
(2)#2-2X12
(
2
)
2
x
6
(
2
)
2
x
6
(2)
1-3/
4
"
x
11-7/
8
"
LVL
3
"
S
C
H
.
4
0
S
T
L
.
C
O
L
.
,
T
Y
P
.
3
"
S
C
H
.
4
0
S
T
L
.
C
O
L
.
,
T
Y
P
.
(2)
1-3/
4
"
x
11-7/
8
"
LVL
(2)
1-3/
4
"
x
11-7/
8
"
LVL
(B.
O
.
BEAM
@
10'
-
0"
+/
-
)
(2)
#2-
2x10
(2)
#2-
2x10
(2)
#2-
2x10
7'
-
4"
BRG.
HT.
7'
-
4"
BRG.
HT.
7'
-
4"
BRG.
HT.
7'
-
4"
BRG.
HT.
(2)
1-3/
4
"
x
11-7/
8
"
LVL
(
3
)
2
x
6
(
2
)
2
x
6
(2)2x6
(2)#2-2X12
5'
-
6"
KNEE
WALL
(NO
RAFTER
BEARI
N
G
@
THI
S
WALL)
5'
-
6"
KNEE
WALL
(NO
RAFTER
BEARI
N
G
@
THI
S
WALL)
5'
-
6"
KNEE
WALL
(NO
RAFTER
BEARI
N
G
@
THI
S
WALL)
15'-10"
11'-0"
13'-6"
VAULT
VAULT
VAULT
VAULT
5'
-
6"
KNEE
WALL
(NO
RAFTER
BEARI
N
G
@
THI
S
WALL)
(
2
)
2
x
6
#2-
2x6
CJs
@
16"o.
c
.
(2)#2-2x10
#2-
2x10
FJs
@
16"o.
c
. (2)#2-2x10
(
2
)
2
x
6
(
2
)
2
x
6
(2)
1-3/
4
"x9-1/
4
"
LVL
(FLUSH)
(2)
1-3/
4
"x9-1/
4
"
LVL
(FLUSH)
(
2
)
2
x
6
W12x30 or W14x26
W12x30 or W14x26
(4)2x6
(4)2x6
(
4
)
2
x
6
(
4
)
2
x
6
#2-
2x10
FJs
@
16"o.
c
.
#2-
2x10
FJs
@
16"o.
c
.
(
2
)
2
x
6
(
2
)
2
x
6
DBL
JOI
S
T
DBL
JOI
S
T
DBL
JOI
S
T
DBL
JOI
S
T
DBL
JOI
S
T
DBL
JOI
S
T
(2)#2-2x10
(FLUSH)
(2)#2-2x10
(FLUSH)
(2)#2-2x10
(FLUSH)
(2)#2-2x10
(FLUSH)
(2)#2-2x10
(FLUSH)
(2)#2-2x10
(FLUSH)
#2-
2x10
FJs
@
16"o.
c
.
#2-
2x10
FJs
@
16"o.
c
.
#2-
2x10
FJs
@
16"o.
c
.
#2-
2x10
FJs
@
16"o.
c
.
#2-
2x10
FJs
@
16"o.
c
.
#2-
2x10
FJs
@
16"o.
c
.
DBL
JOI
S
T
DBL
JOI
S
T
(2)#2-2x10
(FLUSH)
2
A10
2
A10
1
A10
1
A11
(
3
)
1
-
3
/
4
x
5
-
1
/
2
"
L
V
L
H
D
R
CONSTRUCTION SET
Adam Anthony
Pfeifer, NCARB
apd_studios+
design | fabrication
12214 w 79th terrace
lenexa, kansas 66215
p. 785.650.3563
e. adam@apdstudios.com
Troy & Eden Kearns
owner
804 W 33rd St
Kansas City, MO 64111
p. 702.556.4081
a. Troy Kearns
e. troyjkearns@gmail.com
Apex Engineering
structural engineer
1625 Locust St
Kansas City, MO 64108
p. 816.421.3222
a. Jason Gibson
e. jason@
apex-engineers.com
Kearns Custom
Residence
6545 Standardbred Drive
Kansas City, MO 64164
drawing title
project no. sheet no.
2020.26
drawn by
aap
date
11.09.2020
project title
release
seal
01.15.2021 _ Permit Set
10.06.2021 _ Fndn. Revs.
11.08.2021 _ Lighting Plan
11.11.2021 _ Lighting Revs.
11.13.2021 _ Const. Revisions
framing plan
A5
1
ROOF PLAN
ROOF FRAMING PLAN
1/4" = 1'-0"
CONSTRUCTION NOTES
PLAN NOTES SYMBOL LEGEND
REIN. CONC. WALL w/ CONT.
REIN. CONC. FTG.
2x6 WD. FRAMED WALL
2x4 WD. FRAMED WALL
6" WALL
16:12 PITCH
-SLASH IS TOP END OF BRACE
-CIRCLE IS BOTTOM END OF BRACE
DENOTES BEARING WALL
DENOTES PURLIN
DENOTES BEARING STRUCTURE
NOTE: CODE MINIMUM ALLOWS FOR A RAFTER DEFLECTION OF L/180
TOTAL LOAD
/
/
= ROOF BRACE/STRUT (PER CHART)
-SLASH IS TOP END OF BRACE
-ARROW IS BEARING LOCATION
= PURLIN STRUTS AT 48" OC (PER CHART) U.N.O.
#2-2x6 AT 24" OC 11'-7"
RAFTERS SPACING MAX HORIZ. CLEARSPAN
#2-2x6 AT 16" OC 14'-2"
#2-2x8 AT 24" OC 14'-8"
#2-2x8 AT 16" OC 17'-11"
#2-2x10 AT 24" OC 17'-10"
#2-2x10 AT 16" OC 21'-11"
CODE MINIMUM
HIGHER PERFORMANCE
#2-2x6 AT 24" OC 8'-6"
RAFTERS SPACING MAX HORIZ. CLEARSPAN
#2-2x6 AT 16" OC 9'-9"
#2-2x8 AT 24" OC 11'-3"
#2-2x8 AT 16" OC 12'-9"
#2-2x10 AT 24" OC 14'-3"
#2-2x10 AT 16" OC 16'-3"
APEX ENGINEERS, INC. RECOMMENDED DEFLECTION = L/360
LIVE LOAD, L/240 TOTAL LOAD
(2)2x4
(1)2x4 AND (1)2x6
(1)2x6 AND (1)2x8
(2)2x6 AND (1)2x8
CONSULT ARCH ENGR
PURLIN STRUT MAX PURLIN STRUT LENGTH
8'-0"
12'-0"
20'-0"
30'-0"
>30'-0"
*EACH END OF STRUT SHALL BE FASTENED WITH MIN (3)8d OR (2)16d
NAILS
*RIDGE BRACERS ARE SAME AS PURLIN BRACES-SPACING, SIZE,
CONFIGURATION, AND INSTALLATION (SEE PURLIN BRACE NOTES
ABOVE)
*HIP AND VALLEY BRACES ARE THE SAME AS PURLINS SIZE,
CONFIGURATION, AND INSTALLATION (SEE PURLIN BRACE NOTES
ABOVE)
*RIDGE BOARDS ARE (UNLESS OTHERWISE NOTED)
#2-2x10 UP TO 9:12 PITCH
#2-2x12 OVER 9:12 PITCH
*ALL HIPS AND VALLEYS ARE (UNLESS OTHERWISE NOTED)
#2-2x10 UP TO 9:12 PITCH
#2-2x12 OVER 9:12 PITCH
*PURLINS ARE 2x6 MIN
- PURLIN STRUTS ARE AT 4'-0" OC
- PURLIN STRUTS SHALL BE INSTALLED AT NOT LESS THAN A 45
DEGREE ANGLE WITH THE HORIZONTAL
- ALL PURLIN STRUTS SHALL HAVE A MAX UNBRACED LENGTH OF 8'-0"
- PURLIN STRUTS SHALL BE CONSTRUCTED IN A "T" CONFIGURATION
AND PER THE FOLLOWING CHART:
1. THIS IS AN ENGINEERED ROOF STRUCTURE
DESIGNED FOR COMPLIANCE WITH IRC 802.3.
BUILD AS SHOWN WITH NO DEVIATIONS.
2. ALL HIPS ARE DESIGNED TO BE CONTROLLED
BY BENDING.
3. SHEAR AT BEARING WITH MIN 5-1/2" DEPTH
DOES NOT CONTROL DESIGN. FOR VALLEYS
REF 4/S3.2.
16:12 PITCH
16:12 PITCH
8:12
PITCH
8:12
PITCH
8:12
PITCH
8:12
PITCH
8:12
PITCH
8:12
PITCH
8:12
PITCH
16:12 PITCH
16:12 PITCH 16:12 PITCH
16:12 PITCH 16:12 PITCH
8:12
PITCH
8:12
PITCH
8:12
PITCH
8:12
PITCH
8:12
PITCH
8:12
PITCH
2.75:12
PITCH
2:12
PITCH
2:12
PITCH
2:12
PITCH
16:12 PITCH 16:12 PITCH
8:12
PITCH
8
:
1
2
P
I
T
C
H
8
:
1
2
P
I
T
C
H
8
:
1
2
P
I
T
C
H
8
:
1
2
P
I
T
C
H
16+/-:12 PITCH
16+/-:12 PITCH
16+/-:12 PITCH
16+/-:12 PITCH
8:12
PITCH
6
:
1
2
P
I
T
C
H
6
:
1
2
P
I
T
C
H
6
:
1
2
P
I
T
C
H
6
:
1
2
P
I
T
C
H
RIDGE
RIDGE
RIDGE
RIDGE
H
I
P
V
A
L
L
E
Y
V
A
L
L
E
Y
V
A
L
L
E
Y
V
A
L
L
E
Y
V
A
L
L
E
Y
V
A
L
L
E
Y
H
I
P
V
A
L
L
E
Y
V
A
L
L
E
Y
V
A
L
L
E
Y
ARCHED EYEBROW
V
A
L
L
E
Y
V
A
L
L
E
Y
V
A
L
L
E
Y
H
I
P
RIDGE
RIDGE
VALLEY
VALLEY
VA
LL
EY
VA
LL
EY
CONSTRUCTION NOTES
STRUCTURAL NOTES
1'-0" TYP.
5"
TYP.
1'-0"
1'-0"
1'-0"
8'-0"
1'-0"
1'-0"
1'-0"
1'-0" 1'-0"
5"
5"
1'-0" TYP.
7"
1
'
-
0
"
1'-0"
1
'
-
0
"
1'-0"
5
"
1'-0"
5
"
1
'
-
0
"
3" TYP.
3" TYP.
9'-0"
1'-0"
1
'
-
0
"
1'-0"
5
"
1'-0"
5
"
1
'
-
0
"
1
'
-
0
"
1'-0"
1
'
-
0
"
1'-0"
2'-0"
2'-8"
5'-1"
3'-6"
4'-13
4" 7'-81
2" 11'-03
4"
ASPHALT COMPOSITION
SHINGLES, TYP.
ASPHALT COMPOSITION
SHINGLES, TYP.
STANDING
SEAM METAL
STANDING
SEAM METAL
STANDING
SEAM METAL
STANDING
SEAM METAL
STANDING
SEAM METAL
STANDING
SEAM METAL
STANDING
SEAM METAL
STANDING
SEAM METAL
STANDING SEAM METAL
STANDING
SEAM METAL
STANDING
SEAM METAL
STANDING
SEAM
METAL
STANDING
SEAM
METAL
STANDING
SEAM
METAL
STANDING
SEAM
METAL
5" HALF ROUND GUTTER & ROUND D.S.
CENTERED ON POST
1. PROVIDE CONTINUOUS INSULATION BAFFLES ABOVE
INSULATION AT VAULTED CEILINGS TO ALLOW 2" OF FREE
AIR FLOW FROM VENTED SOFFIT TO HIGH VENTS
2. APPROX. ROOF AREA = 4728 SQ. FT.
3. GUTTERS TO BE 5" HALF ROUND OR LARGER AS REQ'D BY
RAINFALL AMOUNT w/ 4" ROUND DOWNPOUTS PIPED TO
DRAIN TILE OR DRAINED DIRECTLY TO DAYLIGHT.
ROOF FRAMING NOTES
· ROOF DESIGNED FOR LIGHT ROOF COVERING
·· 30psf TOTAL LOAD [10psf DL, 20psf LL (SL)]
· ROOF SYSTEM IS DESIGNED TO MEET REQUIREMENTS OF
IRC 802
· *RAFTERS (HEM-FIR, DOUG-FIR, OR EQUAL):
·· SEE SPAN CHARTS BELOW
5" HALF ROUND GUTTER & ROUND D.S.
5" HALF ROUND GUTTER & ROUND D.S.
5"
HALF
ROUND
GUTTER
&
ROUND
D.S.
CENTERED
BETWEEN
S4S
WD
BRACKETS
5"
HALF
ROUND
GUTTER
&
ROUND
D.S.
CENTERED
BETWEEN
DORMERS
AND
AT
CORNERS
5"
HALF
ROUND
GUTTER
&
ROUND
D.S.
5"
HALF
ROUND
GUTTER
&
ROUND
D.S.
5"
HALF
ROUND
GUTTER
&
ROUND
D.S.
5" HALF ROUND GUTTER & ROUND D.S.
5" HALF ROUND GUTTER & ROUND D.S.
CENTERED BETWEEN DORMERS AND
AT CORNERS
5
"
H
A
L
F
R
O
U
N
D
G
U
T
T
E
R
&
R
O
U
N
D
D
.
S
.
16:12 PITCH
ALL RIDGES ALIGN
ROOF FRAMING NOTES
· ROOF DESIGNED FOR LIGHT ROOF COVERING
·· 30psf TOTAL LOAD [10psf DL, 20psf LL (SL)]
· ROOF SYSTEM IS DESIGNED TO MEET REQUIREMENTS OF
IRC 802
· *RAFTERS (HEM-FIR, DOUG-FIR, OR EQUAL):
·· SEE SPAN CHARTS BELOW
FASTEN RAFTERS TO CLG JOISTS w/ MINIMUM (4) 16d FACE
NAILS AS PER IRC 802.5.2, TYP.
R
T
R
I
P
L
E
R
A
F
T
E
R
T
R
I
P
L
E
R
A
F
T
E
R
#2- 2x10 @
PITCH BREAK
1
-
3
/
4
"
x
1
4
"
L
V
L
S
T
R
U
C
T
U
R
A
L
R
I
D
G
E
DBL RAFTER
DBL RAFTER
DBL RAFTER
DBL RAFTER
DBL RAFTER
DBL RAFTER
1
-
3
/
4
"
x
1
8
"
L
V
L
S
T
R
U
C
T
U
R
A
L
R
I
D
G
E
DBL RAFTER
OVERLAY
OVERLAY
OVERLAY
OVERLAY
(
2
)
1
-
3
/
4
"
x
9
-
1
/
2
"
L
V
L
(
T
O
P
F
L
U
S
H
)
(
2
)
1
-
3
/
4
"
x
9
-
1
/
2
"
L
V
L
(
T
O
P
F
L
U
S
H
)
#2- 2x10 @
PITCH BREAK
T
R
I
P
L
E
R
A
F
T
E
R
T
R
I
P
L
E
R
A
F
T
E
R
T
R
I
P
L
E
R
A
F
T
E
R
T
R
I
P
L
E
R
A
F
T
E
R
#2- 2x10 @
PITCH BREAK
#2- 2x10 @
PITCH BREAK
/
/
/
PURLIN
DBL RAFTER
OVERLAY
2"x7-1/4" BUILT-UP
CURVED RAFTERS,
GLUE & NAIL @ 4"
VARIANCE
DBL
RAFTER
DBL
RAFTER
DBL
RAFTER
DBL
RAFTER
OVERLAY
DORMER
(2) 1-3/4"x16" LVL STRUCTURAL RIDGE
DBL
RAFTER
OVERLAY
RAFTER
TIED
RIDGE
R R
OVERLAY
/
/
/
/
TRIPLE RAFTER
/
/
/
/
/ OVERLAY
R R
RAFTER
TIED
RIDGE
RAFTER TIED RIDGE
R
R
DBL RAFTER
DBL RAFTER
DBL RAFTER
DBL RAFTER
#2-
2x10
@
PITCH
BREAK
DBL RAFTER
DBL RAFTER
#2-
2x10
@
PITCH
BREAK
DBL RAFTER
DBL RAFTER
#2-
2x10
@
PITCH
BREAK
OVERLAY
EXTEND LOW PITCH TO
BEAM FLUSH IN LOFT
2
A10
1
A10
1
A11
CONSTRUCTION SET
Adam Anthony
Pfeifer, NCARB
apd_studios+
design | fabrication
12214 w 79th terrace
lenexa, kansas 66215
p. 785.650.3563
e. adam@apdstudios.com
Troy & Eden Kearns
owner
804 W 33rd St
Kansas City, MO 64111
p. 702.556.4081
a. Troy Kearns
e. troyjkearns@gmail.com
Apex Engineering
structural engineer
1625 Locust St
Kansas City, MO 64108
p. 816.421.3222
a. Jason Gibson
e. jason@
apex-engineers.com
Kearns Custom
Residence
6545 Standardbred Drive
Kansas City, MO 64164
drawing title
project no. sheet no.
2020.26
drawn by
aap
date
11.09.2020
project title
release
seal
01.15.2021 _ Permit Set
10.06.2021 _ Fndn. Revs.
11.08.2021 _ Lighting Plan
11.11.2021 _ Lighting Revs.
11.13.2021 _ Const. Revisions
roof plan
A6
1
BUILDING ELEVATION
FRONT (NORTH) ELEVATION
1/4" = 1'-0"
2
BUILDING ELEVATION
RIGHT (NORTHWEST) ELEVATION
1/4" = 1'-0"
ELEVATION DIAGRAM KEY
E
L
E
V
A
T
I
O
N
D
I
A
G
R
A
M
K
E
Y
ELEVATION NOTES
8:12 PITCH
t/ FTNG - EL: 924.5'
t/ FNDN
1ST FLR PL. LN.
t/ 2ND SUBFLR
3'-6"
10'-0"
10"
RAFTER BRG. LN.
15'-7
1
8
"
3"
26'-5
1
8
"
t/ FTG - EL: 919.0'
1ST FLR BRG. LN.
t/ 1ST SUBFLR
1ST FLR PL. LN.
t/FNDN
t/ FTG - EL: 915.0'
4'-0"
3'-0"
7'-0"
6'-0"
1'-6
5
8
"
9'-0"
8'-1
3
4
"
24'-8
3
8
"
10'-0"
DORMER
BRG.
LN.
7'-6"
BEDROOM
PL.
LN.
7'-6"
STAIR
PL.
LN.
8'-1
1
2
"
PORCH
BRG.
LN.
13'-6"
ENTRY
DORMER
BRG.
LN.
ASPHALT COMPOSITION
SHINGLE ROOFING
1x3 o/ 1x8 ENGINEERED WOOD
FASCIA
HALF ROUND GUTTER w/ ROUND
D.S.
1x4 o/ 1x10 ENGINEERED WOOD
FRIEZE BOARD o/ BLKNG
STUCCO CORNER BEAD AT
WINDOW, TYP. U.N.O.
SLOPED SILL w/ KERFED DRIP
EDGE
S.M. FLASHING AT WDW HEAD
w/ END DAM
CEMENTITOUS STUCCO FINISH
o/ BORAL 'DRAIN-N-DRY'
SYNTHETIC LATH o/ DRAINABLE
WRB
SHEATHING TO EXTEND OVER
FNDN JOINT 3" TYPICAL; SEAL
SHEATHING TO CONCRETE AND
EDGE OF SHEATHING
ROUND DOWNSPOUT; CONFIRM
MAT'L WITH OWNER
THIN BRICK VENEER o/ BORAL
'DRAIN-N-DRY' SYNTHETIC
LATH o/ DRAINABLE WRB
DASHED LINE DENOTES t/
FNDN. EXTEND THIN BRICK
DOWN TO WITHIN 6" OF FINISH
GRADE
THIN STONE WAINSCOT CAP
4'-0"
WAINSCOT
HEIGHT
RIPPED ENG. WOOD TRIM w/
HARDWOOD SLOPED SILL w/
KERFED DRIP EDGE
STANDING SEAM METAL
ROOF, COLOR TBD
1x2 o/ 1x10 ENGINEERED WD
FASCIA AT STEEP ROOF, TYP.,
STACKED LIMESTONE
RETAINING WALL AT CIRCLE
DRIVE
8" DEEP CORBEL
WRAP IN THIN BRICK
AT THIS LOCATION
STANDING SEAM
METAL ROOF, COLOR
TBD
THIN BRICK VENEER
ENGINEERED BRICK
SOLDIER COURSE,
PROJECT 1
2"
20"h PREFIN. S.M.
CHIMNEY SHROUD
ENG. WD. TRIM w/
SLOPED SILL w/
KERF DRIP EDGE
1x3 o/ 1x6 ENG. WD.
FASCIA
STANDING SEAM
METAL ROOF
STUCCO CORNER BEAD AT WINDOW,
TYP. w/ S.M. HEAD FLASHING w/ END DAM
& SLOPED SILL w/ KERFED DRIP EDGE
ASPHALT COMPOSITION SHINGLE
ROOFING, TYP.
PROJECT CORNER 1
2" w/
SOLDIER COURSE HEADER
SLOPED BRICK VENEER SILL
& SOLDIER COURSE HEAD
6'-9"
8'-0"
CEMENTITOUS STUCCO FINISH
o/ BORAL 'DRAIN-N-DRY'
SYNTHETIC LATH o/ DRAINABLE
WRB
FOOTING STEP, RE: FNDN PLAN
HALF ROUND GUTTER w/
ROUND D.S. o/ STACKED 1x3 &
1x8 ENG. WD. FASCIA
HALF ROUND GUTTER w/ ROUND D.S. o/
STACKED 1x3 & 1x8 ENG. WD FASCIA
8x8 POST w 1x6 BASE &1x1 HEAD
TRIM w/ DROPPED BEAM
CEMENTITOUS STUCCO FINISH
o/ BORAL 'DRAIN-N-DRY'
SYNTHETIC LATH o/ DRAINABLE
WRB
STUCCO CORNER BEAD AT
WINDOW, TYP. w/ S.M. HEAD
FLASHING w/ END DAM & SLOPED
SILL w/ KERFED DRIP EDGE
R1'-1
1
8
"
9'-0"
PLATE
LINE
2'-4"
2'-3"
R3'-2
7
8"
8"dp CORBEL, TYP.
1x2 o/ 1x10 ENGINEERED WD
FASCIA AT STEEP ROOF, TYP.,
2.75:12 PITCH 8:12 PITCH
8:12 PITCH 8:12 PITCH
6:12 PITCH
16:12 PITCH
12
16+/-
12
16
12
16
12
16
12
8
8:12 PITCH
2:12 PITCH
8:12 PITCH
1. ASPHALT COMPOSITION SHINGLES, TYP. UNLESS NOTED
OTHERWISE.
2. CEMENTITIOUS STUCCO CLADDING TO BE INSTALLED OVER
BORAL 'DRAIN-N-DRY' SYNTHETIC LATH w/ INTEGRAL DRAINAGE
MAT o/ DRAINABLE WRB, OR APPROVED EQUAL.
3. ALL WOOD TRIM TO BE EITHER ENGINEERED WOOD AS
MANUFACTURED BY LP PRODUCTS OR PVC MATERIAL BY
VERSATEX OR EQUAL.
4. MANUFACTURED THIN BRICK/ STONE VENEER TO BE INSTALLED
PER MANUFACTURER RECOMMENDED INSTALLATION PRACTICES
TO INCLUDE VENTILATED DRAINABLE SYNTHETIC LATH WITH
INTEGRAL DRAINAGE PLANE OVER A DRAINABLE WEATHER
RESISTIVE BARRIER ATTACHED DIRECTLY TO SHEATHING.
5. PROVIDE S.M. FLASHING AT HEAD OF ALL WINDOWS AND
HORIZONTALLY PROJECTING TRIM. WINDOW HEAD FLASHING TO
INCLUDE BENT END DAM - NO OPEN SEAMS.
6. COUNTER FLASH BEHIND THIN BRICK/ STONE VENEER ONTO
ROOF AND HOLD THIN STONE VENEER 2" ABOVE ROOFING PER
MANUF. RECOMMENDATIONS.
t/ FTNG - EL: 915.0'
t/ FTNG - EL: 919.0'
t/ FNDN
t/ 1ST SUBFLR
1ST FLR PL. LN.
t/ FTG - EL: 915.0'
t/ BURIED FNDN
t/ FNDN
1ST FLR BRG. LN.
t/ 1ST SUBFLR
M. BEDROOM PL. LN.
1ST FLR PL. LN.
4'-0"
9'-0"
1'-6
5
8
"
9'-0"
21'-10
3
4
"
11'-4
1
8
"
3'-0"
4'-0"
28'-8
3
8
"
1'-6
5
8
"
8'-0"
1'-0"
6'-0"
DASHED LINE DENOTES
FNDN WALL
ELEVATED DECK, BEYOND
CEMENTITOUS STUCCO
FINISH o/ BORAL
'DRAIN-N-DRY' SYNTHETIC
LATH o/ DRAINABLE WRB
8"dp FRAMED CORBEL; RE:
1/A7 FOR SIM. CONDITION
& DIMS
STUCCO CORNER BEAD
AT WINDOW, TYP. w/ S.M.
HEAD FLASHING w/ END
DAM & SLOPED SILL w/
KERFED DRIP EDGE
HALF ROUND GUTTER w/
ROUND D.S. o/ STACKED
1x2 & 1x10 ENG. WD.
FASCIA
ASPHALT COMPOSITION
SHINGLE ROOFING
STACKED LIMESTONE
RETAINING WALL AT CIRCLE
DRIVE, RE: SITE PLAN SHEET A0
HALF GUTTER w/ ROUND
D.S. o/ STACKED 1x3 & 1x8
ENG. WD. FASCIA
1x4 o/ 1x10 ENG. WD. FRIEZE
BOARD o/ BLKG
THIN BRICK VENEER w/
WAINSCOT THIN STONE
CAP, RE: 1/A7 FOR MORE
INFO
8'-1
3
4
"
12
8
16+/-:12 PITCH 16+/-:12 PITCH
16:12 PITCH
ALIGN ROOF RIDGES
4'-0"
WAINSCOT
HEIGHT
1
A10
A
A11
CONSTRUCTION SET
Adam Anthony
Pfeifer, NCARB
apd_studios+
design | fabrication
12214 w 79th terrace
lenexa, kansas 66215
p. 785.650.3563
e. adam@apdstudios.com
Troy & Eden Kearns
owner
804 W 33rd St
Kansas City, MO 64111
p. 702.556.4081
a. Troy Kearns
e. troyjkearns@gmail.com
Apex Engineering
structural engineer
1625 Locust St
Kansas City, MO 64108
p. 816.421.3222
a. Jason Gibson
e. jason@
apex-engineers.com
Kearns Custom
Residence
6545 Standardbred Drive
Kansas City, MO 64164
drawing title
project no. sheet no.
2020.26
drawn by
aap
date
11.09.2020
project title
release
seal
01.15.2021 _ Permit Set
10.06.2021 _ Fndn. Revs.
11.08.2021 _ Lighting Plan
11.11.2021 _ Lighting Revs.
11.13.2021 _ Const. Revisions
elevations
A7
1
BUILDING ELEVATION
REAR (SOUTHWEST) ELEVATION
1/4" = 1'-0"
2
BUILDING ELEVATION
REAR (SOUTH) ELEVATION
1/4" = 1'-0"
ELEVATION DIAGRAM KEY
ELEVATION DIAGRAM KEY
ELEVATION NOTES
1. ASPHALT COMPOSITION SHINGLES, TYP. UNLESS NOTED
OTHERWISE.
2. CEMENTITIOUS STUCCO CLADDING TO BE INSTALLED OVER
BORAL 'DRAIN-N-DRY' SYNTHETIC LATH w/ INTEGRAL DRAINAGE
MAT o/ DRAINABLE WRB, OR APPROVED EQUAL.
3. ALL WOOD TRIM TO BE EITHER ENGINEERED WOOD AS
MANUFACTURED BY LP PRODUCTS OR PVC MATERIAL BY
VERSATEX OR EQUAL.
4. MANUFACTURED THIN BRICK/ STONE VENEER TO BE INSTALLED
PER MANUFACTURER RECOMMENDED INSTALLATION PRACTICES
TO INCLUDE VENTILATED DRAINABLE SYNTHETIC LATH WITH
INTEGRAL DRAINAGE PLANE OVER A DRAINABLE WEATHER
RESISTIVE BARRIER ATTACHED DIRECTLY TO SHEATHING.
5. PROVIDE S.M. FLASHING AT HEAD OF ALL WINDOWS AND
HORIZONTALLY PROJECTING TRIM. WINDOW HEAD FLASHING TO
INCLUDE BENT END DAM - NO OPEN SEAMS.
6. COUNTER FLASH BEHIND THIN BRICK/ STONE VENEER ONTO
ROOF AND HOLD THIN STONE VENEER 2" ABOVE ROOFING PER
MANUF. RECOMMENDATIONS.
t/ FTG - EL: 915.0'
t/ BURIED FNDN
1ST FLR BRG. LN.
t/ 1ST SUBLFLR
1ST FLR PL. LN.
GREAT RM BRG. LN.
t/ FTNG - EL: 915.0'
t/ BURIED FNDN
t/ FNDN
1ST FLR BRG. LN.
t/ 1ST SUBFLR
M. BEDROOM PL. LN.
1ST FLR PL. LN.
3'-0"
4'-0"
28'-8
3
8
"
1'-6
5
8
"
8'-0"
1'-0"
6'-0"
8'-1
3
4
"
3'-0"
10'-0"
1'-6
5
8
"
9'-0"
2'-0"
31'-10
3
4
"
9'-4
1
8
"
8'-0"
M.
BED.
PL.
LN.
7'-0"
PL.
LN.
2'-0"
DRMR.
PL.
LN.
9'-0"
ASPHALT COMPOSITION
SHINGLE ROOFING
1x2 o/ 1x10 ENGINEERED WD
FASCIA AT STEEP ROOF, TYP.,
HALF ROUND GUTTER w/
ROUND D.S. o/ STACKED 1x3 &
1x8 ENG. WD FASCIA
1x4 o/ 1x10 ENG. WOOD
FRIEZE BOARD o/ BLOCKING
STUCCO CORNER BEAD AT
WINDOW, TYP. w/ S.M. HEAD
FLASHING w/ END DAM &
SLOPED SILL w/ KERFED DRIP
EDGE
CEMENTITOUS STUCCO FINISH o/
BORAL 'DRAIN-N-DRY' SYNTHETIC
LATH o/ DRAINABLE WRB
SHEATHING TO EXTEND OVER FNDN
JOINT 3" TYPICAL; SEAL SHEATHING
TO CONCRETE AND EDGE OF
SHEATHING
STANDING SEAM
METAL ROOFING
RIPPED ENG. WD. TRIM
w/ SLOPED SILL w/
KERFED DRIP EDGE
HALF ROUND GUTTER w/
ROUND D.S. PER OWNER
WOOD STAIRS TO
RAISED DECK ABOVE
FLASH UNDER
SHINGLES OVER METAL
AT PITCH BREAK
R1'-1
1
8
"
t/ FTG - EL: 924.5'
t/ FNDN
1ST FLR PL. LN.
t/ 2ND SUBFLR
t/ FTG - EL: 915.0'
t/ BURIED FNDN
1ST FLR BRG. LN.
t/ 1ST SUBFLR
1ST FLR PL. LN.
t/ FTG - EL: 915.0'
t/ BURIED FNDN
1ST FLR BRG. LN.
t/ 1ST SUBFLR
1ST FLR PL. LN.
GREAT RM. PL. LN. DRMR BRG.
RAFTER BRG. LN.
DRMR BRG. LN.
T/ 1ST SUBFLR
3'-0"
10'-0"
1'-6
5
8
"
9'-0"
8'-1
3
4
"
28'-8
3
8
"
4'-0"
9'-6"
10"
3"
1'-3"
7'-4"
3'-0"
10'-0"
1'-6
5
8
"
9'-0"
2'-0"
9'-4
1
8
"
31'-10
3
4
"
R3'-27
8"
12
16+/-
ALIGN ROOF RIDGES
1x2 o/ 1x10 ENGINEERED WD FASCIA AT
STEEP ROOF, TYP.,
STUCCO CORNER BEAD AT WINDOW,
TYP. w/ S.M. HEAD FLASHING w/ END DAM
& SLOPED SILL w/ KERFED DRIP EDGE
DASHED LINE DENOTES ROOM PROFILE
BEYOND
8"dp FRAMED CORBEL
2'-3"
CEMENTITOUS STUCCO FINISH o/ BORAL
'DRAIN-N-DRY' SYNTHETIC LATH o/
DRAINABLE WRB
DASHED LINE DENOTES t/ FNDN
SHEATHING TO EXTEND OVER FNDN
JOINT 3" TYPICAL; SEAL SHEATHING
TO CONCRETE AND EDGE OF
SHEATHING
PROJECT CORNER 1
2" w/
SOLDIER COURSE HEADER
HALF ROUND GUTTER w/
ROUND D.S. o/ STACKED 1x3 &
1x8 ENG. WD. FASCIA
STACKED LIMESTONE
RETAINING WALL, RE: SITE
PLAN ON SHEET A0
STUCCO CORNER BEAD AT
WINDOW, TYP. w/ S.M. HEAD
FLASHING w/ END DAM & SLOPED
SILL w/ KERFED DRIP EDGE
HALF ROUND GUTTER w/
ROUND D.S. o/ STACKED 1x3 &
1x8 ENG. WD FASCIA
ASPHALT COMPOSITION
SHINGLE ROOFING
1x2 o/ 1x10 ENGINEERED WD
FASCIA AT STEEP ROOF, TYP.,
THIN BRICK VENEER w/ STONE
CAP SLOPED TO DRAIN
ARCHED THIN BRICK SOLDIER
COURSE
8'-10"
9'-4"
36"h ALUMINUM RAILING
MOUNTED TO POSTS; DO NOT
FLOOR MOUNT
10"sq X 42"h POST (STUCCO) w/
STONE CAP SLOPED TO DRAIN
20"h PREFIN. S.M. CHIMNEY
SHROUD
SLOPED SILL w/ KERFED
DRIP EDGE
ENGINEERED BRICK SOLDIER
COURSE, PROJECT 1
2"
THIN BRICK VENEER
ASPHALT COMPOSITION
SHINGLE ROOFING
HALF ROUND GUTTER w/
ROUND D.S. o/ STACKED 1x3 &
1x8 ENG. WD FASCIA
ALIGN ALL WINDOW HEADS
S4S WOOD BRACKET,
TYP. PER PLAN
PROWOODMARKET.COM
MODEL 62T8
STUCCO AT SIDE OF
ROOF EXTENSION
16:12 PITCH
8:12 PITCH 8:12 PITCH
8:12 PITCH
12
16
6:12 PITCH 6:12 PITCH 6:12 PITCH
6:12 PITCH 6:12 PITCH 6:12 PITCH
16+/-:12 PITCH 8:12 PITCH
8:12 PITCH
8:12 PITCH
12
16
8:12 PITCH
12
16
12
8
8:12 PITCH
9'-0"
PLATE
LINE
15'-7
1
8
"
25'-11
1
8
"
A
A11
1
A10
CONSTRUCTION SET
Adam Anthony
Pfeifer, NCARB
apd_studios+
design | fabrication
12214 w 79th terrace
lenexa, kansas 66215
p. 785.650.3563
e. adam@apdstudios.com
Troy & Eden Kearns
owner
804 W 33rd St
Kansas City, MO 64111
p. 702.556.4081
a. Troy Kearns
e. troyjkearns@gmail.com
Apex Engineering
structural engineer
1625 Locust St
Kansas City, MO 64108
p. 816.421.3222
a. Jason Gibson
e. jason@
apex-engineers.com
Kearns Custom
Residence
6545 Standardbred Drive
Kansas City, MO 64164
drawing title
project no. sheet no.
2020.26
drawn by
aap
date
11.09.2020
project title
release
seal
01.15.2021 _ Permit Set
10.06.2021 _ Fndn. Revs.
11.08.2021 _ Lighting Plan
11.11.2021 _ Lighting Revs.
11.13.2021 _ Const. Revisions
elevations
A8
1
BUILDING ELEVATION
LEFT (EAST) ELEVATION
1/4" = 1'-0"
3
BUILDING ELEVATION
GARAGE WEST ELEVATION
1/4" = 1'-0"
ELEVATION
DIAGRAM
KEY
ELEVATION
DIAGRAM
KEY
ELEVATION
DIAGRAM
KEY
ELEVATION NOTES
2
BUILDING ELEVATION
GARAGE EAST ELEVATION
1/4" = 1'-0"
1. ASPHALT COMPOSITION SHINGLES, TYP. UNLESS NOTED
OTHERWISE.
2. CEMENTITIOUS STUCCO CLADDING TO BE INSTALLED OVER
BORAL 'DRAIN-N-DRY' SYNTHETIC LATH w/ INTEGRAL DRAINAGE
MAT o/ DRAINABLE WRB, OR APPROVED EQUAL.
3. ALL WOOD TRIM TO BE EITHER ENGINEERED WOOD AS
MANUFACTURED BY LP PRODUCTS OR PVC MATERIAL BY
VERSATEX OR EQUAL.
4. MANUFACTURED THIN BRICK/ STONE VENEER TO BE INSTALLED
PER MANUFACTURER RECOMMENDED INSTALLATION PRACTICES
TO INCLUDE VENTILATED DRAINABLE SYNTHETIC LATH WITH
INTEGRAL DRAINAGE PLANE OVER A DRAINABLE WEATHER
RESISTIVE BARRIER ATTACHED DIRECTLY TO SHEATHING.
5. PROVIDE S.M. FLASHING AT HEAD OF ALL WINDOWS AND
HORIZONTALLY PROJECTING TRIM. WINDOW HEAD FLASHING TO
INCLUDE BENT END DAM - NO OPEN SEAMS.
6. COUNTER FLASH BEHIND THIN BRICK/ STONE VENEER ONTO
ROOF AND HOLD THIN STONE VENEER 2" ABOVE ROOFING PER
MANUF. RECOMMENDATIONS.
t/ FTNG - EL: 915.0'
t/ FTNG - EL: 918.0'
t/ FNDN
t/ 1ST SUB FLR
1ST FLR PL. LN.
3'-0"
10'-0"
1'-6
5
8
"
9'-0"
11'-4
1
8
"
21'-10
3
4
"
13'-0"
THIN BRICK VENEER o/
BORAL 'DRAIN-N-DRY'
SYNTHETIC LATH o/
DRAINABLE WRB
SLOPED BRICK VENEER SILL
FOUNDATION WALL, RE:
FOUNDATION PLAN
THIN STONE WAINSCOT CAP
CEMENTITOUS STUCCO
FINISH o/ BORAL
'DRAIN-N-DRY' SYNTHETIC
LATH o/ DRAINABLE WRB
8"dp FRAMED CORBEL, RE:
1/A7 FOR DIMS
HALF ROUND GUTTER w/
ROUND D.S. o/ STACKED 1x2
& 1x10 ENG. WD FASCIA AT
STEEP ROOF
ASPHALT COMPOSITION
SHINGLE ROOFING
1x4 o/ 1x10 ENG. WOOD FRIEZE
BOARD o/ BLOCKING
HALF ROUND GUTTER w/ ROUND
D.S. o/ STACKED 1x3 & 1x8 ENG. WD
FASCIA
ASPHALT COMPOSITION SHINGLE
ROOFING
THIN BRICK VENEER o/ BORAL
'DRAIN-N-DRY' SYNTHETIC LATH o/
DRAINABLE WRB
4'-0"
9'-6"
10"
3"
1'-3"
15'-7
1
8
"
25'-11
1
8
"
4'-0"
9'-6"
10"
7'-4"
8'-3
1
8
"
25'-11
1
8
"
3"
DASHED LINE DENOTES t/ FNDN
SHEATHING TO EXTEND OVER FNDN
JOINT 3" TYPICAL; SEAL SHEATHING TO
CONCRETE AND EDGE OF SHEATHING
HALF ROUND GUTTER w/ ROUND D.S.
o/ STACKED 1x2 & 1x10 ENG. WD
FASCIA AT STEEP ROOF
RIPPED ENG. WD. TRIM w/ SLOPED SILL
w/ KERFED DRIP EDGE
STANDING SEAM METAL ROOFING,
COLOR TBD
ASPHALT COMPOSITION SHINGLE
ROOFING
CEMENTITOUS STUCCO FINISH o/
BORAL 'DRAIN-N-DRY' SYNTHETIC
LATH o/ DRAINABLE WRB
t/ FTNG - EL: 924.5'
t/ FNDN
1ST FLR PL. LN.
t/ 2ND SUBFLR RAFTER BRG. LN.
DRMR BRG. LN.
t/ FTG - EL: 924.5'
t/ FNDN
3'-6"
10'-0"
10"
3"
t/ FTNG - EL: 924.5'
t/ FNDN
1ST FLR PL. LN.
t/ 2ND SUBFLR
RAFTER BRG. LN.
1ST FLR PL. LN.
t/ 2ND SUBFLR
RAFTER BRG. LN.
DORMER BRG. LN.
6'-10"
7'-4"
ASPHALT COMPOSITION
SHINGLE ROOFING
STANDING SEAM METAL ROOF,
COLOR TBD
1x3 o/ 1x6 ENG. WD. STACKED FASCIA
CEMENTITOUS STUCCO FINISH o/
BORAL 'DRAIN-N-DRY' SYNTHETIC
LATH o/ DRAINABLE WRB
MEMBRANE ROOF TURNED UP WALL
8"min, SLOPE 1:12
1x2 o/ 1x10 ENG. WD. STACKED FASCIA
HALF ROUND GUTTER w/ ROUND D.S.
o/ STACKED 1x2 & 1x10 ENG. WD
FASCIA AT STEEP ROOF
S4S WOOD BRACKET, TYP. PER PLAN
PROWOODMARKET.COM MODEL 62T8
STUCCO CORNER BEAD AT WINDOW, TYP.
w/ S.M. HEAD FLASHING w/ END DAM &
SLOPED SILL w/ KERFED DRIP EDGE
INSULATED OVERHEAD DOOR w/
APPLIED WOOD TRIM
5/4x4 ENG. WD. TRIM
SHEATHING TO EXTEND OVER FNDN
JOINT 3" TYPICAL; SEAL SHEATHING
TO CONCRETE AND EDGE OF
SHEATHING
THIN BRICK VENEER o/ BORAL
'DRAIN-N-DRY' SYNTHETIC
LATH o/ DRAINABLE WRB
CEMENTITIOUS STUCCO FINISH o/
BORAL 'DRAIN-N-DRY' SYNTHETIC
LATH o/ DRAINABLE WRB
16:12 PITCH
16:12 PITCH
12
8
12
8
16:12 PITCH
8:12 PITCH
8:12 PITCH
8:12 PITCH
16:12 PITCH
8:12 PITCH
12
8
2
A10
2
A10
CONSTRUCTION SET
Adam Anthony
Pfeifer, NCARB
apd_studios+
design | fabrication
12214 w 79th terrace
lenexa, kansas 66215
p. 785.650.3563
e. adam@apdstudios.com
Troy & Eden Kearns
owner
804 W 33rd St
Kansas City, MO 64111
p. 702.556.4081
a. Troy Kearns
e. troyjkearns@gmail.com
Apex Engineering
structural engineer
1625 Locust St
Kansas City, MO 64108
p. 816.421.3222
a. Jason Gibson
e. jason@
apex-engineers.com
Kearns Custom
Residence
6545 Standardbred Drive
Kansas City, MO 64164
drawing title
project no. sheet no.
2020.26
drawn by
aap
date
11.09.2020
project title
release
seal
01.15.2021 _ Permit Set
10.06.2021 _ Fndn. Revs.
11.08.2021 _ Lighting Plan
11.11.2021 _ Lighting Revs.
11.13.2021 _ Const. Revisions
elevations
A9
2
BUILDING SECTION
GARAGE SECTION
1/2" = 1'-0"
SECTION NOTES
J-1
J-4
J-3
J-5
1
BUILDING SECTION
BREEZEWAY SECTION
1/2" = 1'-0"
REIN. CONC. DRIVEWAY SLAB
PER STRUCT. o/ 4" CRUSHED
ROCK o/ UNDISTURBED SOIL
REIN. CONC. FNDN. WALL PER
STRUCT.
S4S WOOD BRACKET,
PROWOODMARKET.COM
MODEL 62T8
VENTED SOFFIT BOARD o/ 2x
FRAMING
1x3 o/ 1x8 ENG. WD. FASCIA
TRIM o/ 2x SUB-FASCIA &
FRAMING
ASPHALT COMP. SHINGLE
ROOFING o/ UNDERLAYMENT o/
3
4" ROOF SHEATHING o/ 2x
FRAMING
DRAINABLE WRB o/ 7
16" OSB
SHEATHING o/ INSULATED 2x
FRAMING o/ 1
2" GWB w/ PAINT
MEMBRANE ROOFING o/
ADHESION PRIMER o/ 3
4" ROOF
SHEATHING o/ 2x FRAMING
SLOPED WOOD SILL w/ KERFED
DRIP EDGE
PREFINISHED S.M. DRIP EDGE
WINDOW UNIT PER PLAN,
INSTALLED & FLASHED PER
MANUF. RECOMMENDATIONS
1x3 o/ 1x6 ENG. WD. FASCIA
TRIM o/ 2x SUB-FASCIA o/ 2x
FRAMING
STANDING SEAM METAL
ROOFING o/ ICE AND WATER
SHIELD o/ ADHESION PRIMER o/
3
4" ROOF SHEATHING o/
INSULATED 2x FRAMING
2" CLEAR AIR SPACE ROOF
VENTILATION BAFFLE
ASPHALT COMP. SHINGLE
ROOFING o/ UNDERLAYMENT o/
3
4" ROOF SHEATHING o/ 2x
FRAMING
CEMENTITIOUS STUCCO FINISH o/ BORAL
'DRAIN-N-DRY' SYNTHETIC LATH o/ DRAINABLE WRB
o/ 7
16" OSB SHEATHING o/ INSULATED 2x FRAMING o/
1
2" PAINTED GWB
1
2" PAINTED GWB o/ 2x KNEE WALL FRAMING
4'-7" 3'-51
2"
13'-111
2"
2" CLEAR AIR SPACE ROOF VENTILATION BAFFLE
2x SLIDERS ATTACHED TO RAFTERS PER STRUCT
TO ACHIEVE INSULATION REQUIREMENTS
ASPHALT COMP. SHINGLE ROOFING o/
UNDERLAYMENT o/ 3
4" ROOF SHEATHING o/ 2x
FRAMING
5
8" TYPE-X GWB CEILING
VENTED RIDGE
6" REIN. CONC. SLAB PER STRUCT (SLOPED TO
DRAIN) o/ 10mil VAPOR BARRIER o/ 4" CRUSHED
GRAVEL o/ UNDISTURBED SOIL
REIN. CONC. FTG. PER STRUCT.
REIN. CONC. DRIVEWAY SLAB
PER STRUCT. o/ 4" CRUSHED
ROCK o/ UNDISTURBED SOIL
THIN BRICK VENEER o/ BORAL
'DRAIN-N-DRY' SYNTHETIC LATH
o/ DRAINABLE WRB o/ 7
16" OSB
SHEATHING o/ INSULATED 2x
FRAMING o/ 1
2" PAINTED GWB
THIN BRICK VENEER o/ PAPER BACKED
LATH o/ DRAINABLE WRB o/ 7
16" OSB
SHEATHING o/ 2x FRAMING
BEAM PER STRUCT.
VENTED SOFFIT PANEL
1x3 o/ 1x8 ENG. WD. FASCIA TRIM o/ 2x
SUBFASCIA o/ 2x FRAMING; ALIGN
FASCIA TRIM w/ ADJ. FRIEZE BOARD
AS SHOWN
ASPHALT COMP. SHINGLE ROOFING o/
UNDERAYMENT o/ 3
4" ROOF SHEATHING
o/ 2x FRAMING
THIN BRICK VENEER o/ PAPER BACKED
LATH o/ DRAINABLE WRB o/ 7
16" OSB
SHEATHING o/ 2x FRAMING
EXTERIOR DOOR PER PLAN w/ 5/4x4
ENG. WD. CASING
9'-10"
BRG.
LN.
VENTED RIDGE
THIN STONE WAINSCOT CAP
CEMENTITIOUS STUCCO FINISH o/
BORAL 'DRAIN-N-DRY' SYNTHETIC
LATH o/ DRAINABLE WRB o/ 7
16" OSB
SHEATHING o/ INSULATED 2x
FRAMING o/ 1
2" PAINTED GWB
STUCCO CORNER BEAD AT
WINDOW, TYP. w/ S.M. HEAD
FLASHING w/ END DAM &
SLOPED SILL w/ KERFED DRIP
EDGE
SLOPED THIN BRICK WINDOW
SILL
ASPHALT COMPOSITION SHINGLE
ROOFING, TYP.
OVERLAY UPPER RAFTERS
FLUSH BEAM
PER PLAN, 2/A5
FASTEN RAFTER TO EACH
STUD w/ (4) 10d FACE NAILS #2- 2x10 RAFTER @ 16"o.c.;
FASTEN UPPER/ LOWER
RAFTERS w/ (4) 10d FACE NAILS
TOE NAIL EVERY LWR RAFTER
INTO TOP PLATE w/ (2) 8d TOE
NAILS [(1) AT EACH SIDE]
INSULATED OVERHEAD DOOR
w/ APPLIED TRIM PER
ELEVATION; RE: 3/A9
CONSTRUCTION SET
Adam Anthony
Pfeifer, NCARB
apd_studios+
design | fabrication
12214 w 79th terrace
lenexa, kansas 66215
p. 785.650.3563
e. adam@apdstudios.com
Troy & Eden Kearns
owner
804 W 33rd St
Kansas City, MO 64111
p. 702.556.4081
a. Troy Kearns
e. troyjkearns@gmail.com
Apex Engineering
structural engineer
1625 Locust St
Kansas City, MO 64108
p. 816.421.3222
a. Jason Gibson
e. jason@
apex-engineers.com
Kearns Custom
Residence
6545 Standardbred Drive
Kansas City, MO 64164
drawing title
project no. sheet no.
2020.26
drawn by
aap
date
11.09.2020
project title
release
seal
01.15.2021 _ Permit Set
10.06.2021 _ Fndn. Revs.
11.08.2021 _ Lighting Plan
11.11.2021 _ Lighting Revs.
11.13.2021 _ Const. Revisions
sections
A10
1
BUILDING SECTION
MAIN HOUSE - GREAT ROOM/ ENTRY SECTION
1/2" = 1'-0"
SECTION NOTES
CONC. WALK PER STRUCT o/
4" CRUSHED GRAVEL o/
UNDISTURBED SOIL
REIN. CONC. PORCH STEM
WALL PER STRUCT.
REIN. CONC. FTG PER
STRUCT.
REIN. CONC. PORCH SLAB
PER STRUCT SUPPORTED
BY BLOCKING o/ FILL
REIN. CONC. FTG. PER STRUCT.
PERIM DRAIN TILE IN FABRIC FILTER,
DRAIN TO DAYLIGHT AT REAR OF LOT
EARTHEN BACKFILL
GRAVEL BACKFILL
REIN. CONC. FNDN. WALL PER PLAN
1
2" PAINTED GWB o/ 2x INSULATED
FRAMING SET 1" FROM CONC. FNDN.
WALL w/ FOAM SILL SEALER BELOW
P.T. SOLE PLATE
PVC MEMBRANE o/ 7
16" OSB SHEATHING
o/ 2x FLOOR FRAMING w/ 2x6 P.T.
MUDSILL & FOAM SILL GASKET; APPLY
SEALANT BETWEEN MUDSILL/ GASKET
AND GASKET/ CONCRETE FOR AIR
INFILTRATION
8x8 POST w/ 1x6 BASE TRIM
& 1x1 HEAD TRIM
FINISH FLOORING PER OWNER o/ 1-1/8"
HUBER WOOD PRODUCTS
'ADVANTECH' SUBFLOOR (GLUED AND
SCREWED) o/ 16" ENG. WD. TRUSSES
o/ 1
2" PAINTED GWB
ENTRY DOOR UNIT PER PLAN
WOOD TRIM WRAPPED
DROPPED BEAM; REFER TO
SHEET A5 FOR BEAM
DETAILS
T&G WOOD CEILING
1x3 o/ 1x8 FASCIA TRIM o/ 2x
SUB-FASCIA o/ 2x FRAMING
STANDING SEAM METAL
ROOF o/ ICE AND WATER
SHIELD o/ 3
4" ROOF
SHEATHING o/ 2x FRAMING
WINDOW UNIT PER PLAN
THIN BRICK VENEER o/ BORAL
'DRAIN-N-DRY' SYNTHETIC LATH o/
DRAINABLE WRB o/ 7
16" OSB SHEATHING
o/ INSULATED 2x FRAMING o/ 1
2"
PAINTED GWB
CEMENTITIOUS STUCCO FINISH o/
BORAL 'DRAIN-N-DRY' SYNTHETIC
LATH o/ DRAINABLE WRB o/ 7
16" OSB
SHEATHING o/ INSULATED 2x FRAMING
o/ 1
2" PAINTED GWB
SLOPED WOOD SILL w/
KERFED DRIP EDGE
RIPPED 5
4 ENG. WD. TRIM
1x3 o/ 1x6 ENG. WD. FASCIA
o/ RIPPED 5
4 ENG. WD. TRIM
o/ 7
16" OSB SHEATHING o/
INSULATED FRAMING o/ 1
2"
PAINTED GWB
STANDING SEAM METAL
ROOF o/ ICE AND WATER
SHIELD o/ 3
4" ROOF
SHEATHING o/ 2x FRAMING
REIN. CONC. BURIED FNDN. WALL PER
STRUCT
REIN. CONC. FTG. PER STRUCT
REIN. CONC. PATIO SLAB PER
STRUCT. o/ 4" CRUSHED ROCK o/
UNDISTURBED SOIL
REIN. CONC. BASEMENT SLAB PER
STRUCT. o/ 2" RIGID FOAM
INSULATION o/ 4" CRUSHED ROCK o/
UNDISTURBED SOIL
SLIDING PATIO DOOR UNIT PER PLAN
CEMENTITIOUS STUCCO FINISH o/
BORAL 'DRAIN-N-DRY' SYNTHETIC
LATH o/ DRAINABLE WRB o/ 7
16" OSB
SHEATHING o/ INSULATED 2x
FRAMING o/ 1
2" PAINTED GWB
CEMENTITIOUS STUCCO FINISH o/
BORAL 'DRAIN-N-DRY' SYNTHETIC
LATH o/ DRAINABLE WRB o/ 7
16" OSB
SHEATHING o/ INSULATED 2x
FRAMING o/ 1
2" PAINTED GWB
3-1/2" LIGHTWEIGHT CONCRETE
TOPPING SLAB o/ DRAINAGE MAT o/
WP MEMBRANE (WRAPPED UP WALL
8" MINIMUM) o/ 3
4" P.T. WD. DECKING o/
SLOPED SLEEPERS o/ FLR JSTS
SLOPED WOOD SILL w/ KERFED DRIP
EDGE
WINDOW UNIT PER PLAN
1x3 o/ 1x8 ENG. WD. FASCIA TRIM o/ 2x
SUB-FASCIA o/ 2x FRAMING
VENTED SOFFIT BOARD
1x4 o/ 1x10 ENG. WD. FRIEZE TRIM o/
5X4 BLOCKING
WOOD FAUX BEAM o/ (2) 2x NAILER
CLEAT FASTENED TO ROOF FRAMING
2" CLEAR AIR SPACE ROOF
VENTILATION BAFFLE
ASPHALT COMP. SHINGLE ROOFING
o/ UNDERLAYMENT o/ 3
4" ROOF
SHEATHING o/ 2x FRAMING
2x SLIDERS ATTACHED TO RAFTERS
PER STRUCT TO ACHIEVE
INSULATION REQUIREMENTS
RIDGE BEAM PER STRUCT., RE:
SHEET A5
VENTED RIDGE
THIN BRICK VENEER CHIMNEY,
BEYOND
CONSTRUCTION SET
Adam Anthony
Pfeifer, NCARB
apd_studios+
design | fabrication
12214 w 79th terrace
lenexa, kansas 66215
p. 785.650.3563
e. adam@apdstudios.com
Troy & Eden Kearns
owner
804 W 33rd St
Kansas City, MO 64111
p. 702.556.4081
a. Troy Kearns
e. troyjkearns@gmail.com
Apex Engineering
structural engineer
1625 Locust St
Kansas City, MO 64108
p. 816.421.3222
a. Jason Gibson
e. jason@
apex-engineers.com
Kearns Custom
Residence
6545 Standardbred Drive
Kansas City, MO 64164
drawing title
project no. sheet no.
2020.26
drawn by
aap
date
11.09.2020
project title
release
seal
01.15.2021 _ Permit Set
10.06.2021 _ Fndn. Revs.
11.08.2021 _ Lighting Plan
11.11.2021 _ Lighting Revs.
11.13.2021 _ Const. Revisions
sections
A11
EF
$
$
$
D
$ $
$
GAS
LANTERN
GAS
LANTERN
$
$
$
D
$
D
$
D
$
D
$
D3
$
D
$
3
$
$
$ $
$
$
$
$
$
$
E
F
$
$
$
$
3
3
1
LIGHTING PLAN
BASEMENT FINISH PLAN
1/4" = 1'-0"
CONSTRUCTION NOTES
PLAN NOTES SYMBOL LEGEND
REIN. CONC. WALL w/ CONT.
REIN. CONC. FTG.
2x6 WD. FRAMED WALL
2x4 WD. FRAMED WALL
6" WALL
PRIVATE
LOUNGE
9'-8" CLG
VINYL FLR
MEDIA
LOUNGE
9'-8" CLG
VINYL FLR
AUDIO/ VISUAL
CLOSET
9'-8" CLG
CONCRETE FLR
STORAGE
9'-8" CLG
CONCRETE FLR
GAME
ROOM
9'-8" BEAMED CLG
VINYL FLR
COVERED
TERRACE
9'-8" CLG
CONC. SLAB
WET BAR
9'-8" CLG
VINYL FLR
CLOSET
9'-8" CLG
VINYL FLR
HALF
BATH
9'-8" CLG
VINYL FLR
W.I.C.
9'-8" CLG
CARPET
BED 4
9'-8" CLG
CARPET
BED 5
9'-8" CLG
CARPET
BATH 3
9'-8" CLG
VINYL FLR
STORAGE
9'-8" CLG
CONCRETE FLR
10"dp
FULL
HEIGHT
MEDIA
SHELVES
8'-0"
HDR
8"dp FAUX BEAM
6"dp
FAUX
BEAM
8"dp FAUX BEAM
6"dp
FAUX
BEAM
6"dp
FAUX
BEAM
6"dp
FAUX
BEAM
6"dp
FAUX
BEAM
6"dp
FAUX
BEAM
8'-0"
HDR,
CUT
TO
STAIR
48"x36"
GAS
FIREPLACE
INSERT
w/
LOG
SET
w/
MANTLE
ABOVE
LWR
CABS
w/
STONE
TOP
w/
UPR
SHLVNG
60"x108"
BARN
DOOR
5 SHLVS
36"
VANITY
72" DUAL VANITY
2R/ 1S
GENERAL PLAN NOTES
1. 5/8" TYPE-X GWB COLUMNS AND BEAMS
2. EXTENTS OF REAR PATIO TO BE CONFIRMED WITH BUILDER
3. PROVIDE EXHAUST FAN IN BATHROOMS
4. PROVIDE SMOKE DETECTORS IN ACCORDANCE WITH IRC REQUIREMENTS
4.1. ONE SMOKE ALARM AT EACH LEVEL OF RESIDENCE
4.2. ONE SMOKE ALARM IN EACH BEDROOM
4.3. ONE SMOKE ALARM OUTSIDE OF EACH SLEEPING AREA
5. PROVIDE CARBON MONOXIDE DETECTORS
6. CONFIRM DOOR HEIGHT w/ BUILDER PRIOR TO ORDER
7. ALL EXTERIOR WALLS ARE 2x6 CONSTRUCTION
8. WINDOWS SHALL HAVE FALL PROTECTION PER IRC SECTION 312.2.4
9. HOUSE WILL BE PROVIDED WITH A 'UFER' GROUND PER IRC SECTION 3608.1.5
10. OVERHEAD GARAGE DOORS MUST MEET DASMA REQUIREMENTS FOR 115mph.
11. ALL HEADERS NOT LABELED SHALL BE MIN (2) #2 2x10 DFL
12. DBL ALL JOISTS UNDER ISLAND
13. ICE AND WATER SHIELD AS REQUIRED PER IRC
14. ALL FUEL BURNING APPLIANCES SHALL BE HIGH EFFICIENCY AND DIRECTLY VENTED TO THE OUTSIDE.
SD
CO
SD
SD
SD CO
SD CO
SD
F.D.
H.W.H.
HVAC #1
HVAC #1 H.W.H.
F.D.
CONSTRUCTION NOTES
STRUCTURAL NOTES
ELEC. PANEL
1. NOT APPLICABLE
LED TAPE UPLIGHT @ BACKSPLASH
BACKLIT PROJECTOR SCREEN
LED TAPE @ TOEKICK
IN-GROUND
UPLIGHT
IN-GROUND
UPLIGHT
IN-GROUND
UPLIGHT
CHANDELIER
TO STAIR
CHANEDLIER
STAIR
LIGHTS
STAIR
LIGHTS
STAIR
LIGHTS
CONTINUE
UP STAIRS
CONSTRUCTION SET
Adam Anthony
Pfeifer, NCARB
apd_studios+
design | fabrication
12214 w 79th terrace
lenexa, kansas 66215
p. 785.650.3563
e. adam@apdstudios.com
Troy & Eden Kearns
owner
804 W 33rd St
Kansas City, MO 64111
p. 702.556.4081
a. Troy Kearns
e. troyjkearns@gmail.com
Apex Engineering
structural engineer
1625 Locust St
Kansas City, MO 64108
p. 816.421.3222
a. Jason Gibson
e. jason@
apex-engineers.com
Kearns Custom
Residence
6545 Standardbred Drive
Kansas City, MO 64164
drawing title
project no. sheet no.
2020.26
drawn by
aap
date
11.09.2020
project title
release
seal
01.15.2021 _ Permit Set
10.06.2021 _ Fndn. Revs.
11.08.2021 _ Lighting Plan
11.11.2021 _ Lighting Revs.
11.13.2021 _ Const. Revisions
floor plan
E1
EF
$
$
$ $
$
$
$
$
$
$
3
3
3
3
$
D3
$
$
$D
D
$
GAS
LANTERN
GAS
LANTERN
$
D
$
D
$
D
$
D3
$
$
D3
$
D3
$
D
$
D
$
D3
$
$
D3
GAS
LANTERN
GAS
LANTERN
$
EF
$
$
$
$
$
F
$
$
$
$
3
3
3
$
3
E
F
$
$
$
$
F
$
$
$
F
F
3
$
3
$
E
F
E
F
$
D
$
3
$
3
$
3
$
3
$
3
$
3
$
$
D3
$
D3
$
$
F
$
$
F
$
3
$
3
$
D
$
3
$
3
$
D
$
$
F
$
$
F
1
LIGHTING PLNA
FIRST FLOOR PLAN
1/4" = 1'-0"
CONSTRUCTION NOTES
PLAN NOTES SYMBOL LEGEND
REIN. CONC. WALL w/ CONT.
REIN. CONC. FTG.
2x6 WD. FRAMED WALL
2x4 WD. FRAMED WALL
6" WALL
3-CAR
GARAGE
9'-8" CLG
CONCRETE FLR
BATH 4
9'-8" CLG
TILE FLR
MUDROOM 1
9'-8" CLG
TILE FLR
COVERED
BREEZEWAY
8'-8"+/- CLG
CONC. SLAB
HOME HUB
9'-0" CLG
HDWD FLR
BUTLER'S
PANTRY
9'-0" CLG
HDWD FLR
MUDROOM
10'-4"+/- CLG
TILE FLR
KITCHEN
9'-0" CLG
HDWD FLR
DINING
11'-0" VAULT CLG
HDWD FLR
GREAT ROOM
VAULT CLG UP FROM 11'-0"
HDWD FLR
OFFICE
11'-0" VAULT CLG
HDWD FLR
ENTRY
9'-0" CLG / VAULT
HDWD FLR POWDER
ROOM
9'-0" CLG
TILE FLR
W.I.C.
9'-0" CLG
HDWD FLR
BED 3
10'-0" VAULT CLG
HDWD FLR
BATH 2
9'-0" CLG
TILE FLR
BED 2
9'-0" CLG
HDWD FLR
W.I.C.
9'-0" CLG
HDWD FLR
M. BED
VAULT UP FROM 7'-6"
HDWD FLR
M. BATH
9'-0" CLG
TILE FLR
M. CLOSET 1
9'-0" CLG
CARPET
LAUNDRY
9'-0" CLG
TILE FLR
OUTDOOR
TERRACE
OPEN TO SKY
CONC. SLAB
MOTOR
COURT
CONC. SLAB
GENERAL PLAN NOTES
1. FIRE RATED SELF CLOSING DOOR TO GARAGE MUDROOM FROM GARAGE
2. 5
8" TYPE-X GWB WALLS AND CEILING IN GARAGE - MUD, TAPE, FINISH IN PREP FOR PAINT
3. 5/8" TYPE-X GWB COLUMNS AND BEAMS
4. PROVIDE EXHAUST FAN IN BATHROOMS
5. PROVIDE SMOKE DETECTORS IN ACCORDANCE WITH IRC REQUIREMENTS
5.1. ONE SMOKE ALARM AT EACH LEVEL OF RESIDENCE
5.2. ONE SMOKE ALARM IN EACH BEDROOM
5.3. ONE SMOKE ALARM OUTSIDE OF EACH SLEEPING AREA
6. PROVIDE CARBON MONOXIDE DETECTORS
7. CONFIRM DOOR HEIGHT w/ BUILDER PRIOR TO ORDER
8. ALL EXTERIOR WALLS ARE 2x6 CONSTRUCTION
9. WINDOWS SHALL HAVE FALL PROTECTION PER IRC SECTION 312.2.4
10. HOUSE WILL BE PROVIDED WITH A 'UFER' GROUND PER IRC SECTION 3608.1.5
11. OVERHEAD GARAGE DOORS MUST MEET DASMA REQUIREMENTS FOR 115mph.
12. ALL HEADERS NOT LABELED SHALL BE MIN (2) #2 2x10 DFL
13. DBL ALL JOISTS UNDER ISLAND
14. ICE AND WATER SHIELD AS REQUIRED PER IRC
15. ALL FUEL BURNING APPLIANCES SHALL BE HIGH EFFICIENCY AND DIRECTLY VENTED TO OUTSIDE
SD
CO
36"
VANITY
MECH.
EQUIP.
UNDER
STAIR
S4S WD
BRACKET,
TYP.
ROOF
OVERHANG
ABOVE
S4S WD
BRACKET,
TYP.
S4S WD
BRACKET,
TYP.
S4S WD
BRACKET,
TYP.
PROVIDE FLOOR
OUTLET AT EACH
END OF DECK
AREA
COVERED
PORCH
SLOPED T&G CLG
CONC. SLAB
9'-0" HDR 9'-0" HDR
10"dp FAUX BEAM
6"dp
FAUX
BEAM
6"dp
FAUX
BEAM
6"dp
FAUX
BEAM
6"dp
FAUX
BEAM
11'-0" PLATE LINE
11'-0" PLATE LINE
15"w
PANT.
BUILT-IN
MICRO./
WARM DRWR
30"w
PANTRY
48"w BUILT-IN
REFR.
15"w
PANT.
36"
GAS
RANGE
w/
HOOD
7'-0" HDR
9'-0"
HDR
9'-0"
HDR
36"
RAILING,
TYP.
4
8
"
V
A
N
I
T
Y
18" LIN.
24" LIN.
2R/ 1S
MOTION SENSOR TOE KICK
UNDERLIGHT
90" VANITY
8
"
d
p
F
A
U
X
B
M
4"dp FAUX BM
4"dp FAUX BM
4"dp FAUX BM
4"dp FAUX BM
7'-0" HDR
39" VAN.
39" VAN.
8
"
d
p
F
A
U
X
B
M
4"dp FAUX BM
4"dp FAUX BM
4"dp FAUX BM
4"dp FAUX BM
5
S
H
L
V
S
FLOOR
OUTLET
FLOOR
OUTLET
SD
CO
SD
SD
SD
SD
SD
7
'
-
6
"
P
L
A
T
E
L
I
N
E
7
'
-
6
"
P
L
A
T
E
L
I
N
E
7'-6"
PLATE
LINE
CO
SD
CONSTRUCTION NOTES
STRUCTURAL NOTES
30x36 ATTIC
ACCESS w/
INSUL. HATCH
M. CLOSET 2
9'-0" CLG
CARPET
CONTINUE
UP STAIRS
IN-GROUND
UPLIGHT
IN-GROUND
UPLIGHT
IN-GROUND
UPLIGHT
IN-GROUND
UPLIGHT
IN-GROUND
UPLIGHT
IN-GROUND
UPLIGHT
IN-GROUND
UPLIGHT
IN-GROUND
UPLIGHT
IN-GROUND
UPLIGHT
IN-GROUND
UPLIGHT
IN-GROUND
UPLIGHT
IN-GROUND
UPLIGHT
IN-GROUND
UPLIGHT
IN-GROUND
UPLIGHT
CHANDELIER
DRUM
PENDANT
DRUM
PENDANT
CHANDELIER
(3)
PENDANTS
PEND.
PEND.
STAIR
LIGHTS
STAIR
LIGHTS
STAIR
LIGHTS
CONT.
DOWNSTAIRS
TO LOWER
LEVEL SWITCH
PROVIDE POWER FOR
STEAM UNIT LOCATED IN
BSMT STORAGE
PENDANT o/
EA. LAV
PENDANT o/
EA. LAV
CONSTRUCTION SET
Adam Anthony
Pfeifer, NCARB
apd_studios+
design | fabrication
12214 w 79th terrace
lenexa, kansas 66215
p. 785.650.3563
e. adam@apdstudios.com
Troy & Eden Kearns
owner
804 W 33rd St
Kansas City, MO 64111
p. 702.556.4081
a. Troy Kearns
e. troyjkearns@gmail.com
Apex Engineering
structural engineer
1625 Locust St
Kansas City, MO 64108
p. 816.421.3222
a. Jason Gibson
e. jason@
apex-engineers.com
Kearns Custom
Residence
6545 Standardbred Drive
Kansas City, MO 64164
drawing title
project no. sheet no.
2020.26
drawn by
aap
date
11.09.2020
project title
release
seal
01.15.2021 _ Permit Set
10.06.2021 _ Fndn. Revs.
11.08.2021 _ Lighting Plan
11.11.2021 _ Lighting Revs.
11.13.2021 _ Const. Revisions
floor plan
E2

2020.26 KEARNS - CONSTRUCTION rev1.pdf

  • 1.
    RESIDENCE AREAS SHEET INDEX LOWERLEVEL UNFINISHED AREA 1072 SQ. FT. GARAGE AREA 887 SQ. FT. GARAGE LOFT UNFINISHED AREA 595 SQ. FT. PORCH AREA 174 SQ. FT. LOWER LEVEL TERRACE AREA 291 SQ. FT. FIRST LEVEL TERRACE AREA 318 SQ. FT. LOWER LEVEL FINISHED AREA 1532 SQ. FT. GARAGE MUDROOM 248 SQ. FT. FIRST LEVEL LIVING AREA 2683 SQ. FT. TOTAL FINISHED LIVING AREA 4,463 SQ. FT. ARCHITECTURAL A0 COVER SHEET / ARCH. SITE PLAN A1 FOUNDATION PLAN A2 FIRST FLOOR FRAMING PLAN A3 BASEMENT FINISH PLAN A4 FIRST FLOOR PLAN A5 CEILING/ GAR. LOFT FRAMING PLAN A6 ROOF FRAMING PLAN A7 BUILDING ELEVATIONS A8 BUILDING ELEVATIONS A9 BUILDING ELEVATIONS A10 BUILDING SECTIONS A11 BUILDING SECTION STRUCTURAL S1.0 GENERAL NOTES S2.0 FOUNDATION DETAILS S2.1 FOUNDATION DETAILS S3.0 FRAMING DETAILS S3.1 FRAMING DETAILS S3.2 FRAMING DETAILS S4.0 GENERAL BRACED WALL DETAILS S4.1 GENERAL BRACED WALL DETAILS 910.00' 908.00' 906.00' 904.00' 912.00' 914.00' 916.00' 918.00' 920.00' 922.00' 924.00' 926.00' 928.00' 920.00' 922.00' 924.00' 926.00' 928.00' 922.00' 924.00' 926.00' 928.00' 930.00' 9 3 2 . 0 0 ' 934.00' 936.00' 934.00' 932.00' 930.00' 928.00' 926.00' 924.00' 922.00' 904.00' 918.00' 916.00' 914.00' 912.00' 910.00' 908.00' 906.00' 920.00' 922.00' EF $ $ $ $ $ $ $ $ $ $ 3 3 3 3 $ D3 $ $ $ D D $ GAS LANTERN GAS LANTERN $ D $ D $ D $ D3 $ $ D3 $ D3 $ D $ D $ D3 $ $ D3 GAS LANTERN GAS LANTERN $ EF $ $ $ $ $ F $ $ $ $ 3 3 3 $ 3 EF $ $ $ $ F $ $ $ F F 3 $ 3 $ EF EF $ D $ 3 $ 3 $ 3 $ 3 $ 3 $ 3 $ $ D3 $ D3 $ $ F $ $ F $ 3 $ 3 $ D $ 3 $ 3 $ D $ $ F $ $ F 9 2 8 . 0 ' 9 2 6 . 0 ' 9 2 4 . 0 ' 922.0' 920.0' 918.0' 926.0' 924.0' 922.0' 920.0' 918.0' 920.0' 922.0' 918.0' 920.0' 922.0' 924.0' 926.0' 1. SITE SHALL BE EXCAVATED AND FILLED AS REQUIRED TO THE PROPER ELEVATIONS FOR FOOTINGS AND SLABS. 2. ALL FOOTINGS SHALL EXTEND BELOW A FROST LINE OF 36" WITH UNIFORM BEARING ON UNDISTURBED SOIL CAPABLE OF SUPPORTING A MINIMUM OF 2,000psf. 3. STOCK PILE DIRT FOR FILLS AND BACKFILL. DO NOT USE TOP SOIL FOR BACKFILL. BACKFILL WITH EXCAVATED MATERIAL THAT IS FREE OF ROCK, ORGANIC MATERIAL, AND CONSTRUCTION MATERIAL. SETTLE BACKFILL WITH WATER PRIOR TO FINAL GRADING. BACKFILL AROUND BASEMENT WALLS SHALL BE PLACED UNTIL THE FLOOR FRAMING AND SUBFLOOR HAVE BEEN INSTALLED. 4. USE TOP SOIL FOR FINAL GRADING PLACED TO LINES AND GRADES INDICATED SO AS TO SLOPE AWAY FROM FOUNDATIONS. 5. TERMITE PRE-TREATMENT SHALL BE PROVIDED BY CHEMICALLY TREATING PRIOR TO POURING GARAGE AND BASEMENT FLOOR SLABS. UPON COMPLETION OF CONSTRUCTION, THE SOIL AROUND THE PERIMETER OF THE HOUSE WILL THEN BE TREATED. A MINIMUM OF 5 YEAR RENEWEABLE WARRANTY SHALL ALSO BE PROVIDED. 6. MAINTAIN SOIL MOISTURE CONTENT EQUIVALENT TO WHAT EXISTED AT TIME OF EXCAVATION TO MINIMIZE DIFFERENTIAL SETTLEMENT OR DISPLACEMENT UNLESS OTHERWISE DIRECTED BY GEOTECH. OR STRUCT. 7. FOOTINGS, FOUNDATION WALLS, PIERS, AND SLABS SHALL BE OF SIZES INDICATED, COMPLETED WITH ALL REINFORCING BARS, DOWELS, MESH, AND TIES SPECIFIED. 8. PROVIDE EXPANSION JOINTS AS BOND BREAKER BETWEEN WALLS AND OTHER RESTRAINING CONCRETE CONSTRUCTION. 9. ALL OPENINGS OR PENETRATIONS THROUGH CONCRETE FNDN. WALL SHALL BE BLOCKED OUT OR SLEEVED PRIOR TO CONC. PLACEMENT. 10. PROVIDE CONTROL JOINTS CUT IN BASEMENT SLAB UNDER ALL STEEL BEAMS, HEADER LINES, AND AS OTHERWISE INDICATED. LIMIT CONTROLLED AREAS TO NOT MORE THAN 625sf NOR GREATER THAN 25'-0" IN ANY ONE DIRECTION. CONTROL JOINTS IN EXTER SLABS SHALL BE PLACED AT 15'-0"o.c. MAXIMUM. 11. WATERPROOFING AND FOUNDATION DRAINAGE AS SELECTED BY BUILDER TO MEET OR EXCEED CODE MINIMUM. 12. PROVIDE AND CONNECT ALL DOWNSPOUTS TO SUBTERRANEAN COLLECTION DRAIN PIPE AND DRAIN TO DAYLIGHT. 13. INSTALL 4"Ø PERIMETER EXTERIOR FOOTING DRAIN LINES. ALL FOOTING DRAINS SHALL DRAIN TO DAYLIGHT AS NO SUMP PUMP SHALL BE PROVIDED. DARIN LINES SHALL BE WRAPPED IN FILTER FABRIC AND SURROUNDED BY CLEAN CRUSHED ROCK FILL WITH FILTER FABRIC COVER. 14. MUDSILL PLATES SHALL BE PRESSURE TREATED, DECAY AND TERMITE RESISTIVE LUMBER IN ACCORDANCE WITH 'AWPA' STANDARDS SET ON FOAM SILL GASKET SET IN CONTINUOUS ACOUSTIC SEALANT BEAD (BOTH SIDES OF FOAM SILL SEALER) AND BOLTED TO FOUNDATION WALL w/ 1 2" min. BOLTS (U.N.O.) AT 4'-0"o.c. MAX AND WITH ONE BOLT WITHIN 4" min AND 12" max OF END OF ANY PLATE. EMBED BOLTS 7" min. INTO CONCRETE. 15. DIMENSIONS ARE FROM FACE OF SHEATHING TO FACE OF FRAMING OF WALL, TYPICAL. 16. HATCHED WALLS INDICATE LOAD BEARING WALLS. 17. ALL SILLS AND SLEEPERS SUPPORTED ON CONCRETE OR MASONRY AND FURRING ATTACHED TO CONCRETE OR MASONRY SHALL BE OF DECAY-RESISTANT MATERIALS AND SEPARATED WITH A FOAM SILL GASKET. SEAL FOAM SILL GASKET WITH CONCRETE AND TO BOTTOM PLATE FOR AIR INFILTRATION. 18. FRAMING SHALL BE DONE IN ACCORDANCE WITH ADOPTED CODE, SECTION 'CONSTRUCTION CLASSIFICATION.' 18.1. WOOD STUDS SHALL BE DOUG FIR-LARCH, STUD GRADE OR EQUAL 18.2. WOOD JOISTS, RAFTERS, AND BEAMS SHALL BE #2 DOUGLAS FIR-LARCH WITH STRUCTURAL VALUES IN ACCORDANCE WITH THE WWPA OR EQUAL. STUDS SHALL BE 2x6'S WITH 'CALIFORNIA' 2-STUD CORNERS. 18.3. STUDS SHALL BE DOUBLED AT OPENINGS WITH SINGLE SOLE PLATE AND DOUBLE TOP PLATE. 18.4. STUDS SUPPORTING ROOF AND CEILING ONLY SHALL BE SPACED 16" o.c. MAX. 18.5. STUDS SUPPORTING ONE FLOOR, ROOF, AND CEILING SHALL BE SPACED AT 16" o.c. MAX. 19. PROVIDE WOOD FLOOR JOISTS, SIZING AND SPACING AS INDICATED ON PLANS, DOUBLED UNDER BEARING PARTITIONS. 20. PROVIDE 1-1/8" SUBFLOOR (HUBER WOOD PRODUCTS 'ADVANTECH') GLUED AND SCREWED PERPENDICULAR TO FLOOR TRUSSES. 21. ALL HEADERS SHOULD BE (2) #2- 2x10 MINIMUM, U.N.O. 22. ROOF STRUCTURE SHALL BE DESIGNED FOR A TOTAL LOAD OF 35 LBS PER SQ. FT. w/ 20 LBS LIVE LOAD AND 15 LBS DEAD LOAD. 23. PROVIDE COMPOSITION ROOF OVER LAPPED 30# BUILDING FELTS OVER 9 16" OSB SHEATHING 24. PROVIDE PREFINISHED METAL STANDING SEAM ROOF WHERE INDICATED OVER LAPPED ICE & WATER SHIELD OVER 9 16" OSB SHEATHING. 25. OWNER OPTION: PROVIDE 16oz. COPPER FLASHINGS OVER ALL WINDOWS, EXTERIOR DOORS, ROOF EAVES, AND RAKES. 26. OWNER OPTION: PROVIDE 16oz. COPPER GUTTERS, SLOPED FRONT RECTANGULAR SHAPE, IN SIZES AS REQ'D PER IRC. 27. ALL SOLID BLOCKING FOR BEAM OR HEADER SUPPORT SHALL BE CONTINUOUS TO FOUNDATION OR STRUCTURE BELOW. 28. ENGINEERED LUMBER BEAMS AND HEADERS SHALL HAVE THE FOLLOWING MINIMUM ALLOWABLE DESIGN PROPERTIES: PRODUCT BENDING STRESS (Fb) MOD. OF ELASTICITY (E) LVL 2600 PSI 1.9 x 106 PSI PSL 2900 PSI 2.0 x 106 PSI LSL 2325 PSI 1.55 x 106 PSI 29. JOISTS FRAMING INTO A WOOD GIRDER OR BEAM SHALL BE SUPPORTED BY APPROVED FRAMING ANCHORS OR ON MIN. 2x2 LEDGER STRIPS 30. JOISTS AT SUPPORTS SHALL BE SUPPORTED LATERALLY AT THE ENDS BY FULL-DEPTH SOLID BLOCKING NOT LESS THAN 2" NOMINAL THICKNESS, OR BY ATTACHMENT TO A HEADER BAND OR RIM JOIST, OR TO AN ADJOINING STUD OR OTHERWISE PROVIDED WITH LATERAL SUPPORT TO PREVENT ROTATION. 31. PROVIDE ATTIC ACCESS AS INDICATED ON PLANS. THE OPENING SHALL BE NOT LESS THAN 32" X 30" WITH A MINMUM CLEAR HEAD ROOM OF 36" PROVIDED ABOVE THE ACCESS OPENING. 32. STAIR TREADS TO COMPLY WITH IRC SECTION 311.7 32.1. WIDTH TO BE NOT LESS THAN 36" 32.2. RISER HEIGHT TO BE NOT MORE THAN 7-3/4" 32.3. TREAD DEPTH TO BE NOT LESS THAN 10" NOSE TO NOSE 32.4. CLEAR HEADROOM TO BE 6'-8" MINIMUM 33. PROVIDE APPROVED FIRESTOPPING IN WALLS AND CONCEALED SPACES AS REQUIRED BY CODE. 34. WALLS SHALL BE BRACED IN ACCORDANCE WITH APPLICABLE IRC CODE SECTION. WHERE BRACED PANEL SHEATHING IS USED, VERTICAL JOINTS SHALL OCCUR OVER STUDS AND HORIZONTAL JOINTS SHALL OCCUR OVER MINIMUM 2x BLOCKING. 35. EXTERIOR CLADDING TO BE CEMENTITIOUS STUCCO AND MANUFACTURED THIN-BRICK PER ELEVATIONS. 36. PROVIDE 2" RIGID INSULATION ON INTERIOR FACE OF FOUNDATION WALLS OR TRENCH FOOTINGS AND BELOW CONCRETE SLAB AT WALK-OUT LOWER LEVEL AREAS. 37. PROVIDE NOISE-BARRIER FIBERGLASS INSULATION BATTS AROUND ALL BATHROOM WALLS. 38. PROVIDE 2" FOAM INSULATION WRAPS AROUND ALL SOIL LINES ABOVE SLAB. 39. PROVIDE INSULATION AT THE FOLLOWING LEVELS: 39.1. 6" R-19 IN EXTERIOR WALLS 39.2. R-49 IN FLAT CEILINGS 39.3. R-30 IN VAULTED CEILINGS 39.4. 6" R-19 AROUND PERIMETER OF RIM JOISTS 40. ALL BATHROOMS SHALL HAVE EXHAUST FANS VENTED DIRECTLY TO THE EXTERIOR WITH THE VENTILATION RATE OF 50cfm FOR INTERMITTENT VENTILATION AND 20cfm FOR CONTINUOUS VENTILATION. 41. DOORS BETWEEN THE GARAGE AND DWELLING SHALL BE A MINIMUM OF 1-3/8" SOLID CORE DOOR, HONEY COMBED STEEL DOOR, OR A 20-MINUTE FIRE RATED DOOR WITH SELF-CLOSING HINGES. 42. GARAGE VEHICLE DOORS AND FRAMES SHALL BE DESIGNED AND INSTALLED TO MEET THE 115mph WIND LOAD RESISTANCE REQUIREMENTS OF SECTION R301.2 OF 2018 IRC. 43. WEATHERSTRIP ALL APPLICABLE DOORS AND SEAL ALL JOINTS AND PENETRATIONS. 44. ALL EXTERIOR DOORS, INCLUDING THOSE TO GARAGES, SHOULD INCORPORATE ANY AND ALL LOCAL PHYSICAL SECURITY PROVISIONS. 45. PROVIDE SEALANT AT ALL JOINTS BETWEEN DISSIMILAR MATERIALS. FILL GAPS WITH LOW-EXPANDING FOAM AND SEAL ALL PENETRATIONS IN EXTERIOR WALLS. 46. WINDOW DESIGNATIONS INDICATE PELLA IMPERVIA FIBERGLASS WITH BLACK EXTERIOR COLOR AND BLACK INTERIOR COLOR SELECTED BY OWNER. HARDWARE FINISH TO BE SELECTED BY OWNER. 47. PROVIDE ONE WINDOW FROM EACH BEDROOM AND FROM THE BASEMENT THAT HAS A MINIMUM OPENABLE AREA OF 5.7 SQ. FT. WITH MINIMUM OPENABLE HEIGHT OF 24" AND WIDTH OF 20". 48. SILL HEIGHT OF OPENABLE PORTION OF EGRESS WINDOWS SHALL NOT EXCEED 44" ABOVE THE ADJOINING FLOOR OR ADJOINING PERMANENT STEP. 49. OPERABLE WINDOWS WILL SILL HEIGHTS GREATER THAN 72" ABOVE EXTERIOR GRADE MUST BE MINIMUM 24" ABOVE THE FLOOR OR INCLUDE OPENING LIMITER. 50. GLAZING SHALL COMPLY WITH CPSC (CONSUMER PRODUCTS SAFETY COMMISSION) 16 CFR, PART 1201 CRITERIA FOR CATEGORY 1 OR CATEGORY 2 AS INDICATED IN TABLE R308.3.1(1) OF THE 2018 IRC. 51. APPROVED SAFETY GLAZING MATERIALS SHALL BE PROVIDED IN THE SPECIFIC HAZARDOUS LOCATIONS INDICATED IN SECTION R308.4 OF THE 2018 IRC, INCLUDING, BUT NOT LIMITED TO, THE FOLLOWING: 51.1. GLAZING IN STORM DOORS 51.2. GLAZING AN INDIVIDUAL OR OPERABLE PANEL ADJACENT TO A DOOR WHERE THE NEAREST VERTICAL EDGE IS WITHIN A 24" ARC OF THE DOOR IN A CLOSED POSITION AND WHOSE BOTTOM EDGE IS LESS THAN 60" ABOVE THE FLOOR OR WALKING SURFACE 51.3. GLAZING IN DOORS AND ENCLOSURES FOR HOT TUBS, WHIRLPOOLS, SAUNAS, STEAM ROOMS, BATHTUBS, AND SHOWERS 51.4. GLAZING IN AN INDIVIDUAL FIXED OR OPERABLE PANEL (OTHER THAN THOSE DESCRIBED ABOVE) MEETING ALL OF THE FOLLOWING CONDITIONS 51.4.1. EXPOSED AREA OF AN INDIVIDUAL PANE LARGER THAN 9 SQ. FT. 51.4.2. BOTTOM EDGE LESS THAN 18" ABOVE THE FLOOR 51.4.3. TOP EDGE MORE THAN 36" ABOVE THE FLOOR 51.4.4. ONE OR MORE WALKING SURFACES WITHIN 36" HORIZONTALLY OF THE GLAZING 51.5. GLAZING IN FIXED AND SLIDING PANELS OF SLIDING DOOR ASSEMBLIES AND PANELS IN SLIDING AND BIFOLD CLOSET DOOR ASSEMBLIES 51.6. GLAZING IN SWINGING DOORS (EXCEPT JALOUSIES). 51.7. GLAZING ADJACENT TO STAIRWAYS, LANDINGS, AND RAMPS WITHIN 36" HORIZONTALLY OF A WALKING SURFACE WHEN THE EXPOSED SURFACE OF THE GLASS IS LESS THAN 60" ABOVE THE PLANE OF THE ADJACENT WALKING SURFACE 52. PROVIDE 1 2" GYPSUM BOARD ON ALL INTERIOR FACES OF EXTERIOR WALLS AND BOTH FACES OF INTERIOR WALLS. PROVIDE 5 8" GYPSUM BOARD AT ALL CEILINGS. PROVIDE 1 2" CEMENT, FIBER-CEMENT, OR GLASS MAT GYPSUM BACKER BOARD ON WALLS IN BATHS OR SHOWERS. 53. PROVIDE 1 2" GYPSUM BOARD ON GARAGE SIDE OF WALLS SEPARATING THE GARAGE FROM ALL LIVING SPACES. PROVIDE 5 8" TYPE-X GYPSUM BOARD AT GARAGE CEILINGS. 54. ATTIC AND RAFTER SPACE VENITLATION SHALL BE PROVIDED USING A COMBINATION OF SOFFIT VENTS AND ROOF VENTS. TOTAL NET FREE VENTILATING AREA WILL NO TBE LESS THAN A RATIO OF 1:300. ROOF VENTS LOCATED BELOW THE RIDGE, BUT A MINIMUM OF 3'-0" ABOVE THE EAVE, SHALL PROVIDE AT LEAST 50%, BUT NO MORE THAN 80%, OF THE NET AREA OF VENTILATION WITH THE REMAINDER OF THE TOTAL PROVIDED BY THE SOFFIT VENTS. WHERE EAVE VENTS ARE INSTALLED, PROVIDE VENT GUARD DEVICES TO MAINTAIN AT LEAST 1" AIR SPACE BETWEEN INSULATION AND ROOF SHEATHING, INCLUDING IN VAULTED CEILING CONDITIONS. 55. THE DWELLINGS INDICATED ON THESE PLANS MUST MEET OR EXCEED THE MINIMUM REQUIREMENTS OF THE 2018 IRC TABLE N1102.1.1 56. THE THERMAL ENVELOPE OF THE BUILDING SHALL BE SEALED TO LIMIT AIR INFILTRATION AS REQUIRED PER 2018 IRC SECTION N1102.4.1. 57. RECESSED LIGHTING FIXTURES SHALL BE SEALED TO PREVENT LEAKAGE BETWEEN CONDITIONED AND UNCONDITIONED SPACE. 58. DUCTWORK, AIR HANDLERS, FILTER BOXES, AND BUILDING CAVITIES USED AS DUCTS, SHALL BE SEALED PER 2018 IRC SECTION N1103.2. 59. AIR CONDITIONING UNITS SHALL HAVE A MINIMUM SEER RATING OF 13. 60. FORCED AIR FURNACES SHALL HAVE A MINIMUM EFFICIENCY RATING OF 92%. 61. PROVIDE SMOKE ALARMS IN EACH SLEEPING ROOM, OUTSIDE OF EACH SLEEPING AREA, AND ON EACH FLOOR, INCLUDING BASEMENTS. INTERCONNECT THE ALARMS IN SUCH A MANNER THAT THE ACTUATION OF ONE ALARM WILL ACTIVATE ALL OF THE ALARMS IN THE DWELLING. 62. CARBON MONOXIDE DETECTORS WILL BE INSTALLED PER IRC SECTION R315. 63. GFCI CIRCUITS AND RECEPTACLES SHALL BE FURNISHED IN THE KITCHEN, LAUNDRY, BATHROOMS, GARAGE, AND FOR ALL EXTERIOR RECEPTACLES. LOCATION AND INSTALLATION OF ALL GFCI RECEPTACLES SHALL BE IN STRICT ACCORDANCE WITH THE 2011 NATIONAL ELECTRICAL CODE. 64. ALL STRUCTURAL STEEL SHALL CONFORM TO THE CURRENT AISC SPECIFICATIONS FOR THE DESIGN, FABRICATION, AND ERECTION OF STEEL FOR BUILDINGS AND SHALL BE A36 GRADE STEEL. 65. FURNISH AND INSTALL ALL STRUCTURAL STEEL BEAMS, COLUMNS, BEAM CONNECTIONS, PLATES, BOLTS, AND ANGLES AS INDICATED OR REQUIRED. STEEL COLUMNS SHALL BE 3-1/2" STD (SCH 40) STEEL PIPE, COMPLETE WITH BOTTOM BEARING PLATE AND TOP STEEL CHANNEL TO RECEIVE STEEL BEAM. BOTH PLATE AND CHANNEL SHALL BE WELDED TO COLUMN. 66. COLUMNS SHALL EXTEND THROUGH SLAB AND BEAR DIRECTLY ON FOOTINGS OR FOUNDATION WALLS. 67. INTERIOR FIREPLACE TO BE PREMANUFACTURED GAS INSERT WITH LOG SET. 68. THIS STRUCTURE WILL BE PROVIDED WITH A 'UFER' GROUND PER IRC SECTION 3608.1. 69. PROVIDE AND INSTALL FROSTPROOF SILLCOCKS AND COORDINATE LOCATIONS WITH THE OWNER. ALL PLUMBING SUPPLY LINES IN OUTSIDE WALLS AND/OR UNCONDITIONED SPACES SHALL RUN ON WARM SIDE OF INSULATION AND SHALL BE WRAPPED WITH PIPE INSULATION. 70. ALL PLUMBING VENTS TO TERMINATE ABOVE ROOF LINE PER 2018 IRC. CONSOLIDATE PLUMBING VENTS AS BEST ABLE. LOCATE VENTS ON REAR SIDE OF RESIDENCE TO CONCEAL FROM VIEW. GENERAL CONSTRUCTION NOTES ADOPTED BUILDING CODES CONSTRUCTION GENERAL REQUIREMENTS ALL CONSTRUCTION SHALL COMPLY WITH THE FOLLOWING ADOPTED BUILDING CODES OF PLATTE COUNTY, MISSOURI · 2018 INTERNATIONAL RESIDENTIAL CODE FOR ONE- AND TWO- FAMILY DWELLINGS · 2018 INTERNATIONAL FIRE CODE · 2018 INTERNATIONAL PLUMBING CODE · 2018 INTERNATIONAL ENERGY CONSERVATION CODE · 2018 INTERNATIONAL MECHANICAL CODE · 2018 INTERNATIONAL FUEL GAS CODE · 2018 INTERNATIONAL PROPERTY MAINTENANCE CODE · 2018 INTERNATIONAL PRIVATE SEWAGE DISPOSAL CODE · 2017 NFPA 70: NATIONAL ELECTRICAL CODE · ALL AMENDMENTS AS ADOPTED BY THE PLATTE COUNTY PLANNING & ZONING DEPARTMENT, PLATTE COUNTY, MO · THE PLANS FOR THIS BUILDING WERE DESIGNED AND REVISED IN ACCORDANCE WITH THE PROVISIONS OF THE 2018 IRC AS ADOPTED BY PLATTE COUNTY, MISSOURI. · ALL WORK INCLUDED, INCLUDING ALL MATERIALS AND WORKMANSHIP, SHALL BE IN STRICT ACCORDANCE WITH APPLICABLE REQUIREMENTS OF THE LAWS, CODES, ORDINANCES, AND STANDARDS OF ALL LOCAL, STATE, AND NATIONAL JURISDICTIONS. · ALL SUBCONTRACTORS SHALL BE HELD RESPONSIBLE FOR ANY VIOLATIONS OF APPLICABLE REQUIREMENTS. FOR ANY CHANGES TO THE PROJECT DURING CONSTRUCTION, THE CONTRACTOR SHALL NOTIFY THE ARCHITECT FOR APPROVAL PRIOR TO INSTALLATION. · ALL MANUFACTURED MATERIALS, PRODUCTS, AND EQUIPMENT, SHALL BE INSTALLED, ERECTED, APPLIED, USED, CONDITIONED, ADJUSTED, AND CLEANED IN ACCORDANCE TO THE CURRENT DIRECTIONS, INSTRUCTIONS, AND RECOMMENDATIONS OF THE MANUFACTURER AND WITH THE CURRENT PRINTED STANDARD SPECIFICATIONS WHICH ARE ISSUED AND RECOMMENDED BY ORGANIZED ASSOCIATIONS OF MANUFACTURERS, CRAFTS, TRADES, AND INSTALLERS. · DO NOT SCALE DRAWINGS. REFER TO WRITTEN DIMENSIONS. · SHOULD THE CONTRACTOR FIND DISCREPANCIES OR AMBIGUITIES IN, OR OMISSIONS FROM THE DRAWINGS, OR SHOULD BE IN DOUBT AS TO THEIR MEANING, THE CONTRACTOR SHALL NOTIFY THE ARCHITECT FOR CLARIFICATION PRIOR TO CONSTRUCTION. · COORDINATION OF ALL TRADES IS THE RESPONSIBILITY OF THE GENERAL CONTRACTOR. · THE BUILDER OR THEIR SUB-CONTRACTOR IS RESPONSIBLE FOR SPECIFICATIONS FOR THE FOLLOWING TO MEET CODE (MIN.): ·· TERMITE TREATMENT ·· SOIL BEARING VERIFICATION OR GEOTECHNICAL REPORTS OR OBSERVATIONS ·· SITE DESIGN/ PLOT PLAN/ GRADING PLAN ·· GRUBBING, GRADING AND BACKFILL REQUIREMENTS ·· SITE UTILITY LOCATION AND CONNECTIONS ·· SITE DRAINAGE, INCLUDING DOWNSPOUT LOCATION AND ROUTING OF BELOW GROUND PIPING IF PROVIDED. ·· ALL LANDSCAPING AND PROTECTION OF EXISTING LANDSCAPING TO REMAIN ·· ASPHALT PAVEMENT (IF PROVIDED) · REFER TO STRUCTURAL NOTES FOR THE FOLLOWING MINIMUM REQUIREMENTS ·· SOIL BEARING CAPACITY ·· CONCRETE SLAB SPECIFICATION 1 SITE PLAN ARCHITECTURAL SITE PLAN 1" = 40'-0" 6655 NW STANDARDBRED DRIVE PLATTE COUNTY, MISSOURI 6545 NW STANDARDBRED DRIVE PLATTE COUNTY, MISSOURI WATERFORD DOWNS, LOT 16 10.93 ACRES 6405 NW STANDARDBRED DRIVE PLATTE COUNTY, MISSOURI NW STANDARDBRED DRIVE 60.0' R.O.W. N 75°22'45" W 311.37' N 86°45'-1" W 81.37' 392.74' PROPERTY LINE 30.0' UTILITY EASEMENT 100.0' BUILDING SETBACK 1 5 . 0 ' U T I L I T Y E A S E M E N T 1 5 . 0 ' U T I L I T Y E A S E M E N T 1 1 3 8 . 5 6 ' P R O P E R T Y L I N E N 1 0 ° 3 1 '0 3 ' W 1 1 6 0 . 8 4 ' P R O P E R T Y L I N E S 1 3 ° 5 2 '5 1 " E 1 5 . 0 ' U T I L I T Y E A S E M E N T 1 5 . 0 ' U T I L I T Y E A S E M E N T STREAM CENTERLINE 75.0' STREAM BUFFER 75.0' STREAM BUFFER 94'-3" 81'-11 1 4" 407 '-10 " 34'-01 8" 20'-3" CONCRETE DRIVEW AY 24'-3" CONCRETE MOTOR COURT EL: 927.92'+/- SLOPE TO DRAIN CIRC. DRIVE EL: 927.58'+/- NEW RESIDENCE HIGH ROOF PEAK: 950.39' 1ST FLR ELEV: 929.55' BSMT. SLAB ELEV: 918.42' NEW GARAGE HIGH ROOF PEAK: 954.92' 1ST FLR ELEV: 928.00' 75.0' STREAM BUFFER STREAM CENTERLINE 315.96' PROPERTY LINE S 89°39'36" W 148.04' PROPERTY LINE S 89°39'36" W 18.80' PROPERTY LINE N 03°32'56" W FOUND 3 8" IRON BAR 2.90' S OF LINE FOUND 1 2" IRON BAR & LS 2074 CAP 15.0' UTILITY EASEMENT 15.0' UTILITY EASEMENT 4'-0"r INTR. CIRC. w/ SCULPTURE & PLANTINGS 18'-0"r OUTER CIRC. STACKED LIMESTONE RET. WALL w/ GRAVEL BACKFILL DRIVEWAY APPROACH PER PLATTE COUNTY PUBLIC WORKS DRIVEWAY REDUCES TO 12'-0" WIDTH NEW TREES @ 30'-0"o.c., OFFSET TO EACH SIDE OF DRIVE 6" REIN. CONC. DRIVEWAY PER COUNTY STANDARD DETAILS TO INCLUDE PITCH, CROWN, ETC. PROVIDE DRAINAGE CULVERT UNDER APPROACH AS REQ'D GRADING TO INCLUDE DITCH AT EA. SIDE OF DRIVEWAY, PER PLATTE COUNTY CONSTRUCTION SET Adam Anthony Pfeifer, NCARB apd_studios+ design | fabrication 12214 w 79th terrace lenexa, kansas 66215 p. 785.650.3563 e. adam@apdstudios.com Troy & Eden Kearns owner 804 W 33rd St Kansas City, MO 64111 p. 702.556.4081 a. Troy Kearns e. troyjkearns@gmail.com Apex Engineering structural engineer 1625 Locust St Kansas City, MO 64108 p. 816.421.3222 a. Jason Gibson e. jason@ apex-engineers.com Kearns Custom Residence 6545 Standardbred Drive Kansas City, MO 64164 drawing title project no. sheet no. 2020.26 drawn by aap date 11.09.2020 project title release seal 01.15.2021 _ Permit Set 10.06.2021 _ Fndn. Revs. 11.08.2021 _ Lighting Plan 11.11.2021 _ Lighting Revs. 11.13.2021 _ Const. Revisions cover sheet/ site plan A0
  • 2.
    DATE: CHECKED BY: HD#: HD ENGINEERING & DESIGN, INC 41698 CLS NO. ISSUE/REVISION Revision Date 11656 W. 75TH STREET SHAWNEE, KS 66214 WWW.HDENGINEERS.COM 913.631.2222 SERVICE@HDENGINEERS.COM THISDOCUMENT CONTAINS COPYRIGHTED MATERIAL AND CONFIDENTIAL INFORMATION BELONGINING TO HD ENGINEERING. UNAUTHORIZED USE, DISCLOSURE, DISSEMINATION, OR DUPLICATION OF ANY OF THE INFORMATION CONTAINED HEREIN MAY RESULT IN LIABILITY UNDER APPLICABLE LAW. THIS PLAN HAS BEEN DESIGNED TO CONFIRM WITH THE 2018 IRC COPYRIGHT HD ENGINEERING & DESIGN C IT IS THE RESPONSIBILITY OF THE CONTRACTOR TO CONSTRUCT THIS DWELLING IN COMPLIANCE WITH ALL LOCAL BUILDING CODES AND REQUIREMENTS AS ADOPTED BY THE AUTHORITY HAVING JURISDICTION. 5/4/2021 136'-67 8" 49'-21 2" 41'-43 8" 16'-0" 22'-0" 6'-21 2" 1'-103 4" 19'-57 8" 1'-8" 12'-11 2" 6'-23 8" 3'-6" 5'-11" 1'-8 3 4 " 136'-67 8" 44'-3" 46'-37 8" 5'-0" 13'-4" 22'-9" 1'-11" 1'-3" 6'-61 2" 11'-13 8" 14'-0" 11'-0" 45'-8 1 4 " 19'-0 5 8 " 5'-6" 5'-9 1 4 " 7'-0" 8'-4 3 8 " 5" 10'-7" 11'-0" 5" 1'-11" 12'-4" 12'-0" 12'-0 3 8 " 12'-10" 16'-2" 7 ' - 4 " 1 0 ' - 1 0 " 14'-8" 1'-4" 1'-0" 5'-2" 1'-0" 10'-6" 10'-6" 1'-11" 13'-4" 1'-10" 11'-10" 8'-5" 1'-11" 30° 2'-31 2" 1'-4" 8" 5'-0" 6'-6" 8'-6" 19'-6" 10'-6" 6'-0" 0" 5'-9" 16'-3" 3'-3" 3 ' - 9 1 2 " 22'-6" 11'-0" 6 ' - 8 " DROP t/ FTG DOWN 3'-0" 10"w X 5'-0"h REIN. CONC. FNDN. WALL w/ #4 @ 24"o.c. HORIZ. AND 12"o.c. VERT w/ 6"x6" INT. BLOCK OUT ON 20"w X 10"dp REIN. CONC. FTG. w/ (2) #4 CONT. WALL HEIGHT STEP 10"w X 3'-0"h BURIED REIN. CONC. FNDN. WALL w/ #4 @ 24"o.c. E/W & 6"x6" INT. BLOCKOUT ON 20"w X 10"dp REIN. CONC. FTG. w/ (2) #4 CONT. 18" SQ. x 42"dp CONC. PIER 10"w X 10'-0"h REIN. CONC. FNDN. WALL w/ #4 @ 24"o.c. HORIZ. AND 12"o.c. VERT ON 20"w X 10"dp REIN. CONC. FTG. w/ (2) #4 CONT. 10"w X 10'-0"h REIN. CONC. FNDN. WALL w/ #4 @ 24"o.c. HORIZ. AND 12"o.c. VERT ON 20"w X 10"dp REIN. CONC. FTG. w/ (2) #4 CONT. DROP t/ SLAB 1-1/2" (42" x 96" AREA) 6"w X 6"h BLOCKOUT AT INT. FACE OF WALL FOR FLUSH SLAB SUPPORT t/ WALL: 920.0' t/ FTG: 915.0' t/ FTG: 915.0' t/ WALL: 928.0' t/ FTG: 918.0' t/ WALL: 928.0' t/ FTG: 918.0' t/ WALL: 928.0' t/ WALL: 928.0' t/ LEDGE: 927.5' t/ WALL: 928.0' t/ FTG: 918.0' t/ WALL: 928.0' 10"w X 10'-0"h REIN. CONC. FNDN. WALL w/ INTERIOR BLOCKOUT w/ #4 @ 24"o.c. HORIZ. AND 12"o.c. VERT ON 20"w X 10"dp REIN. CONC. FTG. w/ (2) #4 CONT. 10"w X 10'-0"h REIN. CONC. FNDN. WALL w/ #4 @ 24"o.c. HORIZ. AND 12"o.c. VERT ON 20"w X 10"dp REIN. CONC. FTG. w/ (2) #4 CONT. t/ FTG: 915.0' t/ STEM: 918.0' t/ PIER: 918.75' 4" REIN. CONC. SLAB (EL: 918.33) w/ #4 @ 24"o.c. E/W o/ 10mil VAPOR BARRIER (MIN.) o/ 2" RIGID INSULATION o/ 4" CLEAN 3 4"Ø GRAVEL BASE UNEXCAVATED t/ FTG: 918.0' t/ WALL: 928.0' 8"w X 6'-0"h REIN. CONC. FNDN. WALL w/ #4 @ 24"o.c. HORIZ. AND 12"o.c. VERT ON 16"w X 8"dp REIN. CONC. FTG. w/ (2) #4 CONT. t/ FTG: 923.5' t/ WALL: 929.5' t/ FTG: 918.0' t/ WALL: 928.0' 10"w X 3'-0"h BURIED REIN. CONC. FNDN. WALL w/ #4 @ 24"o.c. E/W & 6"w X 6"h INT. BLOCKOUT ON 20"w X 10"dp REIN. CONC. FTG. w/ (2) #4 CONT. t/ FTG: 915.0' t/ STEM: 918.0' 30"x60" REIN. CONC. PAD w/ (4) #4 BARS LONG. AND (8) #4 BARS TRANS. WALL HEIGHT STEP WALL HEIGHT STEP t/ FTG: 918.0' t/ WALL: 926.0' DROP t/ SLAB 1-1/2" FOR MECHANICAL EQUIP. DROP t/ WALL 24" 10"w X 10'-0"h REIN. CONC. FNDN. WALL w/ #4 @ 24"o.c. HORIZ. AND 12"o.c. VERT ON 20"w X 10"dp REIN. CONC. FTG. w/ (2) #4 CONT. 10"w X 8'-0"h REIN. CONC. FNDN. WALL w/ #4 @ 24"o.c. HORIZ. AND 12"o.c. VERT ON 20"w X 10"dp REIN. CONC. FTG. w/ (2) #4 CONT. DROP t/ WALL 48" t/ FTG: 918.0' t/ WALL: 926.0' t/ WALL: 922.0' t/ FTG: 918.0' 10"w X 4'-0"h REIN. CONC. FNDN. WALL w/ #4 @ 24"o.c. HORIZ. AND 12"o.c. VERT ON 20"w X 10"dp REIN. CONC. FTG. w/ (2) #4 CONT. DROP t/ FTG DOWN 3'-0" 10"w X 7'-0"h REIN. CONC. FNDN. WALL w/ #4 @ 24"o.c. HORIZ. AND 12"o.c. VERT ON 20"w X 10"dp REIN. CONC. FTG. w/ (2) #4 CONT. t/ WALL: 922.0' t/ FTG: 918.0' t/ WALL: 922.0' t/ FTG: 915.0' 10"w X 7'-0"h REIN. CONC. FNDN. WALL w/ #4 @ 24"o.c. E/W ON 20"w X 10"dp REIN. CONC. FTG. w/ (2) #4 CONT. t/ WALL 922.0' t/ FTG: 915.0' 10"w X 3'-0"h BURIED REIN. CONC. FNDN. WALL w/ #4 @ 24"o.c. E/W & 6"w X 6"h INT. BLOCKOUT ON 20"w X 10"dp REIN. CONC. FTG. w/ (2) #4 CONT. 10"w X 3'-0"h BURIED REIN. CONC. FNDN. WALL w/ #4 @ 24"o.c. E/W & 6"w X 6"h INT. BLOCKOUT ON 20"w X 10"dp REIN. CONC. FTG. w/ (2) #4 CONT. t/ STEM: 918.0' t/ FTG: 915.0' t/ STEM: 918.0' t/ FTG: 915.0' F.D. EL: 918.18' F.D. EL: 918.18' 3'-8" 8'-0" 56'-1 7 8 " 8'-4" 8" 10" 5'-0" 1'-4" 14'-0" 3 ' - 4 " 6'-4" 4'-2" 90'-67 8" 56'-1 7 8 " 10'-5 1 2 " 90'-67 8" t/ STEM: 918.0' t/ LEDGE: 917.6' t/ LEDGE: 917.5' t/ LEDGE: 917.5' t/ LEDGE: 917.5' t/ LEDGE: 917.5' 1 1 ' - 2 " 1 0 ' - 1 0 " A PAD A PAD 24" SQ. x 42"dp CONC. PIER 18" SQ. x 42"dp CONC. PIER G G G G B A A C C C 10'-1" 12'-8" 12'-1" 11'-7" 12'-9" 1 1 ' - 2 " FINAL STAIR PIER LOCATIONS TO BE COORD. ON SITE, TYP. STL. BM. CENTERLINE 3 S2.0 1 A11 1'-4" 8" 51'-4" 1'-4" 1'-0" 6'-0" 1'-0" 6'-4" 9'-4" CLR 2'-8" 9'-4"CLR 2'-8" 9'-4"CLR 2'-4" 7'-10" 1'-8" 9'-8" 12'-0" 12'-0" 6'-8" 7'-2" 7'-6" 8" 8"w X 4'-0"h REIN. CONC. FNDN. WALL w/ 4"w X 12"h BLOCKOUT AT TOP w/ #4 @ 24"o.c. E/W ON 16"w X 8"dp REIN. CONC. FTG. w/ (2) #4 CONT. 11'-0" 11'-0" BLOCK DOWN t/ WALL 12" FOR OHD LOCATIONS, TYP. OF (3) 8"w X 4'-0"h REIN. CONC. FNDN. WALL w/ 4"w X 12"h BLOCKOUT AT TOP w/ #4 @ 24"o.c. E/W ON 16"w X 8"dp REIN. CONC. FTG. w/ (2) #4 CONT. 16"w X 8"dp THICKENED SLAB or REIN. CONC. FTG. w/ (2) #4 CONT. DROP t/ STEM 6" 8"w X 3'-6"h REIN. CONC. FNDN. WALL w/ 4"w X 6"h BLOCKOUT AT TOP w/ #4 @ 24"o.c. E/W ON 16"w X 8"dp REIN. CONC. FTG. w/ (2) #4 CONT. CONT. INT. LEDGE HEIGHT THROUGH WALL STEM HEIGHT STEP CONT. INT. LEDGE HEIGHT PAST STEM HEIGHT STEP 8" 1'-4" 8"w X 4'-0"h REIN. CONC. FNDN. WALL w/ 4"w X 12"h BLOCKOUT AT TOP w/ #4 @ 24"o.c. E/W ON 16"w X 8"dp REIN. CONC. FTG. w/ (2) #4 CONT. t/ LEDGE: 927.5' t/ STEM: 928.5' t/ LEDGE: 927.5' t/ STEM: 928.5' t/ LEDGE: 927.5' t/ STEM: 928.5' t/ STEM: 928.5' t/ STEM: 928' t/ LEDGE: 927.5' t/ STEM: 928' t/ LEDGE: 927.5' t/ STEM: 928.5' t/ LEDGE: 927.5' t/ STEM: 928' t/ LEDGE: 927.5' t/ STEM: 928.5' t/ LEDGE: 927.5' t/ STEM: 928' SLOPE SLAB 1 8" PER 1'-0" TO DRAIN TOWARDS OVERHEAD DOORS, TYP. WARP SLAB TO CREATE FLUSH TRANSITION INTO MUDROOM UNEXCAVATED F.D. EL: 927.93' F.D. EL: 927.93' F.D. EL: 927.93' 6"w STEM 6"w STEM 6"w STEM 6"w STEM 6"w STEM 8'-0" 42'-0" BREAK IN SLOPE TO ALIGN w/ WALL; RE: PLAN t/ FTG: 924.5' t/ FTG: 924.5' t/ FTG: 924.5' t/ FTG: 924.5' t/ FTG: 924.5' t/ FTG: 924.5' PFH 1 S4.0 PFH 1 S4.0 PFH 1 S4.0 PFH 1 S4.0 C PAD C PAD C PAD S2.1 2 REF. 1/S2.1 FOR STRUCT. GARAGE SLAB DETAILS UNEXCAVATED UNEXCAVATED 16"w X 8"dp THICKENED SLAB OR REIN. CONC. FTG. w/ (2) #4 CONT. 1'-2" 7'-4" 2 A10 PIER PLAN SEE FOUNDATION PLAN FOR DIMENSIONS R. FULLER FOUNDATION CO. 6545 NW STANDARD BRED DRIVE KANSAS CITY, MISSOURI PIER DESIGN 1 2 3 4 5 6 7 8 9 10 11 12 13 14 15 16 17 18 19 20 21 22 23 24 25 26 27 28 29 30 31 32 33 34 35 36 37 38 39 40 41 42 43 05/04/2021 S-0.1 44 45 46 47 48 49 50 5" CONC. SLAB W/ #4 BARS @ 12" O.C. E.W. ON 1.5" CHAIRS TYP. 5" CONC. SLAB W/ #4 BARS @ 12" O.C. E.W. ON 1.5" CHAIRS TYP. 51 52 53 54 55 56 57 58 59 60 61 62 (4) 8'-0" #4 BARS E/W ON 3 1/2" CHAIRS (TYP.) (4) 8'-0" #4 BARS E/W ON 3 1/2" CHAIRS (TYP.) -89 PIERS TOTAL FOR HOUSE SUPPORT -PIERS ARE TO BE 18"∅ -PIERS TO TERMINATE SHALE, SANDSTONE OR LIMESTONE. CONTRACTUAL BENEFIT: HD ENGINEERING & DESIGN HAS PRODUCED OR WORKED ON THESE DRAWINGS IN THE INTEREST OF OUR CLIENT. NO CONTRACTUAL OBLIGATION OR BENEFIT IS ASSUMED BETWEEN HD ENGINEERING & DESIGN AND ANY OTHER ENTITY. EXISTING CONDITIONS: HD ENGINEERING & DESIGN WILL ONLY BE HELD LIABLE FOR THESE DRAWINGS. HD ENGINEERING & DESIGN WILL NOT BE HELD LIABLE FOR EXISTING BUILDING STRUCTURES, SITE CONDITIONS, EXISTING CONSTRUCTION ELEMENTS, OR ANY OTHER DOCUMENTS, DRAWINGS, OR OTHER INSTRUMENTS RELATED TO OR INTENDED TO BE USED FOR ANY PART OF THIS PROJECT. OUR DESIGN ASSUMES THAT THE BEARING CAPACITY OF THE SHALE, LIMESTONE, OR SANDSTONE SHALL BE A MINIMUM OF 8000 PSF. A PIER PLAN OF THIS NATURE IS ONLY INTENDED TO PROVIDE EQUIVALENT BEARING FOR GRAVITY LOADS, NO MEASURES HAVE BEEN TAKEN TO RESIST UPLIFT DUE TO THE EFFECTS OF EXPANSIVE SOIL OR LATERAL RESTRAINT DUE TO SITE STABILITY 63 64 65 66 67 68 69 70 71 72 73 74 75 76 77 78 79 80 81 82 83 84 85 86 87 88 89 PIER DESIGN
  • 3.
    1 FLOOR PLAN FOUNDATION PLAN 1/4"= 1'-0" CONSTRUCTION NOTES PLAN NOTES SYMBOL LEGEND REIN. CONC. WALL w/ CONT. REIN. CONC. FTG. 2x6 WD. FRAMED WALL 2x4 WD. FRAMED WALL 6" WALL L K J H G 1. ALL PIERS TO BEAR ON ORIGINAL, UNDISTURBED SOIL OF 2,000psf BEARING CAPACITY OR FILL COMPACTED AND TESTED TO CONFORM TO THE RECOMMENDATIONS OF A GEOTECHNICAL ENGINEER. 2. PIERS SHALL EXTEND BELOW THE FROST LINE: MIN. DEPTH OF 36" BELOW GRADE. 3. POST SHALL BE TREATED OR CEDAR WITH SIMPSON ABU66 POST BASE 28" 6x6 18" 6x6 24" 6x6 16" 6x6 12" 6x6 PIER DIA. COLUMN SIZE MARK COLUMN & PIER SCHEDULE ALTERNATE BRACED WALL PANEL DETAIL 1 S4.0 TYPICAL DEAD MAN DETAIL 3 S2.0 TYPICAL OVERDIG DETAIL AT BASEMENT SLAB 6 S2.1 COLUMN AND PIER PAD SCHEDULE (SHEET S2.0) X ALT. APA NARROW WALL BRACING METHOD WITHOUT HOLD-DOWNS 1 S4.0 DETAIL REFERENCES STRUCTURAL GARAGE SLAB / WALL SECTION 3 S2.1 STRUCTURAL GARAGE SLAB PIER PAD DETAIL 2 S2.1 TYPICAL STRUCTURAL GARAGE SLAB PLAN 1 S2.1 COLUMN PAD DETAIL 5 S2.0 FOUNDATION WALL JUMP DETAIL 4 S2.0 TYPICAL "UNRESTRAINED" FOUNDATION WALL DETAIL 2 S2.0 TYPICAL FOUNDATION WALL DETAIL 1 S2.0 136'-67 8" 22'-0" 24'-0" 49'-21 2" 41'-43 8" 1'-4" 20'-0" 16'-0" 22'-0" 6'-21 2" 1'-103 4" 19'-57 8" 1'-8" 12'-11 2" 6'-23 8" 77'-1 7 8 " 51'-4" 14'-8" 3'-6" 5'-11" 1'-8 3 4 " 136'-67 8" 11'-1 7 8 " 44'-3" 46'-37 8" 22'-0" 8" 24'-0" 5'-0" 13'-4" 22'-9" 1'-11" 1'-3" 6'-61 2" 11'-13 8" 14'-0" 11'-0" 77'-1 7 8 " 45'-8 1 4 " 19'-0 5 8 " 5'-6" 5'-9 1 4 " 7'-0" 8'-4 3 8 " 5" 10'-7" 11'-0" 5" 1'-11" 51'-4" 1'-4" 1'-0" 6'-0" 1'-0" 6'-4" 9'-4" CLR 2'-8" 9'-4"CLR 2'-8" 9'-4"CLR 2'-4" 7'-10" 1'-8" 9'-8" 12'-0" 12'-0" 6'-8" 7'-2" 7'-6" 8" 8"w X 4'-0"h REIN. CONC. FNDN. WALL w/ 4"w X 12"h BLOCKOUT AT TOP w/ #4 @ 24"o.c. E/W ON 16"w X 8"dp REIN. CONC. FTG. w/ (2) #4 CONT. 11'-0" 11'-0" BLOCK DOWN t/ WALL 12" FOR OHD LOCATIONS, TYP. OF (3) 8"w X 4'-0"h REIN. CONC. FNDN. WALL w/ 4"w X 12"h BLOCKOUT AT TOP w/ #4 @ 24"o.c. E/W ON 16"w X 8"dp REIN. CONC. FTG. w/ (2) #4 CONT. 16"w X 8"dp THICKENED SLAB or REIN. CONC. FTG. w/ (2) #4 CONT. DROP t/ STEM 6" DROP t/ STEM 6" 8"w X 3'-6"h REIN. CONC. FNDN. WALL w/ 4"w X 6"h BLOCKOUT AT TOP w/ #4 @ 24"o.c. E/W ON 16"w X 8"dp REIN. CONC. FTG. w/ (2) #4 CONT. CONT. INT. LEDGE HEIGHT THROUGH WALL STEM HEIGHT STEP CONT. INT. LEDGE HEIGHT PAST STEM HEIGHT STEP 9'-10" 41'-6" 12'-2" 12'-0" 12'-0 3 8 " 12'-10" 16'-2" 7 ' - 4 " 1 0 ' - 1 0 " 14'-8" 1'-4" 1'-0" 5'-2" 1'-0" 10'-6" 10'-6" 1'-11" 13'-4" 1'-10" 11'-10" 8'-5" 1'-11" 30° 2'-31 2" 8" 1'-4" 20'-0" 1'-4" 8" 5'-0" 8"w X 4'-0"h REIN. CONC. FNDN. WALL w/ 4"w X 12"h BLOCKOUT AT TOP w/ #4 @ 24"o.c. E/W ON 16"w X 8"dp REIN. CONC. FTG. w/ (2) #4 CONT. 6'-6" 8'-6" 19'-6" 10'-6" 6'-0" 6'-9" 5'-9" 16'-3" 3'-3" 3 ' - 9 1 2 " 22'-6" 11'-0" 6 ' - 8 " DROP t/ FTG DOWN 4'-0" 8"w X 5'-0"h REIN. CONC. FNDN. WALL w/ #4 @ 24"o.c. HORIZ. AND 12"o.c. VERT w/ 4"w x 6"h INT. BLOCK OUT ON 16"w X 8"dp REIN. CONC. FTG. w/ (2) #4 CONT. WALL HEIGHT STEP 8"w X 3'-0"h BURIED REIN. CONC. FNDN. WALL w/ #4 @ 24"o.c. E/W & 4"w X 6"h INT. BLOCKOUT ON 16"w X 8"dp REIN. CONC. FTG. w/ (2) #4 CONT. 18" SQ. x 42"dp CONC. PIER 8"w X 9'-0"h REIN. CONC. FNDN. WALL w/ #4 @ 24"o.c. HORIZ. AND 12"o.c. VERT ON 16"w X 8"dp REIN. CONC. FTG. w/ (2) #4 CONT. 8"w X 9'-0"h REIN. CONC. FNDN. WALL w/ #4 @ 24"o.c. HORIZ. AND 12"o.c. VERT ON 16"w X 8"dp REIN. CONC. FTG. w/ (2) #4 CONT. DROP t/ SLAB 1-1/2" (42" x 96" AREA) 4"w X 6"h BLOCKOUT AT INT. FACE OF WALL FOR FLUSH SLAB SUPPORT t/ STEM: 928.5' t/ LEDGE: 927.5' t/ LEDGE: 927.5' t/ STEM: 928.5' t/ LEDGE: 927.5' t/ STEM: 928.5' t/ LEDGE: 927.5' t/ STEM: 928.5' t/ STEM: 928.5' t/ STEM: 928' t/ LEDGE: 927.5' t/ STEM: 928' t/ LEDGE: 927.5' t/ STEM: 928.5' t/ LEDGE: 927.5' t/ STEM: 928' t/ LEDGE: 927.5' t/ STEM: 928.5' t/ LEDGE: 927.5' t/ STEM: 928' t/ WALL: 920.0' t/ FTG: 915.0' t/ FTG: 915.0' t/ WALL: 928.0' t/ FTG: 919.0' t/ WALL: 928.0' t/ FTG: 919.0' t/ WALL: 928.0' t/ WALL: 928.0' t/ LEDGE: 927.5' t/ WALL: 928.0' t/ FTG: 919.0' t/ WALL: 928.0' 8"w X 9-0"h REIN. CONC. FNDN. WALL w/ INTERIOR BLOCKOUT w/ #4 @ 24"o.c. HORIZ. AND 12"o.c. VERT ON 16"w X 8"dp REIN. CONC. FTG. w/ (2) #4 CONT. 8"w X 9'-0"h REIN. CONC. FNDN. WALL w/ #4 @ 24"o.c. HORIZ. AND 12"o.c. VERT ON 16"w X 8"dp REIN. CONC. FTG. w/ (2) #4 CONT. t/ FTG: 915.0' t/ STEM: 918.0' t/ PIER: 918.75' 4" REIN. CONC. SLAB (EL: 918.33) w/ #4 @ 24"o.c. E/W o/ 10mil VAPOR BARRIER (MIN.) o/ 2" RIGID INSULATION o/ 4" CLEAN 3 4"Ø GRAVEL BASE SLOPE SLAB 1 8" PER 1'-0" TO DRAIN TOWARDS OVERHEAD DOORS, TYP. WARP SLAB TO CREATE FLUSH TRANSITION INTO MUDROOM UNEXCAVATED UNEXCAVATED t/ FTG: 919.0' t/ WALL: 928.0' 8"w X 6'-0"h REIN. CONC. FNDN. WALL w/ #4 @ 24"o.c. HORIZ. AND 12"o.c. VERT ON 16"w X 8"dp REIN. CONC. FTG. w/ (2) #4 CONT. t/ FTG: 923.5' t/ WALL: 929.5' t/ FTG: 919.0' t/ WALL: 928.0' 8"w X 3'-0"h BURIED REIN. CONC. FNDN. WALL w/ #4 @ 24"o.c. E/W & 4"w X 6"h INT. BLOCKOUT ON 16"w X 8"dp REIN. CONC. FTG. w/ (2) #4 CONT. t/ FTG: 915.0' t/ STEM: 918.0' 30"x60" REIN. CONC. PAD w/ (4) #4 BARS LONG. AND (8) #4 BARS TRANS. WALL HEIGHT STEP WALL HEIGHT STEP t/ FTG: 919.0' t/ WALL: 926.0' DROP t/ SLAB 1-1/2" FOR MECHANICAL EQUIP. DROP t/ WALL 24" 8"w X 9-0"h REIN. CONC. FNDN. WALL w/ #4 @ 24"o.c. HORIZ. AND 12"o.c. VERT ON 16"w X 8"dp REIN. CONC. FTG. w/ (2) #4 CONT. 8"w X 7'-0"h REIN. CONC. FNDN. WALL w/ #4 @ 24"o.c. HORIZ. AND 12"o.c. VERT ON 16"w X 8"dp REIN. CONC. FTG. w/ (2) #4 CONT. DROP t/ WALL 48" t/ FTG: 919.0' t/ WALL: 926.0' t/ WALL: 922.0' t/ FTG: 919.0' 8"w X 3'-0"h REIN. CONC. FNDN. WALL w/ #4 @ 24"o.c. HORIZ. AND 12"o.c. VERT ON 16"w X 8"dp REIN. CONC. FTG. w/ (2) #4 CONT. DROP t/ FTG DOWN 4'-0" 8"w X 7'-0"h REIN. CONC. FNDN. WALL w/ #4 @ 24"o.c. HORIZ. AND 12"o.c. VERT ON 16"w X 8"dp REIN. CONC. FTG. w/ (2) #4 CONT. t/ WALL: 922.0' t/ FTG: 919.0' t/ WALL: 922.0' t/ FTG: 915.0' 8"w X 7'-0"h REIN. CONC. FNDN. WALL w/ #4 @ 24"o.c. E/W ON 16"w X 8"dp REIN. CONC. FTG. w/ (2) #4 CONT. t/ WALL 922.0' t/ FTG: 915.0' 8"w X 3'-0"h BURIED REIN. CONC. FNDN. WALL w/ #4 @ 24"o.c. E/W & 4"w X 6"h INT. BLOCKOUT ON 16"w X 8"dp REIN. CONC. FTG. w/ (2) #4 CONT. 8"w X 3'-0"h BURIED REIN. CONC. FNDN. WALL w/ #4 @ 24"o.c. E/W & 4"w X 6"h INT. BLOCKOUT ON 16"w X 8"dp REIN. CONC. FTG. w/ (2) #4 CONT. t/ STEM: 918.0' t/ FTG: 915.0' t/ STEM: 918.0' t/ FTG: 915.0' F.D. EL: 918.18' F.D. EL: 918.18' F.D. EL: 927.93' F.D. EL: 927.93' F.D. EL: 927.93' 6"w STEM 6"w STEM 6"w STEM 6"w STEM 6"w STEM 3'-8" 8'-0" 42'-0" 8'-0" 56'-1 7 8 " 8'-6" 8" 10" 5'-0" 1'-4" 3 ' - 4 " 6'-4" 4'-2" 90'-67 8" 56'-1 7 8 " 21'-0" 10'-5 1 2 " 90'-67 8" BREAK IN SLOPE TO ALIGN w/ WALL; RE: PLAN t/ STEM: 918.0' t/ LEDGE: 917.6' t/ LEDGE: 917.5' t/ LEDGE: 917.5' t/ LEDGE: 917.5' t/ LEDGE: 917.5' 1 1 ' - 2 " 1 0 ' - 1 0 " GENERAL PLAN NOTES 1. WINDOWS SHALL HAVE FALL PROTECTION IRC 312.2.4 2. HOUSE WILL BE PROVIDED WITH A 'UFER' GROUND PER IRC SECTION 3608.1.5 3. OVERHEAD GARAGE DOORS MUST MEET DASMA REQUIREMENTS FOR 115mph. 4. ALL HEADERS NOT LABELED SHALL BE MIN (2) #2 2x10 DFL 5. DBL ALL JOISTS UNDER ISLAND 6. ICE AND WATER SHIELD AS REQUIRED PER IRC 7. SOILS IN THIS AREA COMMONLY HAVE A VERY HIGH SHRINK SWELL CAPACITY. IT IS RECOMMENDED THAT ALL SITES BE EVALUATED BY A GEOTECHNICAL FIRM PRIOR TO PLACEMENT OF FOUNDATIONS. 8. FOUNDATION SHALL BE CONSTRUCTED PER PLATTE COUNTY GUIDELINES. 3" DIA. 3" DIA. 3" DIA. 31 2" DIA. 31 2" DIA. S C H E D U L E 4 0 S T E E L P I P E ( F y = 3 6 k s i M I N . ) COLUMN TYPE 1. COLUMN & PAD SIZES SHOWN ARE FOR MAXIMUM COLUMN HEIGHT OF 10'-0", REQUIRES SEPARATE ENGR'D DESIGN IF GREATER THAN 10'-0" TALL. 2. COLUMN & PIER PAD SIZES SHOWN ARE BASED ON AN ASSUMED MINIMUM ALLOWABLE SOIL BEARING CAPACITY OF 2,000psf. (10) #4 BAR E.W. 60" x 60" x 16" F (8) #4 BAR E.W. 54" x 54" x 16" E (6) #4 BAR E.W. 48" x 48" x 12" D C B A COLUMN MARK (5) #4 BAR E.W. 42" x 42" x 12" 3" DIA. (4) #4 BAR E.W. (4) #4 BAR E.W. 36" x 36" x 12" COLUMN SIZE REINFORCEMENT 30" x 30" x 12" PAD SIZE COLUMN & PIER PAD SCHEDULE (REF. 5/S2.0) CONSTRUCTION NOTES STRUCTURAL NOTES t/ FTG: 924.5' t/ FTG: 924.5' t/ FTG: 924.5' t/ FTG: 924.5' t/ FTG: 924.5' t/ FTG: 924.5' PFH 1 S4.0 PFH 1 S4.0 PFH 1 S4.0 PFH 1 S4.0 C PAD C PAD C PAD S2.1 2 REF. 1/S2.1 FOR STRUCT. GARAGE SLAB DETAILS UNEXCAVATED UNEXCAVATED A PAD A PAD 24" SQ. x 42"dp CONC. PIER 18" SQ. x 42"dp CONC. PIER G G G G B A A C C C 10'-1" 12'-8" 12'-1" 11'-7" 12'-9" 1 1 ' - 2 " FINAL STAIR PIER LOCATIONS TO BE COORD. ON SITE, TYP. STRUCTURAL NOTES: - ALL UNMARKED HEADERS MIN (2)#2-2x10 - ALL HEADERS AND BEAMS MIN #2 GRADE DF/L (OR EQ.) = BEARING WALL - SHIPLAP SIDING MUST BE FASTENED AT BOTH UNDER LAP AND OVERLAP DEFERRED JOIST SUBMITTAL: - JOIST DESIGN SHALL BE SUBMITTED TO APEX ENGINEERS, INC. FOR REVIEW PRIOR TO CONSTRUCTION AND INSTALLATION OF JOISTS. - JOIST DESIGNER/ MANUFACTURER SHALL FOLLOW ASSUMED JOIST DIRECTIONS AS CLOSELY AS POSSIBLE TO CONFORM WITH HOUSE STRUCTURE AS A WHOLE. - IF DEVIATION FROM ASSUMED JOIST DESIGN ARE REQUIRED, MANUF. SHALL CONTACT APEX ENGINEERS. EXPANSIVE SOILS DISCLAIMER THESE PLANS HAVE BEEN PREPARED BASED ON A PRESUMPTIVE ALLOWABLE BEARING CAPACITY AS ALLOWED BY IRC CODE AND THE LOCAL ENFORCING JURISDICTION. APEX ENGINEERS, INC. (APEX) RECOMMENDS THAT ALL FOOTING EXCAVATIONS BE EVALUATED BY A LICENSED GEOTECHNICAL ENGINEER PRIOR TO THE PLACEMENT OF ANY FOUNDATION ELEMENTS. GEOTECHNICAL INVESTIGATION AND/OR TESTING IS NOT A SERVICE PROVIDED OR OFFERED BY APEX. APEX HAS NOT BEEN RETAINED TO DETERMINE THE EXPANSIVE SOIL CHARACTERISTICS OF THE SUBGRADE SOIL AND THEREFORE CANNOT BE HELD RESPONSIBLE FOR THE VOLUMETRIC CHANGES OF THE SOIL (INCLUDING BELOW BASEMENT SLAB). BY USE OF THESE PLANS WITHOUT AN ACCOMPANYING GEOTECHNICAL ENGINEERING REPORT, APEX SHALL NO BE HELD LIABLE FOR ANY FUTURE MOVEMENT AND/OR DIFFERENTIAL MOVEMENT OF THE PROPOSED STRUCTURE AND THE POSSIBLE DAMAGE THAT MAY BE CAUSED AS A RESULT OF SUCH MOVEMENT. STL. BM. CENTERLINE 16"w X 8"dp THICKENED SLAB OR REIN. CONC. FTG. w/ (2) #4 CONT. 1'-2" 7'-4" 3 S2.0 2 A10 1 A11 24"Ø x 42"dp CONC. PIER, TYP. OF (4) 5 ' - 8 " 13'-4" CENTER TO CENTER 8'-4" 7'-8" 9 ' - 0 " CONSTRUCTION SET Adam Anthony Pfeifer, NCARB apd_studios+ design | fabrication 12214 w 79th terrace lenexa, kansas 66215 p. 785.650.3563 e. adam@apdstudios.com Troy & Eden Kearns owner 804 W 33rd St Kansas City, MO 64111 p. 702.556.4081 a. Troy Kearns e. troyjkearns@gmail.com Apex Engineering structural engineer 1625 Locust St Kansas City, MO 64108 p. 816.421.3222 a. Jason Gibson e. jason@ apex-engineers.com Kearns Custom Residence 6545 Standardbred Drive Kansas City, MO 64164 drawing title project no. sheet no. 2020.26 drawn by aap date 11.09.2020 project title release seal 01.15.2021 _ Permit Set 10.06.2021 _ Fndn. Revs. 11.08.2021 _ Lighting Plan 11.11.2021 _ Lighting Revs. 11.13.2021 _ Const. Revisions foundation plan A1
  • 4.
    1 FRAMING PLAN FIRST FLOORFRAMING PLAN 1/4" = 1'-0" CONSTRUCTION NOTES PLAN NOTES SYMBOL LEGEND REIN. CONC. WALL w/ CONT. REIN. CONC. FTG. 2x6 WD. FRAMED WALL 2x4 WD. FRAMED WALL 6" WALL STRUCTURAL NOTES: - ALL UNMARKED HEADERS MIN (2)#2-2x10 - ALL HEADERS AND BEAMS MIN #2 GRADE DF/L (OR EQ.) = BEARING WALL - SHIPLAP SIDING MUST BE FASTENED AT BOTH UNDER LAP AND OVERLAP - 2-PLY EXTERIOR WALL HEADERS SET FLUSH TO OUTSIDE FACE OF FRAMING. INSULATE INNER CAVITY BEHIND HEADER w/ BATT INSULATION. DEFERRED JOIST SUBMITTAL: - JOIST DESIGN SHALL BE SUBMITTED TO APEX ENGINEERS, INC. FOR REVIEW PRIOR TO CONSTRUCTION AND INSTALLATION OF JOISTS. - JOIST DESIGNER/ MANUFACTURER SHALL FOLLOW ASSUMED JOIST DIRECTIONS AS CLOSELY AS POSSIBLE TO CONFORM WITH HOUSE STRUCTURE AS A WHOLE. - IF DEVIATION FROM ASSUMED JOIST DESIGN ARE REQUIRED, MANUF. SHALL CONTACT APEX ENGINEERS. SYMBOLS POINT LOAD (KIPS) w = ### plf DISTRIBUTED LOAD (lb/ft) BRACED WALL METHODOLOGY XXXX EXTERIOR BRACED WALLS: WSP METHOD: WOOD STRUCTURAL PANEL SHEATHING WITH A THICKNESS NOT LESS THAN 3 8" WITH MINIMUM SPAN RATING OF 24/0 FOR 16" OC STUD SPACING WITH 6d COMMON NAILS AT 6" OC EDGES AND 12" OC FIELD OR SHEATHING THICKNESS NOT LESS THAN 7 16" WITH MINIMUM SPAN RATING OF 24 16 FOR 24" OC SPACING WITH 8d COMMON NAILS AT 6" OC EDGES AND 12" OC IN FIELD. (NOTE: FRAMING MEMBERS 16" OC MAX,UNBLOCKED, AND WITH SHEATHING APPLIED DIRECTLY TO FRAMING MEMBERS) / / / / INTERIOR BRACED WALLS (REF 2-S4.0): GB METHOD: 1 2" MIN. GYPSUM BOARD OVER STUDS SPACED 24" MAX. FASTENED WITH No 6 - 11 4" TYPE 'W' OR 'S' DRYWALL SCREWS AT 7" OC EDGES AND FIELD ( MIN. 4'-0" SECTION FOR BOTH SIDES.) OR LIB METHOD: 1x4 WOOD FASTENED WITH (3) 8d COMMON NAILS OR SIMPSON / USP 16 GA. TYPE WB (OR EQUAL) STL. X-BRACE(S) AT 45° TO 60° ANGLES, MAXIMUM 16" OC STUD FASTENED PER MANUFACTURER'S SPECIFICATIONS. XXXX = EXTERIOR BRACED WALLS / / / / = INTERIOR BRACED WALS (REF 2/S4.0) EC = END CONDTION (REF 2/S4.1 FOR CONTINUOUS SHEATHED BRACED WALL END CONDTIONS CONSTRUCTION NOTES STRUCTURAL NOTES 0 . 2 w = 2 2 0 p l f S P E C I A L T R U S S B Y O T H E R S o r W 8 x 1 0 S T L . B M . W = 1 2 0 p l f 0 . 1 0 . 1 0 . 1 S P E C I A L T R U S S B Y O T H E R S o r W 8 x 1 0 S T L . B M . W = 1 2 0 p l f 0 . 2 0 . 4 S P E C I A L T R U S S B Y O T H E R S o r W 8 x 1 0 S T L . B M . W = 1 2 0 p l f 0 . 3 0 . 3 0 . 2 S P E C I A L T R U S S B Y O T H E R S o r W 8 x 1 0 S T L . B M . (2)#2-2x12 (2)2x6 (2)2x6 M I N I M U M 1 6 " d p W O O D T R U S S E S B Y O T H E R S W8x21STLBM(CONT.) 2 S3.1 BM. SPLICE 2'-11" 3"SCH.40 STL.COL., TYP 3"SCH.40 STL.COL., TYP 3"SCH.40 STL.COL., TYP 3"SCH.40 STL.COL., TYP (2)#2-2x12 (2)#2-2x12 M I N I M U M 1 6 " d p W O O D T R U S S E S B Y O T H E R S COORD.FRAMING HEIGHTOF LANDINGONSITE ( 4 ) 2 x 6 4.1 MI N I M UM 16"dp GI R DER TRUSS BY OTHERS or W8x10 STL. BM. 3"SCH.40 STL.COL., TYP 3"SCH.40 STL.COL., TYP 3"SCH.40 STL.COL., TYP 3"SCH.40 STL.COL., TYP W8x13STL.BM.(CONT.) W8x28STL.BM.(UPSET) (2)#2-2x10TRTD (2) #2- 2x10 TRTD (2)#2-2x10TRTD (2) #2- 2x10 TRTD (3)#2-2x12TRTD (3)#2-2x12TRTD 6x6 TRTD POST ON SIMPSON ABU66Z POST BASE, TYP. #2- 2x10 TRTD @12"o. c . #2-2x10TRTDLEDGERw/ 1 2"ØGALV. LAGS@16"o.c.DOUBLEEVERYOTHER (3)1-3/4"x11-7/8"LVL ( 3 ) 2 x 6 ( 3 ) 2 x 6 #2- 2x10 TRTD @12"o. c . MI N . 16"dp WOOD TRUSSES BY OTHERS W8x28STL.BM.(UPSET) ( 4 ) 2 x 6 (2)#2-2x12 ( 2 ) 2 x 6 ( 2 ) 2 x 6 MI N . 16"dp WOOD TRUSSES BY OTHERS 3 S2.0 1. NOT APPLICABLE 4.1 2 A10 1 A11 ( 2 ) 1 - 3 / 4 " x 1 6 " L V L ( 2 ) 1 - 3 / 4 " x 1 6 " L V L (3)1-3/4"x16"LVL 8x8 CEDAR POST ON ABU66Z POST BASE, TYP. OF (4) # 2 - 2 x 1 0 F J s @ 1 6 " o . c . # 2 - 2 x 4 C J s @ 1 6 " o . c . F L U S H T O b / L V L #2-2x10TRTDLEDGERw/ 1 2"ØGALV. LAGS@16"o.c.DOUBLEEVERYOTHER (2)#2-2x12TRTD (2)#2-2x12TRTD ( 2 ) # 2 - 2 x 1 2 T R T D # 2 - 2 x 8 T R T D D J s @ 1 6 " o . c . CONSTRUCTION SET Adam Anthony Pfeifer, NCARB apd_studios+ design | fabrication 12214 w 79th terrace lenexa, kansas 66215 p. 785.650.3563 e. adam@apdstudios.com Troy & Eden Kearns owner 804 W 33rd St Kansas City, MO 64111 p. 702.556.4081 a. Troy Kearns e. troyjkearns@gmail.com Apex Engineering structural engineer 1625 Locust St Kansas City, MO 64108 p. 816.421.3222 a. Jason Gibson e. jason@ apex-engineers.com Kearns Custom Residence 6545 Standardbred Drive Kansas City, MO 64164 drawing title project no. sheet no. 2020.26 drawn by aap date 11.09.2020 project title release seal 01.15.2021 _ Permit Set 10.06.2021 _ Fndn. Revs. 11.08.2021 _ Lighting Plan 11.11.2021 _ Lighting Revs. 11.13.2021 _ Const. Revisions framing plan A2 seal
  • 5.
    1 FLOOR PLAN BASEMENT FINISHPLAN 1/4" = 1'-0" CONSTRUCTION NOTES PLAN NOTES SYMBOL LEGEND REIN. CONC. WALL w/ CONT. REIN. CONC. FTG. 2x6 WD. FRAMED WALL 2x4 WD. FRAMED WALL 6" WALL MEDIA LOUNGE 8'-8" CLG VINYL FLR AUDIO/ VISUAL CLOSET 8'-8" CLG CONCRETE FLR STORAGE 8'-8" CLG CONCRETE FLR UNEXCAVATED UNEXCAVATED GAME ROOM 8'-8" BEAMED CLG VINYL FLR COVERED TERRACE 8'-8" CLG CONC. SLAB WET BAR 8'-8" CLG VINYL FLR UP 18R CLOSET 8'-8" CLG VINYL FLR HALF BATH 8'-0" CLG VINYL FLR W.I.C. 8'-8" CLG CARPET BED 4 8'-8" CLG CARPET BED 5 8'-8" CLG CARPET BATH 3 8'-8" CLG VINYL FLR STORAGE 8'-8" CLG CONCRETE FLR UNEXCAVATED UNEXCAVATED UNEXCAVATED UP 18R 4'-1" 15'-9" 10" 21'-2" 7'-2" 8'-0" 10'-9" 11'-3" 15'-4" 22'-0" 6'-21 2" 1'-103 4" 22'-6" 3'-8" 5'-2" 8'-8" 5'-0" 14'-0" 7'-0" 7'-0" 30° 2'-8" 2'-9" 2'-6" 18'-11 1 2 " 4'-2" 6'-10" 2'-11" 7'-4" 11'-4" 10" 4'-33 8" 1'-2 1 8 " 5'-4" 1'-41 2" 3'-21 2" 6'-6" 2'-0" 4'-3" 27'-7" 6'-9" 4'-0" 7'-8" 24'-2" 6 ' - 0 " 4 ' - 4 " 2 ' - 8 " 3 ' - 4 " 2'-4" 10" 7" 3'-10" 5'-0" 15'-4" 11'-3" 10" 7'-0" 1'-5" 8T @ 11"ea = 7'-4" 7" 1'-0" 3'-0" 1'-1" 6'-9" 4'-5" 6" 5'-4" 28 70 24 70 2 0 7 0 2 0 7 0 2 4 7 0 2 8 7 0 2 8 7 0 2 8 7 0 5 0 7 BYPASS 0 2 0 7 0 20 70 120 8 SLIDING DR 0 26 56 CSMT 8'-0" HD. HT. 26 56 CSMT 8'-0" HD. HT. 36 56 PICT. 8'-0" HD. HT. 24"h LEDGE 2 6 5 6 CSMT 8'-0" HD. HT. **EGRESS** 2 6 5 6 CSMT 8'-0" HD. HT. **EGRESS** (2) 2 6 5 6 CSMT 8'-0" HD. HT. **EGRESS** 2 6 5 6 CSMT 8'-0" HD. HT. **EGRESS* 2 6 5 6 CSMT 8'-0" HD. HT. **EGRESS** 3 6 5 6 PICT. 8'-0" HD. HT. 1'-4" 40"h KNEE WALL 1 1 ' - 8 " 24"dp LOW CABINETS 18"dp, 32"h LOWER CABS w/ STONE TOP PROJECTOR SCREEN DOUBLE STUD WALL DBL WALL 8'-0" HDR 8"dp FAUX BEAM 6"dp FAUX BEAM 8"dp FAUX BEAM 6"dp FAUX BEAM 6"dp FAUX BEAM 6"dp FAUX BEAM 6"dp FAUX BEAM 6"dp FAUX BEAM 40"h LWR CABS w/ STONE TOP SINK D/W U/CAB REFR. U/CAB FRZR. LWR CAB 8'-0" HDR, CUT TO STAIR 3" WD STAIR/ LANDING NOSING 48"x36" GAS FIREPLACE INSERT w/ LOG SET w/ MANTLE ABOVE LWR CABS w/ STONE TOP w/ UPR SHLVNG 60"x108" BARN DOOR 60"x108" BARN DOOR 2R/ 1S 5 SHLVS 36" VANITY (5) 24"dp SHLVS ( 5 ) 1 5 " d p S H L V S WALL EXTENDS UNDER RISERS GWB WRAP STRINGERS 72" DUAL VANITY 36x60 TILE SHOWER w/ 84"h GL. ENCL. 2R/ 1S GENERAL PLAN NOTES 1. 5/8" TYPE-X GWB COLUMNS AND BEAMS 2. EXTENTS OF REAR PATIO TO BE CONFIRMED WITH BUILDER 3. PROVIDE EXHAUST FAN IN BATHROOMS 4. PROVIDE SMOKE DETECTORS IN ACCORDANCE WITH IRC REQUIREMENTS 4.1. ONE SMOKE ALARM AT EACH LEVEL OF RESIDENCE 4.2. ONE SMOKE ALARM IN EACH BEDROOM 4.3. ONE SMOKE ALARM OUTSIDE OF EACH SLEEPING AREA 5. PROVIDE CARBON MONOXIDE DETECTORS 6. CONFIRM DOOR HEIGHT w/ BUILDER PRIOR TO ORDER 7. ALL EXTERIOR WALLS ARE 2x6 CONSTRUCTION 8. WINDOWS SHALL HAVE FALL PROTECTION PER IRC SECTION 312.2.4 9. HOUSE WILL BE PROVIDED WITH A 'UFER' GROUND PER IRC SECTION 3608.1.5 10. OVERHEAD GARAGE DOORS MUST MEET DASMA REQUIREMENTS FOR 115mph. 11. ALL HEADERS NOT LABELED SHALL BE MIN (2) #2 2x10 DFL 12. DBL ALL JOISTS UNDER ISLAND 13. ICE AND WATER SHIELD AS REQUIRED PER IRC 14. ALL FUEL BURNING APPLIANCES SHALL BE HIGH EFFICIENCY AND DIRECTLY VENTED TO THE OUTSIDE. SD CO SD SD SD CO SD CO F.D. H.W.H. HVAC #1 HVAC #1 H.W.H. F.D. OPEN RAILING PLANTING BED CONSTRUCTION NOTES STRUCTURAL NOTES EF EF ELEC. PANEL 4" WD. FURR OUT AROUND LANDING 1. NOT APPLICABLE 2 A10 1 A11 8'-4" RISER WIDTH CONSTRUCTION SET Adam Anthony Pfeifer, NCARB apd_studios+ design | fabrication 12214 w 79th terrace lenexa, kansas 66215 p. 785.650.3563 e. adam@apdstudios.com Troy & Eden Kearns owner 804 W 33rd St Kansas City, MO 64111 p. 702.556.4081 a. Troy Kearns e. troyjkearns@gmail.com Apex Engineering structural engineer 1625 Locust St Kansas City, MO 64108 p. 816.421.3222 a. Jason Gibson e. jason@ apex-engineers.com Kearns Custom Residence 6545 Standardbred Drive Kansas City, MO 64164 drawing title project no. sheet no. 2020.26 drawn by aap date 11.09.2020 project title release seal 01.15.2021 _ Permit Set 10.06.2021 _ Fndn. Revs. 11.08.2021 _ Lighting Plan 11.11.2021 _ Lighting Revs. 11.13.2021 _ Const. Revisions floor plan A3 seal
  • 6.
    1 FLOOR PLAN FIRST FLOORPLAN 1/4" = 1'-0" CONSTRUCTION NOTES PLAN NOTES SYMBOL LEGEND REIN. CONC. WALL w/ CONT. REIN. CONC. FTG. 2x6 WD. FRAMED WALL 2x4 WD. FRAMED WALL 6" WALL 3-CAR GARAGE 9'-8" CLG CONCRETE FLR BATH 4 9'-8" CLG TILE FLR MUDROOM 1 9'-8" CLG TILE FLR COVERED BREEZEWAY 8'-8"+/- CLG CONC. SLAB UP 17R TO STORAGE LOFT BUTLER'S PANTRY 9'-0" CLG HDWD FLR MUDROOM 10'-4"+/- CLG TILE FLR UP 3R KITCHEN 9'-0" CLG HDWD FLR DINING 11'-0" VAULT CLG HDWD FLR GREAT ROOM VAULT CLG UP FROM 11'-0" HDWD FLR OFFICE 11'-0" VAULT CLG HDWD FLR ENTRY 9'-0" CLG / VAULT HDWD FLR DN 18R POWDER ROOM 9'-0" CLG TILE FLR W.I.C. 9'-0" CLG HDWD FLR 18"dp LINENS BED 3 10'-0" VAULT CLG HDWD FLR BATH 2 9'-0" CLG TILE FLR BED 2 9'-0" CLG HDWD FLR W.I.C. 9'-0" CLG HDWD FLR M. BED VAULT UP FROM 7'-6" HDWD FLR M. BATH 9'-0" CLG TILE FLR M. CLOSET 1 9'-0" CLG CARPET LAUNDRY 9'-0" CLG TILE FLR DN 18R OUTDOOR TERRACE OPEN TO SKY CONC. SLAB MOTOR COURT CONC. SLAB 77'-1 7 8 " 51'-4" 14'-8" 20'-4" 12'-0" 12'-0" 7'-0" 136'-67 8" 22'-0" 24'-0" 90'-67 8" 11'-0" 11'-0" 5'-0" 16'-0" 22'-0" 6'-21 2" 1'-103 4" 19'-57 8" 4'-8" 12'-11 2" 3'-23 8" 8'-0" 8'-0" 4'-7" 6'-2" 6'-2" 5'-1" 5'-3" 5'-3" 1'-11" 1'-0" 6'-9" 7'-8" 7'-2" 5" 3'-9" 7" 77'-1 7 8 " 19'-0 5 8 " 16'-5 5 8 " 7'-0" 3'-2" 10'-5 1 2 " 45'-8 1 4 " 10'-5 1 2 " 136'-67 8" 44'-3" 46'-37 8" 22'-0" 24'-0" 5'-0" 16'-0" 11'-0" 11'-0" 1'-3" 11'-0" 11'-0" 8'-0" 8'-0" 5'-3" 5'-9" 5'-6" 5'-6" 6'-61 2" 11'-13 8" 3'-8" 14'-0" 11'-0" 2'-0 1 2 " 9'-9" 6'-5" 6'-5" 7'-9" 8'-5" 16'-2" 12'-10" 11'-9 1 2 " 2 ' - 6 " 8 ' - 6 " 8 ' - 6 " 2 ' - 6 " 2 2 ' - 0 " 5'-10" 5'-2" 11'-0" 7'-0" 7'-0" 14'-0" 5'-0" 8'-8" 5'-2" 3'-8" 22'-6" 3'-9" 4'-4" 3'-4" 3'-4" 40'-4" 1'-8" 8" 1'-4" 20'-0" 1'-4" 8" 5'-0" 1'-4" 1'-0" 2'-0" 4'-0" 1'-0" 6'-6" 9'-0" 3'-0" 9'-0" 3'-0" 9'-0" 2'-6" 8'-0" 42'-0" 51'-4" 90'-67 8" 11'-1 7 8 " 49'-21 2" 41'-43 8" 30° 56'-1 7 8 " 21'-0" 6'-10" 3'-4" 6'-2" 9'-4" 3'-6" 1'-4" 8" 4'-2" 4'-4" 12'-0" 10" 18'-10" 6'-8" 2'-4" 3'-6" 1'-5" 4'-4" 6'-3" 10" 1'-0" 9'-1" 1'-8" 3'-10" 1'-2" 3'-5" 1'-0" 10" 3'-21 2" 12'-8" 6" 2'-10" 3'-0" 2'-6" 6" 12'-0" 10'-11" 3'-4" 2'-10" 6" 1'-6" 1'-6" 16'-10" 1'-6" 6'-6" 5'-1" LANDING 7'-1" 1'-10" 3'-0" 1'-7" 6'-6" 6'-7" 8T @ 11"ea = 7'-4" 1'-2 1 8 " 3'-3" 2'-2" 2'-2" 4'-7" 6'-3" 5'-11" 3'-9" 1'-1" 8" 6'-11" 4'-3" 5'-10" 4 ' - 0 " 3'-7" 2'-10" 4'-4" 7'-2" 4'-1" 6'-1 1 2 " 6'-2" 5'-0" 2'-10" 4'-8" 5'-2" 11'-6" 2'-8" 4'-0" 10" 10" 10" 3'-4" 6 ' - 8 " 4 ' - 4 " 4 ' - 4 " 6 ' - 8 " 1 2 ' - 8 " 3 ' - 4 " 7 ' - 4 " 1 ' - 0 " 6 ' - 2 " 5 ' - 1 0 " 7 ' - 4 " 2'-10" 5'-0" 3 0 7 0 S.C. SOLID CORE 2 0 6 F . V . 0 26 70 30 70 3 4 VIEW EXT. DR. 30 70 3 4 VIEW EXT. DR. 3 0 7 C.O. 0 3 0 7 C.O. 0 P R 2 0 7 0 PR 30 80 3 4 VIEW ARCH TOP EXT. DR. PR 26 70 FULL VIEW EXT. DR. w/ 24"h TRANSOM 2 4 7 0 2 8 7 0 2 4 7 0 2 0 7 0 P R 2 0 7 0 2 0 7 0 2 8 7 0 2 0 7 0 2 0 7 0 2 0 7 0 2 0 7 0 P R 2 0 7 0 2 0 7 0 2 0 7 0 2 0 7 0 2 8 7 C . O . 0 26 20 PICT 26 56 CSMT 9'-0" HD. HT. 36 20 PICT 36 56 PICT 9'-0" HD. HT. 26 20 PICT 26 56 CSMT 9'-0" HD. HT. (2) 2 6 5 6 FIXED 7'-0" HD. HT. 45'-0" 14'-8" 1'-4" 8'-0" 10'-6" 10'-6" 3'-10" 5'-6" 5'-4" 1'-0" 2'-6" 3'-6" 1'-0" 2'-4" 5'-10" 2'-4" 5'-3" 5'-3" 3'-0" 3'-21 2" (2) 2 6 5 6 FIXED 7'-0" HD. HT. (2) 26 20 PICT (2) 26 56 FIXED 9'-0" HD. HT. (2) 26 20 PICT (2) 26 56 FIXED 9'-0" HD. HT. (2) 26 20 PICT 7'-0" HD. HT. 2 6 2 0 PICT 8'-0" HD. HT. 2 6 2 0 PICT 8'-0" HD. HT. (2) 2 6 2 0 PICT 8'-0" HD. HT. 2 6 2 0 PICT 2 6 5 6 CSMT 9'-0" HD. HT. 3 6 2 0 PICT 3 6 5 6 PICT 9'-0" HD. HT. 2 6 2 0 PICT 2 6 5 6 CSMT 9'-0" HD. HT. (2) 2 6 5 6 CSMT 7'-0" HD. HT. 2 6 2 0 P I C T 7 ' - 0 " H D . H T . 2 6 2 0 P I C T 7 ' - 0 " H D . H T . 2 6 2 0 P I C T 7 ' - 0 " H D . H T . (3) 2 6 2 0 PICT 9'-0" HD. HT. 2 6 2 0 PICT 2 6 5 6 CSMT 9'-0" HD. HT. 2 6 2 0 PICT 2 6 5 6 FIXED 9'-0" HD. HT. 2 6 2 0 PICT 2 6 5 6 CSMT 9'-0" HD. HT. 2 0 3 6 CSMT 7'-0" HD. HT. (2) 26 56 FIXED 7'-0" HD. HT. 26 20 PICT 26 56 CSMT 9'-0" HD. HT. 26 20 PICT 26 56 FIXED 9'-0" HD. HT. 26 20 PICT 26 56 CSMT 9'-0" HD. HT. 2 6 5 6 CSMT 7'-0" HD. HT. 2 6 5 6 CSMT 7'-0" HD. HT. 2 0 3 6 CSMT 7'-0" HD. HT. 2 0 3 6 CSMT 7'-0" HD. HT. 26 20 PICT 26 56 CSMT 9'-0" HD. HT. 26 20 PICT 26 56 FIXED 9'-0" HD. HT. 26 20 PICT 26 56 CSMT 9'-0" HD. HT. 9 0 8 0 ARCH TOP INSULATED OHD 9 0 8 0 ARCH TOP INSULATED OHD 9 0 8 0 ARCH TOP INSULATED OHD 26 20 PICT 26 56 CSMT 9'-0" HD. HT. 26 20 PICT 26 56 FIXED 9'-0" HD. HT. 26 20 PICT 26 56 CSMT 9'-0" HD. HT. 26 40 PICT (IN ATTIC, FROST) 15'-10" HD. HT. 26 40 PICT (IN ATTIC, FROST) 15'-10" HD. HT. GENERAL PLAN NOTES 1. FIRE RATED SELF CLOSING DOOR TO GARAGE MUDROOM FROM GARAGE 2. 5 8" TYPE-X GWB WALLS AND CEILING IN GARAGE - MUD, TAPE, FINISH IN PREP FOR PAINT 3. 5/8" TYPE-X GWB COLUMNS AND BEAMS 4. PROVIDE EXHAUST FAN IN BATHROOMS 5. PROVIDE SMOKE DETECTORS IN ACCORDANCE WITH IRC REQUIREMENTS 5.1. ONE SMOKE ALARM AT EACH LEVEL OF RESIDENCE 5.2. ONE SMOKE ALARM IN EACH BEDROOM 5.3. ONE SMOKE ALARM OUTSIDE OF EACH SLEEPING AREA 6. PROVIDE CARBON MONOXIDE DETECTORS 7. CONFIRM DOOR HEIGHT w/ BUILDER PRIOR TO ORDER 8. ALL EXTERIOR WALLS ARE 2x6 CONSTRUCTION 9. WINDOWS SHALL HAVE FALL PROTECTION PER IRC SECTION 312.2.4 10. HOUSE WILL BE PROVIDED WITH A 'UFER' GROUND PER IRC SECTION 3608.1.5 11. OVERHEAD GARAGE DOORS MUST MEET DASMA REQUIREMENTS FOR 115mph. 12. ALL HEADERS NOT LABELED SHALL BE MIN (2) #2 2x10 DFL 13. DBL ALL JOISTS UNDER ISLAND 14. ICE AND WATER SHIELD AS REQUIRED PER IRC 15. ALL FUEL BURNING APPLIANCES SHALL BE HIGH EFFICIENCY AND DIRECTLY VENTED TO OUTSIDE SD CO TRASH/ RECYCLE BIN STORAGE 36x54 TILED SHOWER w/ 12"h TILED CURB 18"dp X 18"h BENCH 36" VANITY MECH. EQUIP. UNDER STAIR OPEN RAILING WALL UNDER STAIR PLANTING BED PLANTING BED PLANTING BED PLANTING BED S4S WD BRACKET, TYP. ROOF OVERHANG ABOVE S4S WD BRACKET, TYP. S4S WD BRACKET, TYP. S4S WD BRACKET, TYP. STACKED LIMESTONE RETAINING WALL S T A C K E D L I M E S T O N E R E T A I N I N G W A L L WARP MOTOR COURT SLAB TO DRAIN LOW CUBBIES w/ UPR SHLVS/ HKS STEP TURNS CORNER OPEN SHLVING LOW CUBBY w/ UPR SHLVS 12"h LOW CAB/ BENCH 12"h LOW CAB/ BENCH BKSHLVS BKS BKS PROVIDE FLOOR OUTLET AT EACH END OF DECK AREA 8x8 POST w/ 1x1 TOP TRIM & 1x6 BASE TRIM, TYP. 5" REIN. CONC. PORCH SLAB, SLOPED TO DRAIN 11'-6"w X 2'-0"dp STEPS DOWN TO WALKWAY DROPPED BEAM DROPPED BEAM COVERED PORCH SLOPED T&G CLG CONC. SLAB OPEN RAILING VAULT CLG ABOVE VAULT CLG ABOVE 9'-0" HDR 9'-0" HDR 10"dp FAUX BEAM 6"dp FAUX BEAM 6"dp FAUX BEAM 6"dp FAUX BEAM 6"dp FAUX BEAM 11'-0" PLATE LINE 11'-0" PLATE LINE 15"w PANT. BUILT-IN MICRO./ WARM DRWR 30"w PANTRY 48"w BUILT-IN REFR. 15"w PANT. 36" GAS RANGE w/ HOOD UPR CABS LWR CABS UPR CABS LWR CABS 36"w REFR. 6"w COL. 6"w COL. LWR CABS UPR CABS LWR CABS 7'-0" HDR 9'-0" HDR 9'-0" HDR 36"w FARM FRONT SINK D/W TRASH 12"dp LWR CABS 120x54 ISLAND 3-1/2" LTWT. CONC. TOPPING SLAB o/ DRAINAGE MAT o/ WP MEMBRANE o/ 3 4" P.T. WD DECKING o/ SLOPED SLEEPERS o/ FLR JSTS 36" RAILING, TYP. 42"h COL. 42"h COL. 36" RAILING, TYP. LWR CABS w/ STONE TOP w/ UPR SHLVNG 48"x24" GAS FIREPLACE INSERT w/ LOG SET w/ MANTLE ABOVE OPEN RAILING WASH DRY CTOP o/ LAUND. SINK 1R/ 1S 4 8 " V A N I T Y 2R/ 1S SHLVS DRWRS w/ TOP 1R/ 1S 18" LIN. 24" LIN. 2R/ 1S CLG CLIP CLG CLIP C L G C L I P 120" VANITY 70x44 TILED SHOWER w/ 7'-0"h GL. ENCL. MAGAZINE RACK O P T . 5 4 " L I N E A R F / P w / T V A B V 8 " d p F A U X B M 4"dp FAUX BM 4"dp FAUX BM 4"dp FAUX BM 4"dp FAUX BM 7'-0" HDR U / C A B R E F R . U P R S H L V S 5 SHLVS 2 R / 1 S 39" VAN. CLG CLIP 7 ' - 0 " h W A L L 36x60 TUB/ SHWR w/ TILE SURROUND 39" VAN. 8 " d p F A U X B M 4"dp FAUX BM 4"dp FAUX BM 4"dp FAUX BM 4"dp FAUX BM 2R/ 1S 5 S H L V S FLOOR OUTLET FLOOR OUTLET SD CO SD SD SD SD SD CLG CLIPS (TYP. @ BOTH SIDES) 7 ' - 6 " P L A T E L I N E 7 ' - 6 " P L A T E L I N E 7 ' - 6 " P L A T E L I N E 7 ' - 6 " P L A T E L I N E 7'-6" PLATE LINE CO SD CONSTRUCTION NOTES STRUCTURAL NOTES EF EF EF EF EF 30x36 ATTIC ACCESS w/ INSUL. HATCH 2'-2" 2 A10 1 A10 1 A11 2 4 7 0 M. CLOSET 2 9'-0" CLG CARPET 10'-0" 7 ' - 0 " 4"dp FAUX BM 4"dp FAUX BM 2 8 6 8 FULL LITE EXTR. 7 ' - 4 " 24x12 LIN. 2'-6" 4 8 7 C . O . 0 9 0 8 0 ARCH TOP INSULATED OHD CONSTRUCTION SET Adam Anthony Pfeifer, NCARB apd_studios+ design | fabrication 12214 w 79th terrace lenexa, kansas 66215 p. 785.650.3563 e. adam@apdstudios.com Troy & Eden Kearns owner 804 W 33rd St Kansas City, MO 64111 p. 702.556.4081 a. Troy Kearns e. troyjkearns@gmail.com Apex Engineering structural engineer 1625 Locust St Kansas City, MO 64108 p. 816.421.3222 a. Jason Gibson e. jason@ apex-engineers.com Kearns Custom Residence 6545 Standardbred Drive Kansas City, MO 64164 drawing title project no. sheet no. 2020.26 drawn by aap date 11.09.2020 project title release seal 01.15.2021 _ Permit Set 10.06.2021 _ Fndn. Revs. 11.08.2021 _ Lighting Plan 11.11.2021 _ Lighting Revs. 11.13.2021 _ Const. Revisions floor plan A4
  • 7.
    1 FRAMING PLAN GARAGE LOFTFLOOR FRAMING PLAN & MAIN HOUSE FIRST FLOOR CEILING FRAMING PLAN 1/4" = 1'-0" CONSTRUCTION NOTES PLAN NOTES SYMBOL LEGEND REIN. CONC. WALL w/ CONT. REIN. CONC. FTG. 2x6 WD. FRAMED WALL 2x4 WD. FRAMED WALL 6" WALL (2) 26 46 CSMT 7'-0" HD. HT. IN STRG LOFT (2) 26 46 CSMT 7'-0" HD. HT. IN STRG LOFT (3) 2 0 3 6 CSMT/ FIXED/ CSMT 6'-6" HD. HT. IN STRG LOFT (3) 2 0 3 6 CSMT/ FIXED/ CSMT 6'-6" HD. HT. IN STRG LOFT (3) 2 0 3 6 CSMT/ FIXED/ CSMT 6'-6" HD. HT. IN STRG LOFT CONSTRUCTION NOTES STRUCTURAL NOTES R STRUCTURAL NOTES: - ALL UNMARKED HEADERS MIN (2)#2-2x10 - ALL HEADERS AND BEAMS MIN #2 GRADE DF/L (OR EQ.) = BEARING WALL - SHIPLAP SIDING MUST BE FASTENED AT BOTH UNDERLAP AND OVERLAP - FASTEN RAFTERS TO CLG JOISTS w/ MINIMUM (4) 16d FACE NAILS AS PER IRC 802.5.2, TYP. BRACED WALL METHODOLOGY XXXX EXTERIOR BRACED WALLS: WSP METHOD: WOOD STRUCTURAL PANEL SHEATHING WITH A THICKNESS NOT LESS THAN 3 8" WITH MINIMUM SPAN RATING OF 24/0 FOR 16" OC STUD SPACING WITH 6d COMMON NAILS AT 6" OC EDGES AND 12" OC FIELD OR SHEATHING THICKNESS NOT LESS THAN 7 16" WITH MINIMUM SPAN RATING OF 24 16 FOR 24" OC SPACING WITH 8d COMMON NAILS AT 6" OC EDGES AND 12" OC IN FIELD. (NOTE: FRAMING MEMBERS 16" OC MAX,UNBLOCKED, AND WITH SHEATHING APPLIED DIRECTLY TO FRAMING MEMBERS) / / / / INTERIOR BRACED WALLS (REF 2-S4.0): GB METHOD: 1 2" MIN. GYPSUM BOARD OVER STUDS SPACED 24" MAX. FASTENED WITH No 6 - 11 4" TYPE 'W' OR 'S' DRYWALL SCREWS AT 7" OC EDGES AND FIELD ( MIN. 4'-0" SECTION FOR BOTH SIDES.) OR LIB METHOD: 1x4 WOOD FASTENED WITH (3) 8d COMMON NAILS OR SIMPSON / USP 16 GA. TYPE WB (OR EQUAL) STL. X-BRACE(S) AT 45° TO 60° ANGLES, MAXIMUM 16" OC STUD FASTENED PER MANUFACTURER'S SPECIFICATIONS. XXXX = EXTERIOR BRACED WALLS / / / / = INTERIOR BRACED WALLS (REF 2/S4.0) EC = END CONDITION (REF 2/S4.1 FOR CONT. SHEATHED BRACED WALL END CONDITIONS (2)2x6 (2)2x6 ( 2 ) # 2 - 2 x 1 0 (2)1-3/4"x9-1/4"LVL(FLUSH) (2)2x4 / / / / / / / / / / / / / / / / / / / / / / / / / / / / / / / L I B ( 8 ' - 0 " ) #2-2x6CJs @16"o.c. LIB(8'-0") /////////////////////////////// # 2 - 2 x 6 C J s @ 1 6 " o . c . # 2 - 2 x 6 R J s @ 1 6 " o . c . (2)#2-2x10 (2)2x4 ( 2 ) # 2 - 2 x 1 0 ( F L U S H ) ( 2 ) # 2 - 2 x 1 0 (2)2x6 (2)2x6 (3)#2-2x10 VAULT VAULT ( 2 ) # 2 - 2 x 1 0 ( 2 ) # 2 - 2 x 1 0 ( F L U S H ) #2-2x6CJs @16"o.c. (2)#2-2x10 (2)2x4 ( 2 ) # 2 - 2 x 1 0 ( F L U S H ) ( 2 ) # 2 - 2 x 1 0 #2-2x6CJs @16"o.c. VAULT VAULT (2)2x6 (2)2x6 (3)#2-2x10 FULLHEIGHTSTUD@TALL GABLEWALLS,TYP. FULLHEIGHTSTUD@TALL GABLEWALLS,TYP. / / / / / / / / / / / / / / / / / / / / / / / / / / L I B ( 6 ' - 0 " ) # 2 - 2 x 6 C J s @ 1 6 " o . c . # 2 - 2 x 6 C J s @ 1 6 " o . c . //////////////////////////////////////////////////////////////////////////// LIB # 2 - 2 x 6 C J s @ 1 6 " o . c . (2)2x4 (2)#2-2x10(FLUSH) (3)2x4 LI B (8' - 0") / / / / / / / / / / / / / / / / / / / / / / / / / / / / / / / ( 2 ) 2 x 4 (2) #2- 2x10 / / / / / / / / / / / / / / / / / / / / / / / / / / LI B (6' - 0") ( 2 ) 2 x 6 V A U L T VAULT (2)2x6 ( 2 ) 2 x 6 ( 2 ) 2 x 6 ( 2 ) 2 x 6 (3)#2-2x12 #2- 2x6 CJs @ 16"o. c . (3)#2-2x12 (3)#2-2x10 (2) #2- 2x10 (2) #2- 2x10 (2)#2-2x10CANTIw/800lbMIN. CAPACITYCLIP@EA.BRG.POINT (2)#2-2x10CANTIw/ 800lbMIN.CAPACITY CLIP@EA.BRG.POINT 8x8TRTDPOSTON SIMPSONABU88ZPOST w/ 5 8"ØANCHORBOLTw/ 6"minEMBED,TYP. 8x8TRTDPOSTON SIMPSONABU88ZPOST w/ 5 8"ØANCHORBOLTw/ 6"minEMBED,TYP. #2- 2x6 CJs @ 16"o. c . SEEROOF PLAN (2) #2- 2x10 #2-2x6CJs @16"o.c. R R (3) #2- 2x10 ( 2 ) 2 x 6 ( 2 ) 2 x 6 ( 2 ) 2 x 4 /////////////////////////////////////////// LIB(10'-0") (3) 1-3/ 4 "x16" LVL (SPAN: 19' - 6" +/ - ) #2- 2x8 CJs @ 16"o. c . THI S AREA ( 3 ) 2 x 6 (2)#2-2x12 #2-2x6CJs @16"o.c. R R ( 2 ) 2 x 6 (2) 1-3/ 4 "x11-1/ 4 " LVL (FLUSH) SPAN: 12' - 6"+/ - ( 3 ) 2 x 6 (2) #2- 2x10 LI B (6' - 0") / / / / / / / / / / / / / / / / / / / / / / / / / / #2- 2x6 CJs @ 16"o. c . #2- 2x6 CJs @ 16"o. c . ( 3 ) 2 x 4 (2)1-3/4"x11-7/8"LVL (2)1-3/4"x11-7/8"LVL #2- 2x6 CJs @ 16"o. c . R R (2)#2-2x12(UPSET) ( 3 ) 2 x 6 (3) 1-3/ 4 "x9-1/ 4 " LVL (FLUSH) #2- 2x10 FJs @ 16"o. c . (2)#2-2x12(FLUSH) (2)2x6 ( 2 ) 2 x 6 (2)2x6 ( 2 ) 2 x 6 ( 2 ) 2 x 6 (2)2x6 (2) #2- 2x12 CONT. (SPAN 13' - 6"+/ - ) (2) #2- 2x12 (2) #2- 2x12 CONT. (SPAN 15' - 0"+/ - ) PFH 1 S4.0 PFH 1 S4.0 PFH 1 S4.0 PFH 1 S4.0 2 FRAMING PLAN GARAGE LOFT CEILING FRAMING PLAN 1/4" = 1'-0" V A U L T V A U L T VAULT VAULT VAULT VAULT ( 3 ) 2 x 4 ( 3 ) 2 x 4 ( 3 ) 2 x 4 ( 2 ) 2 x 6 GENERAL PLAN NOTES 1. FIRE RATED SELF CLOSING DOOR TO GARAGE MUDROOM FROM GARAGE 2. 5 8" TYPE-X GWB WALLS AND CEILING IN GARAGE - MUD, TAPE, FINISH IN PREP FOR PAINT 3. 5/8" TYPE-X GWB COLUMNS AND BEAMS 4. PROVIDE EXHAUST FAN IN BATHROOMS 5. PROVIDE SMOKE DETECTORS IN ACCORDANCE WITH IRC REQUIREMENTS 5.1. ONE SMOKE ALARM AT EACH LEVEL OF RESIDENCE 5.2. ONE SMOKE ALARM IN EACH BEDROOM 5.3. ONE SMOKE ALARM OUTSIDE OF EACH SLEEPING AREA 6. PROVIDE CARBON MONOXIDE DETECTORS 7. CONFIRM DOOR HEIGHT w/ BUILDER PRIOR TO ORDER 8. ALL EXTERIOR WALLS ARE 2x6 CONSTRUCTION 9. WINDOWS SHALL HAVE FALL PROTECTION PER IRC SECTION 312.2.4 10. HOUSE WILL BE PROVIDED WITH A 'UFER' GROUND PER IRC SECTION 3608.1.5 11. OVERHEAD GARAGE DOORS MUST MEET DASMA REQUIREMENTS FOR 115mph. 12. ALL HEADERS NOT LABELED SHALL BE MIN (2) #2 2x10 DFL 13. DBL ALL JOISTS UNDER ISLAND 14. ICE AND WATER SHIELD AS REQUIRED PER IRC 15. ALL FUEL BURNING APPLIANCES SHALL BE HIGH EFFICIENCY AND DIRECTLY VENTED TO OUTSIDE SD CO (2)#2-2X12 ( 2 ) 2 x 6 ( 2 ) 2 x 6 (2) 1-3/ 4 " x 11-7/ 8 " LVL 3 " S C H . 4 0 S T L . C O L . , T Y P . 3 " S C H . 4 0 S T L . C O L . , T Y P . (2) 1-3/ 4 " x 11-7/ 8 " LVL (2) 1-3/ 4 " x 11-7/ 8 " LVL (B. O . BEAM @ 10' - 0" +/ - ) (2) #2- 2x10 (2) #2- 2x10 (2) #2- 2x10 7' - 4" BRG. HT. 7' - 4" BRG. HT. 7' - 4" BRG. HT. 7' - 4" BRG. HT. (2) 1-3/ 4 " x 11-7/ 8 " LVL ( 3 ) 2 x 6 ( 2 ) 2 x 6 (2)2x6 (2)#2-2X12 5' - 6" KNEE WALL (NO RAFTER BEARI N G @ THI S WALL) 5' - 6" KNEE WALL (NO RAFTER BEARI N G @ THI S WALL) 5' - 6" KNEE WALL (NO RAFTER BEARI N G @ THI S WALL) 15'-10" 11'-0" 13'-6" VAULT VAULT VAULT VAULT 5' - 6" KNEE WALL (NO RAFTER BEARI N G @ THI S WALL) ( 2 ) 2 x 6 #2- 2x6 CJs @ 16"o. c . (2)#2-2x10 #2- 2x10 FJs @ 16"o. c . (2)#2-2x10 ( 2 ) 2 x 6 ( 2 ) 2 x 6 (2) 1-3/ 4 "x9-1/ 4 " LVL (FLUSH) (2) 1-3/ 4 "x9-1/ 4 " LVL (FLUSH) ( 2 ) 2 x 6 W12x30 or W14x26 W12x30 or W14x26 (4)2x6 (4)2x6 ( 4 ) 2 x 6 ( 4 ) 2 x 6 #2- 2x10 FJs @ 16"o. c . #2- 2x10 FJs @ 16"o. c . ( 2 ) 2 x 6 ( 2 ) 2 x 6 DBL JOI S T DBL JOI S T DBL JOI S T DBL JOI S T DBL JOI S T DBL JOI S T (2)#2-2x10 (FLUSH) (2)#2-2x10 (FLUSH) (2)#2-2x10 (FLUSH) (2)#2-2x10 (FLUSH) (2)#2-2x10 (FLUSH) (2)#2-2x10 (FLUSH) #2- 2x10 FJs @ 16"o. c . #2- 2x10 FJs @ 16"o. c . #2- 2x10 FJs @ 16"o. c . #2- 2x10 FJs @ 16"o. c . #2- 2x10 FJs @ 16"o. c . #2- 2x10 FJs @ 16"o. c . DBL JOI S T DBL JOI S T (2)#2-2x10 (FLUSH) 2 A10 2 A10 1 A10 1 A11 ( 3 ) 1 - 3 / 4 x 5 - 1 / 2 " L V L H D R CONSTRUCTION SET Adam Anthony Pfeifer, NCARB apd_studios+ design | fabrication 12214 w 79th terrace lenexa, kansas 66215 p. 785.650.3563 e. adam@apdstudios.com Troy & Eden Kearns owner 804 W 33rd St Kansas City, MO 64111 p. 702.556.4081 a. Troy Kearns e. troyjkearns@gmail.com Apex Engineering structural engineer 1625 Locust St Kansas City, MO 64108 p. 816.421.3222 a. Jason Gibson e. jason@ apex-engineers.com Kearns Custom Residence 6545 Standardbred Drive Kansas City, MO 64164 drawing title project no. sheet no. 2020.26 drawn by aap date 11.09.2020 project title release seal 01.15.2021 _ Permit Set 10.06.2021 _ Fndn. Revs. 11.08.2021 _ Lighting Plan 11.11.2021 _ Lighting Revs. 11.13.2021 _ Const. Revisions framing plan A5
  • 8.
    1 ROOF PLAN ROOF FRAMINGPLAN 1/4" = 1'-0" CONSTRUCTION NOTES PLAN NOTES SYMBOL LEGEND REIN. CONC. WALL w/ CONT. REIN. CONC. FTG. 2x6 WD. FRAMED WALL 2x4 WD. FRAMED WALL 6" WALL 16:12 PITCH -SLASH IS TOP END OF BRACE -CIRCLE IS BOTTOM END OF BRACE DENOTES BEARING WALL DENOTES PURLIN DENOTES BEARING STRUCTURE NOTE: CODE MINIMUM ALLOWS FOR A RAFTER DEFLECTION OF L/180 TOTAL LOAD / / = ROOF BRACE/STRUT (PER CHART) -SLASH IS TOP END OF BRACE -ARROW IS BEARING LOCATION = PURLIN STRUTS AT 48" OC (PER CHART) U.N.O. #2-2x6 AT 24" OC 11'-7" RAFTERS SPACING MAX HORIZ. CLEARSPAN #2-2x6 AT 16" OC 14'-2" #2-2x8 AT 24" OC 14'-8" #2-2x8 AT 16" OC 17'-11" #2-2x10 AT 24" OC 17'-10" #2-2x10 AT 16" OC 21'-11" CODE MINIMUM HIGHER PERFORMANCE #2-2x6 AT 24" OC 8'-6" RAFTERS SPACING MAX HORIZ. CLEARSPAN #2-2x6 AT 16" OC 9'-9" #2-2x8 AT 24" OC 11'-3" #2-2x8 AT 16" OC 12'-9" #2-2x10 AT 24" OC 14'-3" #2-2x10 AT 16" OC 16'-3" APEX ENGINEERS, INC. RECOMMENDED DEFLECTION = L/360 LIVE LOAD, L/240 TOTAL LOAD (2)2x4 (1)2x4 AND (1)2x6 (1)2x6 AND (1)2x8 (2)2x6 AND (1)2x8 CONSULT ARCH ENGR PURLIN STRUT MAX PURLIN STRUT LENGTH 8'-0" 12'-0" 20'-0" 30'-0" >30'-0" *EACH END OF STRUT SHALL BE FASTENED WITH MIN (3)8d OR (2)16d NAILS *RIDGE BRACERS ARE SAME AS PURLIN BRACES-SPACING, SIZE, CONFIGURATION, AND INSTALLATION (SEE PURLIN BRACE NOTES ABOVE) *HIP AND VALLEY BRACES ARE THE SAME AS PURLINS SIZE, CONFIGURATION, AND INSTALLATION (SEE PURLIN BRACE NOTES ABOVE) *RIDGE BOARDS ARE (UNLESS OTHERWISE NOTED) #2-2x10 UP TO 9:12 PITCH #2-2x12 OVER 9:12 PITCH *ALL HIPS AND VALLEYS ARE (UNLESS OTHERWISE NOTED) #2-2x10 UP TO 9:12 PITCH #2-2x12 OVER 9:12 PITCH *PURLINS ARE 2x6 MIN - PURLIN STRUTS ARE AT 4'-0" OC - PURLIN STRUTS SHALL BE INSTALLED AT NOT LESS THAN A 45 DEGREE ANGLE WITH THE HORIZONTAL - ALL PURLIN STRUTS SHALL HAVE A MAX UNBRACED LENGTH OF 8'-0" - PURLIN STRUTS SHALL BE CONSTRUCTED IN A "T" CONFIGURATION AND PER THE FOLLOWING CHART: 1. THIS IS AN ENGINEERED ROOF STRUCTURE DESIGNED FOR COMPLIANCE WITH IRC 802.3. BUILD AS SHOWN WITH NO DEVIATIONS. 2. ALL HIPS ARE DESIGNED TO BE CONTROLLED BY BENDING. 3. SHEAR AT BEARING WITH MIN 5-1/2" DEPTH DOES NOT CONTROL DESIGN. FOR VALLEYS REF 4/S3.2. 16:12 PITCH 16:12 PITCH 8:12 PITCH 8:12 PITCH 8:12 PITCH 8:12 PITCH 8:12 PITCH 8:12 PITCH 8:12 PITCH 16:12 PITCH 16:12 PITCH 16:12 PITCH 16:12 PITCH 16:12 PITCH 8:12 PITCH 8:12 PITCH 8:12 PITCH 8:12 PITCH 8:12 PITCH 8:12 PITCH 2.75:12 PITCH 2:12 PITCH 2:12 PITCH 2:12 PITCH 16:12 PITCH 16:12 PITCH 8:12 PITCH 8 : 1 2 P I T C H 8 : 1 2 P I T C H 8 : 1 2 P I T C H 8 : 1 2 P I T C H 16+/-:12 PITCH 16+/-:12 PITCH 16+/-:12 PITCH 16+/-:12 PITCH 8:12 PITCH 6 : 1 2 P I T C H 6 : 1 2 P I T C H 6 : 1 2 P I T C H 6 : 1 2 P I T C H RIDGE RIDGE RIDGE RIDGE H I P V A L L E Y V A L L E Y V A L L E Y V A L L E Y V A L L E Y V A L L E Y H I P V A L L E Y V A L L E Y V A L L E Y ARCHED EYEBROW V A L L E Y V A L L E Y V A L L E Y H I P RIDGE RIDGE VALLEY VALLEY VA LL EY VA LL EY CONSTRUCTION NOTES STRUCTURAL NOTES 1'-0" TYP. 5" TYP. 1'-0" 1'-0" 1'-0" 8'-0" 1'-0" 1'-0" 1'-0" 1'-0" 1'-0" 5" 5" 1'-0" TYP. 7" 1 ' - 0 " 1'-0" 1 ' - 0 " 1'-0" 5 " 1'-0" 5 " 1 ' - 0 " 3" TYP. 3" TYP. 9'-0" 1'-0" 1 ' - 0 " 1'-0" 5 " 1'-0" 5 " 1 ' - 0 " 1 ' - 0 " 1'-0" 1 ' - 0 " 1'-0" 2'-0" 2'-8" 5'-1" 3'-6" 4'-13 4" 7'-81 2" 11'-03 4" ASPHALT COMPOSITION SHINGLES, TYP. ASPHALT COMPOSITION SHINGLES, TYP. STANDING SEAM METAL STANDING SEAM METAL STANDING SEAM METAL STANDING SEAM METAL STANDING SEAM METAL STANDING SEAM METAL STANDING SEAM METAL STANDING SEAM METAL STANDING SEAM METAL STANDING SEAM METAL STANDING SEAM METAL STANDING SEAM METAL STANDING SEAM METAL STANDING SEAM METAL STANDING SEAM METAL 5" HALF ROUND GUTTER & ROUND D.S. CENTERED ON POST 1. PROVIDE CONTINUOUS INSULATION BAFFLES ABOVE INSULATION AT VAULTED CEILINGS TO ALLOW 2" OF FREE AIR FLOW FROM VENTED SOFFIT TO HIGH VENTS 2. APPROX. ROOF AREA = 4728 SQ. FT. 3. GUTTERS TO BE 5" HALF ROUND OR LARGER AS REQ'D BY RAINFALL AMOUNT w/ 4" ROUND DOWNPOUTS PIPED TO DRAIN TILE OR DRAINED DIRECTLY TO DAYLIGHT. ROOF FRAMING NOTES · ROOF DESIGNED FOR LIGHT ROOF COVERING ·· 30psf TOTAL LOAD [10psf DL, 20psf LL (SL)] · ROOF SYSTEM IS DESIGNED TO MEET REQUIREMENTS OF IRC 802 · *RAFTERS (HEM-FIR, DOUG-FIR, OR EQUAL): ·· SEE SPAN CHARTS BELOW 5" HALF ROUND GUTTER & ROUND D.S. 5" HALF ROUND GUTTER & ROUND D.S. 5" HALF ROUND GUTTER & ROUND D.S. CENTERED BETWEEN S4S WD BRACKETS 5" HALF ROUND GUTTER & ROUND D.S. CENTERED BETWEEN DORMERS AND AT CORNERS 5" HALF ROUND GUTTER & ROUND D.S. 5" HALF ROUND GUTTER & ROUND D.S. 5" HALF ROUND GUTTER & ROUND D.S. 5" HALF ROUND GUTTER & ROUND D.S. 5" HALF ROUND GUTTER & ROUND D.S. CENTERED BETWEEN DORMERS AND AT CORNERS 5 " H A L F R O U N D G U T T E R & R O U N D D . S . 16:12 PITCH ALL RIDGES ALIGN ROOF FRAMING NOTES · ROOF DESIGNED FOR LIGHT ROOF COVERING ·· 30psf TOTAL LOAD [10psf DL, 20psf LL (SL)] · ROOF SYSTEM IS DESIGNED TO MEET REQUIREMENTS OF IRC 802 · *RAFTERS (HEM-FIR, DOUG-FIR, OR EQUAL): ·· SEE SPAN CHARTS BELOW FASTEN RAFTERS TO CLG JOISTS w/ MINIMUM (4) 16d FACE NAILS AS PER IRC 802.5.2, TYP. R T R I P L E R A F T E R T R I P L E R A F T E R #2- 2x10 @ PITCH BREAK 1 - 3 / 4 " x 1 4 " L V L S T R U C T U R A L R I D G E DBL RAFTER DBL RAFTER DBL RAFTER DBL RAFTER DBL RAFTER DBL RAFTER 1 - 3 / 4 " x 1 8 " L V L S T R U C T U R A L R I D G E DBL RAFTER OVERLAY OVERLAY OVERLAY OVERLAY ( 2 ) 1 - 3 / 4 " x 9 - 1 / 2 " L V L ( T O P F L U S H ) ( 2 ) 1 - 3 / 4 " x 9 - 1 / 2 " L V L ( T O P F L U S H ) #2- 2x10 @ PITCH BREAK T R I P L E R A F T E R T R I P L E R A F T E R T R I P L E R A F T E R T R I P L E R A F T E R #2- 2x10 @ PITCH BREAK #2- 2x10 @ PITCH BREAK / / / PURLIN DBL RAFTER OVERLAY 2"x7-1/4" BUILT-UP CURVED RAFTERS, GLUE & NAIL @ 4" VARIANCE DBL RAFTER DBL RAFTER DBL RAFTER DBL RAFTER OVERLAY DORMER (2) 1-3/4"x16" LVL STRUCTURAL RIDGE DBL RAFTER OVERLAY RAFTER TIED RIDGE R R OVERLAY / / / / TRIPLE RAFTER / / / / / OVERLAY R R RAFTER TIED RIDGE RAFTER TIED RIDGE R R DBL RAFTER DBL RAFTER DBL RAFTER DBL RAFTER #2- 2x10 @ PITCH BREAK DBL RAFTER DBL RAFTER #2- 2x10 @ PITCH BREAK DBL RAFTER DBL RAFTER #2- 2x10 @ PITCH BREAK OVERLAY EXTEND LOW PITCH TO BEAM FLUSH IN LOFT 2 A10 1 A10 1 A11 CONSTRUCTION SET Adam Anthony Pfeifer, NCARB apd_studios+ design | fabrication 12214 w 79th terrace lenexa, kansas 66215 p. 785.650.3563 e. adam@apdstudios.com Troy & Eden Kearns owner 804 W 33rd St Kansas City, MO 64111 p. 702.556.4081 a. Troy Kearns e. troyjkearns@gmail.com Apex Engineering structural engineer 1625 Locust St Kansas City, MO 64108 p. 816.421.3222 a. Jason Gibson e. jason@ apex-engineers.com Kearns Custom Residence 6545 Standardbred Drive Kansas City, MO 64164 drawing title project no. sheet no. 2020.26 drawn by aap date 11.09.2020 project title release seal 01.15.2021 _ Permit Set 10.06.2021 _ Fndn. Revs. 11.08.2021 _ Lighting Plan 11.11.2021 _ Lighting Revs. 11.13.2021 _ Const. Revisions roof plan A6
  • 9.
    1 BUILDING ELEVATION FRONT (NORTH)ELEVATION 1/4" = 1'-0" 2 BUILDING ELEVATION RIGHT (NORTHWEST) ELEVATION 1/4" = 1'-0" ELEVATION DIAGRAM KEY E L E V A T I O N D I A G R A M K E Y ELEVATION NOTES 8:12 PITCH t/ FTNG - EL: 924.5' t/ FNDN 1ST FLR PL. LN. t/ 2ND SUBFLR 3'-6" 10'-0" 10" RAFTER BRG. LN. 15'-7 1 8 " 3" 26'-5 1 8 " t/ FTG - EL: 919.0' 1ST FLR BRG. LN. t/ 1ST SUBFLR 1ST FLR PL. LN. t/FNDN t/ FTG - EL: 915.0' 4'-0" 3'-0" 7'-0" 6'-0" 1'-6 5 8 " 9'-0" 8'-1 3 4 " 24'-8 3 8 " 10'-0" DORMER BRG. LN. 7'-6" BEDROOM PL. LN. 7'-6" STAIR PL. LN. 8'-1 1 2 " PORCH BRG. LN. 13'-6" ENTRY DORMER BRG. LN. ASPHALT COMPOSITION SHINGLE ROOFING 1x3 o/ 1x8 ENGINEERED WOOD FASCIA HALF ROUND GUTTER w/ ROUND D.S. 1x4 o/ 1x10 ENGINEERED WOOD FRIEZE BOARD o/ BLKNG STUCCO CORNER BEAD AT WINDOW, TYP. U.N.O. SLOPED SILL w/ KERFED DRIP EDGE S.M. FLASHING AT WDW HEAD w/ END DAM CEMENTITOUS STUCCO FINISH o/ BORAL 'DRAIN-N-DRY' SYNTHETIC LATH o/ DRAINABLE WRB SHEATHING TO EXTEND OVER FNDN JOINT 3" TYPICAL; SEAL SHEATHING TO CONCRETE AND EDGE OF SHEATHING ROUND DOWNSPOUT; CONFIRM MAT'L WITH OWNER THIN BRICK VENEER o/ BORAL 'DRAIN-N-DRY' SYNTHETIC LATH o/ DRAINABLE WRB DASHED LINE DENOTES t/ FNDN. EXTEND THIN BRICK DOWN TO WITHIN 6" OF FINISH GRADE THIN STONE WAINSCOT CAP 4'-0" WAINSCOT HEIGHT RIPPED ENG. WOOD TRIM w/ HARDWOOD SLOPED SILL w/ KERFED DRIP EDGE STANDING SEAM METAL ROOF, COLOR TBD 1x2 o/ 1x10 ENGINEERED WD FASCIA AT STEEP ROOF, TYP., STACKED LIMESTONE RETAINING WALL AT CIRCLE DRIVE 8" DEEP CORBEL WRAP IN THIN BRICK AT THIS LOCATION STANDING SEAM METAL ROOF, COLOR TBD THIN BRICK VENEER ENGINEERED BRICK SOLDIER COURSE, PROJECT 1 2" 20"h PREFIN. S.M. CHIMNEY SHROUD ENG. WD. TRIM w/ SLOPED SILL w/ KERF DRIP EDGE 1x3 o/ 1x6 ENG. WD. FASCIA STANDING SEAM METAL ROOF STUCCO CORNER BEAD AT WINDOW, TYP. w/ S.M. HEAD FLASHING w/ END DAM & SLOPED SILL w/ KERFED DRIP EDGE ASPHALT COMPOSITION SHINGLE ROOFING, TYP. PROJECT CORNER 1 2" w/ SOLDIER COURSE HEADER SLOPED BRICK VENEER SILL & SOLDIER COURSE HEAD 6'-9" 8'-0" CEMENTITOUS STUCCO FINISH o/ BORAL 'DRAIN-N-DRY' SYNTHETIC LATH o/ DRAINABLE WRB FOOTING STEP, RE: FNDN PLAN HALF ROUND GUTTER w/ ROUND D.S. o/ STACKED 1x3 & 1x8 ENG. WD. FASCIA HALF ROUND GUTTER w/ ROUND D.S. o/ STACKED 1x3 & 1x8 ENG. WD FASCIA 8x8 POST w 1x6 BASE &1x1 HEAD TRIM w/ DROPPED BEAM CEMENTITOUS STUCCO FINISH o/ BORAL 'DRAIN-N-DRY' SYNTHETIC LATH o/ DRAINABLE WRB STUCCO CORNER BEAD AT WINDOW, TYP. w/ S.M. HEAD FLASHING w/ END DAM & SLOPED SILL w/ KERFED DRIP EDGE R1'-1 1 8 " 9'-0" PLATE LINE 2'-4" 2'-3" R3'-2 7 8" 8"dp CORBEL, TYP. 1x2 o/ 1x10 ENGINEERED WD FASCIA AT STEEP ROOF, TYP., 2.75:12 PITCH 8:12 PITCH 8:12 PITCH 8:12 PITCH 6:12 PITCH 16:12 PITCH 12 16+/- 12 16 12 16 12 16 12 8 8:12 PITCH 2:12 PITCH 8:12 PITCH 1. ASPHALT COMPOSITION SHINGLES, TYP. UNLESS NOTED OTHERWISE. 2. CEMENTITIOUS STUCCO CLADDING TO BE INSTALLED OVER BORAL 'DRAIN-N-DRY' SYNTHETIC LATH w/ INTEGRAL DRAINAGE MAT o/ DRAINABLE WRB, OR APPROVED EQUAL. 3. ALL WOOD TRIM TO BE EITHER ENGINEERED WOOD AS MANUFACTURED BY LP PRODUCTS OR PVC MATERIAL BY VERSATEX OR EQUAL. 4. MANUFACTURED THIN BRICK/ STONE VENEER TO BE INSTALLED PER MANUFACTURER RECOMMENDED INSTALLATION PRACTICES TO INCLUDE VENTILATED DRAINABLE SYNTHETIC LATH WITH INTEGRAL DRAINAGE PLANE OVER A DRAINABLE WEATHER RESISTIVE BARRIER ATTACHED DIRECTLY TO SHEATHING. 5. PROVIDE S.M. FLASHING AT HEAD OF ALL WINDOWS AND HORIZONTALLY PROJECTING TRIM. WINDOW HEAD FLASHING TO INCLUDE BENT END DAM - NO OPEN SEAMS. 6. COUNTER FLASH BEHIND THIN BRICK/ STONE VENEER ONTO ROOF AND HOLD THIN STONE VENEER 2" ABOVE ROOFING PER MANUF. RECOMMENDATIONS. t/ FTNG - EL: 915.0' t/ FTNG - EL: 919.0' t/ FNDN t/ 1ST SUBFLR 1ST FLR PL. LN. t/ FTG - EL: 915.0' t/ BURIED FNDN t/ FNDN 1ST FLR BRG. LN. t/ 1ST SUBFLR M. BEDROOM PL. LN. 1ST FLR PL. LN. 4'-0" 9'-0" 1'-6 5 8 " 9'-0" 21'-10 3 4 " 11'-4 1 8 " 3'-0" 4'-0" 28'-8 3 8 " 1'-6 5 8 " 8'-0" 1'-0" 6'-0" DASHED LINE DENOTES FNDN WALL ELEVATED DECK, BEYOND CEMENTITOUS STUCCO FINISH o/ BORAL 'DRAIN-N-DRY' SYNTHETIC LATH o/ DRAINABLE WRB 8"dp FRAMED CORBEL; RE: 1/A7 FOR SIM. CONDITION & DIMS STUCCO CORNER BEAD AT WINDOW, TYP. w/ S.M. HEAD FLASHING w/ END DAM & SLOPED SILL w/ KERFED DRIP EDGE HALF ROUND GUTTER w/ ROUND D.S. o/ STACKED 1x2 & 1x10 ENG. WD. FASCIA ASPHALT COMPOSITION SHINGLE ROOFING STACKED LIMESTONE RETAINING WALL AT CIRCLE DRIVE, RE: SITE PLAN SHEET A0 HALF GUTTER w/ ROUND D.S. o/ STACKED 1x3 & 1x8 ENG. WD. FASCIA 1x4 o/ 1x10 ENG. WD. FRIEZE BOARD o/ BLKG THIN BRICK VENEER w/ WAINSCOT THIN STONE CAP, RE: 1/A7 FOR MORE INFO 8'-1 3 4 " 12 8 16+/-:12 PITCH 16+/-:12 PITCH 16:12 PITCH ALIGN ROOF RIDGES 4'-0" WAINSCOT HEIGHT 1 A10 A A11 CONSTRUCTION SET Adam Anthony Pfeifer, NCARB apd_studios+ design | fabrication 12214 w 79th terrace lenexa, kansas 66215 p. 785.650.3563 e. adam@apdstudios.com Troy & Eden Kearns owner 804 W 33rd St Kansas City, MO 64111 p. 702.556.4081 a. Troy Kearns e. troyjkearns@gmail.com Apex Engineering structural engineer 1625 Locust St Kansas City, MO 64108 p. 816.421.3222 a. Jason Gibson e. jason@ apex-engineers.com Kearns Custom Residence 6545 Standardbred Drive Kansas City, MO 64164 drawing title project no. sheet no. 2020.26 drawn by aap date 11.09.2020 project title release seal 01.15.2021 _ Permit Set 10.06.2021 _ Fndn. Revs. 11.08.2021 _ Lighting Plan 11.11.2021 _ Lighting Revs. 11.13.2021 _ Const. Revisions elevations A7
  • 10.
    1 BUILDING ELEVATION REAR (SOUTHWEST)ELEVATION 1/4" = 1'-0" 2 BUILDING ELEVATION REAR (SOUTH) ELEVATION 1/4" = 1'-0" ELEVATION DIAGRAM KEY ELEVATION DIAGRAM KEY ELEVATION NOTES 1. ASPHALT COMPOSITION SHINGLES, TYP. UNLESS NOTED OTHERWISE. 2. CEMENTITIOUS STUCCO CLADDING TO BE INSTALLED OVER BORAL 'DRAIN-N-DRY' SYNTHETIC LATH w/ INTEGRAL DRAINAGE MAT o/ DRAINABLE WRB, OR APPROVED EQUAL. 3. ALL WOOD TRIM TO BE EITHER ENGINEERED WOOD AS MANUFACTURED BY LP PRODUCTS OR PVC MATERIAL BY VERSATEX OR EQUAL. 4. MANUFACTURED THIN BRICK/ STONE VENEER TO BE INSTALLED PER MANUFACTURER RECOMMENDED INSTALLATION PRACTICES TO INCLUDE VENTILATED DRAINABLE SYNTHETIC LATH WITH INTEGRAL DRAINAGE PLANE OVER A DRAINABLE WEATHER RESISTIVE BARRIER ATTACHED DIRECTLY TO SHEATHING. 5. PROVIDE S.M. FLASHING AT HEAD OF ALL WINDOWS AND HORIZONTALLY PROJECTING TRIM. WINDOW HEAD FLASHING TO INCLUDE BENT END DAM - NO OPEN SEAMS. 6. COUNTER FLASH BEHIND THIN BRICK/ STONE VENEER ONTO ROOF AND HOLD THIN STONE VENEER 2" ABOVE ROOFING PER MANUF. RECOMMENDATIONS. t/ FTG - EL: 915.0' t/ BURIED FNDN 1ST FLR BRG. LN. t/ 1ST SUBLFLR 1ST FLR PL. LN. GREAT RM BRG. LN. t/ FTNG - EL: 915.0' t/ BURIED FNDN t/ FNDN 1ST FLR BRG. LN. t/ 1ST SUBFLR M. BEDROOM PL. LN. 1ST FLR PL. LN. 3'-0" 4'-0" 28'-8 3 8 " 1'-6 5 8 " 8'-0" 1'-0" 6'-0" 8'-1 3 4 " 3'-0" 10'-0" 1'-6 5 8 " 9'-0" 2'-0" 31'-10 3 4 " 9'-4 1 8 " 8'-0" M. BED. PL. LN. 7'-0" PL. LN. 2'-0" DRMR. PL. LN. 9'-0" ASPHALT COMPOSITION SHINGLE ROOFING 1x2 o/ 1x10 ENGINEERED WD FASCIA AT STEEP ROOF, TYP., HALF ROUND GUTTER w/ ROUND D.S. o/ STACKED 1x3 & 1x8 ENG. WD FASCIA 1x4 o/ 1x10 ENG. WOOD FRIEZE BOARD o/ BLOCKING STUCCO CORNER BEAD AT WINDOW, TYP. w/ S.M. HEAD FLASHING w/ END DAM & SLOPED SILL w/ KERFED DRIP EDGE CEMENTITOUS STUCCO FINISH o/ BORAL 'DRAIN-N-DRY' SYNTHETIC LATH o/ DRAINABLE WRB SHEATHING TO EXTEND OVER FNDN JOINT 3" TYPICAL; SEAL SHEATHING TO CONCRETE AND EDGE OF SHEATHING STANDING SEAM METAL ROOFING RIPPED ENG. WD. TRIM w/ SLOPED SILL w/ KERFED DRIP EDGE HALF ROUND GUTTER w/ ROUND D.S. PER OWNER WOOD STAIRS TO RAISED DECK ABOVE FLASH UNDER SHINGLES OVER METAL AT PITCH BREAK R1'-1 1 8 " t/ FTG - EL: 924.5' t/ FNDN 1ST FLR PL. LN. t/ 2ND SUBFLR t/ FTG - EL: 915.0' t/ BURIED FNDN 1ST FLR BRG. LN. t/ 1ST SUBFLR 1ST FLR PL. LN. t/ FTG - EL: 915.0' t/ BURIED FNDN 1ST FLR BRG. LN. t/ 1ST SUBFLR 1ST FLR PL. LN. GREAT RM. PL. LN. DRMR BRG. RAFTER BRG. LN. DRMR BRG. LN. T/ 1ST SUBFLR 3'-0" 10'-0" 1'-6 5 8 " 9'-0" 8'-1 3 4 " 28'-8 3 8 " 4'-0" 9'-6" 10" 3" 1'-3" 7'-4" 3'-0" 10'-0" 1'-6 5 8 " 9'-0" 2'-0" 9'-4 1 8 " 31'-10 3 4 " R3'-27 8" 12 16+/- ALIGN ROOF RIDGES 1x2 o/ 1x10 ENGINEERED WD FASCIA AT STEEP ROOF, TYP., STUCCO CORNER BEAD AT WINDOW, TYP. w/ S.M. HEAD FLASHING w/ END DAM & SLOPED SILL w/ KERFED DRIP EDGE DASHED LINE DENOTES ROOM PROFILE BEYOND 8"dp FRAMED CORBEL 2'-3" CEMENTITOUS STUCCO FINISH o/ BORAL 'DRAIN-N-DRY' SYNTHETIC LATH o/ DRAINABLE WRB DASHED LINE DENOTES t/ FNDN SHEATHING TO EXTEND OVER FNDN JOINT 3" TYPICAL; SEAL SHEATHING TO CONCRETE AND EDGE OF SHEATHING PROJECT CORNER 1 2" w/ SOLDIER COURSE HEADER HALF ROUND GUTTER w/ ROUND D.S. o/ STACKED 1x3 & 1x8 ENG. WD. FASCIA STACKED LIMESTONE RETAINING WALL, RE: SITE PLAN ON SHEET A0 STUCCO CORNER BEAD AT WINDOW, TYP. w/ S.M. HEAD FLASHING w/ END DAM & SLOPED SILL w/ KERFED DRIP EDGE HALF ROUND GUTTER w/ ROUND D.S. o/ STACKED 1x3 & 1x8 ENG. WD FASCIA ASPHALT COMPOSITION SHINGLE ROOFING 1x2 o/ 1x10 ENGINEERED WD FASCIA AT STEEP ROOF, TYP., THIN BRICK VENEER w/ STONE CAP SLOPED TO DRAIN ARCHED THIN BRICK SOLDIER COURSE 8'-10" 9'-4" 36"h ALUMINUM RAILING MOUNTED TO POSTS; DO NOT FLOOR MOUNT 10"sq X 42"h POST (STUCCO) w/ STONE CAP SLOPED TO DRAIN 20"h PREFIN. S.M. CHIMNEY SHROUD SLOPED SILL w/ KERFED DRIP EDGE ENGINEERED BRICK SOLDIER COURSE, PROJECT 1 2" THIN BRICK VENEER ASPHALT COMPOSITION SHINGLE ROOFING HALF ROUND GUTTER w/ ROUND D.S. o/ STACKED 1x3 & 1x8 ENG. WD FASCIA ALIGN ALL WINDOW HEADS S4S WOOD BRACKET, TYP. PER PLAN PROWOODMARKET.COM MODEL 62T8 STUCCO AT SIDE OF ROOF EXTENSION 16:12 PITCH 8:12 PITCH 8:12 PITCH 8:12 PITCH 12 16 6:12 PITCH 6:12 PITCH 6:12 PITCH 6:12 PITCH 6:12 PITCH 6:12 PITCH 16+/-:12 PITCH 8:12 PITCH 8:12 PITCH 8:12 PITCH 12 16 8:12 PITCH 12 16 12 8 8:12 PITCH 9'-0" PLATE LINE 15'-7 1 8 " 25'-11 1 8 " A A11 1 A10 CONSTRUCTION SET Adam Anthony Pfeifer, NCARB apd_studios+ design | fabrication 12214 w 79th terrace lenexa, kansas 66215 p. 785.650.3563 e. adam@apdstudios.com Troy & Eden Kearns owner 804 W 33rd St Kansas City, MO 64111 p. 702.556.4081 a. Troy Kearns e. troyjkearns@gmail.com Apex Engineering structural engineer 1625 Locust St Kansas City, MO 64108 p. 816.421.3222 a. Jason Gibson e. jason@ apex-engineers.com Kearns Custom Residence 6545 Standardbred Drive Kansas City, MO 64164 drawing title project no. sheet no. 2020.26 drawn by aap date 11.09.2020 project title release seal 01.15.2021 _ Permit Set 10.06.2021 _ Fndn. Revs. 11.08.2021 _ Lighting Plan 11.11.2021 _ Lighting Revs. 11.13.2021 _ Const. Revisions elevations A8
  • 11.
    1 BUILDING ELEVATION LEFT (EAST)ELEVATION 1/4" = 1'-0" 3 BUILDING ELEVATION GARAGE WEST ELEVATION 1/4" = 1'-0" ELEVATION DIAGRAM KEY ELEVATION DIAGRAM KEY ELEVATION DIAGRAM KEY ELEVATION NOTES 2 BUILDING ELEVATION GARAGE EAST ELEVATION 1/4" = 1'-0" 1. ASPHALT COMPOSITION SHINGLES, TYP. UNLESS NOTED OTHERWISE. 2. CEMENTITIOUS STUCCO CLADDING TO BE INSTALLED OVER BORAL 'DRAIN-N-DRY' SYNTHETIC LATH w/ INTEGRAL DRAINAGE MAT o/ DRAINABLE WRB, OR APPROVED EQUAL. 3. ALL WOOD TRIM TO BE EITHER ENGINEERED WOOD AS MANUFACTURED BY LP PRODUCTS OR PVC MATERIAL BY VERSATEX OR EQUAL. 4. MANUFACTURED THIN BRICK/ STONE VENEER TO BE INSTALLED PER MANUFACTURER RECOMMENDED INSTALLATION PRACTICES TO INCLUDE VENTILATED DRAINABLE SYNTHETIC LATH WITH INTEGRAL DRAINAGE PLANE OVER A DRAINABLE WEATHER RESISTIVE BARRIER ATTACHED DIRECTLY TO SHEATHING. 5. PROVIDE S.M. FLASHING AT HEAD OF ALL WINDOWS AND HORIZONTALLY PROJECTING TRIM. WINDOW HEAD FLASHING TO INCLUDE BENT END DAM - NO OPEN SEAMS. 6. COUNTER FLASH BEHIND THIN BRICK/ STONE VENEER ONTO ROOF AND HOLD THIN STONE VENEER 2" ABOVE ROOFING PER MANUF. RECOMMENDATIONS. t/ FTNG - EL: 915.0' t/ FTNG - EL: 918.0' t/ FNDN t/ 1ST SUB FLR 1ST FLR PL. LN. 3'-0" 10'-0" 1'-6 5 8 " 9'-0" 11'-4 1 8 " 21'-10 3 4 " 13'-0" THIN BRICK VENEER o/ BORAL 'DRAIN-N-DRY' SYNTHETIC LATH o/ DRAINABLE WRB SLOPED BRICK VENEER SILL FOUNDATION WALL, RE: FOUNDATION PLAN THIN STONE WAINSCOT CAP CEMENTITOUS STUCCO FINISH o/ BORAL 'DRAIN-N-DRY' SYNTHETIC LATH o/ DRAINABLE WRB 8"dp FRAMED CORBEL, RE: 1/A7 FOR DIMS HALF ROUND GUTTER w/ ROUND D.S. o/ STACKED 1x2 & 1x10 ENG. WD FASCIA AT STEEP ROOF ASPHALT COMPOSITION SHINGLE ROOFING 1x4 o/ 1x10 ENG. WOOD FRIEZE BOARD o/ BLOCKING HALF ROUND GUTTER w/ ROUND D.S. o/ STACKED 1x3 & 1x8 ENG. WD FASCIA ASPHALT COMPOSITION SHINGLE ROOFING THIN BRICK VENEER o/ BORAL 'DRAIN-N-DRY' SYNTHETIC LATH o/ DRAINABLE WRB 4'-0" 9'-6" 10" 3" 1'-3" 15'-7 1 8 " 25'-11 1 8 " 4'-0" 9'-6" 10" 7'-4" 8'-3 1 8 " 25'-11 1 8 " 3" DASHED LINE DENOTES t/ FNDN SHEATHING TO EXTEND OVER FNDN JOINT 3" TYPICAL; SEAL SHEATHING TO CONCRETE AND EDGE OF SHEATHING HALF ROUND GUTTER w/ ROUND D.S. o/ STACKED 1x2 & 1x10 ENG. WD FASCIA AT STEEP ROOF RIPPED ENG. WD. TRIM w/ SLOPED SILL w/ KERFED DRIP EDGE STANDING SEAM METAL ROOFING, COLOR TBD ASPHALT COMPOSITION SHINGLE ROOFING CEMENTITOUS STUCCO FINISH o/ BORAL 'DRAIN-N-DRY' SYNTHETIC LATH o/ DRAINABLE WRB t/ FTNG - EL: 924.5' t/ FNDN 1ST FLR PL. LN. t/ 2ND SUBFLR RAFTER BRG. LN. DRMR BRG. LN. t/ FTG - EL: 924.5' t/ FNDN 3'-6" 10'-0" 10" 3" t/ FTNG - EL: 924.5' t/ FNDN 1ST FLR PL. LN. t/ 2ND SUBFLR RAFTER BRG. LN. 1ST FLR PL. LN. t/ 2ND SUBFLR RAFTER BRG. LN. DORMER BRG. LN. 6'-10" 7'-4" ASPHALT COMPOSITION SHINGLE ROOFING STANDING SEAM METAL ROOF, COLOR TBD 1x3 o/ 1x6 ENG. WD. STACKED FASCIA CEMENTITOUS STUCCO FINISH o/ BORAL 'DRAIN-N-DRY' SYNTHETIC LATH o/ DRAINABLE WRB MEMBRANE ROOF TURNED UP WALL 8"min, SLOPE 1:12 1x2 o/ 1x10 ENG. WD. STACKED FASCIA HALF ROUND GUTTER w/ ROUND D.S. o/ STACKED 1x2 & 1x10 ENG. WD FASCIA AT STEEP ROOF S4S WOOD BRACKET, TYP. PER PLAN PROWOODMARKET.COM MODEL 62T8 STUCCO CORNER BEAD AT WINDOW, TYP. w/ S.M. HEAD FLASHING w/ END DAM & SLOPED SILL w/ KERFED DRIP EDGE INSULATED OVERHEAD DOOR w/ APPLIED WOOD TRIM 5/4x4 ENG. WD. TRIM SHEATHING TO EXTEND OVER FNDN JOINT 3" TYPICAL; SEAL SHEATHING TO CONCRETE AND EDGE OF SHEATHING THIN BRICK VENEER o/ BORAL 'DRAIN-N-DRY' SYNTHETIC LATH o/ DRAINABLE WRB CEMENTITIOUS STUCCO FINISH o/ BORAL 'DRAIN-N-DRY' SYNTHETIC LATH o/ DRAINABLE WRB 16:12 PITCH 16:12 PITCH 12 8 12 8 16:12 PITCH 8:12 PITCH 8:12 PITCH 8:12 PITCH 16:12 PITCH 8:12 PITCH 12 8 2 A10 2 A10 CONSTRUCTION SET Adam Anthony Pfeifer, NCARB apd_studios+ design | fabrication 12214 w 79th terrace lenexa, kansas 66215 p. 785.650.3563 e. adam@apdstudios.com Troy & Eden Kearns owner 804 W 33rd St Kansas City, MO 64111 p. 702.556.4081 a. Troy Kearns e. troyjkearns@gmail.com Apex Engineering structural engineer 1625 Locust St Kansas City, MO 64108 p. 816.421.3222 a. Jason Gibson e. jason@ apex-engineers.com Kearns Custom Residence 6545 Standardbred Drive Kansas City, MO 64164 drawing title project no. sheet no. 2020.26 drawn by aap date 11.09.2020 project title release seal 01.15.2021 _ Permit Set 10.06.2021 _ Fndn. Revs. 11.08.2021 _ Lighting Plan 11.11.2021 _ Lighting Revs. 11.13.2021 _ Const. Revisions elevations A9
  • 12.
    2 BUILDING SECTION GARAGE SECTION 1/2"= 1'-0" SECTION NOTES J-1 J-4 J-3 J-5 1 BUILDING SECTION BREEZEWAY SECTION 1/2" = 1'-0" REIN. CONC. DRIVEWAY SLAB PER STRUCT. o/ 4" CRUSHED ROCK o/ UNDISTURBED SOIL REIN. CONC. FNDN. WALL PER STRUCT. S4S WOOD BRACKET, PROWOODMARKET.COM MODEL 62T8 VENTED SOFFIT BOARD o/ 2x FRAMING 1x3 o/ 1x8 ENG. WD. FASCIA TRIM o/ 2x SUB-FASCIA & FRAMING ASPHALT COMP. SHINGLE ROOFING o/ UNDERLAYMENT o/ 3 4" ROOF SHEATHING o/ 2x FRAMING DRAINABLE WRB o/ 7 16" OSB SHEATHING o/ INSULATED 2x FRAMING o/ 1 2" GWB w/ PAINT MEMBRANE ROOFING o/ ADHESION PRIMER o/ 3 4" ROOF SHEATHING o/ 2x FRAMING SLOPED WOOD SILL w/ KERFED DRIP EDGE PREFINISHED S.M. DRIP EDGE WINDOW UNIT PER PLAN, INSTALLED & FLASHED PER MANUF. RECOMMENDATIONS 1x3 o/ 1x6 ENG. WD. FASCIA TRIM o/ 2x SUB-FASCIA o/ 2x FRAMING STANDING SEAM METAL ROOFING o/ ICE AND WATER SHIELD o/ ADHESION PRIMER o/ 3 4" ROOF SHEATHING o/ INSULATED 2x FRAMING 2" CLEAR AIR SPACE ROOF VENTILATION BAFFLE ASPHALT COMP. SHINGLE ROOFING o/ UNDERLAYMENT o/ 3 4" ROOF SHEATHING o/ 2x FRAMING CEMENTITIOUS STUCCO FINISH o/ BORAL 'DRAIN-N-DRY' SYNTHETIC LATH o/ DRAINABLE WRB o/ 7 16" OSB SHEATHING o/ INSULATED 2x FRAMING o/ 1 2" PAINTED GWB 1 2" PAINTED GWB o/ 2x KNEE WALL FRAMING 4'-7" 3'-51 2" 13'-111 2" 2" CLEAR AIR SPACE ROOF VENTILATION BAFFLE 2x SLIDERS ATTACHED TO RAFTERS PER STRUCT TO ACHIEVE INSULATION REQUIREMENTS ASPHALT COMP. SHINGLE ROOFING o/ UNDERLAYMENT o/ 3 4" ROOF SHEATHING o/ 2x FRAMING 5 8" TYPE-X GWB CEILING VENTED RIDGE 6" REIN. CONC. SLAB PER STRUCT (SLOPED TO DRAIN) o/ 10mil VAPOR BARRIER o/ 4" CRUSHED GRAVEL o/ UNDISTURBED SOIL REIN. CONC. FTG. PER STRUCT. REIN. CONC. DRIVEWAY SLAB PER STRUCT. o/ 4" CRUSHED ROCK o/ UNDISTURBED SOIL THIN BRICK VENEER o/ BORAL 'DRAIN-N-DRY' SYNTHETIC LATH o/ DRAINABLE WRB o/ 7 16" OSB SHEATHING o/ INSULATED 2x FRAMING o/ 1 2" PAINTED GWB THIN BRICK VENEER o/ PAPER BACKED LATH o/ DRAINABLE WRB o/ 7 16" OSB SHEATHING o/ 2x FRAMING BEAM PER STRUCT. VENTED SOFFIT PANEL 1x3 o/ 1x8 ENG. WD. FASCIA TRIM o/ 2x SUBFASCIA o/ 2x FRAMING; ALIGN FASCIA TRIM w/ ADJ. FRIEZE BOARD AS SHOWN ASPHALT COMP. SHINGLE ROOFING o/ UNDERAYMENT o/ 3 4" ROOF SHEATHING o/ 2x FRAMING THIN BRICK VENEER o/ PAPER BACKED LATH o/ DRAINABLE WRB o/ 7 16" OSB SHEATHING o/ 2x FRAMING EXTERIOR DOOR PER PLAN w/ 5/4x4 ENG. WD. CASING 9'-10" BRG. LN. VENTED RIDGE THIN STONE WAINSCOT CAP CEMENTITIOUS STUCCO FINISH o/ BORAL 'DRAIN-N-DRY' SYNTHETIC LATH o/ DRAINABLE WRB o/ 7 16" OSB SHEATHING o/ INSULATED 2x FRAMING o/ 1 2" PAINTED GWB STUCCO CORNER BEAD AT WINDOW, TYP. w/ S.M. HEAD FLASHING w/ END DAM & SLOPED SILL w/ KERFED DRIP EDGE SLOPED THIN BRICK WINDOW SILL ASPHALT COMPOSITION SHINGLE ROOFING, TYP. OVERLAY UPPER RAFTERS FLUSH BEAM PER PLAN, 2/A5 FASTEN RAFTER TO EACH STUD w/ (4) 10d FACE NAILS #2- 2x10 RAFTER @ 16"o.c.; FASTEN UPPER/ LOWER RAFTERS w/ (4) 10d FACE NAILS TOE NAIL EVERY LWR RAFTER INTO TOP PLATE w/ (2) 8d TOE NAILS [(1) AT EACH SIDE] INSULATED OVERHEAD DOOR w/ APPLIED TRIM PER ELEVATION; RE: 3/A9 CONSTRUCTION SET Adam Anthony Pfeifer, NCARB apd_studios+ design | fabrication 12214 w 79th terrace lenexa, kansas 66215 p. 785.650.3563 e. adam@apdstudios.com Troy & Eden Kearns owner 804 W 33rd St Kansas City, MO 64111 p. 702.556.4081 a. Troy Kearns e. troyjkearns@gmail.com Apex Engineering structural engineer 1625 Locust St Kansas City, MO 64108 p. 816.421.3222 a. Jason Gibson e. jason@ apex-engineers.com Kearns Custom Residence 6545 Standardbred Drive Kansas City, MO 64164 drawing title project no. sheet no. 2020.26 drawn by aap date 11.09.2020 project title release seal 01.15.2021 _ Permit Set 10.06.2021 _ Fndn. Revs. 11.08.2021 _ Lighting Plan 11.11.2021 _ Lighting Revs. 11.13.2021 _ Const. Revisions sections A10
  • 13.
    1 BUILDING SECTION MAIN HOUSE- GREAT ROOM/ ENTRY SECTION 1/2" = 1'-0" SECTION NOTES CONC. WALK PER STRUCT o/ 4" CRUSHED GRAVEL o/ UNDISTURBED SOIL REIN. CONC. PORCH STEM WALL PER STRUCT. REIN. CONC. FTG PER STRUCT. REIN. CONC. PORCH SLAB PER STRUCT SUPPORTED BY BLOCKING o/ FILL REIN. CONC. FTG. PER STRUCT. PERIM DRAIN TILE IN FABRIC FILTER, DRAIN TO DAYLIGHT AT REAR OF LOT EARTHEN BACKFILL GRAVEL BACKFILL REIN. CONC. FNDN. WALL PER PLAN 1 2" PAINTED GWB o/ 2x INSULATED FRAMING SET 1" FROM CONC. FNDN. WALL w/ FOAM SILL SEALER BELOW P.T. SOLE PLATE PVC MEMBRANE o/ 7 16" OSB SHEATHING o/ 2x FLOOR FRAMING w/ 2x6 P.T. MUDSILL & FOAM SILL GASKET; APPLY SEALANT BETWEEN MUDSILL/ GASKET AND GASKET/ CONCRETE FOR AIR INFILTRATION 8x8 POST w/ 1x6 BASE TRIM & 1x1 HEAD TRIM FINISH FLOORING PER OWNER o/ 1-1/8" HUBER WOOD PRODUCTS 'ADVANTECH' SUBFLOOR (GLUED AND SCREWED) o/ 16" ENG. WD. TRUSSES o/ 1 2" PAINTED GWB ENTRY DOOR UNIT PER PLAN WOOD TRIM WRAPPED DROPPED BEAM; REFER TO SHEET A5 FOR BEAM DETAILS T&G WOOD CEILING 1x3 o/ 1x8 FASCIA TRIM o/ 2x SUB-FASCIA o/ 2x FRAMING STANDING SEAM METAL ROOF o/ ICE AND WATER SHIELD o/ 3 4" ROOF SHEATHING o/ 2x FRAMING WINDOW UNIT PER PLAN THIN BRICK VENEER o/ BORAL 'DRAIN-N-DRY' SYNTHETIC LATH o/ DRAINABLE WRB o/ 7 16" OSB SHEATHING o/ INSULATED 2x FRAMING o/ 1 2" PAINTED GWB CEMENTITIOUS STUCCO FINISH o/ BORAL 'DRAIN-N-DRY' SYNTHETIC LATH o/ DRAINABLE WRB o/ 7 16" OSB SHEATHING o/ INSULATED 2x FRAMING o/ 1 2" PAINTED GWB SLOPED WOOD SILL w/ KERFED DRIP EDGE RIPPED 5 4 ENG. WD. TRIM 1x3 o/ 1x6 ENG. WD. FASCIA o/ RIPPED 5 4 ENG. WD. TRIM o/ 7 16" OSB SHEATHING o/ INSULATED FRAMING o/ 1 2" PAINTED GWB STANDING SEAM METAL ROOF o/ ICE AND WATER SHIELD o/ 3 4" ROOF SHEATHING o/ 2x FRAMING REIN. CONC. BURIED FNDN. WALL PER STRUCT REIN. CONC. FTG. PER STRUCT REIN. CONC. PATIO SLAB PER STRUCT. o/ 4" CRUSHED ROCK o/ UNDISTURBED SOIL REIN. CONC. BASEMENT SLAB PER STRUCT. o/ 2" RIGID FOAM INSULATION o/ 4" CRUSHED ROCK o/ UNDISTURBED SOIL SLIDING PATIO DOOR UNIT PER PLAN CEMENTITIOUS STUCCO FINISH o/ BORAL 'DRAIN-N-DRY' SYNTHETIC LATH o/ DRAINABLE WRB o/ 7 16" OSB SHEATHING o/ INSULATED 2x FRAMING o/ 1 2" PAINTED GWB CEMENTITIOUS STUCCO FINISH o/ BORAL 'DRAIN-N-DRY' SYNTHETIC LATH o/ DRAINABLE WRB o/ 7 16" OSB SHEATHING o/ INSULATED 2x FRAMING o/ 1 2" PAINTED GWB 3-1/2" LIGHTWEIGHT CONCRETE TOPPING SLAB o/ DRAINAGE MAT o/ WP MEMBRANE (WRAPPED UP WALL 8" MINIMUM) o/ 3 4" P.T. WD. DECKING o/ SLOPED SLEEPERS o/ FLR JSTS SLOPED WOOD SILL w/ KERFED DRIP EDGE WINDOW UNIT PER PLAN 1x3 o/ 1x8 ENG. WD. FASCIA TRIM o/ 2x SUB-FASCIA o/ 2x FRAMING VENTED SOFFIT BOARD 1x4 o/ 1x10 ENG. WD. FRIEZE TRIM o/ 5X4 BLOCKING WOOD FAUX BEAM o/ (2) 2x NAILER CLEAT FASTENED TO ROOF FRAMING 2" CLEAR AIR SPACE ROOF VENTILATION BAFFLE ASPHALT COMP. SHINGLE ROOFING o/ UNDERLAYMENT o/ 3 4" ROOF SHEATHING o/ 2x FRAMING 2x SLIDERS ATTACHED TO RAFTERS PER STRUCT TO ACHIEVE INSULATION REQUIREMENTS RIDGE BEAM PER STRUCT., RE: SHEET A5 VENTED RIDGE THIN BRICK VENEER CHIMNEY, BEYOND CONSTRUCTION SET Adam Anthony Pfeifer, NCARB apd_studios+ design | fabrication 12214 w 79th terrace lenexa, kansas 66215 p. 785.650.3563 e. adam@apdstudios.com Troy & Eden Kearns owner 804 W 33rd St Kansas City, MO 64111 p. 702.556.4081 a. Troy Kearns e. troyjkearns@gmail.com Apex Engineering structural engineer 1625 Locust St Kansas City, MO 64108 p. 816.421.3222 a. Jason Gibson e. jason@ apex-engineers.com Kearns Custom Residence 6545 Standardbred Drive Kansas City, MO 64164 drawing title project no. sheet no. 2020.26 drawn by aap date 11.09.2020 project title release seal 01.15.2021 _ Permit Set 10.06.2021 _ Fndn. Revs. 11.08.2021 _ Lighting Plan 11.11.2021 _ Lighting Revs. 11.13.2021 _ Const. Revisions sections A11
  • 14.
    EF $ $ $ D $ $ $ GAS LANTERN GAS LANTERN $ $ $ D $ D $ D $ D $ D3 $ D $ 3 $ $ $ $ $ $ $ $ $ $ E F $ $ $ $ 3 3 1 LIGHTINGPLAN BASEMENT FINISH PLAN 1/4" = 1'-0" CONSTRUCTION NOTES PLAN NOTES SYMBOL LEGEND REIN. CONC. WALL w/ CONT. REIN. CONC. FTG. 2x6 WD. FRAMED WALL 2x4 WD. FRAMED WALL 6" WALL PRIVATE LOUNGE 9'-8" CLG VINYL FLR MEDIA LOUNGE 9'-8" CLG VINYL FLR AUDIO/ VISUAL CLOSET 9'-8" CLG CONCRETE FLR STORAGE 9'-8" CLG CONCRETE FLR GAME ROOM 9'-8" BEAMED CLG VINYL FLR COVERED TERRACE 9'-8" CLG CONC. SLAB WET BAR 9'-8" CLG VINYL FLR CLOSET 9'-8" CLG VINYL FLR HALF BATH 9'-8" CLG VINYL FLR W.I.C. 9'-8" CLG CARPET BED 4 9'-8" CLG CARPET BED 5 9'-8" CLG CARPET BATH 3 9'-8" CLG VINYL FLR STORAGE 9'-8" CLG CONCRETE FLR 10"dp FULL HEIGHT MEDIA SHELVES 8'-0" HDR 8"dp FAUX BEAM 6"dp FAUX BEAM 8"dp FAUX BEAM 6"dp FAUX BEAM 6"dp FAUX BEAM 6"dp FAUX BEAM 6"dp FAUX BEAM 6"dp FAUX BEAM 8'-0" HDR, CUT TO STAIR 48"x36" GAS FIREPLACE INSERT w/ LOG SET w/ MANTLE ABOVE LWR CABS w/ STONE TOP w/ UPR SHLVNG 60"x108" BARN DOOR 5 SHLVS 36" VANITY 72" DUAL VANITY 2R/ 1S GENERAL PLAN NOTES 1. 5/8" TYPE-X GWB COLUMNS AND BEAMS 2. EXTENTS OF REAR PATIO TO BE CONFIRMED WITH BUILDER 3. PROVIDE EXHAUST FAN IN BATHROOMS 4. PROVIDE SMOKE DETECTORS IN ACCORDANCE WITH IRC REQUIREMENTS 4.1. ONE SMOKE ALARM AT EACH LEVEL OF RESIDENCE 4.2. ONE SMOKE ALARM IN EACH BEDROOM 4.3. ONE SMOKE ALARM OUTSIDE OF EACH SLEEPING AREA 5. PROVIDE CARBON MONOXIDE DETECTORS 6. CONFIRM DOOR HEIGHT w/ BUILDER PRIOR TO ORDER 7. ALL EXTERIOR WALLS ARE 2x6 CONSTRUCTION 8. WINDOWS SHALL HAVE FALL PROTECTION PER IRC SECTION 312.2.4 9. HOUSE WILL BE PROVIDED WITH A 'UFER' GROUND PER IRC SECTION 3608.1.5 10. OVERHEAD GARAGE DOORS MUST MEET DASMA REQUIREMENTS FOR 115mph. 11. ALL HEADERS NOT LABELED SHALL BE MIN (2) #2 2x10 DFL 12. DBL ALL JOISTS UNDER ISLAND 13. ICE AND WATER SHIELD AS REQUIRED PER IRC 14. ALL FUEL BURNING APPLIANCES SHALL BE HIGH EFFICIENCY AND DIRECTLY VENTED TO THE OUTSIDE. SD CO SD SD SD CO SD CO SD F.D. H.W.H. HVAC #1 HVAC #1 H.W.H. F.D. CONSTRUCTION NOTES STRUCTURAL NOTES ELEC. PANEL 1. NOT APPLICABLE LED TAPE UPLIGHT @ BACKSPLASH BACKLIT PROJECTOR SCREEN LED TAPE @ TOEKICK IN-GROUND UPLIGHT IN-GROUND UPLIGHT IN-GROUND UPLIGHT CHANDELIER TO STAIR CHANEDLIER STAIR LIGHTS STAIR LIGHTS STAIR LIGHTS CONTINUE UP STAIRS CONSTRUCTION SET Adam Anthony Pfeifer, NCARB apd_studios+ design | fabrication 12214 w 79th terrace lenexa, kansas 66215 p. 785.650.3563 e. adam@apdstudios.com Troy & Eden Kearns owner 804 W 33rd St Kansas City, MO 64111 p. 702.556.4081 a. Troy Kearns e. troyjkearns@gmail.com Apex Engineering structural engineer 1625 Locust St Kansas City, MO 64108 p. 816.421.3222 a. Jason Gibson e. jason@ apex-engineers.com Kearns Custom Residence 6545 Standardbred Drive Kansas City, MO 64164 drawing title project no. sheet no. 2020.26 drawn by aap date 11.09.2020 project title release seal 01.15.2021 _ Permit Set 10.06.2021 _ Fndn. Revs. 11.08.2021 _ Lighting Plan 11.11.2021 _ Lighting Revs. 11.13.2021 _ Const. Revisions floor plan E1
  • 15.
    EF $ $ $ $ $ $ $ $ $ $ 3 3 3 3 $ D3 $ $ $D D $ GAS LANTERN GAS LANTERN $ D $ D $ D $ D3 $ $ D3 $ D3 $ D $ D $ D3 $ $ D3 GAS LANTERN GAS LANTERN $ EF $ $ $ $ $ F $ $ $ $ 3 3 3 $ 3 E F $ $ $ $ F $ $ $ F F 3 $ 3 $ E F E F $ D $ 3 $ 3 $ 3 $ 3 $ 3 $ 3 $ $ D3 $ D3 $ $ F $ $ F $ 3 $ 3 $ D $ 3 $ 3 $ D $ $ F $ $ F 1 LIGHTING PLNA FIRSTFLOOR PLAN 1/4" = 1'-0" CONSTRUCTION NOTES PLAN NOTES SYMBOL LEGEND REIN. CONC. WALL w/ CONT. REIN. CONC. FTG. 2x6 WD. FRAMED WALL 2x4 WD. FRAMED WALL 6" WALL 3-CAR GARAGE 9'-8" CLG CONCRETE FLR BATH 4 9'-8" CLG TILE FLR MUDROOM 1 9'-8" CLG TILE FLR COVERED BREEZEWAY 8'-8"+/- CLG CONC. SLAB HOME HUB 9'-0" CLG HDWD FLR BUTLER'S PANTRY 9'-0" CLG HDWD FLR MUDROOM 10'-4"+/- CLG TILE FLR KITCHEN 9'-0" CLG HDWD FLR DINING 11'-0" VAULT CLG HDWD FLR GREAT ROOM VAULT CLG UP FROM 11'-0" HDWD FLR OFFICE 11'-0" VAULT CLG HDWD FLR ENTRY 9'-0" CLG / VAULT HDWD FLR POWDER ROOM 9'-0" CLG TILE FLR W.I.C. 9'-0" CLG HDWD FLR BED 3 10'-0" VAULT CLG HDWD FLR BATH 2 9'-0" CLG TILE FLR BED 2 9'-0" CLG HDWD FLR W.I.C. 9'-0" CLG HDWD FLR M. BED VAULT UP FROM 7'-6" HDWD FLR M. BATH 9'-0" CLG TILE FLR M. CLOSET 1 9'-0" CLG CARPET LAUNDRY 9'-0" CLG TILE FLR OUTDOOR TERRACE OPEN TO SKY CONC. SLAB MOTOR COURT CONC. SLAB GENERAL PLAN NOTES 1. FIRE RATED SELF CLOSING DOOR TO GARAGE MUDROOM FROM GARAGE 2. 5 8" TYPE-X GWB WALLS AND CEILING IN GARAGE - MUD, TAPE, FINISH IN PREP FOR PAINT 3. 5/8" TYPE-X GWB COLUMNS AND BEAMS 4. PROVIDE EXHAUST FAN IN BATHROOMS 5. PROVIDE SMOKE DETECTORS IN ACCORDANCE WITH IRC REQUIREMENTS 5.1. ONE SMOKE ALARM AT EACH LEVEL OF RESIDENCE 5.2. ONE SMOKE ALARM IN EACH BEDROOM 5.3. ONE SMOKE ALARM OUTSIDE OF EACH SLEEPING AREA 6. PROVIDE CARBON MONOXIDE DETECTORS 7. CONFIRM DOOR HEIGHT w/ BUILDER PRIOR TO ORDER 8. ALL EXTERIOR WALLS ARE 2x6 CONSTRUCTION 9. WINDOWS SHALL HAVE FALL PROTECTION PER IRC SECTION 312.2.4 10. HOUSE WILL BE PROVIDED WITH A 'UFER' GROUND PER IRC SECTION 3608.1.5 11. OVERHEAD GARAGE DOORS MUST MEET DASMA REQUIREMENTS FOR 115mph. 12. ALL HEADERS NOT LABELED SHALL BE MIN (2) #2 2x10 DFL 13. DBL ALL JOISTS UNDER ISLAND 14. ICE AND WATER SHIELD AS REQUIRED PER IRC 15. ALL FUEL BURNING APPLIANCES SHALL BE HIGH EFFICIENCY AND DIRECTLY VENTED TO OUTSIDE SD CO 36" VANITY MECH. EQUIP. UNDER STAIR S4S WD BRACKET, TYP. ROOF OVERHANG ABOVE S4S WD BRACKET, TYP. S4S WD BRACKET, TYP. S4S WD BRACKET, TYP. PROVIDE FLOOR OUTLET AT EACH END OF DECK AREA COVERED PORCH SLOPED T&G CLG CONC. SLAB 9'-0" HDR 9'-0" HDR 10"dp FAUX BEAM 6"dp FAUX BEAM 6"dp FAUX BEAM 6"dp FAUX BEAM 6"dp FAUX BEAM 11'-0" PLATE LINE 11'-0" PLATE LINE 15"w PANT. BUILT-IN MICRO./ WARM DRWR 30"w PANTRY 48"w BUILT-IN REFR. 15"w PANT. 36" GAS RANGE w/ HOOD 7'-0" HDR 9'-0" HDR 9'-0" HDR 36" RAILING, TYP. 4 8 " V A N I T Y 18" LIN. 24" LIN. 2R/ 1S MOTION SENSOR TOE KICK UNDERLIGHT 90" VANITY 8 " d p F A U X B M 4"dp FAUX BM 4"dp FAUX BM 4"dp FAUX BM 4"dp FAUX BM 7'-0" HDR 39" VAN. 39" VAN. 8 " d p F A U X B M 4"dp FAUX BM 4"dp FAUX BM 4"dp FAUX BM 4"dp FAUX BM 5 S H L V S FLOOR OUTLET FLOOR OUTLET SD CO SD SD SD SD SD 7 ' - 6 " P L A T E L I N E 7 ' - 6 " P L A T E L I N E 7'-6" PLATE LINE CO SD CONSTRUCTION NOTES STRUCTURAL NOTES 30x36 ATTIC ACCESS w/ INSUL. HATCH M. CLOSET 2 9'-0" CLG CARPET CONTINUE UP STAIRS IN-GROUND UPLIGHT IN-GROUND UPLIGHT IN-GROUND UPLIGHT IN-GROUND UPLIGHT IN-GROUND UPLIGHT IN-GROUND UPLIGHT IN-GROUND UPLIGHT IN-GROUND UPLIGHT IN-GROUND UPLIGHT IN-GROUND UPLIGHT IN-GROUND UPLIGHT IN-GROUND UPLIGHT IN-GROUND UPLIGHT IN-GROUND UPLIGHT CHANDELIER DRUM PENDANT DRUM PENDANT CHANDELIER (3) PENDANTS PEND. PEND. STAIR LIGHTS STAIR LIGHTS STAIR LIGHTS CONT. DOWNSTAIRS TO LOWER LEVEL SWITCH PROVIDE POWER FOR STEAM UNIT LOCATED IN BSMT STORAGE PENDANT o/ EA. LAV PENDANT o/ EA. LAV CONSTRUCTION SET Adam Anthony Pfeifer, NCARB apd_studios+ design | fabrication 12214 w 79th terrace lenexa, kansas 66215 p. 785.650.3563 e. adam@apdstudios.com Troy & Eden Kearns owner 804 W 33rd St Kansas City, MO 64111 p. 702.556.4081 a. Troy Kearns e. troyjkearns@gmail.com Apex Engineering structural engineer 1625 Locust St Kansas City, MO 64108 p. 816.421.3222 a. Jason Gibson e. jason@ apex-engineers.com Kearns Custom Residence 6545 Standardbred Drive Kansas City, MO 64164 drawing title project no. sheet no. 2020.26 drawn by aap date 11.09.2020 project title release seal 01.15.2021 _ Permit Set 10.06.2021 _ Fndn. Revs. 11.08.2021 _ Lighting Plan 11.11.2021 _ Lighting Revs. 11.13.2021 _ Const. Revisions floor plan E2