BUILDING
SITE PLAN/ SITE SECTION 2-03-2017
1:250
DR. SUCHARITA
ARC1215
METHODS OF DOCUMENTATION AND
MEASURED DRAWING
ROYAL SELANGOR CLUB
1, JALAN RAJA, CITY CENTRE, 52100 KUALA
LUMPUR, SELANGOR, MALAYSIA NATALIE CHA, TAN MIN CHUEN
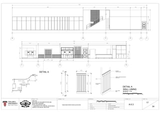
A-0.2
2
34
SITE PLAN
SITE SECTION S-S'
0 52.5 10 25M
SITE ELEVATIONS 01-03-2017
1:250
DR. SUCHARITA
ARC1215
METHODS OF DOCUMENTATION AND
MEASURED DRAWING
ROYAL SELANGOR CLUB
1, JALAN RAJA, CITY CENTRE, 52100 KUALA
LUMPUR, SELANGOR, MALAYSIA TAN MIN CHUEN
A-0.3
3
34
WEST ELEVATION
EAST ELEVATION
0 52.5 10 25M
(FACING HIGHWAY)
(FACING DATARAN MERDEKA)
MIDDLERINGROADII
LEBUHRAYADAMANSARA-PUCHONG(LDP)
SPRINT>Penchala Link
SPRINT>
Elevated
Highway
MIDDLERINGROADII
MIDDLE RING ROAD II
SPRINT
>
SPRINT>KerinchiLink
HULU
LANGAT
DISTRICT
PETALING
DISTRICT
MIDDLERINGROADII
Duta-KerinchiLink
Dam
ansara-Sem
antan
Link
NKVE > Jln Duta - Sg Buloh Expressway
KL North East
Expressway
Federal Highway
Jalan Maarof
MIDDLE RING ROAD II
MIDDLE
RING
ROAD
II
MIDDLERINGROADII
toll
EAST-WEST LINK
toll
EAST-W
EST LINK
toll
toll
LEBUHRAYA
KL-SEREMBAN
(PLUS)
Pantai Baru Interchange
KLIA
DEDICATED
HIG
HWAY
KLIA
DEDICATED
HIGHWAY
NEW PANTAI HIGHWAY
NEW PANTAI HIGHWAY
NEW PANTAI HIGHWAY
NEW PANTAI HIGHWAY
Pantai Dalam Interchange
Tmn Desa
Interchange
Jln Templer
Interchenge
toll
DISTRICT OF
PETALING
(SELANGOR)
Pandan
Indah
JALA
NTUN
MOH
DFUAD
1
JALA
N TUN
MOH
D FUAD
JALA
NWAN
KADI
R1
JALA
N WAN
KADI
R
JALA
N
DATU
K
SULA
IMAN
JALANRAJALAUT
MA
HA
RA
JAL
ELA
JALA
NKUC
HING
JA
LA
N
HA
NG
JE
BA
T
JA
LA
N
LO
KE
YE
W
HA
NG
TU
AH
JALAN BUKIT BINTANG
JALAN
JAL
AN
BUK
IT
BIN
TAN
G
JAL
AN
TUN
RAZ
AK
JA
LA
N
YE
W
JALAN
DAVIS
JALA
N IMBI
JAL
AN
KA
MP
ON
G
PA
ND
AN
JALA
N COC
HRA
NE
ISM
AIL
JA
LA
N
PE
RA
K
JALA
N KAM
PON
G PAN
DAN
JA
LA
N
SU
LT
AN
JALAN
JA
LA
N
P.
RA
M
LE
E
RAJA
JA
LA
N
PIN
AN
G
JA
LA
N
AM
PA
NG
IS
M
AI
L
JA
LA
N
KIA
PE
NG
JALA
N
CHULA
N
JA
LA
N
GOLF
DA
NG
JALA
N
TU
N
RA
ZA
K
JALAN U THANT
JALAN
LORONG KUDA
LAN
GGA
K
JALAN CONLAY
JALANBINJAI
JALANTAMANUTHANT
JALAN
CEYLO
N
JALANMADGE
PE
RS
IAR
AN
RA
JA
CH
UL
AN
RAJ
A
CHU
LAN
CH
AN
GK
AT
LO
RO
NG
CE
YL
ON
JALA
N
KAM
PUN
G
PERSIARAN
STONOR
JALAN
EATON
JAL
AN
STO
NOR
JALA
N
INAI
JA
LA
N
SE
M
AR
AK
HILIR
JAL
AN
AMP
ANG
JALAN
JALAN AMPANG
JALA
N
JELA
TEK
JALAN AMPANG
JALAN MADGE
JALAN
AMPANG
PEGA
WAI
JL
N
14
/27
B
JA
LA
N
GEN
TI
NG
KE
LA
NG
JAL
AN
KOLAM
AIR
JL
N
1/2
7B
JA
LA
N
1/
27
A
JA
LAN
4/2
7A
JA
LA
N
1/2
3A
JA
LA
N
U
SA
H
AW
AN
JA
LA
N
2/2
3A
JA
LAN
G
EN
TIN
G
KELAN
G
JA
LA
N
8/2
3A
JAL
AN
TA
MA
N
IBU
KO
TA
JA
LA
N
CH
EN
G
AL
SE
LA
TA
N
JALANREJANG7
JA
LA
N
3/2
3A
JA
LA
N
LA
NG
KA
W
I
JALAN SETIAWANGSA 13
JALAN REJANG
JA
LA
N
1/2
6
JALANSETIAWANGSA9
JALAN SETIAWANGSA 10
JALANREJANG6
JALANSETIAWANGSA11
JALAN TAMAN SETIAWANGSA
37/56
JALAN SETIAWANGSA 8
PER
SIAR
AN
SET
IAW
ANG
SA
JA
LA
N
BU
KIT
SE
TIA
WA
NG
SA
JA
LA
N
BU
KIT
SE
TIA
WA
NG
SA
JALANSETIAWANGSA1
JAL
AN
PUN
CAK
SET
IAW
ANG
SA
8A
JA
LA
N
US
AH
AW
AN
5
JA
LA
N
KI
LA
NG
JA
LA
N
8/27
A
JALAN 2/27A
JA
LA
N
6/
27
A
JA
LA
N
US
AH
AW
AN
6
JA
LA
N
5/2
7A
JA
LA
N
G
O
M
BAK
JA
LA
N
2/
27
A
JALAN
1/24
JA
LA
N
GENTI
NG
KELA
NG
JALANAIRJERNIH
JALAN BUNGA KANTAN
JALANGOMBAK
JAL
AN
3/2
7A
JA
LA
N
TA
MA
N
IB
UK
OT
A
JAL
AN
MA
WA
R
JALANPAHANG
JAL
AN
1/2E
JA
LA
N
KU
AN
TA
N
JALAN
GO
MB
AK
JA
LA
N
PA
HA
NG
JALAN
ENGG
ANG
JALAN
CHAN
CHIN MOOI
JALAN
AIR
PANA
S
JA
LA
N
JE
LA
TE
K
JALAN TITIWANGSA
JALAN ENGGANG
JA
LA
N
GOMBAK
JA
LA
N
TA
MA
N
ME
LA
TI
1
JALANGOMBAK
JA
LA
N
KE
PO
NG
JALAN
TAMA
N SETIA
WANG
SA 37/56
JALAN1/48A
PE
SIA
RA
N
TA
MA
N
ME
LA
TI
JALAN PAHANG BARAT
JALANSENTUL
JALAN KEPONG
MIDDLE
RING
RO
AD
II
JALAN 3/48A
JALAN
SENTUL
JALAN 6/48A
JA
LA
N
1/
1A
JALANKEPONGSELAYANG
JA
LA
N
M
ER
G
AS
TU
A
LO
RO
NG
BA
NG
AU
2
JA
LA
N
CA
MA
R
LO
RO
NG
BA
NG
AU
1
JA
LA
N
BA
NG
AU
PE
SIA
RA
N
ME
RG
AS
TU
A
JA
LA
N
KE
PO
N
G
BA
H
AR
U
JAL
AN
BEL
IBIS
JAL
AN
HEL
ANG
JA
LA
N
BE
LA
BA
S
JA
LA
N
BU
BU
T
JA
LA
N
21
/39
JAL
AN
HEL
ANG
BEL
ALA
NG
JA
LA
N
HE
LA
NG
JAL
AN
HEL
ANG
SEW
AH
JA
LA
N
BE
RO
MB
ON
G
JA
LA
N
25
/39
JAL
AN
DEV
ELO
PM
ENT
JA
LA
N
KU
AN
G
BU
LA
N
JALAN11
JA
LA
N
KU
AN
G
G
U
N
U
N
G
JALAN 10
JA
LA
N
KU
AN
G
JL
N
BU
RU
NG
JA
MP
UK
JA
LA
N
BU
R
U
N
G
JE
N
TA
YU
JA
LA
N
KEPO
NG
SELA
YANG
JA
LA
N
BU
R
U
N
G
KA
SA
W
AR
I
JL
N
BU
RU
NG
PU
CH
UN
G
JA
LA
N
16
/37
JA
LA
N
BU
RU
NG
HA
NT
U
JA
LA
N
BU
RU
NG
EN
GG
AN
G
LEBUH
MANJALARA
JALANBATUBELAH
JALANBATUHAMPAR
JL
N
BU
RU
NG
TIO
NG
JALAN 3/10B
MIDDL
E
RING
RO
AD
II
JALANPERUSAHAAN
JA
LA
N
PERUSAHAAN
2
JALAN PERUSAHAAN 4
JALAN5/10B
JALAN 4/10B
JALAN28/10
JALAN46/10A
JALAN 1/10AJALAN PERUSAHAAN 3
JALAN 1/10B
JALAN 57/10
JALAN 59/10
JALAN 45/10
JALAN56/10
JALAN 60/10
JALAN SIBU 10
JALAN2/10B
JALAN3/10B
JALAN SIBU 13
JALAN 4/18A
JALAN 6/18A
JALAN 5/18A
JALANIPOH
JALANSIBU
JALAN 2/18
JAL
AN
KAM
PUN
G
BAT
U
JALAN5/18B
JALANSIBU5
JALAN6/18B
JALAN1/18B
JALAN 5/18C
JALAN 18/18B
EAST ROAD 4
EASTROAD
JA
LA
N
IPOH
EAST ROAD 3
SELANGORSTREET
JALAN KEPONG
EASTROAD
SEGAMBUT ROAD
JA
LA
N
JIN
JA
NG
JALAN MARUDI
JALANMIRI
NORTH FENCE ROAD
JALAN 1/16
JAL
AN
1/3
2A
JALAN 4/16
JAL
AN
2/32
A
CLUB ROAD
PADANGSTREET
WESTFENCESTREET
MAINSTREET
JALAN2/16
JALANUDANGRAWA
JALAN UDANG KAPAS
JAL
AN
5/3
2A
JALAN UDANG KERTAS 1
JAL
AN
5/32
A
JALAN UDANG SIAR
JAL
AN
3/32
A
J.UDANGSIAR2
JALANUDANGKERTAS
JALA
NJAMB
U
JA
LA
N
31
/31
B
JALAN
4/42A
JALAN
12/42
JALAN3/42A
JA
LA
N
SE
LU
DA
NG
JALAN
16/42
JALAN9/42A
JALAN 2/42A
JAL
AN
12/
42A
JALA
N 2/42
JALAN
5/42
JALAN 8/42A
JALAN 1/42A
JALAN
6/42
JAL
AN
SEL
INS
ING
2
JALAN
SELINSIN
G7
JA
LA
N
9/4
2A
JALAN
KEPAYA
NG
JAL
AN
KEL
APA
BUL
AN
JALA
NKUCH
ING
JALAN
BATU
KENTON
MEN
JA
LA
N
MA
TA
NG
1
JA
LA
N
SE
LIN
SIN
G
5
JA
LA
N
MA
TA
NG
2
JA
LA
N
IPOH
JALA
NSEGA
MBUT
PUSA
T
JALA
N
CEN
DER
UH
3
JALA
N KASI
PILL
AY
PESIA
RAN
SEGA
MBUT
TENG
AH
JA
LA
N
KO
VIL
HIL
IR
JALA
NRAJA
ARFA
H
JAL
AN
PER
HEN
TIA
N
JAL
AN
SEG
AM
BUT
BAW
AH
JALAN DATO' SENU
JA
LA
N
BA
CH
AN
G
JALAN3/48
JALAN
KOVIL
ULU
JA
LA
N
NA
NG
KA
JALAN DATO' SENU 4
JALAN HAJI SALLEH
JALAN1/62D
JALAN7/62A
JALAN
1/48A
JALAN6/62A
JALAN5/62A
JALAN HELANG MERAH
JALAN9/62A
JALA
N HEL
ANG
MER
AH
JALAN11/62A
JALAN 8/62A
JA
LA
N
KG.BANDAR
DALA
M
JALAN 4/62A
JALAN 3/62A
JA
LA
N
22/
38A
JALA
N
LA
NG
EM
AS
JALAN
LANG
KUNIN
G
JALAN
LANG
PERU
TPUTIH
1
JAL
AN
LAN
G PER
UT
PUT
IH
JAL
AN
13/
38D
JAL
AN
20/
38A
JAL
AN
1/3
8A
JAL
AN
14/3
8D
JAL
AN
LAN
G PER
UT
PUT
IH
8
JAL
AN
16/
38D
LORON
G BURHA
NUDDI
N HELMI
JALA
N AMIN
UDD
IN BAK
I
JAL
AN
LA
NG
PE
RU
T PU
TIH
8
JALA
N
BUR
HAN
UDD
IN
HELM
I
JAL
AN
SEG
AMB
UT
JAL
AN
15/3
8D
JA
LA
N
6/3
8A
JAL
AN
SEG
AMB
UT
JAL
AN
BU
RH
AN
UD
DIN
HE
LM
I1
LORO
NG
BURH
ANUD
DIN
HELM
I 1
LORONGRAHIMKAJAI13
LORONGRAHIMKAJAI14
JALAN DATUK SULAIMAN 2
LRG.DATUKSULAIMAN7
LRG.DATUKSULAIMAN1
JALAN LEONG YEW KOH
JAL
AN
BU
RH
AN
UD
DIN
HE
LM
I 2
JA
LA
N
AT
HIN
AH
AP
AN
PE
SIA
RA
N
ZA
AB
A
LOR
ONG
BUR
HAN
UDD
IN
HEL
MI
6
JAL
AN
DA
MA
NS
AR
A
PE
SIA
RA
N
BU
KIT
KIA
RA
JA
LA
N
BE
RIN
GIN
JALAN
SETIA
BAKT
I2
JALA
N1/71
JA
LA
N
BU
KI
T
KI
AR
A
/
SP
RI
NT
JALA
N
BER
ING
IN
JA
LA
N
SE
TIA
BA
KT
I
JALAN SETIABUDI
JA
LA
N
DA
MA
NS
AR
A
JA
LA
N
BE
RI
NG
IN
LOR
ONG
SET
IAB
ISTA
RI
1
LORO
NG
SETIA
BISTA
RI
LOR
ONG
SET
IABI
STA
RI
2
JAL
AN
SE
TIA
KA
SIH
3
JA
LA
N
SE
TIA
KA
SIH
5
JA
LA
N
JO
HA
R
JAL
AN
SEMA
NTAN
JA
LA
N
DA
M
AN
SA
RA
JALA
N
SETI
APUS
PA
JA
LA
N
SE
TIA
BIS
TA
RI
JAL
AN
KAS
AH
JA
LA
N
SE
TIA
BIS
TA
RI
JA
LA
N
GE
LE
NG
GA
NG
JALAN
DUNGUN
JALANDAMANSARAENDAH
JA
LA
N
BA
TA
I
JAL
AN
DAM
ANS
ARA
JAL
AN
DAM
ANS
ARA
JAL
AN
BUK
IT
LED
ANG
JALAN MAAROF
JALAN JELUTONG
JA
LA
N
DU
TA
JALANMAAROF
JALAN JEJAWI
JALANTELAWI
JALAN BANGKUNG
JALAN TELAWI 6
JALAN TELAWI 5
JALANPENAGA
LORO
NG
MAAR
OF
JALAN
ARA
JA
LA
N
AR
A
JA
LA
N
AR
A
LORONG KURAU
JA
LA
N
M
AA
RO
F
JA
LA
N
BANGSAR
LEN
GKO
K
ABD
ULL
AH
JA
LA
N
BANG
SAR
JA
LA
N
RI
ON
G
JALA
N
KEM
UJA
JALAN PANTAI BAHARU
JALAN
BUKIT
PANTAI
JA
LA
N
TA
ND
OK
LO
RO
NG
BU
KIT
PA
NT
AI
FEDERAL HIGHWAY
JA
LA
N
TR
AV
ER
S
JALAN KURAU
JL
N
TU
N
SA
MB
AN
TH
AN
3
JA
LA
N
PA
DA
NG
BE
LIA
JAL
AN
SC
OT
T
JL
N
TU
N
SA
MB
AN
TH
AN
4
JLN
.TH
AM
BY
AB
DU
LLA
H
1
JLN
.TH
AM
BY
AB
DU
LLA
H
JAL
AN
WIS
MA
PU
TRA
JLN
TAALA
LA
J. CHO
O CHE
NG
KHA
Y
JALAN
GELU
GOR
JA
LA
N
PU
NC
HA
K
JALAN BUNUS
JALAN ISFAHAN
JAL
AN
BU
KIT
NA
NA
S
LO
RO
NG
PE
RA
K
JALAN TENGAH
JA
LA
N
CH
ER
AS
LR
G.
P.R
AM
LE
E
JALAN
DELIM
A
JA
LA
N
JE
JA
KA
5
JA
LA
N
PE
EL
JALA
NTUN
RAZA
K
JA
LA
N
JE
JA
KA
7
JA
LA
N
MA
HK
OT
A
JA
LA
N
JE
JA
KA
3
JA
LA
N
JE
JA
KA
2
JA
LA
N
JE
JA
KA
9
JA
LA
N
JE
JA
KA
1
JALAN
RAJALAUT
JA
LA
N
AM
PA
NG
RAH
MA
N
AL
AN
KU
CH
IN
G
JALA
N
ABDUL
IS
M
AI
L
JAL
AN
SUL
TAN
JALAN
TUANKU
ABDUL
RAHMAN
ABDULLAHRAJA
JALAN RAJA MUDA ABDUL AZIZ
JA
LA
N
SE
N
TU
L
JALA
NPAH
ANG
JA
LA
N
YA
P
KW
AN
SE
NG
JALAN MAYANG
JA
LA
N
IP
O
H
JAL
AN
TUN
RAZ
AK
JA
LA
N
JA
LA
N
TU
N
RA
ZA
K
JALAN
PUTRA
JALA
N
MED
AN
TUA
NKU
JALAN SEMARANG
JALA
N
MED
AN
TUA
NKU
1
J. YAP AH SHAK
J.D.S
.SULA
IMAN
1
J.
MED
AN
TUA
NKU
2
JALANDORAISAMY
JALA
NBELIA
L.T.
ABD
.RAH
MAN
2
JALA
N SRI
AMA
R
LRG.
RAJA
LAUT
LORONG
HAJITAIB1
JALAN RAJA ALANG
JALAN
TIONG
NAM
LORONGHAJITAIB2
JALAN HAJI TAIB
LORONGHAJITAIB3
LORONGHAJITAIB4
JALANHAJIHUSSEIN
JALANA.RAHMANIDRIS
JALAN RAJA BOT
JALAN
CHOW
KIT
LORONG
HAJI TAIB 5
RA
JA
LAU
T
LENGKOK
JALAN RAJA ALANG
JAL
AN
LU
MU
T
JALAN
SETIAWAN
LORONGRAJABOT
JAL
AN
DA
TO
HA
JI
EU
SO
FF
JALAN
CEMUR
JAL
AN
IPO
H
KE
CIL
JALA
N
BIDO
R
JALAN
PANGKOR
JALAN
PEKELILING
LAMA
JAL
AN
TE
ME
RL
OH
JALAN RAJA ALANG
JALAN RAJA UDA
MU
DA
MU
SA
JA
LA
N
RA
JA
JLN
HJ
HASSA
NSALLE
H
JALAN
RAJA
MUDA
MUSA
LRG
RAJA
UDA
1
JALAN DATO ABD RAZAK
SULA
IMAN
JALANSULTAN
JALA
NHAJ
IYAA
KUB
JAL
AN
RA
JA
UD
A
JAL
AN
DAT
O
ABD
UL
MA
LIK
JALAN RAJA MAHMUD
JAL
AN
SU
NG
AI
BA
HA
RU
JALAN HAMZAH
JALA
NDESA
PAND
AN
JALAN 4/76C
JAL
AN
BEL
ANG
KAS
JALAN
4/76B
JAL
AN
THA
VER
JALAN KAMPONG PANDAN
JALA
N
PER
TIWI
JAL
AN
WIR
AWA
TI
6
JA
LA
N
WI
RA
JA
LA
N
4/
91
JALA
N
PRIA
8
JA
LA
N
PE
RT
IW
I
1
JAL
AN
PE
RK
AS
A
1
JALA
N
PRIA
JALANPERKASA1
JALANJEJAKA
JA
LA
N
1/9
1
JA
LA
N
JE
JA
KA
4
JAL
AN
6B/
91
JAL
AN
8/91
JA
LA
N
JE
JA
KA
JAL
AN
7/91
JA
LA
N
5/9
1
JAL
AN
6/91
JAL
AN
10/9
1
JAL
AN
5/91
JAL
AN
9/9
1
JAL
AN
6C/
91
JAL
AN
6A/
91
JAL
AN
6D/
91
JAL
AN
6E/
91
JA
LA
N
CH
ER
AS
JA
LA
N
PU
DU
UL
U
JALANCHERAS
JA
LA
N
PA
LO
NG
JALAN 3/92B
JA
LA
N
11
/91
JA
LA
N
LO
MB
ON
G
JAL
AN
SEL
AR
JALA
N
SELA
R
JAL
AN
SER
KUT
JALAN IKAN EMAS
JALA
N
SER
KUT
1
JAL
AN
3/92
B
JAL
AN
SEL
ANG
AT
JAL
AN
SEL
AR
4
JA
LA
N
SE
LU
AN
G
JA
LAN
LO
KE
YEW
JA
LA
N
SU
NG
AI
BE
SI
JALA
N
SELO
NJO
NG
4
JALAN SEMBILANG
JA
LAN
LO
KE
YEW
JALAN SEKILAU
JALANSUNGAIBESI
JAL
AN
5/8
9B
JALANJELAWAT
JAL
AN
MID
AH
3
JA
LA
N
6/8
9B
JA
LA
N
CH
AN
SO
W
LIN
JALAN
3/89B
JAL
AN
MID
AH
4
JA
LA
N
MID
AH
BE
SA
R
JA
LA
N
4/8
9B
JALAN JALAK 2
JAL
AN
MID
AH
TIM
OR
JA
LA
N
ME
DA
N
MI
DA
H
JAL
AN
MID
AH
5
JA
LA
N
MI
DA
H
1
JAL
AN
MID
AH
1
JALA
NSEKU
CI
L.BT.A9
JA
LA
N
KU
AR
I
JAL
AN
KUA
RI
JALAN
LANCAN
G
JALAN
JALAK
J.JALAK1
JALAN KASKAS
JALAN
KASKAS
2
JALAN
DURIAN
JALAN
KASKAS
1
JALAN
LOBA
K
JALAN
KETUMBAR
JALAN
KASKAS
3
JALAN17
JALAN
1/96A
JALAN KUAR
I
JALA
N
1/101
JALA
NMAN
IS
J.DESAAMAN11
JALANDESAAMAN3
JALANDESAAMAN9
JALA
N DES
A AMA
N 10
JALAN
CHE
RAS
JALA
N
MUT
IARA
1
JAL
AN
MU
TIA
RA
1
JA
LA
N
CH
ER
AS
JALA
N DES
A AMA
N 12
JA
LA
N
MA
NI
S
4
JA
LA
N
MA
NIS
1
JA
LA
N
MA
NI
S
7
JALAN MANIS 2
JA
LA
N
MA
NI
S
JAL
AN
SIP
UT
JA
LA
N
MA
NI
S
3
JAL
AN
MA
NIS
6JA
LA
N
MA
NI
S
5
JALA
N SIPU
T 3
JAL
AN
SIP
UT
1
JALA
N
SIPU
T
JAL
AN
SIP
UT
AKE
K
JALAN
MIDA
HBARA
T
JA
LA
N
MI
DA
H
BE
SA
R
JALA
NMIDA
HBESA
R
JALAN
MIDAH
12
JALAN
JAYA 5
JALA
NMIDA
HTENG
AH
JA
LA
N
MID
AH
14
JAL
AN
MID
AH
16
JALAN
MIDAH
14
JALAN
JAYA
JALAN BUDIMAN
JA
LA
N
TE
NT
ER
AM
JALAN JAYA 4
JALAN JUJUR
JA
LA
N
TE
NT
ER
AM
JALAN KILANG MIDAH
JALAN IKHLAS
JALANMEWAH
JALAN 1/117A
JALAN 9/117A
JALAN19/117A
JALAN 23/117A
JALAN25/117A
JALA
N MAKM
UR
JALANJUJUR4
JAL
AN
1/11
8
JALANJUJUR3
JALANJUJUR1
JAL
AN
BUD
IMA
N
JA
LA
N
IKH
LA
S
JALAN26/117A
JAL
AN
BUD
IMA
N
1
JALANBANGSAWAN
JALANTASIKPERMAISUR
I2
JALANJUJUR2
JALAN24/117A
JALAN28/119
JALANMUTIARABARAT5
JALAN 1/119A
JA
LA
N
SE
BA
RA
U
JALAN29/119
JALAN MUTIARA 3
JALAN 27/119
JALANNADCHATRAN
JALAN 30/119
JALAN DATO HAJI HARUN
JALAN TIRAM
JALAN MUTIARA 4
JALAN
MUTIA
RA
RAYA
JALAN MUTIARA 5
JALAN MUTIARA BARAT 11
JALAN 3/119A
JALAN MUTIARA 1
JALAN MUTIARA 7
JALAN
1/119
JALANMUTIARABARAT6
JALANARASAKESARI
JALAN DATO HAJI HARUN
JALANBEEENG4
JALANBEEENG1
JALANMUTIARABARAT4
JALAN SARJANA
JALAN CHOO LIP KUNG
JALAN CHOO LIP KUNG
JALAN WARAS 3
JALAN WARAS 1
LRG.CHOOLIPKUNG5
JALAN PENDITA
JALANGELIGA
JALANSARJANA1
JALAN CERDAS
JALANWARAS
L.CERDAS1
EAST WEST EXPRESSWAY
JALAN SARJANA 3
JALANMAHIR
JALAN ARIF
JALAN CEKAP
JALAN SARJANA 5
JALANAHLIMAN2
JALANCERDIK
JALANSARJANA
JALANSARJANA2
JALANAHLIMAN1
JALANPANTAS
JALAN 15/142
JALA
N
9
JALA
NCERD
IK
JALAN 16/142
JALAN AHLIMAN
JALAN 5/142
JALAN
6/142
JALAN 1
JALAN 2
JALAN 2
JALAN 4
JALAN 11
JALAN4
JA
LA
N
1/1
44
A
JALAN4/144A
EAST WEST EXPRESSWAY
JAL
AN
11/1
18B
JALAN3/118C
JALA
N 2/118
C
JALAN5/118C
MIDDLE
RING
ROAD
II
JALA
N14/11
8
MID
DLE
RIN
G
ROAD
II
JALAN4/118C
MID
DLE
RIN
G
RO
AD
II
EAST
W
EST
EXPR
ESSW
AY
JALAN6/118C
JA
LA
N
CHER
AS
MIDD
LE
RIN
G
RO
AD
II
JA
LA
N
1/1
08
JALAN
CHER
AS
JALA
N
6/108
C
MIDD
LE
RING
RO
AD
II
JA
LA
N
SU
NG
AI
BE
SI
JAL
AN
12/1
08C
JAL
AN
1/1
08C
JALA
N 1
JAL
AN
10
EA
ST
WES
T
EX
PR
ES
SW
AY
JA
LA
N
9
JAL
AN
28
JALAN7/125
JAL
AN
SU
NG
AI
BE
SI
JALAN
4/125
JALA
N 7
JAL
AN
4/1
25
JALA
N
11
JA
LA
N
10
JAL
AN
2/12
5
JAL
AN
22
JA
LA
N
9
JALAN
10/125
D
JALAN
9/125D
JALAN
6/125D
JALAN
1/125D
JALAN
8/125D
JALAN
2/125
JALAN 3/125
JALAN
5/125D
JAL
AN
5/12
5
JA
LA
N
20
/14
6
PESIARAN 21/146
JA
LA
N
10
/14
6
JA
LA
N
8/1
46
JALA
N
10/1
33
JALAN PAUH KIJANG
JAL
AN
11/1
33
JA
LA
N
SU
NG
AI
BE
SI
JAL
AN
8/13
3
JA
LA
N
12/
133
JALA
N
9A/1
33
JAL
AN
12/
133
JA
LA
N
9/1
33
JALAN
1/133
JAL
AN
KAM
PUN
G
PAS
IR
JALA
N
1/13
3
JAL
AN
AW
AN
HIJ
AU
1
JAL
AN
KLA
NG
LAM
A
JA
LA
N
KL
AN
G
LA
MA
JA
LA
N
PU
CHO
NG
JALA
N
2/13
3
JA
LA
N
ME
GA
JA
LA
N
ME
GA
ME
ND
UN
G
JAL
AN
AW
AN
HIJ
AU
JA
LA
N
ME
GA
ME
ND
UN
G
JAL
AN
AW
AN
ME
ND
UN
G
JA
LA
N
SE
PA
DU
2
JA
LA
N
SE
PA
DU
JAL
AN
ME
GA
KE
CIL
JA
LA
N
SE
PA
DU
3
JA
LA
N
SE
PA
DU
4
JAL
AN
SEP
AKA
T
10
JALA
N
SEP
AKA
T
10
JAL
AN
SE
PA
KA
T
3
JAL
AN
SE
KA
TA
JAL
AN
SE
KU
TU
JA
LA
N
SE
PA
DU
JALAN
RIANG
JALANRUKUN7
JALANRUKUN2
JALANRUKUN4
JALANRIANG14
JALANRIANG11
JALANRIANG5
JALANRUKUN
JALANRIANG10
JALANRIANG11
JALAN
RIANG
3
JALANRIANG13
JALAN SELESA 1
JALAN SELESA
JALAN SELESA 9
JALAN SELESA 1
JALAN
RIANG
JALAN SUKACITA
JALAN SELESA 6
JALAN RUKUN 6
JALAN RUKUN 3
JALANBATALONG
JALAN RUKUN 1
JALAN 2/115A
JALAN SUKACITA 2
JALAN
SELESA
2
JALAN KUCHAI LAMA
JAL
AN
DES
A
BAK
TI
JALAN 1167C
JALAN
KUCHAI
LAMA
JALAN 3/109F
JALAN DESA BAKTI
JAL
AN
DE
SA
JAY
A
JA
LA
N
DE
SA
UT
AM
A
JAL
AN
DES
A
BAH
AGI
A
JAL
AN
DE
SA
BA
HA
GIA
JALAN DESA
JA
LA
N
D
ES
A
U
TA
M
A
JALAN KUCHAI LAMA
JAL
AN
DE
SA
UT
AM
A
JALA
NKLAN
GLAMA
JALAN
DESA
JAYA
JALA
NKLAN
GLAMA
JA
LA
N
DE
SA
UT
AM
A
JAL
AN
KLA
NG
LAM
A
JALAN
KLANGLAMA
JALANKLAN
GLAMA
LORO
NG
SEPU
TEH
JALAN BANDAR
DESA
JALAN BANDAR DESA 5
JALAN BANDAR DESA 3
JALAN BANDAR DESA
JALANBANDAR
DESA3
JALAN BANDAR DESA 6
JALANBANDARDESA4
JAL
AN
2/1
14A
JALAN KUCHAI 2
JAL
AN
1/1
14A
JAL
AN
1/1
37B
JALAN
SAWI
JALANKANGKONG
JALAN
AWAN
BESAR
JA
LA
N
AW
AN
SA
RI
JAL
AN
AW
AN
CH
EM
PA
KA
JA
LA
N
PU
CH
ONG
PESIARAN
AWAN
JA
LA
N
TA
N
YE
W
LA
I
JAL
AN
7
J.
DA
TU
K
HA
JI
1
J.
DAT
UK
HAJ
I3
J.
DA
TU
K
HA
JI
2
JAL
AN
6
JAL
AN
5
JA
LA
N
DA
TU
K
HA
JI
JA
LA
N
AW
AN
BE
RA
RA
K
JAL
AN
4
JAL
AN
7
JAL
AN
8
JALA
N AWA
N JAW
A
JALANAWANJAWA
PE
SIA
RA
N
AW
AN
JALANAWAN
BESA
R
JA
LA
N
AW
AN
KE
CI
L
7
JAL
AN
HUJ
AN
RAH
MA
T
1
JALAN
HUJAN
EMAS
4
JALAN
HUJAN
EMAS
3
JA
LA
N
HU
JA
N
EM
AS
4
JA
LA
N
HU
JA
N
EM
AS
5
JA
LA
N
HU
JA
N
EM
AS
6
JALAN
HUJAN
RAHM
AT
2
JALAN
HUJAN
JAL
AN
HU
JAN
RA
HM
AT
JALAN
HUJAN
RAHM
AT
3
JA
LA
N
HU
JA
N
EM
AS
3
LRG
.HUJ
AN
RAH
MAT
1
JALANHUJAN
JALAN AWAN KECIL 3
JALAN
AWAN
KECIL
JA
LA
N
HU
JA
N
EM
AS
1
JA
LA
N
HU
JA
N
EM
AS
LIN
GK
UN
GA
N
HU
JAN
JALAN AWAN KECIL 5
JAL
AN
HU
JAN
EM
AS
JA
LA
N
HU
JA
N
EM
AS
2
JA
LA
N
HU
JA
N
EM
AS
7
JAL
AN
HU
JAN
EM
AS
8
JA
LA
N
LA
ZA
T
JA
LA
N
HU
JA
N
BA
TU
JA
LA
N
LA
ZA
T
7
JA
LA
N
MA
NIS
AN
JA
LA
N
LA
ZA
T
JA
LA
N
MA
NI
SA
N
3
JA
LA
N
NY
AM
AN
10
JAL
AN
SE
LE
RA
JA
LA
N
NY
AM
ANJAL
AN
SE
LER
A
1
JALAN NYAMAN
JA
LA
N
LA
ZA
T
2
JALAN LAZAT 7
JA
LA
N
LA
ZA
T
1
JA
LA
N
PE
RIS
A
JALANPERISA2
JALANPERISA1
JALANPERISA5
JALANPERISA2
JALAN PERISA 6
JA
LA
N
LA
ZA
T
5
JAL
AN
LA
ZA
T
4
JA
LA
N
LA
ZA
T
3
JAL
AN
NY
AM
AN
5
JALA
N
NYA
MAN
1
JALAN LAZAT 6
JAL
AN
NY
AM
AN
6
JALAN PERISA 4
JALANMESRARIA
JALA
N
NYA
MAN
4
JALA
N
NYA
MAN
3
JALAN NYAMAN 2
JALANNYAMAN1
JALAN
GEMBIR
A
JAL
AN
GE
MB
IRA
JALANJIRAN4
JALANJIRAN12
JALANENAK
JALANJIRAN
JALANJIRAN3
JALANENAK2
JALAN JIRAN
JALANSENANGRIA
JALAN RAMAH
JALAN JIRAN 7
JALA
N
JIRAN
JALAN JIRAN 5
JALAN JIRAN 10
JALAN JIRAN 9
JALAN JIRAN 6
JALAN ENAK 1
JALAN JIRAN 8
LORONG NIKMAT 11
LORONG RAMAH
LORONG NIKMAT 5
LORONG NIKMAT 3
LORONG NIKMAT 1
LORONG NIKMAT 4
MEDANRAMAH
JALA
N
MES
RAR
IA
LORONG NIKMAT 2
JAL
AN
TH
AN
KU
4JAL
AN
TH
AN
KU
1
JAL
AN
HAN
G
TUA
H
2
JAL
AN
HA
NG
TUA
H
1
JALAN THANKU
JALAN GEMPITA
JA
LA
N
SU
NG
AI
BE
SI
JALANGEMPITA3
JALANGEMPITA1
JAL
AN
GE
MP
ITA
2
JAL
AN
BE
ND
AH
AR
A
JA
LA
N
SU
NG
AI
BE
SI
JALANGEMPITA5
JA
LA
N
SIN
AR
JALANGEMPITA4
JA
LA
N
PE
RK
AS
A
JALANGEMPITA6
JALAN 3/140
JALAN 4/140
JALAN 2/140
JALAN 1/140
JALAN CAHAYA 2
JA
LA
N
CA
HA
YAJAL
AN
CAH
AYA
3
JALAN CAHAYA 4
JALANCAHAYA1
JALANCAHAYA6
JALANCAHAYA7
JAL
AN
PE
RK
AS
A
9
JALANCAHAYA5
JALANCAHAYA9
JALAN CAHAYA 8
JALAN
2F/14
9
JALAN 1F/149
JALAN 5F/149
JAL
AN
PE
RK
AS
A
8
JAL
AN
12F
/149
JALAN 3F/149
JAL
AN
15F
/149
JAL
AN
16F
/149
JALAN4F/149
JALAN1F/149
JA
LA
N
1/5
JA
LA
N
TA
MA
N
ME
LA
TI
8
JA
LA
N
TA
MA
N
ME
LA
TI
2
JA
LA
N
TA
MA
N
ME
LA
TI
6
JA
LA
N
TA
MA
N
ME
LA
TI
4
PE
SI
AR
AN
PE
RT
AH
AN
AN
JA
LA
N
DE
WA
N
JA
LA
N
DE
WA
N
JALAN
TUMB
UHAN
JALANTAMANMELATI17
LORONG SENTOSA
JA
LA
N
MA
LIN
JA
JA
LA
N
MA
LIN
JA
JAL
AN
MA
LIN
JA
1
JA
LA
N
MA
LIN
JA
2
JA
LA
N
MA
LIN
JA
3
JA
LA
N
4/
27
A
JALAN3/27A
JAL
AN
7/2
3C
JA
LA
N
6/2
3B
JA
LA
N
3/2
3B
JA
LA
N
2/2
3B
JA
LA
N
6/2
3C
JA
LA
N
12/
23B
JA
LA
N
TIO
MA
N
JA
LA
N
SA
TA
NG
1
JA
LA
N
BA
KU
BA
NG
1
JALA
N
BAK
UBA
NG
JALA
N
8/23
B
JALA
N SEMP
ADI
JA
LA
N
SA
TA
NG
2
JALAN
JERE
JAK
JALA
NKERU
IN
JALA
N KEMP
AS
JA
LA
N
ME
RB
AU
JALAN
MERANTI
JA
LA
N
CE
NG
AL
JAL
AN
JAM
BU
GA
JUS
JA
LA
N
ME
RA
NT
I
JAL
AN
KIL
AN
G
3
JA
LA
N
RA
SA
K
JAL
AN
JAM
BU
BER
TEH
1
JAL
AN
JAM
BU
BER
TEH
JAL
AN
JAM
BU
ME
RAH
JAL
AN
JAM
BU
MER
AH
2
JAL
AN
JAM
BU
BER
TEH
JALAN JAMBU ARANG
JALAN JAMBU BERASA
JAL
AN
JAM
BU
JEM
BA
H
1
JALAN JAMBU AIR LAUT
JAL
AN
JAM
BU
JEM
BAH
JA
LA
N
JA
MB
U
GA
JU
S
JALAN
30/42
JALA
N 32/42
JA
LA
N
UD
AN
G
KE
PA
I
JAL
AN
UDA
NG
PAS
IR
JAL
AN
UD
AN
G
GA
LA
H
JAL
AN
UDA
NG
PAS
IR
JAL
AN
UDA
NG
GAN
TUN
G
JALANUDANGKETAK
JAL
AN
2/62
B
JALA
N
UDAN
G
GERA
GAU
JAL
AN
UDA
NG
GAN
TUN
G
2
JAL
AN
HEL
ANG
HIN
DIK
JALA
N
1/62A
JAL
AN
3/62
B
JAL
AN
34/
38A
JAL
AN
HEL
ANG
BUK
IT
JAL
AN
LAN
G PER
UT
PUT
IH
2
JAL
AN
LAN
GPER
UT
PUT
IH
10
JALA
N LANG
TOMP
OK
JALANLANGKUNING
JAL
AN
LAN
G PER
UT
PUT
IH
7
JAL
AN
30/
38A
JAL
AN
6/38
E
JALAN
LANG
KELAB
U
JALAN LANG HITAM 1
JAL
AN
13/
38E
JAL
AN
2/38
F
JAL
AN
9/38
F
JAL
AN
1/38
C
JAL
AN
4/38
F
JAL
AN
2/38
C
JAL
AN
10/3
8C
JAL
AN
11/3
8C
JALA
N
5/38F
JAL
AN
3/38
A
JAL
AN
5/38
D
JAL
AN
6/38
D
JA
LA
N
16/
38A
JA
LA
N
14/
38A
JAL
AN
9/3
8D
JA
LA
N
18/
38A JALAN 5/38B
JAL
AN
KEL
APA
HIJA
U
JALAN 6/38B
JALAN 8/38B
JALAN 7/38B
JALAN 9/38B
JALAN4/38B
JALAN1/38B
JA
LA
N
DU
TA
JALAN
KUCH
ING
JA
LA
N
DU
TA
JALA
NDUTA
JALANDUTA
JA
LA
N
DU
TA
JALA
N
LAN
GGA
K TUN
KU
J.T.
SELAT
AN
JALAN
DU
TA
- SG
. BULOH
EXPRESSW
AY
(PL
US)
NKVE TOLL PLAZA
JALAN
DUTA - SG. BULOH
EXPRESSWA
Y (PLU
S)
JAL
AN
LAN
GG
AK
TUN
KU
JAL
AN
LAN
GGA
KTUN
KU
JALAN
DUTA - SG. BULOH EXPRESSWAY (PLUS)
JALA
N LANG
GAK
TUNK
U
LE
BU
HR
AY
A
MAH
AM
ER
U
LE
BUHRAYA
M
AHAM
ERU
LEBUHR
AYA
MAH
AME
RU
JAL
AN
TUN
ISM
AIL
JALAN DAMANSARA
JA
LA
N
IS
TA
NA
JA
LA
N
DUTA
JA
LA
N
BA
NGSA
R
JA
LA
N
SY
ED
PU
TR
A
JA
LA
N
SY
ED
PU
TR
A
KU
AL
A
LU
MPU
R
-
SE
REM
BA
N
EX
PR
ES
SW
AY
(P
LU
S)
KUALA
LU
M
PUR
-
SEREM
BAN
EXPRESSW
AY
(P
LU
S)
KUALA
LUMP
UR
-SEREMB
AN
EXPRESSW
AY
(PL
US)
KU
AL
A
LU
MPU
R
-
SE
REM
BA
N
EX
PR
ES
SW
AY
(P
LU
S)
KUALALUMPUR-SEREMBANEXPRESSWAY(PLUS)
JALAN KUCHAI LAMA
JA
LA
N
IS
TANA
JALAN12/62
JA
LA
N
SU
NG
AI
BU
LO
H
JA
LA
N
2/6
2
JALAN
6/62
JALAN
3/62
JA
LA
N
SU
NG
AI
BU
LO
H
JA
LA
N
2/
62
LEBU
HRA
YA
DAM
ANSARA
PUC
HON
G
JALAN 19/62
LEBUHR
AYADAMANS
ARAPUCHON
G
LE
BU
HR
AY
A
DA
MA
NS
AR
A
PU
CH
ON
G
LEBUHRA
YADAMANSARAPUCHONG
LEBU
HRAY
ADAMA
NSAR
APUCH
ONG
JA
LA
N
KU
C
H
IN
G
LEBUH
RAYA
DAMANSARA
PUCHO
NG
JA
LA
N
KU
CH
IN
G
JALAN
SENTUL
JAL
AN
GOMBAK
JA
LA
N
PA
HA
NG
JALANSENTUL
LOR
ONG
RAJ
A
MUD
A
JALAN MASJID HOSPITAL
JALANDOKTORLATIF
JAL
AN
SEP
UTI
H
JAL
AN
BUK
IT
RAJ
A
JAL
AN
TA
MA
N
SE
PU
TIHJALA
NSUNG
AIDUA
JALAN SYED PUTRA 5
JALAN TANJUNG 12
JALAN TELUK PULAI
PES
IARA
N
SYE
D
PUT
RA
JAL
AN
PE
RM
AI
JALAN SYED PUTRA 3
JALANSYEDPURA1
JALAN SYED PUTRA 4
JALA
N 2/87D
JAL
AN
RO
BSO
N
PESIARANPUTRA
JALANSYEDPUTRAKIRI
JALAN
DAMANLE
LA(1/72B)
JALAN
5/72B
JALAN
DAMA
NSEN
(2/72B
)
JALAN 4/72B
JAL
AN
SRI
HAR
TAM
AS
JALAN
MEDAN
SETIA
JALA
N
SRI
HAR
TAM
AS
JALAN
SRI
HART
AMAS
JA
LA
N
SR
I
HA
RT
AM
AS
1
JALAN BUKIT MAHKAMAH
JA
LA
N
21
/70
A
JA
LA
N
19
/70
A
J.
SR
IHA
RT
AM
AS
7
JA
LA
N
SR
I
HA
RT
AM
AS
1
JA
LA
N
SR
I
HA
RT
AM
AS
3
J.
SR
IHA
RT
AM
AS
6
J.
SR
IHA
RT
AM
AS
5
J.
SR
IHA
RT
AM
AS
4
J.
SR
IHA
RT
AM
AS
9
J.
SR
IHA
RT
AM
AS
8
J.
SR
IHA
RT
AM
AS
12
J.
SR
IHA
RT
AM
AS
10
J.
SR
IHA
RT
AM
AS
13
J.
SR
IHA
RT
AM
AS
16
J.
SR
IHA
RT
AM
AS
14
JALANBUKITKIARA
JA
LA
N
21
/70
A
JALA
N
SEG
AMB
UT
LEBU
H
R
AYA
M
AH
AM
ER
U
JA
LA
N
D
AM
AN
SAR
A
JALA
NTUAN
KU
JALAN
ABDULLAH
MUNSHI
JA
LA
N
MA
SJ
ID
INDIA
JALAN BUNUS
JALAN KINAB
ALU
CHEN
G
JALAN
PETALING
TUN
H.S.LEE
JALAN
JALAN
SULTAN
JALANPETALING
JALAN HANG LEKIR
JALAN
B.POLIS
JALANSULTAN
JLN.HANGKASTURI
JALANPANGGUNG
JA
LA
N
PU
DU
JA
LA
N
BU
KI
T
BI
NT
AN
G
SULTAN
JAL
AN
ALO
R
CHA
NGK
AT
BUK
IT
BINT
ANG
BERA
NGA
N
JALA
N
NAG
ASA
RI
JAL
AN
TE
NG
KA
T
TO
NG
SH
IN
JALA
N PUD
U
JAL
AN
TO
NG
SH
IN
JAL
AN
SA
HA
BA
T
JAL
AN
BE
DA
RA
JA
LA
N
IM
BI
AM
PA
NG
WA
NG
I
JALA
NRAJA
ABDU
LLAH
JALAN
KEMUNTIN
G
JAL
AN
JA
LA
N
PU
DU
CHANGKAT
THAMBI DOLLAH
JALAN PASAR
JA
LA
N
KE
NA
NG
A
LR
G
BR
UN
EI
SE
LA
TA
N
JA
LA
N
BR
UN
EI
JLN
BR
UN
EI
BA
RA
T
JAL
AN
LA
ND
AK
JA
LA
N
KIJ
AN
G
JALA
NSELA
DANG
JALA
N
KAN
CHIL
JAL
AN
BU
GIS
JLN
BR
UN
EI
SE
LA
TA
N
JA
LA
N
NY
ON
YA
JAL
AN
SUN
GAI
BES
I
JAL
AN
ME
MB
ER
AN
G
JALA
N SAY
OR
LRG. YAP HIN
JALAN
C.T. 2
JALAN PASAR BARU
JAL
AN
BE
RU
AN
G
JA
LA
N
PU
DU
JA
LA
N
PA
SA
R
BA
RU
JA
LA
N
ME
RA
NT
I 2
JA
LA
N
ME
RA
NT
I 3
LR
G.
ME
RB
AU
JA
LA
N
ME
RA
NT
I 1
JA
LA
N
ME
RA
NT
I
JA
LA
N
RU
SA
JA
LA
N
TH
AM
BIP
ILL
AY
JA
LA
N
TU
N
SA
MB
AN
TH
AN
JA
LA
N
SU
LT
AN
AB
DU
L
SA
M
AD
JA
LA
N
BE
RH
AL
A
JA
LA
N
TU
N
SA
M
BA
NT
HA
N
JA
LA
N
RO
ZA
RI
O
JAL
AN
VIV
EK
AN
AN
DA
JLN
. TUN
SAM
BAN
THA
N 1
JAL
AN
CE
ND
ER
AI
JALAN TELAWI 1
JALAN TELAWI 4
LORONGMAAROF
J.BAN
GSAR
UTAM
A3
JA
LA
N
BA
NG
SA
R
UT
AM
A
1
J.BA
NGS
AR
UTA
MA
9
JALA
N TUN
MOH
D FUAD
2
JALA
N TUN
MOH
D FUAD
3
JA
LA
N
DA
M
AN
SA
RA
MED
AN
BUR
HAN
UDD
IN
HEL
MI
LOR
ONG
BUR
HAN
UDD
IN
HELM
I 7
JAL
AN
BU
RH
AN
UD
DIN
HE
LM
I2
LORO
NG
BUR
HAN
UDD
IN
HELM
I 10
LOR
ONG
BUR
HAN
UDD
IN
HELM
I 9
PINGG
IR ZAABA
LOR
ONG
BUR
HAN
UDD
IN
HELM
I 11
PESI
ARA
N ZAAB
A
PESIA
RAN
ZAAB
A
LORONG NIKMAT 8
JALAN NIKMAT
LORONG NIKMAT 10
LORONG
NIKMAT 7
LORONGNIKMAT9
LORONGNIKMAT6
JALAN 3/76D
JALAN
1/76D
JALAN
3/76B
JAL
AN
3/76
B
JALAN 5/76B
JALAN
1/76C
JAL
AN
3/76
B
JALAN 3/76C
JALAN 4/76C
JAL
AN
46/
26
JAL
AN
45/
26
JAL
AN
46A
/26
JA
LA
N
58/
26
JAL
AN
46A
/26
JAL
AN
42/
26
JALAN
BUKIT
SETIA
WANG
SA
JA
LA
N
34
/26
JALAN IPOH
JALAN BATU BATAN
JALANBATUBERANI
JALAN BATU AMBAR
JAL
AN
CE
ND
ER
UH
JALA
N
CEN
DER
UH
4
JALAN 2/116B
JALAN 3/116B
JA
LA
N
KU
CH
AI
LA
M
A
JAL
AN
HA
NG
TU
AH
3
JAL
AN
HA
NG
TUA
H
4
JALANRIANG12
JALAN SELESA
JAL
AN
AM
BO
NG
2
JA
LA
N
AM
BO
NG
KIR
I1
JA
LA
N
KE
PO
NG
JA
LA
N
AM
BO
NG
JAL
AN
AM
BO
NG
1
JA
LA
N
AM
BO
NG
4
JA
LA
N
AM
BO
NG
3
JAL
AN
AM
BO
NG
KA
NA
N1
JALA
N
53
JALA
N
54
JAL
AN
PER
DAN
A
3
JAL
AN
PER
DAN
A
4
JALAN
A
JALA
N 31/42
EASTSTREET1
MARKET ROAD
MAINSTREET
THEATRE ROAD
JAL
AN
SE
GA
MB
UT
UT
AR
A
JALA
N SEG
AMB
UT
JA
LA
N
SE
GA
MB
UT
JALA
NMIDA
H18
L. JAYA
14
JALAN JINTAN
L. JINTAN 2
L.JINTAN1
JALAN 4/98
JALAN 3/98
N
SP
RI
NT
HI
GHW
AY
U/
C
SP
RI
NT
HI
G
HW
AY
U/
C
SP
RIN
T
HIG
HW
AY
U/C
PR
OP
OS
ED
DA
MA
NS
AR
A
TR
AN
SIT
RO
UT
E
PR
OPO
SE
D
KL
DE
DI
CA
TE
D
HI
GHW
AY
PAN
TAI
HIG
HWAY
U/C
JALANDATUKSULAIMAN
JALA
N
ATH
INAH
APA
N
Station
u/c
Galaxy
Proposed flats
POLICE
Awana
Puri
Condo
FlatsmosqHANKYU
JAYA
SHOPPING
COMPLEX
SC
Police
SgKlang
Palm
Court
Buddhist
Temple
Crescent
PERNAMA
sc Biro Tata Negarae+003;.
Sri
Im
pi
an
C
on
do
Pearl
Co
urt
Ch.
Sc.
As
ra
m
a
Vi
va
School
Sc.
(Ta
mil
)
Church
Chinese
Temple
ScShell
St. John
BandarTim
or
Dev.jv
DBKL
W
orkshop
Persekutuan
Flats
Flats
Hin
duTem
ple
Sy
kt.
Ma
lur
i
He
ad
Of
fic
e
JALA
N
1A/1
33
JAL
AN
3/13
3
JA
LA
N
2/1
33
JAL
AN
1/1
37C
JLN
2/13
7C
JLN
2/1
37B
JAL
AN
RIA
NG
15
JALAN1/30
JALAN 1/28
JALAN1/127A
JALAN3/127A
JALAN
8/116B
JALAN
9/116B
JALAN
1/116B
JALA
N5/116
B
JAL
AN
4/1
16B
JA
LA
N
6/1
16
B
JALAN 3/114
JALAN 1/114
JALAN2/114
JAL
AN
2/1
15A
JAL
AN
1/11
5A
JALAN 3/109C
JALAN109F
CAS
A ELI
TA
JALA
N
WAN
KADI
R
4
DRA
IN
wIS
MA
mA
HK
OT
A
JALANSIBU8
JALAN 12/34A
JAL
AN
3/34
A
JALAN
3/34A
JAL
AN
7/34
A
JALAN6/34A
JALAN 1/34A
JALAN 13/34A
JALAN 9/34A
JALAN 10/34A
JALAN 2/34B
JALAN 11/34A
JALAN
4/34A
JALAN
1/34B
JAL
AN
PER
DAN
A
2
Proposed Residential
by
Gasing Heights
Gasing Indah
Muslim
Cemetery Pantai Indah
Flats
Kg. Pasir
Dalam
MiddleRingRoadII
Pandan
Perdana
Pandan
Indah
KlangRiver
SPPK
(Semi - D)
Ox-pond
Tmn Orkid Desa
Alam
Damai
(SPPK)
Ox-ponds
TUDMFlats
Taman
Len Sen
Angkasa
Phoenix
Township
Plaza
Phoenix
PhoenixBusinessPark
u/c
Tmn Orkid Desa
Telekom
PEMADAM
DBKL(Proposed Ind. Dev.)
DBKL(Proposed Ind. Dev.)
Sc.
Reserve
Army
Reserve
Shell
DBKL
Flat
Desa Tun Razak Industrial Park
De
sa
T.
Ra
za
k
Ap
artm
en
t
Proposed
Wisma CSRC
Apt.
Apt.
Pe
tro
na
s
Gas
Pe
tro
leum
Ce
ca
ir
VL
(DBKL)
VL
Bandar Tasik
Selatan
Tasik
Heights
Apt.
Tmn Desa
Taman
Naga
Emas
Taman
Salak
Selatan
Sekolah
Tunas Bakti
Approved School
ReserveKSM
Housing
Fld
Chinese
Temple
Desa
Gembira
Condo
Reservoir
Reserve
Apt.
Housing
Under
Vacant
Land
Vacant
Land
Vacant
Land
Tmn
Bukit Aman
Kampung
Malaysia
Tambahan
Kg Malaysia
Raya
ESSO
Industrial
Shopoffice
mosque
TNB
BukitAwansariApartment
Taman Tan
Yew Lai
Shell
Tmn
Bukit
Indah
BP
Sc
Taman Sri Sentosa
Tmn
Kuchai
Tmn
Nam
Fong
Tmn
Bahagia
Electric Transmission Line
Sc.
Sc.
C
linic
Sc.
Avant Court
Electric Transmission Line
Apt.
Apt.
Flats
Flats
Proposed
58 units
shop/offices
Klang
River
IWK
Overseas
Union
Sc.
Industrial Training
Institute
VE-TSIN
TAMAN
GOOD
WOOD
MEADOW
PARK 1 & 2
Taman Desa
Medical Center
Bomba
UPA Building
Industry
Buildcon
PR
IM
A
PLAZA
Taman
United
Kuchai
Brem
Park
Taman
Kuchai
Jaya
Tmn
Pagar
Ruyung
Taman
Continental
Taman
Lin Hoe Taman
Indrahana
Tm
n
Skyline
Tmn
Sg Besi
Pakar Ind. Park
FaberIndah
Longhouses
TNB
Abadi Indah
Apartment
Abadi
Villa
Low Cost u/c
(DBKL jv
Fleet Group)
TELEKOM
Sc.
Sri Desa
Condo
Vanta
ge
Poin
t
Flats
Flats
Flats
Ele
ct
ric
Tr
an
sm
ission
Li
ne
Electric Transmission Line
Electric Transmission Line
Taman
Danau Desa
Des
a
Cinda
im
as
Con
do
(C
on
co
rd
Link
S/B
)
Pro
po
se
d
Con
do
(B
uk
itPer
m
at
a
S/B
)
Apt.Apt.
Apt.
Flat
PEAR
L
PO
IN
T
Proposed
Apt.
Afforestation
Experiments
Reserve
Kg. Pasir
Baru
Oxidation
Pond
Sc
Proposed
Market,
Commercial
Complex &
Shopoffices
Sg. Kla
ng
Klan
g
River
MALAYSIA
CARPET
AJI
NO
MOTO
Kuchai
Entrepreneurs
Park
D
e
Tro
pic
ana
Condo
Apt.Apt.
Taman
Gembira Sc.
Abadi
Baiduri
Why Dev.
Sdn Bhd
Muslim
Cemetery
Flats
BukitGembira
Condo
Apt.Apt.
PLAZA
OUG
BANDAR
PARK
Ele
ctric
Transm
iss
ion
Lin
e
Chinese
Cemetery
Flat
Sri Kota
Taman
Mulia
Cheras Jaya
Tmn Supreme
Tmn
Segar
Segar
Apartment
Sc
Quarry Res.
Tmn Midah
Tmn
Billion
Cheras
Business
Centre
u/c
Temple
Ox-pond
Hospital
UKM
Mosque
Unit
Berkuda
DBKL
Sc
Bomba
Flat
Sri
Labuan
InternationalYouthComplex
Tmn
Gemilang
Tmn
Desa Aman
Infant
Jesus
Convent
Tmn
Mutiara
Used
Car
Supreme
Jaya
Tmn
Suet
Chow
Tmn
Bukit
Hijau
DBKL jv Dwi Tasik
(Flats U/C)
Sports
Complex
Swimming
Pools
Telekom
Danau Lumayan
Sdn Bhd
(proposed township)
WismaZelan
Taman
Tasik
Permaisuri
Sri
Cendekia
Condo
Apt.
Apt. Sc.
F.I.T
Tmn.
Taynton
View
Sedaya
College
Bom
ba
TN
B
O
xi
da
tio
n
po
nd
s
Petronas
Car
Park
Cloud
View
Tower
Taylor's
College
Taman
Rajawali
(Mekar
Mawar
Sdn Bhd)
Shophouses u/c
(Tenggara Teguh)
DBKL
Prism
a Ch
eras
Con
do
Sc.
Sc.
MidahHeights
Condo
Apt.
ETL
JBA
MAKRO
Bandar Tun Razak
Cheras
Leisure
Mall
Tmn
Connaught
Bukit Sg Puteh
Forest Reserve
Extn
oxidation ponds
Apt.
BP
VL
Sc. Reserve
Ox-
Pond
VL
(DBKL)
Winner
Court
B PangsaRia
Flats FlatsFlats
EPF jv MBSB
(proposed
mixed dev.)
Salak Selatan Baru
TNB
Salak Jaya
Winner
Heights
Sri LataCondo
Resortesa
Amanesa
Police Market
Winner
Court
A
TNB
Car
Park
Sri Sabah
(DBKL Flats)
Sri P.Pinang
(DBKL Flats)
Taman Ikan
Emas
Sri Johor
(DBKL Flats)
Mosque
Sri Melaka
(DBKL Flats)
Tmn
Tenaga
Ikhsan
Seri Mas
Condo
Wet
Market
Villa
Laman
TasikBayu Tasik
Apartment
Asrama
Anak Yatim
T. Budriah
M
aktab
Perguruan
Ilm
u
Khas
Old Folks
Home
Velodrome
DBKL
Tmn
Pertama Tmn
Chantik
Tmn
Bukit Ria
Shell
Quarry
Reserve
Bukit Pandan
Condo u/c
Pandan Heights
Condo u/c
Kg Cheras
Baru
Tmn
Cheras
Utama u/c
Tmn RakyatTmn
Bukit
Mewah
Christian
Cemetery
Reserve
Muslim
Cemetery
Bolton
Properties
Razak
Mansion
Sc
Sc
Sc
Oxidation
Pond
(Proposed
Showroom
& Office)
DBKL's
Longhouses
Reservoir
Reserve
Rumah
pam
Pergerakan
PutriIslam
Complexu/c
Sc.
Sc.
DBKL's
Wasteshed
Reserve
Mosque
Sc
under
Federal Land
Commisioner
(Proposed
redevelopment
by Jiwa Unik S/B)
Apts.
Plaza
Dwi
Tasik U/C Maktab
Perguruan
Teknik
Winmin Dev. S/B
(Mahajaya Group)
Tmn Cheras
Tmn. Bukit Asa
Tm
n Midah
Ria
Con
do
(U
/C)
Che
ras La
nd
S/B
KL
Football
Stadium
Pantai
Medical
Centre
Bandar Sri
Permaisuri
u/c
(DBKL jv
Dwitasik S/B)
Prism
a Pe
rdan
a
Co
nd
o
U/C
(Saraintan
De
v.
S/B)
Pekan
Salak South
RTM
Bukit
Angkasa
Taman
Desa
Seputeh
FLATSRILEMPAH
TIA
RA
FABER
CONDO
u/c
FaberRia
O
BD
G
AR
DEN
TO
W
ER
DES
AR
IN
A
CO
NDO
Taman
Fairview
TUDM
IWK
Sc.
JKRTaman
Desa
DBKL'sNursery
Villa
Desa
Condo
Bukit
Desa
Condo
Sg.Klang
KlangRiver
TNB
u/c Taman
Seputeh
Bukit
Sepute
h
MENARA
TELEKOM u/c
PANTAI
SQUARE u/c
TELEKOM
JBA
Sc.
Fajaria
KlangRiver
Hockey
Stadium
(Kementerian
Pendidikan)
Vista
Angkasa
Electric
Trans
mission
Line
University
Hospital
POLICE HQ
CYGAL DEV.
SDN BHD
(mixed dev.)
Flats
SC
Faber
Height
IWK
ProposedMixedDevelopment
Sc.
Danau
Permai
Condo
Danau
Impian
DanauIdaman
Condou/c
Desa Theme Park,
Boat House
& Commercial
Centre
(Amat Muhibah Sdn
Bhd)
DBKL's
lo
nghouses
FA
BERTO
WER
Pantai
Tower
Bintang
Pantai
Ele
ctric
Tra
nsm
issio
n
Lin
e
Lucky
Garden
Bangsar
Heig
hts
NEW
STRAITS
TIMES
UNIVERSITY
MALAYA
Section
16
PJ
MaktabHostel
(MARA)
Bukit
Pantai
TNBPANTAI
HOSPITA
L
KG.HJ.
ABDULLAHHUKUM
Fraser&
Neave
police
sc sc
Robson
Condo
sc sc
LA CHATEAU
LE
C
H
ATEAU
KG.KASTAM
policeflat
Chinese
Cemetery
DBKL
Sports Club
Sep
ut
ih
Per
m
ai
C
on
do
Robson
Heights
Te
mple
Darul
Quran
Taman
Pesiaran
Desa
Cristal
Court
sc
Con
dou/
c
Klang
River
Court
The
Pin
e
G
overnm
ent
Q
uarte
rs
Mus
limCe
metery
Volvo
Pro
posed
Bandar Tim
or
(F
awanis)
Buddhist
Temple
U
E3
Shoppin
g
M
all
Taman Miharja
Sc. Res
Open
Space
Chinese
Cemetery
Sr
iMutiar
a
Co
nd
o
W
isma
Mah
Sing
Per
ce
ta
ka
n
Kes
el
am
at
an
N
as
io
na
lS/B
Per
ce
ta
ka
n
Nas
io
na
l
M
al
ay
sia
S/B
South
Engin
eering
S/BMalay
sia Tob
ac
co
Com
pa
ny
Bhd
.
Police
Station
Sc
Sc
TNB
Miharja Condominiums
M
ih
arja
Fla
ts
DBKL's
Workshop/Store
Quarters
Sc.
DBKL's long
ho
us
es
JKR
(W
orkshop)
Perumahan Awam
Sementara
(Long houses)
Chan Sow Lin
Industrial
Wisma
Maksak
HOME
TRENDS
Sc.
Badm
inton
Stadium
Kompleks
BeliaProposed
Residential
(Berjaya)
MID
VALLEY
CITY
u/c
Bukit
Robson
Condo
LEVER
BROTHERS
U
D
A
H
old
in
g
S/B
Putra
Ria
Tam
an
Sham
elin
Perkasa
GM
Institute
Ess
o
Town
Park
u/c
(DBKL)
Perumahan
Sementara
Apts.
G
ate
way
2020
Busin
ess
Park
Sri Bin
ta
ng
Sm
art School
C
om
ple
x
u/c
D
BKL's
lo
nghouses
Kem
ente
rian
Pendid
ik
an
Apts.
Jaya Jusco
Car
Park
DBKL's
Land
(Proposed
housing
in future)
PGRM
Pantai
Panorama
Condo
Pantai
Hill
Park
BukitSgPuteh
ForestReserveExtn
P/P
P/P
P/P
Times
Squa
re
Busi
ness
Plaza
.
P/P
P/P
P/P
PR
IM
E
CO
LL
EG
E
P/P
P/P
Nyaman
Court
P/P
IWK
P/P
Electric Transmission Line
Esso
BP
Calt
ex
Ess
o
M
ut
ia
ra
Ban
gs
ar
MCOBA
Bldg
Fla
t
Wisma
Belia
Segambut M.R.
Ap
ar
tm
en
t
Nelayan
Restaurant
SchoolTmn.
Tasik
Titiwangsa
Sc. Mahsuri
Apt.
Sri Ayu
Apt.
Apt.
Apt.
Tmn. Keramat Permai
SH
SH
SH
Mosq.
Clubhouse
Arkib
Negara
Kg.
Segambut
Dalam
Condo.
Duta
Ria
Radin Makmur
Prima
Duta
U/C
Hindu
Temple
MATRADE
(Perbadanan Pembangunan
Perdagangan Malaysia)
Sc.
Menara
KLH
Sc.Sc.
Field
Sc.
Hindu
Temple
Sc.Sc.
Sc. Sc.
ChurchSc.
Field
Hosp.Tawakal
Institut
Kefahaman
Islam
Sungai Penchala M.R.
Police
Phileoland Bhd.
(Proposed
Mixed developments) Maktab
Perguruan Sri Kota (Institut
Aminuddin Baki)
PULAPOL
(Pusat Latihan
Polis)
Proposed
Mixed
Dev.
FL
AM
ING
O
HO
TE
L
Res
cue
991
MIDDLE
RING
ROAD
II
Antah
Tower
Kelab Golf Perkhidmatan Awam
IWK
Penas
Corp.
DESAKIARACONDO
Bangsar
Sports
Complex
Bangsar
Baru
Taman
Bangsar
Ele
ctric
Tra
nsm
issio
n
Lin
e
SRI W
ANGSARIA
Bukit
Bandaraya
Wisma
Quepacs
Police
Station
SR
JKJa
lanPa
sa
r1&
2
School
MAB.
Caltex
Health
Institution
Nurse
Hostel
Sch
SC
O
TT
VIL
LA
MENA
RABELFI
ELD
Pandu
Puteri.
. Wisma
Putra School
School
Sc Church
Government
QuartersEdinburgh
Property S/B
(officeu/c)
Government Quarters
CHO
O CHE
NG
KH
AY
WI
SM
AMI
RA
MA
PUSPANITA
DB
P
Co
mp
lex
U/C
Roman
Catholic
Cemetery
Se
k.
M
en
.
Ts
un
Ji
n
Flats
Bu
dd
his
t
Ce
me
ter
y
Mos
que
KENANGA
POINT
CONDO
School
Government Quarters
(Proposed
Redevelopment by
Progressive Steel S/B)
Pos
tOff
ice
Telekom
Bu
dd
his
t Te
m
ple
SM
K
Pu
te
rij
ay
a
SR
JK
(C
)
Ku
ng
Mi
n
SK
Ja
lanPa
sa
r1&
2
SR
JK
(C
)
Ch
in
Wo
o
Bom
ba
Pandan
Jaya
CasaRia
Sc.
TamanMaluri
Telekom
Government Quarters
Mosque
DUA
RESIDENCE
Royal
Selangor
Golf
Course
Palestin
e
PuteriIslam
FERNLEA
COURT
Government
Quarters
Proposed
Apt.
Fairview
Int.
School
Iran
DAMAI
SURIA
Iraq
Austr
alia
Apt.
U/C
Indonesia
British
Net
herl
and
New
Zealan
d
Canada
USA
VILLA U
THANT 1
Proposed
Apartment
Nigeria
Japan
SERISKA
Iraq
Om
an
Germ
any
Propose
d
Office
Rama
V-Thai
Resta
urant
Apt.
U/C
(GTY
S/B)
Fella
Desi
gn
Furn
iture
Indo
nes
ia
PE
TR
ON
AS
Istana
Perlis
Istana
Terengganu
Bombay
Palace
Restaura
nt
Apt. U /C
(E&O
Developers)
Germa
ny
Apt. U/C
(Dunia
Damai S/B)
Colombia
Kuwait
Proposed
Semi-D
Propo
sedOffice(Indah
Mahs
uri SB)
Singapore
Korea
MBSB
U/C
Libya
.WAWASAN
HOTEL
(12s Hotel & 16s Office)
(IRAT Hotels & Resorts
S/B)
THE PAVILLION
SHOPPING / RESIDENCE
/ HOTEL
Tem
ple
LTAT
Kary
ane
ka
ST
AR
HIL
L
KL
AP
AR
TM
EN
TS
ME
NA
RA
PR
UD
EN
TIA
L
MA
RR
IO
T
HO
TE
L
RIT
ZCAR
LTO
N
WESTIN
KL U/C
(Arena
Warni S/B)
Kia Peng
Dev. S/B
WISMA
MISC
DORS
ETTREGE
NCY
SR
IKI
A
PE
NG
K&
N
KE
NA
NG
A
Ven
ezu
ela
KO
MP
LE
KS
AN
TA
RA
BA
NG
SA
CROWN
PRINCE
HOTEL
U/C
ME
NAR
APIN
ANG
NO
VO
TEL
UO
ACE
NT
RE
EQ
UA
TO
RIA
L
HO
TE
L
CONLAY
COURT
UO
AII
Vietnam
Off
ice
Belgium
KI
RA
NA
CO
ND
O
AS
CO
TT
SE
RV
IC
E
RE
SI
DE
NC
E
Pakistan
ESSO
TOWER
Ca
rPa
rk
Spain
IM
PI
AN
A
HO
TE
L
M
NI
TW
IN
S
Yay
asa
nSar
awa
k
Kelab
Conlay
KECK
SENG
Heritage
of
Malays
ia
Trust
KL
PLA
ZA
Philipp
ines
Ista
naJoh
or
Ibusawat
Telekom
Selangor
Polo & Riding
Club
Sek. Keb.
Desa Pandan
DESA PANDAN
SRIPOLO
U/C
MENARA
POLO
Apartments
Tasputra
Perkim
MIDDL
E
RING
RO
AD
II
Kg. Desa Pahlawan /
Kg. Perw
ira Jaya
RAINTREE
CLUB
MEL
IA
ProposedDataranPerdana
IMBI
PLAZ
A
AMO
DA
Institu
t
Ke
mah
ira
n
MAR
A
Petro
nas
Kg. Panda
n Lam
a
Sc.
RHBCENTRE
20s
Offic
e U/C
(NOV
US
COR
P S/B)Prop
osed
Offic
e
(Pos
sitive
Prop
ertie
s
S/B)
WISM
ATIME
Sc.
JALA
N
SELA
TAN
Chu
rch
JALANMELOR
JALAN PUNAI
SHAW
PARADE
BERJAYA
STAR
CITY
U/C
HOTEL
UNIVERSAL
U/C
SE
AS
ON
S
TO
WE
R
MENARA
LI-FOONG
U/C
SM (P)
Bandaray
a
JAL
AN
1/7
7
SRK
Datok Abu Bakar
1 & 2
VILLA U-THANT
Kia
Peng
Dev.
SB
(Office
&Svc
Apt.
U/C)
IXO
RA
APT.
PU
DU
PL
AZ
A
SR
JK
(C)
Ch
ong
Pa
h
Pit
Ch
ee
Hin
duTe
mp
le
Bkt.
Sem
antan
Prop. Resort Housin
g
Pusat
Sains
Negara
Bkt.
Kiara
Equestrian
Club
Bhg. Tekno.
Pendidikan
(Kem.
Pendidikan)
Pusat
Perkembangan
Industri Sekuriti
(U/C)
INTAN
Tugu
Negara
Institute of
Strategic &
International
Studies
Kompleks
Kem. Kerja
Raya
JKR
Bgn.
Parlimen
Sri
Murni
Duta
Vista
Shell
Sem
i - D
Esso
Damansara
Villa
Jelutu
ng
Villa
Telekom
Office
Wisma
Guthrie
MenaraS.P.B.
S.P.P.K.
Wisma
Socfin
Shell
Wisma
Perdana
Kompleks
Damansara
JPJ
.
Bkt.
Setia
S.P.P
.K
Office
Office
Chase
Perdana
Ma
lay
sia
n
RE
Apt.
Mixed
Development
W
ism
a
Dam
ansara
John
Hancock
.Car
Park
.
Office
.
Sports
Com
ple
x
(Kem
ente
ria
n
Belia
&
Sukan)
Kelan
a MasPlaza
Ele
ctric
Tra
nsm
issio
n
Lin
e
UOA
Wisma
Semantan
MBSB
Antah
Car
Park
Bukit Aman
Police HQ
Rum
ahPers
ekutu
an
KEMENTERIAN
KERJA RAYA
PKNS
DEWAN
BANDARAYA
DataranMerdeka
.
St. Mary's
Church
BANK
RAKYAT
CHUNG
KHIAWKUWASA
S'N
GO
R
MAN
SIO
N
Ba
nk
of
Co
mm
erc
e
Shop
hous
es
U/C
SelangorClub
EK
RA
N
Sek. Men.
perempuan
Methodist
Pusat
Islam
Malaysia
KL
RailwayStation
KTMBERHAD
Masjid
Negara
Kla
ng
Riv
er
Basketball
Stadium
Gomb
akRiver
PusatBandar
Damansara
Panggung
Aniversari
Tmn.
Burung
Tmn.
Orkid
Kelab
Perdana
Memorial
Tun
Razak
JPS
Tmn.
Rusa
JPS
Pusat
Sains
Planetarium
Negara
Tmn.
Kancil
. .
.
.
.
..
. .
TasikPerdana
Carcosa
Sri
Negara
Istana
Tetamu
CITY ONE
Phase 1
GLOBE
SEMUA
HOUSE
CITY ONE Phase 2
MENARA
TUNRAZAK
Offi
ce
SR
K
St
. Jo
hn
WIS
MAKO
SA
S
MAL
AYA
N
MA
NSI
ON
WISMASHEN
Mun
Loong
CarPark
MYD
IN
DAYABUMICOMPLEX
Rex
Hig
hCou
rt
Masjid
Jamek
Bangun
anSultan
AbdulSamad
Chin
ese
Tem
ple
Polic
e
Quar
ters
Polic
e
Statio
n
Go
sp
el
Ha
ll Ch
urc
h
UDA
Ocean
KLANG
BUS
STATIO
N
MANDARIN MABA
PLAZA
WARIS
AN
Police
Traffic
H.Q.
MALAYA
HOTEL
Traffic
Police
Car Park
(UDA)
PA
HL
AW
AN
Polic
e
Stati
on
SikhPolice
Temple
Hindu
Temple
Railway
Station
Extension
UDA
TUN
SAMBAN
THAN
SIM
E
BAN
K
Chinese
Assembly
Hall
KlangRiver
PO
SM
ALA
YSIA
HO
TE
L
MID
AH
Inda
hD'sa
ra
MU
LT
I-
PU
RP
OS
E
ME
NA
RA
CAPITAL
SQUAREu/c
Pro
p.C
ondo.
Desa
Dam
ansara
Condo.
Sc.
Plaza
Damansara
Damansara
Heights
SC.
Bangsar
Indah Apt.
Mosq.
Govt.
Bldgs.
Reserve
Sri
KasturinaTivoli Villas
Desa
Bangsar
Ria
Merak
Kayangan
Casa
Vista
Federal Buildings Reserve
Desa Bistari
Condo.
School
.
...
Sri
Perdana
PyramidSuper
Club
TIVOLIVILLAS
Taman
Bandaraya
Sri Penaga
Tmn. Sa
Damaisari U/C
Bangsar
Towers
Cascadium
Bangsar
Puteri
Bandaraya Dev.
(Bungalows U/C)
Jamnah
View
Car Park
Bangsar
Shopping
Complex
KL Golf & Country Club
M
uslim
Cem
ete
ry
Prop.
Convention
Centre AravilleBayu
Angkasa
Bandaraya Dev.
PALAPESU.M
SC
. JKR
Istana Hingap
N. Sembilan
. Ban
gun
an
Su
laim
an
SB
AH
al
l
KW
SG
KL
Sentral
U/C
Pr
op
os
ed
Ho
tel
&
Se
rvi
ce
Ap
t.
by
YT
L
Co
rp.
Jab
ata
n
Aga
ma
Tel
ek
om
Bui
ld
in
g
ArkibNeg
ar
a
Flats
Ch
urc
h
of
Th
e
Ho
ly
Ro
sa
ry
SR
KJa
la
nHa
ngTu
ah
AT
RIU
M
Bukit Nanas
Water Plant
KL
Tow
er
Rest
auran
t
WI
SM
AIDR
IS
MA
S
ME
NA
RAHA
PSE
NG
KI
M
SE
AH
PA
N
GL
OB
AL
NU
SA
NT
AR
A
SM
I
HAW
PAR
UB
NAp
t.
SH
AN
GR
I-L
A
HO
TE
L
UB
NTo
we
r
WIS
MA
SPK
YNH-KFH
THEPINNACLE
LIF
ECE
NT
RE
TO
NG
AH
ME
RC
ED
EZ
FR
AS
ER
RE
SI
DE
NC
E
W
IS
M
A
HO
NGLE
ON
G
Prop
osed
Offic
e
(Lion
Cou
rt
Sdn
Bhd
)
Pro
po
se
d
ME
NA
RA
MU
LP
HA
PB
Pac
ific
IM
C
CR
OW
N
RE
GE
NC
Y
RO
HA
S
PE
RK
AS
A
SR
JK
(C)
Jala
n Dav
idso
n
Ca
rPa
rk
GR
AN
D
OL
YM
PICHO
TE
L
St.
Anthony
Church
POLI
CEHQ
PUDU
JA
IL
BE
RJ
AY
A
PL
AZ
A
PLAZA MERDEKA
U/C
Site
Offic
e
CE
NT
UR
Y
HO
TE
L
SU
N
CO
MP
LE
X
E&
OSE
RV
ICE
D
AP
AR
TM
EN
T
VictoriaInstitution
Bo
m
ba
Tapak
Semaian
Prop. Resort Housing &
Corporate Office
Tapak
Semaian
Villa
Flora
Kiara
Park
Sc.
Sc.
Sc.
Mosq.
Sc.
Botanical
Garden
Reserve
SRI
TTDI
CONDO
Pinggiran
Kiara
KiaraView
Trellises
Apt.
IBM
Tmn. Tun Dr. Ismail
Fld.
Kiara
Green
Town
House
Tmn. Duta
Bkt.
Tunku
Istana
Negara
Reserve
Plaza
Damas
Menara
Hartamas
Puncak
Prima
Sc.
Telekom
(Prop. Bdr. Sri Duta)
Mont
Kiara
Astana
Sunrise
Head Office
Prop. Sc.
Mont. Kiara
Pines
Apt.
Mont. Kiara
Pelangi
Mont. Kiara
Palma
Sc.
Mont. Kiara
SophiaSunrise Land
Sunrise Land
Sc.
Specialist Centre
Sunrise Land
Vista
Kiara
Apt.
Bungalow
Wilayah
Persekutuan
Mosque
(U/C)
Lembaga
Peperiksaan
Kem.
Dlm.
Negeri
Kompleks
Kerajaan
Asia
Pacific
Dev.
Centre
ISTAC
(U/C)
BPR
Std.
Tun
Razak
Majlis
Sukan
Negara
Institut
Perkembangan
Kurikulum
Kem.
Pendidikan
Camelot
Sri
DutaII
Sri
Tunku
Villa
Bkt.
Tunku
ProposedDevelopment
(BoltonPropertyjv.KTM)
Forestry
Dept.
Sri
Ban
da
r
Bel Air
Condo.
Prima
Damansara
Condo.
Ch
em
pe
na
i
Pa
rk
Co
nd
o.
DBKL
Quarters
Puncak
Sri Hartamas
Mix. Dev.
Plaza
Mont KiaraLanai Kiara
Desa Sri
Hartamas
MBf Land Bhd.
Olympia
Experimental Plantation Reserve
Sunrise
Berhad
Belvedere
The
Abode
Govt. Offices
School
SriDutaI
Sri H
artam
as
Ply.
Ground
Pusat
Matrikulasi
UKM
Play
grou
nd
Balai
Felda
Kementerian
Tanah&
Pembangunan
Kopera
si
Palladium
Palladium
FELDA
SR
K
Ja
lan
Gu
rne
y
1 & 2
Pusat Latihan
Telekom
FELDA
UTM
Kg. Datuk Keramat
Malay Reserve
KEMENTAH
(Army Camp)
VILLA
PAWANA
U/C
Restaurant
Prop
osed
Serv
ice
Apar
tmen
t
Ca
r
Pa
rk
Prop
osed
Hote
l
(Ody
ssey
SB)
Ca
r
Pa
rk
UTIL
ITY
PLA
NTS
LUTH
PNB
LOT 181 U/C
-Service
Apartment
(PNB)
THE
CORINTHIAN
TROIKA
CONDOCE
NT
RA
HO
TE
L
AP
T.
G-TO
WER
OFFI
CE
WIS
MA
MCA
LION
TOWER
ME
NA
RA
TR
Chi
nes
eTem
ple
Proposed
Olympia
Plaza
SHEL
L
AMPANG PARK
VI
ST
A
DA
MA
I
OSK
PLAZA
JE
LIT
A
CO
UR
T
8
PERSIA
RAN
HAM
PSHIR
E
U/C
PHILEO
PROMENADE
MENARA
PHILEO
SH
L
AMPANG
PLAZA
CIT
Y
SQ
UA
RE
CR
OW
N
PR
INC
ES
S
HO
TE
LEM
PIR
E
TO
WE
R
ANJ
UNG
DAM
AI
Proposed Bungalow,
Semi-D &
Townhouses
LEE GARDEN
Italy
Ireland
78
L.A.D
Leisure
Holiday
IstanaSharifAli
DESA
ANGKASA
GEM
Hock
Choon
Olympia
SportClub
Audio
Tech.
Inst.
AMBASSYBUSINESSPARK
U/C
Ghana
8AMP
ANG
HILIR
MalaysiaInstitute
ofManagement
Roadhouse
Grill
Restaurant
Victoria
Station
VILLA
AMPANGRussia
Sayfol
international
School
China
Government
Quarters
WISMA
PERKESO
SRI
MAHKOTA
Swedish
MON-
CHIQUE
Rubber Research
Institute
CHINESE
CHAMBER
SU
CA
SA
Thailand
Po
liceQu
arters
191
JALAN
AMPANG
British
DESA
UTHANT
LANSON
PLACE
GLOVER
CLOSE
Prop
osed
Apt.
Russian
Cultural
Centre
Proposed
OfficeBuilding
(KonsortiumEnterprise
(M)S/B)
Apt. U/C
Masbe
Capital S/B
Proposed
Apartment
(Tenaga
Nasional
Properties
S/B)
Prop. Apt.
(Pelangi
Istimewa S/B)
Proposed
Apartment
Restaur
ant
Carlos
Haciend
a
INM
IND
KHAZANA
H
COURT VILLA
AMAN
SERI
RITCHIE
Propose
dApartmen
t
(Rinting
Sejati
SB)
Esso
Nihonk
an
Club
Kem
Transit
(Army)
RO
NO
SH
e
AMPANG
971
U/C
13 Block
s 3 sTown
house
s
(Peninsula
rLand
Dev. S/B)
Risda
Pro
pos
edOffice
&Apa
rtm
ent
Fiat
Prop
ose
dOffic
e
Camp Pacific (Army)
BBQ
ParkGarde
n
312A
Apt.
Shell
GLENEAGLES
INTAN
MEDICAL
CENTRE
EON
Prop
ose
d
2Bloc
ks
208
unit
sCon
do
-AN
TAR
AVILL
A
(Din
asti
Meg
ah
S/B
)
RumahSabah
SHAHZAN
COURT
Am
pangPoint
IM
PI
AN
A
ON
TH
E
W
AT
ER
FR
ON
T
(Penin
sular
Land Dev. S/B)
YAYASAN
SENI
Artisan
Centre
& Gallery
Apartm
ent
U/C
(Timah
Securiti
es)
GCB
COU
RT
SRI KENNY
PLA
ZAAMPAN
GCIT
Y
Bom
ba
GRANDSEASONS
AVENUE
Polic
e
Sta
tio
n
R
es
er
vo
ir
Hospital
Kuala
Lumpur
PAN
PAC
IFIC
HOTEL
PWTC
20storey Complex U/C
(Generasi Mutiara SB)
car park
(Propose
d
Towers
by
AMDB
jv
YTL))
Stadium
TPCA
Federal
Capitol
PUTRA
COURT
Panggung
Negara
BISTARI
CONDO
He
ntian
Pu
tra
THE
LEGEND
CITYPARK
HOTEL
Ca
r Pa
rk
UMNO
THE MALL
VISTAN
A
HOTEL
DY
NA
ST
Y
M
IC
Se
k.
M
en
.
M
ax
we
ll
PERKIM
Bus & Taxi
Termina
l
SE
NT
OS
A
TRI
STAR
U/C
VIST
ANA
CON
DO
PUTRA
PLACE
PLAZA
PEKELIL
IN
G
IG
B
G
RA
ND
PA
CIF
IC
SRK
Raja Muda
.Institut
Jantung
Negara
Proposed
Hospital Islam
(Majlis Agama
Islam W.P)
Prop
osed
KUB
Com
plex
BERNAM
A
19 storey office U/C
(Swasta Setia Holdings S/B)
Proposed SELBOURNE CITY
SALG
ro
up
of
College
M
ar
inar
a
U/C
(A
ba
nd
on
ed
)
National
Library
DBK
L
Pr
op
os
ed
Ba
nk
Islam
HQ
SM
JK
Ta
m
il
Jl
n
Fl
et
ch
er
Telekom
U/C
UKM
Clinic
SR
IBU
KIT
TU
N
KU
GurdwaraSahib
(TattKhalsaDiwanS'ngor)
JPA
Hotel
Proposed
Redevelopment
by
KLCity
Bazaar
SB
jv
City
Hall
Hotel
SRK
JLNBAT
U1&2
.
Stanford
Hotel
WI
SM
ASIM
EDA
RB
Y
.
WIS
MACY
CLE
CA
RR
I
27storey
OfficeU/C
(Seravista
SdnBhd)
SRJK(TAMIL)
APPAR
SAFUAN
PLAZA
TUNKU
KUDIN
HOUSE
PLA
ZA
POT
ENT
IAL
(mix
eddev
.)U/C
SRI
MARA
Sek.
Ren.
Khas
Prop. Hotel
(Petaling
Garden Bhd)
BANK
UTAMALPPKN
BUMI
RAYA
MARA
BAN
KPEM
BA-NGU
NAN
QUALITY
HOTEL
Car
Park
DAR
UL
TAK
AFU
L
PLAZ
AHOT
EL
Hotel
HERITAGE
HOUSE
FABER
IMPERIAL
COURT
KURNIA
Vision
City
(RHB)
U/C
Car Park
GRA
ND
CON
TI-NEN
TAL
SRJK
(C)
CHUNG
KWOK
MERPATI
FLATS
Mui
Fan
Office
(Asia
Co
nd
oc
orp
)
Of
fice U/C
VILLA
PUTERA
VILLA
PUTERI
Hankyu
MARA
PERTAMA
COMPLEX
Propo
sed
Hotel
(Capi
tal Prope
rtiesBhd)
Shell
MENARA
PUTRA
Kg. Baru Malay
Reserve
Flats
PETR
O
NAS
TW
IN
TO
W
ERS
MAXIS
TOWER
WIS
MA
CEN
TRA
L
THE REGENT
RESIDENCE
AVENUE K
MA
GN
A
CO
ND
O
MA
YA
HO
TE
L
CEND
ANA
CON
DO
WISMA
EQUITY
PU
BL
IC
BA
NK
Bolton's
Proposed
Mixed Dev.
GET
AH
ASL
I
PH
ILEO
AV
EN
UE
D'M
AY
AN
G
WI
SM
A
SE
LA
NG
OR
DR
ED
GI
NG
Au
st
ra
lia
Muslim
Cem
etery
M
IN
G
CO
UR
T
HO
TE
L
MA
YA
NG
CO
UR
T
YN
H
CO
ND
O
KE
MA
YA
N
TO
WE
R
Pro
pos
ed
Offi
ce
Buil
ding
(Sim
eAxa
Ass
uran
ce
Bhd
)
Klang
River
Klang
River Klang River Klang
River
Gom
bak
River
Gom
bak
Riv
er
DESA
KUDALARI
Kuala Lumpur
City Centre
TAN
& TAN
CALT
EX
ESSO
MOSQ
UE
MANDARIN
ORIENTAL
EDE
NVILL
APetronas
Quaters
Military, Naval, Air
Atache of
Myanmar
Proposed
Apartments
VILLAPUTRAPUTRI
DE
PALMA
Pergabungan
Persatuan
Peladang
VILLA
BLANCA
MICASA
HOTEL
APARTMENT
Uruguay
Switzerland
Persatuan
Karate - Do
THE ICON
VILLA
BOLTON
Government
Quaters
REGAL
VILLA
Kenya
Propose
d
Apt.
Laos
WICKHAM
RESIDENCE
Finland
HydraulicLa
bReserve
Government
Quarters
RAINTR
EETERRA
CE
SAFU
AN
SURIA
KLC
C
BA
NK
SI
MP
AN
AN
NA
SI
ON
AL
Police
Station
. KelabBukitPerdana SOGO
Prop
osedBay
view
Hote
l
Kla
ng
River
CAMPBELL
COMPLEX
MG
IC
WILAY
AH
COMP
LEX
WISMA
DENM
ARK
MA
TIC
CO
NC
OR
DE
HO
TE
L
RE
NA
ISS
AN
CE
/
NE
W
WO
RL
D
HO
TE
LS
ME
NA
RA
TA
PL
AZ
ACH
AO
U/C
Prop
osedMala
yFoodCom
plex
Muslim
Cemetery
ISTANA
NEGARA
CarPark
CarPark
Resta
urant
Car
Park
Resta
urant
Alo
ha
IDAMAN
CONDO
Car
Par
k
Qua
ttro
KL
Region
alCentre
for
Arbitrat
ion
JKR
991
Ex-
Shel
l
&7-Ele
ven
Car
Park
Car
Park
Car
Park
Car
Park
Car
Park
Car
Park
KL
CC
C
CIMB
TOWER
KLCC
THE
BINJAI
KLCC
KLCC
Future
Phase
KLCC
Future
Phase
P/P
Mobil
KL
GATEW
AY
U/C
TTD
I
WE
T
MA
RKET
CALT
EX
CALT
EX
FIRE
BRIG
ADE
CAR
PAR
K
SHELL
PETRO
NAS
POST
OFFICE
INTRAK
OTA
DEPOT
GOODY
EAR
CENTRE
TELEKOM
BLDG.
TT
DI
Po
lice
Station
Mobil
Ele
ctr
icTra
nsmissi
on
Lin
e
Shell
Tmn.
Segambut
Aman
Tmn.Wahyu
Tmn.
Mastiara
Tmn. Bt.
Permai
MilitaryCamp
(BatuKentonmen)
Tmn. Sri
Rampai
Tmn.
Setapak
IndahTmn.
Ibukota
Tmn. Koperasi
Polis
Muslim
Cemetery
Desa
Melawati
Taman
Bunga
Raya
Wangsa
Melawati
Medan
Idaman
Tmn.
Lembah
Keramat
W
angsa
Maju
Primary
Sch
ool
M
egam
al
One-S
to
p
Wangsa
Maju R1
Desa
Setapak
DBKL Flats
Setapak Jaya
Setapak
Jaya
KLSC
Wangsa Puteri
(SPPK)
Kg Baru
Air Panas
Tmn. Air
Panas
Tmn. Bkt.
Maluri
Tmn. Bt. Muda
Tambahan
SelayangM.R.
ArmyFlat
Bdr.
Sentul
Utama
O
xidation
Pond
Heritage
Galleria
Sri
Kelantan
Flt.
Sentul
Utara Flt.
Sentul
Park
Apt.
Plaza
Sentul
Sc.
Sc.
Sc.
Kompleks
Mutiara
Sc.
Ch.
Flat
Flat
Field
Field
Desa
17
O
xid
ation
Pond
Pump
Station
Condo.
Play
Gro
un
d
Sc. SH
SH
Tmn. Setapak
La
VillasMedan
Intan
Diamond
Square
Apt.
C
ondo.
SH
DBKL
(Recreation
Reserve)
Sc.
Setapak
Golf
Range
S/B
Apt.
GentingCourt Apt. Sri Pela
ngi
Tmn. P.
Ramlee
M
utia
ra
G
entin
g
Sc.
Hin
du
Buria
l
Tm
n.G
entin
g
Kela
ng
Setapak
Ria
Field
Sc.
Bomba
Sc.
Hindu
Temple
Caltex
Sc.
Sc.
Sc.
FoodCourt
Prosperity
Square
JPJ &
Puspakom
TOL(LongHouses)
TOL Sc.
School
Apt.
JKR
Quarters
SH
SH
Sri
Jelatek
Sc.
Sri
Ledang
Sri
Kinabalu
LojingHeightII
Reservoir
Sc. SH
Surau
Sri
Kenangan
Waizuri1Apt.
Waizuri2Condo.
Loging
Height
Oxi.
Pond
Flats
A
B
C
Sc.
Fld.
Fld.
Oxi.
Pond
Sc.
SH
Oxi.
Pond
Flat
Oxi.Pond
Mobil
&
Shell
Surau
Sc.
SH
SH
Fld.
Sc.
SH
SH
SH
Utusan
Sapura
Prop.
Mosq.
Prop.
Hospital
Prop.
Recreation
Tele
kom
SH
SH
Carrefour
Office/Commercial
Apt.
Prop.
Wawasan Sc.
Prop.
FRU
Complex
Police
Land
SH
Akademi
TV3
Proposed
Condo
Prop.
Hosp.
Oxi.
Pond
DBKL jv.
Pancaran
Nilai
Mosq.
Wardieburn
Camp
Military
Fld.
SH
SH
Sc.
Sc.
Menara
Alpha
Condo.
Flat
Oxi.
Pond
Sc.
Field
Field
Tmn.
Sri
Alam
Tmn.
Rowthe
Tmn.
Melewar
Kg.
Batu
Muda
Mosq.
ISA
(KDN)
JPTReserve
KDNReserve
SpringCrestInd.Park
IWK
Field
Field
Mitsubishi
MotorsOxi. Pond
Tmn.
Beringin
Tmn.Nanyang
Long Houses
Alam
Flora
Flt.
Kepong City
Centre
ToberedevelopedbyFadason
Sdn.Bhd.
Jinjang
Utara
Tambahan
Field
Fie
ld
Oxi.
Pond
Sc.
Warga
Tua
TNB
Field
Field
Telekom
Sc.
Oxi.PondReserve
TNB
Sc.
Oxi.
Pond
Medan
Putra
Business
Centre
U/C
Tm
n. Sri Bintang
Tmn. Sri Bintang
Kepong
Baru II
Kepong Baru
Ind. Estate
Field
Petronas
Kepong Baru III
MCA
Shell
ClinicPos
Bomba
DBKL
Temple
Shell
Water
Retention
Pond
MWE
Commercial
Park
SawmillFactory
Pusat
Kepong
Fld.
Fld.
Tmn.
Petaling
Seri Segambut
Tmn.
CuepacsTmn. Sri
Kepong
Baru
TNB
Tmn.
Segambut
Muda
Sc.
Sc.
Pond
Apt.
Fld.
Segambut Bahagia
The
Nova
Nova II Tmn. Sri Sinar
USPD
Auto
Bavaria
Wism
aRe
so
urce
Co
mplex
Esso
Pe
tro
na
s
Sc.
Clay Pipes
S/B
Kg.
Segambut
Luar
Kg. Pasir
Segam
but
Water
Retention
Pond
(JPS)
Sc.
Hindu
Temple
Sc.
Sc.
Golden
Hill
Club
KIK Mara
Furniture Industry
Tech. Centre
Mosq.
Field
Tmn.
Dato'
Senu
School
Esso
Mobil
BP
SJ
Kenderaan
Sdn. Bhd.
Mosq.
Sc.
Mosq.
Temple
Villa
Angsana
Medan
SriSelam
a
Desa
Alpha
Kah Motor
Co. S/B
Sh
ell
Tmn.
Eastern
Tmn.
Impian
Field
Sc.
Sc.
AutoTrading
UsedCar
Field
TNB
Long Houses
Telekom
SRJK(C
)JinjangSelatan
ChineseCemetery
Jinjang
Selatan
Pe
tron
as
Sc.
Flats
PKN
S
Tmn.KokDoh
Tmn.
Lawa
Tmn.
City
Tmn.
City
Tmn. Sejahtera
Used
Car
Store
Condo.
Condo.
SRK 1
& 2
Pla
y
Gr
ou
nd
Muslim
Cemetery
JinjangSelatanTambahan
(LongHouses&Squaters)
DBKLNursery
Prop. Recreation
Kg. Melayu
Kepong
(Will be redeveloped by Mega Legacy)
Sri U
tara
Makro
Shopping
Com
plex
Field
Kompleks
Desa
(Magna Park S/B)
Kampung
Benteng
Sri Intan
Ap
artm
en
t&
Sh
op
Office
Menara Zaitun
Pasar
Gombak
(DBKL)
Tmn.
Pelangi
(Baitulmal)
Tmn. Danau
Kota (partly u/c)
Kampung
Chong
Hwa
Pangsa
Murni
Royal
Selangor
Group
Hilly
Rampai
Court
Police
Station
Court
Mammorth
Selayang
M.R.
STLR
Sdn.
Bhd.
Kepong
Kepong
Tambahan
Taman
Melati
DBKL
Flats
Flat
Nursery
Gombak
M.R.
Prop.Recreation
Bandar
Menjalara Sang
Suria
Golf
View
Condo.
u/c
Sentul Raya
Park
M
ID
DLE
RIN
G
ROAD
II
MIDDLE
RIN
G
ROAD
II
M
ID
D
LE
R
IN
G
R
O
AD
II
Selayang M.R.
Tmn. Intan
Baiduri
Tan Chong &
Sons Motor
Co. S/B
SH
SH
Flats
Pusat
Bdr. Sri
Rampai
Flat
Sc.
Mosq.
Tmn.
Batu
Tmn.KokLian
Sg. Mas Plaza
Kepong
Baru I
Tmn. Batu
TNB
Petronas
Shell
Hijau
Ria
Condo.
Flat
Flat
Sc.
Sc. Sc.
Sc.
TAR
College
Desa
View
Towers
Flat Apt.
JBA
Bkt.
Mas
Condo.
Sc.
Legasi 2
Apartment
Legasi 1
Apartment
MID
DLE
RIN
G
ROAD
II
Alpha
Angle
Sri
Suajaya
Petronas
Muslim
Cemetery
Petronas
Jala
n 3/1
A
Jalan
10/1A
Jalan 6/10
Jalan
6/1B
Petronas
mosque
Siawai Realty Sdn Bhd
U/C
Petronas
Field
Jalan
6/1B
Tmn.KepongIndah
Fld.
Titiwangsa Golf
Desa
Tun
Hussien
Onn
(Army)
Bdr.
Baru
Sentul
Menara
Titiwangsa
IWK
Oxidation
Pond
Intan
Apt. Putri
Apt.
Apt.
Sc.
Bkt.
Segambut
Sem
i-D
Condo.
Apt. Menara
Duta
Kg.
Segambut
Tengah
Used
Car
She
ll
Park
May
Esso
Mus
lim
Cem
eter
y
Te
mple
Ch.
.
PKNS Housing
(Flats &
Apartments)
Kementerian
Pendidikan
IWK
(PusatPameran
KecemerlanganPendidikan)
Kg.
Semarak
Sentul Raya
u/c
Sentul Raya
Boulevard
Taman
Setiawangsa
GBH
Ceramic
Sdn.
Bhd.
Police
mosque
Jalan
1/60
School
STA
DIU
M
TIT
IWA
NG
SA
TEN
NIS
COU
RT
CAF
E
BP
ESSO
SH
EL
L
Wangsa
Maju
PETRONAS
Ja
lan
11
/5
5C
Ja
lan1/27
FJa
lan2/27
F
SH
SH
SH
Ja
lan
1/2
4D
Ja
lan
3/2
4D
Ja
lan
4/2
4D
Ja
lan
2/2
4D
Jala
n
1/2
7F
JalanAU5D/1
Ja
lan
1/2
3F
Teratai
Mewah
JLN
BU
RU
NG
UP
IH
L.BRG
UPIH
2
L.
BRG
UPI
H1
JLN
BRG
TAK
UWI
H
JA
LA
N
BU
RU
NG
GA
RU
DA
JLN
BRG
TUA
R
JLN
BRG
TAK
UR
JLN
BRG
CEN
UK
JA
LA
N
BU
RU
NG
PIK
AU
JA
LA
N
BU
RU
NG
TU
KA
I
JL
N
BU
RU
NG
SI
NT
AR
LR
G
BR
G
SI
NT
AR
3
LR
G
BR
G
SI
NT
AR
2
LR
G
BR
G
SI
NT
AR
1
JL
N
BU
RU
NG
SI
NT
AR
JL
N
BU
RU
NG
BA
YA
N
1
JL
N
BU
RU
NG
BA
YA
N
2
JLN
BU
RU
NG
BE
BA
RA
U
JL
N
BU
RU
NG
PU
NG
GU
K
JA
LA
N
DE
VE
LO
PM
EN
T
JAL
AN
3
JALAN
5
JALA
N2
JALAN TERATAI
JALAN
DEDAP
JALAN
BUNGA
RAMPAI
JALAN
BUNGA
TANJONG
JALAN
CEMPAKA
JA
LA
N
TE
RK
IS
JA
LA
N
AN
GS
AN
A
JALA
NFRI
KEPO
NG
Jal
an
10/1A
Jalan 2/1
Jalan 5/1
Jalan 8/1
Jalan11/1
Jalan
17/1
JALA
N3/34B
JALA
N4/34B
JALA
N5/34B
JALA
N6/34B
JALA
N7/34B
JALA
N8/34B
JALA
N9/34B
JALA
N10/34
B
JALA
N11/34
B
GOMBAK
DISTRICT
GOMBAK
DISTRICT
PETALING
DISTRICT
HULU LANGAT
DISTRICT
JALAN5/16
JALAN6/16
EASTROAD
SCHOOL RESERVE ROAD
WEST ROAD 18
WEST ROAD 15
RIVER ROAD SOUTH
SCHOOL LANE
EAST ROAD 9
EAST ROAD 11
EAST ROAD 8
EASTFENCE
EAST ROAD 2
EAST ROAD 1
EASTSTREET6
EAST ROAD 6
SEGAMBUT ROAD
EAST ROAD 5
EAST ROAD 7
EASTROAD5
WESTSTREET
WESTSTREET
WESTROAD
MINKEONGSTREET
WEST ROAD 5
WEST ROAD 6
Jinjang
Utara
MAINSTREET
MIN CHONG ROAD
TEMPLE ROAD
WEST ROAD 15
EAST ROAD 14
EASTSTREET10
EASTSTREET11
WEST ROAD 9
WEST ROAD 7
WEST ROAD 10
WEST ROAD 12
WEST ROAD 13
WEST ROAD 14
TANJONGMALIMSTREET
WEST ROAD 17
WEST ROAD 16
TEMPLE ROAD
ULUKLANGSTREET
Sc.
Sc.
JALAN NIAH 1
JALAN NIAH 2
JALAN NIAH 3
JALAN NIAH 4
JALAN NIAH 5
JALANNIAH6
JALAN MARUDI 2
JALAN MARUDI 8
JALAN MIRI 1
JALAN MIRI 2
JALAN MIRI 3
JALAN BINTULU
JALANKAPIT
JALANSEMANGGANG
JALAN LUNDU
JALANLUNDU7
JALANLUNDU6
JALANLUNDU2
Mukim
Bt.
Ind.
Park
(MIEL)
JALAN2/10A
JALAN4/10A
JALAN9/10A
JALAN8/10A
JALAN10/10A
JALAN11/10A
JALAN16/10A
JALAN 3/10A
JALAN 7/10A
JALAN 12/10A
JALAN 6/10A
JALAN 5/10A
JALAN 20/10A
JALAN 19/10A
JALAN 18/10A
JALAN 13/10A
JALAN 17/10A
JALAN 24/10A
JALAN23/10A
JALAN 29/10
JALAN58/10
JALAN BATU GELIGA 1
JALAN BATU GELIGA 2
JALANAMZIL
JALAN BATU GELIGA 3
JALANUBIN
JALANMARMAR1
JALANBATUGELIGA
JALAN2/10
JALAN16/10
JALAN2/10
JALAN 15/10
JALAN 7/10
JALAN6/12C
PERSIARAN 1/12
JALAN 1/12C
JALAN 7/12C
JALAN5/12C
JALAN4/12C
JALAN3/12C
JALAN2/12C
JALAN1/12A
JALAN5/12B
JALAN3/12
JALAN 4/12B
JALAN 2/12B
JALAN 3/12
JALAN 5/12A
JALAN1/12
LRG. 2/12B
JALAN 10/12A
JALAN 7/12A
JALAN6/12A
JALAN 3/12A
JALAN 4A/12A
JALAN 2/12A
JALAN4/12A
Kg. Sri Batu
JALAN4/12D
JALAN 7/12D
JALAN 5/12D
JALAN 3/12D
JALAN 1/12D
JALAN8/12D
JALA
NKAM
PUN
G
BATU
MUD
A
JALAN 2/18B
JALAN 3/18B
JALAN 17/18A
JALAN 16/18A
JALAN 15/18A
JALAN 14/18A
JALAN 13/18A
JALAN 12/18A
JALAN 11/18A
JALAN 9/18A
JALAN8/18A
JALAN 2/18C
JALAN 3/18C
JALAN 4/18C
JALAN 5/18C
JALAN 6/18C
JALAN 7/18C
JALAN1/18C
Sc.
J.SIMPANGIPOH
JALAN SIBU 18
JALAN SIBU 17
JALAN SIBU 16
JALAN SIBU 15
JALANSIBU15
JALANSIBU14
JALAN SIBU 12
JALAN SIBU 11
JALANSIBU7
JALAN SIBU 6
JALAN SIBU 5
JALAN SIBU 4
JALAN SIBU 3
JALAN SIBU 1
JALANSIBU2
JALA
N KEPO
NG
BHAR
U
Kepong
Entrepreneurs
Park
Sri Edaran
Light Ind.
Park
JALANAPI-API1
JAL
AN
AN
TO
I
1
JAL
AN
AN
TO
I
2
JAL
AN
AN
TO
I
3
JA
LA
N
AN
TO
I
JA
LA
N
AR
AN
G
JALAN ANTOI KANAN 4
JAL
AN
AN
TO
I
KA
NA
N
2
JAL
AN
AN
TO
I
KA
NA
N
1
J.ANTO
I4
JALA
N
ANTO
I5
JA
LA
N
AN
TO
I
KIR
I
JA
LA
N
AP
I-A
PI
JA
LA
N
AP
I-A
PI
5
JA
LA
N
AP
I-A
PI
4
JALANAPI-API2
JALAN API-API 3
JALAN API-API KIRI 1
JALANAPI-API3
JA
LA
N
BE
LIA
N
L.
BID
AR
A
1
L.
BID
AR
A
2
L.
BID
AR
A
3JAL
AN
BID
ARA
JAL
AN
BAK
AU
JAL
AN
BEN
GK
UD
U
JA
LA
N
BE
GA
ND
AI
JA
LA
N
BU
NG
UR
JA
LA
N
BE
LIN
GG
AI
JLN
.
BE
ND
AR
ON
G
JLN
.
BE
RE
MB
AN
JA
LA
N
BE
LIN
JA
U
JLN
.
BE
RE
SA
H
JAL
AN
30/3
9
JAL
AN
29/3
9
JAL
AN
BAY
URJAL
AN
BE
NG
KU
BA
NG
JAL
AN
24/3
9
JAL
AN
23/3
9
JAL
AN
22/3
9
JAL
AN
20/3
9
JA
LA
N
TA
MA
N
JALAN 7
JAL
AN
9
LO
RO
NG
KU
AN
G
BU
LA
N
Ha
pp
y
Co
ur
tAp
t.
JA
LA
N
KU
AN
G
BA
NT
IN
G
JA
LA
N
KU
AN
G
GU
NU
NG
3
JA
LA
N
KU
AN
G
GU
NU
NG
1
JA
LA
N
KU
AN
G
GU
NU
NG
4
JA
LA
N
KU
AN
G
GU
NU
NG
5
J.
KU
AN
G
GU
NU
NG
6
JA
LA
N
KU
AN
G
GU
NU
NG
2
JA
LA
N
BE
BE
RE
KJA
LA
N
BE
BA
RA
U
PE
SI
AR
AN
ME
RG
AS
TU
A
JAL
AN
HE
LAN
G
TIR
AM
JAL
AN
HE
LAN
G
LAU
T
JAL
AN
BEL
ABA
S
1
JAL
AN
BEL
ABA
S
2
L.
BEB
ERE
K
1
L.
BEB
ER
EK
3
L.
BEB
ERE
K
4
L.
BEB
ERE
K
2
JAL
AN
HE
LAN
G
JAM
BU
JA
D P
Kuala Lumpur
Kuala Lumpur City Centre
D
U
R
R
R
R
R
P
M
m
B
S
A
Sm
K
S M
V
B
DO
P m
R
U
T
A
R
K
K
K
K
m
T
mB
W
m
E
M
S
P
K
m
Cm
SB
RB
NM
T
M
mT
A
B
M
mP
VSG
VC
AmT
F
&W
M
m
P
S
H
m
K
mCG
P
B
MBAm
Mm
Km
B
B
M
M
B
P
R
GmR
OCBCBMB
m
RT M m
w
B
R
R
KmW
SmPHQ
SC
Km
m
m
m
M
W
m
B
MA
W
m
m
P
BC
LRT Stat on
Bus Stat on
Pedestr an Route
Cars Route
W ayah Boundary
C y Cen re 1 2% o KL
Ma or Road
Loca on P an Boundary
R NGG NU
H NG
NEGER
SEMB AN
M
OHOR
m
NGOR
R
D H
N NN NG
Kua a Lumpur
1884
RO
Y
AL SELANGOR
LUB
C
KUALA LUMPUR
LOCATION PLAN
SCALE 1:2000
LEGEND
KEY PLAN
LEGEND
0 20 200M50 100
KEY PLAN/ LOCATION PLAN 02-03-2017
AS SHOWN
DR. SUCHARITA
ARC1215
METHODS OF DOCUMENTATION AND
MEASURED DRAWING
ROYAL SELANGOR CLUB
1, JALAN RAJA, CITY CENTRE, 52100 KUALA
LUMPUR, SELANGOR, MALAYSIA NATALIE CHA
A-1.1
1
34
SCALE 1:500000
0 500 1000 5000M2500
1
2
3
4
5
6
7
8
9
10
11
12
H
A-4.4
F
A-4.3
D
A-4.2
H'
A-4.4
F'
A-4.3
D'
A-4.2
G
A-4.4
E
A-4.3
C
A-4.2
G'
A-4.4
E'
A-4.3
C'
A-4.2
B'
A-4.1
A'
A-4.1
B
A-4.1
A
A-4.1
GROUND FLOOR PLAN 6-3-2017
1:100
DR. SUCHARITA
ARC1215
METHODS OF DOCUMENTATION AND
MEASURED DRAWING
ROYAL SELANGOR CLUB
1, JALAN RAJA, CITY CENTRE, 52100 KUALA
LUMPUR, SELANGOR, MALAYSIA AHMAD ASRAF,JACKY TING,CHONG KIT YEE
A-2.1
4
341884
RO
Y
AL SELANGOR
LUB
C
KUALA LUMPUR
0 52.5 7.5 10M
1
2
3
4
5
6
7
8
9
10
11
12
D1
D2
D3
D4
D5
D6
D7
D8
D9
D10
D11
D12
D13
D14
NO. DOORS & WINDOWS
TIMBER FRAMED TIMBER DOOR
TIMBER FRAMED DOOR WITH DECORATED GLASS
TIMBER FRAMED SINGLE LAMINATED GLASS DOOR
TIMBER FRAMED DOUBLE SWING TIMBER DOOR
TIMBER FRAMED TIMBER DOOR
TIMBER FRAMED DOUBLE LAMINATED GLASS DOOR
SINGLE LEAF LAMINATED GLASS DOOR
SINGLE LEAF LAMINATED GLASS DOOR
TIMBER FRAMED TIMBER DOOR
TIMBER FRAMED SOLID TIMBER DOOR
GLASS PANEL DOOR
HW FRAMED GLASS SLIDING DOOR WITH DOOR CASING
SINGLE LEAF LAMINATED GLASS DOOR
FLUSH DOOR
DIMENSION
901 x 2105
1445 x 1954
1362 x 2047
849 x 2071
1425 x 2020
1055 x 1980
986 x 2390
1140 x 2712
812 x 1887
849 x 1800
2601 x 2100
902 x 1865
697 x 1943
898 x 2390
DRAWING NO.
W1
W2
W3
W4
W5
W6
W7
TINTED LAMINATED GLASS
HARD WOOD DOUBLE CASEMENT WINDOW
HARD WOOD DOUBLE CASEMENT WINDOW
CASEMENT WINDOW WITH METAL GRILL
CASEMENT WINDOW WITH METAL GRILL
MESH OPENING
LOUVERED WINDOW
9925 X 3157
7620 X 3699
3660 X 1723
4597 X 2400
1240 X 2445
1760 X 2066
1270 X 590
LOUVERED WINDOW
LOUVERED WINDOW
LOUVERED WINDOW
W8
W9
W10
1900 X 590
2350 X 590
3795 X 590
A-7.1
A-12.1
A-7.1
A-12.1
A-7.2
5040 X 2890
A-7.2
A-7.3
A-7.4
A-7.3
A-7.5
I1
A-7.4
INTERIOR FURNISHINGS
A-12.2
A-7.5
A-7.6
A-7.6
BAR COUNTER
DIMENSION
A-12.1
A-7.7
A-7.7
A-12.1
DRAWING NO.
A-12.1
I2
A-12.1
A-12.2
A-12.2
BAR CHAIR
A-12.2
S2
S1
NO.
S3
SPIRAL STAIRCASE
STAIRCASES
3789 X 1085
DRAWING NO.DIMENSION
A-8.3
A-8.3STRAIGHT STAIRCASE
S4
STRAIGHT STAIRCASE
A-10.1
STRAIGHT STAIRCASE
403 X 1093
A-10.1
1649 X 2819
NO.
2621 X 1134
A-8.1
A-8.2
4033 X 1085
SCHEDULE OF DETAILS 6-3-2017
1:150
DR. SUCHARITA
ARC1215
METHODS OF DOCUMENTATION AND
MEASURED DRAWING
ROYAL SELANGOR CLUB
1, JALAN RAJA, CITY CENTRE, 52100 KUALA
LUMPUR, SELANGOR, MALAYSIA DEENIE HYATT, JACKY TING
A-2.2
5
341884
RO
Y
AL SELANGOR
LUB
C
KUALA LUMPUR
0 157.564.531.5
4
5
6
7
8
9
10
11
12
13
2
3
4
5
6
9
10
11
12
1
7
8
T1
T2
T3
GRANITE TILES
TIMBER STRIP
HOMOGENEOUS TILES
DIMENSIONTILES NO. TILES TYPE
300 x 300
300 x 300
155 x 1750
SPACE
RESTAURANT, CORRIDOR, W.C., SQUASH CORRIDOR
DINING HALL, FOYER
MULTI-PURPOSE HALL, HASH BAR
SCHEDULE OF FLOOR TILES 6-3-2017
1:150
DR. SUCHARITA
ARC1215
METHODS OF DOCUMENTATION AND
MEASURED DRAWING
ROYAL SELANGOR CLUB
1, JALAN RAJA, CITY CENTRE, 52100 KUALA
LUMPUR, SELANGOR, MALAYSIA TAN MIN CHUEN, ZOE LOW
A-2.3
6
341884
RO
Y
AL SELANGOR
LUB
C
KUALA LUMPUR
0 157.564.531.5
1
2
3
4
5
6
7
8
9
10
11
12
F1
F3
NO. ARCHITECTURAL FEATURES
TIMBER BRACKET
CEILING CORNICE
DIMENSION
952 x 1210
261 x 141
DRAWING NO.
A-9.2
A-5.1
CEILING DECORATION PLAN 6-3-2017
1:150
DR. SUCHARITA
ARC1215
METHODS OF DOCUMENTATION AND
MEASURED DRAWING
ROYAL SELANGOR CLUB
1, JALAN RAJA, CITY CENTRE, 52100 KUALA
LUMPUR, SELANGOR, MALAYSIA AHMAD ASRAF
A-2.4
7
341884
RO
Y
AL SELANGOR
LUB
C
KUALA LUMPUR
0 157.564.531.5
30°
45° 45°
30°
47°47°
43° 43°
48°
48°
46° 46°
45° 45°
46°
39°
39°
50°
47°
33°
33°
46° 46° 46° 46°
47°
46°
ROOF PLAN 6-3-2017
1:150
DR. SUCHARITA
ARC1215
METHODS OF DOCUMENTATION AND
MEASURED DRAWING
ROYAL SELANGOR CLUB
1, JALAN RAJA, CITY CENTRE, 52100 KUALA
LUMPUR, SELANGOR, MALAYSIA NATALIE CHA
A-2.5
8
341884
RO
YAL SELANGOR
LUB
C
KUALA LUMPUR
0 157.564.531.5
ELEVATIONS 01-03-2017
1:100
DATE
SCALE
DRAWN
CHECKED
DRAWING NO. SHEET NO.PROJECT TITLE
DR. SUCHARITA
ARC1215
METHODS OF DOCUMENTATION AND
MEASURED DRAWING
ROYAL SELANGOR CLUB
1, JALAN RAJA, CITY CENT5RE, 52100 KUALA
LUMPUR, SELANGOR, MALAYSIA TAN MIN CHUEN, ZOE LOW, ANG AVERLLEN
DRAWING TITLE
A-3.1
9
34
REFERENCE
WEST ELEVATION
EAST ELEVATION
0 105 15 20
(FRONT ELEVATION FACING HIGHWAY)
(BACK ELEVATION FACING DATARAN MERDEKA)
1884
RO
YAL SELANGOR
LUB
C
KUALA LUMPUR
A B C ED F G H JI K
ABCE DFGHJ IK
C
C'
1
2
3
4
5
6
7
8
9
10
11
12
C
C'
D
D'
1
2
3
4
5
6
7
8
9
10
11
12
D
D'
SECTION C-C' & SECTION D-D' 3-3-2017
1:100
DR. SUCHARITA
ARC1215
METHODS OF DOCUMENTATION AND
MEASURED DRAWING
ROYAL SELANGOR CLUB
1, JALAN RAJA, CITY CENT5RE, 52100 KUALA
LUMPUR, SELANGOR, MALAYSIA CHONG KIT YEE & LEE SUK FANG & SHREYA MARIA WILSON
A- 4.2
12
34
0 52.5 7.5 10
SECTION D-D'
SECTION C-C'
1884
RO
YAL SELANGOR
LUB
C
KUALA LUMPUR
A B C ED F G H JI K
ABCE DFGHJ IK
E
E'
1
2
3
4
5
6
7
8
9
10
11
12
E
E'
F
F'
1
2
3
4
5
6
7
8
9
10
11
12
F
F'
SECTION E-E' & SECTION F-F' 3-3-2017
1:100
DR. SUCHARITA
ARC1215
METHODS OF DOCUMENTATION AND
MEASURED DRAWING
ROYAL SELANGOR CLUB
1, JALAN RAJA, CITY CENT5RE, 52100 KUALA
LUMPUR, SELANGOR, MALAYSIA AHMAD ASHRAF & ANG AVERLLEN & FAZRIE AIMAN
A- 4.3
13
34
0 52.5 7.5 10
SECTION F-F'
SECTION E-E'
1884
RO
YAL SELANGOR
LUB
C
KUALA LUMPUR
A B C ED F G H JI K
ABCE DFGHJ IK
G
G'
1
2
3
4
5
6
7
8
9
10
11
12
G
G'
H
H'
1
2
3
4
5
6
7
8
9
10
11
12
H
H'
SECTION G-G' & SECTION H-H' 3-3-2017
1:100
DR. SUCHARITA
ARC1215
METHODS OF DOCUMENTATION AND
MEASURED DRAWING
ROYAL SELANGOR CLUB
1, JALAN RAJA, CITY CENT5RE, 52100 KUALA
LUMPUR, SELANGOR, MALAYSIA JACKY TING & DANICA GAN & DEENIE H'YATT
A- 4.4
14
34
0 52.5 7.5 10
SECTION H-H'
SECTION G-G'
1884
RO
Y
AL SELANGOR
LUB
C
KUALA LUMPUR
1
2
3
4
5
6
7
8
9
10
11
12
A'
A
A'
A
B'
B
1
2
3
4
5
6
7
8
9
10
11
12
B'
B
SECTION A-A' & SECTION B-B' 3-3-2017
1:100
DR. SUCHARITA
ARC1215
METHODS OF DOCUMENTATION AND
MEASURED DRAWING
ROYAL SELANGOR CLUB
1, JALAN RAJA, CITY CENT5RE, 52100 KUALA
LUMPUR, SELANGOR, MALAYSIA AARON CHONG & AHMAD ASHRAF & JACKY TING
A- 4.1
11
34
0 52.5 7.5 10
SECTION B-B'
SECTION A-A'
HEMISPHERIC LAMP
COVER
ORNAMENTED METAL
PIECE
IRON LAMP NECK
METAL HINGE
(SCREWED TO WALL)
CORNICE
FRIEZE
ARCHITRAVE
3-3-2017
1:50 AND AS SHOWN
DR. SUCHARITA
ARC1215
METHODS OF DOCUMENTATION AND
MEASURED DRAWING
ROYAL SELANGOR CLUB
1, JALAN RAJA, CITY CENTRE, 52100 KUALA
LUMPUR, SELANGOR, MALAYSIA AHMAD ASHRAF & CHAN KOON QI
A-5.1
15
341884
RO
Y
AL SELANGOR
LUB
C
KUALA LUMPUR
0 0.250.125 0.375 0.5
SCALE 1:5
DETAIL A
MULTI PURPOSE
HALL WALL LAMP
SCALE 1:2.5
DETAIL B
MULTI PURPOSE
HALL CEILING
CORNICE
0 0.1250.0625 0.1875 0.25
0 5M2.521.510.5
DETAIL A DETAIL B
MULTIPURPOSE HALL STRETCHED ELEVATION
8-PANEL CABINET
METAL CABINET
HOLDER
CLASSIC BILLIARD
SCOREBOARD
WHITEBOARD
INSERT
TABLE
INDICATOR
DOOR KNOCKER HINGE
BRASS ORNAMENTED DOOR KNOCKER
BILLIARDS ROOM STRETCHED ELEVATION
3-3-2017
1:50 AND AS SHOWN
DR. SUCHARITA
ARC1215
METHODS OF DOCUMENTATION AND
MEASURED DRAWING
ROYAL SELANGOR CLUB
1, JALAN RAJA, CITY CENTRE, 52100 KUALA
LUMPUR, SELANGOR, MALAYSIA AHMAD ASHRAF & ANG AVERLLEN
A-5.2
16
341884
RO
Y
AL SELANGOR
LUB
C
KUALA LUMPUR
0 10.5 1.5 2M
SCALE 1:20
DETAIL A
BILLIARDS
ROOM CABINET
0 0.50.25 0.75 1
SCALE 1:1
CABINET
DRAWER HANDLE
0 5M2.521.510.5
DETAIL A
WOODEN
WAINSCOTTING
TIMBER TONGUE-AND-GROOVE
PANELLING
WALL LINING
BASE
BLIND-NAILED
TO WALL
WALL
HASH BAR STRETCHED ELEVATION
3-3-2017
1:50 AND AS SHOWN
DR. SUCHARITA
ARC1215
METHODS OF DOCUMENTATION AND
MEASURED DRAWING
ROYAL SELANGOR CLUB
1, JALAN RAJA, CITY CENTRE, 52100 KUALA
LUMPUR, SELANGOR, MALAYSIA TAN CHIN YIN & DEENIE H'YATT
A-5.3
17
341884
RO
Y
AL SELANGOR
LUB
C
KUALA LUMPUR
SCALE 1:10
DETAIL A
WALL LINING
0 5M2.521.510.5
0 0.50.25 0.75 1M
DETAIL A
1884
RO
Y
AL SELANGOR
LUB
C
KUALA LUMPUR
A
B
C
D
E
F
G
H
J
K
I
1
2
3
4
5
6
7
8
9
10
11
12
13
14
A
B
C
D
E
F
G
H
J
K
I
1
2
3
4
5
6
7
8
9
10
11
AXONOMETRIC DRAWING 3-3-2017
1:200
DR. SUCHARITA
ARC1215
METHODS OF DOCUMENTATION AND
MEASURED DRAWING
ROYAL SELANGOR CLUB
1, JALAN RAJA, CITY CENT5RE, 52100 KUALA
LUMPUR, SELANGOR, MALAYSIA AHMAD ASHRAF & ANG AVERLLEN & FAZRIE AIMAN
A-6.1
18
34
0 105 15 20M
A
A'
A
A'
B'
B
B
B'
1884
RO
Y
AL SELANGOR
LUB
C
KUALA LUMPUR
0 10.5 1.5 2M
ARCHITECTURAL DETAIL -
DOOR 1 & 2
03-03-2017
AS SHOWN
DR. SUCHARITA
ARC1215
METHODS OF DOCUMENTATION AND
MEASURED DRAWING
ROYAL SELANGOR CLUB
1, JALAN RAJA, CITY CENT5RE, 52100 KUALA
LUMPUR, SELANGOR, MALAYSIA JACKY TING & ADAM HARIZ & THOMAS TING
A-7.1
19
34
A
A'
A
A'
B
B'
B
B'
1884
RO
YAL SELANGOR
LUB
C
KUALA LUMPUR
0 10.5 1.5 2M
ARCHITECTURAL DETAIL -
DOOR 5 & 6
03-03-2017
AS SHOWN
DR. SUCHARITA
ARC1215
METHODS OF DOCUMENTATION AND
MEASURED DRAWING
ROYAL SELANGOR CLUB
1, JALAN RAJA, CITY CENT5RE, 52100 KUALA
LUMPUR, SELANGOR, MALAYSIA JACKY TING & CHAN KOON QI
A-7.2
20
34
A
A'
A
A'
126
3470
1020
290
3470
2390
1087
LIS PEARSON
Glasswall
1800
849
1884
RO
Y
AL SELANGOR
LUB
C
KUALA LUMPUR
0 10.5 1.5 2M
ARCHITECTURAL DETAIL -
DOOR 7 & 8
03-03-2017
AS SHOWN
DR. SUCHARITA
ARC1215
METHODS OF DOCUMENTATION AND
MEASURED DRAWING
ROYAL SELANGOR CLUB
1, JALAN RAJA, CITY CENT5RE, 52100 KUALA
LUMPUR, SELANGOR, MALAYSIA JACKY TING & MICHELLE SIAW & TAN CHIN YIN
A-7.3
21
34
A
A'
A
A'
B
B'
B
B'
1884
RO
YAL SELANGOR
LUB
C
KUALA LUMPUR
0 10.5 1.5 2M
ARCHITECTURAL DETAIL -
DOORS
03-03-2017
AS SHOWN
DR. SUCHARITA
ARC1215
METHODS OF DOCUMENTATION AND
MEASURED DRAWING
ROYAL SELANGOR CLUB
1, JALAN RAJA, CITY CENT5RE, 52100 KUALA
LUMPUR, SELANGOR, MALAYSIA JACKY TING & MICHELLE SIAW
A-7.4
22
32
A
A'
B
B'
0 10.5 1.5 2M
ARCHITECTURAL DETAIL-
WINDOW 1 & 2
03-03-2017
AS SHOWN
DR. SUCHARITA
ARC1215
METHODS OF DOCUMENTATION AND
MEASURED DRAWING
ROYAL SELANGOR CLUB
1, JALAN RAJA, CITY CENT5RE, 52100 KUALA
LUMPUR, SELANGOR, MALAYSIA JACKY TING & THOMAS TING
A-7.5
23
341884
RO
Y
AL SELANGOR
LUB
C
KUALA LUMPUR
3265
815 780 805
2400
1054
4597
12571848
922 908 908 922
3660
862862
1723
1884
RO
Y
AL SELANGOR
LUB
C
KUALA LUMPUR
METAL FRAMING
DECORATIVE METAL GRILL
METAL FRAMING
DECORATIVE METAL GRILL
ARCHITECTURAL DETAIL -
WINDOW 7 & 8
03-03-2017
AS SHOWN
DR. SUCHARITA
ARC1215
METHODS OF DOCUMENTATION AND
MEASURED DRAWING
ROYAL SELANGOR CLUB
1, JALAN RAJA, CITY CENT5RE, 52100 KUALA
LUMPUR, SELANGOR, MALAYSIA ADAM HARIZ &FAZRIE AIMAN
A-7.6
24
34
0 10.5 1.5 2M
1750 1890 1890 1890
5239
7420
17451954
3699
3210 3210 3215
9925
3157
145
145
681
250
350
250
250
500
350
1884
RO
Y
AL SELANGOR
LUB
C
KUALA LUMPUR
ARCHITECTURAL DETAIL -
WINDOW 9 & 10
03-03-2017
AS SHOWN
DR. SUCHARITA
ARC1215
METHODS OF DOCUMENTATION AND
MEASURED DRAWING
ROYAL SELANGOR CLUB
1, JALAN RAJA, CITY CENT5RE, 52100 KUALA
LUMPUR, SELANGOR, MALAYSIA ADAM HARIZ &FAZRIE AIMAN
A-7.7
25
34
0 5M2.521.510.5
1
2
3
4
5
6
7
8
9
10
11
12
1649
1649
130
35
740
1884
RO
Y
AL SELANGOR
LUB
C
KUALA LUMPUR
DETAIL - STAIRCASE 1 03-03-2017
AS SHOWN
DR. SUCHARITA
ARC1215
METHODS OF DOCUMENTATION AND
MEASURED DRAWING
ROYAL SELANGOR CLUB
1, JALAN RAJA, CITY CENT5RE, 52100 KUALA
LUMPUR, SELANGOR, MALAYSIA JACKY TING & DEENIE H'YATT & TAN CHIN YIN
A-8.1
26
34
0 0.50.25 0.75 1M
2890
5040
280
170
986
1065
1884
RO
Y
AL SELANGOR
LUB
C
KUALA LUMPUR
DETAIL - STAIRCASE 2 03-03-2017
AS SHOWN
DR. SUCHARITA
ARC1215
METHODS OF DOCUMENTATION AND
MEASURED DRAWING
ROYAL SELANGOR CLUB
1, JALAN RAJA, CITY CENT5RE, 52100 KUALA
LUMPUR, SELANGOR, MALAYSIA JACKY TING & CLARE
A-8.2
27
34
0 10.5 1.5 2M
10851063
3789
155
264
1120
11341049
2621
979
1884
RO
Y
AL SELANGOR
LUB
C
KUALA LUMPUR
0 10.5 1.5 2M
DETAIL STAIRCASE 3 & 4 03-03-2017
AS SHOWN
DR. SUCHARITA
ARC1215
METHODS OF DOCUMENTATION AND
MEASURED DRAWING
ROYAL SELANGOR CLUB
1, JALAN RAJA, CITY CENT5RE, 52100 KUALA
LUMPUR, SELANGOR, MALAYSIA TAN CHIN YIN & MICHELLE SIAW
A-8.3
28
34
25702570
2979
618
987
243
244
246
619
611
1105
820
1153
1154
1884
RO
Y
AL SELANGOR
LUB
C
KUALA LUMPUR
0 10.5 1.5 2M
ARCHITECTURAL FEATURE -
COLUMN
03-03-2017
AS SHOWN
DR. SUCHARITA
ARC1215
METHODS OF DOCUMENTATION AND
MEASURED DRAWING
ROYAL SELANGOR CLUB
1, JALAN RAJA, CITY CENT5RE, 52100 KUALA
LUMPUR, SELANGOR, MALAYSIA LEE SUK FANG & THOMAS TING
A-9.1
29
34
1210
952 60
1884
RO
Y
AL SELANGOR
LUB
C
KUALA LUMPUR
ARCHITECTURAL FEATURES
TIMBER BRACKET
03-03-2017
AS SHOWN
DR. SUCHARITA
ARC1215
METHODS OF DOCUMENTATION AND
MEASURED DRAWING
ROYAL SELANGOR CLUB
1, JALAN RAJA, CITY CENT5RE, 52100 KUALA
LUMPUR, SELANGOR, MALAYSIA JACKY TING & CHAN KOON QI
A-9.2
30
34
0 0.5M0.250.20.150.10.05
1085
860 1611 4370 183
180
4363
4033
575
406
1230
400
1884
RO
Y
AL SELANGOR
LUB
C
KUALA LUMPUR
1093
403 403
653440
0 10.5 1.5 2M
INTERIOR FURNISHING
DETAIL
03-03-2017
AS SHOWN
DR. SUCHARITA
ARC1215
METHODS OF DOCUMENTATION AND
MEASURED DRAWING
ROYAL SELANGOR CLUB
1, JALAN RAJA, CITY CENT5RE, 52100 KUALA
LUMPUR, SELANGOR, MALAYSIA JACKY TING & DEENIE H'YATT
A-10.1
31
34
ROOF CONSTRUCTION
DETAILS
03-03-2017
1:5
DR. SUCHARITA
ARC1215
METHODS OF DOCUMENTATION AND
MEASURED DRAWING
ROYAL SELANGOR CLUB
1, JALAN RAJA, CITY CENT5RE, 52100 KUALA
LUMPUR, SELANGOR, MALAYSIA JACKY TING SIM MING
A-11.1
32
34
0 0.250.125 0.375 0.5
DOORS SCHEDULE 3-3-2017
AS SHOWN
DR. SUCHARITA
ARC1215
METHODS OF DOCUMENTATION AND
MEASURED DRAWING
ROYAL SELANGOR CLUB
1, JALAN RAJA, CITY CENT5RE, 52100 KUALA
LUMPUR, SELANGOR, MALAYSIA JACKY TING & THOMAS TING & ADAM HARIZ
A-12.1
33
34
0 5M2.521.510.5
WINDOW SCHEDULE 3-3-2017
1:50
DR. SUCHARITA
ARC1215
METHODS OF DOCUMENTATION AND
MEASURED DRAWING
ROYAL SELANGOR CLUB
1, JALAN RAJA, CITY CENT5RE, 52100 KUALA
LUMPUR, SELANGOR, MALAYSIA JACKY TING & THOMAS TING & FAZRIE AIMAN
A-12.2
34
34
0 5M2.521.510.5
ELEVATION 01-03-2017
1:100
DATE
SCALE
DRAWN
CHECKED
DRAWING NO. SHEET NO.PROJECT TITLE
DR. SUCHARITA
ARC1215
METHODS OF DOCUMENTATION AND
MEASURED DRAWING
ROYAL SELANGOR CLUB
1, JALAN RAJA, CITY CENT5RE, 52100 KUALA
LUMPUR, SELANGOR, MALAYSIA FAZRIE AIMAN
DRAWING TITLE
A-3.2
10
34
REFERENCE
SOUTH ELEVATION
0 105 15 20
(SIDE ELEVATION)

PROJECT 3 DRAWINGS

  • 1.
    BUILDING SITE PLAN/ SITESECTION 2-03-2017 1:250 DR. SUCHARITA ARC1215 METHODS OF DOCUMENTATION AND MEASURED DRAWING ROYAL SELANGOR CLUB 1, JALAN RAJA, CITY CENTRE, 52100 KUALA LUMPUR, SELANGOR, MALAYSIA NATALIE CHA, TAN MIN CHUEN A-0.2 2 34 SITE PLAN SITE SECTION S-S' 0 52.5 10 25M
  • 2.
    SITE ELEVATIONS 01-03-2017 1:250 DR.SUCHARITA ARC1215 METHODS OF DOCUMENTATION AND MEASURED DRAWING ROYAL SELANGOR CLUB 1, JALAN RAJA, CITY CENTRE, 52100 KUALA LUMPUR, SELANGOR, MALAYSIA TAN MIN CHUEN A-0.3 3 34 WEST ELEVATION EAST ELEVATION 0 52.5 10 25M (FACING HIGHWAY) (FACING DATARAN MERDEKA)
  • 3.
    MIDDLERINGROADII LEBUHRAYADAMANSARA-PUCHONG(LDP) SPRINT>Penchala Link SPRINT> Elevated Highway MIDDLERINGROADII MIDDLE RINGROAD II SPRINT > SPRINT>KerinchiLink HULU LANGAT DISTRICT PETALING DISTRICT MIDDLERINGROADII Duta-KerinchiLink Dam ansara-Sem antan Link NKVE > Jln Duta - Sg Buloh Expressway KL North East Expressway Federal Highway Jalan Maarof MIDDLE RING ROAD II MIDDLE RING ROAD II MIDDLERINGROADII toll EAST-WEST LINK toll EAST-W EST LINK toll toll LEBUHRAYA KL-SEREMBAN (PLUS) Pantai Baru Interchange KLIA DEDICATED HIG HWAY KLIA DEDICATED HIGHWAY NEW PANTAI HIGHWAY NEW PANTAI HIGHWAY NEW PANTAI HIGHWAY NEW PANTAI HIGHWAY Pantai Dalam Interchange Tmn Desa Interchange Jln Templer Interchenge toll DISTRICT OF PETALING (SELANGOR) Pandan Indah JALA NTUN MOH DFUAD 1 JALA N TUN MOH D FUAD JALA NWAN KADI R1 JALA N WAN KADI R JALA N DATU K SULA IMAN JALANRAJALAUT MA HA RA JAL ELA JALA NKUC HING JA LA N HA NG JE BA T JA LA N LO KE YE W HA NG TU AH JALAN BUKIT BINTANG JALAN JAL AN BUK IT BIN TAN G JAL AN TUN RAZ AK JA LA N YE W JALAN DAVIS JALA N IMBI JAL AN KA MP ON G PA ND AN JALA N COC HRA NE ISM AIL JA LA N PE RA K JALA N KAM PON G PAN DAN JA LA N SU LT AN JALAN JA LA N P. RA M LE E RAJA JA LA N PIN AN G JA LA N AM PA NG IS M AI L JA LA N KIA PE NG JALA N CHULA N JA LA N GOLF DA NG JALA N TU N RA ZA K JALAN U THANT JALAN LORONG KUDA LAN GGA K JALAN CONLAY JALANBINJAI JALANTAMANUTHANT JALAN CEYLO N JALANMADGE PE RS IAR AN RA JA CH UL AN RAJ A CHU LAN CH AN GK AT LO RO NG CE YL ON JALA N KAM PUN G PERSIARAN STONOR JALAN EATON JAL AN STO NOR JALA N INAI JA LA N SE M AR AK HILIR JAL AN AMP ANG JALAN JALAN AMPANG JALA N JELA TEK JALAN AMPANG JALAN MADGE JALAN AMPANG PEGA WAI JL N 14 /27 B JA LA N GEN TI NG KE LA NG JAL AN KOLAM AIR JL N 1/2 7B JA LA N 1/ 27 A JA LAN 4/2 7A JA LA N 1/2 3A JA LA N U SA H AW AN JA LA N 2/2 3A JA LAN G EN TIN G KELAN G JA LA N 8/2 3A JAL AN TA MA N IBU KO TA JA LA N CH EN G AL SE LA TA N JALANREJANG7 JA LA N 3/2 3A JA LA N LA NG KA W I JALAN SETIAWANGSA 13 JALAN REJANG JA LA N 1/2 6 JALANSETIAWANGSA9 JALAN SETIAWANGSA 10 JALANREJANG6 JALANSETIAWANGSA11 JALAN TAMAN SETIAWANGSA 37/56 JALAN SETIAWANGSA 8 PER SIAR AN SET IAW ANG SA JA LA N BU KIT SE TIA WA NG SA JA LA N BU KIT SE TIA WA NG SA JALANSETIAWANGSA1 JAL AN PUN CAK SET IAW ANG SA 8A JA LA N US AH AW AN 5 JA LA N KI LA NG JA LA N 8/27 A JALAN 2/27A JA LA N 6/ 27 A JA LA N US AH AW AN 6 JA LA N 5/2 7A JA LA N G O M BAK JA LA N 2/ 27 A JALAN 1/24 JA LA N GENTI NG KELA NG JALANAIRJERNIH JALAN BUNGA KANTAN JALANGOMBAK JAL AN 3/2 7A JA LA N TA MA N IB UK OT A JAL AN MA WA R JALANPAHANG JAL AN 1/2E JA LA N KU AN TA N JALAN GO MB AK JA LA N PA HA NG JALAN ENGG ANG JALAN CHAN CHIN MOOI JALAN AIR PANA S JA LA N JE LA TE K JALAN TITIWANGSA JALAN ENGGANG JA LA N GOMBAK JA LA N TA MA N ME LA TI 1 JALANGOMBAK JA LA N KE PO NG JALAN TAMA N SETIA WANG SA 37/56 JALAN1/48A PE SIA RA N TA MA N ME LA TI JALAN PAHANG BARAT JALANSENTUL JALAN KEPONG MIDDLE RING RO AD II JALAN 3/48A JALAN SENTUL JALAN 6/48A JA LA N 1/ 1A JALANKEPONGSELAYANG JA LA N M ER G AS TU A LO RO NG BA NG AU 2 JA LA N CA MA R LO RO NG BA NG AU 1 JA LA N BA NG AU PE SIA RA N ME RG AS TU A JA LA N KE PO N G BA H AR U JAL AN BEL IBIS JAL AN HEL ANG JA LA N BE LA BA S JA LA N BU BU T JA LA N 21 /39 JAL AN HEL ANG BEL ALA NG JA LA N HE LA NG JAL AN HEL ANG SEW AH JA LA N BE RO MB ON G JA LA N 25 /39 JAL AN DEV ELO PM ENT JA LA N KU AN G BU LA N JALAN11 JA LA N KU AN G G U N U N G JALAN 10 JA LA N KU AN G JL N BU RU NG JA MP UK JA LA N BU R U N G JE N TA YU JA LA N KEPO NG SELA YANG JA LA N BU R U N G KA SA W AR I JL N BU RU NG PU CH UN G JA LA N 16 /37 JA LA N BU RU NG HA NT U JA LA N BU RU NG EN GG AN G LEBUH MANJALARA JALANBATUBELAH JALANBATUHAMPAR JL N BU RU NG TIO NG JALAN 3/10B MIDDL E RING RO AD II JALANPERUSAHAAN JA LA N PERUSAHAAN 2 JALAN PERUSAHAAN 4 JALAN5/10B JALAN 4/10B JALAN28/10 JALAN46/10A JALAN 1/10AJALAN PERUSAHAAN 3 JALAN 1/10B JALAN 57/10 JALAN 59/10 JALAN 45/10 JALAN56/10 JALAN 60/10 JALAN SIBU 10 JALAN2/10B JALAN3/10B JALAN SIBU 13 JALAN 4/18A JALAN 6/18A JALAN 5/18A JALANIPOH JALANSIBU JALAN 2/18 JAL AN KAM PUN G BAT U JALAN5/18B JALANSIBU5 JALAN6/18B JALAN1/18B JALAN 5/18C JALAN 18/18B EAST ROAD 4 EASTROAD JA LA N IPOH EAST ROAD 3 SELANGORSTREET JALAN KEPONG EASTROAD SEGAMBUT ROAD JA LA N JIN JA NG JALAN MARUDI JALANMIRI NORTH FENCE ROAD JALAN 1/16 JAL AN 1/3 2A JALAN 4/16 JAL AN 2/32 A CLUB ROAD PADANGSTREET WESTFENCESTREET MAINSTREET JALAN2/16 JALANUDANGRAWA JALAN UDANG KAPAS JAL AN 5/3 2A JALAN UDANG KERTAS 1 JAL AN 5/32 A JALAN UDANG SIAR JAL AN 3/32 A J.UDANGSIAR2 JALANUDANGKERTAS JALA NJAMB U JA LA N 31 /31 B JALAN 4/42A JALAN 12/42 JALAN3/42A JA LA N SE LU DA NG JALAN 16/42 JALAN9/42A JALAN 2/42A JAL AN 12/ 42A JALA N 2/42 JALAN 5/42 JALAN 8/42A JALAN 1/42A JALAN 6/42 JAL AN SEL INS ING 2 JALAN SELINSIN G7 JA LA N 9/4 2A JALAN KEPAYA NG JAL AN KEL APA BUL AN JALA NKUCH ING JALAN BATU KENTON MEN JA LA N MA TA NG 1 JA LA N SE LIN SIN G 5 JA LA N MA TA NG 2 JA LA N IPOH JALA NSEGA MBUT PUSA T JALA N CEN DER UH 3 JALA N KASI PILL AY PESIA RAN SEGA MBUT TENG AH JA LA N KO VIL HIL IR JALA NRAJA ARFA H JAL AN PER HEN TIA N JAL AN SEG AM BUT BAW AH JALAN DATO' SENU JA LA N BA CH AN G JALAN3/48 JALAN KOVIL ULU JA LA N NA NG KA JALAN DATO' SENU 4 JALAN HAJI SALLEH JALAN1/62D JALAN7/62A JALAN 1/48A JALAN6/62A JALAN5/62A JALAN HELANG MERAH JALAN9/62A JALA N HEL ANG MER AH JALAN11/62A JALAN 8/62A JA LA N KG.BANDAR DALA M JALAN 4/62A JALAN 3/62A JA LA N 22/ 38A JALA N LA NG EM AS JALAN LANG KUNIN G JALAN LANG PERU TPUTIH 1 JAL AN LAN G PER UT PUT IH JAL AN 13/ 38D JAL AN 20/ 38A JAL AN 1/3 8A JAL AN 14/3 8D JAL AN LAN G PER UT PUT IH 8 JAL AN 16/ 38D LORON G BURHA NUDDI N HELMI JALA N AMIN UDD IN BAK I JAL AN LA NG PE RU T PU TIH 8 JALA N BUR HAN UDD IN HELM I JAL AN SEG AMB UT JAL AN 15/3 8D JA LA N 6/3 8A JAL AN SEG AMB UT JAL AN BU RH AN UD DIN HE LM I1 LORO NG BURH ANUD DIN HELM I 1 LORONGRAHIMKAJAI13 LORONGRAHIMKAJAI14 JALAN DATUK SULAIMAN 2 LRG.DATUKSULAIMAN7 LRG.DATUKSULAIMAN1 JALAN LEONG YEW KOH JAL AN BU RH AN UD DIN HE LM I 2 JA LA N AT HIN AH AP AN PE SIA RA N ZA AB A LOR ONG BUR HAN UDD IN HEL MI 6 JAL AN DA MA NS AR A PE SIA RA N BU KIT KIA RA JA LA N BE RIN GIN JALAN SETIA BAKT I2 JALA N1/71 JA LA N BU KI T KI AR A / SP RI NT JALA N BER ING IN JA LA N SE TIA BA KT I JALAN SETIABUDI JA LA N DA MA NS AR A JA LA N BE RI NG IN LOR ONG SET IAB ISTA RI 1 LORO NG SETIA BISTA RI LOR ONG SET IABI STA RI 2 JAL AN SE TIA KA SIH 3 JA LA N SE TIA KA SIH 5 JA LA N JO HA R JAL AN SEMA NTAN JA LA N DA M AN SA RA JALA N SETI APUS PA JA LA N SE TIA BIS TA RI JAL AN KAS AH JA LA N SE TIA BIS TA RI JA LA N GE LE NG GA NG JALAN DUNGUN JALANDAMANSARAENDAH JA LA N BA TA I JAL AN DAM ANS ARA JAL AN DAM ANS ARA JAL AN BUK IT LED ANG JALAN MAAROF JALAN JELUTONG JA LA N DU TA JALANMAAROF JALAN JEJAWI JALANTELAWI JALAN BANGKUNG JALAN TELAWI 6 JALAN TELAWI 5 JALANPENAGA LORO NG MAAR OF JALAN ARA JA LA N AR A JA LA N AR A LORONG KURAU JA LA N M AA RO F JA LA N BANGSAR LEN GKO K ABD ULL AH JA LA N BANG SAR JA LA N RI ON G JALA N KEM UJA JALAN PANTAI BAHARU JALAN BUKIT PANTAI JA LA N TA ND OK LO RO NG BU KIT PA NT AI FEDERAL HIGHWAY JA LA N TR AV ER S JALAN KURAU JL N TU N SA MB AN TH AN 3 JA LA N PA DA NG BE LIA JAL AN SC OT T JL N TU N SA MB AN TH AN 4 JLN .TH AM BY AB DU LLA H 1 JLN .TH AM BY AB DU LLA H JAL AN WIS MA PU TRA JLN TAALA LA J. CHO O CHE NG KHA Y JALAN GELU GOR JA LA N PU NC HA K JALAN BUNUS JALAN ISFAHAN JAL AN BU KIT NA NA S LO RO NG PE RA K JALAN TENGAH JA LA N CH ER AS LR G. P.R AM LE E JALAN DELIM A JA LA N JE JA KA 5 JA LA N PE EL JALA NTUN RAZA K JA LA N JE JA KA 7 JA LA N MA HK OT A JA LA N JE JA KA 3 JA LA N JE JA KA 2 JA LA N JE JA KA 9 JA LA N JE JA KA 1 JALAN RAJALAUT JA LA N AM PA NG RAH MA N AL AN KU CH IN G JALA N ABDUL IS M AI L JAL AN SUL TAN JALAN TUANKU ABDUL RAHMAN ABDULLAHRAJA JALAN RAJA MUDA ABDUL AZIZ JA LA N SE N TU L JALA NPAH ANG JA LA N YA P KW AN SE NG JALAN MAYANG JA LA N IP O H JAL AN TUN RAZ AK JA LA N JA LA N TU N RA ZA K JALAN PUTRA JALA N MED AN TUA NKU JALAN SEMARANG JALA N MED AN TUA NKU 1 J. YAP AH SHAK J.D.S .SULA IMAN 1 J. MED AN TUA NKU 2 JALANDORAISAMY JALA NBELIA L.T. ABD .RAH MAN 2 JALA N SRI AMA R LRG. RAJA LAUT LORONG HAJITAIB1 JALAN RAJA ALANG JALAN TIONG NAM LORONGHAJITAIB2 JALAN HAJI TAIB LORONGHAJITAIB3 LORONGHAJITAIB4 JALANHAJIHUSSEIN JALANA.RAHMANIDRIS JALAN RAJA BOT JALAN CHOW KIT LORONG HAJI TAIB 5 RA JA LAU T LENGKOK JALAN RAJA ALANG JAL AN LU MU T JALAN SETIAWAN LORONGRAJABOT JAL AN DA TO HA JI EU SO FF JALAN CEMUR JAL AN IPO H KE CIL JALA N BIDO R JALAN PANGKOR JALAN PEKELILING LAMA JAL AN TE ME RL OH JALAN RAJA ALANG JALAN RAJA UDA MU DA MU SA JA LA N RA JA JLN HJ HASSA NSALLE H JALAN RAJA MUDA MUSA LRG RAJA UDA 1 JALAN DATO ABD RAZAK SULA IMAN JALANSULTAN JALA NHAJ IYAA KUB JAL AN RA JA UD A JAL AN DAT O ABD UL MA LIK JALAN RAJA MAHMUD JAL AN SU NG AI BA HA RU JALAN HAMZAH JALA NDESA PAND AN JALAN 4/76C JAL AN BEL ANG KAS JALAN 4/76B JAL AN THA VER JALAN KAMPONG PANDAN JALA N PER TIWI JAL AN WIR AWA TI 6 JA LA N WI RA JA LA N 4/ 91 JALA N PRIA 8 JA LA N PE RT IW I 1 JAL AN PE RK AS A 1 JALA N PRIA JALANPERKASA1 JALANJEJAKA JA LA N 1/9 1 JA LA N JE JA KA 4 JAL AN 6B/ 91 JAL AN 8/91 JA LA N JE JA KA JAL AN 7/91 JA LA N 5/9 1 JAL AN 6/91 JAL AN 10/9 1 JAL AN 5/91 JAL AN 9/9 1 JAL AN 6C/ 91 JAL AN 6A/ 91 JAL AN 6D/ 91 JAL AN 6E/ 91 JA LA N CH ER AS JA LA N PU DU UL U JALANCHERAS JA LA N PA LO NG JALAN 3/92B JA LA N 11 /91 JA LA N LO MB ON G JAL AN SEL AR JALA N SELA R JAL AN SER KUT JALAN IKAN EMAS JALA N SER KUT 1 JAL AN 3/92 B JAL AN SEL ANG AT JAL AN SEL AR 4 JA LA N SE LU AN G JA LAN LO KE YEW JA LA N SU NG AI BE SI JALA N SELO NJO NG 4 JALAN SEMBILANG JA LAN LO KE YEW JALAN SEKILAU JALANSUNGAIBESI JAL AN 5/8 9B JALANJELAWAT JAL AN MID AH 3 JA LA N 6/8 9B JA LA N CH AN SO W LIN JALAN 3/89B JAL AN MID AH 4 JA LA N MID AH BE SA R JA LA N 4/8 9B JALAN JALAK 2 JAL AN MID AH TIM OR JA LA N ME DA N MI DA H JAL AN MID AH 5 JA LA N MI DA H 1 JAL AN MID AH 1 JALA NSEKU CI L.BT.A9 JA LA N KU AR I JAL AN KUA RI JALAN LANCAN G JALAN JALAK J.JALAK1 JALAN KASKAS JALAN KASKAS 2 JALAN DURIAN JALAN KASKAS 1 JALAN LOBA K JALAN KETUMBAR JALAN KASKAS 3 JALAN17 JALAN 1/96A JALAN KUAR I JALA N 1/101 JALA NMAN IS J.DESAAMAN11 JALANDESAAMAN3 JALANDESAAMAN9 JALA N DES A AMA N 10 JALAN CHE RAS JALA N MUT IARA 1 JAL AN MU TIA RA 1 JA LA N CH ER AS JALA N DES A AMA N 12 JA LA N MA NI S 4 JA LA N MA NIS 1 JA LA N MA NI S 7 JALAN MANIS 2 JA LA N MA NI S JAL AN SIP UT JA LA N MA NI S 3 JAL AN MA NIS 6JA LA N MA NI S 5 JALA N SIPU T 3 JAL AN SIP UT 1 JALA N SIPU T JAL AN SIP UT AKE K JALAN MIDA HBARA T JA LA N MI DA H BE SA R JALA NMIDA HBESA R JALAN MIDAH 12 JALAN JAYA 5 JALA NMIDA HTENG AH JA LA N MID AH 14 JAL AN MID AH 16 JALAN MIDAH 14 JALAN JAYA JALAN BUDIMAN JA LA N TE NT ER AM JALAN JAYA 4 JALAN JUJUR JA LA N TE NT ER AM JALAN KILANG MIDAH JALAN IKHLAS JALANMEWAH JALAN 1/117A JALAN 9/117A JALAN19/117A JALAN 23/117A JALAN25/117A JALA N MAKM UR JALANJUJUR4 JAL AN 1/11 8 JALANJUJUR3 JALANJUJUR1 JAL AN BUD IMA N JA LA N IKH LA S JALAN26/117A JAL AN BUD IMA N 1 JALANBANGSAWAN JALANTASIKPERMAISUR I2 JALANJUJUR2 JALAN24/117A JALAN28/119 JALANMUTIARABARAT5 JALAN 1/119A JA LA N SE BA RA U JALAN29/119 JALAN MUTIARA 3 JALAN 27/119 JALANNADCHATRAN JALAN 30/119 JALAN DATO HAJI HARUN JALAN TIRAM JALAN MUTIARA 4 JALAN MUTIA RA RAYA JALAN MUTIARA 5 JALAN MUTIARA BARAT 11 JALAN 3/119A JALAN MUTIARA 1 JALAN MUTIARA 7 JALAN 1/119 JALANMUTIARABARAT6 JALANARASAKESARI JALAN DATO HAJI HARUN JALANBEEENG4 JALANBEEENG1 JALANMUTIARABARAT4 JALAN SARJANA JALAN CHOO LIP KUNG JALAN CHOO LIP KUNG JALAN WARAS 3 JALAN WARAS 1 LRG.CHOOLIPKUNG5 JALAN PENDITA JALANGELIGA JALANSARJANA1 JALAN CERDAS JALANWARAS L.CERDAS1 EAST WEST EXPRESSWAY JALAN SARJANA 3 JALANMAHIR JALAN ARIF JALAN CEKAP JALAN SARJANA 5 JALANAHLIMAN2 JALANCERDIK JALANSARJANA JALANSARJANA2 JALANAHLIMAN1 JALANPANTAS JALAN 15/142 JALA N 9 JALA NCERD IK JALAN 16/142 JALAN AHLIMAN JALAN 5/142 JALAN 6/142 JALAN 1 JALAN 2 JALAN 2 JALAN 4 JALAN 11 JALAN4 JA LA N 1/1 44 A JALAN4/144A EAST WEST EXPRESSWAY JAL AN 11/1 18B JALAN3/118C JALA N 2/118 C JALAN5/118C MIDDLE RING ROAD II JALA N14/11 8 MID DLE RIN G ROAD II JALAN4/118C MID DLE RIN G RO AD II EAST W EST EXPR ESSW AY JALAN6/118C JA LA N CHER AS MIDD LE RIN G RO AD II JA LA N 1/1 08 JALAN CHER AS JALA N 6/108 C MIDD LE RING RO AD II JA LA N SU NG AI BE SI JAL AN 12/1 08C JAL AN 1/1 08C JALA N 1 JAL AN 10 EA ST WES T EX PR ES SW AY JA LA N 9 JAL AN 28 JALAN7/125 JAL AN SU NG AI BE SI JALAN 4/125 JALA N 7 JAL AN 4/1 25 JALA N 11 JA LA N 10 JAL AN 2/12 5 JAL AN 22 JA LA N 9 JALAN 10/125 D JALAN 9/125D JALAN 6/125D JALAN 1/125D JALAN 8/125D JALAN 2/125 JALAN 3/125 JALAN 5/125D JAL AN 5/12 5 JA LA N 20 /14 6 PESIARAN 21/146 JA LA N 10 /14 6 JA LA N 8/1 46 JALA N 10/1 33 JALAN PAUH KIJANG JAL AN 11/1 33 JA LA N SU NG AI BE SI JAL AN 8/13 3 JA LA N 12/ 133 JALA N 9A/1 33 JAL AN 12/ 133 JA LA N 9/1 33 JALAN 1/133 JAL AN KAM PUN G PAS IR JALA N 1/13 3 JAL AN AW AN HIJ AU 1 JAL AN KLA NG LAM A JA LA N KL AN G LA MA JA LA N PU CHO NG JALA N 2/13 3 JA LA N ME GA JA LA N ME GA ME ND UN G JAL AN AW AN HIJ AU JA LA N ME GA ME ND UN G JAL AN AW AN ME ND UN G JA LA N SE PA DU 2 JA LA N SE PA DU JAL AN ME GA KE CIL JA LA N SE PA DU 3 JA LA N SE PA DU 4 JAL AN SEP AKA T 10 JALA N SEP AKA T 10 JAL AN SE PA KA T 3 JAL AN SE KA TA JAL AN SE KU TU JA LA N SE PA DU JALAN RIANG JALANRUKUN7 JALANRUKUN2 JALANRUKUN4 JALANRIANG14 JALANRIANG11 JALANRIANG5 JALANRUKUN JALANRIANG10 JALANRIANG11 JALAN RIANG 3 JALANRIANG13 JALAN SELESA 1 JALAN SELESA JALAN SELESA 9 JALAN SELESA 1 JALAN RIANG JALAN SUKACITA JALAN SELESA 6 JALAN RUKUN 6 JALAN RUKUN 3 JALANBATALONG JALAN RUKUN 1 JALAN 2/115A JALAN SUKACITA 2 JALAN SELESA 2 JALAN KUCHAI LAMA JAL AN DES A BAK TI JALAN 1167C JALAN KUCHAI LAMA JALAN 3/109F JALAN DESA BAKTI JAL AN DE SA JAY A JA LA N DE SA UT AM A JAL AN DES A BAH AGI A JAL AN DE SA BA HA GIA JALAN DESA JA LA N D ES A U TA M A JALAN KUCHAI LAMA JAL AN DE SA UT AM A JALA NKLAN GLAMA JALAN DESA JAYA JALA NKLAN GLAMA JA LA N DE SA UT AM A JAL AN KLA NG LAM A JALAN KLANGLAMA JALANKLAN GLAMA LORO NG SEPU TEH JALAN BANDAR DESA JALAN BANDAR DESA 5 JALAN BANDAR DESA 3 JALAN BANDAR DESA JALANBANDAR DESA3 JALAN BANDAR DESA 6 JALANBANDARDESA4 JAL AN 2/1 14A JALAN KUCHAI 2 JAL AN 1/1 14A JAL AN 1/1 37B JALAN SAWI JALANKANGKONG JALAN AWAN BESAR JA LA N AW AN SA RI JAL AN AW AN CH EM PA KA JA LA N PU CH ONG PESIARAN AWAN JA LA N TA N YE W LA I JAL AN 7 J. DA TU K HA JI 1 J. DAT UK HAJ I3 J. DA TU K HA JI 2 JAL AN 6 JAL AN 5 JA LA N DA TU K HA JI JA LA N AW AN BE RA RA K JAL AN 4 JAL AN 7 JAL AN 8 JALA N AWA N JAW A JALANAWANJAWA PE SIA RA N AW AN JALANAWAN BESA R JA LA N AW AN KE CI L 7 JAL AN HUJ AN RAH MA T 1 JALAN HUJAN EMAS 4 JALAN HUJAN EMAS 3 JA LA N HU JA N EM AS 4 JA LA N HU JA N EM AS 5 JA LA N HU JA N EM AS 6 JALAN HUJAN RAHM AT 2 JALAN HUJAN JAL AN HU JAN RA HM AT JALAN HUJAN RAHM AT 3 JA LA N HU JA N EM AS 3 LRG .HUJ AN RAH MAT 1 JALANHUJAN JALAN AWAN KECIL 3 JALAN AWAN KECIL JA LA N HU JA N EM AS 1 JA LA N HU JA N EM AS LIN GK UN GA N HU JAN JALAN AWAN KECIL 5 JAL AN HU JAN EM AS JA LA N HU JA N EM AS 2 JA LA N HU JA N EM AS 7 JAL AN HU JAN EM AS 8 JA LA N LA ZA T JA LA N HU JA N BA TU JA LA N LA ZA T 7 JA LA N MA NIS AN JA LA N LA ZA T JA LA N MA NI SA N 3 JA LA N NY AM AN 10 JAL AN SE LE RA JA LA N NY AM ANJAL AN SE LER A 1 JALAN NYAMAN JA LA N LA ZA T 2 JALAN LAZAT 7 JA LA N LA ZA T 1 JA LA N PE RIS A JALANPERISA2 JALANPERISA1 JALANPERISA5 JALANPERISA2 JALAN PERISA 6 JA LA N LA ZA T 5 JAL AN LA ZA T 4 JA LA N LA ZA T 3 JAL AN NY AM AN 5 JALA N NYA MAN 1 JALAN LAZAT 6 JAL AN NY AM AN 6 JALAN PERISA 4 JALANMESRARIA JALA N NYA MAN 4 JALA N NYA MAN 3 JALAN NYAMAN 2 JALANNYAMAN1 JALAN GEMBIR A JAL AN GE MB IRA JALANJIRAN4 JALANJIRAN12 JALANENAK JALANJIRAN JALANJIRAN3 JALANENAK2 JALAN JIRAN JALANSENANGRIA JALAN RAMAH JALAN JIRAN 7 JALA N JIRAN JALAN JIRAN 5 JALAN JIRAN 10 JALAN JIRAN 9 JALAN JIRAN 6 JALAN ENAK 1 JALAN JIRAN 8 LORONG NIKMAT 11 LORONG RAMAH LORONG NIKMAT 5 LORONG NIKMAT 3 LORONG NIKMAT 1 LORONG NIKMAT 4 MEDANRAMAH JALA N MES RAR IA LORONG NIKMAT 2 JAL AN TH AN KU 4JAL AN TH AN KU 1 JAL AN HAN G TUA H 2 JAL AN HA NG TUA H 1 JALAN THANKU JALAN GEMPITA JA LA N SU NG AI BE SI JALANGEMPITA3 JALANGEMPITA1 JAL AN GE MP ITA 2 JAL AN BE ND AH AR A JA LA N SU NG AI BE SI JALANGEMPITA5 JA LA N SIN AR JALANGEMPITA4 JA LA N PE RK AS A JALANGEMPITA6 JALAN 3/140 JALAN 4/140 JALAN 2/140 JALAN 1/140 JALAN CAHAYA 2 JA LA N CA HA YAJAL AN CAH AYA 3 JALAN CAHAYA 4 JALANCAHAYA1 JALANCAHAYA6 JALANCAHAYA7 JAL AN PE RK AS A 9 JALANCAHAYA5 JALANCAHAYA9 JALAN CAHAYA 8 JALAN 2F/14 9 JALAN 1F/149 JALAN 5F/149 JAL AN PE RK AS A 8 JAL AN 12F /149 JALAN 3F/149 JAL AN 15F /149 JAL AN 16F /149 JALAN4F/149 JALAN1F/149 JA LA N 1/5 JA LA N TA MA N ME LA TI 8 JA LA N TA MA N ME LA TI 2 JA LA N TA MA N ME LA TI 6 JA LA N TA MA N ME LA TI 4 PE SI AR AN PE RT AH AN AN JA LA N DE WA N JA LA N DE WA N JALAN TUMB UHAN JALANTAMANMELATI17 LORONG SENTOSA JA LA N MA LIN JA JA LA N MA LIN JA JAL AN MA LIN JA 1 JA LA N MA LIN JA 2 JA LA N MA LIN JA 3 JA LA N 4/ 27 A JALAN3/27A JAL AN 7/2 3C JA LA N 6/2 3B JA LA N 3/2 3B JA LA N 2/2 3B JA LA N 6/2 3C JA LA N 12/ 23B JA LA N TIO MA N JA LA N SA TA NG 1 JA LA N BA KU BA NG 1 JALA N BAK UBA NG JALA N 8/23 B JALA N SEMP ADI JA LA N SA TA NG 2 JALAN JERE JAK JALA NKERU IN JALA N KEMP AS JA LA N ME RB AU JALAN MERANTI JA LA N CE NG AL JAL AN JAM BU GA JUS JA LA N ME RA NT I JAL AN KIL AN G 3 JA LA N RA SA K JAL AN JAM BU BER TEH 1 JAL AN JAM BU BER TEH JAL AN JAM BU ME RAH JAL AN JAM BU MER AH 2 JAL AN JAM BU BER TEH JALAN JAMBU ARANG JALAN JAMBU BERASA JAL AN JAM BU JEM BA H 1 JALAN JAMBU AIR LAUT JAL AN JAM BU JEM BAH JA LA N JA MB U GA JU S JALAN 30/42 JALA N 32/42 JA LA N UD AN G KE PA I JAL AN UDA NG PAS IR JAL AN UD AN G GA LA H JAL AN UDA NG PAS IR JAL AN UDA NG GAN TUN G JALANUDANGKETAK JAL AN 2/62 B JALA N UDAN G GERA GAU JAL AN UDA NG GAN TUN G 2 JAL AN HEL ANG HIN DIK JALA N 1/62A JAL AN 3/62 B JAL AN 34/ 38A JAL AN HEL ANG BUK IT JAL AN LAN G PER UT PUT IH 2 JAL AN LAN GPER UT PUT IH 10 JALA N LANG TOMP OK JALANLANGKUNING JAL AN LAN G PER UT PUT IH 7 JAL AN 30/ 38A JAL AN 6/38 E JALAN LANG KELAB U JALAN LANG HITAM 1 JAL AN 13/ 38E JAL AN 2/38 F JAL AN 9/38 F JAL AN 1/38 C JAL AN 4/38 F JAL AN 2/38 C JAL AN 10/3 8C JAL AN 11/3 8C JALA N 5/38F JAL AN 3/38 A JAL AN 5/38 D JAL AN 6/38 D JA LA N 16/ 38A JA LA N 14/ 38A JAL AN 9/3 8D JA LA N 18/ 38A JALAN 5/38B JAL AN KEL APA HIJA U JALAN 6/38B JALAN 8/38B JALAN 7/38B JALAN 9/38B JALAN4/38B JALAN1/38B JA LA N DU TA JALAN KUCH ING JA LA N DU TA JALA NDUTA JALANDUTA JA LA N DU TA JALA N LAN GGA K TUN KU J.T. SELAT AN JALAN DU TA - SG . BULOH EXPRESSW AY (PL US) NKVE TOLL PLAZA JALAN DUTA - SG. BULOH EXPRESSWA Y (PLU S) JAL AN LAN GG AK TUN KU JAL AN LAN GGA KTUN KU JALAN DUTA - SG. BULOH EXPRESSWAY (PLUS) JALA N LANG GAK TUNK U LE BU HR AY A MAH AM ER U LE BUHRAYA M AHAM ERU LEBUHR AYA MAH AME RU JAL AN TUN ISM AIL JALAN DAMANSARA JA LA N IS TA NA JA LA N DUTA JA LA N BA NGSA R JA LA N SY ED PU TR A JA LA N SY ED PU TR A KU AL A LU MPU R - SE REM BA N EX PR ES SW AY (P LU S) KUALA LU M PUR - SEREM BAN EXPRESSW AY (P LU S) KUALA LUMP UR -SEREMB AN EXPRESSW AY (PL US) KU AL A LU MPU R - SE REM BA N EX PR ES SW AY (P LU S) KUALALUMPUR-SEREMBANEXPRESSWAY(PLUS) JALAN KUCHAI LAMA JA LA N IS TANA JALAN12/62 JA LA N SU NG AI BU LO H JA LA N 2/6 2 JALAN 6/62 JALAN 3/62 JA LA N SU NG AI BU LO H JA LA N 2/ 62 LEBU HRA YA DAM ANSARA PUC HON G JALAN 19/62 LEBUHR AYADAMANS ARAPUCHON G LE BU HR AY A DA MA NS AR A PU CH ON G LEBUHRA YADAMANSARAPUCHONG LEBU HRAY ADAMA NSAR APUCH ONG JA LA N KU C H IN G LEBUH RAYA DAMANSARA PUCHO NG JA LA N KU CH IN G JALAN SENTUL JAL AN GOMBAK JA LA N PA HA NG JALANSENTUL LOR ONG RAJ A MUD A JALAN MASJID HOSPITAL JALANDOKTORLATIF JAL AN SEP UTI H JAL AN BUK IT RAJ A JAL AN TA MA N SE PU TIHJALA NSUNG AIDUA JALAN SYED PUTRA 5 JALAN TANJUNG 12 JALAN TELUK PULAI PES IARA N SYE D PUT RA JAL AN PE RM AI JALAN SYED PUTRA 3 JALANSYEDPURA1 JALAN SYED PUTRA 4 JALA N 2/87D JAL AN RO BSO N PESIARANPUTRA JALANSYEDPUTRAKIRI JALAN DAMANLE LA(1/72B) JALAN 5/72B JALAN DAMA NSEN (2/72B ) JALAN 4/72B JAL AN SRI HAR TAM AS JALAN MEDAN SETIA JALA N SRI HAR TAM AS JALAN SRI HART AMAS JA LA N SR I HA RT AM AS 1 JALAN BUKIT MAHKAMAH JA LA N 21 /70 A JA LA N 19 /70 A J. SR IHA RT AM AS 7 JA LA N SR I HA RT AM AS 1 JA LA N SR I HA RT AM AS 3 J. SR IHA RT AM AS 6 J. SR IHA RT AM AS 5 J. SR IHA RT AM AS 4 J. SR IHA RT AM AS 9 J. SR IHA RT AM AS 8 J. SR IHA RT AM AS 12 J. SR IHA RT AM AS 10 J. SR IHA RT AM AS 13 J. SR IHA RT AM AS 16 J. SR IHA RT AM AS 14 JALANBUKITKIARA JA LA N 21 /70 A JALA N SEG AMB UT LEBU H R AYA M AH AM ER U JA LA N D AM AN SAR A JALA NTUAN KU JALAN ABDULLAH MUNSHI JA LA N MA SJ ID INDIA JALAN BUNUS JALAN KINAB ALU CHEN G JALAN PETALING TUN H.S.LEE JALAN JALAN SULTAN JALANPETALING JALAN HANG LEKIR JALAN B.POLIS JALANSULTAN JLN.HANGKASTURI JALANPANGGUNG JA LA N PU DU JA LA N BU KI T BI NT AN G SULTAN JAL AN ALO R CHA NGK AT BUK IT BINT ANG BERA NGA N JALA N NAG ASA RI JAL AN TE NG KA T TO NG SH IN JALA N PUD U JAL AN TO NG SH IN JAL AN SA HA BA T JAL AN BE DA RA JA LA N IM BI AM PA NG WA NG I JALA NRAJA ABDU LLAH JALAN KEMUNTIN G JAL AN JA LA N PU DU CHANGKAT THAMBI DOLLAH JALAN PASAR JA LA N KE NA NG A LR G BR UN EI SE LA TA N JA LA N BR UN EI JLN BR UN EI BA RA T JAL AN LA ND AK JA LA N KIJ AN G JALA NSELA DANG JALA N KAN CHIL JAL AN BU GIS JLN BR UN EI SE LA TA N JA LA N NY ON YA JAL AN SUN GAI BES I JAL AN ME MB ER AN G JALA N SAY OR LRG. YAP HIN JALAN C.T. 2 JALAN PASAR BARU JAL AN BE RU AN G JA LA N PU DU JA LA N PA SA R BA RU JA LA N ME RA NT I 2 JA LA N ME RA NT I 3 LR G. ME RB AU JA LA N ME RA NT I 1 JA LA N ME RA NT I JA LA N RU SA JA LA N TH AM BIP ILL AY JA LA N TU N SA MB AN TH AN JA LA N SU LT AN AB DU L SA M AD JA LA N BE RH AL A JA LA N TU N SA M BA NT HA N JA LA N RO ZA RI O JAL AN VIV EK AN AN DA JLN . TUN SAM BAN THA N 1 JAL AN CE ND ER AI JALAN TELAWI 1 JALAN TELAWI 4 LORONGMAAROF J.BAN GSAR UTAM A3 JA LA N BA NG SA R UT AM A 1 J.BA NGS AR UTA MA 9 JALA N TUN MOH D FUAD 2 JALA N TUN MOH D FUAD 3 JA LA N DA M AN SA RA MED AN BUR HAN UDD IN HEL MI LOR ONG BUR HAN UDD IN HELM I 7 JAL AN BU RH AN UD DIN HE LM I2 LORO NG BUR HAN UDD IN HELM I 10 LOR ONG BUR HAN UDD IN HELM I 9 PINGG IR ZAABA LOR ONG BUR HAN UDD IN HELM I 11 PESI ARA N ZAAB A PESIA RAN ZAAB A LORONG NIKMAT 8 JALAN NIKMAT LORONG NIKMAT 10 LORONG NIKMAT 7 LORONGNIKMAT9 LORONGNIKMAT6 JALAN 3/76D JALAN 1/76D JALAN 3/76B JAL AN 3/76 B JALAN 5/76B JALAN 1/76C JAL AN 3/76 B JALAN 3/76C JALAN 4/76C JAL AN 46/ 26 JAL AN 45/ 26 JAL AN 46A /26 JA LA N 58/ 26 JAL AN 46A /26 JAL AN 42/ 26 JALAN BUKIT SETIA WANG SA JA LA N 34 /26 JALAN IPOH JALAN BATU BATAN JALANBATUBERANI JALAN BATU AMBAR JAL AN CE ND ER UH JALA N CEN DER UH 4 JALAN 2/116B JALAN 3/116B JA LA N KU CH AI LA M A JAL AN HA NG TU AH 3 JAL AN HA NG TUA H 4 JALANRIANG12 JALAN SELESA JAL AN AM BO NG 2 JA LA N AM BO NG KIR I1 JA LA N KE PO NG JA LA N AM BO NG JAL AN AM BO NG 1 JA LA N AM BO NG 4 JA LA N AM BO NG 3 JAL AN AM BO NG KA NA N1 JALA N 53 JALA N 54 JAL AN PER DAN A 3 JAL AN PER DAN A 4 JALAN A JALA N 31/42 EASTSTREET1 MARKET ROAD MAINSTREET THEATRE ROAD JAL AN SE GA MB UT UT AR A JALA N SEG AMB UT JA LA N SE GA MB UT JALA NMIDA H18 L. JAYA 14 JALAN JINTAN L. JINTAN 2 L.JINTAN1 JALAN 4/98 JALAN 3/98 N SP RI NT HI GHW AY U/ C SP RI NT HI G HW AY U/ C SP RIN T HIG HW AY U/C PR OP OS ED DA MA NS AR A TR AN SIT RO UT E PR OPO SE D KL DE DI CA TE D HI GHW AY PAN TAI HIG HWAY U/C JALANDATUKSULAIMAN JALA N ATH INAH APA N Station u/c Galaxy Proposed flats POLICE Awana Puri Condo FlatsmosqHANKYU JAYA SHOPPING COMPLEX SC Police SgKlang Palm Court Buddhist Temple Crescent PERNAMA sc Biro Tata Negarae+003;. Sri Im pi an C on do Pearl Co urt Ch. Sc. As ra m a Vi va School Sc. (Ta mil ) Church Chinese Temple ScShell St. John BandarTim or Dev.jv DBKL W orkshop Persekutuan Flats Flats Hin duTem ple Sy kt. Ma lur i He ad Of fic e JALA N 1A/1 33 JAL AN 3/13 3 JA LA N 2/1 33 JAL AN 1/1 37C JLN 2/13 7C JLN 2/1 37B JAL AN RIA NG 15 JALAN1/30 JALAN 1/28 JALAN1/127A JALAN3/127A JALAN 8/116B JALAN 9/116B JALAN 1/116B JALA N5/116 B JAL AN 4/1 16B JA LA N 6/1 16 B JALAN 3/114 JALAN 1/114 JALAN2/114 JAL AN 2/1 15A JAL AN 1/11 5A JALAN 3/109C JALAN109F CAS A ELI TA JALA N WAN KADI R 4 DRA IN wIS MA mA HK OT A JALANSIBU8 JALAN 12/34A JAL AN 3/34 A JALAN 3/34A JAL AN 7/34 A JALAN6/34A JALAN 1/34A JALAN 13/34A JALAN 9/34A JALAN 10/34A JALAN 2/34B JALAN 11/34A JALAN 4/34A JALAN 1/34B JAL AN PER DAN A 2 Proposed Residential by Gasing Heights Gasing Indah Muslim Cemetery Pantai Indah Flats Kg. Pasir Dalam MiddleRingRoadII Pandan Perdana Pandan Indah KlangRiver SPPK (Semi - D) Ox-pond Tmn Orkid Desa Alam Damai (SPPK) Ox-ponds TUDMFlats Taman Len Sen Angkasa Phoenix Township Plaza Phoenix PhoenixBusinessPark u/c Tmn Orkid Desa Telekom PEMADAM DBKL(Proposed Ind. Dev.) DBKL(Proposed Ind. Dev.) Sc. Reserve Army Reserve Shell DBKL Flat Desa Tun Razak Industrial Park De sa T. Ra za k Ap artm en t Proposed Wisma CSRC Apt. Apt. Pe tro na s Gas Pe tro leum Ce ca ir VL (DBKL) VL Bandar Tasik Selatan Tasik Heights Apt. Tmn Desa Taman Naga Emas Taman Salak Selatan Sekolah Tunas Bakti Approved School ReserveKSM Housing Fld Chinese Temple Desa Gembira Condo Reservoir Reserve Apt. Housing Under Vacant Land Vacant Land Vacant Land Tmn Bukit Aman Kampung Malaysia Tambahan Kg Malaysia Raya ESSO Industrial Shopoffice mosque TNB BukitAwansariApartment Taman Tan Yew Lai Shell Tmn Bukit Indah BP Sc Taman Sri Sentosa Tmn Kuchai Tmn Nam Fong Tmn Bahagia Electric Transmission Line Sc. Sc. C linic Sc. Avant Court Electric Transmission Line Apt. Apt. Flats Flats Proposed 58 units shop/offices Klang River IWK Overseas Union Sc. Industrial Training Institute VE-TSIN TAMAN GOOD WOOD MEADOW PARK 1 & 2 Taman Desa Medical Center Bomba UPA Building Industry Buildcon PR IM A PLAZA Taman United Kuchai Brem Park Taman Kuchai Jaya Tmn Pagar Ruyung Taman Continental Taman Lin Hoe Taman Indrahana Tm n Skyline Tmn Sg Besi Pakar Ind. Park FaberIndah Longhouses TNB Abadi Indah Apartment Abadi Villa Low Cost u/c (DBKL jv Fleet Group) TELEKOM Sc. Sri Desa Condo Vanta ge Poin t Flats Flats Flats Ele ct ric Tr an sm ission Li ne Electric Transmission Line Electric Transmission Line Taman Danau Desa Des a Cinda im as Con do (C on co rd Link S/B ) Pro po se d Con do (B uk itPer m at a S/B ) Apt.Apt. Apt. Flat PEAR L PO IN T Proposed Apt. Afforestation Experiments Reserve Kg. Pasir Baru Oxidation Pond Sc Proposed Market, Commercial Complex & Shopoffices Sg. Kla ng Klan g River MALAYSIA CARPET AJI NO MOTO Kuchai Entrepreneurs Park D e Tro pic ana Condo Apt.Apt. Taman Gembira Sc. Abadi Baiduri Why Dev. Sdn Bhd Muslim Cemetery Flats BukitGembira Condo Apt.Apt. PLAZA OUG BANDAR PARK Ele ctric Transm iss ion Lin e Chinese Cemetery Flat Sri Kota Taman Mulia Cheras Jaya Tmn Supreme Tmn Segar Segar Apartment Sc Quarry Res. Tmn Midah Tmn Billion Cheras Business Centre u/c Temple Ox-pond Hospital UKM Mosque Unit Berkuda DBKL Sc Bomba Flat Sri Labuan InternationalYouthComplex Tmn Gemilang Tmn Desa Aman Infant Jesus Convent Tmn Mutiara Used Car Supreme Jaya Tmn Suet Chow Tmn Bukit Hijau DBKL jv Dwi Tasik (Flats U/C) Sports Complex Swimming Pools Telekom Danau Lumayan Sdn Bhd (proposed township) WismaZelan Taman Tasik Permaisuri Sri Cendekia Condo Apt. Apt. Sc. F.I.T Tmn. Taynton View Sedaya College Bom ba TN B O xi da tio n po nd s Petronas Car Park Cloud View Tower Taylor's College Taman Rajawali (Mekar Mawar Sdn Bhd) Shophouses u/c (Tenggara Teguh) DBKL Prism a Ch eras Con do Sc. Sc. MidahHeights Condo Apt. ETL JBA MAKRO Bandar Tun Razak Cheras Leisure Mall Tmn Connaught Bukit Sg Puteh Forest Reserve Extn oxidation ponds Apt. BP VL Sc. Reserve Ox- Pond VL (DBKL) Winner Court B PangsaRia Flats FlatsFlats EPF jv MBSB (proposed mixed dev.) Salak Selatan Baru TNB Salak Jaya Winner Heights Sri LataCondo Resortesa Amanesa Police Market Winner Court A TNB Car Park Sri Sabah (DBKL Flats) Sri P.Pinang (DBKL Flats) Taman Ikan Emas Sri Johor (DBKL Flats) Mosque Sri Melaka (DBKL Flats) Tmn Tenaga Ikhsan Seri Mas Condo Wet Market Villa Laman TasikBayu Tasik Apartment Asrama Anak Yatim T. Budriah M aktab Perguruan Ilm u Khas Old Folks Home Velodrome DBKL Tmn Pertama Tmn Chantik Tmn Bukit Ria Shell Quarry Reserve Bukit Pandan Condo u/c Pandan Heights Condo u/c Kg Cheras Baru Tmn Cheras Utama u/c Tmn RakyatTmn Bukit Mewah Christian Cemetery Reserve Muslim Cemetery Bolton Properties Razak Mansion Sc Sc Sc Oxidation Pond (Proposed Showroom & Office) DBKL's Longhouses Reservoir Reserve Rumah pam Pergerakan PutriIslam Complexu/c Sc. Sc. DBKL's Wasteshed Reserve Mosque Sc under Federal Land Commisioner (Proposed redevelopment by Jiwa Unik S/B) Apts. Plaza Dwi Tasik U/C Maktab Perguruan Teknik Winmin Dev. S/B (Mahajaya Group) Tmn Cheras Tmn. Bukit Asa Tm n Midah Ria Con do (U /C) Che ras La nd S/B KL Football Stadium Pantai Medical Centre Bandar Sri Permaisuri u/c (DBKL jv Dwitasik S/B) Prism a Pe rdan a Co nd o U/C (Saraintan De v. S/B) Pekan Salak South RTM Bukit Angkasa Taman Desa Seputeh FLATSRILEMPAH TIA RA FABER CONDO u/c FaberRia O BD G AR DEN TO W ER DES AR IN A CO NDO Taman Fairview TUDM IWK Sc. JKRTaman Desa DBKL'sNursery Villa Desa Condo Bukit Desa Condo Sg.Klang KlangRiver TNB u/c Taman Seputeh Bukit Sepute h MENARA TELEKOM u/c PANTAI SQUARE u/c TELEKOM JBA Sc. Fajaria KlangRiver Hockey Stadium (Kementerian Pendidikan) Vista Angkasa Electric Trans mission Line University Hospital POLICE HQ CYGAL DEV. SDN BHD (mixed dev.) Flats SC Faber Height IWK ProposedMixedDevelopment Sc. Danau Permai Condo Danau Impian DanauIdaman Condou/c Desa Theme Park, Boat House & Commercial Centre (Amat Muhibah Sdn Bhd) DBKL's lo nghouses FA BERTO WER Pantai Tower Bintang Pantai Ele ctric Tra nsm issio n Lin e Lucky Garden Bangsar Heig hts NEW STRAITS TIMES UNIVERSITY MALAYA Section 16 PJ MaktabHostel (MARA) Bukit Pantai TNBPANTAI HOSPITA L KG.HJ. ABDULLAHHUKUM Fraser& Neave police sc sc Robson Condo sc sc LA CHATEAU LE C H ATEAU KG.KASTAM policeflat Chinese Cemetery DBKL Sports Club Sep ut ih Per m ai C on do Robson Heights Te mple Darul Quran Taman Pesiaran Desa Cristal Court sc Con dou/ c Klang River Court The Pin e G overnm ent Q uarte rs Mus limCe metery Volvo Pro posed Bandar Tim or (F awanis) Buddhist Temple U E3 Shoppin g M all Taman Miharja Sc. Res Open Space Chinese Cemetery Sr iMutiar a Co nd o W isma Mah Sing Per ce ta ka n Kes el am at an N as io na lS/B Per ce ta ka n Nas io na l M al ay sia S/B South Engin eering S/BMalay sia Tob ac co Com pa ny Bhd . Police Station Sc Sc TNB Miharja Condominiums M ih arja Fla ts DBKL's Workshop/Store Quarters Sc. DBKL's long ho us es JKR (W orkshop) Perumahan Awam Sementara (Long houses) Chan Sow Lin Industrial Wisma Maksak HOME TRENDS Sc. Badm inton Stadium Kompleks BeliaProposed Residential (Berjaya) MID VALLEY CITY u/c Bukit Robson Condo LEVER BROTHERS U D A H old in g S/B Putra Ria Tam an Sham elin Perkasa GM Institute Ess o Town Park u/c (DBKL) Perumahan Sementara Apts. G ate way 2020 Busin ess Park Sri Bin ta ng Sm art School C om ple x u/c D BKL's lo nghouses Kem ente rian Pendid ik an Apts. Jaya Jusco Car Park DBKL's Land (Proposed housing in future) PGRM Pantai Panorama Condo Pantai Hill Park BukitSgPuteh ForestReserveExtn P/P P/P P/P Times Squa re Busi ness Plaza . P/P P/P P/P PR IM E CO LL EG E P/P P/P Nyaman Court P/P IWK P/P Electric Transmission Line Esso BP Calt ex Ess o M ut ia ra Ban gs ar MCOBA Bldg Fla t Wisma Belia Segambut M.R. Ap ar tm en t Nelayan Restaurant SchoolTmn. Tasik Titiwangsa Sc. Mahsuri Apt. Sri Ayu Apt. Apt. Apt. Tmn. Keramat Permai SH SH SH Mosq. Clubhouse Arkib Negara Kg. Segambut Dalam Condo. Duta Ria Radin Makmur Prima Duta U/C Hindu Temple MATRADE (Perbadanan Pembangunan Perdagangan Malaysia) Sc. Menara KLH Sc.Sc. Field Sc. Hindu Temple Sc.Sc. Sc. Sc. ChurchSc. Field Hosp.Tawakal Institut Kefahaman Islam Sungai Penchala M.R. Police Phileoland Bhd. (Proposed Mixed developments) Maktab Perguruan Sri Kota (Institut Aminuddin Baki) PULAPOL (Pusat Latihan Polis) Proposed Mixed Dev. FL AM ING O HO TE L Res cue 991 MIDDLE RING ROAD II Antah Tower Kelab Golf Perkhidmatan Awam IWK Penas Corp. DESAKIARACONDO Bangsar Sports Complex Bangsar Baru Taman Bangsar Ele ctric Tra nsm issio n Lin e SRI W ANGSARIA Bukit Bandaraya Wisma Quepacs Police Station SR JKJa lanPa sa r1& 2 School MAB. Caltex Health Institution Nurse Hostel Sch SC O TT VIL LA MENA RABELFI ELD Pandu Puteri. . Wisma Putra School School Sc Church Government QuartersEdinburgh Property S/B (officeu/c) Government Quarters CHO O CHE NG KH AY WI SM AMI RA MA PUSPANITA DB P Co mp lex U/C Roman Catholic Cemetery Se k. M en . Ts un Ji n Flats Bu dd his t Ce me ter y Mos que KENANGA POINT CONDO School Government Quarters (Proposed Redevelopment by Progressive Steel S/B) Pos tOff ice Telekom Bu dd his t Te m ple SM K Pu te rij ay a SR JK (C ) Ku ng Mi n SK Ja lanPa sa r1& 2 SR JK (C ) Ch in Wo o Bom ba Pandan Jaya CasaRia Sc. TamanMaluri Telekom Government Quarters Mosque DUA RESIDENCE Royal Selangor Golf Course Palestin e PuteriIslam FERNLEA COURT Government Quarters Proposed Apt. Fairview Int. School Iran DAMAI SURIA Iraq Austr alia Apt. U/C Indonesia British Net herl and New Zealan d Canada USA VILLA U THANT 1 Proposed Apartment Nigeria Japan SERISKA Iraq Om an Germ any Propose d Office Rama V-Thai Resta urant Apt. U/C (GTY S/B) Fella Desi gn Furn iture Indo nes ia PE TR ON AS Istana Perlis Istana Terengganu Bombay Palace Restaura nt Apt. U /C (E&O Developers) Germa ny Apt. U/C (Dunia Damai S/B) Colombia Kuwait Proposed Semi-D Propo sedOffice(Indah Mahs uri SB) Singapore Korea MBSB U/C Libya .WAWASAN HOTEL (12s Hotel & 16s Office) (IRAT Hotels & Resorts S/B) THE PAVILLION SHOPPING / RESIDENCE / HOTEL Tem ple LTAT Kary ane ka ST AR HIL L KL AP AR TM EN TS ME NA RA PR UD EN TIA L MA RR IO T HO TE L RIT ZCAR LTO N WESTIN KL U/C (Arena Warni S/B) Kia Peng Dev. S/B WISMA MISC DORS ETTREGE NCY SR IKI A PE NG K& N KE NA NG A Ven ezu ela KO MP LE KS AN TA RA BA NG SA CROWN PRINCE HOTEL U/C ME NAR APIN ANG NO VO TEL UO ACE NT RE EQ UA TO RIA L HO TE L CONLAY COURT UO AII Vietnam Off ice Belgium KI RA NA CO ND O AS CO TT SE RV IC E RE SI DE NC E Pakistan ESSO TOWER Ca rPa rk Spain IM PI AN A HO TE L M NI TW IN S Yay asa nSar awa k Kelab Conlay KECK SENG Heritage of Malays ia Trust KL PLA ZA Philipp ines Ista naJoh or Ibusawat Telekom Selangor Polo & Riding Club Sek. Keb. Desa Pandan DESA PANDAN SRIPOLO U/C MENARA POLO Apartments Tasputra Perkim MIDDL E RING RO AD II Kg. Desa Pahlawan / Kg. Perw ira Jaya RAINTREE CLUB MEL IA ProposedDataranPerdana IMBI PLAZ A AMO DA Institu t Ke mah ira n MAR A Petro nas Kg. Panda n Lam a Sc. RHBCENTRE 20s Offic e U/C (NOV US COR P S/B)Prop osed Offic e (Pos sitive Prop ertie s S/B) WISM ATIME Sc. JALA N SELA TAN Chu rch JALANMELOR JALAN PUNAI SHAW PARADE BERJAYA STAR CITY U/C HOTEL UNIVERSAL U/C SE AS ON S TO WE R MENARA LI-FOONG U/C SM (P) Bandaray a JAL AN 1/7 7 SRK Datok Abu Bakar 1 & 2 VILLA U-THANT Kia Peng Dev. SB (Office &Svc Apt. U/C) IXO RA APT. PU DU PL AZ A SR JK (C) Ch ong Pa h Pit Ch ee Hin duTe mp le Bkt. Sem antan Prop. Resort Housin g Pusat Sains Negara Bkt. Kiara Equestrian Club Bhg. Tekno. Pendidikan (Kem. Pendidikan) Pusat Perkembangan Industri Sekuriti (U/C) INTAN Tugu Negara Institute of Strategic & International Studies Kompleks Kem. Kerja Raya JKR Bgn. Parlimen Sri Murni Duta Vista Shell Sem i - D Esso Damansara Villa Jelutu ng Villa Telekom Office Wisma Guthrie MenaraS.P.B. S.P.P.K. Wisma Socfin Shell Wisma Perdana Kompleks Damansara JPJ . Bkt. Setia S.P.P .K Office Office Chase Perdana Ma lay sia n RE Apt. Mixed Development W ism a Dam ansara John Hancock .Car Park . Office . Sports Com ple x (Kem ente ria n Belia & Sukan) Kelan a MasPlaza Ele ctric Tra nsm issio n Lin e UOA Wisma Semantan MBSB Antah Car Park Bukit Aman Police HQ Rum ahPers ekutu an KEMENTERIAN KERJA RAYA PKNS DEWAN BANDARAYA DataranMerdeka . St. Mary's Church BANK RAKYAT CHUNG KHIAWKUWASA S'N GO R MAN SIO N Ba nk of Co mm erc e Shop hous es U/C SelangorClub EK RA N Sek. Men. perempuan Methodist Pusat Islam Malaysia KL RailwayStation KTMBERHAD Masjid Negara Kla ng Riv er Basketball Stadium Gomb akRiver PusatBandar Damansara Panggung Aniversari Tmn. Burung Tmn. Orkid Kelab Perdana Memorial Tun Razak JPS Tmn. Rusa JPS Pusat Sains Planetarium Negara Tmn. Kancil . . . . . .. . . TasikPerdana Carcosa Sri Negara Istana Tetamu CITY ONE Phase 1 GLOBE SEMUA HOUSE CITY ONE Phase 2 MENARA TUNRAZAK Offi ce SR K St . Jo hn WIS MAKO SA S MAL AYA N MA NSI ON WISMASHEN Mun Loong CarPark MYD IN DAYABUMICOMPLEX Rex Hig hCou rt Masjid Jamek Bangun anSultan AbdulSamad Chin ese Tem ple Polic e Quar ters Polic e Statio n Go sp el Ha ll Ch urc h UDA Ocean KLANG BUS STATIO N MANDARIN MABA PLAZA WARIS AN Police Traffic H.Q. MALAYA HOTEL Traffic Police Car Park (UDA) PA HL AW AN Polic e Stati on SikhPolice Temple Hindu Temple Railway Station Extension UDA TUN SAMBAN THAN SIM E BAN K Chinese Assembly Hall KlangRiver PO SM ALA YSIA HO TE L MID AH Inda hD'sa ra MU LT I- PU RP OS E ME NA RA CAPITAL SQUAREu/c Pro p.C ondo. Desa Dam ansara Condo. Sc. Plaza Damansara Damansara Heights SC. Bangsar Indah Apt. Mosq. Govt. Bldgs. Reserve Sri KasturinaTivoli Villas Desa Bangsar Ria Merak Kayangan Casa Vista Federal Buildings Reserve Desa Bistari Condo. School . ... Sri Perdana PyramidSuper Club TIVOLIVILLAS Taman Bandaraya Sri Penaga Tmn. Sa Damaisari U/C Bangsar Towers Cascadium Bangsar Puteri Bandaraya Dev. (Bungalows U/C) Jamnah View Car Park Bangsar Shopping Complex KL Golf & Country Club M uslim Cem ete ry Prop. Convention Centre AravilleBayu Angkasa Bandaraya Dev. PALAPESU.M SC . JKR Istana Hingap N. Sembilan . Ban gun an Su laim an SB AH al l KW SG KL Sentral U/C Pr op os ed Ho tel & Se rvi ce Ap t. by YT L Co rp. Jab ata n Aga ma Tel ek om Bui ld in g ArkibNeg ar a Flats Ch urc h of Th e Ho ly Ro sa ry SR KJa la nHa ngTu ah AT RIU M Bukit Nanas Water Plant KL Tow er Rest auran t WI SM AIDR IS MA S ME NA RAHA PSE NG KI M SE AH PA N GL OB AL NU SA NT AR A SM I HAW PAR UB NAp t. SH AN GR I-L A HO TE L UB NTo we r WIS MA SPK YNH-KFH THEPINNACLE LIF ECE NT RE TO NG AH ME RC ED EZ FR AS ER RE SI DE NC E W IS M A HO NGLE ON G Prop osed Offic e (Lion Cou rt Sdn Bhd ) Pro po se d ME NA RA MU LP HA PB Pac ific IM C CR OW N RE GE NC Y RO HA S PE RK AS A SR JK (C) Jala n Dav idso n Ca rPa rk GR AN D OL YM PICHO TE L St. Anthony Church POLI CEHQ PUDU JA IL BE RJ AY A PL AZ A PLAZA MERDEKA U/C Site Offic e CE NT UR Y HO TE L SU N CO MP LE X E& OSE RV ICE D AP AR TM EN T VictoriaInstitution Bo m ba Tapak Semaian Prop. Resort Housing & Corporate Office Tapak Semaian Villa Flora Kiara Park Sc. Sc. Sc. Mosq. Sc. Botanical Garden Reserve SRI TTDI CONDO Pinggiran Kiara KiaraView Trellises Apt. IBM Tmn. Tun Dr. Ismail Fld. Kiara Green Town House Tmn. Duta Bkt. Tunku Istana Negara Reserve Plaza Damas Menara Hartamas Puncak Prima Sc. Telekom (Prop. Bdr. Sri Duta) Mont Kiara Astana Sunrise Head Office Prop. Sc. Mont. Kiara Pines Apt. Mont. Kiara Pelangi Mont. Kiara Palma Sc. Mont. Kiara SophiaSunrise Land Sunrise Land Sc. Specialist Centre Sunrise Land Vista Kiara Apt. Bungalow Wilayah Persekutuan Mosque (U/C) Lembaga Peperiksaan Kem. Dlm. Negeri Kompleks Kerajaan Asia Pacific Dev. Centre ISTAC (U/C) BPR Std. Tun Razak Majlis Sukan Negara Institut Perkembangan Kurikulum Kem. Pendidikan Camelot Sri DutaII Sri Tunku Villa Bkt. Tunku ProposedDevelopment (BoltonPropertyjv.KTM) Forestry Dept. Sri Ban da r Bel Air Condo. Prima Damansara Condo. Ch em pe na i Pa rk Co nd o. DBKL Quarters Puncak Sri Hartamas Mix. Dev. Plaza Mont KiaraLanai Kiara Desa Sri Hartamas MBf Land Bhd. Olympia Experimental Plantation Reserve Sunrise Berhad Belvedere The Abode Govt. Offices School SriDutaI Sri H artam as Ply. Ground Pusat Matrikulasi UKM Play grou nd Balai Felda Kementerian Tanah& Pembangunan Kopera si Palladium Palladium FELDA SR K Ja lan Gu rne y 1 & 2 Pusat Latihan Telekom FELDA UTM Kg. Datuk Keramat Malay Reserve KEMENTAH (Army Camp) VILLA PAWANA U/C Restaurant Prop osed Serv ice Apar tmen t Ca r Pa rk Prop osed Hote l (Ody ssey SB) Ca r Pa rk UTIL ITY PLA NTS LUTH PNB LOT 181 U/C -Service Apartment (PNB) THE CORINTHIAN TROIKA CONDOCE NT RA HO TE L AP T. G-TO WER OFFI CE WIS MA MCA LION TOWER ME NA RA TR Chi nes eTem ple Proposed Olympia Plaza SHEL L AMPANG PARK VI ST A DA MA I OSK PLAZA JE LIT A CO UR T 8 PERSIA RAN HAM PSHIR E U/C PHILEO PROMENADE MENARA PHILEO SH L AMPANG PLAZA CIT Y SQ UA RE CR OW N PR INC ES S HO TE LEM PIR E TO WE R ANJ UNG DAM AI Proposed Bungalow, Semi-D & Townhouses LEE GARDEN Italy Ireland 78 L.A.D Leisure Holiday IstanaSharifAli DESA ANGKASA GEM Hock Choon Olympia SportClub Audio Tech. Inst. AMBASSYBUSINESSPARK U/C Ghana 8AMP ANG HILIR MalaysiaInstitute ofManagement Roadhouse Grill Restaurant Victoria Station VILLA AMPANGRussia Sayfol international School China Government Quarters WISMA PERKESO SRI MAHKOTA Swedish MON- CHIQUE Rubber Research Institute CHINESE CHAMBER SU CA SA Thailand Po liceQu arters 191 JALAN AMPANG British DESA UTHANT LANSON PLACE GLOVER CLOSE Prop osed Apt. Russian Cultural Centre Proposed OfficeBuilding (KonsortiumEnterprise (M)S/B) Apt. U/C Masbe Capital S/B Proposed Apartment (Tenaga Nasional Properties S/B) Prop. Apt. (Pelangi Istimewa S/B) Proposed Apartment Restaur ant Carlos Haciend a INM IND KHAZANA H COURT VILLA AMAN SERI RITCHIE Propose dApartmen t (Rinting Sejati SB) Esso Nihonk an Club Kem Transit (Army) RO NO SH e AMPANG 971 U/C 13 Block s 3 sTown house s (Peninsula rLand Dev. S/B) Risda Pro pos edOffice &Apa rtm ent Fiat Prop ose dOffic e Camp Pacific (Army) BBQ ParkGarde n 312A Apt. Shell GLENEAGLES INTAN MEDICAL CENTRE EON Prop ose d 2Bloc ks 208 unit sCon do -AN TAR AVILL A (Din asti Meg ah S/B ) RumahSabah SHAHZAN COURT Am pangPoint IM PI AN A ON TH E W AT ER FR ON T (Penin sular Land Dev. S/B) YAYASAN SENI Artisan Centre & Gallery Apartm ent U/C (Timah Securiti es) GCB COU RT SRI KENNY PLA ZAAMPAN GCIT Y Bom ba GRANDSEASONS AVENUE Polic e Sta tio n R es er vo ir Hospital Kuala Lumpur PAN PAC IFIC HOTEL PWTC 20storey Complex U/C (Generasi Mutiara SB) car park (Propose d Towers by AMDB jv YTL)) Stadium TPCA Federal Capitol PUTRA COURT Panggung Negara BISTARI CONDO He ntian Pu tra THE LEGEND CITYPARK HOTEL Ca r Pa rk UMNO THE MALL VISTAN A HOTEL DY NA ST Y M IC Se k. M en . M ax we ll PERKIM Bus & Taxi Termina l SE NT OS A TRI STAR U/C VIST ANA CON DO PUTRA PLACE PLAZA PEKELIL IN G IG B G RA ND PA CIF IC SRK Raja Muda .Institut Jantung Negara Proposed Hospital Islam (Majlis Agama Islam W.P) Prop osed KUB Com plex BERNAM A 19 storey office U/C (Swasta Setia Holdings S/B) Proposed SELBOURNE CITY SALG ro up of College M ar inar a U/C (A ba nd on ed ) National Library DBK L Pr op os ed Ba nk Islam HQ SM JK Ta m il Jl n Fl et ch er Telekom U/C UKM Clinic SR IBU KIT TU N KU GurdwaraSahib (TattKhalsaDiwanS'ngor) JPA Hotel Proposed Redevelopment by KLCity Bazaar SB jv City Hall Hotel SRK JLNBAT U1&2 . Stanford Hotel WI SM ASIM EDA RB Y . WIS MACY CLE CA RR I 27storey OfficeU/C (Seravista SdnBhd) SRJK(TAMIL) APPAR SAFUAN PLAZA TUNKU KUDIN HOUSE PLA ZA POT ENT IAL (mix eddev .)U/C SRI MARA Sek. Ren. Khas Prop. Hotel (Petaling Garden Bhd) BANK UTAMALPPKN BUMI RAYA MARA BAN KPEM BA-NGU NAN QUALITY HOTEL Car Park DAR UL TAK AFU L PLAZ AHOT EL Hotel HERITAGE HOUSE FABER IMPERIAL COURT KURNIA Vision City (RHB) U/C Car Park GRA ND CON TI-NEN TAL SRJK (C) CHUNG KWOK MERPATI FLATS Mui Fan Office (Asia Co nd oc orp ) Of fice U/C VILLA PUTERA VILLA PUTERI Hankyu MARA PERTAMA COMPLEX Propo sed Hotel (Capi tal Prope rtiesBhd) Shell MENARA PUTRA Kg. Baru Malay Reserve Flats PETR O NAS TW IN TO W ERS MAXIS TOWER WIS MA CEN TRA L THE REGENT RESIDENCE AVENUE K MA GN A CO ND O MA YA HO TE L CEND ANA CON DO WISMA EQUITY PU BL IC BA NK Bolton's Proposed Mixed Dev. GET AH ASL I PH ILEO AV EN UE D'M AY AN G WI SM A SE LA NG OR DR ED GI NG Au st ra lia Muslim Cem etery M IN G CO UR T HO TE L MA YA NG CO UR T YN H CO ND O KE MA YA N TO WE R Pro pos ed Offi ce Buil ding (Sim eAxa Ass uran ce Bhd ) Klang River Klang River Klang River Klang River Gom bak River Gom bak Riv er DESA KUDALARI Kuala Lumpur City Centre TAN & TAN CALT EX ESSO MOSQ UE MANDARIN ORIENTAL EDE NVILL APetronas Quaters Military, Naval, Air Atache of Myanmar Proposed Apartments VILLAPUTRAPUTRI DE PALMA Pergabungan Persatuan Peladang VILLA BLANCA MICASA HOTEL APARTMENT Uruguay Switzerland Persatuan Karate - Do THE ICON VILLA BOLTON Government Quaters REGAL VILLA Kenya Propose d Apt. Laos WICKHAM RESIDENCE Finland HydraulicLa bReserve Government Quarters RAINTR EETERRA CE SAFU AN SURIA KLC C BA NK SI MP AN AN NA SI ON AL Police Station . KelabBukitPerdana SOGO Prop osedBay view Hote l Kla ng River CAMPBELL COMPLEX MG IC WILAY AH COMP LEX WISMA DENM ARK MA TIC CO NC OR DE HO TE L RE NA ISS AN CE / NE W WO RL D HO TE LS ME NA RA TA PL AZ ACH AO U/C Prop osedMala yFoodCom plex Muslim Cemetery ISTANA NEGARA CarPark CarPark Resta urant Car Park Resta urant Alo ha IDAMAN CONDO Car Par k Qua ttro KL Region alCentre for Arbitrat ion JKR 991 Ex- Shel l &7-Ele ven Car Park Car Park Car Park Car Park Car Park Car Park KL CC C CIMB TOWER KLCC THE BINJAI KLCC KLCC Future Phase KLCC Future Phase P/P Mobil KL GATEW AY U/C TTD I WE T MA RKET CALT EX CALT EX FIRE BRIG ADE CAR PAR K SHELL PETRO NAS POST OFFICE INTRAK OTA DEPOT GOODY EAR CENTRE TELEKOM BLDG. TT DI Po lice Station Mobil Ele ctr icTra nsmissi on Lin e Shell Tmn. Segambut Aman Tmn.Wahyu Tmn. Mastiara Tmn. Bt. Permai MilitaryCamp (BatuKentonmen) Tmn. Sri Rampai Tmn. Setapak IndahTmn. Ibukota Tmn. Koperasi Polis Muslim Cemetery Desa Melawati Taman Bunga Raya Wangsa Melawati Medan Idaman Tmn. Lembah Keramat W angsa Maju Primary Sch ool M egam al One-S to p Wangsa Maju R1 Desa Setapak DBKL Flats Setapak Jaya Setapak Jaya KLSC Wangsa Puteri (SPPK) Kg Baru Air Panas Tmn. Air Panas Tmn. Bkt. Maluri Tmn. Bt. Muda Tambahan SelayangM.R. ArmyFlat Bdr. Sentul Utama O xidation Pond Heritage Galleria Sri Kelantan Flt. Sentul Utara Flt. Sentul Park Apt. Plaza Sentul Sc. Sc. Sc. Kompleks Mutiara Sc. Ch. Flat Flat Field Field Desa 17 O xid ation Pond Pump Station Condo. Play Gro un d Sc. SH SH Tmn. Setapak La VillasMedan Intan Diamond Square Apt. C ondo. SH DBKL (Recreation Reserve) Sc. Setapak Golf Range S/B Apt. GentingCourt Apt. Sri Pela ngi Tmn. P. Ramlee M utia ra G entin g Sc. Hin du Buria l Tm n.G entin g Kela ng Setapak Ria Field Sc. Bomba Sc. Hindu Temple Caltex Sc. Sc. Sc. FoodCourt Prosperity Square JPJ & Puspakom TOL(LongHouses) TOL Sc. School Apt. JKR Quarters SH SH Sri Jelatek Sc. Sri Ledang Sri Kinabalu LojingHeightII Reservoir Sc. SH Surau Sri Kenangan Waizuri1Apt. Waizuri2Condo. Loging Height Oxi. Pond Flats A B C Sc. Fld. Fld. Oxi. Pond Sc. SH Oxi. Pond Flat Oxi.Pond Mobil & Shell Surau Sc. SH SH Fld. Sc. SH SH SH Utusan Sapura Prop. Mosq. Prop. Hospital Prop. Recreation Tele kom SH SH Carrefour Office/Commercial Apt. Prop. Wawasan Sc. Prop. FRU Complex Police Land SH Akademi TV3 Proposed Condo Prop. Hosp. Oxi. Pond DBKL jv. Pancaran Nilai Mosq. Wardieburn Camp Military Fld. SH SH Sc. Sc. Menara Alpha Condo. Flat Oxi. Pond Sc. Field Field Tmn. Sri Alam Tmn. Rowthe Tmn. Melewar Kg. Batu Muda Mosq. ISA (KDN) JPTReserve KDNReserve SpringCrestInd.Park IWK Field Field Mitsubishi MotorsOxi. Pond Tmn. Beringin Tmn.Nanyang Long Houses Alam Flora Flt. Kepong City Centre ToberedevelopedbyFadason Sdn.Bhd. Jinjang Utara Tambahan Field Fie ld Oxi. Pond Sc. Warga Tua TNB Field Field Telekom Sc. Oxi.PondReserve TNB Sc. Oxi. Pond Medan Putra Business Centre U/C Tm n. Sri Bintang Tmn. Sri Bintang Kepong Baru II Kepong Baru Ind. Estate Field Petronas Kepong Baru III MCA Shell ClinicPos Bomba DBKL Temple Shell Water Retention Pond MWE Commercial Park SawmillFactory Pusat Kepong Fld. Fld. Tmn. Petaling Seri Segambut Tmn. CuepacsTmn. Sri Kepong Baru TNB Tmn. Segambut Muda Sc. Sc. Pond Apt. Fld. Segambut Bahagia The Nova Nova II Tmn. Sri Sinar USPD Auto Bavaria Wism aRe so urce Co mplex Esso Pe tro na s Sc. Clay Pipes S/B Kg. Segambut Luar Kg. Pasir Segam but Water Retention Pond (JPS) Sc. Hindu Temple Sc. Sc. Golden Hill Club KIK Mara Furniture Industry Tech. Centre Mosq. Field Tmn. Dato' Senu School Esso Mobil BP SJ Kenderaan Sdn. Bhd. Mosq. Sc. Mosq. Temple Villa Angsana Medan SriSelam a Desa Alpha Kah Motor Co. S/B Sh ell Tmn. Eastern Tmn. Impian Field Sc. Sc. AutoTrading UsedCar Field TNB Long Houses Telekom SRJK(C )JinjangSelatan ChineseCemetery Jinjang Selatan Pe tron as Sc. Flats PKN S Tmn.KokDoh Tmn. Lawa Tmn. City Tmn. City Tmn. Sejahtera Used Car Store Condo. Condo. SRK 1 & 2 Pla y Gr ou nd Muslim Cemetery JinjangSelatanTambahan (LongHouses&Squaters) DBKLNursery Prop. Recreation Kg. Melayu Kepong (Will be redeveloped by Mega Legacy) Sri U tara Makro Shopping Com plex Field Kompleks Desa (Magna Park S/B) Kampung Benteng Sri Intan Ap artm en t& Sh op Office Menara Zaitun Pasar Gombak (DBKL) Tmn. Pelangi (Baitulmal) Tmn. Danau Kota (partly u/c) Kampung Chong Hwa Pangsa Murni Royal Selangor Group Hilly Rampai Court Police Station Court Mammorth Selayang M.R. STLR Sdn. Bhd. Kepong Kepong Tambahan Taman Melati DBKL Flats Flat Nursery Gombak M.R. Prop.Recreation Bandar Menjalara Sang Suria Golf View Condo. u/c Sentul Raya Park M ID DLE RIN G ROAD II MIDDLE RIN G ROAD II M ID D LE R IN G R O AD II Selayang M.R. Tmn. Intan Baiduri Tan Chong & Sons Motor Co. S/B SH SH Flats Pusat Bdr. Sri Rampai Flat Sc. Mosq. Tmn. Batu Tmn.KokLian Sg. Mas Plaza Kepong Baru I Tmn. Batu TNB Petronas Shell Hijau Ria Condo. Flat Flat Sc. Sc. Sc. Sc. TAR College Desa View Towers Flat Apt. JBA Bkt. Mas Condo. Sc. Legasi 2 Apartment Legasi 1 Apartment MID DLE RIN G ROAD II Alpha Angle Sri Suajaya Petronas Muslim Cemetery Petronas Jala n 3/1 A Jalan 10/1A Jalan 6/10 Jalan 6/1B Petronas mosque Siawai Realty Sdn Bhd U/C Petronas Field Jalan 6/1B Tmn.KepongIndah Fld. Titiwangsa Golf Desa Tun Hussien Onn (Army) Bdr. Baru Sentul Menara Titiwangsa IWK Oxidation Pond Intan Apt. Putri Apt. Apt. Sc. Bkt. Segambut Sem i-D Condo. Apt. Menara Duta Kg. Segambut Tengah Used Car She ll Park May Esso Mus lim Cem eter y Te mple Ch. . PKNS Housing (Flats & Apartments) Kementerian Pendidikan IWK (PusatPameran KecemerlanganPendidikan) Kg. Semarak Sentul Raya u/c Sentul Raya Boulevard Taman Setiawangsa GBH Ceramic Sdn. Bhd. Police mosque Jalan 1/60 School STA DIU M TIT IWA NG SA TEN NIS COU RT CAF E BP ESSO SH EL L Wangsa Maju PETRONAS Ja lan 11 /5 5C Ja lan1/27 FJa lan2/27 F SH SH SH Ja lan 1/2 4D Ja lan 3/2 4D Ja lan 4/2 4D Ja lan 2/2 4D Jala n 1/2 7F JalanAU5D/1 Ja lan 1/2 3F Teratai Mewah JLN BU RU NG UP IH L.BRG UPIH 2 L. BRG UPI H1 JLN BRG TAK UWI H JA LA N BU RU NG GA RU DA JLN BRG TUA R JLN BRG TAK UR JLN BRG CEN UK JA LA N BU RU NG PIK AU JA LA N BU RU NG TU KA I JL N BU RU NG SI NT AR LR G BR G SI NT AR 3 LR G BR G SI NT AR 2 LR G BR G SI NT AR 1 JL N BU RU NG SI NT AR JL N BU RU NG BA YA N 1 JL N BU RU NG BA YA N 2 JLN BU RU NG BE BA RA U JL N BU RU NG PU NG GU K JA LA N DE VE LO PM EN T JAL AN 3 JALAN 5 JALA N2 JALAN TERATAI JALAN DEDAP JALAN BUNGA RAMPAI JALAN BUNGA TANJONG JALAN CEMPAKA JA LA N TE RK IS JA LA N AN GS AN A JALA NFRI KEPO NG Jal an 10/1A Jalan 2/1 Jalan 5/1 Jalan 8/1 Jalan11/1 Jalan 17/1 JALA N3/34B JALA N4/34B JALA N5/34B JALA N6/34B JALA N7/34B JALA N8/34B JALA N9/34B JALA N10/34 B JALA N11/34 B GOMBAK DISTRICT GOMBAK DISTRICT PETALING DISTRICT HULU LANGAT DISTRICT JALAN5/16 JALAN6/16 EASTROAD SCHOOL RESERVE ROAD WEST ROAD 18 WEST ROAD 15 RIVER ROAD SOUTH SCHOOL LANE EAST ROAD 9 EAST ROAD 11 EAST ROAD 8 EASTFENCE EAST ROAD 2 EAST ROAD 1 EASTSTREET6 EAST ROAD 6 SEGAMBUT ROAD EAST ROAD 5 EAST ROAD 7 EASTROAD5 WESTSTREET WESTSTREET WESTROAD MINKEONGSTREET WEST ROAD 5 WEST ROAD 6 Jinjang Utara MAINSTREET MIN CHONG ROAD TEMPLE ROAD WEST ROAD 15 EAST ROAD 14 EASTSTREET10 EASTSTREET11 WEST ROAD 9 WEST ROAD 7 WEST ROAD 10 WEST ROAD 12 WEST ROAD 13 WEST ROAD 14 TANJONGMALIMSTREET WEST ROAD 17 WEST ROAD 16 TEMPLE ROAD ULUKLANGSTREET Sc. Sc. JALAN NIAH 1 JALAN NIAH 2 JALAN NIAH 3 JALAN NIAH 4 JALAN NIAH 5 JALANNIAH6 JALAN MARUDI 2 JALAN MARUDI 8 JALAN MIRI 1 JALAN MIRI 2 JALAN MIRI 3 JALAN BINTULU JALANKAPIT JALANSEMANGGANG JALAN LUNDU JALANLUNDU7 JALANLUNDU6 JALANLUNDU2 Mukim Bt. Ind. Park (MIEL) JALAN2/10A JALAN4/10A JALAN9/10A JALAN8/10A JALAN10/10A JALAN11/10A JALAN16/10A JALAN 3/10A JALAN 7/10A JALAN 12/10A JALAN 6/10A JALAN 5/10A JALAN 20/10A JALAN 19/10A JALAN 18/10A JALAN 13/10A JALAN 17/10A JALAN 24/10A JALAN23/10A JALAN 29/10 JALAN58/10 JALAN BATU GELIGA 1 JALAN BATU GELIGA 2 JALANAMZIL JALAN BATU GELIGA 3 JALANUBIN JALANMARMAR1 JALANBATUGELIGA JALAN2/10 JALAN16/10 JALAN2/10 JALAN 15/10 JALAN 7/10 JALAN6/12C PERSIARAN 1/12 JALAN 1/12C JALAN 7/12C JALAN5/12C JALAN4/12C JALAN3/12C JALAN2/12C JALAN1/12A JALAN5/12B JALAN3/12 JALAN 4/12B JALAN 2/12B JALAN 3/12 JALAN 5/12A JALAN1/12 LRG. 2/12B JALAN 10/12A JALAN 7/12A JALAN6/12A JALAN 3/12A JALAN 4A/12A JALAN 2/12A JALAN4/12A Kg. Sri Batu JALAN4/12D JALAN 7/12D JALAN 5/12D JALAN 3/12D JALAN 1/12D JALAN8/12D JALA NKAM PUN G BATU MUD A JALAN 2/18B JALAN 3/18B JALAN 17/18A JALAN 16/18A JALAN 15/18A JALAN 14/18A JALAN 13/18A JALAN 12/18A JALAN 11/18A JALAN 9/18A JALAN8/18A JALAN 2/18C JALAN 3/18C JALAN 4/18C JALAN 5/18C JALAN 6/18C JALAN 7/18C JALAN1/18C Sc. J.SIMPANGIPOH JALAN SIBU 18 JALAN SIBU 17 JALAN SIBU 16 JALAN SIBU 15 JALANSIBU15 JALANSIBU14 JALAN SIBU 12 JALAN SIBU 11 JALANSIBU7 JALAN SIBU 6 JALAN SIBU 5 JALAN SIBU 4 JALAN SIBU 3 JALAN SIBU 1 JALANSIBU2 JALA N KEPO NG BHAR U Kepong Entrepreneurs Park Sri Edaran Light Ind. Park JALANAPI-API1 JAL AN AN TO I 1 JAL AN AN TO I 2 JAL AN AN TO I 3 JA LA N AN TO I JA LA N AR AN G JALAN ANTOI KANAN 4 JAL AN AN TO I KA NA N 2 JAL AN AN TO I KA NA N 1 J.ANTO I4 JALA N ANTO I5 JA LA N AN TO I KIR I JA LA N AP I-A PI JA LA N AP I-A PI 5 JA LA N AP I-A PI 4 JALANAPI-API2 JALAN API-API 3 JALAN API-API KIRI 1 JALANAPI-API3 JA LA N BE LIA N L. BID AR A 1 L. BID AR A 2 L. BID AR A 3JAL AN BID ARA JAL AN BAK AU JAL AN BEN GK UD U JA LA N BE GA ND AI JA LA N BU NG UR JA LA N BE LIN GG AI JLN . BE ND AR ON G JLN . BE RE MB AN JA LA N BE LIN JA U JLN . BE RE SA H JAL AN 30/3 9 JAL AN 29/3 9 JAL AN BAY URJAL AN BE NG KU BA NG JAL AN 24/3 9 JAL AN 23/3 9 JAL AN 22/3 9 JAL AN 20/3 9 JA LA N TA MA N JALAN 7 JAL AN 9 LO RO NG KU AN G BU LA N Ha pp y Co ur tAp t. JA LA N KU AN G BA NT IN G JA LA N KU AN G GU NU NG 3 JA LA N KU AN G GU NU NG 1 JA LA N KU AN G GU NU NG 4 JA LA N KU AN G GU NU NG 5 J. KU AN G GU NU NG 6 JA LA N KU AN G GU NU NG 2 JA LA N BE BE RE KJA LA N BE BA RA U PE SI AR AN ME RG AS TU A JAL AN HE LAN G TIR AM JAL AN HE LAN G LAU T JAL AN BEL ABA S 1 JAL AN BEL ABA S 2 L. BEB ERE K 1 L. BEB ER EK 3 L. BEB ERE K 4 L. BEB ERE K 2 JAL AN HE LAN G JAM BU JA D P Kuala Lumpur Kuala Lumpur City Centre D U R R R R R P M m B S A Sm K S M V B DO P m R U T A R K K K K m T mB W m E M S P K m Cm SB RB NM T M mT A B M mP VSG VC AmT F &W M m P S H m K mCG P B MBAm Mm Km B B M M B P R GmR OCBCBMB m RT M m w B R R KmW SmPHQ SC Km m m m M W m B MA W m m P BC LRT Stat on Bus Stat on Pedestr an Route Cars Route W ayah Boundary C y Cen re 1 2% o KL Ma or Road Loca on P an Boundary R NGG NU H NG NEGER SEMB AN M OHOR m NGOR R D H N NN NG Kua a Lumpur 1884 RO Y AL SELANGOR LUB C KUALA LUMPUR LOCATION PLAN SCALE 1:2000 LEGEND KEY PLAN LEGEND 0 20 200M50 100 KEY PLAN/ LOCATION PLAN 02-03-2017 AS SHOWN DR. SUCHARITA ARC1215 METHODS OF DOCUMENTATION AND MEASURED DRAWING ROYAL SELANGOR CLUB 1, JALAN RAJA, CITY CENTRE, 52100 KUALA LUMPUR, SELANGOR, MALAYSIA NATALIE CHA A-1.1 1 34 SCALE 1:500000 0 500 1000 5000M2500
  • 4.
    1 2 3 4 5 6 7 8 9 10 11 12 H A-4.4 F A-4.3 D A-4.2 H' A-4.4 F' A-4.3 D' A-4.2 G A-4.4 E A-4.3 C A-4.2 G' A-4.4 E' A-4.3 C' A-4.2 B' A-4.1 A' A-4.1 B A-4.1 A A-4.1 GROUND FLOOR PLAN6-3-2017 1:100 DR. SUCHARITA ARC1215 METHODS OF DOCUMENTATION AND MEASURED DRAWING ROYAL SELANGOR CLUB 1, JALAN RAJA, CITY CENTRE, 52100 KUALA LUMPUR, SELANGOR, MALAYSIA AHMAD ASRAF,JACKY TING,CHONG KIT YEE A-2.1 4 341884 RO Y AL SELANGOR LUB C KUALA LUMPUR 0 52.5 7.5 10M
  • 5.
    1 2 3 4 5 6 7 8 9 10 11 12 D1 D2 D3 D4 D5 D6 D7 D8 D9 D10 D11 D12 D13 D14 NO. DOORS &WINDOWS TIMBER FRAMED TIMBER DOOR TIMBER FRAMED DOOR WITH DECORATED GLASS TIMBER FRAMED SINGLE LAMINATED GLASS DOOR TIMBER FRAMED DOUBLE SWING TIMBER DOOR TIMBER FRAMED TIMBER DOOR TIMBER FRAMED DOUBLE LAMINATED GLASS DOOR SINGLE LEAF LAMINATED GLASS DOOR SINGLE LEAF LAMINATED GLASS DOOR TIMBER FRAMED TIMBER DOOR TIMBER FRAMED SOLID TIMBER DOOR GLASS PANEL DOOR HW FRAMED GLASS SLIDING DOOR WITH DOOR CASING SINGLE LEAF LAMINATED GLASS DOOR FLUSH DOOR DIMENSION 901 x 2105 1445 x 1954 1362 x 2047 849 x 2071 1425 x 2020 1055 x 1980 986 x 2390 1140 x 2712 812 x 1887 849 x 1800 2601 x 2100 902 x 1865 697 x 1943 898 x 2390 DRAWING NO. W1 W2 W3 W4 W5 W6 W7 TINTED LAMINATED GLASS HARD WOOD DOUBLE CASEMENT WINDOW HARD WOOD DOUBLE CASEMENT WINDOW CASEMENT WINDOW WITH METAL GRILL CASEMENT WINDOW WITH METAL GRILL MESH OPENING LOUVERED WINDOW 9925 X 3157 7620 X 3699 3660 X 1723 4597 X 2400 1240 X 2445 1760 X 2066 1270 X 590 LOUVERED WINDOW LOUVERED WINDOW LOUVERED WINDOW W8 W9 W10 1900 X 590 2350 X 590 3795 X 590 A-7.1 A-12.1 A-7.1 A-12.1 A-7.2 5040 X 2890 A-7.2 A-7.3 A-7.4 A-7.3 A-7.5 I1 A-7.4 INTERIOR FURNISHINGS A-12.2 A-7.5 A-7.6 A-7.6 BAR COUNTER DIMENSION A-12.1 A-7.7 A-7.7 A-12.1 DRAWING NO. A-12.1 I2 A-12.1 A-12.2 A-12.2 BAR CHAIR A-12.2 S2 S1 NO. S3 SPIRAL STAIRCASE STAIRCASES 3789 X 1085 DRAWING NO.DIMENSION A-8.3 A-8.3STRAIGHT STAIRCASE S4 STRAIGHT STAIRCASE A-10.1 STRAIGHT STAIRCASE 403 X 1093 A-10.1 1649 X 2819 NO. 2621 X 1134 A-8.1 A-8.2 4033 X 1085 SCHEDULE OF DETAILS 6-3-2017 1:150 DR. SUCHARITA ARC1215 METHODS OF DOCUMENTATION AND MEASURED DRAWING ROYAL SELANGOR CLUB 1, JALAN RAJA, CITY CENTRE, 52100 KUALA LUMPUR, SELANGOR, MALAYSIA DEENIE HYATT, JACKY TING A-2.2 5 341884 RO Y AL SELANGOR LUB C KUALA LUMPUR 0 157.564.531.5
  • 6.
    4 5 6 7 8 9 10 11 12 13 2 3 4 5 6 9 10 11 12 1 7 8 T1 T2 T3 GRANITE TILES TIMBER STRIP HOMOGENEOUSTILES DIMENSIONTILES NO. TILES TYPE 300 x 300 300 x 300 155 x 1750 SPACE RESTAURANT, CORRIDOR, W.C., SQUASH CORRIDOR DINING HALL, FOYER MULTI-PURPOSE HALL, HASH BAR SCHEDULE OF FLOOR TILES 6-3-2017 1:150 DR. SUCHARITA ARC1215 METHODS OF DOCUMENTATION AND MEASURED DRAWING ROYAL SELANGOR CLUB 1, JALAN RAJA, CITY CENTRE, 52100 KUALA LUMPUR, SELANGOR, MALAYSIA TAN MIN CHUEN, ZOE LOW A-2.3 6 341884 RO Y AL SELANGOR LUB C KUALA LUMPUR 0 157.564.531.5
  • 7.
    1 2 3 4 5 6 7 8 9 10 11 12 F1 F3 NO. ARCHITECTURAL FEATURES TIMBERBRACKET CEILING CORNICE DIMENSION 952 x 1210 261 x 141 DRAWING NO. A-9.2 A-5.1 CEILING DECORATION PLAN 6-3-2017 1:150 DR. SUCHARITA ARC1215 METHODS OF DOCUMENTATION AND MEASURED DRAWING ROYAL SELANGOR CLUB 1, JALAN RAJA, CITY CENTRE, 52100 KUALA LUMPUR, SELANGOR, MALAYSIA AHMAD ASRAF A-2.4 7 341884 RO Y AL SELANGOR LUB C KUALA LUMPUR 0 157.564.531.5
  • 8.
    30° 45° 45° 30° 47°47° 43° 43° 48° 48° 46°46° 45° 45° 46° 39° 39° 50° 47° 33° 33° 46° 46° 46° 46° 47° 46° ROOF PLAN 6-3-2017 1:150 DR. SUCHARITA ARC1215 METHODS OF DOCUMENTATION AND MEASURED DRAWING ROYAL SELANGOR CLUB 1, JALAN RAJA, CITY CENTRE, 52100 KUALA LUMPUR, SELANGOR, MALAYSIA NATALIE CHA A-2.5 8 341884 RO YAL SELANGOR LUB C KUALA LUMPUR 0 157.564.531.5
  • 9.
    ELEVATIONS 01-03-2017 1:100 DATE SCALE DRAWN CHECKED DRAWING NO.SHEET NO.PROJECT TITLE DR. SUCHARITA ARC1215 METHODS OF DOCUMENTATION AND MEASURED DRAWING ROYAL SELANGOR CLUB 1, JALAN RAJA, CITY CENT5RE, 52100 KUALA LUMPUR, SELANGOR, MALAYSIA TAN MIN CHUEN, ZOE LOW, ANG AVERLLEN DRAWING TITLE A-3.1 9 34 REFERENCE WEST ELEVATION EAST ELEVATION 0 105 15 20 (FRONT ELEVATION FACING HIGHWAY) (BACK ELEVATION FACING DATARAN MERDEKA)
  • 10.
    1884 RO YAL SELANGOR LUB C KUALA LUMPUR AB C ED F G H JI K ABCE DFGHJ IK C C' 1 2 3 4 5 6 7 8 9 10 11 12 C C' D D' 1 2 3 4 5 6 7 8 9 10 11 12 D D' SECTION C-C' & SECTION D-D' 3-3-2017 1:100 DR. SUCHARITA ARC1215 METHODS OF DOCUMENTATION AND MEASURED DRAWING ROYAL SELANGOR CLUB 1, JALAN RAJA, CITY CENT5RE, 52100 KUALA LUMPUR, SELANGOR, MALAYSIA CHONG KIT YEE & LEE SUK FANG & SHREYA MARIA WILSON A- 4.2 12 34 0 52.5 7.5 10 SECTION D-D' SECTION C-C'
  • 11.
    1884 RO YAL SELANGOR LUB C KUALA LUMPUR AB C ED F G H JI K ABCE DFGHJ IK E E' 1 2 3 4 5 6 7 8 9 10 11 12 E E' F F' 1 2 3 4 5 6 7 8 9 10 11 12 F F' SECTION E-E' & SECTION F-F' 3-3-2017 1:100 DR. SUCHARITA ARC1215 METHODS OF DOCUMENTATION AND MEASURED DRAWING ROYAL SELANGOR CLUB 1, JALAN RAJA, CITY CENT5RE, 52100 KUALA LUMPUR, SELANGOR, MALAYSIA AHMAD ASHRAF & ANG AVERLLEN & FAZRIE AIMAN A- 4.3 13 34 0 52.5 7.5 10 SECTION F-F' SECTION E-E'
  • 12.
    1884 RO YAL SELANGOR LUB C KUALA LUMPUR AB C ED F G H JI K ABCE DFGHJ IK G G' 1 2 3 4 5 6 7 8 9 10 11 12 G G' H H' 1 2 3 4 5 6 7 8 9 10 11 12 H H' SECTION G-G' & SECTION H-H' 3-3-2017 1:100 DR. SUCHARITA ARC1215 METHODS OF DOCUMENTATION AND MEASURED DRAWING ROYAL SELANGOR CLUB 1, JALAN RAJA, CITY CENT5RE, 52100 KUALA LUMPUR, SELANGOR, MALAYSIA JACKY TING & DANICA GAN & DEENIE H'YATT A- 4.4 14 34 0 52.5 7.5 10 SECTION H-H' SECTION G-G'
  • 13.
    1884 RO Y AL SELANGOR LUB C KUALA LUMPUR 1 2 3 4 5 6 7 8 9 10 11 12 A' A A' A B' B 1 2 3 4 5 6 7 8 9 10 11 12 B' B SECTIONA-A' & SECTION B-B' 3-3-2017 1:100 DR. SUCHARITA ARC1215 METHODS OF DOCUMENTATION AND MEASURED DRAWING ROYAL SELANGOR CLUB 1, JALAN RAJA, CITY CENT5RE, 52100 KUALA LUMPUR, SELANGOR, MALAYSIA AARON CHONG & AHMAD ASHRAF & JACKY TING A- 4.1 11 34 0 52.5 7.5 10 SECTION B-B' SECTION A-A'
  • 14.
    HEMISPHERIC LAMP COVER ORNAMENTED METAL PIECE IRONLAMP NECK METAL HINGE (SCREWED TO WALL) CORNICE FRIEZE ARCHITRAVE 3-3-2017 1:50 AND AS SHOWN DR. SUCHARITA ARC1215 METHODS OF DOCUMENTATION AND MEASURED DRAWING ROYAL SELANGOR CLUB 1, JALAN RAJA, CITY CENTRE, 52100 KUALA LUMPUR, SELANGOR, MALAYSIA AHMAD ASHRAF & CHAN KOON QI A-5.1 15 341884 RO Y AL SELANGOR LUB C KUALA LUMPUR 0 0.250.125 0.375 0.5 SCALE 1:5 DETAIL A MULTI PURPOSE HALL WALL LAMP SCALE 1:2.5 DETAIL B MULTI PURPOSE HALL CEILING CORNICE 0 0.1250.0625 0.1875 0.25 0 5M2.521.510.5 DETAIL A DETAIL B MULTIPURPOSE HALL STRETCHED ELEVATION
  • 15.
    8-PANEL CABINET METAL CABINET HOLDER CLASSICBILLIARD SCOREBOARD WHITEBOARD INSERT TABLE INDICATOR DOOR KNOCKER HINGE BRASS ORNAMENTED DOOR KNOCKER BILLIARDS ROOM STRETCHED ELEVATION 3-3-2017 1:50 AND AS SHOWN DR. SUCHARITA ARC1215 METHODS OF DOCUMENTATION AND MEASURED DRAWING ROYAL SELANGOR CLUB 1, JALAN RAJA, CITY CENTRE, 52100 KUALA LUMPUR, SELANGOR, MALAYSIA AHMAD ASHRAF & ANG AVERLLEN A-5.2 16 341884 RO Y AL SELANGOR LUB C KUALA LUMPUR 0 10.5 1.5 2M SCALE 1:20 DETAIL A BILLIARDS ROOM CABINET 0 0.50.25 0.75 1 SCALE 1:1 CABINET DRAWER HANDLE 0 5M2.521.510.5 DETAIL A
  • 16.
    WOODEN WAINSCOTTING TIMBER TONGUE-AND-GROOVE PANELLING WALL LINING BASE BLIND-NAILED TOWALL WALL HASH BAR STRETCHED ELEVATION 3-3-2017 1:50 AND AS SHOWN DR. SUCHARITA ARC1215 METHODS OF DOCUMENTATION AND MEASURED DRAWING ROYAL SELANGOR CLUB 1, JALAN RAJA, CITY CENTRE, 52100 KUALA LUMPUR, SELANGOR, MALAYSIA TAN CHIN YIN & DEENIE H'YATT A-5.3 17 341884 RO Y AL SELANGOR LUB C KUALA LUMPUR SCALE 1:10 DETAIL A WALL LINING 0 5M2.521.510.5 0 0.50.25 0.75 1M DETAIL A
  • 17.
    1884 RO Y AL SELANGOR LUB C KUALA LUMPUR A B C D E F G H J K I 1 2 3 4 5 6 7 8 9 10 11 12 13 14 A B C D E F G H J K I 1 2 3 4 5 6 7 8 9 10 11 AXONOMETRICDRAWING 3-3-2017 1:200 DR. SUCHARITA ARC1215 METHODS OF DOCUMENTATION AND MEASURED DRAWING ROYAL SELANGOR CLUB 1, JALAN RAJA, CITY CENT5RE, 52100 KUALA LUMPUR, SELANGOR, MALAYSIA AHMAD ASHRAF & ANG AVERLLEN & FAZRIE AIMAN A-6.1 18 34 0 105 15 20M
  • 18.
    A A' A A' B' B B B' 1884 RO Y AL SELANGOR LUB C KUALA LUMPUR 010.5 1.5 2M ARCHITECTURAL DETAIL - DOOR 1 & 2 03-03-2017 AS SHOWN DR. SUCHARITA ARC1215 METHODS OF DOCUMENTATION AND MEASURED DRAWING ROYAL SELANGOR CLUB 1, JALAN RAJA, CITY CENT5RE, 52100 KUALA LUMPUR, SELANGOR, MALAYSIA JACKY TING & ADAM HARIZ & THOMAS TING A-7.1 19 34
  • 19.
    A A' A A' B B' B B' 1884 RO YAL SELANGOR LUB C KUALA LUMPUR 010.5 1.5 2M ARCHITECTURAL DETAIL - DOOR 5 & 6 03-03-2017 AS SHOWN DR. SUCHARITA ARC1215 METHODS OF DOCUMENTATION AND MEASURED DRAWING ROYAL SELANGOR CLUB 1, JALAN RAJA, CITY CENT5RE, 52100 KUALA LUMPUR, SELANGOR, MALAYSIA JACKY TING & CHAN KOON QI A-7.2 20 34
  • 20.
    A A' A A' 126 3470 1020 290 3470 2390 1087 LIS PEARSON Glasswall 1800 849 1884 RO Y AL SELANGOR LUB C KUALALUMPUR 0 10.5 1.5 2M ARCHITECTURAL DETAIL - DOOR 7 & 8 03-03-2017 AS SHOWN DR. SUCHARITA ARC1215 METHODS OF DOCUMENTATION AND MEASURED DRAWING ROYAL SELANGOR CLUB 1, JALAN RAJA, CITY CENT5RE, 52100 KUALA LUMPUR, SELANGOR, MALAYSIA JACKY TING & MICHELLE SIAW & TAN CHIN YIN A-7.3 21 34
  • 21.
    A A' A A' B B' B B' 1884 RO YAL SELANGOR LUB C KUALA LUMPUR 010.5 1.5 2M ARCHITECTURAL DETAIL - DOORS 03-03-2017 AS SHOWN DR. SUCHARITA ARC1215 METHODS OF DOCUMENTATION AND MEASURED DRAWING ROYAL SELANGOR CLUB 1, JALAN RAJA, CITY CENT5RE, 52100 KUALA LUMPUR, SELANGOR, MALAYSIA JACKY TING & MICHELLE SIAW A-7.4 22 32
  • 22.
    A A' B B' 0 10.5 1.52M ARCHITECTURAL DETAIL- WINDOW 1 & 2 03-03-2017 AS SHOWN DR. SUCHARITA ARC1215 METHODS OF DOCUMENTATION AND MEASURED DRAWING ROYAL SELANGOR CLUB 1, JALAN RAJA, CITY CENT5RE, 52100 KUALA LUMPUR, SELANGOR, MALAYSIA JACKY TING & THOMAS TING A-7.5 23 341884 RO Y AL SELANGOR LUB C KUALA LUMPUR
  • 23.
    3265 815 780 805 2400 1054 4597 12571848 922908 908 922 3660 862862 1723 1884 RO Y AL SELANGOR LUB C KUALA LUMPUR METAL FRAMING DECORATIVE METAL GRILL METAL FRAMING DECORATIVE METAL GRILL ARCHITECTURAL DETAIL - WINDOW 7 & 8 03-03-2017 AS SHOWN DR. SUCHARITA ARC1215 METHODS OF DOCUMENTATION AND MEASURED DRAWING ROYAL SELANGOR CLUB 1, JALAN RAJA, CITY CENT5RE, 52100 KUALA LUMPUR, SELANGOR, MALAYSIA ADAM HARIZ &FAZRIE AIMAN A-7.6 24 34 0 10.5 1.5 2M
  • 24.
    1750 1890 18901890 5239 7420 17451954 3699 3210 3210 3215 9925 3157 145 145 681 250 350 250 250 500 350 1884 RO Y AL SELANGOR LUB C KUALA LUMPUR ARCHITECTURAL DETAIL - WINDOW 9 & 10 03-03-2017 AS SHOWN DR. SUCHARITA ARC1215 METHODS OF DOCUMENTATION AND MEASURED DRAWING ROYAL SELANGOR CLUB 1, JALAN RAJA, CITY CENT5RE, 52100 KUALA LUMPUR, SELANGOR, MALAYSIA ADAM HARIZ &FAZRIE AIMAN A-7.7 25 34 0 5M2.521.510.5
  • 25.
    1 2 3 4 5 6 7 8 9 10 11 12 1649 1649 130 35 740 1884 RO Y AL SELANGOR LUB C KUALA LUMPUR DETAIL- STAIRCASE 1 03-03-2017 AS SHOWN DR. SUCHARITA ARC1215 METHODS OF DOCUMENTATION AND MEASURED DRAWING ROYAL SELANGOR CLUB 1, JALAN RAJA, CITY CENT5RE, 52100 KUALA LUMPUR, SELANGOR, MALAYSIA JACKY TING & DEENIE H'YATT & TAN CHIN YIN A-8.1 26 34 0 0.50.25 0.75 1M
  • 26.
    2890 5040 280 170 986 1065 1884 RO Y AL SELANGOR LUB C KUALA LUMPUR DETAIL- STAIRCASE 2 03-03-2017 AS SHOWN DR. SUCHARITA ARC1215 METHODS OF DOCUMENTATION AND MEASURED DRAWING ROYAL SELANGOR CLUB 1, JALAN RAJA, CITY CENT5RE, 52100 KUALA LUMPUR, SELANGOR, MALAYSIA JACKY TING & CLARE A-8.2 27 34 0 10.5 1.5 2M
  • 27.
    10851063 3789 155 264 1120 11341049 2621 979 1884 RO Y AL SELANGOR LUB C KUALA LUMPUR 010.5 1.5 2M DETAIL STAIRCASE 3 & 4 03-03-2017 AS SHOWN DR. SUCHARITA ARC1215 METHODS OF DOCUMENTATION AND MEASURED DRAWING ROYAL SELANGOR CLUB 1, JALAN RAJA, CITY CENT5RE, 52100 KUALA LUMPUR, SELANGOR, MALAYSIA TAN CHIN YIN & MICHELLE SIAW A-8.3 28 34
  • 28.
    25702570 2979 618 987 243 244 246 619 611 1105 820 1153 1154 1884 RO Y AL SELANGOR LUB C KUALA LUMPUR 010.5 1.5 2M ARCHITECTURAL FEATURE - COLUMN 03-03-2017 AS SHOWN DR. SUCHARITA ARC1215 METHODS OF DOCUMENTATION AND MEASURED DRAWING ROYAL SELANGOR CLUB 1, JALAN RAJA, CITY CENT5RE, 52100 KUALA LUMPUR, SELANGOR, MALAYSIA LEE SUK FANG & THOMAS TING A-9.1 29 34
  • 29.
    1210 952 60 1884 RO Y AL SELANGOR LUB C KUALALUMPUR ARCHITECTURAL FEATURES TIMBER BRACKET 03-03-2017 AS SHOWN DR. SUCHARITA ARC1215 METHODS OF DOCUMENTATION AND MEASURED DRAWING ROYAL SELANGOR CLUB 1, JALAN RAJA, CITY CENT5RE, 52100 KUALA LUMPUR, SELANGOR, MALAYSIA JACKY TING & CHAN KOON QI A-9.2 30 34 0 0.5M0.250.20.150.10.05
  • 30.
    1085 860 1611 4370183 180 4363 4033 575 406 1230 400 1884 RO Y AL SELANGOR LUB C KUALA LUMPUR 1093 403 403 653440 0 10.5 1.5 2M INTERIOR FURNISHING DETAIL 03-03-2017 AS SHOWN DR. SUCHARITA ARC1215 METHODS OF DOCUMENTATION AND MEASURED DRAWING ROYAL SELANGOR CLUB 1, JALAN RAJA, CITY CENT5RE, 52100 KUALA LUMPUR, SELANGOR, MALAYSIA JACKY TING & DEENIE H'YATT A-10.1 31 34
  • 31.
    ROOF CONSTRUCTION DETAILS 03-03-2017 1:5 DR. SUCHARITA ARC1215 METHODSOF DOCUMENTATION AND MEASURED DRAWING ROYAL SELANGOR CLUB 1, JALAN RAJA, CITY CENT5RE, 52100 KUALA LUMPUR, SELANGOR, MALAYSIA JACKY TING SIM MING A-11.1 32 34 0 0.250.125 0.375 0.5
  • 32.
    DOORS SCHEDULE 3-3-2017 ASSHOWN DR. SUCHARITA ARC1215 METHODS OF DOCUMENTATION AND MEASURED DRAWING ROYAL SELANGOR CLUB 1, JALAN RAJA, CITY CENT5RE, 52100 KUALA LUMPUR, SELANGOR, MALAYSIA JACKY TING & THOMAS TING & ADAM HARIZ A-12.1 33 34 0 5M2.521.510.5
  • 33.
    WINDOW SCHEDULE 3-3-2017 1:50 DR.SUCHARITA ARC1215 METHODS OF DOCUMENTATION AND MEASURED DRAWING ROYAL SELANGOR CLUB 1, JALAN RAJA, CITY CENT5RE, 52100 KUALA LUMPUR, SELANGOR, MALAYSIA JACKY TING & THOMAS TING & FAZRIE AIMAN A-12.2 34 34 0 5M2.521.510.5
  • 34.
    ELEVATION 01-03-2017 1:100 DATE SCALE DRAWN CHECKED DRAWING NO.SHEET NO.PROJECT TITLE DR. SUCHARITA ARC1215 METHODS OF DOCUMENTATION AND MEASURED DRAWING ROYAL SELANGOR CLUB 1, JALAN RAJA, CITY CENT5RE, 52100 KUALA LUMPUR, SELANGOR, MALAYSIA FAZRIE AIMAN DRAWING TITLE A-3.2 10 34 REFERENCE SOUTH ELEVATION 0 105 15 20 (SIDE ELEVATION)