Currilum Vitae

MARIANNA
NOCIFORO
     2006-2010
CURRICULUM VITAE



   B  orn in Catania-Sicily Sep-
tember 1983, she graduates with
honours from the IUAV-University
of Venice completing a Bachelor
in Science of Architecture and a
Master of Science in Construction.
At the university she studied North
European Architecture through a
period of study in the Netherlands
at the renowned Delft Technique
University from which she learns a
typically Anglo-Saxon technique es-
pecially based on organization of a
team work.
   Her training centred on the ar-
chitecture technology and the
techniques of construction. She is
employed in all phases of project
from the preliminary to the work-
ing plan. She is involved in research
engaging in academic activity and
working with professors of building
technology; hence she takes part
in the organization of architectural
conventions with responsibility for
the press releases during Venetian
events.
jobs and
collaborations




                           DEMOTECH CENTRE•
                       PALAZZETTO BRU-ZANE•
URBANISTIC RECOVERY OF EX-GASOMETER AREA 7•
 NEW ELEVATOR TOWER FOR PALAZZO MOCENIGO•
 MUNICIPAL CENTRE FOR A NEW PUBLIC LIBRARY•
      MEGG - PLAY AND TOY EUROPEAN MUSEUM•
                    5
2010
DEMOTECH CENTRE|SCHIO CITY – VICENZA
    Marco Zordan Office
Charge: co-designer for the final design of the Demotech administrative of-
fices.

   T he building is part of the ex-
woollen mill Conte complex. The
construction is located close to the
historical industrial park of the city
along the manmade canal named
“Roggia Maestra” which connects
to other industrial buildings such as
the “Fabbrica Alta”.
   Focus of the project is to restore
the building keeping improving it as
part of the historical complex. The
restoration includes shed and sky-
light maintenance, strengthening
of pillars and beams, making them
earthquake proof and designing
more functional access to new of-
fices spaces.
2009-2010
PALAZZETTO BRU-ZANE|VENICE
   Marco Zordan Office
Charge: executive designs; supervision of construction; time and cost control;
economic and financial planning.

   T  he Casino Bru-Zane, made by
                                            THE SLABS
                                            The structural interventions has
Baldassare Longhena and Antonio          been realized with a dry-assembled
Gaspari, is one of the major archi-      framework with the purpose to main-
tectonic example that has signed         tain the static balance of the entire
the last period of the Most Serene       building.
Republic of Venice. The Bru-Zane
Foundation initiative is to renovate
the palazzo’s original function and
the cultured entertainment.
   The project is oriented to the ren-
ovation of the decorative painting,
the building normative and func-
tional adaptation.
   THE FOUNDATIONS
   The palazzo presented structural
subsidence of the walls with a con-
sequent breakage of architectonical
part of the building. In fact several
analysis revealed that only the bor-
der wall had a foundation system.
   The delicate intervention con-
sists of to realize new foundations
with the same traditional technique
of the historical Venetian build-
ings: long larch pillars with double
floorboard on which put a new brick
foundations.
   THE DECORATIVE PAINTING
   The renovation of Sebastiano
Ricci’s fresco paintings has been
handled by several color chemical
analysis and through the cleaning
of all the coatings till the original.
In some cases this process has led
up to the discovery of decorations,
hidden by most recent plasters.
The Functional box
     made in wood and coloured glass. It
     countains the kitchen, the wardrobe,
     the bedroom with two singol beds.
     It also hides a minimal bathroom.

14
2009-2010
NEW ELEVATOR TOWER FOR PALAZZO MOCENIGO|VENICE

   Marco Zordan Office
Charge: co-designer for the preliminary and final plan; disability design con-
sultancy.

   T  he introduction of a typical-
ly contemporary object inside an
eighteenth century building, the
Palazzo Mocenigo, becomes a deli-
cate intervention in the relationship
between modern and historical.
    The court in which is located the
new lift is a space characterized by
columns, balustrades, lug wrench
defining a space not marginally.
    The purpose, to reduce the inter-
ference with the old structure, is re-
alized with designing a self-bearing
steel structure, dry-assembled in
which the various elements of the
framework are mounted together
thanks to mechanical joints eventu-
ally easy to dismantle and remove if
necessary.
    The cladding in u-glass provides a
source of light to the facing room.




                                         20
21
2007
RENOVATION, NORMATIVE ADAPTATION OF THE EX
MUNICIPAL CENTRE FOR THE NEW PUBLIC
LIBRARY | PADUA
       Marco Zordan Office
   Charge: co-designer for the final design and working plan.

   T  he ex-municipal centre is an
interesting building dating back to
the second half of the nineteenth
century. The adaptation to the new
library function takes part by a care-
ful study of the transformation that
comes through the years and in
particular the most recent one, at-
tached to the innermost part of the
building, representing a one floor
concrete structure. On this part, the
project realize a glass metal clad-
ding for the library function. The
idea is to connect old building and
the new structure in a more fluent
way. Balconies, ramps, glass and
the view from the duplex spaces are
all elements of the complex.
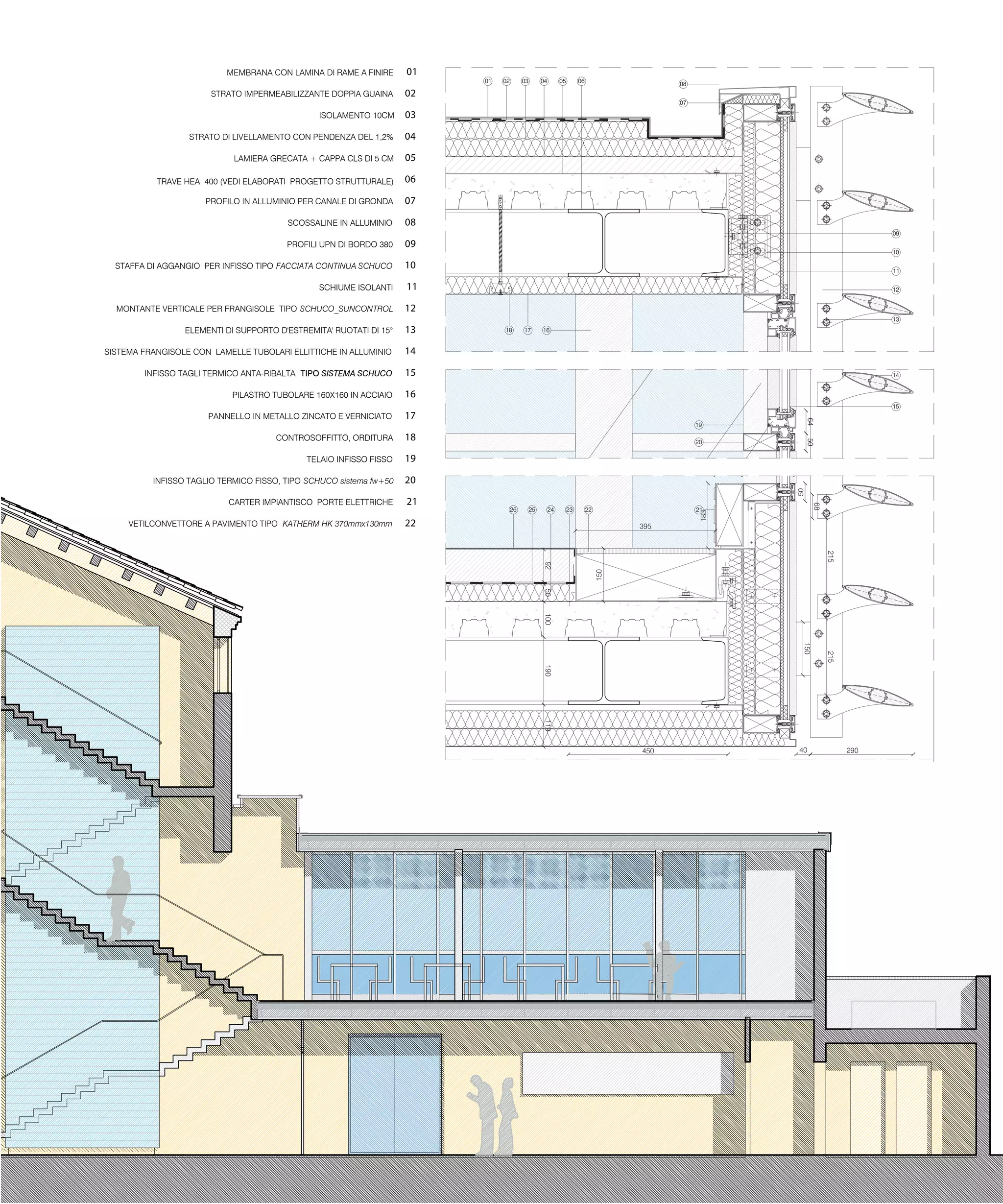
MEMBRANA CON LAMINA DI RAME A FINIRE      01

                       STRATO IMPERMEABILIZZANTE DOPPIA GUAINA      02

                                               ISOLAMENTO 10CM      03

                  STRATO DI LIVELLAMENTO CON PENDENZA DEL 1,2%      04

                            LAMIERA GRECATA + CAPPA CLS DI 5 CM     05

           TRAVE HEA 400 (VEDI ELABORATI PROGETTO STRUTTURALE)      06

                      PROFILO IN ALLUMINIO PER CANALE DI GRONDA     07

                                        SCOSSALINE IN ALLUMINIO     08

                                        PROFILI UPN DI BORDO 380    09

  STAFFA DI AGGANGIO PER INFISSO TIPO FACCIATA CONTINUA SCHUCO      10

                                               SCHIUME ISOLANTI     11

  MONTANTE VERTICALE PER FRANGISOLE TIPO SCHUCO_SUNCONTROL          12

                 ELEMENTI DI SUPPORTO D'ESTREMITA' RUOTATI DI 15°   13

SISTEMA FRANGISOLE CON LAMELLE TUBOLARI ELLITTICHE IN ALLUMINIO     14

        INFISSO TAGLI TERMICO ANTA-RIBALTA TIPO SISTEMA SCHUCO      15

                            PILASTRO TUBOLARE 160X160 IN ACCIAIO    16

                      PANNELLO IN METALLO ZINCATO E VERNICIATO      17

                                      CONTROSOFFITTO, ORDITURA      18

                                             TELAIO INFISSO FISSO   19

          INFISSO TAGLIO TERMICO FISSO, TIPO SCHUCO sistema fw+50   20

                           CARTER IMPIANTISCO PORTE ELETTRICHE      21

     VETILCONVETTORE A PAVIMENTO TIPO KATHERM HK 370mmx130mm        22
2007
 MEGG - PLAY AND TOY EUROPEAN MUSEUM | ROME
  Marco Zordan Office
Charge: co-designer for the services final plan.


    T he play and toy museum will be
 an innovative cultural structure and
 a community centre, which will dis-
 play a rich collection of toys (more
 than 30 thousands divided into 100
 categories). The museum will offer
 services and activity related to the
 children’s world and the recreation-
 al culture.
    The museum will be realized in
 the royal stable area, reusing three
 abandoned buildings of the XIX c.
 and a new underground building
 structure.
competitions




RENOVATION AND NEW SQUARE FOR TASSULLO•
   EX-LANEROSSI AREA URBAN RENOVATIONS•
                          MEMORY PARK•
                27
2010
C.A. PILATI SQUARE URBAN RENOVATION | TASSULLO
  Marco Zordan Office
Charge: co-designer.

    The project recognizes a new cir-
culation that till now acrosses the
little city depriving it of a public
space.
    The intervention will be realized
in two different phases:
    •the first part characterized for
the creation of the new Big Square
with stone pavement and urban fur-
nishings;
    •the second part with the reno-
vation of the Little Square for the
public market and a new street in
front of.
2009
EX-LANEROSSI AREA URBAN RENOVATIONS | VICENZA

  Marco Zordan Office
Charge: co-designer.


   T  he Dueville ex - woolen mill
complex controls the historical city
centre for its dimension but also for
the wide production of wool in the
past. Due to this reasons the city
passed from a peasant to a indus-
trial context.
    The project for the old building
provides to converts the collapsed
part of the roof into courts and
open spaces for the school which
are required by the functional pro-
gram. The big concrete walls,
frames courts and classrooms are
dimensioned following the struc-
tural frame of the old cast iron col-
umns. The corridors became con-
nection spaces and public areas for
the school activities. The structural
grid of the old building comes out-
side and fits the framework of new
buildings and urban spaces.
    The project for the new buildings
is realized with two constructions.
The first one, looking to the his-
torical building, defines the border
line of the park and the communi-
ty gardens. The second one, works
like a slab and houses: a car park
to an underground level; a square
to a 1,50mt level; shops to the first
floors; residences.
FASI STORICHE       FASI ANALITICHE




I CROLLI                  SCHEMA GEOMETRIE
                   >




SOVRAPPOSIZIONE
                   >




PROGETTO
2006
MEMORY PARK | SAN GIULIANO DI PUGLIA

Charge: designer.


   T  he competition regards the
restoration and reconstruction of a
little city where October 31st 2002
takes place a tragic heart quake.
    The needs to do memory is trans-
lated with an itinerary conceived for
the celebration of religious rites,
contemplation and meditation. The
new memory rout wraps the base-
ment of the school where 28 people
died simulating an embrace. After-
ward, a sequence of metaphorical
spaces remembers the victims, as
the garden olive threes. The purpose
of the project is to rebuild not just
the concept of memory but above all
a social space equipped with bench-
es and fountains but even with all
the services needed for a market
place.




                                        36
37
projects




AREA 9 - THESYS PROJECT•
            THE SPONGE•
39
2008
SUB-DIVISION 9: A NEW PUBLIC AREA FOR SCHIO-
CITY | VICENZA
  MSc_IUAV University of Venice
Master of Scienze Final Project

   T  he project is part of a private
plan designed by the Gregotti Inter-
national Studio for one of the Laner-
ossi area, situated in the historical
city centre.
   For this area, the private requali-
fication plan defines the sub-division
9, where the municipality wants to
realize tertiary activities for 10.085
cubic meters. For such a reason the
project would like:
   • to re-design a public space
around where are collocated all the
archeological buildings, protago-
nists of the industrial textile pro-
duction.
   • to rehabilitate the artificial ca-
nal of the city, technological symbol
during the past and essential ele-
ment for the looms.
   • to suggest a buildings complex
where are recuperated the textile
activities that all along character-
izes the city.
2007
THE SPONGE: A NEW FAÇADE FOR THE FUTURE
  MSc _ TU Delft University
Charge: designer.


   T  he sponge is a project of façade
extremely innovative and strictly
connected to the simplest and most
primitive of the animals. This façade
works as the system sponge does
with the purpose of:
 •storage and conservation of wa-
ter;
 •use of recycling water;
 •high water distribution efficien-
cy;
 •insulated environment behind the
water wall.
    Thus, it will be possible to cre-
ate a water-sufficient refuge. The
storage of drinking water can result
with rain water purification and the
removal of noxious agents. The sur-
plus of water will be stored within
a specific basin for flush water or
other secondary uses.
                                                     w
                                                   ie
                                                   rv
                                               rio
                                              te
                                              ex




                                         44
Asconoid sponges are tubular with
     a central shaft called the spongo-
     coel. The beating of Choanocyte
     flagella forces water into the shaft
     through pores in the body wall. Cho-
     anocytes cover the spongocoel and
     filter nutrients out of the water.




                     OUTER INTAKE VALVE


                     STEEL STRUCUTRE OF
                     SUPPORT




                     NEOPRENE FOR ADHER-
                     ENCE AND INSULATION

                     DRAIN PIPETTE



                     INNER EXHAUST VALVE
                     locking ring with
                     spring clips




     Through the weight of water princi-
     ples, every case is in communication
     with the neighbor case thus form-
     ing a continuous system gathering
     water when one element is full of.

45
workshops




                               THE FOLD•
TEMPORARY PAVILION FOR THE CINEMA EXPO•
                47
2007
THE FOLD | ROTTERDAM - NL
  High Rise Building Workshop _ TU Delft University
Charge: Advisor Building Technology


   T  he concept has the purpose
of establishing a dialogue with the
surrounding and follows the idea
of a strip rising from the ground and
folding at 200 meters of height and
turning on itself to return to the
ground.
   With such motion and shaping,
blank spaces and full spaces are in-
evitable.
   The outer skin of the building has
been designed with the precise ob-
jective to follow the concept of the
Fold. Therefore, when the structure
turns on itself, the full surface will
be translated in metal cladding with
the purpose to give back the con-
cept of continuity. In contrast, the
conceptual blank space in between
needs to give back the concept of
transparency. Because of this rea-
son, the choice for this space is a
surface completely glazed.
2006
TEMPORARY PAVILION FOR THE
CINEMA BIENNALE | VENICE
  FSE Workshop with Mathias Klotz Architect_ IUAV University of Venice
Charge: designer

   T he temporary pavilions has
been designed for the screening of
short-film for the Cinema Biennale
in Venice.
   The place is arbitrarily chosen
and consists of the spice market of
the Venice island. Basically the idea
for those structures gets around to
the more metaphorical market of
the images concept. The short-mov-
ies acts as the merchandise and the
people moving inside and close to
those boxes can choose the prod-
ucts not only by looking but also by
touching them.
   All the materials used are repre-
sents the market and the modular-
ity of certain metallic structures
that suggest the idea of the place
and the reutilization of its typical
language.




                                        52
PUBLICATIONS
                 Dario Trabucco & Nociforo Marianna
                 Modulo, n°355 Ottobre 2009

                 ARTICLES REGARDING THE ALTERNATIVE SOURCES OF
                 POWER FOR THE TALL BUILDINGS AND THE USE OF THE AE-
                 OLIAN TURBINES FOR THE PRODUCTION OF WIND POWER.




 EXHIBITIONS
                 DECEMBER 2009

                 UNTITLED
                 BBCC EXPO- SALONE DEL RESTAURO DEI BENI CULTURALI
                 | VENICE




QUALIFICATIONS
                 FEBRUARY 2010

                 LICENSED TO PRACTICE AS ARCHITECT IN ITALY AND
                 THROUGH THE EUROPEAN UNION.




                        54

Portfolio Light Version

  • 1.
  • 2.
    CURRICULUM VITAE B orn in Catania-Sicily Sep- tember 1983, she graduates with honours from the IUAV-University of Venice completing a Bachelor in Science of Architecture and a Master of Science in Construction. At the university she studied North European Architecture through a period of study in the Netherlands at the renowned Delft Technique University from which she learns a typically Anglo-Saxon technique es- pecially based on organization of a team work. Her training centred on the ar- chitecture technology and the techniques of construction. She is employed in all phases of project from the preliminary to the work- ing plan. She is involved in research engaging in academic activity and working with professors of building technology; hence she takes part in the organization of architectural conventions with responsibility for the press releases during Venetian events.
  • 3.
    jobs and collaborations DEMOTECH CENTRE• PALAZZETTO BRU-ZANE• URBANISTIC RECOVERY OF EX-GASOMETER AREA 7• NEW ELEVATOR TOWER FOR PALAZZO MOCENIGO• MUNICIPAL CENTRE FOR A NEW PUBLIC LIBRARY• MEGG - PLAY AND TOY EUROPEAN MUSEUM• 5
  • 4.
    2010 DEMOTECH CENTRE|SCHIO CITY– VICENZA Marco Zordan Office Charge: co-designer for the final design of the Demotech administrative of- fices. T he building is part of the ex- woollen mill Conte complex. The construction is located close to the historical industrial park of the city along the manmade canal named “Roggia Maestra” which connects to other industrial buildings such as the “Fabbrica Alta”. Focus of the project is to restore the building keeping improving it as part of the historical complex. The restoration includes shed and sky- light maintenance, strengthening of pillars and beams, making them earthquake proof and designing more functional access to new of- fices spaces.
  • 6.
    2009-2010 PALAZZETTO BRU-ZANE|VENICE Marco Zordan Office Charge: executive designs; supervision of construction; time and cost control; economic and financial planning. T he Casino Bru-Zane, made by THE SLABS The structural interventions has Baldassare Longhena and Antonio been realized with a dry-assembled Gaspari, is one of the major archi- framework with the purpose to main- tectonic example that has signed tain the static balance of the entire the last period of the Most Serene building. Republic of Venice. The Bru-Zane Foundation initiative is to renovate the palazzo’s original function and the cultured entertainment. The project is oriented to the ren- ovation of the decorative painting, the building normative and func- tional adaptation. THE FOUNDATIONS The palazzo presented structural subsidence of the walls with a con- sequent breakage of architectonical part of the building. In fact several analysis revealed that only the bor- der wall had a foundation system. The delicate intervention con- sists of to realize new foundations with the same traditional technique of the historical Venetian build- ings: long larch pillars with double floorboard on which put a new brick foundations. THE DECORATIVE PAINTING The renovation of Sebastiano Ricci’s fresco paintings has been handled by several color chemical analysis and through the cleaning of all the coatings till the original. In some cases this process has led up to the discovery of decorations, hidden by most recent plasters.
  • 9.
    The Functional box made in wood and coloured glass. It countains the kitchen, the wardrobe, the bedroom with two singol beds. It also hides a minimal bathroom. 14
  • 10.
    2009-2010 NEW ELEVATOR TOWERFOR PALAZZO MOCENIGO|VENICE Marco Zordan Office Charge: co-designer for the preliminary and final plan; disability design con- sultancy. T he introduction of a typical- ly contemporary object inside an eighteenth century building, the Palazzo Mocenigo, becomes a deli- cate intervention in the relationship between modern and historical. The court in which is located the new lift is a space characterized by columns, balustrades, lug wrench defining a space not marginally. The purpose, to reduce the inter- ference with the old structure, is re- alized with designing a self-bearing steel structure, dry-assembled in which the various elements of the framework are mounted together thanks to mechanical joints eventu- ally easy to dismantle and remove if necessary. The cladding in u-glass provides a source of light to the facing room. 20
  • 11.
  • 12.
    2007 RENOVATION, NORMATIVE ADAPTATIONOF THE EX MUNICIPAL CENTRE FOR THE NEW PUBLIC LIBRARY | PADUA Marco Zordan Office Charge: co-designer for the final design and working plan. T he ex-municipal centre is an interesting building dating back to the second half of the nineteenth century. The adaptation to the new library function takes part by a care- ful study of the transformation that comes through the years and in particular the most recent one, at- tached to the innermost part of the building, representing a one floor concrete structure. On this part, the project realize a glass metal clad- ding for the library function. The idea is to connect old building and the new structure in a more fluent way. Balconies, ramps, glass and the view from the duplex spaces are all elements of the complex.
  • 13.
    MEMBRANA CON LAMINADI RAME A FINIRE 01 STRATO IMPERMEABILIZZANTE DOPPIA GUAINA 02 ISOLAMENTO 10CM 03 STRATO DI LIVELLAMENTO CON PENDENZA DEL 1,2% 04 LAMIERA GRECATA + CAPPA CLS DI 5 CM 05 TRAVE HEA 400 (VEDI ELABORATI PROGETTO STRUTTURALE) 06 PROFILO IN ALLUMINIO PER CANALE DI GRONDA 07 SCOSSALINE IN ALLUMINIO 08 PROFILI UPN DI BORDO 380 09 STAFFA DI AGGANGIO PER INFISSO TIPO FACCIATA CONTINUA SCHUCO 10 SCHIUME ISOLANTI 11 MONTANTE VERTICALE PER FRANGISOLE TIPO SCHUCO_SUNCONTROL 12 ELEMENTI DI SUPPORTO D'ESTREMITA' RUOTATI DI 15° 13 SISTEMA FRANGISOLE CON LAMELLE TUBOLARI ELLITTICHE IN ALLUMINIO 14 INFISSO TAGLI TERMICO ANTA-RIBALTA TIPO SISTEMA SCHUCO 15 PILASTRO TUBOLARE 160X160 IN ACCIAIO 16 PANNELLO IN METALLO ZINCATO E VERNICIATO 17 CONTROSOFFITTO, ORDITURA 18 TELAIO INFISSO FISSO 19 INFISSO TAGLIO TERMICO FISSO, TIPO SCHUCO sistema fw+50 20 CARTER IMPIANTISCO PORTE ELETTRICHE 21 VETILCONVETTORE A PAVIMENTO TIPO KATHERM HK 370mmx130mm 22
  • 14.
    2007 MEGG -PLAY AND TOY EUROPEAN MUSEUM | ROME Marco Zordan Office Charge: co-designer for the services final plan. T he play and toy museum will be an innovative cultural structure and a community centre, which will dis- play a rich collection of toys (more than 30 thousands divided into 100 categories). The museum will offer services and activity related to the children’s world and the recreation- al culture. The museum will be realized in the royal stable area, reusing three abandoned buildings of the XIX c. and a new underground building structure.
  • 16.
    competitions RENOVATION AND NEWSQUARE FOR TASSULLO• EX-LANEROSSI AREA URBAN RENOVATIONS• MEMORY PARK• 27
  • 17.
    2010 C.A. PILATI SQUAREURBAN RENOVATION | TASSULLO Marco Zordan Office Charge: co-designer. The project recognizes a new cir- culation that till now acrosses the little city depriving it of a public space. The intervention will be realized in two different phases: •the first part characterized for the creation of the new Big Square with stone pavement and urban fur- nishings; •the second part with the reno- vation of the Little Square for the public market and a new street in front of.
  • 19.
    2009 EX-LANEROSSI AREA URBANRENOVATIONS | VICENZA Marco Zordan Office Charge: co-designer. T he Dueville ex - woolen mill complex controls the historical city centre for its dimension but also for the wide production of wool in the past. Due to this reasons the city passed from a peasant to a indus- trial context. The project for the old building provides to converts the collapsed part of the roof into courts and open spaces for the school which are required by the functional pro- gram. The big concrete walls, frames courts and classrooms are dimensioned following the struc- tural frame of the old cast iron col- umns. The corridors became con- nection spaces and public areas for the school activities. The structural grid of the old building comes out- side and fits the framework of new buildings and urban spaces. The project for the new buildings is realized with two constructions. The first one, looking to the his- torical building, defines the border line of the park and the communi- ty gardens. The second one, works like a slab and houses: a car park to an underground level; a square to a 1,50mt level; shops to the first floors; residences.
  • 20.
    FASI STORICHE FASI ANALITICHE I CROLLI SCHEMA GEOMETRIE > SOVRAPPOSIZIONE > PROGETTO
  • 21.
    2006 MEMORY PARK |SAN GIULIANO DI PUGLIA Charge: designer. T he competition regards the restoration and reconstruction of a little city where October 31st 2002 takes place a tragic heart quake. The needs to do memory is trans- lated with an itinerary conceived for the celebration of religious rites, contemplation and meditation. The new memory rout wraps the base- ment of the school where 28 people died simulating an embrace. After- ward, a sequence of metaphorical spaces remembers the victims, as the garden olive threes. The purpose of the project is to rebuild not just the concept of memory but above all a social space equipped with bench- es and fountains but even with all the services needed for a market place. 36
  • 22.
  • 23.
    projects AREA 9 -THESYS PROJECT• THE SPONGE• 39
  • 24.
    2008 SUB-DIVISION 9: ANEW PUBLIC AREA FOR SCHIO- CITY | VICENZA MSc_IUAV University of Venice Master of Scienze Final Project T he project is part of a private plan designed by the Gregotti Inter- national Studio for one of the Laner- ossi area, situated in the historical city centre. For this area, the private requali- fication plan defines the sub-division 9, where the municipality wants to realize tertiary activities for 10.085 cubic meters. For such a reason the project would like: • to re-design a public space around where are collocated all the archeological buildings, protago- nists of the industrial textile pro- duction. • to rehabilitate the artificial ca- nal of the city, technological symbol during the past and essential ele- ment for the looms. • to suggest a buildings complex where are recuperated the textile activities that all along character- izes the city.
  • 26.
    2007 THE SPONGE: ANEW FAÇADE FOR THE FUTURE MSc _ TU Delft University Charge: designer. T he sponge is a project of façade extremely innovative and strictly connected to the simplest and most primitive of the animals. This façade works as the system sponge does with the purpose of: •storage and conservation of wa- ter; •use of recycling water; •high water distribution efficien- cy; •insulated environment behind the water wall. Thus, it will be possible to cre- ate a water-sufficient refuge. The storage of drinking water can result with rain water purification and the removal of noxious agents. The sur- plus of water will be stored within a specific basin for flush water or other secondary uses. w ie rv rio te ex 44
  • 27.
    Asconoid sponges aretubular with a central shaft called the spongo- coel. The beating of Choanocyte flagella forces water into the shaft through pores in the body wall. Cho- anocytes cover the spongocoel and filter nutrients out of the water. OUTER INTAKE VALVE STEEL STRUCUTRE OF SUPPORT NEOPRENE FOR ADHER- ENCE AND INSULATION DRAIN PIPETTE INNER EXHAUST VALVE locking ring with spring clips Through the weight of water princi- ples, every case is in communication with the neighbor case thus form- ing a continuous system gathering water when one element is full of. 45
  • 28.
    workshops THE FOLD• TEMPORARY PAVILION FOR THE CINEMA EXPO• 47
  • 29.
    2007 THE FOLD |ROTTERDAM - NL High Rise Building Workshop _ TU Delft University Charge: Advisor Building Technology T he concept has the purpose of establishing a dialogue with the surrounding and follows the idea of a strip rising from the ground and folding at 200 meters of height and turning on itself to return to the ground. With such motion and shaping, blank spaces and full spaces are in- evitable. The outer skin of the building has been designed with the precise ob- jective to follow the concept of the Fold. Therefore, when the structure turns on itself, the full surface will be translated in metal cladding with the purpose to give back the con- cept of continuity. In contrast, the conceptual blank space in between needs to give back the concept of transparency. Because of this rea- son, the choice for this space is a surface completely glazed.
  • 31.
    2006 TEMPORARY PAVILION FORTHE CINEMA BIENNALE | VENICE FSE Workshop with Mathias Klotz Architect_ IUAV University of Venice Charge: designer T he temporary pavilions has been designed for the screening of short-film for the Cinema Biennale in Venice. The place is arbitrarily chosen and consists of the spice market of the Venice island. Basically the idea for those structures gets around to the more metaphorical market of the images concept. The short-mov- ies acts as the merchandise and the people moving inside and close to those boxes can choose the prod- ucts not only by looking but also by touching them. All the materials used are repre- sents the market and the modular- ity of certain metallic structures that suggest the idea of the place and the reutilization of its typical language. 52
  • 32.
    PUBLICATIONS Dario Trabucco & Nociforo Marianna Modulo, n°355 Ottobre 2009 ARTICLES REGARDING THE ALTERNATIVE SOURCES OF POWER FOR THE TALL BUILDINGS AND THE USE OF THE AE- OLIAN TURBINES FOR THE PRODUCTION OF WIND POWER. EXHIBITIONS DECEMBER 2009 UNTITLED BBCC EXPO- SALONE DEL RESTAURO DEI BENI CULTURALI | VENICE QUALIFICATIONS FEBRUARY 2010 LICENSED TO PRACTICE AS ARCHITECT IN ITALY AND THROUGH THE EUROPEAN UNION. 54