POND
EXISTING LODGE
(under construction)
EXISTING LODGE
(under construction)
EXISTING LODGE
(under construction)
LODGE
PARKING
EXISTING LODGE
SERVICES
AGRICULTURE
AREA
NATURAL
BUSH
TO BE
MAINTAINED
ROAD
MASTER SITE PLAN 1:1000
LOCATION PLAN 1:20000
DATE: PROJECT: DRAWING: SCALE:
DRAWN BY:CLIENT:
PLOT: SIGNED:
MASTER SITE PLAN 1:1000 1:20000
G H
PAGE #:
ADAM YOUNG / BAKWENA LODGE + CAMPING
BLCM-MAST-01
CLIENT ADDRESS:
NOV 2012
89/90 - RO, KAZANGULA
PAGE FORMAT: A3
DRAWING NUMBER:
/
MANAGERS HOUSE EXTENSION
FOR BAKWENA LODGE
P.O.BOX 744
KASANE
SUBMITTED:
MANAGERS HOUSE
223542
204849
41675
82589
140489
121596
13000
9853
15599
LODGE
ACCESS
EXIST.
ACCESS
PROPOSED
ACCESS
140066
waste
area
waste
area
*PROPOSED EXTENSION SHOWN IN
RED ON MASTER SITE PLAN
*SITE SHOWN IN RED ON
LOCATION PLAN
DGE
DATE: PROJECT: DRAWING: SCALE:
DRAWN BY:CLIENT:
PLOT: SIGNED:
SITE LAYOUT PLAN
PROPOSED EXTENSION SHOWN IN
RED
1:250
G H
PAGE #:
ADAM YOUNG / BAKWENA LODGE + CAMPING
BLCM-LAY-01
CLIENT ADDRESS:
NOV 2012
89/90 - RO, KAZANGULA
PAGE FORMAT: A3
DRAWING NUMBER:
/
MANAGERS HOUSE EXTENSION
FOR BAKWENA LODGE
P.O.BOX 744
KASANE
SUBMITTED:
MANAGERS HOUSE
EXISTING
PROPOSED
EXTENSION
LODGE
LAUNDRY +
STAFF
AREA
GATE
PARKING
AGRI AREA
POND
ROAD
LODGE
SERVICE + STAFF
PARKING
13000
9853
16230
56518
53724
5003
2500
4000
35421
17097
EXISTING
SCEPTIC
TANK +
SOAKAWAY
PATH
DRIVEWAY
45400
41870
TO
LODGE
AREAS
SITE =
LODGE =
EXISTING MANAGERS HOUSE =
PROPOSED EXTENSION =
TOTAL BUILDINGS =
EXISTING COVERAGE = 2.56%
PROPOSED COVERAGE = 0.27%
TOTAL COVERAGE = 2.83%
waste
area
5000
2500
SITE LAYOUT PLAN 1:250

  GG G
A
A






























(cavity to be filled with
insulation to suit)
FLOOR PLAN
1:100
SECTION A-A
1:100

(see detail)
















NOTE:
ALL NEW DOORS AND WINDOWS TO BE AS SHOWN ON FLOOR PLAN.
ALL GLAZING TO CONSIST 6mm FLOAT GLASS.
NEW DOORS TO CONSIST STANDARD STEEL DA TYPE WITH NDAT1 FANLIGHT ABOVE,
EXCEPT SCULLERY DOOR TO BE STANDARD RDF4 WITH HARDWOOD DOOR FITTED.
NEW WINDOWS TO CONSIST STANDARD STEEL INDUSTRIAL TYPES SS33/SS34/SS35 WHERE
SHOWN ON PLAN, EXCEPT GUEST TOILET TO HAVE STANDARD STEEL TYPE NE1.
*ALL DOOR AND WINDOW CHANGES IN EXISTING BUILDING TO BE OF REUSED WOODEN
FRAMES SALVAGED WHERE POSSIBLE.
ALL NEW PLUMBING TO PIPE INTO EXISTING WASTE WATER SYSTEM AS SHOWN AND TO
CONSIST 110mm PVC WASTE WATER PIPING WITH SUITABLE GRADIENT OF FALL.






DETAIL UNDER INTERNAL WALLS 1:20
COLUMN FOOTING DETAIL 1:20
DATE: PROJECT: DRAWING: SCALE:
DRAWN BY:CLIENT:
PLOT: SIGNED:
FLOOR PLAN, SECTION A-A +
DETAILS
1:20 1:100
G H
PAGE #:
ADAM YOUNG / BAKWENA LODGE + CAMPING
BLCM-PSD-01
CLIENT ADDRESS:
NOV 2012
89/90 - RO, KAZANGULA
PAGE FORMAT: A3
DRAWING NUMBER:
/
MANAGERS HOUSE EXTENSION
+ ALTERATION FOR BAKWENA
LODGE
P.O.BOX 744
KASANE
SUBMITTED:
22000
11000 11000
173417341734 5202
596987650118165011811181 650650650650 987987
30010700
12230
30009230
5845331243870126398715009871263
300
540015801100
250
300
21542154215421542154
730870650750 150015002308707208701500 345465
12230
30009230
22501500
460
73020002750
230
3000
115
5655
230
230
2770
1463 10001375 870 990
22460
22460
22000
11000 2680
2285
3230
1150 545 2400 2590 1150 880
8320
747 987 747 987 747 987 650 1181 1287 2680
300208030027935527230381023031503235 115230
300
6556
6131
4353
3223
2450
284
340
900
623
900
10302320
2603
2450
776
EXIST. MAX
FRL1
FRB1
FFL1
NGL
CONC FLOOR
SLAB THICKENED
BELOW WALL
115 NON BEARING
BRICK WALL
COMPACTED
EARTH FILL
85
150
245
115
900
800
250
100
650
420
120150 150
CONC
FOOTING
COMPACTED
EARTH
BACKFILL
120 Ø STEEL
COLUMN
NGL
45.0°
4.9° 4.9°
2080
1848
1264
3925 23011531503235 115230
1040870
SOUTH ELEVATION 1:100
NORTH ELEVATION 1:100
EAST ELEVATION 1:100 WEST ELEVATION 1:100
DATE: PROJECT: DRAWING: SCALE:
DRAWN BY:CLIENT:
PLOT: SIGNED:
ELEVATIONS 1:100
G H
PAGE #:
ADAM YOUNG / BAKWENA LODGE + CAMPING
BLCM-ELEV-01
CLIENT ADDRESS:
NOV 2012
89/90 - RO, KAZANGULA
PAGE FORMAT: A3
DRAWING NUMBER:
/
MANAGERS HOUSE EXTENSION
+ ALTERATION FOR BAKWENA
LODGE
P.O.BOX 744
KASANE
SUBMITTED:

Bakwena Lodge Mgmt House

  • 1.
    POND EXISTING LODGE (under construction) EXISTINGLODGE (under construction) EXISTING LODGE (under construction) LODGE PARKING EXISTING LODGE SERVICES AGRICULTURE AREA NATURAL BUSH TO BE MAINTAINED ROAD MASTER SITE PLAN 1:1000 LOCATION PLAN 1:20000 DATE: PROJECT: DRAWING: SCALE: DRAWN BY:CLIENT: PLOT: SIGNED: MASTER SITE PLAN 1:1000 1:20000 G H PAGE #: ADAM YOUNG / BAKWENA LODGE + CAMPING BLCM-MAST-01 CLIENT ADDRESS: NOV 2012 89/90 - RO, KAZANGULA PAGE FORMAT: A3 DRAWING NUMBER: / MANAGERS HOUSE EXTENSION FOR BAKWENA LODGE P.O.BOX 744 KASANE SUBMITTED: MANAGERS HOUSE 223542 204849 41675 82589 140489 121596 13000 9853 15599 LODGE ACCESS EXIST. ACCESS PROPOSED ACCESS 140066 waste area waste area *PROPOSED EXTENSION SHOWN IN RED ON MASTER SITE PLAN *SITE SHOWN IN RED ON LOCATION PLAN
  • 2.
    DGE DATE: PROJECT: DRAWING:SCALE: DRAWN BY:CLIENT: PLOT: SIGNED: SITE LAYOUT PLAN PROPOSED EXTENSION SHOWN IN RED 1:250 G H PAGE #: ADAM YOUNG / BAKWENA LODGE + CAMPING BLCM-LAY-01 CLIENT ADDRESS: NOV 2012 89/90 - RO, KAZANGULA PAGE FORMAT: A3 DRAWING NUMBER: / MANAGERS HOUSE EXTENSION FOR BAKWENA LODGE P.O.BOX 744 KASANE SUBMITTED: MANAGERS HOUSE EXISTING PROPOSED EXTENSION LODGE LAUNDRY + STAFF AREA GATE PARKING AGRI AREA POND ROAD LODGE SERVICE + STAFF PARKING 13000 9853 16230 56518 53724 5003 2500 4000 35421 17097 EXISTING SCEPTIC TANK + SOAKAWAY PATH DRIVEWAY 45400 41870 TO LODGE AREAS SITE = LODGE = EXISTING MANAGERS HOUSE = PROPOSED EXTENSION = TOTAL BUILDINGS = EXISTING COVERAGE = 2.56% PROPOSED COVERAGE = 0.27% TOTAL COVERAGE = 2.83% waste area 5000 2500 SITE LAYOUT PLAN 1:250
  • 3.
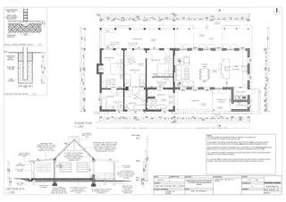
       GGG A A                               (cavity to be filled with insulation to suit) FLOOR PLAN 1:100 SECTION A-A 1:100  (see detail)                 NOTE: ALL NEW DOORS AND WINDOWS TO BE AS SHOWN ON FLOOR PLAN. ALL GLAZING TO CONSIST 6mm FLOAT GLASS. NEW DOORS TO CONSIST STANDARD STEEL DA TYPE WITH NDAT1 FANLIGHT ABOVE, EXCEPT SCULLERY DOOR TO BE STANDARD RDF4 WITH HARDWOOD DOOR FITTED. NEW WINDOWS TO CONSIST STANDARD STEEL INDUSTRIAL TYPES SS33/SS34/SS35 WHERE SHOWN ON PLAN, EXCEPT GUEST TOILET TO HAVE STANDARD STEEL TYPE NE1. *ALL DOOR AND WINDOW CHANGES IN EXISTING BUILDING TO BE OF REUSED WOODEN FRAMES SALVAGED WHERE POSSIBLE. ALL NEW PLUMBING TO PIPE INTO EXISTING WASTE WATER SYSTEM AS SHOWN AND TO CONSIST 110mm PVC WASTE WATER PIPING WITH SUITABLE GRADIENT OF FALL.       DETAIL UNDER INTERNAL WALLS 1:20 COLUMN FOOTING DETAIL 1:20 DATE: PROJECT: DRAWING: SCALE: DRAWN BY:CLIENT: PLOT: SIGNED: FLOOR PLAN, SECTION A-A + DETAILS 1:20 1:100 G H PAGE #: ADAM YOUNG / BAKWENA LODGE + CAMPING BLCM-PSD-01 CLIENT ADDRESS: NOV 2012 89/90 - RO, KAZANGULA PAGE FORMAT: A3 DRAWING NUMBER: / MANAGERS HOUSE EXTENSION + ALTERATION FOR BAKWENA LODGE P.O.BOX 744 KASANE SUBMITTED: 22000 11000 11000 173417341734 5202 596987650118165011811181 650650650650 987987 30010700 12230 30009230 5845331243870126398715009871263 300 540015801100 250 300 21542154215421542154 730870650750 150015002308707208701500 345465 12230 30009230 22501500 460 73020002750 230 3000 115 5655 230 230 2770 1463 10001375 870 990 22460 22460 22000 11000 2680 2285 3230 1150 545 2400 2590 1150 880 8320 747 987 747 987 747 987 650 1181 1287 2680 300208030027935527230381023031503235 115230 300 6556 6131 4353 3223 2450 284 340 900 623 900 10302320 2603 2450 776 EXIST. MAX FRL1 FRB1 FFL1 NGL CONC FLOOR SLAB THICKENED BELOW WALL 115 NON BEARING BRICK WALL COMPACTED EARTH FILL 85 150 245 115 900 800 250 100 650 420 120150 150 CONC FOOTING COMPACTED EARTH BACKFILL 120 Ø STEEL COLUMN NGL 45.0° 4.9° 4.9° 2080 1848 1264 3925 23011531503235 115230 1040870
  • 4.
    SOUTH ELEVATION 1:100 NORTHELEVATION 1:100 EAST ELEVATION 1:100 WEST ELEVATION 1:100 DATE: PROJECT: DRAWING: SCALE: DRAWN BY:CLIENT: PLOT: SIGNED: ELEVATIONS 1:100 G H PAGE #: ADAM YOUNG / BAKWENA LODGE + CAMPING BLCM-ELEV-01 CLIENT ADDRESS: NOV 2012 89/90 - RO, KAZANGULA PAGE FORMAT: A3 DRAWING NUMBER: / MANAGERS HOUSE EXTENSION + ALTERATION FOR BAKWENA LODGE P.O.BOX 744 KASANE SUBMITTED: