Case # 610F
110 Chichester Place
Final Review
Presented By: Jason Lutz
Community Development Services Director
City Council Meeting
Agenda Item # 6
January 11, 2016
SUMMARY
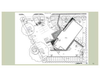
 The applicant is seeking to develop a 2
story 13,800 square foot professional
office building on the vacant property at
110 Chichester Place.
3
BACKGROUND
 The property at 110 Chichester Place was
replatted into 1 lot and rezoned to B-2 as the
property was originally bisected by two
separate zoning districts (B-2 & Parking).
 As part of the replat process a variance was
granted to allow parking spaces to be located
in the required 15’ landscape buffers along
the south and east property lines. These
spaces will utilize grass pavers.
4
BACKGROUND
 As part of the variance the applicant is
required to add bamboo in these areas to
help screen the parking from adjacent
residential properties.
 An additional variance for parking stall sizes
of 9x18 was granted along with a fire lane
width of 24’ due to the fact that the building
will be equipped with a sprinkler system.
5
POLICY ANALYSIS
 The San Antonio River Authority suggests that
over half of the site is within the floodway
defined by DFIRM.
 A drainage study will need to be submitted and
reviewed by the City’s contract engineering
firm to determine the exact limits and storm
water discharge requirements for the proposed
design prior to the issuance of a building
permit (No Rise) required.
6
POLICY ANALYSIS
 The proposed structure meets all
requirements for parking (56 spaces
provided / 46 spaces required),
setbacks, height (34’ 6” to the top of
the mechanical screening), and
landscaping.
7
8
9
10
11
ARB RECOMMENDATIONS
 That the required bamboo screening on the
SE corner of the property be planted with a
bamboo species with clumping roots in order
to help prevent the spreading of this plant
onto adjacent properties.
 Any new bamboo planted by the applicant,
not existing, shall have a twelve (12) inch
barrier of FRP or substantially similar material
in an effort to prevent the spread of bamboo.
12
PUBLIC NOTIFICATION
 Postcards were mailed to property owners
within a 200-foot radius of the property,
appropriate notice was posted on the City
website and a sign was posted on the
property
 Responses received:
 Support: (3)
 Oppose: (0)
QUESTIONS?

AH Meeting 01.11.16 - Item #6 - 110 Chichister

  • 1.
    Case # 610F 110Chichester Place Final Review Presented By: Jason Lutz Community Development Services Director City Council Meeting Agenda Item # 6 January 11, 2016
  • 2.
    SUMMARY  The applicantis seeking to develop a 2 story 13,800 square foot professional office building on the vacant property at 110 Chichester Place.
  • 3.
    3 BACKGROUND  The propertyat 110 Chichester Place was replatted into 1 lot and rezoned to B-2 as the property was originally bisected by two separate zoning districts (B-2 & Parking).  As part of the replat process a variance was granted to allow parking spaces to be located in the required 15’ landscape buffers along the south and east property lines. These spaces will utilize grass pavers.
  • 4.
    4 BACKGROUND  As partof the variance the applicant is required to add bamboo in these areas to help screen the parking from adjacent residential properties.  An additional variance for parking stall sizes of 9x18 was granted along with a fire lane width of 24’ due to the fact that the building will be equipped with a sprinkler system.
  • 5.
    5 POLICY ANALYSIS  TheSan Antonio River Authority suggests that over half of the site is within the floodway defined by DFIRM.  A drainage study will need to be submitted and reviewed by the City’s contract engineering firm to determine the exact limits and storm water discharge requirements for the proposed design prior to the issuance of a building permit (No Rise) required.
  • 6.
    6 POLICY ANALYSIS  Theproposed structure meets all requirements for parking (56 spaces provided / 46 spaces required), setbacks, height (34’ 6” to the top of the mechanical screening), and landscaping.
  • 7.
  • 8.
  • 9.
  • 10.
  • 11.
    11 ARB RECOMMENDATIONS  Thatthe required bamboo screening on the SE corner of the property be planted with a bamboo species with clumping roots in order to help prevent the spreading of this plant onto adjacent properties.  Any new bamboo planted by the applicant, not existing, shall have a twelve (12) inch barrier of FRP or substantially similar material in an effort to prevent the spread of bamboo.
  • 12.
    12 PUBLIC NOTIFICATION  Postcardswere mailed to property owners within a 200-foot radius of the property, appropriate notice was posted on the City website and a sign was posted on the property  Responses received:  Support: (3)  Oppose: (0)
  • 13.