J:20161660710DOCS304 Agency InformationCity of Alamo Heights2019_0201 Athletics and STEM ARBAthletics BuildingCover Letter -
Athletics.docx
February 4, 2019
Ms. Nina Shealey
COMMUNITY DEVELOPMENT SERVICES DIRECTOR
City of Alamo Heights
6116 Broadway
San Antonio, TX 78209
Re: Alamo Heights High School, Athletics Building
LPA Project No. 1660710
Dear Ms. Shealey:
Please find attached the required documents for the Preliminary New Construction Review for the Athletics Building
at Alamo Heights High School. The scope of this portion of the high school project includes demolition of the existing
Muledome, Natatorium, Annex, Little Gym, Pressbox, Stadium and support spaces. Proposed new construction is for
the Atheltics Building, a 107,000 SF athletic facility (91,000 SF new construction and 16,000 SF renovation) with a
Gymnasium, Pressbox, multiple lockers rooms, Weight Room, showers, spirit shop and concessions, Training Room,
storage and support spaces. Maximum height of the new structure will not exceed 57'-2" which is the pressbox, while
maximum height of the existing flyloft building which is the current highest point at 55'-0".
As proposed, the Athletics Building will enhance the campus built environment while blending with existing structures.
Proposed exterior materials include aluminum composite panel, brick, and storefront glazing, all of which are
prevalent throughout the campus and will be matched with the new construction.
Sincerely,
LPA, Inc.
cc:
ATHLETICS
ALAMO HEIGHTS HIGH SCHOOL
EXISTING STRUCTURE MULEDOME
EXISTING STRUCTURE SKY GYM
EXISTING STRUCTURE NATATORIUM
EXISTING STRUCTURE LITTLE GYM – CHEER/DANCE
EXISTING STRUCTURE ANNEX
EXISTING STRUCTURE FOOTBALL LOCKER ROOM
EXISTING STRUCTURE ATHLETICS ADMIN BUILDING
EXISTING STRUCTURE STADIUM
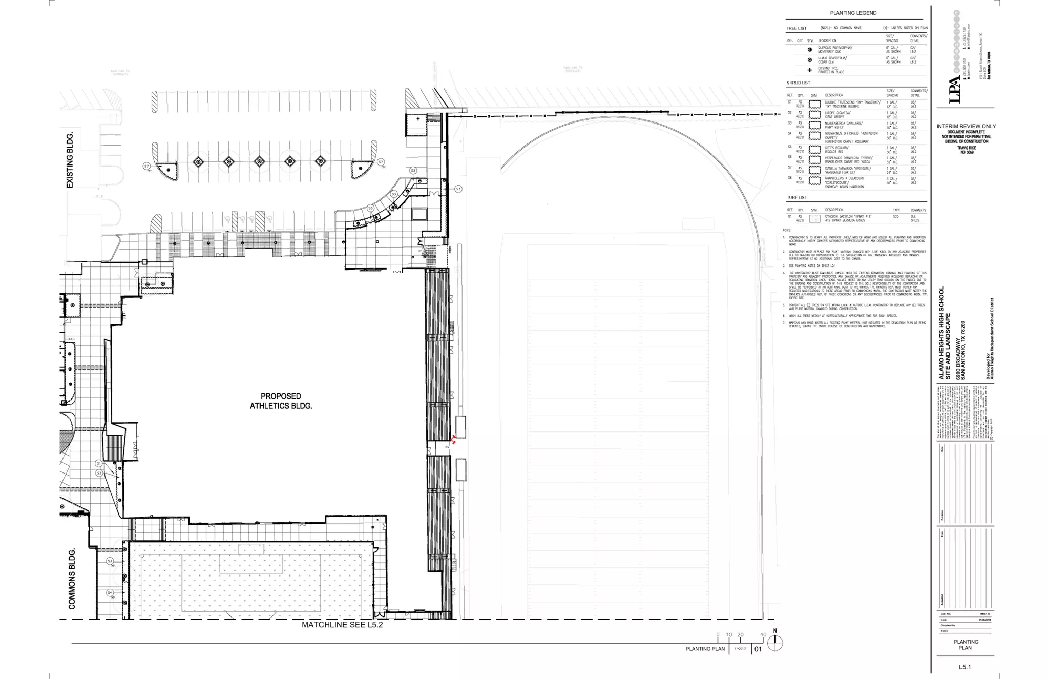
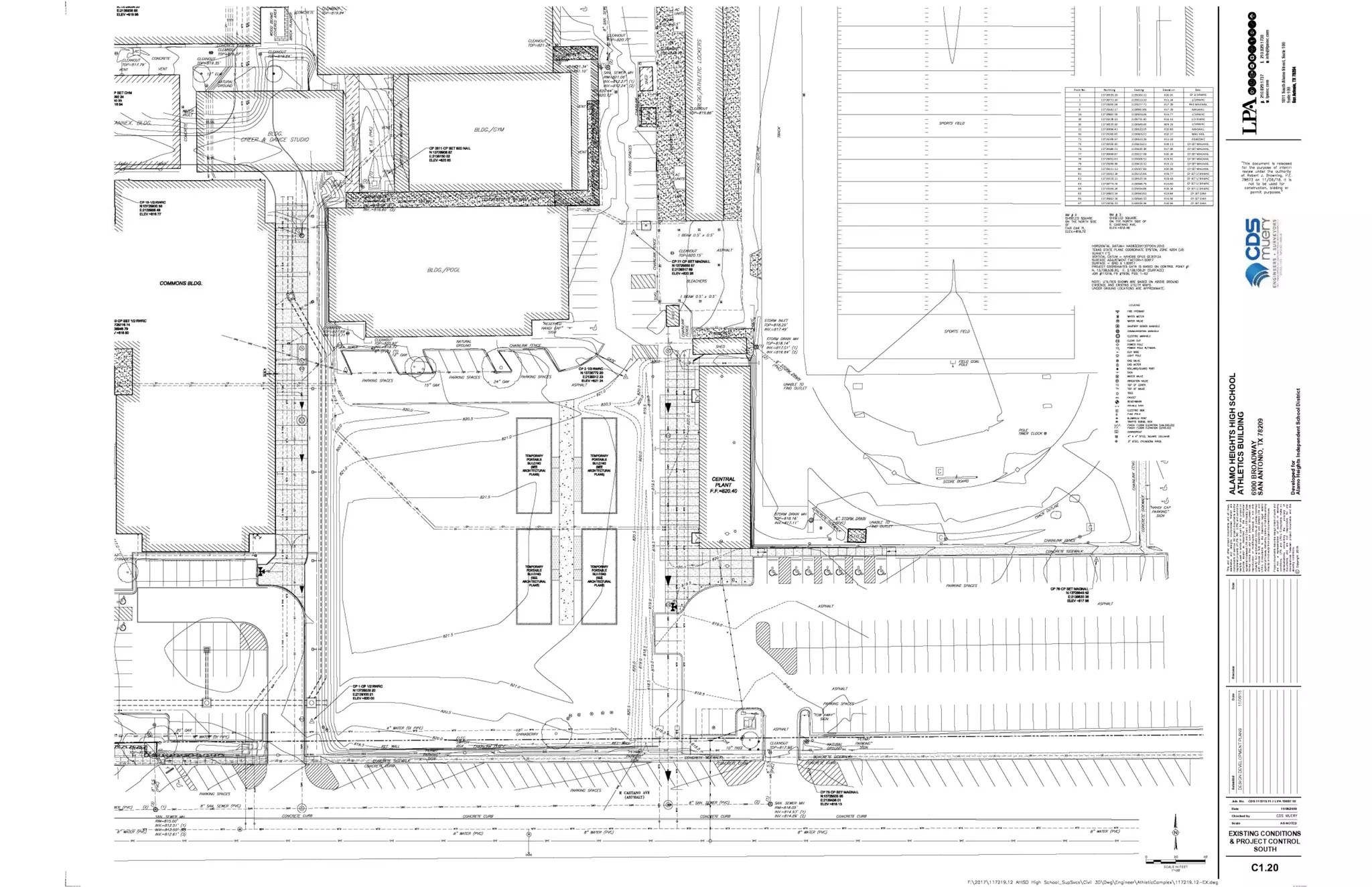
EXISTING SITE PLAN ALAMO HEIGHTS HIGH SCHOOL
PROPOSED SITE PLAN ALAMO HEIGHTS HIGH SCHOOL
1
2
3
4
5
6
7
8
9
1
2
3
4
5
6
7
7
STEM BUILDING
ATHLETIC COMPLEX
COMMONS
CENTRAL PLANT
NEW SOCCER FIELD
NEW TURF AND TRACK
ADDITIONAL PARKING
STEM COURTYARD
NEW CAMPUS DRIVES/
FIRE LANES
9
8
EXTERIOR ELEVATIONS
SOUTH ELEVATION
NORTH ELEVATION
EXTERIOR ELEVATIONS
WEST ELEVATION
EAST ELEVATION
EXTERIOR RENDERING ENTRANCE OF ATHLETICS
EXTERIOR RENDERING VIEW OF SECONDARY STADIUM ENTRANCE
EXTERIOR RENDERING VIEW FROM TRACK
EXTERIOR RENDERING VIEW FROM FOOTBALL FIELD
EXTERIOR RENDERING VIEW OF MAIN STADIUM ENTRANCE
EXTERIOR RENDERING VIEW FROM STADIUM MAIN ENTRANCE
EXTERIOR RENDERING VIEW OF SOCCER FIELD
EXTERIOR RENDERING VIEW OF STUDENT ENTRANCE TO ATHLETICS
ALUMINUM COMPOSITE PANEL CAMPUS BRICK STEEL / CONCRETE COLUMNS STOREFRONT
EXTERIOR MATERIALS
EXISTING ROOF PLAN AREA OF ROOF TO BE DEMOLISHED AND/OR REMAIN
LANDSCAPE/LIGHTING PLAN
PARKING LOT LIGHTING
SPORTS FIELD LIGHTING
SITE LIGHTING

(Updated) AHISD Athletics web packet