DESIGN ZERO DRIVE




           Issues and challenges:
sourcing sustainable products & technologies
                 Gary Wilburn



                                      Sustainable
                                      Construction
                                      Network
Issues and challenges
I   It is not only building skills and alternative solutions that are the challenge
I   Avoiding Greenwash!: can only be understood with knowledge
I   Human behavior, habits and methodologies need to change, this need
    not cost money but takes commitment
I   Embrace the principles of continuous improvement, do not accept convention
I   Involution: combining innovation and evolution
I   Proving low energy building performance: Building physics and dynamic modeling
There are opportunities in ALL sectors and not always new-build
        Housing retro-fit challenge (Source BERR 2008)
I   80%+ of housing stock in the UK in 2050 already exists
I   500,000 houses to be transformed per year at approx £20,000 - 30,000 house for 40 years
I   200,000 construction jobs required to support the task
I   The largest ever UK Engineering Project
Sustainable communities: how many opportunities do we want?

                                                            Community-scale wind turbine


                                    Solar shading
                                                                                                       Green roofing
                                                                                                                       Fuel-cell bus           Waste-to-energy plant
                                                      Maintained ‘eco-system’
                                                                                                                                                                                                          Combined heat and power plant

                                                                                                                                                                       Refurbishment existing dwellings




 Rainwater harvesting




                                                                                                                                                                                            District heating network
                                                                                                                                                                                                                            Smart metering




                                            Sustainable drainage system         Car re-charging

       High-speed broadband

                              Ground-source heating                                                                              Zero-carbon dwellings
                                                                                 Community recycling


  There are examples around the world (even in the UK), get out and see them!
Sourcing sustainable products & technologies
Building Materials Showroom   Austria
                                        DESIGN ZERO DRIVE
Building Materials Showroom   Austria
                                        DESIGN ZERO DRIVE
Case studies: Designing to a higher level
Passivhaus School Austria
                            DESIGN ZERO DRIVE
Hammarby ‘cradle to cradle’ strategy
Hammarby Sjöstad   Stockholm
                               DESIGN ZERO DRIVE
Hammarby Sjöstad   Stockholm
                               DESIGN ZERO DRIVE
Hammarby Sjöstad   Stockholm
                               DESIGN ZERO DRIVE
Hammarby Sjöstad   Stockholm
                               DESIGN ZERO DRIVE
Hammarby Sjöstad   Stockholm
                               DESIGN ZERO DRIVE
Passivhaus Construction
I   Use of bioregionally sourced materials
I   Manufactured, high quality solution
I   Off-site modular format
I   Maximising insulation, minimising energy use
I   Known technology and construction details
Ludesch Community Building   Austria
                                       DESIGN ZERO DRIVE
Wolfort Housing   Austria
                            DESIGN ZERO DRIVE
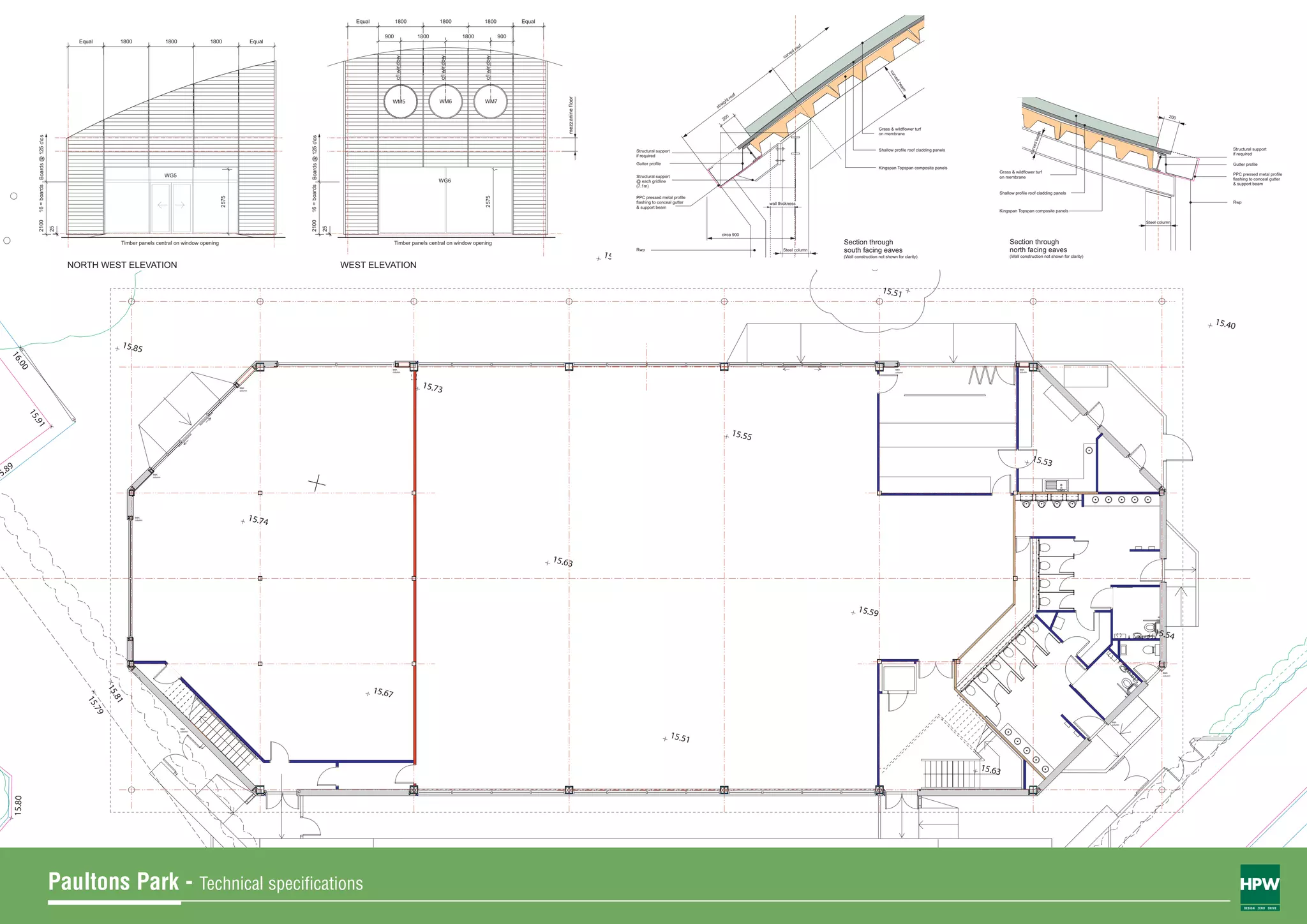
Paultons Park
New low carbon attraction building
          Wildflower roof
Naturally ventilated indoor play area
Paultons Park - Indoor play area
                                   DESIGN ZERO DRIVE
Equal            1800                 1800                1800                 Equal

                                                                                                                                                                                         900                 1800                1800                900
                                                      Equal        1800                     1800            1800               Equal
                                                                                                                                                                                                                                                                                                                                                                             f
                                                                                                                                                                                                                                                                                                                                                                        oo
                                                                                                                                                                                                                                                                                                                                                                      dr
                                                                                                                                                                                                                                                                                                                                                                rve
                                                                                                                                                                                                                                                                                                                                                           cu




                                                                                                                                                                                                c/l window




                                                                                                                                                                                                                    c/l window




                                                                                                                                                                                                                                        c/l window




                                                                                                                                                                                                                                                                                                                                                                                                            cu
                                                                                                                                                                                                                                                                                                                                                                                                               rv
                                                                                                                                                                                                                                                                                                                                                                                                               ed
                                                                                                                                                                                                                                                                                                                                                                                                                    be
                                                                                                                                                                                                                                                                                                                                                                                                                     am
                                                                                                                                                                                                                                                                                                                                             of
                                                                                                                                                                                                                                                                                                                                           ro




                                                                                                                                                                                                                                                                         mezzanine floor
                                                                                                                                                                                              WM5                   WM6                 WM7                                                                                           ht
                                                                                                                                                                                                                                                                                                                                   aig
                                                                                                                                                                                                                                                                                                                                str

                                                                                                                                                                                                                                                                                                                                      0                                                                                                                                                                                              200
                                                                                                                                                                                                                                                                                                                                    20

                                                                                                                                                                                                                                                                                                                                                                                                      Grass & wildflower turf




                                                                                                                                                                                                                                                                                                                                                                                                                                                                          eam
                                                                                                                                                                                                                                                                                                                                                                                                      on membrane
               16 = boards Boards @ 125 ccs




                                                                                                                                       16 = boards Boards @ 125 ccs




                                                                                                                                                                                                                                                                                                                                                                                                                                                                      ed b
                                                                                                                                                                                                                                                                                                                                                                                                                                                                    curv
                                                                                                                                                                                                                                                                                                   Structural support                                                                                 Shallow profile roof cladding panels                                                                                                             Structural support
                                                                                                                                                                                                                                                                                                   if required                                                                                                                                                                                                                                         if required

                                                                                                                                                                                                                                                                                                   Gutter profile                                                                                                                                                                                                                                      Gutter profile
                                                                                                                                                                                                                                                                                                                                                                                                      Kingspan Topspan composite panels
                                                                                                                                                                                                                                                                                                                                                                                                                                                 Grass & wildflower turf                                                                               PPC pressed metal profile
                                                                                            WG5                                                                                                                                                                                                    Structural support                                                                                                                            on membrane
                                                                                                                                                                                                                    WG6                                                                                                                                                                                                                                                                                                                                flashing to conceal gutter
                                                                                                                                                                                                                                                                                                   @ each gridline
                                                                                                                                                                                                                                                                                                                                                                                                                                                                                                                                                       & support beam
                                                                                                                                                                                                                                                                                                   (7.1m)
                                                                                                                                                                                                                                                                                                                                                                                                                                                 Shallow profile roof cladding panels




                                                                                                               2575




                                                                                                                                                                                                                                        2575
                                                                                                                                                                                                                                                                                                   PPC pressed metal profile
                                                                                                                                                                                                                                                                                                   flashing to conceal gutter                       wall thickness                                                                                                                                                                                     Rwp
                                                                                                                                                                                                                                                                                                   & support beam
                                                                                                                                                                                                                                                                                                                                                                                                                                                 Kingspan Topspan composite panels
               2100




                                                                                                                                       2100
                                                                                                                                                                                                                                                                                                                                                                                                                                                                                                                         Steel column
                                               25




                                                                                                                                                                       25
                                                                                                                                                                                                                                                                                                                                   circa 900

                                                                   Timber panels central on window opening                                                                                     Timber panels central on window opening                                                                                                                                             Section through                                                    Section through
                                                                                                                                                                                                                                                                                                   Rwp                                                     Steel column            south facing eaves                                                 north facing eaves
                                                                                                                                                                                                                                                                                           15.66                                                                                   (Wall construction not shown for clarity)                          (Wall construction not shown for clarity)

                                                    NORTH WEST ELEVATION                                                                                                    WEST ELEVATION

                                                                                                                                                                                                                                                                                                                                                                                                        15.51


                                                                                                                                                                                                                                                                                                                                                                                                                                                                                                                                                   15.40

                                                                   15.85
   16
        .00




                                                                                                                                                                                              B&K                                                                                                                                                                                                               B&K                                        B&K
                                                                                                                                                                                              column                                                                                                                                                                                                            column                                     column




                                                                                                                      B&K
                                                                                                                      column
                                                                                                                                                                                                              15.73
            15
              .91




                                                                                                                                                                                                                                                                                                                                            15.55

                                                                                                                                                                                                                                                                                                                                                                                                                                                                     15.53
  .89
15                                                                                 B&K
                                                                                   column




                                                                          B&K
                                                                          column                                               15.74



                                                                                                                                                                                                                                                                     15.63




                                                                                                                                                                                                                                                                                                                                                                                          15.59

                                                                                                                                                                                                                                                                                                                                                                                                                                                                                                                            15.54



                                                                                                                                                                                                                                                                                                                                                                                                                                                                                                                                 B&K
                                                                                                                                                                                                                                                                                                                                                                                                                                                                                                                                 column




                                                                                                                                                                                      15.67
                                                              15
                                                               .81
                                                        15
                                                         .79




                                                                                                                                                                                                                                                                                                                                                                                                                                                                                                  B&K
                                                                                                                                                                                                                                                                                                                                                                                                                                                                                                  column
                                                                                                   B&K


                                                                                                                                                                                                                                                                                                                        15.51
                                                                                                   column




                                                                                                                                                                                                                                                                                                                                                                                                                                             15.63
    15.80




                                                                                                                                                                                                                                                                                                                                                                                                                                                                                                              3
                                                                                                                                                                                                                                                                                                                                                                                                                                                                                                           .4
                                                                                                                                                                                                                                                     15.60                                                                                                                                                                                                                                          15            .4
                                                                                                                                                                                                                                                                                                                                                                                                                                                                                                                     2
                                                                                                                                                                                                                                                                                                                                                                                                                                                                                                            15
                                                                                                                      15




                                               Paultons Park - Technical specifications
                                                                      15.71
                                                                                                                       .72
                                                                                                              15
                                                                                                                .71




                                                                                                                                                                                                                                                                                                                                                                           15.52                                                                                                                                                               7
                                                                                                                                                                                                                                                                                                                                                                                                                                                                                                                                          .3
                                                                                                                                                                                                                                                                                                                                                                                                                                                                                                                                                             DESIGN ZERO DRIVE


                                                                                                                                                                                                                                                                                                                                                                                                                                                                                                                                    15
Paultons Park - Current site images
                                      DESIGN ZERO DRIVE
Visitor Centre
Taking full advantage of a 54 acre site, HPW created the concept and
developed the Visitor Centre to act as a hub for access to:
-   26 acre Country park
-   6 permanent mazes
-   Countryside interpretation exhibition
-   Retail offer

A purpose built 4,500 sq.ft. timber framed and clad building. In its
countryside setting the centre nestles beneath established trees
and oversails two lakes to form a gateway to the visitor attractions
and complementary retail operations.
Wall sectio
                                                                                                                                                                                                                                                                                                                                                                                                                                                                                                                                                                                                                                                                                                                                                                                                                                                                                                                                                                                                                                                                                                                                                      E32-01/4
                                                                                                                                                                                                                                                                                                                                                                                                                                                                                                                                                                                                                                                                                                                                                                                                                                                                                                                                                                                                                                                                                                                                                                n
                                                                                                                                                                                                                                                                                                                                                                                                                                                                                                                                                                                                                                                                                                                                                                                                                                                                                                                                                               l
                                                                                                                                                                                                                                                                                                                                                                                                                                                                                                                                                                                                                                                                                                                                                                                                                                                                                                                                                             ua
                                                                                                                                                                                                                                                                                                                                                                                                                                                                                                                                                                                                                                                                                                                                                                                                                                                                                                                                                            eq
                                                                                                                                                                                                                                                                                                                                                                                                                                                                                                                                                                                                                                                                                                                                                                                                                                                                                                                                                                                                             eq
                                                                                                                                                                                                                                                                                                                                                                                                                                                                                                                                                                                                                                                                                                                                                                                                                                                                                                                                                                                                               ua
                                                                                                                                                                                                                                                                                                                                                                                                                                                                                                                                                                                                                                                                                                                                                                                                                                                                                                                                                                                                                  l
                                                                                                                                                                                                                                                                                                                                                                                                                                                                                                                                                                                                                                                                                                                                                                                                                                                                                                                                                                           60                            Steel beam over (by structural engineer)
                                                                                                                                                                                                                                                                                                                                                                                                                                                                                                                                                                                                                                                                                                                                                                                                                                                                                                                                                                                0                                                                                                                                                                  W19                                                                            W18




                                                                                                                                                                                                                                                                                                                                                                                                                                                                                                                                                                                                                                                                                                                                                                                                                                                                                                                                                  l
                                                                                                                                                                                                                                                                                                                                                                                                                                                                                                                                                                                                                                                                                                                                                                                                                                                                                                                                                                                                         to provide top restraint to timber posts




                                                                                                                                                                                                                                                                                                                                                                                                                                                                                                                                                                                                                                                                                                                                                                                                                                                                                                                                                 ua
                                                                                                                                                                                                                                                                                                                                                                                                                                                                                                                                                                                                                                                                                                                                                                                                                                                                                                                                            eq
                                                                                                                                                                                                                                                                                                                                                                                                                                                                                                                                                                                                                                                                                                                                                                                                                                                                                                                                                                                                                                                          eq
                                                                                                                                                                                                                                                                                                                                                                                                                                                                                                                                                                                                                                                                                                                                                                                                                                                                                                                                                                                                                                                            ua
                                                                                                                                                                                                                                                                                                                                                                                                                                                                                                                                                                                                                                                                                                                                                                                                                                                                                                                                                                                                                                                                 l

                                                                                                                                                                                                                                                                                                                                                                                                                                                                                                                                                                                                                                                                                                                                                                                                                                                                                                                                                                                                                                                                                                                                                                                                                                                                                    W17




                                                                                                                                                                                                                                                                                                                                                                                                                                                                                                                                                                                                                                                                                                                                                                                                                                                                                                                            00
                                                                                                                                                                                                                                                                                                                                                                                                                                                                                                                                                                                                                                                                                                                                                                                                                                                                                                                          12
                                                                                                                                                                                                                                                                                                                                                                                                                                                                                                                                                                                                                                                                                                                                                                                                                                                                                                                                                                                            DX3
                                                                                                                                                                                                                                                                                                                                                                                                                                                                                                                                                                                                                                                                                                                                                                                                                                                                                                                                             W20
                                                                                                                                                                                                                                                                                                                                                                                                                                                                                                                                                                                                                                                                                                                                                                                                                                                                                                                                                                  Type 3 window




                                                                                                                                                                                                                                                                                                                                                                                                                                                                                                                                                                                                                                                                                                                                                                                                                                                                                                                                                                                                                                                                                                                                                                                                                                                                                          ar
                                                                                                                                                                                                                                                                                                                                                                                                                                                                                                                                                                                                                                                                                                                                                                                                                                                                                                                                                                  1200 x 2450                                                                                                                                                                                               zone 4




                                                                                                                                                                                                                                                                                                                                                                                                                                                                                                                                                                                                                                                                                                                                                                                                                                                                                                                                                                                                                                                                                                                                                                                                                                                                                        cle
                                                                                                                                                                                                                                                                                                                                                                                                                                                                                                                                                                                                                                                                                                                                                                                                                                                                                                                                                                  Located centrally




                                                                                                                                                                                                                                                                                                                                                                                                                                                                                                                                                                                                                                                                                                                                                                                                                                                                                                                                                                                                                                                                                                                                                                                                                                                                                    00
                                                                                                                                                                                                                                                                                                                                                                                                                                                                                                                                                                                                                                                                                                                                                                                                                                                                                                                                                                                                                                                                                                                                                                                                   aav & sp




                                                                                                                                                                                                                                                                                                                                                                                                                                                                                                                                                                                                                                                                                                                                                                                                                                                                                                                                                                                                                                                                                                                                                                                                                                                                                   12
                                                                                                                                                                                                                                                                                                                                                                                                                                                                                                                                                                                                                                                                                                                                                                                                                                                                                                                                                                                                                                                                     12
                                                                                                                                                                                                                                                                                                                                                                                                                                                                                                                                                                                                                                                                                                                                                                                                                                                                                                                                                                  between glulam beams




                                                                                                                                                                                                                                                                                                                                                                                                                                                                                                                                                                                                                                                                                                                                                                                                                                                                                                                                                                                                                                                                      00
                                                                                                                                                                                                                                                                                                                                                                                                                                                                                                                                                                                                                                                                                                                                                                                                                                                                                                                                                                                                                                                                          cle
                                                                                                                                                                                                                                                                                                                                                                                                                                                                                                                                                                                                                                                                                                                                                                                                                                                                                                                                                                                                                                                                               ar
                                                                                                                                                                                                                                                                                                                                                                                                                                                                                                                                                                                                                                                                                                                                                                                                                                                                                                                                                                                staff room
                                                                                                                                                                                                                                                                                                                                                                                                                                                                                                                                                                                                                                                                                                                                                                                                                                                                                                                                                                                                                                                                                                                                                                                                                                                                                                        DX4

                                                                                                                                                                                                                                                                                                                                                                                                                                                                                                                                                                                                                                                                                                                                                                                                                                                                                                                                               ss sink in 1500 base
                                                                                                                                                                                                                                                                                                                                                                                                                                                                                                                                                                                                                                                                                                                                                                                                                                                                                                                 gully                  wp & aav




                                                                                                                                                                                                                                                                                                                                                                                                                                                                                                                                                                                                                                                                                                                                                                                                                                                                                                                                                                                                490
                                                                                                                                                                                                                                                                                                                                                                                                                                                                                                                                                                                                                                                                                                                                                                                                                                                                                                                                                      70
                                                                                                                                                                                                                                                                                                                                                                                                                                                                                                                                                                                                                                                                                                                                                                                                                                                                                                                                                                                                                                                   See studio arc dwg
                                                                                                                                                                                                                                                                                                                                                                                                                                                                                                                                                                                                                                                                                                                                                                                                                                                                                                                                                           2650




                                                                                                                                                                                                                                                                                                                                                                                                                                                                                                                                                                                                                                                                                                                                                                                                                                                                                                                                                                                                                                                                                                                                                                                            4900
                                                                                                                                                                                                                                                                                                                                                                                                                                                                                                                                                                                                                                                                                                                                                                                                                                                                                                                                                                                                                                                   110-BA01C for setting




                                                                                                                                                                                                                                                                                                                                                                                                                                                                                                                                                                                                                                                                                                                                                                                                                                                                                                                                                                                                             70
                                                                                                                                                                                                                                                                                                                                                                                                                                                                                                                                                                                                                                                                                                                                                                                                                                                                                                                                                                                                                                                   out




                                                                                                                                                                                                                                                                                                                                                                                                                                                                                                                                                                                                                                                                                                                                                                                                                                                                                                                                                                                                                                                                                                                                                                                      100
                                                                                                                                                                                                                                                                                                                                                                                                                                                                                                                                                                                                                                                                                                                                                                                                                                                                                                                                                                                                                                                                                                                                                        1
                                                                                                                                                                                                                                                                                                                                                                                                                                                                                                                                                                                                                                                                                                                                                                                                                                                                                                                                                                                    70                          1150




                                                                                                                                                                                                                                                                                                                                                                                                                                                                                                                                                                                                                                                                                                                                                                                                                                                                                                                                                                                                                                                                                                                                                     .0
                                                                                                                                                                                                                                                                                                                                                                                                                                                                                                                                                                                                                                                                                                                                                                                                                                                                                                                                                                                                                                                                                                                                                   70
                                                                                                                                                                                                                                                                                                                                                                                                                                                                                                                                                                                                                                                                                                                                                                                                                                                                                                                                       2999.99
                                                                                                                                                                                                                                                                                                                                                                                                                                                                                                                                                                                                                                                                                                                                                                                                                                                                                                                                                                                                                                               70
                                                                                                                                                                                                                                                                                                                                                                                                                                                                                                                                                                                                                                                                                                                                                                                                                                                                                                                                                                                                                                                                                                                                                                                                                                                                                                                       W16




                                                                                                                                                                                                                                                                                                                                                                                                                                                                                                                                                                                                                                                                                                                                                                                                                                                                                                                                                                                                                                                                                                                                                                                                                                        70
                                                                                                                                                                                                                                                                                                                                                                                                                                                                                                                                                                                                                                                                                                                                                                                                      Building section




                                                                                                                                                                                                                                                                                                                                                                                                                                                                                                                                                                                                                                                                                                                                                                                                                                                                                                                                                                                                                                                                                                                                                                                                                                          .0
                                                                                                                                                                                                                                                                                                                                                                                                                                                                                                                                                                                                                                                                                                                                                                                                                                                                                         1200
                                                                                                                                                                                                                                                                                                                                                                                                                                                                                                                                                                                                                                                                                                                                                                                                       E22-01/1




                                                                                                                                                                                                                                                                                                                                                                                                                                                                                                                                                                                                                                                                                                                                                                                                                                                                                                                                                                                                                                                                                                                                                                                                                                            1
                                                                                                                                                                                                                                                                                                                                                                                                                                                                                                                                                                                                                                                                                                                                                                                                                                                                                                             W21                                       office                                                                                             zone 5




                                                                                                                                                                                                                                                                                                                                                                                                                                                                                                                                                                                                                                                                                                                                                                                                                                                                                                                                                                    900
                                                                                                                                                                                                                                                                                                                                                                                                                                                                                                                                                                                                                                                                                                                                                                                                                                                                                                                                                                           D6
                                                                                                                                                                                                                                                                                                                                                                                                                                                                                                                                                                                                                                                                                                                                                                                                                                                                                                                                 Type 3 window                                                                                                                                                                                                                                                                                                                        n
                                                                                                                                                                                                                                                                                                                                                                                                                                                                                                                                                                                                                                                                                                                                                                                                                                                                                                                                 1200 x 2450                                                                                                                                                                                                                                                                                                                     ctio
                                                                                                                                                                                                                                                                                                                                                                                                                                                                                                                                                                                                                                                                                                                                                                                                                                                                                                                                 Located centrally                                                                                                                                                                                                                                                                                                           g se
                                                                                                                                                                                                                                                                                                                                                                                                                                                                                                                                                                                                                                                                                                                                                                                                                                                                                                                                                                                                                                                                                                                                                                                                                                                        ildin 01/2




                                                                                                                                                                                                                                                                                                                                                                                                                                                                                                                                                                                                                                                                                                                                                                                                                                                                                                                                                                   750
                                                                                                                                                                                                                                                                                                                                                                                                                                                                                                                                                                                                                                                                                                                                                                                                                                                                                                                                 between glulam beams                                                    100                                                                                                                                                                                                                                       Bu       2-




                                                                                                                                                                                                                                                                                                                                                                                                                                                                                                                                                                                                                                                                                                                                                                                                                                                                                                                                                                                          355
                                                                                                                                                                                                                                                                                                                                                                                                                                                                                                                                                                                                                                                                                                                                                                                                                                                                                                            ic                                                                                                                                                                                                                                                                                                                                           E2
                                                                                                                                                                                                                                                                                                                                                                                                                                                                                                                                                                                                                                                                                                                                                                                                                                                                                                                            wp & aav
                                                                                                                                                                                                                                                                                                                                                                                                                                                                                                                                                                                                                                                                                                                                                                                                                                                                                                                                                                                    D9                                                                                                                                                                                                                                                                                                   zone 3
                                                                                                                                                                                                                                                                                                                                                                                                                                                                                                                                                                                                                                                                                                                                                                                                                                                                                                                                                                                                             D8




                                                                                                                                                                                                                                                                                                                                                                                                                                                                                                                                                                                                                                                                                                                                                                                                                                                                                                                                                                                                                                                               1294
                                                                                                                                                                                                                                                                                                                                                                                                                                                                                                                                                                                                                                                                                                                                                                                                                                                                                                                                                                                                                                                                                                                                                   Bulkhead over
                                                                                                                                                                                                                                                                                                                                                                                                                                                                                                                                                                                                                                                                                                                                                                                                                                                                                                                                                                                    900         125                                                                                                                                                @ 2100                               zone 1




                                                                                                                                                                                                                                                                                                                                                                                                                                                                                                                                                                                                                                                                                                                                                                                                                                                                                                                                                                                                                                                                                                                                                        10
                                                                                                                                                                                                                                                                                                                                                                                                                                                                                                                                                                                                                                                                                                                                                                                                                                                                                                                                                                                                                                                                                                                                           equa



                                                                                                                                                                                                                                                                                                                                                                                                                                                                                                                                                                                                                                                                                                                                                                                                                                                                                                                                                                                                                                                                                                                                                          00
                                                                                                                                                                                                                                                                                                                                                                                                                                                                                                                                                                                                                                                                                                                                                                                                                                                                                                                                                                                                                                                                                                                                                                  clea
                                                                                                                                                                                                                                                                                                                                                                                                                                                                                                                                                                                                                                                                                                                                                                                                                                                                                                                                                                                                                                                                                                     equa




                                                                                                                                                                                                                                                                                                                                                                                                                                                                                                                                                                                                                                                                                                                                                                                                                                                                                                                                                                                                                                                                                                                                               l
                                                                                                                                                                                                                                                                                                                                                                                                                                                                                                                                                                                                                                                                                                                                                                                                                                                                                                                                                                                                                                                                                                                                                75
                                                                                                                                                                                                                                                                                                                                                                                                                                                                                                                                                                                                                                                                                                                                                                                                                                                                                                                                                                                                                                                                                                                                              42




                                                                                                                                                                                                                                                                                                                                                                                                                                                                                                                                                                                                                                                                                                                                                                                                                                                                                                                                                                                                                                                                                                                                                                      r
                                                                                                                                                                                                                                                                                                                                                                                                                                                                                                                                                                                                                                                                                                                                                                                                                                                                                                                                                                                                                                                                                                       l 50
                                                                                                                                                                                                                                                                                                                                                                                                                                                                                                                                                                                                                                                                                                                                                                                                                                                                                                                                                                                                                  1200
                                                                                                                                                                                                                                                                                                                                                                                                                                                                                                                                                                                                                                                                                                                                                                                                                                                                                                                                                                          Bulkhead over                                                                                                                                                                                                                                                70




                                                                                                                                                                                                                                                                                                                                                                                                                                                                                                                                                                                                                                                                                                                                                                                                                                                                                                                                                                                                                                                                                                                                                    eq
                                                                                                                                                                                                                                                                                                                                                                                                                                                                                                                                                                                                                                                                                                                                                                                                                                                                                        W6                                                                                                                                                                                                                                                                                              1000 clear
                                                                                                                                                                                                                                                                                                                                                                                                                                                                                                                                                                                                                                                                                                                                                                                                                                                                                                                                                                          @ 2100                                                                                                                                                                                                                                                                                                                                       W15




                                                                                                                                                                                                                                                                                                                                                                                                                                                                                                                                                                                                                                                                                                                                                                                                                                                                                                                                                                                                                                                                                                                                                      ua
                                                                                                                                                                                                                                                                                                                                                                                                                                                                                                                                                                                                                                                                                                                                                                                                                                                                                                                                                                                                                                                                                                                                                            l7
                                                                                                                                                                                                                                                                                                                                                                                                                                                                                                                                                                                                                                                                                                                                                                                                                                                   DX2




                                                                                                                                                                                                                                                                                                                                                                                                                                                                                                                                                                                                                                                                                                                                                                                                                                                                                                                                                                                                                                                                                                                                                               0
                                                                                                                                                                                                                                                                                                                                                                                                                                                                                                                                                                                                                                                                                                                                                                                                                                                                                                                                                                                                                                                                                                                                                                                       500




                                                                                                                                                                                                                                                                                                                                                                                                                                                                                                                                                                                                                                                                                                                                                                                                                                                                                                                                                                                                                                                                            70
                                                                                                                                                                                                                                                                                                                                                                                                                                                                                                                                                                                                                                                                                                                                           Wal
                                                                                                                                                                                                                                                                                                                                                                                                                                                                                                                                                                                                                                                                                                                                              l                                                                                                                                                                                                                                                    100                                                                                                                                                                                                    Bulkhead over
                                                                                                                                                                                                                                                                                                                                                                                                                                                                                                                                                                                                                                                                                                                                           E32 sect                                                                                                                                                                                                                                                                                                                                                                                                                                                       @ 2100




                                                                                                                                                                                                                                                                                                                                                                                                                                                                                                                                                                                                                                                                                                                                                                                                                                                                                                                                                                                                  700
                                                                                                                                                                                                                                                                                                                                                                                                                                                                                                                                                                                                                                                                                                                                               -01/ ion




                                                                                                                                                                                                                                                                                                                                                                                                                                                                                                                                                                                                                                                                                                                                                                                                                                                                                                                                                                                                                                                                                                                           50
                                                                                                                                                                                                                                                                                                                                                                                                                                                                                                                                                                                                                                                                                                                                                                        W5                                                                                                                                                                                                                                                                                                                                                                                                                                                                                                Suspended ceiling over
                                                                                                                                                                                                                                                                                                                                                                                                                                                                                                                                                                                                                                                                                                                                                   3




                                                                                                                                                                                                                                                                                                                                                                                                                                                                                                                                                                                                                                                                                                                                                                                                                                                                                                                                                                                                                                eq




                                                                                                                                                                                                                                                                                                                                                                                                                                                                                                                                                                                                                                                                                                                                                                                                                                                                                                                                                                                                                                                                                                                                  eq
                                                                                                                                                                                                                                                                                                                                                                                                                                                                                                                                                                                                                                                                                                                                                                                                                                                                                                                                                                                                                                                                                                                                   ua
                                                                                                                                                                                                                                                                                                                                                                                                                                                                                                                                                                                                                                                                                                                                                                                                                                                                                                                                                                                                                                        ua




                                                                                                                                                                                                                                                                                                                                                                                                                                                                                                                                                                                                                                                                                                                                                                                                                                                                                                                                                                                                                                                                                                                                       l
                                                                                                                                                                                                                                                                                                                                                                                                                                                                                                                                                                                                                                                                                                                                                                                                                                                                                                                                                                                                                                          l
                                                                                                                                                                                                                                                                                                                                                                                                                                                                                                                                                                                                                                                                                                                                                                                                                                                                              Beam over




                                                                                                                                                                                                                                                                                                                                                                                                                                                                                                                                                                                                                                                                                                                                                                                                                                                                                                                                                                                                                                                                                                                     70
                                                                                                                                                                                                                                                                                                                                                                                                                                                                                                                                                                                                                                                                                                                                                                                                                                                                              @ low level




                                                                                                                                                                                                                                                                                                                                                                                                                                                                                                                                                                                                                                                                                                                                                                                                                                                                                                                                                                                                                                              15
                                                                                                                                                                                                                                                                                                                                                                                                                                                                                                                                                                                                                                                                                                                                                                                                                                                                                                                                                                                                                                               00
                                                                                                                                                                                                                                                                                                                                                                                                                                                                                                                                                                                                                                                                                                                                                                                                  Window detail
                                                                                                                                                                                                                                                                                                                                                                                                                                                                                                                                                                                                                                                                                                                                                                                                                                                                              Line of wall over




                                                                                                                                                                                                                                                                                                                                                                                                                                                                                                                                                                                                                                                                                                                                                                                                                                                                                                                                                                                                                                                                                                     70
                                                                                                                                                                                                                                                                                                                                                                                                                                                                                                                                                                                                                                                                                                                                                                                                                                                                                                                                                                                                                                                   clea
                                                                                                                                                                                                                                                                                                                                                                                                                                                                                                                                                                                                                                                                                                                                                                                                  E32-01/1                                                                                                                                                                                                                                                                                                                                                                                                                                                                                                                       DX5
                                                                                                                                                                                                                                                                                                                                                                                                                                                                                                                                                                                                                                                                                                                                                                                                                                                                                                                                                                                            Bulkhead over




                                                                                                                                                                                                                                                                                                                                                                                                                                                                                                                                                                                                                                                                                                                                                                                                                                                                                                                                                                                                                                                      r
                                                                                                                                                                                                                                                                                                                                                                                                                                                                                                                                                                                                                                                                                                                                                                                                                                                                                                                                                                                            @ 2445
                                                                                                                                                                                                                                                                                                                                                                                                                                                                                                                                                                                                                                                                                                                                                                                                                                                                                                                                                                                                                                                                                                                                                                                            zone 2
                                                                                                                                                                                                                                                                                                                                                                                                                                                                                                                                                                                                                                                                                                                                                                                                                                                                                                                                                                                                                                                                                                                                                                                                                                                                                                                                       mat




                                                                                                                                                                                                                                                                                                                                                                                                                                                                                                                                                                                                                                                                                                                                                                                                                                                                                                                                                                                                                                                                eq




                                                                                                                                                                                                                                                                                                                                                                                                                                                                                                                                                                                                                                                                                                                                                                                                                                                                                                                                                                                                                                                                                                                                                                                                                                                                                                                                                                           l
                                                                                                                                                                                                                                                                                                                                                                                                                                                                                                                                                                                                                                                                                                                                                                                                                                                                                                                                                                                                                                                                                                                                                                                                                                                                                                                                                                       equa
                                                                                                                                                                                                                                                                                                                                                                                                                                                                                                                                                                                                                                                                                                                                                                                                                                                                                                                                                                                                                                                                                                                                                                                                                                                                                                                                                               C
                                                                                                                                                                                                                                                                                                                                                                                                                                                                                                                                                                                                                                                                                                                                                                                                                                                                                                                                                                                                                                                                     ua




                                                                                                                                                                                                                                                                                                                                                                                                                                                                                                                                                                                                                                                                                                                                                                                                                                                                                                                                                                                                                                                                                                                                                                                                                                                                                     12




                                                                                                                                                                                                                                                                                                                                                                                                                                                                                                                                                                                                                                                                                                                                                                                                                                                                                                                                                                                                                                                                                                                                                                                                                                                                                                                                                           fan
                                                                                                                                                                                                                                                                                                                                                                                                                                                                                                                                                                                                                                                                                                                                                                                                                                                 Retail




                                                                                                                                                                                                                                                                                                                                                                                                                                                                                                                                                                                                                                                                                                                                                                                                                                                                                                                                                                                                                                                                                                                                                                                                                                                                                         00
                                                                                                                                                                                                                                                                                                                                                                                                                                                                                                                                                                                                                                                                                                                                                                                                                                                                                                                                                                                                                                                                      l




                                                                                                                                                                                                                                                                                                                                                                                                                                                                                                                                                                                                                                                                                                                                                                                                                                                                                                                                                                                                                                                                                                                                                                                                                                                                                           cle




                                                                                                                                                                                                                                                                                                                                                                                                                                                                                                                                                                                                                                                                                                                                                                                                                                                                                                                                                                                                                                                                                                                                                                                                                                                                                                                                                                        l
                                                                                                                                                                                                                                                                                                                                                                                                                                                                                                                                                                                                                                                                                                                                                                                                                                                                                                                                                                                                                                                                                                                                                                                                                                                                                                                                                                   equa
                                                                                                                                                                                                                                                                                                                                                                                                                                                                                                                                                                                                                                                                                                                                                                                                                                                                                                                                                                                                                                                                                                                                                                                                                                                                                                ar
                                                                                                                                                                                                                                                                                                                                                                                                                                                                                                                                                                                                                                                                                                                                                                                                                                                                                                                                                                                                                                                                                                                                                                                                                                                                                                                                                     W14




                                                                                                                                                                                                                                                                                                                                                                                                                                                                                                                                                                                                                                                                                                                                                          W4                                                                                                                                                          n
                                                                                                                                                                                                                                                                                                                                                                                                                                                                                                                                                                                                                                                                                                                                                                                                                                                                                                                 ctio                                                                                                                                            21
                                                                                                                                                                                                                                                                                                                                                                                                                                                                                                                                                                                                                                                                                                                                                                                                                                                                                                                                                                                                                                                                   80
                                                                                                                                                                                                                                                                                                                                                                                                                                                                                                                                                                                                                                                                                                                                                                                                                                                                                                            g se
                                                                                                                                                                                                                                                                                                                                                                                                                                                                                                                                                                                                                                                                                                                                                                                                                                                                                                       ildin 01/2




                                                                                                                                                                                                                                                                                                                                                                                                                                                                                                                                                                                                                                                                                                                                                                                                                                                                                                                                                                                                                                                                                 45
                                                                                                                                                                                                                                                                                                                                                                                                                                                                                                                                                                                                                                                                                                                                                                                                                                                                                                  Bu




                                                                                                                                                                                                                                                                                                                                                                                                                                                                                                                                                                                                                                                                                                                                                                                                                                                                                                                                                                                                                                                                               14
                                                                                                                                                                                                                                                                                                                                                                                                                                                                                                                                                                                                                                                                                                                                                                                                                                                                                                           2-
                                                                                                                                                                                                                                                                                                                                                                                                                                                                                                                                                                                                                                                                                                                                                                                                                                                                                                        E2                                                                                                                                                                                          1440
                                                                                                                                                                                                                                                                                                                                                                                                                                                                                                                                                                                                                                                                                                                                                                                                                                                                                                                                                                                                                                    3




                                                                                                                                                                                                                                                                                                                                                                                                                                                                                                                                                                                                                                                                                                                                                                                                                                                                                                                                                                                                                                                           0
                                                                                                                                                                                                                                                                                                                                                                                                                                                                                                                                                                                                                                                                                                                                                                                                                                                                                                                                                                                                                                        @




                                                                                                                                                                                                                                                                                                                                                                                                                                                                                                                                                                                                                                                                                                                                                                                                                                                                                                                                                                                                                                                         30
                                                                                                                                                                                                                                                                                                                                                                                                                                                                                                                                                                                                                                                                                                                                                                                                                                                                                                                                                                                                                  wc                        75




                                                                                                                                                                                                                                                                                                                                                                                                                                                                                                                                                                                                                                                                                                                                                                                                                                                                                                                                                                                                                                                                                                                                                                    100
                                                                                                                                                                                                                                                                                                                                                                                                                                                                                                                                                                                                                                                                                                                                                                                                                                                                                                                                                                                                                                              0
                                                                                                                                                                                                                                                                                                                                                                                                                                                                                                                                                                                                                                                                                                                                                                                                                                                                                                                                                                                                                                                c/                                                                                                                                                                                                                                                    classroom




                                                                                                                                                                                                                                                                                                                                                                                                                                                                                                                                                                                                                                                                                                                                                                                                                                                                                                                                                                                                                                                                                                                                                                                                                   70
                                                                                                                                                                                                                                                                                                                                                                                                                                                                                                                                                                                                                                                                                                                                                                                                                                                                                                                                                                                                                                             wc cs                                                          900




                                                                                                                                                                                                                                                                                                                                                                                                                                                                                                                                                                                                                                                                                                                                                                                                                                                                                                                                                                                            70
                                                                                                                                                                                                                                                                                                                                                                                                                                                                                                                                                                                                                                                                                                                                                                                                                                                                                                                                                                                                                                                     =                                                                                                                                                                             D7




                                                                                                                                                                                                                                                                                                                                                                                                                                                                                                                                                                                                                                                                                                                                                                                                                                                                                                                                                                                                                                              00
                                                                                                                                                                                                                                                                                                                                                                                                                                                                                                                                                                                                                                                                                                                                                                                                                                                                                                                                                                                                                                                         22                         svp                            115
                                                                                                                                                                                                                                                                                                                                                                                                                                                                                                                                                                                                                                                                                                                                                                                                                                                                                                                                                      W7                                                                                                   50




                                                                                                                                                                                                                                                                                                                                                                                                                                                                                                                                                                                                                                                                                                                                                                                                                                                                                                                                                                                                                                            15




                                                                                                                                                                                                                                                                                                                                                                                                                                                                                                                                                                                                                                                                                                                                                                                                                                                                                                                                                                                                                                                                                                                                                                                                                       900
                                                                                                                                                                                                                                                                                                                                                                                                                                                                                                                                                                                                                                                                                                                                                                                                                                                                                                                                                                                                                                                                                                                                  corridor




                                                                                                                                                                                                                                                                                                                                                                                                                                                                                                                                                                                                                                                                                                                                                                                                                                                                                                                                                                                                                                                                                                                                                                  1230
                                                                                                                                                                                                                                                                                                                                                                                                                                                                                                                                                                                                                                                                                                                                                                                                                                                                                                                                                                                                                                                                                                                                                                                              Bulkhead over                                                                                                                                   W13
                                                                                                                                                                                                                                                                                                                                                                                                                                                                                                                                                                                                                                                                                                                                                                                                                                                                                                                                                                                                 Cubicles
                                                                                                                                                                                                                                                                                                                                                                                                                                                                                                                                                                                                                                                                                                                                                                                                                                                                                                                                                                                                 to detail                                                wc                                                                                                                                  @ 2100
                                                                                                                                                                                                                                                                                                                                                                                                                                                                                                                                                                                                                                                                                                                                                                                                                                                                                                                                                                                                                                                                                    10              D1
                                                                                                                                                                                                                                                                                                                                                                                                                                                                                                                                                                                                                                                                                                                                                                                                                                                                                                                                                                                                                                                                                         00                                                                                     900         115
                                                                                                                                                                                                                                                                                                                                                                                                                                                                                                                                                                                                                                                                                                                                                                                                                                                                                                                                                                                            female toilets                                                                                         lobby 1




                                                                                                                                                                                                                                                                                                                                                                                                                                                                                                                                                                                                                                                                                                                                                                                                                                                                                                                                                                                                                                                                                                                                              55


                                                                                                                                                                                                                                                                                                                                                                                                                                                                                                                                                                                                                                                                                                                                                                                                                                                                                                                                                                                                                                                                                                                                                             70
                                                                                                                                                                                                                                                                                                                                                                                                                                                                                                                                                                                                                                                                                                                                                                                                                                                                                                                                                                                                                                                                                                                  1030
                                                                                                                                                                                                                                                                                                                                                                                                                                                                                                                                                                                                                                                                                                                                                                                                                                                                                                                                                                                                                                                                                                                                       D3                                                                        D5
                                                                                                                                                                                                                                                                                                                                                                                                                                                                                                                                                                                                                                                                                                                                                                                                                                                                                                                                                                                                             radial partition                                             D4




                                                                                                                                                                                                                                                                                                                                                                                                                                                                                                                                                                                                                                                                                                                                                                                                                                                                                                                                                                                                                                                                                                                                             900
                                                                                                                                                                                                                                                                                                                                                                                                                                                                                                                                                                                                                                                                                                                                                                                                                                                                                                                                                                                                                                                                                                                                                                                 D2




                                                                                                                                                                                                                                                                                                                                                                                                                                                                                                                                                                                                                                                                                                                                                                                                                                                                                                                                                                                                                                                                                                                                                           1030
                                                                                                                                                                                                                                                                                                                                                                                                                                                                                                                                                                                                                                                                                                                                                                                    Wall detail                                                                                                                                                                                                                                                                                                                                                                                                    250          1000
                                                                                                                                                                                                                                                                                                                                                                                                                                                                                                                                                                                                                                                                                                                                                                                    E32-01/2
                                                                                                                                                                                                                                                                                                                                                                                                                                                                                                                                                                                                                                                                                                                                                                                                                                                                                                                                                                                                                                                                                                                                                                                                                                  70
                                                                                                                                                                                                                                                                                                                                                                                                                                                                                                                                                                                                                                                                                                                                                                                                                                                                                                                                                                                                                hd
                                                                                                                                                                                                                                                                                                                                                                                                                                                                                                                                                                                                                                                                                                                                                                                                                                                                                                                                                                                                                                                                                                                                                                         lobby 2                                                                                                                                         W12




                                                                                                                                                                                                                                                                                                                                                                                                                                                                                                                                                                                                                                                                                                                                                                                                                                                                                                                                                                                                                                                               r
                                                                                                                                                                                                                                                                                                                                                                                                                                                                                                                                                                                                                                                                                                                                                                                                                                                                                                                                                                                                                                                          clea




                                                                                                                                                                                                                                                                                                                                                                                                                                                                                                                                                                                                                                                                                                                                                                                                                                                                                                                                                                                                                                                                                                                                                       70
                                                                                                                                                                                                                                                                                                                                                                                                                                                                                                                                                                                                                                                                                                                                                                                                                                                                                                                                                                                                                                                                                                                              &
                                                                                                                                                                                                                                                                                                                                                                                                                                                                                                                                                                                                                                                                                                                                                                                                                                                                                                                                                                                                                                                                                      &




                                                                                                                                                                                                                                                                                                                                                                                                                                                                                                                                                                                                                                                                                                                                                                                                                                                                                                                                                                                                                                                                                                                           top
                                                                                                                                                                                                                                                                                                                                                                                                                                                                                                                                                                                                                                                                                                                                                                                                                                                                                                                                                                                                                                                                                                                                                                                                         1500 clear




                                                                                                                                                                                                                                                                                                                                                                                                                                                                                                                                                                                                                                                                                                                                                                                                                                                                                                                                                                                                                                                                                                                  vanit whbs
                                                                                                                                                                                                                                                                                                                                                                                                                                                                                                                                                                                                                                                                                                                                                                                                                                                                                                                                                                                                                                                                                   top
                                                                                                                                                                                                                                                                                                                                                                                                                                                                                                                                                                                                                                                                                                                                                                                                                                                                                                                                                                                                                                                       50




                                                                                                                                                                                                                                                                                                                                                                                                                                                                                                                                                                                                                                                                                                                                                                                                                                                                                                                                                                                                                                                                          vanit whbs
                                                                                                                                                                                                                                                                                                                                                                                                                                                                                                                                                                                                                                                                                                                                                                                                                                                                                                                                                                                                                                                     12
                                                                                                                                                                                                                                                                                                                                                                                                                                                                                                                                                                                                                                                                                                                                                                        W3




                                                                                                                                                                                                                                                                                                                                                                                                                                                                                                                                                                                                                                                                                                                                                                                                                                                                                                                                                                                                                                                                                                                       ory
                                                                                                                                                                                                                                                                                                                                                                                                                                                                                                                                                                                                                                                                                                                                                                                                                                                                                                                                                                                                                                                                               ory
                                                                                                                                                                                                                                                                                                                                                                                                                                                                                                                                                                                                                                                                                                                                                                                                                                                                                                                                                                                                                                                                                                                                                                                                                             hd




                                                                                                                                                                                                                                                                                                                                                                                                                                                                                                                                                                                                                                                                                                                                                                                                                                                                                                                                                                                                                                                                                                                  3 No
                                                                                                                                                                                                                                                                                                                                                                                                                                                                                                                                                                                                                                                                                                                                                                                                                                                                                                                                                                                                                                                                          3 No
                                                                                                                                                                                                                                                                                                                                                                                                                                                                                                                                                                                                                                                                                                                                                                                                                                                                                                                                                                                                                                                                                                                                                                                2 No




                                                                                                                                                                                                                                                                                                                                                                                                                                                                                                                                                                                                                                                                                                                                                                                                                                                                                                                                                                                                                                                                                                                                                                                                         1240




                                                                                                                                                                                                                                                                                                                                                                                                                                                                                                                                                                                                                                                                                                                                                                                                                                                                                                                                                                                                                                                                                                                                                                                                                                            2218




                                                                                                                                                                                                                                                                                                                                                                                                                                                                                                                                                                                                                                                                                                                                                                                                                                                                                                                                                                                                                                                                                                                                                                                                                                                                                                                                       W E3 2
                                                                                                                                                                                                                                                                                                                                                                                                                                                                                                                                                                                                                                                                                                                                                                                                                                                                                                                                                                                                                                                                                                                                                                                urinals
                                                                                                                                                                                                                                                                                                                                                                                                                                                                                                                                                                                                                                                                                                                                                                                                                                                                                                                                                                                                                                                                                                                                   male toilets




                                                                                                                                                                                                                                                                                                                                                                                                                                                                                                                                                                                                                                                                                                                                                                                                                                                                                                                                                                                                                                                                                                                                                                                                                                                                                                                                        all -0
                                                                                                                                                                                                                                                                                                                                                                                                                                                                                                                                                                                                                                                                                                                                                                                                                                                                                                                                                                                                                                        W8                                                                                                                                                                      disabled




                                                                                                                                                                                                                                                                                                                                                                                                                                                                                                                                                                                                                                                                                                                                                                                                                                                                                                                                                                                                                                                                                                                                                                                                                                                                                                                                           se 1/4
                                                                                                                                                                                                                                                                                                                                                                                                                                                                                                                                                                                                                                                                                                                                                                                                                                                                                                                                                                                                                                                                                                                                                                          Cubicle




                                                                                                                                                                                                                                                                                                                                                                                                                                                                                                                                                                                                                                                                                                                                                                                                                                                                                                                                                                                                                                                                                                                                                                                                                                                                                                                                             cti
                                                                                                                                                                                                                                                                                                                                                                                                                                                                                                                                                                                                                                                                                                                                                                                                                                                   DX1                                                                                                                                                                                                                                                                                      hd                                                                   toilet                                                                                W11




                                                                                                                                                                                                                                                                                                                                                                                                                                                                                                                                                                                                                                                                                                                                                                                                                                                                                                                                                                                                                                                                                                                                                                                                                                                                                                                                                on
                                                                                                                                                                                                                                                                                                                                                                                                                                                                                                                                                                                                                                                                                                                                                                                                                                                                                                                                                                                                                                                                                                                                                                          to detail




                                                                                                                                                                                                                                                                                                                                                                                                                                                                                                                                                                                                                                                                                                                                                                                                                                                                                                                                                                                                                                                                                                                                                                                                         70
                                                                                                                                                                                                                                                                                                                                                                                                                                                                                                                                                                                                                                                                                                                                                                                                                                                                                                                                                                                                                                                                                                                                                     790
                                                                                                                                                                                                                                                                                                                                                                                                                                                                                                                                                                                                                                                                                                                                                                                                                                                                                                                                                                                                                                                                           gully                                                                                                                                                                                                        gully
                                                                                                                                                                                                                                                                                                                                                                                                                                                                                                                                                                                                                                                                                                                                                                                                                                                                                                                                                                                                                                                                               495                                                            70                                                                                                   re
                                                                                                                                                                                                                                                                                                                                                                                                                                                                                                                                                                                                                                                                                                                                                                                                                         W1                                          W2                                                                                                                                                                                                                                                                                                                 300
                                                                                                                                                                                                                                                                                                                                                                                                                                                                                                                                                                                                                                                                                                                                                                                                                                                                                                                                                                                                                                                                                              70                                                                                                      aav & sp
                                                                                                                                                                                                                                                                                                                                                                                                                                                                                                                                                                                                                                                                                                                                                                                                                                                                                                                                                                                                                                                                                                                                                                                                                                                                          W10
                                                                                                                                                                                                                                                                                                                                                                                                                                                                                                                                                                                                                                                                                                                                                                                                                                                                                                                                                                                                                                                                                                                  W9
                                                                                                                                                                                                                                                                                                                                                                                                                                                                                                                                                                                                                                                                                                                                                                                                                                                                                                                                                                                                                                                                                                                                                                         1825                 70                 1835




                                                                                                                                                                                                                                                                                                                                                                                                                                                                                                                                                                                                                                                                                                                                                                                                                              Building section
                                                                                                                                                                                                                                                                                                                                                                                                                                                                                                                                                                                                                                                                                                                                                                                                                               E22-01/1
                                                                                                                                                                                                                                                                                                                                                                                                                                                                                                                                                                                                                                                                                                                                                                                                                                                                                                                                                                                                                                                                                                                                        1475




                                                                                                                                                                                                                                                                                                                                                                                                                                                                                                                                                                                                                                                                                                                                                                                                                                                           ring beam dotted to
                                                                                                                                                                                                                                                                                                                                                                                                                                                                                                                                                                                                                                                                                                                                                                                                                                                           illustrate door frame




                                                                                                                                                                                                                                                                                                                                                                                                                                                                                                                                                                                                                                                                                                                                                                             1100
                                                                                                                                                                                                                                                                                                                                                                                                                                                                                                                                                                                                                                                                                                                                                                                                                                                                                                                                                      bottom panel to reception building
                                                                                                                                                                                                                                                                                                                                                                                                                                                                                                                                                                                                                                                                                                                                                                                                                                                                                                                                                      windows to be obscure glazed to
                                                                                                                                                                                                                                                                                                                                                                                                                                                                                                                                                                                                                                                                                                                                                                                                                                                                                                                                                      hpw specification




                                                                                                                                                                                                                                                                                                                                                                                                                                                                                                                                                                             Curved edge trim to roof
                                                                                                                                                                                                                                                                                                                                                                                                                                                                                                                                                                             to detail

                                                                                                                                                                                                                                                                                                                                                                                                                                                                                                                                                                                                                                                                                                                                                                                                                                                                   Roof finish to design

                                                                      Roof membrane
                                                                      18mm Sterling board                                                                                                                                                            Curved galvanised edge beam on
                                                                                                                                    Roof finish build up to detail
                                                                      102 x 50 battens                                                                                                                                                               curved timber fascia
                                                                      11mm Sterling board                                                                                                                     Drainage to be
                                                                                                                                                                                                              determined
                                                                                                                                                                                                                                                          220




                                                                                                                                                                                                                                                                                                                                                                                                                                                                                                                                                                             Glulam beams chamferred
                                                                                                                                                                                                                                                          50
                                                                 10




                                                                                                                                                                                                                                                                                                                                                                                                                                                                                                                                                                             Curved flashing to
       300 glulam




                                                                                                                          300 glulam


                                                                                                                                                                                                                                                                                                                                                                                                                                                                                                                                                                             top of cladding                                                                                                    Exposed radial glulam beams
                                                                                                                                                                                                                                 50

                                                                                                                                                                                       Glulam beam tapered at perimeter
                                                                                                                   250

                                                                                                                                                                                       Curved galvanised edge beam                                                                                                                                                                                                                                                                                                                                                           Edge steel by Fordingbridge.                                                                                                                                                                                                                                                 Insulation & ceiling boards continues                                                                                                                                                                                                                                                                                                                                                                                  1650
                                                                                                                                        Circular galvanised collar                                                                                                                                                                                                                                                                                                                                                                                                           Painted finish                                                                                                     General roof make up:                                                                                                                                                                                                                   Internal boarding above all 1750 doors                                                                                                                                       Vertical timber boarding
                                                                                                                                                                                                                                                                                                                                                                                                                                                                                                                                                                                                                                                                                                                                                                                                                                                                                                                                                                                                                                                                                                                     above door to u/side of                                                                                                                                                                      Internal boarding above door
                                                                                                                                                                                                                                                                                                                                                                                                                                Roof finish build up to detail
                                                                                                                                                                                                                                                                                                                                                                                                                                                                                                                                                                                                                                                                                                Green roof on waterproof membrane on                                                                                                                      Umbrella support by Fordingbridge                                             set out as plan (right) to cover door head
                                                                                                                                        Insulation to both sides
                                                                                                                                        of ring beam
                                                                                                                                                                                                                                                                                                                                                                                                                                                        235
                                                                                                                                                                                                                                                                                                                                                                                                                                                                                                                                                                                                                                                                                                insulation on                                                                                                                                                                                                                                                                                                                                                                                                        glulam beams                                                                                                                                                                                 to be set in by 55mm to cover
                                                                                                                   300                                                                                                                                                                                                                                                                                                                                                                                                                                                                                                                                                                          vapour barrier on                                                                                                                                                                                                                                                                                                                                                                                                                                                                                                                                                                                                 door frame at head
                                                                                                                                                                                                                                                                                                                                                                                                                                Vapour barrier
                                                                                                                                                                                                                                                                                                                                                                                                                                                                                                                                                                                                                                                                                                                                                                                                                                                                                                                                                                                                                                                                                                                     Insulation to provide U=<0.25
                                        1491 NTS




                                                                                                                                                                                                                                                                                                        Curved galvanised edge beam on
                                                                                                                                                                                                                                                                                                                                                                                                                                18mm Sterling board
                                                                                                                                                                                                                                                                                                                                                                                                                                102 x 50 battens                                                                                                                                                                                                                                                18mm sterlingboard decking on                                                                                                                                                                                                                                        Air curtain over door                                                                                                                                                                                                                                                                                                                        Door frame over shown
                                                                                                                                                                                                                                                                                                        curved timber fascia                                                                                                    11mm Sterling board
                                                                                                                                                                                                                                                                                                                                                                                                                                                                                                                                                                             Outer skin:
                                                                                                                                                                                                                                                                                                                                                            Drainage to be
                                                                                                                                                                                                                                                                                                                                                            determined                                                                                                                                                                                                                                                                                                                          timber joists on                                                                                                                                                                                                                                                     fixed through boarding                                                                                                                                                                                                                                                                                                                       dotted
                                                                                                                                                                                                                                                                                                                                                                                                                                                                                                                                                                             Curved cladding as specified on
                                                                                                                                                                                                                                                                                                                                                                                                                                                                                                                                                                             50 x 25 vertical treated sw counter battens on                                                                     glulam beams                                                                                                                                                                                                                                                         onto timber bearers                                                                                                                            External boarding to soffits and
                                                                                                                                                                                                                                                                                                                                                                                                                                                                                                                                                                                                                                                                                                                                                                                                                                                                                                                                                                                                                                                                                                                                                                                                                                                                                                                  Fordingbridge curved angle




                                                                                                                                                                                                                                                                                                                                                                                                                                                                                                                                                                                                                                                                                                                                                                                                                                                                                                                                                                                                                      120 130
                                                                                                                                                                                                                                                                       Curved timber cladding rails
                                                                                                                                                                                                                                                                                                                                                                                                                                                                                                                                                                             breathable sarking felt on                                                                                                                                                                                                                                                                                                                                                                                                                                                                                                             reveals to line up with outside
                                                                                                                                                                                                                                                                                                                                       50




                                                                                                                                                                                                                                                                       between window posts
                                                               1205




                                                                                                                                                                                                                                                                                                                                                                                                                                                                          10
                                                                                                                                                                                                                                                                                                                                                                                                                                          15 air gap




                                                                                                                                        Circular timber casing to metal post                                                                                                                                                                                                                                                                                                                                                                                                                                                                                                                                                                                                                                                                                                                                                                                                                                                                                                                                                                                                                                                                                                                                      covered with floor mat
                                                                                                                                                                                                                                                                                                                                                                                                                                                                                                                                                                             50 x 50 vertical sw battens fixed to                                                                                                                                                                                                                                                                                                                                                                                                                                                                                                   face of window bead
                                                                                                                                                                                                                                                                                                                                                                                                                                                                                                                  360 glulam




                                                                                                                                                                                                                                                                                                                                                     T & G boarding to soffit of external roof


                                                                                                                                                                                                76.265                                                                                                                                               Curved galvanised infil panel between
                                                                                                                                                                                                                                                                                                                                                                                                                                                                                                                                                                             100 deep curved sheeting rails @ 1000 c/cs
                                                                                                                                                                                                                                       5 tolerance




                                                                                  External soffit level
                                                                                                                                                                                  76.225                                                                                 Detail as right                                                             glulam beams. 15mm air gap at top edge                                                                                                                                             76.225
                                                                                                                                                                                                                                                                                                                                                                                                                                                                                                                                                                                                                                                                                                                                                                                                                                                                                                                                                                                                                                                                                                                                                                                                                                                                                                                  Back corner of door frame set
                                                                                                                                                                                                         40




                                                                                                                                                                                                                                                                                                                                                                                                                                                                                                                                                                             Curved flashing to top of boards                                                                                                                                                                                                                                                                                                                                                                                                                                                                                                                                                                                                                                                                                                     on back corner of steel post
                                                                                                                                                                                                                                                                                                                                                                                                                                                                                                                  steel




                                                                                                                                                                                                                                                                                                                                                                                                                                                                                                                                                                                                                                                                                                                                                                                                                                                                                                                                                                                                                                                                                                                                                                                                                                                                                                750
                                                                                                                                                                                                                                                                                                                                                                                                                                                                                                                                        75.910
                                                                                                                                                                                                                                                                                                                                                     Silicone pointing to window head
                                                                                                                                                                                                                                                                                                                                                                                                                                                                                                                                                                             Insulation:
                                                                                                                                                                                                                                                                                                                                                                                                                                                                                                                  25
                                                   10mm gap




                                                                                                                                                                                                                                                                        External timber boarding returned at
                                                                                                                                                                                                                                                                        window reveal. Outside of boarding to
                                                                                                                                                                                                                                                                                                                                                                                                 Soffit board shaped to curve
                                                                                                                                                                                                                                                                                                                                                                                                 (width varies)
                                                                                                                                                                                                                                                                                                                                                                                                                                           12mm gap
                                                                                                                                                                                                                                                                                                                                                                                                                                                                                       Depth of steel by Fordingbridge                                                       100 rockwool quilt between cladding rails




                                                                                                                                                                                                                                                                                                                                                                                                                                                                                                                                                                                                                                                                                                                                                                                                                                                                                                                                                                                                                                                                                                                                                                                                                             55
                                                                                                                                                                                                                                                                        line up with outside face of glazing bead.
                                                                                                                                                                                                                                                                        Shape at base to cill
                                                                                                                                                                                                                                                                                                                                                                                                                                                                                                                                                                             Jablite board between 50 x 50 vertical sw battens
                                                                                                                                                                                                                                                                                                                                                                                                                                                                                                                                                                                                                                                            4241




                                                                                                                                                                                                                                                                        Timber double glazed windows

                                                                                                                                        125x25 vertical sw boarding                                                                                                     Internal board to return
                    4241 NTS




                                                                                                                                                                                                                                                                        at window reveal
                                                                                                                                        Treated sw battens (provisional 50x32)
                                                                                                                                        screw fixed                                                                                                                                                                                                                                                                                                                                                                                                                          Outer skin:
                                                                                                                                        Treated sw counterbattens (provisional 50 x 50)
                                                                                                                                        screw fixed                                                                                                                                                                                                                                                                                                                                                                                                                          Vertical timber boards 25mm thick on                                                                                              Sterling board internal finish                                                                                                                                                                                                                                                                                                                                                                       10mm drainage gap
                                                                                                                                                                                                              Window head to
                                                                                                                                                                                                                                                                                                                                                                                                                                                                                                                  1200
                                                               1210




                                                                                                                                        Breathable sarking felt

                                                                                                                                                                                                              E32-01/3
                                                                                                                                                                                                                                                                                                                                Timber soffit above shown                                                                                                                                                                                                                    50 x 32 horizontal treated sw battens on                                                                                                                                                                                                                                                                                                                                                                                                                                                                                               between sarking felt
                                                                                                                                        Insulation

                                                                                                                                        Vapour barrier with sealed taped joints
                                                                                                                                                                                                                                                                                                                                Integrated timber cill
                                                                                                                                                                                                                                                                                                                                                                                                                                                                                                                                                                             50 x 50 vertical treated sw counter battens on                                                                                                                                                                                                                                                                                                                                                                                                                                                                                                                                                                                                                                                                                       Aluminium threshold fixed to
                                                                                                                                                                                                                                                                                                                                External timber boarding returned at                                                                                                                                                                                                                                                                                                                                                                                                                                                                                                                                                                                                                                                                                                                                                and timber soffit                                                                                                                                                                             perimeter angle




                                                                                                                                                                                                                                                                                                                                                                                                                                                                                                                                                                                                                                                                                                                                                                                                                                                                                                                                                                                                                      2790 structural
                                                                                                                                                                                                                                                                                                                                                                                                                                                                                             2400 x 1200 boards laid
                                                                                                                                        75 x 25 timber battens                                                                                                                                                                  window reveal. Outside of boarding to
                                                                                                                                                                                                                                                                                                                                line up with outside face of glazing bead.
                                                                                                                                                                                                                                                                                                                                                                                                                                                                                             landscape                                                                       breathable sarking felt on
                                                                                                                                        9mm Sterling Board to take curve of wall,                                                                                                                                               Shape at base to cill
                                                                                                                                                                                                                 All window / door posts to be
                                                                                                                                                                                                                                                                                                                                                                                                                                                                                                                                                                             100 x 50 vertical sw battens
                                                                                                                                                                                                                                                                                                                                                                                                                                                                                                                                                                                                                                                                                                                                                                                                                                                                                                                                                                                                                                                                                                                                  Plan @ entrance                                                                                                                                                                 Edge of perimeter angle
                                                                                                                                        fixed with cups & screws in pattern,                                     INSULATED with injected foam
                                                                                                                                        finish to match boards.                                                                                                                                                                 75 x 50 vertical counter batten set
                                                                                                                                                                                                                                                                                                                                to take external boarding
                                                                                                                                                                                                                                                                                                                                                                                                                                                                                                                                                                                                                                                 2750




                                                                                                                                                                                                                                                                                                                                                                                                                                                                                                                                                                                                                                                                                 2445 opening




                                                                                                                                                                                                                  Silicone bead to perimeter of boarding
                                                                                                                                                                                                                  where in contact with window frame.
                                        2750




                                                                                                                                                                                                                                                                                                                                                                                                                                                                                                                                                 2750




                                                                                                                                                                                                                  Colour : best match for stain colour
                                                                                                                                                                                                                                                                                                                                                                                                                                                                                                                                                                             Inner skin:
                                                                                                                                                                                                                                                                                                                                                                                                                                                                                                                                                                             9mm Sterlingboards on vapour barrier
                                                    10mm gap




                                                                                                                                                                                                                                                                                                                                                                                                                                                                                                                                                                             on 25 x 75 sw battens
                                                                                         Sizes & spacings of treated
                                                                                         sw battens by structural
                                                                                         engineer
                                                                                                                                                                                                                                                                                                                                Silicone pointing

                                                                                                                                                                                                                                                                                                                                Internal board to return
                                                                                                                                                                                                                                                                                                                                                                                                                                                                                                                                                                                                                                                                                                                                                                                                                                                                                                                                                                                                                                                                                                                                                                                                                                            Treated timber retaining wall
                                                                                                                                                                                                                                      Width of windows: 1200; 915
                                                                                                                                                                                                                                                                                                                                at window reveal
                                                                                                                                                                                                                                                                             n posts
                                                                                                                                                                                                                                                                   915 betwee
                                                                                                                                                                                                                                                         1200 or                                                                Soffit over dotted



                                                                                                                                                                                                                            Window detail E32-01/1
                                                               1205




                                                                                                                                                                                                                                                                                                      All 100x100 RHS post to be INSULATED
                                                                                                                                                                                                                                                                                                      with injected foam                                                                                                                                                                                               Floor construction:
                                                                                                                                                                                                                                                                                                                                                                                                                                                                                                                       75mm floor finish (varies in type) on
                                                                                                                                                                                                                                                                                                      125x25 vertical sw boarding                                                                                                                                                                                      150 conc slab (by engineer)
      Curved timber sole plate
      & cladding rails
                                                                                                                                                                                                                                                                                                      Treated sw battens (provisional 50x32)
                                                                                                                                                                                                                                                                                                      screw fixed
                                                                                                                                                                                                                                                                                                                                                                                                                                                                                                                       Insulation
                                                                                                                                                                                                                                                                                                                                                                                                                                                                                                                       Damp proof membrane                                                                                                              200 x 100 curved steel                                                                                                                                                                                                                                                                                                                                                                                                                                                                      Landing 1 in 60 fall
                                                                                                                                                                                                                                                                                                                                                                                     125 x 25 timber external vertical boarding                                                                                         Sand blinding
                                                                                                                                                                                                                                                                                                      Treated 50 x 50 sw counterbattens
                                                                                                                                                                                                                                                                                                      screw fixed                                                                    Timber double glazed windows
                                                                                                                                                                                                                                                                                                                                                                                                                                                                                                                       DOT type 1                                                                                                                       angle by Fordingbridge
                                                                                                                                                                                                                                                                                                      Breathable sarking felt
                                                                                                                                                                                                                                                                                                                                                                                                                                                                               5 tolerance




                                                                                                                                                                                                                                                                                                                                                                                     Boarding to window reveal trimmed to
                                                                                                                                                                                                                                                                                                                                                                                     window cill and sealed with polysulphide
                                                                                                                                                                                                                                                                                                      Insulation                                                                     strip
                               73.475
                                                                                                                                                                                                                                                                                                      Vapour barrier with sealed taped joints
                                                                                                                                                                                                                                                                                                                                                                      73.475
                                                                                                                                                                                                                                                                                                                                                                                     Timber decking by Dobbies
                                                                                                                                                                                                                                                                                                                                                                                                                                                                                                                               73.475
                                                                                                                                                                                                                                                                                                                                                                                                                                                                                                                                                                                                                                                                                                                                                               73.475
                                                               25




                                                                                                                                                                                                                                                                                                                                                                                                                                                                                                                                                                                                                                            25




                                                                                                                                                                                                                                                                                                      9mm Sterling Board to take curve of wall,
75




                                                                                                                                                                                                                                                                                                                                                                                                                                                                                                                                                 75




                                                                                                                                                                                                                                                                                                                                                                                                                                                                                                                                                               400 overall




                                                                                                                                                                                                                                                                                                      fixed with cups & screws in pattern,
                                                                          10                                                                                                                                                                                                                          finish to match boards.
        Curved 200 x 100 galvanised                                                                                                                                                                                                                                                                                                                                                  Damp proof membrane behind steel
150




                                                                                                                                                                                                                                                                                                                                                                                                                                                                                                                                                 150




        angle
                                                                                                                                                                                                                                                                                                                                                                             400




        Dpm to edge of concrete                                                                                                                                                                                                                                                                                                                                                      Coursing block to act as shutter
                                                                                                                                                                                                                                                                                                                                                                                                                                                                                                                                                                                                                                                            750




                                                                                                    Decking support provisional                                                                                                                                                                                                                                                                                         Decking support provisional
                                                                                                                                                                                                                                                                                                                                                                                                                                                                                                                                                                                                                Decking provisional
                                                                                                                                                                                                                                                                                                                                                                                                                                                                                                                                                                                                                                      150
                                                                                            150




                                                                                                                                                                                                                                                                                                                                                                                                                          150
525




                                                                                                                                                                                                                                                                                                                                                                                                                                                                                                                                                 450




                                                                                                                                                                                                                                                                                                                                                                                                                                    72.925 provisional
                                                                                                                                                                                                                                                                                                                                                                                                                                                                                                                                                                                                                      72.925
                                                                                                                                                                                                                          10mm shadow gap between boards.
                                                                                                                                                                                                                          Face of mullion painted black
       72.725                                                                                                                                                                                                                                                                                                                                                                                                                                                                                                                  72.725
                                                                                                                                                                                                                                                                              Vertical softwood mullions                                                                                                                                                                                                                                                                                                                                                                                          Floor: (To Wedgewoods specification)
                                                                                              For description see detail E32-01/4                                                                                                                                             100mm deep, width to suit span
                                                                                                                                                                                                                                                                                                                                                                                                                                                                                                                                                                                                                                                                                                                                                                                                                                                             Approximate existing ground level
                                                                                                                                                                                                                                                                                                                                                                                   Wall section E32-01/4                                               Foundations by structural engineer                                                                                                                                                                                                         175 powerfloated concrete floor on
                                                                                                    Wall section E32-01/3
                                                                                                                                                                                                                                                                                                                                                                                                                                                                                                                                                                                                                                                                                                  Kingspan insulation board on
                                                                                                                                                                                                                          Wall detail E32-01/2                                                                                                                                                                                                                                                                                                                                                                                                                                                    dpm on sand blinding on 150 mintype 1
                                                                                                                                                                                                                                                                                                                                                                                                                                                                                                                                                                                                                                                                                                                                                                                                                                                                                                                                                                                                                                                                                                                                                                                                                                                                                                                                   Ramp




                         Atherstone Visitors Centre - Concept and construction details
                                                                                                                                                                                                                                                                                                                                                                                                                                                                                                                                                                                                                                                                                                                                                                                                                                                                                                                                                                                                                                                                                                                                                                                                                                                                                                                                                                   DESIGN ZERO DRIVE
Atherstone Visitors Centre - Site images
                                           DESIGN ZERO DRIVE
Bicester Avenue
         Award-winning flagship for Wyevale group (formerly Blooms)

Attention to detail and application of sustainability on a large commercial scheme

FSC Timber cladding, low energy lighting, under-floor heating, porous surfacing,
                   rainwater harvesting and SUDS scheme

     Locally sourced materials and waste management procedures adopted
                         throughout the build process



                                       Winner                        Winner
                                Store Design of the Year   Retail Destination of the Year
Bicester Avenue - Mall entrance
                                  DESIGN ZERO DRIVE
Wyevale - Main retail atrium
                               DESIGN ZERO DRIVE
Marwell Zoo Kangaroo and Emu house
         All material found/reclaimed on site

           As zero carbon as you can get?
Rooflights                                                    Timber Cladding       Profile metal sheet roof cladding   Laminated glazing   Render   Proposed aviary




     1400mm staggered        1800mm staggered
     timber post fence for   timber post fence for                     Timber sections                          Profile metal sheet
     emu enclosure           kangaroo enclosure      Timber Cladding   in mesh frame     Rooflights              roof cladding             Render




Marwell Zoo - Kangaroo and Emu House
                                                                                                                                                                                                       DESIGN ZERO DRIVE
DESIGN ZERO DRIVE




Thank you... any questions?

                               Sustainable
                               Construction
                               Network

"Issues and Challenges Sourcing Sustainable Products and Technologies" - Gary Wilburn, HPW Architects

  • 1.
    DESIGN ZERO DRIVE Issues and challenges: sourcing sustainable products & technologies Gary Wilburn Sustainable Construction Network
  • 2.
    Issues and challenges I It is not only building skills and alternative solutions that are the challenge I Avoiding Greenwash!: can only be understood with knowledge I Human behavior, habits and methodologies need to change, this need not cost money but takes commitment I Embrace the principles of continuous improvement, do not accept convention I Involution: combining innovation and evolution I Proving low energy building performance: Building physics and dynamic modeling
  • 3.
    There are opportunitiesin ALL sectors and not always new-build Housing retro-fit challenge (Source BERR 2008) I 80%+ of housing stock in the UK in 2050 already exists I 500,000 houses to be transformed per year at approx £20,000 - 30,000 house for 40 years I 200,000 construction jobs required to support the task I The largest ever UK Engineering Project
  • 4.
    Sustainable communities: howmany opportunities do we want? Community-scale wind turbine Solar shading Green roofing Fuel-cell bus Waste-to-energy plant Maintained ‘eco-system’ Combined heat and power plant Refurbishment existing dwellings Rainwater harvesting District heating network Smart metering Sustainable drainage system Car re-charging High-speed broadband Ground-source heating Zero-carbon dwellings Community recycling There are examples around the world (even in the UK), get out and see them!
  • 5.
  • 6.
    Building Materials Showroom Austria DESIGN ZERO DRIVE
  • 7.
    Building Materials Showroom Austria DESIGN ZERO DRIVE
  • 8.
    Case studies: Designingto a higher level
  • 9.
    Passivhaus School Austria DESIGN ZERO DRIVE
  • 10.
    Hammarby ‘cradle tocradle’ strategy
  • 11.
    Hammarby Sjöstad Stockholm DESIGN ZERO DRIVE
  • 12.
    Hammarby Sjöstad Stockholm DESIGN ZERO DRIVE
  • 13.
    Hammarby Sjöstad Stockholm DESIGN ZERO DRIVE
  • 14.
    Hammarby Sjöstad Stockholm DESIGN ZERO DRIVE
  • 15.
    Hammarby Sjöstad Stockholm DESIGN ZERO DRIVE
  • 16.
    Passivhaus Construction I Use of bioregionally sourced materials I Manufactured, high quality solution I Off-site modular format I Maximising insulation, minimising energy use I Known technology and construction details
  • 17.
    Ludesch Community Building Austria DESIGN ZERO DRIVE
  • 18.
    Wolfort Housing Austria DESIGN ZERO DRIVE
  • 19.
    Paultons Park New lowcarbon attraction building Wildflower roof Naturally ventilated indoor play area
  • 20.
    Paultons Park -Indoor play area DESIGN ZERO DRIVE
  • 21.
    Equal 1800 1800 1800 Equal 900 1800 1800 900 Equal 1800 1800 1800 Equal f oo dr rve cu c/l window c/l window c/l window cu rv ed be am of ro mezzanine floor WM5 WM6 WM7 ht aig str 0 200 20 Grass & wildflower turf eam on membrane 16 = boards Boards @ 125 ccs 16 = boards Boards @ 125 ccs ed b curv Structural support Shallow profile roof cladding panels Structural support if required if required Gutter profile Gutter profile Kingspan Topspan composite panels Grass & wildflower turf PPC pressed metal profile WG5 Structural support on membrane WG6 flashing to conceal gutter @ each gridline & support beam (7.1m) Shallow profile roof cladding panels 2575 2575 PPC pressed metal profile flashing to conceal gutter wall thickness Rwp & support beam Kingspan Topspan composite panels 2100 2100 Steel column 25 25 circa 900 Timber panels central on window opening Timber panels central on window opening Section through Section through Rwp Steel column south facing eaves north facing eaves 15.66 (Wall construction not shown for clarity) (Wall construction not shown for clarity) NORTH WEST ELEVATION WEST ELEVATION 15.51 15.40 15.85 16 .00 B&K B&K B&K column column column B&K column 15.73 15 .91 15.55 15.53 .89 15 B&K column B&K column 15.74 15.63 15.59 15.54 B&K column 15.67 15 .81 15 .79 B&K column B&K 15.51 column 15.63 15.80 3 .4 15.60 15 .4 2 15 15 Paultons Park - Technical specifications 15.71 .72 15 .71 15.52 7 .3 DESIGN ZERO DRIVE 15
  • 22.
    Paultons Park -Current site images DESIGN ZERO DRIVE
  • 23.
    Visitor Centre Taking fulladvantage of a 54 acre site, HPW created the concept and developed the Visitor Centre to act as a hub for access to: - 26 acre Country park - 6 permanent mazes - Countryside interpretation exhibition - Retail offer A purpose built 4,500 sq.ft. timber framed and clad building. In its countryside setting the centre nestles beneath established trees and oversails two lakes to form a gateway to the visitor attractions and complementary retail operations.
  • 24.
    Wall sectio E32-01/4 n l ua eq eq ua l 60 Steel beam over (by structural engineer) 0 W19 W18 l to provide top restraint to timber posts ua eq eq ua l W17 00 12 DX3 W20 Type 3 window ar 1200 x 2450 zone 4 cle Located centrally 00 aav & sp 12 12 between glulam beams 00 cle ar staff room DX4 ss sink in 1500 base gully wp & aav 490 70 See studio arc dwg 2650 4900 110-BA01C for setting 70 out 100 1 70 1150 .0 70 2999.99 70 W16 70 Building section .0 1200 E22-01/1 1 W21 office zone 5 900 D6 Type 3 window n 1200 x 2450 ctio Located centrally g se ildin 01/2 750 between glulam beams 100 Bu 2- 355 ic E2 wp & aav D9 zone 3 D8 1294 Bulkhead over 900 125 @ 2100 zone 1 10 equa 00 clea equa l 75 42 r l 50 1200 Bulkhead over 70 eq W6 1000 clear @ 2100 W15 ua l7 DX2 0 500 70 Wal l 100 Bulkhead over E32 sect @ 2100 700 -01/ ion 50 W5 Suspended ceiling over 3 eq eq ua ua l l Beam over 70 @ low level 15 00 Window detail Line of wall over 70 clea E32-01/1 DX5 Bulkhead over r @ 2445 zone 2 mat eq l equa C ua 12 fan Retail 00 l cle l equa ar W14 W4 n ctio 21 80 g se ildin 01/2 45 Bu 14 2- E2 1440 3 0 @ 30 wc 75 100 0 c/ classroom 70 wc cs 900 70 = D7 00 22 svp 115 W7 50 15 900 corridor 1230 Bulkhead over W13 Cubicles to detail wc @ 2100 10 D1 00 900 115 female toilets lobby 1 55 70 1030 D3 D5 radial partition D4 900 D2 1030 Wall detail 250 1000 E32-01/2 70 hd lobby 2 W12 r clea 70 & & top 1500 clear vanit whbs top 50 vanit whbs 12 W3 ory ory hd 3 No 3 No 2 No 1240 2218 W E3 2 urinals male toilets all -0 W8 disabled se 1/4 Cubicle cti DX1 hd toilet W11 on to detail 70 790 gully gully 495 70 re W1 W2 300 70 aav & sp W10 W9 1825 70 1835 Building section E22-01/1 1475 ring beam dotted to illustrate door frame 1100 bottom panel to reception building windows to be obscure glazed to hpw specification Curved edge trim to roof to detail Roof finish to design Roof membrane 18mm Sterling board Curved galvanised edge beam on Roof finish build up to detail 102 x 50 battens curved timber fascia 11mm Sterling board Drainage to be determined 220 Glulam beams chamferred 50 10 Curved flashing to 300 glulam 300 glulam top of cladding Exposed radial glulam beams 50 Glulam beam tapered at perimeter 250 Curved galvanised edge beam Edge steel by Fordingbridge. Insulation & ceiling boards continues 1650 Circular galvanised collar Painted finish General roof make up: Internal boarding above all 1750 doors Vertical timber boarding above door to u/side of Internal boarding above door Roof finish build up to detail Green roof on waterproof membrane on Umbrella support by Fordingbridge set out as plan (right) to cover door head Insulation to both sides of ring beam 235 insulation on glulam beams to be set in by 55mm to cover 300 vapour barrier on door frame at head Vapour barrier Insulation to provide U=<0.25 1491 NTS Curved galvanised edge beam on 18mm Sterling board 102 x 50 battens 18mm sterlingboard decking on Air curtain over door Door frame over shown curved timber fascia 11mm Sterling board Outer skin: Drainage to be determined timber joists on fixed through boarding dotted Curved cladding as specified on 50 x 25 vertical treated sw counter battens on glulam beams onto timber bearers External boarding to soffits and Fordingbridge curved angle 120 130 Curved timber cladding rails breathable sarking felt on reveals to line up with outside 50 between window posts 1205 10 15 air gap Circular timber casing to metal post covered with floor mat 50 x 50 vertical sw battens fixed to face of window bead 360 glulam T & G boarding to soffit of external roof 76.265 Curved galvanised infil panel between 100 deep curved sheeting rails @ 1000 c/cs 5 tolerance External soffit level 76.225 Detail as right glulam beams. 15mm air gap at top edge 76.225 Back corner of door frame set 40 Curved flashing to top of boards on back corner of steel post steel 750 75.910 Silicone pointing to window head Insulation: 25 10mm gap External timber boarding returned at window reveal. Outside of boarding to Soffit board shaped to curve (width varies) 12mm gap Depth of steel by Fordingbridge 100 rockwool quilt between cladding rails 55 line up with outside face of glazing bead. Shape at base to cill Jablite board between 50 x 50 vertical sw battens 4241 Timber double glazed windows 125x25 vertical sw boarding Internal board to return 4241 NTS at window reveal Treated sw battens (provisional 50x32) screw fixed Outer skin: Treated sw counterbattens (provisional 50 x 50) screw fixed Vertical timber boards 25mm thick on Sterling board internal finish 10mm drainage gap Window head to 1200 1210 Breathable sarking felt E32-01/3 Timber soffit above shown 50 x 32 horizontal treated sw battens on between sarking felt Insulation Vapour barrier with sealed taped joints Integrated timber cill 50 x 50 vertical treated sw counter battens on Aluminium threshold fixed to External timber boarding returned at and timber soffit perimeter angle 2790 structural 2400 x 1200 boards laid 75 x 25 timber battens window reveal. Outside of boarding to line up with outside face of glazing bead. landscape breathable sarking felt on 9mm Sterling Board to take curve of wall, Shape at base to cill All window / door posts to be 100 x 50 vertical sw battens Plan @ entrance Edge of perimeter angle fixed with cups & screws in pattern, INSULATED with injected foam finish to match boards. 75 x 50 vertical counter batten set to take external boarding 2750 2445 opening Silicone bead to perimeter of boarding where in contact with window frame. 2750 2750 Colour : best match for stain colour Inner skin: 9mm Sterlingboards on vapour barrier 10mm gap on 25 x 75 sw battens Sizes & spacings of treated sw battens by structural engineer Silicone pointing Internal board to return Treated timber retaining wall Width of windows: 1200; 915 at window reveal n posts 915 betwee 1200 or Soffit over dotted Window detail E32-01/1 1205 All 100x100 RHS post to be INSULATED with injected foam Floor construction: 75mm floor finish (varies in type) on 125x25 vertical sw boarding 150 conc slab (by engineer) Curved timber sole plate & cladding rails Treated sw battens (provisional 50x32) screw fixed Insulation Damp proof membrane 200 x 100 curved steel Landing 1 in 60 fall 125 x 25 timber external vertical boarding Sand blinding Treated 50 x 50 sw counterbattens screw fixed Timber double glazed windows DOT type 1 angle by Fordingbridge Breathable sarking felt 5 tolerance Boarding to window reveal trimmed to window cill and sealed with polysulphide Insulation strip 73.475 Vapour barrier with sealed taped joints 73.475 Timber decking by Dobbies 73.475 73.475 25 25 9mm Sterling Board to take curve of wall, 75 75 400 overall fixed with cups & screws in pattern, 10 finish to match boards. Curved 200 x 100 galvanised Damp proof membrane behind steel 150 150 angle 400 Dpm to edge of concrete Coursing block to act as shutter 750 Decking support provisional Decking support provisional Decking provisional 150 150 150 525 450 72.925 provisional 72.925 10mm shadow gap between boards. Face of mullion painted black 72.725 72.725 Vertical softwood mullions Floor: (To Wedgewoods specification) For description see detail E32-01/4 100mm deep, width to suit span Approximate existing ground level Wall section E32-01/4 Foundations by structural engineer 175 powerfloated concrete floor on Wall section E32-01/3 Kingspan insulation board on Wall detail E32-01/2 dpm on sand blinding on 150 mintype 1 Ramp Atherstone Visitors Centre - Concept and construction details DESIGN ZERO DRIVE
  • 25.
    Atherstone Visitors Centre- Site images DESIGN ZERO DRIVE
  • 26.
    Bicester Avenue Award-winning flagship for Wyevale group (formerly Blooms) Attention to detail and application of sustainability on a large commercial scheme FSC Timber cladding, low energy lighting, under-floor heating, porous surfacing, rainwater harvesting and SUDS scheme Locally sourced materials and waste management procedures adopted throughout the build process Winner Winner Store Design of the Year Retail Destination of the Year
  • 27.
    Bicester Avenue -Mall entrance DESIGN ZERO DRIVE
  • 28.
    Wyevale - Mainretail atrium DESIGN ZERO DRIVE
  • 29.
    Marwell Zoo Kangarooand Emu house All material found/reclaimed on site As zero carbon as you can get?
  • 30.
    Rooflights Timber Cladding Profile metal sheet roof cladding Laminated glazing Render Proposed aviary 1400mm staggered 1800mm staggered timber post fence for timber post fence for Timber sections Profile metal sheet emu enclosure kangaroo enclosure Timber Cladding in mesh frame Rooflights roof cladding Render Marwell Zoo - Kangaroo and Emu House DESIGN ZERO DRIVE
  • 31.
    DESIGN ZERO DRIVE Thankyou... any questions? Sustainable Construction Network