Μονή Τιμίου Σταυρού στην ΑνώγυραMACOM02
Μεταπτυχιακό Πρόγραμμα:
Συντήρηση και Αποκατάσταση
Ιστορικών Κτιρίων και Μνημείων
Διδάσκοντες:
Π.Τουλιάτος
Μ.Πελεκάνος
Ομάδα Σπουδαστών:
Ιγνατίου Ειρήνη
Γεωργίου Γεωργία
Σπανού Γ. Βασιλική
Κωνσταντή Άντρια
Εισαγωγή_
Ορισμός Μοναστηριακού συγκροτήματος:
Τα Βυζαντινά Μοναστήρια έχουν πολλές ομοιότητες με μικρούς οικισμούς ενταγμένους σε ένα μεγαλύτερο
σύνολο. Ήταν αυτόνομα, με μια οργανωμένη και αυστηρή διάταξη, και με γενικό περίγραμμα συνήθως
τετράγωνο, ορθογώνιο, τραπεζοειδές ή και τελείως ακανόνιστο, πάντοτε όμως κλειστό από όλες τους τις
πλευρές.1
Η Τυπολογία του Γενικού Συγκροτήματος:
Κατά την πρώτη περίοδο του Μοναχισμού, τα κτιριακά συγκροτήματα υλοποιούνταν με προορισμό την
στέγαση νέων ιδρυόμενων μοναστικών κοινοτήτων, οι οποίες ήταν ελεύθερα διατεταγμένα σύνολα
κτισμάτων. 2 Ένα καλό παράδειγμα, που τεκμηριώνει την πιο πάνω άποψη είναι το μοναστήρι του Αγίου
Επιφανίου στις Θήβες της Αιγύπτου, του οποίου η κάτοψη φαίνεται στα αριστερά.3 Το φαινόμενο αυτό ήταν
λογικό, γιατί σε αυτή την περίοδο, δεν υπήρχαν άλλα παλαιότερα αρχιτεκτονικά μοναστηριακά
οικοδομήματα. Αυτό είχε ως αποτέλεσμα, την μη αντίληψη των ιδιαζόντων προβλημάτων που θα
προέκυπταν από την λειτουργία του κοινοβίου.4
Με την πάροδο του χρόνου, και παράλληλα με την εξέλιξη, την οργάνωση και την ανάπτυξη του
μοναχισμού, και βάσει των αναγκών που προέκυπταν, τα μοναστηριακά συγκροτήματα εξελίχθηκαν και
διαμορφώθηκαν ανάλογα, αποκτώντας πλέον μια πιο ορθολογική τυπολογία. Συγκεκριμένα, έγινε
κατανοητή η ανάγκη ενός ενιαίου κτιριολογικού συνόλου για την ένταξη των μοναστηριακών κτισμάτων,
σύμφωνα πάντα με ορισμένους κανόνες, με αποτέλεσμα μια οριστική τυπολογία. Η τυπολογία αυτή, είναι
πλέον χαρακτηριστική για την Βυζαντινή μοναστηριακή αρχιτεκτονική και κυρίως αυτή που αναπτύχθηκε
μέσα στα όρια του ελληνικού χώρου.
1
1. Α. Ορλάνδος, Μοναστηριακή Αρχιτεκτονική, Έκδοση Β΄, Αθήναι 1958, 7-16
2. Α. Ορλάνδος, Μοναστηριακή Αρχιτεκτονική, Έκδοση Β΄, Αθήναι 1958, 13
3. Βλ. H. Winlock κσι W. Crum, the Monastery of Epiphanius at Thebew, New York 1926, 29-39
4. Κ. ΣΠ. Παπαϊωάννου, Διδακτορική Διατριβή με θέμα: Τα ελληνικά μοναστήρια σαν αρχιτεκτονικές συνθέσεις – Διερεύνηση των διατάξεων τους, Αθήνα 1977, 13
5. Α.Ορλάνδος, Μοναστηριακή Αρχιτεκτονική, Έκδοση Β΄, Αθήναι 1958, 11
Μοναστήρι Αγ.Επιφανίου, Θήβες, Αίγυπτος:
_ Γενικά
MACOM02_Συντήρηση και Αποκατάσταση Ιστορικών Κτιρίων και Μνημείων
Τμήματα Μοναστηριακού Συγκροτήματος:
Το Καθολικό:
Αποτελεί το σημαντικότερο κτίσμα του μοναστηριακού συγκροτήματος, αφού έχει τη μεγαλύτερη πνευματική
αξία από όλο το σύνολο του Μοναστηριού. Συνήθως, κατά τη Βυζαντινή περίοδο, επικρατούσε
συγκεκριμένος αρχιτεκτονικός τύπος κατασκευής του Καθολικού, ο Βυζαντινός τύπος.
Αυτό διακρίνεται και ανάμεσα στα παλιότερα από τα σωζόμενα Καθολικά, όχι μόνο των Μοναστηριών, όπου
κυριαρχεί ο τύπος του σταυροειδούς εγγεγραμμένου ναού με τρούλο.7 Επίσης, ο τύπος αυτός συναντάται
και στην παραλλαγή του τρίκογχου τύπου, ο οποίος καθιερώθηκε στα αγιορείτικα πρότυπα λόγω των
ειδικών λειτουργικών αναγκών των Μοναστηριών. Το κύριο χαρακτηριστικό του σταυροειδούς ναού είναι οι
σχετικά μικρές του διαστάσεις, που επιτρέπουν στον ναό να εγγράφεται άνετα μέσα στην μοναστηριακή
αυλή. Το εξωτερικό γνώρισμα του βρίσκεται στους όγκους του, οι οποίοι χαρακτηρίζονται από μια έντονη
πλαστικότητα και στον σχηματισμό του σταυρού στην ανωδομή του, χαρακτηριστικό που τον ξεχωρίζει από
τα περιβάλλοντα κτίσματα. Επίσης, ένα άλλο έντονο χαρακτηριστικό γνώρισμα του είναι τα πολύ μικρά
ανοίγματα που βρίσκονται στον τρούλο αλλά και ακόμη ένα όμοιο τους στο ιερό.
Με την πιο πάνω περιγραφή των χαρακτηριστικών, ο τρίτος και τελευταίος ναός που δημιουργήθηκε στο
μνημείο ανήκει στον Βυζαντινό τύπο.
2
Εισαγωγή_ _ Γενικά
Προσομοίωμα Εκκλησίας Βυζαντινού τύπου:
Εκκλησία Τιμίου Σταυρού Ανώγυρας:
7. Για τον τύπο του σταυροειδούς ναού βλ. Γ.Α.Σωτηρίου, Χριστιανική και Βυζαντινή Αρχαιολογία, Αθήναι 1962, 412
MACOM02_Συντήρηση και Αποκατάσταση Ιστορικών Κτιρίων και Μνημείων
Τμήματα Μοναστηριακού Συγκροτήματος:
Οι Πτέρυγες (Κόρδες):
Στα οργανωμένα κοινόβια Μοναστήρια υπάρχει πάντα το κτίριο που φιλοξενεί την Τράπεζα, το Συνοδικό
και το Αρχονταρίκι, τα οποία εξυπηρετούν τις κύριες λειτουργίες της ζωής των μοναχών, αλλά και
κτίσματα που είναι προορισμένα για τις βασικές ή δευτερεύουσες λειτουργίες (Εστίες, Φωτανάματα,
Μαγκιπεία, Δοχεία, Νοσοκομεία, Πυλώνες, Στοά, Κλίμακες). Αυτά τα κτήρια είναι οι πτέρυγες
Οι πτέρυγες αποτελούνται από :
- Τα Κελλιά, οι κατοικίες των Μοναχών (ομοιόμορφα δωμάτια τοποθετημένα το ένα δίπλα στο άλλο). Η
κυκλοφορία μεταξύ τους επιτυγχάνεται με τις Στοές.
-Η Τράπεζα είναι ο χώρος όπου οι μοναχοί μαζεύονται για να συμφάγουν. Συνήθως την συναντάμε
απέναντι από τον νάρθηκα ή απέναντι από την κύρια είσοδο του Ναού. Έχει σχήμα επίμηκες ορθογώνιο
και σε αρκετές περιπτώσεις το μέγεθος της είναι πολύ μεγάλο. Κατά την περίοδο των Μεταβυζαντινών
χρόνων, η Τράπεζα έχει μια είσοδο στην στενή πλευρά της και άλλες στο μέσο της μακριάς πλευράς.
Συνήθως το ορθογώνιο αυτό σχήμα της τράπεζας καλύπτεται με απλό δώμα, με ξύλινη δίκλινη στέγη ή με
κυλινδρική καμάρα και πάντα σε ικανοποιητικό ύψος από το δάπεδο.
-Το Αρχονταρίκι, βρίσκεται κοντά στην είσοδο, και ήταν ο χώρος υποδοχής όπου γίνονταν τα πρώτα
«κεράσματα» των προσκυνητών, πριν τους δοθεί ο χώρος φιλοξενίας τους.
-Το Συνοδικόν είναι ο χώρος για την επίσημη υποδοχή ανώτατων, ιερωμένων κυρίως, προσώπων.
-Τα Μαγκιπεία, ήταν η Εστία και τα Αρτοκόπια, χώροι στους οποίους δηλαδή παρασκευαζόταν το φαγητό.
-Τα Φωτανάμματα, παρόμοια κτίσματα με την Εστία. Σε αυτούς τους χώρους μαζεύονταν οι μοναχοί για να
θερμαίνονται τον χειμώνα, είτε μετά την νυκτερινή λειτουργία είτε κατά τα διαλειμματα της. Έτσι τα
συναντάμε κυρίως σε ορεινά μέρη όπου επικρατεί γενικά ψυχρό κλίμα.
-Τα Δοχεία ήταν χώροι για την φύλαξη τιμαλφών ή άλλων αντικειμένων της Μονής.
-Το Νοσοκομείο
- Τα Λουτρά, τα οποία τα συναντάμε σε πολύ λίγες περιπτώσεις.
-Οι Φιάλες , εντάσσονται μέσα στην εσωτερική αυλή των Μονών και συχνά τοποθετούνται απέναντι από
την Πύλη του νάρθηκα του Καθολικού. Το κτίσμα αυτό προοριζόταν για τον αγιασμό των υδάτων, κυρίως
κατά την εορτή των Φώτων
-Η Κρήνη ήταν ο χώρος ο οποίος φυλασσόταν το νερό για πόσιμη χρήση ή χρήση νήψεως. Η κρήνη
βρισκόταν είτε εντός της αυλής του Μοναστηριού, είτε και έξω από τον περίβολο κοντά στην κύρια ή
δευτερεύουσα Πύλη εισόδου.
-Η Βιβλιοθήκη είναι ένας απαραίτητος χώρος για μια Μονή, αφού είναι γνωστό πως από τον Μεσαίωνα,
εντάχθηκαν στις Μονές τα κέντρα Πνευματικής Εργασίας. Η βιβλιοθήκη ήταν στο ίδιο κτίριο με τα Κελλιά
των μοναχών.
-Για την στέγαση των ζώων του μοναστηριού, διατάσσονταν συνήθως στο ισόγειο των Κελλιών, χώροι
ευρείς και επιμήκεις κοντά στην είσοδο της Μονής, και ονομάζονταν Βορδονάρεια.
3
Εισαγωγή_ _ Γενικά
Κάτοψη και τομή της Τράπεζας της Μ.Καισαριανής ,
Το ορθογώνιο αυτό σχήμα της Τράπεζας, καλύπτεται συνήθως
με απλό δώμα:
MACOM02_Συντήρηση και Αποκατάσταση Ιστορικών Κτιρίων και Μνημείων
Ιερά Μονή Τιμίου Σταυρού στην Ανώγυρα:
Η εκκλησία του Τιμίου Σταυρού βρίσκεται 2 χιλιόμετρα νότια του χωριού Ανώγυρα, στην επαρχία Πάφου, της
Κύπρου, στο χώρο ενός υστερορωμαϊκού πρωτοβυζαντινού συνοικισμού που αναφέρεται στις Πράξεις των
Αποστόλων σαν «χώρα Ανωγύρων» και ο οποίος ακόμα δεν έχει ερευνηθεί αρχαιολογικά. Η εκκλησία του
Σταυρού είναι κτισμένη στο ανατολικό τμήμα μιας τρίκλιτης Βασιλικής, ίσως παλαιοχριστιανικής. Στους μέσους
βυζαντινούς χρόνους κτίστηκε άλλη τρίκλιτη καμαροσχκέπαστη βασιλική, η οποία σώζεται σε αρκετό ύψος. Τον
14ο αιώνα κτίστηκε η σημερινή εκκλησία του Τιμίου Σταυρού, στον τύπο του μονόκλιτου ναού με τρούλο. Η
εκκλησία αυτή διασώζει ορισμένα λείψανα τοιχογραφιών που μπορούν να χρονολογηθούν το 15ο αιώνα και
μπορούν να ενταχθούν στην Παλαιολόγια ζωγραφική. Είναι πολύ πιθανόν να είναι έργα ζωγράφων που ήρθαν
από το Μυστρά μαζί με την Ελένη Παλαιολογίνα στην Κύπρο ή έργα ζωγράφων από την Κωνσταντινούπολη, που
κατέληξαν στην Κύπρο μετά την άλωση της Πόλης από τους Τούρκους (29 Μαΐου 1453).
Αρχικά ολόκληρη η εκκλησία ήταν διακοσμημένη με τοιχογραφίες. Σήμερα, όμως, μόνο τμήματα αυτών των
τοιχογραφιών σώζονται. Στην αψίδα διασώζονται τμήματα των συνλειτουργούντων ιεραρχών., ενώ στην
ανατολική καμάρα, στο Ιερό βήμα διασώζονται οι μόνες καλά διατηρημένες σκηνές από την Ανάληψη και την
Πεντηκοστή. Στα σφαιρικά τρίγωνα του τρούλου σώζονται επίσης, σε καλή κατάσταση τμήματα από τους
Ευαγγελιστές. Ελάχιστα λείψανα τοιχογραφιών από την Κοίμηση της Θεοτόκου και του Αρχαγγέλου Μιχαήλ
σώζονται στο τύμπανο του κεντρικού τυφλού τόξου και δυτικά της νότιας εισόδου. Επίσης σώζονται σκηνές από
το μαρτύριο του Αγίου Γεωργίου και στο βόρειο τοίχο σώζονται τα πορτραίτα ζεύγους δωρητών. Σε πολύ
μεταγενέστερους χρόνους γύρω από την εκκλησία, κυρίως στη νότια πλευρά, προστέθηκαν στα ερείπια των
εκκλησιών τοίχοι για τη δημιουργία δωματίων, για τις ανάγκες μοναχών που εγκαταστάθηκαν εκεί.
Κερύνεια
Λευκωσία Αμμόχωστος
Λάρνακα
Λεμεσός
Πάφος
Τοποθεσία Μνημείου στην Ανώγυρα:
4
Εισαγωγή_ _ Ιστορικά στοιχεία
MACOM02_Συντήρηση και Αποκατάσταση Ιστορικών Κτιρίων και Μνημείων
Σε κάποια εποχή, πολύ μεταγενέστερα, όταν η βασιλική είχε σχεδόν καταστραφεί, προστέθηκαν γύρω από την
εκκλησία και κυρίως στη νότια πλευρά, τοίχοι, όπως προαναφέρθηκε (φωτ. αριστερά). Τα τόξα της βασιλικής
εντοιχίστηκαν και υποδιαιρέθηκαν τα κλίτη σε δωμάτια. Έτσι δημιουργήθηκαν δωμάτια-κελιά για τις ανάγκες των
μοναχών που εγκαταστάθηκαν εκεί. Η μετατροπή αυτή πρέπει να έγινε μετά την ανέγερση του ναού του Τιμίου
Σταυρού.
Μια γενική περιγραφή του ναού, δίνει ο Ανδρέας Στυλιανού στο βιβλίο «Ιστορία της Κύπρου». Γράφει σχετικά:
«Ο ναός είναι κτισμένος με αργολιθοδομή και με πελεκητούς πωρόλιθους στα περίθυρα και στις άκρες των ελαφρά
οξυκόρυφων καμάρων και των τόξων των αχηβάδων στους πλάγιους τοίχους . Ο κυκλικός τρούλος φέρει τέσσερα
ορθογώνια παράθυρα και στη βάση του, εσωτερικά, προεξέχει πελεκητός τρίβολος κοσμήτης. Στο εξωτερικό του
τυμπάνου σώζονται και εδώ προεξέχουσες πέτρινες υποδοχές για τον ιστό της σημασίας. Οι δυτικές επιδράσεις στο
ναό αυτό είναι περιορισμένες στο ελάχιστο. Διασώζει απομεινάρια τοιχογραφιών του τέλους του 15ου ή των αρχών
του 16ου αιώνα, που πρέπει να είναι και η χρονολογία της οικοδόμησης του ναού.»
Σύμφωνα με μαρτυρίες, ο επίσκοπος Πάφου Πανάρετος ανακαίνισε τη μονή του Τιμίου Σταυρού το 1773.
Το μοναστήρι πρέπει να πέρασε δύσκολους καιρούς κατά την περίοδο της Τουρκοκρατίας και κατά πάσα πιθανότητα
εγκαταλείφθηκε το 19ο αιώνα.
5MACOM02_Συντήρηση και Αποκατάσταση Ιστορικών Κτιρίων και Μνημείων
Εισαγωγή_ _ Ιστορικά στοιχεία
Το μνημείο, στην παρούσα της μορφή δεν επιδεικνύει την ιστορικότητα και τις επεμβάσεις που είχε. Η κάτοψη του
μνημείου, μπορεί να επιτρέψει τον υπολογισμό μερικών υποθέσεων για την αρχική μορφή της αλλά και την πορεία
των μετατροπών της. Μερικά από αυτά τα στοιχεία που επιτρέπουν τις υποθέσεις αυτές, είναι τα μεγάλα τόξα των
οποίων η αρχή φαίνεται στα ερείπια του μνημείου, τα οποία μαρτυρούν την ύπαρξη κάποιου είδους τρούλου, ή η
υπερβολική τοιχοποιία σε πάχος, σε ορισμένα σημεία η οποία υποδεικνύει κάποιο είδος στέγασης χώρων.
Οι μεγάλοι πεσσοί, φανερώνουν μεγάλο βάρος στην στέγαση, η οποία από ξύλινη δίκλιτη στέγη, μετατράπηκε σε
τρούλο. Αυτό φανερώνει το γεγονός, πως οι ξύλινες κολόνες αντικαταστάθηκαν, ή κτίστηκαν μέσα σε μεγάλους
λίθινους πεσσούς, προκειμένου να στηριχθεί το βάρος ενός τρούλου, της τάξεως των 4 μέτρων διαμέτρου περίπου,
βάσει των μετρήσεων της αποτύπωσης.
Τα στοιχεία αυτά που προκύπτουν από την αποτύπωση, διασταυρώνονται με άλλα παραδείγματα εκκλησιών των
αιώνων που χρονολογούνται, έτσι ώστε να γίνει δυνατή η υπόθεση αντίληψης της αρχικής μορφής του κτίσματος και
των επεμβάσεων που έτυχε.
Ακολουθούν τα σχέδια αποτύπωσης, από τα οποία πρόκειται να καταγραφεί παθολογία του μνημείου σε πίνακες.
6MACOM02_Συντήρηση και Αποκατάσταση Ιστορικών Κτιρίων και Μνημείων
Αποτύπωση_ _ Το μνημείο
Παραδείγματα από άλλες τρίκλιτες Παλαιοχριστιανικές Βασιλικές
Εκκλησίες :
Κάτοψη Μονής Αγίου Ιωάννη
του Λαμπαδιστή
Κύπρος
11ος αιώνας
Basilica di Sant’Apollinare in
Classe
Ραβέννα
6ος αιώνας
Αγιά Σοφιά,
Θεσσαλονίκη
7ος αιώνας
7MACOM02_Συντήρηση και Αποκατάσταση Ιστορικών Κτιρίων και Μνημείων
Αποτύπωση_ _ Γενική εικόνα του μνημείου
1
2
3
4
5
1
2
3
4
5
MACOM02_Συντήρηση και Αποκατάσταση Ιστορικών Κτιρίων και Μνημείων
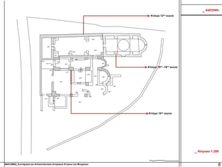
_ Κλίμακα 1:200
_ ΚΑΤΟΨΗ
8
Κτίσμα 12ου αιώνα
Κτίσμα 15ου -16ου αιώνα
Κτίσμα 10ου αιώνα
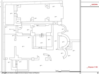
MACOM02_Συντήρηση και Αποκατάσταση Ιστορικών Κτιρίων και Μνημείων
_ Κλίμακα 1:100
_ ΚΑΤΟΨΗ
9
MACOM02_Συντήρηση και Αποκατάσταση Ιστορικών Κτιρίων και Μνημείων
_ Κλίμακα 1:100
_ ΚΑΤΟΨΗ
10
MACOM02_Συντήρηση και Αποκατάσταση Ιστορικών Κτιρίων και Μνημείων
_ Κλίμακα 1:100
_ ΤΟΜΕΣ
_ Κλίμακα 1:500
11
MACOM02_Συντήρηση και Αποκατάσταση Ιστορικών Κτιρίων και Μνημείων
_ Κλίμακα 1:100
_ ΤΟΜΕΣ
_ Κλίμακα 1:500
12
MACOM02_Συντήρηση και Αποκατάσταση Ιστορικών Κτιρίων και Μνημείων
_ Κλίμακα 1:100
_ ΤΟΜΕΣ
_ Κλίμακα 1:500
13
MACOM02_Συντήρηση και Αποκατάσταση Ιστορικών Κτιρίων και Μνημείων
_ Κλίμακα 1:100
_ ΤΟΜΕΣ
_ Κλίμακα 1:500
14
MACOM02_Συντήρηση και Αποκατάσταση Ιστορικών Κτιρίων και Μνημείων
_ Κλίμακα 1:100
_ ΤΟΜΕΣ
_ Κλίμακα 1:500
15
MACOM02_Συντήρηση και Αποκατάσταση Ιστορικών Κτιρίων και Μνημείων
_ ΤΟΜΕΣ
16
MACOM02_Συντήρηση και Αποκατάσταση Ιστορικών Κτιρίων και Μνημείων 17
MACOM02_Συντήρηση και Αποκατάσταση Ιστορικών Κτιρίων και Μνημείων 18
MACOM02_Συντήρηση και Αποκατάσταση Ιστορικών Κτιρίων και Μνημείων 19
20MACOM02_Συντήρηση και Αποκατάσταση Ιστορικών Κτιρίων και Μνημείων
_ Προσομοίωμα
5
MACOM02_Συντήρηση και Αποκατάσταση Ιστορικών Κτιρίων και Μνημείων
_ Κλίμακα 1:100
_ ΑΝΑΣΥΣΤΑΣΗ
_ Κλίμακα 1:500
Σαν υπόθεση που θα συνεχιστεί ερευνητικά στο επόμενο εξάμηνο, είναι η ανασύσταση της μονής. Τα τεκμήρια που οδηγούν στα συμπεράσματα για τη
μορφή που είχε η τρίκλιτη βασιλική, προκύπτουν από την αποτύπωση που έγινε, την ιστορική ανάλυση και άλλους ναούς ίδιου τύπου. Υπολείμματα
κιόνων οδηγούν στην πιθανότητα η αρχική τρικλιτη βασιλική να στήριζε τη δίρριχτη ξύλινη στέγη με κιονοστοιχίες. Ιστορικά είχε καταστραφεί στην
περιοδο των Αραβικών επιδρομών (700μ.Χ.). Η επόμενη φάση που φαίνεται να είχε μορφολογικά η βασιλική, προέρχεται από το μεγάλο μέγεθος των
πεσσών, που οδηγούν στην πιθανότητα να κατασκευάστηκαν για να στηρίξουν κάποιο τρούλο. Επίσης η ένδειξη των πεσσών του μεσαίου κλίτους,
όπου δεν γίνεται ορατή η ύπαρξη αρχής τόξου, οδηγεί στο συμπέρασμα πως το τόξο πρέπει να ξεκινούσε σε μεγαλύτερο ύψος (10ος αιώνας). Η
επόμενη φάση ήταν η επέκταση βόρεια του ναού, με ένα τμήμα που πιθανό να είχε τρούλο (12ος αιώνας), επίσης λόγω του μεγέθους των πεσσών,
καθώς και από ενδείξεις εγκάρσιων τόξων, όπου μικρό μέρος στο ανατολικό άκρο φαίνεται να υπήρξε η συνέχεια για τη κατασκευή της βασιλικής του
16ου αιώνα, η οποία βρίσκεται σε καλή κατάσταση. Στο ακόλουθο σχέδιο, γίνεται ενδεικτική ανασύσταση του τρούλου τις τρίκλιτης βασιλικής.
21

Τεύχος

  • 1.
    Μονή Τιμίου Σταυρούστην ΑνώγυραMACOM02 Μεταπτυχιακό Πρόγραμμα: Συντήρηση και Αποκατάσταση Ιστορικών Κτιρίων και Μνημείων Διδάσκοντες: Π.Τουλιάτος Μ.Πελεκάνος Ομάδα Σπουδαστών: Ιγνατίου Ειρήνη Γεωργίου Γεωργία Σπανού Γ. Βασιλική Κωνσταντή Άντρια
  • 2.
    Εισαγωγή_ Ορισμός Μοναστηριακού συγκροτήματος: ΤαΒυζαντινά Μοναστήρια έχουν πολλές ομοιότητες με μικρούς οικισμούς ενταγμένους σε ένα μεγαλύτερο σύνολο. Ήταν αυτόνομα, με μια οργανωμένη και αυστηρή διάταξη, και με γενικό περίγραμμα συνήθως τετράγωνο, ορθογώνιο, τραπεζοειδές ή και τελείως ακανόνιστο, πάντοτε όμως κλειστό από όλες τους τις πλευρές.1 Η Τυπολογία του Γενικού Συγκροτήματος: Κατά την πρώτη περίοδο του Μοναχισμού, τα κτιριακά συγκροτήματα υλοποιούνταν με προορισμό την στέγαση νέων ιδρυόμενων μοναστικών κοινοτήτων, οι οποίες ήταν ελεύθερα διατεταγμένα σύνολα κτισμάτων. 2 Ένα καλό παράδειγμα, που τεκμηριώνει την πιο πάνω άποψη είναι το μοναστήρι του Αγίου Επιφανίου στις Θήβες της Αιγύπτου, του οποίου η κάτοψη φαίνεται στα αριστερά.3 Το φαινόμενο αυτό ήταν λογικό, γιατί σε αυτή την περίοδο, δεν υπήρχαν άλλα παλαιότερα αρχιτεκτονικά μοναστηριακά οικοδομήματα. Αυτό είχε ως αποτέλεσμα, την μη αντίληψη των ιδιαζόντων προβλημάτων που θα προέκυπταν από την λειτουργία του κοινοβίου.4 Με την πάροδο του χρόνου, και παράλληλα με την εξέλιξη, την οργάνωση και την ανάπτυξη του μοναχισμού, και βάσει των αναγκών που προέκυπταν, τα μοναστηριακά συγκροτήματα εξελίχθηκαν και διαμορφώθηκαν ανάλογα, αποκτώντας πλέον μια πιο ορθολογική τυπολογία. Συγκεκριμένα, έγινε κατανοητή η ανάγκη ενός ενιαίου κτιριολογικού συνόλου για την ένταξη των μοναστηριακών κτισμάτων, σύμφωνα πάντα με ορισμένους κανόνες, με αποτέλεσμα μια οριστική τυπολογία. Η τυπολογία αυτή, είναι πλέον χαρακτηριστική για την Βυζαντινή μοναστηριακή αρχιτεκτονική και κυρίως αυτή που αναπτύχθηκε μέσα στα όρια του ελληνικού χώρου. 1 1. Α. Ορλάνδος, Μοναστηριακή Αρχιτεκτονική, Έκδοση Β΄, Αθήναι 1958, 7-16 2. Α. Ορλάνδος, Μοναστηριακή Αρχιτεκτονική, Έκδοση Β΄, Αθήναι 1958, 13 3. Βλ. H. Winlock κσι W. Crum, the Monastery of Epiphanius at Thebew, New York 1926, 29-39 4. Κ. ΣΠ. Παπαϊωάννου, Διδακτορική Διατριβή με θέμα: Τα ελληνικά μοναστήρια σαν αρχιτεκτονικές συνθέσεις – Διερεύνηση των διατάξεων τους, Αθήνα 1977, 13 5. Α.Ορλάνδος, Μοναστηριακή Αρχιτεκτονική, Έκδοση Β΄, Αθήναι 1958, 11 Μοναστήρι Αγ.Επιφανίου, Θήβες, Αίγυπτος: _ Γενικά MACOM02_Συντήρηση και Αποκατάσταση Ιστορικών Κτιρίων και Μνημείων
  • 3.
    Τμήματα Μοναστηριακού Συγκροτήματος: ΤοΚαθολικό: Αποτελεί το σημαντικότερο κτίσμα του μοναστηριακού συγκροτήματος, αφού έχει τη μεγαλύτερη πνευματική αξία από όλο το σύνολο του Μοναστηριού. Συνήθως, κατά τη Βυζαντινή περίοδο, επικρατούσε συγκεκριμένος αρχιτεκτονικός τύπος κατασκευής του Καθολικού, ο Βυζαντινός τύπος. Αυτό διακρίνεται και ανάμεσα στα παλιότερα από τα σωζόμενα Καθολικά, όχι μόνο των Μοναστηριών, όπου κυριαρχεί ο τύπος του σταυροειδούς εγγεγραμμένου ναού με τρούλο.7 Επίσης, ο τύπος αυτός συναντάται και στην παραλλαγή του τρίκογχου τύπου, ο οποίος καθιερώθηκε στα αγιορείτικα πρότυπα λόγω των ειδικών λειτουργικών αναγκών των Μοναστηριών. Το κύριο χαρακτηριστικό του σταυροειδούς ναού είναι οι σχετικά μικρές του διαστάσεις, που επιτρέπουν στον ναό να εγγράφεται άνετα μέσα στην μοναστηριακή αυλή. Το εξωτερικό γνώρισμα του βρίσκεται στους όγκους του, οι οποίοι χαρακτηρίζονται από μια έντονη πλαστικότητα και στον σχηματισμό του σταυρού στην ανωδομή του, χαρακτηριστικό που τον ξεχωρίζει από τα περιβάλλοντα κτίσματα. Επίσης, ένα άλλο έντονο χαρακτηριστικό γνώρισμα του είναι τα πολύ μικρά ανοίγματα που βρίσκονται στον τρούλο αλλά και ακόμη ένα όμοιο τους στο ιερό. Με την πιο πάνω περιγραφή των χαρακτηριστικών, ο τρίτος και τελευταίος ναός που δημιουργήθηκε στο μνημείο ανήκει στον Βυζαντινό τύπο. 2 Εισαγωγή_ _ Γενικά Προσομοίωμα Εκκλησίας Βυζαντινού τύπου: Εκκλησία Τιμίου Σταυρού Ανώγυρας: 7. Για τον τύπο του σταυροειδούς ναού βλ. Γ.Α.Σωτηρίου, Χριστιανική και Βυζαντινή Αρχαιολογία, Αθήναι 1962, 412 MACOM02_Συντήρηση και Αποκατάσταση Ιστορικών Κτιρίων και Μνημείων
  • 4.
    Τμήματα Μοναστηριακού Συγκροτήματος: ΟιΠτέρυγες (Κόρδες): Στα οργανωμένα κοινόβια Μοναστήρια υπάρχει πάντα το κτίριο που φιλοξενεί την Τράπεζα, το Συνοδικό και το Αρχονταρίκι, τα οποία εξυπηρετούν τις κύριες λειτουργίες της ζωής των μοναχών, αλλά και κτίσματα που είναι προορισμένα για τις βασικές ή δευτερεύουσες λειτουργίες (Εστίες, Φωτανάματα, Μαγκιπεία, Δοχεία, Νοσοκομεία, Πυλώνες, Στοά, Κλίμακες). Αυτά τα κτήρια είναι οι πτέρυγες Οι πτέρυγες αποτελούνται από : - Τα Κελλιά, οι κατοικίες των Μοναχών (ομοιόμορφα δωμάτια τοποθετημένα το ένα δίπλα στο άλλο). Η κυκλοφορία μεταξύ τους επιτυγχάνεται με τις Στοές. -Η Τράπεζα είναι ο χώρος όπου οι μοναχοί μαζεύονται για να συμφάγουν. Συνήθως την συναντάμε απέναντι από τον νάρθηκα ή απέναντι από την κύρια είσοδο του Ναού. Έχει σχήμα επίμηκες ορθογώνιο και σε αρκετές περιπτώσεις το μέγεθος της είναι πολύ μεγάλο. Κατά την περίοδο των Μεταβυζαντινών χρόνων, η Τράπεζα έχει μια είσοδο στην στενή πλευρά της και άλλες στο μέσο της μακριάς πλευράς. Συνήθως το ορθογώνιο αυτό σχήμα της τράπεζας καλύπτεται με απλό δώμα, με ξύλινη δίκλινη στέγη ή με κυλινδρική καμάρα και πάντα σε ικανοποιητικό ύψος από το δάπεδο. -Το Αρχονταρίκι, βρίσκεται κοντά στην είσοδο, και ήταν ο χώρος υποδοχής όπου γίνονταν τα πρώτα «κεράσματα» των προσκυνητών, πριν τους δοθεί ο χώρος φιλοξενίας τους. -Το Συνοδικόν είναι ο χώρος για την επίσημη υποδοχή ανώτατων, ιερωμένων κυρίως, προσώπων. -Τα Μαγκιπεία, ήταν η Εστία και τα Αρτοκόπια, χώροι στους οποίους δηλαδή παρασκευαζόταν το φαγητό. -Τα Φωτανάμματα, παρόμοια κτίσματα με την Εστία. Σε αυτούς τους χώρους μαζεύονταν οι μοναχοί για να θερμαίνονται τον χειμώνα, είτε μετά την νυκτερινή λειτουργία είτε κατά τα διαλειμματα της. Έτσι τα συναντάμε κυρίως σε ορεινά μέρη όπου επικρατεί γενικά ψυχρό κλίμα. -Τα Δοχεία ήταν χώροι για την φύλαξη τιμαλφών ή άλλων αντικειμένων της Μονής. -Το Νοσοκομείο - Τα Λουτρά, τα οποία τα συναντάμε σε πολύ λίγες περιπτώσεις. -Οι Φιάλες , εντάσσονται μέσα στην εσωτερική αυλή των Μονών και συχνά τοποθετούνται απέναντι από την Πύλη του νάρθηκα του Καθολικού. Το κτίσμα αυτό προοριζόταν για τον αγιασμό των υδάτων, κυρίως κατά την εορτή των Φώτων -Η Κρήνη ήταν ο χώρος ο οποίος φυλασσόταν το νερό για πόσιμη χρήση ή χρήση νήψεως. Η κρήνη βρισκόταν είτε εντός της αυλής του Μοναστηριού, είτε και έξω από τον περίβολο κοντά στην κύρια ή δευτερεύουσα Πύλη εισόδου. -Η Βιβλιοθήκη είναι ένας απαραίτητος χώρος για μια Μονή, αφού είναι γνωστό πως από τον Μεσαίωνα, εντάχθηκαν στις Μονές τα κέντρα Πνευματικής Εργασίας. Η βιβλιοθήκη ήταν στο ίδιο κτίριο με τα Κελλιά των μοναχών. -Για την στέγαση των ζώων του μοναστηριού, διατάσσονταν συνήθως στο ισόγειο των Κελλιών, χώροι ευρείς και επιμήκεις κοντά στην είσοδο της Μονής, και ονομάζονταν Βορδονάρεια. 3 Εισαγωγή_ _ Γενικά Κάτοψη και τομή της Τράπεζας της Μ.Καισαριανής , Το ορθογώνιο αυτό σχήμα της Τράπεζας, καλύπτεται συνήθως με απλό δώμα: MACOM02_Συντήρηση και Αποκατάσταση Ιστορικών Κτιρίων και Μνημείων
  • 5.
    Ιερά Μονή ΤιμίουΣταυρού στην Ανώγυρα: Η εκκλησία του Τιμίου Σταυρού βρίσκεται 2 χιλιόμετρα νότια του χωριού Ανώγυρα, στην επαρχία Πάφου, της Κύπρου, στο χώρο ενός υστερορωμαϊκού πρωτοβυζαντινού συνοικισμού που αναφέρεται στις Πράξεις των Αποστόλων σαν «χώρα Ανωγύρων» και ο οποίος ακόμα δεν έχει ερευνηθεί αρχαιολογικά. Η εκκλησία του Σταυρού είναι κτισμένη στο ανατολικό τμήμα μιας τρίκλιτης Βασιλικής, ίσως παλαιοχριστιανικής. Στους μέσους βυζαντινούς χρόνους κτίστηκε άλλη τρίκλιτη καμαροσχκέπαστη βασιλική, η οποία σώζεται σε αρκετό ύψος. Τον 14ο αιώνα κτίστηκε η σημερινή εκκλησία του Τιμίου Σταυρού, στον τύπο του μονόκλιτου ναού με τρούλο. Η εκκλησία αυτή διασώζει ορισμένα λείψανα τοιχογραφιών που μπορούν να χρονολογηθούν το 15ο αιώνα και μπορούν να ενταχθούν στην Παλαιολόγια ζωγραφική. Είναι πολύ πιθανόν να είναι έργα ζωγράφων που ήρθαν από το Μυστρά μαζί με την Ελένη Παλαιολογίνα στην Κύπρο ή έργα ζωγράφων από την Κωνσταντινούπολη, που κατέληξαν στην Κύπρο μετά την άλωση της Πόλης από τους Τούρκους (29 Μαΐου 1453). Αρχικά ολόκληρη η εκκλησία ήταν διακοσμημένη με τοιχογραφίες. Σήμερα, όμως, μόνο τμήματα αυτών των τοιχογραφιών σώζονται. Στην αψίδα διασώζονται τμήματα των συνλειτουργούντων ιεραρχών., ενώ στην ανατολική καμάρα, στο Ιερό βήμα διασώζονται οι μόνες καλά διατηρημένες σκηνές από την Ανάληψη και την Πεντηκοστή. Στα σφαιρικά τρίγωνα του τρούλου σώζονται επίσης, σε καλή κατάσταση τμήματα από τους Ευαγγελιστές. Ελάχιστα λείψανα τοιχογραφιών από την Κοίμηση της Θεοτόκου και του Αρχαγγέλου Μιχαήλ σώζονται στο τύμπανο του κεντρικού τυφλού τόξου και δυτικά της νότιας εισόδου. Επίσης σώζονται σκηνές από το μαρτύριο του Αγίου Γεωργίου και στο βόρειο τοίχο σώζονται τα πορτραίτα ζεύγους δωρητών. Σε πολύ μεταγενέστερους χρόνους γύρω από την εκκλησία, κυρίως στη νότια πλευρά, προστέθηκαν στα ερείπια των εκκλησιών τοίχοι για τη δημιουργία δωματίων, για τις ανάγκες μοναχών που εγκαταστάθηκαν εκεί. Κερύνεια Λευκωσία Αμμόχωστος Λάρνακα Λεμεσός Πάφος Τοποθεσία Μνημείου στην Ανώγυρα: 4 Εισαγωγή_ _ Ιστορικά στοιχεία MACOM02_Συντήρηση και Αποκατάσταση Ιστορικών Κτιρίων και Μνημείων
  • 6.
    Σε κάποια εποχή,πολύ μεταγενέστερα, όταν η βασιλική είχε σχεδόν καταστραφεί, προστέθηκαν γύρω από την εκκλησία και κυρίως στη νότια πλευρά, τοίχοι, όπως προαναφέρθηκε (φωτ. αριστερά). Τα τόξα της βασιλικής εντοιχίστηκαν και υποδιαιρέθηκαν τα κλίτη σε δωμάτια. Έτσι δημιουργήθηκαν δωμάτια-κελιά για τις ανάγκες των μοναχών που εγκαταστάθηκαν εκεί. Η μετατροπή αυτή πρέπει να έγινε μετά την ανέγερση του ναού του Τιμίου Σταυρού. Μια γενική περιγραφή του ναού, δίνει ο Ανδρέας Στυλιανού στο βιβλίο «Ιστορία της Κύπρου». Γράφει σχετικά: «Ο ναός είναι κτισμένος με αργολιθοδομή και με πελεκητούς πωρόλιθους στα περίθυρα και στις άκρες των ελαφρά οξυκόρυφων καμάρων και των τόξων των αχηβάδων στους πλάγιους τοίχους . Ο κυκλικός τρούλος φέρει τέσσερα ορθογώνια παράθυρα και στη βάση του, εσωτερικά, προεξέχει πελεκητός τρίβολος κοσμήτης. Στο εξωτερικό του τυμπάνου σώζονται και εδώ προεξέχουσες πέτρινες υποδοχές για τον ιστό της σημασίας. Οι δυτικές επιδράσεις στο ναό αυτό είναι περιορισμένες στο ελάχιστο. Διασώζει απομεινάρια τοιχογραφιών του τέλους του 15ου ή των αρχών του 16ου αιώνα, που πρέπει να είναι και η χρονολογία της οικοδόμησης του ναού.» Σύμφωνα με μαρτυρίες, ο επίσκοπος Πάφου Πανάρετος ανακαίνισε τη μονή του Τιμίου Σταυρού το 1773. Το μοναστήρι πρέπει να πέρασε δύσκολους καιρούς κατά την περίοδο της Τουρκοκρατίας και κατά πάσα πιθανότητα εγκαταλείφθηκε το 19ο αιώνα. 5MACOM02_Συντήρηση και Αποκατάσταση Ιστορικών Κτιρίων και Μνημείων Εισαγωγή_ _ Ιστορικά στοιχεία
  • 7.
    Το μνημείο, στηνπαρούσα της μορφή δεν επιδεικνύει την ιστορικότητα και τις επεμβάσεις που είχε. Η κάτοψη του μνημείου, μπορεί να επιτρέψει τον υπολογισμό μερικών υποθέσεων για την αρχική μορφή της αλλά και την πορεία των μετατροπών της. Μερικά από αυτά τα στοιχεία που επιτρέπουν τις υποθέσεις αυτές, είναι τα μεγάλα τόξα των οποίων η αρχή φαίνεται στα ερείπια του μνημείου, τα οποία μαρτυρούν την ύπαρξη κάποιου είδους τρούλου, ή η υπερβολική τοιχοποιία σε πάχος, σε ορισμένα σημεία η οποία υποδεικνύει κάποιο είδος στέγασης χώρων. Οι μεγάλοι πεσσοί, φανερώνουν μεγάλο βάρος στην στέγαση, η οποία από ξύλινη δίκλιτη στέγη, μετατράπηκε σε τρούλο. Αυτό φανερώνει το γεγονός, πως οι ξύλινες κολόνες αντικαταστάθηκαν, ή κτίστηκαν μέσα σε μεγάλους λίθινους πεσσούς, προκειμένου να στηριχθεί το βάρος ενός τρούλου, της τάξεως των 4 μέτρων διαμέτρου περίπου, βάσει των μετρήσεων της αποτύπωσης. Τα στοιχεία αυτά που προκύπτουν από την αποτύπωση, διασταυρώνονται με άλλα παραδείγματα εκκλησιών των αιώνων που χρονολογούνται, έτσι ώστε να γίνει δυνατή η υπόθεση αντίληψης της αρχικής μορφής του κτίσματος και των επεμβάσεων που έτυχε. Ακολουθούν τα σχέδια αποτύπωσης, από τα οποία πρόκειται να καταγραφεί παθολογία του μνημείου σε πίνακες. 6MACOM02_Συντήρηση και Αποκατάσταση Ιστορικών Κτιρίων και Μνημείων Αποτύπωση_ _ Το μνημείο Παραδείγματα από άλλες τρίκλιτες Παλαιοχριστιανικές Βασιλικές Εκκλησίες : Κάτοψη Μονής Αγίου Ιωάννη του Λαμπαδιστή Κύπρος 11ος αιώνας Basilica di Sant’Apollinare in Classe Ραβέννα 6ος αιώνας Αγιά Σοφιά, Θεσσαλονίκη 7ος αιώνας
  • 8.
    7MACOM02_Συντήρηση και ΑποκατάστασηΙστορικών Κτιρίων και Μνημείων Αποτύπωση_ _ Γενική εικόνα του μνημείου 1 2 3 4 5 1 2 3 4 5
  • 9.
    MACOM02_Συντήρηση και ΑποκατάστασηΙστορικών Κτιρίων και Μνημείων _ Κλίμακα 1:200 _ ΚΑΤΟΨΗ 8 Κτίσμα 12ου αιώνα Κτίσμα 15ου -16ου αιώνα Κτίσμα 10ου αιώνα
  • 10.
    MACOM02_Συντήρηση και ΑποκατάστασηΙστορικών Κτιρίων και Μνημείων _ Κλίμακα 1:100 _ ΚΑΤΟΨΗ 9
  • 11.
    MACOM02_Συντήρηση και ΑποκατάστασηΙστορικών Κτιρίων και Μνημείων _ Κλίμακα 1:100 _ ΚΑΤΟΨΗ 10
  • 12.
    MACOM02_Συντήρηση και ΑποκατάστασηΙστορικών Κτιρίων και Μνημείων _ Κλίμακα 1:100 _ ΤΟΜΕΣ _ Κλίμακα 1:500 11
  • 13.
    MACOM02_Συντήρηση και ΑποκατάστασηΙστορικών Κτιρίων και Μνημείων _ Κλίμακα 1:100 _ ΤΟΜΕΣ _ Κλίμακα 1:500 12
  • 14.
    MACOM02_Συντήρηση και ΑποκατάστασηΙστορικών Κτιρίων και Μνημείων _ Κλίμακα 1:100 _ ΤΟΜΕΣ _ Κλίμακα 1:500 13
  • 15.
    MACOM02_Συντήρηση και ΑποκατάστασηΙστορικών Κτιρίων και Μνημείων _ Κλίμακα 1:100 _ ΤΟΜΕΣ _ Κλίμακα 1:500 14
  • 16.
    MACOM02_Συντήρηση και ΑποκατάστασηΙστορικών Κτιρίων και Μνημείων _ Κλίμακα 1:100 _ ΤΟΜΕΣ _ Κλίμακα 1:500 15
  • 17.
    MACOM02_Συντήρηση και ΑποκατάστασηΙστορικών Κτιρίων και Μνημείων _ ΤΟΜΕΣ 16
  • 18.
    MACOM02_Συντήρηση και ΑποκατάστασηΙστορικών Κτιρίων και Μνημείων 17
  • 19.
    MACOM02_Συντήρηση και ΑποκατάστασηΙστορικών Κτιρίων και Μνημείων 18
  • 20.
    MACOM02_Συντήρηση και ΑποκατάστασηΙστορικών Κτιρίων και Μνημείων 19
  • 21.
    20MACOM02_Συντήρηση και ΑποκατάστασηΙστορικών Κτιρίων και Μνημείων _ Προσομοίωμα 5
  • 22.
    MACOM02_Συντήρηση και ΑποκατάστασηΙστορικών Κτιρίων και Μνημείων _ Κλίμακα 1:100 _ ΑΝΑΣΥΣΤΑΣΗ _ Κλίμακα 1:500 Σαν υπόθεση που θα συνεχιστεί ερευνητικά στο επόμενο εξάμηνο, είναι η ανασύσταση της μονής. Τα τεκμήρια που οδηγούν στα συμπεράσματα για τη μορφή που είχε η τρίκλιτη βασιλική, προκύπτουν από την αποτύπωση που έγινε, την ιστορική ανάλυση και άλλους ναούς ίδιου τύπου. Υπολείμματα κιόνων οδηγούν στην πιθανότητα η αρχική τρικλιτη βασιλική να στήριζε τη δίρριχτη ξύλινη στέγη με κιονοστοιχίες. Ιστορικά είχε καταστραφεί στην περιοδο των Αραβικών επιδρομών (700μ.Χ.). Η επόμενη φάση που φαίνεται να είχε μορφολογικά η βασιλική, προέρχεται από το μεγάλο μέγεθος των πεσσών, που οδηγούν στην πιθανότητα να κατασκευάστηκαν για να στηρίξουν κάποιο τρούλο. Επίσης η ένδειξη των πεσσών του μεσαίου κλίτους, όπου δεν γίνεται ορατή η ύπαρξη αρχής τόξου, οδηγεί στο συμπέρασμα πως το τόξο πρέπει να ξεκινούσε σε μεγαλύτερο ύψος (10ος αιώνας). Η επόμενη φάση ήταν η επέκταση βόρεια του ναού, με ένα τμήμα που πιθανό να είχε τρούλο (12ος αιώνας), επίσης λόγω του μεγέθους των πεσσών, καθώς και από ενδείξεις εγκάρσιων τόξων, όπου μικρό μέρος στο ανατολικό άκρο φαίνεται να υπήρξε η συνέχεια για τη κατασκευή της βασιλικής του 16ου αιώνα, η οποία βρίσκεται σε καλή κατάσταση. Στο ακόλουθο σχέδιο, γίνεται ενδεικτική ανασύσταση του τρούλου τις τρίκλιτης βασιλικής. 21