Rebecca R. Francisco




                       Design Portfolio




                              B.S. in Landscape Architecture
                                          Cornell University
if education is a journey,
let me spin you the yarn of mine
     When I decided to pursue a career as a landscape architect, I had one inten-
     tion. I had a love for design and the built environment, as well as a love for
     nature and human habitation.Yet these were only the supports for my inten-
                 if education is a journey,
     tion. I pursued the profession of Landscape Architecture in order to ingen-
     der respect for the places and environments we inhabit. I wanted to create a
                 let me spin you the yarn of mine
     harmony between people and their environments. I wanted to design Sus-
     tainably. I knew my pursuit was not novel.Yet, I did not expect the language
     of my intentions to age so quickly from buzzword to trite and cliché.

     Despite how misused the language of a philosophy can become, the power of
     conviction is not easily cast aside. I found through the course of my educa-
     tion that the ideal of “sustainability” had lost much of its meaning because it
                                if education is a journey,
     had become separated from its defining principles. These defining principles
     were the real pursuit, the engine that drove my design process.
                                let me spin you the yarn of m
     ·Hone integrity by creating designs that will last; designs that are appropri-
     ate for the location given its heritage, and environmental constraints.

     ·Address the Genius Loci by evoking an emotional sense of place and spiri-
     tual sense of greater interconnectedness.

                                                 if education is a journ
     ·Reveal the presence and character of the natural environment.

                                                 let me spin you the ya
     ·Recognize the existing investment people have in the place, and address
     their emotional and physical needs for well-being and identity.

     In the course of my education I have aimed to uphold these principles. The
     following images and text recount the journey I took.
                                                                     if education i
                                                                     let me spin y
Community Design                                                                                                     The Design Program
Riverfront Revitalization                                                                                               Change-Relocate
                                                                                                                        The theme of this design is health of the commuinty, its people and the environment. The plan evolved within the
                                                                                                                        restrictions of the Change/Relocate criterion. This criterion holds the middle ground between site remediation
                                                                                                                        and site re-creation. To improve the health of the community elements on the site were moved or remodeled in a
   The Community Design studio was                                                                                      thourough revitalization of the space.


an intense semester long outreach and                                                                                   The River Health
                                                                                                                        The Chenango River on the North Side of Binghamton is the
design project divided into three parts.                                                                                major identifying feature of the community. Through the
The first involved rallying the commu-                                                                                  process of urbanization the river's character was changed. The
                                                                                                                        once soft riparian edges were leveed and channelized, and the
                                                                                                                                                                                                                                                                                                                   




nity, connecting to stakeholder groups                                                                                  river virtually cut off from the community by 20+ foot walls.
and learning from them what they                                                                                        Therefore, the major focus of this revitalization plan is to
                                                                                                                        renature the river, and to connect the people once again to the
needed and wanted for their neighbor-                                                                                   natural environment. Ecorevelatory water elements were
                                                                                                                                                                                                                                                                                                                           




hood.                                                                                                                   added including the terraces, channels, ponds and stream.
                                                                                                                        These elements serve the function of filtering, revealing,
   The primary goals of this stage were                                                                                 storing, and naturalizing the storm water coming into and
to educate ourselves and the commu-                                                                                     running out of the site. Plantings in the terraces, stream and                                                                                                                     




nity, and to build trust. We researched                                                                                 along the pond provide aesthetic appeal, habitat for wild life,
                                                                                                                        and phytoremediation of the toxins and heat in the urban
the historical, ecological, sociological                                                                                runoff. All elements are structured to encourage exploration of
and economic forces existing in the                                                                                     these elements so their ecological functions reveal themselves
                                                                                                                                                                                                                                                                                                                                                                                                         Areas of increased water and water dependent habitat

                                                                                                                                                                                                                                                                                                                                                                                                         Areas of increased vegetation and open green space

                                                                                                                        to visitors, thus fostering a closer relationship between the
community. We then designed tools to                                                                                    community and it's environment.
communicate our research to our                                                                                                                                                                                                                                                                                             Health and Prosperity
                                                                                                                                                                                                                                                                                                                            The key to revitalizing the North Side community is instilling a
stakeholder groups. Examples of these                                                                                                                                                                                                                                                                                       sense of indentity, pride and belonging in the residents of this
tools include the board displaying water                                                                                                                                                                                                                                                                                    neighborhood. To increase this sentiment various richly
                                                                                                                                                                                                                                                                                                                            characterized activity nodes were designed that will foster a
issues: permeability and flood control                                                                                                                                                                        




                                                                                                                                                                                                                                                                                                                            sense of belonging. Public plaza and market spaces are
measures. Two pages from a power                                                                                                                                                                                                                                                                                            distributed throughout the site. They provide not only
                                                                                                                                                                                                                                                                                                                            necessities for residents and visitor appeal, but are places where
point presentation are show this project                                                                                                                                                                                                                                                                                    neighbors can meet and greet, and where commuinty
from the perspective of a greater                                                                                                                                                                                                                                                                                           ownership is nurtured.
whole. This presentation was designed                                                                                                                                                                                                                                                                                       More prominent than the markets and plazas are the public
                                                                                                                                                                                                                                                                                                                            recreational spaces that will fill the commuinty. With a great
to provide inspiration and hope by                                                                                                                                                                                                                                                                                          number of families, schools, and retired individuals, the North
explaining other federally funded                                                                                                                                                                                                                                                                                           Side is in dire need of places for both sporting competions and
                                                                                                                                                                                                                                                                                                                            leisurely activities.
projects that have already been devel-                                      water issues research board                                                                                                                                                                                                                     The BMX/skateboarding tent, the indoor soccer/fitness center,
oped on other parts of the river.                                                                                                                                                                                                                                                                                           little league baseball field, basketball courts, pool, parks,
                                                                                                                                                                                                             




                                                                                                                                                                                                                                                                                                                            gardens, ampitheatre, and various trails will provide these
   The next stage involved preliminary                                                                                                                                                                                                                                                                                      spaces for competition, congregation, and relaxation. These
designs developed over the course of                                                                                                         Retail shops, either big name commercial of locally owned
                                                                                                                                                                                                                  
                                                                                                                                                                                                                                                                                                                            ammentities will also be valuable in drawing visitors in from the
                                                                                                                                                                                                                                                                                                                            surrounding areas.
                                                                                                                                              Areas of increased recreational programming


several community design
charrettes. The design goals                                                                                             Community Safety
were established through com-                                                                                            It is important for a vibrant commuinty to be not only
                                                                                                                         healthful, but safe. Increasing activites in the district will
munity feedback.                                                                                                         increase the number and type of users of the space. This is good
   For the final presentation                                                                                            for commuinty vitality, but raises safety issues. The increase in
                                                                                                                         activites means more users, which means less isolation, and,
we sent out mass mailings of                                                                                             potentially, greater personal safety. However, increased traffic                                                                                                                     




postcards announcing the                                                                                                 means additional safety ammenities must be provided for these
                                                                                                                         users.
date, time, and itinerary for                                                                                            The interaction of people and cars is a big issue for this space
the final community meeting.                                                                                             with all the crossing of paths and mixing of pedestrian and
                                                                                                                         vehicular zones. Just as the water was redirected, so will
We designed t-shirts and facili-                                                                                         pedestrain and car traffic be directed in a similar, lively fashion.                                                                                                                       




tated a screen printing station,                                                                                         Crosswalks are included at all intersections of roads and paths.
gave away lawn and garden                             precedents on river
                                                                                                                         As shown to the right, they may be brightly colored, or made of
                                                                                                                         various pavements and materials that will slow vehicular traffic.
door prizes, and discussed our final                                                                                     For example, the water channels on the site also serve the
designs with the stakeholders once                                                                                       added functions of slowing car traffic, delineating car paths, and                                                                                                                      



                                                                                                                         serving as crosswalks.
more.                                                                                                                    Motor vehicles add vibrancy to urban sites. With clear                                                                                                                                                                                                                          Areas of mixed pedestrian and vehicular use




   The final design program is displayed                                                                  postcard
                                                                                                                                                                                                                                                                                                                                                                                                          Areas of vehicular use

                                                                                                                         delineation of bounds and conduct, this vibrancy is harnessed                                                                                                                                                                                                                   Areas of pedestrian use



                                                                                                                         and the interest of the space is increased.
to the right.                              Outreach and Education Charettes                                                                                                                                                                                                                                                                                                                                                              medium: Adobe Illustrator
Paris
Defining the Edge
    The site in Paris straddles the Periph-
erique, the highway that took the place
of the old city wall, at the Port de Lilas.
It is, not only a site with urban design
needs, but also one with edge issues.
   The diagram in the top left is a vector
walk analysis. Walking from one point
on the west side of the peripherique,
crossing the traffic circle, to terminate
at another point on the east side, it
maps the experience of the transition.
What is shows is the hodge podge of
typologies that exist, from rauscously
loud, alienating and dangerous traffic
circles, to quaint peaceful residential
communities. This discontinuity gave
the site a disjointed feel, and com-
pounded its feeling of un-inhabitability.
The west half of the site is four blocks
of army barracks surrounded by a 12’
wall topped with spikes. The east side is
a no-man’s-land of parks department
equipment yards and an enclosed circus.
   The initial design makes connections
through from west side to east side, and
reclaims some of the land for vibrant
community life and much needed civic
space. In the preliminary design, the
Haussman precedent was used to cut
vistas through the site. However, all of
the existing historic buildings and walls
were retained, and incorporated into
the design. Old exists with new and
elements, such as the wall and traffic
circle, are desconstructed to serve as a
palimpsest of the past.The precedent of
deconstruction, as studied at Parc de La
Villette, was the tool by which the
space was opened up, while retaining
the elements that give the site character.
Paris
Urban Edge Design
   The final design is a scaffolding. It
provides a structure on which the fabric
of the neighborhood can be recon-
nected, with a language of deconstruc-
tion for guidance. The final design was
carried out in model form. The existing
18th century buildings are represented
in the stained, rectilinear balsa wood
forms. The modern existing buildings
are represented in white foam core.
Finally the proposed buildings are
represented in corrugated plastic and
transparency sheets, with some use of
unstained balsa.
   The design is structured around view
corridors: the scaffolding. The corridors
bypass the existing 18th century build-
ings, and emphasize views along them.
Along these view axis are constructed
three light use bridges that connect
west to east. View corridors also serve
to draw flows north to the re-
established traditional gateway: the Port
de Lilas. To reclaim pedestrian space
and to create a sense of intimacy and
safety, the traffic circle was taken out
and replaced by a traditional straight
intersection. Proposed buildings act as a
palimpsest of the old circle and re-form
the traditional gateway.
   Proposed buildings and spaces take
their form from the view corridors.
Buildings and trees emphasize view
lines, while conforming to a language of
deconstruction. From west to east the
density of buildings decreases while the
transparency and lightness of the
buildings increases. From east to west
the density of open space decreases
returning the conversation.
   The West side, the city side, houses a
mixed use of residential, service and
office space. The east side, in proximity
to lower density houses, provides           medium: model of balsa wood, card board and corrugated plastic
garden and recreation space.
Charles River Park
CRJA, Associates
   The Charles River Park project is
one of the parks commissioned by the
Big Dig. While working at CRJA I had
the privaledge to work on the Con-
struction and final presentation docu-
ments for this large, complex park.
    The park is intended for a diverse
set of users and includes: river front
multi-use paths and foot bridges, ball
courts, and lawns and gardens. The
main feature of the park is a sculptural
underbridge environment. The linear-
forms of this space mirror the forms of
the bridge above, while new elements
are added in contrast to the lines
dictated by the bridge. Found materials
and new materials intermingle in
unique ways in the paving, walls, and
rebuilt seawall.
  The grapics on this page were
prepared for a presentation to the parks
commision. The colored areas denote
the designed portions of the park. The
base for the illustration was prepared in
AutoCad and Adobe Photoshop was
used for the rendering.
Charles River Park
CRJA, Associates
    My part in the Charles River Project
was to prepare the Construction Details
for the park. Of this 26 page portion of
the CDs, I have included a few details to
illustrate the unique challenges of the
site.
   The first detail, number 13, shows a
pavement interface. Throughout the
underbridge environment there are
several ubrupt changes in pavement
type, often involving subsurface condi-
tion changes as well. For each pavement
type and interface, a detail was created
to ensure its integrity. This detail shows
a granite paver with a 8” concrete base
meeting a 4” bituminous concrete. The
sloped approach slab adds support to
the adjoiing pavement and prevents it
from subsiding.
   The cast-in-place concrete retaining
walls flank the concrete walks as they
pass through the sloped fields of granite
pavers. Two concrete bridge abutments
can be seen in the accompanying part
plan. Around these are subsurface
concrete footers. Several sections of
these walls passed over these footers,
and required different details depending
on the height of the adjoining pave-
ment. Two of these conditions are
shown at right.
    In several areas throughout the site,
found materials are reused. One such
area is surrounding an approach ramp
to a pedestrian bridge. Recycled granite
blocks from the old seawall act as a
retaining wall as they step down to
meet the adjoining grade.
   The condition at the seawall was one
of the most complex elements to detail.
To maintain a straight walkway and not
encraoch on the high water elevation,
several methods were used. This detail
shows a cantilevered walkway over a
retaining wall, on existing rip rap.
Site Engineering                            Site Grading
    The first project is a site grading
project. The design was for a Friend’s
meeting house. This group needed a
space with a large congregation area,
classrooms, and kitchen space. The site
is very steep, and had to accommodate
the meetinghouse as well as space for
forty or so cars. Also, on the right hand
side of the site is a conservation area
that could not be disturbed.
   My project proposed a redesign of
the building. The building designed by
the architect was a two story structure
that would need to be half buried, and
much of the site stabilized by retaining
walls. The re-design allowed for all of
the main structure and meeting rooms
to remain above ground. The building
acts as a retaining wall with the base-
ment level of classrooms and kitchen
open to a woodland patio.




                                                              medium: pen on vellum




                                            Road Allignment




                                                                                      medium: pencil on vellum
Site Construction
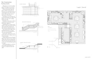
Rooftop Garden
    This project is a two level, rooftop
garden. The design uses several tech-
nologies to keep the aesthetic afloat.
                                             
   Syrstone foam boards enable the
pavers to “float” on top of the roof.
Electrical wires and irrigation pipes are
run through the foam. Grooves in the
bottom of the foam allow water to
drain into the 3 floor drains.
   Four planters rest on snowshoes of
I-beams that distribute the weight of the
planters across the roof to existing
architectural walls.
   The planters, stairs and seat walls are
constructed of wood with concrete
board facades clipped on.
   All planting beds use Solite soil mix.
Sedums are the primary plant material,
while small shrubs and dwarf crab
apples add more substantial structure.
   Louis Poulsen Weebee lights bring a
twinkling illumination to the space.
These are set into the planting boxes,
seat wall, and paving border.
   Four benches, constructed of wood
blocks with concrete coping on top, are
set into the paving.
   Finally, aluminum rails run along the
ledges. These rails are set on a concrete
coping which retains the planting beds.
The style of the rail is derived from the
art deco style of the building the garden
is set upon.
   The following images are a selection
of the design details prepared. All
design was completed in AutoCAD
2004.




                                                          medium: AutoCAD





                                                 
                             
                               
                     
                                        
                                              
                                                    
                                                   
                                              
                                                 
                                                    
                                      
                                     
                                
Geographic Information                       Data Type          Data Source               Process

Systems                                      Watersheds Map     NYS GAP
                                                                                          Found out what watersheds were included in the greater
                                                                                          watershed from Cayuga Lake Watershed Network
                                                                                          website, selected, and exported the data.

   For my final project in GIS I took on                                                  For the single watershed boundary: added a field titled
a bioregional study of the Cayuga Basin      Basin Boundary     NYS GAP                   location to the attribute table with a value of 0 for all
                                                                                          subwatersheds, and merged based on this field.
Bioregion; the bioregion Cornell lies
within. A bioregion is an area constitut-    Counties Map       NYS GAP
                                                                                          Selected those that intersect with the Cayuga Basin, and
                                                                                          exported the data
ing a natural ecological community
with characteristic flora, fauna, and        Towns Map          NYS GAP
                                                                                          Selected those that intersect with the Cayuga Basin, and
                                                                                          exported the data
environmental conditions and bounded
                                                                                          Clipped the data to the border of the Cayuga Basin using
by natural rather than artificial borders.   Ecozones Map       NYS GAP
                                                                                          Geoprocessing Wizard
I wanted to explore, in depth, the                                                        Clipped the data to the border of the Cayuga Basin using
bioregion I had been living in, and the      Geology Map        NYS GAP
                                                                                          Geoprocessing Wizard

implications of taking a bioregional                                                      Clipped the data to the border of the Cayuga Basin using
                                                                STATSGO for NYS
approach when dealing with planning          Soils Map
                                                                from CUGIR
                                                                                          Geoprocessing Wizard, and sybolized using the prime
                                                                                          farmland layer (primfml).
issues. I explored many factors, utilizing
a variety of resources and methods for       Hydrology Map
                                                                CUGIR Hydrographs for
                                                                6 counties
                                                                                          Merged the data for the 6 layers together and clipped to
                                                                                          the Basin Boundary using Geoprocessing Wizard
manipulating and symbolizing the data I
obtained. On this page are a selection of                       USGS DEM (from
                                                                                          Used spatial analyst to place an analysis mask on the
                                                                                          Cayuga Basin, and Raster Calculator to "clip" the data to
                                                                CUGIR) for quads: p25,
the maps I created. The one of primary       Elevation Maps
                                                                q24-25, r24-27, s24-28,
                                                                                          the watershed. Then merged the data using Raster
                                                                                          Calculator. Calculated percent of slope , and contours
interest is the Buildable vs. Bioregion-                        t24-29, u25-28, v25-28
                                                                                          from the DEM.

ally Valuable Lands map. In this map, I
                                                                                          Used spatial analyst to place an analysis mask on the
weighed six factors: areas of high           Landcover Map      NYS GAP                   Cayuga Basin, and Raster Calculator to "clip" the data to
                                                                                          the watershed.
species richness, current landuse,
agriculturally valuable lands, lands                                                      Joined the Species Richness Table to the attribute table
                                             Species Richness   Otsego Report CRP
currently under conservation, percent        Map                508 folder
                                                                                          for the clipped landcover layer, and used the species
                                                                                          richness field to symbolize the map.
of slope, and waterway buffers. The
resulting map displays the buildable         Buildable vs.
                                                                Hydrology, Prime
                                                                Farmland, Stewardship,
                                                                                          Overlayed the six maps. Areas that should not be built
lands in white and the bioregionally         Bioregionally      Percent of Slope,
                                                                                          were blacked out. Areas that could be built with
                                                                                          reservation were grayed, and areas that are best for
                                             Valuable Land      Species Richness and
valuable lands in black.                                        Landcover Map
                                                                                          building are in white.




                                                                                                                        medium: ArcGIS

Rebecca Francisco Portfolio

  • 1.
    Rebecca R. Francisco Design Portfolio B.S. in Landscape Architecture Cornell University
  • 2.
    if education isa journey, let me spin you the yarn of mine When I decided to pursue a career as a landscape architect, I had one inten- tion. I had a love for design and the built environment, as well as a love for nature and human habitation.Yet these were only the supports for my inten- if education is a journey, tion. I pursued the profession of Landscape Architecture in order to ingen- der respect for the places and environments we inhabit. I wanted to create a let me spin you the yarn of mine harmony between people and their environments. I wanted to design Sus- tainably. I knew my pursuit was not novel.Yet, I did not expect the language of my intentions to age so quickly from buzzword to trite and cliché. Despite how misused the language of a philosophy can become, the power of conviction is not easily cast aside. I found through the course of my educa- tion that the ideal of “sustainability” had lost much of its meaning because it if education is a journey, had become separated from its defining principles. These defining principles were the real pursuit, the engine that drove my design process. let me spin you the yarn of m ·Hone integrity by creating designs that will last; designs that are appropri- ate for the location given its heritage, and environmental constraints. ·Address the Genius Loci by evoking an emotional sense of place and spiri- tual sense of greater interconnectedness. if education is a journ ·Reveal the presence and character of the natural environment. let me spin you the ya ·Recognize the existing investment people have in the place, and address their emotional and physical needs for well-being and identity. In the course of my education I have aimed to uphold these principles. The following images and text recount the journey I took. if education i let me spin y
  • 3.
    Community Design The Design Program Riverfront Revitalization Change-Relocate The theme of this design is health of the commuinty, its people and the environment. The plan evolved within the restrictions of the Change/Relocate criterion. This criterion holds the middle ground between site remediation and site re-creation. To improve the health of the community elements on the site were moved or remodeled in a The Community Design studio was thourough revitalization of the space. an intense semester long outreach and The River Health The Chenango River on the North Side of Binghamton is the design project divided into three parts. major identifying feature of the community. Through the The first involved rallying the commu- process of urbanization the river's character was changed. The once soft riparian edges were leveed and channelized, and the    nity, connecting to stakeholder groups river virtually cut off from the community by 20+ foot walls. and learning from them what they Therefore, the major focus of this revitalization plan is to renature the river, and to connect the people once again to the needed and wanted for their neighbor- natural environment. Ecorevelatory water elements were  hood. added including the terraces, channels, ponds and stream. These elements serve the function of filtering, revealing, The primary goals of this stage were storing, and naturalizing the storm water coming into and to educate ourselves and the commu- running out of the site. Plantings in the terraces, stream and  nity, and to build trust. We researched along the pond provide aesthetic appeal, habitat for wild life, and phytoremediation of the toxins and heat in the urban the historical, ecological, sociological runoff. All elements are structured to encourage exploration of and economic forces existing in the these elements so their ecological functions reveal themselves Areas of increased water and water dependent habitat Areas of increased vegetation and open green space to visitors, thus fostering a closer relationship between the community. We then designed tools to community and it's environment. communicate our research to our Health and Prosperity The key to revitalizing the North Side community is instilling a stakeholder groups. Examples of these sense of indentity, pride and belonging in the residents of this tools include the board displaying water neighborhood. To increase this sentiment various richly characterized activity nodes were designed that will foster a issues: permeability and flood control   sense of belonging. Public plaza and market spaces are measures. Two pages from a power distributed throughout the site. They provide not only necessities for residents and visitor appeal, but are places where point presentation are show this project neighbors can meet and greet, and where commuinty from the perspective of a greater ownership is nurtured. whole. This presentation was designed More prominent than the markets and plazas are the public recreational spaces that will fill the commuinty. With a great to provide inspiration and hope by number of families, schools, and retired individuals, the North explaining other federally funded Side is in dire need of places for both sporting competions and leisurely activities. projects that have already been devel- water issues research board The BMX/skateboarding tent, the indoor soccer/fitness center, oped on other parts of the river. little league baseball field, basketball courts, pool, parks,   gardens, ampitheatre, and various trails will provide these The next stage involved preliminary spaces for competition, congregation, and relaxation. These designs developed over the course of Retail shops, either big name commercial of locally owned    ammentities will also be valuable in drawing visitors in from the surrounding areas. Areas of increased recreational programming several community design charrettes. The design goals Community Safety were established through com- It is important for a vibrant commuinty to be not only healthful, but safe. Increasing activites in the district will munity feedback. increase the number and type of users of the space. This is good For the final presentation for commuinty vitality, but raises safety issues. The increase in activites means more users, which means less isolation, and, we sent out mass mailings of potentially, greater personal safety. However, increased traffic    postcards announcing the means additional safety ammenities must be provided for these users. date, time, and itinerary for The interaction of people and cars is a big issue for this space the final community meeting. with all the crossing of paths and mixing of pedestrian and vehicular zones. Just as the water was redirected, so will We designed t-shirts and facili- pedestrain and car traffic be directed in a similar, lively fashion.    tated a screen printing station, Crosswalks are included at all intersections of roads and paths. gave away lawn and garden precedents on river As shown to the right, they may be brightly colored, or made of various pavements and materials that will slow vehicular traffic. door prizes, and discussed our final For example, the water channels on the site also serve the designs with the stakeholders once added functions of slowing car traffic, delineating car paths, and     serving as crosswalks. more. Motor vehicles add vibrancy to urban sites. With clear Areas of mixed pedestrian and vehicular use The final design program is displayed postcard Areas of vehicular use delineation of bounds and conduct, this vibrancy is harnessed Areas of pedestrian use and the interest of the space is increased. to the right. Outreach and Education Charettes medium: Adobe Illustrator
  • 5.
    Paris Defining the Edge The site in Paris straddles the Periph- erique, the highway that took the place of the old city wall, at the Port de Lilas. It is, not only a site with urban design needs, but also one with edge issues. The diagram in the top left is a vector walk analysis. Walking from one point on the west side of the peripherique, crossing the traffic circle, to terminate at another point on the east side, it maps the experience of the transition. What is shows is the hodge podge of typologies that exist, from rauscously loud, alienating and dangerous traffic circles, to quaint peaceful residential communities. This discontinuity gave the site a disjointed feel, and com- pounded its feeling of un-inhabitability. The west half of the site is four blocks of army barracks surrounded by a 12’ wall topped with spikes. The east side is a no-man’s-land of parks department equipment yards and an enclosed circus. The initial design makes connections through from west side to east side, and reclaims some of the land for vibrant community life and much needed civic space. In the preliminary design, the Haussman precedent was used to cut vistas through the site. However, all of the existing historic buildings and walls were retained, and incorporated into the design. Old exists with new and elements, such as the wall and traffic circle, are desconstructed to serve as a palimpsest of the past.The precedent of deconstruction, as studied at Parc de La Villette, was the tool by which the space was opened up, while retaining the elements that give the site character.
  • 6.
    Paris Urban Edge Design The final design is a scaffolding. It provides a structure on which the fabric of the neighborhood can be recon- nected, with a language of deconstruc- tion for guidance. The final design was carried out in model form. The existing 18th century buildings are represented in the stained, rectilinear balsa wood forms. The modern existing buildings are represented in white foam core. Finally the proposed buildings are represented in corrugated plastic and transparency sheets, with some use of unstained balsa. The design is structured around view corridors: the scaffolding. The corridors bypass the existing 18th century build- ings, and emphasize views along them. Along these view axis are constructed three light use bridges that connect west to east. View corridors also serve to draw flows north to the re- established traditional gateway: the Port de Lilas. To reclaim pedestrian space and to create a sense of intimacy and safety, the traffic circle was taken out and replaced by a traditional straight intersection. Proposed buildings act as a palimpsest of the old circle and re-form the traditional gateway. Proposed buildings and spaces take their form from the view corridors. Buildings and trees emphasize view lines, while conforming to a language of deconstruction. From west to east the density of buildings decreases while the transparency and lightness of the buildings increases. From east to west the density of open space decreases returning the conversation. The West side, the city side, houses a mixed use of residential, service and office space. The east side, in proximity to lower density houses, provides medium: model of balsa wood, card board and corrugated plastic garden and recreation space.
  • 7.
    Charles River Park CRJA,Associates The Charles River Park project is one of the parks commissioned by the Big Dig. While working at CRJA I had the privaledge to work on the Con- struction and final presentation docu- ments for this large, complex park. The park is intended for a diverse set of users and includes: river front multi-use paths and foot bridges, ball courts, and lawns and gardens. The main feature of the park is a sculptural underbridge environment. The linear- forms of this space mirror the forms of the bridge above, while new elements are added in contrast to the lines dictated by the bridge. Found materials and new materials intermingle in unique ways in the paving, walls, and rebuilt seawall. The grapics on this page were prepared for a presentation to the parks commision. The colored areas denote the designed portions of the park. The base for the illustration was prepared in AutoCad and Adobe Photoshop was used for the rendering.
  • 8.
    Charles River Park CRJA,Associates My part in the Charles River Project was to prepare the Construction Details for the park. Of this 26 page portion of the CDs, I have included a few details to illustrate the unique challenges of the site. The first detail, number 13, shows a pavement interface. Throughout the underbridge environment there are several ubrupt changes in pavement type, often involving subsurface condi- tion changes as well. For each pavement type and interface, a detail was created to ensure its integrity. This detail shows a granite paver with a 8” concrete base meeting a 4” bituminous concrete. The sloped approach slab adds support to the adjoiing pavement and prevents it from subsiding. The cast-in-place concrete retaining walls flank the concrete walks as they pass through the sloped fields of granite pavers. Two concrete bridge abutments can be seen in the accompanying part plan. Around these are subsurface concrete footers. Several sections of these walls passed over these footers, and required different details depending on the height of the adjoining pave- ment. Two of these conditions are shown at right. In several areas throughout the site, found materials are reused. One such area is surrounding an approach ramp to a pedestrian bridge. Recycled granite blocks from the old seawall act as a retaining wall as they step down to meet the adjoining grade. The condition at the seawall was one of the most complex elements to detail. To maintain a straight walkway and not encraoch on the high water elevation, several methods were used. This detail shows a cantilevered walkway over a retaining wall, on existing rip rap.
  • 9.
    Site Engineering Site Grading The first project is a site grading project. The design was for a Friend’s meeting house. This group needed a space with a large congregation area, classrooms, and kitchen space. The site is very steep, and had to accommodate the meetinghouse as well as space for forty or so cars. Also, on the right hand side of the site is a conservation area that could not be disturbed. My project proposed a redesign of the building. The building designed by the architect was a two story structure that would need to be half buried, and much of the site stabilized by retaining walls. The re-design allowed for all of the main structure and meeting rooms to remain above ground. The building acts as a retaining wall with the base- ment level of classrooms and kitchen open to a woodland patio. medium: pen on vellum Road Allignment medium: pencil on vellum
  • 10.
    Site Construction Rooftop Garden This project is a two level, rooftop garden. The design uses several tech- nologies to keep the aesthetic afloat.  Syrstone foam boards enable the pavers to “float” on top of the roof. Electrical wires and irrigation pipes are run through the foam. Grooves in the bottom of the foam allow water to drain into the 3 floor drains. Four planters rest on snowshoes of I-beams that distribute the weight of the planters across the roof to existing architectural walls. The planters, stairs and seat walls are constructed of wood with concrete board facades clipped on. All planting beds use Solite soil mix. Sedums are the primary plant material, while small shrubs and dwarf crab apples add more substantial structure. Louis Poulsen Weebee lights bring a twinkling illumination to the space. These are set into the planting boxes, seat wall, and paving border. Four benches, constructed of wood blocks with concrete coping on top, are set into the paving. Finally, aluminum rails run along the ledges. These rails are set on a concrete coping which retains the planting beds. The style of the rail is derived from the art deco style of the building the garden is set upon. The following images are a selection of the design details prepared. All design was completed in AutoCAD 2004. medium: AutoCAD
  • 11.
                                                                                                 
  • 12.
    Geographic Information Data Type Data Source Process Systems Watersheds Map NYS GAP Found out what watersheds were included in the greater watershed from Cayuga Lake Watershed Network website, selected, and exported the data. For my final project in GIS I took on For the single watershed boundary: added a field titled a bioregional study of the Cayuga Basin Basin Boundary NYS GAP location to the attribute table with a value of 0 for all subwatersheds, and merged based on this field. Bioregion; the bioregion Cornell lies within. A bioregion is an area constitut- Counties Map NYS GAP Selected those that intersect with the Cayuga Basin, and exported the data ing a natural ecological community with characteristic flora, fauna, and Towns Map NYS GAP Selected those that intersect with the Cayuga Basin, and exported the data environmental conditions and bounded Clipped the data to the border of the Cayuga Basin using by natural rather than artificial borders. Ecozones Map NYS GAP Geoprocessing Wizard I wanted to explore, in depth, the Clipped the data to the border of the Cayuga Basin using bioregion I had been living in, and the Geology Map NYS GAP Geoprocessing Wizard implications of taking a bioregional Clipped the data to the border of the Cayuga Basin using STATSGO for NYS approach when dealing with planning Soils Map from CUGIR Geoprocessing Wizard, and sybolized using the prime farmland layer (primfml). issues. I explored many factors, utilizing a variety of resources and methods for Hydrology Map CUGIR Hydrographs for 6 counties Merged the data for the 6 layers together and clipped to the Basin Boundary using Geoprocessing Wizard manipulating and symbolizing the data I obtained. On this page are a selection of USGS DEM (from Used spatial analyst to place an analysis mask on the Cayuga Basin, and Raster Calculator to "clip" the data to CUGIR) for quads: p25, the maps I created. The one of primary Elevation Maps q24-25, r24-27, s24-28, the watershed. Then merged the data using Raster Calculator. Calculated percent of slope , and contours interest is the Buildable vs. Bioregion- t24-29, u25-28, v25-28 from the DEM. ally Valuable Lands map. In this map, I Used spatial analyst to place an analysis mask on the weighed six factors: areas of high Landcover Map NYS GAP Cayuga Basin, and Raster Calculator to "clip" the data to the watershed. species richness, current landuse, agriculturally valuable lands, lands Joined the Species Richness Table to the attribute table Species Richness Otsego Report CRP currently under conservation, percent Map 508 folder for the clipped landcover layer, and used the species richness field to symbolize the map. of slope, and waterway buffers. The resulting map displays the buildable Buildable vs. Hydrology, Prime Farmland, Stewardship, Overlayed the six maps. Areas that should not be built lands in white and the bioregionally Bioregionally Percent of Slope, were blacked out. Areas that could be built with reservation were grayed, and areas that are best for Valuable Land Species Richness and valuable lands in black. Landcover Map building are in white. medium: ArcGIS