UNIVERSIDAD NACIONAL FEDERICO
VILLARREAL
"SOLUCIÓN INTEGRALES DE MORH"
PROFESOR: Ing. Juan Percy Zapata Igreda
CURSO: Análisis Estructural 1
SECCIÓN: D
ALUMNOS:
Ccorpuna Ataucuri Roger Efraín
Chipana Bramon Juan Víctor
Hilario Bravo Lenin
Barroso Pachapuma Jose
Rodas Lucar Erika
2021
PROBLEMA #1
SISTEMA REAL
=
∑Fx 0
=
Ax 0
=
∑MA 0 ≔
TY ――――――
→
=
-
3 TY ⋅
⋅
10 5 2.5 0
,
,
,
solve TY float 5
41.667
=
TY 41.667 KN
=
∑Fy 0
≔
AY ―――
→
=
-
+
AY TY ⋅
10 5 0
,
solve AY
8.333
=
AY 8.333 KN
CARGA UNITARIA EN EL PUNTO "C"
=
∑Fx 0
=
Ax 0
=
∑MA 0
≔
Ty ―――
→
=
-
3 Ty ⋅
1 5 0
,
solve Ty
―
5
3
=
Ty 1.667 KN
=
∑Fy 0
≔
Ay ―――
→
=
-
+
-Ay Ty 1 0
,
solve Ay
―
2
3
=
Ay 0.667 KN
INTEGRALES DE MORH
=
Δ2VC ――
1
⋅
Ab Ib
-――
1
⋅
Ab Ib
+――
1
⋅
Ab Ib
≔
Δ2VC ―――
→
+
――
1
⋅
Eb Ib
⎛
⎜
⎝
-
⋅
⋅
⋅
―
1
4
45 2 3 ⋅
⋅
―
1
3
25 2 3
⎞
⎟
⎠
⋅
――
1
⋅
Eb Ib
―――
⋅
⋅
20 2 2
4
,
float 3
――
37.5
⋅
Eb Ib
Deflexión
→
Δ2VC ――
37.5
⋅
Eb Ib
........(1) de la viga
deformación de cable
=
Scable ―――
⋅
T LC
⋅
EC AC
≔
T 41.66
=
LC 4
≔
Scable ――――
→
=
Scable ―――
⋅
(
(T)
) 4
⋅
EC AC
,
solve Scable
―――
166.64
⋅
AC EC
→
Scable ―――
166.64
⋅
AC EC
≔
Δ1VC ―――――――
→
=
Δ1VC ⋅
―
5
3
Scable
,
,
,
solve Δ1VC float 6
―――
277.733
⋅
AC EC
→
Δ1VC ―――
277.733
⋅
AC EC
.........(2) deformación de cable
de los resultados (1) y (2)
≔
EC ⋅
200 106
KN/m2 ≔
AC ⋅
2 10-4
m2
=
Acable 200 mm2 ≔
Ib 10-4
m4
≔
Eb ⋅
200 106
m4
≔
ΔVC →
+
Δ1VC Δ2VC +
―――
277.733
⋅
AC EC
――
37.5
⋅
Eb Ib
―――
→
ΔVC
,
float 5
0.0088183
≔
ΔVC ―――
→
⋅
ΔVC 103
,
float 3
8.82 m
=
ΔVC 8.82 mm
VERIFICANDO LOS RESULTADOS EN EL SAP2000
=
ΔVC 8.82
VERIFICANDO LOS RESULTADOS EN EL SAP2000
REACCIONES
DMF
DEFLEXIÓN VERTICAL "C"
PREGUNTA #2
SISTEMA REAL
=
∑Fy 0
≔
Ay ⋅
20 5
=
Ay 100 KN
=
∑MA 0
≔
MA ―――
→
=
-
MA ⋅
⋅
20 (
(5)
) (
(2.5)
) 0
,
solve MA
250.0
=
MA 250 KN.m
CORTE 1-1 ≥
≥
5 X 0
≔
M⎛
⎝x1
⎞
⎠ ⋅
⋅
-20 x1
⎛
⎜
⎝
―
x1
2
⎞
⎟
⎠
――
→
M⎛
⎝x1
⎞
⎠
series
-⎛
⎝ ⋅
10 x1
2 ⎞
⎠
=
M(
(0)
) 0
=
M(
(5)
) -250
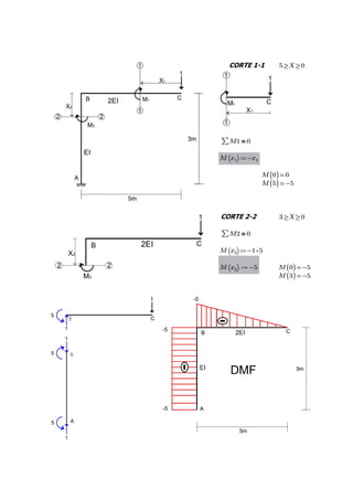
CORTE 2-2 ≥
≥
3 X 0
≔
M⎛
⎝x2
⎞
⎠ ⋅
⋅
-20 5 2.5
→
M⎛
⎝x2
⎞
⎠ -250.0
=
M(
(0)
) -250
=
M(
(3)
) -250
CARGA UNITARIA EN EL PUNTO "C"
=
∑Fy 0
≔
AY 1
=
AY 1 KN
=
∑MA 0
≔
MA ――
→
=
-
MA ⋅
1 (
(5)
) 0
solve
5
=
MA 5 KNm
CORTE 1-1 ≥
≥
5 X 0
=
∑M1 0
≔
M⎛
⎝x1
⎞
⎠ -x1
=
M(
(0)
) 0
=
M(
(5)
) -5
CORTE 2-2 ≥
≥
3 X 0
=
∑M2 0
≔
M⎛
⎝x2
⎞
⎠ ⋅
-1 5
→
M⎛
⎝x2
⎞
⎠ -5 =
M(
(0)
) -5
=
M(
(3)
) -5
INTEGRALES DE MORH
=
ΔVc +
Δ1 Δ2
*Tramo AB: =
LAB 3
=
Δ1 ――
1
EI
≔
Δ1 ―――――→
⋅
⋅
⋅
――
1
EI
(
(-250)
) (
(-5)
) (
(3)
)
,
,
combine float 6
―――
3750.0
EI
→
Δ1 ―――
3750.0
EI
*Tramo BC: =
LBC 5
=
Δ2 ――
1
2 EI
≔
Δ2 ――――――
→
⋅
――
1
2 EI
⎛
⎜
⎝
⋅
⋅
―
1
4
(
(-250)
) (
(-5)
) (
(5)
)
⎞
⎟
⎠
,
,
simplify float 6
―――
781.25
EI
→
Δ2 ―――
781.25
EI
≔
ΔVc ――――――
→
+
Δ1 Δ2
,
,
simplify float 6
―――
4531.25
EI
―――
→
ΔVc
simplify
―――
4531.25
EI
VERIFICANDO LOS RESULTADOS EN EL SAP2000
REACCIONES
DMF
DEFLEXIÓN VERTICAL "C"

Pdf integrales

  • 1.
    UNIVERSIDAD NACIONAL FEDERICO VILLARREAL "SOLUCIÓNINTEGRALES DE MORH" PROFESOR: Ing. Juan Percy Zapata Igreda CURSO: Análisis Estructural 1 SECCIÓN: D ALUMNOS: Ccorpuna Ataucuri Roger Efraín Chipana Bramon Juan Víctor Hilario Bravo Lenin Barroso Pachapuma Jose Rodas Lucar Erika 2021
  • 2.
    PROBLEMA #1 SISTEMA REAL = ∑Fx0 = Ax 0 = ∑MA 0 ≔ TY ―――――― → = - 3 TY ⋅ ⋅ 10 5 2.5 0 , , , solve TY float 5 41.667 = TY 41.667 KN = ∑Fy 0 ≔ AY ――― → = - + AY TY ⋅ 10 5 0 , solve AY 8.333 = AY 8.333 KN
  • 3.
    CARGA UNITARIA ENEL PUNTO "C" = ∑Fx 0 = Ax 0 = ∑MA 0 ≔ Ty ――― → = - 3 Ty ⋅ 1 5 0 , solve Ty ― 5 3 = Ty 1.667 KN = ∑Fy 0 ≔ Ay ――― → = - + -Ay Ty 1 0 , solve Ay ― 2 3 = Ay 0.667 KN
  • 4.
    INTEGRALES DE MORH = Δ2VC―― 1 ⋅ Ab Ib -―― 1 ⋅ Ab Ib +―― 1 ⋅ Ab Ib ≔ Δ2VC ――― → + ―― 1 ⋅ Eb Ib ⎛ ⎜ ⎝ - ⋅ ⋅ ⋅ ― 1 4 45 2 3 ⋅ ⋅ ― 1 3 25 2 3 ⎞ ⎟ ⎠ ⋅ ―― 1 ⋅ Eb Ib ――― ⋅ ⋅ 20 2 2 4 , float 3 ―― 37.5 ⋅ Eb Ib Deflexión → Δ2VC ―― 37.5 ⋅ Eb Ib ........(1) de la viga
  • 5.
    deformación de cable = Scable――― ⋅ T LC ⋅ EC AC ≔ T 41.66 = LC 4 ≔ Scable ―――― → = Scable ――― ⋅ ( (T) ) 4 ⋅ EC AC , solve Scable ――― 166.64 ⋅ AC EC → Scable ――― 166.64 ⋅ AC EC ≔ Δ1VC ――――――― → = Δ1VC ⋅ ― 5 3 Scable , , , solve Δ1VC float 6 ――― 277.733 ⋅ AC EC → Δ1VC ――― 277.733 ⋅ AC EC .........(2) deformación de cable de los resultados (1) y (2) ≔ EC ⋅ 200 106 KN/m2 ≔ AC ⋅ 2 10-4 m2 = Acable 200 mm2 ≔ Ib 10-4 m4 ≔ Eb ⋅ 200 106 m4 ≔ ΔVC → + Δ1VC Δ2VC + ――― 277.733 ⋅ AC EC ―― 37.5 ⋅ Eb Ib ――― → ΔVC , float 5 0.0088183 ≔ ΔVC ――― → ⋅ ΔVC 103 , float 3 8.82 m = ΔVC 8.82 mm VERIFICANDO LOS RESULTADOS EN EL SAP2000
  • 6.
    = ΔVC 8.82 VERIFICANDO LOSRESULTADOS EN EL SAP2000 REACCIONES DMF DEFLEXIÓN VERTICAL "C"
  • 7.
    PREGUNTA #2 SISTEMA REAL = ∑Fy0 ≔ Ay ⋅ 20 5 = Ay 100 KN = ∑MA 0 ≔ MA ――― → = - MA ⋅ ⋅ 20 ( (5) ) ( (2.5) ) 0 , solve MA 250.0 = MA 250 KN.m CORTE 1-1 ≥ ≥ 5 X 0 ≔ M⎛ ⎝x1 ⎞ ⎠ ⋅ ⋅ -20 x1 ⎛ ⎜ ⎝ ― x1 2 ⎞ ⎟ ⎠ ―― → M⎛ ⎝x1 ⎞ ⎠ series -⎛ ⎝ ⋅ 10 x1 2 ⎞ ⎠ = M( (0) ) 0 = M( (5) ) -250 CORTE 2-2 ≥ ≥ 3 X 0 ≔ M⎛ ⎝x2 ⎞ ⎠ ⋅ ⋅ -20 5 2.5 → M⎛ ⎝x2 ⎞ ⎠ -250.0 = M( (0) ) -250 = M( (3) ) -250
  • 8.
    CARGA UNITARIA ENEL PUNTO "C" = ∑Fy 0 ≔ AY 1 = AY 1 KN = ∑MA 0 ≔ MA ―― → = - MA ⋅ 1 ( (5) ) 0 solve 5 = MA 5 KNm
  • 9.
    CORTE 1-1 ≥ ≥ 5X 0 = ∑M1 0 ≔ M⎛ ⎝x1 ⎞ ⎠ -x1 = M( (0) ) 0 = M( (5) ) -5 CORTE 2-2 ≥ ≥ 3 X 0 = ∑M2 0 ≔ M⎛ ⎝x2 ⎞ ⎠ ⋅ -1 5 → M⎛ ⎝x2 ⎞ ⎠ -5 = M( (0) ) -5 = M( (3) ) -5
  • 10.
    INTEGRALES DE MORH = ΔVc+ Δ1 Δ2 *Tramo AB: = LAB 3 = Δ1 ―― 1 EI ≔ Δ1 ―――――→ ⋅ ⋅ ⋅ ―― 1 EI ( (-250) ) ( (-5) ) ( (3) ) , , combine float 6 ――― 3750.0 EI → Δ1 ――― 3750.0 EI
  • 11.
    *Tramo BC: = LBC5 = Δ2 ―― 1 2 EI ≔ Δ2 ―――――― → ⋅ ―― 1 2 EI ⎛ ⎜ ⎝ ⋅ ⋅ ― 1 4 ( (-250) ) ( (-5) ) ( (5) ) ⎞ ⎟ ⎠ , , simplify float 6 ――― 781.25 EI → Δ2 ――― 781.25 EI ≔ ΔVc ―――――― → + Δ1 Δ2 , , simplify float 6 ――― 4531.25 EI ――― → ΔVc simplify ――― 4531.25 EI VERIFICANDO LOS RESULTADOS EN EL SAP2000 REACCIONES
  • 12.