1. Product Lineup …………………………………………… 2
2. Comparison of Previous and New Models……………… 3
3. Replacement of Previous Models with New Models …… 6
4. Compatibility of Optional Accessories…………………… 9
5. Outline Dimensions of Previous and New Models……… 12
( 3 0 t o 2 5 0 A F r a m e )
Comparison of Previous and New Models
MOLDED-CASE CIRCUIT BREAKERS & EARTH-LEAKAGE CIRCUIT BREAKERS
MOLDED-CASE CIRCUIT BREAKERS &
EARTH-LEAKAGE CIRCUIT BREAKERS
1. Product Lineup
Frame A
Series
30
32
125 160 250 400 630 800 1000 1250 160063
Frame A
Series
Frame A
Series
30
32
125 160 250 400 630 800 1000 125063
30
32
125 25063
Molded-casecircuitbreakersEarth-leakagecircuitbreakers
Formotor
protection
NF-C
Commercial
product
NF-S
General-
purpose
product
NV-C
Commercial
product
NV-S
General-
purpose
product
NF-H
High-
performance
product
NV-H
High-
performance
product
NF-U
Ultra current-
limiting
breaker
MB
Motor breaker
NF63-CV NF125-CV
NF125-SGV
NF125-SEV
NF160-SGV
NF160-LGV
NF160-HGV
NF125-LGV
NF125-HV
NF125-HGV
NF125-HEV
NF250-CV
NF250-RGV
NF250-UGV
NF30-CS
NF32-SV 400-SW 630-SW 800-SDW
400-SEW 630-SEW 800-SEW
400-HEW 630-HEW 800-HEW
400-REW 630-REW 800-REW
400-UEW 800-UEW
NF
1000-SEW
NF
1250-SEW
NF
1600-SEW
NF63-SV
NF63-HV
NF125-SV
NV63-CV NV125-CV
NV32-SV
NF32-SV MB
NV63-SV
NV63-HV
NV125-SV
NV125-HV
NF125-UGV
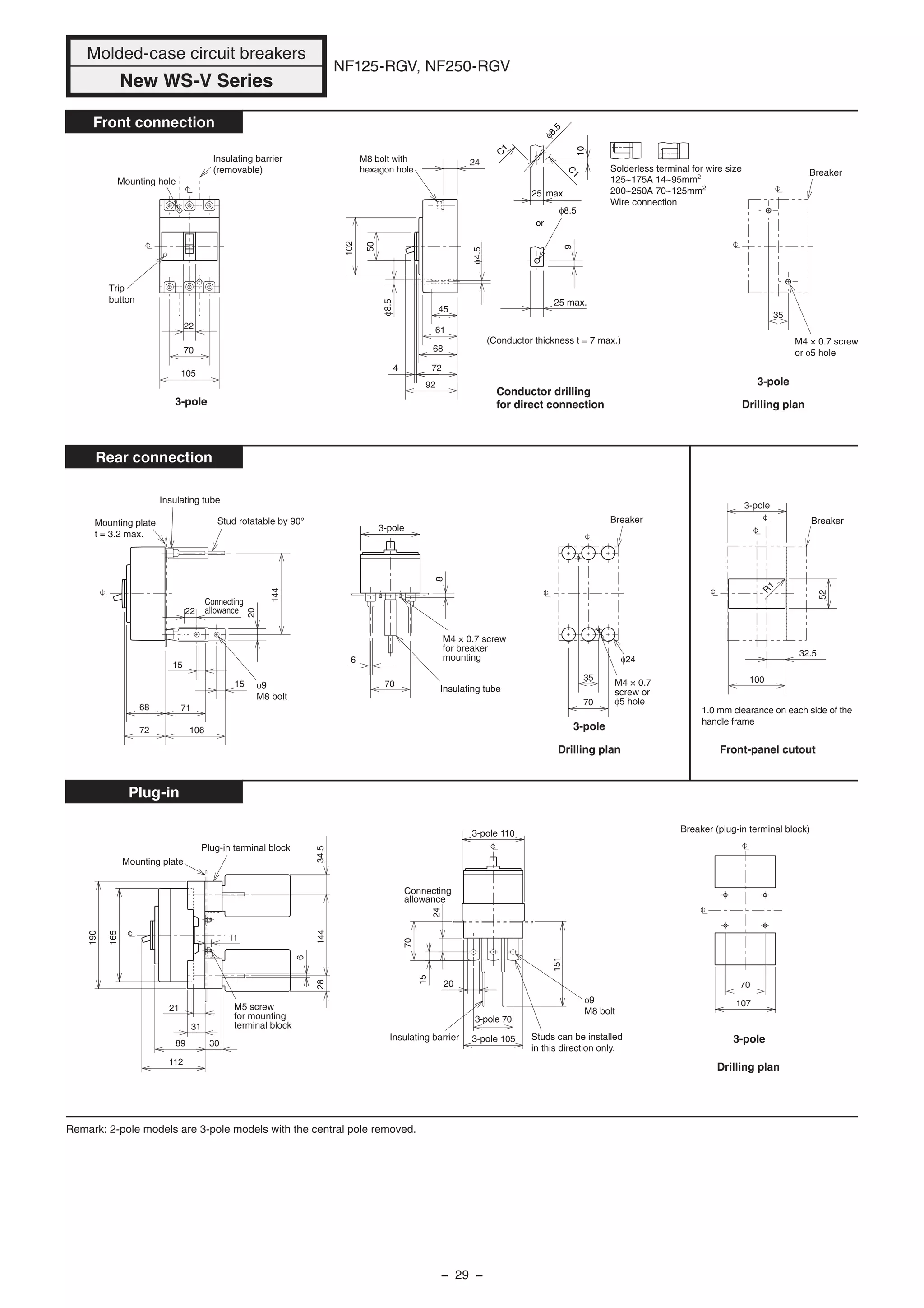
NF125-RGV
NF250-SV
NF250-SGV
NF250-SEV
NV250-CV
NV250-SV
NV250-SEV
NV250-HEV
NV250-HV
NF63-CV MB
NF63-SV MB
NF125-SV MB NF250-SV MB
NF250-LGV
NF250-HV
NF250-HGV
NF250-HEV
400-CW
400-SW
400-SEW
400-HEW
400-REW
400-CW
630-SW
630-SEW
630-HEW 800-HEW
800-SEW630-CW
630-CW 800-CEW
MB30-CS
New models
NV125-SEV
NV125-HEV
− 1 −
2. Comparison of Previous and New Models
Series Previous W & WS Series New WS-V Series Differences in dimensions and performance between previous and new models
NF-C
NF63-CW NF63-CV
Same dimension
Change of tripping method (from hydraulicmagnetic to thermal magnetic)
Changes in operating characteristics
Change to running on both AC/DC
Increase in breaking capacity
NF125-CW NF125-CV No changes in dimensions and performance
NF250-CW NF250-CV
Same dimension
Change in instantaneous value of 250 A rated model (from 10 times to 12 times ± 20%)
Increase in breaking capacity
NF-S
NF32-SW NF32-SV
Same dimension
Change of tripping method (from hydraulicmagnetic to thermal magnetic)
Changes in operating characteristics
Change to running on both AC/DC
Increase in breaking capacity
NF63-SW NF63-SV
Same dimension
Change of tripping method (from hydraulicmagnetic to thermal magnetic)
Changes in operating characteristics
Change to running on both AC/DC
Increase in breaking capacity
NF125-SW NF125-SV
Same dimension
Increase in breaking capacity
Capable of breaking 690 V AC
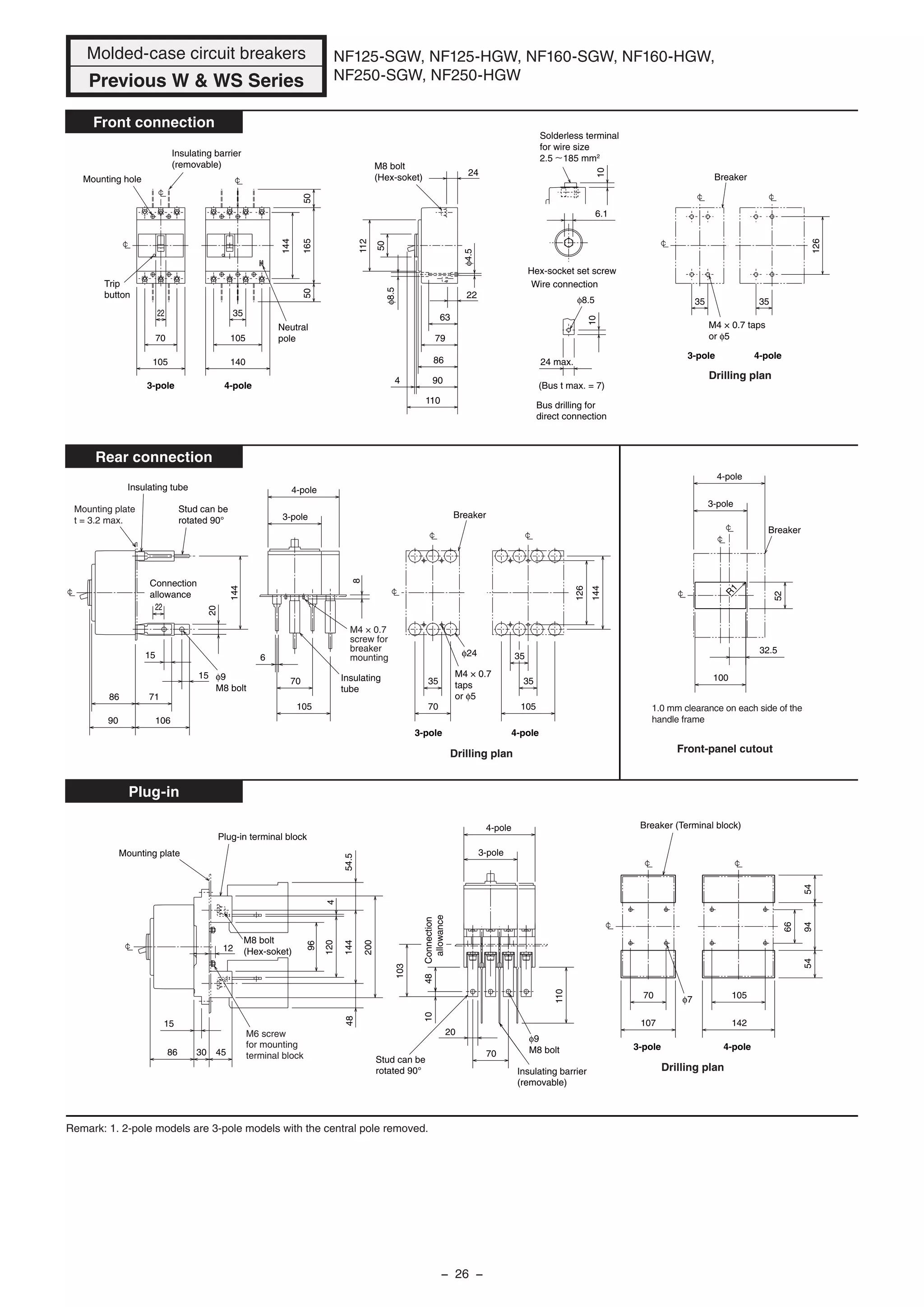
NF125-SGW RT NF125-SGV
Change in depth (from 86 mm to 68 mm)
Change in rated current adjustable range
Adjustable instantaneous value ➞ Unadjustable
NF125-SGW RE NF125-SEV Change in depth (from 86 mm to 68 mm)
NF160-SW NF250-SV 125 150 160A Addition of 160 A model
NF160-SGW RT NF160-SGV
Change in depth (from 86 mm to 68 mm)
Adjustable instantaneous value ➞ Unadjustable
NF160-SGW RE NF250-SEV 80-160A
Change in depth (from 86 mm to 68 mm)
Addition of 80-160 A model
NF250-SW NF250-SV
Same dimension
Change in instantaneous value of 250 A rated model (from 10 times to 12 times ± 20%)
Increase in breaking capacity
Capable of breaking 690 V AC
NF250-SGW RT NF250-SGV
Change in depth (from 86 mm to 68 mm)
Adjustable instantaneous value ➞ Unadjustable
NF250-SGW RE NF250-SEV Change in depth (from 86 mm to 68 mm)
− 2 −
Series Previous W & WS Series New WS-V Series Differences in dimensions and performance between previous and new models
NF-H
NF63-HW NF63-HV
Same dimension
Change of tripping method (from hydraulicmagnetic to thermal magnetic)
Changes in operating characteristics
Change to running on both AC/DC
Increase in breaking capacity
NF125-HW NF125-HV
Same dimension
Applicable to rated current of 125 A
Increase in breaking capacity
NF125-HGW RT NF125-HGV
Change in depth (from 86 mm to 68 mm)
Change in rated current adjustable range
Adjustable instantaneous value ➞ Unadjustable
Decrease in breaking capacity at 690 V AC
NF125-HGW RE NF125-HEV
Change in depth (from 86 mm to 68 mm)
Decrease in breaking capacity at 690 V AC
NF160-HW NF250-HV 125 150 160A Addition of 160 A model
NF160-HGW RT NF160-HGV
Change in depth (from 86 mm to 68 mm)
Adjustable instantaneous value ➞ Unadjustable
Decrease in breaking capacity at 690 V AC
NF160-HGW RE NF250-HEV 80-160A
Addition of 80-160 A model
Change in depth (from 86 mm to 68 mm)
Decrease in breaking capacity at 690 V AC
NF250-HW NF250-HV
Same dimension
Applicable to rated current of 250 A (instantaneous value = 12 times ± 20%)
Increase in breaking capacity
NF250-HGW RT NF250-HGV
Change in depth (from 86 mm to 68 mm)
Adjustable instantaneous value ➞ Unadjustable
Decrease in breaking capacity at 690 V AC
NF250-HGW RE NF250-HEV
Change in depth (from 86 mm to 68 mm)
Decrease in breaking capacity at 690 V AC
NF-U
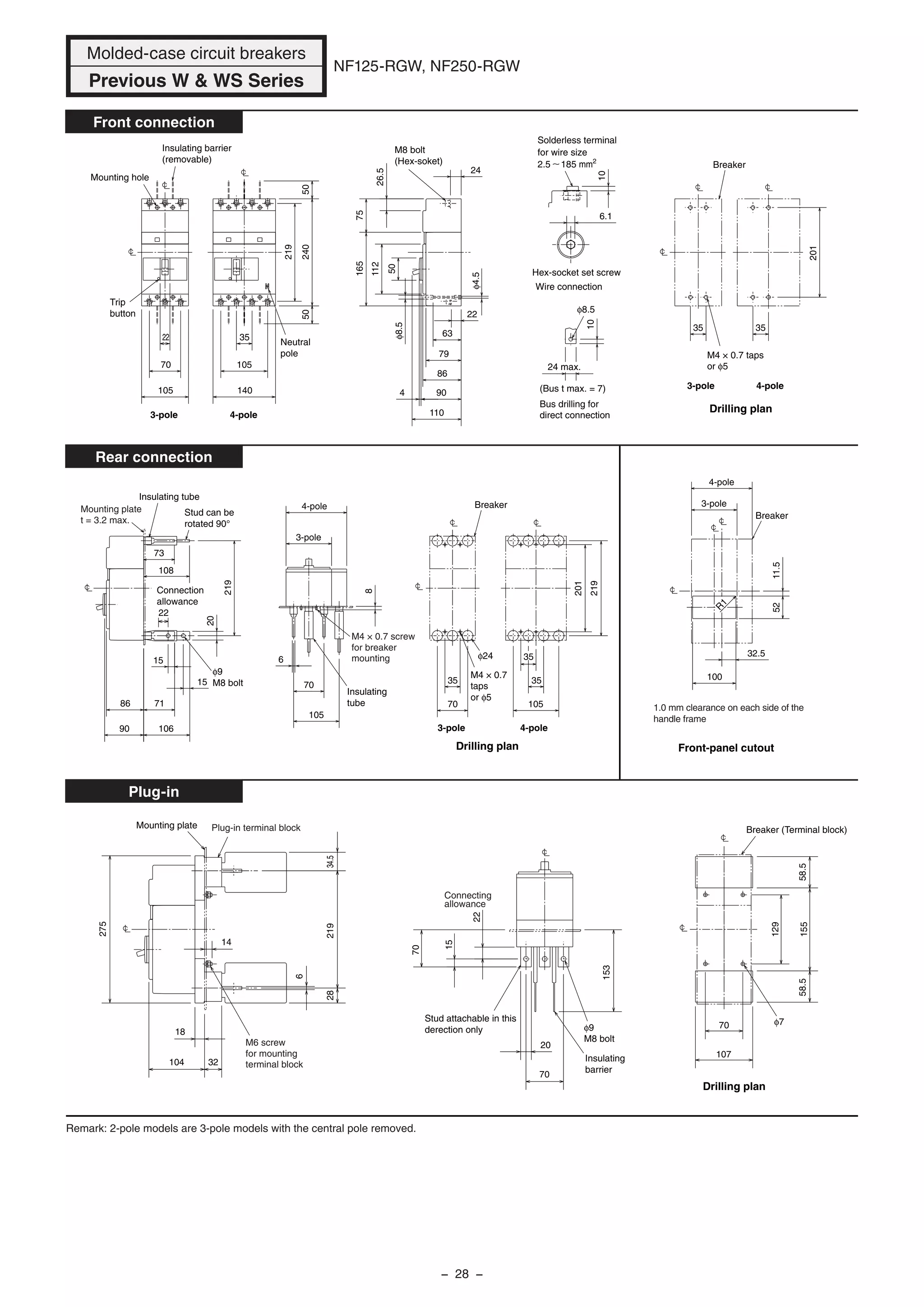
NF125-RGW RT NF125-RGV
Changes in dimensions (height: from 240 mm to 165 mm, depth: from 86 mm to 68 mm)
Change in rated current adjustable range
Applicable to rated current of 125 A
Increase in breaking capacity at 415 V AC or less
Rated working voltage of below 500 V AC
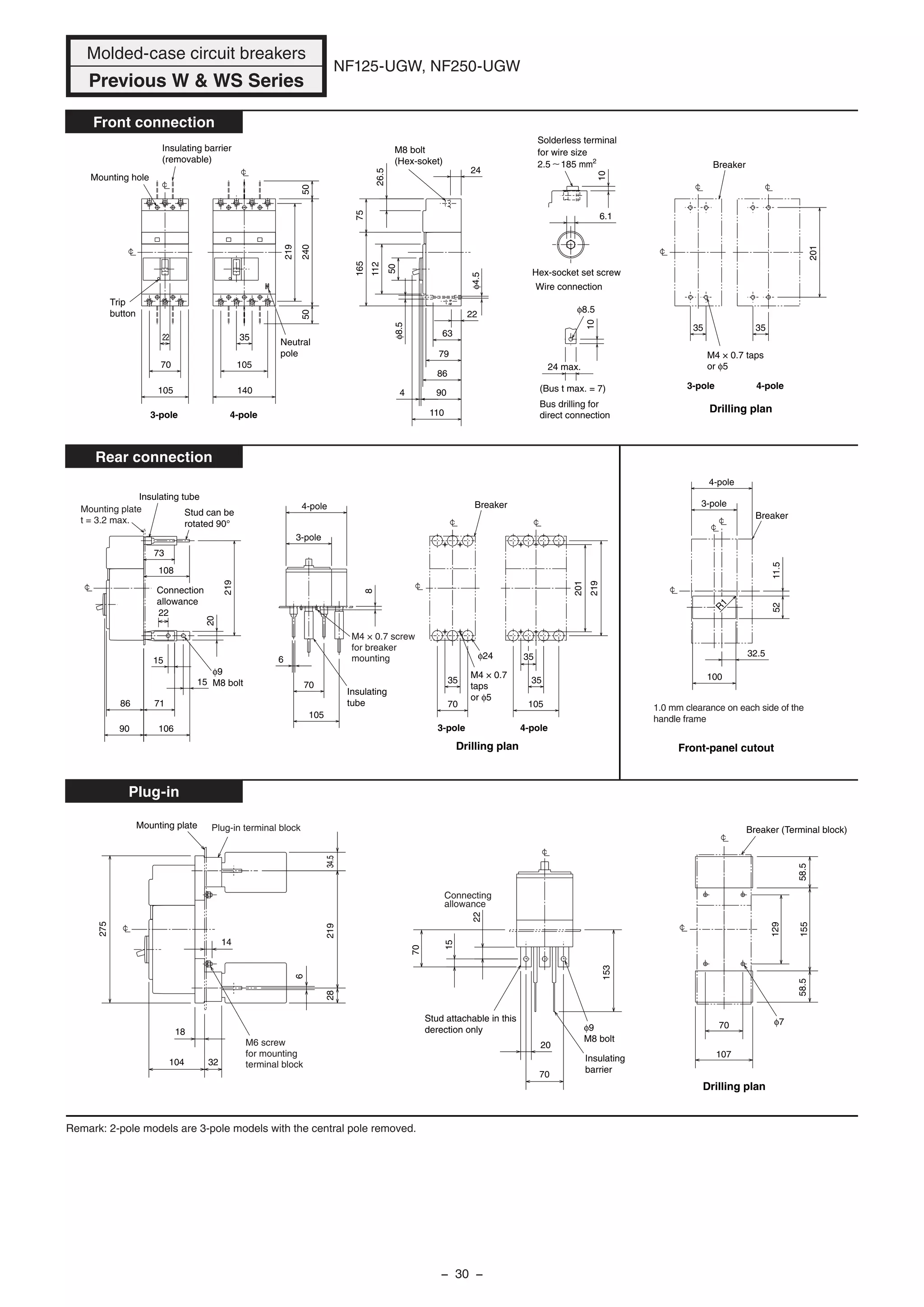
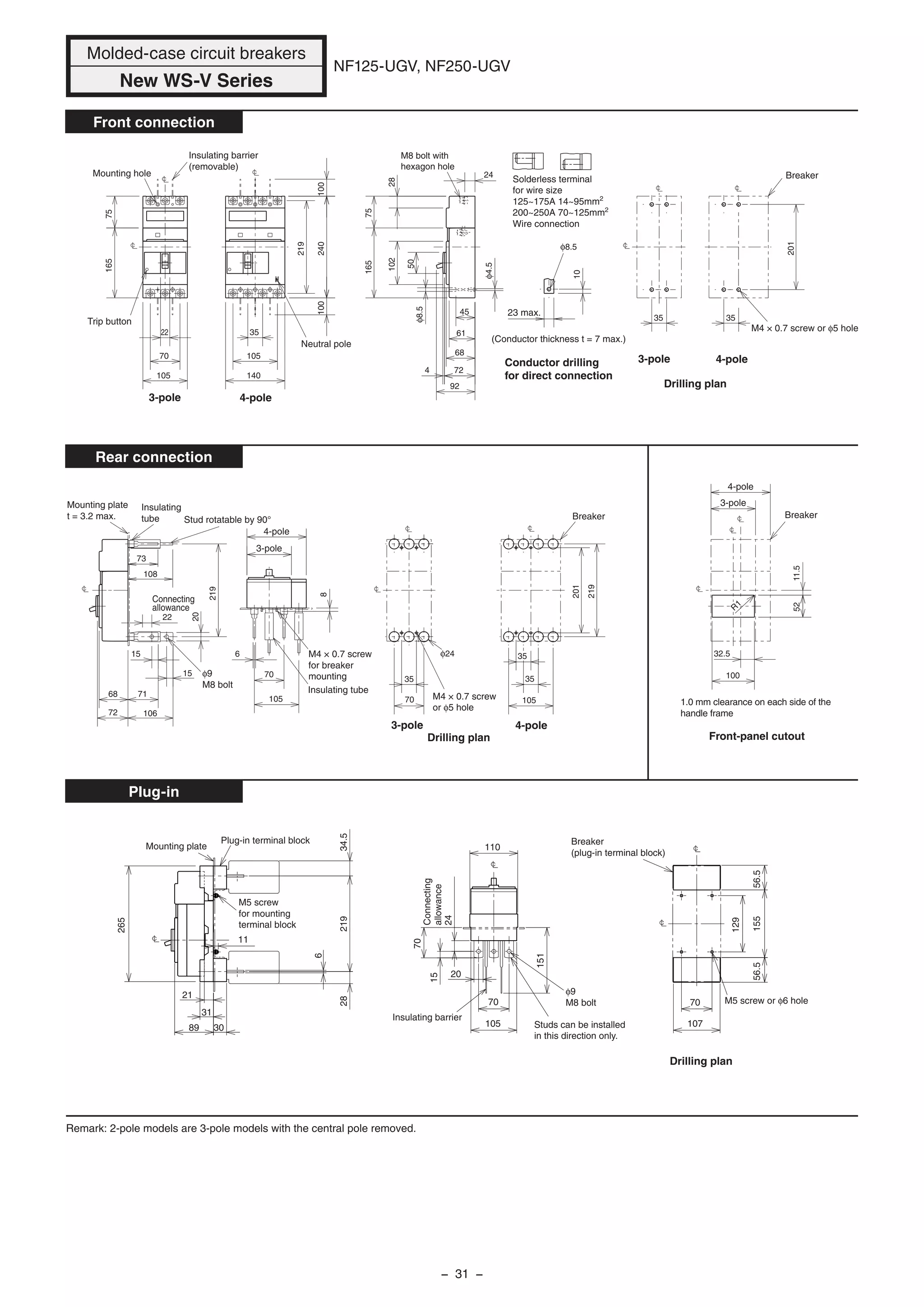
NF125-UGW RT NF125-UGV
Change in depth (from 86 mm to 68 mm)
Change in rated current adjustable range
Applicable to rated current of 125 A
Decrease in breaking capacity at 690 V AC
NF250-RGW RT NF250-RGV
Changes in dimensions (height: from 240 mm to 165 mm, depth: from 86 mm to 68 mm)
Applicable to rated current of 250 A
Increase in breaking capacity at 415 V AC or less
Rated working voltage of below 500 V AC
NF250-UGW RT NF250-UGV
Change in depth (from 86 mm to 68 mm)
Applicable to rated current of 250 A
Decrease in breaking capacity at 690 V AC
NV-C
NV63-CW NV63-CV
Same dimension
Change of tripping method (from hydraulicmagnetic to thermal magnetic)
Changes in operating characteristics
Increase in breaking capacity
NV125-CW NV125-CV No changes in dimensions and performance
NV250-CW NV250-CV
Same dimension
Increase in breaking capacity
− 3 −
Series Previous W & WS Series New WS-V Series Differences in dimensions and performance between previous and new models
NV-S
NV32-SW NV32-SV
Same dimension
Change of tripping method (from hydraulicmagnetic to thermal magnetic)
Changes in operating characteristics
Increase in breaking capacity
NV63-SW NV63-SV
Same dimension
Change of tripping method (from hydraulicmagnetic to thermal magnetic)
Changes in operating characteristics
Increase in breaking capacity
NV125-SW NV125-SV
Same dimension
Increase in breaking capacity
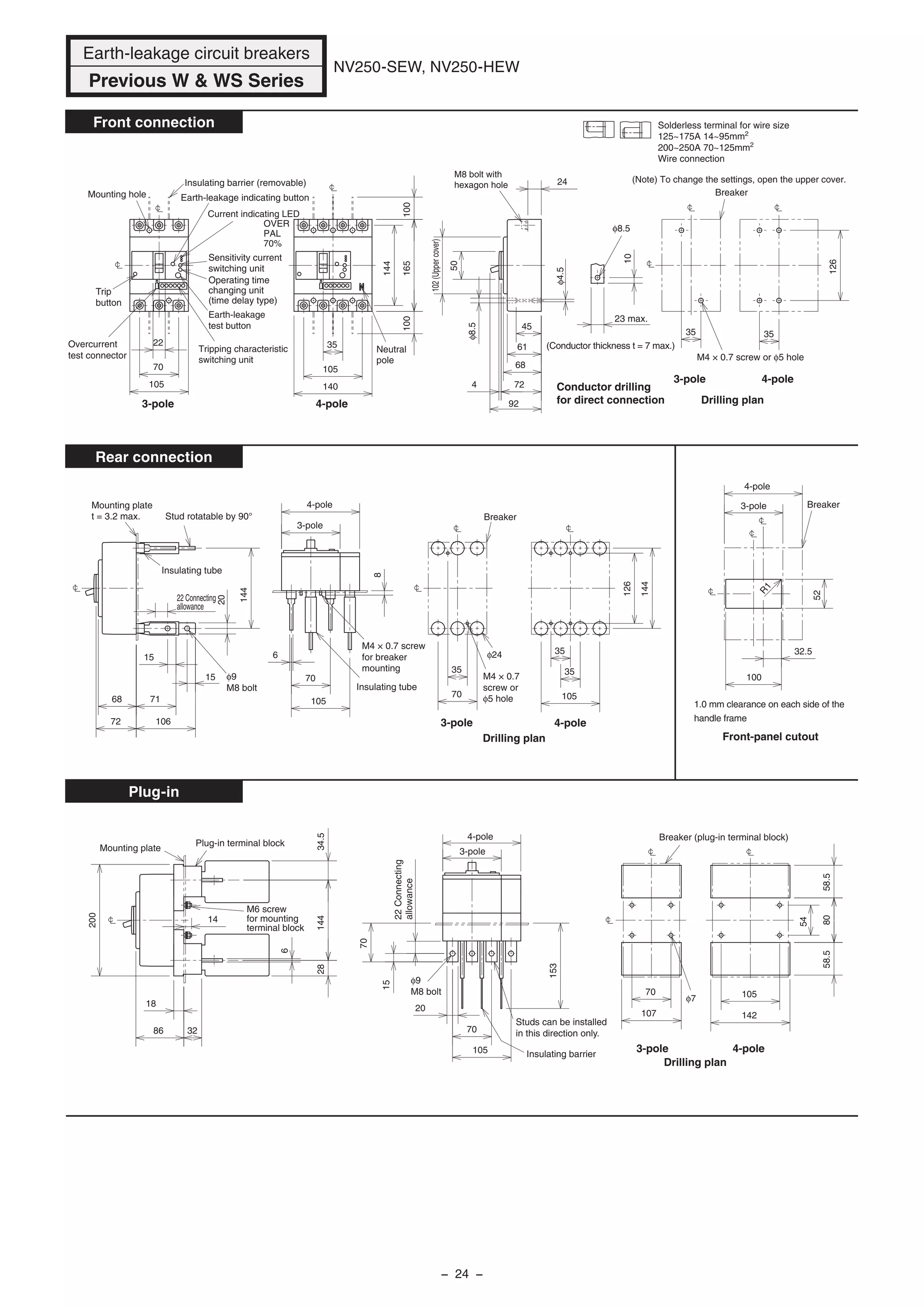
NV250-SW NV250-SV
Same dimension
Increase in breaking capacity
NV250-SEW NV250-SEV
Same dimension
Applicable to rated current of 250 A
Increase in breaking capacity
NV-H
NV63-HW NV63-HV
Same dimension
Change of tripping method (from hydraulicmagnetic to thermal magnetic)
Changes in operating characteristics
Increase in breaking capacity
NV125-HW NV125-HV
Same dimension
Applicable to rated current of 125 A
Increase in breaking capacity
NV250-HW NV250-HV
Same dimension
Applicable to rated current of 250 A
Increase in breaking capacity
NV250-HEW NV250-HEV
Same dimension
Applicable to rated current of 250 A
Increase in breaking capacity
MB
MB50-CW NF63-CV (Note)
Same dimension
Change of tripping method (from hydraulicmagnetic to thermal magnetic)
Changes in operating characteristics
Increase in breaking capacity
MB30-SW NF32-SV (Note)
Same dimension
Change of tripping method (from hydraulicmagnetic to thermal magnetic)
Changes in operating characteristics
Increase in breaking capacity
MB50-SW NF63-SV (Note)
Same dimension
Change of tripping method (from hydraulicmagnetic to thermal magnetic)
Changes in operating characteristics
Increase in breaking capacity
MB100-SW NF125-SV (Note)
Same dimension
Increase in breaking capacity
MB225-SW NF250-SV (Note)
Same dimensions and characteristics
Increase in breaking capacity
Note: The circuit breakers for motor protection have the same basic model names as NF/NV.
● New models
Model name Remarks
NF125-LGV, NF160-LGV, NF250-LGV Thermally adjustable models having breaking capacity of 50 kA at 440 V AC are newly introduced.
NV125-SEV, NV125-HEV Electronic breakers
− 4 −
3. Replacement of Previous Models with New Models
(1) Circuit breaker body (front connection, with 3 poles)
NF32-SW
NF63-CW/SW/HW
MB30-SW
MB50-CW/SW
Previous
W & WS
Series
New
WS-V
Series
Drilling
dimension
Front plate
cutout plan
NF32-SV
NF63-CV/SV/HV
NF125-CW/SW/HW
MB100-SW
NF125-CV/SV/HV
Previous
W & WS
Series
New
WS-V
Series
Drilling
dimension
NV32-SW
NV63-CW/SW/HW
NV32-SV
NV63-CV/SV/HV
NV125-CW/SW/HW
NV125-CV/SV/HV
NV250-CW/SW/HW
NV250-SEW/HEW
NV250-CV/SV/HV
NV250-SEV/HEV
Front plate
cutout plan
No change
No change
No change No change No change No change
No change No change
No change No change No change
No change No change No change
No change No change
M4×0.7 screw
or φ5 hole
Breaker
111
25
Breaker
70
52
R
1
M4×0.7 screw
or φ5 hole
Breaker
111
30
Breaker
52
86
R
1
111
30
Breaker
M4×0.7
screw or
φ5 hole
R1
86
52
Breaker
25
111
M4×0.7 screw
or φ5 hole Breaker
70
52
R1
Breaker
NF160-SW/HW
NF250-CW/SW/HW
MB225-SW
NF250-CV/SV/HV
52
100
Breaker
R
1
35
126
Breaker
M4×0.7 screw
or φ5 hole
NF125-SGW/HGW
NF160-SGW/HGW
NF250-SGW/HGW
NF125-SGV/LGV/HGV
NF125-SEV/HEV
NF160-SGV/LGV/HGV
NF250-SGV/LGV/HGV
NF250-SEV/HEV
52
100
Breaker
R
1
35
126
Breaker
M4×0.7 screw
or φ5 hole
NF125-RGW/UGW
NF250-RGW/UGW
NF125-RGV
NF250-RGV
NF125-UGV
NF250-UGV
52
100
Breaker
R
1
35
126
Breaker
M4×0.7 screw
or φ5 hole
52
100
11.5
Breaker
R1
201
35
Breaker
M4×0.7
screw or
φ5 hole
35
126
Breaker
M4×0.7 screw
or φ5 hole
52
100
Breaker
R
1
change
change
− 5 −
(2) Circuit breaker and operating handle (front connection, 3P)
NF32-SW
NF63-CW/SW/HW
MB30-SW
MB50-CW/SW
Previous
W & WS
Series
New
WS-V
Series
Previousmodels
New models
Previousmodels
New models
Previousmodels
New models
Drillingdimensionsformountingofcircuitbreaker
Frontplatecutoutdimensions
NF32-SV
NF63-CV/SV/HV
NV32-SW
NV63-CW/SW/HW
NV125-CW/SW/HW
NV32-SV
NV63-CV/SV/HV
NF125-CW/SW/HW
MB100-SW
NF125-CV/SV/HV NV125-CV/SV/HV
105 mm
102 mm
CircuitbreakerbodyFtype
FtypeStypeVtype
StypeVtype
FtypeStypeVtype
Distancebetween
circuitbreaker
bottomandfront
plate
F-05S2, F-05S, F-05SE
F-05SV2, F-05SV, F-05SVE
S-05SW
S-05SV
V-05S, V-05SE
V-05SV, V-05SVE
S-1SW
S-05SV
V-1S, V-1SE
V-1SV, V-1SVE
F-05S, F-05SE
F-05SV, F-05SVE
F-1S2, F-1S, F-1SE
F-1SV2, F-1SV, F-1SVE
F-1S, F-1SE
F-1SV, F-1SVE
No change
No change
No change
No change
No change
No change
No change
No change
No change
No change
125 mm (stationary type)
No change
125 mm (stationary type)
− 6 −
Previous
W & WS
Series
New
WS-V
Series
Previousmodels
New models
Previousmodels
New models
Previousmodels
New models
Drillingdimensionsformountingofcircuitbreaker
Frontplatecutoutdimensions
CircuitbreakerbodyFtype
FtypeStypeVtype
StypeVtype
FtypeStypeVtype
Distancebetween
circuitbreaker
bottomandfront
plate
NF160-SW/HW
NF250-CW/SW/HW
NF250-SEW/HEW
MB225-SW
NF250-CV/SV/HV
NF250-SEV/HEV
NV250-CW/SW/HW
NV250-SEW/HEW
NV250-CV/SV/HV
NV250-SEV/HEV
NF125-SGW/HGW
NF160-SGW/HGW
NF250-SGW/HGW
NF125-SGV/LGV/HGV
NF125-SEV/HEV
NF160-SGV/LGV/HGV
NF250-SGV/LGV/HGV
NF250-SEV/HEV
NF125-RGW/UGW
NF250-RGW/UGW
NF125-RGV
NF250-RGV
NF125-UGV
NF250-UGV
No change
No change
No change
No change
No change
No change
No change
No change
No change
125 mm (stationary type)
F-2S, F-2SE
F-2SV, F-2SVE
S-2SW
S-2SV
V-2S, V-2SE
V-2SV, V-2SVE
F-2UG, F-2UGE
−
V-2UG, V-2UGE
F-2SG, F-2SGE
F-2SV, F-2SVE
S-2GSW
S-2SV
V-2SG, V-2SGE
V-2SV, V-2SVE
F-2SV, F-2SVE
S-2SV
V-2SV, V-2SVE
F-2UV, F-2UVE
−
V-2UV, V-2UVE
New models
110 mm
Previous models
128 mm
New models
107 mm
Previous models
125 mm
No change
No change
No change
No change No changeNo changeNo change
Previous models
143 mm
(stationary type)
New models
125 mm
(stationary type)
New models
110 mm
Previous models
128 mm
New models
107 mm
Previous models
125 mm
Previous models
143 mm
(stationary type)
New models
125 mm
(stationary type)
New models
110 mm
Previous models
128 mm
New models
107 mm
Previous models
125 mm
Previous models
143 mm
(stationary type)
New models
125 mm
(stationary type)
Center of circuit
breaker handle Center of circuit
breaker handle
Center of
circuit
breaker
Center of
operating
handle M4×0.7 screw
or φ5 hole
M4×0.7 screw
or φ5 hole
Previous model New model
Center of
circuit
breaker
and
operating
handle
Differing in hole position
Center of
operating
handle
Center of
operating
handle
M4×0.7 screw
or φ5 hole
M4×0.7 screw
or φ5 hole
M4×0.7 screw
or φ5 hole
M4×0.7 screw
or φ5 hole
Previous model New model
Previous model New model
Center of
circuit
breaker
and
operating
handle
Center of
circuit
breaker
and
operating
handle
Breaker
Breaker
Differing in hole position
Differing in hole position
Center of circuit
breaker handle
Center of circuit
breaker handle
Center of circuit
breaker and circuit
breaker handle
Center of circuit
breaker and circuit
breaker handle
Center of
circuit
breaker
Center of
circuit
breaker
− 7 −
Products
Models Compatibility
Accessories
Applicable models (New models)
New breakers
with previous
accessories
Previous
breakers with
new accessoriesPrevious models New models
Cassette-
type
accessories
(Note)
AL-05SW* AX-05SW*
ALAX-05SW*
AL-05SV* AX-05SV*
ALAX-05SV*
NF/NV32-SV, NF/NV63-CV/SV/HV ✕ ✕
AL-1SW AX-1SW ALAX-1SW NF/NV125-CV/SV/HV ✕ ✕
AL-2SW* AX-2SW*
ALAX-2SW*
NF/NV250-CV/SV/HV ✕ ✕
AL-2GSW* AX-2GSW*
ALAX-2GSW*
NF125-SGV/LGV/HGV/RGV/UGV/SEV/HEV,
NF250-SGV/LGV/HGV/RGV/UGV/SEV/HEV, etc.
✕ ✕
SHTMMMM-05SWR
SHTMMMM-05SVR
NF/NV32-SV, NF/NV63-CV/SV/HV ✕ ✕
SHTMMMM-1SWR NF/NV125-CV/SV/HV ✕ ✕
SHTMMMM-2SWR NF/NV250-CV/SV/HV ✕ ✕
SHTMMMM-2GSWR
NF125-SGV/LGV/HGV/RGV/UGV/SEV/HEV,
NF250-SGV/LGV/HGV/RGV/UGV/SEV/HEV, etc.
✕ ✕
UVTNMMMM-05SW*
UVTNMMMM-05SV*
UVTSMMMM-05SV*
NF/NV32-SV, NF/NV63-CV/SV/HV ✕ ✕
UVTNMMMM-1SW* NF/NV125-CV/SV/HV ✕ ✕
UVTNMMMM-2SW* NF/NV250-CV/SV/HV ✕ ✕
UVTSMMMM-2GSW*
NF125-SGV/LGV/HGV/RGV/UGV/SEV/HEV,
NF250-SGV/LGV/HGV/RGV/UGV/SEV/HEV, etc.
✕ ✕
Rear stud
(B-ST)
ST-05SW2, 3, 4 ST-05SV2, 3, 4 NF/NV32-SV, NF/NV63-CV/SV/HV ✕ ✕
ST-1SW2, 3, 4 ST-1SV2, 3, 4 NF/NV125-CV/SV/HV(3, 4P) ✕ ✕
ST-1HW2 ST-1HV2 NF125-HV(2P) ✕ ✕
ST-2SW2, 3, 4
ST-2SV2, 3, 4
NF/NV250-CV/SV/HV ✕ ✕
ST-2GSW2, 3, 4
NF125-SGV/LGV/HGV/SEV/HEV,
NF250-SGV/LGV/HGV/SEV/HEV, etc.
✕ ✕
Plug-in
terminal
(PM)
PM-05SW2, 3, 4 PMDN-05SV2, 3, 4 NF/NV32-SV, NF/NV63-CV/SV/HV ✕ ✕
PM-NV05SW2 PMDN-NV05SV2 NV63-CV/SV(2P) ✕ ✕
PM-1SW2, 3, 4 PMDN-1SV2, 3, 4 NF/NV125-CV/SV/HV ✕ ✕
PM-1HW2 PMDN-1HV2 NF125-HV(2P) ✕ ✕
PM-2SW2, 3, 4
PMDN-2SV2, 3, 4
NF/NV250-CV/SV/HV ✕ ✕
PM-2GSWIP2, 3, 4
NF125-SGV/LGV/HGV/SEV/HEV,
NF250-SGV/LGV/HGV/SEV/HEV, etc.
✕ ✕
PM-2GUW2, 3
PMDN-2SV2, 3 NF125-RGV, NF250-RGV ✕ ✕
PMDN-2UV2, 3 NF125-UGV, NF250-UGV ✕ ✕
Conductor
(FB)
FB-05SW FB-05SV
NF/NV32-SV,
NF/NV63-CV/SV/HV (50A or less)
K K
FB-1SW FB-1SV NF/NV125-CV/SV/HV K K
FB-2SW FB-2SV NF/NV250-CV/SV/HV K K
Barrier
BAF-05SW BAF-05SV
NF/NV32-SV, NF/NV63-CV/SV/HV,
NF/NV125-CV/SV/HV, etc.
K K
BAF-2SW BAF-2SV NF/NV250-CV/SV/HV, etc. K ✕
BAG-05SW3 BAG-05SV3 NF/NV32-SV, NF/NV63-CV/SV/HV K K
BAG-1SW3 BAG-1SV3 NF/NV125-CV/SV/HV K K
BAG-2SW3
BAG-2SV3
NF/NV250-CV/SV/HV, etc. K K
BAG-2GSW3
NF125-SGV/LGV/HGV/RGV/SEV/HEV,
NF250-SGV/LGV/HGV/RGV/SEV/HEV, etc.
✕ ✕
4. Compatibility of Optional Accessories
Note: In *, a symbol indicating the mounting pole is shown. In M, the voltage is shown.
− 8 −
Products
Models Compatibility
Accessories
Applicable models (New models)
New breakers
with previous
accessories
Previous
breakers with
new accessoriesPrevious models New models
Operating
handle
F-05S2 F-05SV2 NF32-SV(2P), NF63-CV/SV/HV(2P) ✕ ✕
F-05S F-05SV NF/NV32-SV, NF/NV63-CV/SV/HV ✕ ✕
F-1S2 F-1SV2 NF125-CV/SV(2P) ✕ ✕
F-1S F-1SV NF/NV125-CV/SV/HV ✕ ✕
F-2S
F-2SV
NF/NV250-CV/SV/HV ✕ ✕
F-2SG
NF125-SGV/LGV/HGV/RGV/SEV/HEV,
NF250-SGV/LGV/HGV/RGV/SEV/HEV, etc.
✕ ✕
F-2UG F-2UV NF125-UGV, NF250-UGV ✕ ✕
F-RCS (release protection) F-RCS (release protection)
F type operating handle is applicable to all
models.
K K
S-05SW S-05SV NF/NV32-SV, NF/NV63-CV/SV/HV ✕ ✕
S-1SW S-1SV NF/NV125-CV/SV/HV ✕ ✕
S-2SW
S-2SV
NF/NV250-CV/SV/HV ✕ ✕
S-2GSW
NF125-SGV/LGV/HGV/RGV/SEV/HEV,
NF250-SGV/LGV/HGV/RGV/SEV/HEV, etc.
✕ ✕
V-05S2 V-05SV2 NF32-SV(2P), NF63-CV/SV/HV(2P) ✕ ✕
V-05S V-05SV NF/NV32-SV, NF/NV63-CV/SV/HV ✕ ✕
V-1S2 V-1SV2 NF125-CV/SV(2P) ✕ ✕
V-1S V-1SV NF/NV125-CV/SV/HV ✕ ✕
V-2S
V-2SV
NF/NV250-CV/SV/HV ✕ ✕
V-2SG
NF125-SGV/LGV/HGV/RGV/SEV/HEV,
NF250-SGV/LGV/HGV/RGV/SEV/HEV, etc.
✕ ✕
V-2UG V-2UV NF125-UGV, NF250-UGV ✕ ✕
V-AD3S (adjusting unit) V-AD3S (adjusting unit)
V type operating handle is applicable to all
models.
K K
Clamp
TG-S05SW TG-S05SV NF/NV32-SV, NF/NV63-CV/SV/HV, etc. K K
TG-S2SW TG-S2SV NF/NV250-CV/SV/HV, etc. K K
TC-S
TCS-05SW2W, 3W, 4W TCS-05SV2, 3, 4 NF/NV32-SV, NF/NV63-CV/SV/HV K K
TCS-1SW2W, 3W, 4W TCS-1SV2, 3, 4 NF/NV125-CV/SV/HV K K
TCS-2SW3W, 4W
TCS-2SV3, 4
NF/NV250-CV/SV/HV K K
TCS-2GSW3W, 4W
NF125-SGV/LGV/HGV/RGV/UGV/SEV/HEV,
NF250-SGV/LGV/HGV/RGV/UGV/SEV/HEV, etc.
✕ ✕
TC-L
TCL-05SW2W, 3W, 4W TCL-05SV2, 3, 4 NF/NV32-SV, NF/NV63-CV/SV/HV K K
TCL-1SW2W, 3W, 4W TCL-1SV2, 3, 4 NF/NV125-CV/SV/HV K K
TCL-2SW3W, 4W TCL-2SV3, 4
TCL-2SV3L
NF/NV250-CV/SV/HV K K
TCL-2GSW3W, 4W
NF125-SGV/LGV/HGV/RGV/UGV/SEV/HEV,
NF250-SGV/LGV/HGV/RGV/UGV/SEV/HEV, etc.
✕ ✕
TTC
TTC-05SW2, 3 TTC-05SV2, 3 NF/NV32-SV, NF/NV63-CV/SV/HV K K
TTC-1SW2, 3 TTC-1SV2, 3 NF/NV125-CV/SV/HV K K
TTC-2SW3
TTC-2SV3
NF/NV250-CV/SV/HV K K
TTC-2GSW3
NF125-SGV/LGV/HGV/RGV/UGV/SEV/HEV,
NF250-SGV/LGV/HGV/RGV/UGV/SEV/HEV, etc.
✕ ✕
BTC
BTC-05SW2W, 3W BTC-05SV2, 3 NF/NV32-SV, NF/NV63-CV/SV/HV K K
BTC-1SW2W, 3W BTC-1SV2, 3 NF/NV125-CV/SV/HV K K
BTC-2SW3W
BTC-2SV3
NF/NV250-CV/SV/HV K K
BTC-2GSW3W
NF125-SGV/LGV/HGV/RGV/UGV/SEV/HEV,
NF250-SGV/LGV/HGV/RGV/UGV/SEV/HEV, etc.
✕ ✕
PTC
PTC-05SW2W, 3W PTC-05SV2, 3 NF/NV32-SV, NF/NV63-CV/SV/HV ✕ ✕
PTC-1SW2W, 3W PTC-1SV2, 3 NF/NV125-CV/SV/HV ✕ ✕
PTC-2SW3W
PTC-2SV3
NF/NV250-CV/SV/HV ✕ ✕
PTC-2GSW3W
NF125-SGV/LGV/HGV/RGV/UGV/SEV/HEV,
NF250-SGV/LGV/HGV/RGV/UGV/SEV/HEV, etc.
✕ ✕
− 9 −
Note: In *, a symbol indicating the mounting pole is shown. In M, the voltage is shown.
Products
Models Compatibility
Accessories
Applicable models (New models)
New breakers
with previous
accessories
Previous
breakers with
new accessoriesPrevious models New models
Lock cover
LC-05SW LC-05SV NF/NV32-SV, NF/NV63-CV/SV/HV ✕ ✕
LC-1SW LC-1SV NF/NV125-CV/SV/HV ✕ ✕
LC-2SW
LC-2SV
NF/NV250-CV/SV/HV ✕ ✕
LC-2GSW
NF125-SGV/LGV/HGV/RGV/UGV/SEV/HEV,
NF250-SGV/LGV/HGV/RGV/UGV/SEV/HEV, etc.
✕ ✕
Handle lock
HLF-05SW, HLN-05SW HLF-05SV, HLN-05SV NF/NV32-SV, NF/NV63-CV/SV/HV ✕ ✕
HLF-1SW, HLN-1SW HLF-1SV, HLN-1SV NF/NV125-CV/SV/HV ✕ ✕
HLF-2SW, HLN-2SW
HLF-2SV, HLN-2SV
NF/NV250-CV/SV/HV ✕ ✕
HLF-2GSW, HLN-2GSW
NF125-SGV/LGV/HGV/RGV/UGV/SEV/HEV,
NF250-SGV/LGV/HGV/RGV/UGV/SEV/HEV, etc.
✕ ✕
HLS-05SW, HLS-05SW2P HLS-05SV, HLS-05SV2P NF/NV32-SV, NF/NV63-CV/SV/HV ✕ ✕
HLS-1SW, HLS-1SW2P HLS-1SV, HLS-1SV2P NF/NV125-CV/SV/HV ✕ ✕
HLS-2SW
HLS-2SV
NF/NV250-CV/SV/HV ✕ ✕
HLS-2GSW
NF125-SGV/LGV/HGV/RGV/UGV/SEV/HEV,
NF250-SGV/LGV/HGV/RGV/UGV/SEV/HEV, etc.
✕ ✕
SBOX
NFS-05SW2P NFS-05SV2P NF32-SV(2P), NF63-CV/SV/HV(2P), etc. K K
NFS-05SW NFS-05SV NF/NV32-SV, NF/NV63-CV/SV/HV K K
NFS-1SW2P NFS-1SV2P NF125-CV/SV K K
NFS-1SW NFS-1SV NF/NV125-CV/SV/HV K K
NFS-2SW NFS-2SV NF/NV250-CV/SV, etc. K K
IBOX
NFI-05SW NFI-05SV NF/NV32-SV, NF/NV63-CV/SV/HV ✕ ✕
NFI-1SW NFI-1SV NF/NV125-CV/SV/HV ✕ ✕
NFI-2SW NFI-2SV NF/NV250-CV/SV/HV, etc. ✕ ✕
WBOX
NFW-05SW NFW-05SV NF/NV32-SV, NF/NV63-CV/SV/HV ✕ ✕
NFW-1SW NFW-1SV NF/NV125-CV/SV ✕ ✕
NFW-1HW NFW-1HV NF/NV125-HV ✕ ✕
NFW-2SW NFW-2SV NF/NV250-CV/SV/HV, etc. ✕ ✕
Electric
operation
unit
(Note)
MDSMMMM-NF1SWE MDSMMMM-NF1SVE NF125-CV/SV/HV ✕ ✕
MDSMMMM-NV1SWE MDSMMMM-NV1SVE NV125-CV/SV/HV ✕ ✕
MDSMMMM-NF2SWE MDSMMMM-NF2SVE NF250-CV/SV/HV ✕ ✕
MDSMMMM-NF2GSWE MDSMMMM-NF2SVE
NF125-SGV/LGV/HGV/RGV/SEV/HEV,
NF250-SGV/LGV/HGV/RGV/SEV/HEV, etc.
✕ ✕
MDSMMMM-NV2SWE MDSMMMM-NV2SVE NV250-CV/SV/HV ✕ ✕
Mechanical
interlock
MI-05SW3 MI-05SV3
NF/NV32-SV, NF/NV63-CV/SV/HV,
NF/NV125-CV/SV/HV, NF/NV250-CV/SV/HV,
NF125-SGV/LGV/HGV/RGV/UGV/SEV/HEV,
NF250-SGV/LGV/HGV/RGV/UGV/SEV/HEV, etc.
K K
IEC 35 mm
rail mounting
adapter
DIN-05SW DIN-05SV NF/NV32-SV, NF/NV63-CV/SV/HV, etc. ✕ ✕
DIN-1SW2 – No new models ✕ –
DIN-1SW3 – No new models ✕ –
Card holder CH-P NO.5 CH-P NO.5 NF/NV250-SV or lower K K
− 10 −
Previous W & WS Series New WS-V Series
Models Reference page Models Reference page
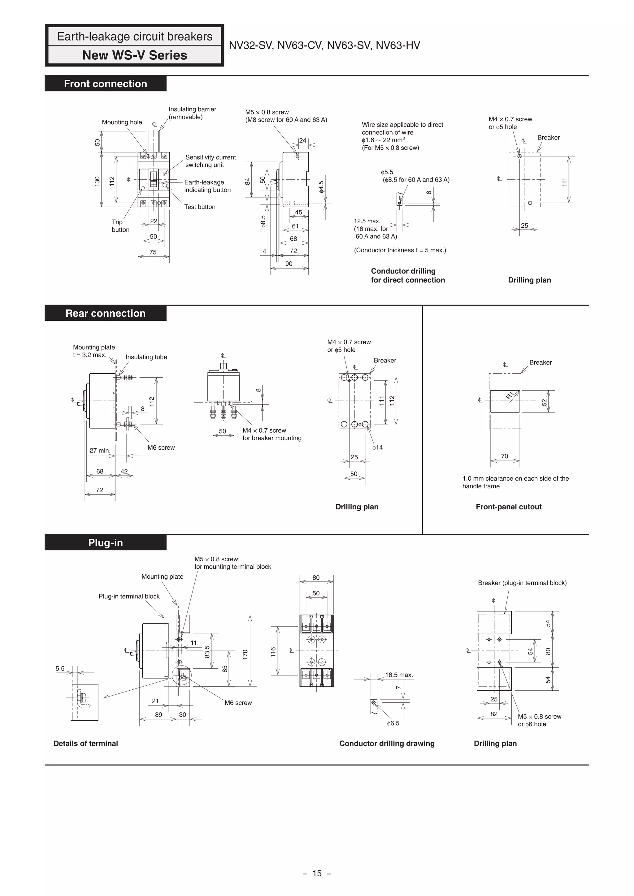
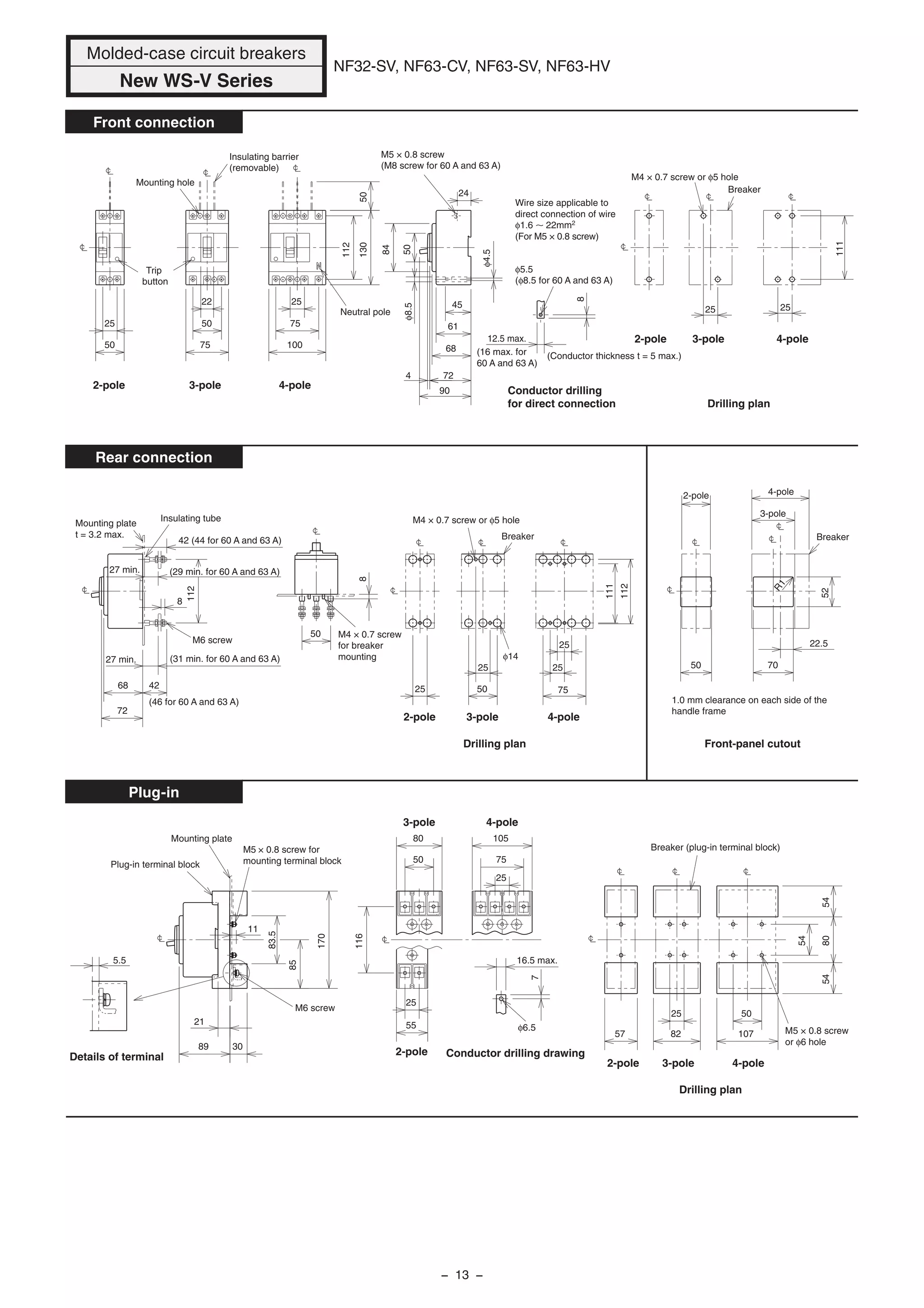
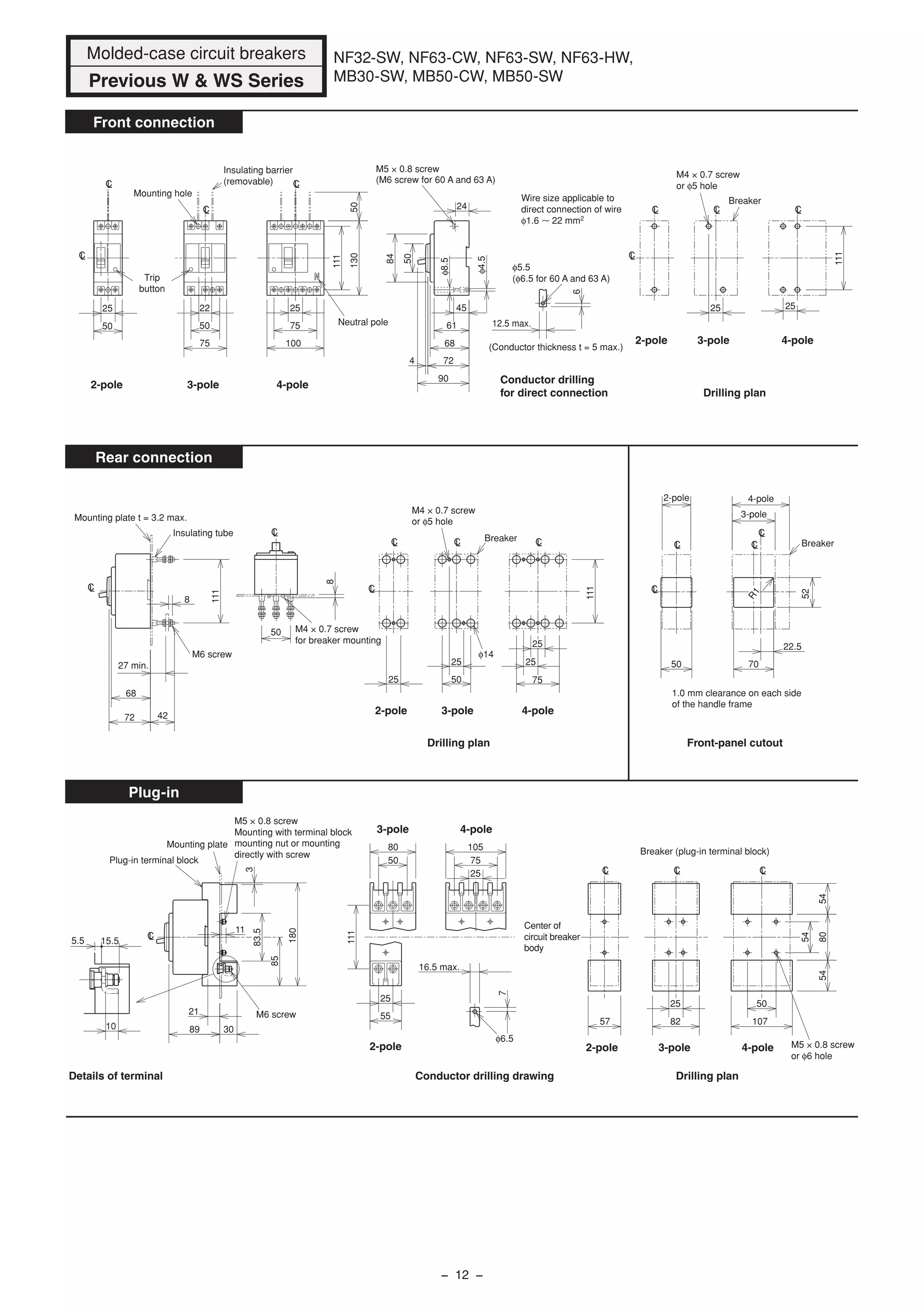
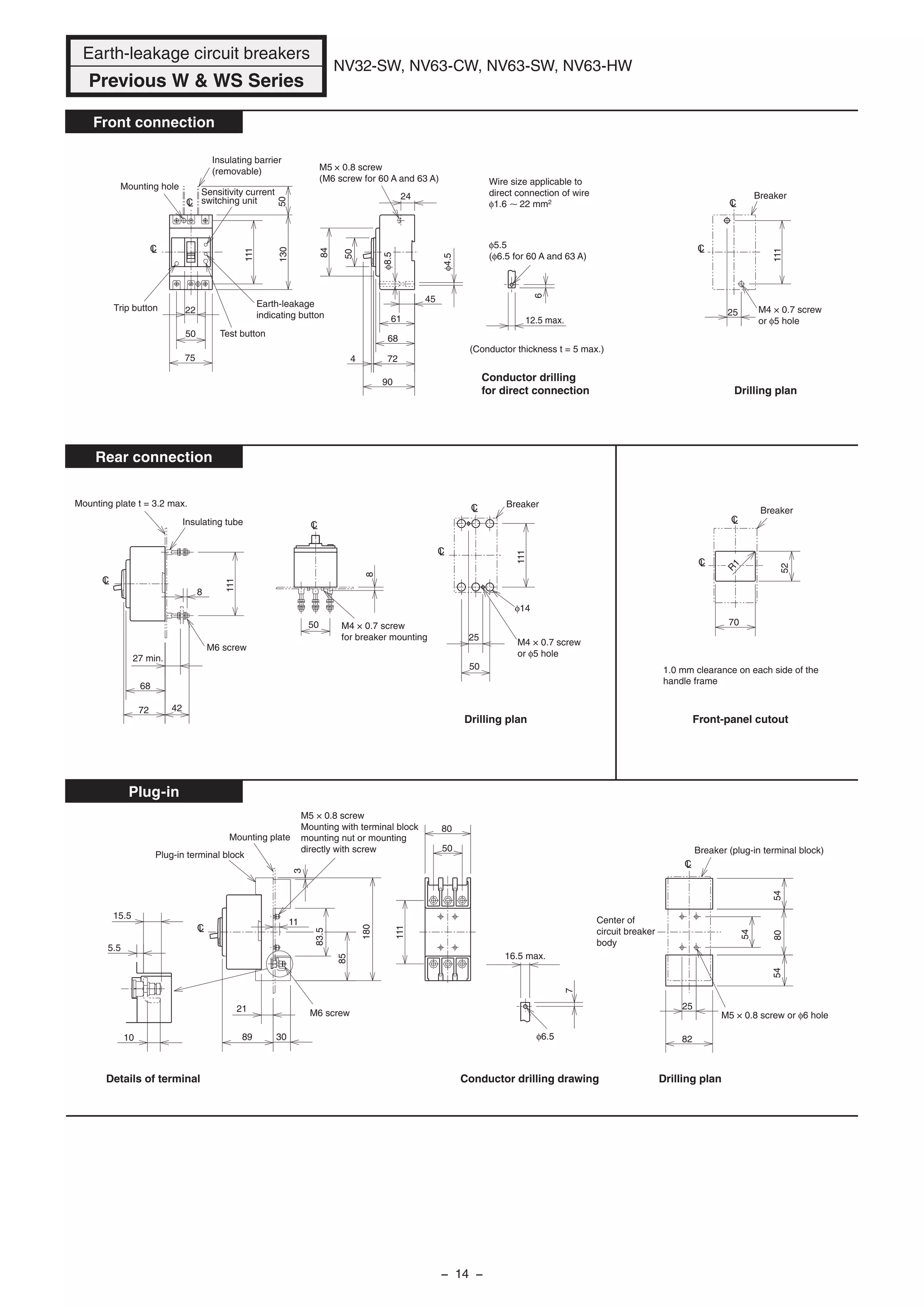
NF32-SW, NF63-CW, NF63-SW, NF63-HW 13 NF32-SV, NF63-CV, NF63-SV, NF63-HV 14
NV32-SW, NV63-CW, NV63-SW, NV63-HW 15 NV32-SV, NV63-CV, NV63-SV, NV63-HV 16
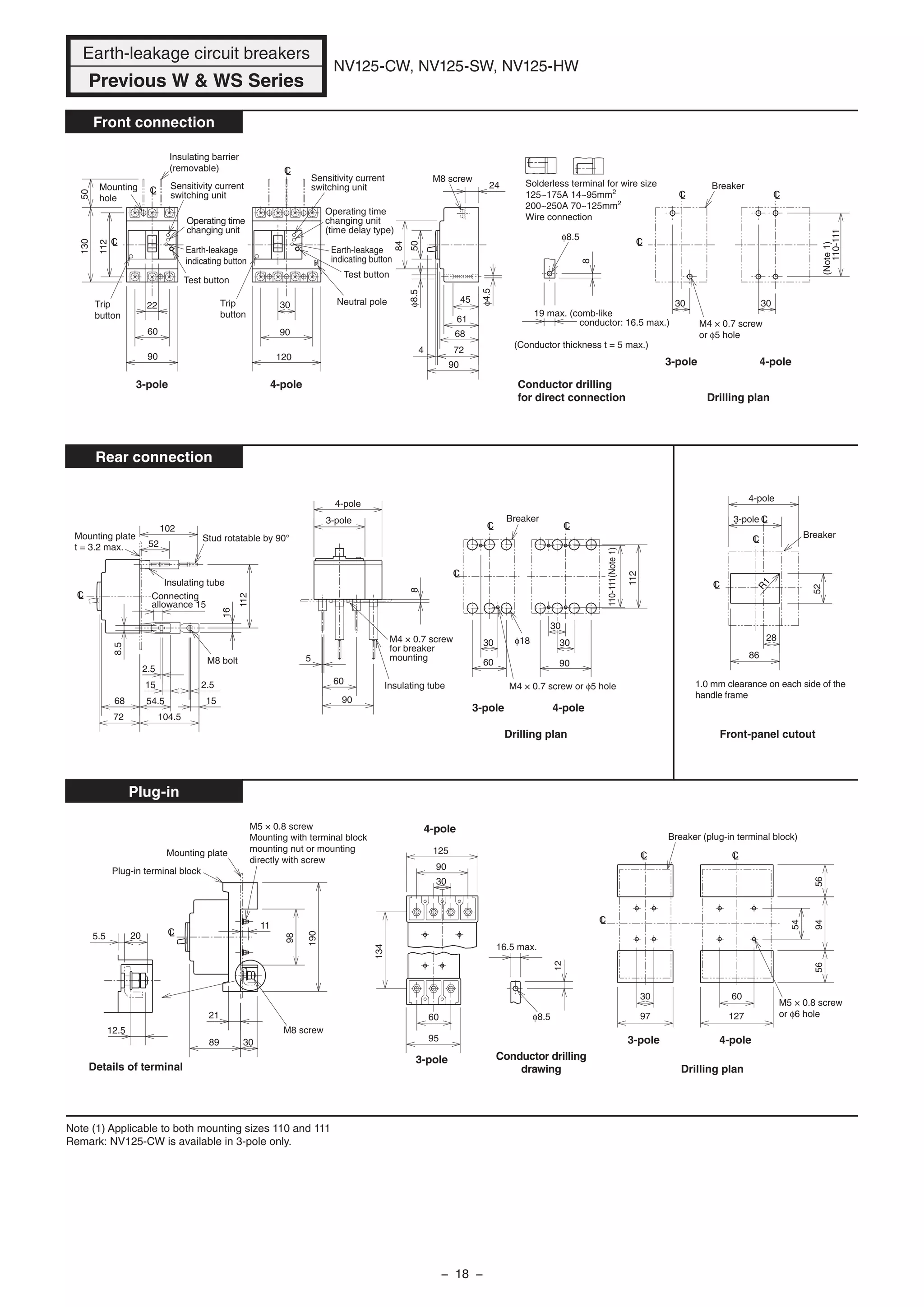
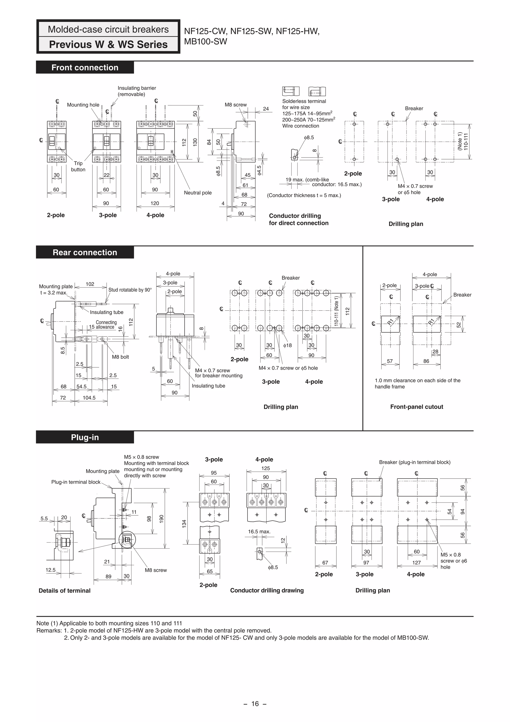
NF125-CW, NF125-SW, NF125-HW 17 NF125-CV, NF125-SV, NF125-HV 18
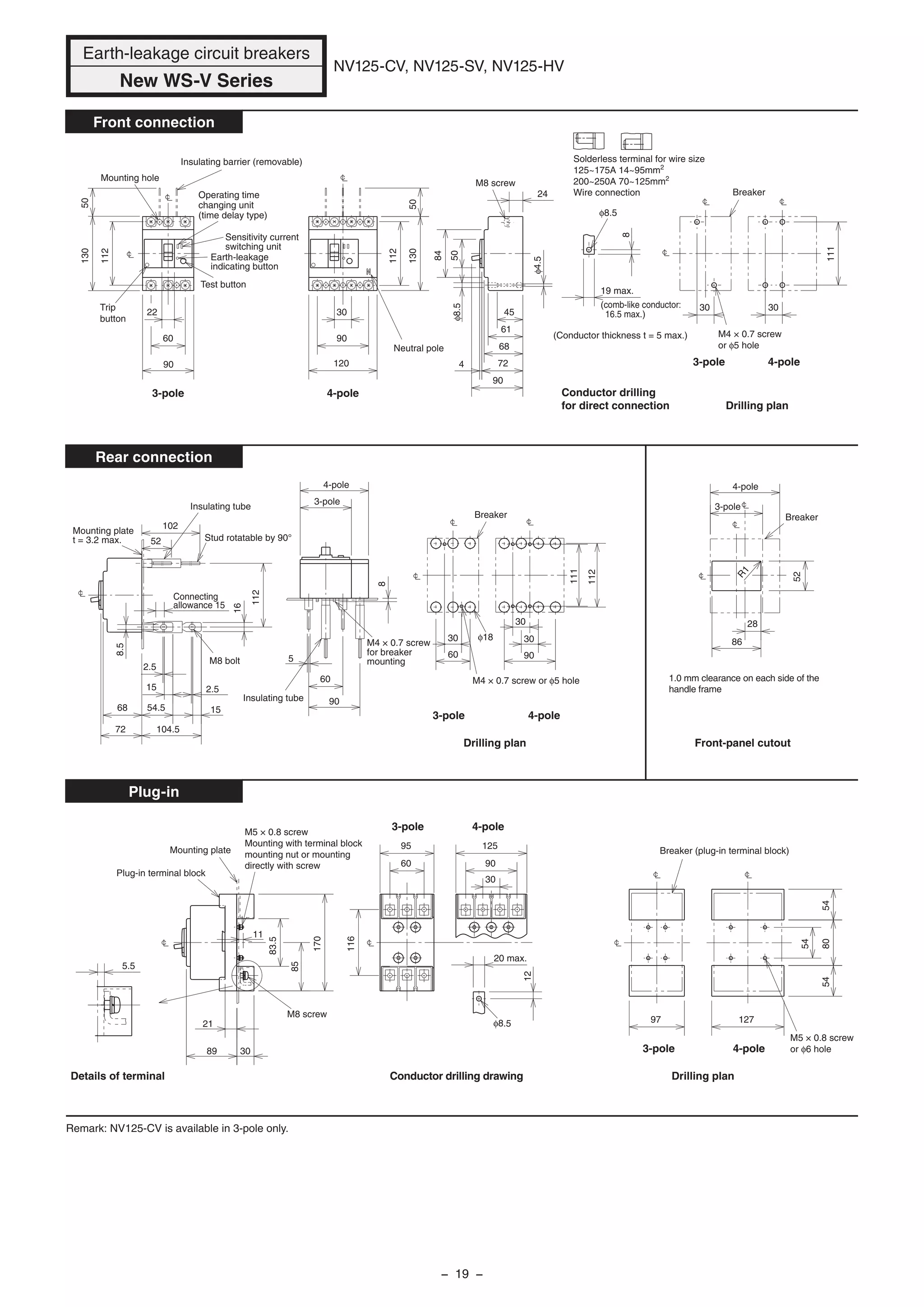
NV125-CW, NV125-SW, NV125-HW 19 NV125-CV, NV125-SV, NV125-HV 20
NF250-CW, NF250-SW, NF250-HW,
MB225-SW
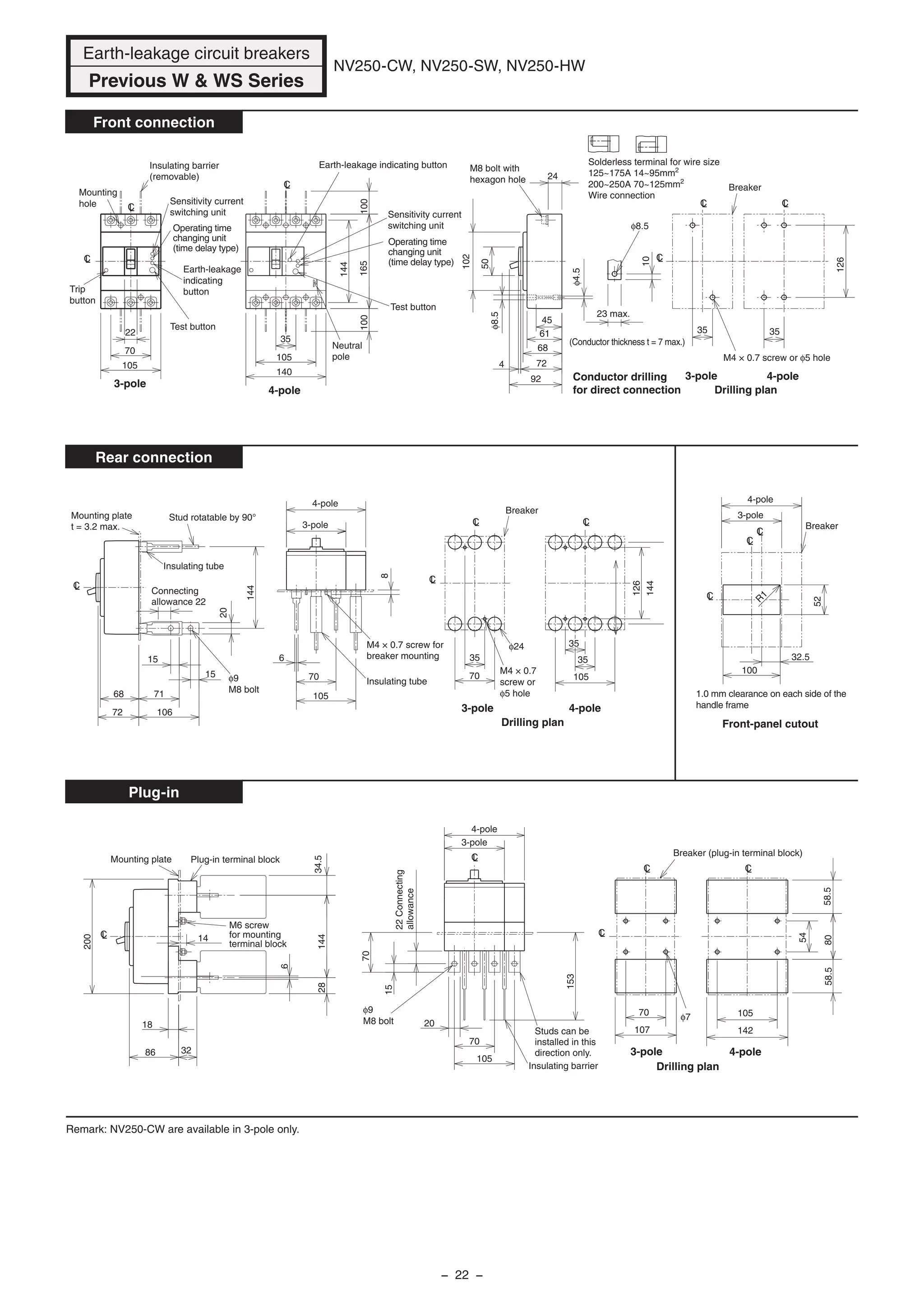
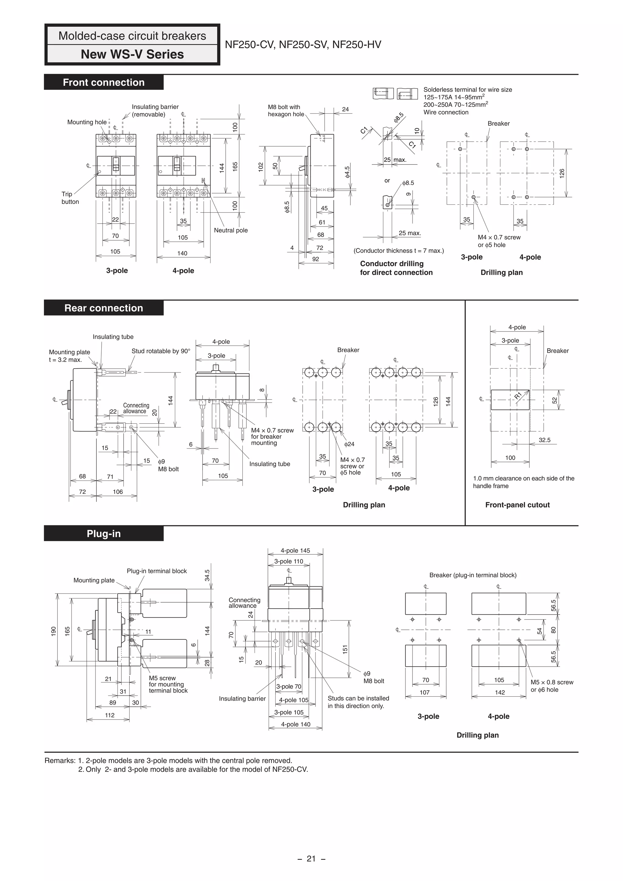
21 NF250-CV, NF250-SV, NF250-HV 22
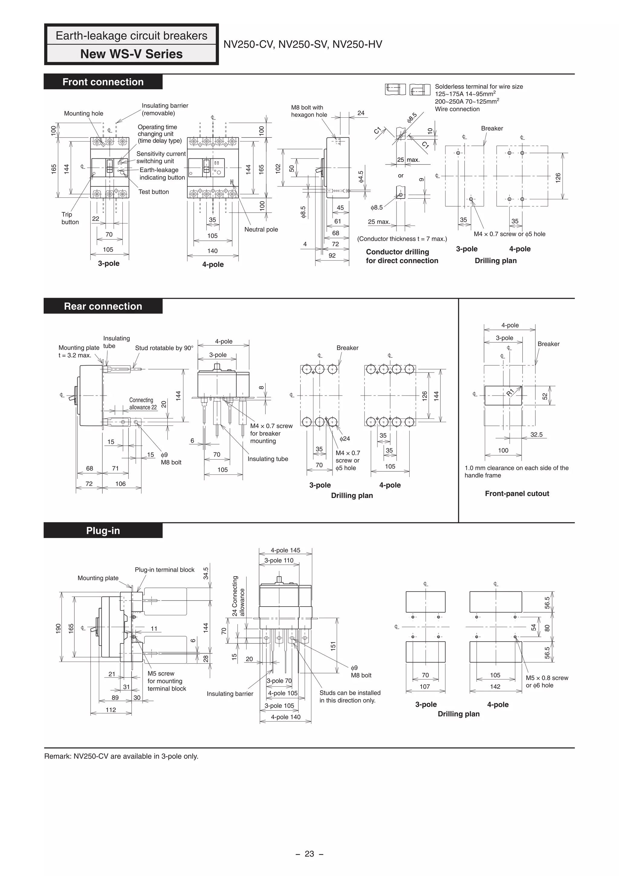
NV250-CW, NV250-SW, NV250-HW 23 NV250-CV, NV250-SV, NV250-HV 24
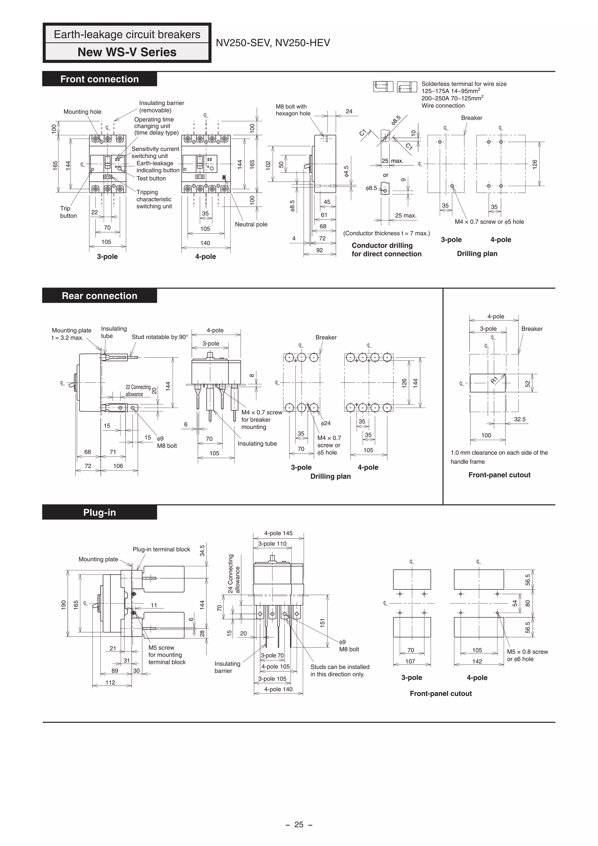
NV250-SEW, NV250-HEW 25 NV250-SEV, NV250-HEV 26
NF125-SGW, NF125-HGW,
NF160-SGW, NF160-HGW,
NF250-SGW, NF250-HGW
27
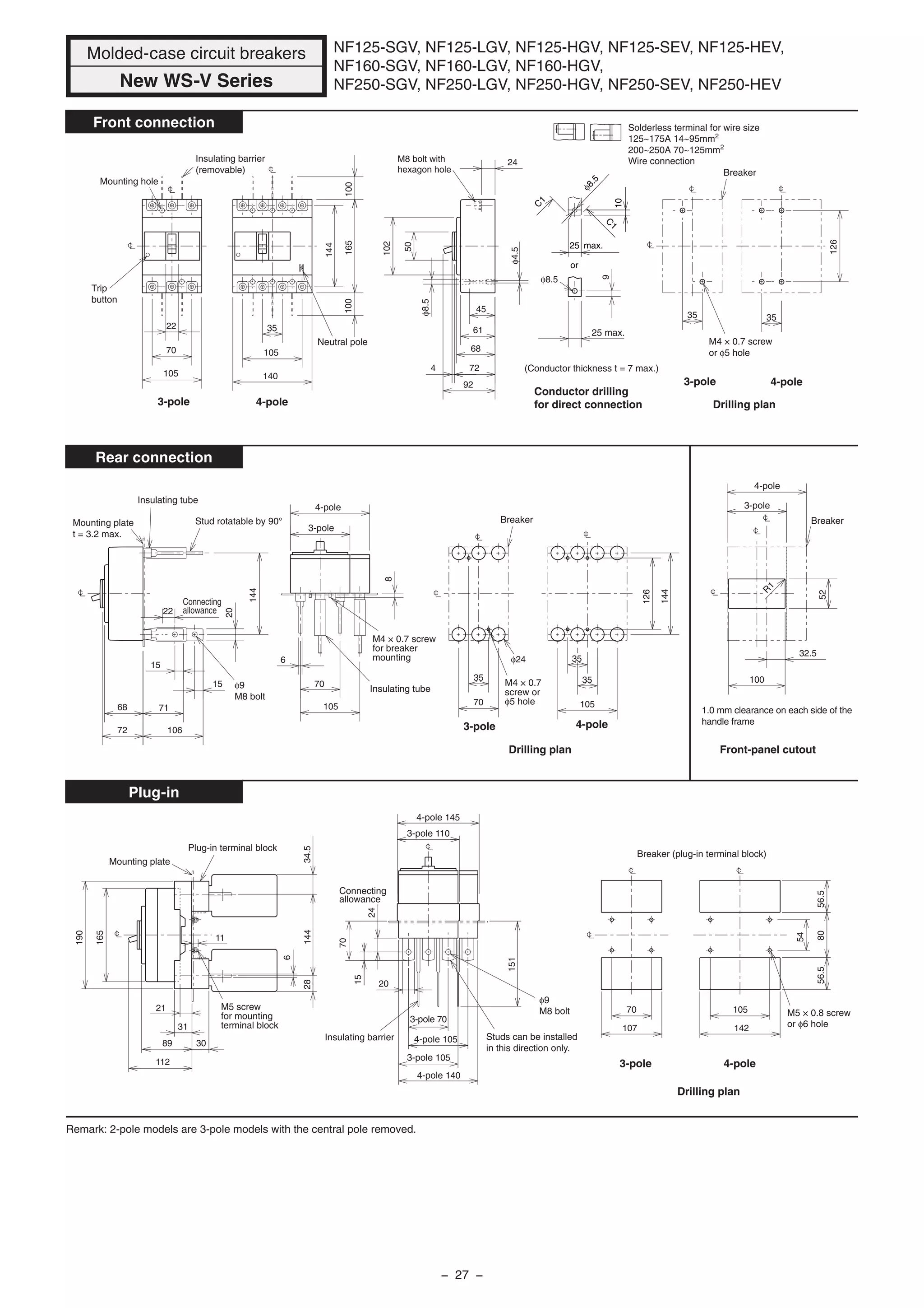
NF125-SGV, NF125-LGV, NF125-HGV,
NF125-SEV, NF125-HEV,
NF160-SGV, NF160-LGV, NF160-HGV,
NF250-SGV, NF250-LGV, NF250-HGV,
NF250-SEV, NF250-HEV
28
NF125-RGW, NF250-RGW 29 NF125-RGV, NF250-RGV 30
NF125-UGW, NF250-UGW 31 NF125-UGV, NF250-UGV 32
MB30-SW, MB50-CW, MB50-SW 13 NF32-SV, NF63-CV, NF63-SV (Note) 14
MB100-SW 17 NF125-SV (Note) 18
5. Outline Dimensions of Previous and New Models
Note: The circuit breakers for motor protection have the same basic model names as NF.
− 11 −
Wire size applicable to
direct connection of wire
φ1.6 22 mm2
CL
CL
LC
LC
22
Neutral pole
Insulating barrier
(removable)
Mounting hole
Trip
button
25
50 50
75
25
75
100
50130
111
12.5 max.
6
φ5.5
(φ6.5 for 60 A and 63 A)
LC
CL
CLCL
Breaker
Drilling plan
M4 × 0.7 screw
or φ5 hole
2525
111
50
84
24
45
φ8.5
61
68
724
90
M5 × 0.8 screw
(M6 screw for 60 A and 63 A)
φ4.5
Conductor drilling
for direct connection
(Conductor thickness t = 5 max.)
LC
CL LC LC
φ14
Breaker
M4 × 0.7 screw
or φ5 hole
Drilling plan
111
25
25
75
25
5025
27 min.
8
72
68
42
111
8
50
Mounting plate t = 3.2 max.
Insulating tube
M6 screw
M4 × 0.7 screw
for breaker mounting
LC
LC
Front-panel cutout
1.0 mm clearance on each side
of the handle frame
CL
CL
50
2-pole
3-pole
CL
LC
22.5
70
52
4-pole
Breaker
CL LC LC
Center of
circuit breaker
body
Drilling plan
Breaker (plug-in terminal block)
M5 × 0.8 screw
or φ6 hole
54
545480
57 82
25
107
50
Conductor drilling drawing
4-pole3-pole
50
80
75
25
105
111
55
25
16.5 max.
7
φ6.5
LC
11
Plug-in terminal block
Mounting plate
Details of terminal
M6 screw
M5 × 0.8 screw
Mounting with terminal block
mounting nut or mounting
directly with screw
3
180
83.5
85
30
21
89
5.5 15.5
10
R1
2-pole 3-pole 4-pole
2-pole 3-pole 4-pole
2-pole 3-pole 4-pole
2-pole 3-pole 4-pole2-pole
Molded-case circuit breakers
Previous W & WS Series
NF32-SW, NF63-CW, NF63-SW, NF63-HW,
MB30-SW, MB50-CW, MB50-SW
Front connection
Rear connection
Plug-in
− 12 −
42 (44 for 60 A and 63 A)
21
3089
11
7
16.5 max.
57 82
25 50
107
548054
54
83.5
85
170
116
80
50
25
55
105
75
25
5.5
φ6.5
8
Mounting plate
t = 3.2 max.
Insulating tube
50
22.5
φ14
70
52
R1
111
25
25
75
25
5025
50
4268
72
8
27 min.
27 min.
112
112
Mounting hole
22
25
50
50
75
25
75
100
50130
Insulating barrier
(removable)
Neutral pole
Trip
button
8
φ8.5
45
50
84
24
61
68
724
90
12.5 max.
φ4.5
φ5.5
(φ8.5 for 60 A and 63 A)
(16 max. for
60 A and 63 A)
(31 min. for 60 A and 63 A)
(29 min. for 60 A and 63 A)
(46 for 60 A and 63 A)
M5 × 0.8 screw
(M8 screw for 60 A and 63 A)
(Conductor thickness t = 5 max.)
Conductor drilling
for direct connection
2525
111
Breaker
M4 × 0.7 screw or φ5 hole
Breaker
M4 × 0.7 screw or φ5 hole
M6 screw
M4 × 0.7 screw
for breaker
mounting
Drilling plan Front-panel cutout
1.0 mm clearance on each side of the
handle frame
2-pole
3-pole
4-pole
Breaker
Breaker (plug-in terminal block)
M5 × 0.8 screw
or φ6 hole
4-pole3-pole
Plug-in terminal block
Mounting plate
M6 screw
M5 × 0.8 screw for
mounting terminal block
Wire size applicable to
direct connection of wire
φ1.6 22mm2
(For M5 × 0.8 screw)
Drilling plan
Drilling plan
Details of terminal Conductor drilling drawing
Molded-case circuit breakers
New WS-V Series
NF32-SV, NF63-CV, NF63-SV, NF63-HV
Front connection
Rear connection
Plug-in
2-pole 3-pole 4-pole
2-pole 3-pole 4-pole
2-pole
2-pole
3-pole 4-pole
2-pole 3-pole 4-pole
112
− 13 −
25
6
12.5 max.
90
4 72
68
61
φ8.5
φ4.5
45
24
84
75
50
22
111
130
111
50
Mounting hole
Insulating barrier
(removable)
Sensitivity current
switching unit
Earth-leakage
indicating button
Test button
Trip button
M5 × 0.8 screw
(M6 screw for 60 A and 63 A)
φ5.5
(φ6.5 for 60 A and 63 A)
Wire size applicable to
direct connection of wire
φ1.6 22 mm2
Breaker
M4 × 0.7 screw
or φ5 hole
Drilling plan
LC
LC
LC
LC
27 min.
8
72
68
42
111
8
50
50
25
111
Mounting plate t = 3.2 max.
Insulating tube
M6 screw
M4 × 0.7 screw
for breaker mounting
φ14
M4 × 0.7 screw
or φ5 hole
Breaker
Drilling plan
LC
LC
LC
LC
52
70
Breaker
Front-panel cutout
1.0 mm clearance on each side of the
handle frame
R
1
LC
LC
10
15.5
5.5
89
21
30
85
83.5
180
3
7
16.5 max.
111
80
50
25
82
805454
54
11
Plug-in terminal block
Mounting plate
M5 × 0.8 screw
Mounting with terminal block
mounting nut or mounting
directly with screw
M6 screw
φ6.5
Conductor drilling drawing
M5 × 0.8 screw or φ6 hole
Breaker (plug-in terminal block)
Center of
circuit breaker
body
Drilling plan
LC
LC
50
Conductor drilling
for direct connection
(Conductor thickness t = 5 max.)
Details of terminal
Earth-leakage circuit breakers
Previous W & WS Series
NV32-SW, NV63-CW, NV63-SW, NV63-HW
Front connection
Rear connection
Plug-in
− 14 −
112
8
72
68 42
50
50
25
R1
52
70
φ14
φ4.5
25
90
4 72
68
61
24
84
75
50
22
50
φ6.5
111
130
112
50
8
5.5
50
80
116
170
85
54
548054
25
82
7
11
89 30
21
8
45
φ8.5
12.5 max.
(16 max. for
60 A and 63 A)
Mounting hole
Insulating barrier
(removable)
Sensitivity current
switching unit
Earth-leakage
indicating button
Test button
Trip
button
M5 × 0.8 screw
(M8 screw for 60 A and 63 A)
φ5.5
(φ8.5 for 60 A and 63 A)
Breaker
M4 × 0.7 screw
or φ5 hole
Conductor drilling
for direct connection
(Conductor thickness t = 5 max.)
27 min.
Mounting plate
t = 3.2 max. Insulating tube
M6 screw
M4 × 0.7 screw
for breaker mounting
M4 × 0.7 screw
or φ5 hole
Breaker
Drilling plan
Drilling plan
Breaker
1.0 mm clearance on each side of the
handle frame
Front-panel cutout
16.5 max.
Plug-in terminal block
Mounting plate
M6 screw
Conductor drilling drawing
M5 × 0.8 screw
or φ6 hole
Breaker (plug-in terminal block)
Drilling plan
83.5
M5 × 0.8 screw
for mounting terminal block
Details of terminal
Earth-leakage circuit breakers
New WS-V Series
NV32-SV, NV63-CV, NV63-SV, NV63-HV
Front connection
Rear connection
Plug-in
Wire size applicable to direct
connection of wire
φ1.6 22 mm2
(For M5 × 0.8 screw)
111
112
− 15 −
CL
LC
LC
CL
50Neutral pole
30
90
120
112
130
60
30
90
60
22
Trip
button
Insulating barrier
(removable)
Mounting hole
CLLCLC
LC
30
110-111
(Note1)
30
Breaker
Drilling plan
M4 × 0.7 screw
or φ5 hole
24
84
50
68
61
45
724
90
φ8.5
8
M8 screw
19 max. (comb-like
conductor: 16.5 max.)
Conductor drilling
for direct connection
(Conductor thickness t = 5 max.)
φ8.5
φ4.5
CL
102
15
72
68
8.5
2.5
15
54.5
104.5
15
2.5
16
112
Mounting plate
t = 3.2 max.
Stud rotatable by 90°
Insulating tube
Connecting
allowance
M8 bolt
90
8
60
5
Insulating tube
M4 × 0.7 screw
for breaker mounting
LCCL
CL
LC
30 110-111(Note1)
90
30
112
30
60
30
M4 × 0.7 screw or φ5 hole
Breaker
Drilling plan
φ18
LC
LCLC
LC
28
57 86
52
Breaker
R1
R1
CL
89
12.5
Plug-in terminal block
Mounting plate
98
190
11
21
30
5.5 20
Details of terminal
M8 screw
M5 × 0.8 screw
Mounting with terminal block
mounting nut or mounting
directly with screw
Drilling plan
CL
LC CL CL
Breaker (plug-in terminal block)
54
945656
127
6030
9767
M5 × 0.8
screw or φ6
hole
30
95
60
125
90
30
65
16.5 max.
12
φ8.5
Conductor drilling drawing
134
2-pole
3-pole 4-pole
Front-panel cutout
1.0 mm clearance on each side of the
handle frame
Molded-case circuit breakers
Previous W & WS Series
NF125-CW, NF125-SW, NF125-HW,
MB100-SW
Front connection
Rear connection
Plug-in
Note (1) Applicable to both mounting sizes 110 and 111
Remarks: 1. 2-pole model of NF125-HW are 3-pole model with the central pole removed.
2. Only 2- and 3-pole models are available for the model of NF125- CW and only 3-pole models are available for the model of MB100-SW.
2-pole 3-pole 4-pole
2-pole
3-pole 4-pole
2-pole
2-pole
3-pole 4-pole
3-pole 4-pole
2-pole
3-pole
4-pole
2-pole 3-pole
4-pole
Solderless terminal
for wire size
125~175A 14~95mm2
200~250A 70~125mm2
Wire connection
− 16 −
Drilling plan
111
111
8
φ8.5
φ8.5
φ18
φ4.5
R1
R1
30
50
90
30
90
120
28
90
30
112
30
112
130
102
52
15
72
68
8.5
2.5
15
54.5
104.5
15
2.5
16
112
60
5
30 57 86
52
60
30
60
30
90
60
22
24
84
50
68
61
45
724
90
8
30
5.5
83.5
85
170
12
3089
21
11
54
805656
67 97 127
60
95
30
65
116
30
90
125
Mounting hole
Insulating barrier
(removable)
Trip
button
Neutral pole
M8 screw
Conductor drilling
for direct connection
(Conductor thickness t = 5 max.)
Drilling plan
M4 × 0.7 screw or φ5 hole
19 max.
(comb-like conductor: 16.5 max.)
Breaker
Breaker
Breaker
Front-panel cutout
M4 × 0.7 screw
or φ5 hole
Drilling plan
M4 × 0.7 screw
for breaker mounting
Insulating tube
Mounting plate
t = 3.2 max.
Insulating tube
Stud rotatable by 90°
Connecting
allowance
M8 bolt
Breaker (plug-in terminal block)
M5 × 0.8 screw
or φ6 hole
φ8.5
Conductor drilling
drawing
20 max.
Details of terminal
Plug-in terminal block
Mounting plate
M5 × 0.8 screw
Mounting with terminal
block mounting nut or
mounting directly with screw
M8 screw
1.0 mm clearance on each side of the
handle frame
2-pole
2-pole
3-pole
3-pole
4-pole
4-pole
2-pole
3-pole
4-pole
2-pole 3-pole
4-pole
Molded-case circuit breakers
New WS-V Series
NF125-CV, NF125-SV, NF125-HV
Front connection
Rear connection
Plug-in
2-pole 3-pole 4-pole
2-pole 3-pole 4-pole
2-pole 3-pole 4-pole
Remarks: 1. 2-pole model of NF125-SV are 3-pole models with the central pole removed.
2. Only 2- and 3-pole models are available for the model of NF125-CV.
Solderless terminal for wire size
125~175A 14~95mm2
200~250A 70~125mm2
Wire connection
− 17 −
CLLC
LC
3030
Breaker
Drilling plan
M4 × 0.7 screw
or φ5 hole
CL
LC
LC
Trip
button
Trip
button
Operating time
changing unit
(time delay type)
Sensitivity current
switching unit
Test button
Earth-leakage
indicating button
120
90
30 Neutral pole
Earth-leakage
indicating button
Test button
Sensitivity current
switching unit
Operating time
changing unit
130
112
50
90
60
22
Insulating barrier
(removable)
Mounting
hole
24
84
50
68
61
45
724
90
φ8.5
M8 screw
19 max. (comb-like
conductor: 16.5 max.)
Conductor drilling
for direct connection
(Conductor thickness t = 5 max.)
φ8.5
φ4.5
8
CL
102
52
Connecting
allowance 15
72
68
8.5
2.5
15
54.5
104.5
15
2.5
16
112
Mounting plate
t = 3.2 max.
Stud rotatable by 90°
Insulating tube
M8 bolt
90
60
5
8
Insulating tube
M4 × 0.7 screw
for breaker
mounting
LCCL
CL
110-111(Note1)
30
30
90
112
60
30
M4 × 0.7 screw or φ5 hole
Breaker
Drilling plan
φ18
LC
LC
LC
28
Breaker
52
86
R1
12.5
5.5 20
Details of terminal
16.5 max.
12
φ8.5
Conductor drilling
drawing
CL
89
Plug-in terminal block
Mounting plate
98
190
11
21
30
M8 screw
M5 × 0.8 screw
Mounting with terminal block
mounting nut or mounting
directly with screw
LC
Drilling plan
CL CL
Breaker (plug-in terminal block)
54
945656
127
6030
97
M5 × 0.8 screw
or φ6 hole
30
125
90
95
60
134
Note (1) Applicable to both mounting sizes 110 and 111
Remark: NV125-CW is available in 3-pole only.
110-111
(Note1)
Front-panel cutout
1.0 mm clearance on each side of the
handle frame
Earth-leakage circuit breakers
Previous W & WS Series
NV125-CW, NV125-SW, NV125-HW
Front connection
Rear connection
Plug-in
3-pole
4-pole
3-pole
4-pole
3-pole 4-pole
3-pole 4-pole
3-pole 4-pole
3-pole
3-pole
4-pole
4-pole
Solderless terminal for wire size
125~175A 14~95mm2
200~250A 70~125mm2
Wire connection
− 18 −
111
111
8
19 max.
(comb-like conductor:
16.5 max.)
50
112
130
φ18
R1
30
50
90
30
90
120
28
90
30
112
30
112
130
102
52
72
68
8.5
2.5
15
54.5
104.5
15
2.5
16
112
60
5
86
52
60
30
90
60
22
24
84
50
68
61
45
724
90
8
30
5.5
83.5
85
170
12
3089
21
11
54
805454
97 127φ8.5
60
95
116
30
90
125
Connecting
allowance 15
Drilling plan
Breaker (plug-in terminal block)
M5 × 0.8 screw
or φ6 hole
20 max.
Conductor drilling drawingDetails of terminal
Plug-in terminal block
Mounting plate
M8 screw
M5 × 0.8 screw
Mounting with terminal block
mounting nut or mounting
directly with screw
Breaker
Drilling plan
M4 × 0.7 screw
or φ5 hole
3-pole
Trip
button
Operating time
changing unit
(time delay type)
4-pole
Neutral pole
Earth-leakage
indicating button
Test button
Sensitivity current
switching unit
Insulating barrier (removable)
Mounting hole
φ8.5
M8 screw
Conductor drilling
for direct connection
(Conductor thickness t = 5 max.)
φ8.5
φ4.5
Breaker
Insulating tube
M4 × 0.7 screw
for breaker
mounting
M4 × 0.7 screw or φ5 hole
Breaker
Drilling plan
Mounting plate
t = 3.2 max. Stud rotatable by 90°
Insulating tube
M8 bolt
Front-panel cutout
1.0 mm clearance on each side of the
handle frame
Remark: NV125-CV is available in 3-pole only.
Earth-leakage circuit breakers
New WS-V Series
NV125-CV, NV125-SV, NV125-HV
Front connection
Rear connection
Plug-in
3-pole
4-pole
3-pole
4-pole
3-pole 4-pole
3-pole 4-pole
3-pole 4-pole
3-pole 4-pole
Solderless terminal for wire size
125~175A 14~95mm2
200~250A 70~125mm2
Wire connection
− 19 −
Molded-case circuit breakers
Previous W & WS Series
NF250-CW, NF250-SW, NF250-HW,
MB225-SW
Front connection
Rear connection
Plug-in
105
102
50
61
68
45
724
92
24
70
22
23 max.
10
35
φ4.5
φ8.5
35
126
140
105
35
100100165
144
Neutral
pole
Breaker
M4 × 0.7 screw
or φ5 hole
Drilling plan
Mounting hole
Insulating barrier
(removable)
Trip
button
M8 bolt with
hexagon hole
φ8.5
CL
CLLC
CL CL
CL
Conductor drilling
for direct connection
(Conductor thickness t = 7 max.)
15
15
22
20
144
70
35
φ24
68
72
71
106
8
6
105
70
35
105
35
126
144
Drilling plan
M4 × 0.7
screw or
φ5 hole
Breaker
M4 × 0.7 screw
for breaker
mounting
Insulating tube
φ9
M8 bolt
Connecting
allowance
Insulating tube
Stud rotatable by 90°
Mounting plate
t = 3.2 max.
CL CL
LCLC
32.5
52
100
Breaker
LC
CL
CL
R
1
86
200
18
32
14434.528
20
70
105
153
6
14
70
107
70
15
22
φ7
58.558.580
54
142
105
Studs can be
installed in this
direction only.
Insulating barrier
M6 screw
for mounting
terminal block
Mounting plate Plug-in terminal block
Connecting
allowance
φ9
M8 bolt
Drilling plan
Breaker (plug-in terminal block)
CL CL
CL
CL
LC
3-pole 4-pole
3-pole 4-pole
Front-panel cutout
1.0 mm clearance on each side of the
handle frame
Remarks: 1. 2-pole models are 3-pole models with the central pole removed.
2. Only 2- and 3-pole models are available for the model of NF250-CW and only 3-pole models are available for the model of MB225-SW.
3-pole
4-pole
3-pole 4-pole
3-pole
4-pole
3-pole 4-pole
3-pole
4-pole
Solderless terminal for wire size
125~175A 14~95mm2
200~250A 70~125mm2
Wire connection
− 20 −
105
102
50
61
68
45
724
92
24
70
22
25 max.
9
35
φ4.5
φ8.5
35
126
140
105
35
100100165
144
Neutral pole
Breaker
M4 × 0.7 screw
or φ5 hole
Drilling plan
Mounting hole
Insulating barrier
(removable)
Trip
button
M8 bolt with
hexagon hole
φ8.5
Conductor drilling
for direct connection
(Conductor thickness t = 7 max.)
15
15
22
20
144
70
35
φ24
68
72
71
106
8
6
105
70
105
35
126
144
Drilling plan
M4 × 0.7
screw or
φ5 hole
Breaker
M4 × 0.7 screw
for breaker
mounting
Insulating tubeφ9
M8 bolt
Connecting
allowance
Insulating tube
Stud rotatable by 90°Mounting plate
t = 3.2 max.
32.5
52
100
Breaker
1.0 mm clearance on each side of the
handle frame
Front-panel cutout
R
1
89
112
190
165
21
30
31
14434.528
20
3-pole 70
4-pole 105
3-pole 105
4-pole 140
151
6
11
70
107
70
15
24
56.556.580
54
142
105
Studs can be installed
in this direction only.
Insulating barrier
Mounting plate
Plug-in terminal block
Connecting
allowance
φ9
M8 bolt
Drilling plan
Breaker (plug-in terminal block)
4-pole 145
3-pole 110
35
M5 × 0.8 screw
or φ6 hole
M5 screw
for mounting
terminal block
or
C
1
C
1
10
25 max.
φ8.5
Solderless terminal for wire size
125~175A 14~95mm2
200~250A 70~125mm2
Wire connection
Molded-case circuit breakers
New WS-V Series
NF250-CV, NF250-SV, NF250-HV
Front connection
Rear connection
Plug-in
3-pole
4-pole
3-pole 4-pole
3-pole 4-pole
3-pole 4-pole
3-pole
4-pole
3-pole 4-pole
Remarks: 1. 2-pole models are 3-pole models with the central pole removed.
2. Only 2- and 3-pole models are available for the model of NF250-CV.
− 21 −
Earth-leakage circuit breakers
Previous W & WS Series
NV250-CW, NV250-SW, NV250-HW
Front connection
Rear connection
Plug-in
Drilling plan
M4 × 0.7 screw or φ5 hole
Breaker
126
3535
LC
LC
LC
Test button
Operating time
changing unit
(time delay type)
Sensitivity current
switching unit
Earth-leakage indicating button
Test button
105
70
Insulating barrier
(removable)
Mounting
hole
Trip
button
Operating time
changing unit
(time delay type)
Sensitivity current
switching unit
Earth-leakage
indicating
button
Neutral
pole
144
165100100
35
105
140
LC
CL
LC
22
φ8.5
M8 bolt with
hexagon hole
φ8.5
φ4.5
10
24
92
4 72
45
68
61
50
102
23 max.
Conductor drilling
for direct connection
(Conductor thickness t = 7 max.)
Breaker
M4 × 0.7
screw or
φ5 hole
Drilling plan
144
126
35
105
35φ24
35
70
CL CL
LC
LC
Mounting plate
t = 3.2 max.
Stud rotatable by 90°
Insulating tube
φ9
M8 bolt
Insulating tube
M4 × 0.7 screw for
breaker mounting
70
105
6
8
106
71
72
68
144
20
Connecting
allowance 22
15
15
1.0 mm clearance on each side of the
handle frame
Breaker
100
52
32.5
LC
LC
CL
R
1
φ9
M8 bolt
Insulating barrier
Studs can be
installed in this
direction only.
15
70
153
70
105
20
LC Breaker (plug-in terminal block)
Drilling plan
105
142
54
8058.558.5
φ7
107
70
CLLC
LC
Plug-in terminal blockMounting plate
M6 screw
for mounting
terminal block
14
6
2834.5144
32
18
200
86
LC
4-pole
3-pole
Front-panel cutout
22Connecting
allowance
Remark: NV250-CW are available in 3-pole only.
3-pole
4-pole
3-pole
4-pole
3-pole 4-pole
3-pole
4-pole
3-pole 4-pole
3-pole 4-pole
Solderless terminal for wire size
125~175A 14~95mm2
200~250A 70~125mm2
Wire connection
− 22 −
100
144
165
15
105
102
50
61
68
45
724
92
24
70
22
9
φ8.5
15
20
144
70
35
35
φ24
φ4.5
68
72
71
106
φ8.5
35
126
140
105
35
100100165
144
8
6
105
70
35
105
35
126
144 32.5
R
1
52
100
8056.556.5
107 142
34.528144
6
21
89
112
190
11
165
30
31
20
151
70
24Connecting
allowance
15
54
70 105
25 max.
Breaker
Breaker
Drilling plan
M4 × 0.7 screw or φ5 hole
Insulating tube
M4 × 0.7 screw
for breaker
mounting
Test button
Insulating barrier
(removable)Mounting hole
Trip
button
Operating time
changing unit
(time delay type)
Sensitivity current
switching unit
Earth-leakage
indicating button
Neutral pole
M8 bolt with
hexagon hole
Conductor drilling
for direct connection
(Conductor thickness t = 7 max.)
Mounting plate
t = 3.2 max.
Stud rotatable by 90°
Insulating
tube
φ9
M8 bolt
Connecting
allowance 22
M4 × 0.7
screw or
φ5 hole
M5 × 0.8 screw
or φ6 hole
Drilling plan Front-panel cutout
1.0 mm clearance on each side of the
handle frame
Breaker
Plug-in terminal block
Mounting plate
φ9
M8 bolt
Insulating barrier Studs can be installed
in this direction only.
4-pole 145
4-pole 105
3-pole 110
3-pole 70
4-pole 140
3-pole 105
Drilling plan
M5 screw
for mounting
terminal block
Remark: NV250-CV are available in 3-pole only.
Earth-leakage circuit breakers
New WS-V Series
NV250-CV, NV250-SV, NV250-HV
Front connection
Rear connection
Plug-in
3-pole
4-pole
3-pole 4-pole
3-pole
4-pole
3-pole 4-pole
3-pole 4-pole
3-pole 4-pole
Solderless terminal for wire size
125~175A 14~95mm2
200~250A 70~125mm2
Wire connection
or
C
1
C
1
10
25 max.
φ8.5
− 23 −
NV250-SEW, NV250-HEW
Front connection
Rear connection
Plug-in
Insulating barrier
22Connecting
allowance
15
153
20
70
105
70
φ9
M8 bolt
Studs can be installed
in this direction only.
Breaker (plug-in terminal block)
Drilling plan
Plug-in terminal block
Mounting plate
105
142
54
8058.558.5
φ7
107
70
14
6
2834.5144
32
18
200
86
(Note) To change the settings, open the upper cover.
Current indicating LED
OVER
PAL
70%
Overcurrent
test connector
(Conductor thickness t = 7 max.)
φ8.5
M8 bolt with
hexagon hole
Trip
button
Mounting hole
Drilling plan
Breaker
Neutral
pole
144
165100100
35
105
140
126
35
φ8.5
φ4.5
35
10
23 max.
22
70
24
92
4 72
45
68
61
50
102(Uppercover)
105
Earth-leakage
test button
Tripping characteristic
switching unit
Sensitivity current
switching unit
Earth-leakage indicating button
Operating time
changing unit
(time delay type)
Insulating barrier (removable)
M4 × 0.7 screw or φ5 hole
Conductor drilling
for direct connection
Breaker3-pole
4-pole
100
52
32.5
R1
Insulating tube
22 Connecting
allowance
φ9
M8 bolt Insulating tube
M4 × 0.7 screw
for breaker
mounting
Breaker
Drilling plan
144
126
35
105
35
70
105
6
8
106
71
72
68
φ24
35
70
144
20
15
15 M4 × 0.7
screw or
φ5 hole
Stud rotatable by 90°
Mounting plate
t = 3.2 max.
3-pole
4-pole
3-pole 4-pole
3-pole 4-pole
3-pole 4-pole
3-pole 4-pole
3-pole
4-pole
1.0 mm clearance on each side of the
handle frame
Front-panel cutout
M6 screw
for mounting
terminal block
Solderless terminal for wire size
125~175A 14~95mm2
200~250A 70~125mm2
Wire connection
Earth-leakage circuit breakers
Previous W & WS Series
− 24 −
NV250-SEV, NV250-HEV
Front connection
Rear connection
Plug-in
165
165
100
144
144
100
Tripping
characteristic
switching unit
Test button
Sensitivity current
switching unit
Earth-leakage
indicating button
25 max.
M8 bolt with
hexagon hole
105
102
50
61
68
45
724
92
24
70
22
9
φ8.5
35
Mounting hole
(Conductor thickness t = 7 max.)
Breaker
φ4.5
φ8.5
35
126
140
105
35
100
Neutral pole
Trip
button
Operating time
changing unit
(time delay type)
Insulating barrier
(removable)
Conductor drilling
for direct connection Drilling plan
M4 × 0.7 screw or φ5 hole
Breaker
32.5
52
100
R1
Stud rotatable by 90°
15
15
20
144
70
35
Mounting plate
t = 3.2 max.
Insulating
tube
22 Connecting
allowance
φ9
M8 bolt
M4 × 0.7 screw
for breaker
mounting
φ24
68
72
71
106
Insulating tube
8
6
105
70
35
105
35
126
144
Breaker
Drilling plan
M4 × 0.7
screw or
φ5 hole
Front-panel cutout
4-pole 140
4-pole 105
8056.556.5
107 142
34.528144
6
21
89
112
190
11
165
30
31
20
3-pole 70
151
70
24Connecting
allowance
15
3-pole 105
54
70
Plug-in terminal block
Mounting plate
105
Insulating
barrier
M5 × 0.8 screw
or φ6 hole
φ9
M8 bolt
Studs can be installed
in this direction only.
4-pole 145
3-pole 110
M5 screw
for mounting
terminal block
3-pole
4-pole 3-pole
4-pole
3-pole 4-pole
3-pole 4-pole
3-pole 4-pole
3-pole 4-pole
1.0 mm clearance on each side of the
handle frame
Front-panel cutout
Earth-leakage circuit breakers
New WS-V Series
or
C
1
C
1
10
25 max.
φ8.5
Solderless terminal for wire size
125~175A 14~95mm2
200~250A 70~125mm2
Wire connection
− 25 −
NF125-SGW, NF125-HGW, NF160-SGW, NF160-HGW,
NF250-SGW, NF250-HGW
Remark: 1. 2-pole models are 3-pole models with the central pole removed.
Mounting plate
4530
Stud can be
rotated 90°
545494
66
4-pole
3-pole
110
1048
103
M8 bolt
(Hex-soket)12
96
4
4854.5144
120
15
200
4-pole3-pole
φ9
M8 bolt
105
142
Drilling plan
Connection
allowance
Insulating barrier
(removable)
M6 screw
for mounting
terminal block
Breaker (Terminal block)
φ7
Plug-in terminal block
107
70
70
20
86
3-pole
4-pole
100
52
32.5
Breaker
Front-panel cutout
R
1
35
90
86
Breaker
4-pole3-pole
144
126
35
105
35
70
105
6
8
3-pole
4-pole
Insulating
tube
M4 × 0.7
taps
or φ5
Drilling plan
106
71
φ24
M4 × 0.7
screw for
breaker
mounting
φ9
M8 bolt
Connection
allowance
Insulating tube
Stud can be
rotated 90°
Mounting plate
t = 3.2 max.
70
144
20
22
15
15
Hex-socket set screw
Wire connection
Solderless terminal
for wire size
2.5 185 mm2
10
6.1
22
35
24 max.
110
90
86
79
63
112
4-pole3-pole
Neutral
pole
4-pole3-pole
144
1655050
35
105
140
126
35
φ8.5
φ4.5
M4 × 0.7 taps
or φ5
Drilling plan
Breaker
M8 bolt
(Hex-soket)
(Bus t max. = 7)
Bus drilling for
direct connection
Trip
button
Mounting hole
Insulating barrier
(removable)
φ8.5
10
22
70
24
450
105
Front connection
Rear connection
Plug-in
Molded-case circuit breakers
Previous W & WS Series
1.0 mm clearance on each side of the
handle frame
− 26 −
NF125-SGV, NF125-LGV, NF125-HGV, NF125-SEV, NF125-HEV,
NF160-SGV, NF160-LGV, NF160-HGV,
NF250-SGV, NF250-LGV, NF250-HGV, NF250-SEV, NF250-HEV
105
102
50
61
68
45
724
92
24
70
22
25 max.
9
35
φ4.5
φ8.5
35
126
140
105
35
100100165
144
Neutral pole
Breaker
M4 × 0.7 screw
or φ5 hole
Drilling plan
Mounting hole
Insulating barrier
(removable)
Trip
button
M8 bolt with
hexagon hole
φ8.5
Conductor drilling
for direct connection
(Conductor thickness t = 7 max.)
15
15
22
20
144
70
35
φ24
68
72
71
106
8
6
105
70
105
35
126
144
Drilling plan
M4 × 0.7
screw or
φ5 hole
Breaker
M4 × 0.7 screw
for breaker
mounting
Insulating tubeφ9
M8 bolt
Connecting
allowance
Insulating tube
Stud rotatable by 90°Mounting plate
t = 3.2 max.
32.5
52
100
Breaker
1.0 mm clearance on each side of the
handle frame
Front-panel cutout
R
1
89
112
190
165
21
30
31
14434.528
20
3-pole 70
4-pole 105
3-pole 105
4-pole 140
151
6
11
70
107
70
15
24
56.556.580
54
142
105
Studs can be installed
in this direction only.
Insulating barrier
Mounting plate
Plug-in terminal block
Connecting
allowance
φ9
M8 bolt
Drilling plan
Breaker (plug-in terminal block)
4-pole 145
3-pole 110
35
M5 × 0.8 screw
or φ6 hole
M5 screw
for mounting
terminal block
Front connection
Rear connection
Plug-in
3-pole
4-pole
3-pole 4-pole
3-pole 4-pole
3-pole 4-pole
3-pole
4-pole
3-pole 4-pole
Molded-case circuit breakers
New WS-V Series
or
C
1
C
1
10
25 max.
φ8.5
Remark: 2-pole models are 3-pole models with the central pole removed.
Solderless terminal for wire size
125~175A 14~95mm2
200~250A 70~125mm2
Wire connection
− 27 −
NF125-RGW, NF250-RGW
Front connection
Rear connection
Plug-in
φ7
Drilling plan
Mounting plate
φ9
M8 bolt
275
34.521928
6
32
18
14
104
15
70
20
70
153
70
58.558.5155
129
107
100
32.5
52
4-pole
3-pole
R
1
Breaker
1.0 mm clearance on each side of the
handle frame
Front-panel cutout
11.5
105
35
35
70
35
4-pole
3-pole
8
105
70
6
20
15
15
90 106
7186
4-pole3-pole
Insulating
tube
M4 × 0.7
taps
or φ5
Drilling plan
φ24
M4 × 0.7 screw
for breaker
mounting
φ9
M8 bolt
Connection
allowance
Insulating tube
Stud can be
rotated 90°
Mounting plate
t = 3.2 max.
201
219
219
108
73
22
Breaker
24
(Bus t max. = 7)
24 max.
10
M8 bolt
(Hex-soket)
M4 × 0.7 taps
or φ5
3535
110
4 90
86
79
φ8.5
63
22
φ4.5
50
112
4-pole
5050
35
105
140
22
70
105
4-pole3-pole
Neutral
pole
3-pole
Drilling plan
Breaker
Trip
button
Mounting hole
Insulating barrier
(removable)
201
240
219
φ8.5
6.1
Solderless terminal
for wire size
2.5 185 mm2
10
Bus drilling for
direct connection
Wire connection
Hex-socket set screw
26.5
75165
Remark: 2-pole models are 3-pole models with the central pole removed.
Molded-case circuit breakers
Previous W & WS Series
Plug-in terminal block
M6 screw
for mounting
terminal block
Breaker (Terminal block)
Insulating
barrier
Stud attachable in this
derection only
22
Connecting
allowance
− 28 −
Molded-case circuit breakers
New WS-V Series
NF125-RGV, NF250-RGV
15
15
22
20
144
70
35
φ24
68
72
71
106
8
6
70
Drilling plan
M4 × 0.7
screw or
φ5 hole
Breaker
M4 × 0.7 screw
for breaker
mounting
Insulating tubeφ9
M8 bolt
Connecting
allowance
Insulating tube
Stud rotatable by 90°Mounting plate
t = 3.2 max.
32.5
52
100
Breaker
1.0 mm clearance on each side of the
handle frame
Front-panel cutout
R
1
Front connection
Rear connection
Plug-in
3-pole
3-pole
70
107
Drilling plan
Breaker (plug-in terminal block)
3-pole
105
70
22
Mounting hole
Insulating barrier
(removable)
Trip
button
3-pole
3-pole
35
Breaker
M4 × 0.7 screw
or φ5 hole
Drilling plan
3-pole
102
50
61
68
45
724
92
24
25 max.
9
φ4.5
φ8.5
M8 bolt with
hexagon hole
φ8.5
Conductor drilling
for direct connection
(Conductor thickness t = 7 max.)
or
C
1
C
1
10
25 max.
φ8.5
89
112
190
165
21
30
31
14434.528
6
11
Mounting plate
Plug-in terminal block
M5 screw
for mounting
terminal block
20
3-pole 70
3-pole 105
151
70
15
24
Studs can be installed
in this direction only.
Insulating barrier
Connecting
allowance
φ9
M8 bolt
3-pole 110
Remark: 2-pole models are 3-pole models with the central pole removed.
Solderless terminal for wire size
125~175A 14~95mm2
200~250A 70~125mm2
Wire connection
− 29 −
NF125-UGW, NF250-UGW
Front connection
Rear connection
Plug-in
φ7
Drilling plan
Mounting plate
φ9
M8 bolt
275
34.521928
6
32
18
14
104
15
70
20
70
153
70
58.558.5155
129
107
100
32.5
52
4-pole
3-pole
R
1
Breaker
1.0 mm clearance on each side of the
handle frame
Front-panel cutout
11.5
105
35
35
70
35
4-pole
3-pole
8
105
70
6
20
15
15
90 106
7186
4-pole3-pole
Insulating
tube
M4 × 0.7
taps
or φ5
Drilling plan
φ24
M4 × 0.7 screw
for breaker
mounting
φ9
M8 bolt
Connection
allowance
Insulating tube
Stud can be
rotated 90°
Mounting plate
t = 3.2 max.
201
219
219
108
73
22
Breaker
24
(Bus t max. = 7)
24 max.
10
M8 bolt
(Hex-soket)
M4 × 0.7 taps
or φ5
3535
110
4 90
86
79
φ8.5
63
22
φ4.5
50
112
4-pole
5050
35
105
140
22
70
105
4-pole3-pole
Neutral
pole
3-pole
Drilling plan
Breaker
Trip
button
Mounting hole
Insulating barrier
(removable)
201
240
219
φ8.5
6.1
Solderless terminal
for wire size
2.5 185 mm2
10
Bus drilling for
direct connection
Wire connection
Hex-socket set screw
26.5
75165
Remark: 2-pole models are 3-pole models with the central pole removed.
Molded-case circuit breakers
Previous W & WS Series
Plug-in terminal block
M6 screw
for mounting
terminal block
Breaker (Terminal block)
Insulating
barrier
Stud attachable in this
derection only
22
Connecting
allowance
− 30 −
106
71
72
68
8
6
105
70
20
22
15
15
219
φ24 35
105
35
70
32.5
52
10035
219
201
11.5
35
201
35
92
4 72
68
61
45
φ4.5
50
102
24
100100240
219
140
105
35
105
70
22
75165
10
φ8.5
φ8.5
28
75165
73
108
Breaker
Drilling plan
M4 × 0.7 screw or φ5 hole
23 max.
Insulating barrier
(removable)
Mounting hole
Trip button
Conductor drilling
for direct connection
(Conductor thickness t = 7 max.)
M4 × 0.7 screw
or φ5 hole
Drilling plan
Breaker
3-pole
M4 × 0.7 screw
for breaker
mounting
Insulating tube
φ9
M8 bolt
Connecting
allowance
Insulating
tube Stud rotatable by 90°
Mounting plate
t = 3.2 max. Breaker
3-pole
4-pole
1.0 mm clearance on each side of the
handle frame
Front-panel cutout
R1
Breaker
(plug-in terminal block)
Mounting plate
Plug-in terminal block
Studs can be installed
in this direction only.
Insulating barrier
Connecting
allowance
15556.556.5
107
34.528219
6
21
89
11
30
31
20
70
151
70
24
15
110
105
129
70
φ9
M8 bolt M5 screw or φ6 hole
265
Drilling plan
Molded-case circuit breakers
New WS-V Series
NF125-UGV, NF250-UGV
Front connection
Rear connection
Plug-in
Neutral pole
3-pole 4-pole
3-pole 4-pole
3-pole 4-pole
M8 bolt with
hexagon hole
4-pole
M5 screw
for mounting
terminal block
Remark: 2-pole models are 3-pole models with the central pole removed.
Solderless terminal
for wire size
125~175A 14~95mm2
200~250A 70~125mm2
Wire connection
− 31 −
MEMO
Revised publication, effective Sep. 2010.
Specifications subject to change without notice.
This pamphlet is made from recycled paper.
Safety Tips : Be sure to read the instruction manual fully before using this product.
Country / Region Company Address Telephone
Australia
China
Mitsubishi Electric Australia Pty. Ltd.
Mitsubishi Electric Automation (CHINA) Ltd.
348 Victoria Road, Rydalmere, N.S.W. 2116, Australia +61-2-9684-7777
+86-21-2322-3030
17/F., ChuangXing Financial Center,
No.288 West Nanjing Road, Shanghai, 200003
China Mitsubishi Electric Automation (HongKong) Ltd. +852-2887-8810
10/F., Manulife Tower, 169 Electric Road, North Point,
Hong Kong
Colombia Proelectrico Representaciones S.A. Carrera 53 No 29C-73 - Medellin, Colombia +57-4-235-30-38
Egypt Cairo Electrical Group
9, Rostoum St. Garden City P.O. Box 165-11516
Maglis El-Shaab, Cairo - Egypt
+20-2-27961337
Europe Mitsubishi Electric Europe B.V. Gothaer Strasse 8, D-40880 Ratingen, Germany +49-(0)2102-486-0
Indonesia
Korea
Laos
Mitsubishi Electric Automation Korea Co., Ltd
Societe Lao Import Co., Ltd.
P.O.Box 5045 Kawasan Industri Pergudangan,
Jakarta, Indonesia
1480-6, Gayang-Dong, Gangseo-Gu, Seoul, Korea
43-47 Lane Xang Road P.O. BOX 2789 VT Vientiane Laos
+62-(0)21-6610651-9
+82-2-3660-9572
+856-21-215043
P. T. Sahabat Indonesia
Lebanon Comptoir d'Electricite Generale-Liban
Cebaco Center - Block A Autostrade Dora,
P.O. Box 11-2597 Beirut - Lebanon
+961-1-240445
Myanmer
Nepal
Peace Myanmar Electric Co.,Ltd.
Watt&Volt House
NO137/139 Botataung Pagoda Road,
Botataung Town Ship 11161, Yangon, Myanmar
KHA 2-65, Volt House Dillibazar Post Box:2108,
Kathmandu, Nepal
Malaysia Mittric Sdn Bhd
5 Jalan Pemberita U1/49, Temasya Industrial Park,
Glenmarie 40150 Shah Alam, Selangor, Malaysia
+603-5569-3748
+95-(0)1-202589
+977-1-4411330
Comptoir d'Electricite
Generale-International-S.A.L.
Cebaco Center - Block A Autostrade Dora
P.O. Box 11-1314 Beirut - Lebanon
+961-1-240430
Other Middle East
Arab Countries & Cyprus
Pakistan
Philippines
Prince Electric Co.
Edison Electric Integrated, Inc.
1&16 Brandreth Road, Lahore-54000, Pakistan
24th Fl. Galleria Corporate Center, Edsa Cr. Ortigas Ave.,
Quezon City Metro Manila, Philippines
+92-(0)42-7654342
+63-(0)2-634-8691
Saudi Arabia Center of Electrical Goods
Al-Shuwayer St. Side way of Salahuddin Al-Ayoubi St.
P.O. Box 15955 Riyadh 11454 - Saudi Arabia
+966-1-4770149
South Africa CBI-electric: low voltage Private Bag 2016, Isando, 1600, South Africa +27-(0)11-9282000
Taiwan
Thailand
Setsuyo Enterprise Co., Ltd
United Trading & Import Co., Ltd.
6th Fl., No.105, Wu Kung 3rd, Wu-Ku Hsiang,
Taipei, Taiwan, R.O.C.
77/12 Bamrungmuang Road, Klong Mahanak,
Pomprab Bangkok Thailand
+886-(0)2-2298-8889
+66-223-4220-3
Uruguay Fierro Vignoli S.A. Avda. Uruguay 1274, Montevideo, Uruguay +598-2-902-0808
Venezuela Adesco S.A.
Calle 7 La Urbina Edificio Los Robles Locales C y D
Planta Baja, Caracas - Venezuela
+58-212-241-9952
Chile Rhona S.A. Agua Santa 4211 P.O. Box 30-D Vina del Mar, Chile +56-32-2-320-600
Vietnam CTY TNHH-TM SA GIANG
10th Floor, Room1006-1007,225 Tran Hung Dao St.,
Co Giang Ward, Dist.1, Ho Chi Minh City. Viet Nam
+84-8-838-6727/28/29
Singapore Mitsubishi Electric Asia Pte. Ltd.
307, Alexandra Road, #05-01/02
Mitsubishi Electric Building, Singapore 159943
+65-6473-2308
Y-0702 1009 printed in Japan(MDOC)
HEAD OFFICE: TOKYO BLDG., 2-7-3, MARUNOUCHI, CHIYODA-KU, TOKYO 100-8310, JAPAN
WS-V series Comparison of Previous and New Models

Mitsubishi low voltage ws-v series comparison of previous and new models

  • 1.
    1. Product Lineup…………………………………………… 2 2. Comparison of Previous and New Models……………… 3 3. Replacement of Previous Models with New Models …… 6 4. Compatibility of Optional Accessories…………………… 9 5. Outline Dimensions of Previous and New Models……… 12 ( 3 0 t o 2 5 0 A F r a m e ) Comparison of Previous and New Models MOLDED-CASE CIRCUIT BREAKERS & EARTH-LEAKAGE CIRCUIT BREAKERS MOLDED-CASE CIRCUIT BREAKERS & EARTH-LEAKAGE CIRCUIT BREAKERS
  • 2.
    1. Product Lineup FrameA Series 30 32 125 160 250 400 630 800 1000 1250 160063 Frame A Series Frame A Series 30 32 125 160 250 400 630 800 1000 125063 30 32 125 25063 Molded-casecircuitbreakersEarth-leakagecircuitbreakers Formotor protection NF-C Commercial product NF-S General- purpose product NV-C Commercial product NV-S General- purpose product NF-H High- performance product NV-H High- performance product NF-U Ultra current- limiting breaker MB Motor breaker NF63-CV NF125-CV NF125-SGV NF125-SEV NF160-SGV NF160-LGV NF160-HGV NF125-LGV NF125-HV NF125-HGV NF125-HEV NF250-CV NF250-RGV NF250-UGV NF30-CS NF32-SV 400-SW 630-SW 800-SDW 400-SEW 630-SEW 800-SEW 400-HEW 630-HEW 800-HEW 400-REW 630-REW 800-REW 400-UEW 800-UEW NF 1000-SEW NF 1250-SEW NF 1600-SEW NF63-SV NF63-HV NF125-SV NV63-CV NV125-CV NV32-SV NF32-SV MB NV63-SV NV63-HV NV125-SV NV125-HV NF125-UGV NF125-RGV NF250-SV NF250-SGV NF250-SEV NV250-CV NV250-SV NV250-SEV NV250-HEV NV250-HV NF63-CV MB NF63-SV MB NF125-SV MB NF250-SV MB NF250-LGV NF250-HV NF250-HGV NF250-HEV 400-CW 400-SW 400-SEW 400-HEW 400-REW 400-CW 630-SW 630-SEW 630-HEW 800-HEW 800-SEW630-CW 630-CW 800-CEW MB30-CS New models NV125-SEV NV125-HEV − 1 −
  • 3.
    2. Comparison ofPrevious and New Models Series Previous W & WS Series New WS-V Series Differences in dimensions and performance between previous and new models NF-C NF63-CW NF63-CV Same dimension Change of tripping method (from hydraulicmagnetic to thermal magnetic) Changes in operating characteristics Change to running on both AC/DC Increase in breaking capacity NF125-CW NF125-CV No changes in dimensions and performance NF250-CW NF250-CV Same dimension Change in instantaneous value of 250 A rated model (from 10 times to 12 times ± 20%) Increase in breaking capacity NF-S NF32-SW NF32-SV Same dimension Change of tripping method (from hydraulicmagnetic to thermal magnetic) Changes in operating characteristics Change to running on both AC/DC Increase in breaking capacity NF63-SW NF63-SV Same dimension Change of tripping method (from hydraulicmagnetic to thermal magnetic) Changes in operating characteristics Change to running on both AC/DC Increase in breaking capacity NF125-SW NF125-SV Same dimension Increase in breaking capacity Capable of breaking 690 V AC NF125-SGW RT NF125-SGV Change in depth (from 86 mm to 68 mm) Change in rated current adjustable range Adjustable instantaneous value ➞ Unadjustable NF125-SGW RE NF125-SEV Change in depth (from 86 mm to 68 mm) NF160-SW NF250-SV 125 150 160A Addition of 160 A model NF160-SGW RT NF160-SGV Change in depth (from 86 mm to 68 mm) Adjustable instantaneous value ➞ Unadjustable NF160-SGW RE NF250-SEV 80-160A Change in depth (from 86 mm to 68 mm) Addition of 80-160 A model NF250-SW NF250-SV Same dimension Change in instantaneous value of 250 A rated model (from 10 times to 12 times ± 20%) Increase in breaking capacity Capable of breaking 690 V AC NF250-SGW RT NF250-SGV Change in depth (from 86 mm to 68 mm) Adjustable instantaneous value ➞ Unadjustable NF250-SGW RE NF250-SEV Change in depth (from 86 mm to 68 mm) − 2 −
  • 4.
    Series Previous W& WS Series New WS-V Series Differences in dimensions and performance between previous and new models NF-H NF63-HW NF63-HV Same dimension Change of tripping method (from hydraulicmagnetic to thermal magnetic) Changes in operating characteristics Change to running on both AC/DC Increase in breaking capacity NF125-HW NF125-HV Same dimension Applicable to rated current of 125 A Increase in breaking capacity NF125-HGW RT NF125-HGV Change in depth (from 86 mm to 68 mm) Change in rated current adjustable range Adjustable instantaneous value ➞ Unadjustable Decrease in breaking capacity at 690 V AC NF125-HGW RE NF125-HEV Change in depth (from 86 mm to 68 mm) Decrease in breaking capacity at 690 V AC NF160-HW NF250-HV 125 150 160A Addition of 160 A model NF160-HGW RT NF160-HGV Change in depth (from 86 mm to 68 mm) Adjustable instantaneous value ➞ Unadjustable Decrease in breaking capacity at 690 V AC NF160-HGW RE NF250-HEV 80-160A Addition of 80-160 A model Change in depth (from 86 mm to 68 mm) Decrease in breaking capacity at 690 V AC NF250-HW NF250-HV Same dimension Applicable to rated current of 250 A (instantaneous value = 12 times ± 20%) Increase in breaking capacity NF250-HGW RT NF250-HGV Change in depth (from 86 mm to 68 mm) Adjustable instantaneous value ➞ Unadjustable Decrease in breaking capacity at 690 V AC NF250-HGW RE NF250-HEV Change in depth (from 86 mm to 68 mm) Decrease in breaking capacity at 690 V AC NF-U NF125-RGW RT NF125-RGV Changes in dimensions (height: from 240 mm to 165 mm, depth: from 86 mm to 68 mm) Change in rated current adjustable range Applicable to rated current of 125 A Increase in breaking capacity at 415 V AC or less Rated working voltage of below 500 V AC NF125-UGW RT NF125-UGV Change in depth (from 86 mm to 68 mm) Change in rated current adjustable range Applicable to rated current of 125 A Decrease in breaking capacity at 690 V AC NF250-RGW RT NF250-RGV Changes in dimensions (height: from 240 mm to 165 mm, depth: from 86 mm to 68 mm) Applicable to rated current of 250 A Increase in breaking capacity at 415 V AC or less Rated working voltage of below 500 V AC NF250-UGW RT NF250-UGV Change in depth (from 86 mm to 68 mm) Applicable to rated current of 250 A Decrease in breaking capacity at 690 V AC NV-C NV63-CW NV63-CV Same dimension Change of tripping method (from hydraulicmagnetic to thermal magnetic) Changes in operating characteristics Increase in breaking capacity NV125-CW NV125-CV No changes in dimensions and performance NV250-CW NV250-CV Same dimension Increase in breaking capacity − 3 −
  • 5.
    Series Previous W& WS Series New WS-V Series Differences in dimensions and performance between previous and new models NV-S NV32-SW NV32-SV Same dimension Change of tripping method (from hydraulicmagnetic to thermal magnetic) Changes in operating characteristics Increase in breaking capacity NV63-SW NV63-SV Same dimension Change of tripping method (from hydraulicmagnetic to thermal magnetic) Changes in operating characteristics Increase in breaking capacity NV125-SW NV125-SV Same dimension Increase in breaking capacity NV250-SW NV250-SV Same dimension Increase in breaking capacity NV250-SEW NV250-SEV Same dimension Applicable to rated current of 250 A Increase in breaking capacity NV-H NV63-HW NV63-HV Same dimension Change of tripping method (from hydraulicmagnetic to thermal magnetic) Changes in operating characteristics Increase in breaking capacity NV125-HW NV125-HV Same dimension Applicable to rated current of 125 A Increase in breaking capacity NV250-HW NV250-HV Same dimension Applicable to rated current of 250 A Increase in breaking capacity NV250-HEW NV250-HEV Same dimension Applicable to rated current of 250 A Increase in breaking capacity MB MB50-CW NF63-CV (Note) Same dimension Change of tripping method (from hydraulicmagnetic to thermal magnetic) Changes in operating characteristics Increase in breaking capacity MB30-SW NF32-SV (Note) Same dimension Change of tripping method (from hydraulicmagnetic to thermal magnetic) Changes in operating characteristics Increase in breaking capacity MB50-SW NF63-SV (Note) Same dimension Change of tripping method (from hydraulicmagnetic to thermal magnetic) Changes in operating characteristics Increase in breaking capacity MB100-SW NF125-SV (Note) Same dimension Increase in breaking capacity MB225-SW NF250-SV (Note) Same dimensions and characteristics Increase in breaking capacity Note: The circuit breakers for motor protection have the same basic model names as NF/NV. ● New models Model name Remarks NF125-LGV, NF160-LGV, NF250-LGV Thermally adjustable models having breaking capacity of 50 kA at 440 V AC are newly introduced. NV125-SEV, NV125-HEV Electronic breakers − 4 −
  • 6.
    3. Replacement ofPrevious Models with New Models (1) Circuit breaker body (front connection, with 3 poles) NF32-SW NF63-CW/SW/HW MB30-SW MB50-CW/SW Previous W & WS Series New WS-V Series Drilling dimension Front plate cutout plan NF32-SV NF63-CV/SV/HV NF125-CW/SW/HW MB100-SW NF125-CV/SV/HV Previous W & WS Series New WS-V Series Drilling dimension NV32-SW NV63-CW/SW/HW NV32-SV NV63-CV/SV/HV NV125-CW/SW/HW NV125-CV/SV/HV NV250-CW/SW/HW NV250-SEW/HEW NV250-CV/SV/HV NV250-SEV/HEV Front plate cutout plan No change No change No change No change No change No change No change No change No change No change No change No change No change No change No change No change M4×0.7 screw or φ5 hole Breaker 111 25 Breaker 70 52 R 1 M4×0.7 screw or φ5 hole Breaker 111 30 Breaker 52 86 R 1 111 30 Breaker M4×0.7 screw or φ5 hole R1 86 52 Breaker 25 111 M4×0.7 screw or φ5 hole Breaker 70 52 R1 Breaker NF160-SW/HW NF250-CW/SW/HW MB225-SW NF250-CV/SV/HV 52 100 Breaker R 1 35 126 Breaker M4×0.7 screw or φ5 hole NF125-SGW/HGW NF160-SGW/HGW NF250-SGW/HGW NF125-SGV/LGV/HGV NF125-SEV/HEV NF160-SGV/LGV/HGV NF250-SGV/LGV/HGV NF250-SEV/HEV 52 100 Breaker R 1 35 126 Breaker M4×0.7 screw or φ5 hole NF125-RGW/UGW NF250-RGW/UGW NF125-RGV NF250-RGV NF125-UGV NF250-UGV 52 100 Breaker R 1 35 126 Breaker M4×0.7 screw or φ5 hole 52 100 11.5 Breaker R1 201 35 Breaker M4×0.7 screw or φ5 hole 35 126 Breaker M4×0.7 screw or φ5 hole 52 100 Breaker R 1 change change − 5 −
  • 7.
    (2) Circuit breakerand operating handle (front connection, 3P) NF32-SW NF63-CW/SW/HW MB30-SW MB50-CW/SW Previous W & WS Series New WS-V Series Previousmodels New models Previousmodels New models Previousmodels New models Drillingdimensionsformountingofcircuitbreaker Frontplatecutoutdimensions NF32-SV NF63-CV/SV/HV NV32-SW NV63-CW/SW/HW NV125-CW/SW/HW NV32-SV NV63-CV/SV/HV NF125-CW/SW/HW MB100-SW NF125-CV/SV/HV NV125-CV/SV/HV 105 mm 102 mm CircuitbreakerbodyFtype FtypeStypeVtype StypeVtype FtypeStypeVtype Distancebetween circuitbreaker bottomandfront plate F-05S2, F-05S, F-05SE F-05SV2, F-05SV, F-05SVE S-05SW S-05SV V-05S, V-05SE V-05SV, V-05SVE S-1SW S-05SV V-1S, V-1SE V-1SV, V-1SVE F-05S, F-05SE F-05SV, F-05SVE F-1S2, F-1S, F-1SE F-1SV2, F-1SV, F-1SVE F-1S, F-1SE F-1SV, F-1SVE No change No change No change No change No change No change No change No change No change No change 125 mm (stationary type) No change 125 mm (stationary type) − 6 −
  • 8.
    Previous W & WS Series New WS-V Series Previousmodels Newmodels Previousmodels New models Previousmodels New models Drillingdimensionsformountingofcircuitbreaker Frontplatecutoutdimensions CircuitbreakerbodyFtype FtypeStypeVtype StypeVtype FtypeStypeVtype Distancebetween circuitbreaker bottomandfront plate NF160-SW/HW NF250-CW/SW/HW NF250-SEW/HEW MB225-SW NF250-CV/SV/HV NF250-SEV/HEV NV250-CW/SW/HW NV250-SEW/HEW NV250-CV/SV/HV NV250-SEV/HEV NF125-SGW/HGW NF160-SGW/HGW NF250-SGW/HGW NF125-SGV/LGV/HGV NF125-SEV/HEV NF160-SGV/LGV/HGV NF250-SGV/LGV/HGV NF250-SEV/HEV NF125-RGW/UGW NF250-RGW/UGW NF125-RGV NF250-RGV NF125-UGV NF250-UGV No change No change No change No change No change No change No change No change No change 125 mm (stationary type) F-2S, F-2SE F-2SV, F-2SVE S-2SW S-2SV V-2S, V-2SE V-2SV, V-2SVE F-2UG, F-2UGE − V-2UG, V-2UGE F-2SG, F-2SGE F-2SV, F-2SVE S-2GSW S-2SV V-2SG, V-2SGE V-2SV, V-2SVE F-2SV, F-2SVE S-2SV V-2SV, V-2SVE F-2UV, F-2UVE − V-2UV, V-2UVE New models 110 mm Previous models 128 mm New models 107 mm Previous models 125 mm No change No change No change No change No changeNo changeNo change Previous models 143 mm (stationary type) New models 125 mm (stationary type) New models 110 mm Previous models 128 mm New models 107 mm Previous models 125 mm Previous models 143 mm (stationary type) New models 125 mm (stationary type) New models 110 mm Previous models 128 mm New models 107 mm Previous models 125 mm Previous models 143 mm (stationary type) New models 125 mm (stationary type) Center of circuit breaker handle Center of circuit breaker handle Center of circuit breaker Center of operating handle M4×0.7 screw or φ5 hole M4×0.7 screw or φ5 hole Previous model New model Center of circuit breaker and operating handle Differing in hole position Center of operating handle Center of operating handle M4×0.7 screw or φ5 hole M4×0.7 screw or φ5 hole M4×0.7 screw or φ5 hole M4×0.7 screw or φ5 hole Previous model New model Previous model New model Center of circuit breaker and operating handle Center of circuit breaker and operating handle Breaker Breaker Differing in hole position Differing in hole position Center of circuit breaker handle Center of circuit breaker handle Center of circuit breaker and circuit breaker handle Center of circuit breaker and circuit breaker handle Center of circuit breaker Center of circuit breaker − 7 −
  • 9.
    Products Models Compatibility Accessories Applicable models(New models) New breakers with previous accessories Previous breakers with new accessoriesPrevious models New models Cassette- type accessories (Note) AL-05SW* AX-05SW* ALAX-05SW* AL-05SV* AX-05SV* ALAX-05SV* NF/NV32-SV, NF/NV63-CV/SV/HV ✕ ✕ AL-1SW AX-1SW ALAX-1SW NF/NV125-CV/SV/HV ✕ ✕ AL-2SW* AX-2SW* ALAX-2SW* NF/NV250-CV/SV/HV ✕ ✕ AL-2GSW* AX-2GSW* ALAX-2GSW* NF125-SGV/LGV/HGV/RGV/UGV/SEV/HEV, NF250-SGV/LGV/HGV/RGV/UGV/SEV/HEV, etc. ✕ ✕ SHTMMMM-05SWR SHTMMMM-05SVR NF/NV32-SV, NF/NV63-CV/SV/HV ✕ ✕ SHTMMMM-1SWR NF/NV125-CV/SV/HV ✕ ✕ SHTMMMM-2SWR NF/NV250-CV/SV/HV ✕ ✕ SHTMMMM-2GSWR NF125-SGV/LGV/HGV/RGV/UGV/SEV/HEV, NF250-SGV/LGV/HGV/RGV/UGV/SEV/HEV, etc. ✕ ✕ UVTNMMMM-05SW* UVTNMMMM-05SV* UVTSMMMM-05SV* NF/NV32-SV, NF/NV63-CV/SV/HV ✕ ✕ UVTNMMMM-1SW* NF/NV125-CV/SV/HV ✕ ✕ UVTNMMMM-2SW* NF/NV250-CV/SV/HV ✕ ✕ UVTSMMMM-2GSW* NF125-SGV/LGV/HGV/RGV/UGV/SEV/HEV, NF250-SGV/LGV/HGV/RGV/UGV/SEV/HEV, etc. ✕ ✕ Rear stud (B-ST) ST-05SW2, 3, 4 ST-05SV2, 3, 4 NF/NV32-SV, NF/NV63-CV/SV/HV ✕ ✕ ST-1SW2, 3, 4 ST-1SV2, 3, 4 NF/NV125-CV/SV/HV(3, 4P) ✕ ✕ ST-1HW2 ST-1HV2 NF125-HV(2P) ✕ ✕ ST-2SW2, 3, 4 ST-2SV2, 3, 4 NF/NV250-CV/SV/HV ✕ ✕ ST-2GSW2, 3, 4 NF125-SGV/LGV/HGV/SEV/HEV, NF250-SGV/LGV/HGV/SEV/HEV, etc. ✕ ✕ Plug-in terminal (PM) PM-05SW2, 3, 4 PMDN-05SV2, 3, 4 NF/NV32-SV, NF/NV63-CV/SV/HV ✕ ✕ PM-NV05SW2 PMDN-NV05SV2 NV63-CV/SV(2P) ✕ ✕ PM-1SW2, 3, 4 PMDN-1SV2, 3, 4 NF/NV125-CV/SV/HV ✕ ✕ PM-1HW2 PMDN-1HV2 NF125-HV(2P) ✕ ✕ PM-2SW2, 3, 4 PMDN-2SV2, 3, 4 NF/NV250-CV/SV/HV ✕ ✕ PM-2GSWIP2, 3, 4 NF125-SGV/LGV/HGV/SEV/HEV, NF250-SGV/LGV/HGV/SEV/HEV, etc. ✕ ✕ PM-2GUW2, 3 PMDN-2SV2, 3 NF125-RGV, NF250-RGV ✕ ✕ PMDN-2UV2, 3 NF125-UGV, NF250-UGV ✕ ✕ Conductor (FB) FB-05SW FB-05SV NF/NV32-SV, NF/NV63-CV/SV/HV (50A or less) K K FB-1SW FB-1SV NF/NV125-CV/SV/HV K K FB-2SW FB-2SV NF/NV250-CV/SV/HV K K Barrier BAF-05SW BAF-05SV NF/NV32-SV, NF/NV63-CV/SV/HV, NF/NV125-CV/SV/HV, etc. K K BAF-2SW BAF-2SV NF/NV250-CV/SV/HV, etc. K ✕ BAG-05SW3 BAG-05SV3 NF/NV32-SV, NF/NV63-CV/SV/HV K K BAG-1SW3 BAG-1SV3 NF/NV125-CV/SV/HV K K BAG-2SW3 BAG-2SV3 NF/NV250-CV/SV/HV, etc. K K BAG-2GSW3 NF125-SGV/LGV/HGV/RGV/SEV/HEV, NF250-SGV/LGV/HGV/RGV/SEV/HEV, etc. ✕ ✕ 4. Compatibility of Optional Accessories Note: In *, a symbol indicating the mounting pole is shown. In M, the voltage is shown. − 8 −
  • 10.
    Products Models Compatibility Accessories Applicable models(New models) New breakers with previous accessories Previous breakers with new accessoriesPrevious models New models Operating handle F-05S2 F-05SV2 NF32-SV(2P), NF63-CV/SV/HV(2P) ✕ ✕ F-05S F-05SV NF/NV32-SV, NF/NV63-CV/SV/HV ✕ ✕ F-1S2 F-1SV2 NF125-CV/SV(2P) ✕ ✕ F-1S F-1SV NF/NV125-CV/SV/HV ✕ ✕ F-2S F-2SV NF/NV250-CV/SV/HV ✕ ✕ F-2SG NF125-SGV/LGV/HGV/RGV/SEV/HEV, NF250-SGV/LGV/HGV/RGV/SEV/HEV, etc. ✕ ✕ F-2UG F-2UV NF125-UGV, NF250-UGV ✕ ✕ F-RCS (release protection) F-RCS (release protection) F type operating handle is applicable to all models. K K S-05SW S-05SV NF/NV32-SV, NF/NV63-CV/SV/HV ✕ ✕ S-1SW S-1SV NF/NV125-CV/SV/HV ✕ ✕ S-2SW S-2SV NF/NV250-CV/SV/HV ✕ ✕ S-2GSW NF125-SGV/LGV/HGV/RGV/SEV/HEV, NF250-SGV/LGV/HGV/RGV/SEV/HEV, etc. ✕ ✕ V-05S2 V-05SV2 NF32-SV(2P), NF63-CV/SV/HV(2P) ✕ ✕ V-05S V-05SV NF/NV32-SV, NF/NV63-CV/SV/HV ✕ ✕ V-1S2 V-1SV2 NF125-CV/SV(2P) ✕ ✕ V-1S V-1SV NF/NV125-CV/SV/HV ✕ ✕ V-2S V-2SV NF/NV250-CV/SV/HV ✕ ✕ V-2SG NF125-SGV/LGV/HGV/RGV/SEV/HEV, NF250-SGV/LGV/HGV/RGV/SEV/HEV, etc. ✕ ✕ V-2UG V-2UV NF125-UGV, NF250-UGV ✕ ✕ V-AD3S (adjusting unit) V-AD3S (adjusting unit) V type operating handle is applicable to all models. K K Clamp TG-S05SW TG-S05SV NF/NV32-SV, NF/NV63-CV/SV/HV, etc. K K TG-S2SW TG-S2SV NF/NV250-CV/SV/HV, etc. K K TC-S TCS-05SW2W, 3W, 4W TCS-05SV2, 3, 4 NF/NV32-SV, NF/NV63-CV/SV/HV K K TCS-1SW2W, 3W, 4W TCS-1SV2, 3, 4 NF/NV125-CV/SV/HV K K TCS-2SW3W, 4W TCS-2SV3, 4 NF/NV250-CV/SV/HV K K TCS-2GSW3W, 4W NF125-SGV/LGV/HGV/RGV/UGV/SEV/HEV, NF250-SGV/LGV/HGV/RGV/UGV/SEV/HEV, etc. ✕ ✕ TC-L TCL-05SW2W, 3W, 4W TCL-05SV2, 3, 4 NF/NV32-SV, NF/NV63-CV/SV/HV K K TCL-1SW2W, 3W, 4W TCL-1SV2, 3, 4 NF/NV125-CV/SV/HV K K TCL-2SW3W, 4W TCL-2SV3, 4 TCL-2SV3L NF/NV250-CV/SV/HV K K TCL-2GSW3W, 4W NF125-SGV/LGV/HGV/RGV/UGV/SEV/HEV, NF250-SGV/LGV/HGV/RGV/UGV/SEV/HEV, etc. ✕ ✕ TTC TTC-05SW2, 3 TTC-05SV2, 3 NF/NV32-SV, NF/NV63-CV/SV/HV K K TTC-1SW2, 3 TTC-1SV2, 3 NF/NV125-CV/SV/HV K K TTC-2SW3 TTC-2SV3 NF/NV250-CV/SV/HV K K TTC-2GSW3 NF125-SGV/LGV/HGV/RGV/UGV/SEV/HEV, NF250-SGV/LGV/HGV/RGV/UGV/SEV/HEV, etc. ✕ ✕ BTC BTC-05SW2W, 3W BTC-05SV2, 3 NF/NV32-SV, NF/NV63-CV/SV/HV K K BTC-1SW2W, 3W BTC-1SV2, 3 NF/NV125-CV/SV/HV K K BTC-2SW3W BTC-2SV3 NF/NV250-CV/SV/HV K K BTC-2GSW3W NF125-SGV/LGV/HGV/RGV/UGV/SEV/HEV, NF250-SGV/LGV/HGV/RGV/UGV/SEV/HEV, etc. ✕ ✕ PTC PTC-05SW2W, 3W PTC-05SV2, 3 NF/NV32-SV, NF/NV63-CV/SV/HV ✕ ✕ PTC-1SW2W, 3W PTC-1SV2, 3 NF/NV125-CV/SV/HV ✕ ✕ PTC-2SW3W PTC-2SV3 NF/NV250-CV/SV/HV ✕ ✕ PTC-2GSW3W NF125-SGV/LGV/HGV/RGV/UGV/SEV/HEV, NF250-SGV/LGV/HGV/RGV/UGV/SEV/HEV, etc. ✕ ✕ − 9 −
  • 11.
    Note: In *,a symbol indicating the mounting pole is shown. In M, the voltage is shown. Products Models Compatibility Accessories Applicable models (New models) New breakers with previous accessories Previous breakers with new accessoriesPrevious models New models Lock cover LC-05SW LC-05SV NF/NV32-SV, NF/NV63-CV/SV/HV ✕ ✕ LC-1SW LC-1SV NF/NV125-CV/SV/HV ✕ ✕ LC-2SW LC-2SV NF/NV250-CV/SV/HV ✕ ✕ LC-2GSW NF125-SGV/LGV/HGV/RGV/UGV/SEV/HEV, NF250-SGV/LGV/HGV/RGV/UGV/SEV/HEV, etc. ✕ ✕ Handle lock HLF-05SW, HLN-05SW HLF-05SV, HLN-05SV NF/NV32-SV, NF/NV63-CV/SV/HV ✕ ✕ HLF-1SW, HLN-1SW HLF-1SV, HLN-1SV NF/NV125-CV/SV/HV ✕ ✕ HLF-2SW, HLN-2SW HLF-2SV, HLN-2SV NF/NV250-CV/SV/HV ✕ ✕ HLF-2GSW, HLN-2GSW NF125-SGV/LGV/HGV/RGV/UGV/SEV/HEV, NF250-SGV/LGV/HGV/RGV/UGV/SEV/HEV, etc. ✕ ✕ HLS-05SW, HLS-05SW2P HLS-05SV, HLS-05SV2P NF/NV32-SV, NF/NV63-CV/SV/HV ✕ ✕ HLS-1SW, HLS-1SW2P HLS-1SV, HLS-1SV2P NF/NV125-CV/SV/HV ✕ ✕ HLS-2SW HLS-2SV NF/NV250-CV/SV/HV ✕ ✕ HLS-2GSW NF125-SGV/LGV/HGV/RGV/UGV/SEV/HEV, NF250-SGV/LGV/HGV/RGV/UGV/SEV/HEV, etc. ✕ ✕ SBOX NFS-05SW2P NFS-05SV2P NF32-SV(2P), NF63-CV/SV/HV(2P), etc. K K NFS-05SW NFS-05SV NF/NV32-SV, NF/NV63-CV/SV/HV K K NFS-1SW2P NFS-1SV2P NF125-CV/SV K K NFS-1SW NFS-1SV NF/NV125-CV/SV/HV K K NFS-2SW NFS-2SV NF/NV250-CV/SV, etc. K K IBOX NFI-05SW NFI-05SV NF/NV32-SV, NF/NV63-CV/SV/HV ✕ ✕ NFI-1SW NFI-1SV NF/NV125-CV/SV/HV ✕ ✕ NFI-2SW NFI-2SV NF/NV250-CV/SV/HV, etc. ✕ ✕ WBOX NFW-05SW NFW-05SV NF/NV32-SV, NF/NV63-CV/SV/HV ✕ ✕ NFW-1SW NFW-1SV NF/NV125-CV/SV ✕ ✕ NFW-1HW NFW-1HV NF/NV125-HV ✕ ✕ NFW-2SW NFW-2SV NF/NV250-CV/SV/HV, etc. ✕ ✕ Electric operation unit (Note) MDSMMMM-NF1SWE MDSMMMM-NF1SVE NF125-CV/SV/HV ✕ ✕ MDSMMMM-NV1SWE MDSMMMM-NV1SVE NV125-CV/SV/HV ✕ ✕ MDSMMMM-NF2SWE MDSMMMM-NF2SVE NF250-CV/SV/HV ✕ ✕ MDSMMMM-NF2GSWE MDSMMMM-NF2SVE NF125-SGV/LGV/HGV/RGV/SEV/HEV, NF250-SGV/LGV/HGV/RGV/SEV/HEV, etc. ✕ ✕ MDSMMMM-NV2SWE MDSMMMM-NV2SVE NV250-CV/SV/HV ✕ ✕ Mechanical interlock MI-05SW3 MI-05SV3 NF/NV32-SV, NF/NV63-CV/SV/HV, NF/NV125-CV/SV/HV, NF/NV250-CV/SV/HV, NF125-SGV/LGV/HGV/RGV/UGV/SEV/HEV, NF250-SGV/LGV/HGV/RGV/UGV/SEV/HEV, etc. K K IEC 35 mm rail mounting adapter DIN-05SW DIN-05SV NF/NV32-SV, NF/NV63-CV/SV/HV, etc. ✕ ✕ DIN-1SW2 – No new models ✕ – DIN-1SW3 – No new models ✕ – Card holder CH-P NO.5 CH-P NO.5 NF/NV250-SV or lower K K − 10 −
  • 12.
    Previous W &WS Series New WS-V Series Models Reference page Models Reference page NF32-SW, NF63-CW, NF63-SW, NF63-HW 13 NF32-SV, NF63-CV, NF63-SV, NF63-HV 14 NV32-SW, NV63-CW, NV63-SW, NV63-HW 15 NV32-SV, NV63-CV, NV63-SV, NV63-HV 16 NF125-CW, NF125-SW, NF125-HW 17 NF125-CV, NF125-SV, NF125-HV 18 NV125-CW, NV125-SW, NV125-HW 19 NV125-CV, NV125-SV, NV125-HV 20 NF250-CW, NF250-SW, NF250-HW, MB225-SW 21 NF250-CV, NF250-SV, NF250-HV 22 NV250-CW, NV250-SW, NV250-HW 23 NV250-CV, NV250-SV, NV250-HV 24 NV250-SEW, NV250-HEW 25 NV250-SEV, NV250-HEV 26 NF125-SGW, NF125-HGW, NF160-SGW, NF160-HGW, NF250-SGW, NF250-HGW 27 NF125-SGV, NF125-LGV, NF125-HGV, NF125-SEV, NF125-HEV, NF160-SGV, NF160-LGV, NF160-HGV, NF250-SGV, NF250-LGV, NF250-HGV, NF250-SEV, NF250-HEV 28 NF125-RGW, NF250-RGW 29 NF125-RGV, NF250-RGV 30 NF125-UGW, NF250-UGW 31 NF125-UGV, NF250-UGV 32 MB30-SW, MB50-CW, MB50-SW 13 NF32-SV, NF63-CV, NF63-SV (Note) 14 MB100-SW 17 NF125-SV (Note) 18 5. Outline Dimensions of Previous and New Models Note: The circuit breakers for motor protection have the same basic model names as NF. − 11 −
  • 13.
    Wire size applicableto direct connection of wire φ1.6 22 mm2 CL CL LC LC 22 Neutral pole Insulating barrier (removable) Mounting hole Trip button 25 50 50 75 25 75 100 50130 111 12.5 max. 6 φ5.5 (φ6.5 for 60 A and 63 A) LC CL CLCL Breaker Drilling plan M4 × 0.7 screw or φ5 hole 2525 111 50 84 24 45 φ8.5 61 68 724 90 M5 × 0.8 screw (M6 screw for 60 A and 63 A) φ4.5 Conductor drilling for direct connection (Conductor thickness t = 5 max.) LC CL LC LC φ14 Breaker M4 × 0.7 screw or φ5 hole Drilling plan 111 25 25 75 25 5025 27 min. 8 72 68 42 111 8 50 Mounting plate t = 3.2 max. Insulating tube M6 screw M4 × 0.7 screw for breaker mounting LC LC Front-panel cutout 1.0 mm clearance on each side of the handle frame CL CL 50 2-pole 3-pole CL LC 22.5 70 52 4-pole Breaker CL LC LC Center of circuit breaker body Drilling plan Breaker (plug-in terminal block) M5 × 0.8 screw or φ6 hole 54 545480 57 82 25 107 50 Conductor drilling drawing 4-pole3-pole 50 80 75 25 105 111 55 25 16.5 max. 7 φ6.5 LC 11 Plug-in terminal block Mounting plate Details of terminal M6 screw M5 × 0.8 screw Mounting with terminal block mounting nut or mounting directly with screw 3 180 83.5 85 30 21 89 5.5 15.5 10 R1 2-pole 3-pole 4-pole 2-pole 3-pole 4-pole 2-pole 3-pole 4-pole 2-pole 3-pole 4-pole2-pole Molded-case circuit breakers Previous W & WS Series NF32-SW, NF63-CW, NF63-SW, NF63-HW, MB30-SW, MB50-CW, MB50-SW Front connection Rear connection Plug-in − 12 −
  • 14.
    42 (44 for60 A and 63 A) 21 3089 11 7 16.5 max. 57 82 25 50 107 548054 54 83.5 85 170 116 80 50 25 55 105 75 25 5.5 φ6.5 8 Mounting plate t = 3.2 max. Insulating tube 50 22.5 φ14 70 52 R1 111 25 25 75 25 5025 50 4268 72 8 27 min. 27 min. 112 112 Mounting hole 22 25 50 50 75 25 75 100 50130 Insulating barrier (removable) Neutral pole Trip button 8 φ8.5 45 50 84 24 61 68 724 90 12.5 max. φ4.5 φ5.5 (φ8.5 for 60 A and 63 A) (16 max. for 60 A and 63 A) (31 min. for 60 A and 63 A) (29 min. for 60 A and 63 A) (46 for 60 A and 63 A) M5 × 0.8 screw (M8 screw for 60 A and 63 A) (Conductor thickness t = 5 max.) Conductor drilling for direct connection 2525 111 Breaker M4 × 0.7 screw or φ5 hole Breaker M4 × 0.7 screw or φ5 hole M6 screw M4 × 0.7 screw for breaker mounting Drilling plan Front-panel cutout 1.0 mm clearance on each side of the handle frame 2-pole 3-pole 4-pole Breaker Breaker (plug-in terminal block) M5 × 0.8 screw or φ6 hole 4-pole3-pole Plug-in terminal block Mounting plate M6 screw M5 × 0.8 screw for mounting terminal block Wire size applicable to direct connection of wire φ1.6 22mm2 (For M5 × 0.8 screw) Drilling plan Drilling plan Details of terminal Conductor drilling drawing Molded-case circuit breakers New WS-V Series NF32-SV, NF63-CV, NF63-SV, NF63-HV Front connection Rear connection Plug-in 2-pole 3-pole 4-pole 2-pole 3-pole 4-pole 2-pole 2-pole 3-pole 4-pole 2-pole 3-pole 4-pole 112 − 13 −
  • 15.
    25 6 12.5 max. 90 4 72 68 61 φ8.5 φ4.5 45 24 84 75 50 22 111 130 111 50 Mountinghole Insulating barrier (removable) Sensitivity current switching unit Earth-leakage indicating button Test button Trip button M5 × 0.8 screw (M6 screw for 60 A and 63 A) φ5.5 (φ6.5 for 60 A and 63 A) Wire size applicable to direct connection of wire φ1.6 22 mm2 Breaker M4 × 0.7 screw or φ5 hole Drilling plan LC LC LC LC 27 min. 8 72 68 42 111 8 50 50 25 111 Mounting plate t = 3.2 max. Insulating tube M6 screw M4 × 0.7 screw for breaker mounting φ14 M4 × 0.7 screw or φ5 hole Breaker Drilling plan LC LC LC LC 52 70 Breaker Front-panel cutout 1.0 mm clearance on each side of the handle frame R 1 LC LC 10 15.5 5.5 89 21 30 85 83.5 180 3 7 16.5 max. 111 80 50 25 82 805454 54 11 Plug-in terminal block Mounting plate M5 × 0.8 screw Mounting with terminal block mounting nut or mounting directly with screw M6 screw φ6.5 Conductor drilling drawing M5 × 0.8 screw or φ6 hole Breaker (plug-in terminal block) Center of circuit breaker body Drilling plan LC LC 50 Conductor drilling for direct connection (Conductor thickness t = 5 max.) Details of terminal Earth-leakage circuit breakers Previous W & WS Series NV32-SW, NV63-CW, NV63-SW, NV63-HW Front connection Rear connection Plug-in − 14 −
  • 16.
    112 8 72 68 42 50 50 25 R1 52 70 φ14 φ4.5 25 90 4 72 68 61 24 84 75 50 22 50 φ6.5 111 130 112 50 8 5.5 50 80 116 170 85 54 548054 25 82 7 11 8930 21 8 45 φ8.5 12.5 max. (16 max. for 60 A and 63 A) Mounting hole Insulating barrier (removable) Sensitivity current switching unit Earth-leakage indicating button Test button Trip button M5 × 0.8 screw (M8 screw for 60 A and 63 A) φ5.5 (φ8.5 for 60 A and 63 A) Breaker M4 × 0.7 screw or φ5 hole Conductor drilling for direct connection (Conductor thickness t = 5 max.) 27 min. Mounting plate t = 3.2 max. Insulating tube M6 screw M4 × 0.7 screw for breaker mounting M4 × 0.7 screw or φ5 hole Breaker Drilling plan Drilling plan Breaker 1.0 mm clearance on each side of the handle frame Front-panel cutout 16.5 max. Plug-in terminal block Mounting plate M6 screw Conductor drilling drawing M5 × 0.8 screw or φ6 hole Breaker (plug-in terminal block) Drilling plan 83.5 M5 × 0.8 screw for mounting terminal block Details of terminal Earth-leakage circuit breakers New WS-V Series NV32-SV, NV63-CV, NV63-SV, NV63-HV Front connection Rear connection Plug-in Wire size applicable to direct connection of wire φ1.6 22 mm2 (For M5 × 0.8 screw) 111 112 − 15 −
  • 17.
    CL LC LC CL 50Neutral pole 30 90 120 112 130 60 30 90 60 22 Trip button Insulating barrier (removable) Mountinghole CLLCLC LC 30 110-111 (Note1) 30 Breaker Drilling plan M4 × 0.7 screw or φ5 hole 24 84 50 68 61 45 724 90 φ8.5 8 M8 screw 19 max. (comb-like conductor: 16.5 max.) Conductor drilling for direct connection (Conductor thickness t = 5 max.) φ8.5 φ4.5 CL 102 15 72 68 8.5 2.5 15 54.5 104.5 15 2.5 16 112 Mounting plate t = 3.2 max. Stud rotatable by 90° Insulating tube Connecting allowance M8 bolt 90 8 60 5 Insulating tube M4 × 0.7 screw for breaker mounting LCCL CL LC 30 110-111(Note1) 90 30 112 30 60 30 M4 × 0.7 screw or φ5 hole Breaker Drilling plan φ18 LC LCLC LC 28 57 86 52 Breaker R1 R1 CL 89 12.5 Plug-in terminal block Mounting plate 98 190 11 21 30 5.5 20 Details of terminal M8 screw M5 × 0.8 screw Mounting with terminal block mounting nut or mounting directly with screw Drilling plan CL LC CL CL Breaker (plug-in terminal block) 54 945656 127 6030 9767 M5 × 0.8 screw or φ6 hole 30 95 60 125 90 30 65 16.5 max. 12 φ8.5 Conductor drilling drawing 134 2-pole 3-pole 4-pole Front-panel cutout 1.0 mm clearance on each side of the handle frame Molded-case circuit breakers Previous W & WS Series NF125-CW, NF125-SW, NF125-HW, MB100-SW Front connection Rear connection Plug-in Note (1) Applicable to both mounting sizes 110 and 111 Remarks: 1. 2-pole model of NF125-HW are 3-pole model with the central pole removed. 2. Only 2- and 3-pole models are available for the model of NF125- CW and only 3-pole models are available for the model of MB100-SW. 2-pole 3-pole 4-pole 2-pole 3-pole 4-pole 2-pole 2-pole 3-pole 4-pole 3-pole 4-pole 2-pole 3-pole 4-pole 2-pole 3-pole 4-pole Solderless terminal for wire size 125~175A 14~95mm2 200~250A 70~125mm2 Wire connection − 16 −
  • 18.
    Drilling plan 111 111 8 φ8.5 φ8.5 φ18 φ4.5 R1 R1 30 50 90 30 90 120 28 90 30 112 30 112 130 102 52 15 72 68 8.5 2.5 15 54.5 104.5 15 2.5 16 112 60 5 30 5786 52 60 30 60 30 90 60 22 24 84 50 68 61 45 724 90 8 30 5.5 83.5 85 170 12 3089 21 11 54 805656 67 97 127 60 95 30 65 116 30 90 125 Mounting hole Insulating barrier (removable) Trip button Neutral pole M8 screw Conductor drilling for direct connection (Conductor thickness t = 5 max.) Drilling plan M4 × 0.7 screw or φ5 hole 19 max. (comb-like conductor: 16.5 max.) Breaker Breaker Breaker Front-panel cutout M4 × 0.7 screw or φ5 hole Drilling plan M4 × 0.7 screw for breaker mounting Insulating tube Mounting plate t = 3.2 max. Insulating tube Stud rotatable by 90° Connecting allowance M8 bolt Breaker (plug-in terminal block) M5 × 0.8 screw or φ6 hole φ8.5 Conductor drilling drawing 20 max. Details of terminal Plug-in terminal block Mounting plate M5 × 0.8 screw Mounting with terminal block mounting nut or mounting directly with screw M8 screw 1.0 mm clearance on each side of the handle frame 2-pole 2-pole 3-pole 3-pole 4-pole 4-pole 2-pole 3-pole 4-pole 2-pole 3-pole 4-pole Molded-case circuit breakers New WS-V Series NF125-CV, NF125-SV, NF125-HV Front connection Rear connection Plug-in 2-pole 3-pole 4-pole 2-pole 3-pole 4-pole 2-pole 3-pole 4-pole Remarks: 1. 2-pole model of NF125-SV are 3-pole models with the central pole removed. 2. Only 2- and 3-pole models are available for the model of NF125-CV. Solderless terminal for wire size 125~175A 14~95mm2 200~250A 70~125mm2 Wire connection − 17 −
  • 19.
    CLLC LC 3030 Breaker Drilling plan M4 ×0.7 screw or φ5 hole CL LC LC Trip button Trip button Operating time changing unit (time delay type) Sensitivity current switching unit Test button Earth-leakage indicating button 120 90 30 Neutral pole Earth-leakage indicating button Test button Sensitivity current switching unit Operating time changing unit 130 112 50 90 60 22 Insulating barrier (removable) Mounting hole 24 84 50 68 61 45 724 90 φ8.5 M8 screw 19 max. (comb-like conductor: 16.5 max.) Conductor drilling for direct connection (Conductor thickness t = 5 max.) φ8.5 φ4.5 8 CL 102 52 Connecting allowance 15 72 68 8.5 2.5 15 54.5 104.5 15 2.5 16 112 Mounting plate t = 3.2 max. Stud rotatable by 90° Insulating tube M8 bolt 90 60 5 8 Insulating tube M4 × 0.7 screw for breaker mounting LCCL CL 110-111(Note1) 30 30 90 112 60 30 M4 × 0.7 screw or φ5 hole Breaker Drilling plan φ18 LC LC LC 28 Breaker 52 86 R1 12.5 5.5 20 Details of terminal 16.5 max. 12 φ8.5 Conductor drilling drawing CL 89 Plug-in terminal block Mounting plate 98 190 11 21 30 M8 screw M5 × 0.8 screw Mounting with terminal block mounting nut or mounting directly with screw LC Drilling plan CL CL Breaker (plug-in terminal block) 54 945656 127 6030 97 M5 × 0.8 screw or φ6 hole 30 125 90 95 60 134 Note (1) Applicable to both mounting sizes 110 and 111 Remark: NV125-CW is available in 3-pole only. 110-111 (Note1) Front-panel cutout 1.0 mm clearance on each side of the handle frame Earth-leakage circuit breakers Previous W & WS Series NV125-CW, NV125-SW, NV125-HW Front connection Rear connection Plug-in 3-pole 4-pole 3-pole 4-pole 3-pole 4-pole 3-pole 4-pole 3-pole 4-pole 3-pole 3-pole 4-pole 4-pole Solderless terminal for wire size 125~175A 14~95mm2 200~250A 70~125mm2 Wire connection − 18 −
  • 20.
    111 111 8 19 max. (comb-like conductor: 16.5max.) 50 112 130 φ18 R1 30 50 90 30 90 120 28 90 30 112 30 112 130 102 52 72 68 8.5 2.5 15 54.5 104.5 15 2.5 16 112 60 5 86 52 60 30 90 60 22 24 84 50 68 61 45 724 90 8 30 5.5 83.5 85 170 12 3089 21 11 54 805454 97 127φ8.5 60 95 116 30 90 125 Connecting allowance 15 Drilling plan Breaker (plug-in terminal block) M5 × 0.8 screw or φ6 hole 20 max. Conductor drilling drawingDetails of terminal Plug-in terminal block Mounting plate M8 screw M5 × 0.8 screw Mounting with terminal block mounting nut or mounting directly with screw Breaker Drilling plan M4 × 0.7 screw or φ5 hole 3-pole Trip button Operating time changing unit (time delay type) 4-pole Neutral pole Earth-leakage indicating button Test button Sensitivity current switching unit Insulating barrier (removable) Mounting hole φ8.5 M8 screw Conductor drilling for direct connection (Conductor thickness t = 5 max.) φ8.5 φ4.5 Breaker Insulating tube M4 × 0.7 screw for breaker mounting M4 × 0.7 screw or φ5 hole Breaker Drilling plan Mounting plate t = 3.2 max. Stud rotatable by 90° Insulating tube M8 bolt Front-panel cutout 1.0 mm clearance on each side of the handle frame Remark: NV125-CV is available in 3-pole only. Earth-leakage circuit breakers New WS-V Series NV125-CV, NV125-SV, NV125-HV Front connection Rear connection Plug-in 3-pole 4-pole 3-pole 4-pole 3-pole 4-pole 3-pole 4-pole 3-pole 4-pole 3-pole 4-pole Solderless terminal for wire size 125~175A 14~95mm2 200~250A 70~125mm2 Wire connection − 19 −
  • 21.
    Molded-case circuit breakers PreviousW & WS Series NF250-CW, NF250-SW, NF250-HW, MB225-SW Front connection Rear connection Plug-in 105 102 50 61 68 45 724 92 24 70 22 23 max. 10 35 φ4.5 φ8.5 35 126 140 105 35 100100165 144 Neutral pole Breaker M4 × 0.7 screw or φ5 hole Drilling plan Mounting hole Insulating barrier (removable) Trip button M8 bolt with hexagon hole φ8.5 CL CLLC CL CL CL Conductor drilling for direct connection (Conductor thickness t = 7 max.) 15 15 22 20 144 70 35 φ24 68 72 71 106 8 6 105 70 35 105 35 126 144 Drilling plan M4 × 0.7 screw or φ5 hole Breaker M4 × 0.7 screw for breaker mounting Insulating tube φ9 M8 bolt Connecting allowance Insulating tube Stud rotatable by 90° Mounting plate t = 3.2 max. CL CL LCLC 32.5 52 100 Breaker LC CL CL R 1 86 200 18 32 14434.528 20 70 105 153 6 14 70 107 70 15 22 φ7 58.558.580 54 142 105 Studs can be installed in this direction only. Insulating barrier M6 screw for mounting terminal block Mounting plate Plug-in terminal block Connecting allowance φ9 M8 bolt Drilling plan Breaker (plug-in terminal block) CL CL CL CL LC 3-pole 4-pole 3-pole 4-pole Front-panel cutout 1.0 mm clearance on each side of the handle frame Remarks: 1. 2-pole models are 3-pole models with the central pole removed. 2. Only 2- and 3-pole models are available for the model of NF250-CW and only 3-pole models are available for the model of MB225-SW. 3-pole 4-pole 3-pole 4-pole 3-pole 4-pole 3-pole 4-pole 3-pole 4-pole Solderless terminal for wire size 125~175A 14~95mm2 200~250A 70~125mm2 Wire connection − 20 −
  • 22.
    105 102 50 61 68 45 724 92 24 70 22 25 max. 9 35 φ4.5 φ8.5 35 126 140 105 35 100100165 144 Neutral pole Breaker M4× 0.7 screw or φ5 hole Drilling plan Mounting hole Insulating barrier (removable) Trip button M8 bolt with hexagon hole φ8.5 Conductor drilling for direct connection (Conductor thickness t = 7 max.) 15 15 22 20 144 70 35 φ24 68 72 71 106 8 6 105 70 105 35 126 144 Drilling plan M4 × 0.7 screw or φ5 hole Breaker M4 × 0.7 screw for breaker mounting Insulating tubeφ9 M8 bolt Connecting allowance Insulating tube Stud rotatable by 90°Mounting plate t = 3.2 max. 32.5 52 100 Breaker 1.0 mm clearance on each side of the handle frame Front-panel cutout R 1 89 112 190 165 21 30 31 14434.528 20 3-pole 70 4-pole 105 3-pole 105 4-pole 140 151 6 11 70 107 70 15 24 56.556.580 54 142 105 Studs can be installed in this direction only. Insulating barrier Mounting plate Plug-in terminal block Connecting allowance φ9 M8 bolt Drilling plan Breaker (plug-in terminal block) 4-pole 145 3-pole 110 35 M5 × 0.8 screw or φ6 hole M5 screw for mounting terminal block or C 1 C 1 10 25 max. φ8.5 Solderless terminal for wire size 125~175A 14~95mm2 200~250A 70~125mm2 Wire connection Molded-case circuit breakers New WS-V Series NF250-CV, NF250-SV, NF250-HV Front connection Rear connection Plug-in 3-pole 4-pole 3-pole 4-pole 3-pole 4-pole 3-pole 4-pole 3-pole 4-pole 3-pole 4-pole Remarks: 1. 2-pole models are 3-pole models with the central pole removed. 2. Only 2- and 3-pole models are available for the model of NF250-CV. − 21 −
  • 23.
    Earth-leakage circuit breakers PreviousW & WS Series NV250-CW, NV250-SW, NV250-HW Front connection Rear connection Plug-in Drilling plan M4 × 0.7 screw or φ5 hole Breaker 126 3535 LC LC LC Test button Operating time changing unit (time delay type) Sensitivity current switching unit Earth-leakage indicating button Test button 105 70 Insulating barrier (removable) Mounting hole Trip button Operating time changing unit (time delay type) Sensitivity current switching unit Earth-leakage indicating button Neutral pole 144 165100100 35 105 140 LC CL LC 22 φ8.5 M8 bolt with hexagon hole φ8.5 φ4.5 10 24 92 4 72 45 68 61 50 102 23 max. Conductor drilling for direct connection (Conductor thickness t = 7 max.) Breaker M4 × 0.7 screw or φ5 hole Drilling plan 144 126 35 105 35φ24 35 70 CL CL LC LC Mounting plate t = 3.2 max. Stud rotatable by 90° Insulating tube φ9 M8 bolt Insulating tube M4 × 0.7 screw for breaker mounting 70 105 6 8 106 71 72 68 144 20 Connecting allowance 22 15 15 1.0 mm clearance on each side of the handle frame Breaker 100 52 32.5 LC LC CL R 1 φ9 M8 bolt Insulating barrier Studs can be installed in this direction only. 15 70 153 70 105 20 LC Breaker (plug-in terminal block) Drilling plan 105 142 54 8058.558.5 φ7 107 70 CLLC LC Plug-in terminal blockMounting plate M6 screw for mounting terminal block 14 6 2834.5144 32 18 200 86 LC 4-pole 3-pole Front-panel cutout 22Connecting allowance Remark: NV250-CW are available in 3-pole only. 3-pole 4-pole 3-pole 4-pole 3-pole 4-pole 3-pole 4-pole 3-pole 4-pole 3-pole 4-pole Solderless terminal for wire size 125~175A 14~95mm2 200~250A 70~125mm2 Wire connection − 22 −
  • 24.
    100 144 165 15 105 102 50 61 68 45 724 92 24 70 22 9 φ8.5 15 20 144 70 35 35 φ24 φ4.5 68 72 71 106 φ8.5 35 126 140 105 35 100100165 144 8 6 105 70 35 105 35 126 144 32.5 R 1 52 100 8056.556.5 107 142 34.528144 6 21 89 112 190 11 165 30 31 20 151 70 24Connecting allowance 15 54 70105 25 max. Breaker Breaker Drilling plan M4 × 0.7 screw or φ5 hole Insulating tube M4 × 0.7 screw for breaker mounting Test button Insulating barrier (removable)Mounting hole Trip button Operating time changing unit (time delay type) Sensitivity current switching unit Earth-leakage indicating button Neutral pole M8 bolt with hexagon hole Conductor drilling for direct connection (Conductor thickness t = 7 max.) Mounting plate t = 3.2 max. Stud rotatable by 90° Insulating tube φ9 M8 bolt Connecting allowance 22 M4 × 0.7 screw or φ5 hole M5 × 0.8 screw or φ6 hole Drilling plan Front-panel cutout 1.0 mm clearance on each side of the handle frame Breaker Plug-in terminal block Mounting plate φ9 M8 bolt Insulating barrier Studs can be installed in this direction only. 4-pole 145 4-pole 105 3-pole 110 3-pole 70 4-pole 140 3-pole 105 Drilling plan M5 screw for mounting terminal block Remark: NV250-CV are available in 3-pole only. Earth-leakage circuit breakers New WS-V Series NV250-CV, NV250-SV, NV250-HV Front connection Rear connection Plug-in 3-pole 4-pole 3-pole 4-pole 3-pole 4-pole 3-pole 4-pole 3-pole 4-pole 3-pole 4-pole Solderless terminal for wire size 125~175A 14~95mm2 200~250A 70~125mm2 Wire connection or C 1 C 1 10 25 max. φ8.5 − 23 −
  • 25.
    NV250-SEW, NV250-HEW Front connection Rearconnection Plug-in Insulating barrier 22Connecting allowance 15 153 20 70 105 70 φ9 M8 bolt Studs can be installed in this direction only. Breaker (plug-in terminal block) Drilling plan Plug-in terminal block Mounting plate 105 142 54 8058.558.5 φ7 107 70 14 6 2834.5144 32 18 200 86 (Note) To change the settings, open the upper cover. Current indicating LED OVER PAL 70% Overcurrent test connector (Conductor thickness t = 7 max.) φ8.5 M8 bolt with hexagon hole Trip button Mounting hole Drilling plan Breaker Neutral pole 144 165100100 35 105 140 126 35 φ8.5 φ4.5 35 10 23 max. 22 70 24 92 4 72 45 68 61 50 102(Uppercover) 105 Earth-leakage test button Tripping characteristic switching unit Sensitivity current switching unit Earth-leakage indicating button Operating time changing unit (time delay type) Insulating barrier (removable) M4 × 0.7 screw or φ5 hole Conductor drilling for direct connection Breaker3-pole 4-pole 100 52 32.5 R1 Insulating tube 22 Connecting allowance φ9 M8 bolt Insulating tube M4 × 0.7 screw for breaker mounting Breaker Drilling plan 144 126 35 105 35 70 105 6 8 106 71 72 68 φ24 35 70 144 20 15 15 M4 × 0.7 screw or φ5 hole Stud rotatable by 90° Mounting plate t = 3.2 max. 3-pole 4-pole 3-pole 4-pole 3-pole 4-pole 3-pole 4-pole 3-pole 4-pole 3-pole 4-pole 1.0 mm clearance on each side of the handle frame Front-panel cutout M6 screw for mounting terminal block Solderless terminal for wire size 125~175A 14~95mm2 200~250A 70~125mm2 Wire connection Earth-leakage circuit breakers Previous W & WS Series − 24 −
  • 26.
    NV250-SEV, NV250-HEV Front connection Rearconnection Plug-in 165 165 100 144 144 100 Tripping characteristic switching unit Test button Sensitivity current switching unit Earth-leakage indicating button 25 max. M8 bolt with hexagon hole 105 102 50 61 68 45 724 92 24 70 22 9 φ8.5 35 Mounting hole (Conductor thickness t = 7 max.) Breaker φ4.5 φ8.5 35 126 140 105 35 100 Neutral pole Trip button Operating time changing unit (time delay type) Insulating barrier (removable) Conductor drilling for direct connection Drilling plan M4 × 0.7 screw or φ5 hole Breaker 32.5 52 100 R1 Stud rotatable by 90° 15 15 20 144 70 35 Mounting plate t = 3.2 max. Insulating tube 22 Connecting allowance φ9 M8 bolt M4 × 0.7 screw for breaker mounting φ24 68 72 71 106 Insulating tube 8 6 105 70 35 105 35 126 144 Breaker Drilling plan M4 × 0.7 screw or φ5 hole Front-panel cutout 4-pole 140 4-pole 105 8056.556.5 107 142 34.528144 6 21 89 112 190 11 165 30 31 20 3-pole 70 151 70 24Connecting allowance 15 3-pole 105 54 70 Plug-in terminal block Mounting plate 105 Insulating barrier M5 × 0.8 screw or φ6 hole φ9 M8 bolt Studs can be installed in this direction only. 4-pole 145 3-pole 110 M5 screw for mounting terminal block 3-pole 4-pole 3-pole 4-pole 3-pole 4-pole 3-pole 4-pole 3-pole 4-pole 3-pole 4-pole 1.0 mm clearance on each side of the handle frame Front-panel cutout Earth-leakage circuit breakers New WS-V Series or C 1 C 1 10 25 max. φ8.5 Solderless terminal for wire size 125~175A 14~95mm2 200~250A 70~125mm2 Wire connection − 25 −
  • 27.
    NF125-SGW, NF125-HGW, NF160-SGW,NF160-HGW, NF250-SGW, NF250-HGW Remark: 1. 2-pole models are 3-pole models with the central pole removed. Mounting plate 4530 Stud can be rotated 90° 545494 66 4-pole 3-pole 110 1048 103 M8 bolt (Hex-soket)12 96 4 4854.5144 120 15 200 4-pole3-pole φ9 M8 bolt 105 142 Drilling plan Connection allowance Insulating barrier (removable) M6 screw for mounting terminal block Breaker (Terminal block) φ7 Plug-in terminal block 107 70 70 20 86 3-pole 4-pole 100 52 32.5 Breaker Front-panel cutout R 1 35 90 86 Breaker 4-pole3-pole 144 126 35 105 35 70 105 6 8 3-pole 4-pole Insulating tube M4 × 0.7 taps or φ5 Drilling plan 106 71 φ24 M4 × 0.7 screw for breaker mounting φ9 M8 bolt Connection allowance Insulating tube Stud can be rotated 90° Mounting plate t = 3.2 max. 70 144 20 22 15 15 Hex-socket set screw Wire connection Solderless terminal for wire size 2.5 185 mm2 10 6.1 22 35 24 max. 110 90 86 79 63 112 4-pole3-pole Neutral pole 4-pole3-pole 144 1655050 35 105 140 126 35 φ8.5 φ4.5 M4 × 0.7 taps or φ5 Drilling plan Breaker M8 bolt (Hex-soket) (Bus t max. = 7) Bus drilling for direct connection Trip button Mounting hole Insulating barrier (removable) φ8.5 10 22 70 24 450 105 Front connection Rear connection Plug-in Molded-case circuit breakers Previous W & WS Series 1.0 mm clearance on each side of the handle frame − 26 −
  • 28.
    NF125-SGV, NF125-LGV, NF125-HGV,NF125-SEV, NF125-HEV, NF160-SGV, NF160-LGV, NF160-HGV, NF250-SGV, NF250-LGV, NF250-HGV, NF250-SEV, NF250-HEV 105 102 50 61 68 45 724 92 24 70 22 25 max. 9 35 φ4.5 φ8.5 35 126 140 105 35 100100165 144 Neutral pole Breaker M4 × 0.7 screw or φ5 hole Drilling plan Mounting hole Insulating barrier (removable) Trip button M8 bolt with hexagon hole φ8.5 Conductor drilling for direct connection (Conductor thickness t = 7 max.) 15 15 22 20 144 70 35 φ24 68 72 71 106 8 6 105 70 105 35 126 144 Drilling plan M4 × 0.7 screw or φ5 hole Breaker M4 × 0.7 screw for breaker mounting Insulating tubeφ9 M8 bolt Connecting allowance Insulating tube Stud rotatable by 90°Mounting plate t = 3.2 max. 32.5 52 100 Breaker 1.0 mm clearance on each side of the handle frame Front-panel cutout R 1 89 112 190 165 21 30 31 14434.528 20 3-pole 70 4-pole 105 3-pole 105 4-pole 140 151 6 11 70 107 70 15 24 56.556.580 54 142 105 Studs can be installed in this direction only. Insulating barrier Mounting plate Plug-in terminal block Connecting allowance φ9 M8 bolt Drilling plan Breaker (plug-in terminal block) 4-pole 145 3-pole 110 35 M5 × 0.8 screw or φ6 hole M5 screw for mounting terminal block Front connection Rear connection Plug-in 3-pole 4-pole 3-pole 4-pole 3-pole 4-pole 3-pole 4-pole 3-pole 4-pole 3-pole 4-pole Molded-case circuit breakers New WS-V Series or C 1 C 1 10 25 max. φ8.5 Remark: 2-pole models are 3-pole models with the central pole removed. Solderless terminal for wire size 125~175A 14~95mm2 200~250A 70~125mm2 Wire connection − 27 −
  • 29.
    NF125-RGW, NF250-RGW Front connection Rearconnection Plug-in φ7 Drilling plan Mounting plate φ9 M8 bolt 275 34.521928 6 32 18 14 104 15 70 20 70 153 70 58.558.5155 129 107 100 32.5 52 4-pole 3-pole R 1 Breaker 1.0 mm clearance on each side of the handle frame Front-panel cutout 11.5 105 35 35 70 35 4-pole 3-pole 8 105 70 6 20 15 15 90 106 7186 4-pole3-pole Insulating tube M4 × 0.7 taps or φ5 Drilling plan φ24 M4 × 0.7 screw for breaker mounting φ9 M8 bolt Connection allowance Insulating tube Stud can be rotated 90° Mounting plate t = 3.2 max. 201 219 219 108 73 22 Breaker 24 (Bus t max. = 7) 24 max. 10 M8 bolt (Hex-soket) M4 × 0.7 taps or φ5 3535 110 4 90 86 79 φ8.5 63 22 φ4.5 50 112 4-pole 5050 35 105 140 22 70 105 4-pole3-pole Neutral pole 3-pole Drilling plan Breaker Trip button Mounting hole Insulating barrier (removable) 201 240 219 φ8.5 6.1 Solderless terminal for wire size 2.5 185 mm2 10 Bus drilling for direct connection Wire connection Hex-socket set screw 26.5 75165 Remark: 2-pole models are 3-pole models with the central pole removed. Molded-case circuit breakers Previous W & WS Series Plug-in terminal block M6 screw for mounting terminal block Breaker (Terminal block) Insulating barrier Stud attachable in this derection only 22 Connecting allowance − 28 −
  • 30.
    Molded-case circuit breakers NewWS-V Series NF125-RGV, NF250-RGV 15 15 22 20 144 70 35 φ24 68 72 71 106 8 6 70 Drilling plan M4 × 0.7 screw or φ5 hole Breaker M4 × 0.7 screw for breaker mounting Insulating tubeφ9 M8 bolt Connecting allowance Insulating tube Stud rotatable by 90°Mounting plate t = 3.2 max. 32.5 52 100 Breaker 1.0 mm clearance on each side of the handle frame Front-panel cutout R 1 Front connection Rear connection Plug-in 3-pole 3-pole 70 107 Drilling plan Breaker (plug-in terminal block) 3-pole 105 70 22 Mounting hole Insulating barrier (removable) Trip button 3-pole 3-pole 35 Breaker M4 × 0.7 screw or φ5 hole Drilling plan 3-pole 102 50 61 68 45 724 92 24 25 max. 9 φ4.5 φ8.5 M8 bolt with hexagon hole φ8.5 Conductor drilling for direct connection (Conductor thickness t = 7 max.) or C 1 C 1 10 25 max. φ8.5 89 112 190 165 21 30 31 14434.528 6 11 Mounting plate Plug-in terminal block M5 screw for mounting terminal block 20 3-pole 70 3-pole 105 151 70 15 24 Studs can be installed in this direction only. Insulating barrier Connecting allowance φ9 M8 bolt 3-pole 110 Remark: 2-pole models are 3-pole models with the central pole removed. Solderless terminal for wire size 125~175A 14~95mm2 200~250A 70~125mm2 Wire connection − 29 −
  • 31.
    NF125-UGW, NF250-UGW Front connection Rearconnection Plug-in φ7 Drilling plan Mounting plate φ9 M8 bolt 275 34.521928 6 32 18 14 104 15 70 20 70 153 70 58.558.5155 129 107 100 32.5 52 4-pole 3-pole R 1 Breaker 1.0 mm clearance on each side of the handle frame Front-panel cutout 11.5 105 35 35 70 35 4-pole 3-pole 8 105 70 6 20 15 15 90 106 7186 4-pole3-pole Insulating tube M4 × 0.7 taps or φ5 Drilling plan φ24 M4 × 0.7 screw for breaker mounting φ9 M8 bolt Connection allowance Insulating tube Stud can be rotated 90° Mounting plate t = 3.2 max. 201 219 219 108 73 22 Breaker 24 (Bus t max. = 7) 24 max. 10 M8 bolt (Hex-soket) M4 × 0.7 taps or φ5 3535 110 4 90 86 79 φ8.5 63 22 φ4.5 50 112 4-pole 5050 35 105 140 22 70 105 4-pole3-pole Neutral pole 3-pole Drilling plan Breaker Trip button Mounting hole Insulating barrier (removable) 201 240 219 φ8.5 6.1 Solderless terminal for wire size 2.5 185 mm2 10 Bus drilling for direct connection Wire connection Hex-socket set screw 26.5 75165 Remark: 2-pole models are 3-pole models with the central pole removed. Molded-case circuit breakers Previous W & WS Series Plug-in terminal block M6 screw for mounting terminal block Breaker (Terminal block) Insulating barrier Stud attachable in this derection only 22 Connecting allowance − 30 −
  • 32.
    106 71 72 68 8 6 105 70 20 22 15 15 219 φ24 35 105 35 70 32.5 52 10035 219 201 11.5 35 201 35 92 4 72 68 61 45 φ4.5 50 102 24 100100240 219 140 105 35 105 70 22 75165 10 φ8.5 φ8.5 28 75165 73 108 Breaker Drillingplan M4 × 0.7 screw or φ5 hole 23 max. Insulating barrier (removable) Mounting hole Trip button Conductor drilling for direct connection (Conductor thickness t = 7 max.) M4 × 0.7 screw or φ5 hole Drilling plan Breaker 3-pole M4 × 0.7 screw for breaker mounting Insulating tube φ9 M8 bolt Connecting allowance Insulating tube Stud rotatable by 90° Mounting plate t = 3.2 max. Breaker 3-pole 4-pole 1.0 mm clearance on each side of the handle frame Front-panel cutout R1 Breaker (plug-in terminal block) Mounting plate Plug-in terminal block Studs can be installed in this direction only. Insulating barrier Connecting allowance 15556.556.5 107 34.528219 6 21 89 11 30 31 20 70 151 70 24 15 110 105 129 70 φ9 M8 bolt M5 screw or φ6 hole 265 Drilling plan Molded-case circuit breakers New WS-V Series NF125-UGV, NF250-UGV Front connection Rear connection Plug-in Neutral pole 3-pole 4-pole 3-pole 4-pole 3-pole 4-pole M8 bolt with hexagon hole 4-pole M5 screw for mounting terminal block Remark: 2-pole models are 3-pole models with the central pole removed. Solderless terminal for wire size 125~175A 14~95mm2 200~250A 70~125mm2 Wire connection − 31 −
  • 33.
  • 35.
    Revised publication, effectiveSep. 2010. Specifications subject to change without notice. This pamphlet is made from recycled paper. Safety Tips : Be sure to read the instruction manual fully before using this product. Country / Region Company Address Telephone Australia China Mitsubishi Electric Australia Pty. Ltd. Mitsubishi Electric Automation (CHINA) Ltd. 348 Victoria Road, Rydalmere, N.S.W. 2116, Australia +61-2-9684-7777 +86-21-2322-3030 17/F., ChuangXing Financial Center, No.288 West Nanjing Road, Shanghai, 200003 China Mitsubishi Electric Automation (HongKong) Ltd. +852-2887-8810 10/F., Manulife Tower, 169 Electric Road, North Point, Hong Kong Colombia Proelectrico Representaciones S.A. Carrera 53 No 29C-73 - Medellin, Colombia +57-4-235-30-38 Egypt Cairo Electrical Group 9, Rostoum St. Garden City P.O. Box 165-11516 Maglis El-Shaab, Cairo - Egypt +20-2-27961337 Europe Mitsubishi Electric Europe B.V. Gothaer Strasse 8, D-40880 Ratingen, Germany +49-(0)2102-486-0 Indonesia Korea Laos Mitsubishi Electric Automation Korea Co., Ltd Societe Lao Import Co., Ltd. P.O.Box 5045 Kawasan Industri Pergudangan, Jakarta, Indonesia 1480-6, Gayang-Dong, Gangseo-Gu, Seoul, Korea 43-47 Lane Xang Road P.O. BOX 2789 VT Vientiane Laos +62-(0)21-6610651-9 +82-2-3660-9572 +856-21-215043 P. T. Sahabat Indonesia Lebanon Comptoir d'Electricite Generale-Liban Cebaco Center - Block A Autostrade Dora, P.O. Box 11-2597 Beirut - Lebanon +961-1-240445 Myanmer Nepal Peace Myanmar Electric Co.,Ltd. Watt&Volt House NO137/139 Botataung Pagoda Road, Botataung Town Ship 11161, Yangon, Myanmar KHA 2-65, Volt House Dillibazar Post Box:2108, Kathmandu, Nepal Malaysia Mittric Sdn Bhd 5 Jalan Pemberita U1/49, Temasya Industrial Park, Glenmarie 40150 Shah Alam, Selangor, Malaysia +603-5569-3748 +95-(0)1-202589 +977-1-4411330 Comptoir d'Electricite Generale-International-S.A.L. Cebaco Center - Block A Autostrade Dora P.O. Box 11-1314 Beirut - Lebanon +961-1-240430 Other Middle East Arab Countries & Cyprus Pakistan Philippines Prince Electric Co. Edison Electric Integrated, Inc. 1&16 Brandreth Road, Lahore-54000, Pakistan 24th Fl. Galleria Corporate Center, Edsa Cr. Ortigas Ave., Quezon City Metro Manila, Philippines +92-(0)42-7654342 +63-(0)2-634-8691 Saudi Arabia Center of Electrical Goods Al-Shuwayer St. Side way of Salahuddin Al-Ayoubi St. P.O. Box 15955 Riyadh 11454 - Saudi Arabia +966-1-4770149 South Africa CBI-electric: low voltage Private Bag 2016, Isando, 1600, South Africa +27-(0)11-9282000 Taiwan Thailand Setsuyo Enterprise Co., Ltd United Trading & Import Co., Ltd. 6th Fl., No.105, Wu Kung 3rd, Wu-Ku Hsiang, Taipei, Taiwan, R.O.C. 77/12 Bamrungmuang Road, Klong Mahanak, Pomprab Bangkok Thailand +886-(0)2-2298-8889 +66-223-4220-3 Uruguay Fierro Vignoli S.A. Avda. Uruguay 1274, Montevideo, Uruguay +598-2-902-0808 Venezuela Adesco S.A. Calle 7 La Urbina Edificio Los Robles Locales C y D Planta Baja, Caracas - Venezuela +58-212-241-9952 Chile Rhona S.A. Agua Santa 4211 P.O. Box 30-D Vina del Mar, Chile +56-32-2-320-600 Vietnam CTY TNHH-TM SA GIANG 10th Floor, Room1006-1007,225 Tran Hung Dao St., Co Giang Ward, Dist.1, Ho Chi Minh City. Viet Nam +84-8-838-6727/28/29 Singapore Mitsubishi Electric Asia Pte. Ltd. 307, Alexandra Road, #05-01/02 Mitsubishi Electric Building, Singapore 159943 +65-6473-2308 Y-0702 1009 printed in Japan(MDOC) HEAD OFFICE: TOKYO BLDG., 2-7-3, MARUNOUCHI, CHIYODA-KU, TOKYO 100-8310, JAPAN WS-V series Comparison of Previous and New Models