Oil & Gas QW-483 PROCEDURE QUALIFICATION RECORD (PQR)
COMPANY NAME MJA Bearing Service BY Michael Gartee
PROCEDURE QUALIFICATION RECORD No. 002 DATE 7/27/16 WPS No. SP-1106-25
WELDING PROCESS GTAW TYPE MANUAL
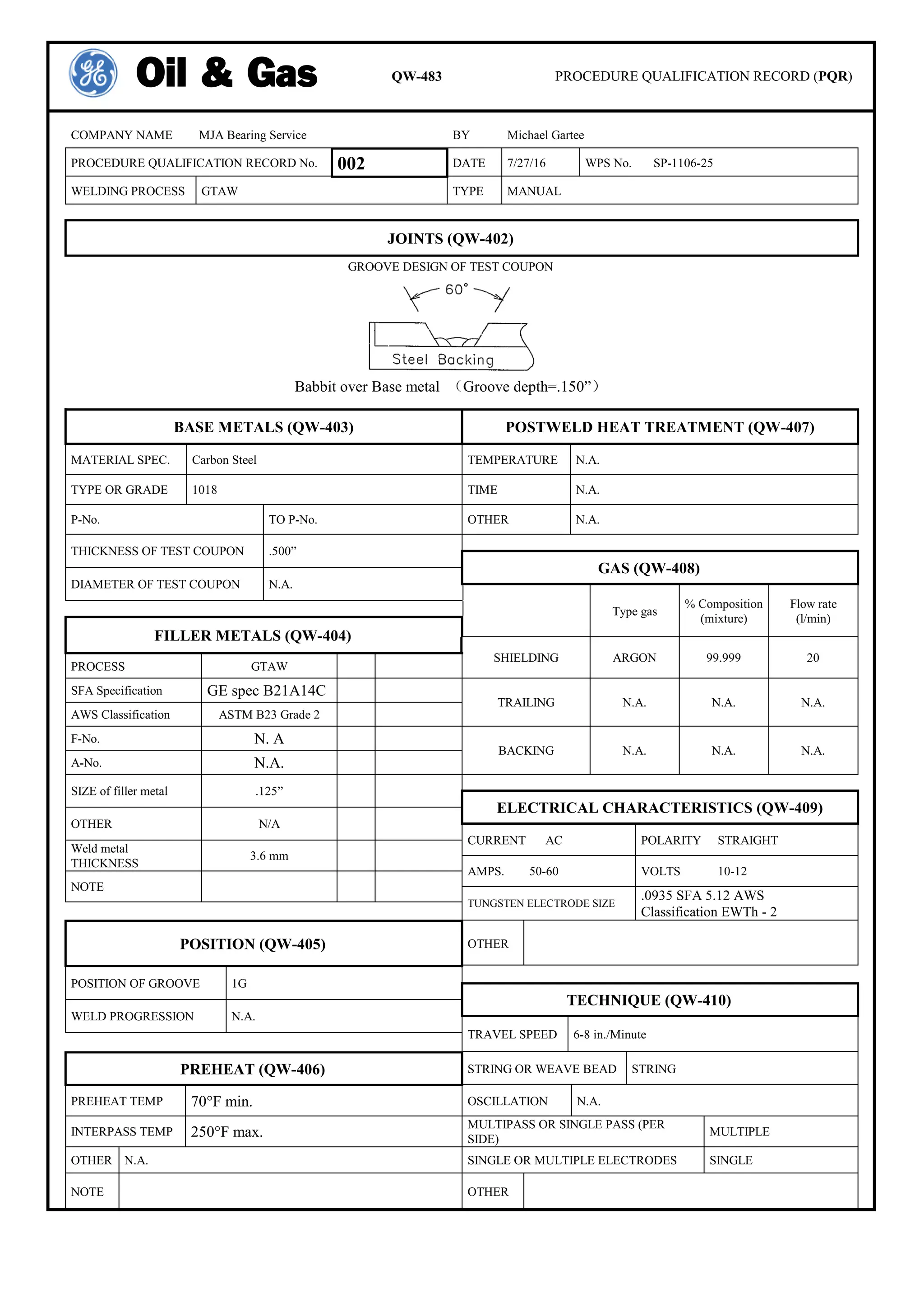
JOINTS (QW-402)
GROOVE DESIGN OF TEST COUPON
Babbit over Base metal (Groove depth=.150”)
BASE METALS (QW-403) POSTWELD HEAT TREATMENT (QW-407)
MATERIAL SPEC. Carbon Steel TEMPERATURE N.A.
TYPE OR GRADE 1018 TIME N.A.
P-No. TO P-No. OTHER N.A.
THICKNESS OF TEST COUPON .500”
GAS (QW-408)
DIAMETER OF TEST COUPON N.A.
Type gas
% Composition
(mixture)
Flow rate
(l/min)
FILLER METALS (QW-404)
SHIELDING ARGON 99.999 20
PROCESS GTAW
SFA Specification GE spec B21A14C
TRAILING N.A. N.A. N.A.
AWS Classification ASTM B23 Grade 2
F-No. N. A
BACKING N.A. N.A. N.A.
A-No. N.A.
SIZE of filler metal .125”
ELECTRICAL CHARACTERISTICS (QW-409)
OTHER N/A
CURRENT AC POLARITY STRAIGHT
Weld metal
THICKNESS
3.6 mm
AMPS. 50-60 VOLTS 10-12
NOTE
TUNGSTEN ELECTRODE SIZE
.0935 SFA 5.12 AWS
Classification EWTh - 2
POSITION (QW-405) OTHER
POSITION OF GROOVE 1G
TECHNIQUE (QW-410)
WELD PROGRESSION N.A.
TRAVEL SPEED 6-8 in./Minute
PREHEAT (QW-406) STRING OR WEAVE BEAD STRING
PREHEAT TEMP 70°F min. OSCILLATION N.A.
INTERPASS TEMP 250°F max.
MULTIPASS OR SINGLE PASS (PER
SIDE)
MULTIPLE
OTHER N.A. SINGLE OR MULTIPLE ELECTRODES SINGLE
NOTE OTHER
QW-483 (BACK) PQR No. 001
TENSILE TEST (QW-150)
SPECIMEN No. WIDTH mm THICKNESS mm AREA mm2
ULTIMATE
TOTAL LOAD
(N)
ULTIMATE
UNIT STRESS
N/mm2
TYPE OF
FAILURE &
LOCATION
N. A.
GUIDED-BEND TEST (QW-160)
TYPE AND FIGURE No. RESULT
SIDE BEND [507-1] ACCEPTABLE
TOUGHNESS TEST (QW-170)
SPECIMENT
No.
NOTCH
LOCATION
NOTCH TYPE TEST TEMP.
IMPACT
VAL.
LATERAL EXPANSION DROP WEIGHT
% SHEAR MILS BREAK NO BREAK
N.A.
COMMENTS: N.A.
FILLET-WELD TEST (QW-180)
RESULT-SATISFACTORY: YES - NO - PENETRATION INTO PARENT METAL: YES - NO -
MACRO-RESULT Pass no detection of defects
OTHER TESTS
TYPE OF TEST & RESULT Ultrasonic and Dye Penetrant testing ( Pass )
DEPOSIT ANALYSIS
OTHER
CLOCK No. N.A - STAMP No. 002WELDER’S NAME Michael Gartee
TEST CONDUCTED BY: ARC Specialties LABORATORY TEST No. 507-1
WE CERTIFY THAT THE STATEMENTS IN THIS RECORD ARE CORRECT AND THAT THE WELDS WERE PREPARED, WELDED, AND
TESTED IN ACCORDANCE WITH THE REQUIREMENTS OF GE SPEC & SECTION IX OF THE ASME BOILER AND PRESSURE VESSEL
CODE.
MANUFACTURER APPROVED
BY MJA Bearing services BY
DATE 7/27/16
Welder Performance
Qualification Record (WPQR)
Prepared in accordance with: GE QR-M-Bearing-001, Rev 0 – Bearing-Babbitt Repair QR
Company: Texas Bearing Services Date: July 26, 2016
Welder: Michael Gartee ID: MG
Welding Process: Gas Tungsten Arc Welding (GTAW) Application Mode: Manual
Weld Coupon: QR-M-Bearing-001, Figure 1
Examination and Test Results
Examinations:
Visual Inspection (performed by TBS): Acceptable
Penetrant Inspection per P3C-AL-0009) (performed by TBS): Acceptable
Testing – Images of test specimens included on Page 2
Macro Testing per P28B-AL-0241 (performed by ARC Specialties): Acceptable
Bend Testing per P28B-AL-0241 (performed by ARC Specialties): Acceptable
We certify that the testing was performed in accordance with the above-referenced standards and
that the results are acceptable. This welder is considered qualified to perform repair welding per the
requirements and limitations of QR-M-Bearing-001, Rev 0.
Testing performed by: Lucas Tonniges, ARC Specialties – AWS CWI
Authorization of Test Results Company Authorization
________________________________
Richard L. Holdren, SCWI
Images of Test Plate, Processing and Test Results
Figure 1. As-received test sample Figure 2. Location of test specimen removal
Figure 3. Macroetch specimen Figure 4. Side bend test specimen
GTAW Qualification - Michael Gartee
GTAW Qualification - Michael Gartee
GTAW Qualification - Michael Gartee
GTAW Qualification - Michael Gartee
GTAW Qualification - Michael Gartee
GTAW Qualification - Michael Gartee

GTAW Qualification - Michael Gartee

  • 1.
    Oil & GasQW-483 PROCEDURE QUALIFICATION RECORD (PQR) COMPANY NAME MJA Bearing Service BY Michael Gartee PROCEDURE QUALIFICATION RECORD No. 002 DATE 7/27/16 WPS No. SP-1106-25 WELDING PROCESS GTAW TYPE MANUAL JOINTS (QW-402) GROOVE DESIGN OF TEST COUPON Babbit over Base metal (Groove depth=.150”) BASE METALS (QW-403) POSTWELD HEAT TREATMENT (QW-407) MATERIAL SPEC. Carbon Steel TEMPERATURE N.A. TYPE OR GRADE 1018 TIME N.A. P-No. TO P-No. OTHER N.A. THICKNESS OF TEST COUPON .500” GAS (QW-408) DIAMETER OF TEST COUPON N.A. Type gas % Composition (mixture) Flow rate (l/min) FILLER METALS (QW-404) SHIELDING ARGON 99.999 20 PROCESS GTAW SFA Specification GE spec B21A14C TRAILING N.A. N.A. N.A. AWS Classification ASTM B23 Grade 2 F-No. N. A BACKING N.A. N.A. N.A. A-No. N.A. SIZE of filler metal .125” ELECTRICAL CHARACTERISTICS (QW-409) OTHER N/A CURRENT AC POLARITY STRAIGHT Weld metal THICKNESS 3.6 mm AMPS. 50-60 VOLTS 10-12 NOTE TUNGSTEN ELECTRODE SIZE .0935 SFA 5.12 AWS Classification EWTh - 2 POSITION (QW-405) OTHER POSITION OF GROOVE 1G TECHNIQUE (QW-410) WELD PROGRESSION N.A. TRAVEL SPEED 6-8 in./Minute PREHEAT (QW-406) STRING OR WEAVE BEAD STRING PREHEAT TEMP 70°F min. OSCILLATION N.A. INTERPASS TEMP 250°F max. MULTIPASS OR SINGLE PASS (PER SIDE) MULTIPLE OTHER N.A. SINGLE OR MULTIPLE ELECTRODES SINGLE NOTE OTHER
  • 2.
    QW-483 (BACK) PQRNo. 001 TENSILE TEST (QW-150) SPECIMEN No. WIDTH mm THICKNESS mm AREA mm2 ULTIMATE TOTAL LOAD (N) ULTIMATE UNIT STRESS N/mm2 TYPE OF FAILURE & LOCATION N. A. GUIDED-BEND TEST (QW-160) TYPE AND FIGURE No. RESULT SIDE BEND [507-1] ACCEPTABLE TOUGHNESS TEST (QW-170) SPECIMENT No. NOTCH LOCATION NOTCH TYPE TEST TEMP. IMPACT VAL. LATERAL EXPANSION DROP WEIGHT % SHEAR MILS BREAK NO BREAK N.A. COMMENTS: N.A. FILLET-WELD TEST (QW-180) RESULT-SATISFACTORY: YES - NO - PENETRATION INTO PARENT METAL: YES - NO - MACRO-RESULT Pass no detection of defects OTHER TESTS TYPE OF TEST & RESULT Ultrasonic and Dye Penetrant testing ( Pass ) DEPOSIT ANALYSIS OTHER CLOCK No. N.A - STAMP No. 002WELDER’S NAME Michael Gartee TEST CONDUCTED BY: ARC Specialties LABORATORY TEST No. 507-1 WE CERTIFY THAT THE STATEMENTS IN THIS RECORD ARE CORRECT AND THAT THE WELDS WERE PREPARED, WELDED, AND TESTED IN ACCORDANCE WITH THE REQUIREMENTS OF GE SPEC & SECTION IX OF THE ASME BOILER AND PRESSURE VESSEL CODE. MANUFACTURER APPROVED BY MJA Bearing services BY DATE 7/27/16
  • 3.
    Welder Performance Qualification Record(WPQR) Prepared in accordance with: GE QR-M-Bearing-001, Rev 0 – Bearing-Babbitt Repair QR Company: Texas Bearing Services Date: July 26, 2016 Welder: Michael Gartee ID: MG Welding Process: Gas Tungsten Arc Welding (GTAW) Application Mode: Manual Weld Coupon: QR-M-Bearing-001, Figure 1 Examination and Test Results Examinations: Visual Inspection (performed by TBS): Acceptable Penetrant Inspection per P3C-AL-0009) (performed by TBS): Acceptable Testing – Images of test specimens included on Page 2 Macro Testing per P28B-AL-0241 (performed by ARC Specialties): Acceptable Bend Testing per P28B-AL-0241 (performed by ARC Specialties): Acceptable We certify that the testing was performed in accordance with the above-referenced standards and that the results are acceptable. This welder is considered qualified to perform repair welding per the requirements and limitations of QR-M-Bearing-001, Rev 0. Testing performed by: Lucas Tonniges, ARC Specialties – AWS CWI Authorization of Test Results Company Authorization ________________________________ Richard L. Holdren, SCWI
  • 4.
    Images of TestPlate, Processing and Test Results Figure 1. As-received test sample Figure 2. Location of test specimen removal Figure 3. Macroetch specimen Figure 4. Side bend test specimen