RIQUALIFICAZIONE DI UN EX UFFICIO
POSTALE NEL CUORE DI BOLOGNA
VIA PODGORA, COMPLESSO PALATESTA
ARCHITETTO GIORGIO VOLPE
The site
PIANO TERRA
N
S
EW
STATO DI FATTO - SEZIONE
STATO DI FATTO - SEZIONE
STATO DI FATTO - SEZIONE
PROGETTO - SEZIONE
SEZIONE PRIMO CORTILE LATO OVESTSEZIONE SECONDO CORTILE LATO EST
VIA
AURELIO
SAFFI
VIA
PODGORA
VIA
VITTORIO
VENETO
STATO DI FATTO - VIA PODGORA
PROGETTO - VIA PODGORA
PROSPETTO SU VIA PODGORA SEZIONE PRIMO CORTILE LATO EST
VIA
AURELIO
SAFFI
VIA
PODGORA
VIA
VITTORIO
VENETO
A “CLASSE A”
00 mq superficie lorda
menti
PIANO TERRA- S – M appartamenti da 1-2 camere
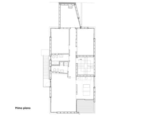
1° PIANO – L – XL appartamenti da 3-4 camere 2 livelli
2° PIANO – XL appartamento 5 camere 3 livelli
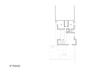
3° PIANO
Primo piano
Secondo piano
Secondo piano
Primo piano
se in legno  Case in legno
Assonometria del telaio strutturale in legno
	
  
Telaio strutturale in legno
16 x 6 cm
Fibra di legno
16 cm – 100 kg/mc
Pannello in fibre di legno mineralizzato
2,5 cm
Parete esterna tipo- Pannello a telaio in legno prefabbricato con isolamento in
fibra di legno all’interno della struttura
U=0,18 W/mq, sfasamento=13,22 h.
OSB panel
1,5 cm
Tavolato in legno
2,5 cm
Parete prefabbricata
21,5 cm
Intonaco a calce
Fibrogesso
2 panelli 1,25 cm
Intercapedine impianti
Fibra di legno isolante
4 cm – 40 kg/mc
Realizzato in sito
Parete esterna tipo- Pannello a telaio in legno prefabbricato con isolamento in
fibra di legno all’interno della struttura
U=0,18 W/mq, sfasamento=13,22 h.
Parete completa
29 cm
Telaio strutturale in legno
16 x 6 cm
Fibra di legno
16 cm – 100 kg/mc
Pannello in fibre di legno mineralizzato
2,5 cm
Parete esterna tipo- Pannello a telaio in legno prefabbricato con isolamento in
fibra di legno all’interno della struttura
U=0,18 W/mq, sfasamento=13,22 h.
OSB panello
1,5 cm
Tavolato in legno
2,5 cm
Intonaco a calce
Fibrogesso
2 panelli 1,25 cm
Intercapedine impianti
Fibra di legno isolante
4 cm – 40 kg/mc
Trasmittanza della parete: U= 0,18 W/mq K
Descrizione stratografica (dall'esterno verso l'interno):
- intonaco esterno SP 1.5 cm
- pannello di lana di legno mineralizzato; SP 2.5 cm
- tavolato grezzo in diagonale; SP 2.5 cm
-­‐  pannelli  in  fibra  di  legno  (W.F.);    SP  16  cm;      λ=0,038  W/mq  K
- struttura a telaio di abete 16x6 cm
- pannello OSB; SP 1.5 cm
-­‐  materassino  in  fibra  di  canapa  SP  4  cm  λ=0,04  W/mq  K
- listellatura per impianti ; SP 4cm
- doppio pannello in cartongesso 1.25+1.25cm
ESTERNO
INTERNO
PE01 - parete esterna
12
12
40
15
160
25
25
15
305mm
PARETE ESTERNA
Parete divisoria tra appartamenti:
- pannello fibrogesso 2x15mm
- telaio in legno 60x140mm
  -­‐  pannelli  in  fibra  di  legno;    SP  16  cm;    conduttività  termica:  λ=0,038  W/mq  K
- pannello fibrogesso 2x15mm
Trasmittanza della parete: U= 0,24 W/mq K
N.B. Le scatole per impianto elettrico devono essere a tenuta d'aria!!!
F 90B
F 90B
isolamento  acustico:  Rw≈60dB
resistenza al fuoco
in minuti
PI 01205mm
30
160
30
PARETE INTERNA TRA APPARTAMENTI
Trasmittanza del solaio: U= 0,21 W/mq K
Descrizione stratografica (da sopra a sotto):
- lamiera di alluminio
- tavolato grezzo; SP 2,5 cm
- listellatura per ventilazione; SP 5 cm
- guiana impermeabile
-­‐  pannelli  in  fibra  di  legno;  SP  3,5cm;  λ=0,040  W/mq  K
- pannello fibrogesso; SP 1,5cm
- strutura in travi abete massiccio 12x16 cm
-­‐  pannelli  in  fibra  di  legno;  SP  (8+8)  cm;  λ=0,038  W/mq  K
- pannello OSB3; SP 1,5 cm
-intercapedine 3 cm
- pannello in fibrogesso con impianto di riscaldamento; SP 15mm
INTERNO
ESTERNO
SE 01 - tetto ventilato
15
30
15
160
15
35
50
25
15
360mm
TETTO VENTILATO
Trasmittanza del solaio: U= 0,34 W/mq K
Descrizione stratografica (da sopra a sotto):
- pavimento finito 20mm
- caldana 60mm con riscaldamento a pavimento
- strato separatore in politilene
-­‐  pannello  in  fibra  di  legno  ;  SP  2,2/2,1  cm;      λ=0,04  W/mq  K
- sottofondo alleggerito 70mm (impianti)
- Solaio in latero cemento; SP (20+4) cm
SI 00 - solaio verso garage
GARAGE
(vano non riscaldato)
INTERNO
172mm
200+4070
20
60
20
PIANO TERRA SU GARAGE
PF ±0.000
72x86
72x86
57x35
Finestra
Soglia alluminio
con taglio termico
Porta-finestra
Sezione
Pianta Pianta
Dettaglio finestre e portefinestre
Finestra o Portafinestra
-serramento in lamellare di larice
sezione 72x86
-Vetro 4 be / 12 argon/ 4 / 12 argon / 4 be
-Ug=0,7 W/mqK
esterno
esternoesterno
interno interno
interno
internoesterno
INFISSI - DETTAGLI
Infissi in larice lamellare73x86 mm
Vetri a doppia camera 4 pe-12 (argon)-4-12 (argon)-4 pe
Ug = 0,7 W/mqK
Uw = 0,9 W/mqK
Finestra a bilico per tetto
rivestimento con panello OSB
attacco ermetico contro la finestra del tetto
109.962°
19.962°
109.962°
rivestimento con panello OSB
attacco ermetico contro la finestra del tetto
scala 1:20
esterno
interno
interno
esterno
progetto residenzialea basso consumo energetico in via podgora - bologna
progetto definitivo arch GIORGIO VOLPE - progetto esecutivo arch MAURO ROSSARO / HOLZ&KO
Porta - finestra con veneziane
PF ±0.000m
57x35
72x86
72x86
72x86
72x86
57x35
Sezione Verticale
57x35
72x86
72x86
Pianta
esterno
interno
internoesterno
Finestra da tetto
Infisso con veneziana
INFISSI - DETTAGLI
PF ±0.000
305
portoncino tamburato
impiallaciato larice.
-Uw= ?
Soglia alluminio
con taglio termico
scala 1:20
portoncino d'ingresso
agli appartamentiPORTA ESTERNA
GARAGE (vano non riscaldato) GARAGE (vano non riscaldato)GARAGE (vano non riscaldato)
A
B
C
D
E
F
G
H
L
M
N
I
A
B
C
D
E
F
G
H
I
L
M
N
sezione scala 1:200
03
04
57x35
ventilazione
MUROESISTENTEMUROESISTENTEMUROESISTENTE
intercapedinecirca2cmintercapedinecirca2cm
intercapedinecirca10cmintercapedinecirca10cm
PF ± 0.0 PF ± 0.0
PF +3.05
PF +5.77PF +5.77
PF +5.77
PF +9.39
57x35
GARAGE (vano non riscaldato) GARAGE (vano non riscaldato)GARAGE (vano non riscaldato)
A
B
C
D
E
F
G
H
L
M
N
I
A
B
C
D
E
F
G
H
I
L
M
N
sezione scala 1:200
03
04
57x35
ventilazione
MUROESISTENTEMUROESISTENTEMUROESISTENTE
intercapedinecirca2cmintercapedinecirca2cm
intercapedinecirca10cmintercapedinecirca10cm
PF ± 0.0 PF ± 0.0
PF +3.05
PF +5.77PF +5.77
PF +5.77
PF +9.39
57x35
Continiutà dell’isolamento
	
  
EFFICIENZA DELL’INVOLUCRO EDILIZIO
Parete esterna- U=0,18 W/mq, sfasamento=13,22 h.
Copertura U=0,21 W/mq, sfasamento=13,51
	
  
EFFICIENZA DELL’INVOLUCRO EDILIZIO
Parete esterna- U=0,18 W/mq, sfasamento=13,22 h.
Solaio contro garage U =0,34 W/mq
	
  
EFFICIENZA DELL’INVOLUCRO EDILIZIO
Copertura U=0,21 W/mq, sfasamento=13,51
	
  
Parete esterna- U=0,18 W/mq, sfasamento=13,22 h.
Infissi: Uw=0,9 W/mq
EFFICIENZA DELL’INVOLUCRO EDILIZIO
Solaio contro garage: U =0,34 W/mq
	
  
Copertura U=0,21 W/mq, sfasamento=13,51
	
  
Parete esterna- U=0,18 W/mq, sfasamento=13,22 h.
24,48 Kwh/mqA	
  
ENERGY CLASSIFICATION
CASA CLIMA – A
Fabbisogno energetico = 24,48 Kwh/mq A
Equivalente a 2,44 metri cubi di gas naturale
IMPIANTI TECNOLOGICI
- 1.500 m Sonde geotermiche
- Pompa di calore(55Kw)
- Pannelli solari per il 66% del fabbisogno
acqua calda sanitaria
-  Sistema di areazione controllata 70% di
recupero di calore
No gas naturale interno all’edificio, piastre
a induzione per la cottura
Efficienza energetica = 14,37 Kwh/mq A
1,4 metri cubi di gas naturale per mq anno
ZERO emissioni CO2	
  
INVERNO
ESTATE
Bologna, via Podgora – AMPLIAMENTO
AREA DI PROGETTO
SEZIONE IN COSTRUZIONE
SEZIONE DI PROGETTO
VIAPODGORA
PIANO TERRA
1° PIANO 2° PIANO
SEZIONI
!
Assonometria della struttura a telaio in legno prefabbricata
	
  
h. 240
h. 270
+270
Primo piano
Primo piano
h. 240
h. 270
+270
PROSETTO SUD
1
+270
+585
-30
2
4
65
7
EFFICIENZA DELL’INVOLUCRO EDILIZIO
Copertura: U=0,21 W/mq
sfasamento =13,51 h.
Infissi: Uw=1,1w/mq
vetrocamera basso emissive
Parete esterna: U=0,19 W/mq
sfasamento =13,22 h.
Primo solaio: U =0,2 W/mq
Fabbisogno energetico = 33,27 Kwh/mq A
Equivalente a 3,32 metri cubi di gas
naturale
	
  
SEZIONE DI DETTAGLIO
1 Parete esterna
- intonco
- porta intonaco celenit 35mm
- tavolato grezzo 23mm
- isolazione termica fra i telai 160mm
- OSB 15mm
- intercapedine impianti 40mm isolato con
fibra in legno 4 cm
- cartongesso 2x12.5mm
2 Solaio esterno
- pavimento finito 17mm
- caldana autolivellante 60mm
- guaina polietilenica
- pannello anticalpestio Pavapor 21/22mm
- pannello da distribuzione Natura Isolant
12mm
- massetto con ghiaia di marmo 86mm
- panello X-lam
- sottostruttura con listelli con materassino in
fibra di legno 160 mm
- guaina freno vapore USB Micro
- pannello fibra minerale 40/60 mm
- panello fibrogesso 12.5mm
7 Copertura
- guaina impermeabilizzante in PVC
- perline qualita C 25mm
- listellatura in pendenza
- guaina Stamisol Pack
- pannello isolante Isolair 22mm
- pannello isolante fibra di legno pesante
2x100mm
- guaina freno vapore USB Micro
- panello X-lam
- sottostruttura con listelli 40mm con
materassino in fibra di legno 40 mm
- panello cartongesso 12.5mm
	
  
1
+270
+585
-30
2
4
65
7
PREFABRICAZIONE
CONSTRUZIONE
16/11/2007
16/11/2007
DOPO 4 ORE
DOPO 2 GIORNI
DOPO 2 SETTIMANE
Giorgio Volpe
Giorgio Volpe
Giorgio Volpe
Giorgio Volpe
Giorgio Volpe
Giorgio Volpe
Giorgio Volpe
Giorgio Volpe
Giorgio Volpe
Giorgio Volpe
Giorgio Volpe
Giorgio Volpe
Giorgio Volpe
Giorgio Volpe
Giorgio Volpe
Giorgio Volpe
Giorgio Volpe
Giorgio Volpe
Giorgio Volpe
Giorgio Volpe
Giorgio Volpe
Giorgio Volpe
Giorgio Volpe
Giorgio Volpe
Giorgio Volpe
Giorgio Volpe
Giorgio Volpe
Giorgio Volpe
Giorgio Volpe
Giorgio Volpe
Giorgio Volpe
Giorgio Volpe
Giorgio Volpe
Giorgio Volpe
Giorgio Volpe
Giorgio Volpe
Giorgio Volpe
Giorgio Volpe
Giorgio Volpe
Giorgio Volpe
Giorgio Volpe

Giorgio Volpe

  • 1.
    RIQUALIFICAZIONE DI UNEX UFFICIO POSTALE NEL CUORE DI BOLOGNA VIA PODGORA, COMPLESSO PALATESTA ARCHITETTO GIORGIO VOLPE
  • 6.
  • 9.
  • 12.
  • 14.
    STATO DI FATTO- SEZIONE
  • 15.
    STATO DI FATTO- SEZIONE
  • 16.
    STATO DI FATTO- SEZIONE
  • 17.
  • 18.
    SEZIONE PRIMO CORTILELATO OVESTSEZIONE SECONDO CORTILE LATO EST VIA AURELIO SAFFI VIA PODGORA VIA VITTORIO VENETO
  • 19.
    STATO DI FATTO- VIA PODGORA
  • 20.
  • 21.
    PROSPETTO SU VIAPODGORA SEZIONE PRIMO CORTILE LATO EST VIA AURELIO SAFFI VIA PODGORA VIA VITTORIO VENETO
  • 22.
    A “CLASSE A” 00mq superficie lorda menti
  • 23.
    PIANO TERRA- S– M appartamenti da 1-2 camere
  • 24.
    1° PIANO –L – XL appartamenti da 3-4 camere 2 livelli
  • 25.
    2° PIANO –XL appartamento 5 camere 3 livelli
  • 26.
  • 27.
  • 28.
  • 29.
    se in legno Case in legno Assonometria del telaio strutturale in legno  
  • 30.
    Telaio strutturale inlegno 16 x 6 cm Fibra di legno 16 cm – 100 kg/mc Pannello in fibre di legno mineralizzato 2,5 cm Parete esterna tipo- Pannello a telaio in legno prefabbricato con isolamento in fibra di legno all’interno della struttura U=0,18 W/mq, sfasamento=13,22 h. OSB panel 1,5 cm Tavolato in legno 2,5 cm Parete prefabbricata 21,5 cm
  • 31.
    Intonaco a calce Fibrogesso 2panelli 1,25 cm Intercapedine impianti Fibra di legno isolante 4 cm – 40 kg/mc Realizzato in sito Parete esterna tipo- Pannello a telaio in legno prefabbricato con isolamento in fibra di legno all’interno della struttura U=0,18 W/mq, sfasamento=13,22 h.
  • 32.
    Parete completa 29 cm Telaiostrutturale in legno 16 x 6 cm Fibra di legno 16 cm – 100 kg/mc Pannello in fibre di legno mineralizzato 2,5 cm Parete esterna tipo- Pannello a telaio in legno prefabbricato con isolamento in fibra di legno all’interno della struttura U=0,18 W/mq, sfasamento=13,22 h. OSB panello 1,5 cm Tavolato in legno 2,5 cm Intonaco a calce Fibrogesso 2 panelli 1,25 cm Intercapedine impianti Fibra di legno isolante 4 cm – 40 kg/mc
  • 33.
    Trasmittanza della parete:U= 0,18 W/mq K Descrizione stratografica (dall'esterno verso l'interno): - intonaco esterno SP 1.5 cm - pannello di lana di legno mineralizzato; SP 2.5 cm - tavolato grezzo in diagonale; SP 2.5 cm -­‐  pannelli  in  fibra  di  legno  (W.F.);    SP  16  cm;      λ=0,038  W/mq  K - struttura a telaio di abete 16x6 cm - pannello OSB; SP 1.5 cm -­‐  materassino  in  fibra  di  canapa  SP  4  cm  λ=0,04  W/mq  K - listellatura per impianti ; SP 4cm - doppio pannello in cartongesso 1.25+1.25cm ESTERNO INTERNO PE01 - parete esterna 12 12 40 15 160 25 25 15 305mm PARETE ESTERNA
  • 34.
    Parete divisoria traappartamenti: - pannello fibrogesso 2x15mm - telaio in legno 60x140mm  -­‐  pannelli  in  fibra  di  legno;    SP  16  cm;    conduttività  termica:  λ=0,038  W/mq  K - pannello fibrogesso 2x15mm Trasmittanza della parete: U= 0,24 W/mq K N.B. Le scatole per impianto elettrico devono essere a tenuta d'aria!!! F 90B F 90B isolamento  acustico:  Rw≈60dB resistenza al fuoco in minuti PI 01205mm 30 160 30 PARETE INTERNA TRA APPARTAMENTI
  • 35.
    Trasmittanza del solaio:U= 0,21 W/mq K Descrizione stratografica (da sopra a sotto): - lamiera di alluminio - tavolato grezzo; SP 2,5 cm - listellatura per ventilazione; SP 5 cm - guiana impermeabile -­‐  pannelli  in  fibra  di  legno;  SP  3,5cm;  λ=0,040  W/mq  K - pannello fibrogesso; SP 1,5cm - strutura in travi abete massiccio 12x16 cm -­‐  pannelli  in  fibra  di  legno;  SP  (8+8)  cm;  λ=0,038  W/mq  K - pannello OSB3; SP 1,5 cm -intercapedine 3 cm - pannello in fibrogesso con impianto di riscaldamento; SP 15mm INTERNO ESTERNO SE 01 - tetto ventilato 15 30 15 160 15 35 50 25 15 360mm TETTO VENTILATO
  • 36.
    Trasmittanza del solaio:U= 0,34 W/mq K Descrizione stratografica (da sopra a sotto): - pavimento finito 20mm - caldana 60mm con riscaldamento a pavimento - strato separatore in politilene -­‐  pannello  in  fibra  di  legno  ;  SP  2,2/2,1  cm;      λ=0,04  W/mq  K - sottofondo alleggerito 70mm (impianti) - Solaio in latero cemento; SP (20+4) cm SI 00 - solaio verso garage GARAGE (vano non riscaldato) INTERNO 172mm 200+4070 20 60 20 PIANO TERRA SU GARAGE
  • 37.
    PF ±0.000 72x86 72x86 57x35 Finestra Soglia alluminio contaglio termico Porta-finestra Sezione Pianta Pianta Dettaglio finestre e portefinestre Finestra o Portafinestra -serramento in lamellare di larice sezione 72x86 -Vetro 4 be / 12 argon/ 4 / 12 argon / 4 be -Ug=0,7 W/mqK esterno esternoesterno interno interno interno internoesterno INFISSI - DETTAGLI Infissi in larice lamellare73x86 mm Vetri a doppia camera 4 pe-12 (argon)-4-12 (argon)-4 pe Ug = 0,7 W/mqK Uw = 0,9 W/mqK
  • 38.
    Finestra a bilicoper tetto rivestimento con panello OSB attacco ermetico contro la finestra del tetto 109.962° 19.962° 109.962° rivestimento con panello OSB attacco ermetico contro la finestra del tetto scala 1:20 esterno interno interno esterno progetto residenzialea basso consumo energetico in via podgora - bologna progetto definitivo arch GIORGIO VOLPE - progetto esecutivo arch MAURO ROSSARO / HOLZ&KO Porta - finestra con veneziane PF ±0.000m 57x35 72x86 72x86 72x86 72x86 57x35 Sezione Verticale 57x35 72x86 72x86 Pianta esterno interno internoesterno Finestra da tetto Infisso con veneziana INFISSI - DETTAGLI
  • 39.
    PF ±0.000 305 portoncino tamburato impiallaciatolarice. -Uw= ? Soglia alluminio con taglio termico scala 1:20 portoncino d'ingresso agli appartamentiPORTA ESTERNA
  • 40.
    GARAGE (vano nonriscaldato) GARAGE (vano non riscaldato)GARAGE (vano non riscaldato) A B C D E F G H L M N I A B C D E F G H I L M N sezione scala 1:200 03 04 57x35 ventilazione MUROESISTENTEMUROESISTENTEMUROESISTENTE intercapedinecirca2cmintercapedinecirca2cm intercapedinecirca10cmintercapedinecirca10cm PF ± 0.0 PF ± 0.0 PF +3.05 PF +5.77PF +5.77 PF +5.77 PF +9.39 57x35
  • 41.
    GARAGE (vano nonriscaldato) GARAGE (vano non riscaldato)GARAGE (vano non riscaldato) A B C D E F G H L M N I A B C D E F G H I L M N sezione scala 1:200 03 04 57x35 ventilazione MUROESISTENTEMUROESISTENTEMUROESISTENTE intercapedinecirca2cmintercapedinecirca2cm intercapedinecirca10cmintercapedinecirca10cm PF ± 0.0 PF ± 0.0 PF +3.05 PF +5.77PF +5.77 PF +5.77 PF +9.39 57x35 Continiutà dell’isolamento  
  • 42.
    EFFICIENZA DELL’INVOLUCRO EDILIZIO Pareteesterna- U=0,18 W/mq, sfasamento=13,22 h.
  • 43.
    Copertura U=0,21 W/mq,sfasamento=13,51   EFFICIENZA DELL’INVOLUCRO EDILIZIO Parete esterna- U=0,18 W/mq, sfasamento=13,22 h.
  • 44.
    Solaio contro garageU =0,34 W/mq   EFFICIENZA DELL’INVOLUCRO EDILIZIO Copertura U=0,21 W/mq, sfasamento=13,51   Parete esterna- U=0,18 W/mq, sfasamento=13,22 h.
  • 45.
    Infissi: Uw=0,9 W/mq EFFICIENZADELL’INVOLUCRO EDILIZIO Solaio contro garage: U =0,34 W/mq   Copertura U=0,21 W/mq, sfasamento=13,51   Parete esterna- U=0,18 W/mq, sfasamento=13,22 h.
  • 46.
    24,48 Kwh/mqA   ENERGYCLASSIFICATION CASA CLIMA – A Fabbisogno energetico = 24,48 Kwh/mq A Equivalente a 2,44 metri cubi di gas naturale
  • 47.
    IMPIANTI TECNOLOGICI - 1.500m Sonde geotermiche - Pompa di calore(55Kw) - Pannelli solari per il 66% del fabbisogno acqua calda sanitaria -  Sistema di areazione controllata 70% di recupero di calore No gas naturale interno all’edificio, piastre a induzione per la cottura Efficienza energetica = 14,37 Kwh/mq A 1,4 metri cubi di gas naturale per mq anno ZERO emissioni CO2   INVERNO ESTATE
  • 48.
    Bologna, via Podgora– AMPLIAMENTO
  • 49.
  • 51.
  • 52.
  • 54.
  • 55.
    1° PIANO 2°PIANO SEZIONI !
  • 56.
    Assonometria della strutturaa telaio in legno prefabbricata  
  • 57.
  • 58.
  • 59.
  • 60.
    1 +270 +585 -30 2 4 65 7 EFFICIENZA DELL’INVOLUCRO EDILIZIO Copertura:U=0,21 W/mq sfasamento =13,51 h. Infissi: Uw=1,1w/mq vetrocamera basso emissive Parete esterna: U=0,19 W/mq sfasamento =13,22 h. Primo solaio: U =0,2 W/mq Fabbisogno energetico = 33,27 Kwh/mq A Equivalente a 3,32 metri cubi di gas naturale  
  • 61.
    SEZIONE DI DETTAGLIO 1Parete esterna - intonco - porta intonaco celenit 35mm - tavolato grezzo 23mm - isolazione termica fra i telai 160mm - OSB 15mm - intercapedine impianti 40mm isolato con fibra in legno 4 cm - cartongesso 2x12.5mm 2 Solaio esterno - pavimento finito 17mm - caldana autolivellante 60mm - guaina polietilenica - pannello anticalpestio Pavapor 21/22mm - pannello da distribuzione Natura Isolant 12mm - massetto con ghiaia di marmo 86mm - panello X-lam - sottostruttura con listelli con materassino in fibra di legno 160 mm - guaina freno vapore USB Micro - pannello fibra minerale 40/60 mm - panello fibrogesso 12.5mm 7 Copertura - guaina impermeabilizzante in PVC - perline qualita C 25mm - listellatura in pendenza - guaina Stamisol Pack - pannello isolante Isolair 22mm - pannello isolante fibra di legno pesante 2x100mm - guaina freno vapore USB Micro - panello X-lam - sottostruttura con listelli 40mm con materassino in fibra di legno 40 mm - panello cartongesso 12.5mm   1 +270 +585 -30 2 4 65 7
  • 62.
  • 64.
  • 76.
  • 77.
  • 79.
  • 80.
  • 81.