Embed presentation
Download to read offline











































































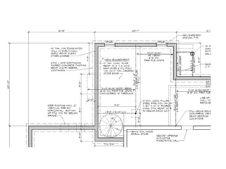
The document discusses the construction of a retaining wall with a poured concrete foundation. Soil borings are done first to understand the soil composition. Wood formwork is used to build the concrete footing, and rebar is placed inside for reinforcement before pouring the concrete. The fresh concrete is poured into the formwork to create the new footing, which vertical rebar will connect to the retaining wall for additional support and stability.










































































