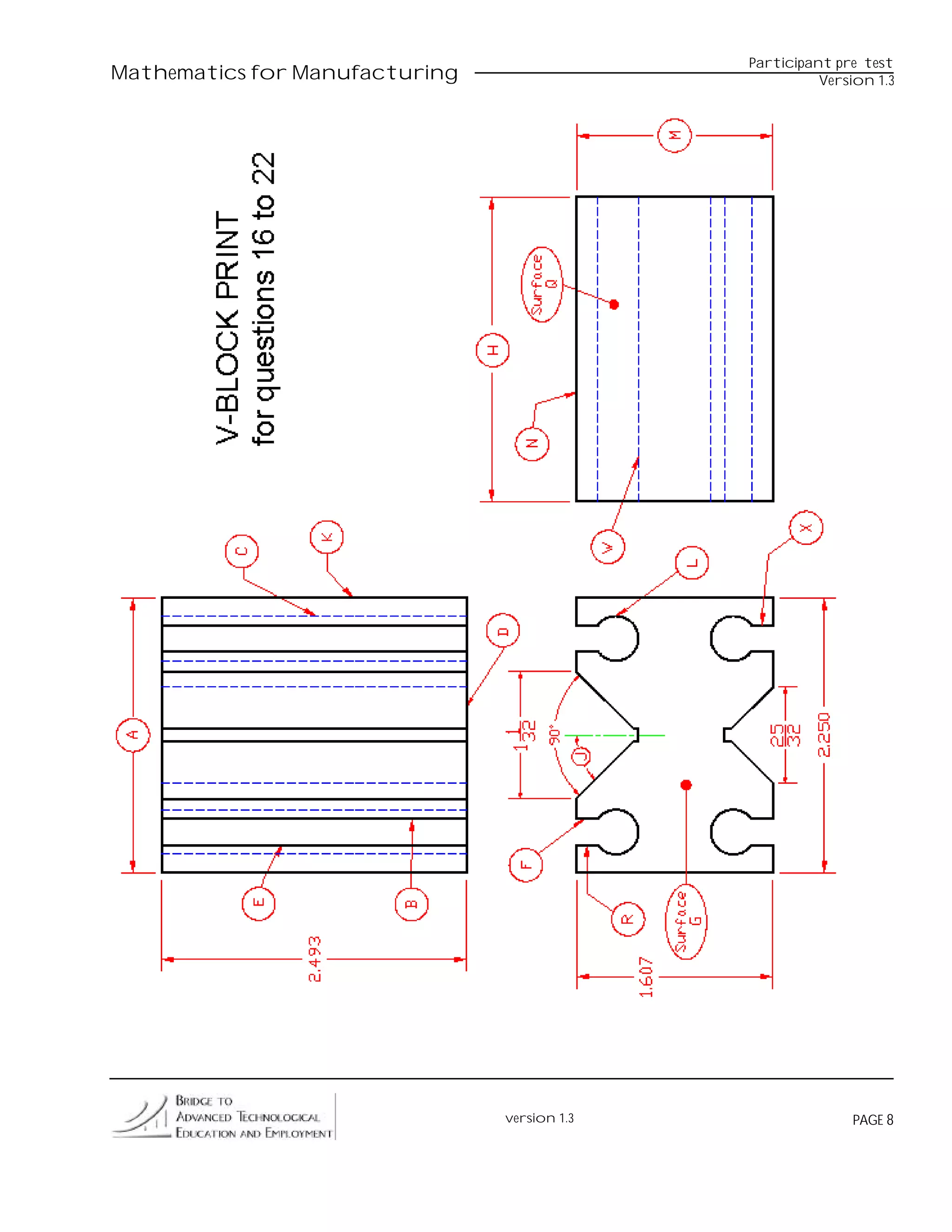
This document is a pre-test for students in a mathematics for manufacturing program. It contains multiple choice and short answer questions testing skills in decimals, fractions, reading scales, and shop math word problems. The purpose is to assess students' current math abilities so instructors understand what needs to be taught to prepare students for careers in precision metalworking. The test will be scored not to assign grades but to measure student progress through the program.