AR 3303–CLIMATE AND BUILT ENVIRONMENT
Compiled by
Ar. K.Shahir Ahamed
Associate Professor
BACHELOR OF ARCHITECTURE
IN
ARCHITECTURE
ANNA UNIVERSITY: CHENNAI 600 025
AR3303 - CLIMATE AND BUILT ENVIRONMENT
COMFORT
We spend most of our lives indoors, and comfort conditions heavily influence our
health and mood when they are not adequate. It is impossible to concentrate when
there is a flickering lamp / Glare , or sleep with a constant noise running all night.
Saint-Gobain, developed the Multi Comfort concept is a comprehensive program
encompassing all aspects that contribute to comfort of life in residential and tertiary
buildings.
As basic as it may seem, space must allow its occupants to feel, see, hear, and
breathe without major problems. For that, it is essential that certain comfort
conditions are well-resolved, implicating design and material decisions as important
factors of consideration.
Aim of the subject :
Climate is one of the most important factors that effect both architectural
design and urban planning. Location, texture, shape, direction, dimension, distance
etc. of the building, should be analyzed and applied correctly, in order to provide the
best climate comfort indoors.
Climate?
Climate is defined as region with certain conditions of temperature, dryness, wind,
light, etc.
Climate responsive Architecture - Adapting architecture according to climatic
conditions
Madhya Pradesh
Himachal Pradesh
Kerala
Rajasthan
Tamilnadu
Karnataka
What is the role and contribution of architects in environment?
To create the buildings or structures which should be responsive for surrounding
environment ,to ensure the comfort inside the structures and also less or zero
damage to environment
CEPT Library,- Rahul Mehrotra,
RMAArchitects.
Human scape- Suhasini ayer Auroville design
consultant
Human beings have been searching for ways to protect or to benefit from the natural climatic
conditions
CLIMATE AND BUILT ENVIRONMENT
The study of mankind , climate and architectural relationship for a function at a
given location
Region with certain conditions
of temperature, dryness, wind,
light etc..
The term built environment refers to the
human-made surroundings that provide
the setting for human activity, ranging
in scale from buildings and parks or green
space to neighborhoods and cities that
can often include their supporting
infrastructure, such as water supply, or
energy networks
Climate & Built Environment
Weather is the momentary state of the atmospheric environment at a certain location
Unit 1 - CLIMATE AND HUMAN COMFORT
Factors That determine the climate of a place
Tropical climates are those where heat is the dominant problem, where, for the greater part of
the year buildings serve to keep the occupants cool, rather than warm, where the annual mean
temperature is not less than 20°C.
Solar radiation: quality
Solar radiation: quantity
Tilt of the earth's axis
Radiation at the earth's surface
The earth's thermal balance
Winds: thermal forces
Solar radiation: quality
The earth receives almost all its energy from the sun in the form of radiation, thus the
sun is the dominating influence on climates.
The spectrum of solar radiation extends from 290 to 2 300 nm .According to human means of
perception we can distinguish:
a. ultra-violet radiation, 290 to 380 nm, producing photo-chemical effects, bleaching, sunburn,
etc.
b. visible light, 380 (violet) to 700 nm (red).
c. short infra-red radiation, 700 to 2300 nm, radiant heat with some photochemical effects.
Solar radiation: quantity
The intensity of radiation reaching the upper surface of the atmosphere is taken as the
solar constant: 1 395 W/m2, but it may actually vary ±2% due to variations in the output of the
sun itself and it varies ±3.5% due to changes in the earth–sun distance
Tilt of the earth's axis
The earth rotates around its own axis, each rotation making one 24-hour day
The axis of this rotation (the line joining the North and South Poles) is tilted to the plane of the
elliptical orbit , (i.e. a tilt of 23.5° from the normal)
Due to the tilted position, however, the area receiving the maximum intensity moves north and
south, between the tropic of Cancer (latitude 23.5°N.) and the tropic of Capricorn (latitude
23.5°S.). This is the main cause of seasonal change
On 21 June areas along latitude 23.5°N. are normal to the sun's rays, and the longest daylight
period is experienced. At the same time latitude 23.5°S. experiences the shortest day and a
radiation minimum
On 21 March and 23 September areas along the Equator are normal to the sun's rays and
experience a zenith path of the sun. For all areas of the earth these are the equinox days (day
and night of equal length).
Relationship of Earth Surface
to Atmosphere
Relation ship of Earth
Surface to Sun
-Earth Spherical Form
-Rotational Tilt 23.5
-Elliptical Orbit
Relation ship of Earth Surface to Sun
AUTUM
SUMMER
SPRING
WINTER
SEASONS
https://www.youtube.com/watch?v=9n04SEzuvXo
Radiation at the earth's surface
This earth–sun relationship affects the amount of radiation received at a particular point on the
earth's surface three ways
1. the cosine law,
which states that the intensity on a tilted surface equals the normal intensity
times the cosine of the angle of incidence.
Figure shows how the same amount of radiation is distributed over a larger area,
therefore less radiation falls on unit area.
2.Atmospheric depletion, i.e. the absorption of radiation by ozone, vapors and dust particles in
the atmosphere (a factor of 0.2 to 0.7).
3.Duration of sunshine, i.e. the length of the daylight period
The earth's thermal balance
The total amount of heat absorbed by the earth each year is balanced by a
corresponding heat loss
Winds: thermal forces
Winds are basically convection currents in the atmosphere, The pattern of movements
is modified by the earth's rotation
ELEMENTS OF CLIMATE
Air Temperature
Relative Humidity
Air Vapor Pressure
Precipitations
Sky conditions
Solar Radiation
Wind
Climatic records as gathered at airports and meteorological stations are not primarily
intended use for designer
Air Temperature
Measurement
• Temperature is the measure of
how hot or cold the air is.
• It is commonly measured in
Celsius or Fahrenheit.
• Temperature is a very important
factor in determining the weather,
because it influences other elements of
the weather.
Temperature may be affected by:
* Sunshine
* Latitude
* Altitude
* Aspect
* Sea Proximity and Temperature
* Ocean Currents
Architectural Impact
• Indoor Air Temperature
• Material Selection
• Heat loss/Gain Factor
• Thermal Storage
• Energy Usage
Relative Humidity
Definitions
• Humidity is the level of water in
the air, the more water vapor in the air
the higher the humidity.
• If the humidity level exceeds the
amount of water air can hold
condensation occurs forming dew if its
warm or frost if its cold.
• When air is at a high altitude and
has a high humidity then clouds start to
form.
• Humidity varies with
temperature. Warmer air can hold more
moisture. Humidity is measured in
percentages on the scale of airs ability
to hold moisture.
• Therefore condensation occurs at
100%humidity for a given temperature
thus reducing the humidity
Architectural Impact
• Indoor Air Temperature
• Ventilation
• Fenestration Design
Vapor Pressure
Definitions
• Air pressure is simply the weight
of the air above the Earth.
• Low Pressure is when air is warmer
and therefore lighter.
• High pressure is colder air
becoming heavier.
It is measured in the standard SI
pressure unit, the Newton per metre
square
(N/m2): 1 millibar
• Indoor Air Quality
• Ventilation Rate
• Air Exchange
• Dehumidification
Architectural Impact
Precipitation
Definitions
• Precipitation is the term given to
moisture that falls from the air to
the ground.
• Precipitation can be snow, hail,
drizzle, fog, mist and rain.
• The water cycle drives the water
from the oceans/seas on-shore
were it falls as precipitation and
then flows via rivers back in to the
sea.
Architectural Impact
• Roof form/drainage
• Paved areas/gutters/down pipes
Sky Conditions
Definitions
• Presence/ Absence of Clouds
• % expression
• Day hours variation
• Sky luminance
• Ambient light
• Daylight
Architectural Impact
• Day light Design
• Glass selection
• Size of openings
• Shading devices
• Color
• Texture
Radiation
Definitions
• Solar radiation is probably the most
important element of climate.
• Solar radiation first and
foremost heats the Earth's surface which in
turn determines the temperature of the air
above.
• The receipt of solar radiation drives
evaporation, so long as there is water
available.
• Heating of the air determines its
stability, which affects cloud development
and precipitation.
• Unequal heating of the Earth's
surface creates pressure gradients that
result in wind.
• All the characteristics of climate can
be traced back to the receipt of
• solar radiation.
Architectural Impact
• Material Selection
• Passive Heating/Cooling
• Heat Sink
• Trombe wall
• Thermal lag
Air Movement / wind
Definitions
• Wind is simply the movement
of air from high pressure to low
pressure.
• The speed of the wind is
determined by the difference
between the high and low pressure.
• The greater the difference the
faster the wind speed. Also the
closer the isobars are on a weather
chart the stronger the winds
Architectural Impact
• Tall Building/wind stress
• Vortex/stack effect
• Openings
• Orientation
• Air change rate
• Comfort zone
Classification of climate for building designers in tropics and Characteristics of climate
Climate Types
Primary Classification
• A- Polar;
• B-Sub-polar;
• C- Temperate;
• D-Sub-tropical
• E -Tropical
• F - Equatorial
Secondary Classification
According to the tropical regions of earth are
divided into three, major climatic zones
and three subgroups:
1 Warm-humid equatorial climate – subgroup:
warm-humid island climate
2 Hot-dry desert, or semi-desert climate -
subgroup: hot-dry maritime desert climate
3 Composite or monsoon climate (combination of
1 and 2) – subgroup: tropical upland climate
Warm-humid climate
Warm-humid climates are found in a belt near the Equator extending to about 15°N. and
S. Examples of cities in this zone: Colombo, Singapore, Jakarta,
There is very little seasonal variation throughout the year,
Air temperature - A mean maximum during the day of between 27 and 32 °C,
At night the mean minimum varies between 21 and 27 °C.
Both the diurnal and annual ranges of temperature are quite narrow.
Humidity - Which remains high, at about 75% for most of the time, but it may vary
from 55 to almost 100%.
Vapour pressure is steady in the region of 2500 to 3000 N/m2.
Precipitation is high throughout the year,
Annual rainfall can vary from 2000 to 5000 mm and may exceed 500 mm in one month,
the wettest month. During severe storms rain may fall at the rate of 100 mm/h for short
periods.
Sky conditions are fairly Cloudy throughout the year.
Cloud cover varies between 60 and 90%. Skies can be bright, a luminance of 7000
cd/m2 or even more when it is thinly overcast, When heavily overcast, the sky is dull,
850 cd/m2 or less
Solar radiation is partly reflected and partly scattered by the cloud blanket, therefore
the radiation reaching the ground is diffuse, but strong, and can cause painful sky
glare.
Wind velocities are typically low, calm periods are frequent, but strong winds can occur
during rain squalls. Gusts of 30 m/s have been reported.
Vegetation grows quickly due to frequent rains and high temperatures and it is difficult
to control. The subsoil water table is usually high and the ground may be waterlogged.
Special characteristics: high humidity accelerates mould and algal growth, rusting
and rotting.
Organic building materials tend to decay rapidly. Mosquitoes and other insects
abound.
Warm-humid island climate
Islands within the equatorial belt belong to this climate type. examples are the
Caribbeans,the Philippines and other island groups in the Pacific Ocean
Air temperature - a day-time mean maximum between 29 and 32°C and Night-time
mean minima can be as low as 18°C, The diurnal range is rarely more than 8 degC and
the annual range is only about 14 degC.
Humidity - varies between 55 and almost 100%
The vapour pressure being between 1 750 and 2500 N/m2.
Precipitation is high, 1 250 to 1 800 mm per annum, Up to 250 mm may fall in a
single storm of a few hours' duration.
Sky conditions are normally clear or filled with white broken clouds of high brightness,
Clear blue skies are of low luminance, between 1700 and 2500 cd/m2.
Solar radiation is strong and mainly direct, with a very small diffuse component when
the sky is clear, but varies with the cloud cover.
Winds: the predominant wind blows at a steady 6 to 7 m/s and provides relief from
heat and humidity.
Vegetation is less luxuriant and of a lighter green colour than in the warm-humid
zones. It varies with the rainfall.
Special characteristics are the tropical cyclones or hurricanes with wind velocities from
45 to 70 m/s, which constitute a serious seasonal hazard. The high salt content of the
atmosphere encourages corrosion in coastal areas.
Hot-dry desert climate
These climates occur in two belts at latitudes between approximately 15 and 30° north
and south of the Equator. Examples of this zone: Baghdad
Air temperature, a day-time mean maximum of 43 to 49 °C. During the cool season the
mean maximum temperature ranges from 27 to 32 °C. Night-time mean minima are
between 24 and 30°C in the hot season and between 10 and 18°C in the cool season.
The diurnal range is very great: 17 to 22 degC.
Humidity - varies from 10 to 55%,
The vapour pressure is normally between 750 and 1 500 N/m2
Precipitation is slight and variable throughout the year, from 50 to 155 mm per annum,
but some regions may not have any rain for several years.
Sky conditions are normally clear. Clouds are few due to the low humidity of the air.
The sky is usually dark blue, with a luminance of 1700 to 2500 cd/m2,
Solar radiation is direct and strong during the day, but the absence of cloud permits
easy release of the heat stored during the day-time in the form of long-wave radiation
towards the cold night sky. Diffuse radiation is only present during dust haze periods.
Winds are usually local. The heating of air over the hot ground causes a temperature
inversion, and Winds are hot, carrying dust and sand – and often develop into dust-
storms.
Vegetation is sparse and difficult to maintain because of the lack of rain and low
humidities.
Special characteristics: during certain months dust and sand-storms may be frequent.
The high day-time temperatures and rapid cooling at- night may cause materials to
crack and break up.
Hot-dry maritime desert climate
Maritime desert climates occur in the same latitude belts as the hot-dry desert climates,
where the sea adjoins a large land mass. Typical examples are Kuwait and Karachi.
Air temperature a day-time mean maximum of about 38°C, but in the cool season it
remains between 21 and 26°C. The night-time mean minimum temperatures of
the hot season range from 24 to 30°C and of the cool season from 10 to 18°C. The
diurnal mean range varies between 9 and 12 degC,
Humidity is steadily high, between 50 and 90%, with vapour pressures of 1 500 to
2 500 N/m2, as the strong solar radiation causes strong evaporation from the sea.
Precipitation, as in other desert regions, is very low
Sky conditions a little more cloud may occur in the form of a thin, transparent haze,
which is likely to cause glare.
Solar radiation is strong, with a higher diffuse component than in desert climates, due
to the thin clouds and suspended moisture.
Winds are mostly local, coastal winds, caused by the unequal heating and cooling of
land and sea surfaces.
Vegetation is sparse, not more than some dry grass. Ground glare can be intense.
Special characteristics: dust and sand-storms may occur. The salt laden atmosphere
accelerates corrosion.
Composite or monsoon climate
These climates usually occur near the tropics of Cancer and Capricorn, Examples of cities
with composite climates: Lahore and New Delhi.
Air temperature is as follows:
Humidity is low throughout the dry periods at 20 to 55%, with a vapour pressure of
1 300 to 1 600 N/m2. During the wet period it rises to 55 to 95%, with a vapour
pressure of 2000 to 2500 N/m2.
Precipitation: the monsoon rains are intense and prolonged; occasionally 25 to 38
mm can fall in an hour. Annual rainfall varies from 500 to 1 300 mm with 200 to 250
mm in the wettest month.
Sky conditions markedly vary with the seasons. The sky is heavily overcast and dull
during the monsoons, and clear, with a dark blue colour, in the dry seasons. The
intensity of sky glare varies accordingly.
Solar radiation alternates between conditions found in the warm-humid and the hot-
dry desert climates.
Winds are hot and dusty during the dry period. Directional changes in the prevailing
winds at the beginning of the warm-humid season bring rain-clouds and humid air
from the sea.
Vegetation, which is sparse ,In the cooler period vegetation covers the ground, but
diminishes as the temperature rises. There is a risk of soil erosion during monsoons.
Special characteristics: seasonal changes in relative humidity cause rapid weakening
of building materials. Termites are common.
Tropical upland climate
Mountainous regions more than 900 to 1200 m above sea-level experience such
climates,. Examples of cities in such regions: Mexico City and Nairobi.
Air temperature - At an altitude of 1800 m the day-time mean maxima may range from
24 to 30°C and the nighttime mean minima are around 10 to 13°C. At some locations it
may fall below 4°C and The diurnal range is great.
Humidity varies between 45 and 99% and the vapour pressure between 800 and
1600 N/m2.
Precipitation is variable, but rarely less than 1000 mm. Rain often falls in heavy
concentrated showers, reaching an intensity of 80 mm per hour.
Sky conditions are normally clear or partly cloudy, to the extent of about 40%. During
the monsoon rains the sky is overcast – and the clouds are heavy and low.
Solar radiation is strong and direct during the clear periods, Ultra-violet radiation
especially is stronger than at lower altitudes. It becomes more diffuse as cloud cover
increases.
Winds are variable, predominantly north-east and south-easterlies, but may be
drastically deflected by local topography. Wind velocity rarely exceeds 15 m/s.
Vegetation is green although not very luxuriant during the wet season .The soil may be
damp in the rains but dries quickly.
Special characteristics: heavy dew at night. Strong radiation loss at night during the
dry season, Thunder-storms with a fair proportion of electric discharges – air to
ground.
Human body heat balance and heat loss
Our daily life cycle comprises states of activity, fatigue and recovery. It is essential that
the mind and body recovers through recreation, rest and sleep to counterbalance the mental
and physical fatigue resulting from activities of the day
The task of the designer is to create the best possible indoor climate (it is not feasible
to regulate out-door conditions). The occupants of a building judge the quality of the design
from a physical as well as an emotional point of view
Human Activity Cycle
• Activity/Fatigue/Recovery
• Mental/Physical Fatigue
• Disturbance by Climate
• Indoor/Outdoor Climate
Relationship
• Human sense interferance
Daily Cycle
ACTIVITY
FATIGUE
RECOVERY
EYES
EARS
NOSE
MOUTH
SKIN
BRAIN
Factors of Human Activity
• Human Body
• Clothing
• Activity
• Age/Sex
• Body Shape
• Subcutaneous Fat
• State of Health
• Food & Drink
• Skin Color
• Climate
• Ambient Temperature
• Humidity
• Wind Speed
• Altitude
• Radiation
The body's heat production
Heat is continuously produced by the body. Most of the biochemical processes
involved in tissue building, energy conversion and muscular work are exotherm, i. e.
heat producing.
The processes involved in converting foodstuff into living matter and useful
form of energy are known as metabolism
The total metabolic heat production can be divided into basal metabolism, i.e.
the heat production of automatic processes which are continuous and the muscular
metabolism, i.e. the heat production of muscles whilst carrying out consciously
controlled work.
Of all the energy produced in the body, only about 20% is utilized, the
remaining 80% is 'surplus‘ heat and must be dissipated to the environment.
Activity watts
Sleeping min. 70
Sitting, moderate movement, e.g. typing 130–160
Standing, light work at machine or bench 160–190
Sitting, heavy arm and leg movements 190–230
Standing, moderate work, some walking 220–290
Walking, moderate lifting or pushing 290–410
Intermittent heavy lifting, digging 440–580
Hardest sustained work 580–700
Maximum heavy work for 30-minutes duration max. 1100
This excess heat production varies with the overall metabolic rate, and depends on the
activity
The body's heat loss
The body can release heat to its environment by convection, radiation and
evaporation – and to a lesser extent by conduction
Heat Gain/Loss
Gain Factors
• Metabolism
– Basal & Muscular
• Conduction
– Contact with warm bodies
• Convection
– Air is warmer than skin
• Radiation
– Sun/sky/Hot bodies
Loss Factors
• Conduction
– Contact with cold Bodies
• Convection
– Air is cooler than skin
• Evaporation
– Moisture/sweat
Thermal Balance
Met – Evp ± Cnd ± Cnv ± Rad = 0
Gains
Conduction
Convection
Radiation
Shivering
Basal Metabolism
Muscular Activity
Loss
Conduction
Convection
Radiation
Evaporation
Effective temperature
Effective temperature is not an actual temperature in the sense that it cannot be
measured by thermometer
Effective temperature (ET) defines as that index which correlates combined effect of
temperature, Humidity, Air velocity on the human body
As an index of warm perception when a human body is exposed to
various temperatures, humidity and air movements. The scale of effective temperature was
determined by the temperature of still, saturated air, which was felt to be as warm as the given
conditions
Bioclimatic chart
Mahoney tables
It is a set of reference tables used in architecture, used as a guide to climate-
appropriate design.
They are named after architect Carl Mahoney,
The tables use readily available climate data and simple calculations to give design
guidelines, in a manner similar to a spreadsheet,
There are six tables; four are used for entering climatic data, for comparison with the
requirements for thermal comfort; and two for reading off appropriate design criteria.
UNIT II - BUILDING RESPONSE TO SUN AND SKY
How is the geometrical relation between Earth and the Sun relevant to Building
design?
For many design purposes, the position of the Sun on a given date at a given time has
to be known. This enables the building designer to predict which faces of the building
would be sunlit, and hence receive direct radiation; to calculate the shadow cast
around the building, the patches on sunlight on floors walls, etc.
The knowledge of altitude and the azimuth of the Sun enable the designer to predict
the intensity of solar radiation for a specified space and time coordinates. This
influences
building size,
volumetric proportions,
orientation,
fenestration details,
shading devices,
ventilation,
building materials, etc.
Example of reading sun path in proposed model for particular time and date
Sun-path diagrams
There are several ways of showing the 3-D sky hemisphere on a 2-D circular diagram. The sun's
path on a given date would then be plotted on this representation
Equidistant chart
Orthographic projection Stereographic projection
The stereographic representation
uses the theoretical nadir
point as the centre of projection
This is the most widely used
method.
In most practical work we consider our point of location on the earth's surface as the centre of
the world: the horizon circle is assumed to be flat and the sky is a hemispherical vault.
The sun's apparent position on this 'sky vault' can be defined in terms of two angles:
Altitude (ALT) - the vertical angle at the point of observation between the horizon
plane and the line connecting the sun with the observer; in some texts this is referred to as
'elevation’
Azimuth (AZI) - the angle at the point of observation measured on a horizontal
plane between the northerly direction and a point on the horizon circle, where it is intersected by
the arc of a vertical circle, going through the zenith and the sun's position. thus direction of the
sun measured in the horizontal plane from north in a clockwise direction (thus east = 90o, south =
180o and west = 270o, whilst north can be 0 or 360o);
The zenith angle (ZEN) is measured
between the sun's direction and the
vertical and it is the supplementary angle
of altitude:
ZEN = 90o - ALT
Overheated period of Chennai
Maximum sunshine Hours in Chennai
Using shading device to control the sunlit into the building
SHADING DESIGN
Solar radiation incident on a window consists of three components: beam- (direct-)
radiation, diffuse-(sky-) and reflected radiation. External shading devices can eliminate the
beam component (which is normally the largest) and reduce the diffuse component. The
design of such shading devices employs two shadow angles: HSA and VSA.
The horizontal shadow angle characterizes a
vertical shading device and it is the difference between
the solar azimuth and wall azimuth,
for example, the wall is facing west (270°):
δ = 270 – 239 = 31°
The vertical shadow angle characterizes a
horizontal shading device, e.g. a long horizontal
projection from the wall, and it is measured on a
vertical plane normal to the elevation considered
Shading devices
Internal devices have been considered under the heading of blinds and curtains. Here
we will only consider external devices. These can be of three basic types:
1 vertical devices
2 horizontal devices
3 egg-crate devices
Vertical devices consist of louver blades or projecting fins in a
vertical position. The horizontal shadow angle measures their performance.
Narrow blades with close spacing may give the same shadow angle as
broader blades with wider spacing.
This type of device is most effective when the sun is to one side
of the elevation, such as an eastern or western elevation. A vertical
device to be effective when the sun is opposite to the wall considered,
would have to give almost complete cover of the whole window.
(a) Vertical fins. (b) Fixed vertical fins on a government building in Honolulu, Hawaii.
(a) Movable fins. (b) Movable fins are positioned according to the sun's position at the Ala
Moana office building in Honolulu, Hawaii.
(a) Overhang using a series of vertical panels. (b) Application of horizontal overhangs at the IBM
Tower in Kuala Lumpur, Malaysia.
Horizontal devices may be canopies, horizontal louvre
blades .Their performance will be measured by a vertical
shadow angle.
These will be most effective when the sun is opposite
to the building face considered and at a high angle, such
as for north and south facing walls.
To exclude a low angle sun, this type of device would have
to cover the window completely, permitting a view
downwards only.
(a) Overhang with horizontal louvers. (b) Horizontal louvers allow free air movement-office
building in Honolulu, Hawaii.
Egg-crate devices are combinations of horizontal and
vertical elements .
The many types of grille-blocks and decorative screens
may fall into this category.
These can be effective for any orientation depending on
detail dimensions.
(a) Egg-crate shading device. (b) Modified egg-crate to allow air movement and lighter structure
at the Board of Water Supply in Honolulu, Hawaii.
Integration of egg-crate shading devices into the envelope at (a) the Hawaii Medical Services
Association building in Honolulu, Hawaii, and (b) the University of Arizona library in Tucson.
Examples of shading device
models (a-f ) illustrate a variety
of design responses to
orientation, shading
requirements, and view for a
university building located at 44º
N latitude.
Overshadowing
For what period is a point A of a proposed building overshadowed by the neighboring existing
building?
Take the sun path chart and find the altitude angle for particular date and time and then use
the data to find the overshadowing from the existing structure
UNIT III - HEAT FLOW THROUGH BUILDING ENVELOPE- CONCEPTS
Reduce Heat Transfer Energy Losses in Design
https://www.youtube.com/watch?v=pTQUb-svZeY
Net Zero Energy Buildings: Learn About Energy Loads
https://www.youtube.com/watch?v=iwDV6jg_6j0
Passive Design Strategies for Heating, Cooling, & Ventilation
https://www.youtube.com/watch?v=sSyM9_BRH3Y
STELR Sustainable Housing - Heat loss and gain in houses
https://www.youtube.com/watch?v=wLJRSP9utoI
What is Heat?
Heat is a form of energy. It makes a substance hotter. We cannot see heat. We can
only feel it by the effect of hotness it produces. We can define heat as energy in transit.
Heat vs. Temperature
Heat is not the same as temperature. Heat is kinetic energy; temperature is a
measurement of how intense that kinetic energy is.
To illustrate this, think of two containers of water—one containing 10 gallons and one
containing 1 gallon. The water in both containers is 50°F. Although they are the same
temperature, the larger container holds 10 times more heat than the smaller one. The larger
container has more thermal mass and therefore has more heat capacity.
Specific heat of a substance is the amount of heat energy necessary to cause unit temperature
increase of a unit mass of the substance. It is measured in: J/kg degC
Which we can sense because of temperature change, Heat is transfer by the virtue of
temperature difference
Latent heat of a substance is the amount of heat energy absorbed by unit mass of the
substance at change of state (from solid to liquid or liquid to gaseous) without any change in
temperature. It is measured in: J/kg
Heat is required to cause the phase change
Heat transfer definition :-
Since we know that heat is thermal energy in transit.
Here thermal energy moves from one place to another by virtue of the difference in
temperature.
Heat is the energy that is transferred from one body to another due to the temperature
difference between the two bodies.
Modes of Heat Transfer
There are three modes of heat transfer. Heat transfer or transmission of heat from one
place to another takes place by three different ways that are:
1. Conduction 2. Convection and 3. Radiation
In solids, heat passes from one point to another through conduction. In Liquids and
gases, heat transfer takes place by convection. Heat transfer takes place by the process of
radiation when there are no particles of any kind which can move and transfer heat. So, in an
empty space or vacuum heat is transferred by radiation.
We shall now study heat transfer by conduction, convection, and radiation in detail
What is conduction
If we heat one end of a metal bar by keeping it over a gas burner, we find that its
other end also gets hot after some time. So heat is transferred from hot end of the bar to its
cold end. In this case of heat transfer, there is no movement of molecules (or particles) of the
material of metal bar as shown below in the figure
Heat Transfer in metal bar by Conduction
Definition of Conduction
“Conduction is the transfer of heat from the hotter
part of the material to its colder part without the
actual movement of the particles.
Heat passes through solids by conduction only.
Thermal conduction plays an important role in our
daily life.
Some of the practical applications of thermal
conduction include:-
(a) Cooking utensils are provided with wooden
handles.
(b) Eskimos make double walled houses of the
blocks of ice.
Convection involves the bodily movement of the heated molecules.
Convection is the process in which heat is transmitted from one place to other by the
actual movement of heated particles. It is prominent in the case of liquids and gases.
It also plays an important part in ventilation, electric lamps, and heating of buildings
by hot water circulation. The figure below shows the transfer of heat by convection when water
in a cooking pot is heated.
Heat Transfer in water by convection
From this figure, you can clearly see convection
current. So, when water is heated in a cooking pot
then its heated molecules become lighter and
moves upwards. As heated molecules of water
move upwards, the denser and colder molecules
of water begin to move downwards. So warm
water rises and colder molecules of water
descend.
Radiation
Radiation is the process in which heat is transmitted one place to other directly
without intervening medium. We get radiation of sun without an intervening medium. Heat
radiations can pass through a vacuum.
Heat radiations also form a part of electromagnetic spectrum.
Points to remember about heat transfer through conduction, convection, and radiation
1. Heat transfer through conduction is a slow process.
2. Heat transfer through convection is a rapid process
3. Out of these three processes radiation is the fastest one.
4. Radiation is the fastest because in this case, the transfer of heat takes place at the speed of
light.
5. Both conduction and convection need a material medium for the transfer for heat.
6. Again consider heating of water in a pot. Here In this process, all three modes of heat transfer
can be seen.
i. Pot is kept over the burner. In this case, heat is transferred by conduction
ii. Water in the pot transfers heat by convection
iii. If you place your hand at a short distance from the burner, you can feel its heat on your
hand. This means burner is transferring heat to the hand by radiation.
Thermal conductivity definition
Thermal conductivity of a solid is a measure of the ability of the solid to conduct heat
through it.
The rate of heat conduction through a medium depends on following factors :-
• geometry of the medium,
• its thickness, and
• the material of the medium.
• It also depends on the temperature difference across the medium.
Thermal conductivity (or 'k-value'). The unit of measurement would thus be W × m/m2 degC,
but this can be simplified by cancellation: W/m degC,
Its value varies between 0.03 W/m degC for insulating materials and up to 400 W/m degC for
metals. The lower the thermal conductivity of a material, the better the thermal performance
(i.e. the slower heat will move across a material).
Resistivity is the reciprocal of this quantity (1/k) measured in units of: m degC/W
Better insulators will have higher resistivity values.
Conductance
While conductivity and resistivity are properties of a material,
Conductance is the heat flow rate through a unit area of the body (i.e. the density of
heat flow rate). The unit of measurement is W/m2 degC
Resistance is measured in m2 degC/W
Resistance of a body is the product of its thickness and the resistivity of its material
where b is the thickness in metres (dimension: m × m degC/W = m2 degC/W).
Relevance of density
Multilayer body
If a body consists of several layers of different materials, its total resistance will be
the sum of the resistances of the individual layers. The conductance of such a multilayer body
(Cb) can be found by finding its total resistance (Rb) and taking its reciprocal:
Note that the conductance's are not additive, only the resistances
R-Values
The R-value is a measure of resistance to heat flow through a given thickness of
material. So the higher the R-value, the more thermal resistance the material has and
therefore the better its insulating properties.
The R-value is calculated by using the formula
R = B/K
Where:
B is the thickness of the material in meters and
K is the thermal conductivity in W/mK.
For example the thermal resistance of 220mm of solid brick wall (with thermal conductivity
K =1.2W/mK) is 0.18 m2K/W.
If you were to insulate a solid brick wall, you simply find the R-value of the insulation and then
add the two together. If you insulated this with 80mm thick foil-faced polyisocyanurate
(with thermal conductivity K=0.022W/mK and R-value of 0.08 / 0.022 = 3.64 m2K/W), you would
have a total R-value for the insulated wall of 0.18 + 3.64 = 3.82 m2K/W. Therefore it
would improve the thermal resistance by more than 21 times!
Surface conductance
Where a thin layer of air film separates the body from the surrounding air. A measure
of this is the surface or film-resistance, denoted thus: 1/f (m2 degC/W) f being the surface or
film conductance (W/m2 degC).
Surface conductance includes the convective and the radiant components of the heat exchange
at surfaces.
Conductance has been defined in these terms. If the heat flow from air on one side, through
the body, to air on the other side is considered, both surface resistances must be taken into
account.
The overall, air-to-air resistance (R ) is the sum of the body's resistance and the surface
resistances:
where 1/fi = internal surface resistance
Rb = resistance of the body
1/fo= external surface resistance
common values surface resistance 0.12 m²/W and 0.06 m²/W
Transmittance
The reciprocal of this air-to-air resistance is the air-to-air transmittance, or U-value:
Its unit of measurement is the same as for conductance – W/m2 degC
The U value of a building element is the inverse of the total thermal resistance of that
element. The U-value is a measure of how much heat is lost through a given thickness of a
particular material, but includes the three major ways in which heat loss occurs – conduction,
convection and radiation.
U = 1/ [1/fi + R1 + R2 +… + 1/fo ]
In practice this is a complicated calculation, so it is best to use U-Value calculation software.
This is the quantity most often used in building heat loss and heat gain problems, as its use greatly
simplifies the calculations.
https://www.youtube.com/watch?v=fXjzqbRdR8g
What is a U-value?
The U-value assesses the rate of heat loss / gain through all the thicknesses of the
combined elements that make up a building component such as a wall, floor or roof. It is
measured in units of W/m2.K (Watts per metre squared Kelvin). The lower the U-value, the better
insulated the building element is. So a wall with a low U-value should prevent heat loss / gain
better than a wall with a high U-value.
Why do we use U-Values?
The use of U-values allows for the comparison of different build-ups for applications or
materials, so the insulating properties of a solid wall could be compared to that of a cavity wall
It is the most accurate way of measuring the insulating properties of the application
or material For example, when building in Dubai, a roof in a villa has a recommended best
starting point of a U-value of 0.30W/m2.K.
Without knowing the U-value of a wall or a floor or roof, you won’t know how energy efficient
the whole building will be.
Before you start any building work you should calculate the U-value as part of the design
process,
Transmittance of composite walls
If the transmittance (U) value of the intended wall construction cannot be found in appendix 5.4, it
can' be calculated as shown in the following example:
assume a wall of a westerly, normal exposure, consisting of the following:
114 mm engineering brickwork k = 1.150 W/m degC
50 mm cavity Rc = 0.176 m2 degC/W
100 mm dense concrete blocks k = 1.440 W/m degC
25 mm wood wool slab k = 0.093 W/m degC
12 mm plastering k = 0.461 W/m degC
surface resistance 1/ f0 = 0.076 m2 degC/W
1/ fi = 0.123 m2 degC/W
Resistances of the individual layers proceeding from the outside inwards will now be calculated (in
m2 degC/W):
https://www.youtube.com/watch?v=pveahgMX3aQ
Heat exchange processes
Just like a human body. The building can similarly be considered as a defined unit and its heat
exchange processes with the out-door environment can be examined
a. Conduction of heat may occur through the walls either inwards or outwards, the rate of which
will be denoted as Qc (convective and radiant components in the transfer of the same heat at the
surfaces are included in the term: transmittance)
b. The effects of solar radiation on opaque surfaces can be included in the above by using the sol-
air temperature concept, but through transparent surfaces (windows) the solar heat gain must be
considered separately. It may be denoted as Qs
c . Heat exchange in either direction may take place with the movement of air, i.e. ventilation,
and the rate of this will be denoted as Qv
d . An internal heat gain may result from the heat output of human bodies, lamps, motors and
appliances. This may be denoted as Qi
e . There may be a deliberate introduction or removal of heat (heating or cooling), using some
form of outside energy supply. The heat flow rate of such mechanical controls may be denoted as
Qm.
f . Finally, if evaporation takes place on the surface of the building (e.g. a roof pool) or within the
building (human sweat or water in a fountain) and the vapours are removed, this will produce a
cooling effect, the rate of which will be denoted as Qe
The thermal balance, i.e. the existing thermal condition is maintained if:
Qi + Qs ± Qc ± Qv ± Qm – Qe = 0
If the sum of this equation is less than zero (negative), the building will be cooling and if it is more
than zero, the temperature in the building will increase.
Periodic heat flow
In nature the variation of climatic conditions produces a non-steady state. Diurnal
variations produce an approximately repetitive 24-hour cycle of increasing and decreasing
temperatures. The effect of this on a building is that in the hot period heat flows from the
environment into the building, where some of it is stored, and at night during the cool period
the heat flow is reversed: from the building to the environment. As the cycle is repetitive, it can
be described as periodic heat flow.
Time lag
The time delay due to the thermal mass is known as a time lag. The thicker
and more resistive the material, the longer it will take for heat waves to pass
through. The reduction in cyclical temperature on the inside surface compared to
the outside surface is knows and the decrement.
In the morning, as the out-door temperature increases, heat starts entering
the outer surface of the wall. Each particle in the wall will absorb a certain amount
of heat for every degree of rise in temperature, depending on the specific heat of
the wall material .Heat to the next particle will only be transmitted after the
temperature of the first particle has increased. Thus the corresponding increase of the
internal surface temperature will be delayed, as shown by the broken line.
Time-lag and decrement factor
The out-door temperature will have reached its peak and started decreasing, before the inner
surface temperature has reached the same level.
From this moment the heat stored in the wall will be dissipated partly to the outside and only
partly to the inside.
As the out-door air cools, an increasing proportion of this stored heat flows outwards, and
when the wall temperature falls below the indoor temperature the direction of the heat flow
is completely reversed.
The two quantities characterizing this periodic change are the time-lag (or phase shift, ϕ) and
the decrement factor (or amplitude attenuation, denoted μ). The latter is the ratio of the
maximum outer and inner surface temperature amplitudes taken from the daily mean.
UNIT 4 - AIR MOVEMENT DUE TO NATURAL AND BUILT FORMS
Wind sock
Wind has been an essential part of human life and hence Architecture design too. It
serves the purpose of proper ventilation in the built spaces. However we need to
understand its basics before applying to the Architecture.
Types of Winds:
• Prevailing winds
• Seasonal winds
• Local winds
All three types of wind mentioned, are equally important for design. However, for
calculating wind loads, prevailing and seasonal winds are considered together,
while local winds are studied separately.
The effects of topography on wind patterns
Chennai
Receives rain from South-west monsoon wind ( June- September) and North-East monsoon
wind ( November- December)
On the other hand it receives less rainfall than Mangalore because
1) Mangalore is located on the windward side of the south-west monsoon winds.. By the time,
the South-west Monsoon falls on the leeward side, very little moisture is left in the winds and
Chennai is not much benefitted.
Windward side means on the side of the winds and leeward side means the other side . For
example the South-East monsoons cause heavy rain on the western coast leaving the leeward
eastern cost comparatively dry.
Natural ventilation is the movement of sufficient volumes of fresh air through an building to
create a comfortable indoor environment
Functions of ventilation
It has three distinctly different functions:
1 supply of fresh air
2 convective cooling
3 physiological cooling
The first two functions will be considered as 'ventilation' but the last function is
considered separately as 'air movement'.
Supply of fresh air
The requirements of fresh air supply are governed by the type of occupancy, number
and activity of the occupants and by the nature of any processes carried out in the space
For natural ventilation usually certain limited solutions are prescribed and not the
expected performance. The provision of 'permanent ventilators', i.e. of openings which cannot
be closed, may be compulsory. These may be grilles or 'air bricks' built into a wall, or may be
incorporated with windows. The size of open able windows may be stipulated in relation to the
floor area or the volume of the room.
window-to-wall ratio (WWR)
Window area will have impacts on the building's heating, cooling, and lighting, as well
as relating it to the natural environment in terms of access to daylight, ventilation and views.
The window-to-wall ratio is the measure of the percentage area determined by
dividing the building's total glazed area by its exterior envelope wall area.
The depth of a single aspect space relative to
the ceiling height directly influences the
quality of natural ventilation and
daylight access
Sum of total window area /
sum of external wall
Convective Cooling
The exchange of indoor air with fresh out-door air can provide cooling, if the
latter is at a lower temperature than the indoor air.
The moving air acts as a heat carrying medium.
A situation where this convective cooling is a practical proposition, can arise in
moderate or cold climates, when the internal heat gain is causing a temperature increase,
but also in warm climates, when the internal heat gain or solar heat gain through windows
would raise the indoor temperature even higher than the outdoor air temperature.
Provision for ventilation: stack effect
Ventilation, i.e. both the supply of fresh air and convective cooling, involves
the movement of air at a relatively slow rate.
The stack effect relies on thermal forces, set up by density difference (caused
by temperature differences) between the indoor and out-door air. It can occur through
an open window: the warmer and lighter indoor air will flow out at the top and the
cooler, denser outdoor air will flow in at the bottom.
Stack effect
Courtyard effect
Physiological cooling
The movement of air past the skin surface accelerates heat dissipation in two
ways:
1 increasing convective heat loss
2 accelerating evaporation
Cooling by air movement is most needed where there are no other forms of heat
dissipation available, when the air is as warm as the skin and the surrounding surfaces
are also at a similar temperature.
Air movement through buildings
The following factors can be isolated which affect the indoor air flow (both patterns
and velocities):
a orientation
b external features
c cross-ventilation
d position of openings
e size of openings
f controls of openings
Orientation
The greatest pressure on the windward side of a building is generated when the
elevation is at right angles to the wind direction, so it seems to that the greatest indoor air
velocity will be achieved in this case. A wind incidence of 45° would reduce the pressure by 50%.
Thus the designer must consider the prevailing wind direction from wind frequency charts of
wind roses and must orientate his building in such a way that the largest openings are facing
the wind direction.
It has, however, been found by Givoni that a
wind incidence at 45° would increase the
average indoor air velocity and would
provide a better distribution of indoor air
movement.
Figure shows his findings: the relative
velocities (with the free air speed taken as
100%) measured at a height of 1.2 m above
floor level.
Figure a shows the outline of air flow at 90° and Figure b at 45°, to a building square in
plan. In the second case a greater velocity is created along the windward faces, therefore the
wind shadow will be much broader, the negative pressure (the suction effect) will be
increased and an increased indoor air flow will result.
External features
The wind velocity gradient is made steeper by an uneven surface, such as scattered
buildings, walls fences, trees or scrub (Figure) – but even with a moderate velocity gradient,
such as over smooth and open ground, a low building can never obtain air velocities similar to
a taller one. For this reason (or to avoid specific obstructions) the building is often elevated on
stilts.
Cross-ventilation
The absence of an outlet opening or with a full partition there can be no effective air
movement through a building
With a windward opening and no outlet, a pressure similar to that in front of the
building will be built up indoors, which can make conditions even worse, increasing
discomfort
Lack of cross-ventilation
Conceptual of cross ventilation
Effective cross ventilation is achieved when the inlet and outlet have
approximately the same area, allowing air to be drawn through the
building using opposite air pressures on each side of the building
The floor plan demonstrates how total eight
apartments achieve natural cross ventilation
Position of openings
In building, the air movement must be ensured through the space mostly used by the
occupants: through the 'living zone‘ As Figure shows, if the opening at the inlet side is at a high
level, the air flow will take place near the ceiling and not in the living zone.
Effect of opening positions Pressure build-up at inlet
The larger solid surface creates a larger
pressure build-up and this pushes the air
stream in an opposite direction, both in plan
and in section. As a result of this, in a two
storey building the air flow on the ground
floor may be satisfactory but on the upper
floor it may be directed against the ceiling.
One possible remedy is an increased roof
parapet wall.
Air flow in a two storey building
Size of openings
The largest air velocity will be obtained through a small inlet opening with a large
outlet. This is partly due to the total force acting on a small area, forcing air through the
opening at a high pressure, and partly due to the 'venturi effect': in the broadening funnel (the
imaginary funnel connecting the small inlet to the large outlet)
Such an arrangement may be useful if the air stream is to be directed (as it were
focused) at a given part of the room.
When the inlet opening is large, the air velocity through it will be less, but the total
rate of air flow (volume of air passing in unit time) will be higher. When the wind
direction is not constant, or when air flow through the whole space is required, a large inlet
opening will be preferable.
Controls of openings
Sashes, canopies, louvres and other elements controlling the openings, also influence the
indoor air flow pattern.
Sashes can divert the air flow upwards. Only reversible pivot sash will channel it
downwards into the living zone
Effect of sashes
Canopies can eliminate the effect of pressure build-up above the window, thus the
pressure below the window will direct the air flow upwards. A gap left between the building
face and the canopy would ensure a downward pressure, thus a flow directed into the living
zone
Effect of canopies
Louvres and shading devices may also present a problem. The position of blades in a
slightly upward position would still channel the flow into the living zone (up to 20° upwards
from the horizontal)
Effect of louvres
Air flow through building concepts
Air flow around buildings
When the architect's task is the design of more than one building, a cluster of
buildings or a whole settlement, especially in a warm climate, in deciding the layout, provision
for air movement must be one of the most important considerations.
After a careful analysis of site climatic conditions a design hypothesis may be produced
on the basis of general information derived from experimental findings,
An open-jet wind simulator
If a low building is located in the wind shadow of a tall block , the increase in height of
the obstructing block will increase the air flow through the low building in a direction opposite
to that of the wind. The lower (return-) wing of a large vortex would pass through the building
Reverse flow behind a tall block
The effect of tall blocks in mixed developments
Figure shows how the air stream separates on the face of a tall block, part of it moving up and
over the roof part of it down. An increased velocity is found at ground level at the sides of the
tall block. This could serve a useful purpose in hot climates, although if the tall
block is not fully closed but is permeable to wind, these effects may be reduced.
Air stream separation at the face of buildings
Single storey buildings are placed in rows in a grid-iron pattern, stagnant air zones leeward
from the first row will overlap the second row A spacing of six times the building height is
necessary to ensure adequate air movement for the second row.
Air flow: grid-iron lay-out
Air flow: checkerboard lay-out
If the buildings are staggered in a checker-board pattern, the flow field is much more uniform,
stagnant air zones are almost eliminated
Massing of building blocks influence wind pattern
Orient
Long axis
of the
building to
catch wind
flow
Choose
stepped of
pyramid
shaped
form to
promote
wind draft
Align &
configure
paths/road
ways to
promote
wind flow
Use cut out
to prevent
air dam
effect
Choice of Built form to promote ventilation
Wind Funnels
Tree walls to increase
wind flow
Plants
Influence of tree canopy
Shrubs create deflections
Ground cover for site
cooling
Shading
Water
Evaporative Cooling
Spray wall
Roof Ponds
insulation Prevents
day time
heat gain
Promotes night
time heat loss
Shelter Belt Impact on wind
9.0m/s
UNIT V - CLIMATE AND DESIGN OF BUILDINGS
Climate types
1 Warm-humid equatorial climate – subgroup: warm-humid island climate
2 Hot-dry desert, or semi-desert climate - subgroup: hot-dry maritime desert climate
3 Composite or monsoon climate (combination of 1 and 2) – subgroup: tropical upland
climate
The main tools for controlling the environment in buildings are
Shape of the building (massing)
Fenestration (size, positioning and orientation of windows)
Solar control (shading and surface finishes)
Building fabric (insulation and thermal storage)
Ventilation
Climatic Design
Warm - humid climate
The warm and humid zone covers the
coastal parts of the country, such as
Mumbai, Chennai and Kolkata.
The main design criteria in the warm
and humid region are to reduce heat
gain by providing shading, and
promote heat loss by maximizing
cross ventilation.
Dissipation of humidity is also
essential to reduce discomfort.
Design Strategies
• Appropriate orientation and shape of
building
• Roof insulation and wall insulation
• Reflective surface of roof
• Balconies and verandahs
• Walls, glass surface protected by
overhangs, fins, and trees
• Pale colors and glazed china mosaic
tiles
• Windows and exhausts
• Ventilated roof construction,
courtyards, wind towers, and
arrangement of openings
• Dehumidifiers and desiccant cooling
Warm humid climates
1.In warm-humid climates, the nights are usually warm and there is very little diurnal
variation (often less than 5 deg C).
2. Evaporative cooling will be neither effective nor desirable as it would increase the
humidity.
3. In humid climates, moisture-laden air that entering an enclosure can result in
condensation within the enclosure, possibly leading to long-term moisture problems.
4. In a warm - humid climate, moisture will flow from outside to inside most of the year.
• The traditional wisdom is to build lightweight houses, elevated on stilts and fully cross-
ventilated
• Solar radiation on the roof, on east and west walls can substantially elevate surface
temperatures, thus causing an inward heat flow. These elements should have a very good
reflective and/ or resistive insulation.
Design strategies
• Windows opposite each other to allow cross-ventilation, Choose window type for good
airflow eg, louvres rather than awning/hopper windows
• Long, narrow floor-plan in sleeping zone, to maximize through ventilation in bedrooms,
Elevate house to catch the breezes
• Open-plan living areas with high ceilings, to maximize air movement and reduce radiant
heat to occupants.
• The whole building should be lightweight to allow rapid cooling down at night.
• East and west walls should have minimum or no windows in order to exclude the low angle
east and west sun.
• They should be reflective and/or well insulated.
• North and south walls should be as open as possible, to allow for cross ventilation.
• This requires that the plan arrangement should avoid double-banked rooms.
• Avoid obstruction of the wind.
• The openings require protection from the sun and driving rain but also from
mosquitoes and other insects which abound in these climates.
The conventional lightweight house for warm-humid climates elevated cross-ventilated, good
roof insulation
• This indicates that the most important issue in ventilation and window placement is that
the path of moving air be at the level of the occupants.
• Window openings should be roughly the same size on both windward and leeward sides,
and should be placed across from one another at the level of the occupant.
Material Properties
In general, lighter colors and
smoother surfaces lead to
lower surface temperatures.
Low thermal mass
construction is typical in
regions with low diurnal
range.
“VIKAS”-APARTMENT”
Climatic Condition: Warm and Humid
Architect : Satprem Maini.
• The buildings are oriented longitudinally along the east-west axis with openings along
north-south for cross ventilation.
• Pier walls oriented at 45 degrees to the predominant wind direction further aid cross
ventilation.
• Basement floor (in some parts) to supply soil for building: the aim being that each building
must be self sufficient in its soil need for construction. This basement floor (only 1.2 m
underground) has a lot of daylight and is cooler in summer.
• Fenestrations with overhangs have been adequately designed to get enough daylight and
cut off direct gains.
• Terrace gardens and creepers on the west facades to reduce cooling loads.
• Solar chimney to create a natural draft, which refreshes the building especially at night. The
sun heats a heavy black slab laid on the chimney top: this creates a natural draft due to the
temperature difference in the chimney.
DOME AND VAULT SECTION.
APPROPRIATE ARCHITECTURE DESIGN
-SECTION THROUGH MAIN BUILDING
Hot & Dry desert climate
• The hot and dry zone lies in the
western and the central part of India;
• Jaisalmer, Jodhpur and Sholapur
are some of the towns that experience this
type of climate.
• In such a climate, it is imperative to
control solar radiation and movement of
hot winds.
• The design criteria should therefore
aim at resisting heat gain by providing
shading, reducing exposed area,
controlling and scheduling ventilation,
and increasing thermal capacity.
• The presence of water bodies is
desirable as they can help increase the
humidity, thereby leading to lower air
temperatures.
• The ground and surrounding
objects emit a lot of heat in the afternoons
and evenings.
• As far as possible, this heat should
be avoided by appropriate design
features.
Design Strategies
• Appropriate orientation and shape of
building
• Insulation of building envelope
• Massive structure
• Air locks, lobbies, balconies, and
verandahs
• External surfaces protected by
overhangs, fins, and trees
• Pale colors and glazed china mosaic
tiles
• Windows and exhausts
• Courtyards, wind towers, and
arrangement of openings
• Trees, ponds, and evaporative cooling
1. Orientation and shape of building- Resist heat gain, Decrease exposed surface area
2. Insulation of building envelope-Increase thermal resistance
3. Massive structure - Increase thermal capacity (Time lag)
4. Air locks/ lobbies/balconies/verandahs- Increase buffer spaces
5. Weather stripping and scheduling air changes Decrease air exchange rate (Ventilation during
daytime)
6. External surfaces protected by overhangs Fins and trees- Increase shading
7. Pale color, glazed china mosaic tiles etc- Increase surface reflectivity
8. Provide windows/exhausts - Ventilation of appliances, Promote heat loss
9. Courtyards/wind towers/arrangement of openings - Increase air exchange rate
Microclimate
The term of microclimate includes wind, radiation, temperature, and humidity experienced
around a building.
The microclimate of a site is affected by the following factors: Landform, Vegetation, Water
bodies, Street width and orientation, Open spaces and built form
An understanding of these factors greatly helps in the preparation of the site layout plan. For
example, in a hot and dry climate, the building needs to be located close to a water body.
The water body helps in increasing the humidity and lowering the temperature by
evaporative cooling
• Evaporative cooling or a ceiling fan should be
used if required.
• Use high mass solutions with passive solar
winter heating where winters are cool or cold
and diurnal ranges are significant.
• Use low mass elevated solutions where
winters are mild and diurnal ranges are lower.
• Consider high mass construction for rooms
with passive winter heating and low mass
for other rooms.
• Shade all windows in summer and east and
west windows year round.
• Well sealed windows and doors with
maximum opening area allow maximum
exposure to cooling breezes and exclude hot,
dry and dusty winds.
Composite or Monsoon climate
The composite zone covers the central
part of India, such as New Delhi,
Kanpur and Allahabad. The design
criteria are more or less the same as
for hot and dry climate except that
maximizing cross ventilation is
desirable in the monsoon period.
Design Strategies
• Appropriate orientation and shape of
building
• Use of trees as wind barriers
• Roof insulation and wall insulation
• Thicker walls
• Air locks and balconies
• Weather stripping
• Walls, glass surfaces protected by
overhangs, fins, and trees
• Pale colors and glazed china mosaic
tiles & Exhausts
• Courtyards, wind towers, and
arrangement of openings
• Trees and ponds for evaporative
cooling
• Dehumidifiers and desiccant cooling
RANG MAHAL, Red Fort, Delhi, Composite
 The Rang Mahal at the Red Fort royal palace has spaces suitable for every
season. Rooms have thick walls and small openings for summer days and winter nights.
Verandahs are for evenings and mornings. There is a screened balcony that will cut out the
sun but enjoy the monsoon breeze during the humid season.
 Additionally, there is water stream flowing through the middle and the screens
and awnings that can be raised or lowered to modulate the light, provide shade, or
insulate against the heat or cold.
EXTERIOR RANGMAHAL REDFORT
INTERIORS RANG MAHAL REDFORT
PLAN RANG MAHAL REDFORT
SOLAR ENERGY CENTRE, Gual Pahari, Gurgaon
 Demonstration of passive and active solar systems
and use of innovative fenestration design to achieve
thermal and visual comfort in a institutional-
cum-residential complex.
PROJECT DETAILS
-Site 200 acres of land in Gurgaon
-Climate Composite
-Building types Institutional/residential
-Architect Vinod Gupta
-Building/project name Solar Energy
-Centre
-Year of start/completion 1984–1990
-Client/owner Solar Energy Centre,
-Government of India
-Covered area 6943 m²
-Cost of the project Rs 15.5 million
(excluding cost of renewable energy
technologies)
DESIGN FEATURES
Technical and administrative block
 Courtyard planning with single-loaded corridors for ventilation and landscaped
courtyard to modify microclimate
 Hollow concrete block walls to reduce heat gains
 Properly designed windows and shading devices
 Provision for rooftop evaporative cooling
 Insulation for air-conditioned blocks
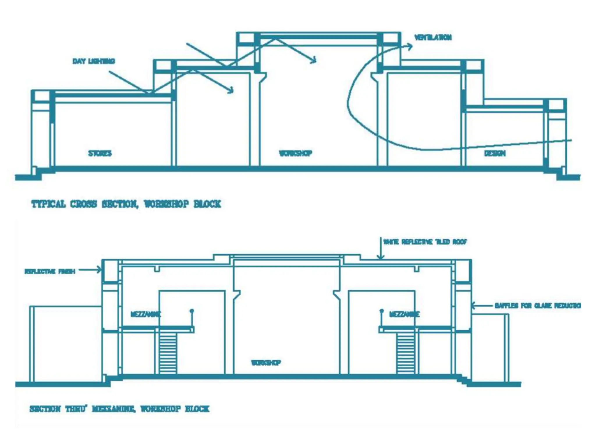
WORKSHOP BUILDING
 Building section developed for ventilation and day lighting
 Heat gain by the roof minimized by insulation and reflective roof finishes
Built on the south slope of an undulating site, and partially earth-bermed from three
sides.
Terrace garden is watered during the summer months. The evaporation of water
modifies the microclimate and also absorbs a major part of the cooling load in summer.
A special section of the roof provided with manually-driven ventilators to ensure
cross-ventilation of each guest suite.
External surfaces of the building finished with white reflective paint
Windows protected by arched sunshades (overhangs and sidewalls) of predetermined
dimensions to avoid direct sun during summers.
Solar water heaters integrated with the architectural design have been provided for
each bathroom.
A sunny terrace provided near the kitchen to facilitate solar cooking.
SOLAR ENERGY CENTRE, GUAL PAHARI,
GURGAON
Concepts
Natural
ventilation
Building
orientation
Water
Wind
breaks
Sun
shading
Earth
shelterin
g
Plants
Wind
Breaks
Outdoor
Rooms
Earth
Shelter
insulation
N
Solar
Sunshade
Forced
Ventilatio
n
Form
Internal
plan
orientation

CLIMATE AND BUILT ENVIRONMENT ,Sem 3, B arch, Architecture, Anna university, RVSPSOA, CHENNAI Regulation 2021

  • 1.
    AR 3303–CLIMATE ANDBUILT ENVIRONMENT Compiled by Ar. K.Shahir Ahamed Associate Professor BACHELOR OF ARCHITECTURE IN ARCHITECTURE ANNA UNIVERSITY: CHENNAI 600 025
  • 2.
    AR3303 - CLIMATEAND BUILT ENVIRONMENT
  • 3.
    COMFORT We spend mostof our lives indoors, and comfort conditions heavily influence our health and mood when they are not adequate. It is impossible to concentrate when there is a flickering lamp / Glare , or sleep with a constant noise running all night. Saint-Gobain, developed the Multi Comfort concept is a comprehensive program encompassing all aspects that contribute to comfort of life in residential and tertiary buildings. As basic as it may seem, space must allow its occupants to feel, see, hear, and breathe without major problems. For that, it is essential that certain comfort conditions are well-resolved, implicating design and material decisions as important factors of consideration.
  • 4.
    Aim of thesubject : Climate is one of the most important factors that effect both architectural design and urban planning. Location, texture, shape, direction, dimension, distance etc. of the building, should be analyzed and applied correctly, in order to provide the best climate comfort indoors. Climate? Climate is defined as region with certain conditions of temperature, dryness, wind, light, etc. Climate responsive Architecture - Adapting architecture according to climatic conditions
  • 8.
  • 9.
    What is therole and contribution of architects in environment? To create the buildings or structures which should be responsive for surrounding environment ,to ensure the comfort inside the structures and also less or zero damage to environment CEPT Library,- Rahul Mehrotra, RMAArchitects. Human scape- Suhasini ayer Auroville design consultant
  • 10.
    Human beings havebeen searching for ways to protect or to benefit from the natural climatic conditions
  • 11.
    CLIMATE AND BUILTENVIRONMENT The study of mankind , climate and architectural relationship for a function at a given location
  • 12.
    Region with certainconditions of temperature, dryness, wind, light etc.. The term built environment refers to the human-made surroundings that provide the setting for human activity, ranging in scale from buildings and parks or green space to neighborhoods and cities that can often include their supporting infrastructure, such as water supply, or energy networks Climate & Built Environment Weather is the momentary state of the atmospheric environment at a certain location
  • 13.
    Unit 1 -CLIMATE AND HUMAN COMFORT Factors That determine the climate of a place Tropical climates are those where heat is the dominant problem, where, for the greater part of the year buildings serve to keep the occupants cool, rather than warm, where the annual mean temperature is not less than 20°C. Solar radiation: quality Solar radiation: quantity Tilt of the earth's axis Radiation at the earth's surface The earth's thermal balance Winds: thermal forces
  • 14.
    Solar radiation: quality Theearth receives almost all its energy from the sun in the form of radiation, thus the sun is the dominating influence on climates. The spectrum of solar radiation extends from 290 to 2 300 nm .According to human means of perception we can distinguish: a. ultra-violet radiation, 290 to 380 nm, producing photo-chemical effects, bleaching, sunburn, etc. b. visible light, 380 (violet) to 700 nm (red). c. short infra-red radiation, 700 to 2300 nm, radiant heat with some photochemical effects.
  • 15.
    Solar radiation: quantity Theintensity of radiation reaching the upper surface of the atmosphere is taken as the solar constant: 1 395 W/m2, but it may actually vary ±2% due to variations in the output of the sun itself and it varies ±3.5% due to changes in the earth–sun distance Tilt of the earth's axis The earth rotates around its own axis, each rotation making one 24-hour day The axis of this rotation (the line joining the North and South Poles) is tilted to the plane of the elliptical orbit , (i.e. a tilt of 23.5° from the normal) Due to the tilted position, however, the area receiving the maximum intensity moves north and south, between the tropic of Cancer (latitude 23.5°N.) and the tropic of Capricorn (latitude 23.5°S.). This is the main cause of seasonal change On 21 June areas along latitude 23.5°N. are normal to the sun's rays, and the longest daylight period is experienced. At the same time latitude 23.5°S. experiences the shortest day and a radiation minimum On 21 March and 23 September areas along the Equator are normal to the sun's rays and experience a zenith path of the sun. For all areas of the earth these are the equinox days (day and night of equal length).
  • 16.
    Relationship of EarthSurface to Atmosphere Relation ship of Earth Surface to Sun -Earth Spherical Form -Rotational Tilt 23.5 -Elliptical Orbit
  • 17.
    Relation ship ofEarth Surface to Sun AUTUM SUMMER SPRING WINTER SEASONS https://www.youtube.com/watch?v=9n04SEzuvXo
  • 18.
    Radiation at theearth's surface This earth–sun relationship affects the amount of radiation received at a particular point on the earth's surface three ways 1. the cosine law, which states that the intensity on a tilted surface equals the normal intensity times the cosine of the angle of incidence. Figure shows how the same amount of radiation is distributed over a larger area, therefore less radiation falls on unit area. 2.Atmospheric depletion, i.e. the absorption of radiation by ozone, vapors and dust particles in the atmosphere (a factor of 0.2 to 0.7). 3.Duration of sunshine, i.e. the length of the daylight period
  • 20.
    The earth's thermalbalance The total amount of heat absorbed by the earth each year is balanced by a corresponding heat loss
  • 21.
    Winds: thermal forces Windsare basically convection currents in the atmosphere, The pattern of movements is modified by the earth's rotation
  • 22.
    ELEMENTS OF CLIMATE AirTemperature Relative Humidity Air Vapor Pressure Precipitations Sky conditions Solar Radiation Wind Climatic records as gathered at airports and meteorological stations are not primarily intended use for designer
  • 23.
    Air Temperature Measurement • Temperatureis the measure of how hot or cold the air is. • It is commonly measured in Celsius or Fahrenheit. • Temperature is a very important factor in determining the weather, because it influences other elements of the weather. Temperature may be affected by: * Sunshine * Latitude * Altitude * Aspect * Sea Proximity and Temperature * Ocean Currents Architectural Impact • Indoor Air Temperature • Material Selection • Heat loss/Gain Factor • Thermal Storage • Energy Usage
  • 24.
    Relative Humidity Definitions • Humidityis the level of water in the air, the more water vapor in the air the higher the humidity. • If the humidity level exceeds the amount of water air can hold condensation occurs forming dew if its warm or frost if its cold. • When air is at a high altitude and has a high humidity then clouds start to form. • Humidity varies with temperature. Warmer air can hold more moisture. Humidity is measured in percentages on the scale of airs ability to hold moisture. • Therefore condensation occurs at 100%humidity for a given temperature thus reducing the humidity Architectural Impact • Indoor Air Temperature • Ventilation • Fenestration Design
  • 25.
    Vapor Pressure Definitions • Airpressure is simply the weight of the air above the Earth. • Low Pressure is when air is warmer and therefore lighter. • High pressure is colder air becoming heavier. It is measured in the standard SI pressure unit, the Newton per metre square (N/m2): 1 millibar • Indoor Air Quality • Ventilation Rate • Air Exchange • Dehumidification Architectural Impact
  • 26.
    Precipitation Definitions • Precipitation isthe term given to moisture that falls from the air to the ground. • Precipitation can be snow, hail, drizzle, fog, mist and rain. • The water cycle drives the water from the oceans/seas on-shore were it falls as precipitation and then flows via rivers back in to the sea. Architectural Impact • Roof form/drainage • Paved areas/gutters/down pipes
  • 27.
    Sky Conditions Definitions • Presence/Absence of Clouds • % expression • Day hours variation • Sky luminance • Ambient light • Daylight Architectural Impact • Day light Design • Glass selection • Size of openings • Shading devices • Color • Texture
  • 28.
    Radiation Definitions • Solar radiationis probably the most important element of climate. • Solar radiation first and foremost heats the Earth's surface which in turn determines the temperature of the air above. • The receipt of solar radiation drives evaporation, so long as there is water available. • Heating of the air determines its stability, which affects cloud development and precipitation. • Unequal heating of the Earth's surface creates pressure gradients that result in wind. • All the characteristics of climate can be traced back to the receipt of • solar radiation. Architectural Impact • Material Selection • Passive Heating/Cooling • Heat Sink • Trombe wall • Thermal lag
  • 29.
    Air Movement /wind Definitions • Wind is simply the movement of air from high pressure to low pressure. • The speed of the wind is determined by the difference between the high and low pressure. • The greater the difference the faster the wind speed. Also the closer the isobars are on a weather chart the stronger the winds Architectural Impact • Tall Building/wind stress • Vortex/stack effect • Openings • Orientation • Air change rate • Comfort zone
  • 30.
    Classification of climatefor building designers in tropics and Characteristics of climate
  • 31.
    Climate Types Primary Classification •A- Polar; • B-Sub-polar; • C- Temperate; • D-Sub-tropical • E -Tropical • F - Equatorial Secondary Classification According to the tropical regions of earth are divided into three, major climatic zones and three subgroups: 1 Warm-humid equatorial climate – subgroup: warm-humid island climate 2 Hot-dry desert, or semi-desert climate - subgroup: hot-dry maritime desert climate 3 Composite or monsoon climate (combination of 1 and 2) – subgroup: tropical upland climate
  • 33.
    Warm-humid climate Warm-humid climatesare found in a belt near the Equator extending to about 15°N. and S. Examples of cities in this zone: Colombo, Singapore, Jakarta, There is very little seasonal variation throughout the year, Air temperature - A mean maximum during the day of between 27 and 32 °C, At night the mean minimum varies between 21 and 27 °C. Both the diurnal and annual ranges of temperature are quite narrow. Humidity - Which remains high, at about 75% for most of the time, but it may vary from 55 to almost 100%. Vapour pressure is steady in the region of 2500 to 3000 N/m2.
  • 34.
    Precipitation is highthroughout the year, Annual rainfall can vary from 2000 to 5000 mm and may exceed 500 mm in one month, the wettest month. During severe storms rain may fall at the rate of 100 mm/h for short periods. Sky conditions are fairly Cloudy throughout the year. Cloud cover varies between 60 and 90%. Skies can be bright, a luminance of 7000 cd/m2 or even more when it is thinly overcast, When heavily overcast, the sky is dull, 850 cd/m2 or less Solar radiation is partly reflected and partly scattered by the cloud blanket, therefore the radiation reaching the ground is diffuse, but strong, and can cause painful sky glare. Wind velocities are typically low, calm periods are frequent, but strong winds can occur during rain squalls. Gusts of 30 m/s have been reported. Vegetation grows quickly due to frequent rains and high temperatures and it is difficult to control. The subsoil water table is usually high and the ground may be waterlogged. Special characteristics: high humidity accelerates mould and algal growth, rusting and rotting. Organic building materials tend to decay rapidly. Mosquitoes and other insects abound.
  • 35.
    Warm-humid island climate Islandswithin the equatorial belt belong to this climate type. examples are the Caribbeans,the Philippines and other island groups in the Pacific Ocean Air temperature - a day-time mean maximum between 29 and 32°C and Night-time mean minima can be as low as 18°C, The diurnal range is rarely more than 8 degC and the annual range is only about 14 degC. Humidity - varies between 55 and almost 100% The vapour pressure being between 1 750 and 2500 N/m2. Precipitation is high, 1 250 to 1 800 mm per annum, Up to 250 mm may fall in a single storm of a few hours' duration. Sky conditions are normally clear or filled with white broken clouds of high brightness, Clear blue skies are of low luminance, between 1700 and 2500 cd/m2. Solar radiation is strong and mainly direct, with a very small diffuse component when the sky is clear, but varies with the cloud cover.
  • 36.
    Winds: the predominantwind blows at a steady 6 to 7 m/s and provides relief from heat and humidity. Vegetation is less luxuriant and of a lighter green colour than in the warm-humid zones. It varies with the rainfall. Special characteristics are the tropical cyclones or hurricanes with wind velocities from 45 to 70 m/s, which constitute a serious seasonal hazard. The high salt content of the atmosphere encourages corrosion in coastal areas.
  • 37.
    Hot-dry desert climate Theseclimates occur in two belts at latitudes between approximately 15 and 30° north and south of the Equator. Examples of this zone: Baghdad Air temperature, a day-time mean maximum of 43 to 49 °C. During the cool season the mean maximum temperature ranges from 27 to 32 °C. Night-time mean minima are between 24 and 30°C in the hot season and between 10 and 18°C in the cool season. The diurnal range is very great: 17 to 22 degC. Humidity - varies from 10 to 55%, The vapour pressure is normally between 750 and 1 500 N/m2 Precipitation is slight and variable throughout the year, from 50 to 155 mm per annum, but some regions may not have any rain for several years. Sky conditions are normally clear. Clouds are few due to the low humidity of the air. The sky is usually dark blue, with a luminance of 1700 to 2500 cd/m2,
  • 38.
    Solar radiation isdirect and strong during the day, but the absence of cloud permits easy release of the heat stored during the day-time in the form of long-wave radiation towards the cold night sky. Diffuse radiation is only present during dust haze periods. Winds are usually local. The heating of air over the hot ground causes a temperature inversion, and Winds are hot, carrying dust and sand – and often develop into dust- storms. Vegetation is sparse and difficult to maintain because of the lack of rain and low humidities. Special characteristics: during certain months dust and sand-storms may be frequent. The high day-time temperatures and rapid cooling at- night may cause materials to crack and break up.
  • 39.
    Hot-dry maritime desertclimate Maritime desert climates occur in the same latitude belts as the hot-dry desert climates, where the sea adjoins a large land mass. Typical examples are Kuwait and Karachi. Air temperature a day-time mean maximum of about 38°C, but in the cool season it remains between 21 and 26°C. The night-time mean minimum temperatures of the hot season range from 24 to 30°C and of the cool season from 10 to 18°C. The diurnal mean range varies between 9 and 12 degC, Humidity is steadily high, between 50 and 90%, with vapour pressures of 1 500 to 2 500 N/m2, as the strong solar radiation causes strong evaporation from the sea. Precipitation, as in other desert regions, is very low Sky conditions a little more cloud may occur in the form of a thin, transparent haze, which is likely to cause glare. Solar radiation is strong, with a higher diffuse component than in desert climates, due to the thin clouds and suspended moisture.
  • 40.
    Winds are mostlylocal, coastal winds, caused by the unequal heating and cooling of land and sea surfaces. Vegetation is sparse, not more than some dry grass. Ground glare can be intense. Special characteristics: dust and sand-storms may occur. The salt laden atmosphere accelerates corrosion.
  • 41.
    Composite or monsoonclimate These climates usually occur near the tropics of Cancer and Capricorn, Examples of cities with composite climates: Lahore and New Delhi. Air temperature is as follows: Humidity is low throughout the dry periods at 20 to 55%, with a vapour pressure of 1 300 to 1 600 N/m2. During the wet period it rises to 55 to 95%, with a vapour pressure of 2000 to 2500 N/m2. Precipitation: the monsoon rains are intense and prolonged; occasionally 25 to 38 mm can fall in an hour. Annual rainfall varies from 500 to 1 300 mm with 200 to 250 mm in the wettest month.
  • 42.
    Sky conditions markedlyvary with the seasons. The sky is heavily overcast and dull during the monsoons, and clear, with a dark blue colour, in the dry seasons. The intensity of sky glare varies accordingly. Solar radiation alternates between conditions found in the warm-humid and the hot- dry desert climates. Winds are hot and dusty during the dry period. Directional changes in the prevailing winds at the beginning of the warm-humid season bring rain-clouds and humid air from the sea. Vegetation, which is sparse ,In the cooler period vegetation covers the ground, but diminishes as the temperature rises. There is a risk of soil erosion during monsoons. Special characteristics: seasonal changes in relative humidity cause rapid weakening of building materials. Termites are common.
  • 43.
    Tropical upland climate Mountainousregions more than 900 to 1200 m above sea-level experience such climates,. Examples of cities in such regions: Mexico City and Nairobi. Air temperature - At an altitude of 1800 m the day-time mean maxima may range from 24 to 30°C and the nighttime mean minima are around 10 to 13°C. At some locations it may fall below 4°C and The diurnal range is great. Humidity varies between 45 and 99% and the vapour pressure between 800 and 1600 N/m2. Precipitation is variable, but rarely less than 1000 mm. Rain often falls in heavy concentrated showers, reaching an intensity of 80 mm per hour. Sky conditions are normally clear or partly cloudy, to the extent of about 40%. During the monsoon rains the sky is overcast – and the clouds are heavy and low. Solar radiation is strong and direct during the clear periods, Ultra-violet radiation especially is stronger than at lower altitudes. It becomes more diffuse as cloud cover increases.
  • 44.
    Winds are variable,predominantly north-east and south-easterlies, but may be drastically deflected by local topography. Wind velocity rarely exceeds 15 m/s. Vegetation is green although not very luxuriant during the wet season .The soil may be damp in the rains but dries quickly. Special characteristics: heavy dew at night. Strong radiation loss at night during the dry season, Thunder-storms with a fair proportion of electric discharges – air to ground.
  • 45.
    Human body heatbalance and heat loss Our daily life cycle comprises states of activity, fatigue and recovery. It is essential that the mind and body recovers through recreation, rest and sleep to counterbalance the mental and physical fatigue resulting from activities of the day The task of the designer is to create the best possible indoor climate (it is not feasible to regulate out-door conditions). The occupants of a building judge the quality of the design from a physical as well as an emotional point of view
  • 46.
    Human Activity Cycle •Activity/Fatigue/Recovery • Mental/Physical Fatigue • Disturbance by Climate • Indoor/Outdoor Climate Relationship • Human sense interferance
  • 47.
  • 48.
    Factors of HumanActivity • Human Body • Clothing • Activity • Age/Sex • Body Shape • Subcutaneous Fat • State of Health • Food & Drink • Skin Color • Climate • Ambient Temperature • Humidity • Wind Speed • Altitude • Radiation
  • 49.
    The body's heatproduction Heat is continuously produced by the body. Most of the biochemical processes involved in tissue building, energy conversion and muscular work are exotherm, i. e. heat producing. The processes involved in converting foodstuff into living matter and useful form of energy are known as metabolism The total metabolic heat production can be divided into basal metabolism, i.e. the heat production of automatic processes which are continuous and the muscular metabolism, i.e. the heat production of muscles whilst carrying out consciously controlled work. Of all the energy produced in the body, only about 20% is utilized, the remaining 80% is 'surplus‘ heat and must be dissipated to the environment.
  • 50.
    Activity watts Sleeping min.70 Sitting, moderate movement, e.g. typing 130–160 Standing, light work at machine or bench 160–190 Sitting, heavy arm and leg movements 190–230 Standing, moderate work, some walking 220–290 Walking, moderate lifting or pushing 290–410 Intermittent heavy lifting, digging 440–580 Hardest sustained work 580–700 Maximum heavy work for 30-minutes duration max. 1100 This excess heat production varies with the overall metabolic rate, and depends on the activity
  • 51.
    The body's heatloss The body can release heat to its environment by convection, radiation and evaporation – and to a lesser extent by conduction
  • 52.
    Heat Gain/Loss Gain Factors •Metabolism – Basal & Muscular • Conduction – Contact with warm bodies • Convection – Air is warmer than skin • Radiation – Sun/sky/Hot bodies Loss Factors • Conduction – Contact with cold Bodies • Convection – Air is cooler than skin • Evaporation – Moisture/sweat
  • 53.
    Thermal Balance Met –Evp ± Cnd ± Cnv ± Rad = 0 Gains Conduction Convection Radiation Shivering Basal Metabolism Muscular Activity Loss Conduction Convection Radiation Evaporation
  • 54.
    Effective temperature Effective temperatureis not an actual temperature in the sense that it cannot be measured by thermometer Effective temperature (ET) defines as that index which correlates combined effect of temperature, Humidity, Air velocity on the human body As an index of warm perception when a human body is exposed to various temperatures, humidity and air movements. The scale of effective temperature was determined by the temperature of still, saturated air, which was felt to be as warm as the given conditions Bioclimatic chart
  • 55.
    Mahoney tables It isa set of reference tables used in architecture, used as a guide to climate- appropriate design. They are named after architect Carl Mahoney, The tables use readily available climate data and simple calculations to give design guidelines, in a manner similar to a spreadsheet, There are six tables; four are used for entering climatic data, for comparison with the requirements for thermal comfort; and two for reading off appropriate design criteria.
  • 59.
    UNIT II -BUILDING RESPONSE TO SUN AND SKY
  • 60.
    How is thegeometrical relation between Earth and the Sun relevant to Building design? For many design purposes, the position of the Sun on a given date at a given time has to be known. This enables the building designer to predict which faces of the building would be sunlit, and hence receive direct radiation; to calculate the shadow cast around the building, the patches on sunlight on floors walls, etc. The knowledge of altitude and the azimuth of the Sun enable the designer to predict the intensity of solar radiation for a specified space and time coordinates. This influences building size, volumetric proportions, orientation, fenestration details, shading devices, ventilation, building materials, etc.
  • 61.
    Example of readingsun path in proposed model for particular time and date
  • 62.
    Sun-path diagrams There areseveral ways of showing the 3-D sky hemisphere on a 2-D circular diagram. The sun's path on a given date would then be plotted on this representation Equidistant chart Orthographic projection Stereographic projection The stereographic representation uses the theoretical nadir point as the centre of projection This is the most widely used method.
  • 63.
    In most practicalwork we consider our point of location on the earth's surface as the centre of the world: the horizon circle is assumed to be flat and the sky is a hemispherical vault.
  • 65.
    The sun's apparentposition on this 'sky vault' can be defined in terms of two angles: Altitude (ALT) - the vertical angle at the point of observation between the horizon plane and the line connecting the sun with the observer; in some texts this is referred to as 'elevation’ Azimuth (AZI) - the angle at the point of observation measured on a horizontal plane between the northerly direction and a point on the horizon circle, where it is intersected by the arc of a vertical circle, going through the zenith and the sun's position. thus direction of the sun measured in the horizontal plane from north in a clockwise direction (thus east = 90o, south = 180o and west = 270o, whilst north can be 0 or 360o); The zenith angle (ZEN) is measured between the sun's direction and the vertical and it is the supplementary angle of altitude: ZEN = 90o - ALT
  • 69.
  • 70.
  • 75.
    Using shading deviceto control the sunlit into the building
  • 76.
    SHADING DESIGN Solar radiationincident on a window consists of three components: beam- (direct-) radiation, diffuse-(sky-) and reflected radiation. External shading devices can eliminate the beam component (which is normally the largest) and reduce the diffuse component. The design of such shading devices employs two shadow angles: HSA and VSA. The horizontal shadow angle characterizes a vertical shading device and it is the difference between the solar azimuth and wall azimuth, for example, the wall is facing west (270°): δ = 270 – 239 = 31° The vertical shadow angle characterizes a horizontal shading device, e.g. a long horizontal projection from the wall, and it is measured on a vertical plane normal to the elevation considered
  • 78.
    Shading devices Internal deviceshave been considered under the heading of blinds and curtains. Here we will only consider external devices. These can be of three basic types: 1 vertical devices 2 horizontal devices 3 egg-crate devices Vertical devices consist of louver blades or projecting fins in a vertical position. The horizontal shadow angle measures their performance. Narrow blades with close spacing may give the same shadow angle as broader blades with wider spacing. This type of device is most effective when the sun is to one side of the elevation, such as an eastern or western elevation. A vertical device to be effective when the sun is opposite to the wall considered, would have to give almost complete cover of the whole window.
  • 79.
    (a) Vertical fins.(b) Fixed vertical fins on a government building in Honolulu, Hawaii.
  • 80.
    (a) Movable fins.(b) Movable fins are positioned according to the sun's position at the Ala Moana office building in Honolulu, Hawaii.
  • 81.
    (a) Overhang usinga series of vertical panels. (b) Application of horizontal overhangs at the IBM Tower in Kuala Lumpur, Malaysia.
  • 82.
    Horizontal devices maybe canopies, horizontal louvre blades .Their performance will be measured by a vertical shadow angle. These will be most effective when the sun is opposite to the building face considered and at a high angle, such as for north and south facing walls. To exclude a low angle sun, this type of device would have to cover the window completely, permitting a view downwards only.
  • 83.
    (a) Overhang withhorizontal louvers. (b) Horizontal louvers allow free air movement-office building in Honolulu, Hawaii.
  • 84.
    Egg-crate devices arecombinations of horizontal and vertical elements . The many types of grille-blocks and decorative screens may fall into this category. These can be effective for any orientation depending on detail dimensions.
  • 85.
    (a) Egg-crate shadingdevice. (b) Modified egg-crate to allow air movement and lighter structure at the Board of Water Supply in Honolulu, Hawaii.
  • 86.
    Integration of egg-crateshading devices into the envelope at (a) the Hawaii Medical Services Association building in Honolulu, Hawaii, and (b) the University of Arizona library in Tucson.
  • 87.
    Examples of shadingdevice models (a-f ) illustrate a variety of design responses to orientation, shading requirements, and view for a university building located at 44º N latitude.
  • 88.
    Overshadowing For what periodis a point A of a proposed building overshadowed by the neighboring existing building? Take the sun path chart and find the altitude angle for particular date and time and then use the data to find the overshadowing from the existing structure
  • 89.
    UNIT III -HEAT FLOW THROUGH BUILDING ENVELOPE- CONCEPTS
  • 90.
    Reduce Heat TransferEnergy Losses in Design https://www.youtube.com/watch?v=pTQUb-svZeY Net Zero Energy Buildings: Learn About Energy Loads https://www.youtube.com/watch?v=iwDV6jg_6j0 Passive Design Strategies for Heating, Cooling, & Ventilation https://www.youtube.com/watch?v=sSyM9_BRH3Y STELR Sustainable Housing - Heat loss and gain in houses https://www.youtube.com/watch?v=wLJRSP9utoI
  • 91.
    What is Heat? Heatis a form of energy. It makes a substance hotter. We cannot see heat. We can only feel it by the effect of hotness it produces. We can define heat as energy in transit. Heat vs. Temperature Heat is not the same as temperature. Heat is kinetic energy; temperature is a measurement of how intense that kinetic energy is. To illustrate this, think of two containers of water—one containing 10 gallons and one containing 1 gallon. The water in both containers is 50°F. Although they are the same temperature, the larger container holds 10 times more heat than the smaller one. The larger container has more thermal mass and therefore has more heat capacity.
  • 92.
    Specific heat ofa substance is the amount of heat energy necessary to cause unit temperature increase of a unit mass of the substance. It is measured in: J/kg degC Which we can sense because of temperature change, Heat is transfer by the virtue of temperature difference Latent heat of a substance is the amount of heat energy absorbed by unit mass of the substance at change of state (from solid to liquid or liquid to gaseous) without any change in temperature. It is measured in: J/kg Heat is required to cause the phase change
  • 93.
    Heat transfer definition:- Since we know that heat is thermal energy in transit. Here thermal energy moves from one place to another by virtue of the difference in temperature. Heat is the energy that is transferred from one body to another due to the temperature difference between the two bodies. Modes of Heat Transfer There are three modes of heat transfer. Heat transfer or transmission of heat from one place to another takes place by three different ways that are: 1. Conduction 2. Convection and 3. Radiation In solids, heat passes from one point to another through conduction. In Liquids and gases, heat transfer takes place by convection. Heat transfer takes place by the process of radiation when there are no particles of any kind which can move and transfer heat. So, in an empty space or vacuum heat is transferred by radiation. We shall now study heat transfer by conduction, convection, and radiation in detail
  • 94.
    What is conduction Ifwe heat one end of a metal bar by keeping it over a gas burner, we find that its other end also gets hot after some time. So heat is transferred from hot end of the bar to its cold end. In this case of heat transfer, there is no movement of molecules (or particles) of the material of metal bar as shown below in the figure Heat Transfer in metal bar by Conduction Definition of Conduction “Conduction is the transfer of heat from the hotter part of the material to its colder part without the actual movement of the particles. Heat passes through solids by conduction only. Thermal conduction plays an important role in our daily life. Some of the practical applications of thermal conduction include:- (a) Cooking utensils are provided with wooden handles. (b) Eskimos make double walled houses of the blocks of ice.
  • 95.
    Convection involves thebodily movement of the heated molecules. Convection is the process in which heat is transmitted from one place to other by the actual movement of heated particles. It is prominent in the case of liquids and gases. It also plays an important part in ventilation, electric lamps, and heating of buildings by hot water circulation. The figure below shows the transfer of heat by convection when water in a cooking pot is heated. Heat Transfer in water by convection From this figure, you can clearly see convection current. So, when water is heated in a cooking pot then its heated molecules become lighter and moves upwards. As heated molecules of water move upwards, the denser and colder molecules of water begin to move downwards. So warm water rises and colder molecules of water descend.
  • 96.
    Radiation Radiation is theprocess in which heat is transmitted one place to other directly without intervening medium. We get radiation of sun without an intervening medium. Heat radiations can pass through a vacuum. Heat radiations also form a part of electromagnetic spectrum. Points to remember about heat transfer through conduction, convection, and radiation 1. Heat transfer through conduction is a slow process. 2. Heat transfer through convection is a rapid process 3. Out of these three processes radiation is the fastest one. 4. Radiation is the fastest because in this case, the transfer of heat takes place at the speed of light. 5. Both conduction and convection need a material medium for the transfer for heat. 6. Again consider heating of water in a pot. Here In this process, all three modes of heat transfer can be seen. i. Pot is kept over the burner. In this case, heat is transferred by conduction ii. Water in the pot transfers heat by convection iii. If you place your hand at a short distance from the burner, you can feel its heat on your hand. This means burner is transferring heat to the hand by radiation.
  • 97.
    Thermal conductivity definition Thermalconductivity of a solid is a measure of the ability of the solid to conduct heat through it. The rate of heat conduction through a medium depends on following factors :- • geometry of the medium, • its thickness, and • the material of the medium. • It also depends on the temperature difference across the medium. Thermal conductivity (or 'k-value'). The unit of measurement would thus be W × m/m2 degC, but this can be simplified by cancellation: W/m degC, Its value varies between 0.03 W/m degC for insulating materials and up to 400 W/m degC for metals. The lower the thermal conductivity of a material, the better the thermal performance (i.e. the slower heat will move across a material). Resistivity is the reciprocal of this quantity (1/k) measured in units of: m degC/W Better insulators will have higher resistivity values.
  • 98.
    Conductance While conductivity andresistivity are properties of a material, Conductance is the heat flow rate through a unit area of the body (i.e. the density of heat flow rate). The unit of measurement is W/m2 degC Resistance is measured in m2 degC/W Resistance of a body is the product of its thickness and the resistivity of its material where b is the thickness in metres (dimension: m × m degC/W = m2 degC/W). Relevance of density
  • 99.
    Multilayer body If abody consists of several layers of different materials, its total resistance will be the sum of the resistances of the individual layers. The conductance of such a multilayer body (Cb) can be found by finding its total resistance (Rb) and taking its reciprocal: Note that the conductance's are not additive, only the resistances
  • 100.
    R-Values The R-value isa measure of resistance to heat flow through a given thickness of material. So the higher the R-value, the more thermal resistance the material has and therefore the better its insulating properties. The R-value is calculated by using the formula R = B/K Where: B is the thickness of the material in meters and K is the thermal conductivity in W/mK. For example the thermal resistance of 220mm of solid brick wall (with thermal conductivity K =1.2W/mK) is 0.18 m2K/W. If you were to insulate a solid brick wall, you simply find the R-value of the insulation and then add the two together. If you insulated this with 80mm thick foil-faced polyisocyanurate (with thermal conductivity K=0.022W/mK and R-value of 0.08 / 0.022 = 3.64 m2K/W), you would have a total R-value for the insulated wall of 0.18 + 3.64 = 3.82 m2K/W. Therefore it would improve the thermal resistance by more than 21 times!
  • 101.
    Surface conductance Where athin layer of air film separates the body from the surrounding air. A measure of this is the surface or film-resistance, denoted thus: 1/f (m2 degC/W) f being the surface or film conductance (W/m2 degC). Surface conductance includes the convective and the radiant components of the heat exchange at surfaces. Conductance has been defined in these terms. If the heat flow from air on one side, through the body, to air on the other side is considered, both surface resistances must be taken into account. The overall, air-to-air resistance (R ) is the sum of the body's resistance and the surface resistances: where 1/fi = internal surface resistance Rb = resistance of the body 1/fo= external surface resistance common values surface resistance 0.12 m²/W and 0.06 m²/W
  • 102.
    Transmittance The reciprocal ofthis air-to-air resistance is the air-to-air transmittance, or U-value: Its unit of measurement is the same as for conductance – W/m2 degC The U value of a building element is the inverse of the total thermal resistance of that element. The U-value is a measure of how much heat is lost through a given thickness of a particular material, but includes the three major ways in which heat loss occurs – conduction, convection and radiation. U = 1/ [1/fi + R1 + R2 +… + 1/fo ] In practice this is a complicated calculation, so it is best to use U-Value calculation software. This is the quantity most often used in building heat loss and heat gain problems, as its use greatly simplifies the calculations. https://www.youtube.com/watch?v=fXjzqbRdR8g
  • 103.
    What is aU-value? The U-value assesses the rate of heat loss / gain through all the thicknesses of the combined elements that make up a building component such as a wall, floor or roof. It is measured in units of W/m2.K (Watts per metre squared Kelvin). The lower the U-value, the better insulated the building element is. So a wall with a low U-value should prevent heat loss / gain better than a wall with a high U-value. Why do we use U-Values? The use of U-values allows for the comparison of different build-ups for applications or materials, so the insulating properties of a solid wall could be compared to that of a cavity wall It is the most accurate way of measuring the insulating properties of the application or material For example, when building in Dubai, a roof in a villa has a recommended best starting point of a U-value of 0.30W/m2.K. Without knowing the U-value of a wall or a floor or roof, you won’t know how energy efficient the whole building will be. Before you start any building work you should calculate the U-value as part of the design process,
  • 104.
    Transmittance of compositewalls If the transmittance (U) value of the intended wall construction cannot be found in appendix 5.4, it can' be calculated as shown in the following example: assume a wall of a westerly, normal exposure, consisting of the following: 114 mm engineering brickwork k = 1.150 W/m degC 50 mm cavity Rc = 0.176 m2 degC/W 100 mm dense concrete blocks k = 1.440 W/m degC 25 mm wood wool slab k = 0.093 W/m degC 12 mm plastering k = 0.461 W/m degC surface resistance 1/ f0 = 0.076 m2 degC/W 1/ fi = 0.123 m2 degC/W
  • 105.
    Resistances of theindividual layers proceeding from the outside inwards will now be calculated (in m2 degC/W): https://www.youtube.com/watch?v=pveahgMX3aQ
  • 106.
    Heat exchange processes Justlike a human body. The building can similarly be considered as a defined unit and its heat exchange processes with the out-door environment can be examined
  • 107.
    a. Conduction ofheat may occur through the walls either inwards or outwards, the rate of which will be denoted as Qc (convective and radiant components in the transfer of the same heat at the surfaces are included in the term: transmittance) b. The effects of solar radiation on opaque surfaces can be included in the above by using the sol- air temperature concept, but through transparent surfaces (windows) the solar heat gain must be considered separately. It may be denoted as Qs
  • 108.
    c . Heatexchange in either direction may take place with the movement of air, i.e. ventilation, and the rate of this will be denoted as Qv d . An internal heat gain may result from the heat output of human bodies, lamps, motors and appliances. This may be denoted as Qi e . There may be a deliberate introduction or removal of heat (heating or cooling), using some form of outside energy supply. The heat flow rate of such mechanical controls may be denoted as Qm. f . Finally, if evaporation takes place on the surface of the building (e.g. a roof pool) or within the building (human sweat or water in a fountain) and the vapours are removed, this will produce a cooling effect, the rate of which will be denoted as Qe The thermal balance, i.e. the existing thermal condition is maintained if: Qi + Qs ± Qc ± Qv ± Qm – Qe = 0 If the sum of this equation is less than zero (negative), the building will be cooling and if it is more than zero, the temperature in the building will increase.
  • 109.
    Periodic heat flow Innature the variation of climatic conditions produces a non-steady state. Diurnal variations produce an approximately repetitive 24-hour cycle of increasing and decreasing temperatures. The effect of this on a building is that in the hot period heat flows from the environment into the building, where some of it is stored, and at night during the cool period the heat flow is reversed: from the building to the environment. As the cycle is repetitive, it can be described as periodic heat flow. Time lag The time delay due to the thermal mass is known as a time lag. The thicker and more resistive the material, the longer it will take for heat waves to pass through. The reduction in cyclical temperature on the inside surface compared to the outside surface is knows and the decrement.
  • 110.
    In the morning,as the out-door temperature increases, heat starts entering the outer surface of the wall. Each particle in the wall will absorb a certain amount of heat for every degree of rise in temperature, depending on the specific heat of the wall material .Heat to the next particle will only be transmitted after the temperature of the first particle has increased. Thus the corresponding increase of the internal surface temperature will be delayed, as shown by the broken line. Time-lag and decrement factor
  • 111.
    The out-door temperaturewill have reached its peak and started decreasing, before the inner surface temperature has reached the same level. From this moment the heat stored in the wall will be dissipated partly to the outside and only partly to the inside. As the out-door air cools, an increasing proportion of this stored heat flows outwards, and when the wall temperature falls below the indoor temperature the direction of the heat flow is completely reversed. The two quantities characterizing this periodic change are the time-lag (or phase shift, ϕ) and the decrement factor (or amplitude attenuation, denoted μ). The latter is the ratio of the maximum outer and inner surface temperature amplitudes taken from the daily mean.
  • 113.
    UNIT 4 -AIR MOVEMENT DUE TO NATURAL AND BUILT FORMS Wind sock
  • 114.
    Wind has beenan essential part of human life and hence Architecture design too. It serves the purpose of proper ventilation in the built spaces. However we need to understand its basics before applying to the Architecture. Types of Winds: • Prevailing winds • Seasonal winds • Local winds All three types of wind mentioned, are equally important for design. However, for calculating wind loads, prevailing and seasonal winds are considered together, while local winds are studied separately.
  • 115.
    The effects oftopography on wind patterns Chennai Receives rain from South-west monsoon wind ( June- September) and North-East monsoon wind ( November- December) On the other hand it receives less rainfall than Mangalore because 1) Mangalore is located on the windward side of the south-west monsoon winds.. By the time, the South-west Monsoon falls on the leeward side, very little moisture is left in the winds and Chennai is not much benefitted. Windward side means on the side of the winds and leeward side means the other side . For example the South-East monsoons cause heavy rain on the western coast leaving the leeward eastern cost comparatively dry.
  • 117.
    Natural ventilation isthe movement of sufficient volumes of fresh air through an building to create a comfortable indoor environment Functions of ventilation It has three distinctly different functions: 1 supply of fresh air 2 convective cooling 3 physiological cooling The first two functions will be considered as 'ventilation' but the last function is considered separately as 'air movement'. Supply of fresh air The requirements of fresh air supply are governed by the type of occupancy, number and activity of the occupants and by the nature of any processes carried out in the space For natural ventilation usually certain limited solutions are prescribed and not the expected performance. The provision of 'permanent ventilators', i.e. of openings which cannot be closed, may be compulsory. These may be grilles or 'air bricks' built into a wall, or may be incorporated with windows. The size of open able windows may be stipulated in relation to the floor area or the volume of the room.
  • 118.
    window-to-wall ratio (WWR) Windowarea will have impacts on the building's heating, cooling, and lighting, as well as relating it to the natural environment in terms of access to daylight, ventilation and views. The window-to-wall ratio is the measure of the percentage area determined by dividing the building's total glazed area by its exterior envelope wall area. The depth of a single aspect space relative to the ceiling height directly influences the quality of natural ventilation and daylight access Sum of total window area / sum of external wall
  • 119.
    Convective Cooling The exchangeof indoor air with fresh out-door air can provide cooling, if the latter is at a lower temperature than the indoor air. The moving air acts as a heat carrying medium. A situation where this convective cooling is a practical proposition, can arise in moderate or cold climates, when the internal heat gain is causing a temperature increase, but also in warm climates, when the internal heat gain or solar heat gain through windows would raise the indoor temperature even higher than the outdoor air temperature. Provision for ventilation: stack effect Ventilation, i.e. both the supply of fresh air and convective cooling, involves the movement of air at a relatively slow rate. The stack effect relies on thermal forces, set up by density difference (caused by temperature differences) between the indoor and out-door air. It can occur through an open window: the warmer and lighter indoor air will flow out at the top and the cooler, denser outdoor air will flow in at the bottom.
  • 120.
  • 121.
    Physiological cooling The movementof air past the skin surface accelerates heat dissipation in two ways: 1 increasing convective heat loss 2 accelerating evaporation Cooling by air movement is most needed where there are no other forms of heat dissipation available, when the air is as warm as the skin and the surrounding surfaces are also at a similar temperature. Air movement through buildings The following factors can be isolated which affect the indoor air flow (both patterns and velocities): a orientation b external features c cross-ventilation d position of openings e size of openings f controls of openings
  • 122.
    Orientation The greatest pressureon the windward side of a building is generated when the elevation is at right angles to the wind direction, so it seems to that the greatest indoor air velocity will be achieved in this case. A wind incidence of 45° would reduce the pressure by 50%. Thus the designer must consider the prevailing wind direction from wind frequency charts of wind roses and must orientate his building in such a way that the largest openings are facing the wind direction. It has, however, been found by Givoni that a wind incidence at 45° would increase the average indoor air velocity and would provide a better distribution of indoor air movement. Figure shows his findings: the relative velocities (with the free air speed taken as 100%) measured at a height of 1.2 m above floor level.
  • 123.
    Figure a showsthe outline of air flow at 90° and Figure b at 45°, to a building square in plan. In the second case a greater velocity is created along the windward faces, therefore the wind shadow will be much broader, the negative pressure (the suction effect) will be increased and an increased indoor air flow will result.
  • 124.
    External features The windvelocity gradient is made steeper by an uneven surface, such as scattered buildings, walls fences, trees or scrub (Figure) – but even with a moderate velocity gradient, such as over smooth and open ground, a low building can never obtain air velocities similar to a taller one. For this reason (or to avoid specific obstructions) the building is often elevated on stilts.
  • 125.
    Cross-ventilation The absence ofan outlet opening or with a full partition there can be no effective air movement through a building With a windward opening and no outlet, a pressure similar to that in front of the building will be built up indoors, which can make conditions even worse, increasing discomfort Lack of cross-ventilation
  • 126.
  • 127.
    Effective cross ventilationis achieved when the inlet and outlet have approximately the same area, allowing air to be drawn through the building using opposite air pressures on each side of the building The floor plan demonstrates how total eight apartments achieve natural cross ventilation
  • 128.
    Position of openings Inbuilding, the air movement must be ensured through the space mostly used by the occupants: through the 'living zone‘ As Figure shows, if the opening at the inlet side is at a high level, the air flow will take place near the ceiling and not in the living zone. Effect of opening positions Pressure build-up at inlet The larger solid surface creates a larger pressure build-up and this pushes the air stream in an opposite direction, both in plan and in section. As a result of this, in a two storey building the air flow on the ground floor may be satisfactory but on the upper floor it may be directed against the ceiling. One possible remedy is an increased roof parapet wall. Air flow in a two storey building
  • 130.
    Size of openings Thelargest air velocity will be obtained through a small inlet opening with a large outlet. This is partly due to the total force acting on a small area, forcing air through the opening at a high pressure, and partly due to the 'venturi effect': in the broadening funnel (the imaginary funnel connecting the small inlet to the large outlet) Such an arrangement may be useful if the air stream is to be directed (as it were focused) at a given part of the room. When the inlet opening is large, the air velocity through it will be less, but the total rate of air flow (volume of air passing in unit time) will be higher. When the wind direction is not constant, or when air flow through the whole space is required, a large inlet opening will be preferable.
  • 131.
    Controls of openings Sashes,canopies, louvres and other elements controlling the openings, also influence the indoor air flow pattern. Sashes can divert the air flow upwards. Only reversible pivot sash will channel it downwards into the living zone Effect of sashes Canopies can eliminate the effect of pressure build-up above the window, thus the pressure below the window will direct the air flow upwards. A gap left between the building face and the canopy would ensure a downward pressure, thus a flow directed into the living zone Effect of canopies
  • 132.
    Louvres and shadingdevices may also present a problem. The position of blades in a slightly upward position would still channel the flow into the living zone (up to 20° upwards from the horizontal) Effect of louvres
  • 133.
    Air flow throughbuilding concepts
  • 134.
    Air flow aroundbuildings When the architect's task is the design of more than one building, a cluster of buildings or a whole settlement, especially in a warm climate, in deciding the layout, provision for air movement must be one of the most important considerations. After a careful analysis of site climatic conditions a design hypothesis may be produced on the basis of general information derived from experimental findings, An open-jet wind simulator
  • 135.
    If a lowbuilding is located in the wind shadow of a tall block , the increase in height of the obstructing block will increase the air flow through the low building in a direction opposite to that of the wind. The lower (return-) wing of a large vortex would pass through the building Reverse flow behind a tall block The effect of tall blocks in mixed developments Figure shows how the air stream separates on the face of a tall block, part of it moving up and over the roof part of it down. An increased velocity is found at ground level at the sides of the tall block. This could serve a useful purpose in hot climates, although if the tall block is not fully closed but is permeable to wind, these effects may be reduced. Air stream separation at the face of buildings
  • 136.
    Single storey buildingsare placed in rows in a grid-iron pattern, stagnant air zones leeward from the first row will overlap the second row A spacing of six times the building height is necessary to ensure adequate air movement for the second row. Air flow: grid-iron lay-out Air flow: checkerboard lay-out If the buildings are staggered in a checker-board pattern, the flow field is much more uniform, stagnant air zones are almost eliminated
  • 137.
    Massing of buildingblocks influence wind pattern
  • 138.
    Orient Long axis of the buildingto catch wind flow Choose stepped of pyramid shaped form to promote wind draft Align & configure paths/road ways to promote wind flow Use cut out to prevent air dam effect Choice of Built form to promote ventilation
  • 139.
    Wind Funnels Tree wallsto increase wind flow
  • 140.
    Plants Influence of treecanopy Shrubs create deflections Ground cover for site cooling Shading
  • 141.
    Water Evaporative Cooling Spray wall RoofPonds insulation Prevents day time heat gain Promotes night time heat loss
  • 142.
    Shelter Belt Impacton wind 9.0m/s
  • 143.
    UNIT V -CLIMATE AND DESIGN OF BUILDINGS
  • 144.
    Climate types 1 Warm-humidequatorial climate – subgroup: warm-humid island climate 2 Hot-dry desert, or semi-desert climate - subgroup: hot-dry maritime desert climate 3 Composite or monsoon climate (combination of 1 and 2) – subgroup: tropical upland climate The main tools for controlling the environment in buildings are Shape of the building (massing) Fenestration (size, positioning and orientation of windows) Solar control (shading and surface finishes) Building fabric (insulation and thermal storage) Ventilation Climatic Design
  • 145.
    Warm - humidclimate The warm and humid zone covers the coastal parts of the country, such as Mumbai, Chennai and Kolkata. The main design criteria in the warm and humid region are to reduce heat gain by providing shading, and promote heat loss by maximizing cross ventilation. Dissipation of humidity is also essential to reduce discomfort. Design Strategies • Appropriate orientation and shape of building • Roof insulation and wall insulation • Reflective surface of roof • Balconies and verandahs • Walls, glass surface protected by overhangs, fins, and trees • Pale colors and glazed china mosaic tiles • Windows and exhausts • Ventilated roof construction, courtyards, wind towers, and arrangement of openings • Dehumidifiers and desiccant cooling
  • 146.
    Warm humid climates 1.Inwarm-humid climates, the nights are usually warm and there is very little diurnal variation (often less than 5 deg C). 2. Evaporative cooling will be neither effective nor desirable as it would increase the humidity. 3. In humid climates, moisture-laden air that entering an enclosure can result in condensation within the enclosure, possibly leading to long-term moisture problems. 4. In a warm - humid climate, moisture will flow from outside to inside most of the year. • The traditional wisdom is to build lightweight houses, elevated on stilts and fully cross- ventilated • Solar radiation on the roof, on east and west walls can substantially elevate surface temperatures, thus causing an inward heat flow. These elements should have a very good reflective and/ or resistive insulation.
  • 147.
    Design strategies • Windowsopposite each other to allow cross-ventilation, Choose window type for good airflow eg, louvres rather than awning/hopper windows • Long, narrow floor-plan in sleeping zone, to maximize through ventilation in bedrooms, Elevate house to catch the breezes • Open-plan living areas with high ceilings, to maximize air movement and reduce radiant heat to occupants. • The whole building should be lightweight to allow rapid cooling down at night. • East and west walls should have minimum or no windows in order to exclude the low angle east and west sun. • They should be reflective and/or well insulated. • North and south walls should be as open as possible, to allow for cross ventilation. • This requires that the plan arrangement should avoid double-banked rooms. • Avoid obstruction of the wind. • The openings require protection from the sun and driving rain but also from mosquitoes and other insects which abound in these climates.
  • 148.
    The conventional lightweighthouse for warm-humid climates elevated cross-ventilated, good roof insulation
  • 149.
    • This indicatesthat the most important issue in ventilation and window placement is that the path of moving air be at the level of the occupants. • Window openings should be roughly the same size on both windward and leeward sides, and should be placed across from one another at the level of the occupant.
  • 150.
    Material Properties In general,lighter colors and smoother surfaces lead to lower surface temperatures. Low thermal mass construction is typical in regions with low diurnal range.
  • 151.
    “VIKAS”-APARTMENT” Climatic Condition: Warmand Humid Architect : Satprem Maini.
  • 153.
    • The buildingsare oriented longitudinally along the east-west axis with openings along north-south for cross ventilation. • Pier walls oriented at 45 degrees to the predominant wind direction further aid cross ventilation. • Basement floor (in some parts) to supply soil for building: the aim being that each building must be self sufficient in its soil need for construction. This basement floor (only 1.2 m underground) has a lot of daylight and is cooler in summer. • Fenestrations with overhangs have been adequately designed to get enough daylight and cut off direct gains. • Terrace gardens and creepers on the west facades to reduce cooling loads. • Solar chimney to create a natural draft, which refreshes the building especially at night. The sun heats a heavy black slab laid on the chimney top: this creates a natural draft due to the temperature difference in the chimney.
  • 154.
  • 155.
  • 156.
    Hot & Drydesert climate • The hot and dry zone lies in the western and the central part of India; • Jaisalmer, Jodhpur and Sholapur are some of the towns that experience this type of climate. • In such a climate, it is imperative to control solar radiation and movement of hot winds. • The design criteria should therefore aim at resisting heat gain by providing shading, reducing exposed area, controlling and scheduling ventilation, and increasing thermal capacity. • The presence of water bodies is desirable as they can help increase the humidity, thereby leading to lower air temperatures. • The ground and surrounding objects emit a lot of heat in the afternoons and evenings. • As far as possible, this heat should be avoided by appropriate design features. Design Strategies • Appropriate orientation and shape of building • Insulation of building envelope • Massive structure • Air locks, lobbies, balconies, and verandahs • External surfaces protected by overhangs, fins, and trees • Pale colors and glazed china mosaic tiles • Windows and exhausts • Courtyards, wind towers, and arrangement of openings • Trees, ponds, and evaporative cooling
  • 157.
    1. Orientation andshape of building- Resist heat gain, Decrease exposed surface area 2. Insulation of building envelope-Increase thermal resistance 3. Massive structure - Increase thermal capacity (Time lag) 4. Air locks/ lobbies/balconies/verandahs- Increase buffer spaces 5. Weather stripping and scheduling air changes Decrease air exchange rate (Ventilation during daytime) 6. External surfaces protected by overhangs Fins and trees- Increase shading 7. Pale color, glazed china mosaic tiles etc- Increase surface reflectivity 8. Provide windows/exhausts - Ventilation of appliances, Promote heat loss 9. Courtyards/wind towers/arrangement of openings - Increase air exchange rate Microclimate The term of microclimate includes wind, radiation, temperature, and humidity experienced around a building. The microclimate of a site is affected by the following factors: Landform, Vegetation, Water bodies, Street width and orientation, Open spaces and built form An understanding of these factors greatly helps in the preparation of the site layout plan. For example, in a hot and dry climate, the building needs to be located close to a water body. The water body helps in increasing the humidity and lowering the temperature by evaporative cooling
  • 160.
    • Evaporative coolingor a ceiling fan should be used if required. • Use high mass solutions with passive solar winter heating where winters are cool or cold and diurnal ranges are significant. • Use low mass elevated solutions where winters are mild and diurnal ranges are lower. • Consider high mass construction for rooms with passive winter heating and low mass for other rooms. • Shade all windows in summer and east and west windows year round. • Well sealed windows and doors with maximum opening area allow maximum exposure to cooling breezes and exclude hot, dry and dusty winds.
  • 163.
    Composite or Monsoonclimate The composite zone covers the central part of India, such as New Delhi, Kanpur and Allahabad. The design criteria are more or less the same as for hot and dry climate except that maximizing cross ventilation is desirable in the monsoon period. Design Strategies • Appropriate orientation and shape of building • Use of trees as wind barriers • Roof insulation and wall insulation • Thicker walls • Air locks and balconies • Weather stripping • Walls, glass surfaces protected by overhangs, fins, and trees • Pale colors and glazed china mosaic tiles & Exhausts • Courtyards, wind towers, and arrangement of openings • Trees and ponds for evaporative cooling • Dehumidifiers and desiccant cooling
  • 164.
    RANG MAHAL, RedFort, Delhi, Composite  The Rang Mahal at the Red Fort royal palace has spaces suitable for every season. Rooms have thick walls and small openings for summer days and winter nights. Verandahs are for evenings and mornings. There is a screened balcony that will cut out the sun but enjoy the monsoon breeze during the humid season.  Additionally, there is water stream flowing through the middle and the screens and awnings that can be raised or lowered to modulate the light, provide shade, or insulate against the heat or cold.
  • 165.
    EXTERIOR RANGMAHAL REDFORT INTERIORSRANG MAHAL REDFORT PLAN RANG MAHAL REDFORT
  • 166.
    SOLAR ENERGY CENTRE,Gual Pahari, Gurgaon  Demonstration of passive and active solar systems and use of innovative fenestration design to achieve thermal and visual comfort in a institutional- cum-residential complex. PROJECT DETAILS -Site 200 acres of land in Gurgaon -Climate Composite -Building types Institutional/residential -Architect Vinod Gupta -Building/project name Solar Energy -Centre -Year of start/completion 1984–1990 -Client/owner Solar Energy Centre, -Government of India -Covered area 6943 m² -Cost of the project Rs 15.5 million (excluding cost of renewable energy technologies)
  • 167.
    DESIGN FEATURES Technical andadministrative block  Courtyard planning with single-loaded corridors for ventilation and landscaped courtyard to modify microclimate  Hollow concrete block walls to reduce heat gains  Properly designed windows and shading devices  Provision for rooftop evaporative cooling  Insulation for air-conditioned blocks WORKSHOP BUILDING  Building section developed for ventilation and day lighting  Heat gain by the roof minimized by insulation and reflective roof finishes
  • 168.
    Built on thesouth slope of an undulating site, and partially earth-bermed from three sides. Terrace garden is watered during the summer months. The evaporation of water modifies the microclimate and also absorbs a major part of the cooling load in summer. A special section of the roof provided with manually-driven ventilators to ensure cross-ventilation of each guest suite. External surfaces of the building finished with white reflective paint Windows protected by arched sunshades (overhangs and sidewalls) of predetermined dimensions to avoid direct sun during summers. Solar water heaters integrated with the architectural design have been provided for each bathroom. A sunny terrace provided near the kitchen to facilitate solar cooking.
  • 169.
    SOLAR ENERGY CENTRE,GUAL PAHARI, GURGAON
  • 175.