46 Westgate

BIMcampus
Team 3

Josh Dobson
James Shackleton
Lim Woanteng
Site Information
The Union Rooms

Abandoned Offices

Adjacent Plots
Precedents
Pointcloud Data
CDM Co-ordination
Design Development
1
A(00)GAS001

2

-

A(00)GAS001

---

Level 4

Level 4

16000

16000
Level 3A
14300

Level 3

Level 3

12000
Level 2A

12000
Level 2A

10700

10700

Level 2

Level 2

8000

Level 1A8000
7140

Level 1

Level 1

4000

4000

Level 0

Level 0

0

0

ection 1

2

: 100

Rev.

F

E

2

D

A(00)GAS002

-

C

A(00)GAS002

1 : 100

Date

1

---

Amendment

Section 3

B A

Level 5
17500

Level 4
16000

Level 3

12000

12000

Level 2
8000

Status

Project Status

Project

Project Name

Drawing

Section 001

Project No.

Level 1
4000

Dwg.
Project Number No. A(00)GAS

Scale at A1

1 : 100

Drawn

Author

this drawing is copyright - check all dimensions on site - inform architect / so

Level 0
0

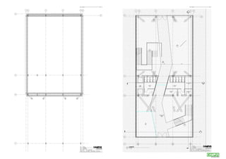
Basement
-4000
1

2

3

4

1

5

6

A(00)GAS001

36500

B

UP

4000

15
Gallery

275 m²
2963.4 SF

4800

5000

18250

5000

UP
10
Plant access shaft
7 m²
73.1 SF

7
lift shaft
11 m²
2250SF
113.4

8
Mens WC

9
Womens WC

11 m²
122.9 SF

2

16 m²
174.7 SF

12
Disabled WC
6 m²
62.2 SF

Theatre14 Gallery
&

2
A(00)GAS002

A(00)GAS001

11
Cleaners Store
3 m²
36.2 SF
Rev.

1

2

3

4

Amendment

5

Rev.

Date

6

1

2

3

4

Amendment

5

6

1

Date

A(00)GAS001

A

B

A

B

UP

15
Gallery

275 m²
2963.4 SF

5000

C

4800

5000

C

2

10
Plant access shaft

A(00)GAS002

7 m²
73.1 SF

7
lift shaft
11 m²
2250SF
113.4

8
Mens WC

9
Womens WC

11 m²
122.9 SF

16 m²
174.7 SF

12
Disabled WC

11
Cleaners Store
3 m²
36.2 SF

6 m²
62.2 SF

D

D

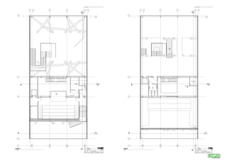
Theatre14 Gallery
&
Entrance
156 m²
1676.0 SF

16
Cafe

UP

36 m²
388.1 SF

---

E

F

F
Status

46 Westgate

Drawing

Basement Plan

Project No.

003

Scale at A1

1 : 50

1

Dwg. No.
Drawn

A(00)GAP000

Author

Checked

Rev.

Checker

Date

Level 0
1 : 50

Status

Planning

Project

46 Westgate

Drawing

Level 0 Plan

Project No.

Planning

Project

003

Scale at A1

01/10/14

this drawing is copyright - check all dimensions on site - inform architect / so of any discrepancies - work to figured dimensions only - do not scale

1 : 50

Dwg. No.
Drawn

A(00)GAP001

Author

Checked

Rev.

Checker

Date

01/06/14

this drawing is copyright - check all dimensions on site - inform architect / so of any discrepancies - work to figured dimensions only - do not scale
Rev.

1

2

3

Amendment

5

6

4

Date

Rev.

1

2

3

Amendment

5

6

4

Date

1

1

A(00)GAS001

A(00)GAS001

A

A

B

B

24
Gallery

UP

267 m²
2876.7 SF

UP

C

C
UP

4600

23
Plant Access Shaft
3600

4 m²
47.6 SF

18
Dressing Room
10 m²
108.4 SF

2

2

A(00)GAS002

A(00)GAS002

21
WC

8 m²
86.3 SF

Theatre Store / Back
22
Stage
52 m²
555.9 SF

17
Theatre
75 m²
811.7 SF

D

D

DN

2215

-

-

---

---

E

E

F

1

Level 1
1 : 50

F
Status

Planning

Project

46 Westgate

Drawing

Level 1 Plan

Project No.

003

Scale at A1

1 : 50

Dwg. No.
Drawn

A(00)GAP002

Author

Checked

Rev.

Checker

Date

01/06/14

this drawing is copyright - check all dimensions on site - inform architect / so of any discrepancies - work to figured dimensions only - do not scale

Level 2
1 : 50

Status

Planning

Project

46 Westgate

Drawing

Level 2 Plan

Project No.

1

003

Scale at A1

1 : 50

Dwg. No.
Drawn

A(00)GAP003

Author

Checked

Rev.

Checker

Date

01/06/14

this drawing is copyright - check all dimensions on site - inform architect / so of any discrepancies - work to figured dimensions only - do not scale
Rev.

1

2

3

4

Amendment

5

Date

Rev.

1

6

2

3

4

Amendment

5

Date

6

1
A(00)GAS001

A

A

B

B

C

C

2
A(00)GAS002

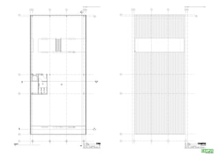
26
WC

8 m²
86.3 SF

27
Gallery

476 m²
5121.8 SF

D

D

---

E

E

F

F

1

Level 3
1 : 50

Status

Planning

Status

Planning

Project

46 Westgate

Project

46 Westgate

Drawing

Level 3 Plan

Drawing

Roof Plan

Project No.

003

Project No.

003

Scale at A1

1 : 50

Dwg. No.
Drawn

A(00)GAP004

Author

Checked

Rev.

Checker

Date

01/06/14

this drawing is copyright - check all dimensions on site - inform architect / so of any discrepancies - work to figured dimensions only - do not scale

Scale at A1

1 : 50

Dwg. No.
Drawn

A(00)GAP005

Author

Checked

Rev.

Checker

Date

01/10/14

this drawing is copyright - check all dimensions on site - inform architect / so of any discrepancies - work to figured dimensions only - do not scale
Structural Design
CK21 Meeting
Mega-nodes
Construction Process

foundations
basement retaining walls
steel columns 305 x 305 x 97UC
steel I-beams 305 x 165 x 40UB
primary mega-structure
secondary mega-structure
Next Week at Campus...
MEP Modelling
Clash Removal
Ck21 presentation team 3
Ck21 presentation team 3

Ck21 presentation team 3