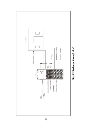
Rain water harvesting is an important way to conserve water resources for the future. As populations and water usage increase, groundwater supplies are being depleted through overuse. If current practices continue, future generations will face severe water shortages. However, harvesting rainwater through techniques like recharging groundwater aquifers can help replenish supplies and ensure adequate water availability long-term. Proper conservation of rainwater is vital, as it is the ultimate source of all water and its collection prevents flooding while lessening pressure on other sources. Implementing rainwater harvesting systems can benefit both residential and commercial areas.