Accommodation Services Division
Project Services
Office Space Planning Standards
February 2018
Revisions:
February 2018 - Pg 58 - Added power limitations to workstation module
Table of Contents
Section 1:
Introduction
1.1 Background .  .  .  .  .  .  .  .  .  .  .  .  .  .  .  .  .  .  .  .  .  .  . 5
1.2 Application.  .  .  .  .  .  .  .  .  .  .  .  .  .  .  .  .  .  .  .  .  .  .  . 6
Section 2:
Funding Accountabilities
2.1 Project Delivery Cost Controls.  .  .  .  . 8
Section 3:
Standards
3.1 Space Types .  .  .  .  .  .  .  .  .  .  .  .  .  .  .  .  .  .  .  .  . 11
3.2 Staff Spaces .  .  .  .  .  .  .  .  .  .  .  .  .  .  .  .  .  .  .  .  . 13
3.2.1 Screened Area Workstations .  .  .  .  .  .  .  .  .  . 14
3.2.2 Open Area Workstations.  .  .  .  .  .  .  .  .  .  .  .  . 16
3.2.3 Private Offices .  .  .  .  .  .  .  .  .  .  .  .  .  .  .  .  .  .  .  .  . 17
3.3 Support Spaces. .  .  .  .  .  .  .  .  .  .  .  .  .  .  .  .  . 22
3.3.1 Meeting Rooms.  .  .  .  .  .  .  .  .  .  .  .  .  .  .  .  .  .  .  .  . 23
3.3.2 Interview Rooms.  .  .  .  .  .  .  .  .  .  .  .  .  .  .  .  .  .  .  . 29
3.3.3 Break-out Rooms.  .  .  .  .  .  .  .  .  .  .  .  .  .  .  .  .  .  . 30
3.3.4 Collaborative Space .  .  .  .  .  .  .  .  .  .  .  .  .  .  .  .  . 32
3.3.5 File and/or Storage Areas . . . . . . . . . . . . . 33
3.3.6 Reception Areas .  .  .  .  .  .  .  .  .  .  .  .  .  .  .  .  .  .  .  . 34
3.3.7 Waiting Areas.  .  .  .  .  .  .  .  .  .  .  .  .  .  .  .  .  .  .  .  .  . 36
3.3.8 Copy Rooms .  .  .  .  .  .  .  .  .  .  .  .  .  .  .  .  .  .  .  .  .  .  . 37
3.3.9 Mail Area .  .  .  .  .  .  .  .  .  .  .  .  .  .  .  .  .  .  .  .  .  .  .  .  . 39
3.3.10 Coffee Stations .  .  .  .  .  .  .  .  .  .  .  .  .  .  .  .  .  .  .  .  . 40
3.3.11 Staff Rooms. .  .  .  .  .  .  .  .  .  .  .  .  .  .  .  .  .  .  .  .  .  .  . 42
3.3.12 Printer Stations .  .  .  .  .  .  .  .  .  .  .  .  .  .  .  .  .  .  .  . 45
3.3.13 Local Area Network Rooms. .  .  .  .  .  .  .  .  .  . 46
3.3.14 Recycling Stations .  .  .  .  .  .  .  .  .  .  .  .  .  .  .  .  .  . 47
3.3.15 Recycling Storage Rooms.  .  .  .  .  .  .  .  .  .  .  .  . 48
3.3.16 Washrooms.  .  .  .  .  .  .  .  .  .  .  .  .  .  .  .  .  .  .  .  .  .  .  . 49
3.3.17 Janitor’s Closet .  .  .  .  .  .  .  .  .  .  .  .  .  .  .  .  .  .  .  .  . 51
3.3.18 Vestibule .  .  .  .  .  .  .  .  .  .  .  .  .  .  .  .  .  .  .  .  .  .  .  .  .  . 52
3.3.19 Special Purpose Spaces .  .  .  .  .  .  .  .  .  .  .  .  .  . 53
3.4 Furniture.  .  .  .  .  .  .  .  .  .  .  .  .  .  .  .  .  .  .  .  .  .  .  . 54
3.4.1 Desks and Workstations .  .  .  .  .  .  .  .  .  .  .  .  . 55
3.2.2 Height Adjustable Work Surfaces .  .  .  .  .  . 57
3.4.3 Typical Electrical .  .  .  .  .  .  .  .  .  .  .  .  .  .  .  .  .  .  . 58
3.4.4 Screens .  .  .  .  .  .  .  .  .  .  .  .  .  .  .  .  .  .  .  .  .  .  .  .  .  .  . 59
Section 4:
Sample Plans and Renderings
Section 5:
Finishes
5.1 Demountable Walls.  .  .  .  .  .  .  .  .  .  .  .  .  . 65
Section 6:
Approvals and Governance
6.1 Compliance. .  .  .  .  .  .  .  .  .  .  .  .  .  .  .  .  .  .  .  .  . 67
6.2	
Process for Non-Compliance
Approval .  .  .  .  .  .  .  .  .  .  .  .  .  .  .  .  .  .  .  .  .  .  .  . 68
6.3 	
Criteria for Evaluating
		 Non-Compliance Requests .  .  .  .  .  . 70
Appendix A:
Request for Non-Compliant
Accommodations Form
4
Office
Space
Planning
Standards
Sec
1.0:
Introduction
Introduction
1.0
5
Office
Space
Planning
Standards
Sec
1.1:
Background
Background
1.1
In 2014/15, as a response to Treasury Board’s Footprint Reduction
Strategy, ASD undertook a comprehensive review of the Office
Space Planning Standards to ensure they continue to respond to the
needs of the modern office environment while respecting current
government policy and priorities. This document has therefore been
updated to:
• 
Emphasize that the square footages described within these Standards are
intended as maximums. Exploring the potential to meet department’s
requirements in less space is encouraged.
• 
Prioritize the standardization of space allocations among all government
departments by assigning support spaces based on the population of each floor.
This allows spaces to change tenants with a minimum of modification.
• 
Encourage departments to seek partnerships and co-locations with other
departments to realize efficiencies through shared facilities, equipment,
furniture and resources.
These Standards have been established to provide a consistent approach
to space programming. ASD is mandated to provide affordable and
sustainable office accommodation and related services for government
departments, agencies and Special Operating Agencies. These services
include the fit-up of office space to meet client department program
requirements within the limits of the Office Space Planning Standards.
In 2010 Accommodation Services Division (ASD) introduced an
open office space planning initiative. An emphasis was put on
accommodating staff in open areas comprised of screened workstations
as opposed to private offices. This initiative was intended to:
• 
Align provincial accommodations with well-established trends in private and
public sector office design.
• 
Take advantage of spatial efficiencies afforded by open office planning, which
translates into ongoing accommodation cost savings.
• 
Increase the ease of communication and collaboration among staff.
• 
Incorporate practices of environmental sustainability based on the principles
in the provincial Green Building Policy.
• 
Provide a consistent look and feel for all provincial accommodations.
6
Office
Space
Planning
Standards
Sec
1.2:
Application
Application
1.2
The Office Space Planning Standards apply to:
• 
All office accommodation under the administration of Accommodation Services
Division (ASD), as provided to provincial departments and agencies, whether
reimbursing or non-reimbursing, including any Special Operating Agencies or
Crown Corporations seeking ASD’s services.
• 
Alterations to the above noted office accommodations, including:
—initial fit-up of new space
— 
requests for service initiated by the client. Note that client-funded work will
not result in accommodations greater than that specified by the Standards
—fit-up of existing space for backfill by a different client group
7
Office
Space
Planning
Standards
Sec
2.0:
Funding
Accountabilities
Funding Accountabilities
2.0
8
Office
Space
Planning
Standards
Sec
2.1:
Funding
Accountabilities
/
Project
Delivery
Cost
Controls
Project Delivery Cost Controls
2.1
• 
Costs related to design changes following the design development stage
(including design, management fees and the cost of delays during the
construction drawing stages and all costs resulting from changes requested
during the construction or post-occupancy stages) are billable to the client.
• 
Additional design and management services generated by specialized or
enhanced client requirements, including accelerated project delivery, are billable
to the client.
A “client requested revision” is deemed to be a requirement or
preference not previously identified that necessitates a substantial
re-examination of completed work (such as reworking of previous
drawings and/or project documents) in order to find a solution that
would accommodate the new requirement.
Minor adjustments to drawings that do not have a substantial
impact on other areas, such as relocating a door or reorienting a
workstation, are not considered a “revision” relative to the “two
revision rule.” Similarly, work that is deemed by the Project Manager
to be contractually incomplete or non-compliant with the standards
is not considered a client responsibility.
It is not only the fit-up project, but also the delivery process that must
be controlled to help constrain costs. Extensive changes or numerous
revisions during the planning and design stages risk causing delays in
the project schedule as well as overruns in the budget.
In order to ensure more timely and cost effective delivery of fit-up
projects, the following controls and funding accountabilities will apply:
• 
A maximum of two (2) client requested revisions per deliverable during the
schematic and design development stages prior to final approval. If the two
revisions are not used at one stage, there is no provision to carry the allowance
over to a subsequent stage. Anything over this limit is non-standard and billable
to the client. If the project is already client-funded, additional consultant fees
will apply.
• 
Timelines will be provided for each stage of the project, with due dates given
for client input. If client input is not received by the due date, it will be assumed
that no revisions are required and the project will proceed.
• 
Costs related to delays in reviewing and approving project documents (drawings,
specifications) are billable to the client.
9
Office
Space
Planning
Standards
Sec
3.0:
Standrads
Standards
3.0
10
Office
Space
Planning
Standards
Sec
4.0:
Standrads
The total occupant count includes FTEs and non-FTE positions,
including itinerant spaces, students and volunteers. In situations where
two part time employees share a workstation, they will be counted as
one workstation for the purposes of this calculation. If 14 field staff are
given two shared workstations, they will count as two staff.
Approved special purpose spaces will be over and above the target
square feet per occupant.
ASD utilizes open office space planning, so separating government
workgroups into self-contained suites is considered non-compliant.
Open office planning is intended to increase flexibility and eliminate
the need to reconfigure space as workgroups shift.
3.0
Standards
The following Standards demonstrate the allocation of square footages
for typical office space functions. They do not establish or imply
minimum space entitlements and are intended as maximums.
Exploring the potential to meet department’s requirements in less
space is encouraged.
Offices are expected to comply with the following square footage per
occupant allocations.
Occupancy Target Sq Ft per Occupant
1–5 people 250
6–10 220
11–20 215
21–40 200
40+ 194
11
Office
Space
Planning
Standards
Sec
4.1:
Standards
/
Space
Types
Space Types
Support spaces may be further classified as either dedicated or shared:
• 
Shared support spaces are functions common to multiple branches, divisions
or departments. These typically include general reception areas, large meeting
or training rooms, central photocopy rooms, etc. Shared support spaces should
be conveniently located adjacent to major corridors and circulation paths to
ensure that they are accessible to all groups.
• 
Dedicated support spaces are functions specifically allocated to a specific
group. Files, equipment or storage required for a specific task that must be
functionally located with the position but cannot be accommodated within the
standard workstation space allotment is considered dedicated. Support spaces
shared by a specific group of workers such as interview rooms, resource areas,
hearing rooms, and storage rooms are also considered dedicated.
There are two basic types of space:
• 
Staff Spaces are occupied by individual members of a group. These spaces may
be private offices, open workstations or screened workstations.
• 
Support Spaces provide a required function to the staff but are not part of
the workstation. These are spaces such as meeting rooms, reception areas,
photocopy rooms, fax and printer areas, file and storage rooms, etc.
3.1
12
Office
Space
Planning
Standards
Sec
3.1:
Standards
/
Space
Types
13
Office
Space
Planning
Standards
Sec
4.2:
Standards
/
Staff
Spaces
Staff Spaces
Staff are typically placed in 72 sq. ft. workstations (8'-0x9'-0),
which can either be open or surrounded by screens. The standard
workstation is sized to accommodate an accessible, barrier free
turning radius.
Private offices may be provided to Directors and above.
Where staff spend more than 60 per cent of their time out of the office
and do not require individual, dedicated space, the standard workstation
shall be shared. This may include part time, itinerant or field staff.
The provision of a single workstation size is intended to encourage
greater flexibility and allow for a higher number of “suitcase” moves,
where the furniture stays in place and only desk contents are reassigned.
Possession of confidential documents is not considered a justification
for providing a private office. Confidential materials should be protected
in cabinets equipped with locking devices, vaults, or shared file rooms
specifically designed for secure storage. These Standards assume a
clean desk policy in which sensitive documents are stored properly
and consistently and not left out in the open.
Seated visual privacy is provided by standard 50” high screens.
Acoustical privacy is provided by the installation of a soundmasking
system throughout the workstation areas.
3.2
14
Office
Space
Planning
Standards
Sec
4.2.1:
Standards
/
Staff
Spaces
/
Screened
Area
Workstations
3.2.1
Screened Area Workstations
Typical: 8'-0x 9'-0 (72 sq. ft.)
Screened area workstations are appropriate when functions require
seated visual privacy from surrounding areas. Soundmasking is
installed to provide acoustical privacy throughout all workstation
areas. Workstations are available in either L or U shaped configurations.
L-shaped workstations are recommended for positions requiring
additional storage space, as one lateral file can be accommodated
within the screened area. U-shaped workstations provide more desk/
layout space, but is limited in accommodating additional filing.
64H wardrobe
unit
Open binder storage w/
1 adjustable shelf above
worksurface  filing unit below.
70L x 29D height
adjustable worksurface
50H panels (all)
Mobile pedestal w/
upholstered top for
guest seating
9'–0
8'–0
9'–0
64H wardrobe
unit
Open binder storage w/
1 adjustable shelf above
worksurface  filing unit below.
70L x 29D height
adjustable worksurface
50H panels (all)
Mobile pedestal w/
upholstered top for
guest seating
8'–0
Space for optional
lateral file
15
Office
Space
Planning
Standards
Sec
4.2.1:
Standards
/
Staff
Spaces
/
Screened
Area
Workstations
16
Office
Space
Planning
Standards
Sec
4.2.2:
Standards
/
Staff
Spaces
/
Open
Area
Workstations
3.2.2
Open Area Workstations
Typical: 8'-0x 9'-0 (72 sq. ft.)
Open area workstations are appropriate when functions do not require
seated visual privacy from surrounding areas. Soundmasking is
installed to provide acoustical privacy throughout all workstation areas.
Similar to screened area workstations, these workstations are available
in either L or U shaped configurations.
17
Office
Space
Planning
Standards
Sec
4.2.3:
Standards
/
Staff
Spaces
/
Private
Office
3.2.3
Private Office
Private offices are provided to directors and above. Offices are to be
located along the interior of the building unless conditions do not
allow. Requests to locate offices along the perimeter windows would
be considered non-compliant.
Position Maximum Area
Directors 10'x15' (150 sq. ft.)
Assistant Deputy Ministers 10'x20' (200 sq. ft.)
Approved Non-Compliant Request TBD (based on functional requirements)
64H wardrobe unit
64H wardrobe unit
Open binder storage w/
1 adjustable shelf above
worksurface  filing unit
below.
Open binder storage w/
1 adjustable shelf above
worksurface  filing unit
below.
70L x 29D height
adjustable worksurface
70L x 29D height
adjustable worksurface
Secure 8'–0
5'–10
8'–6
8'–6
18
Office
Space
Planning
Standards
Sec
4.2.3:
Standards
/
Staff
Spaces
/
Private
Office
64H wardrobe unit
64H wardrobe unit
Open binder storage w/
1 adjustable shelf above
worksurface  filing unit
below.
Open binder storage w/
1 adjustable shelf above
worksurface  filing unit
below.
70L x 29D height
adjustable worksurface
70L x 29D height
adjustable worksurface
36 round meeting table
36 round meeting table
Accessible
8'–0
8'–0
8'–0
8'–6
19
Office
Space
Planning
Standards
Sec
4.2.3:
Standards
/
Staff
Spaces
/
Private
Office
20
Office
Space
Planning
Standards
Sec
4.2.3:
Standards
/
Staff
Spaces
/
Private
Office
21
Office
Space
Planning
Standards
Sec
4.2.3:
Standards
/
Staff
Spaces
/
Private
Office
Support Spaces
Support spaces are allocated based on the population of each
floor, which allows spaces to change tenants with a minimum of
modification. Spaces are designed to provide a consistent look and
feel for all provincial accommodations.
22
Office
Space
Planning
Standards
Sec
4.2:
Standards
/
Support
Spaces
3.3
Up to 10
11–20
21–40
40–100
100+
1
–
2
2
2
–
1
2
1
2
–
–
–
1
1
150
300
900
1200
1500
23
Office
Space
Planning
Standards
Sec
4.3.1:
Standards
/
Support
Spaces
/
Meeting
Rooms
Number of
Occupants
per Floor
Small
150 sq ft
Seats 6
Medium
300 sq ft
Seats 12
Large
600 sq ft
Seats 20
Total
(sq ft)
Size of Meeting Room
3.3.1
Meeting Rooms
Meeting Rooms are enclosed spaces which are considered a shared
amenity to all provincial occupants of a building. All provincial
occupants of the building are able to book this asset. Wherever
possible, access to the meeting rooms should be off of a common
corridor, elevator lobby, etc. and not located within a client’s dedicated
space. If a client is the only provincial occupant of a building, access
may be provided through the tenant space, however, consideration
should be given to locating the room adjacent to common corridors/
lobbies to allow for easy future conversion. Furniture layouts must
allow for an accessible turning radius.
All equipment to be purchased and maintained by client group.
Space for credenza,
coat storage, AV unit,
projector screen, etc.
as required.
3'–0 min
3'–0
min
24
Office
Space
Planning
Standards
Sec
4.3.1:
Standards
/
Support
Spaces
/
Meeting
Rooms
25
Office
Space
Planning
Standards
Sec
4.3.1:
Standards
/
Support
Spaces
/
Meeting
Rooms
Space for credenza,
coat storage, AV unit,
projector screen, etc.
as required.
Sound rated
sliding partition
as required
26
Office
Space
Planning
Standards
Sec
4.3.1:
Standards
/
Support
Spaces
/
Meeting
Rooms
Sound rated
sliding partition
as required
27
Office
Space
Planning
Standards
Sec
4.3.1:
Standards
/
Support
Spaces
/
Meeting
Rooms
28
Office
Space
Planning
Standards
Sec
4.3.1:
Standards
/
Support
Spaces
/
Meeting
Rooms
Built in meeting surface
optional lexan barrier
if required
14'–6
8'–0
29
Office
Space
Planning
Standards
Sec
4.3.2:
Standards
/
Support
Spaces
/
Interview
Rooms
3.3.2
Interview Rooms
Typical: (116 sq. ft.)
Interview rooms are enclosed rooms for meeting with the public
and should be located in close proximity to the reception area. They
are considered a shared amenity to all occupants within a dedicated
tenant space.
The quantity of interview rooms provided is based on the functional
requirements of the program. Interview Rooms are considered
Special Purpose Spaces.
30
Office
Space
Planning
Standards
Sec
4.3.3:
Standards
/
Support
Spaces
/
Break-out
Rooms
3.3.3
Break-out Rooms
Typical: 7'-6 x 7'-6 (56 sq. ft.)
Break-out rooms are enclosed spaces intended for use by personnel
who occupy workstations. They are considered a shared amenity to
all occupants within a dedicated tenant space. These rooms provide
a quiet area to support work requiring a high level of concentration
and private telephone conversations.
One break-out room is provided for every 20 staff accommodated in
a workstation.
It is considered non-compliant to fit out a breakout room for a different
function. The Non-Compliance process must be followed to grant
approval for this type of request.
Worksurface with data,
phone and power
Seating with tablet
writing surface
Data, phone and
power in the wall
7'–6
7'–6
7’–6” 7’–6”
31
Office
Space
Planning
Standards
Sec
4.3.3:
Standards
/
Support
Spaces
/
Break-out
Rooms
32
Office
Space
Planning
Standards
Sec
4.3.4:
Standards
/
Support
Spaces
/
Collaborative
Space
3.3.4
Collaborative Space
Typical: 8'-0 x 9'-0 (72 sq. ft.)
Collaborative spaces are open or screened areas located throughout
the workstation area and provide a place to go for quick informal
or team meetings, without having to book a boardroom. They also
provide additional layout space to spread out work which may be too
large for a staff workstation.
Collaborative spaces are designed to occupy the same footprint as the
workstations to maximize modularity and flexibility. When larger
collaborative spaces are required, two or more 72 sq ft units may be
grouped together as required.
The quantity of collaborative spaces provided is based on the functional
requirements of the program and must fall within the square footage
per occupant allocation.
33
Office
Space
Planning
Standards
Sec
4.3.4:
Standards
/
Support
Spaces
/
Collaborative
Space
3.3.5
File and/or Storage Areas
File and/or storage areas may be open, semi-enclosed or enclosed
spaces. File areas may require structural review for floor loading
capacity. Built in millwork is not provided in these areas.
The general area allowance is:
• 
10 sq. ft. (1 m² ) per file or storage unit located within an open area
• 15 sq. ft (1.4m2) per file or storage unit located within an enclosed area
• 
20 sq. ft. (1.9m² ) per plan storage cabinet
The quantity and size of file and/or storage areas provided is based on
the functional requirements of the program.
Departments are to minimize their on-site storage needs by archiving,
purging and exploring digital storage solutions. All premises are subject
to audits by ASD to ensure that space is being used efficiently. The
yearly accommodation cost to store a single lateral file or storage unit
is approximately $250–$300.
34
Office
Space
Planning
Standards
Sec
4.3.6:
Standards
/
Support
Spaces
/
Reception
Area
3.3.6
Reception Area
Typical: 90 sq. ft.
A reception workstation may be located in an open or secure area,
depending on client requirements. For secure reception zones, Lexan
barriers may be required. The reception workstation is dimensioned
based on the typical 72 sq ft workstation with an additional 36”wide
section added for barrier free access as per Universal Design Guidelines.
Open binder storage
w/ 1 adjustable shelf
above worksurface 
filing unit below.
Open binder storage
w/ 1 adjustable shelf
above worksurface 
filing unit below.
64H wardrobe unit
64H wardrobe unit
Wheelchair
accessible
surface
Wheelchair
accessible
surface
11'–0
11'–0
9'–0 9'–0
Raised transaction
surface
Raised transaction
surface
35
Office
Space
Planning
Standards
Sec
4.3.6:
Standards
/
Support
Spaces
/
Reception
Area
36
Office
Space
Planning
Standards
Sec
4.3.7:
Standards
/
Support
Spaces
/
Waiting
Areas
3.3.7
Waiting Areas
Waiting areas may include chairs, coat storage, display material
(bulletin board, pamphlet rack etc.), child play area, and public access
workstations. Wheelchair accessible areas include open space for a
minimum of one wheelchair to wait complete with a seven foot six
inch (7’-6”) turning radius.
Waiting areas are sized based on client requirements and required
functionality.
37
Office
Space
Planning
Standards
Sec
4.3.8:
Standards
/
Support
Spaces
/
Copy
Rooms
3.3.8
Copy Rooms
Typical: 150 sq ft
Copy Rooms are enclosed spaces which are considered a shared amenity.
Access to the copy room should be off of a common corridor, elevator
lobby, etc. and not located within a client’s dedicated space if possible.
If a client is the only provincial occupant on a floor, access may be
provided through the tenant space, however consideration should be
given to locating the room adjacent to common corridors/lobbies to
allow for easy future conversion.
#Occupants per Floor Room Quantity
1–50 1
50+ 2
Note: all equipment to be purchased and maintained by client group.
38
Office
Space
Planning
Standards
Sec
4.3.8:
Standards
/
Support
Spaces
/
Copy
Rooms
39
Office
Space
Planning
Standards
Sec
4.3.9:
Standards
/
Support
Spaces
/
Mail
Area
3.3.9
Mail Area
Typical: 25 sq ft
A Mail Area is an open area used to house mailboxes and mail
supplies and is typically located close to the suite reception area.
40
Office
Space
Planning
Standards
Sec
4.3.10:
Standards
/
Support
Spaces
/
Coffee
Stations
3.3.10
Coffee Stations
Typical: 63 sq. ft.
A coffee station is an open area which is considered a shared amenity
to all occupants on a floor. It may be allocated when a staff room is
not provided.
The following fit up is standard:
• 
7.5 linear feet of millwork
• 
enclosed upper and lower cabinets with one sink and faucet
• 
space for a microwave, under-counter fridge, garbage/recycling zone
and water cooler
• 
electrical to suit small appliances, including toasters, tea kettles and
coffee machines
Note: all appliances to be purchased and maintained by client group. Under counter
fridge must be ADA compliant to fit underneath accessible height counter.
Space to accomodate water
cooler, waste  recycling
station.
Built in counter
complete with sink
 lower cabinets
Space for
coffee system
Space for
microwave
Space for ADA
compliant fridge
Counter height and all
clearances per current
accessibility standards.
7'–6
3'–0 to 5’–0”
41
Office
Space
Planning
Standards
Sec
4.3.10:
Standards
/
Support
Spaces
/
Coffee
Stations
42
Office
Space
Planning
Standards
Sec
4.3.11:
Standards
/
Support
Spaces
/
Staff
Rooms
3.3.11
Staff Rooms
Staff rooms are enclosed spaces which are considered a shared
amenity to all provincial occupants of a floor. Access to the staff
room should be off of a common corridor, elevator lobby, etc. and not
located within a client’s dedicated space if possible. If a client is the
only provincial occupant on a floor, access may be provided through
the tenant space, however, consideration should be given to locating
the room adjacent to common corridors/lobbies to allow for easy
future conversion.
Staff Rooms may be provided when the occupant counts exceed ten to
fifteen (10–15) staff, depending on program requirements.
The following fit up is standard:
• 
7.5 linear feet of millwork
• 
enclosed upper and lower cabinets with one sink and faucet
• 
space for a microwave, fridge, garbage/recycling zone and water cooler
• 
electrical to suit small appliances, such as toasters, tea kettles and coffee machines
Dishwashers are considered non-compliant.
Note: all appliances to be purchased and maintained by client group. If provided,
a dishwasher must be ADA compliant to fit underneath the accessible height
counter.
Staff room size to be based on 1/3 the occupant count of the floor.
43
Office
Space
Planning
Standards
Sec
4.3.11:
Standards
/
Support
Spaces
/
Staff
Rooms
44
Office
Space
Planning
Standards
Sec
4.3.11:
Standards
/
Support
Spaces
/
Staff
Rooms
Space to accomodate water
cooler, waste  recycling
station.
Built in counter
complete with sink
 lower cabinets
Fridge
Space for
coffee system
Space for
microwave
Counter height and all
clearances per current
accessibility standards.
7'–6 3'–0
3'–0 to 5’–0”
45
Office
Space
Planning
Standards
Sec
4.3.12:
Standards
/
Support
Spaces
/
Printer
Stations
3.3.12
Printer Stations
Typical: 25 sq. ft.
Printer stations are open areas which are considered a shared amenity
to all occupants within a dedicated tenant space. Built in millwork is
not provided in these areas.
Typically one equipment/printer station is provided for every seven
to twelve (7–12) occupants. Exact requirements to be determined in
consultation with the department’s Desktop Coordinator.
Note: all equipment to be purchased and maintained by client group.
46
Office
Space
Planning
Standards
Sec
4.3.13:
Standards
/
Support
Spaces
/
Printer
Stations
3.3.13
Local Area Network (LAN) Room
Typical: 70 sq. ft.
The LAN room is a secure, enclosed area. If the staff load of a location
is sufficiently small, a wall mounted MDC in a lockable cabinet may
be provided instead of a dedicated LAN room.
47
Office
Space
Planning
Standards
Sec
4.3.14:
Standards
/
Support
Spaces
/
Recycling
Stations
3.3.14
Recycling Stations
Typical: 25 sq. ft.
Recycling stations are designated zones containing small recycling
bins to collect materials, often located close to printer stations.
Approximately one recycling station is provided per 50 occupants.
48
Office
Space
Planning
Standards
Sec
4.3.15:
Standards
/
Support
Spaces
/
Recycling
Storage
Room
3.3.15
Recycling Storage Room
Typical: 50 sq. ft.
A Recycling Storage Room is a designated zone containing large
recycling bins to collect material prior to disposal. A recycling station
is typically provided off of a common corridor, elevator lobby, etc.
49
Office
Space
Planning
Standards
Sec
4.3.16:
Standards
/
Support
Spaces
/
Washrooms
3.3.16
Washrooms
Typical: 85 sq. ft. (barrier free)
Washrooms will be provided within the client space if not provided
within the building core. Quantity and size will be determined by the
National Building Code and the client’s requirements.
50
Office
Space
Planning
Standards
Sec
4.3.16:
Standards
/
Support
Spaces
/
Washrooms
51
Office
Space
Planning
Standards
Sec
4.3.17:
Standards
/
Support
Spaces
/
Janitor’s
Closet
3.3.17
Janitor’s Closet
Typical: 50 sq ft
The landlord is required to provide a Janitor’s Closet to service the
client space. If not provided as part of the building core the Janitor’s
Closet may be provided within the client space.
52
Office
Space
Planning
Standards
Sec
4.3.18:
Standards
/
Support
Spaces
/
Vestibule
3.3.18
Vestibule
The landlord is required to provide a barrier free vestibule in a client
space with street access.
53
Office
Space
Planning
Standards
Sec
4.3.18:
Standards
/
Support
Spaces
/
Special
Purpose
Spaces
3.3.19
Special Purpose Spaces
Special Purpose Spaces will be provided based on a client’s program
requirements and sized accordingly.
54
Office
Space
Planning
Standards
Sec
4.4:
Standards
/
Furniture
3.4 Furniture
55
Office
Space
Planning
Standards
Sec
4.4.1:
Standards
/
Furniture
/
Desks
and
Workstations
3.4.1
Desks and Workstations
The standard furniture is comprised of components that meet the
basic needs of most positions within government and provide for
work surface, shelving, filing, general and personal storage.
Typical workstation components include:
• 
70 x 29 height adjustable work surface
• 
84 x 24 work surface
• 
72 x 24 work surface (if U-shaped)
• 
24 x 24 wardrobe/storage unit
• 
mobile box/file pedestal with upholstered seat cushion
• computer sling
• 
height adjustable monitor arm
When reusing furniture, existing pieces will be redeployed based on
a “best fit” consideration and will not necessarily be retained by the
current occupant.
56
Office
Space
Planning
Standards
Sec
4.4.1:
Standards
/
Furniture
/
Desks
and
Workstations
57
Office
Space
Planning
Standards
Sec
4.4.2:
Standards
/
Furniture
/
Height
Adjustable
Work
Surfaces
3.4.2
Height Adjustable Work Surfaces
An increasing body of evidence is documenting the benefits of
providing a sit/stand work surface, both to employee health and
to decreasing employee absenteeism and turnover. The standard
workstation includes a height adjustable work surface as a typical
furniture component.
This freestanding surface can be moved from 27–46.5 high (sitting
height to standing height) at the push of a button. A monitor arm is
provided so that the alignment of the monitor can be adjusted to support
a broad range of work environments. Since this flexibility allows for the
complete customization of the work surface to accommodate individual
ergonomic requirements, a separate keyboard tray is not provided.
58
Office
Space
Planning
Standards
Sec
4.4.3:
Standards
/
Furniture
/
Typical
Electrical
3.4.3
Typical Electrical
Each workstation is provided with one duplex power outlet, one
voice/data outlet and one power bar. The power bar provides for an
additional six (6) power receptacles. This accommodates the typical
workstation requirements for telephone, computer, computer
monitor, cell phone charger and task light.
Individual electric fans and heating units are not included as part
of the workstation requirements and are discouraged due to their
excessive draw on the building electrical systems. This often results
in the loss of power to several workstations and/or general office
equipment.
Each workstation is provided with one duplex power outlet, one voice/
data outlet and one power bar. The power bar provides for an additional
six (6) power receptacles. This accommodates the typical workstation
requirements for telephone, computer, computer monitor, cell phone
charger and task light.
The power module mounted on the workstation is rated for 15 amps
and can only provide power to a calculator, adding machine, desk
lamp, phone charger, etc. Heaters and other appliances which draw
more power cannot be plugged in to the module as they will damage
the unit and pose a safety risk.
Individual electric fans and heating units are not included as part of the
workstation requirements and are discouraged due to their excessive
draw on the building electrical systems. This often results in the loss of
power to several workstations and/or general office equipment.
59
Office
Space
Planning
Standards
Sec
4.4.4:
Standards
/
Furniture
/
Screens
3.4.4
Screens
Screens are used in open office environments to provide visual
privacy. The standard height of screens used to define a workstation
area is 50. This provides visual privacy while seated and allows for
maximum daylight transfer. Soundmasking is installed to provide
acoustical privacy throughout all workstation areas.
Screens to a maximum of 64” high are available to provide additional
visual privacy for workstations immediately adjacent to print areas,
washrooms, coffee stations and staff rooms.
There is no significant increase in acoustic value from 50H to 64H
screens.
Sample Plans and Renderings
4.0
60
Office
Space
Planning
Standards
Sec
4.0:
Sample
Plans
and
Renderings
Private
office
Collaborative
Space
Collaborative
Space
4-person
workstation pod
w/ collaborative
space
Printer

Recycling
Large
Meeting
Room
Printer 
Recycling
Printer

Recycling
Printer 
Recycling
Workstations
Elevator Lobby
Staff Room
Breakout
Room
LAN
Room
Women’s
Washroom
Men’s
Washroom
Waiting
Area
Accessible
Washroom
Janitor’s
Closet
Breakout
Room
Breakout
Room
Stairs
Stairs
Private
office
Private
office
Private
office
2
person
workstation
pod
Open
Area
Storage
Storage, Printer  Recycling
Printer  Recycling
Mailboxes, Storage, Printer  Recycling
Small Meeting Room
Medium Meeting Room
Combonation Copy Area 
Enclosed Storage
Small Meeting Room
Open Area Storage
61
Office
Space
Planning
Standards
Sec
4.0:
Sample
Plans
and
Renderings
10,900 Usable Sq Ft
56 Occupants
194 Sq Ft Per Person
i
4-person workstation
Pod w/ collaborative
space
Printer 
Recycling
Workstations
Workstations
LAN
Room
Waiting
Area
Waiting
Area
Storage

Mailboxes
Storage 
Mailboxes
Reception
Reception
Breakout
Room
Breakout
Room
Private
office
Private office
Printer

Recycling
Printer 
Recycling
Shared
Small
Shared
Medium
Meeting
Room
Meeting
Room
Shared Small Meeting
Room
Shared
Satff
Room
Combonation
Copy
Area

Enclosed
Storage
Combonation
Copy
Area

Enclosed
Storage
62
Office
Space
Planning
Standards
Sec
4.0:
Sample
Plans
and
Renderings
5,350 Usable Sq Ft Total
27 Occupants
198 Sq Ft Per Person
Location of future door to
convert into shared meeting
room if additional provincial
tenants move into the building
Copy
Area
Workstations
Workstations
LAN
Room
Waiting Area
Printer 
Recycling
Reception
Breakout
Room
Private office
Coffee
Station
Small Meeting Room
Storage 
Mailboxes
63
Office
Space
Planning
Standards
Sec
4.0:
Sample
Plans
and
Renderings
1,800 Usable Sq Ft Total
8 Occupants
225 Sq Ft Per Person
Finishes
5.0
Standard materials used are of good quality and will be selected to
provide best value for money. Finishes are chosen for their durability,
their recyclability, and their low toxicity.
64
Office
Space
Planning
Standards
Sec
5.0:
Finishes
65
Office
Space
Planning
Standards
Sec
5.1:
Finishes
/
Demountable
Walls
Interior walls are typically specified as a demountable system instead
of traditional drywall. This is a prefabricated modular system which
can be disassembled and relocated as required. Since demountables
are easy to move and reconfigure, construction timelines are reduced
and disruption during renovation is minimized.
Demountable Walls
5.1
Approvals and Governance
6.0
66
Office
Space
Planning
Standards
Sec
6.0:
Approvals
and
Governance
67
Office
Space
Planning
Standards
Sec
6.1:
Approvals
and
Governance
/
Compliance
Compliance
6.1
Modifications to the Standards which result from building
conditions or heritage considerations are considered compliant.
It is considered best practice to reuse existing construction wherever
possible. For example, it may be economically and environmentally
beneficial to retain private offices sized either larger or smaller than
the Standards permit. Similarly, it may not be practical to demolish
surplus existing offices to be consistent with the Standards. Cases such
as these would be considered compliant, though care must be taken
to ensure that the total area occupied falls within the target square
footage per occupant range.
The Office Space Planning Standards were developed by ASD
in consultation with industry professionals to reflect current
developments in office space planning. These Standards are
supported by Treasury Board.
It is the responsibility of ASD, client departments and any
Special Operating Agencies or Crown Corporations seeking ASD’s
services to maintain compliance with the Office Space Planning
Standards. When a non-compliant item is requested, it is the
client’s responsibility to justify the proposed deviation and accept
accountability for any project delays and financial costs as a result of
the approvals process. Refer to Appendix A for the “Request for Non-
Compliant Accommodations Form”.
68
Office
Space
Planning
Standards
Sec
6.2:
Approvals
and
Governance
/
Process
for
Non-compliance
Approval
The following flowchart describes the process for managing requests
for exemptions to the Office Space Planning Standards. Anticipated
timelines are noted for ASD responses. Exact timelines may vary
depending on the complexity of the request and project requirements.
The client is the lead in preparing and submitting documentation
and accepts accountability for project delays.
Process for Non-Compliance Approval
6.2
LEGEND:
ASD ACTION
CLIENT ACTION
TB ACTION
NO
ABBREVIATIONS:
ADM: Assistant Deputy Minister
ASD: Accommodation Services Division
DPS: Director of ASD Project Services
DM: Deputy Minister
SC: Standards Committee
TB: Treasury Board
PP: ASD Project Planner
STEP 1:
Client makes
request for
non-compliant
item(s) to PP.
STEP 6:
Client gets
ADM and DM
approval and
returns the
form to PP.
STEP 3:
Client decides
whether or not
to pursue the
request.
STEP 7:
PP presents the
request to the
SC.
STEP 4:
Client documents the business
case and returns the form to PP.
STEP 8:
SC reaches decision
(by end of meeting)
REQUEST CANCELLED
APPROVES
DENIES
PP documents the outcome on the Request
for Non-Compliant Accommodations Form
and project proceeds.
STEP 2:
PP reviews and advises the client
on the necessity of the request and
explains the impact on the project
delivery by continuing with the
non-compliance process.
STEP 5:
PP documents the anticipated
cost implications for the requests
on the Request for Non-Compliant
Accommodations Form and
sends to the client. (Two weeks)
YES
STEP 11:
Client and ASD
prepare a joint
TB Submission
documenting
their respective
positions.
STEP 12:
TB reaches a decision (Confirm time)
STEP 9:
PP documents the
outcome on the Request
for Non-Compliant
Accommodations Form
and advises the client of
SC’s decision (Within one
week of ASC decision)
STEP 10:
Client decides whether or
not to pursue the request.
PROJECT PROCEEDS
YES
NO
REQUEST CANCELLED
69
Office
Space
Planning
Standards
Sec
6.2:
Approvals
and
Governance
/
Process
for
Non-compliance
Approval
6.2 Process for Non-Compliance Approval
70
Office
Space
Planning
Standards
Sec
6.3:
Approvals
and
Governance
/
Criteria
for
Evaluatiing
Non-compliance
Requests
The following criteria will be used to evaluate all non-compliance
requests:
• 
Is the non-compliance item a program requirement? Have alternative solutions
been appropriately considered?
• 
Is the request in the best economic interest of the taxpayer?
• 
Does the request demonstrate sound judgment and common sense?
• 
Will the approval of the non-compliance item set a negative precedent for the
delivery of future projects?
Criteria for Evaluating
Non-Compliance Requests
6.3
Request for Non-Compliant
Accommodations
APPENDIX A
71
Office
Space
Planning
Standards
Appendix
A:
Request
for
Non-Compliant
Accommodations
72
Office
Space
Planning
Standards
Appendix
A:
Request
for
Non-Compliant
Accommodations
APPENDIX A
Request for Non-Compliant Accommodations
Download the form at:
http://cserv.internal/sites/mit/ASD/Project_Services/Pages/default.aspx

office_space.pdf

  • 1.
    Accommodation Services Division ProjectServices Office Space Planning Standards February 2018
  • 2.
    Revisions: February 2018 -Pg 58 - Added power limitations to workstation module
  • 3.
    Table of Contents Section1: Introduction 1.1 Background . . . . . . . . . . . . . . . . . . . . . . . 5 1.2 Application. . . . . . . . . . . . . . . . . . . . . . . . 6 Section 2: Funding Accountabilities 2.1 Project Delivery Cost Controls. . . . . 8 Section 3: Standards 3.1 Space Types . . . . . . . . . . . . . . . . . . . . . 11 3.2 Staff Spaces . . . . . . . . . . . . . . . . . . . . . 13 3.2.1 Screened Area Workstations . . . . . . . . . . 14 3.2.2 Open Area Workstations. . . . . . . . . . . . . 16 3.2.3 Private Offices . . . . . . . . . . . . . . . . . . . . . 17 3.3 Support Spaces. . . . . . . . . . . . . . . . . . 22 3.3.1 Meeting Rooms. . . . . . . . . . . . . . . . . . . . . 23 3.3.2 Interview Rooms. . . . . . . . . . . . . . . . . . . . 29 3.3.3 Break-out Rooms. . . . . . . . . . . . . . . . . . . 30 3.3.4 Collaborative Space . . . . . . . . . . . . . . . . . 32 3.3.5 File and/or Storage Areas . . . . . . . . . . . . . 33 3.3.6 Reception Areas . . . . . . . . . . . . . . . . . . . . 34 3.3.7 Waiting Areas. . . . . . . . . . . . . . . . . . . . . . 36 3.3.8 Copy Rooms . . . . . . . . . . . . . . . . . . . . . . . 37 3.3.9 Mail Area . . . . . . . . . . . . . . . . . . . . . . . . . 39 3.3.10 Coffee Stations . . . . . . . . . . . . . . . . . . . . . 40 3.3.11 Staff Rooms. . . . . . . . . . . . . . . . . . . . . . . . 42 3.3.12 Printer Stations . . . . . . . . . . . . . . . . . . . . 45 3.3.13 Local Area Network Rooms. . . . . . . . . . . 46 3.3.14 Recycling Stations . . . . . . . . . . . . . . . . . . 47 3.3.15 Recycling Storage Rooms. . . . . . . . . . . . . 48 3.3.16 Washrooms. . . . . . . . . . . . . . . . . . . . . . . . 49 3.3.17 Janitor’s Closet . . . . . . . . . . . . . . . . . . . . . 51 3.3.18 Vestibule . . . . . . . . . . . . . . . . . . . . . . . . . . 52 3.3.19 Special Purpose Spaces . . . . . . . . . . . . . . 53 3.4 Furniture. . . . . . . . . . . . . . . . . . . . . . . . 54 3.4.1 Desks and Workstations . . . . . . . . . . . . . 55 3.2.2 Height Adjustable Work Surfaces . . . . . . 57 3.4.3 Typical Electrical . . . . . . . . . . . . . . . . . . . 58 3.4.4 Screens . . . . . . . . . . . . . . . . . . . . . . . . . . . 59 Section 4: Sample Plans and Renderings Section 5: Finishes 5.1 Demountable Walls. . . . . . . . . . . . . . 65 Section 6: Approvals and Governance 6.1 Compliance. . . . . . . . . . . . . . . . . . . . . . 67 6.2 Process for Non-Compliance Approval . . . . . . . . . . . . . . . . . . . . . . . . 68 6.3 Criteria for Evaluating Non-Compliance Requests . . . . . . 70 Appendix A: Request for Non-Compliant Accommodations Form
  • 4.
  • 5.
    5 Office Space Planning Standards Sec 1.1: Background Background 1.1 In 2014/15, asa response to Treasury Board’s Footprint Reduction Strategy, ASD undertook a comprehensive review of the Office Space Planning Standards to ensure they continue to respond to the needs of the modern office environment while respecting current government policy and priorities. This document has therefore been updated to: •  Emphasize that the square footages described within these Standards are intended as maximums. Exploring the potential to meet department’s requirements in less space is encouraged. •  Prioritize the standardization of space allocations among all government departments by assigning support spaces based on the population of each floor. This allows spaces to change tenants with a minimum of modification. •  Encourage departments to seek partnerships and co-locations with other departments to realize efficiencies through shared facilities, equipment, furniture and resources. These Standards have been established to provide a consistent approach to space programming. ASD is mandated to provide affordable and sustainable office accommodation and related services for government departments, agencies and Special Operating Agencies. These services include the fit-up of office space to meet client department program requirements within the limits of the Office Space Planning Standards. In 2010 Accommodation Services Division (ASD) introduced an open office space planning initiative. An emphasis was put on accommodating staff in open areas comprised of screened workstations as opposed to private offices. This initiative was intended to: •  Align provincial accommodations with well-established trends in private and public sector office design. •  Take advantage of spatial efficiencies afforded by open office planning, which translates into ongoing accommodation cost savings. •  Increase the ease of communication and collaboration among staff. •  Incorporate practices of environmental sustainability based on the principles in the provincial Green Building Policy. •  Provide a consistent look and feel for all provincial accommodations.
  • 6.
    6 Office Space Planning Standards Sec 1.2: Application Application 1.2 The Office SpacePlanning Standards apply to: •  All office accommodation under the administration of Accommodation Services Division (ASD), as provided to provincial departments and agencies, whether reimbursing or non-reimbursing, including any Special Operating Agencies or Crown Corporations seeking ASD’s services. •  Alterations to the above noted office accommodations, including: —initial fit-up of new space —  requests for service initiated by the client. Note that client-funded work will not result in accommodations greater than that specified by the Standards —fit-up of existing space for backfill by a different client group
  • 7.
  • 8.
    8 Office Space Planning Standards Sec 2.1: Funding Accountabilities / Project Delivery Cost Controls Project Delivery CostControls 2.1 •  Costs related to design changes following the design development stage (including design, management fees and the cost of delays during the construction drawing stages and all costs resulting from changes requested during the construction or post-occupancy stages) are billable to the client. •  Additional design and management services generated by specialized or enhanced client requirements, including accelerated project delivery, are billable to the client. A “client requested revision” is deemed to be a requirement or preference not previously identified that necessitates a substantial re-examination of completed work (such as reworking of previous drawings and/or project documents) in order to find a solution that would accommodate the new requirement. Minor adjustments to drawings that do not have a substantial impact on other areas, such as relocating a door or reorienting a workstation, are not considered a “revision” relative to the “two revision rule.” Similarly, work that is deemed by the Project Manager to be contractually incomplete or non-compliant with the standards is not considered a client responsibility. It is not only the fit-up project, but also the delivery process that must be controlled to help constrain costs. Extensive changes or numerous revisions during the planning and design stages risk causing delays in the project schedule as well as overruns in the budget. In order to ensure more timely and cost effective delivery of fit-up projects, the following controls and funding accountabilities will apply: •  A maximum of two (2) client requested revisions per deliverable during the schematic and design development stages prior to final approval. If the two revisions are not used at one stage, there is no provision to carry the allowance over to a subsequent stage. Anything over this limit is non-standard and billable to the client. If the project is already client-funded, additional consultant fees will apply. •  Timelines will be provided for each stage of the project, with due dates given for client input. If client input is not received by the due date, it will be assumed that no revisions are required and the project will proceed. •  Costs related to delays in reviewing and approving project documents (drawings, specifications) are billable to the client.
  • 9.
  • 10.
    10 Office Space Planning Standards Sec 4.0: Standrads The total occupantcount includes FTEs and non-FTE positions, including itinerant spaces, students and volunteers. In situations where two part time employees share a workstation, they will be counted as one workstation for the purposes of this calculation. If 14 field staff are given two shared workstations, they will count as two staff. Approved special purpose spaces will be over and above the target square feet per occupant. ASD utilizes open office space planning, so separating government workgroups into self-contained suites is considered non-compliant. Open office planning is intended to increase flexibility and eliminate the need to reconfigure space as workgroups shift. 3.0 Standards The following Standards demonstrate the allocation of square footages for typical office space functions. They do not establish or imply minimum space entitlements and are intended as maximums. Exploring the potential to meet department’s requirements in less space is encouraged. Offices are expected to comply with the following square footage per occupant allocations. Occupancy Target Sq Ft per Occupant 1–5 people 250 6–10 220 11–20 215 21–40 200 40+ 194
  • 11.
    11 Office Space Planning Standards Sec 4.1: Standards / Space Types Space Types Support spacesmay be further classified as either dedicated or shared: •  Shared support spaces are functions common to multiple branches, divisions or departments. These typically include general reception areas, large meeting or training rooms, central photocopy rooms, etc. Shared support spaces should be conveniently located adjacent to major corridors and circulation paths to ensure that they are accessible to all groups. •  Dedicated support spaces are functions specifically allocated to a specific group. Files, equipment or storage required for a specific task that must be functionally located with the position but cannot be accommodated within the standard workstation space allotment is considered dedicated. Support spaces shared by a specific group of workers such as interview rooms, resource areas, hearing rooms, and storage rooms are also considered dedicated. There are two basic types of space: •  Staff Spaces are occupied by individual members of a group. These spaces may be private offices, open workstations or screened workstations. •  Support Spaces provide a required function to the staff but are not part of the workstation. These are spaces such as meeting rooms, reception areas, photocopy rooms, fax and printer areas, file and storage rooms, etc. 3.1
  • 12.
  • 13.
    13 Office Space Planning Standards Sec 4.2: Standards / Staff Spaces Staff Spaces Staff aretypically placed in 72 sq. ft. workstations (8'-0x9'-0), which can either be open or surrounded by screens. The standard workstation is sized to accommodate an accessible, barrier free turning radius. Private offices may be provided to Directors and above. Where staff spend more than 60 per cent of their time out of the office and do not require individual, dedicated space, the standard workstation shall be shared. This may include part time, itinerant or field staff. The provision of a single workstation size is intended to encourage greater flexibility and allow for a higher number of “suitcase” moves, where the furniture stays in place and only desk contents are reassigned. Possession of confidential documents is not considered a justification for providing a private office. Confidential materials should be protected in cabinets equipped with locking devices, vaults, or shared file rooms specifically designed for secure storage. These Standards assume a clean desk policy in which sensitive documents are stored properly and consistently and not left out in the open. Seated visual privacy is provided by standard 50” high screens. Acoustical privacy is provided by the installation of a soundmasking system throughout the workstation areas. 3.2
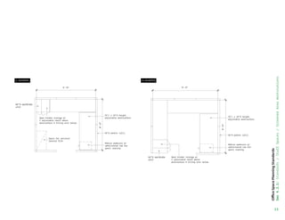
  • 14.
    14 Office Space Planning Standards Sec 4.2.1: Standards / Staff Spaces / Screened Area Workstations 3.2.1 Screened Area Workstations Typical:8'-0x 9'-0 (72 sq. ft.) Screened area workstations are appropriate when functions require seated visual privacy from surrounding areas. Soundmasking is installed to provide acoustical privacy throughout all workstation areas. Workstations are available in either L or U shaped configurations. L-shaped workstations are recommended for positions requiring additional storage space, as one lateral file can be accommodated within the screened area. U-shaped workstations provide more desk/ layout space, but is limited in accommodating additional filing.
  • 15.
    64H wardrobe unit Open binderstorage w/ 1 adjustable shelf above worksurface filing unit below. 70L x 29D height adjustable worksurface 50H panels (all) Mobile pedestal w/ upholstered top for guest seating 9'–0 8'–0 9'–0 64H wardrobe unit Open binder storage w/ 1 adjustable shelf above worksurface filing unit below. 70L x 29D height adjustable worksurface 50H panels (all) Mobile pedestal w/ upholstered top for guest seating 8'–0 Space for optional lateral file 15 Office Space Planning Standards Sec 4.2.1: Standards / Staff Spaces / Screened Area Workstations
  • 16.
    16 Office Space Planning Standards Sec 4.2.2: Standards / Staff Spaces / Open Area Workstations 3.2.2 Open Area Workstations Typical:8'-0x 9'-0 (72 sq. ft.) Open area workstations are appropriate when functions do not require seated visual privacy from surrounding areas. Soundmasking is installed to provide acoustical privacy throughout all workstation areas. Similar to screened area workstations, these workstations are available in either L or U shaped configurations.
  • 17.
    17 Office Space Planning Standards Sec 4.2.3: Standards / Staff Spaces / Private Office 3.2.3 Private Office Private officesare provided to directors and above. Offices are to be located along the interior of the building unless conditions do not allow. Requests to locate offices along the perimeter windows would be considered non-compliant. Position Maximum Area Directors 10'x15' (150 sq. ft.) Assistant Deputy Ministers 10'x20' (200 sq. ft.) Approved Non-Compliant Request TBD (based on functional requirements)
  • 18.
    64H wardrobe unit 64Hwardrobe unit Open binder storage w/ 1 adjustable shelf above worksurface filing unit below. Open binder storage w/ 1 adjustable shelf above worksurface filing unit below. 70L x 29D height adjustable worksurface 70L x 29D height adjustable worksurface Secure 8'–0 5'–10 8'–6 8'–6 18 Office Space Planning Standards Sec 4.2.3: Standards / Staff Spaces / Private Office
  • 19.
    64H wardrobe unit 64Hwardrobe unit Open binder storage w/ 1 adjustable shelf above worksurface filing unit below. Open binder storage w/ 1 adjustable shelf above worksurface filing unit below. 70L x 29D height adjustable worksurface 70L x 29D height adjustable worksurface 36 round meeting table 36 round meeting table Accessible 8'–0 8'–0 8'–0 8'–6 19 Office Space Planning Standards Sec 4.2.3: Standards / Staff Spaces / Private Office
  • 20.
  • 21.
  • 22.
    Support Spaces Support spacesare allocated based on the population of each floor, which allows spaces to change tenants with a minimum of modification. Spaces are designed to provide a consistent look and feel for all provincial accommodations. 22 Office Space Planning Standards Sec 4.2: Standards / Support Spaces 3.3
  • 23.
    Up to 10 11–20 21–40 40–100 100+ 1 – 2 2 2 – 1 2 1 2 – – – 1 1 150 300 900 1200 1500 23 Office Space Planning Standards Sec 4.3.1: Standards / Support Spaces / Meeting Rooms Numberof Occupants per Floor Small 150 sq ft Seats 6 Medium 300 sq ft Seats 12 Large 600 sq ft Seats 20 Total (sq ft) Size of Meeting Room 3.3.1 Meeting Rooms Meeting Rooms are enclosed spaces which are considered a shared amenity to all provincial occupants of a building. All provincial occupants of the building are able to book this asset. Wherever possible, access to the meeting rooms should be off of a common corridor, elevator lobby, etc. and not located within a client’s dedicated space. If a client is the only provincial occupant of a building, access may be provided through the tenant space, however, consideration should be given to locating the room adjacent to common corridors/ lobbies to allow for easy future conversion. Furniture layouts must allow for an accessible turning radius. All equipment to be purchased and maintained by client group.
  • 24.
    Space for credenza, coatstorage, AV unit, projector screen, etc. as required. 3'–0 min 3'–0 min 24 Office Space Planning Standards Sec 4.3.1: Standards / Support Spaces / Meeting Rooms
  • 25.
  • 26.
    Space for credenza, coatstorage, AV unit, projector screen, etc. as required. Sound rated sliding partition as required 26 Office Space Planning Standards Sec 4.3.1: Standards / Support Spaces / Meeting Rooms
  • 27.
    Sound rated sliding partition asrequired 27 Office Space Planning Standards Sec 4.3.1: Standards / Support Spaces / Meeting Rooms
  • 28.
  • 29.
    Built in meetingsurface optional lexan barrier if required 14'–6 8'–0 29 Office Space Planning Standards Sec 4.3.2: Standards / Support Spaces / Interview Rooms 3.3.2 Interview Rooms Typical: (116 sq. ft.) Interview rooms are enclosed rooms for meeting with the public and should be located in close proximity to the reception area. They are considered a shared amenity to all occupants within a dedicated tenant space. The quantity of interview rooms provided is based on the functional requirements of the program. Interview Rooms are considered Special Purpose Spaces.
  • 30.
    30 Office Space Planning Standards Sec 4.3.3: Standards / Support Spaces / Break-out Rooms 3.3.3 Break-out Rooms Typical: 7'-6x 7'-6 (56 sq. ft.) Break-out rooms are enclosed spaces intended for use by personnel who occupy workstations. They are considered a shared amenity to all occupants within a dedicated tenant space. These rooms provide a quiet area to support work requiring a high level of concentration and private telephone conversations. One break-out room is provided for every 20 staff accommodated in a workstation. It is considered non-compliant to fit out a breakout room for a different function. The Non-Compliance process must be followed to grant approval for this type of request.
  • 31.
    Worksurface with data, phoneand power Seating with tablet writing surface Data, phone and power in the wall 7'–6 7'–6 7’–6” 7’–6” 31 Office Space Planning Standards Sec 4.3.3: Standards / Support Spaces / Break-out Rooms
  • 32.
    32 Office Space Planning Standards Sec 4.3.4: Standards / Support Spaces / Collaborative Space 3.3.4 Collaborative Space Typical: 8'-0x 9'-0 (72 sq. ft.) Collaborative spaces are open or screened areas located throughout the workstation area and provide a place to go for quick informal or team meetings, without having to book a boardroom. They also provide additional layout space to spread out work which may be too large for a staff workstation. Collaborative spaces are designed to occupy the same footprint as the workstations to maximize modularity and flexibility. When larger collaborative spaces are required, two or more 72 sq ft units may be grouped together as required. The quantity of collaborative spaces provided is based on the functional requirements of the program and must fall within the square footage per occupant allocation.
  • 33.
    33 Office Space Planning Standards Sec 4.3.4: Standards / Support Spaces / Collaborative Space 3.3.5 File and/or StorageAreas File and/or storage areas may be open, semi-enclosed or enclosed spaces. File areas may require structural review for floor loading capacity. Built in millwork is not provided in these areas. The general area allowance is: •  10 sq. ft. (1 m² ) per file or storage unit located within an open area • 15 sq. ft (1.4m2) per file or storage unit located within an enclosed area •  20 sq. ft. (1.9m² ) per plan storage cabinet The quantity and size of file and/or storage areas provided is based on the functional requirements of the program. Departments are to minimize their on-site storage needs by archiving, purging and exploring digital storage solutions. All premises are subject to audits by ASD to ensure that space is being used efficiently. The yearly accommodation cost to store a single lateral file or storage unit is approximately $250–$300.
  • 34.
    34 Office Space Planning Standards Sec 4.3.6: Standards / Support Spaces / Reception Area 3.3.6 Reception Area Typical: 90sq. ft. A reception workstation may be located in an open or secure area, depending on client requirements. For secure reception zones, Lexan barriers may be required. The reception workstation is dimensioned based on the typical 72 sq ft workstation with an additional 36”wide section added for barrier free access as per Universal Design Guidelines.
  • 35.
    Open binder storage w/1 adjustable shelf above worksurface filing unit below. Open binder storage w/ 1 adjustable shelf above worksurface filing unit below. 64H wardrobe unit 64H wardrobe unit Wheelchair accessible surface Wheelchair accessible surface 11'–0 11'–0 9'–0 9'–0 Raised transaction surface Raised transaction surface 35 Office Space Planning Standards Sec 4.3.6: Standards / Support Spaces / Reception Area
  • 36.
    36 Office Space Planning Standards Sec 4.3.7: Standards / Support Spaces / Waiting Areas 3.3.7 Waiting Areas Waiting areasmay include chairs, coat storage, display material (bulletin board, pamphlet rack etc.), child play area, and public access workstations. Wheelchair accessible areas include open space for a minimum of one wheelchair to wait complete with a seven foot six inch (7’-6”) turning radius. Waiting areas are sized based on client requirements and required functionality.
  • 37.
    37 Office Space Planning Standards Sec 4.3.8: Standards / Support Spaces / Copy Rooms 3.3.8 Copy Rooms Typical: 150sq ft Copy Rooms are enclosed spaces which are considered a shared amenity. Access to the copy room should be off of a common corridor, elevator lobby, etc. and not located within a client’s dedicated space if possible. If a client is the only provincial occupant on a floor, access may be provided through the tenant space, however consideration should be given to locating the room adjacent to common corridors/lobbies to allow for easy future conversion. #Occupants per Floor Room Quantity 1–50 1 50+ 2 Note: all equipment to be purchased and maintained by client group.
  • 38.
  • 39.
    39 Office Space Planning Standards Sec 4.3.9: Standards / Support Spaces / Mail Area 3.3.9 Mail Area Typical: 25sq ft A Mail Area is an open area used to house mailboxes and mail supplies and is typically located close to the suite reception area.
  • 40.
    40 Office Space Planning Standards Sec 4.3.10: Standards / Support Spaces / Coffee Stations 3.3.10 Coffee Stations Typical: 63sq. ft. A coffee station is an open area which is considered a shared amenity to all occupants on a floor. It may be allocated when a staff room is not provided. The following fit up is standard: •  7.5 linear feet of millwork •  enclosed upper and lower cabinets with one sink and faucet •  space for a microwave, under-counter fridge, garbage/recycling zone and water cooler •  electrical to suit small appliances, including toasters, tea kettles and coffee machines Note: all appliances to be purchased and maintained by client group. Under counter fridge must be ADA compliant to fit underneath accessible height counter.
  • 41.
    Space to accomodatewater cooler, waste recycling station. Built in counter complete with sink lower cabinets Space for coffee system Space for microwave Space for ADA compliant fridge Counter height and all clearances per current accessibility standards. 7'–6 3'–0 to 5’–0” 41 Office Space Planning Standards Sec 4.3.10: Standards / Support Spaces / Coffee Stations
  • 42.
    42 Office Space Planning Standards Sec 4.3.11: Standards / Support Spaces / Staff Rooms 3.3.11 Staff Rooms Staff roomsare enclosed spaces which are considered a shared amenity to all provincial occupants of a floor. Access to the staff room should be off of a common corridor, elevator lobby, etc. and not located within a client’s dedicated space if possible. If a client is the only provincial occupant on a floor, access may be provided through the tenant space, however, consideration should be given to locating the room adjacent to common corridors/lobbies to allow for easy future conversion. Staff Rooms may be provided when the occupant counts exceed ten to fifteen (10–15) staff, depending on program requirements. The following fit up is standard: •  7.5 linear feet of millwork •  enclosed upper and lower cabinets with one sink and faucet •  space for a microwave, fridge, garbage/recycling zone and water cooler •  electrical to suit small appliances, such as toasters, tea kettles and coffee machines Dishwashers are considered non-compliant. Note: all appliances to be purchased and maintained by client group. If provided, a dishwasher must be ADA compliant to fit underneath the accessible height counter. Staff room size to be based on 1/3 the occupant count of the floor.
  • 43.
  • 44.
    44 Office Space Planning Standards Sec 4.3.11: Standards / Support Spaces / Staff Rooms Space to accomodatewater cooler, waste recycling station. Built in counter complete with sink lower cabinets Fridge Space for coffee system Space for microwave Counter height and all clearances per current accessibility standards. 7'–6 3'–0 3'–0 to 5’–0”
  • 45.
    45 Office Space Planning Standards Sec 4.3.12: Standards / Support Spaces / Printer Stations 3.3.12 Printer Stations Typical: 25sq. ft. Printer stations are open areas which are considered a shared amenity to all occupants within a dedicated tenant space. Built in millwork is not provided in these areas. Typically one equipment/printer station is provided for every seven to twelve (7–12) occupants. Exact requirements to be determined in consultation with the department’s Desktop Coordinator. Note: all equipment to be purchased and maintained by client group.
  • 46.
    46 Office Space Planning Standards Sec 4.3.13: Standards / Support Spaces / Printer Stations 3.3.13 Local Area Network(LAN) Room Typical: 70 sq. ft. The LAN room is a secure, enclosed area. If the staff load of a location is sufficiently small, a wall mounted MDC in a lockable cabinet may be provided instead of a dedicated LAN room.
  • 47.
    47 Office Space Planning Standards Sec 4.3.14: Standards / Support Spaces / Recycling Stations 3.3.14 Recycling Stations Typical: 25sq. ft. Recycling stations are designated zones containing small recycling bins to collect materials, often located close to printer stations. Approximately one recycling station is provided per 50 occupants.
  • 48.
    48 Office Space Planning Standards Sec 4.3.15: Standards / Support Spaces / Recycling Storage Room 3.3.15 Recycling Storage Room Typical:50 sq. ft. A Recycling Storage Room is a designated zone containing large recycling bins to collect material prior to disposal. A recycling station is typically provided off of a common corridor, elevator lobby, etc.
  • 49.
    49 Office Space Planning Standards Sec 4.3.16: Standards / Support Spaces / Washrooms 3.3.16 Washrooms Typical: 85 sq.ft. (barrier free) Washrooms will be provided within the client space if not provided within the building core. Quantity and size will be determined by the National Building Code and the client’s requirements.
  • 50.
  • 51.
    51 Office Space Planning Standards Sec 4.3.17: Standards / Support Spaces / Janitor’s Closet 3.3.17 Janitor’s Closet Typical: 50sq ft The landlord is required to provide a Janitor’s Closet to service the client space. If not provided as part of the building core the Janitor’s Closet may be provided within the client space.
  • 52.
    52 Office Space Planning Standards Sec 4.3.18: Standards / Support Spaces / Vestibule 3.3.18 Vestibule The landlord isrequired to provide a barrier free vestibule in a client space with street access.
  • 53.
    53 Office Space Planning Standards Sec 4.3.18: Standards / Support Spaces / Special Purpose Spaces 3.3.19 Special Purpose Spaces SpecialPurpose Spaces will be provided based on a client’s program requirements and sized accordingly.
  • 54.
  • 55.
    55 Office Space Planning Standards Sec 4.4.1: Standards / Furniture / Desks and Workstations 3.4.1 Desks and Workstations Thestandard furniture is comprised of components that meet the basic needs of most positions within government and provide for work surface, shelving, filing, general and personal storage. Typical workstation components include: •  70 x 29 height adjustable work surface •  84 x 24 work surface •  72 x 24 work surface (if U-shaped) •  24 x 24 wardrobe/storage unit •  mobile box/file pedestal with upholstered seat cushion • computer sling •  height adjustable monitor arm When reusing furniture, existing pieces will be redeployed based on a “best fit” consideration and will not necessarily be retained by the current occupant.
  • 56.
  • 57.
    57 Office Space Planning Standards Sec 4.4.2: Standards / Furniture / Height Adjustable Work Surfaces 3.4.2 Height Adjustable WorkSurfaces An increasing body of evidence is documenting the benefits of providing a sit/stand work surface, both to employee health and to decreasing employee absenteeism and turnover. The standard workstation includes a height adjustable work surface as a typical furniture component. This freestanding surface can be moved from 27–46.5 high (sitting height to standing height) at the push of a button. A monitor arm is provided so that the alignment of the monitor can be adjusted to support a broad range of work environments. Since this flexibility allows for the complete customization of the work surface to accommodate individual ergonomic requirements, a separate keyboard tray is not provided.
  • 58.
    58 Office Space Planning Standards Sec 4.4.3: Standards / Furniture / Typical Electrical 3.4.3 Typical Electrical Each workstationis provided with one duplex power outlet, one voice/data outlet and one power bar. The power bar provides for an additional six (6) power receptacles. This accommodates the typical workstation requirements for telephone, computer, computer monitor, cell phone charger and task light. Individual electric fans and heating units are not included as part of the workstation requirements and are discouraged due to their excessive draw on the building electrical systems. This often results in the loss of power to several workstations and/or general office equipment. Each workstation is provided with one duplex power outlet, one voice/ data outlet and one power bar. The power bar provides for an additional six (6) power receptacles. This accommodates the typical workstation requirements for telephone, computer, computer monitor, cell phone charger and task light. The power module mounted on the workstation is rated for 15 amps and can only provide power to a calculator, adding machine, desk lamp, phone charger, etc. Heaters and other appliances which draw more power cannot be plugged in to the module as they will damage the unit and pose a safety risk. Individual electric fans and heating units are not included as part of the workstation requirements and are discouraged due to their excessive draw on the building electrical systems. This often results in the loss of power to several workstations and/or general office equipment.
  • 59.
    59 Office Space Planning Standards Sec 4.4.4: Standards / Furniture / Screens 3.4.4 Screens Screens are usedin open office environments to provide visual privacy. The standard height of screens used to define a workstation area is 50. This provides visual privacy while seated and allows for maximum daylight transfer. Soundmasking is installed to provide acoustical privacy throughout all workstation areas. Screens to a maximum of 64” high are available to provide additional visual privacy for workstations immediately adjacent to print areas, washrooms, coffee stations and staff rooms. There is no significant increase in acoustic value from 50H to 64H screens.
  • 60.
    Sample Plans andRenderings 4.0 60 Office Space Planning Standards Sec 4.0: Sample Plans and Renderings
  • 61.
    Private office Collaborative Space Collaborative Space 4-person workstation pod w/ collaborative space Printer Recycling Large Meeting Room Printer Recycling Printer Recycling Printer Recycling Workstations Elevator Lobby Staff Room Breakout Room LAN Room Women’s Washroom Men’s Washroom Waiting Area Accessible Washroom Janitor’s Closet Breakout Room Breakout Room Stairs Stairs Private office Private office Private office 2 person workstation pod Open Area Storage Storage, Printer Recycling Printer Recycling Mailboxes, Storage, Printer Recycling Small Meeting Room Medium Meeting Room Combonation Copy Area Enclosed Storage Small Meeting Room Open Area Storage 61 Office Space Planning Standards Sec 4.0: Sample Plans and Renderings 10,900 Usable Sq Ft 56 Occupants 194 Sq Ft Per Person
  • 62.
    i 4-person workstation Pod w/collaborative space Printer Recycling Workstations Workstations LAN Room Waiting Area Waiting Area Storage Mailboxes Storage Mailboxes Reception Reception Breakout Room Breakout Room Private office Private office Printer Recycling Printer Recycling Shared Small Shared Medium Meeting Room Meeting Room Shared Small Meeting Room Shared Satff Room Combonation Copy Area Enclosed Storage Combonation Copy Area Enclosed Storage 62 Office Space Planning Standards Sec 4.0: Sample Plans and Renderings 5,350 Usable Sq Ft Total 27 Occupants 198 Sq Ft Per Person
  • 63.
    Location of futuredoor to convert into shared meeting room if additional provincial tenants move into the building Copy Area Workstations Workstations LAN Room Waiting Area Printer Recycling Reception Breakout Room Private office Coffee Station Small Meeting Room Storage Mailboxes 63 Office Space Planning Standards Sec 4.0: Sample Plans and Renderings 1,800 Usable Sq Ft Total 8 Occupants 225 Sq Ft Per Person
  • 64.
    Finishes 5.0 Standard materials usedare of good quality and will be selected to provide best value for money. Finishes are chosen for their durability, their recyclability, and their low toxicity. 64 Office Space Planning Standards Sec 5.0: Finishes
  • 65.
    65 Office Space Planning Standards Sec 5.1: Finishes / Demountable Walls Interior walls aretypically specified as a demountable system instead of traditional drywall. This is a prefabricated modular system which can be disassembled and relocated as required. Since demountables are easy to move and reconfigure, construction timelines are reduced and disruption during renovation is minimized. Demountable Walls 5.1
  • 66.
  • 67.
    67 Office Space Planning Standards Sec 6.1: Approvals and Governance / Compliance Compliance 6.1 Modifications to theStandards which result from building conditions or heritage considerations are considered compliant. It is considered best practice to reuse existing construction wherever possible. For example, it may be economically and environmentally beneficial to retain private offices sized either larger or smaller than the Standards permit. Similarly, it may not be practical to demolish surplus existing offices to be consistent with the Standards. Cases such as these would be considered compliant, though care must be taken to ensure that the total area occupied falls within the target square footage per occupant range. The Office Space Planning Standards were developed by ASD in consultation with industry professionals to reflect current developments in office space planning. These Standards are supported by Treasury Board. It is the responsibility of ASD, client departments and any Special Operating Agencies or Crown Corporations seeking ASD’s services to maintain compliance with the Office Space Planning Standards. When a non-compliant item is requested, it is the client’s responsibility to justify the proposed deviation and accept accountability for any project delays and financial costs as a result of the approvals process. Refer to Appendix A for the “Request for Non- Compliant Accommodations Form”.
  • 68.
    68 Office Space Planning Standards Sec 6.2: Approvals and Governance / Process for Non-compliance Approval The following flowchartdescribes the process for managing requests for exemptions to the Office Space Planning Standards. Anticipated timelines are noted for ASD responses. Exact timelines may vary depending on the complexity of the request and project requirements. The client is the lead in preparing and submitting documentation and accepts accountability for project delays. Process for Non-Compliance Approval 6.2
  • 69.
    LEGEND: ASD ACTION CLIENT ACTION TBACTION NO ABBREVIATIONS: ADM: Assistant Deputy Minister ASD: Accommodation Services Division DPS: Director of ASD Project Services DM: Deputy Minister SC: Standards Committee TB: Treasury Board PP: ASD Project Planner STEP 1: Client makes request for non-compliant item(s) to PP. STEP 6: Client gets ADM and DM approval and returns the form to PP. STEP 3: Client decides whether or not to pursue the request. STEP 7: PP presents the request to the SC. STEP 4: Client documents the business case and returns the form to PP. STEP 8: SC reaches decision (by end of meeting) REQUEST CANCELLED APPROVES DENIES PP documents the outcome on the Request for Non-Compliant Accommodations Form and project proceeds. STEP 2: PP reviews and advises the client on the necessity of the request and explains the impact on the project delivery by continuing with the non-compliance process. STEP 5: PP documents the anticipated cost implications for the requests on the Request for Non-Compliant Accommodations Form and sends to the client. (Two weeks) YES STEP 11: Client and ASD prepare a joint TB Submission documenting their respective positions. STEP 12: TB reaches a decision (Confirm time) STEP 9: PP documents the outcome on the Request for Non-Compliant Accommodations Form and advises the client of SC’s decision (Within one week of ASC decision) STEP 10: Client decides whether or not to pursue the request. PROJECT PROCEEDS YES NO REQUEST CANCELLED 69 Office Space Planning Standards Sec 6.2: Approvals and Governance / Process for Non-compliance Approval 6.2 Process for Non-Compliance Approval
  • 70.
    70 Office Space Planning Standards Sec 6.3: Approvals and Governance / Criteria for Evaluatiing Non-compliance Requests The following criteriawill be used to evaluate all non-compliance requests: •  Is the non-compliance item a program requirement? Have alternative solutions been appropriately considered? •  Is the request in the best economic interest of the taxpayer? •  Does the request demonstrate sound judgment and common sense? •  Will the approval of the non-compliance item set a negative precedent for the delivery of future projects? Criteria for Evaluating Non-Compliance Requests 6.3
  • 71.
    Request for Non-Compliant Accommodations APPENDIXA 71 Office Space Planning Standards Appendix A: Request for Non-Compliant Accommodations
  • 72.
    72 Office Space Planning Standards Appendix A: Request for Non-Compliant Accommodations APPENDIX A Request forNon-Compliant Accommodations Download the form at: http://cserv.internal/sites/mit/ASD/Project_Services/Pages/default.aspx