T e c h n i c a l D a t a S h e e t
Craig & Derricott Ltd
Hall Lane, Walsall Wood,
Walsall, West Midlands WS9 9DP
t: +44(0)1543 375541 f: +44(0)1543 361619
e: sales@craigandderricott.com
craigandderricott.com
page 1
Fire Rated (High Temperature) Isolators 20A to 125A
Craig & Derricott has been producing switch disconnectors for more than 30 years. Combining our switching expertise
with the specific requirements of the ventilation industry, led to the development of our ‘High Temperature Isolation’
range. Excellent switching characteristics with high temperature environment contact stability makes this the ideal
product range.
The critical role these switches perform is to maintain the power to the ventilation equipment, allowing safe evacua-
tion of a business or public area. Often, these devices are mounted local to the extraction fans. As an assembly, it is
essential they comply with the stringent thermal requirements of BS EN 12101 - 2003.
The complete range are housed in metal enclosures, the user can therefore be assured that there will be no distortion
affecting the connecting cables and its supports.
General Description
Rating (A)
Application Sym. Unit Category 20A 132A25 63A 125A
Enclosure material/size
(See page 2)
Sheet Steel
(A)
Die-cast
(B)
Sheet steel
(C)
Sheet steel
(D)
Rated thermal current Ith
A 20.0 32.0 63.0 125.0
Rated Insulation voltage Ui
V 690 690 690 690
Rated operational current (AC) Ie
A
400/415V - AC21A 20.0 32.0 63.0 125.0
400/415V - AC22A 20.0 32.0 63.0 125.0
400/415V - AC23A 20.0 32.0 - 100.0
Rated operational power (AC) kW 3 x 400/415V - AC23A 10.0 15.0 18.6 55.0 (AC23B)
Conditional short circuit current Icc
kA 50.0* 50.0* 50.0* 50.0*
Minimum mechanical endurance Cycles >0.5 x 106
>0.5 x 106
>0.5 x 106
>0.5 x 106
Connecting capacity
-
Terminal type
mm2
Flexible cable 6.0 6.0 25.0 50.0
mm2
Stranded cable 6.0 6.0 25.0 50.0
Electrical Characteristics
“Smoke kills more people than fire. A well known fact, and it’s the job of the ventilation designer
to ensure this doesn’t happen - and to do this effectively he will need continuous power”
* Max size BS 88 fuse in circuit 20A - 32A, 32A - 32A, 63A - 63A, 125A - 125A
20A item housed in red finished
sheet steel enclosure. The circular
locking handle allows for the inser-
tion of up to 3 padlocks in the ‘Off’
position.
32A item enclosed within a heavy
duty die-cast aluminium enclosure.
Can be supplied padlockable in
both ‘On’ & ‘Off’ positions to special
order.
R5
WWW.CABLEJOINTS.CO.UK
THORNE & DERRICK UK
TEL 0044 191 490 1547 FAX 0044 477 5371
TEL 0044 117 977 4647 FAX 0044 977 5582
WWW.THORNEANDDERRICK.CO.UK
T e c h n i c a l D a t a S h e e t
Craig & Derricott Ltd
Hall Lane, Walsall Wood,
Walsall, West Midlands WS9 9DP
t: +44(0)1543 375541 f: +44(0)1543 361619
e: sales@craigandderricott.com
craigandderricott.com
page 2
Fire Rated (High Temperature) Isolators 20A to 125A
Assembly
Format
Cat Ref Temp. Class
(See above)
Enclosure
SizeRating Format (Finished Red)
20A
2P
Lid mounted
in sheet steel
enclosure
RD2011/CP/SEHT
F400 Size A
3P RT2021/CP/SEHT
3P + 2EB Aux RT2031/2EB/CP/SEHT
3P + NL RT2021/CP/SEHT/NL
4P RQ2021/CP/SEHT
6P RY2031/CP/SEHT
32A
2P
Lid mounted
in die-cast
aluminium
enclosure
RD3011/HPHT
F400 Size B
3P RT3021/HPHT
3P + 2EB Aux RT3031/2EB/HPHT
3P + NL RT3021/HPHT/NL
4P RQ3021/HPHT
6P RY3031/HPHT
6P + 2EB Aux RY3041/2EB/HPHT
63A
2P
Base
mounted in
sheet steel
enclosure
RDB6321/HPHT
F400 Size C
3P RTB6341/HPHT
3P + 2EB Aux RTB6351/2EB/HPHT
3P + NL RTB6341/HPHT/NL
4P RQB6341/HPHT
6P RYB6361/HPHT
6P + 2EB Aux RYB6371/2EB/HPHT
125A
2P
Base
mounted in
sheet steel
enclosure
RS1BD11/HPHT
F400 Size D
3P RS1BT21/HPHT
3P + 2EB Aux RS1BT31/2EB/HPHT
3P + NL RS1BT21/HPHT/NL
4P RS1BQ21/HPHT
6P RS1BY31/HPHT
6P + 2EB Aux RS1BY41/2EB/HPHT
Catalogue References
32A die-cast and 20A & 125A
sheet steel examples
Universal features
• Positive mode contacts.
• Sealing to IP65
• Padlockable in the ‘Off’ position
• Finished in RAL 3020 ( Traffic
Red) textured powder coat finish
Specifications
Within BS EN 12101-3 :2002 (Smoke and heat control systems.) which is the specification for powered smoke and heat exhaust ventilators, there
are several classes of duty. These define specifically the temperature gradient and upper limit for the test as well as the time period over which the
test will last. Within the range of this equipment are the following classes:-
F200 2000
C for 120 minutes
F300 3000
C for 60 minutes
F400 4000
C for 120 minutes
The specification calls for dynamic tests designed to check the performance of complete ventilation assemblies. The attached isolator is required
to maintain the essential supply throughout the duration of the test. To ensure the capability of this equipment Craig & Derricott test laboratory has
taken the temperature and time limits up to 3000
C for 5 hours successfully on selected items.
• Cable entries:-
20A 2 x Ø20 plain holes
32A 2 x M20
63A Undrilled bottom gland plate
125A Undrilled bottom gland plate
WWW.CABLEJOINTS.CO.UK
THORNE & DERRICK UK
TEL 0044 191 490 1547 FAX 0044 477 5371
TEL 0044 117 977 4647 FAX 0044 977 5582
WWW.THORNEANDDERRICK.CO.UK
T e c h n i c a l D a t a S h e e t
Craig & Derricott Ltd
Hall Lane, Walsall Wood,
Walsall, West Midlands WS9 9DP
t: +44(0)1543 375541 f: +44(0)1543 361619
e: sales@craigandderricott.com
craigandderricott.com
page 3
Fire Rated (High Temperature) Isolators 20A to 125A
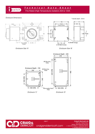
Enclosure Dimensions
Enclosure ‘C’ Enclosure ‘D’
Enclosure Size ‘A’ Enclosure Size ‘B’
* Handle depth:- 30mm
WWW.CABLEJOINTS.CO.UK
THORNE & DERRICK UK
TEL 0044 191 490 1547 FAX 0044 477 5371
TEL 0044 117 977 4647 FAX 0044 977 5582
WWW.THORNEANDDERRICK.CO.UK

Craig & Derricott i-switch Fire Rated Isolators

  • 1.
    T e ch n i c a l D a t a S h e e t Craig & Derricott Ltd Hall Lane, Walsall Wood, Walsall, West Midlands WS9 9DP t: +44(0)1543 375541 f: +44(0)1543 361619 e: sales@craigandderricott.com craigandderricott.com page 1 Fire Rated (High Temperature) Isolators 20A to 125A Craig & Derricott has been producing switch disconnectors for more than 30 years. Combining our switching expertise with the specific requirements of the ventilation industry, led to the development of our ‘High Temperature Isolation’ range. Excellent switching characteristics with high temperature environment contact stability makes this the ideal product range. The critical role these switches perform is to maintain the power to the ventilation equipment, allowing safe evacua- tion of a business or public area. Often, these devices are mounted local to the extraction fans. As an assembly, it is essential they comply with the stringent thermal requirements of BS EN 12101 - 2003. The complete range are housed in metal enclosures, the user can therefore be assured that there will be no distortion affecting the connecting cables and its supports. General Description Rating (A) Application Sym. Unit Category 20A 132A25 63A 125A Enclosure material/size (See page 2) Sheet Steel (A) Die-cast (B) Sheet steel (C) Sheet steel (D) Rated thermal current Ith A 20.0 32.0 63.0 125.0 Rated Insulation voltage Ui V 690 690 690 690 Rated operational current (AC) Ie A 400/415V - AC21A 20.0 32.0 63.0 125.0 400/415V - AC22A 20.0 32.0 63.0 125.0 400/415V - AC23A 20.0 32.0 - 100.0 Rated operational power (AC) kW 3 x 400/415V - AC23A 10.0 15.0 18.6 55.0 (AC23B) Conditional short circuit current Icc kA 50.0* 50.0* 50.0* 50.0* Minimum mechanical endurance Cycles >0.5 x 106 >0.5 x 106 >0.5 x 106 >0.5 x 106 Connecting capacity - Terminal type mm2 Flexible cable 6.0 6.0 25.0 50.0 mm2 Stranded cable 6.0 6.0 25.0 50.0 Electrical Characteristics “Smoke kills more people than fire. A well known fact, and it’s the job of the ventilation designer to ensure this doesn’t happen - and to do this effectively he will need continuous power” * Max size BS 88 fuse in circuit 20A - 32A, 32A - 32A, 63A - 63A, 125A - 125A 20A item housed in red finished sheet steel enclosure. The circular locking handle allows for the inser- tion of up to 3 padlocks in the ‘Off’ position. 32A item enclosed within a heavy duty die-cast aluminium enclosure. Can be supplied padlockable in both ‘On’ & ‘Off’ positions to special order. R5 WWW.CABLEJOINTS.CO.UK THORNE & DERRICK UK TEL 0044 191 490 1547 FAX 0044 477 5371 TEL 0044 117 977 4647 FAX 0044 977 5582 WWW.THORNEANDDERRICK.CO.UK
  • 2.
    T e ch n i c a l D a t a S h e e t Craig & Derricott Ltd Hall Lane, Walsall Wood, Walsall, West Midlands WS9 9DP t: +44(0)1543 375541 f: +44(0)1543 361619 e: sales@craigandderricott.com craigandderricott.com page 2 Fire Rated (High Temperature) Isolators 20A to 125A Assembly Format Cat Ref Temp. Class (See above) Enclosure SizeRating Format (Finished Red) 20A 2P Lid mounted in sheet steel enclosure RD2011/CP/SEHT F400 Size A 3P RT2021/CP/SEHT 3P + 2EB Aux RT2031/2EB/CP/SEHT 3P + NL RT2021/CP/SEHT/NL 4P RQ2021/CP/SEHT 6P RY2031/CP/SEHT 32A 2P Lid mounted in die-cast aluminium enclosure RD3011/HPHT F400 Size B 3P RT3021/HPHT 3P + 2EB Aux RT3031/2EB/HPHT 3P + NL RT3021/HPHT/NL 4P RQ3021/HPHT 6P RY3031/HPHT 6P + 2EB Aux RY3041/2EB/HPHT 63A 2P Base mounted in sheet steel enclosure RDB6321/HPHT F400 Size C 3P RTB6341/HPHT 3P + 2EB Aux RTB6351/2EB/HPHT 3P + NL RTB6341/HPHT/NL 4P RQB6341/HPHT 6P RYB6361/HPHT 6P + 2EB Aux RYB6371/2EB/HPHT 125A 2P Base mounted in sheet steel enclosure RS1BD11/HPHT F400 Size D 3P RS1BT21/HPHT 3P + 2EB Aux RS1BT31/2EB/HPHT 3P + NL RS1BT21/HPHT/NL 4P RS1BQ21/HPHT 6P RS1BY31/HPHT 6P + 2EB Aux RS1BY41/2EB/HPHT Catalogue References 32A die-cast and 20A & 125A sheet steel examples Universal features • Positive mode contacts. • Sealing to IP65 • Padlockable in the ‘Off’ position • Finished in RAL 3020 ( Traffic Red) textured powder coat finish Specifications Within BS EN 12101-3 :2002 (Smoke and heat control systems.) which is the specification for powered smoke and heat exhaust ventilators, there are several classes of duty. These define specifically the temperature gradient and upper limit for the test as well as the time period over which the test will last. Within the range of this equipment are the following classes:- F200 2000 C for 120 minutes F300 3000 C for 60 minutes F400 4000 C for 120 minutes The specification calls for dynamic tests designed to check the performance of complete ventilation assemblies. The attached isolator is required to maintain the essential supply throughout the duration of the test. To ensure the capability of this equipment Craig & Derricott test laboratory has taken the temperature and time limits up to 3000 C for 5 hours successfully on selected items. • Cable entries:- 20A 2 x Ø20 plain holes 32A 2 x M20 63A Undrilled bottom gland plate 125A Undrilled bottom gland plate WWW.CABLEJOINTS.CO.UK THORNE & DERRICK UK TEL 0044 191 490 1547 FAX 0044 477 5371 TEL 0044 117 977 4647 FAX 0044 977 5582 WWW.THORNEANDDERRICK.CO.UK
  • 3.
    T e ch n i c a l D a t a S h e e t Craig & Derricott Ltd Hall Lane, Walsall Wood, Walsall, West Midlands WS9 9DP t: +44(0)1543 375541 f: +44(0)1543 361619 e: sales@craigandderricott.com craigandderricott.com page 3 Fire Rated (High Temperature) Isolators 20A to 125A Enclosure Dimensions Enclosure ‘C’ Enclosure ‘D’ Enclosure Size ‘A’ Enclosure Size ‘B’ * Handle depth:- 30mm WWW.CABLEJOINTS.CO.UK THORNE & DERRICK UK TEL 0044 191 490 1547 FAX 0044 477 5371 TEL 0044 117 977 4647 FAX 0044 977 5582 WWW.THORNEANDDERRICK.CO.UK