Embed presentation
Downloaded 246 times
























































































































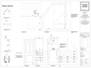
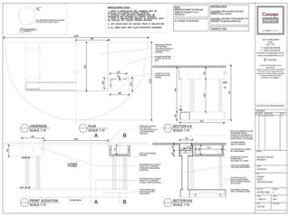
There are three main stages in an interior design company's process: consultation, design proposal, and project management. During consultation, they meet with clients to discuss requirements and budgets and visit sites. The design proposal includes CAD drawings, sketches, fabric and color samples, and a cost estimate. Project management entails finalizing designs, coordinating tradespeople, and preparing for implementation.






















































































































