Embed presentation
Download as PDF, PPTX































































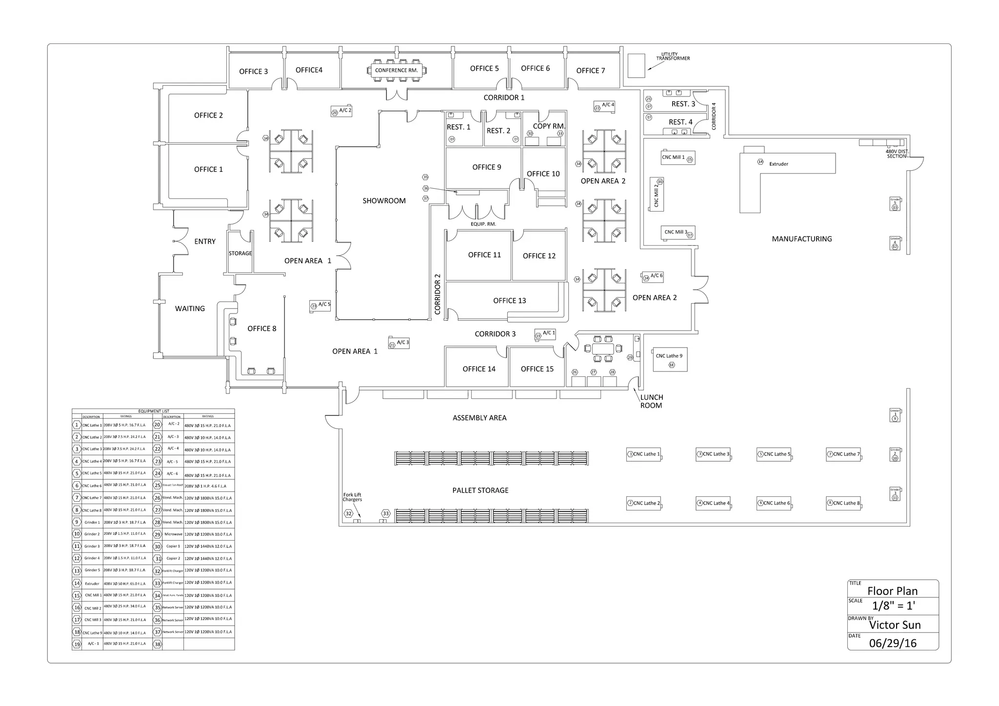
This document appears to be listing fixture types and maximum allowances for a panel P1. It includes lighting for a showroom and lighting for an open east area. In just 3 sentences or less, it provides information on fixture types and maximum totals for two spaces under panel P1.






























































