CASE STUDY ON ART GALLERY
202132003 202132007 202132022 202132024 202132029
ART GALLERY
PUBLIC ZONE (CONTROLLED)
● ENTRANCE, ORIENTATION, CLOAKROOM, PAY
DESK, WC
● CAFE, BAR, RESTAURANTS, SHOP
● CONFERENCE ROOMS
● EXHIBITION AREA(PERMANENT, TEMPORARY)
● LIBRARY
● LECTURE HALLS, AUDITORIUMS
PRIVATE ZONE
● ADMINISTRATION
● RESTORATION
ADMINISTRATION
● ARCHIVE
● CATALOGUE COPY ROOM
● LIBRARY
● ADMINISTRATION DIRECTOR
RESTORATION
● RESTORATION AND CONSERVATION WORKSHOP
● STORE
TYPES OF ART GALLERY
● MODERN ART GALLERY
● CONTEMPORARY ART GALLERY
● SCULPTURE ART GALLERY
● PHOTOGRAPHY ART GALLERY
● ABSTRACT ART GALLERY
● HISTORICAL ART GALLERY
● CULTURAL ART GALLERY
● POTTERY ART GALLERY
● TEXTILES ART GALLERY
● ART GALLERY PAINTINGS
PROGRAMME
DISPLAY CONCEPT SPATIAL ARRANGEMENT
ORIENTED ON DISPLAY
ITEMS
OPEN PLAN
SYSTEMATICALLY ORIENTED MAIN AND SIDE ROOMS (CORE
AND SATELLITE ROOMS)
THEMATICALLY ORIENTED ROUND TOUR LOOP, LINEAR
CHAINING
COMPLEX ORIENTED LABYRINTH, COMPLEX
LAYOUT OF A DISPLAY ROOM
OPEN
PLAN
MAIN AND SIDE
ROOMS
LINEAR
CHAINING
LABYRINTH
ROUND
TOUR LOOP
COMPLEX
ZONING: ACC. TO ACCESSIBILITY
LIMITED ACCESS ZONE
PUBLIC ACCESS ZONE
BANGLADESH SHILPAKALA ACADEMY, DHAKA
LOCAL CASE STUDY
VERTICAL CIRCULATION AREA
WASHROOM AND SERVICE
SERVICES
GALLERY SPACE
ENTRANCE
VERTICAL
CIRCULATION AREA
LOBBY AND CORRIDOR
LIMITED ACCESS
ATRIUM AND DOUBLE
HEIGHTED SPACE
SITE ANALYSIS
NATIONAL DRAMA
GALLERY
NATIONAL CULTURAL
AND DANCE GALLERY
NATIONAL ART
GALLERY
NONDONMONCHO SECONDARY STAGE
GUARD ROOM
STRUCTURAL SYSTEM: COMPOSITE
SLAB
DROP PANEL
CAPITAL
POST
USE OF BEAM UNDER THE FLIGHT TO CARRY
THE LOAD OF THE STAIRS
DROP PANEL INCREASES THE SHEAR
STRENGTH OF THE FLAT SLAB FLOOR
WAFFLE SLAB OVER LARGER SPACES
USE OF FREE STANDING COLUMNS IN
DOUBLE HEIGHTED ENTRY PORCH
MAXIMUM OPENING BECAUSE OF NO
STRUCTURAL USE OF WALLS AND BEAMS
CONTINUOUS BEAM IN ATRIUM SPACE
ALLOWING NATURAL LIGHT INSIDE OF THE GALLERY TO CREATE A PLAY OF LIGHT AND SHADOW
SPATIAL QUALITY
CONTROLLED INDOOR EXHIBITION
HALL: CREATED USING ATRIUM THAT
SERVES THE PURPOSE OF LARGE
INSTALLATION HALL
LARGE OPEN GALLERY
CURRENTLY THE SPACE ADJACENT TO IS
BEING USED AS A PRAYER SPACE
SPATIAL QUALITY
USE OF ARTIFICIAL LIGHT AND DIFFERENT COLORED
WALLS TO CREATE THE IMPACT OF THE ART PIECES AS
NEEDED
CONTROLLED LIGHT IS USED IN EXHIBITION HALLS
USE OF DARK
INTIMATE SPACES
CONTROLLED LIGHT
SCULPTURAL
STAIRS TO CREATE
A VISUAL
CHARACTER
STAIR GETTING
INCORPORATED
WITH
INSTALLATION
RECEPTION
COUNTER UNDER
THE STAIRS
SCULPTURAL STAIRS AND SPACE
EXHIBITION WALLS AND INTERACTIVE ART
CORNER
AUDITORIUM OVER
THE ENTRANCE
PORCH
WAFFLE SLAB
SPATIAL QUALITY
TEMPORARY
WALL FOR
EXHIBITION OF
PAINTINGS
CREATING
CORNER WITH
TEMPORARY
WALL TO
DISPLAY THE
SCULPTURE
CIRCULATION
SPACE
BETWEEN TWO
INSTALLATION
CREATING
CIRCULATION
SPACE AROUND
AN INSTALLATION
PAINTING SERIES
ON A
CONTINUOUS
WALL
SHUYANG ART GALLERY
CHINA
ARCHITECT: DANSHEN DONG
AREA: 10475 SQM
LOCATED IN THE HOMETOWN OF TRADITIONAL
CALLIGRAPHY, SHUYANG, JIANGSU PROVINCE,
AND IS POSITIONED AS THE CALLIGRAPHY ART
GALLERY TO DISPLAY AND INHERIT SHUYANG
CALLIGRAPHIC STYLE
CONCEPT SEAL
RICE PAPER
INK
ZHENG BANQIAO’S CALLIGRAPHIC
STYLE - LIGHT AND HEAVY, OPENING
AND CLOSING OF THE CALLIGRAPHY
THROUGH CONTROLLING THE SIZE OF
THE BUILDING, THE SPACE, CONTRAST
OF THE MATERIAL.
PURE SPACE EXPERIENCE WITH PURE
COLOURS
THE SCATTERED WHITE AND BLACK
BLOCKS- A CLASSIC ARTISTIC CONCEPTION
IN MODERN DESIGN LANGUAGE
COMPOSITION OF VOLUME CREATING A
FLOW OF LIGHT AND HEAVY
DESIGN STRATEGY
LARGEST EXHIBITION HALL ALONG THE STREET
RED-BRICKED EXTERIOR WALL LIKE A CONDENSED SEAL PRINTED ON
THE ELEGANT SCROLL OF INK AND WASH
TWO CONCAVE CUTS ON THE CORNERS- INTENSIFIES THE ICONIC
IMAGE ALONG THE STREET FORMING A UNIQUE AND LASTING APPEAL
RED BRICK- YIXING CLAY BRICK
3 TYPES OF LINING-
● LOWER PART - BRICKHEAD OUTSTAND THE WALL
● UPPER PART - INTRUDES THE WALL
● CUT PART - FLATLY LINED
WITH A HEIGHT OF 16M, IT USES CONCRETE MASONRY WALL AS BRICK
WALL WOULD MAKE THE BOTTOM VERY THINK.
THERE IS A LIGHT WELL THROUGH 3 FLOORS- CREATES BRIGHT
AND TRANSPARENT INDOOR SPACE.
THE GRAY SPACE - THE VOLUME OF THE BODY IS DUG IN
INTROVERTED MANNER AND THE OUTDOOR SPACE CAN BE
EXTENDED INTO THE INDOOR REST AREA.
GRAYSCALE CHANGES IN GRANITES IN THE PAVED ROAD AND
ROOFED COURTYARDS - INSPIRED BY THE ABSTRACT PATTERN OF
INK SPREADING ACROSS PARCHMENT.
.VISITORS ROAM THE ALLEYS AND COURTYARDS AS IF THEY ARE
WALKING ON BLACK AND WHITE PAINTINGS.
DESIGN STRATEGY
INK VOLUME ARE CUT AND PAINTED WITH DARK GREY
FLUOROCARBON PAINT - BRIGHT AND SMOOTH TEXTURE.
EMBODIES SIMPLICITY AND DIGNITY OF CALLIGRAPHY
ARTWORKS
PRESENTS SUBTLE COLOUR CHANGE IN THE BLUE SKY
SIMPLE AND PROFOUND TEXTURE LIKE AN INK BLOCK
ROUNDED CORNERS- SENSE OF GRAVITY IN CALLIGRAPHY
THE MASONRY WALL IS COVERED WITH 60 CM THICK GROUTING
CONCRETE LAYER AND PAINTED WITH DARK GRAY
FLUOROCARBON PAINT AFTER POLISH.
THE WHITE VOLUME SELECTS PREFABRICATED CONCRETE
HANGING BOARD WITH VERTICAL CHISEL- REPRESENTS RICE
PAPER
FORMS CONTRAST TO THE SMOOTH FINE INK SURFACE
BOTTOM OF THE BODY IS OVERHANGING TO SHOW THE
FLOATING STATE- UNCONFINED AND DETACHED SPIRIT OF
CALLIGRAPHY
RESPONDS TO FLEXIBLE ELEGANT CHARACTERISTICS OF
CALLIGRAPHY ARTWORKS.
DESIGN STRATEGY
THE EXHIBITION WALLS ARE OPEN
SPACE WITHOUT COLUMNS, WHICH CAN
BE FREELY ARRANGED ACCORDING TO
THE EXHIBITION NEEDS.
WALLED SURFACES EXHIBITS THE
CALLIGRAPHY ARTWORKS AND
CENTRALLY ORGANISED ART PIECES
CREATES A LOOPLIKE CIRCULATION
ROUTE.
TRANQUIL WATER IN THE ENTRANCE-
KEEPS OFF NOISE FROM OUTSIDE.
INTRODUCES THE VISITORS INTO THE
GALLERY BY A BRIDGE - HELPS TO
COMPOSE THE MIND QUICKLY BEFORE
ENTERING THE EXHIBITION HALL.
AS BUILDINGS BLEND INTO EACH
OTHER, AN INK PAINTING IS FORMED.
1. ENTRANCE FOYER
2. LIGHT WELL
3. CALLIGRAPHY EXHIBITION HALL
4. CALLIGRAPHY FORUM
5. NARROW ALLEY
6. ENTRANCE POOL
7. INNER COURTYARD
8. OFFICE
9. GREY SPACE REST AREA
10. CALLIGRAPHY CREATION ROOM
11. PEN HALL
12. ROOF GARDEN
13. ROOF EQUIPMENT AREA
1. MAIN ENTRANCE OF THE SITE
2. ENTRANCE
3. RED BRICK EXHIBITION
4. BLACK AND WHITE EXHIBITION
HALL
5. OFFICE
6. CALLIGRAPHY GRAND FORUM
7. INNER COURTYARD
8. ENTRANCE POOL
9. SECONDARY ENTRANCE
10. LIGHTWELL
11. PARKING
12. OUTDOOR GALLERY
MASTER PLAN 1ST FLOOR PLAN
2ND FLOOR PLAN 3RD FLOOR PLAN
1. ENTRANCE FOYER
2. LIGHTWELL
3. CALLIGRAPHY EXHIBITION HALL
4. CALLIGRAPHY FORUM
5. NARROW ALLEY
6. ENTRANCE POOL
7. INNER COURTYARD
8. OFFICE
9. GREY SPACE REST AREA
10. CALLIGRAPHY CREATION ROOM
11. PEN HALL
12. ROOF GARDEN
CIRCULATION
LIKE THE ORGANIC STROKES OF A CALLIGRAPHIC BRUSH ON PAPER,
VISITORS FLOW FREELY THROUGH THE GALLERY’S INDOOR AND
OUTDOOR SPACES.
THE SPACE RELATIONSHIP IS CONTROLLED BY THE LAYOUT OF
“SPARSE ENOUGH TO RUN HORSE, DENSE ENOUGH WITH NO
NEEDLE”.
IT IS CLOSE TO KEEP A NARROW LANE OF ONLY 2 METERS WIDE WITH
BOTH SIDES OF PURE WHITE AND BLACK VOLUME- CREATES A
FEELING OF WALKING AMONG THE BOOKS.
THE NARROW SPACES TURN TO OPEN IN COURTYARD AND CREATE
AN OPEN SPACE EFFECT
ENTRANCE
VERTICAL CIRCULATION
DESIGN CHALLENGE
RELATIVELY TRADITIONAL METHOD OF BUILDING DUE
TO LIMITED BUDGET AND MANPOWER.
USE OF ECONOMIC MATERIAL AND SIMPLE
STRUCTURE. EG: LOCAL RED BRICK, CONCRETE,
GRANITE ECT.
THE BIGGEST CHALLENGE WAS CREATING 5 CONCAVE
CORNERS. THE 3 DIMENSIONAL CURVED SURFACE
WAS BROKEN INTO 2 DIMENSIONAL CURVE WITH
DIFFERENT ELEVATIONS BASED ON THE PATTERN OF
CONTOUR LINES, TAKING 2O CM AS THE DISTANCE
BETWEEN THE LINES.
ACCORDING TO THE CONTOUR LINES, THE CONCAVE
SURFACE WAS BUILT LAYER BY LAYER ON GROUND
AND LIFTED UPWARDS LATER.
SKISSERNAS MUSEUM
ARCHITECTS:ELDING OSCARSON
● MUSEUM OF ARTISTIC
PROCESS AND PUBLIC ART
CONSISTS OF BUILDINGS FROM
SIX DIFFERENT PERIODS
WHICH ALL HAVE BEEN
CONNECTED TO ONE.
● HAS GRADUALLY GROWN TO A
LARGE CLUSTER OF BUILDINGS
THAK, APART FROM HOUSING
THE WORLD’S LARGEST
COLLECTION OF SKETCHES.
SITE PLAN
THE IDENTITY OF THE MUSEUM
EXTENSIONS
● FOYER
● RESTAURANT
● SHOP
● MULTIPURPOSE HALL
SCULPTURE
PARK IN FRONT
OF THE MUSEUM
ENTRANCE
HALL
INTERNATIONAL HALL
RESTAURANT
SWEDISH HALL
7
PRIVATE
PUBLIC
1. SCULPTURE PARK
2. POND
3. TERRACE
4. RESTAURANT
5. ENTRANCE HALL
6. RECEPTION/GIFT SHOP
7. WASHROOM
8. KITCHEN
9. SWEDISH HALL
10. INTERNATIONAL HALL
11. BIRGIT RAUSING HALL
12. ARCHIVE
13. MEXICAN COLLECTION
14. MOORE ROOM
MAIN
ENTRY
SECONDARY
ENTRY
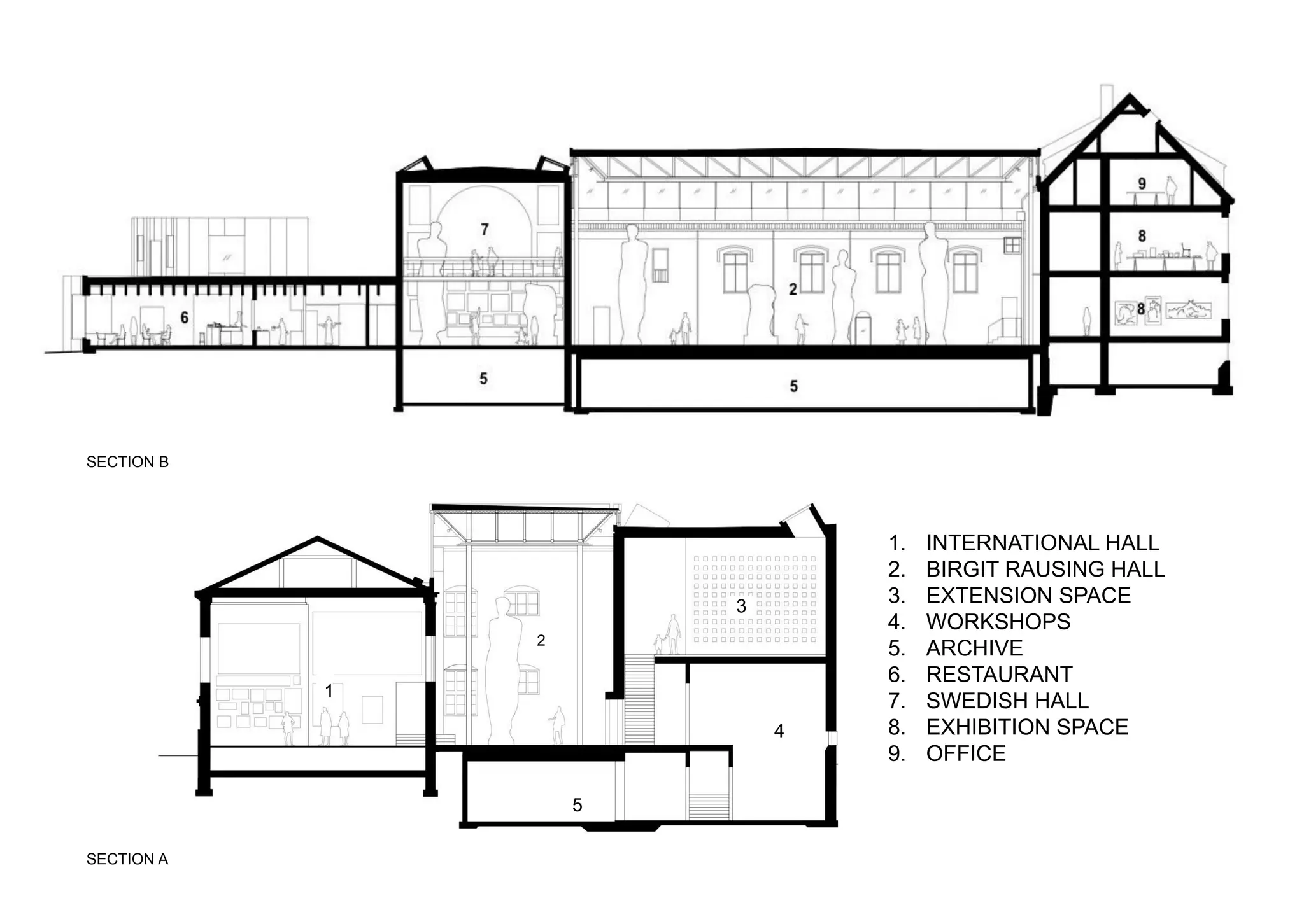
THE INNER COURTYARD WAS COVERED TO CREATE
BIRGIT RAUSING HALL
1. A GREAT VARIATION IN HEIGHT
2. A PROBLEM OF HOW TO SUPPORT LOADS IN THE UNDERLYING STRUCTURE
3. A DESIRE NOT TO DISTURB THE EXISTING FACADES AROUND THE COURTYARD
.
4. A SOLUTION WITH A ROOF SOARING HIGH RESTING ON FOUR COLUMNS AND
SURROUNDED BY CLERESTORY LIGHT.
1. INTERNATIONAL HALL
2. BIRGIT RAUSING HALL
3. EXTENSION SPACE
4. WORKSHOPS
5. ARCHIVE
6. RESTAURANT
7. SWEDISH HALL
8. EXHIBITION SPACE
9. OFFICE
SECTION A
SECTION B
1
2
5
4
3
NORTH EAST FACADE
SOUTH WEST FACADE
NORTH WEST FACADE
ENTRANCE HALL
INTERNATIONAL HALL
RESTAURANT
SWEDISH HALL
MONOLOGUE ART MUSEUM
ARCHITECTS: WUTOPIA LAB
PROJECT LOCATION: QINHUANGDAO, CHINA
AREA: 1272 m²
YEAR: 2022
CONCEPT:
CREATING A TRANQUIL INTROVERTED SPACE FOR ALLOWING ONE TO BE ALONE IN AN ARTISTIC WAY AND TO BE
IN DIFFERENT SPACES AT THE SAME TIME AS BEING MULTI-FUNCTIONED
FUNCTIONS
MAIN :
ART GALLERY (EXHIBITION SPACE)
SMALL THEATER
YOGA ROOM
DANCING ROOM
SERVICES AND OTHERS:
RECEPTION
TEA ROOM
TOILETS
SWITCHROOMS
LOCKER ROOMS(WITH DANCING
ROOM AND YOGA ROOM)
STAIRS
DESIGN INSPIRATION
THE MOST ARTISTIC FEATURE OF CHINESE PAINTING IS THE LINE WHICH DEFINES SPACE AND FREQUENCY.
THE BOUNDARY OF THE MONOLOGUE IS SEEN AS A SHIFTING INK LINE.
● THE STARTING STROKE IS THE YOGA ROOM
● THE DRIED BRUSH IS THE FLOWER WALL
● THE ART GALLERIES THE STROKE THAT CONNECTS THESE
● THE THIN AND SOMEWHAT FAST IS THE CORRIDOR WITH A NIB
● THEN IT LEANS TO BECOME A SIDE PEAK FORMING A SLOW THICK LINE -THE ENLARGED ART MUSEUM
● THEN THE DANCE STUDIO IS A STROKE SLOWLY BACK TO THE NIB
MASSING
● EXHIBITION GALLERY STRETCHES
OUT IN SINUOUS LINES.
● AUDITORIUM- OVAL SHAPED
● YOGA ROOM- CYLINDRICAL
● DANCE ROOM-RECTANGULAR
PUBLIC
SEMI PUBLIC
PRIVATE
ZONING
PLAN
CIRCULATION CIRCULATION TYPE:
LINEAR CHAINING
GALLERY SECTION
DANCING HALL SECTION
STRUCTURE
MAIN STEEL STRUCTURE
● THE SMALL THEATER IS SHAPED BY A CONTINUOUS CLOSURE OF THE REINFORCED CONCRETE WALL PANEL
STRUCTURE
● AN ELLIPTICAL COLUMN STANDING ON THE POOL
● TO REDUCE SELF WEIGHT OF THE STRUCTURE AND THE ELEMENTS, THE ROOF IS MADE OF A WHOLE CAST
LAYER OF 40MM FINE STONE CONCRETE WITH RIBBED PATTERNED STEEL PLATES ON TOP TO ENSURE
THERMAL INSULATION AND WATERPROOF PERFORMANCE.
● INDEPENDENT COLUMN OVERHANGING BEAM STEEL UNITS IS SET UP IN THE NARROW CORRIDOR AND HID
THEM IN THE WALLS.
● THE SINGLE SPAN FRAME OVERHANGING BEAM STEEL STRUCTURE UNIT IS USED IN THE ENLARGED ART
MUSEUM SPACE.MAXIMUM OVERHANGING IS 4.6 METERS- ALLOWING NO VERTICAL ELEMENTS BLOCKING
THE VIEW OF WATER COURTYARD.
● FOR THE GLASS FORTRESS USED FOUR HANGING PILLARS SUSPENDED FROM THE MAIN FRAME BEAM AND
HIDDEN IN THE CLOSET TO LIFT THE SECOND FLOOR SLAB.THE STAIRCASE WAS ALSO SUSPENDED FROM
THE FLOOR SLAB LIGHTLY.
● TO KEEP THE 5M HIGH FLOWER WALL SAFE IT WAS NECESSARY TO ADD STRUCTURAL COLUMNS EVERY 3.4
M BEHIND THE FLOWER WALL.THE FLOWER WALL IS A GRC BRICK MADE OF 3% STEEL FIBER CONTENT
USING THE PREMIXED METHOD.
FLOWER WALL
MATERIALS
● THE INTERIOR AND EXTERIOR WALLS ARE MADE OF GLASS, SOLID WALLS, FLOWER WALLS
● TURNED THE HIGHEST
CIRCULAR YOGA
ROOM FACADE INTO
GRADIENT OF
STAINED GLASS
● DESIGNED THE DANCE STUDIO AS A
TRANSLUCENT GLASS BOX WITH ENOUGH
LIGHT BUT FILTERINGTHE OUTDOOR
SCENERY AS BACKDROP BECAUSE THE
BEAUTIFUL LANDSCAPE CAN INTERFERE
WITH THEIR EMOTIONS.
EXPERIENCE OF SPACES (THROUGH THE USE OF LIGHT)
THE MUSEUM IS LIKE SLOWLY UNFOLDING A HAND SCROLL.
● THE SMALL THEATER IS THE ENTRANCE
FOYER OF THE
MUSEUM.(COMPARATIVELY DARK)
● THE QUIET WATER COURTYARD SLOWLY REVEALS ITSELF
ALONG THE OPEN CORRIDOR, PASSING THROUGH THE
COLORFUL YOGA ROOM TO THE BRIGHT ART GALLERY
● THEN THE LIGHT FADES, THE PATH GETS NARROWER,ALMOST TO MISS THE TEAROOM HIDDEN BEHIND THE
WALL. IN THE END THERE IS A DANCE STUDIO.
LANDSCAPING
THE COURTYARD:
● IT WAS ORIGINALLY DESIGNED TO HAVE A WHITE DRY CLAY STONE FLOOR.
BUT TO EXPRESS A SOMEWHAT MELANCHOLIC MOOD AFTER REFLECTION,
INSPIRED FROM THE PAINTING OF SIX GENTLEMEN, A SHALLOW WATER
GARDEN COURTYARD WAS DESIGNED.
● CREATES A NEW DEPTH IN THE VISUAL ASPECT,
● THE WHITE BUILDING IS SURROUNDED BY A BLACK POOL OF SILENCE
WHICH ALLOWS ONE TO EXPERIENCE SOLITUDE.
● TO FORM THE DESIGN OF WATER WITHIN WATER, THE WATER FLOWS
FROM THE CENTER OF THE COURTYARD, SPIRALS AND TWISTS, THEN
FLOW TOWARD THE SEA THROUGH THE CONNECTION OF THE EXTERNAL
WATER SYSTEM.
TREES:USED SIX TYPES OF TREES TO SYMBOLIZE SIX GENTLEMEN OF THE WATER GARDEN
● PINE
● ELM
● CYPRESS
● MAPLE
● OAK
● CELTIS
TATE MODERN MUSEUM
AR. HERZOG & DE MEURON
IT HOUSES THE UNITED KINGDOM'S NATIONAL COLLECTION
OF INTERNATIONAL MODERN AND CONTEMPORARY ART.
SITE AREA: 8.48-ACRE
THE SITE IS 650-FEET-LONG ON NORTH SIDE
IT HAS A CHIMNEY STACK 325' TALL
GALLERIES FOR DISPLAY & EXHIBITION: 84,250 SQ FT
TURBINE HALL THAT COVERS A STREET: 35,520 SQ FT
240-SEAT AUDITORIUM ON THE LEVEL 01
9 ELEVATORS, 4 FOR PUBLIC
6 ESCALATORS
2 CAFES: 240-SEAT AND BARS WITH 70-SEAT PLUS 30-SEAT
TOTAL COST £134 MILLION
USUAL VISITORS PER YEAR: 1,432,991
BY VOGT LANDSCAPE ARCHITECTS
● A LANDSCAPE POWERFUL ENOUGH TO CONTRAST THE RIVER
SHORE WITHOUT BECOMING TRIVIAL.
● A TIMELESS LANDSCAPE TO PERSIST BETWEEN THE DAILY
CHANGING TIDES OF RIVER THAMES AND THE URBAN
SURROUNDINGS CHANGING OVER THE YEARS.
● THE SITE LIES AT THE THRESHOLD OF A DYNAMIC URBAN
LANDSCAPE DEMANDING FOR A PLACE OFFERING
RECREATION TO RESIDENTS AND SPACE FOR THE NUMEROUS
VISITORS OF TATE.
● A SPACE OFFERING QUIETNESS AND AT THE SAME TIME
ALLOWING PEDESTRIANS AND CYCLISTS TO PASS
UNHINDERED.
https://www.vogt-la.com/tate_modern_london_2001_fr
LANDSCAPE
Bankside Power
Station
● DESIGNED BY GILBERT
SCOTT
● CONSISTED OF A TURBINE
HALL OF 35 METRES HIGH
AND 152 METRES LONG,
● THE BOILER HOUSE
● A SINGLE CENTRAL
CHIMNEY.
1947
TATE MODERN
MUSEUM
● REDESIGNED BY HERZOG
AND DE MEURON
● THE TURBINE HALL
BECAME A DRAMATIC
ENTRANCE AND DISPLAY
AREA
● THE BOILER HOUSE
BECAME THE GALLERIES.
1996
SWISS HOUSE
THE REDUNDANT OIL TANKS
WERE REUSED AS GALLERY
SPACE AND NEWLY THE
SWISS HOUSE WAS
INTRODUCED
2009
A SUSTAINABLE APPROACH
CIRCULATION
CIRCULATION OF FIRST FLOOR CIRCULATION OF GROUND FLOOR
VERTICAL CIRCULATION OF THE OLD TATE MODERN AND THE SWITCH HOUSE
RESTAURANTS AND CAFE
OFFICES AND STUDIOS
COLLECTION ROOMS
EXHIBITION GALLERY
FUNCTIONAL ZONING:
COLLECTION ROOM & STORAGE
OFFICES AND STUDIOS
SERVICES
FLOOR VIEW
SECTIONAL VIEW
FLOOR TO FLOOR ZONING AND SPACES
FORM DERIVATION
THE SWITCH HOUSE
● PRECAST BEAM COLUMN
STRUCTURAL LAYOUT
● COLUMNS AT THE EDGES ARE
SLANTED TO CREATE A DYNAMIC
FORM
● USE OF PERFORATED BRICKS TO
CREATE DYNAMIC LIGHT WORKS
INDOORS AND ALLOWS PROVISION
FOR WINDOWS
STRUCTURAL ANALYSIS
STAIRWAYS
SPATIAL ANALYSIS
● CIRCULAR SCULPTURE
STAIRWAY TO CREATE
DYNAMICITY
● RUSTIC FLOORING AND
CONCRETE SLABS CREATE A
COMPLEMENTARY VIBE
THE SEMI OUTDOOR LIKE
CONCOURSES SERVES BOTH
FOR CIRCULATION AND A
TRANSITION ZONE FROM THE
MECHANICALLY MAINTAINED
GALLERIES TO THE NATURE.
GALLERY SPACES
PERFORATED BRICKING ALLOWS INTRICATE LIGHTING EFFECT.
BRICK FACADE AND LIGHTING
EXHIBITIONS:
AS THE OLD BUILDING IS OF STEEL
STRUCTURE. IT ALLOWS MORE FREE
SPACES TO FORM GALLERIES AND
EXHIBITION HALLS
THE COLLECTIONS ARE DISPLAYED
IN HALLS WITH CONTRASTING
FLOORS AND LIGHT/WHITE WASHED
WALLS ALLOWING THE ARTS TO BE
ENHANCED
THE TURBINE HALL
● SLIT WINDOWS AT THE END
ALLOWS CONTROLLED LIGHT INTO
THE GALLERY
● THE LARGE HEIGHTED GALLERY
ADDS TO THE CIRCULATION SPACE
AS WELL AS INSTALLATION SPACE.
THE TANKS
● TWO THE THE THREE GROUNDED
TANKS OF 30M DIA AND 7M HEIGHT
ARE USED AS GALLERIES
SHANDONG ART GALLERY
ARCHITECTS: TJAD
● 12 EXHIBITION HALLS IN THE ART GALLERY FROM FIRST FLOOR TO THE
FOURTH FLOOR
● TOTAL AREA IS 19,700 SQUARE METERS
● THE ACTUAL AVAILABLE ROUTE IS 1,600 METERS
CONCEPT
“MOUNTAIN AND CITY LEANS WITH EACH OTHER,
SPRING AND CITY REFLECTS WITH EACH OTHER”
● FUSION OF CITY AND MOUNTAIN
● CITY REPRESENTED BY THE CUBE
● MOUNTAIN REPRESENTED BY THE CUBE VARIANT
● THE SKYLIGHT DESIGN ON THE TOP FLOOR OF THE BUILDING SYMBOLIZES THE SPRING
LIGHTWELL
(BETWEEN MAIN HALL AND STAIRS)
A CUBE VARIANT
THE SKYLIGHT DESIGN ON THE TOP FLOOR
OF THE BUILDING SYMBOLIZES THE SPRING
● THE GALLERY AIMS TO CREATE A STRUCTURE
SHAPED LIKE THE CHINESE CHARACTER "品" BY
ALIGNING WITH THE SQUARE SHAPE OF THE
MUSEUM AND ARCHIVES ROOM AND THEIR AXIS
RELATIONSHIP
● THE ART GALLERY NEEDS TO CREATE SQUARE IN
THE FRONT TOGETHER WITH THE MUSEUM, IN
ORDER TO TAKE SHAPE OF A CERTAIN LENGTH
● THE BODY OF THE BUILDING TRANSITS FROM
4-FLOOR MOUNTAIN SHAPE TO 6-FLOOR
SQUARE SHAPE
● THE STYLE OF THE BUILDING UTILIZES
BACKWARD STEP SHAPE FROM SOUTH TO
NORTH
● THE NUMBER OF THE FLOOR GRADUALLY
INCREASES TOWARD NORTH
● THE SHAPE CHANGE FROM TRAPEZOID TO CUBE
● THE IMAGE OF CHINESE TRADITIONAL GARDEN
ALSO INTEGRATES TO THE DESIGN CONCEPT
● TO MAXIMIZE SPACE WITHIN THE GALLERY'S
LIMITED SCALE, THE DESIGNER CREATED A
TRAPEZOID TURNING SPACE ON THE SOUTH
SIDE THAT ENHANCES DIAGONAL SPACE
● IT ALSO MAXIMIZE SPACE AND CREATE A MORE
DYNAMIC AND INTERESTING ENVIRONMENT
● CORRESPONDING TO TWO GAPS ON THE
EXTERIOR OF THE BUILDING WHICH ENHANCES
THE DIAGONAL SPACE
● THIS MEANS THAT THE DESIGN OF THE GALLERY'S
TRAPEZOID TURNING SPACE ENABLES THE
DIFFERENT COMPONENTS INVOLVED IN
CONSTRUCTING THE SPACE TO MOVE AROUND
AND ENHANCE THE OVERALL FLOW AND
MOVEMENT WITHIN THE GALLERY.
MASSING
MUSEUM
ARCHIVE
MOUNTAIN SHAPE TO SQUARE SHAPE
BACKWARD STEP SHAPE
1 UNDERGROUND GARAGE
2 MUSEUM WAREHOUSE
3 FRAMING
4 PHOTOGRAPHY
5 CYLINDER ROOM
6 CAFETERIA
7 SUNKEN COURTYARD
8 KITCHEN PROCESSING AREA
9 KITCHEN WAREHOUSE
10 COOLING MACHINE ROOM
11 SUBSTATION
12 FRESH AIR ROOM
13 TECHNICAL ROOM
14 WEAK ELECTRICAL MACHINE ROOM
15 RECLAIMED WATER MACHINE ROOM
16 AIR CONDITIONING MACHINE ROOM
17 GARBAGE COLLECTION POINTS
18 FIRE POOL
19 DUTY ROOM
GROUND FLOOR PLAN
PROJECT LOCATION: JINAN SHI, CHINA
AREA: 52138 m²
YEAR: 2013
1. SHANDONG PROVINCIAL ART MUSEUM
2. SHANDONG PROVINCIAL MUSEUM
3. SHANDONG PROVINCIAL ARCHIVES
4. PLANNING CULTURAL BUILDING
5. SUNKEN SQUARE
6. THE MAIN SQUARE OF THE WENBO CENTER
7. OUTDOOR EXHIBITION HALL OF THE ART MUSEUM
ZONING AND CIRCULATION
VERTICAL CIRCULATION
PUBLIC SPACE (CAFE))
SUNKEN COURTYARD
FIRST FLOOR
1 FOYER
2 CENTRAL HALL
3 SERVICES
4 STORAGE BAGS
5 CAFES
6 BOUTIQUES
7 LECTURE HALL
8 VIP ROOM
9 HALL
10 PREPARATION AREA
11 FREIGHT LANES
12 PHOTOGRAPHY
13 PACKING
14 AIR CONDITIONING MACHINE ROOM
15 FIRE CONTROL ROOM
16 MANAGEMENT
17 PUNCH
MEZZANINE FLOOR
1 LECTURE HALL
2 LECTURE THEATERS
3 INTERACTIVE AREA
4 TRAINING CLASSROOM
5 MOBILE ROOM
6 AIR CONDITIONING ROOM
7 MANAGEMENT
8 WAREHOUSE
9 PUNCH
ZONING AND CIRCULATION
VERTICAL CIRCULATION
PUBLIC SPACE (CAFE))
SERVICE
1 EXHIBITION HALL
2 PREPARATION AREA
3 AIR-CONDITIONING ROOM
4 PUNCH
THIRD FLOOR
ROUND
TOUR LOOP
SECOND FLOOR
1 SECOND FLOOR LOBBY
2 EXHIBITION HALL
3 PREPARATION AREA
4 VIP ROOMS
5 SERVE
6 AIR-CONDITIONING ROOM
7 TERRACES
8 PUNCH
ROUND TOUR
LOOP
AXONOMETRIC VIEW
ZONING AND CIRCULATION
VERTICAL CIRCULATION
PUBLIC SPACE (CAFE))
SERVICE
FIFTH FLOOR
1 OFFICE
2 RECEPTION ROOM
3 ART STUDY
4 FIXES
5 APPRECIATION STUDIO
6 REFERENCE ROOM
7 NETWORK CENTER
8 STORAGE ROOM
9 AIR CONDITIONING MACHINE ROOM
10 ANTI-CORROSION WOODEN FLOOR AND ROOF
11 PLANTED ROOF
1 EXHIBITION HALL
2 GALLERY
3 OFFICES
4 INTERNATIONAL ACADEMIC EXCHANGE CENTER
5 INTERNATIONAL ACADEMIC EXCHANGE CENTER RECEPTION AREA
6 VIP RECEPTION
7 AIR-CONDITIONING MACHINE ROOM
8 PUNCH
9 TERRACES
10 ROOF TERRACE
FOURTH FLOOR
ZONING AND CIRCULATION
VERTICAL CIRCULATION
PUBLIC SPACE (CAFE))
SERVICE
OFFICE
EXHIBITION HALL
OFFICE
SHOWROOM 3
KING HALL 7
AISLE
DINING AREA
EQUIPMENT ROOM
TWO SCREEN LOBBY
MAIN HALL
TREASURE
LIBRARY
WAREHOUSE
(FOOD & DRINKS)
CENTRAL HALL
SCREENIN
G ROOM
AUDITORIA LECTURE
CLASSROOM AISLE
SINK
BUFFET
EXCHANGE ROOM
(CAFE)
PUMP
HOUSE
GARAGE
BACKUP
COMPUTER
ROOM
AISLE
AISLE
AISLE
AISLE
AISLE
AISLE
EXHIBITION HALL
OUTDOOR
COURTYARD
HALL AISLE
WAREHOUSE
AISLE
AISLE
AISLE
AISLE
ART
RESEARCH
ART APPRECIATION STUDIO
REST AREA
AUDITORIA LECTURE
CLASSROOM
EXHIBITION HALL
ROOM
CENTRAL HALL
EXCHANGE ROOM (CAFE)
BUFFET
STAIRS
GARAGE
BACKUP
COMPUTER ROOM
ROOM
EXHIBITION HALL
HALL
POWER STATION
CENTRAL HALL
GARAGE
HALL
KITCHEN
KITCHEN
EXHIBITION HALL
ROOM
ROOM
EXHIBITION HALL
AISLE
AIR
CONDITION
ER ROOM
ROSTRUM
ROOM
EXHIBITION HALL
FOYER
(SECURITY
CHECK)
SUBSTATION
PARKING
RENT
PROCESSING
PRIMARY ENTRANCE
TWO GAPS CREATED
ON THE SOUTHERN
FACADE TO INCREASE
DIAGONAL SPACE
SECONDARY
ENTRANCES
INCLINED SURFACES TO CREATE
A MORE DYNAMIC AND
INTERESTING ENVIRONMENT
AUDITORIA LECTURE CLASSROOM
ESCALATOR LEADING TO
THE SECOND FLOOR
MAIN HALL
DYNAMIC AND
INTERESTING SPACE

Art Gallery case study.pdf

  • 1.
    CASE STUDY ONART GALLERY 202132003 202132007 202132022 202132024 202132029
  • 2.
    ART GALLERY PUBLIC ZONE(CONTROLLED) ● ENTRANCE, ORIENTATION, CLOAKROOM, PAY DESK, WC ● CAFE, BAR, RESTAURANTS, SHOP ● CONFERENCE ROOMS ● EXHIBITION AREA(PERMANENT, TEMPORARY) ● LIBRARY ● LECTURE HALLS, AUDITORIUMS PRIVATE ZONE ● ADMINISTRATION ● RESTORATION ADMINISTRATION ● ARCHIVE ● CATALOGUE COPY ROOM ● LIBRARY ● ADMINISTRATION DIRECTOR RESTORATION ● RESTORATION AND CONSERVATION WORKSHOP ● STORE TYPES OF ART GALLERY ● MODERN ART GALLERY ● CONTEMPORARY ART GALLERY ● SCULPTURE ART GALLERY ● PHOTOGRAPHY ART GALLERY ● ABSTRACT ART GALLERY ● HISTORICAL ART GALLERY ● CULTURAL ART GALLERY ● POTTERY ART GALLERY ● TEXTILES ART GALLERY ● ART GALLERY PAINTINGS PROGRAMME DISPLAY CONCEPT SPATIAL ARRANGEMENT ORIENTED ON DISPLAY ITEMS OPEN PLAN SYSTEMATICALLY ORIENTED MAIN AND SIDE ROOMS (CORE AND SATELLITE ROOMS) THEMATICALLY ORIENTED ROUND TOUR LOOP, LINEAR CHAINING COMPLEX ORIENTED LABYRINTH, COMPLEX LAYOUT OF A DISPLAY ROOM OPEN PLAN MAIN AND SIDE ROOMS LINEAR CHAINING LABYRINTH ROUND TOUR LOOP COMPLEX
  • 3.
    ZONING: ACC. TOACCESSIBILITY LIMITED ACCESS ZONE PUBLIC ACCESS ZONE BANGLADESH SHILPAKALA ACADEMY, DHAKA LOCAL CASE STUDY VERTICAL CIRCULATION AREA WASHROOM AND SERVICE SERVICES GALLERY SPACE ENTRANCE VERTICAL CIRCULATION AREA LOBBY AND CORRIDOR LIMITED ACCESS ATRIUM AND DOUBLE HEIGHTED SPACE
  • 4.
  • 5.
    NATIONAL DRAMA GALLERY NATIONAL CULTURAL ANDDANCE GALLERY NATIONAL ART GALLERY NONDONMONCHO SECONDARY STAGE GUARD ROOM
  • 6.
    STRUCTURAL SYSTEM: COMPOSITE SLAB DROPPANEL CAPITAL POST USE OF BEAM UNDER THE FLIGHT TO CARRY THE LOAD OF THE STAIRS DROP PANEL INCREASES THE SHEAR STRENGTH OF THE FLAT SLAB FLOOR WAFFLE SLAB OVER LARGER SPACES USE OF FREE STANDING COLUMNS IN DOUBLE HEIGHTED ENTRY PORCH MAXIMUM OPENING BECAUSE OF NO STRUCTURAL USE OF WALLS AND BEAMS CONTINUOUS BEAM IN ATRIUM SPACE
  • 7.
    ALLOWING NATURAL LIGHTINSIDE OF THE GALLERY TO CREATE A PLAY OF LIGHT AND SHADOW SPATIAL QUALITY CONTROLLED INDOOR EXHIBITION HALL: CREATED USING ATRIUM THAT SERVES THE PURPOSE OF LARGE INSTALLATION HALL LARGE OPEN GALLERY CURRENTLY THE SPACE ADJACENT TO IS BEING USED AS A PRAYER SPACE
  • 8.
    SPATIAL QUALITY USE OFARTIFICIAL LIGHT AND DIFFERENT COLORED WALLS TO CREATE THE IMPACT OF THE ART PIECES AS NEEDED CONTROLLED LIGHT IS USED IN EXHIBITION HALLS USE OF DARK INTIMATE SPACES CONTROLLED LIGHT
  • 9.
    SCULPTURAL STAIRS TO CREATE AVISUAL CHARACTER STAIR GETTING INCORPORATED WITH INSTALLATION RECEPTION COUNTER UNDER THE STAIRS SCULPTURAL STAIRS AND SPACE
  • 10.
    EXHIBITION WALLS ANDINTERACTIVE ART CORNER AUDITORIUM OVER THE ENTRANCE PORCH WAFFLE SLAB SPATIAL QUALITY
  • 11.
    TEMPORARY WALL FOR EXHIBITION OF PAINTINGS CREATING CORNERWITH TEMPORARY WALL TO DISPLAY THE SCULPTURE CIRCULATION SPACE BETWEEN TWO INSTALLATION CREATING CIRCULATION SPACE AROUND AN INSTALLATION PAINTING SERIES ON A CONTINUOUS WALL
  • 12.
    SHUYANG ART GALLERY CHINA ARCHITECT:DANSHEN DONG AREA: 10475 SQM LOCATED IN THE HOMETOWN OF TRADITIONAL CALLIGRAPHY, SHUYANG, JIANGSU PROVINCE, AND IS POSITIONED AS THE CALLIGRAPHY ART GALLERY TO DISPLAY AND INHERIT SHUYANG CALLIGRAPHIC STYLE
  • 13.
    CONCEPT SEAL RICE PAPER INK ZHENGBANQIAO’S CALLIGRAPHIC STYLE - LIGHT AND HEAVY, OPENING AND CLOSING OF THE CALLIGRAPHY THROUGH CONTROLLING THE SIZE OF THE BUILDING, THE SPACE, CONTRAST OF THE MATERIAL. PURE SPACE EXPERIENCE WITH PURE COLOURS THE SCATTERED WHITE AND BLACK BLOCKS- A CLASSIC ARTISTIC CONCEPTION IN MODERN DESIGN LANGUAGE COMPOSITION OF VOLUME CREATING A FLOW OF LIGHT AND HEAVY
  • 14.
    DESIGN STRATEGY LARGEST EXHIBITIONHALL ALONG THE STREET RED-BRICKED EXTERIOR WALL LIKE A CONDENSED SEAL PRINTED ON THE ELEGANT SCROLL OF INK AND WASH TWO CONCAVE CUTS ON THE CORNERS- INTENSIFIES THE ICONIC IMAGE ALONG THE STREET FORMING A UNIQUE AND LASTING APPEAL RED BRICK- YIXING CLAY BRICK 3 TYPES OF LINING- ● LOWER PART - BRICKHEAD OUTSTAND THE WALL ● UPPER PART - INTRUDES THE WALL ● CUT PART - FLATLY LINED WITH A HEIGHT OF 16M, IT USES CONCRETE MASONRY WALL AS BRICK WALL WOULD MAKE THE BOTTOM VERY THINK. THERE IS A LIGHT WELL THROUGH 3 FLOORS- CREATES BRIGHT AND TRANSPARENT INDOOR SPACE. THE GRAY SPACE - THE VOLUME OF THE BODY IS DUG IN INTROVERTED MANNER AND THE OUTDOOR SPACE CAN BE EXTENDED INTO THE INDOOR REST AREA. GRAYSCALE CHANGES IN GRANITES IN THE PAVED ROAD AND ROOFED COURTYARDS - INSPIRED BY THE ABSTRACT PATTERN OF INK SPREADING ACROSS PARCHMENT. .VISITORS ROAM THE ALLEYS AND COURTYARDS AS IF THEY ARE WALKING ON BLACK AND WHITE PAINTINGS.
  • 15.
    DESIGN STRATEGY INK VOLUMEARE CUT AND PAINTED WITH DARK GREY FLUOROCARBON PAINT - BRIGHT AND SMOOTH TEXTURE. EMBODIES SIMPLICITY AND DIGNITY OF CALLIGRAPHY ARTWORKS PRESENTS SUBTLE COLOUR CHANGE IN THE BLUE SKY SIMPLE AND PROFOUND TEXTURE LIKE AN INK BLOCK ROUNDED CORNERS- SENSE OF GRAVITY IN CALLIGRAPHY THE MASONRY WALL IS COVERED WITH 60 CM THICK GROUTING CONCRETE LAYER AND PAINTED WITH DARK GRAY FLUOROCARBON PAINT AFTER POLISH. THE WHITE VOLUME SELECTS PREFABRICATED CONCRETE HANGING BOARD WITH VERTICAL CHISEL- REPRESENTS RICE PAPER FORMS CONTRAST TO THE SMOOTH FINE INK SURFACE BOTTOM OF THE BODY IS OVERHANGING TO SHOW THE FLOATING STATE- UNCONFINED AND DETACHED SPIRIT OF CALLIGRAPHY RESPONDS TO FLEXIBLE ELEGANT CHARACTERISTICS OF CALLIGRAPHY ARTWORKS.
  • 16.
    DESIGN STRATEGY THE EXHIBITIONWALLS ARE OPEN SPACE WITHOUT COLUMNS, WHICH CAN BE FREELY ARRANGED ACCORDING TO THE EXHIBITION NEEDS. WALLED SURFACES EXHIBITS THE CALLIGRAPHY ARTWORKS AND CENTRALLY ORGANISED ART PIECES CREATES A LOOPLIKE CIRCULATION ROUTE. TRANQUIL WATER IN THE ENTRANCE- KEEPS OFF NOISE FROM OUTSIDE. INTRODUCES THE VISITORS INTO THE GALLERY BY A BRIDGE - HELPS TO COMPOSE THE MIND QUICKLY BEFORE ENTERING THE EXHIBITION HALL. AS BUILDINGS BLEND INTO EACH OTHER, AN INK PAINTING IS FORMED.
  • 17.
    1. ENTRANCE FOYER 2.LIGHT WELL 3. CALLIGRAPHY EXHIBITION HALL 4. CALLIGRAPHY FORUM 5. NARROW ALLEY 6. ENTRANCE POOL 7. INNER COURTYARD 8. OFFICE 9. GREY SPACE REST AREA 10. CALLIGRAPHY CREATION ROOM 11. PEN HALL 12. ROOF GARDEN 13. ROOF EQUIPMENT AREA 1. MAIN ENTRANCE OF THE SITE 2. ENTRANCE 3. RED BRICK EXHIBITION 4. BLACK AND WHITE EXHIBITION HALL 5. OFFICE 6. CALLIGRAPHY GRAND FORUM 7. INNER COURTYARD 8. ENTRANCE POOL 9. SECONDARY ENTRANCE 10. LIGHTWELL 11. PARKING 12. OUTDOOR GALLERY MASTER PLAN 1ST FLOOR PLAN 2ND FLOOR PLAN 3RD FLOOR PLAN
  • 18.
    1. ENTRANCE FOYER 2.LIGHTWELL 3. CALLIGRAPHY EXHIBITION HALL 4. CALLIGRAPHY FORUM 5. NARROW ALLEY 6. ENTRANCE POOL 7. INNER COURTYARD 8. OFFICE 9. GREY SPACE REST AREA 10. CALLIGRAPHY CREATION ROOM 11. PEN HALL 12. ROOF GARDEN
  • 19.
    CIRCULATION LIKE THE ORGANICSTROKES OF A CALLIGRAPHIC BRUSH ON PAPER, VISITORS FLOW FREELY THROUGH THE GALLERY’S INDOOR AND OUTDOOR SPACES. THE SPACE RELATIONSHIP IS CONTROLLED BY THE LAYOUT OF “SPARSE ENOUGH TO RUN HORSE, DENSE ENOUGH WITH NO NEEDLE”. IT IS CLOSE TO KEEP A NARROW LANE OF ONLY 2 METERS WIDE WITH BOTH SIDES OF PURE WHITE AND BLACK VOLUME- CREATES A FEELING OF WALKING AMONG THE BOOKS. THE NARROW SPACES TURN TO OPEN IN COURTYARD AND CREATE AN OPEN SPACE EFFECT ENTRANCE VERTICAL CIRCULATION
  • 20.
    DESIGN CHALLENGE RELATIVELY TRADITIONALMETHOD OF BUILDING DUE TO LIMITED BUDGET AND MANPOWER. USE OF ECONOMIC MATERIAL AND SIMPLE STRUCTURE. EG: LOCAL RED BRICK, CONCRETE, GRANITE ECT. THE BIGGEST CHALLENGE WAS CREATING 5 CONCAVE CORNERS. THE 3 DIMENSIONAL CURVED SURFACE WAS BROKEN INTO 2 DIMENSIONAL CURVE WITH DIFFERENT ELEVATIONS BASED ON THE PATTERN OF CONTOUR LINES, TAKING 2O CM AS THE DISTANCE BETWEEN THE LINES. ACCORDING TO THE CONTOUR LINES, THE CONCAVE SURFACE WAS BUILT LAYER BY LAYER ON GROUND AND LIFTED UPWARDS LATER.
  • 21.
  • 22.
    ● MUSEUM OFARTISTIC PROCESS AND PUBLIC ART CONSISTS OF BUILDINGS FROM SIX DIFFERENT PERIODS WHICH ALL HAVE BEEN CONNECTED TO ONE. ● HAS GRADUALLY GROWN TO A LARGE CLUSTER OF BUILDINGS THAK, APART FROM HOUSING THE WORLD’S LARGEST COLLECTION OF SKETCHES. SITE PLAN THE IDENTITY OF THE MUSEUM EXTENSIONS ● FOYER ● RESTAURANT ● SHOP ● MULTIPURPOSE HALL
  • 23.
    SCULPTURE PARK IN FRONT OFTHE MUSEUM ENTRANCE HALL INTERNATIONAL HALL RESTAURANT SWEDISH HALL
  • 24.
    7 PRIVATE PUBLIC 1. SCULPTURE PARK 2.POND 3. TERRACE 4. RESTAURANT 5. ENTRANCE HALL 6. RECEPTION/GIFT SHOP 7. WASHROOM 8. KITCHEN 9. SWEDISH HALL 10. INTERNATIONAL HALL 11. BIRGIT RAUSING HALL 12. ARCHIVE 13. MEXICAN COLLECTION 14. MOORE ROOM MAIN ENTRY SECONDARY ENTRY
  • 25.
    THE INNER COURTYARDWAS COVERED TO CREATE BIRGIT RAUSING HALL 1. A GREAT VARIATION IN HEIGHT 2. A PROBLEM OF HOW TO SUPPORT LOADS IN THE UNDERLYING STRUCTURE 3. A DESIRE NOT TO DISTURB THE EXISTING FACADES AROUND THE COURTYARD . 4. A SOLUTION WITH A ROOF SOARING HIGH RESTING ON FOUR COLUMNS AND SURROUNDED BY CLERESTORY LIGHT.
  • 26.
    1. INTERNATIONAL HALL 2.BIRGIT RAUSING HALL 3. EXTENSION SPACE 4. WORKSHOPS 5. ARCHIVE 6. RESTAURANT 7. SWEDISH HALL 8. EXHIBITION SPACE 9. OFFICE SECTION A SECTION B 1 2 5 4 3
  • 27.
    NORTH EAST FACADE SOUTHWEST FACADE NORTH WEST FACADE
  • 28.
  • 29.
  • 30.
    PROJECT LOCATION: QINHUANGDAO,CHINA AREA: 1272 m² YEAR: 2022 CONCEPT: CREATING A TRANQUIL INTROVERTED SPACE FOR ALLOWING ONE TO BE ALONE IN AN ARTISTIC WAY AND TO BE IN DIFFERENT SPACES AT THE SAME TIME AS BEING MULTI-FUNCTIONED FUNCTIONS MAIN : ART GALLERY (EXHIBITION SPACE) SMALL THEATER YOGA ROOM DANCING ROOM SERVICES AND OTHERS: RECEPTION TEA ROOM TOILETS SWITCHROOMS LOCKER ROOMS(WITH DANCING ROOM AND YOGA ROOM) STAIRS
  • 31.
    DESIGN INSPIRATION THE MOSTARTISTIC FEATURE OF CHINESE PAINTING IS THE LINE WHICH DEFINES SPACE AND FREQUENCY. THE BOUNDARY OF THE MONOLOGUE IS SEEN AS A SHIFTING INK LINE. ● THE STARTING STROKE IS THE YOGA ROOM ● THE DRIED BRUSH IS THE FLOWER WALL ● THE ART GALLERIES THE STROKE THAT CONNECTS THESE ● THE THIN AND SOMEWHAT FAST IS THE CORRIDOR WITH A NIB ● THEN IT LEANS TO BECOME A SIDE PEAK FORMING A SLOW THICK LINE -THE ENLARGED ART MUSEUM ● THEN THE DANCE STUDIO IS A STROKE SLOWLY BACK TO THE NIB MASSING ● EXHIBITION GALLERY STRETCHES OUT IN SINUOUS LINES. ● AUDITORIUM- OVAL SHAPED ● YOGA ROOM- CYLINDRICAL ● DANCE ROOM-RECTANGULAR
  • 32.
  • 33.
  • 34.
  • 35.
    STRUCTURE MAIN STEEL STRUCTURE ●THE SMALL THEATER IS SHAPED BY A CONTINUOUS CLOSURE OF THE REINFORCED CONCRETE WALL PANEL STRUCTURE ● AN ELLIPTICAL COLUMN STANDING ON THE POOL ● TO REDUCE SELF WEIGHT OF THE STRUCTURE AND THE ELEMENTS, THE ROOF IS MADE OF A WHOLE CAST LAYER OF 40MM FINE STONE CONCRETE WITH RIBBED PATTERNED STEEL PLATES ON TOP TO ENSURE THERMAL INSULATION AND WATERPROOF PERFORMANCE. ● INDEPENDENT COLUMN OVERHANGING BEAM STEEL UNITS IS SET UP IN THE NARROW CORRIDOR AND HID THEM IN THE WALLS. ● THE SINGLE SPAN FRAME OVERHANGING BEAM STEEL STRUCTURE UNIT IS USED IN THE ENLARGED ART MUSEUM SPACE.MAXIMUM OVERHANGING IS 4.6 METERS- ALLOWING NO VERTICAL ELEMENTS BLOCKING THE VIEW OF WATER COURTYARD. ● FOR THE GLASS FORTRESS USED FOUR HANGING PILLARS SUSPENDED FROM THE MAIN FRAME BEAM AND HIDDEN IN THE CLOSET TO LIFT THE SECOND FLOOR SLAB.THE STAIRCASE WAS ALSO SUSPENDED FROM THE FLOOR SLAB LIGHTLY. ● TO KEEP THE 5M HIGH FLOWER WALL SAFE IT WAS NECESSARY TO ADD STRUCTURAL COLUMNS EVERY 3.4 M BEHIND THE FLOWER WALL.THE FLOWER WALL IS A GRC BRICK MADE OF 3% STEEL FIBER CONTENT USING THE PREMIXED METHOD. FLOWER WALL
  • 36.
    MATERIALS ● THE INTERIORAND EXTERIOR WALLS ARE MADE OF GLASS, SOLID WALLS, FLOWER WALLS ● TURNED THE HIGHEST CIRCULAR YOGA ROOM FACADE INTO GRADIENT OF STAINED GLASS ● DESIGNED THE DANCE STUDIO AS A TRANSLUCENT GLASS BOX WITH ENOUGH LIGHT BUT FILTERINGTHE OUTDOOR SCENERY AS BACKDROP BECAUSE THE BEAUTIFUL LANDSCAPE CAN INTERFERE WITH THEIR EMOTIONS.
  • 37.
    EXPERIENCE OF SPACES(THROUGH THE USE OF LIGHT) THE MUSEUM IS LIKE SLOWLY UNFOLDING A HAND SCROLL. ● THE SMALL THEATER IS THE ENTRANCE FOYER OF THE MUSEUM.(COMPARATIVELY DARK) ● THE QUIET WATER COURTYARD SLOWLY REVEALS ITSELF ALONG THE OPEN CORRIDOR, PASSING THROUGH THE COLORFUL YOGA ROOM TO THE BRIGHT ART GALLERY ● THEN THE LIGHT FADES, THE PATH GETS NARROWER,ALMOST TO MISS THE TEAROOM HIDDEN BEHIND THE WALL. IN THE END THERE IS A DANCE STUDIO.
  • 38.
    LANDSCAPING THE COURTYARD: ● ITWAS ORIGINALLY DESIGNED TO HAVE A WHITE DRY CLAY STONE FLOOR. BUT TO EXPRESS A SOMEWHAT MELANCHOLIC MOOD AFTER REFLECTION, INSPIRED FROM THE PAINTING OF SIX GENTLEMEN, A SHALLOW WATER GARDEN COURTYARD WAS DESIGNED. ● CREATES A NEW DEPTH IN THE VISUAL ASPECT, ● THE WHITE BUILDING IS SURROUNDED BY A BLACK POOL OF SILENCE WHICH ALLOWS ONE TO EXPERIENCE SOLITUDE. ● TO FORM THE DESIGN OF WATER WITHIN WATER, THE WATER FLOWS FROM THE CENTER OF THE COURTYARD, SPIRALS AND TWISTS, THEN FLOW TOWARD THE SEA THROUGH THE CONNECTION OF THE EXTERNAL WATER SYSTEM. TREES:USED SIX TYPES OF TREES TO SYMBOLIZE SIX GENTLEMEN OF THE WATER GARDEN ● PINE ● ELM ● CYPRESS ● MAPLE ● OAK ● CELTIS
  • 39.
    TATE MODERN MUSEUM AR.HERZOG & DE MEURON IT HOUSES THE UNITED KINGDOM'S NATIONAL COLLECTION OF INTERNATIONAL MODERN AND CONTEMPORARY ART. SITE AREA: 8.48-ACRE THE SITE IS 650-FEET-LONG ON NORTH SIDE IT HAS A CHIMNEY STACK 325' TALL GALLERIES FOR DISPLAY & EXHIBITION: 84,250 SQ FT TURBINE HALL THAT COVERS A STREET: 35,520 SQ FT 240-SEAT AUDITORIUM ON THE LEVEL 01 9 ELEVATORS, 4 FOR PUBLIC 6 ESCALATORS 2 CAFES: 240-SEAT AND BARS WITH 70-SEAT PLUS 30-SEAT TOTAL COST £134 MILLION USUAL VISITORS PER YEAR: 1,432,991
  • 40.
    BY VOGT LANDSCAPEARCHITECTS ● A LANDSCAPE POWERFUL ENOUGH TO CONTRAST THE RIVER SHORE WITHOUT BECOMING TRIVIAL. ● A TIMELESS LANDSCAPE TO PERSIST BETWEEN THE DAILY CHANGING TIDES OF RIVER THAMES AND THE URBAN SURROUNDINGS CHANGING OVER THE YEARS. ● THE SITE LIES AT THE THRESHOLD OF A DYNAMIC URBAN LANDSCAPE DEMANDING FOR A PLACE OFFERING RECREATION TO RESIDENTS AND SPACE FOR THE NUMEROUS VISITORS OF TATE. ● A SPACE OFFERING QUIETNESS AND AT THE SAME TIME ALLOWING PEDESTRIANS AND CYCLISTS TO PASS UNHINDERED. https://www.vogt-la.com/tate_modern_london_2001_fr LANDSCAPE Bankside Power Station ● DESIGNED BY GILBERT SCOTT ● CONSISTED OF A TURBINE HALL OF 35 METRES HIGH AND 152 METRES LONG, ● THE BOILER HOUSE ● A SINGLE CENTRAL CHIMNEY. 1947 TATE MODERN MUSEUM ● REDESIGNED BY HERZOG AND DE MEURON ● THE TURBINE HALL BECAME A DRAMATIC ENTRANCE AND DISPLAY AREA ● THE BOILER HOUSE BECAME THE GALLERIES. 1996 SWISS HOUSE THE REDUNDANT OIL TANKS WERE REUSED AS GALLERY SPACE AND NEWLY THE SWISS HOUSE WAS INTRODUCED 2009 A SUSTAINABLE APPROACH
  • 42.
    CIRCULATION CIRCULATION OF FIRSTFLOOR CIRCULATION OF GROUND FLOOR VERTICAL CIRCULATION OF THE OLD TATE MODERN AND THE SWITCH HOUSE
  • 43.
    RESTAURANTS AND CAFE OFFICESAND STUDIOS COLLECTION ROOMS EXHIBITION GALLERY FUNCTIONAL ZONING: COLLECTION ROOM & STORAGE OFFICES AND STUDIOS SERVICES FLOOR VIEW SECTIONAL VIEW
  • 44.
    FLOOR TO FLOORZONING AND SPACES
  • 45.
    FORM DERIVATION THE SWITCHHOUSE ● PRECAST BEAM COLUMN STRUCTURAL LAYOUT ● COLUMNS AT THE EDGES ARE SLANTED TO CREATE A DYNAMIC FORM ● USE OF PERFORATED BRICKS TO CREATE DYNAMIC LIGHT WORKS INDOORS AND ALLOWS PROVISION FOR WINDOWS STRUCTURAL ANALYSIS
  • 46.
    STAIRWAYS SPATIAL ANALYSIS ● CIRCULARSCULPTURE STAIRWAY TO CREATE DYNAMICITY ● RUSTIC FLOORING AND CONCRETE SLABS CREATE A COMPLEMENTARY VIBE THE SEMI OUTDOOR LIKE CONCOURSES SERVES BOTH FOR CIRCULATION AND A TRANSITION ZONE FROM THE MECHANICALLY MAINTAINED GALLERIES TO THE NATURE. GALLERY SPACES PERFORATED BRICKING ALLOWS INTRICATE LIGHTING EFFECT. BRICK FACADE AND LIGHTING
  • 47.
    EXHIBITIONS: AS THE OLDBUILDING IS OF STEEL STRUCTURE. IT ALLOWS MORE FREE SPACES TO FORM GALLERIES AND EXHIBITION HALLS THE COLLECTIONS ARE DISPLAYED IN HALLS WITH CONTRASTING FLOORS AND LIGHT/WHITE WASHED WALLS ALLOWING THE ARTS TO BE ENHANCED THE TURBINE HALL ● SLIT WINDOWS AT THE END ALLOWS CONTROLLED LIGHT INTO THE GALLERY ● THE LARGE HEIGHTED GALLERY ADDS TO THE CIRCULATION SPACE AS WELL AS INSTALLATION SPACE. THE TANKS ● TWO THE THE THREE GROUNDED TANKS OF 30M DIA AND 7M HEIGHT ARE USED AS GALLERIES
  • 48.
    SHANDONG ART GALLERY ARCHITECTS:TJAD ● 12 EXHIBITION HALLS IN THE ART GALLERY FROM FIRST FLOOR TO THE FOURTH FLOOR ● TOTAL AREA IS 19,700 SQUARE METERS ● THE ACTUAL AVAILABLE ROUTE IS 1,600 METERS
  • 49.
    CONCEPT “MOUNTAIN AND CITYLEANS WITH EACH OTHER, SPRING AND CITY REFLECTS WITH EACH OTHER” ● FUSION OF CITY AND MOUNTAIN ● CITY REPRESENTED BY THE CUBE ● MOUNTAIN REPRESENTED BY THE CUBE VARIANT ● THE SKYLIGHT DESIGN ON THE TOP FLOOR OF THE BUILDING SYMBOLIZES THE SPRING LIGHTWELL (BETWEEN MAIN HALL AND STAIRS) A CUBE VARIANT THE SKYLIGHT DESIGN ON THE TOP FLOOR OF THE BUILDING SYMBOLIZES THE SPRING
  • 50.
    ● THE GALLERYAIMS TO CREATE A STRUCTURE SHAPED LIKE THE CHINESE CHARACTER "品" BY ALIGNING WITH THE SQUARE SHAPE OF THE MUSEUM AND ARCHIVES ROOM AND THEIR AXIS RELATIONSHIP ● THE ART GALLERY NEEDS TO CREATE SQUARE IN THE FRONT TOGETHER WITH THE MUSEUM, IN ORDER TO TAKE SHAPE OF A CERTAIN LENGTH ● THE BODY OF THE BUILDING TRANSITS FROM 4-FLOOR MOUNTAIN SHAPE TO 6-FLOOR SQUARE SHAPE ● THE STYLE OF THE BUILDING UTILIZES BACKWARD STEP SHAPE FROM SOUTH TO NORTH ● THE NUMBER OF THE FLOOR GRADUALLY INCREASES TOWARD NORTH ● THE SHAPE CHANGE FROM TRAPEZOID TO CUBE ● THE IMAGE OF CHINESE TRADITIONAL GARDEN ALSO INTEGRATES TO THE DESIGN CONCEPT ● TO MAXIMIZE SPACE WITHIN THE GALLERY'S LIMITED SCALE, THE DESIGNER CREATED A TRAPEZOID TURNING SPACE ON THE SOUTH SIDE THAT ENHANCES DIAGONAL SPACE ● IT ALSO MAXIMIZE SPACE AND CREATE A MORE DYNAMIC AND INTERESTING ENVIRONMENT ● CORRESPONDING TO TWO GAPS ON THE EXTERIOR OF THE BUILDING WHICH ENHANCES THE DIAGONAL SPACE ● THIS MEANS THAT THE DESIGN OF THE GALLERY'S TRAPEZOID TURNING SPACE ENABLES THE DIFFERENT COMPONENTS INVOLVED IN CONSTRUCTING THE SPACE TO MOVE AROUND AND ENHANCE THE OVERALL FLOW AND MOVEMENT WITHIN THE GALLERY. MASSING MUSEUM ARCHIVE MOUNTAIN SHAPE TO SQUARE SHAPE BACKWARD STEP SHAPE
  • 51.
    1 UNDERGROUND GARAGE 2MUSEUM WAREHOUSE 3 FRAMING 4 PHOTOGRAPHY 5 CYLINDER ROOM 6 CAFETERIA 7 SUNKEN COURTYARD 8 KITCHEN PROCESSING AREA 9 KITCHEN WAREHOUSE 10 COOLING MACHINE ROOM 11 SUBSTATION 12 FRESH AIR ROOM 13 TECHNICAL ROOM 14 WEAK ELECTRICAL MACHINE ROOM 15 RECLAIMED WATER MACHINE ROOM 16 AIR CONDITIONING MACHINE ROOM 17 GARBAGE COLLECTION POINTS 18 FIRE POOL 19 DUTY ROOM GROUND FLOOR PLAN PROJECT LOCATION: JINAN SHI, CHINA AREA: 52138 m² YEAR: 2013 1. SHANDONG PROVINCIAL ART MUSEUM 2. SHANDONG PROVINCIAL MUSEUM 3. SHANDONG PROVINCIAL ARCHIVES 4. PLANNING CULTURAL BUILDING 5. SUNKEN SQUARE 6. THE MAIN SQUARE OF THE WENBO CENTER 7. OUTDOOR EXHIBITION HALL OF THE ART MUSEUM ZONING AND CIRCULATION VERTICAL CIRCULATION PUBLIC SPACE (CAFE)) SUNKEN COURTYARD
  • 52.
    FIRST FLOOR 1 FOYER 2CENTRAL HALL 3 SERVICES 4 STORAGE BAGS 5 CAFES 6 BOUTIQUES 7 LECTURE HALL 8 VIP ROOM 9 HALL 10 PREPARATION AREA 11 FREIGHT LANES 12 PHOTOGRAPHY 13 PACKING 14 AIR CONDITIONING MACHINE ROOM 15 FIRE CONTROL ROOM 16 MANAGEMENT 17 PUNCH MEZZANINE FLOOR 1 LECTURE HALL 2 LECTURE THEATERS 3 INTERACTIVE AREA 4 TRAINING CLASSROOM 5 MOBILE ROOM 6 AIR CONDITIONING ROOM 7 MANAGEMENT 8 WAREHOUSE 9 PUNCH ZONING AND CIRCULATION VERTICAL CIRCULATION PUBLIC SPACE (CAFE)) SERVICE
  • 53.
    1 EXHIBITION HALL 2PREPARATION AREA 3 AIR-CONDITIONING ROOM 4 PUNCH THIRD FLOOR ROUND TOUR LOOP SECOND FLOOR 1 SECOND FLOOR LOBBY 2 EXHIBITION HALL 3 PREPARATION AREA 4 VIP ROOMS 5 SERVE 6 AIR-CONDITIONING ROOM 7 TERRACES 8 PUNCH ROUND TOUR LOOP AXONOMETRIC VIEW ZONING AND CIRCULATION VERTICAL CIRCULATION PUBLIC SPACE (CAFE)) SERVICE
  • 54.
    FIFTH FLOOR 1 OFFICE 2RECEPTION ROOM 3 ART STUDY 4 FIXES 5 APPRECIATION STUDIO 6 REFERENCE ROOM 7 NETWORK CENTER 8 STORAGE ROOM 9 AIR CONDITIONING MACHINE ROOM 10 ANTI-CORROSION WOODEN FLOOR AND ROOF 11 PLANTED ROOF 1 EXHIBITION HALL 2 GALLERY 3 OFFICES 4 INTERNATIONAL ACADEMIC EXCHANGE CENTER 5 INTERNATIONAL ACADEMIC EXCHANGE CENTER RECEPTION AREA 6 VIP RECEPTION 7 AIR-CONDITIONING MACHINE ROOM 8 PUNCH 9 TERRACES 10 ROOF TERRACE FOURTH FLOOR ZONING AND CIRCULATION VERTICAL CIRCULATION PUBLIC SPACE (CAFE)) SERVICE
  • 55.
    OFFICE EXHIBITION HALL OFFICE SHOWROOM 3 KINGHALL 7 AISLE DINING AREA EQUIPMENT ROOM TWO SCREEN LOBBY MAIN HALL TREASURE LIBRARY WAREHOUSE (FOOD & DRINKS) CENTRAL HALL SCREENIN G ROOM AUDITORIA LECTURE CLASSROOM AISLE SINK BUFFET EXCHANGE ROOM (CAFE) PUMP HOUSE GARAGE BACKUP COMPUTER ROOM AISLE AISLE AISLE AISLE AISLE AISLE EXHIBITION HALL OUTDOOR COURTYARD HALL AISLE WAREHOUSE AISLE AISLE AISLE AISLE ART RESEARCH ART APPRECIATION STUDIO REST AREA AUDITORIA LECTURE CLASSROOM EXHIBITION HALL ROOM CENTRAL HALL EXCHANGE ROOM (CAFE) BUFFET STAIRS GARAGE BACKUP COMPUTER ROOM
  • 56.
    ROOM EXHIBITION HALL HALL POWER STATION CENTRALHALL GARAGE HALL KITCHEN KITCHEN EXHIBITION HALL ROOM ROOM EXHIBITION HALL AISLE AIR CONDITION ER ROOM ROSTRUM ROOM EXHIBITION HALL FOYER (SECURITY CHECK) SUBSTATION PARKING RENT PROCESSING
  • 57.
    PRIMARY ENTRANCE TWO GAPSCREATED ON THE SOUTHERN FACADE TO INCREASE DIAGONAL SPACE SECONDARY ENTRANCES INCLINED SURFACES TO CREATE A MORE DYNAMIC AND INTERESTING ENVIRONMENT AUDITORIA LECTURE CLASSROOM ESCALATOR LEADING TO THE SECOND FLOOR MAIN HALL
  • 58.