ARCHITECTURAL
DESIGN PORTFOLIO
BY: LEE C. STUBBLEFIELD
PAGE OF INDEX
TRANSITIONS . . . . . . . . . . . . . . . . . . . . 2
ISO AND OBLIQUE FIGURES . . . . . . . . . . . . 4
COLOR THEORY . . . . . . . . . . . . . . . . . . . . 6
ONE POINT PERSPECTIVES . . . . . . . . . . . . . 8
TWO POINT PERSPECTIVES . . . . . . . . . . . . 10
BIRD HOUSE DESIGN . . . . . . . . . . . . . . . . 12
MAGUIRE RESIDENCE . . . . . . . . . . . . . . . . 14
MALLOT RESIDENCE . . . . . . . . . . . . . . . . . 17
MITSUBISHI MACHINE TOOL . . . . . . . . . . . 20
CLIFF KEEN TOWER . . . . . . . . . . . . . . . . . 23
CHARLES B. COOPER HIGH SCHOOL . . . . . . . . 26
2
TRANSITIONS
TRANSITIONS IS A PIECE THAT BREAKS A PICTURE
DOWN INTO EIGHT DIFFERENT STAGES; PICTURE,
PICTURE SIMPLIFIED, ARRANGEMENT, UNIFICATION,
MORE ABSTRACT, TRANSPARENCY, NEAR ABSTRACT,
AND PURE ABSTRACT. I FOUND A PICTURE THAT I
TOOK IN CHICAGO, ILLINOIS AND USED IT AS MY
BASE PICTURE TO GRADUALLY TAKE DETAIL AWAY.
THE GOAL OF THIS IS TO EVENTUALLY GET SIMPLE
SHAPES AT THE END. THIS WILL LOOK VERY
ABSTRACT AND SHOWS SIMPLY WHAT EVERY
PICTURE STARTS WITH. THIS PIECE WAS
COMPLETED BY USING GRAPHITE PENCILS ON HEAT
PRESSED ILLUSTRATION BOARD.
3
4
5
ISOMETRIC AND OBLIQUE FIGURES
THIS PIECE WAS COMPLETED BY DRAWING
DIFFERENT BLOCKS AND OTHER FIGURES USING THE
ISOMETRIC AND OBLIQUE DRAWING TECHNIQUES.
EACH DRAWING SHOWS THE FIGURE AND ITS
SHADOW PROVIDING THE VIEWER AN ILLUSION OF
A REAL 3D OBJECT. THIS PIECE WAS CREATED BY
USING COLORED PENCILS ON HEAT PRESSED
ILLUSTRATION BOARD.
6
7
COLOR THEORY
THE COLOR THEORY PIECE IS A PAINT STUDY IN
WHICH SHOWS THE COLOR WHEEL WITH PRIMARY
AND SECONDARY COLORS, COLOR SCALES, AND
COLOR ON INK. I STARTED THE SCALES WITH TWO
COLORS AND GRADUALLY ADDED ONE OF THE COLORS
TO THE OTHER AND VICE VERSA TO SHOW A
FABULOUS LOOKING SCALE OF COLORS. THE COLOR
ON INK SCALE SHOWS ALL THE COLORS I USED ON
TOP OF INDIA INK. THIS PIECE WAS CREATED BY
USING OIL/INK ON HEAT PRESSED ILLUSTRATION
BOARD.
8
9
ONE POINT PERSPECTIVE
THESE DRAWINGS WERE CONSTRUCTED BY USING
THE ONE POINT PERSPECTIVE TECHNIQUE. THE
BEDROOM WAS CREATED BY USING MARKERS AND
COLORED PENCILS AND DRAWN ON VELUM PAPER.
THE KITCHEN WAS ALSO CREATED BY USING
MARKERS AND COLORED PENCILS AND DRAWN ON
VELUM PAPER. BY USING THE COLORED PENCILS ON
TOP OF THE MARKER, IT SHOWS GREAT DETAIL ON
THE WOODEN FLOORS.
10
TWO POINT PERSPECTIVE
11
THESE DRAWINGS WERE CONSTRUCTED BY USING
THE TWO POINT PERSPECTIVE TECHNIQUE. THE
GARAGE WAS DRAWN ON BLACK CASON PAPER AND
COLORED IN WITH COLORED PENCILS. THE TOOL
SHED WAS DRAWN ON LITE BLUE CASON PAPER AND
COLORED IN WITH COLORED PENCILS. BY USING
THE BLACK AND LITE BLUE CASON PAPER, NOT ONLY
DOES IT GIVE THE DRAWING DIFFERENT EFFECTS
WITH SHADE BUT IT ALSO MAKES IT POP OUT A LOT
MORE THAN USING PLAIN WHITE PAPER.
12
13
BIRD HOUSE DESIGN
THE BIRD HOUSE IS A PROJECT THAT WAS MADE
POPULAR BY ARCHITECT FRANK LLOYD WRITE. THIS
WAS COMPLETED BY TAKING THREE SHAPES OUT OF
A PICTURE, A GREEN OCTOGON, A RED SQUARE, AND
A BLUE CIRCULAR SHAPE. BY TAKING THESE SPAPES,
I MADE A WIRE FRAME MODEL. USING BALSA
WOOD, FOAM BOARD, AND PAINT, I CREATED A FULL
SCALE MODEL. THIS MODEL WAS DESIGNED WITH
SPECIFICATIONS SPECIFICLY FOR A PURPLE MARTIN
BIRD. THIS PIECE WAS CREATED ON ILLUSTRATION
BOARD.
14
15
MAGUIRE RESIDENCE
OUR PROFESSOR HAD GIVEN US OUR FIRST
RESIDENTIAL EXPERIENCE. EVERYONE RECEIVED A
DIFFERENT PICTORAL VIEW ALONG WITH THE WALL
LAYOUT OF A ONE STORY HOUSE SHE FOUND ON A
REAL ESTATE WEB SITE. OUR GOAL WAS TO CREATE
A SET OF CONSTRUCTION DOCUMENTS ADDING A
SECOND FLOOR, BASEMENT, AND FIRE PLACE TO THE
HOUSE. BY USING THE PICTORAL VIEW, WE HAD
SOME IDEA OF THE MATERIALS TO USE AND HOW
THE ROOF WAS SHAPED IN CREATING THE
ELEVATIONS. THIS PROJECT WAS DONE
COMPLETELY BY USING THE HAND DRAFTING
METHODS CREATED ON VELUM PAPER.
16
17
18
MALLOT RESIDENCE
OUR PROFESSOR HAD GIVEN US A SITUATION IN
WHICH WE HAD TO DESIGN A HOUSE BASED ON
WHAT THE FAMILY DID AND NEEDED. THIS IS TO
SIMULATE WHAT A REAL ARCHITECT GOES THROUGH
IN DEALING WITH A CUSTOMER. THE PROGRAM
STATES THAT THE FATHER IS A STAY AT HOME
WRITER. THE MOTHER IS A CHIEF EXECUTIVE AT A
SAVINGS AND LOAN. THERE ARE FOUR CHILDREN:
MATT-12, SUSAN-11, BOBBY-8, AND JENNY-3.
THIS PROJECT HOUSE INCLUDING THE 3D VERSION
WAS DONE COMPLETELY BY USING AUTOCAD 2006.
19
20
21
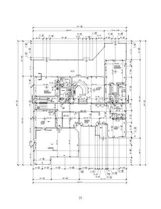
MITSUBISHI MACHINE TOOL
OUR PROFESSOR HAD GIVEN US A SITUATION IN
WHICH WE HAD TO DESIGN A LIGHT INDUSTRIAL
BUILDING FOR A TRADE OF OUR CHOOSING. I
DESIGNED A BUILDING FOR THE COMPANY
MITSUBISHI MACHINE TOOL, IN WHICH MY FATHER
WORKED FOR IN THE PAST AND IS NO LONGER AN
ACTIVE COMPANY. BY TALKING WITH HIM AND HIS
CO-WORKERS, I DEVELOPED CONSRUCTION
DOCUMENTS USING THE SPECIFICATIONS MY
FATHER AND HIS CO-WORKERS WISHED THEY HAD
IN THEIR CURRENT WORK PLACE INCLUDING A
WAREHOUSE FOR STORAGE, SHOW/MACHINE ROOM,
AND A VIEWING ROOM FOR CUSTOMERS TO LOOK AT
THE SHOW/MACHING ROOM. THIS DESIGN WAS
PURCHASED A YEAR LATER FOR MY FATHERS
COMPANY’S NEW WORK PLACE IN WIXOM,
MICHIGAN. THIS PROJECT INCLUDING THE 3D
VERSION WAS DONE COMPLETELY BY USING
AUTOCAD 2007.
22
23
24
CLIFF KEEP TOWER
OUR PROFESSOR HAD GIVEN US A SITUATION IN
WHICH WE HAD TO DESIGN A FOUR STORY
BUILDING WHICH WILL BE USED FOR BOTH RETAIL
AND CORPORATE. WE NEEDED TO DESIGN ON THE
FIRST TWO FLOORS A RETAIL SHOPPING CENTER
AND TWO SEPORATE CORPORATE OFFICES ON THE
THIRD AND FOURTH FLOORS. I DECITED TO HAVE
TWO CORNERS OF THE BUILDING THAT WILL GO
BEYOND THE FIRST FLOOR EXTERIOR WALLS WITH
TWO MAJOR SUPPORTING COLUMNS ON EACH SIDE.
BY USING MY EXPERIENCE IN PHYSICS, I
MATHEMATICALLY CAME UP WITH A COLUMN SIZE
TO SUPPORT THREE LEVELS AND A STAIRWAY THAT
WILL ALSO ACT AS A LOAD BEARING COLUMN ON
ONE SIDE. THIS PROJECT INCLUDING THE 3D
VERSION WAS DONE COMPLETELY BY USING
AUTOCAD 2008.
25
26
27
CHARLES B. COOPER HIGH SCHOOL
TO FURTHER MY EDUCATION, I DID A STUDY
PROBLEM WITH ONE OF ANN ARBOR, MICHIGAN’S
MOST EXPERIENCED ARCHITECTS, CHARLES COOPER,
DESIGNING A TWO STORY HIGH SCHOOL BUILDING
USING ADVANCED/MODERN METHODS AND
MATERIALS. THE SCHOOL WAS DESIGNED BASED ON
THE CLIMATE IN CHARLESTON, ARKANSAS. BY
DOING THIS, I NEEDED TO LOOK UP THE BUILDING
CODES THAT THE STATE OF ARKANSAS USES AND
APPLY THEM. I USED SEVERAL CANTILEVERS WITH
OUT THE USE OF COLUMNS THROUGHOUT THE
SCHOOL INCLUDING STAIRWAYS, CLASSROOMS, AND
HALF OF THE LIBRARY. I WANTED THE MAIN FOCUS
OF THE SCHOOL TO BE IN A POPULATED AREA, AND
POP OUT WHENEVER SOMEONE LOOKS AT IT FROM
THE OUT SIDE. IN DOING SO, I USED THE METHOD
OF A FABRIC DOMED ROOF, USUALLY USED IN
STADIUM DESIGN. THE ROOF ALONG WITH THE
CURTAIN WALL UNDERNEATH THE ROOF WILL LET IN
PLENTY OF LIGHT REDUCING THE AMOUNT OF
ENERGY NEEDED TO BOTH LIGHT AND HEAT/COOL
THE SCHOOL MAKING THE BUILDING ECO FRIENDLY.
THIS PROJECT WAS DONE COMPLETELY BY USING
AUTOCAD 2008.
28
29
30
ISOMETRIC AND OBLIQ
31

Architectural Design Portfolio

  • 1.
  • 2.
    PAGE OF INDEX TRANSITIONS. . . . . . . . . . . . . . . . . . . . 2 ISO AND OBLIQUE FIGURES . . . . . . . . . . . . 4 COLOR THEORY . . . . . . . . . . . . . . . . . . . . 6 ONE POINT PERSPECTIVES . . . . . . . . . . . . . 8 TWO POINT PERSPECTIVES . . . . . . . . . . . . 10 BIRD HOUSE DESIGN . . . . . . . . . . . . . . . . 12 MAGUIRE RESIDENCE . . . . . . . . . . . . . . . . 14 MALLOT RESIDENCE . . . . . . . . . . . . . . . . . 17 MITSUBISHI MACHINE TOOL . . . . . . . . . . . 20 CLIFF KEEN TOWER . . . . . . . . . . . . . . . . . 23 CHARLES B. COOPER HIGH SCHOOL . . . . . . . . 26 2
  • 3.
    TRANSITIONS TRANSITIONS IS APIECE THAT BREAKS A PICTURE DOWN INTO EIGHT DIFFERENT STAGES; PICTURE, PICTURE SIMPLIFIED, ARRANGEMENT, UNIFICATION, MORE ABSTRACT, TRANSPARENCY, NEAR ABSTRACT, AND PURE ABSTRACT. I FOUND A PICTURE THAT I TOOK IN CHICAGO, ILLINOIS AND USED IT AS MY BASE PICTURE TO GRADUALLY TAKE DETAIL AWAY. THE GOAL OF THIS IS TO EVENTUALLY GET SIMPLE SHAPES AT THE END. THIS WILL LOOK VERY ABSTRACT AND SHOWS SIMPLY WHAT EVERY PICTURE STARTS WITH. THIS PIECE WAS COMPLETED BY USING GRAPHITE PENCILS ON HEAT PRESSED ILLUSTRATION BOARD. 3
  • 4.
  • 5.
  • 6.
    ISOMETRIC AND OBLIQUEFIGURES THIS PIECE WAS COMPLETED BY DRAWING DIFFERENT BLOCKS AND OTHER FIGURES USING THE ISOMETRIC AND OBLIQUE DRAWING TECHNIQUES. EACH DRAWING SHOWS THE FIGURE AND ITS SHADOW PROVIDING THE VIEWER AN ILLUSION OF A REAL 3D OBJECT. THIS PIECE WAS CREATED BY USING COLORED PENCILS ON HEAT PRESSED ILLUSTRATION BOARD. 6
  • 7.
  • 8.
    COLOR THEORY THE COLORTHEORY PIECE IS A PAINT STUDY IN WHICH SHOWS THE COLOR WHEEL WITH PRIMARY AND SECONDARY COLORS, COLOR SCALES, AND COLOR ON INK. I STARTED THE SCALES WITH TWO COLORS AND GRADUALLY ADDED ONE OF THE COLORS TO THE OTHER AND VICE VERSA TO SHOW A FABULOUS LOOKING SCALE OF COLORS. THE COLOR ON INK SCALE SHOWS ALL THE COLORS I USED ON TOP OF INDIA INK. THIS PIECE WAS CREATED BY USING OIL/INK ON HEAT PRESSED ILLUSTRATION BOARD. 8
  • 9.
  • 10.
    ONE POINT PERSPECTIVE THESEDRAWINGS WERE CONSTRUCTED BY USING THE ONE POINT PERSPECTIVE TECHNIQUE. THE BEDROOM WAS CREATED BY USING MARKERS AND COLORED PENCILS AND DRAWN ON VELUM PAPER. THE KITCHEN WAS ALSO CREATED BY USING MARKERS AND COLORED PENCILS AND DRAWN ON VELUM PAPER. BY USING THE COLORED PENCILS ON TOP OF THE MARKER, IT SHOWS GREAT DETAIL ON THE WOODEN FLOORS. 10
  • 11.
  • 12.
    THESE DRAWINGS WERECONSTRUCTED BY USING THE TWO POINT PERSPECTIVE TECHNIQUE. THE GARAGE WAS DRAWN ON BLACK CASON PAPER AND COLORED IN WITH COLORED PENCILS. THE TOOL SHED WAS DRAWN ON LITE BLUE CASON PAPER AND COLORED IN WITH COLORED PENCILS. BY USING THE BLACK AND LITE BLUE CASON PAPER, NOT ONLY DOES IT GIVE THE DRAWING DIFFERENT EFFECTS WITH SHADE BUT IT ALSO MAKES IT POP OUT A LOT MORE THAN USING PLAIN WHITE PAPER. 12
  • 13.
  • 14.
    BIRD HOUSE DESIGN THEBIRD HOUSE IS A PROJECT THAT WAS MADE POPULAR BY ARCHITECT FRANK LLOYD WRITE. THIS WAS COMPLETED BY TAKING THREE SHAPES OUT OF A PICTURE, A GREEN OCTOGON, A RED SQUARE, AND A BLUE CIRCULAR SHAPE. BY TAKING THESE SPAPES, I MADE A WIRE FRAME MODEL. USING BALSA WOOD, FOAM BOARD, AND PAINT, I CREATED A FULL SCALE MODEL. THIS MODEL WAS DESIGNED WITH SPECIFICATIONS SPECIFICLY FOR A PURPLE MARTIN BIRD. THIS PIECE WAS CREATED ON ILLUSTRATION BOARD. 14
  • 15.
  • 16.
    MAGUIRE RESIDENCE OUR PROFESSORHAD GIVEN US OUR FIRST RESIDENTIAL EXPERIENCE. EVERYONE RECEIVED A DIFFERENT PICTORAL VIEW ALONG WITH THE WALL LAYOUT OF A ONE STORY HOUSE SHE FOUND ON A REAL ESTATE WEB SITE. OUR GOAL WAS TO CREATE A SET OF CONSTRUCTION DOCUMENTS ADDING A SECOND FLOOR, BASEMENT, AND FIRE PLACE TO THE HOUSE. BY USING THE PICTORAL VIEW, WE HAD SOME IDEA OF THE MATERIALS TO USE AND HOW THE ROOF WAS SHAPED IN CREATING THE ELEVATIONS. THIS PROJECT WAS DONE COMPLETELY BY USING THE HAND DRAFTING METHODS CREATED ON VELUM PAPER. 16
  • 17.
  • 18.
  • 19.
    MALLOT RESIDENCE OUR PROFESSORHAD GIVEN US A SITUATION IN WHICH WE HAD TO DESIGN A HOUSE BASED ON WHAT THE FAMILY DID AND NEEDED. THIS IS TO SIMULATE WHAT A REAL ARCHITECT GOES THROUGH IN DEALING WITH A CUSTOMER. THE PROGRAM STATES THAT THE FATHER IS A STAY AT HOME WRITER. THE MOTHER IS A CHIEF EXECUTIVE AT A SAVINGS AND LOAN. THERE ARE FOUR CHILDREN: MATT-12, SUSAN-11, BOBBY-8, AND JENNY-3. THIS PROJECT HOUSE INCLUDING THE 3D VERSION WAS DONE COMPLETELY BY USING AUTOCAD 2006. 19
  • 20.
  • 21.
  • 22.
    MITSUBISHI MACHINE TOOL OURPROFESSOR HAD GIVEN US A SITUATION IN WHICH WE HAD TO DESIGN A LIGHT INDUSTRIAL BUILDING FOR A TRADE OF OUR CHOOSING. I DESIGNED A BUILDING FOR THE COMPANY MITSUBISHI MACHINE TOOL, IN WHICH MY FATHER WORKED FOR IN THE PAST AND IS NO LONGER AN ACTIVE COMPANY. BY TALKING WITH HIM AND HIS CO-WORKERS, I DEVELOPED CONSRUCTION DOCUMENTS USING THE SPECIFICATIONS MY FATHER AND HIS CO-WORKERS WISHED THEY HAD IN THEIR CURRENT WORK PLACE INCLUDING A WAREHOUSE FOR STORAGE, SHOW/MACHINE ROOM, AND A VIEWING ROOM FOR CUSTOMERS TO LOOK AT THE SHOW/MACHING ROOM. THIS DESIGN WAS PURCHASED A YEAR LATER FOR MY FATHERS COMPANY’S NEW WORK PLACE IN WIXOM, MICHIGAN. THIS PROJECT INCLUDING THE 3D VERSION WAS DONE COMPLETELY BY USING AUTOCAD 2007. 22
  • 23.
  • 24.
  • 25.
    CLIFF KEEP TOWER OURPROFESSOR HAD GIVEN US A SITUATION IN WHICH WE HAD TO DESIGN A FOUR STORY BUILDING WHICH WILL BE USED FOR BOTH RETAIL AND CORPORATE. WE NEEDED TO DESIGN ON THE FIRST TWO FLOORS A RETAIL SHOPPING CENTER AND TWO SEPORATE CORPORATE OFFICES ON THE THIRD AND FOURTH FLOORS. I DECITED TO HAVE TWO CORNERS OF THE BUILDING THAT WILL GO BEYOND THE FIRST FLOOR EXTERIOR WALLS WITH TWO MAJOR SUPPORTING COLUMNS ON EACH SIDE. BY USING MY EXPERIENCE IN PHYSICS, I MATHEMATICALLY CAME UP WITH A COLUMN SIZE TO SUPPORT THREE LEVELS AND A STAIRWAY THAT WILL ALSO ACT AS A LOAD BEARING COLUMN ON ONE SIDE. THIS PROJECT INCLUDING THE 3D VERSION WAS DONE COMPLETELY BY USING AUTOCAD 2008. 25
  • 26.
  • 27.
  • 28.
    CHARLES B. COOPERHIGH SCHOOL TO FURTHER MY EDUCATION, I DID A STUDY PROBLEM WITH ONE OF ANN ARBOR, MICHIGAN’S MOST EXPERIENCED ARCHITECTS, CHARLES COOPER, DESIGNING A TWO STORY HIGH SCHOOL BUILDING USING ADVANCED/MODERN METHODS AND MATERIALS. THE SCHOOL WAS DESIGNED BASED ON THE CLIMATE IN CHARLESTON, ARKANSAS. BY DOING THIS, I NEEDED TO LOOK UP THE BUILDING CODES THAT THE STATE OF ARKANSAS USES AND APPLY THEM. I USED SEVERAL CANTILEVERS WITH OUT THE USE OF COLUMNS THROUGHOUT THE SCHOOL INCLUDING STAIRWAYS, CLASSROOMS, AND HALF OF THE LIBRARY. I WANTED THE MAIN FOCUS OF THE SCHOOL TO BE IN A POPULATED AREA, AND POP OUT WHENEVER SOMEONE LOOKS AT IT FROM THE OUT SIDE. IN DOING SO, I USED THE METHOD OF A FABRIC DOMED ROOF, USUALLY USED IN STADIUM DESIGN. THE ROOF ALONG WITH THE CURTAIN WALL UNDERNEATH THE ROOF WILL LET IN PLENTY OF LIGHT REDUCING THE AMOUNT OF ENERGY NEEDED TO BOTH LIGHT AND HEAT/COOL THE SCHOOL MAKING THE BUILDING ECO FRIENDLY. THIS PROJECT WAS DONE COMPLETELY BY USING AUTOCAD 2008. 28
  • 29.
  • 30.
  • 31.