craig lawrence>>
portfolio: drawings, projects, work
who am i? >> hello, i’m craig lawrence. i have       >>i have thus begun to understand how i            >>i understand everything is an evolution:
a daughter, a son, and a wife. i graduated from      approach architecture. actively building           projects evolve, the world evolves, and people
csu in ‘05 with a b.a. in sociology and english. i   things has given me an understanding of            evolve. our notions of architecture evolve:
worked in the furniture industry for five years,      materials, of tectonics, and of processes. i       what is good, what is bad, and so forth.
and learned the art of management. i earned          wish to give all those who would experience        therefore i seek an evolving architecture,
my m.arch from ucd in may ‘10, and graduated         my designs this same understanding and             where the notions of the new marry with our
as one of two ‘outstanding graduates.’ i’ve          appreciation. contemporary spaces can and          desire to feel, connect, and understand. this
always sketched and drawn. my entire life i’ve       should be infused with a sense of real material,   dawning understanding of mine is an evolution,
had a passion for creating and building things.      real tectonic, real process. i suppose this is a   one which is reflected in the pages before
design school taught me how to recognize             search for a notion of the authentic in a world    you. i cordially invite you to examine the work
the relationships behind things, to see the          where too often a substitute must suffice.          contained herein, and perhaps learn more
frameworks inherent to good design.                                                                     about who i am.




                                                                                                                                                          who am i? >>
portfolio: drawings, projects, work>>                                           <<contents
1999-2010

                                                                               1>>art and sketches

                                                                             2>>bim modeling: revit

                                                                                          3>>studios
                                                                                     _advanced studio i
                                                                                 _comprehensive studio
                                                                                             _studio iv
                                                                                             _studio iii
                                                                                             _studio ii

                                                                                         4>>projects

                                                                                          5>>resume
craig lawrence                     AIAS, LEED GA
craiglawrence.mail@gmail.com




                                                                                                           contents>>
All designs, images, and writings are the property of craig cawrence ©2010
african mask, 1999>>
     pen and ink on matt board,
hammered aluminum background
                     36” x 28”
art and sketches>>
<<cherry jewelry box, 2007
mahogany, walnut,
and basswood inlays,
3” x 3” x 1 3/8”
perspective sketch, 2009>>
            formal study, advanced studio
               rocky mountain land library
buffalo peaks ranch, park county, colorado
                             pen on paper
art and sketches>>
<<robie house sketch, 2008
pen on paper
Aluminum parapet flashing

                               Built-up steel C-channel parapet

                                              EPDM membrame




                                           Rigid insulation layer



                                              Concrete topping



                                      Corregated steel decking



                          Deep long span opem-web bar girder



                Monopan panels suspended from roof structure



          Steel tubing top plate fastened to girder and columns




                               Stainless steel mounting bracket




                 Steel WF column for lateral support for facade




       Exterior Monopan Panels (weather-proofing membrane)



      Stainless steel vertical bar-grate rain screem hung from
                                    laterally bracing WF columns




                                                                    wall detail, summer 2009>>

                                                                                                 beginning revit exercise, fall 2007>>




<<project renderings
bim>>revit: exploration, development, presentation
                                    <<comprehensive studio, summer 2009




spatial explorations, fall 2009>>
n



Advanced Studio I>>Fall 2009                             (similar to an “artist-in-residence”), in addition to
Project>>Rocky Mountain Land Library                     short-term overnight accommodations, and facilities
Instructor>>Kat Vlahos                                   for workshops, studios, education, and outreach.

Design Problem>>Explore design possibilities for the     Design Solution>>An existing cluster of three




                                                                                                                  advanced studio i>>
Rocky Mountain Land Library (RMLL), a private 20,000     barns on the eastern edge of the ranch complex
volume collection focusing on humanity’s relationship    were chosen to receive a new construction “pin”
to the land. The chosen site is the historic Buffalo     - a simple, equalizing, archetypal gable form - to
Peaks Ranch (BPR) - a cattle and sheep ranch dating      link the structures into one library and workshop
to the 1860’s - located in the high, vast mountain       building. The old and new work to frame an east-
valley of South Park, Colorado. BPR is one of five        facing courtyard, drawing the land into the library
Heritage Sites in Park County, and any design solution   shelter, and inviting the library program out into
needs to consider the numerous existing structures       the landscape. The new construction becomes a
on the site. Program includes the library, a long-       gesture of shelter in the land, able to open up to the
term “residential library” component for authors         landscape, linking the built and unbuilt.
<<site photos




  hand drawn site plan>>
                     n>>
  1”=120’
building diagrams>>
                                 <<library axo




   advanced studio i>>site, photos, 3d mdoel, diagrams
<<renderings
<<1/16th inch scale model photos




                                                                                              <<structure strategy

wall section>>
roof assembly (green coated standing seam            roof assembly ( zinc-finish standing seam roofing,
   roofing, membrane, OSB sheathing, rigid                membrane, OSB sheathing, rigid insulation,
         insulation, plywood interior finish)             plywood interior finish)
                  on original barn structure
                                                     6 x 6 rough-cut pine purlins on pine built-up truss
                              coated metal fascia

   original barn structure (2x10 rafters 16” oc      zinc fascia masks gutter
             on 6x6 beams and columns 7’ oc)

                 8” SIPS panel surface mounted to    slit window (separates old and new)
                  original wood column grid with
                         corrugated steel cladding
                                                     8” dense concrete block (solid fill for thermal mass)
 window set in front of original barn column
                                                     radiant floor
                                     radiant floor

                     12” concrete monolithic slab    12” concrete monolithic slab

                                        insulation   insulation

                    cast-in-place concrete footing   cast-in-place concrete footing
section a & passive building strategies>>                                                                          a
1/32”=1’


                                                                                                                                               10
                                                                                                                                9
                                                                                                                       9
                                                                                                               9
                                                                                          5            8

                                                                                              6
                                                                                                           7

                                                                                                  5                                 11

                                                                                      4




                                                                          2


                                                       3                                                                            12




                                                                                                                                                                                               advanced studio i>>plan, section, elevation, diagrams
                                                                                                  11


                                                 b
section b>>                                                                       2
1/32”=1’
                                                                              3

                                                                                                                                                                                  14




                                                                                          1                                11


                                                                     13




                                                                                                                                         Key
                                                                                                                                         1 Entry          6 kitchenette   Workshop
                                                                                                                                         2 Stacks         7 Storage       11 Loggia




                                                                                      c
                                                                                                                                         3 Reading Area   8 Mechanical    12 Courtyard
section c>>                                 ground floor plan>>   n                                                                       4 Hearth         9 Work Space    13 Path to ‘Ranch’
1/32”=1’                                    1/32”=1’                                                                                     5 Restroom       10 Classroom/   14 Path to land




south elevation>>
1/32”=1’
N




                                                           n

Comprehensive Studio>>Summer 2009                              programmatic analysis, it was determined that the
Project>>Vancouver Maritime Museum                             proposed program consisted of two distinct elements:




                                                                                                                        comprehensive studio>>
Partner>>Dan Williams                                          a “volumetric” program comprised of the Zephyr
Instructor>>Matt Shea                                          restoration--requiring free-flow work patterns, large
                                                               amounts of space, and easy access to many locations
Design Problem>>Design a new facility to house                 at once--and a more narrative, “linear” program
a growing collection and highlight the restoration             comprised of the Maritime Museum. With this
and preservation of a salvaged 1870 shipwreck,                 conception in mind, a formal response was devised
the Zephyr. Located on former industrial shipping              in which the “linear” museum program is articulated
grounds, the site consists of a 200’ wide strip of land        as a continuous loop, or “tube”, which penetrates,
jutting approximately 1000’ into the north edge of             infiltrates, and defines a large volume, or “boat shed.”
Burrard Inlet, directly across the inlet from the highly       The final result of these morphological manipulations
dense downtown Vancouver.                                      are two independent elements which become
                                                               dependent upon one another for spatial definition,
Design Solution>>After careful typological and                 structural integrity, and programmatic coherency.
<<building morphology                  <<primary structure      <<secondary structure
                                                                                                             (occupiable deep trusses)




                     concept sketch>>


                                                        <<ventilation                            <<hvac                 <<circulation (green)
                                                                                                                        egress (red)
                                                                                                                        entry(purple)
                                        building systems diagrams>>




                                                                        occupancy & program organization>>




concept diagrams>>
up




                                                                                              dn




a                                                                                                         dn
                                                                                                               up




                                                                                                     up




                                    dn




                                                              up
                                                                   dn




                                                                                                                                   up




                                            up




                                                                        b
                                                         dn                                                                                                up
                                                    up                                                                                                dn




                                                                                                                                                                c
    n                                                                       n                                       n




                                                                                                                                                                    comprehensive studio>>diagrams, plans, sections
    ground floor plan>>                                                          fourth floor plan>>                      fifth floor plan>>
    1/64”=1’                                                                    1/64”=1’                                1/64”=1’




                         <<section a     section b>>                                                                                    section c>>
                              1/64”=1’   1/64”=1’                                                                                       1/64”=1’
<<slice model photos   <<slice model (north) elevation     <<slice model building section
                                                1/32”=1’                           1/32”=1’
Powder-coated aluminum panel
                                                                                              Vertical stainless steel plate provides support
                                                                                                           for horizontal cladding roof panels
                                                                                                                            EPDM membrane
                                                                                                                       Sloped rigid insulation
                                                                                                                Weatherproof spandrel panel
                                                                                                                            Concrete topping
                                                                                                                   Corrugated metal decking
                                                                                                  Steel WF beam mechanically fastened and
                                                                                                             welded to top deep truss chord
                                                                                                    Hollow steel tubing deep truss top chord
                                                                                           Three layers 5/8” Type X gypsum board provides
                                                                                             three hour fire proofing for stuctural members


                                                                                              Tinted polycarbonate panels (weatherproofing
                                                                                                            membrane and insulating panel)
                                                                                                            Extruded aluminum support grid
                                                                                                           Reflective tinted glass rainscreen
                                                                                                                   Stainless steel spider clip




                                                                                                                                                 comprehensive studio>>slice model, details
                                                                                                    Three layers 5/8” Type X gypsum boards
                                                                                               Hollow steel tubing deep truss diagonal chord



iniitia museum
initiall museum roof/skin detail sketch>>
     ia museum
      al                                    museum roof/skin detail developemtn sketch>>
                                                                                             Stainless steel mounting plate for tension rods
                                                                                                                           Steel tension rod
                                                                                                                 Polished concrete topping
                                                                                                                  Corrugated steel decking
                                                                                                                diagonal C-channel bracing


                                                                                                   Slot-type low-delivery supply air diffuser
                                                                                                        “Captured glass” type hidden mullion
                                                                                               Supply duct from fan coil (located elsewhere)
                                                                                             Mechanically fastened and welded joint between
                                                                                             deep truss bottomchord and spanning WF beam
                                                                                                                              Rigid insulation
                                                                                            Suspended powder-coated aluminum soffit panel


                                                                                                        Cantilevered tapered open-web joist
                                                                                                                        Steel mounting plate
                                                                                                                      Anchor plate and bolts



initial museum floor/skin detail sketch>>    museum floor/skin detail development sketch>>
Street
                                                                                            Pearl




                                                                                 20th
                                                                                  Street
                                                           n



Studio IV>>Spring 2009                                     Design Solution>>The program of a home for a FAMILY
Project>>Performative Architecture and Live|Work           OF FOUR and a trendy, upscale HAIR SALON business
Instructor>>Ken Andrews                                    was chosen. The morphological device of a ribbon was
                                                           selected for its ability to define, separate, capture,
Design Problem>>Define and resolve a live|work              and connect various spaces and volumes by becoming
residence located on busy Pearl Street in Boulder,         ground, floor, wall, ceiling, and roof. The two story
Colorado, only a few blocks from the Pearl Street          residence volume is separated from and connected to
Pedestrian Mall. According to the studio pedagogy,         the parallel salon volume by means of a perpendicular
design responses were required to consider the idea        entry “bar” and an implied parallel outdoor volume.
of “performative architecture”--not simply high-           This outdoor volume and connecting “bar” serve as the
performance building systems, but social, cultural,        spaces through which the relationship of live|work is
formal, and functional performance. This conception is     negotiated on a daily basis--providing both separation
neither “top-down” formalism or “bottom-up” hyper-         from and connection to the other. The basic concepts
                                                           explored in the project include connection, the home




                                                                                                                    studio iv>>
rationalism, but a “middle-out” approach in which form
not only follows function, but function responds to form   as a pubilc--not private--place, and shared, mutually
in meaningful ways, creating a symbiosis between the       defining spaces. The project also emphasized passive
two, wherein both come to shape the nature of the          sustainable design strategies.
design.
ribbon morphology generative digarams>>




                                                                                                                <<axonometric rendering




                       program definition   connecting bar   mediating space   internal/external focus   parti
morphological functions>>
view screen diagram>>                   selective shading diagram>>




                                                                                                   sunscreen density modulates for views>>




                                                                                                                                                        studio iv>>diagrams, plans and sections
                                                                                                                  Evaporating water cools the air,
                                                                                                                   causing a downdraft into garage
                                                                                                                   spaces below to create natural
                                                                                                                   ventilation

                                                                                                                 “Pedestal” planters

                                                                                                                 Pool filled with thin base of pebble

                                                                                                                 “Infinity edge” cause water to appear
                                                                                                                   to flow into the garage below

                                                                                                                 Floor structure

                                                                                                                 Gutter system catches and recycles
                                                                                                                    water

courtyard cooling effect>>                           reflecting pool/courtyard floor detail>>
                                                     Scale:1/4”=1
1
                                                              1

                                                                              13

                                                     3

         5                                                                                                section a>>
                                    2                                                                           1/16”=1’

                                                                                             dn
                                                 1
                                                                                8

                                        6



     4
                                                         11             14
                                                                                                      a
                                                                                             up


                                        7




         8                                                                         15



         8                  10                                                                        b
                                            12
                                                                  1                     16
                                                                                                          section b>>
         9                  10                                                                                  1/16”=1’

                                                                      1. Entry
                                                                      2. Reception
DN                                                                    3. Waiting Area
                                                                      4. Style/Cut area
                                                                      5. Dryers
                                                                      6. Shampoo/Color Mixing Area
                                                                      7. Service Core
ground floor plan>>                                                    8. Bathroom
                                                                      9. Chaninging Area
             n   1/16”=1’
                            c                                         10. Spa Room
                                                                      111. Courtyard
                                                                      12. Reflecting Pool
                                                                      13. Lounge/Formal Family Area
                                                                      14. Kitchen
                                                                      15. Dining
                                                                      16. Den/Office




                                                                                                          section c>>
                                                                                                                1/16”=1’
6

                                        7

                                                             5
                        8




                                                                                studio iv>>plans, sections, model photos
                                                                   dn

                                        4




                                5




                                        4                          9




                                                             3
                            8       1


                                                         2




                                            1. Master Bedroom
                                            2. Master Bathroom
                                            3. Walk in Vloset
                                            4. Bedroom
                                            5. Bathroom
                                            6. Laundry
second floor plan>>                          7. Private Family Room/Guest Room
                                            8. Terrace
         n   1/16”=1’                       9. Open to Below
ee
                                                                                                  t




                                                          27
                                                            th
                                                                 St
                                                                   re
                                                                     et




                                                                                                               n



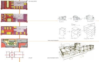
Studio III>>Fall 2008                                     Design Solution>>In order to maximize density,
Project>>Mixed-Use Multifamily Housing                    a mid-rise residential tower acts as a ‘pin’ at the
Instructor>>Lou Bieker                                    center of the site, anchoring a public plaza which
                                                          links existing adjacent townhomes, proposed retail,
Design Problem>>In Denver’s up-and-coming                 residential, and the street. A mixture of low-cost,
River North District (RiNo), design a large mixed-        luxery, and family-oriented housing is proposed
use development on an one-half city block lot (400’       throughout the project. Retail and commercial
x 125’). Historically an industrial and warehouse         line the street level, which has been elevated four
district just east of the Platte River, and north of      feet in places, reminiscent of the historic, elevated
Downtown, the RiNo district is currently experiencing     ‘loading-dock’ sidewalks which characterize the area.




                                                                                                                   studio iii>>
a sort of rennaisance as a dominant art and design        Additionally, a semi-private roof-garden has been
culture has ‘rediscovered’ the unique area. Thus, any     proposed above the attached structured parking to
design solution should consider the ‘rehabilitation’ of   serve as the elevated row-houses’ and tower’s ‘front
an urban area which is currently in a state of flux.       yard’ and provide a private ‘street’, removed from the
                                                          public street below.
<<site concept sketches




                           formal concept development>>
                                              lop nt>>
                                               opment




<<site parti              early site development sketch>>
studio iii>>diagrams, axo, concept sketches
site and context development model (sketchup)>>
<<adjacent context and precident




<<townhome “private street”
rendering (revit)




                                                                                                first floor>>     second floor>>

                                                                                           typical townhome floor plan>>
                                                      DN
                                        UP




                    UP                                                                     1/16”=1’
     DN




                                        DN UP                                          a
                                             DN



                                   UP




                          UP




                                                  b
                                                           <<ground floor site plan
                                                                            1/64”=1’




                                                             <<southeast elevation         typical tower unit floor plan>>
                                                                            1/64”=1’       1/16”=1’
<<site physical model
noitalucriC cilbuP/yramirP    Primary/Public Circulation

                                            noitalucriC etavirP/yradnoceS    Secondary/Private Circulation

                                                                             Vertical Circulation




                                                                                                             studio iii>>plans, sections, elevations, 3d model
                                                      noitalucriC lacitreV




                                                                                     <<circulation
                final site model (revit)>>




<<section b    section a>>
      1”=20’   1”=20’
n


                                                         intersection of two city grids--the north/south grid
Studio II>>Spring 2008
                                                         of the greater metro area, and the rotated downtown
Project>>Japanese Tea House
                                                         grid. This rotation became the basis for design,
Instructor>>Barbara Ambach
                                                         leading to the design concept of the tea room as a
                                                         “jewel” within a larger pavillion. Design, therefore,
Design Problem>>Create a contemporary version of
                                                         proceeded to articulate the processional quality of
the traditional Japanese Tea House on an urban park
                                                         the tea cerimony through a series of landscape and
site (Confluence Park) just west of Downtown Denver,
                                                         architectural thresholds based upon the rotated
on the banks of the Platte River. The tea house should
                                                         grids. The final design resulted in a tea room
provide for all the traditional components of the tea
                                                         articulated as a rotated cube of rough hewn timber
cerimony program, in addition to a public gathering




                                                                                                                  studio ii>>
                                                         set apart and against a regular grid of polished
space and modern services such as restrooms.
                                                         concrete under the enclosed canopy of the pavillion.
                                                         The tea room is thus made quite private, despite its
Design Solution>>Analysis of the surrounding
                                                         location within a larger gathering space situated in a
context revealed the site was located at the
                                                         public, urban setting.
<<site context diagrams




        <<massing         <<grid




        <<circulation     <<adjacency




        <<threshold       <<viewing platform
                                                                                          <<hand drawn axo




        <<parti           <<edge
                                               <<organizational and functional diagrams
exploration models>>
                       hand drawn site plan>>




studio ii>>diagrams, axo, site plan, model photos
<<development and detail models




                                  a
                                       b




                                      <<hand drawn ground floor plan
final model>>
                                                       section a>>




                                    section b>>




studio ii>>model photos, plans, sections, elevations
Projects>>2002-2007                                         the design. Construction of the deck was completed by
                                                            myself in August of 2007.
Design Problem>>The following projects represent
a scope of work which occupied my spare time                The second project responded to the desire to store
prior to design school. They respond to a diverse           a pair of snowboards while utlizing the artwork on
set of problems and impetuses, but all reflect my            the boards as decoration for the client’s home. Since
familiarity with design implementation, construction        there exists a complete lack of any wall-hanger for
methodologies, and product response.                        snowboards on the retail market, I divised a solution
                                                            which entailed the use of four clips which simply
Design Solutions>>The first project is a 10’ x 15’           hold the snowboard in safely place while allowing
backyard deck, part of a much larger backyard               for easy removal of the board. The prototype clips
landscaping project. Built on the southeast side of         were originally manufactured in wood, and second-
a home, directly adjacent to the kitchen, the project       generation aluminum versions are in planning stages.
sought to provide a usable outdoor room for the home’s
family. Utilizing a large existing pine tree to frame the   The final project began my love of furniture design
space, the deck was conceived as a floating platform         and fabrication. This desk was designed as a college
from which the rest of the backyard landscaping could       study and computer desk in early 2002 and was
be enjoyed. Due to its location in a corner and low         manufactured from pine solids and birch veneers.




                                                                                                                    projects>>
height (12” from grade), the platform deck required a       The design incorporated ample shelving for books
continuous cantilevered step around the two exposed         and storage for all computer hardware. While built
sides which opened to a flagstone pad to complete the        to house a desktop computer, the desk was designed
outdoor room. Additionally, a concealed “hatch” leading     with growth in mind, and tolerances for conversion to
to the home’s crawl-space had to be incorporated in         a writing desk were incorporated into the design.
concept exploration sketches>>




existing conditions>>            construction photo>>   completed deck with “floating” step>>   completed landscaping>>
“floating step” framing detail>>




                                                                                              projects>>backyard deck
                                  deck framing plan>>

                                                        <<backyard deck, 2007
                                                        brazillian redwood deck as part
                                                        of a larger backyard re-landscaping
                                                        project
concept sketches>>   product drawings>>

            snowboard clip, 2006>>
designed to allow display of a board’s
 artwork during storage--turning the
       board itself into a piece of art
projects>>snowboard clip and desk
construction drawings>>

                          <<pine and birch desk, 2002
                          design drawings and product photos
Design Outlook:                                                                                              Affiliations
 My love of building things has led me to believe the truest understanding of a design results                _LEED Green Associate accreditation from the U.S. Green Building Council (USGBC)
 from an intimate knowledge of materials and the way things are put together. Thus, I feel that               _American Institute of Architecture Students (August 2007-May 2010)
 design must invite the experiential and tactile involvement of those who would use the design.               _USGBC Colorado Chapter Member (January 2010-present)
About Me:                                                                                                    Work Experience
 _My work has been featured in the UC College of Architecture and Planning Dean’s Gallery exhibit for
                                                                                                              _American Furniture Warehouse | Firestone, Colorado & Fort Collins, Colorado
 six of seven studios. I have been on the Dean’s List every semester of my graduate career, and was
                                                                                                                Assistant Store Manager (January 2006-August 2007)
 honored as one of two Outstanding Graduates in May 2010.
                                                                                                                >Responsible for the coordination, training, and overall quality of sales and warehouse staff in a 530,000 square
 _My portfolio received an Honorable Mention at the 2010 AIA Colorado Young Architect’s Award Gala.
                                                                                                                 foot retail showfloor/warehouse facility with 200+ employees
 _I was invited to present my Advanced Studio 1 project at the University of New Mexico School of
                                                                                                                >Supervised all building operations, including warehousing, sales, staging, front office, customer service, and
 Architecture and Planning’s Converging Perspectives Conference in Albequerque in April 2009.
                                                                                                                 building maintenance
 _LEED GA accredited - LEED AP is my goal in the near future.
                                                                                                                >Experienced developing employee training programs and implementation of strategic goals
 _I have significant experience with Autodesk Revit, completing two dedicated courses and five studios
 with the program in the last two years. I am fully capable of producing immediately - from building
                                                                                                                Warehouse Manager (January 2005-January 2006)
 massing to design development to construction details to renderings.
                                                                                                                > Developed new training programs to ensure customer satisfaction for a 12 person warehouse crew
 _The Adobe Suite (Photoshop, Illustrator, InDesign, and Flash) is very nearly second nature to me. Also I
                                                                                                                >Responsible for implementing successful inventory control, R/F scanning, product handling, and warehousing
 have used Google SketchUp extensively.
                                                                                                                 strategies
 _Outstanding conceptualization, visualization, and communication skills characterize my
 work. I excel at physical modeling, writing, sketching, and diagramming.
                                                                                                                Sales (July 2004-January 2005)
 _I grew up with the building trades (plumbing, construction, electric) and have a familiariaty and
                                                                                                                >Commissioned floor sales ( p
                                                                                                                                          (low pressure environment)
                                                                                                                                                                   )
 comfort on jobs sites and with construction methods.
                                                                                                                >Developed extensive knowledge of furniture construction, design, and interior design/decorating principles
                                                                                                                  eveloped
 _Four years of management experience has given me with the ability to clearly assess and
 articulate the needs of projects, departments, and workgroups.
                                                                                                                Warehouse/Warehouse Lead (August 2002-July 2004):
                                                                                                                   rehouse/Warehouse d
Education                                                                                                       >Responsible for loading out customer purchases and unloading daily product transfer trucks
                                                                                                                  esponsible                                        unloading dailly product
                                                                                                                                                                       oadi           prod
                                                                                                                                                                                        odu
                                                                                                                                                                                         d
 _Master of Architecture                                                                                        >Placed high emphasis on developing positive customer relatiiionships
                                                                                                                   aced                                      customer relationships
                                                                                                                                                                tom elatio
                                                                                                                                                                to        t on
   Outstanding Graduate
   University of Colorado at Denver | Denver, Colorado                                                        _American Mechanical Services | Engllewood, Colorado
                                                                                                                  erican                          Englewood, Colorado
                                                                                                                                                    glewoo o
                                                                                                                                                       wood
                                                                                                                                                         o
   (August 2007-May 2010)                                                                                       Helper (January 1999- August 2000)
                                                                                                                  lper
                                                                                                                     r                          0
                                                                                                                                                0)
                                                                                                                >Job-site helper of Master Plumbers and Journeymen
                                                                                                                  ob-site                  Plumbers and
                                                                                                                                               mbe
                                                                                                                                                b
 _Bachelor of Arts, Sociology & English                  _Cornell University | Ithaca, New York
   Magna Cum Laude                                         (August 2000-December 2000)                          >Job sites included commercial, iinstitutional, and residential settings
                                                                                                                  ob                commercial, nstitutional,
                                                                                                                                           rc a




                                                                                                                                                                                                                                    resume>>
   Colorado State University | Ft. Collins, Colorado
   (January 2001-May 2005)


                                                                                                             craig lawrence AIAS, LEED GA
                                                                                                             craiglawrence.mail@gmail.com

craig lawrence | portfolio: drawings, projects, work

  • 1.
  • 3.
    who am i?>> hello, i’m craig lawrence. i have >>i have thus begun to understand how i >>i understand everything is an evolution: a daughter, a son, and a wife. i graduated from approach architecture. actively building projects evolve, the world evolves, and people csu in ‘05 with a b.a. in sociology and english. i things has given me an understanding of evolve. our notions of architecture evolve: worked in the furniture industry for five years, materials, of tectonics, and of processes. i what is good, what is bad, and so forth. and learned the art of management. i earned wish to give all those who would experience therefore i seek an evolving architecture, my m.arch from ucd in may ‘10, and graduated my designs this same understanding and where the notions of the new marry with our as one of two ‘outstanding graduates.’ i’ve appreciation. contemporary spaces can and desire to feel, connect, and understand. this always sketched and drawn. my entire life i’ve should be infused with a sense of real material, dawning understanding of mine is an evolution, had a passion for creating and building things. real tectonic, real process. i suppose this is a one which is reflected in the pages before design school taught me how to recognize search for a notion of the authentic in a world you. i cordially invite you to examine the work the relationships behind things, to see the where too often a substitute must suffice. contained herein, and perhaps learn more frameworks inherent to good design. about who i am. who am i? >>
  • 5.
    portfolio: drawings, projects,work>> <<contents 1999-2010 1>>art and sketches 2>>bim modeling: revit 3>>studios _advanced studio i _comprehensive studio _studio iv _studio iii _studio ii 4>>projects 5>>resume craig lawrence AIAS, LEED GA craiglawrence.mail@gmail.com contents>> All designs, images, and writings are the property of craig cawrence ©2010
  • 6.
    african mask, 1999>> pen and ink on matt board, hammered aluminum background 36” x 28”
  • 7.
    art and sketches>> <<cherryjewelry box, 2007 mahogany, walnut, and basswood inlays, 3” x 3” x 1 3/8”
  • 8.
    perspective sketch, 2009>> formal study, advanced studio rocky mountain land library buffalo peaks ranch, park county, colorado pen on paper
  • 9.
    art and sketches>> <<robiehouse sketch, 2008 pen on paper
  • 10.
    Aluminum parapet flashing Built-up steel C-channel parapet EPDM membrame Rigid insulation layer Concrete topping Corregated steel decking Deep long span opem-web bar girder Monopan panels suspended from roof structure Steel tubing top plate fastened to girder and columns Stainless steel mounting bracket Steel WF column for lateral support for facade Exterior Monopan Panels (weather-proofing membrane) Stainless steel vertical bar-grate rain screem hung from laterally bracing WF columns wall detail, summer 2009>> beginning revit exercise, fall 2007>> <<project renderings
  • 11.
    bim>>revit: exploration, development,presentation <<comprehensive studio, summer 2009 spatial explorations, fall 2009>>
  • 13.
    n Advanced Studio I>>Fall2009 (similar to an “artist-in-residence”), in addition to Project>>Rocky Mountain Land Library short-term overnight accommodations, and facilities Instructor>>Kat Vlahos for workshops, studios, education, and outreach. Design Problem>>Explore design possibilities for the Design Solution>>An existing cluster of three advanced studio i>> Rocky Mountain Land Library (RMLL), a private 20,000 barns on the eastern edge of the ranch complex volume collection focusing on humanity’s relationship were chosen to receive a new construction “pin” to the land. The chosen site is the historic Buffalo - a simple, equalizing, archetypal gable form - to Peaks Ranch (BPR) - a cattle and sheep ranch dating link the structures into one library and workshop to the 1860’s - located in the high, vast mountain building. The old and new work to frame an east- valley of South Park, Colorado. BPR is one of five facing courtyard, drawing the land into the library Heritage Sites in Park County, and any design solution shelter, and inviting the library program out into needs to consider the numerous existing structures the landscape. The new construction becomes a on the site. Program includes the library, a long- gesture of shelter in the land, able to open up to the term “residential library” component for authors landscape, linking the built and unbuilt.
  • 14.
    <<site photos hand drawn site plan>> n>> 1”=120’
  • 15.
    building diagrams>> <<library axo advanced studio i>>site, photos, 3d mdoel, diagrams
  • 16.
    <<renderings <<1/16th inch scalemodel photos <<structure strategy wall section>> roof assembly (green coated standing seam roof assembly ( zinc-finish standing seam roofing, roofing, membrane, OSB sheathing, rigid membrane, OSB sheathing, rigid insulation, insulation, plywood interior finish) plywood interior finish) on original barn structure 6 x 6 rough-cut pine purlins on pine built-up truss coated metal fascia original barn structure (2x10 rafters 16” oc zinc fascia masks gutter on 6x6 beams and columns 7’ oc) 8” SIPS panel surface mounted to slit window (separates old and new) original wood column grid with corrugated steel cladding 8” dense concrete block (solid fill for thermal mass) window set in front of original barn column radiant floor radiant floor 12” concrete monolithic slab 12” concrete monolithic slab insulation insulation cast-in-place concrete footing cast-in-place concrete footing
  • 17.
    section a &passive building strategies>> a 1/32”=1’ 10 9 9 9 5 8 6 7 5 11 4 2 3 12 advanced studio i>>plan, section, elevation, diagrams 11 b section b>> 2 1/32”=1’ 3 14 1 11 13 Key 1 Entry 6 kitchenette Workshop 2 Stacks 7 Storage 11 Loggia c 3 Reading Area 8 Mechanical 12 Courtyard section c>> ground floor plan>> n 4 Hearth 9 Work Space 13 Path to ‘Ranch’ 1/32”=1’ 1/32”=1’ 5 Restroom 10 Classroom/ 14 Path to land south elevation>> 1/32”=1’
  • 19.
    N n Comprehensive Studio>>Summer 2009 programmatic analysis, it was determined that the Project>>Vancouver Maritime Museum proposed program consisted of two distinct elements: comprehensive studio>> Partner>>Dan Williams a “volumetric” program comprised of the Zephyr Instructor>>Matt Shea restoration--requiring free-flow work patterns, large amounts of space, and easy access to many locations Design Problem>>Design a new facility to house at once--and a more narrative, “linear” program a growing collection and highlight the restoration comprised of the Maritime Museum. With this and preservation of a salvaged 1870 shipwreck, conception in mind, a formal response was devised the Zephyr. Located on former industrial shipping in which the “linear” museum program is articulated grounds, the site consists of a 200’ wide strip of land as a continuous loop, or “tube”, which penetrates, jutting approximately 1000’ into the north edge of infiltrates, and defines a large volume, or “boat shed.” Burrard Inlet, directly across the inlet from the highly The final result of these morphological manipulations dense downtown Vancouver. are two independent elements which become dependent upon one another for spatial definition, Design Solution>>After careful typological and structural integrity, and programmatic coherency.
  • 20.
    <<building morphology <<primary structure <<secondary structure (occupiable deep trusses) concept sketch>> <<ventilation <<hvac <<circulation (green) egress (red) entry(purple) building systems diagrams>> occupancy & program organization>> concept diagrams>>
  • 21.
    up dn a dn up up dn up dn up up b dn up up dn c n n n comprehensive studio>>diagrams, plans, sections ground floor plan>> fourth floor plan>> fifth floor plan>> 1/64”=1’ 1/64”=1’ 1/64”=1’ <<section a section b>> section c>> 1/64”=1’ 1/64”=1’ 1/64”=1’
  • 22.
    <<slice model photos <<slice model (north) elevation <<slice model building section 1/32”=1’ 1/32”=1’
  • 23.
    Powder-coated aluminum panel Vertical stainless steel plate provides support for horizontal cladding roof panels EPDM membrane Sloped rigid insulation Weatherproof spandrel panel Concrete topping Corrugated metal decking Steel WF beam mechanically fastened and welded to top deep truss chord Hollow steel tubing deep truss top chord Three layers 5/8” Type X gypsum board provides three hour fire proofing for stuctural members Tinted polycarbonate panels (weatherproofing membrane and insulating panel) Extruded aluminum support grid Reflective tinted glass rainscreen Stainless steel spider clip comprehensive studio>>slice model, details Three layers 5/8” Type X gypsum boards Hollow steel tubing deep truss diagonal chord iniitia museum initiall museum roof/skin detail sketch>> ia museum al museum roof/skin detail developemtn sketch>> Stainless steel mounting plate for tension rods Steel tension rod Polished concrete topping Corrugated steel decking diagonal C-channel bracing Slot-type low-delivery supply air diffuser “Captured glass” type hidden mullion Supply duct from fan coil (located elsewhere) Mechanically fastened and welded joint between deep truss bottomchord and spanning WF beam Rigid insulation Suspended powder-coated aluminum soffit panel Cantilevered tapered open-web joist Steel mounting plate Anchor plate and bolts initial museum floor/skin detail sketch>> museum floor/skin detail development sketch>>
  • 25.
    Street Pearl 20th Street n Studio IV>>Spring 2009 Design Solution>>The program of a home for a FAMILY Project>>Performative Architecture and Live|Work OF FOUR and a trendy, upscale HAIR SALON business Instructor>>Ken Andrews was chosen. The morphological device of a ribbon was selected for its ability to define, separate, capture, Design Problem>>Define and resolve a live|work and connect various spaces and volumes by becoming residence located on busy Pearl Street in Boulder, ground, floor, wall, ceiling, and roof. The two story Colorado, only a few blocks from the Pearl Street residence volume is separated from and connected to Pedestrian Mall. According to the studio pedagogy, the parallel salon volume by means of a perpendicular design responses were required to consider the idea entry “bar” and an implied parallel outdoor volume. of “performative architecture”--not simply high- This outdoor volume and connecting “bar” serve as the performance building systems, but social, cultural, spaces through which the relationship of live|work is formal, and functional performance. This conception is negotiated on a daily basis--providing both separation neither “top-down” formalism or “bottom-up” hyper- from and connection to the other. The basic concepts explored in the project include connection, the home studio iv>> rationalism, but a “middle-out” approach in which form not only follows function, but function responds to form as a pubilc--not private--place, and shared, mutually in meaningful ways, creating a symbiosis between the defining spaces. The project also emphasized passive two, wherein both come to shape the nature of the sustainable design strategies. design.
  • 26.
    ribbon morphology generativedigarams>> <<axonometric rendering program definition connecting bar mediating space internal/external focus parti morphological functions>>
  • 27.
    view screen diagram>> selective shading diagram>> sunscreen density modulates for views>> studio iv>>diagrams, plans and sections Evaporating water cools the air, causing a downdraft into garage spaces below to create natural ventilation “Pedestal” planters Pool filled with thin base of pebble “Infinity edge” cause water to appear to flow into the garage below Floor structure Gutter system catches and recycles water courtyard cooling effect>> reflecting pool/courtyard floor detail>> Scale:1/4”=1
  • 28.
    1 1 13 3 5 section a>> 2 1/16”=1’ dn 1 8 6 4 11 14 a up 7 8 15 8 10 b 12 1 16 section b>> 9 10 1/16”=1’ 1. Entry 2. Reception DN 3. Waiting Area 4. Style/Cut area 5. Dryers 6. Shampoo/Color Mixing Area 7. Service Core ground floor plan>> 8. Bathroom 9. Chaninging Area n 1/16”=1’ c 10. Spa Room 111. Courtyard 12. Reflecting Pool 13. Lounge/Formal Family Area 14. Kitchen 15. Dining 16. Den/Office section c>> 1/16”=1’
  • 29.
    6 7 5 8 studio iv>>plans, sections, model photos dn 4 5 4 9 3 8 1 2 1. Master Bedroom 2. Master Bathroom 3. Walk in Vloset 4. Bedroom 5. Bathroom 6. Laundry second floor plan>> 7. Private Family Room/Guest Room 8. Terrace n 1/16”=1’ 9. Open to Below
  • 31.
    ee t 27 th St re et n Studio III>>Fall 2008 Design Solution>>In order to maximize density, Project>>Mixed-Use Multifamily Housing a mid-rise residential tower acts as a ‘pin’ at the Instructor>>Lou Bieker center of the site, anchoring a public plaza which links existing adjacent townhomes, proposed retail, Design Problem>>In Denver’s up-and-coming residential, and the street. A mixture of low-cost, River North District (RiNo), design a large mixed- luxery, and family-oriented housing is proposed use development on an one-half city block lot (400’ throughout the project. Retail and commercial x 125’). Historically an industrial and warehouse line the street level, which has been elevated four district just east of the Platte River, and north of feet in places, reminiscent of the historic, elevated Downtown, the RiNo district is currently experiencing ‘loading-dock’ sidewalks which characterize the area. studio iii>> a sort of rennaisance as a dominant art and design Additionally, a semi-private roof-garden has been culture has ‘rediscovered’ the unique area. Thus, any proposed above the attached structured parking to design solution should consider the ‘rehabilitation’ of serve as the elevated row-houses’ and tower’s ‘front an urban area which is currently in a state of flux. yard’ and provide a private ‘street’, removed from the public street below.
  • 32.
    <<site concept sketches formal concept development>> lop nt>> opment <<site parti early site development sketch>>
  • 33.
    studio iii>>diagrams, axo,concept sketches site and context development model (sketchup)>>
  • 34.
    <<adjacent context andprecident <<townhome “private street” rendering (revit) first floor>> second floor>> typical townhome floor plan>> DN UP UP 1/16”=1’ DN DN UP a DN UP UP b <<ground floor site plan 1/64”=1’ <<southeast elevation typical tower unit floor plan>> 1/64”=1’ 1/16”=1’ <<site physical model
  • 35.
    noitalucriC cilbuP/yramirP Primary/Public Circulation noitalucriC etavirP/yradnoceS Secondary/Private Circulation Vertical Circulation studio iii>>plans, sections, elevations, 3d model noitalucriC lacitreV <<circulation final site model (revit)>> <<section b section a>> 1”=20’ 1”=20’
  • 37.
    n intersection of two city grids--the north/south grid Studio II>>Spring 2008 of the greater metro area, and the rotated downtown Project>>Japanese Tea House grid. This rotation became the basis for design, Instructor>>Barbara Ambach leading to the design concept of the tea room as a “jewel” within a larger pavillion. Design, therefore, Design Problem>>Create a contemporary version of proceeded to articulate the processional quality of the traditional Japanese Tea House on an urban park the tea cerimony through a series of landscape and site (Confluence Park) just west of Downtown Denver, architectural thresholds based upon the rotated on the banks of the Platte River. The tea house should grids. The final design resulted in a tea room provide for all the traditional components of the tea articulated as a rotated cube of rough hewn timber cerimony program, in addition to a public gathering studio ii>> set apart and against a regular grid of polished space and modern services such as restrooms. concrete under the enclosed canopy of the pavillion. The tea room is thus made quite private, despite its Design Solution>>Analysis of the surrounding location within a larger gathering space situated in a context revealed the site was located at the public, urban setting.
  • 38.
    <<site context diagrams <<massing <<grid <<circulation <<adjacency <<threshold <<viewing platform <<hand drawn axo <<parti <<edge <<organizational and functional diagrams
  • 39.
    exploration models>> hand drawn site plan>> studio ii>>diagrams, axo, site plan, model photos
  • 40.
    <<development and detailmodels a b <<hand drawn ground floor plan
  • 41.
    final model>> section a>> section b>> studio ii>>model photos, plans, sections, elevations
  • 43.
    Projects>>2002-2007 the design. Construction of the deck was completed by myself in August of 2007. Design Problem>>The following projects represent a scope of work which occupied my spare time The second project responded to the desire to store prior to design school. They respond to a diverse a pair of snowboards while utlizing the artwork on set of problems and impetuses, but all reflect my the boards as decoration for the client’s home. Since familiarity with design implementation, construction there exists a complete lack of any wall-hanger for methodologies, and product response. snowboards on the retail market, I divised a solution which entailed the use of four clips which simply Design Solutions>>The first project is a 10’ x 15’ hold the snowboard in safely place while allowing backyard deck, part of a much larger backyard for easy removal of the board. The prototype clips landscaping project. Built on the southeast side of were originally manufactured in wood, and second- a home, directly adjacent to the kitchen, the project generation aluminum versions are in planning stages. sought to provide a usable outdoor room for the home’s family. Utilizing a large existing pine tree to frame the The final project began my love of furniture design space, the deck was conceived as a floating platform and fabrication. This desk was designed as a college from which the rest of the backyard landscaping could study and computer desk in early 2002 and was be enjoyed. Due to its location in a corner and low manufactured from pine solids and birch veneers. projects>> height (12” from grade), the platform deck required a The design incorporated ample shelving for books continuous cantilevered step around the two exposed and storage for all computer hardware. While built sides which opened to a flagstone pad to complete the to house a desktop computer, the desk was designed outdoor room. Additionally, a concealed “hatch” leading with growth in mind, and tolerances for conversion to to the home’s crawl-space had to be incorporated in a writing desk were incorporated into the design.
  • 44.
    concept exploration sketches>> existingconditions>> construction photo>> completed deck with “floating” step>> completed landscaping>>
  • 45.
    “floating step” framingdetail>> projects>>backyard deck deck framing plan>> <<backyard deck, 2007 brazillian redwood deck as part of a larger backyard re-landscaping project
  • 46.
    concept sketches>> product drawings>> snowboard clip, 2006>> designed to allow display of a board’s artwork during storage--turning the board itself into a piece of art
  • 47.
    projects>>snowboard clip anddesk construction drawings>> <<pine and birch desk, 2002 design drawings and product photos
  • 49.
    Design Outlook: Affiliations My love of building things has led me to believe the truest understanding of a design results _LEED Green Associate accreditation from the U.S. Green Building Council (USGBC) from an intimate knowledge of materials and the way things are put together. Thus, I feel that _American Institute of Architecture Students (August 2007-May 2010) design must invite the experiential and tactile involvement of those who would use the design. _USGBC Colorado Chapter Member (January 2010-present) About Me: Work Experience _My work has been featured in the UC College of Architecture and Planning Dean’s Gallery exhibit for _American Furniture Warehouse | Firestone, Colorado & Fort Collins, Colorado six of seven studios. I have been on the Dean’s List every semester of my graduate career, and was Assistant Store Manager (January 2006-August 2007) honored as one of two Outstanding Graduates in May 2010. >Responsible for the coordination, training, and overall quality of sales and warehouse staff in a 530,000 square _My portfolio received an Honorable Mention at the 2010 AIA Colorado Young Architect’s Award Gala. foot retail showfloor/warehouse facility with 200+ employees _I was invited to present my Advanced Studio 1 project at the University of New Mexico School of >Supervised all building operations, including warehousing, sales, staging, front office, customer service, and Architecture and Planning’s Converging Perspectives Conference in Albequerque in April 2009. building maintenance _LEED GA accredited - LEED AP is my goal in the near future. >Experienced developing employee training programs and implementation of strategic goals _I have significant experience with Autodesk Revit, completing two dedicated courses and five studios with the program in the last two years. I am fully capable of producing immediately - from building Warehouse Manager (January 2005-January 2006) massing to design development to construction details to renderings. > Developed new training programs to ensure customer satisfaction for a 12 person warehouse crew _The Adobe Suite (Photoshop, Illustrator, InDesign, and Flash) is very nearly second nature to me. Also I >Responsible for implementing successful inventory control, R/F scanning, product handling, and warehousing have used Google SketchUp extensively. strategies _Outstanding conceptualization, visualization, and communication skills characterize my work. I excel at physical modeling, writing, sketching, and diagramming. Sales (July 2004-January 2005) _I grew up with the building trades (plumbing, construction, electric) and have a familiariaty and >Commissioned floor sales ( p (low pressure environment) ) comfort on jobs sites and with construction methods. >Developed extensive knowledge of furniture construction, design, and interior design/decorating principles eveloped _Four years of management experience has given me with the ability to clearly assess and articulate the needs of projects, departments, and workgroups. Warehouse/Warehouse Lead (August 2002-July 2004): rehouse/Warehouse d Education >Responsible for loading out customer purchases and unloading daily product transfer trucks esponsible unloading dailly product oadi prod odu d _Master of Architecture >Placed high emphasis on developing positive customer relatiiionships aced customer relationships tom elatio to t on Outstanding Graduate University of Colorado at Denver | Denver, Colorado _American Mechanical Services | Engllewood, Colorado erican Englewood, Colorado glewoo o wood o (August 2007-May 2010) Helper (January 1999- August 2000) lper r 0 0) >Job-site helper of Master Plumbers and Journeymen ob-site Plumbers and mbe b _Bachelor of Arts, Sociology & English _Cornell University | Ithaca, New York Magna Cum Laude (August 2000-December 2000) >Job sites included commercial, iinstitutional, and residential settings ob commercial, nstitutional, rc a resume>> Colorado State University | Ft. Collins, Colorado (January 2001-May 2005) craig lawrence AIAS, LEED GA craiglawrence.mail@gmail.com