473
2183
970
DOOR (D9) DOOR (D11)
(RIM NIGHT LATCH)
(STEEL SAFETY HASP)
(STEEL BARREL BOLT)
(HANDLE)
(CYLINDER LOCK) (STEEL BARREL BOLT)
270
IN
OUT
IN
OUT
(STEEL BARREL BOLT)
G
G
SECTION G
G
G
ELEVATION (IN)ELEVATION (OUT)
105
20
85
45
15
35
LOCKING ARM
FACE PLATE
60
STAPLE BOLT
30
25
18 68
BOLTPLATESTAPLE
45
20180
PLAN
PLAN
HEADER
TOP RAIL
CROSS RAIL
TIMBER PANEL
LOCK RAIL
SILL
ELEVATION (OUT) ELEVATION (IN)
H
H
H
H
SECTION H
DETAIL 5DETAIL 3 DETAIL 4
LEDGE
BATTENS
FIXED
TIMBER
PANEL
SCALE 1:2
70
38
STEEL BUTT
HINGE
TIMBER PANEL
95
TOP RAIL
65
OUTIN OUT IN
FIXED
TIMBER PANEL
QUADRANT
MOULD
CAVETTO
MOULD
DOOR
(40 THK.)
30 94
CAVETTO
MOULD
QUADRANT
MOULD
TIMBER PANEL
TOP RAIL
FFL
FIRST FLOOR
IRON PLATE
SCALE 1:2
30
SCALE 1:2 SCALE 1:2 SCALE 1:2 SCALE 1:2 SCALE 1:2 SCALE 1:2 SCALE 1:2
SCALE 1:2
SLOT
SCALE 1:10
SCALE 1:10 SCALE 1:10 SCALE 1:10 SCALE 1:10 SCALE 1:10 SCALE 1:10
SCALE 1:10
70
STAPLE
BOTTOM RAIL
STEEL
BUTT
HINGE
88
14
18
30
(10 X 70)
(30 x 70)
(70 x 90)
(30 x 70)
(30 x 70)
BOTTOM RAIL
(30 X 60)
(70 X 90)
(10 X 80)
(10 X 100)
(90 X 100)
(70 SQ.)
V Z
U
X
T
Y
(22 THK.)
(22 THK.)
(22 THK.)
TIMBER
DOOR
JAMBS
(5 THK.)
(5 THK.)
TIMBER
PANEL
(5 THK.)
FFL
FIRST FLOOR
ROTTEN TIMBER
HEADER
(40 X 80)
(27 THK.)
BRICK WALL
DOOR FRAME
135
35
ROTTEN
TIMBER
PROJECT TITLE
10
16
DRAWING TITLE
07.03.16
DRAWN BY
SCALE
SHEET NO.
DATE
CHECKED BY
1827/DD/10
ST;AC;ED
DRAWING NO.
ST;AC;ED
28.01.16
MEASURED BY
STARTING DATE
DOORS DETAILS
1:2; 1:10
MEASURED DRAWINGS
NJ
NO.44, KING STREET,
10200 GEORGE TOWN,
PENANG, MALAYSIA.
DETAIL 5
DETAIL 4
T
U
V
W
X
Y
Z
70240709065590655906559045
40 940 40 40 940 40
70240707556585570855708070
(20 DIA.)(10 SQ.)
HEAD
(70 x 90)
(30 X 65)
(20 DIA.)
(10 SQ.)
WINDOW FRAME
DETAIL 3
1045
BOTTOM
WINDOW
FRAME
TIMBER PANEL
PARTITION
TIMBER
DOOR JAMB
TIMBER
DOOR JAMB
(70 SQ.)
(70 SQ.)
TIMBER STILE
STILE
(30 X 70)
(30 X 70)
95 760 95 95 760 95
18404821580
(95 X 135)
BRICK WALL
(270 THK.)
(70 THK.)
W
DOOR
TOP RAIL
(10 X 70)
LEDGE
(10 X 80)
BOTTOM RAIL
(10 X 100)
TOP PLATE
(70 SQ.)
NOTE: ALL DIMENSIONS ARE IN MILLIMETERS (MM)

10 deta1

  • 1.
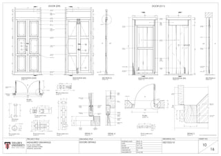
    473 2183 970 DOOR (D9) DOOR(D11) (RIM NIGHT LATCH) (STEEL SAFETY HASP) (STEEL BARREL BOLT) (HANDLE) (CYLINDER LOCK) (STEEL BARREL BOLT) 270 IN OUT IN OUT (STEEL BARREL BOLT) G G SECTION G G G ELEVATION (IN)ELEVATION (OUT) 105 20 85 45 15 35 LOCKING ARM FACE PLATE 60 STAPLE BOLT 30 25 18 68 BOLTPLATESTAPLE 45 20180 PLAN PLAN HEADER TOP RAIL CROSS RAIL TIMBER PANEL LOCK RAIL SILL ELEVATION (OUT) ELEVATION (IN) H H H H SECTION H DETAIL 5DETAIL 3 DETAIL 4 LEDGE BATTENS FIXED TIMBER PANEL SCALE 1:2 70 38 STEEL BUTT HINGE TIMBER PANEL 95 TOP RAIL 65 OUTIN OUT IN FIXED TIMBER PANEL QUADRANT MOULD CAVETTO MOULD DOOR (40 THK.) 30 94 CAVETTO MOULD QUADRANT MOULD TIMBER PANEL TOP RAIL FFL FIRST FLOOR IRON PLATE SCALE 1:2 30 SCALE 1:2 SCALE 1:2 SCALE 1:2 SCALE 1:2 SCALE 1:2 SCALE 1:2 SCALE 1:2 SCALE 1:2 SLOT SCALE 1:10 SCALE 1:10 SCALE 1:10 SCALE 1:10 SCALE 1:10 SCALE 1:10 SCALE 1:10 SCALE 1:10 70 STAPLE BOTTOM RAIL STEEL BUTT HINGE 88 14 18 30 (10 X 70) (30 x 70) (70 x 90) (30 x 70) (30 x 70) BOTTOM RAIL (30 X 60) (70 X 90) (10 X 80) (10 X 100) (90 X 100) (70 SQ.) V Z U X T Y (22 THK.) (22 THK.) (22 THK.) TIMBER DOOR JAMBS (5 THK.) (5 THK.) TIMBER PANEL (5 THK.) FFL FIRST FLOOR ROTTEN TIMBER HEADER (40 X 80) (27 THK.) BRICK WALL DOOR FRAME 135 35 ROTTEN TIMBER PROJECT TITLE 10 16 DRAWING TITLE 07.03.16 DRAWN BY SCALE SHEET NO. DATE CHECKED BY 1827/DD/10 ST;AC;ED DRAWING NO. ST;AC;ED 28.01.16 MEASURED BY STARTING DATE DOORS DETAILS 1:2; 1:10 MEASURED DRAWINGS NJ NO.44, KING STREET, 10200 GEORGE TOWN, PENANG, MALAYSIA. DETAIL 5 DETAIL 4 T U V W X Y Z 70240709065590655906559045 40 940 40 40 940 40 70240707556585570855708070 (20 DIA.)(10 SQ.) HEAD (70 x 90) (30 X 65) (20 DIA.) (10 SQ.) WINDOW FRAME DETAIL 3 1045 BOTTOM WINDOW FRAME TIMBER PANEL PARTITION TIMBER DOOR JAMB TIMBER DOOR JAMB (70 SQ.) (70 SQ.) TIMBER STILE STILE (30 X 70) (30 X 70) 95 760 95 95 760 95 18404821580 (95 X 135) BRICK WALL (270 THK.) (70 THK.) W DOOR TOP RAIL (10 X 70) LEDGE (10 X 80) BOTTOM RAIL (10 X 100) TOP PLATE (70 SQ.) NOTE: ALL DIMENSIONS ARE IN MILLIMETERS (MM)