#25_2001 Conversion and Extension of an Apartmenthouse
#25 Conversion and Extension of an Apartmenthouse


Type: Housing

Client: Fam. Wieshofer/Niederwieser

Collaborators: Baucon ZT Ges.n.b.H., Christian Schniersmeyer

Size: 250m2

Building Costs: €360.000,- 

Location: Fieberbrunn/Austria

Phases: all Phases

Status: completed 2001
The house was planned and built originally as an extremely luxurious single family house. The main hall in the centre of the
two upper floors is 8x8x6m – large enough to carry a small single family house. Apart form an indoor swimming pool there
was also a huge sauna area in the cellar.
As the families Wieshofer and Niederwieser took over the house, the basement was already converted and refurnished for
the young family Niederwieser/Wieshofer.
After several years abroad and in Vienna, also the son shifted his focus of main inte- rests to Fieberbrunn. This made a
further change to the house necessary. Around

the big hall there was probably enough space for another apartment, but because of the roof the two “wings” are very low and
dark. In relation to the rest of the house and especially concerning the location and possible view these areas where of
course to bad to just rearrange the inside. Moreover the only stairway to the upper floor was a spiral stair in the living room
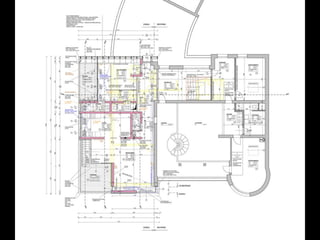
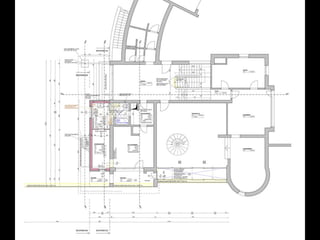
so far. Therefore it became the task to rearrange and construct the ground level and the upper floor completely new.
The mother now inhabits the ground floor. The daughter with her family remains in the basement. On the upper level a guest
apartment was build that is uses by friends of all of the family. And of course the new apartment for the son is located to the
upper level to the south/west side.
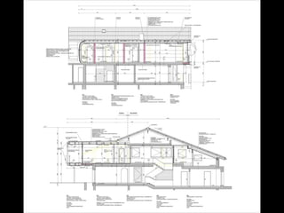
The only architectural duty was the wish for facing concrete walls. All basic walls are constructed as facing concrete walls.
The curved-skin is constructed in wood. Like secured by two hands the shell is ground and ceiling for the living space. To the
sun the roof was bent upwards, in order to bring light and heat rays more deeply into the building.
Where glass areas make sense, they reach frameless from the ground to the ceiling. Only in the kitchen and in the shower
there are conventional wood-windows, and I’m sure we would have done even better without.
Wieshofer
Wieshofer
Wieshofer
Wieshofer
Wieshofer
Wieshofer
Wieshofer
Wieshofer
Wieshofer
Wieshofer
Wieshofer
Wieshofer
Wieshofer
Wieshofer
Wieshofer
Wieshofer
Wieshofer
Wieshofer
Wieshofer
Wieshofer
Wieshofer
Wieshofer
Wieshofer
Wieshofer
Wieshofer
Wieshofer
Wieshofer

Wieshofer

  • 1.
    #25_2001 Conversion andExtension of an Apartmenthouse
  • 2.
    #25 Conversion andExtension of an Apartmenthouse 
 Type: Housing
 Client: Fam. Wieshofer/Niederwieser
 Collaborators: Baucon ZT Ges.n.b.H., Christian Schniersmeyer
 Size: 250m2
 Building Costs: €360.000,- 
 Location: Fieberbrunn/Austria
 Phases: all Phases
 Status: completed 2001 The house was planned and built originally as an extremely luxurious single family house. The main hall in the centre of the two upper floors is 8x8x6m – large enough to carry a small single family house. Apart form an indoor swimming pool there was also a huge sauna area in the cellar. As the families Wieshofer and Niederwieser took over the house, the basement was already converted and refurnished for the young family Niederwieser/Wieshofer. After several years abroad and in Vienna, also the son shifted his focus of main inte- rests to Fieberbrunn. This made a further change to the house necessary. Around
 the big hall there was probably enough space for another apartment, but because of the roof the two “wings” are very low and dark. In relation to the rest of the house and especially concerning the location and possible view these areas where of course to bad to just rearrange the inside. Moreover the only stairway to the upper floor was a spiral stair in the living room so far. Therefore it became the task to rearrange and construct the ground level and the upper floor completely new. The mother now inhabits the ground floor. The daughter with her family remains in the basement. On the upper level a guest apartment was build that is uses by friends of all of the family. And of course the new apartment for the son is located to the upper level to the south/west side. The only architectural duty was the wish for facing concrete walls. All basic walls are constructed as facing concrete walls. The curved-skin is constructed in wood. Like secured by two hands the shell is ground and ceiling for the living space. To the sun the roof was bent upwards, in order to bring light and heat rays more deeply into the building. Where glass areas make sense, they reach frameless from the ground to the ceiling. Only in the kitchen and in the shower there are conventional wood-windows, and I’m sure we would have done even better without.