Charles Édouard Jeanneret
CINC PRINCIPIS INNOVADORS:




   Les terrasses – jardí.
   Tenir la coberta plana, on s'havia de situar un jardí, una nova zona, un espai destinat al
    gaudiment.
1929, Ville Savoye, Poissy, France
Le Corbusier. Villa Saboya. 1929-1931. Poissy. París
   NOM: Villa Savoye

   ARQUITECTE: Le Corbusie
    (Charles-Édouard, Jeanneret).

   Cronologia: 1929-1931.

   Localització: Poissy (França).

   Estil: racionalisme funcional.

   Dimensions: 19 m x 21,5 m .

   Materials: Blocs en murs i
    ampits, i tancaments amb
    vidres i marcs d’acer.

   Actualment: és una "casa-museu", dedicada a la vida i obra de Le Corbusier i
    mantinguda per la societat pública Monuments de França, i rep milers
    de visites a l'any, principalment d'arquitectes i estudiants.
VILLE SAVOIE (1929-1931). LE CORBUSIER
La Villa Savoye és reflex dels “CINC PUNTS” de la nova arquitectura de
Le Corbusier




                                                   1




                                1. Pilars (pilotis): separaven l'habitatge del terreny.
                                2. Façana lliure: el pis s'avança en volada a causa
                                de la reculada dels pilars de la planta baixa.
La Villa Savoye és reflex dels “CINC PUNTS” de la nova arquitectura de
Le Corbusier




                                                     3




                                 3. Finestres contínues: l'absència de murs
                                 de càrrega fa que les finestres puguin recórrer tot
                                 el perímetre de l'edifici.
La Villa Savoye és reflex dels “CINC PUNTS” de la nova arquitectura de
Le Corbusier




                                                  5




                                  4.     Planta   lliure:     les     noves       tecnologies
                                  i els nous materials permetien la supressió dels murs
                                  de càrrega . Espai interior clar i de lliure distribució.
                                  5. Jardí en la coberta: el jardí del terrat feia
                                  de filtre natural de l'aigua de pluja i era
                                  una continuació del jardí de la primera planta.
La planta baixa està determinada, en
                                           gran mesura, pel moviment d'un automòbil
                                           que entri a l'edifici. Aquest moviment
                                           també determina l'estructura, basada
                                           en una malla octogonal de pilars de formigó
                                           distants entre si 4,75 metres uns d'uns altres.
                                           Aquesta        malla        conforma       una
                                           planta quadrada de 21,5 m de costat per 19
                                           m, sobre la qual s'assenta la Vil·la.




Dos elements principals: una rampa
que recorre de baix a dalt tot l'edifici
i que constituïx la seva espina
dorsal,      perllongant        aquest
moviment des de fora cap a dintre,
i una escala de caragol.                             Estructura i circulació
Cub blanc amb línies corbes en el sostre.

Fa l'efecte que la galleda aquesta
està surant en l'aire.




                                Volum
Està ocupada pel hall i les
dependències per al
servei, i compta amb un
garatge capaç de donar
cabuda a 3 automòbils
de l'època, cosa que va
suposar una fita per a la
història de l'arquitectura i
un gran avenç per al seu
temps.

En la part frontal, i
pròxima a l’entrada
rodada, es troba l’entrada
del carrer, enfront de la
qual s’obre el hall que
compta amb els dos
elements principals
esmentats: la rampa i
l’escala de caragol.

   Planta Baixa
Tot l'interior del hall es troba pintat de blanc, el que representa l‘ interès
               de Le Corbusier per l'arquitectura sanitària i la higiene, en una època que
               les ciutats patien les conseqüències de la superpoblació en forma
               d'epidèmies; cosa que plasma l'important descobriment de la vida
               microbiana a tot arreu, incloent l'interior dels habitatges.




Aquest aspecte també es veu reflectit
en la profusió de lavabos i excusats en
l'interior de la Vil·la. Aparentment, molt
superior a les necessitats i, també, amb
l’aprofitament l'aigua corrent amb la qual es
contava.

Més allunyats de l'entrada apareixen tres
habitacions per a convidats i servei.

                                                                                Interior
La part principal de l'habitatge (saló, menjador, cuina,
dormitoris i banys) es troba situada en la planta primera.

      Espai lliure i fluid.

      Il·luminació natural.

      Organització de l’espai entorn dels espais
       de circulació.




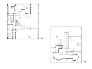
                                                             Planta 1
Detalls de la Villa Saboya
Detalls de la Villa Saboya
Planta 1
Planta 1
Planta 1
Terrassa
Terrassa
Terrassa
Renovada en 1964 y muy bien
          mantenida




Façanes
ESCALA I RAMPA




PARET CORBA I ENTRADA PRINCIPAL




                                               PLANTA 0




                                  GARAJE
PLANTA
PRINCIPAL



            ZONA D’ESTAR
CUINA




                      PLANTA PRINCIPAL




                              B
                              A
                              N
                              Y
HABITACIONS
TERRASSA




PARCIALMENT COBERTA
SOLARIUM
PLANTES I PLANOLS EN 3D
PLANTES I PLANOLS EN 3D
ESQUEMA GRÀFIC
                                                      Características generales



                                                   Planta libre
                                              (pilares separados      Multiplicación de       Fachada libre
    Empleo de pilotes       Techos planos           de muros)                                                      Estructuras
    que aíslan edificio      que permiten                            ventanales (en este      para abrir los   de hormigón y hierro
                                                  de estructura    caso ventanales corridos    huecos que
        del suelo            terraza jardín          racional            horizontales)         se deseen

                                                                                                               Cuatro lados
                                                                                                            similares (se rompe
                                                                                                          organización jerárquica
      Situada en centro                                                                                   en torno a una fachada
  de jardín, permite a través                                                                                     principal
   de ventanas deslizantes
contemplar los cuatro ángulos                                                                        Contraste entre formas
                                                                                                    cúbicas de primera planta
                                                                                                   y pared ondulada de azotea
     Edificio sostenido
    por pilares de hierro
                                                                                                    Efectos de claroscuro
         cilíndricos
                                                                                                  provocado por retranqueo
                                                                                                        de planta baja

                                                 Le Corbusier
                                              Villa Saboya 1929

                                                                                                                     Historia del Arte
                                                                                                                    Rosa Mª Vilá Blasco
ESQUEMA GRÀFIC
                                                      Salón principal
                           Edificio organizado   y habitaciones conectan
                           en torno a rampas y    con patio con puertas
                                 escaleras         correderas diluyendo
                                                 frontera interior-exterior




  Planta baja
retranqueada,
en forma de U
con cocheras
                                                        Patio de primera planta
                                                         y azotea como jardín
                                                               y solarium



                     Le Corbusier
                  Villa Saboya 1929
                         plano
                                                                 Historia del Arte
                                                                Rosa Mª Vilá Blasco
Villa Saboya

Villa Saboya

  • 1.
  • 2.
    CINC PRINCIPIS INNOVADORS:  Les terrasses – jardí.  Tenir la coberta plana, on s'havia de situar un jardí, una nova zona, un espai destinat al gaudiment.
  • 3.
    1929, Ville Savoye,Poissy, France
  • 4.
    Le Corbusier. VillaSaboya. 1929-1931. Poissy. París
  • 5.
    NOM: Villa Savoye  ARQUITECTE: Le Corbusie (Charles-Édouard, Jeanneret).  Cronologia: 1929-1931.  Localització: Poissy (França).  Estil: racionalisme funcional.  Dimensions: 19 m x 21,5 m .  Materials: Blocs en murs i ampits, i tancaments amb vidres i marcs d’acer.  Actualment: és una "casa-museu", dedicada a la vida i obra de Le Corbusier i mantinguda per la societat pública Monuments de França, i rep milers de visites a l'any, principalment d'arquitectes i estudiants.
  • 6.
  • 8.
    La Villa Savoyeés reflex dels “CINC PUNTS” de la nova arquitectura de Le Corbusier 1 1. Pilars (pilotis): separaven l'habitatge del terreny. 2. Façana lliure: el pis s'avança en volada a causa de la reculada dels pilars de la planta baixa.
  • 9.
    La Villa Savoyeés reflex dels “CINC PUNTS” de la nova arquitectura de Le Corbusier 3 3. Finestres contínues: l'absència de murs de càrrega fa que les finestres puguin recórrer tot el perímetre de l'edifici.
  • 10.
    La Villa Savoyeés reflex dels “CINC PUNTS” de la nova arquitectura de Le Corbusier 5 4. Planta lliure: les noves tecnologies i els nous materials permetien la supressió dels murs de càrrega . Espai interior clar i de lliure distribució. 5. Jardí en la coberta: el jardí del terrat feia de filtre natural de l'aigua de pluja i era una continuació del jardí de la primera planta.
  • 11.
    La planta baixaestà determinada, en gran mesura, pel moviment d'un automòbil que entri a l'edifici. Aquest moviment també determina l'estructura, basada en una malla octogonal de pilars de formigó distants entre si 4,75 metres uns d'uns altres. Aquesta malla conforma una planta quadrada de 21,5 m de costat per 19 m, sobre la qual s'assenta la Vil·la. Dos elements principals: una rampa que recorre de baix a dalt tot l'edifici i que constituïx la seva espina dorsal, perllongant aquest moviment des de fora cap a dintre, i una escala de caragol. Estructura i circulació
  • 12.
    Cub blanc amblínies corbes en el sostre. Fa l'efecte que la galleda aquesta està surant en l'aire. Volum
  • 13.
    Està ocupada pelhall i les dependències per al servei, i compta amb un garatge capaç de donar cabuda a 3 automòbils de l'època, cosa que va suposar una fita per a la història de l'arquitectura i un gran avenç per al seu temps. En la part frontal, i pròxima a l’entrada rodada, es troba l’entrada del carrer, enfront de la qual s’obre el hall que compta amb els dos elements principals esmentats: la rampa i l’escala de caragol. Planta Baixa
  • 19.
    Tot l'interior delhall es troba pintat de blanc, el que representa l‘ interès de Le Corbusier per l'arquitectura sanitària i la higiene, en una època que les ciutats patien les conseqüències de la superpoblació en forma d'epidèmies; cosa que plasma l'important descobriment de la vida microbiana a tot arreu, incloent l'interior dels habitatges. Aquest aspecte també es veu reflectit en la profusió de lavabos i excusats en l'interior de la Vil·la. Aparentment, molt superior a les necessitats i, també, amb l’aprofitament l'aigua corrent amb la qual es contava. Més allunyats de l'entrada apareixen tres habitacions per a convidats i servei. Interior
  • 20.
    La part principalde l'habitatge (saló, menjador, cuina, dormitoris i banys) es troba situada en la planta primera.  Espai lliure i fluid.  Il·luminació natural.  Organització de l’espai entorn dels espais de circulació. Planta 1
  • 21.
    Detalls de laVilla Saboya
  • 22.
    Detalls de laVilla Saboya
  • 34.
  • 35.
  • 36.
  • 37.
  • 38.
  • 41.
  • 51.
    Renovada en 1964y muy bien mantenida Façanes
  • 52.
    ESCALA I RAMPA PARETCORBA I ENTRADA PRINCIPAL PLANTA 0 GARAJE
  • 53.
    PLANTA PRINCIPAL ZONA D’ESTAR
  • 54.
    CUINA PLANTA PRINCIPAL B A N Y HABITACIONS
  • 55.
  • 56.
  • 57.
  • 58.
  • 63.
    ESQUEMA GRÀFIC Características generales Planta libre (pilares separados Multiplicación de Fachada libre Empleo de pilotes Techos planos de muros) Estructuras que aíslan edificio que permiten ventanales (en este para abrir los de hormigón y hierro de estructura caso ventanales corridos huecos que del suelo terraza jardín racional horizontales) se deseen Cuatro lados similares (se rompe organización jerárquica Situada en centro en torno a una fachada de jardín, permite a través principal de ventanas deslizantes contemplar los cuatro ángulos Contraste entre formas cúbicas de primera planta y pared ondulada de azotea Edificio sostenido por pilares de hierro Efectos de claroscuro cilíndricos provocado por retranqueo de planta baja Le Corbusier Villa Saboya 1929 Historia del Arte Rosa Mª Vilá Blasco
  • 64.
    ESQUEMA GRÀFIC Salón principal Edificio organizado y habitaciones conectan en torno a rampas y con patio con puertas escaleras correderas diluyendo frontera interior-exterior Planta baja retranqueada, en forma de U con cocheras Patio de primera planta y azotea como jardín y solarium Le Corbusier Villa Saboya 1929 plano Historia del Arte Rosa Mª Vilá Blasco