Vel. 296880597 Mts. 292578888

Сделай свою мечту ближе

http://caliadny-les.com/
http://caliadny‐les.com/   

  vel 0296880597. mts 0292578888 

Павел Железны

 

В 

ведение. 

В современной строительной практике применяются несколько типов жилых малоэтажных домов, выбор которых зависит от конкретных условий: одноквартирный коттедж, двухквартирный (спаренный),  
многоквартирный блокированный.  
Характерной особенностью малоэтажной застройки всех видов является наличие индивидуальных  участков. Планировка квартир малоэтажных домов разных типов должна отвечать всем требованиям и условиям.  
Квартира малоэтажного дома связана с участком. Это вызывает необходимость в большинстве случаев делать два входа в дом ‐ один со стороны улицы, другой со стороны участка. Первый обычно делается через 
переднюю, второй ‐ через кухню.  
В доме устанавливают крытые и закрытые террасы, веранды, лоджии, балконы, используемые в тёплое время года в качестве дополнительной жилой площади и места отдыха. В III и IV климатических зонах 
устройство таких летних помещений являются обязательным.  
Из‐за холодного климата, кроме этого необходимо при входе в дом предусматривать внутренний тамбур или холодные сени.  
Особенности поселкового типа требуют устройства для хранения инвентаря  и продуктов.  

О

бщие данные: 
Эскизный проект и Визуализация одноквартирного жилого дома мансардного типа выполнен 
 в соответствии с заданием Заказчика и требованиями СНиП, и предназначен  для строительства в Минской области.  
Участок находится на периферии Минска в коттеджной застройке, недалеко от города. Участок ‐ 18 соток. В плане – неправильный многоугольник. К востоку от участка проходит улица, к юго‐востоку – пустырь с 
кустарником и небольшим озером. Рельеф ‐ спокойный, с небольшим  уклоном в сторону юго‐запада. 
‐ расчётная зимняя температура 
по климатическому району IV, согласно СНиП 23‐0 1‐99 
‐ наиболее холодной пятидневки ‐28° С 
‐ наиболее холодных суток ‐32° С; 
‐ нормативная снеговая нагрузка по III району согласно 
СНиП 2.01.01. ‐85*‐ 100кг/кв.м.(1.00 кПа); 
‐ нормативный скоростной напор ветра по I району согласно 
СНиП 2. 01. 07‐85* ‐ 23кгс/кв.м.(0,23 кПа); 
‐ зона влажности ‐ нормальная 
Грунт суглинок. Глубина промерзания _____м. Грунтовые воды _____м. Окружающая растительность ‐ хвойные и лиственные породы деревьев, древесно‐кустарниковая растительность.   
Дом рассчитан на проживание семьи из 4 человек. Стилистические предпочтения обитателей – современный, средиземноморский.  Это учтено при проектировании.  

А 

рхитектурная часть.  
Архитектурно ‐ планировочное решение разработано в соответствии со СНиП 31‐01‐2003 
" Многоквартирные жилые дома " и СНиП 31‐02 ‐ 2001 «Одноквартирные жилые дома». 
За условную отметку ±0.000 принята отметка чернового пола дома. 
План участка вытянут с северо‐востока на юго‐запад. С  двух сторон ‐ граничит с другими участками. Здание соответствует всем санитарно‐гигиеническим требованиям.  
Здание удалено от дороги на 9 м.  
Въезд ориентирован с юга.  
Роза ветров Север‐Восток.  
Дом мансардный, со скатной кровлей. Вертикальная связь с помощью лестниц. По планировочному решению весь дом можно условно разделить на зоны: общесемейного пользования, индивидуального пользования, 
хозяйственную.  
Цоколь облицован природным камнем в коричневых тонах. Стены бежевые ‐ оштукатуренный газосиликатный блок.  Двери, окна и другие детали фасада выполнены в одной  серой тональности.  
Крыша – битумная  черепица.  
Дом является "художественным центром" всего генплана. Согласно проекту все зоны располагаются вокруг дома. В северо‐восточной части участка располагается баня. Посадка деревьев — вдоль границы.  Гараж 
пристроен к дому.  
Зона совместного отдыха на открытом воздухе располагается за домом, чтобы её не было видно при въезде на участок. Продумано, как естественное продолжение жилого пространства ‐ замощённые площадки, 
навес‐маркиза,  элементы парковой архитектуры с малыми декоративными формами.  
http://caliadny‐les.com/   

  vel 0296880597. mts 0292578888 

Павел Железны

Л 

андшафт. 
Регулярный сад ‐ стриженые газоны, обрамлённые декоративными элементами клумбы, стриженные бордюрные растения.  Здесь применён комбинированный стиль посадок: около дома они более регулярны, 
затем переходят в естественный ландшафтный сад. Крупные деревья являются Акцентами, они  идеально смотрятся на фоне хорошо ухоженных, подстриженных газонов с сочной травой. Размещаются группами и в 
одиночных посадках.  
На переднем плане размещены Рябина и несколько ярусов Сирени разных цветов. Сумах, задающий южное настроение. 
Рождественское дерево в непосредственной близости от дома и бани,  почвопокровные можжевельники, многолетние цветы, около крыльца‐первоцветы и яркие однолетники. 
Слева и справа от въезда Акцентные можжевельники, перемежающиеся с другими правильными формами. Яркие по осени и богатые листвой клёны – с  северо‐запада. Эта комбинация создаёт неповторимый 
Средиземноморский ритм. 
В задней части участка – патио, пергола с Девичьим виноградом и  большая защищённая лужайка с плодовым садом и теплицей с одной стороны и ярким обширным миксбордером , с другой. 
Ровный участок подразумевает наличие  геопластики  или другого деления участка на зоны. Они запланированы, подчёркивают  стиль и создают необходимые условия водоотвода. 
Мощение дорожек запланировано из натурального камня и плитки тротуарной, соединяющего структуры цоколя и малых архитектурных форм.. 
Основные показатели проекта. 
1. Этажность этажей 2 (мансардный тип)
2. Площадь застройки: кв.м.163
3. Общая площадь, кв.м. 254,8
в том числе площадь 
‐ жилых помещений кв.м. 147 
4. Строительный объем куб.м. 960
Класс ответственности здания = III 
Степень долговечности = II 
Степени огнестойкости = III 
Технические решения, принятые в проекте, соответствуют требованиям экологических, санитарно‐гигиенических и противопожарных норм, действующих на территории России и обеспечивающих безопасную 
эксплуатацию здания при соблюдении предусмотренных проектом мероприятий и правил эксплуатации. 

Литература:  
1 . Буга П.Б. Гражданские, промышленные и сельскохозяйственные здания 1987 г.  
2. Шерешевский И. А. Конструкции гражданских зданий. 2003 г.
3 . Благовещенский Ф.И., Букина Е.Ф. Архитектурные конструкции 1985г. 
4. Д. Г. Хессайон Все о вечнозеленых растениях 2008г.
5. Джон Брукс  Дизайн сада. Мастер‐класс 2009г.
6. Дж. Хэнди Цветочная палитра 2006г.
12000

"Архитект3DпроекТ" - студия дизайна компании "Рождественский Лес"

Павел Железны

A
3000

B

12900

5500

12600

2
5000

16500

11300

7000

4370

3

кадастровый № 623681305601000163

10900

1

7000

Дом

2

Баня.

3

6400

1

Беседка

13500

Площадь участка - 01825 га, под застройкой - 242 кв.м.

Б

О Генплан
*** *Посадка зданий на участке

ГАП

Проект одноквартирного жилого дома мансардного
типа

ЗАКАЗЧИК
ИСПОЛНИТЕЛЬ

ИСП
Генплан
ДАТА

СОГЛАСОВАНО

М 1:200

ЛИСТ№1
"Архитект3DпроекТ" - студия дизайна компании "Рождественский Лес"

1
2

N

Павел Железны

Общий вид
архитектурное решение

Архитектурное решение по размещению на участке
одноквартирного жилого дома мансардного типа и бани, выполнено
на основании требований заказчика и в соответствии
с нормами и правилами СНБ 1.01.01-97

ГАП

Проект одноквартирного жилого дома мансардного
типа

ЗАКАЗЧИК
ИСПОЛНИТЕЛЬ

ИСП
Общий вид
ДАТА

СОГЛАСОВАНО

М 1:

ЛИСТ№2
"Архитект3DпроекТ" - студия дизайна компании "Рождественский Лес"

Павел Железны

A
B

Фасады
архитектурное решение
Труба

11100

котельной

5700

A

B

4700
6400

35*

3200

3200

7000

7970

3700

уровень чернового пола 0,0

-0,3 Пол гаража
-0,45

грунт

высота цоколя

A

-0,45

B
16500

N
Архитектурное решение по фасадам
одноквартирного жилого дома мансардного
типа выполнено на основании требований
заказчика и в соответствии
с нормами и правилами СНБ 1.01.01-97

ГАП

Проект одноквартирного жилого дома мансардного
типа

ЗАКАЗЧИК
ИСПОЛНИТЕЛЬ

ИСП
Фасады A/B
ДАТА

СОГЛАСОВАНО

М 1:100

ЛИСТ№6
"Архитект3DпроекТ" - студия дизайна компании "Рождественский Лес"

0

Фасад B-C желательно закрывать от действующей розы ветров соответствующей
посадкой дома на участке, либо посредством живых изгородей
главный враг тепла в доме - ветер

B
C

N

Павел Железны

Фасады
архитектурное решение

Уклон крыши

B

C

7970

35*

6980

2108

6980

2155

5096

2400

2400

3160

3567

5166

3610

+900
уровень чернового пола 0,0

-450
****

уровень грунта

высота цоколя

B

-450

C

Архитектурное решение по фасадам
одноквартирного жилого дома мансардного
типа выполнено на основании требований
заказчика и в соответствии
с нормами и правилами СНБ 1.01.01-97

ГАП

Проект одноквартирного жилого дома мансардного
типа

ЗАКАЗЧИК
ИСПОЛНИТЕЛЬ

ИСП
Фасады B-C
ДАТА

СОГЛАСОВАНО

М 1:100

ЛИСТ№7
"Архитект3DпроекТ" - студия дизайна компании "Рождественский Лес"

Павел Железны
Этот фасад рекомендуется размещать к Югу, Юго-Западу, Юго-востоку. Окна
спальни и большое остекление гостинной способствует свето и теплопоглощению
0
Солнце-друг дома

N
C
D

Фасады

уклон крыши

архитектурное решение
C

D

35*

7970

6980

6710

7000

7970

5620

3370
2350

2350

2350

3230

3200

2100

0,00 Черновой пол
-0,45

грунт

470

900

C

D

пол гаража -300
уровень грунта

-450

16500

Архитектурное решение по фасадам
одноквартирного жилого дома мансардного
типа выполнено на основании требований
заказчика и в соответствии
с нормами и правилами СНБ 1.01.01-97

ГАП

Проект
одноквартирного жилого дома мансардного
типа

ЗАКАЗЧИК
ИСПОЛНИТЕЛЬ

ИСП
Фасады C-D
ДАТА

СОГЛАСОВАНО

М 1:100

ЛИСТ№8
"Архитект3DпроекТ" - студия дизайна компании "Рождественский Лес"

Павел Железны
главный враг тепла в доме - ветер

D
A

N

0

Фасад D-A желательно размещать к действующей розе ветров соответствующей
посадкой дома на участке.

Фасады
архитектурное решение

Уклон крыши

D

A

7970

35*

6980

6980

2108

6710

2155

5096
4830

2400

1750

3160

2150

2890

3567

5166

3610
2580

+900
уровень чернового пола 0,0

-450
****

уровень грунта

высота цоколя

D

10032,9 mm

-450

A

12743,4 mm

Архитектурное решение по фасадам
одноквартирного жилого дома мансардного
типа выполнено на основании требований
заказчика и в соответствии
с нормами и правилами СНБ 1.01.01-97

ГАП

Проект
одноквартирного жилого дома мансардного
типа

ЗАКАЗЧИК
ИСПОЛНИТЕЛЬ

ИСП
Фасады D-A
ДАТА

СОГЛАСОВАНО

М 1:100

ЛИСТ№9
"Архитект3DпроекТ" - студия дизайна компании "Рождественский Лес"

Павел Железны

экспликация помещений

1

Тамбур прихожая 4,9 м.кв.

5

сан. узел 3,6 м.кв.

2

Котельная 11,3 м.кв.

6

гостевая спальня 16,5 м. кв.

3

Кухня 8,46 м.кв.

7

кладовая 5,7 м.кв

4

Гостинная 35,5 м.кв.

8

Гараж 38,3 м.кв.

D
С

16500

400

10100

1000

800

Общая площадь - 124,26 м.кв, жилая - 52 м.кв.

2000

4

4
5100

3

10900

1100
900

2200

2000

7400

8400

толщина
перегородок
12см

ступени
h 17.7см, L 29см

3600

2200

2800

900

дверные проемы
100см

6

7

3

3100

3700

4

5

8

2200
2

2
450

450
950

5000

3

2
1

800
4700

A

A
B

1

1200

1

2800

1200

2300

1900

1500

2200
1900

3600

B

План первого этажа
*экспликация помещений

ГАП

Проект
одноквартирного жилого дома мансардного
типа

ЗАКАЗЧИК
ИСПОЛНИТЕЛЬ

ИСП
план первого этажа.
ДАТА

СОГЛАСОВАНО

М 1:100

ЛИСТ№3
"Архитект3DпроекТ" - студия дизайна компании "Рождественский Лес"
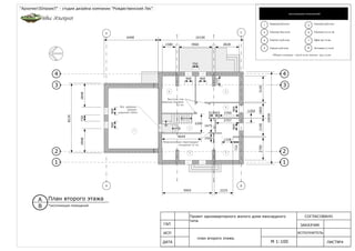
экспликация помещений

Павел Железны
1

1580

3960

Спальня 18,4 м.кв.

6

Спальня 17,2 м. кв.

3

10100

Спальня 15,8 м.кв.

Санузел 13,8 м.кв.

7

Офис 42,7 м.кв.

4

6400

5

2

С

D

Коридор 9,8 м.кв.

Санузел 5,8 м.кв.

8

Лестница 7,1 м.кв.

2828

Общая площадь - 130,6 м.кв, жилая - 94,1 м.кв.

750

4

4
900

3

1000

2350

1200

2100

1

900

900

2757
2200

1675

7

2

2

1338
2700

1020

Межкомнатные перегородки
толщиной 12 см.

722

2848

4644

3

2
1

1

A

B
5905

A
B

10930

4

1800

Выступы под
дверные коробки
12 см.

900

Все дверные
проемы
шириной 100см

5

730

8226

900

2848

6

3

3100

1210

900

2225

План второго этажа
*экспликация помещений

ГАП

Проект одноквартирного жилого дома мансардного
типа

ЗАКАЗЧИК
ИСПОЛНИТЕЛЬ

ИСП
план второго этажа.
ДАТА

СОГЛАСОВАНО

М 1:100

ЛИСТ№4
х
75

"Архитект3DпроекТ" - студия дизайна компании "Рождественский Лес"

Павел Железны
Стропильная нога
рсчитывается
после определения
материала кровли

С

D

3030

4290

Вылет крыши составляет 100 см

5696
Вылет крыши составляет 50 см.
+6980

4

4

35*
все уклоны крыши 35 градусов

3

2

Коньковый пролет и
соответствующий шаг
определяется после выбора
муэрлата и стропил

Вылет крыши составляет 50 см
+6710

+7970

+7970

12930

35*

+6710

1347

10233

4560

3

2

Вылет крыши составляет 50 см

1

A

1000

500
Вылет крыши составляет 50 см

6400

1

35*

+6980

2803

B

3680

Вылет крыши составляет 100 см.

A
B

План крыши
*экспликация помещений

ГАП

Проект
одноквартирного жилого дома мансардного
типа

ЗАКАЗЧИК
ИСПОЛНИТЕЛЬ

ИСП
план крыши
ДАТА

СОГЛАСОВАНО

М 1:100

ЛИСТ№5
Павел Железны

"Архитект3DпроекТ" - студия дизайна компании "Рождественский Лес"

A
B

Разрез по коньковому прогону
архитектурное решение

N

11100
A

B
6400

утепленное балочное
перекрытие

5840

7970

Монолитное
перекрытие h170
1400

7000

несущие стены
2930
2670

3530

2760

3200

2500

3200

2230
177

/2
90

уровень
чернового пола 0,0

-0,3 Пол гаража
-0,45

высота цоколя

грунт

плита монолитного
фундамента

16500

-0,45

повышающий ряд
бетонных блоков

A

B

Архитектурное решение по фасадам
одноквартирного жилого дома мансардного
типа выполнено на основании требований
заказчика и в соответствии
с нормами и правилами СНБ 1.01.01-97

ГАП
ИСП

Железнов
П.П
Железнов
П.П

Проект одноквартирного жилого дома мансардного
типа

24.04.13

ЗАКАЗЧИК
ИСПОЛНИТЕЛЬ

Разрез в осях
ДАТА

СОГЛАСОВАНО

М 1:100

ЛИСТ№
Павел Железны

"Архитект3DпроекТ" - студия дизайна компании "Рождественский Лес"

N
B
C

Разрез в координатах
архитектурное решение
B

C

6980

6980

2108

6120

5840

Монолитное
перекрытие h170

2400

2760

3567

5166

2930

уровень чернового пола 0,0

-450
****

уровень грунта

высота цоколя

B

плита монолитного
фундамента

повышающий ряд
бетонных блоков

-450

C

Архитектурное решение по фасадам
одноквартирного жилого дома мансардного
типа выполнено на основании требований
заказчика и в соответствии
с нормами и правилами СНБ 1.01.01-97

ГАП

Проект одноквартирного жилого дома мансардного
типа

ЗАКАЗЧИК
ИСПОЛНИТЕЛЬ

ИСП
Разрез 2
ДАТА

СОГЛАСОВАНО

М 1:100

ЛИСТ№
"Архитект3DпроекТ" - студия дизайна компании "Рождественский Лес"

Павел Железны

6400,0 mm
3670

400

500

500

10100
5030
500

1800

Заглубление ребер
жесткости в грунт
относительно
плиты - 200мм

Площадь плиты: 163 квадратных метров
Требуемый объем бетона для фундамента: 65.2 кубических метров Площадь
опалубки: 23.4 квадратных метров
При толщине доски опалубки 25 миллиметров, количество пиломатериалов:
0.52 куб. м. или 39досок длиной 6 метров и шириной 100 мм
400
Расходы при самостоятельном замесе бетона
Требуемое количество мешков цемента по 50 кг: 425.6. (Или 21280 кг) 200
Стоимость цемента 3830.4$
400
Песок 53200 кг
Стоимость песка 266$
Щебень 76608 кг
Стоимость щебня 689.47$
Стоимость пиломатериалов 102$
Количество арматуры 2121 метров
Вес арматуры 1884.35 кг
Горизонтальных рядов 55
Итого 6792,22$
Вертикальных рядов 33
расчеты без учета геотекстиля,
Стоимость арматуры 1884.35
гидро и теплоизоляции
$

400

400

1970

2470

500

3170

Требуемый объем бетона для ребер жесткости: 2.88 кубических метров
Количество арматуры при закладке в 1 ряда:
37.6 метров + 30.08 метров на вертикальные прутки.
Всего арматуры: 67.68 метров (60.06 кг)
Полная площадь поверхности ленты фундамента 43.2 квадратных метров
Расходы при самостоятельном замесе бетона
Требуемое количество мешков цемента по 50 кг: 20.16. (Или 1008 кг)
Стоимость цемента 181.44$
Песок 2520 кг
Стоимость песка 12.6$
Итого 286,76$
Щебень 3628.8 кг
расчеты без учета геотекстиля,
Стоимость щебня 32.66$
гидро и теплоизоляции
Стоимость арматуры 60.06$

ПЛАН РЕБЕР ЖЕСТКОСТИ ПОД
ПЛИТНЫМ МОНОЛИТНЫМ
ФУНДАМЕНТОМ

10900

*архитектуный раздел

400

2790

8400

План фундамента

2830

400

A
Р

B

3170

B

2600
A

A
1900
16500

А

М 1:100

В

Ячейка из арматуы d12 с шагом не более 300мм

Правильный "пирог" монолитного незаглубленного фундамента
Снизу- вверх
Геотекстиль высокой плотности
Уплотненный до 0,98 слой ПГС - 400мм
Подбетонка легкой маркой бетона - 80мм
Гидроизоляция мембрана или пленка не менее 250мкм с
вылетом по краям на высоту фундамента
Утеплитель -50мм
Армированные ребра жесткости - 200мм
Монолитная плита - 400мм

A

ГАП
ИСП

Железнов
П.П.

СОГЛАСОВАНО
ЗАКАЗЧИК

М 1:100

Железнов
П.П.

25.04.13

B

Проект одноквартирного жилого дома мансардного
типа

план фундамента
ДАТА

М 1:50

М 1:50

ИСПОЛНИТЕЛЬ

ЛИСТ№
Павел Железны

"Архитект3DпроекТ" - студия дизайна компании "Рождественский Лес"

N
У

Узел черепичной крыши с утепленным мансардным этажом.
главный враг тепла в доме - ветер

D
A

Разрез в координатах
архитектурное решение

сопряжение

7970

D

А - 500
k - 200
ht - 670
hs - 1000
hk - 1400
ha - 1495

A

6980
6710

5096

1400

Монолитное
перекрытие h170

2400
2500

3567

5166

3610 2670

+900
уровень чернового пола в доме 0,0

-450

уровень грунта

высота цоколя

****

-450

плита монолитного
фундамента

A

D

Архитектурное решение по фасадам
одноквартирного жилого дома мансардного
типа выполнено на основании требований
заказчика и в соответствии
с нормами и правилами СНБ 1.01.01-97

ГАП

Железнов
П.П.

ИСП

Железнов
П.П.

ДАТА

26.04.13

Проект одноквартирного жилого дома мансардного
типа

СОГЛАСОВАНО
ЗАКАЗЧИК
ИСПОЛНИТЕЛЬ

Разрез 3

М 1:100

ЛИСТ№
Павел Железны

"Архитект3DпроекТ" - студия дизайна компании "Рождественский Лес"

План стропильной системы

A
Р

*архитектуный раздел

С

D
2730

4030

4030

650

3

3

1730

10440

2650

315
3300

10230

Ширина стропила 16 см
Толщина стропила 8 см
Свес основной крыши 120 см
Ширина основной крыши по стенам
770 см
Высота от начала крыши до конька 310
см
Длина основной крыши (конек) 630 см

5230

4

4630

4

Ширина стропила 16 см
Толщина стропила 8 см
Свес основной крыши 120 см
Ширина основной крыши по стенам 1000
см
Высота от начала крыши до конька 400 см
Длина основной крыши (конек) 1100 см

2
1

1200

1

1200

2

6400

700

1585

A

260

B

Взаимосвязь между безразмерной величиной
уклона скатов крыши, углом в градусах
и процентах

ГАП
ИСП

Железнов
П.П.

Проект одноквартирного жилого дома мансардного
типа

ЗАКАЗЧИК

Железнов
П.П.

ИСПОЛНИТЕЛЬ

план стропильной системы
ДАТА

25.04.13

СОГЛАСОВАНО

М 1:100

ЛИСТ№1
Павел Железны

"Архитект3DпроекТ" - студия дизайна компании "Рождественский Лес"

В

А

6300

11000

A
Р

План стропильной системы
*архитектуный раздел

4050

Ширина стропила 16 см
Толщина стропила 8 см
Свес основной крыши 120 см
Ширина основной крыши по стенам 1000
см
Высота от начала крыши до конька 400 см
Длина основной крыши (конек) 1100 см

4530

3100

3080

4000

1110

700

Ширина стропила 16 см
Толщина стропила 8 см
A
Свес основной крыши 120 см
Ширина основной крыши по стенам
770 см
Высота от начала крыши до конька 310
см
Длина основной крыши (конек) 630 см

B

2450

3080

2090

890

4000

4530

1680

1965
4640
7700
10000

Взаимосвязь между безразмерной величиной
уклона скатов крыши, углом в градусах
и процентах

ГАП
ИСП

Железнов
П.П.

Проект одноквартирного жилого дома мансардного
типа

ЗАКАЗЧИК

Железнов
П.П.

ИСПОЛНИТЕЛЬ

план стропильной системы
ДАТА

25.04.13

СОГЛАСОВАНО

М 1:100

ЛИСТ№2
"Архитект3DпроекТ" - студия дизайна компании "Рождественский Лес"

Ширина стропила 16 см
Толщина стропила 8 см
Свес основной крыши 120 см
Ширина основной крыши по стенам 1000 см
Высота от начала крыши до конька 400 см
Длина основной крыши (конек) 1100 см
Размер основной крыши. Высота полотна основной крыши 794 см
Ширина полотна (конек) 1100 см
Площадь основной крыши 87.34 (174.68) квадратных метров (без учета выреза)
Площадь выреза в основной крыше 3.84 (7.68) квадратных метров
Реальная площадь основной крыши 83.5 (167) квадратных метров (с вырезом)
Стропила длиной 794 см. Количество стропил 16 (32)
Объем материалов стропил 1.63 (3.26) кубических метров (без учета выреза)
Количество рядов досок обрешетки 53 (106)
Объем досок обрешетки 2.1 (4.2) кубических метров или 98 (196) штук по 6
метров (без учета выреза)
Реальный объем досок обрешетки 2 (4) кубических метров или 94 (188) штук по 6
метров (с учетом выреза)
Количество кровельного материала основной крыши 60 листов (с учетом выреза)
25.3 рядов по 1.2 листа в ширину на каждую половину
Подкровельный материал (пергамин, рубероид...) 177 квадратных метров
Рубероид 12 рулонов (по 15 квадратных метров в рулоне) или пергамин 9
рулонов (по 20 квадратных метров в рулоне)
При нахлесте 5%

A
Р

*архитектуный раздел

Длина конька 230 см (150 см до стены + выступ 80 см)
Длина боковой стороны по стене 233.2 см
Длина боковой стороны 357.6 см
Площадь 4.11 (8.22/16.44) квадратных метров
Количество стропил - по 2 штук с каждой стороны
Размеры стропил:
116.6 см
233.2 см
Общая длина материала стропил 2.33 (4.66/9.32) метров
Объем материала стропил 0.03 (0.06/0.12) квадратных метров
Количество рядов досок обрешетки 24 (48/96)
Объем досок обрешетки 0.1 (0.2/0.4) кубических метров или 5 (10/20)
штук по 6 метров
Количество кровельного материала 1.5 (3/6) листов
11.4 рядов по 0.2 листов
Подкровельный материал (пергамин, рубероид...) 4.5 (9/18)
квадратных метров
Рубероид 1 (2/4) рулонов (по 15 квадратных метров в рулоне)
или пергамин 1 (2/4) рулонов (по 20 квадратных метров в рулоне)
При нахлесте 5%

Площадь крыши дома без учета крыши гаража - 183.44 квадратных метров.
Объем материала стропил 3.38 кубических метров
Объем досок обрешетки 4.4 кубических метров или 208 штук по 6 метров. Количество
кровельного материала 66 листов. Подкровельный материал (пергамин, рубероид...) 195
квадратных метров. Рубероид 16 рулонов (по 15 квадратных метров в рулоне)
или пергамин 13 рулонов (по 20 квадратных метров в рулоне)

Павел Железны

План стропильной системы

ДОМ

ГАП
ИСП

ГАРАЖ

Железнов
П.П.

Ширина стропила 16 см
Толщина стропила 8 см
Свес основной крыши 120 см
Ширина основной крыши по стенам 770 см
Высота от начала крыши до конька 310 см
Длина основной крыши (конек) 630 см
Размер основной крыши
Высота полотна основной крыши 648.4 см
Ширина полотна (конек) 630 см
Площадь основной крыши 40.85 (81.7) квадратных метров
Стропила длиной 648.4 см
Количество стропил 9 (18)
Объем материалов стропил 0.75 (1.5) кубических метров
Количество рядов досок обрешетки 44 (88)
Объем досок обрешетки 0.98 (1.96) кубических метров или 47 (94) штук по 6
метров
Количество кровельного материала основной крыши 30 листов
20.7 рядов по 0.7 листа в ширину на каждую половину
Подкровельный материал (пергамин, рубероид...) 86 квадратных метров
Рубероид 6 рулонов (по 15 квадратных метров в рулоне) или пергамин 5
рулонов (по 20 квадратных метров в рулоне)
При нахлесте 5%

Проект одноквартирного жилого дома мансардного
типа

ЗАКАЗЧИК

Железнов
П.П.

ИСПОЛНИТЕЛЬ

план стропильной системы
ДАТА

25.04.13

СОГЛАСОВАНО

М 1:100

ЛИСТ№5
Павел Железны

"Архитект3DпроекТ" - студия дизайна компании "Рождественский Лес"

A
Р

План межэтажных перекрытий

Узлы сопряжений

*архитектуный раздел

У

001

схемы сопряжений

Межэтажное перекрытие монолитное.
Высота перекрытия - 170мм
Конструкция соответствует монолитной
плите фундамента.
Изменен шаг арматуры с 300мм до 150мм
Изменен диаметр арматуры с 12мм до 10мм
Система пола по перекрытию из ж/б плит (без лаг).
Сопряжения стены и перекрытия.

Сопряжения стены и оконного блока

1

2

3

4

1100

1140

10900

8400

3540

2760

6400

10100

Общая площадь двух плит перекрытия: 145 квадратных
метров
Требуемый объем бетона для фундамента: 24.65 кубических
метров
Площадь опалубки: 8.33 квадратных метров, она же площадь
боковых поверхностей
При толщине доски опалубки 25 миллиметров количество
пиломатериалов: 0.21 кубических метров
или 14 досок длиной 6 метров и шириной 100 миллиметров
Расходы
Требуемое количество мешков цемента по 50 кг: 172.55. (Или
8627.5 кг)
Стоимость цемента 1552.95
Песок 21568.75 кг
Стоимость песка 107.84
Щебень 31059 кг
Стоимость щебня 279.53
Стоимость пиломатериалов 46.2
Количество арматуры 3932 метров
Вес арматуры 2423 кг
Горизонтальных рядов 68
Вертикальных рядов 98
Стоимость арматуры 2423

5

6

1. Основание под напольное
покрытие
2. Теплозвукоизоляция
3. Пароизоляция
4. Ж/б плита
5. Звукоизоляционная прокладка
6. Плинтус
7. Стена

ГАП

Железнов
П.П.

1. Оконный блок
2. Набивка
3. Стена
4. Штукатурка
5. Армирующая сетка
6. Теплоизоляция

Проект одноквартирного жилого дома мансардного
типа

СОГЛАСОВАНО
ЗАКАЗЧИК

Итого: 4409.52

ИСП
ДАТА

Железнов
П.П.

25.04.13

план перекрытий,

М 1:200

узлы сопряжений

М 1:***

ИСПОЛНИТЕЛЬ

ЛИСТ№
Павел Железны

"Архитект3DпроекТ" - студия дизайна компании "Рождественский Лес"

Несущие стены ГС D500
*расчет приблизительный
Фундамент

*расчет приблизительный

Требуемый объем бетона для ребер жесткости: 2.88 кубических метров
Количество арматуры при закладке в 1 ряда:
37.6 метров + 30.08 метров на вертикальные прутки.
Всего арматуры: 67.68 метров (60.06 кг)
Полная площадь поверхности ленты фундамента 43.2 квадратных метров
Расходы при самостоятельном замесе бетона
Требуемое количество мешков цемента по 50 кг: 20.16. (Или 1008 кг)
Стоимость цемента 181.44$
Песок 2520 кг
Стоимость песка 12.6$
Щебень 3628.8 кг
Стоимость щебня 32.66$
Стоимость арматуры 60.06$

Площадь плиты: 163 квадратных метров
Требуемый объем бетона для фундамента: 60.8 кубических метров
Площадь опалубки: 20.4 квадратных метров
При толщине доски опалубки 25 миллиметров, количество пиломатериалов:
0.51 куб. м. или 34 досок длиной 6 метров и шириной 100 мм
Расходы при самостоятельном замесе бетона
Требуемое количество мешков цемента по 50 кг: 425.6. (Или 21280 кг)
Стоимость цемента 3830.4$
Песок 53200 кг
Стоимость песка 266$
Щебень 76608 кг
Стоимость щебня 689.47$
Стоимость пиломатериалов 102$
Количество арматуры 2101 метров
Вес арматуры 1864.35 кг
Горизонтальных рядов 55
Вертикальных рядов 33
Стоимость арматуры 1864.35$
Итого 7079$

Коэффициент теплопроводности кладки на клеевом растворе с толщиной
швов 3+2 мм в среднем на 17% ниже, чем кладки на цементно-песчаном
растворе с толщиной швов 10-12 мм.
При этом, например, сопротивелние теплопередаче кладки стен
толщиной 500 мм, выполненной из блоков из ячеистого бетона
плотностью 500 кг/м.куб., для условий эксплуатации "А" составляет:
- для кладки на клеевом растворе - R=3,28 Вт/(м*С)
- на цементно-песчаном растворе толщиной 12 мм - R=2,79 Вт/(м*С)
Площадь стен 307,27 квадратных метров
Площадь стен с учетом оконных и дверных проемов 232,6 квадратных метров
Общая площадь оконных и дверных проемов 30,87 квадратных метров
Объем материалов стен 133,82 кубических метров
Стеновые блоки
Требуемое количество стеновых блоков 3508 штук (расчет приблизительный).
Стоимость ГС блоков D500 -72$ за куб.м.
За весь объем - 9635$
Требуемое количество клея для кладки блоков из расчета 25 кг на 1 куб.м. 2908кг. (117мешков по 25 кг)
Стоимость клея - 4,5$ за мешок 25кг.
За весь объем - 602,2$

Перегородки кирпич М250
*расчет приблизительный
Кирпич керамический рядовой одинарный КРО М250 красный
Размер: 250х120х65 мм
Масса: 3,6 - 3,75 кг
Плотность: 1850 - 1870 кг/м3
Марка: 175, 200, 250
Морозостойкость: 35 циклов
Водопоглощение: не менее 8%
Теплопроводность: 0,529 Вт/(м · К)
Площадь стен 253.872 квадратных метров
Объем материалов стен 3.05 кубических метров
Кирпич
Требуемое количество кирпича 1251 штук
(расчет приблизительный).
Стоимость кирпича - 0,38$ за шт.
За весь объем - 475,3$
Требуемое количество раствора кладочного из расчета
0,25 куба раствора на 1 м.куб кладки. - 0,77куб.

Итого 10238$

Стоимость раствора - 50$ за куб
За весь объем - 39$

КОЛИЧЕСТВО КЛЕЯ НАПРЯМУЮ ЗАВИСИТ ОТ ГЕОМЕТРИИ БЛОКА
И КОСВЕННО ОТ РУК СТРОИТЕЛЯ
Итого 515$

Стропильная система

*расчет приблизительный

Площадь крыши дома - 265 квадратных метров.
Объем материала стропил 4,88 кубических метров. Объем мауэрлата 160х160 - 40м.пог.
Подкосы, затяжки, перевязки - 3куб.м. (50х150H)
Объем досок обрешетки 6,36 кубических метров или 302 штук по 6 метров.
Количество кровельного материала 96 листов.
Подкровельный материал (пергамин, рубероид...) 281 квадратных метров.
Рубероид 22 рулонов (по 15 квадратных метров в рулоне)
или пергамин 18 рулонов (по 20 квадратных метров в рулоне)
Стоимость определяется исходя
из конкретно выбранного
материала

ГАП
ИСП
ДАТА

Железнов
П.П.

Железнов
П.П.

25.04.13

Проект одноквартирного жилого дома мансардного
типа

СОГЛАСОВАНО
ЗАКАЗЧИК

Перечень основных
строительных материалов

ИСПОЛНИТЕЛЬ

ЛИСТ№

Проектирование домов. Образец проекта.