More Related Content
PPTX
PDF
PUERTO ETEN MILAGRO DE VIDA EN EL TIEMPO PDF
Presentation on Water Conservation, Water Efficient Products in India PDF
Building Services Case Study PPT
DOCX
Seismic analysis of multi storey reinforced concrete buildings frame” PDF
Disaster Resist house , with stand cyclone and earthquake PDF
What's hot
PDF
PERFORMANCE BASED ANALYSIS OF VERTICALLY IRREGULAR STRUCTURE UNDER VARIOUS SE... PPTX
PDF
Ar803 Architectural Structure Question Paper DOCX
PPTX
plastic Facade- PLOYCARBONATE AND PTFE PDF
building services -Lift's and escalators PPTX
Seismic Retrofitting of Masonry Structures PPS
STEEL STRUCTURE CONSTRUCTION. PDF
Menara Mesiniaga Building Science Report PPTX
Civil Engineering Internship Presentation-Anis Rahman Khokan PPT
Tube structures and its type with comparison . PPT
PDF
Redesign of Gandhinagar Bus Terminal a Case Study DOCX
final year Project (civil) PPTX
Effect of wind Load On High Rise Building PPT
Green building assessment PPTX
TIPS:16 - HOW TO MAKE STONE MASONRY BUILDINGS EARTHQUAKE RESISTANT? PPTX
Riverfront Development - Bisnumati Water Front PDF
When Should You Consider Meta Architectures PPT
Role of different institutions in housing Viewers also liked
PDF
PDF
Base plate heavy steel structure PDF
PDF
14 desilting tank-plan & section details PPTX
Modi Khola Hydropower Field Report PDF
2.2 gl for-hydaulic_design_of_shp_project PPT
performance evaluation of desilting devices PDF
SCG Report on Himurja SHP Tender 2014 More from Nikhil Jaipurkar
PDF
Appendix 11 analysis of rates - balsio shp phase ii - 28032014 PDF
PDF
PDF
PDF
43 penstock gate embedment-1 PDF
39 shingle gate embedment-1 PDF
PDF
PDF
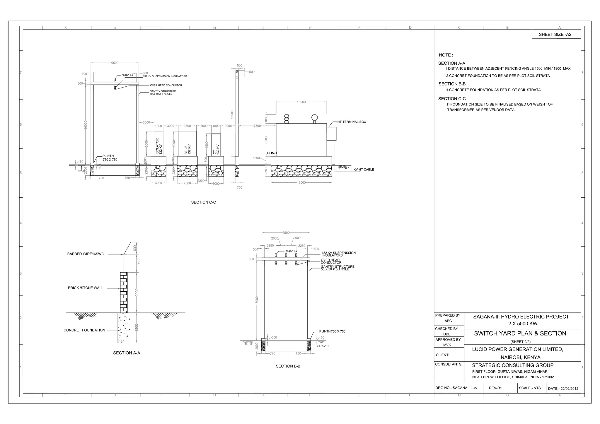
23 diversion weir trash-1 PDF
PDF
19 plan & section of penstock PDF
10 section of tunnel (1 of 4) PDF
9 power channel - section PDF
PDF
6 general layout of project (6 of 6) PDF
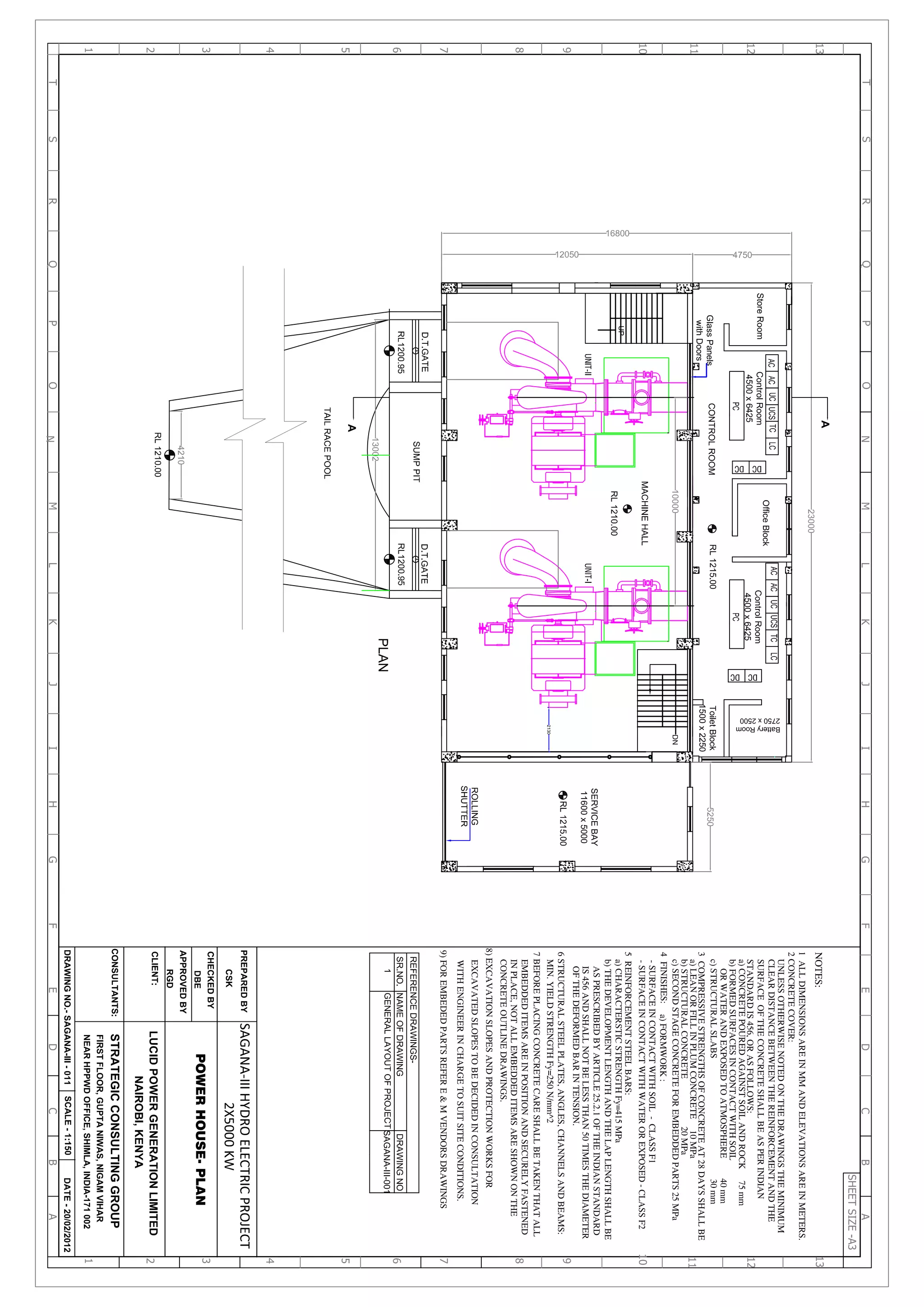
1 general layout of project (1 of 6) PDF
Sample DPR for Hydro Project (10 MW) (2012) PDF
Indicative budget for SHP development PDF
SHP development in India - A roadmap Recently uploaded
PPTX
22PEOIT4C Session 1 Introduction to AI and intelligent agents.pptx PPTX
Plant Bio-additives (2).pptxA plant bioadditive is a functional substance der... PDF
Paralleling of Alternators - First Edition - 2022 PDF
Troubleshooting of Marine Refrigeration System - Part 4 PPTX
Civil_Engineering_Technician_Skill_Assessment_2025_2026_Presentation.pptx PPTX
Industrial Smart Ventilation system.pptx PPTX
Preventive Maintenance Program for Compressors – Complete Guide PPTX
A7383 3D Printing UNIT-III : 3D printing techniques PPTX
Aix-Marseille Université Diploma PPTX
Optimizing Plant Maintenance — Key Elements of a Successful Maintenance Plan ... PPTX
Introduction to Civil Engineering-Defination, Branches of civil engineering a... PPTX
How to Implement Kaizen in Your Organization for Continuous Improvement Success PDF
AI-Driven CTI for Business: Emerging Threats, Attack Strategies, and Defensiv... DOCX
Project Management(BOE 070) notes Unite 4 AKTU PDF
Sensor & Instrument MODULE 3 REVISION PPT.pdf PPTX
KTU 2024 SCHEME -PEMET 413 COMPOSITE MATERIALS MODULE 1 LECTURE 1.pptx PDF
3rd International Conference on AI & Civil Engineering (AICiViL 2025) PPTX
Data Science with R Final yrUnit II.pptx PPTX
Optimizing Operations: Key Elements of a Successful Plant Maintenance Plan — ... PDF
Modeltomodel_Transformation_with_ATL (1).pdf