ARCHITECTURAL
PORTFOLIO
SAKSHI S. PATIL
SAKSHI PATIL
CONTACT
12/2/1997
9405375629
sakshipatil165@gmail.com
B 901, Majestic Towers,near
Lake Town, Bibwewadi
https://youtu.be/6zGd8JY3zeY
https://www.daisie.com/sakshi
PROFILE
A driven, diligent and ambitious architecture student, currently in 4th year,
seeking a position as an Architectural Intern in a firm that provides an engaging
and challenging work enviornment.
Having lived in different cities throughout my childhood has greatly added to my
adaptability to new places and people.The sense of team spirit and leadership
qualities that I’ve developed after heading various competitions in college have
helped me work better in varied enviornments and diverse terms.
EDUCATION
•	 Bachelor of Architecture
Anantrao Pawar College of Architecture,Pune.
•	 Senior econdary School
Muktangan Junior College,Pune.
•	 Secondary School
Kilbil St.Joseph’s High School
SOFTWARE SKILLS
AutoDesk AutoCAD
AutoCad 3D
Adobe Photoshop
Adobe InDesign
Lumion
SketchUp
Revit
COMPETITIONS AND CONFERENCES
•	 Annual NASA Design competition 2016I
Top 50
•	 Annual NASA Design competition 2017I
Top 10
•	 Delegate at Model United Nations
•	 Research and thesis competition I 3rd rank
ARCHITECTURAL COMPETENCE
Planning Video Editing
Layouts Sketching
Presentation 3d Modelling
Model Making
LANGUAGES
•	 English
•	 Hindi
•	 Marathi
•	 French
•	 Telugu
PERSONAL QUALITIES
•	 Active listening
•	 Effective verbal communication
•	 Presentation
•	 Problem
•	 Team work
Vice President ,
APCOA.
1
BUS TERMINUS
ART AND ARCHITECTURE
COLLEGE
4
RESORT MODULE
5
LANDSCAPE
6
WORKING DRAWING
7 8
NASA
9
SKETCHES AND
MODELS
MUSEUM
2
HOUSING
3
01
WAR MEMORIAL
MUSEUM
01
Project Type: Art gallery
Brief: To build a war memorial in pune.
Site Area:14000 sq.m
Built Up:7850 sqm.
Ground Coverage:5600 sq.m.
Project Requirements
•	 Exhibit area for war
•	 200 seater auditorium
•	 Restaurant
•	 Souvenir shop
•	 Administration
•	 Amphitheatre
The National War Museum serves the purpose of
displaying items of military interest and historical
value including development of arms, equipment
and their role in the Indian history.
The museum is intended to be belonged to everyone
and design incorporates these essential and prac-
tical aspects delivering atruly functional pragmatic
museum.The museum is inspired from the golden
ratio and the gatropod shell of a snail.
The spiral growth of the sea shell follows the log-
arithmic spiral, which is completely based on the
golden rule. The radial layout, the singular design
approach and the incorporated architecture ele-
ments makes it an Iconic building.
SITE PLAN
PUNE
N
ADMIN THANADMIN AREA AND ARMY EXHIBIT
NAVY EXHIBIT
AIR FORCE EXHIBIT AND AUDITORIUM
CIRCULATION REFERS TO WAY PEOPLE MOVE THROUGH AND INTERACT WITH THE BUILDING.IT’S A PATH THAT
CAN BE CONCEIVED OF AS THE PERPETUAL THREAD THAT LINKS SPACES OF A BUILDING OR ANY SERIES OF
INTERIOR OR EXTERIOR SPACES .
THE FIRST PHASE OF THE CIRCULATION IS THE APPROACH TO ENTRANCE ,WHERE ONE PREPARES TO SEE EXPE-
RIENCE .
HERE THE NATURE OF THE APPROACH IS CONTINUED ONTO THE BUILDING’S INTERI-
OR SEQUENCE OF SPACES ,OBSCURING THE DISTINCTION BETWEEN INSIDE AND OUTSIDE.
SECTION
AUDITORIUM
ENTRANCE LOBBY
RESTAURANT
GROUND FLOOR PLAN
AIR FORCE
EXHIBIT
CONSERVATION
AREA
NAVY
EXHIBIT
ARMY
EXHIBIT
ADMIN
AUDITORIUM
AMPHITHEATRE
FIRST FLOOR PLAN
WATER BODY
02HOUSINGAUNDH
Central government has promoted redevlopement of hospitals & healthcare facilities
at state and district level . As a part of this state government is planning to redevlop
Aundh Chest Hopital & district hospital campus .It will come up as state of the art
grade I, 500 bedded multi speciality hospital.
After the redevlopement, the hospital is expecting renowned doctors from all over
India . Keeping this in mind the state government is plannig to develop a residential
complex for doctors and all allied staff just next to the hospital complex. Total staff
requirement for the hospital is 435 . Out of which state government is plannig to
provide fraternity from Medical, Nursing and paramedical staff.
91°
75°
104°
90°
112094.4
103952.1
219512.0
190303.2
SITE LOCATION:Nurs-
es Quarter, Aundh Chest
Hospital, F/9, Defence
Area, Pimple Gurav, Pim-
pri-Chinchwad, Maharash-
tra.
SITE DIMENSIONS
Plot Area -18845.5Sqm.
Studio Apartments (For
Nurses & wardboys)-70-
30sqm
1BHK-80-50sqm
2BHK-50-80sqm
DRY BALCONY
1000x 2600
LIVING ROOM
3500X5871
KITCHEN
2550X2350
BEDROOM
3500X4000
TYPOLOGY A:
1BHK
1BEDROOM
2 BALCONIES
1 DRY BALCONY
LIVINGROOM
3500X5871
BEDROOM
3500X4000
KITCHEN
2550X2350
TOILET
1500x2100
BALCONY
3580x2000
TOILET
1500x2100
TYPOLOGY B:
2 BHK
2 BEDROOMS
2 BALCONIES
1 DRY BALCONY
STUDIO APARTMENT
5040x 6000
TYPOLOGY C:
STUDIO
1 BALCONY
By keeping the block low and lifting
the north-east portion of the build-
ing, the courtyard opens views to-
wards courtyard and brings the low
western sun deep into the block.
While the courtyard is a private
space and a sanctuary for residents,
it can still be seen from the outside,
creating a visual connection to the
rowhouses.
FIRE
HOSE
REEL
LIFT
STRECHER
LIFT
STUDIO APARTMENT
5040x 6000
STUDIO APARTMENT
5040x 6000
STUDIO APARTMENT
5040x 6000
STUDIO APARTMENT
5040x 6000
UP
UP
2100.0000
2100.0000
2100.0000
2100.0000
2100.0000
2100.0000
2100.0000
2100.0000
2100.0000
2100.0000
2100.0000
SECTION
A'
A
3000.0000
STUDIO APARTMENT
STUDIO APARTMENT
STUDIO APARTMENT
STUDIO APARTMENT
STUDIO APARTMENT
STUDIO APARTMENT
STUDIO APARTMENT
STUDIO APARTMENT
STUDIO APARTMENT
STUDIO APARTMENT
STUDIO APARTMENT
STUDIO APARTMENT
STUDIO APARTMENT
STUDIO APARTMENT
STUDIO APARTMENT
STUDIO APARTMENT
STUDIO APARTMENT
STUDIO APARTMENT
STUDIO APARTMENT
LIVING ROOM LIVING ROOM
LIFT LIFT
LIVING ROOM LIVING ROOM
LIFT LIFT
LIVING ROOM LIVING ROOM
LIFT LIFT
LIVING ROOM LIVING ROOM
LIFT LIFT
LIVING ROOM LIVING ROOM
LIFT LIFT
LIVING ROOM LIVING ROOM
LIFT LIFT
LIVING ROOM LIVING ROOM
LIFT LIFT
LIVING ROOM LIVING ROOM
LIFT LIFT
LIVING ROOM LIVING ROOM
LIFT LIFT
LIVING ROOM LIVING ROOM
LIFT LIFT
LIVING ROOM LIVING ROOM
LIFT LIFT
UP
DOWN
UP
DOWN
LIVING ROOM
3500X5871
BEDROOM
3500X4000
KITCHEN
2550X2350
LIFT
FIRE
HOSE
REEL
ELEC.
SHAFT
DRY BALCONY
1000x 2600
DRY BALCONY
1000x 2600
LIVING ROOM
3500X5871
BEDROOM
3500X4000 DRY BALCONY
1000x 2600
DRY BALCONY
1000x 2600
LIVING ROOM
3500X5871
KITCHEN
2550X2350
BEDROOM
3500X4000
KITCHEN
2550X2350
BEDROOM
3500X4000
KITCHEN
2550X2350
LIVING ROOM
3500X5871
LIFT
2BHK FLOOR PLAN
1BHK FLOOR PLAN
STUDIO FLOOR PLAN
SECTION
SECTION
SECTION THROUGH PODIUM
TOILET BEDROOM LIVING ROOM LIVING ROOM BEDROOM TOILET
TOILET BEDROOM LIVING ROOM LIVING ROOM BEDROOM TOILET
TOILET BEDROOM LIVING ROOM LIVING ROOM BEDROOM TOILET
TOILET BEDROOM LIVING ROOM LIVING ROOM BEDROOM TOILET
TOILET BEDROOM LIVING ROOM LIVING ROOM BEDROOM TOILET
TOILET BEDROOM LIVING ROOM LIVING ROOM BEDROOM TOILET
TOILET BEDROOM LIVING ROOM LIVING ROOM BEDROOM TOILET
TOILET BEDROOM LIVING ROOM LIVING ROOM BEDROOM TOILET
TOILET BEDROOM LIVING ROOM LIVING ROOM BEDROOM TOILET
LIVING ROOM
3500X5871
BEDROOM
3500X4000
KITCHEN
2550X2350
LIVING ROOM
3500X5871
BEDROOM
3500X4000
KITCHEN
2550X2350
LIVING ROOM
3500X5871
BEDROOM
3500X4000
KITCHEN
2550X2350
BEDROOM
3250 X 4750
BEDROOM
3250 X 4750
TOILET
1500x2100
TOILET
1500x2100
TOILET
1500x2100
TOILET
1500x2100
TOILET
1500x2100
BALCONY
3580 x2000
BALCONY
3580 x2000
BALCONY
3580 x2000
UP
UP
LIFT
LIFT
ELEC.
SHAFT
REFUGE
CHUTE
FIRE
HOSE
REEL
BALCONY
3580 x2000
A
A
3000
3000
3000
3000
3000
3000
3000
3000
3000
CENTRAL COURTYARD WITH
CHESS GROUND, SAND
PIT FOR KIDS , BASKETBALL
COURT, TENNIS COURT
ELEVATIONS
ROWHOUSES AND
COMMERCIAL AREA
ADJOING TO PODIUM
AND ON THE PODIUM
RESPECTIVELY
SITE SECTION
SITE SECTI
03BUS TERMINUSWANOWRIE
The project aims to design a bus terminus inter-
mediate ti the bus stops between Wanowrie camp
area and hadapsar ,catering to the buses from Ha-
dapsar, Swargate,Fatima Nagar,Wanowrie. It also
consists commercial area proovision for hawkers.
Bus rapid transit (BRT) is a term applied to
a variety of public transport systems using
buses to provide faster ,more efficient ser-
vice than an ordinary bus line .
Bus rapid transit is the name given to a so-
phisticated bus systems that have their own
lanes on the city street.It ensures fast , re-
liable, secure and high capacity service .
Here, the easy access has been the foremost
provision, with footover bridge to reach the
bus terminus without crossing the road.A
projection inside the site helps passenger
vehicles and rickshaws to easily move and
not create traffic on the main street.
Project Type: Bus Terminus
Brief: To build a bus terminus in pune.
Site Area:5151.03 sqm
Project Requirements
•	 Bus entry
•	 Bus exit
•	 Bus haulting bays
•	 Waiting for passenger
•	 Drop points
•	 Commercial area
•	 Hawkwer’s area
•	 Parking for commercial area
01
SITE :5151.O53SQM
20MWIDEROAD
10m WIDE ROAD
SITE
SITE SECTION
N
R I G H T
The inner junction in the site giving way
for rickshaws to wait for their passen-
gers and also works as a drop point .
CIRCULATION OF BUSES
CIRCULATION OF RICKSHAWS
CIRCULATION OF BUSES ARRIVING
FROM NORTH SIDE
N
A B O V E
The inner junction in the site giving way for rickshaws to wait for their passen-
gers and also works as a drop point .The footover bridge for pedistrians so they
can get direct access without having to cross the road.
04ART AND ARCHITECTURE
COLLEGEAHEMDABAD
SARDARBRIDGE
12 M WIDE ROAD
SITE PLAN
10MWIDEROAD
18 M RIVERFRONT WIDE ROAD
PARKING
AUDITORIUM AND MULTIPURPOSE HALL
STAFF QUATERS
STAFF QUATERS
MESS AND
COMMUNITY
HALL
BOYS HOSTEL
GIRLS HOSTEL
ART AND ARCHITECTURE COLLEGE
PRINCIPAL'S
HOUSE
ENTRY/EXIT
The scope of education of Art and Architecture is growing exponently in
india
A well reputed trust known for the quality education and having chain of
Art and Architecture colleges throughout India has acquired a piece of
land admeasuring 26000 Sq. M. The said plot is a part of closed Cal-
icoTextile Mills and abutting on the Sabarmati Riverfront and has slope
upwards away from as given in the attached Site Plan.
Presently there are four colleges offering UG course in Architecture and
one among them offering PG course.
Management of trust proposes to develop full-fledged ‘Art and Architec-
ture College’ with Hostel and Staff Quartets with all learning and teach-
ing environment with appropriate spaces as given in the spatial require-
ments.
The proposed College fulfills all requirements of the statutory bodies like
CoA, AICTE, DTE, University, DCPR, etc.
The Art and Architecture learning is complimentary to each other and
not exclusive.
177.6M
162.2M
185.3M
149.4M
83°
80°
90°
+10
+09
+07
+08
+06
+05
+04
+03
+02
+1
+0.85
+0.7
+0.55
+0.4
+0.25
+0.4
CONSTRUCTION
YARD 178sq.m 8920
20000
250
16
15
14
13
12
11
10
9
8
7 17
18
19
20
654321
21
22
23
27
28
29
30
31
32
33
34
35
36
37
38
39
40
41
42
43
44 45
46
47
48
49
50
51
52
56
57
+2
+1.85
+1.7
+1.55
+1.4
+1.25
+1.1
+1.1
4804
5250
Machine C 606
Milk-Shake + Ice-
Taylor
Shake
Coffee machine
STORE ROOM
2000
3000
KITCHEN
53
54
55
24
25
26
ADMIN
8000 x 9000
PRINCIPAL'S CABIN
MEDICAL ASSISTANCE
4650 X 7500
STAFF AREA
COMPUTER CENTER
7125 X 11000
PRINCIPAL'S CABIN
SEMINAR HALL
10000 X 14000
LAB 1
6750 X 5464
MAINTENANCE ROOM
6923 X 5000
NATA CENTER
7000 X 11328
MATERIALMUSEUM
6750X11425MATERIALTESTINGLAB
6750X11425
SCULPTURE
STUDIO
10000 X 14000
PHOTOGRAPHY
STUDIO
10000X 6000
TUTORIAL ROOM
10000 X 7000
STORE
6000 X 3827
PRINTING
ROOM 7000 X 7000
MAINTENANCE
ROOM 7000 X 4685
ZEN AREA
+2
+1.85
+1.7
+1.55
+1.4
+1.25
+1.1
CLASSROOM
10000X6000
STUDIO
10000X14000
STUDIO
10000X14000
CLASSROOM
10000X6000
CLASSROOM
10000X6000
STUDIO
10000X14000
DOWN
STUDIO
10000X14000
RECORD ROOM
4000 x 7500
STAFF AREA
8000 x 9000
CLASSROOM
10000X6000
CLASSROOM
10000X6000
CLASSROOM
10000X6000
SCULPTURE
STUDIO
10000X14000
SCULPTURE
STUDIO
10000X14000
ADMIN
8000 x 9000
RECORD ROOM
4000 x 7500
UP
UP
PRINCIPAL'S CABIN
5000 X 7500
UP
UP
UP
UP
ZEN AREA
WAITINGAREA
UP
UP
+1.1
+2.2
+2.2
TUTORIAL ROOM
10000 X 7000
PHOTOGRAPHY
STUDIO
10000X 6000
UP
UP
+2.2
GIRLS TOILETBOYS TOILET
TEACHER'S LOUNGE
ART COURT
UP
UP
UP
COMPUTER CENTRE
SEMINAR HALL
NASAROOM
BOYSCOMMONROOM
10750X6750COMPUTERCENTRE
GIRLSCOMMONROOM
11695X6759
RESOURCECENTRE
EXAMINATIONROOM
10000X6900
LAB15850X7050
LAB210000X5000
SEMINARHALL
PRINTING
ROOM6785X4482
WORKSHOP
PAINTING
STUDIO
PAINTING
STUDIO
GAMESROOM
10000X14000
PRINTING
ROOM 9900 X 7500
SCULPTURE
STUDIO
10000 X 14000
CLASSROOM
10000X6000
STUDIO
10000X14000
STUDIO
10000X14000
CLASSROOM
10000X6000
CLASSROOM
10000X6000
STUDIO
10000X14000
STUDIO
10000X14000
CLASSROOM
10000X6000
CLASSROOM
10000X6000
CLASSROOM
10000X6000
PHOTOGRAPHY
STUDIO 1400 X 7500
ZEN AREA
ART COURT
TUTORIAL ROOM
10000 X 7000
TUTORIAL ROOM
10000 X 7000
PHOTOGRAPHY
STUDIO
10000X 6000
PHOTOGRAPHY
STUDIO
10000X 6000
STORE
6000 X 3827
LIBRARY
GROUND FLOOR PLAN
FIRST FLOOR PLAN SECOND FLOOR PLAN
SITE
ABOVE
CANTEEN ON THE GROUND FLOOR CON-
NECTING TO THE COLLEGE ABOVE
BELOW
ENTRANCE TO THE ART SECTION ALSO LEAD-
ING TO THE AMPHITHEATRE BEHIND
COURTYARD WITH
STEPS LEADING TO
CANTEEN .
KITCHEN
TOILET
DINNING AREA
LIVING ROOM
05RESORT MODULE
A RESORT MODULE TO BE BUILD ON
TOP OF A HILL NEAR MAHABALESH-
WAR .
THERE IS A ADJACENT VALLEY TO
THE RESORT WHICH CAN BE USED
AS A POTENTIAL POINT OF VIEW .
THE MODULE SHOULD ENVELOPE
WITH THE SURROUNDING NATURE
AND GIVE THE RESIDING PERSON A
NATURE FRIENDLY ENVIORNMENT
. THE AREA FOR EACH VILLA IS 350
SQ M. THE AREA DISPLAYS BEAUTI-
FUL SKIES AT NIGHT FILLED WITH
STARS.
A SEATING AREA WITH A POOL
SKYLIGHT FOR LIGHT
PENETRATION AND FOR VIEWING
STARS AT NIGHT WHILE RESTING
ON THE BED.
PLAN
MEDITATION
CENTRE
N
LANDSCAPE06THE LANDSCAPE FOR THE MEDITATION
CENTRE WILL CREATE A GARDEN OR OTH-
ER PIECE OF LAND MORE ATTRACTIVE BY
ALTERING THE STRUCTURAL DESIGN ,
ADDING ORNAMENTAL FEATURES , AND
PLANTING TREES AND SHRUBS.
OPEN SPACE LANDSCAPING
FOR COLLEGE ENTRANCE
RENDERING USING A PEN
07SAMBHAJIMUSEUMWORKING DRAWING
FIRST FLOOR PLAN
FIRST FLOOR LINTEL LEVEL
+6450MM
FIRST FLOOR SILL LEVEL
+5250MM
TERRACE FLOOR LEVEL
+7800MM
FIRST FLOOR LEVEL
+4350MM
GROUND FLOOR SILL LEVEL
+1950MM
PLINTH LEVEL
+1050MM
GROUND FLOOR LINTEL LEVEL
+3150MM
TERRACE FLOOR PARAPET LEVEL
+7800MM
TERRACE FLOOR LINTEL LEVEL
+7800MM
MUMMTI LEVEL
+7800MM
WATER TANK LEVEL
+7800MM
GROUND LEVEL
+1950MM
YEAR2SEM2
PROJECT TYPE: SAMBHAJI MUSEUM
SITE: BIBWEWADI
ENTRANCE
TICKET AND
BAGAGE COUNTER.
MANAGERS CABIN.
TOILET
TOILET
PASSAGE
300300
1270
3000
2000
2270 2270
1000
1200
1000
3197
3000
3800
160016003522000122
395 2000 1000 2000 600
80
2540
12609002749900
3970
8091800809
3418
2332500464
300
1200
4204202400
3330
UP
230
75
75
900
200
900500 500
9002633
8540
10289
10214
V1
2100
2500
W1
900
2100
V2
2100
2500
V3
1200
2100
V3
1200
2100
V3
1200
2100
V3
1200
2100
V2
2100
2500
V2
2100
2500
V2
2100
2500
V1
2100
2500
D1
D2
D2
D3
1 2 3 4 5 6 7
1234567891011
11
0 67 5 4 3 2 1 0
Riser=300mm.
trade=150mm
Riser=300mm.
trade=150mm
Riser=300mm.
trade=150mm
0
1812 13 14 15 16 17 19 20 21
LEVEL 1050
LEVEL 1050
LEVEL 1030
LEVEL 1010
LEVEL 1010
LEVEL 1010 LEVEL 1010LEVEL 1030
SUNK 200
SUNK 200
LEVEL 1050
LEVEL 1050
LEVEL 2700
LEVEL 00.00
W2
2550
4300
2000
54047275075045
1497
334600334
513
2557
1260
1497 30
2513
900270
82
9001342
1270
150
1020
30
900 400 200
600
600
2716
30
1497
1260600330 330
2550
2000
83
V2
2100
2500
D2 D2
D3
D3
D3
UP
UP
A A'
C' B'
D'
D
C
W3
900
2100
W3
900
2100
DUCT
2400 x 800
DUCT
2550x1000
2244
PASSAGE
1270
2000
2270 2270
1200
1000
3197160016003522000122
395 2000 1000 2000 600
80
2540
1260900
3418
2332500464
300
1200
4204202498
3330
UP
230
8540
10289
10214
V1
2100
2500
V4
2100
2500
2100
2500
V3
1200
2100
V3
1200
2100
V2
2100
2500
V3
1200
2100
V3
1200
2100
V2
2100
2500
V2
2100
2500
V2
2100
2500
V1
2100
2500
D2
33
Riser=300mm.
trade=150mm
4034 35 36 37 41 42 43
LEVEL 4350mm
LEVEL 4350mm
LEVEL 6000mm
LEVEL 00.00
W3
2550
5850
840 370
2093000209
3000
230
4120
2772
220
2538
240
3338
2535
3338
LEVEL 4330mm
SUNK 200
TOILET
TOILET
LEVEL
4310mm
LEVEL
4310mm
LEVEL
4310mm
LEVEL
4310mm
LEVEL 4330mm
SUNK 200
770 230
2000
47275054075045
1497
334600334
513
2557
1260
1497 30
2513
900270
9001342
1270
150
1020
30
900 400 200
600
600
2716
1497
1260600330 330
2550
2000
83
V5
2100
2500
V5
2100
2500
W4
1200
2100
W4
1200
2100
W4
1200
2100
W4
1200
2100
W4
1200
2100
V4
2100
2500
D3 D3
D3
D3
D2
33 2632 31 30 29 25 24 23 22
370370 600 600600
A A'
B
C' B'
D'
D
C
D2
DUCT
2400 x 800
DUCT
2550x1000
2100500550
90012001100
3200
900
350
1550
9001750550100
900
2350950
2400
900
100
100
150
3150
0
1
2
3
4
5
6
7
8
9
10
11
12
13
14
15
16
17
18
19
20
21
22
23
24
25
26
27
28
29
30
31
32
33
34
35
36
37
38
39
40
41
42
43
44
45
W2
W1
V3
W1W1W1
V3
W3 W3
W2
V1 V1
Riser=300mm.
trade=150mm
FIRST FLOOR LINTEL LEVEL
+6450MM
FIRST FLOOR SILL LEVEL
+5250MM
TERRACE FLOOR LEVEL
+7800MM
FIRST FLOOR LEVEL
+4350MM
GROUND FLOOR SILL LEVEL
+1950MM
PLINTH LEVEL
+1050MM
GROUND FLOOR LINTEL LEVEL
+3150MM
TERRACE FLOOR PARAPET LEVEL
+7800MM
TERRACE FLOOR LINTEL LEVEL
+7800MM
MUMMTI LEVEL
+7800MM
WATER TANK LEVEL
+7800MM
GROUND LEVEL
+1950MM
SUNK 150
2200
HARD STRATA
MURUM FILLING
PCC BED
3300
3250
2100
150
550
900
150
2030
110
90
1240900900
3200
3040
350
900
90012401050
90
110
2030
1050
200210050
100
1250
350
2100500550
3190
900
150
V1
V3
D2
6
7
5
4
3
2
1
0
D2
V2
V5
V1
w1
V3
D1
W1
W1
D1
FIRST FLOOR LINTEL LEVEL
+6450MM
FIRST FLOOR SILL LEVEL
+5250MM
TERRACE FLOOR LEVEL
+7800MM
FIRST FLOOR LEVEL
+4350MM
GROUND FLOOR SILL LEVEL
+1950MM
PLINTH LEVEL
+1050MM
GROUND FLOOR LINTEL LEVEL
+3150MM
TERRACE FLOOR PARAPET LEVEL
+7800MM
TERRACE FLOOR LINTEL LEVEL
+7800MM
MUMMTI LEVEL
+7800MM
WATER TANK LEVEL
+7800MM
GROUND LEVEL
+1950MM
SUNK 200
SUNK 200
SUNK 150
DUCT
HARD STRATA
MURUM
FILLING
PCC BED
3300
3400
ELEVATION
FIRST FLOOR LINTEL LEVEL
+6450MM
FIRST FLOOR SILL LEVEL
+5250MM
TERRACE FLOOR LEVEL
+7800MM
FIRST FLOOR LEVEL
+4350MM
GROUND FLOOR SILL LEVEL
+1950MM
PLINTH LEVEL
+1050MM
GROUND FLOOR LINTEL LEVEL
+3150MM
TERRACE FLOOR PARAPET LEVEL
+7800MM
TERRACE FLOOR LINTEL LEVEL
+7800MM
MUMMTI LEVEL
+7800MM
WATER TANK LEVEL
+7800MM
GROUND LEVEL
+1950MM
ELEVATION
SECTION AA’
GROUND FLOOR PLAN
1550
9001750
0
1
2
3
4
5
6
7
8
9
10
11
12
13
14
15
16
17
18
19
20
21
22
23
24
25
26
27
28
29
30
31
W2
Riser=300mm.
trade=150mm
PASSAGE
16001600352
300
1200
4204202498
3330
UP
230
1234567891011
11
Riser=300mm.
trade=150mm
0
1812 13 14 15 16 17 19 20 21
LEVEL 2700
W2
2550
4300
A A'
23
6
5
13
25
NUT AND BOLT
STAIRCASE SLAB
GUSSET PLATE
STAINLESS STEEL
PIPE OF 10 MM
DIAMETER
STAINLESS STEEL
PIPE OF 50 MM
DIAMETER
STAILESS STEEL
PLATE 100mm x 25mm
900
TOILET
V3
1200
2100
1200
V3
2100
D3
LEVEL1030
LEVEL1010LEVEL1010
SUNK200
150
4001020
900
30
600
600
900200
1497
2716
330
600
30
330
1260
D2
2000
2550
D3
Fiber Door
with
aluminium
Framing
Fiber Sheet
Partition
Roca Make
Urinal.
Roca Make
W.C.
Roca Make
Health Faucet.
Solid Waste pipe
Waste Water Pipe
Toilet Paper
Handle
Fiber Partition
Nahani
Trap.
Roca Make
Wash Basin.
Water Inlet Pipe.
820
450
400
450
200
1350
Roca Make
Urinal.
Roca Make
Wash Besin.
450
460
900
1240
450
460
900
2140
Ceramic tile
(450 x 300)
Roca Make
Flush Cock.
Roca Make
W.C.
Roca Make
Health Faucet.
Toilet Paper
Handel.
TOILET DETAILPLAN
SECTION AA’
SECTION SECTION BB’
STAIRCASEPLAN
STAIRCASESECTION
WASHROOMDETAILS
PVC NOSINGDETAIL
PVC
Nosining
12 mm thick Mortar
10 mm thick rough
Ceramic tile
300
150
STEPDETAIL
1830
2100
820
1200
750
450
750
Roca Make
W.C.
Roca Make
Health Faucet.
Roca Make
Wash Basin.
Fiber Door
With
Aluminium
Framing
002BMSZ
THE ANDC 2016
RIKSHAW STAND
TWOWHEELERPARKING
BRT BUS STAND
09SKETCHES
09MODELS
09PHOTOGRAPHY

Sakshi patil

  • 1.
  • 2.
    SAKSHI PATIL CONTACT 12/2/1997 9405375629 sakshipatil165@gmail.com B 901,Majestic Towers,near Lake Town, Bibwewadi https://youtu.be/6zGd8JY3zeY https://www.daisie.com/sakshi PROFILE A driven, diligent and ambitious architecture student, currently in 4th year, seeking a position as an Architectural Intern in a firm that provides an engaging and challenging work enviornment. Having lived in different cities throughout my childhood has greatly added to my adaptability to new places and people.The sense of team spirit and leadership qualities that I’ve developed after heading various competitions in college have helped me work better in varied enviornments and diverse terms. EDUCATION • Bachelor of Architecture Anantrao Pawar College of Architecture,Pune. • Senior econdary School Muktangan Junior College,Pune. • Secondary School Kilbil St.Joseph’s High School SOFTWARE SKILLS AutoDesk AutoCAD AutoCad 3D Adobe Photoshop Adobe InDesign Lumion SketchUp Revit COMPETITIONS AND CONFERENCES • Annual NASA Design competition 2016I Top 50 • Annual NASA Design competition 2017I Top 10 • Delegate at Model United Nations • Research and thesis competition I 3rd rank ARCHITECTURAL COMPETENCE Planning Video Editing Layouts Sketching Presentation 3d Modelling Model Making LANGUAGES • English • Hindi • Marathi • French • Telugu PERSONAL QUALITIES • Active listening • Effective verbal communication • Presentation • Problem • Team work Vice President , APCOA.
  • 3.
    1 BUS TERMINUS ART ANDARCHITECTURE COLLEGE 4 RESORT MODULE 5 LANDSCAPE 6 WORKING DRAWING 7 8 NASA 9 SKETCHES AND MODELS MUSEUM 2 HOUSING 3
  • 4.
    01 WAR MEMORIAL MUSEUM 01 Project Type:Art gallery Brief: To build a war memorial in pune. Site Area:14000 sq.m Built Up:7850 sqm. Ground Coverage:5600 sq.m. Project Requirements • Exhibit area for war • 200 seater auditorium • Restaurant • Souvenir shop • Administration • Amphitheatre The National War Museum serves the purpose of displaying items of military interest and historical value including development of arms, equipment and their role in the Indian history. The museum is intended to be belonged to everyone and design incorporates these essential and prac- tical aspects delivering atruly functional pragmatic museum.The museum is inspired from the golden ratio and the gatropod shell of a snail. The spiral growth of the sea shell follows the log- arithmic spiral, which is completely based on the golden rule. The radial layout, the singular design approach and the incorporated architecture ele- ments makes it an Iconic building. SITE PLAN PUNE N ADMIN THANADMIN AREA AND ARMY EXHIBIT NAVY EXHIBIT AIR FORCE EXHIBIT AND AUDITORIUM
  • 5.
    CIRCULATION REFERS TOWAY PEOPLE MOVE THROUGH AND INTERACT WITH THE BUILDING.IT’S A PATH THAT CAN BE CONCEIVED OF AS THE PERPETUAL THREAD THAT LINKS SPACES OF A BUILDING OR ANY SERIES OF INTERIOR OR EXTERIOR SPACES . THE FIRST PHASE OF THE CIRCULATION IS THE APPROACH TO ENTRANCE ,WHERE ONE PREPARES TO SEE EXPE- RIENCE . HERE THE NATURE OF THE APPROACH IS CONTINUED ONTO THE BUILDING’S INTERI- OR SEQUENCE OF SPACES ,OBSCURING THE DISTINCTION BETWEEN INSIDE AND OUTSIDE. SECTION AUDITORIUM ENTRANCE LOBBY RESTAURANT GROUND FLOOR PLAN AIR FORCE EXHIBIT CONSERVATION AREA NAVY EXHIBIT ARMY EXHIBIT ADMIN AUDITORIUM AMPHITHEATRE FIRST FLOOR PLAN WATER BODY
  • 6.
    02HOUSINGAUNDH Central government haspromoted redevlopement of hospitals & healthcare facilities at state and district level . As a part of this state government is planning to redevlop Aundh Chest Hopital & district hospital campus .It will come up as state of the art grade I, 500 bedded multi speciality hospital. After the redevlopement, the hospital is expecting renowned doctors from all over India . Keeping this in mind the state government is plannig to develop a residential complex for doctors and all allied staff just next to the hospital complex. Total staff requirement for the hospital is 435 . Out of which state government is plannig to provide fraternity from Medical, Nursing and paramedical staff. 91° 75° 104° 90° 112094.4 103952.1 219512.0 190303.2 SITE LOCATION:Nurs- es Quarter, Aundh Chest Hospital, F/9, Defence Area, Pimple Gurav, Pim- pri-Chinchwad, Maharash- tra. SITE DIMENSIONS Plot Area -18845.5Sqm. Studio Apartments (For Nurses & wardboys)-70- 30sqm 1BHK-80-50sqm 2BHK-50-80sqm
  • 7.
    DRY BALCONY 1000x 2600 LIVINGROOM 3500X5871 KITCHEN 2550X2350 BEDROOM 3500X4000 TYPOLOGY A: 1BHK 1BEDROOM 2 BALCONIES 1 DRY BALCONY LIVINGROOM 3500X5871 BEDROOM 3500X4000 KITCHEN 2550X2350 TOILET 1500x2100 BALCONY 3580x2000 TOILET 1500x2100 TYPOLOGY B: 2 BHK 2 BEDROOMS 2 BALCONIES 1 DRY BALCONY STUDIO APARTMENT 5040x 6000 TYPOLOGY C: STUDIO 1 BALCONY By keeping the block low and lifting the north-east portion of the build- ing, the courtyard opens views to- wards courtyard and brings the low western sun deep into the block. While the courtyard is a private space and a sanctuary for residents, it can still be seen from the outside, creating a visual connection to the rowhouses.
  • 8.
    FIRE HOSE REEL LIFT STRECHER LIFT STUDIO APARTMENT 5040x 6000 STUDIOAPARTMENT 5040x 6000 STUDIO APARTMENT 5040x 6000 STUDIO APARTMENT 5040x 6000 UP UP 2100.0000 2100.0000 2100.0000 2100.0000 2100.0000 2100.0000 2100.0000 2100.0000 2100.0000 2100.0000 2100.0000 SECTION A' A 3000.0000 STUDIO APARTMENT STUDIO APARTMENT STUDIO APARTMENT STUDIO APARTMENT STUDIO APARTMENT STUDIO APARTMENT STUDIO APARTMENT STUDIO APARTMENT STUDIO APARTMENT STUDIO APARTMENT STUDIO APARTMENT STUDIO APARTMENT STUDIO APARTMENT STUDIO APARTMENT STUDIO APARTMENT STUDIO APARTMENT STUDIO APARTMENT STUDIO APARTMENT STUDIO APARTMENT LIVING ROOM LIVING ROOM LIFT LIFT LIVING ROOM LIVING ROOM LIFT LIFT LIVING ROOM LIVING ROOM LIFT LIFT LIVING ROOM LIVING ROOM LIFT LIFT LIVING ROOM LIVING ROOM LIFT LIFT LIVING ROOM LIVING ROOM LIFT LIFT LIVING ROOM LIVING ROOM LIFT LIFT LIVING ROOM LIVING ROOM LIFT LIFT LIVING ROOM LIVING ROOM LIFT LIFT LIVING ROOM LIVING ROOM LIFT LIFT LIVING ROOM LIVING ROOM LIFT LIFT UP DOWN UP DOWN LIVING ROOM 3500X5871 BEDROOM 3500X4000 KITCHEN 2550X2350 LIFT FIRE HOSE REEL ELEC. SHAFT DRY BALCONY 1000x 2600 DRY BALCONY 1000x 2600 LIVING ROOM 3500X5871 BEDROOM 3500X4000 DRY BALCONY 1000x 2600 DRY BALCONY 1000x 2600 LIVING ROOM 3500X5871 KITCHEN 2550X2350 BEDROOM 3500X4000 KITCHEN 2550X2350 BEDROOM 3500X4000 KITCHEN 2550X2350 LIVING ROOM 3500X5871 LIFT 2BHK FLOOR PLAN 1BHK FLOOR PLAN STUDIO FLOOR PLAN SECTION SECTION SECTION THROUGH PODIUM TOILET BEDROOM LIVING ROOM LIVING ROOM BEDROOM TOILET TOILET BEDROOM LIVING ROOM LIVING ROOM BEDROOM TOILET TOILET BEDROOM LIVING ROOM LIVING ROOM BEDROOM TOILET TOILET BEDROOM LIVING ROOM LIVING ROOM BEDROOM TOILET TOILET BEDROOM LIVING ROOM LIVING ROOM BEDROOM TOILET TOILET BEDROOM LIVING ROOM LIVING ROOM BEDROOM TOILET TOILET BEDROOM LIVING ROOM LIVING ROOM BEDROOM TOILET TOILET BEDROOM LIVING ROOM LIVING ROOM BEDROOM TOILET TOILET BEDROOM LIVING ROOM LIVING ROOM BEDROOM TOILET LIVING ROOM 3500X5871 BEDROOM 3500X4000 KITCHEN 2550X2350 LIVING ROOM 3500X5871 BEDROOM 3500X4000 KITCHEN 2550X2350 LIVING ROOM 3500X5871 BEDROOM 3500X4000 KITCHEN 2550X2350 BEDROOM 3250 X 4750 BEDROOM 3250 X 4750 TOILET 1500x2100 TOILET 1500x2100 TOILET 1500x2100 TOILET 1500x2100 TOILET 1500x2100 BALCONY 3580 x2000 BALCONY 3580 x2000 BALCONY 3580 x2000 UP UP LIFT LIFT ELEC. SHAFT REFUGE CHUTE FIRE HOSE REEL BALCONY 3580 x2000 A A 3000 3000 3000 3000 3000 3000 3000 3000 3000
  • 9.
    CENTRAL COURTYARD WITH CHESSGROUND, SAND PIT FOR KIDS , BASKETBALL COURT, TENNIS COURT ELEVATIONS ROWHOUSES AND COMMERCIAL AREA ADJOING TO PODIUM AND ON THE PODIUM RESPECTIVELY SITE SECTION SITE SECTI
  • 10.
    03BUS TERMINUSWANOWRIE The projectaims to design a bus terminus inter- mediate ti the bus stops between Wanowrie camp area and hadapsar ,catering to the buses from Ha- dapsar, Swargate,Fatima Nagar,Wanowrie. It also consists commercial area proovision for hawkers. Bus rapid transit (BRT) is a term applied to a variety of public transport systems using buses to provide faster ,more efficient ser- vice than an ordinary bus line . Bus rapid transit is the name given to a so- phisticated bus systems that have their own lanes on the city street.It ensures fast , re- liable, secure and high capacity service . Here, the easy access has been the foremost provision, with footover bridge to reach the bus terminus without crossing the road.A projection inside the site helps passenger vehicles and rickshaws to easily move and not create traffic on the main street. Project Type: Bus Terminus Brief: To build a bus terminus in pune. Site Area:5151.03 sqm Project Requirements • Bus entry • Bus exit • Bus haulting bays • Waiting for passenger • Drop points • Commercial area • Hawkwer’s area • Parking for commercial area 01 SITE :5151.O53SQM 20MWIDEROAD 10m WIDE ROAD SITE SITE SECTION N
  • 11.
    R I GH T The inner junction in the site giving way for rickshaws to wait for their passen- gers and also works as a drop point . CIRCULATION OF BUSES CIRCULATION OF RICKSHAWS CIRCULATION OF BUSES ARRIVING FROM NORTH SIDE N A B O V E The inner junction in the site giving way for rickshaws to wait for their passen- gers and also works as a drop point .The footover bridge for pedistrians so they can get direct access without having to cross the road.
  • 12.
    04ART AND ARCHITECTURE COLLEGEAHEMDABAD SARDARBRIDGE 12M WIDE ROAD SITE PLAN 10MWIDEROAD 18 M RIVERFRONT WIDE ROAD PARKING AUDITORIUM AND MULTIPURPOSE HALL STAFF QUATERS STAFF QUATERS MESS AND COMMUNITY HALL BOYS HOSTEL GIRLS HOSTEL ART AND ARCHITECTURE COLLEGE PRINCIPAL'S HOUSE ENTRY/EXIT The scope of education of Art and Architecture is growing exponently in india A well reputed trust known for the quality education and having chain of Art and Architecture colleges throughout India has acquired a piece of land admeasuring 26000 Sq. M. The said plot is a part of closed Cal- icoTextile Mills and abutting on the Sabarmati Riverfront and has slope upwards away from as given in the attached Site Plan. Presently there are four colleges offering UG course in Architecture and one among them offering PG course. Management of trust proposes to develop full-fledged ‘Art and Architec- ture College’ with Hostel and Staff Quartets with all learning and teach- ing environment with appropriate spaces as given in the spatial require- ments. The proposed College fulfills all requirements of the statutory bodies like CoA, AICTE, DTE, University, DCPR, etc. The Art and Architecture learning is complimentary to each other and not exclusive. 177.6M 162.2M 185.3M 149.4M 83° 80° 90° +10 +09 +07 +08 +06 +05 +04 +03 +02 +1 +0.85 +0.7 +0.55 +0.4 +0.25 +0.4 CONSTRUCTION YARD 178sq.m 8920 20000 250 16 15 14 13 12 11 10 9 8 7 17 18 19 20 654321 21 22 23 27 28 29 30 31 32 33 34 35 36 37 38 39 40 41 42 43 44 45 46 47 48 49 50 51 52 56 57 +2 +1.85 +1.7 +1.55 +1.4 +1.25 +1.1 +1.1 4804 5250 Machine C 606 Milk-Shake + Ice- Taylor Shake Coffee machine STORE ROOM 2000 3000 KITCHEN 53 54 55 24 25 26 ADMIN 8000 x 9000 PRINCIPAL'S CABIN MEDICAL ASSISTANCE 4650 X 7500 STAFF AREA COMPUTER CENTER 7125 X 11000 PRINCIPAL'S CABIN SEMINAR HALL 10000 X 14000 LAB 1 6750 X 5464 MAINTENANCE ROOM 6923 X 5000 NATA CENTER 7000 X 11328 MATERIALMUSEUM 6750X11425MATERIALTESTINGLAB 6750X11425 SCULPTURE STUDIO 10000 X 14000 PHOTOGRAPHY STUDIO 10000X 6000 TUTORIAL ROOM 10000 X 7000 STORE 6000 X 3827 PRINTING ROOM 7000 X 7000 MAINTENANCE ROOM 7000 X 4685 ZEN AREA +2 +1.85 +1.7 +1.55 +1.4 +1.25 +1.1 CLASSROOM 10000X6000 STUDIO 10000X14000 STUDIO 10000X14000 CLASSROOM 10000X6000 CLASSROOM 10000X6000 STUDIO 10000X14000 DOWN STUDIO 10000X14000 RECORD ROOM 4000 x 7500 STAFF AREA 8000 x 9000 CLASSROOM 10000X6000 CLASSROOM 10000X6000 CLASSROOM 10000X6000 SCULPTURE STUDIO 10000X14000 SCULPTURE STUDIO 10000X14000 ADMIN 8000 x 9000 RECORD ROOM 4000 x 7500 UP UP PRINCIPAL'S CABIN 5000 X 7500 UP UP UP UP ZEN AREA WAITINGAREA UP UP +1.1 +2.2 +2.2 TUTORIAL ROOM 10000 X 7000 PHOTOGRAPHY STUDIO 10000X 6000 UP UP +2.2 GIRLS TOILETBOYS TOILET TEACHER'S LOUNGE ART COURT UP UP UP COMPUTER CENTRE SEMINAR HALL NASAROOM BOYSCOMMONROOM 10750X6750COMPUTERCENTRE GIRLSCOMMONROOM 11695X6759 RESOURCECENTRE EXAMINATIONROOM 10000X6900 LAB15850X7050 LAB210000X5000 SEMINARHALL PRINTING ROOM6785X4482 WORKSHOP PAINTING STUDIO PAINTING STUDIO GAMESROOM 10000X14000 PRINTING ROOM 9900 X 7500 SCULPTURE STUDIO 10000 X 14000 CLASSROOM 10000X6000 STUDIO 10000X14000 STUDIO 10000X14000 CLASSROOM 10000X6000 CLASSROOM 10000X6000 STUDIO 10000X14000 STUDIO 10000X14000 CLASSROOM 10000X6000 CLASSROOM 10000X6000 CLASSROOM 10000X6000 PHOTOGRAPHY STUDIO 1400 X 7500 ZEN AREA ART COURT TUTORIAL ROOM 10000 X 7000 TUTORIAL ROOM 10000 X 7000 PHOTOGRAPHY STUDIO 10000X 6000 PHOTOGRAPHY STUDIO 10000X 6000 STORE 6000 X 3827 LIBRARY GROUND FLOOR PLAN FIRST FLOOR PLAN SECOND FLOOR PLAN SITE
  • 13.
    ABOVE CANTEEN ON THEGROUND FLOOR CON- NECTING TO THE COLLEGE ABOVE BELOW ENTRANCE TO THE ART SECTION ALSO LEAD- ING TO THE AMPHITHEATRE BEHIND COURTYARD WITH STEPS LEADING TO CANTEEN .
  • 14.
    KITCHEN TOILET DINNING AREA LIVING ROOM 05RESORTMODULE A RESORT MODULE TO BE BUILD ON TOP OF A HILL NEAR MAHABALESH- WAR . THERE IS A ADJACENT VALLEY TO THE RESORT WHICH CAN BE USED AS A POTENTIAL POINT OF VIEW . THE MODULE SHOULD ENVELOPE WITH THE SURROUNDING NATURE AND GIVE THE RESIDING PERSON A NATURE FRIENDLY ENVIORNMENT . THE AREA FOR EACH VILLA IS 350 SQ M. THE AREA DISPLAYS BEAUTI- FUL SKIES AT NIGHT FILLED WITH STARS. A SEATING AREA WITH A POOL SKYLIGHT FOR LIGHT PENETRATION AND FOR VIEWING STARS AT NIGHT WHILE RESTING ON THE BED. PLAN
  • 15.
    MEDITATION CENTRE N LANDSCAPE06THE LANDSCAPE FORTHE MEDITATION CENTRE WILL CREATE A GARDEN OR OTH- ER PIECE OF LAND MORE ATTRACTIVE BY ALTERING THE STRUCTURAL DESIGN , ADDING ORNAMENTAL FEATURES , AND PLANTING TREES AND SHRUBS. OPEN SPACE LANDSCAPING FOR COLLEGE ENTRANCE RENDERING USING A PEN
  • 16.
    07SAMBHAJIMUSEUMWORKING DRAWING FIRST FLOORPLAN FIRST FLOOR LINTEL LEVEL +6450MM FIRST FLOOR SILL LEVEL +5250MM TERRACE FLOOR LEVEL +7800MM FIRST FLOOR LEVEL +4350MM GROUND FLOOR SILL LEVEL +1950MM PLINTH LEVEL +1050MM GROUND FLOOR LINTEL LEVEL +3150MM TERRACE FLOOR PARAPET LEVEL +7800MM TERRACE FLOOR LINTEL LEVEL +7800MM MUMMTI LEVEL +7800MM WATER TANK LEVEL +7800MM GROUND LEVEL +1950MM YEAR2SEM2 PROJECT TYPE: SAMBHAJI MUSEUM SITE: BIBWEWADI ENTRANCE TICKET AND BAGAGE COUNTER. MANAGERS CABIN. TOILET TOILET PASSAGE 300300 1270 3000 2000 2270 2270 1000 1200 1000 3197 3000 3800 160016003522000122 395 2000 1000 2000 600 80 2540 12609002749900 3970 8091800809 3418 2332500464 300 1200 4204202400 3330 UP 230 75 75 900 200 900500 500 9002633 8540 10289 10214 V1 2100 2500 W1 900 2100 V2 2100 2500 V3 1200 2100 V3 1200 2100 V3 1200 2100 V3 1200 2100 V2 2100 2500 V2 2100 2500 V2 2100 2500 V1 2100 2500 D1 D2 D2 D3 1 2 3 4 5 6 7 1234567891011 11 0 67 5 4 3 2 1 0 Riser=300mm. trade=150mm Riser=300mm. trade=150mm Riser=300mm. trade=150mm 0 1812 13 14 15 16 17 19 20 21 LEVEL 1050 LEVEL 1050 LEVEL 1030 LEVEL 1010 LEVEL 1010 LEVEL 1010 LEVEL 1010LEVEL 1030 SUNK 200 SUNK 200 LEVEL 1050 LEVEL 1050 LEVEL 2700 LEVEL 00.00 W2 2550 4300 2000 54047275075045 1497 334600334 513 2557 1260 1497 30 2513 900270 82 9001342 1270 150 1020 30 900 400 200 600 600 2716 30 1497 1260600330 330 2550 2000 83 V2 2100 2500 D2 D2 D3 D3 D3 UP UP A A' C' B' D' D C W3 900 2100 W3 900 2100 DUCT 2400 x 800 DUCT 2550x1000 2244 PASSAGE 1270 2000 2270 2270 1200 1000 3197160016003522000122 395 2000 1000 2000 600 80 2540 1260900 3418 2332500464 300 1200 4204202498 3330 UP 230 8540 10289 10214 V1 2100 2500 V4 2100 2500 2100 2500 V3 1200 2100 V3 1200 2100 V2 2100 2500 V3 1200 2100 V3 1200 2100 V2 2100 2500 V2 2100 2500 V2 2100 2500 V1 2100 2500 D2 33 Riser=300mm. trade=150mm 4034 35 36 37 41 42 43 LEVEL 4350mm LEVEL 4350mm LEVEL 6000mm LEVEL 00.00 W3 2550 5850 840 370 2093000209 3000 230 4120 2772 220 2538 240 3338 2535 3338 LEVEL 4330mm SUNK 200 TOILET TOILET LEVEL 4310mm LEVEL 4310mm LEVEL 4310mm LEVEL 4310mm LEVEL 4330mm SUNK 200 770 230 2000 47275054075045 1497 334600334 513 2557 1260 1497 30 2513 900270 9001342 1270 150 1020 30 900 400 200 600 600 2716 1497 1260600330 330 2550 2000 83 V5 2100 2500 V5 2100 2500 W4 1200 2100 W4 1200 2100 W4 1200 2100 W4 1200 2100 W4 1200 2100 V4 2100 2500 D3 D3 D3 D3 D2 33 2632 31 30 29 25 24 23 22 370370 600 600600 A A' B C' B' D' D C D2 DUCT 2400 x 800 DUCT 2550x1000 2100500550 90012001100 3200 900 350 1550 9001750550100 900 2350950 2400 900 100 100 150 3150 0 1 2 3 4 5 6 7 8 9 10 11 12 13 14 15 16 17 18 19 20 21 22 23 24 25 26 27 28 29 30 31 32 33 34 35 36 37 38 39 40 41 42 43 44 45 W2 W1 V3 W1W1W1 V3 W3 W3 W2 V1 V1 Riser=300mm. trade=150mm FIRST FLOOR LINTEL LEVEL +6450MM FIRST FLOOR SILL LEVEL +5250MM TERRACE FLOOR LEVEL +7800MM FIRST FLOOR LEVEL +4350MM GROUND FLOOR SILL LEVEL +1950MM PLINTH LEVEL +1050MM GROUND FLOOR LINTEL LEVEL +3150MM TERRACE FLOOR PARAPET LEVEL +7800MM TERRACE FLOOR LINTEL LEVEL +7800MM MUMMTI LEVEL +7800MM WATER TANK LEVEL +7800MM GROUND LEVEL +1950MM SUNK 150 2200 HARD STRATA MURUM FILLING PCC BED 3300 3250 2100 150 550 900 150 2030 110 90 1240900900 3200 3040 350 900 90012401050 90 110 2030 1050 200210050 100 1250 350 2100500550 3190 900 150 V1 V3 D2 6 7 5 4 3 2 1 0 D2 V2 V5 V1 w1 V3 D1 W1 W1 D1 FIRST FLOOR LINTEL LEVEL +6450MM FIRST FLOOR SILL LEVEL +5250MM TERRACE FLOOR LEVEL +7800MM FIRST FLOOR LEVEL +4350MM GROUND FLOOR SILL LEVEL +1950MM PLINTH LEVEL +1050MM GROUND FLOOR LINTEL LEVEL +3150MM TERRACE FLOOR PARAPET LEVEL +7800MM TERRACE FLOOR LINTEL LEVEL +7800MM MUMMTI LEVEL +7800MM WATER TANK LEVEL +7800MM GROUND LEVEL +1950MM SUNK 200 SUNK 200 SUNK 150 DUCT HARD STRATA MURUM FILLING PCC BED 3300 3400 ELEVATION FIRST FLOOR LINTEL LEVEL +6450MM FIRST FLOOR SILL LEVEL +5250MM TERRACE FLOOR LEVEL +7800MM FIRST FLOOR LEVEL +4350MM GROUND FLOOR SILL LEVEL +1950MM PLINTH LEVEL +1050MM GROUND FLOOR LINTEL LEVEL +3150MM TERRACE FLOOR PARAPET LEVEL +7800MM TERRACE FLOOR LINTEL LEVEL +7800MM MUMMTI LEVEL +7800MM WATER TANK LEVEL +7800MM GROUND LEVEL +1950MM ELEVATION SECTION AA’
  • 17.
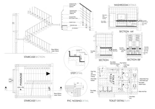
    GROUND FLOOR PLAN 1550 9001750 0 1 2 3 4 5 6 7 8 9 10 11 12 13 14 15 16 17 18 19 20 21 22 23 24 25 26 27 28 29 30 31 W2 Riser=300mm. trade=150mm PASSAGE 16001600352 300 1200 4204202498 3330 UP 230 1234567891011 11 Riser=300mm. trade=150mm 0 181213 14 15 16 17 19 20 21 LEVEL 2700 W2 2550 4300 A A' 23 6 5 13 25 NUT AND BOLT STAIRCASE SLAB GUSSET PLATE STAINLESS STEEL PIPE OF 10 MM DIAMETER STAINLESS STEEL PIPE OF 50 MM DIAMETER STAILESS STEEL PLATE 100mm x 25mm 900 TOILET V3 1200 2100 1200 V3 2100 D3 LEVEL1030 LEVEL1010LEVEL1010 SUNK200 150 4001020 900 30 600 600 900200 1497 2716 330 600 30 330 1260 D2 2000 2550 D3 Fiber Door with aluminium Framing Fiber Sheet Partition Roca Make Urinal. Roca Make W.C. Roca Make Health Faucet. Solid Waste pipe Waste Water Pipe Toilet Paper Handle Fiber Partition Nahani Trap. Roca Make Wash Basin. Water Inlet Pipe. 820 450 400 450 200 1350 Roca Make Urinal. Roca Make Wash Besin. 450 460 900 1240 450 460 900 2140 Ceramic tile (450 x 300) Roca Make Flush Cock. Roca Make W.C. Roca Make Health Faucet. Toilet Paper Handel. TOILET DETAILPLAN SECTION AA’ SECTION SECTION BB’ STAIRCASEPLAN STAIRCASESECTION WASHROOMDETAILS PVC NOSINGDETAIL PVC Nosining 12 mm thick Mortar 10 mm thick rough Ceramic tile 300 150 STEPDETAIL 1830 2100 820 1200 750 450 750 Roca Make W.C. Roca Make Health Faucet. Roca Make Wash Basin. Fiber Door With Aluminium Framing
  • 20.
    002BMSZ THE ANDC 2016 RIKSHAWSTAND TWOWHEELERPARKING BRT BUS STAND
  • 21.
  • 22.
  • 23.