SITE INFORMATION - NATURAL RESOURCES
101
NATURAL RESOURCES
Three-Storey Townhouse
SWIMMING
SWIMMING
SWIMMING
Albany
Scenic
Reserve
Glamorgan School
Titoki Montessori School
Sherwood School Freyberg Park
Browns Bay School
Bay City Park
Oteha Valley School
Pinehill School
Massey University
Albany
Lake
Reserve
Bushlane Park Reserve
LEGEND:
OPENED LEISURE SPACE
Stadium
SCHOOL
WATER ACESS
SPORT
UNIVERSITY
SPORT ON WATER
SWIMMING
SWIMMING
Long bay
Regional Park
SWIMMING
SITE INFORMATION - PUBLIC TRANSPORTATION
102
PUBLIC TRANSPORTATION
Three-Storey Townhouse
LEGEND:
887 COMES FROM LONG BAY GOES TO MIDTOWN
87X COMES FROM LONG BAY GOES TO MIDTOWN
875 COMES FROM BROWNS BAY GOES TO MIDTOWN
881 COMES FROM ALBANY GOES TO NEW MARKET
76X COMES FROM LONG BAY GOES TO MIDTOWN
886 COMES FROM LONG BAY GOES TO CONSTELLATION STATION
NEX COMES FROM ALBANY STATION GOES TO DOWNTOWN
BUS STOP
SITE INFORMATION - SCENERIES
103
SCENERIES
Three-Storey Townhouse
02
VIEW 02VIEW 01
Sceneries of Motutapu Island and Ragioto Island
01
16.767
53.156
16.767
53.156
SITE INFORMATION - BOUNDARY AND GROUND CONDITIONS
Three-Storey Townhouse
105
BOUNDARY AND GROUND
CONDITIONS
SITE INFORMATION - NEIGHBOURHOOD
104
NEIGHBOURHOOD
Three-Storey Townhouse
Northcross Mall
Pharmacy, Bank and food court
Intersection of East Cost Rd and Carlisle Rd
Shore Care Northcross
Image Exams and Sport Injury Clinic
Intersection of East Cost Rd and Oteha Valley Rd
Mayfair Village
Fenced terrace housed condominium
Oteha Valley Rd
19A Oteha Valley Rd
2 Dwelling 1 Storey
Mayfair Village
Wall in front of land
Oteha Valley Rd
23 Oteha Valley Rd
4 Dwelling 2 Stories
201
SITE PLAN
PROPOSED PLAN - SITE PLAN
Three-Storey Townhouse
B C D F G H I J
1
14
A KE
202
GROUND FLOOR MASTER
PLAN
PROPOSED PLAN - GROUND FLOOR MASTER PLAN
Three-Storey Townhouse
6
G H I
4
J K
9
1
01
02
5
L
10
401
GROUND FLOOR
UNIT TYPE A - GROUND FLOOR Three-Storey Townhouse
4
9
1
6
01
02
5
10
G H I J K L
402
FIRST FLOOR
UNIT TYPE A - FIRST FLOOR Three-Storey Townhouse
1
02
4
9
6
01
5
10
G H I J K L
403
SECOND FLOOR
UNIT TYPE A - SECOND FLOOR Three-Storey Townhouse
4
9
1
6
01
02
5
10
G H I J K L
404
ROOF PLAN
UNIT TYPE A - ROOF PLAN Three-Storey Townhouse
B C EA
8
12
13
1
14
02
03
3
2
7
11
FD
501
GROUND FLOOR
UNIT TYPE B - GROUND FLOOR
Three-Storey Townhouse
B C EA
1
02 03
3
2
8
12
13
14
7
11
FD
502
FIRST FLOOR
UNIT TYPE B - FIRST FLOOR
Three-Storey Townhouse
B C EA
1
02 03
2
3
8
12
13
14
7
11
FD
503
SECOND FLOOR
UNIT TYPE B - SECOND FLOOR
Three-Storey Townhouse
B C EA
1
02 03
3
2
8
12
13
14
7
11
FD
504
ROOF PLAN
UNIT TYPE B - ROOF PLAN
Three-Storey Townhouse
ALUMINIO DARK
GRAY
FIBR CEM NT
WEATHERBOARD
DARK GRAY
FIBRE CEMENT
WEATHERBOARD
DARK GRAY
©
4650
®
4700 6015
0
0
0
oo
t!) r-..
0) CX)
N
0
N
UNIT TYPE B - NORTH ELEVATION
ROOF
r-5
SECOND FLOOR
�
FIRST FLOOR
�o
GROUND FLOOR
�5
CLIENT
ADDRESS
21, OTEHA VALLEY ROAD NORTHCROSS 0632
PROJECT NAME
Three-Storey Townhouse
SHEET TITLE
NORTH ELEVATION
DESIGNED/ DRAWN DWG NO.
AGATHA MAIA
SCALE
505
1:1000A3
ALUMINIO DARK
GRAY
IBR CEMEN
WEATHERBOARD
DARK GRAY
FIBRE CEMENT
WEATHERBOARD
DARK GRAY
ACRYLIC WHIT
TEXTURE COATING
ON MASONRY WALL
@
6015
® ©
4700 5150
UNIT TYPE B - NORTH ELEVATION
©®®
5oepoq
0
0
ROOF
SECOND FLOOR
�5
FIRST FLOOR
�
GROUND FLOOR
�5
CLIENT
ADDRESS
21, OTEHA VALLEY ROAD NORTHCROSS 0632
PROJECT NAME
Three-Storey Townhouse
SHEET TITLE
NORTH ELEVATION
DESIGNED/ DRAWN DWG NO.
AGATHA MAIA
SCALE
506
1:1000A3
1 4 5 6 9 10
601
SECTION 01
SECTION 01 Three-Storey Townhouse
321 14131287 11
602
SECTION 02
SECTION 02 Three-Storey Townhouse
CBA E F G H I J KFD
603
SECTION 03
SECTION 03 Three-Storey Townhouse
UNIT 3:
DRIVE IN: 1 - FORWARD DIRECTLY INTO GARAGE
DRIVE OUT: 1 - REVERSE
2 - FORWARD
3 - FORWARD
1
2
3
1
2
3
DRIVE IN:
DRIVE OUT:
UNIT 4:
DRIVE IN: 1 - CAR GOES STRAIGHT INTO GARAGE
DRIVE OUT: 1 - REVERSE
2 - FORWARD
3 - FORWARD
1
1
2 3
DRIVE IN:
DRIVE OUT:
UNIT 2:
DRIVE IN: 1 - FORWARD DIRECTLY INTO GARAGE
DRIVE OUT: 1 - REVERSE
2 - FORWARD
3 - FORWARD
1
31
2
DRIVE IN:
DRIVE OUT:
901
INTERNAL VEHICLE ACESS
INTERNAL VEHICLE ACESS Three-Storey Townhouse

RC_Three-StoreyHouse

  • 3.
    SITE INFORMATION -NATURAL RESOURCES 101 NATURAL RESOURCES Three-Storey Townhouse SWIMMING SWIMMING SWIMMING Albany Scenic Reserve Glamorgan School Titoki Montessori School Sherwood School Freyberg Park Browns Bay School Bay City Park Oteha Valley School Pinehill School Massey University Albany Lake Reserve Bushlane Park Reserve LEGEND: OPENED LEISURE SPACE Stadium SCHOOL WATER ACESS SPORT UNIVERSITY SPORT ON WATER SWIMMING SWIMMING Long bay Regional Park SWIMMING
  • 4.
    SITE INFORMATION -PUBLIC TRANSPORTATION 102 PUBLIC TRANSPORTATION Three-Storey Townhouse LEGEND: 887 COMES FROM LONG BAY GOES TO MIDTOWN 87X COMES FROM LONG BAY GOES TO MIDTOWN 875 COMES FROM BROWNS BAY GOES TO MIDTOWN 881 COMES FROM ALBANY GOES TO NEW MARKET 76X COMES FROM LONG BAY GOES TO MIDTOWN 886 COMES FROM LONG BAY GOES TO CONSTELLATION STATION NEX COMES FROM ALBANY STATION GOES TO DOWNTOWN BUS STOP
  • 5.
    SITE INFORMATION -SCENERIES 103 SCENERIES Three-Storey Townhouse 02 VIEW 02VIEW 01 Sceneries of Motutapu Island and Ragioto Island 01
  • 6.
    16.767 53.156 16.767 53.156 SITE INFORMATION -BOUNDARY AND GROUND CONDITIONS Three-Storey Townhouse 105 BOUNDARY AND GROUND CONDITIONS
  • 7.
    SITE INFORMATION -NEIGHBOURHOOD 104 NEIGHBOURHOOD Three-Storey Townhouse Northcross Mall Pharmacy, Bank and food court Intersection of East Cost Rd and Carlisle Rd Shore Care Northcross Image Exams and Sport Injury Clinic Intersection of East Cost Rd and Oteha Valley Rd Mayfair Village Fenced terrace housed condominium Oteha Valley Rd 19A Oteha Valley Rd 2 Dwelling 1 Storey Mayfair Village Wall in front of land Oteha Valley Rd 23 Oteha Valley Rd 4 Dwelling 2 Stories
  • 8.
    201 SITE PLAN PROPOSED PLAN- SITE PLAN Three-Storey Townhouse
  • 9.
    B C DF G H I J 1 14 A KE 202 GROUND FLOOR MASTER PLAN PROPOSED PLAN - GROUND FLOOR MASTER PLAN Three-Storey Townhouse
  • 15.
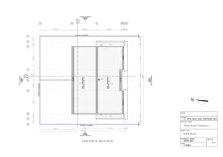
    6 G H I 4 JK 9 1 01 02 5 L 10 401 GROUND FLOOR UNIT TYPE A - GROUND FLOOR Three-Storey Townhouse
  • 16.
    4 9 1 6 01 02 5 10 G H IJ K L 402 FIRST FLOOR UNIT TYPE A - FIRST FLOOR Three-Storey Townhouse
  • 17.
    1 02 4 9 6 01 5 10 G H IJ K L 403 SECOND FLOOR UNIT TYPE A - SECOND FLOOR Three-Storey Townhouse
  • 18.
    4 9 1 6 01 02 5 10 G H IJ K L 404 ROOF PLAN UNIT TYPE A - ROOF PLAN Three-Storey Townhouse
  • 23.
    B C EA 8 12 13 1 14 02 03 3 2 7 11 FD 501 GROUNDFLOOR UNIT TYPE B - GROUND FLOOR Three-Storey Townhouse
  • 24.
    B C EA 1 0203 3 2 8 12 13 14 7 11 FD 502 FIRST FLOOR UNIT TYPE B - FIRST FLOOR Three-Storey Townhouse
  • 25.
    B C EA 1 0203 2 3 8 12 13 14 7 11 FD 503 SECOND FLOOR UNIT TYPE B - SECOND FLOOR Three-Storey Townhouse
  • 26.
    B C EA 1 0203 3 2 8 12 13 14 7 11 FD 504 ROOF PLAN UNIT TYPE B - ROOF PLAN Three-Storey Townhouse
  • 27.
    ALUMINIO DARK GRAY FIBR CEMNT WEATHERBOARD DARK GRAY FIBRE CEMENT WEATHERBOARD DARK GRAY © 4650 ® 4700 6015 0 0 0 oo t!) r-.. 0) CX) N 0 N UNIT TYPE B - NORTH ELEVATION ROOF r-5 SECOND FLOOR � FIRST FLOOR �o GROUND FLOOR �5 CLIENT ADDRESS 21, OTEHA VALLEY ROAD NORTHCROSS 0632 PROJECT NAME Three-Storey Townhouse SHEET TITLE NORTH ELEVATION DESIGNED/ DRAWN DWG NO. AGATHA MAIA SCALE 505 1:1000A3
  • 28.
    ALUMINIO DARK GRAY IBR CEMEN WEATHERBOARD DARKGRAY FIBRE CEMENT WEATHERBOARD DARK GRAY ACRYLIC WHIT TEXTURE COATING ON MASONRY WALL @ 6015 ® © 4700 5150 UNIT TYPE B - NORTH ELEVATION ©®® 5oepoq 0 0 ROOF SECOND FLOOR �5 FIRST FLOOR � GROUND FLOOR �5 CLIENT ADDRESS 21, OTEHA VALLEY ROAD NORTHCROSS 0632 PROJECT NAME Three-Storey Townhouse SHEET TITLE NORTH ELEVATION DESIGNED/ DRAWN DWG NO. AGATHA MAIA SCALE 506 1:1000A3
  • 31.
    1 4 56 9 10 601 SECTION 01 SECTION 01 Three-Storey Townhouse
  • 32.
    321 14131287 11 602 SECTION02 SECTION 02 Three-Storey Townhouse
  • 33.
    CBA E FG H I J KFD 603 SECTION 03 SECTION 03 Three-Storey Townhouse
  • 36.
    UNIT 3: DRIVE IN:1 - FORWARD DIRECTLY INTO GARAGE DRIVE OUT: 1 - REVERSE 2 - FORWARD 3 - FORWARD 1 2 3 1 2 3 DRIVE IN: DRIVE OUT: UNIT 4: DRIVE IN: 1 - CAR GOES STRAIGHT INTO GARAGE DRIVE OUT: 1 - REVERSE 2 - FORWARD 3 - FORWARD 1 1 2 3 DRIVE IN: DRIVE OUT: UNIT 2: DRIVE IN: 1 - FORWARD DIRECTLY INTO GARAGE DRIVE OUT: 1 - REVERSE 2 - FORWARD 3 - FORWARD 1 31 2 DRIVE IN: DRIVE OUT: 901 INTERNAL VEHICLE ACESS INTERNAL VEHICLE ACESS Three-Storey Townhouse