2930 LAKE SHORE BLVD W
This design proposes a mid to high-rise building integrating circulation, living and com-
munity into transition and experience spaces. Adolf Loos coined the phrase
‘raumplan’ meaning spatial planning. It releases the ground floor plan; revealing interior
spaces at different heights and dimensions. The overall goal of this design is to improve
the user’s visual experience, inside and outside.
Project 01/01
05
56495649
South Elevation
1:100
West Elevation
1:100
56495649
South Elevation
1:100
West Elevation
1:100
West Elevationn
Ground Floor
0
Level 3
8500
Level 4
12000
Level 5
15500
Level 6
19000
Level 7
22500
Level 8
26000
Level 9
29500
mezzanine
3500
Level 10
33000
Mezzanine 2
7000
E-W Section
1:100
01
02 03
04
05
13
12
05
11
04
10
03
09
02
08
01
07
06
Multi-Purpose Hall
Enlarged Elevation
South Elevation
Lecture Hall
Aerial View
Vegeatation Wall
Section B
Family Room 2
Section A
Family Room 1
West Elevation
Exterior View
Floor Plans and Details
Daylight Autonomy Model
Illuminance Colour Map
Daylight Study
14
15
16
08
09
07
Project 01/02
10
12
11
13 Project 01/03
EnlargedThirdFloorPlanEnlargedFourthFloorPlan
DN
UP
12:00 Jan 21 RGB
12:00 am Jun 21 Pseudo Colour 12:00 am Feb 21 Pseudo Colour
Mar 21 12:00 RGB
12:00 am Feb 21 RGB
13:00 am Jun 21
DN
DN
UP
DN
UP
--
-
-
- -
2
-
619862006200
7357
3108
7357
10001167 3216 1974
Project 01/04
Ground Floor +0.0m
Mezzanine 2 +7.0m and Third Floor +8.5m
Fourth Floor +12.0m
Fith Floor +15.5m
Sixth Floor +19.0m
Seventh Floor +19.0m
Eighth Floor +22.5m
Ninth Floor +26.0m
Daylight Availability
Weather Data: Toronto,ON
Daylight Autonomy
Ninth Floor +26.0m
Ninth Floor +26.0m
Mezzanine +3.5m and Second Floor +5.0m
Daylight Autonomy Analysis
Occupancy Schedule: 8 to 6 with DST. 60 min
Ground Floor +0.0m
Mezzanine 2 +7.0m and Third Floor +8.5m
Fourth Floor +12.0m
Fith Floor +15.5m
Sixth Floor +19.0m
Seventh Floor +19.0m
Eighth Floor +22.5m
Ninth Floor +26.0m
Daylight Availability
Weather Data: Toronto,ON
Daylight Autonomy
Ninth Floor +26.0m
Ninth Floor +26.0m
Mezzanine +3.5m and Second Floor +5.0m
Daylight Autonomy Analysis
Occupancy Schedule: 8 to 6 with DST. 60 min
14
16
15
Ground Floor Plan
Geo-Composite Fabric Floor-Wall Section Detail Sun Shading Louvre Wall System Detail
Third Floor Plan Fourth Floor Plan
Project 01/05
DN
UP
UP
DN
www.autodesk.com/revit
ConsultantAddressAddressPhone
Fax
e-mail
ConsultantAddressAddressPhone
Fax
e-mail
ConsultantAddressAddressPhone
Fax
e-mail
ConsultantAddressAddressPhone
Fax
e-mail
ConsultantAddressAddressPhone
Fax
e-mail
UP
UP
62006200
6198620062003108
62006200
UP
DN
DN
UP
DN
UP
--
-
-
- -
2
34
35
36
42 43 44
-
-
49
51
-
---
52
619862006200
7357
3108
7357
10001167 3216 1974
06
geo-composite fabric
Steel Frame
Insulation Wood Stud System
Water Drainage
Vegetation
M
Think Tank at Kortright centre Innovation park
01
02
03 04
05
04
03
09
02
08
01
07
06
Exterior View
Sustainable Features
Section B
Floor Plans
Section A
South Elevation
GallerySpace
North Elevation
Meeting Room
Project 02/06
Project 02/07
DN
DN
UP
UP
UPUP
DN
DN
Ground Floor Plan
Second Floor Plan
Third Floor Plan
09
05
10
04
09
03
08
02
07
01
06
11
Exhibit Space
Green Roof
Group Meeting/Reception
Kitchenette/Lounge
Storage
Conference Room
IT Shared Suite
Office
Lobby
Washrooms
Training Room
05
04
03
02
01
06
09
08
10
11
07
06
Project 02/08
05
Project 02/09
06
07 08
Project 03/10
new lower don lands rowing club
12
05
11
04
10
03
09
02
08
01
07
06
Market Render
Interior Rowing Simulator
Site Plan
Training Room
Tunnel Renders
Lower South Don Lands
Aerial View Installation
Ground Floor Plan
Exploded Axonometric
Site Plan
Lobby
Shell Storage
Ground Floor Plan
02
Project 03/11
05
04
03
02
01
01
06
Massage Room
Shell Storage
Training Room
Washrooms and Changerooms
Lobby
Break Room
05
06
04
03
02
Project 03/12
09
10 11
12
Project 03/13
TorontoShoreline
Toronto Shoreline
KEATING
CHANNEL
MILL ST
CHERRYST
RAGEST
LAKE SHORE BLVD E
TRINITYST
CHERRYST
CHERRYST
VILLIERS ST
MUNITION
ST
CHERRYST
ONERS ST
C
N
R
C
N
R
C
N
R
C
N
R
C N R
Project 03/14 Site Plan
01
Project 03/15
03
04 05
06
07
08
Project 03/16
05
05
04
04
03
03
02
02
08
08
0101
07
07
06
06
Glass
Wood Finish Ceiling
Glulam Columns
Glulam Beams
Concrete Floor
Green Roof
Shell Storage and Training Area
Cladding
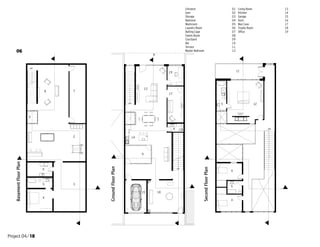
dugout
The life of a professional baseball player is very active. Teams play 162
games a season which are mostly road games so the client is mostly away
from home. The client Bobby Davis along with his wife Karen, daughters Julie
and Celine, and border collies Griffey and Dimaggio, demand a townhouse with
comfort and play. The hook of this design is the feeling a family gets when their
father comes home from a long road trip. The entrance answers this with vertical
circulation and views from the top floor. The light wells, skylights and courtyards
provide most of the natural light. It was also designed for the wife who is
left raising their two daughters.
Project 04/17
12
05
11
04
10
03
09
02
08
01
07
06
Longitudinal Section
Context Plan
Cross Section
Exterior Waterfront View
Master Bedroom
Diagram
Guest Bedroom
Site Plan
Interior Ground Floor
Exterior View
Front Entrance
Floor Plans
0401
02
03
05
10 11 12 13 14 16 1715 18 19 20 21 22 23 24 25 26 27 28 29 34 39 40 41
ASHBRIDGE'S STREET
PORT LANDS CANAL
TWO-WAYMAINSTREET
SIDE WALK SIDE WALK
DN
PRODUCED BY AN AUTODESK EDUCATIONAL PRODUCT
UP
DN
UP
DN
UP
BasementFloorPlan
GroundFloorPlan
SecondFloorPlan
8
9
7
2
3
15
9
14
13
19
17
4
6
18
4
5
4
5 12
11
19
12
05
18
11
04
17
10
03
16
09
02
15
08
01
14
07
13
06
Office
Master Bedroom
Washroom
Trophy Room
Terrace
Bedroom
Man Cave
Bar
Storage
Dock
Courtyard
Gym
Garage
Family Room
Entrance
Kitchen
Batting Cage
Living Room
Laundry Room
5
6
4
Project 04/18
06
Project 04/1912
10
09
0807
11
Project 05/20
Idea store
0508
04
07
03
06
02
05
01
Rendered 3D Wall Sections
Lobby View
Section Details
Multi-Purpose Hall View 2
Floor Plans
Multi-Purpose Hall View 1
Rendered North Elevation
Exterior View
Level 1
0.000
Level 2
4.000
Level 3
8.000
Level 4
12.000
Level 5
16.000
Level 6
20.000
ROOF
22.500
456
6000 6000
30003385400025006151000400010003000
01
03 04
02
Project 05/21
6000 6000 6000 6000 6000
8000800080008000
-
---
3
A-115
3
A-1
3
A-114
A-115
1
2
A-115
2
A-114
1
A-208
2
A-207
2
A-207
2
A-207
2
A-208
6000 6000 6000 6000 6000
8000800080008000
-
---
3
A-115
6000 6000 6000 6000 6000
8000800080008000
2
A-111
3
A-113
1
A-109
3
A-114
A-115
1
2
A-115
1
A-208
2
A-207
2
A-208
1
A-208
2
A-207
2
A-208
2
A-207
UP
DN
UP
DN
8000800080008000
6000 6000 6000 6000 6000
1
A-208
2
A-207
2
A-111
3
A-113
1
A-109
2
A-208
K.O.M
DATE:
PROJECT No:
DRAWN:
DRAWING NO:
SCALE:
LOCATION:
12.APRIL.2015
ASC 620 W2015
DRAWING TITLE:
Architecture
CLIENT:
CITY OF TORONTO
PROJECT:
IDEA STORE LIBRARY
TRUE NORTH PROJECT NORTH
1544 DUNDAS ST. WEST
1:100
GROUND FLOOR PLAN
A-101
1 : 100
GROUND FLOOR
1
Ground Floor Plan
Basement Floor Plan
Second Floor Plan
06
12
05
11
04
04
10
03
03
09
02
02
08
01
01
07
06
Computer Lab
Lecture Room
Book Archives
Journal Collection
Children Book Area
Cafe
Library
Child Day Care
Storage
Lobby
Mechanical Room
Gallery
05
06
08
08
07
10
09
12
11
8000
UP
8000800080008000
6000 6000 6000 6000 6000
2
A-112
3
A-114
1
A-110
K.O.M
Architecture
1
A-110
1
A-208
1
A-208
2
A-207
2
A-208
A
6000 6000 6000 6000 6000
8000800080008000
3
A-114
1
A-110
2
A-114
2
A-207
2
A-207
2
A-208
6000 6000 6000 6000 6000
8000800080008000
2
A-112
3
A-115
6000 6000
800080008000
-
---
6000 6000 6000 6000 6000
800080008000
2
A-111
3
A-113
6000 6000 6000 6000 600
2
A-112
3
A-114
6000 6000 6000 6000 6000
8000800080008000
1
A-110
1
A-110
2
-114
1
A-208
2
A-207
2
A-208
1
A-208
2
A-208
2
A-207
2
A-208
2
A-208
2
A-207
Third Floor Plan
Fourth Floor Plan
Sixth Floor PlanProject 05/22
05
04
04
03
03
02
02
02
01
01
06
CSI Offices
Computer Lab
Book Archives
Storage
Multi-Purpose Room
Seminar Room
05
06
0205
06
Project 05/23
Rigid Insulation
Spandrel Panel
Diffuser (Return)
Aluminum Flashing
Metal Baffle Ceiling
Hanger Wire
Steel Beam
Gravel
Roofing Membrane
Batt Insulation
Steel Decking with Concrete Topping
Plywood Sheathing
Rigid Insulation
Airspace
Fibre Cement Panels
Sealant
Aluminum Curtain Wall Mullion
Double Glazing
Metal Baffle Ceiling
Hanger Wire
Glass Fin Vertical
Glass Mullion System
Double Glazing
Steel I-Beam
Drip Edge
Spandrel Panel
Granite Flooring with Mortar Bed
150 mm Steel Decking with Concrete
Topping
Steel Beam
Hanger Wire
Duct
Aluminum Horizontal
Louvre Frame
Air Vent (Supply)
Plasterboard
07
08
Project 05/24
site plan | 1:500
farmer’s market pavilion
Wendat Village
guest parking zone
onsite agriculture/crops
exhibition/sculpture garden
2
3
4
5
1
outdoor kitchen pavilion
6
7
visitor centre
overnight accommodations8
10m
2
3
4
5
6
7
8
1
Project 06/25
crawford lake visitors centre
01
05
04
03
02
08
01
07
06
Water Sustainability
Lighting Features
Envelope
Ground Floor Plan
Community Hall 2
Site Plan
Community Hall
Green Roof
interactive archaeological zone | 78m 2
vestibule | 15m 2
main floor plan | 1:200
1
2
3
4
5 6
7
8
9
10
11
12
13
s1
s1
s2
s2
s3
s3
1 8
2.5m
Project 06/26
04
03 05
02
06
07 08
Project 06/27
The initial idea for this project was to provide every
housing unit with a view of the Toronto’s skyline. This
idea was changed when the perimeter block building
type was chosen. In the center of the building is
a large courtyard beginning from the ground plane.
To achieve this courtyard it would result in sacrificing
large amenity spaces. Using stepped terraces
inspired from precedents studies, this building manages
to put amenity spaces on the different levels
on the roof which is accessible to every resident. It
brings a community closer together and providing a
space for fun and relaxation.
Project 07/28
lot 27 mid-rise housing
01 04
05
06
02 03
05
04
03
02
08
09
10
11
12
01
07
06
West Elevation
Section 2
Sectional Perspective
South Elevation
Exterior View
Fitness Room
Courtyard
Physical Models
Nightime Render
Section 1
Floor Plans
Port Lands
PRODUCEDBYANAUTODESKEDUCATIONALPRODUCT
Ground Floor Plan Second Floor Plan
Project 07/29
07
1 Bedroom Render
PRODUCEDBYANAUTODESKEDUCATIONALPRODUCT
Third Floor Plan
Ground Floor Plan
Second Floor Plan
Third Floor Plan
2 Bedroom Unit
UP
PRODUCEDBYANAUTODESKEDUCATIONALPRODUCT
PRODUCED BY AN AUTODESK EDUCATIONAL PRODUCT
PRODUCEDBYANAUTODESKEDUCATIONALPRODUCT
DN
PRODUCED BY AN AUTODESK EDUCATIONAL PRODUCT
PRODUCEDBYANAUTODESKEDUCATIONALPRODUCT
PRODUCED B
Second Floor 1:100
First Floor 1:100
2 Bedroom
Third Floor 1:100
UP
PRODUCEDBYANAUTODESKEDUCATIONALPRODUCT
PRODUCED BY AN AUTODESK EDUCATIONAL PRODUCT
PRODUCEDBYANAUTODESKEDUCATIONALPRODUCT
DN
PRODUCED BY AN AUTODESK EDUCATIONAL PRODUCT
PRODUCEDBYANAUTODESKEDUCATIONALPRODUCT
PRODUCED B
Second Floor 1:100
First Floor 1:100
2 Bedroom
Third Floor 1:100
UP
PRODUCEDBYANAUTODESKEDUCATIONALPRODUCT
PRODUCED BY AN AUTODESK EDUCATIONAL PRODUCT
PRODUCEDBYANAUTODESKEDUCATIONALPRODUCT
DN
PRODUCED BY AN AUTODESK EDUCATIONAL PRODUCT
PRODUCEDBYANAUTODESKEDUCATIONALPRODUCT
PRODUCED B
Second Floor 1:100
First Floor 1:100
2 Bedroom
Third Floor 1:100
UP
PRODUCEDBYANAUTODESKEDUCATIONALPRODUCT
PRODUCEDBYANAUTODESKEDUCATIONALPRODUCT
PRODUCED BY AN AUTODESK EDUCATIONAL PRODUCT
PRODUCEDBYANAUTODESKEDUCATIONALPRODUCT
PRODUCEDBYANAUTODESKEDUCATIONALPRODUCT
DN
PRODUCEDBYANAUTODESKEDUCATIONALPRODUC
PRODUCED BY AN AUTODESK EDUCATIONAL PRODUCT
PRODUCEDBYANAUTODESKEDUCATIONALPRODUCT
PRODUCED BY AN AUTODESK EDUCATIONAL PRODUCT
Second Floor 1:100
First Floor 1:100
2 Bedroom Unit1:100
Third Floor 1:100
Project 07/30
Fitness Room (Floor
08 09
10
11
12
Project 07/31
River View
Aerial ViewCanopy View
Project 08/32
wave
Site Plan
Exploded Axonometric Existing Photograph
Project 08/33

Final Portfolio Layout

  • 1.
    2930 LAKE SHOREBLVD W This design proposes a mid to high-rise building integrating circulation, living and com- munity into transition and experience spaces. Adolf Loos coined the phrase ‘raumplan’ meaning spatial planning. It releases the ground floor plan; revealing interior spaces at different heights and dimensions. The overall goal of this design is to improve the user’s visual experience, inside and outside. Project 01/01 05 56495649 South Elevation 1:100 West Elevation 1:100 56495649 South Elevation 1:100 West Elevation 1:100 West Elevationn Ground Floor 0 Level 3 8500 Level 4 12000 Level 5 15500 Level 6 19000 Level 7 22500 Level 8 26000 Level 9 29500 mezzanine 3500 Level 10 33000 Mezzanine 2 7000 E-W Section 1:100 01 02 03 04 05 13 12 05 11 04 10 03 09 02 08 01 07 06 Multi-Purpose Hall Enlarged Elevation South Elevation Lecture Hall Aerial View Vegeatation Wall Section B Family Room 2 Section A Family Room 1 West Elevation Exterior View Floor Plans and Details Daylight Autonomy Model Illuminance Colour Map Daylight Study 14 15 16
  • 2.
  • 3.
  • 4.
    EnlargedThirdFloorPlanEnlargedFourthFloorPlan DN UP 12:00 Jan 21RGB 12:00 am Jun 21 Pseudo Colour 12:00 am Feb 21 Pseudo Colour Mar 21 12:00 RGB 12:00 am Feb 21 RGB 13:00 am Jun 21 DN DN UP DN UP -- - - - - 2 - 619862006200 7357 3108 7357 10001167 3216 1974 Project 01/04 Ground Floor +0.0m Mezzanine 2 +7.0m and Third Floor +8.5m Fourth Floor +12.0m Fith Floor +15.5m Sixth Floor +19.0m Seventh Floor +19.0m Eighth Floor +22.5m Ninth Floor +26.0m Daylight Availability Weather Data: Toronto,ON Daylight Autonomy Ninth Floor +26.0m Ninth Floor +26.0m Mezzanine +3.5m and Second Floor +5.0m Daylight Autonomy Analysis Occupancy Schedule: 8 to 6 with DST. 60 min Ground Floor +0.0m Mezzanine 2 +7.0m and Third Floor +8.5m Fourth Floor +12.0m Fith Floor +15.5m Sixth Floor +19.0m Seventh Floor +19.0m Eighth Floor +22.5m Ninth Floor +26.0m Daylight Availability Weather Data: Toronto,ON Daylight Autonomy Ninth Floor +26.0m Ninth Floor +26.0m Mezzanine +3.5m and Second Floor +5.0m Daylight Autonomy Analysis Occupancy Schedule: 8 to 6 with DST. 60 min 14 16 15
  • 5.
    Ground Floor Plan Geo-CompositeFabric Floor-Wall Section Detail Sun Shading Louvre Wall System Detail Third Floor Plan Fourth Floor Plan Project 01/05 DN UP UP DN www.autodesk.com/revit ConsultantAddressAddressPhone Fax e-mail ConsultantAddressAddressPhone Fax e-mail ConsultantAddressAddressPhone Fax e-mail ConsultantAddressAddressPhone Fax e-mail ConsultantAddressAddressPhone Fax e-mail UP UP 62006200 6198620062003108 62006200 UP DN DN UP DN UP -- - - - - 2 34 35 36 42 43 44 - - 49 51 - --- 52 619862006200 7357 3108 7357 10001167 3216 1974 06 geo-composite fabric Steel Frame Insulation Wood Stud System Water Drainage Vegetation M
  • 6.
    Think Tank atKortright centre Innovation park 01 02 03 04 05 04 03 09 02 08 01 07 06 Exterior View Sustainable Features Section B Floor Plans Section A South Elevation GallerySpace North Elevation Meeting Room Project 02/06
  • 7.
    Project 02/07 DN DN UP UP UPUP DN DN Ground FloorPlan Second Floor Plan Third Floor Plan 09 05 10 04 09 03 08 02 07 01 06 11 Exhibit Space Green Roof Group Meeting/Reception Kitchenette/Lounge Storage Conference Room IT Shared Suite Office Lobby Washrooms Training Room 05 04 03 02 01 06 09 08 10 11 07 06
  • 8.
  • 9.
  • 10.
    Project 03/10 new lowerdon lands rowing club 12 05 11 04 10 03 09 02 08 01 07 06 Market Render Interior Rowing Simulator Site Plan Training Room Tunnel Renders Lower South Don Lands Aerial View Installation Ground Floor Plan Exploded Axonometric Site Plan Lobby Shell Storage
  • 11.
    Ground Floor Plan 02 Project03/11 05 04 03 02 01 01 06 Massage Room Shell Storage Training Room Washrooms and Changerooms Lobby Break Room 05 06 04 03 02
  • 12.
  • 13.
  • 14.
    TorontoShoreline Toronto Shoreline KEATING CHANNEL MILL ST CHERRYST RAGEST LAKESHORE BLVD E TRINITYST CHERRYST CHERRYST VILLIERS ST MUNITION ST CHERRYST ONERS ST C N R C N R C N R C N R C N R Project 03/14 Site Plan 01
  • 15.
  • 16.
    06 07 08 Project 03/16 05 05 04 04 03 03 02 02 08 08 0101 07 07 06 06 Glass Wood FinishCeiling Glulam Columns Glulam Beams Concrete Floor Green Roof Shell Storage and Training Area Cladding
  • 17.
    dugout The life ofa professional baseball player is very active. Teams play 162 games a season which are mostly road games so the client is mostly away from home. The client Bobby Davis along with his wife Karen, daughters Julie and Celine, and border collies Griffey and Dimaggio, demand a townhouse with comfort and play. The hook of this design is the feeling a family gets when their father comes home from a long road trip. The entrance answers this with vertical circulation and views from the top floor. The light wells, skylights and courtyards provide most of the natural light. It was also designed for the wife who is left raising their two daughters. Project 04/17 12 05 11 04 10 03 09 02 08 01 07 06 Longitudinal Section Context Plan Cross Section Exterior Waterfront View Master Bedroom Diagram Guest Bedroom Site Plan Interior Ground Floor Exterior View Front Entrance Floor Plans 0401 02 03 05 10 11 12 13 14 16 1715 18 19 20 21 22 23 24 25 26 27 28 29 34 39 40 41 ASHBRIDGE'S STREET PORT LANDS CANAL TWO-WAYMAINSTREET SIDE WALK SIDE WALK
  • 18.
    DN PRODUCED BY ANAUTODESK EDUCATIONAL PRODUCT UP DN UP DN UP BasementFloorPlan GroundFloorPlan SecondFloorPlan 8 9 7 2 3 15 9 14 13 19 17 4 6 18 4 5 4 5 12 11 19 12 05 18 11 04 17 10 03 16 09 02 15 08 01 14 07 13 06 Office Master Bedroom Washroom Trophy Room Terrace Bedroom Man Cave Bar Storage Dock Courtyard Gym Garage Family Room Entrance Kitchen Batting Cage Living Room Laundry Room 5 6 4 Project 04/18 06
  • 19.
  • 20.
    Project 05/20 Idea store 0508 04 07 03 06 02 05 01 Rendered3D Wall Sections Lobby View Section Details Multi-Purpose Hall View 2 Floor Plans Multi-Purpose Hall View 1 Rendered North Elevation Exterior View Level 1 0.000 Level 2 4.000 Level 3 8.000 Level 4 12.000 Level 5 16.000 Level 6 20.000 ROOF 22.500 456 6000 6000 30003385400025006151000400010003000 01 03 04 02
  • 21.
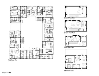
    Project 05/21 6000 60006000 6000 6000 8000800080008000 - --- 3 A-115 3 A-1 3 A-114 A-115 1 2 A-115 2 A-114 1 A-208 2 A-207 2 A-207 2 A-207 2 A-208 6000 6000 6000 6000 6000 8000800080008000 - --- 3 A-115 6000 6000 6000 6000 6000 8000800080008000 2 A-111 3 A-113 1 A-109 3 A-114 A-115 1 2 A-115 1 A-208 2 A-207 2 A-208 1 A-208 2 A-207 2 A-208 2 A-207 UP DN UP DN 8000800080008000 6000 6000 6000 6000 6000 1 A-208 2 A-207 2 A-111 3 A-113 1 A-109 2 A-208 K.O.M DATE: PROJECT No: DRAWN: DRAWING NO: SCALE: LOCATION: 12.APRIL.2015 ASC 620 W2015 DRAWING TITLE: Architecture CLIENT: CITY OF TORONTO PROJECT: IDEA STORE LIBRARY TRUE NORTH PROJECT NORTH 1544 DUNDAS ST. WEST 1:100 GROUND FLOOR PLAN A-101 1 : 100 GROUND FLOOR 1 Ground Floor Plan Basement Floor Plan Second Floor Plan 06 12 05 11 04 04 10 03 03 09 02 02 08 01 01 07 06 Computer Lab Lecture Room Book Archives Journal Collection Children Book Area Cafe Library Child Day Care Storage Lobby Mechanical Room Gallery 05 06 08 08 07 10 09 12 11
  • 22.
    8000 UP 8000800080008000 6000 6000 60006000 6000 2 A-112 3 A-114 1 A-110 K.O.M Architecture 1 A-110 1 A-208 1 A-208 2 A-207 2 A-208 A 6000 6000 6000 6000 6000 8000800080008000 3 A-114 1 A-110 2 A-114 2 A-207 2 A-207 2 A-208 6000 6000 6000 6000 6000 8000800080008000 2 A-112 3 A-115 6000 6000 800080008000 - --- 6000 6000 6000 6000 6000 800080008000 2 A-111 3 A-113 6000 6000 6000 6000 600 2 A-112 3 A-114 6000 6000 6000 6000 6000 8000800080008000 1 A-110 1 A-110 2 -114 1 A-208 2 A-207 2 A-208 1 A-208 2 A-208 2 A-207 2 A-208 2 A-208 2 A-207 Third Floor Plan Fourth Floor Plan Sixth Floor PlanProject 05/22 05 04 04 03 03 02 02 02 01 01 06 CSI Offices Computer Lab Book Archives Storage Multi-Purpose Room Seminar Room 05 06 0205 06
  • 23.
    Project 05/23 Rigid Insulation SpandrelPanel Diffuser (Return) Aluminum Flashing Metal Baffle Ceiling Hanger Wire Steel Beam Gravel Roofing Membrane Batt Insulation Steel Decking with Concrete Topping Plywood Sheathing Rigid Insulation Airspace Fibre Cement Panels Sealant Aluminum Curtain Wall Mullion Double Glazing Metal Baffle Ceiling Hanger Wire Glass Fin Vertical Glass Mullion System Double Glazing Steel I-Beam Drip Edge Spandrel Panel Granite Flooring with Mortar Bed 150 mm Steel Decking with Concrete Topping Steel Beam Hanger Wire Duct Aluminum Horizontal Louvre Frame Air Vent (Supply) Plasterboard 07
  • 24.
  • 25.
    site plan |1:500 farmer’s market pavilion Wendat Village guest parking zone onsite agriculture/crops exhibition/sculpture garden 2 3 4 5 1 outdoor kitchen pavilion 6 7 visitor centre overnight accommodations8 10m 2 3 4 5 6 7 8 1 Project 06/25 crawford lake visitors centre 01 05 04 03 02 08 01 07 06 Water Sustainability Lighting Features Envelope Ground Floor Plan Community Hall 2 Site Plan Community Hall Green Roof
  • 26.
    interactive archaeological zone| 78m 2 vestibule | 15m 2 main floor plan | 1:200 1 2 3 4 5 6 7 8 9 10 11 12 13 s1 s1 s2 s2 s3 s3 1 8 2.5m Project 06/26 04 03 05 02
  • 27.
  • 28.
    The initial ideafor this project was to provide every housing unit with a view of the Toronto’s skyline. This idea was changed when the perimeter block building type was chosen. In the center of the building is a large courtyard beginning from the ground plane. To achieve this courtyard it would result in sacrificing large amenity spaces. Using stepped terraces inspired from precedents studies, this building manages to put amenity spaces on the different levels on the roof which is accessible to every resident. It brings a community closer together and providing a space for fun and relaxation. Project 07/28 lot 27 mid-rise housing 01 04 05 06 02 03 05 04 03 02 08 09 10 11 12 01 07 06 West Elevation Section 2 Sectional Perspective South Elevation Exterior View Fitness Room Courtyard Physical Models Nightime Render Section 1 Floor Plans Port Lands
  • 29.
  • 30.
    1 Bedroom Render PRODUCEDBYANAUTODESKEDUCATIONALPRODUCT ThirdFloor Plan Ground Floor Plan Second Floor Plan Third Floor Plan 2 Bedroom Unit UP PRODUCEDBYANAUTODESKEDUCATIONALPRODUCT PRODUCED BY AN AUTODESK EDUCATIONAL PRODUCT PRODUCEDBYANAUTODESKEDUCATIONALPRODUCT DN PRODUCED BY AN AUTODESK EDUCATIONAL PRODUCT PRODUCEDBYANAUTODESKEDUCATIONALPRODUCT PRODUCED B Second Floor 1:100 First Floor 1:100 2 Bedroom Third Floor 1:100 UP PRODUCEDBYANAUTODESKEDUCATIONALPRODUCT PRODUCED BY AN AUTODESK EDUCATIONAL PRODUCT PRODUCEDBYANAUTODESKEDUCATIONALPRODUCT DN PRODUCED BY AN AUTODESK EDUCATIONAL PRODUCT PRODUCEDBYANAUTODESKEDUCATIONALPRODUCT PRODUCED B Second Floor 1:100 First Floor 1:100 2 Bedroom Third Floor 1:100 UP PRODUCEDBYANAUTODESKEDUCATIONALPRODUCT PRODUCED BY AN AUTODESK EDUCATIONAL PRODUCT PRODUCEDBYANAUTODESKEDUCATIONALPRODUCT DN PRODUCED BY AN AUTODESK EDUCATIONAL PRODUCT PRODUCEDBYANAUTODESKEDUCATIONALPRODUCT PRODUCED B Second Floor 1:100 First Floor 1:100 2 Bedroom Third Floor 1:100 UP PRODUCEDBYANAUTODESKEDUCATIONALPRODUCT PRODUCEDBYANAUTODESKEDUCATIONALPRODUCT PRODUCED BY AN AUTODESK EDUCATIONAL PRODUCT PRODUCEDBYANAUTODESKEDUCATIONALPRODUCT PRODUCEDBYANAUTODESKEDUCATIONALPRODUCT DN PRODUCEDBYANAUTODESKEDUCATIONALPRODUC PRODUCED BY AN AUTODESK EDUCATIONAL PRODUCT PRODUCEDBYANAUTODESKEDUCATIONALPRODUCT PRODUCED BY AN AUTODESK EDUCATIONAL PRODUCT Second Floor 1:100 First Floor 1:100 2 Bedroom Unit1:100 Third Floor 1:100 Project 07/30
  • 31.
    Fitness Room (Floor 0809 10 11 12 Project 07/31
  • 32.
    River View Aerial ViewCanopyView Project 08/32 wave
  • 33.
    Site Plan Exploded AxonometricExisting Photograph Project 08/33