1
Rabia Peerzada
PORTFOLIO
1
Luminaire . . . . . . . . . . . . . . . . . . . . . . . . . . 1
Kinokuniya . . . . . . . . . . . . . . . . . . . . . . . . . . . . . . 3
Cafe . . . . . . . . . . . . . . . . . . . . . . . . . . . . . . . 7
Residential Bathroom . . . . . . . . . . . . . . . . . . . 11
Entry Foyer. . . . . . . . . . . . . . . . . . . . . . . . . . . . . . . 12
Exhibition Design . . . . . . . . . . . . . . . . . . . . . . . . . 14
Travel Agency . . . . . . . . . . . . . . . . . . . . . . . . . . 15
Library . . . . . . . . . . . . . . . . . . . . . . . . . . . . . 16
Desert Resort . . . . . . . . . . . . . . . . . . . . . . . . . . . . . . 19
Paintings . . . . . . . . . . . . . . . . . . . . . . . . . . . . . . 24
Mosaic Designs . . . . . . . . . . . . . . . . . . . . . . . . . . . . . . 25
CONTENTS
1
This luminaire is called, “Hexacomb”, a word
made up of the word ‘hexagon’ and ‘honeycomb’.
The idea developed through a process where
I first considered diffusing the light through
straws, because I was studying what light looks
like through a honeycomb.
I got infatuated with the concept and I played
with Styrofoam cups, straws, and then literally
the hexagonal shape and the structure of the
honeycomb. The science behind it encouraged
me to design three dimensional panels that are
enclosed to diffuse light.
The panels were a reflection of the grid and
pattern of the honeycomb. The sketches illustrate
the thought process and the images depict the
production of the luminaire.
LUMINAIRE
Concept sketches
2
Process
3
B
AA
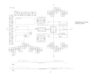
Kinokuniya
The Art Of Making Books
Ground Floor & First Floor
Floor + Finish Plans
Scale 1:75
With advancing technology, the bookstore thrives to
give its customers a large variety of books. Kinokuniya
is a bookstore for all intellectuals, young and old alike,
people who respect diversity in cultures and art enthu-
siasts. Kinokuniya also serves specific audiences with
seperate branches, hence it has a multiple target
audience. Kinokuniya loves art and their first store had
a level for an art gallery. Kinokuniya strives for customer
satisfaction through thorough improvement in their
service (The Spirit of Kaizen); they are very pround of
their excellence in serving their clients through a
comfort of emotion between customers and employ-
ees. The book store also takes pride in actively partici-
pating in their customers lives to provide them with a
platform to grow. The concept for my store thrives to
exhibit these qualities by celebrating the book. The Art
Of Book Making is a conceptual book store where
people can come and read a book, socialize and also
actually get first hand experience in making a book.
This concept is based on the appreciation of how much
effort, thought and energy goes into making a book.
The store has an Atelier where people can work as they
are guided into making books. With a beautiful display
of art, a cafe , public and private reading spaces, a
workshop and books on designing and making books, I
intend for people to appreciat the art of making books
19
2
3
4
5
6
7
8
13
9
11
10
14
12
15
16
17
18
1
21
22
19
20
2
3
4
5
6
7
9
8
12
13
14
10
11
15
16
17
18
1
A
A
B
Black Slate
White Limestone
Glass
Rabia Peerzada
g00038617
IDE 301
Kinokuniya
The Art Of Making Books
Reflected Ceiling Plan
Lighting Fixtures
Scale 1:75
Decorative Pendant Lighting
Floor Lamp & General Lighting
Rabia Peerzada
g00038617
IDE 301
This a design proposal for the bookstore
Kinokuniya. The Japanese bookstore takes
pride in their excellence in service and provides
a platform for individuals of different races,
tastes, religion, artistic intellect to share and
connect. Kinokuniya has a specific regard for
art and design, their first nine level store
had a whole floor dedicated to an art
gallery, and hence I designed a conceptual
store with an atelier, and housed books on the
art of making books.
“Kinokuniya, The Art Of Making Books” would
provide books on fundamentals of designing
and making a book. There would be books on
typography, printmaking, etc. and I made it an
open space that allows transparency and created a
space that allows people to feel the experience of
picking out books and placing them back.
Idesignedglass boxes for people to read inside,
so that they feel like they are immersed in a box
of books. I wanted a phenomenal space, where
people were connected on an hierarchy of levels.
The second floor allowed people to read e-books
and enjoy a cup of tea/coffee in the café.
kinokuniya: the art of making books
4
Kinokuniya
The Art Of Making Books
Axonometric Drawing
Showing Glass Rooms and
Scale 1:75
Exterior Elevations
Showing Facade and Entrance
Scale 1:75
Red Mangaris
1. Entrance
2. Typography
3. Color
4. Print Making
5. Art
6. Language
7. Cashier
8. Emergency Exit
9. Art Supplies
10. Storage
11. Common Reading Space with Art Display
12. Seating and Shelving
13. Seating with Art Display
14. Stairs
15. Art Supplies
16. Craft
17. Visual Communication
18. Graphic Designing
19. Entrance
20. Digital Workstations
21. Work stations
22. Entrance/Exit
1. Gallery
2. Typography
3. Color
4. Print Making
5. Art
6. Language
7. Cashier/Kindle Station & E-books
8. Art Supplies
9. Seating Area for Cafe
10. Art Display
11. Cafe Seating/Bar
12. W/C Male & Female
13. Elevator
14. Cafe Counters
15. Art Supplies
16. Craft
17. Visual Communication
18. Graphic Designing
19. Atelier
Skylight & Recessed Lighting
Glass Rooms
Glass Shelving
Second Floor
Atelier MELROSE AVE
LACIENEGAAVE
NORLANDOAVE
NALFREDST
NCROFTAVENUE
N CR
OFT
AV
E
NORLANDOAVE
NKINGSROAD
CLINTON ST
RA
NG
EL
Y ST
NCROFTAVENUE
MEL
RO
SE
AV
E
MELROSE PLACE
Glass
First Floor
Ground Floor
Rabia Peerzada
g00038617
IDE 301
Showing Facade and Entrance
Scale 1:75
Red Mangaris
1. Entrance
2. Typography
3. Color
4. Print Making
5. Art
6. Language
7. Cashier
8. Emergency Exit
9. Art Supplies
10. Storage
11. Common Reading Space with Art Display
12. Seating and Shelving
13. Seating with Art Display
14. Stairs
15. Art Supplies
16. Craft
17. Visual Communication
18. Graphic Designing
19. Entrance
20. Digital Workstations
21. Work stations
22. Entrance/Exit
1. Gallery
2. Typography
3. Color
4. Print Making
5. Art
6. Language
7. Cashier/Kindle Station & E-books
8. Art Supplies
9. Seating Area for Cafe
10. Art Display
11. Cafe Seating/Bar
12. W/C Male & Female
13. Elevator
14. Cafe Counters
15. Art Supplies
16. Craft
17. Visual Communication
18. Graphic Designing
19. Atelier
Skylight & Recessed Lighting
Glass Rooms
Glass Shelving
Second Floor
Atelier MELROSE AVE
LACIENEGAAVE
N CROFT AVE
NORLANDOAVE
NKINGSROAD
CLINTON ST
RANGELY ST
NCROFTAVENUE
MELROSE AVE
Glass
First Floor
Ground Floor
Rabia Peerzada
5
6
Kinokuniya
The Art Of Making Books
Perspectives & Art Work for Display.
Rabia Peerzada
g00038617
IDE 301
Kinokuniya
The Art Of Making Books
Perspectives & Art Work for Display.
Renderings
7
Plan
Sound Diagram for Ground Floor
Scale 1:75
Plan
Sound Diagram for First Floor
Scale 1:75 9:17 PM
6:00 PM
Talking will be observed mainly in the middle of the
ground floor, with more private conversations happen-
ing at the back and the front. the counter will have que
chit chat.
The sound from the machinery is most active when the
que is long. It is most loudest near the counter, baffled
and diffused towards the entrance, and dies down
going back to the kitchen.
The dancing fountain starts at 9:17, This will affect the
accoustics in the interior greatly. Other sounds from
outdoors are relatively mute indoors. The sound baffles
help beat this interference
Enriching the seeds for tomorrow
cafe
Sound Diagrams
Concept Sketches
Concept Model
For this project, we were each assigned to make a case study of an existing site
at Al-Majaz Waterfront. The site was the Tim Horton's at the waterfront. The
idea was to study the site relating to space, sound, or any physical aspects of the
space. We were then supposed to use this existing site and cafe to develop our
own concept for a coffee house and design it according to our observations of
Tim Horton's.
My case study included a sound analysis of the cafe which was undertaken by
visiting the cafe at different times of the day and night. Following are the sound
diagrams and the project drawings.
8
8714
63601982
Floor and Finish Plan
First Floor
Scale 1:75
D
F
G
E
B
A
A
B
Concrete
4886
3514
2862
3000
3300
Floor and Finsh Plan
Ground Floor
Scale 1:75
AAA
B
C
A
B
A
A
B
ConcreteCork
Section A
Scale 1:50
RCP
Ground Floor
Scale 1:75
Halogen Lamp
Fluorescent Tube
RCP
First Floor
Scale 1:75
Halogen Lamp
Enriching the seeds for tomorrow
Section B
Scale 1:50
Circulation
Program Diagram
N
N
LEGEND
A. Seating (Private)
B. Seating (Private)
C. Elevator/Stairs
D. Shelving
E. Shelving
F. Seating (Public)
G. Counter
H. Seating (Semi Private)
I. Seating Punlic
J. Screen
K. Conference Room
LEGEND
A. Elevator/Stairs
B. Seating
C. Study Seating
D. Open Computer Lab
E. Shelving Coffee
F. Learning Center
G. Learning Center
H. Restrooms
I. Roastary
J. Storage
A B
J
H
D
I
G
I
H
C
J
F
D
E
G
B
E
F
C
A
K
8714
63601982
Floor and Finish Plan
First Floor
Scale 1:75
D
F
G
E
B
A
A
B
Concrete
4886
3514
2862
3000
3300
Floor and Finsh Plan
Ground Floor
Scale 1:75
AAA
B
C A
B
A
A
B
ConcreteCork
Section A
Scale 1:50
RCP
Ground Floor
Scale 1:75
Halogen Lamp
Fluorescent Tube
RCP
First Floor
Scale 1:75
Halogen Lamp
Enriching the seeds for tomorrow
Section B
Scale 1:50
Circulation
Program Diagram
N
N
LEGEND
A. Seating (Private)
B. Seating (Private)
C. Elevator/Stairs
D. Shelving
E. Shelving
F. Seating (Public)
G. Counter
H. Seating (Semi Private)
I. Seating Punlic
J. Screen
K. Conference Room
LEGEND
A. Elevator/Stairs
B. Seating
C. Study Seating
D. Open Computer Lab
E. Shelving Coffee
F. Learning Center
G. Learning Center
H. Restrooms
I. Roastary
J. Storage
A B
J
H
D
I
G
I
H
C
J
F
D
E
G
B
E
F
C
A
K
The idea behind this concept is the ‘idea’. I wanted to design
a space for philosophers and thinkers who want to escape the
outside world and find themselves in a place where they can
interact with their like, or simple sit, have a cup of coffee and
think about the world they live in.
With contemporary news on LED beams, the customers are
encouraged to be involved in the world around them. They
can simply plug into the beams and get live feed from the class
taking place upstairs or just more brain food about coffee
and its wonders. The learning center encourages customers
to learn about coffee, as customers can choose from a wide
variety of coffee beans in house. They are involved in the act of
selecting the coffee bean and handing it over to the roaster, or
the staff to have it freshly roasted for them. The coffee house
truly encourages customers to be active participants of coffee
drinking and making, while displaying the love for intellectual
conversations over coffee.
63601982
B
3514
B
Plan
Sound Diagram for Ground Floor
Scale 1:75
Plan
Sound Diagram for First Floor
Scale 1:75 9:17 PM
6:00 PM
Talking will be observed mainly in the middle of the
ground floor, with more private conversations happen-
ing at the back and the front. the counter will have que
chit chat.
The sound from the machinery is most active when the
que is long. It is most loudest near the counter, baffled
and diffused towards the entrance, and dies down
going back to the kitchen.
The dancing fountain starts at 9:17, This will affect the
accoustics in the interior greatly. Other sounds from
outdoors are relatively mute indoors. The sound baffles
help beat this interference
Enriching the seeds for tomorrow
J
Floor and Finish Plan - Ground Floor
Floor and Finish Plan - First Floor
RCP - Ground Floor Branding
RCP - First Floor
63601982
B
3514
B
Plan
Sound Diagram for Ground Floor
Scale 1:75
Plan
Sound Diagram for First Floor
Scale 1:75 9:17 PM
6:00 PM
Talking will be observed mainly in the middle of the
ground floor, with more private conversations happen-
ing at the back and the front. the counter will have que
chit chat.
The sound from the machinery is most active when the
que is long. It is most loudest near the counter, baffled
and diffused towards the entrance, and dies down
going back to the kitchen.
The dancing fountain starts at 9:17, This will affect the
accoustics in the interior greatly. Other sounds from
outdoors are relatively mute indoors. The sound baffles
help beat this interference
Seating
Kitchen
Seating/Reading/Socializing
Conference Room
Seating
Storage
Roastary Area
Rest Rooms M/F
Learning Center
(Machines/Equipment)
Learning Center (students)
Circulation
Program Diagram
Enriching the seeds for tomorrow
J
Plan
Sound Diagram for Ground Floor
Scale 1:75
Plan
Sound Diagram for First Floor
Scale 1:75 9:17 PM
6:00 PM
Talking will be observed mainly in the middle of the
ground floor, with more private conversations happen-
ing at the back and the front. the counter will have que
chit chat.
The sound from the machinery is most active when the
que is long. It is most loudest near the counter, baffled
and diffused towards the entrance, and dies down
going back to the kitchen.
The dancing fountain starts at 9:17, This will affect the
accoustics in the interior greatly. Other sounds from
outdoors are relatively mute indoors. The sound baffles
help beat this interference
Seating
Kitchen
Seating/Reading/Socializing
Conference Room
Seating
Storage
Roastary Area
Rest Rooms M/F
Learning Center
(Machines/Equipment)
Learning Center (students)
Circulation
Program Di
Circulation Diagram
9
Section A
Scale 1:50
Elevation A
Scale 1:50
Elevation B
Scale 1:50
Elevation C
Scale 1:50
RCP
Ground Floor
Scale 1:75
Halogen Lamp
Fluorescent Tube
RCP
First Floor
Scale 1:75
Halogen Lamp
Enriching the seeds for tomorrow
Section B
Scale 1:50
Enriching the seeds for tomorrow
Section G
Scale 1:50
3500
0
4100
0
Section A
Scale 1:50
Elevation A
Scale 1:50
Elevation B
Scale 1:50
Elevation C
Scale 1:50
Halogen Lamp
Fluorescent Tube
ogen Lamp
Enriching the seeds for tomorrow
Section B
Scale 1:50
Enriching the seeds for tomorrow
Section G
Scale 1:50
3500
0
4100
4100
0
0
Sections
10
Elevation A
Scale 1:50
Elevation B
Scale 1:50
Elevation C
Scale 1:50
Enriching the seeds for tomorrow
Section D
Scale 1:50
Section E
Scale 1:50
Section F
Scale 1:50
Section G
Scale 1:50
Enriching the seeds for tomorrow
Enriching
the seeds
for tomorrow
Enriching the seeds for tomorrow
Enriching the seeds for tomorrow
The idea behind this concept is the‘idea’. I wanted to design a space for philosophers and thinkers who want to escape the outside world and find themselves in a
place where they can interact with their like, or simple sit, have a cup of coffee and think about the world they live in. With contemporary news on LED beams, the
customers are encouraged to be involved in the world around them. They can simply plug into the beams and get live feed from the class taking place upstairs or
just more brain food about coffee and its wonders. The learning center encourages customers to learn about coffee, as customers can choose from a wide variety of
coffee beans in house. They are involved in the act of selecting the coffee bean and handing it over to the roaster, or the staff to have it freshly roasted for them. The
coffee house truly encourages customers to be active participants of coffee drinking and making, while displaying the love for intellectual conversations over coffee.
Cogito Ergo Sum - Rene Descartes
3500
0
4100
4100
4100
4100
4100
0
0
0
0
0
Elevation A
Scale 1:50
Elevation B
Scale 1:50
Elevation C
Scale 1:50
Enriching the seeds for tomorrow
Section D
Scale 1:50
Section E
Scale 1:50
Section F
Scale 1:50
Section G
Scale 1:50
Enriching the seeds for tomorrow
Enriching
the seeds
for tomorrow
Enriching the seeds for tomorrow
Enriching the seeds for tomorrow
The idea behind this concept is the‘idea’. I wanted to design a space for philosophers and thinkers who want to escape the outside world and find themselves in a
place where they can interact with their like, or simple sit, have a cup of coffee and think about the world they live in. With contemporary news on LED beams, the
customers are encouraged to be involved in the world around them. They can simply plug into the beams and get live feed from the class taking place upstairs or
just more brain food about coffee and its wonders. The learning center encourages customers to learn about coffee, as customers can choose from a wide variety of
coffee beans in house. They are involved in the act of selecting the coffee bean and handing it over to the roaster, or the staff to have it freshly roasted for them. The
coffee house truly encourages customers to be active participants of coffee drinking and making, while displaying the love for intellectual conversations over coffee.
Cogito Ergo Sum - Rene Descartes
3500
0
4100
4100
4100
4100
4100
0
0
0
0
0
A
B
C
Enriching the seeds for tomorrow
Section D
Scale 1:50
Section E
Scale 1:50
Section F
Scale 1:50
Enriching the seeds for tomorrow
Enriching
the seeds
for tomorrow
Enriching the seeds for tomorrow
Enriching the seeds for tomorrow
Rabia Peerzada 38617
IDE 401 - Professor Maria Mortera
American University of Sharjah AUS
The idea behind this concept is the‘idea’. I wanted to design a space for philosophers and thinkers who want to escape the outside world and find themselves in a
place where they can interact with their like, or simple sit, have a cup of coffee and think about the world they live in. With contemporary news on LED beams, the
customers are encouraged to be involved in the world around them. They can simply plug into the beams and get live feed from the class taking place upstairs or
just more brain food about coffee and its wonders. The learning center encourages customers to learn about coffee, as customers can choose from a wide variety of
coffee beans in house. They are involved in the act of selecting the coffee bean and handing it over to the roaster, or the staff to have it freshly roasted for them. The
coffee house truly encourages customers to be active participants of coffee drinking and making, while displaying the love for intellectual conversations over coffee.
Cogito Ergo Sum - Rene Descartes
4100
4100
4100
4100
4100
0
0
0
0
0
Elevations
Elevations
Elevation D
Scale 1:50
Elevation E
Scale 1:50
Elevation F
Scale 1:50
11
t-
e-
ri-
s.
tc.
e-
al-
e
ms
l,
-
es,
al
Elevation A
Tile from
Bisazza
Paint
Ceiling
Paint
Wall
Extended Counter
Storage Under
Counter
Shelving - Niche
Stepped Counters -
Strorage
Clothes/Towel Hanging
Bars
Window over W/C
Ventilation above
800 mm 600 mm
800
mm
Plan 1:10
Bathing/Showering
Bidet
W/C
Sink
0 2
da
l
m required at-
xture require-
duced to vari-
loor finishes.
gram that
bidet, W/C etc.
our space
given to us
aller than pre-
it was a chal-
or the bath-
y informative
om fixtures,
alled in terms
ons. Over all,
d us to bath-
s such as tiles,
the technical
xtures for a
Elevation A
Tile from
Bisazza
Paint
Ceiling
Paint
Wall
Extended Counter
Storage Under
Counter
Shelving - Niche
Stepped Counters -
Strorage
Clothes/Towel Hanging
Bars
Window over W/C
Ventilation above
800 mm 600 mm
800
mm
Bathing/Showering
Bidet
W/C
Sink
My concept for designing a bathroom came from a glance of a
forest. I wanted my bathroom to be a depiction of nature, not
literally, but through colors and the illusion of space.
I chose green tiling to reflect trees, and blue to reflect infinity
and the skies. The blue on the ceiling would also create an
illusion of depth.
residential bathroom
1
Rendering
12
Residential
Foyer/Entrance
.
1500mm
2000mm Entrance
Niche - Art Work Niche - Art Work
Seating/Waiting Area
2000mm
Formal Living
Room
2000mm
Formal Dining
Room
800mm
Family Living
Room
Waiting Area
Short Visit
Console And
Mirror In Niche
Plaster Mouldings
Plaster Cornice
1600mm
3200mm
Arte
Wood Flooring
Azure Blue
Paint on walls
Marble Flooring
Elevation A
Scale 1:25
Elevation B
Scale 1:25
Elevation C
Scale 1:25
Plasterwork, Cornice and Plaster Mouldings
Door Specification:
Wall scones
PLAN
Scale 1:25
Residential
Foyer/Entrance
.
1500mm
2000mm Entrance
Niche - Art Work Niche - Art Work
Seating/Waiting Area
2000mm
Formal Living
Room
2000mm
Formal Dining
Room
800mm
Family Living
Room
Waiting Area
Short Visit
Console And
Mirror In Niche
Plaster Mouldings
Plaster Cornice
1600mm
3200mm
Arte
Wood Flooring
Azure Blue
Paint on walls
Marble Flooring
Elevation A
Scale 1:25
Elevation B
Scale 1:25
Elevation C
Scale 1:25
Plasterwork, Cornice and Plaster Mouldings
Door Specification:
Wall scones
PLAN
Scale 1:25
Residential
Foyer/Entrance
.
1500mm
2000mm Entrance
Niche - Art Work Niche - Art Work
Seating/Waiting Area
2000mm
Formal Living
Room
2000mm
Formal Dining
Room
800mm
Family Living
Room
Waiting Area
Short Visit
Console And
Mirror In Niche
Plaster Mouldings
Plaster Cornice
1600mm
3200mm
Arte
Wood Flooring
Azure Blue
Paint on walls
Marble Flooring
Elevation A
Scale 1:25
Elevation B
Scale 1:25
Elevation C
Scale 1:25
Plasterwork, Cornice and Plaster Mouldings
Door Specification:
Wall scones
PLAN
Scale 1:25
1500mm
2000mm Entrance
Niche - Art Work Niche - Art Work
Seating/Waiting Area
2000mm
Formal Living
Room
2000mm
Formal Dining
Room
800mm
Family Living
Room
Waiting Area
Short Visit
Console And
Mirror In Niche
Plaster Mouldings
Plaster Cornice
1600mm
3200mm
Arte
Wood Flooring
Azure Blue
Paint on walls
Marble Flooring
Elevation A
Scale 1:25
Plasterwork, Cornice and Plaster
Door Specification:
PLAN
Scale 1:25
Residential
Foyer/Entrance
.
1500mm
2000mm Entrance
Niche - Art Work Niche - Art Work
Seating/Waiting Area
2000mm
Formal Living
Room
2000mm
Formal Dining
Room
800mm
Family Living
Room
Waiting Area
Short Visit
Console And
Mirror In Niche
Plaster Mouldings
Plaster Cornice
1600mm
3200mm
Arte
Wood Flooring
Azure Blue
Paint on walls
Marble Flooring
Elevation A
Scale 1:25
Elevation B
Scale 1:25
Elevation C
Scale 1:25
Plasterwork, Cornice and Plaster Mouldings
Door Specification:
Wall scones
PLAN
Scale 1:25
Residential
Foyer/Entrance
.
1500mm
2000mm Entrance
Niche - Art Work Niche - Art Work
Seating/Waiting Area
2000mm
Formal Living
Room
2000mm
Formal Dining
Room
800mm
Family Living
Room
Waiting Area
Short Visit
Console And
Mirror In Niche
Plaster Mouldings
Plaster Cornice
1600mm
3200mm
Arte
Wood Flooring
Azure Blue
Paint on walls
Marble Flooring
Elevation A
Scale 1:25
Elevation B
Scale 1:25
Elevation C
Scale 1:25
Plasterwork, Cornice and Plaster Mouldings
Door Specification:
Wall scones
PLAN
Scale 1:25
Residential
Foyer/Entrance
.
1500mm
2000mm Entrance
Niche - Art Work Niche - Art Work
Seating/Waiting Area
2000mm
Formal Living
Room
2000mm
Formal Dining
Room
800mm
Family Living
Room
Waiting Area
Short Visit
Console And
Mirror In Niche
Plaster Mouldings
Plaster Cornice
1600mm
3200mm
Arte
Wood Flooring
Azure Blue
Paint on walls
Marble Flooring
Elevation A
Scale 1:25
Elevation B
Scale 1:25
Elevation C
Scale 1:25
Plasterwork, Cornice and Plaster Mouldings
Door Specification:
Wall scones
PLAN
Scale 1:25
This project required us to research and develop
an entry foyer based on an architectural period
from the past. I chose to design and reflect on
‘Rococo’, from the Renaissance.
I separated the meeting area and the entrance to
create a threshold where people can either wait, fix
their make-up/clothes, etc.
The proposed design had marble flooring,
moldings and the overall color scheme is Prussian
blue and white.
entry foyer
Aerial view sketch
13
1500mm
2000mm Entrance
Niche - Art Work Niche - Art Work
Seating/Waiting Area
2000mm
Formal Living
Room
2000mm
Formal Dining
Room
800mm
Family Living
Room
Waiting Area
Short Visit
Console And
Mirror In Niche
Plaster Mouldings
Plaster Cornice
1600mm
3200mm
Arte
Wood Flooring
Azure Blue
Paint on walls
Marble Flooring
Elevation A
Scale 1:25
Elevation B
Scale 1:25
Elevation C
Scale 1:25
Plasterwork, Cornice and Plaster Mouldings
Door Specification:
Wall scones
PLAN
Scale 1:25
1500mm
2000mm Entrance
Waiting Area
Short Visit
Console And
Mirror In Niche
1600mm
ArteMarble Flooring
Elevation A
Scale 1:25
Elevation B
Scale 1:25
Elevation C
Scale 1:25
Plasterwork, Cornice and Plaster Mouldings
Door Specification:
Wall scones
PLAN
Scale 1:25
1500mm
2000mm Entrance
Niche - Art Work Niche - Art Work
Seating/Waiting Area
2000mm
Formal Living
Room
2000mm
Formal Dining
Room
800mm
Family Living
Room
Waiting Area
Short Visit
Console And
Mirror In Niche
Plaster Mouldings
Plaster Cornice
1600mm
3200mm
Arte
Wood Flooring
Azure Blue
Paint on walls
Marble Flooring
Elevation A
Scale 1:25
Plasterwork, Cornice and Plaster Mouldings
Door Specification:
Wall scones
PLAN
Scale 1:25
14
I D E 2 0 2
Rabia Peerzada
Exhibition Design
Paul Smith
Apart from coming into contact with
real clients and getting to speak to
brand managers about their percep-
tion of brands, through this assign-
ment I understood how to design
space conceptually.
One important thing that we all
learnt was how clients will speak to
you about their brand/image.
It is upon the designer to potray the
best of the brand through its history.
I also learnt the importance of
branding and how it affects the
overall image of a company.
One of the challenges I faced was
that it was difficult to design in three
dimensions at the begining.
I understood relationships of ob-
jects in space to one another.
There was alot to learn through this
project, and it was a chellenging
task to percieve a brand through an
exhibition space.
Elevation A
Elevation B
PLAN
1:20
Phonebooth
Jukebox
Display
Path
Elevation A
Elevation B
Paint on walls - Grey
I D E 2 0 2
Rabia Peerzada
Exhibition Design
Paul Smith
Apart from coming into contact with
real clients and getting to speak to
brand managers about their percep-
tion of brands, through this assign-
ment I understood how to design
space conceptually.
One important thing that we all
learnt was how clients will speak to
you about their brand/image.
It is upon the designer to potray the
best of the brand through its history.
I also learnt the importance of
branding and how it affects the
overall image of a company.
One of the challenges I faced was
that it was difficult to design in three
dimensions at the begining.
I understood relationships of ob-
jects in space to one another.
There was alot to learn through this
project, and it was a chellenging
task to percieve a brand through an
exhibition space.
Elevation A
Elevation B
PLAN
1:20
Phonebooth
Jukebox
Display
Path
Elevation A
Elevation B
Paint on walls - Grey
Travel Agency
Typology-Visitor
Chairs
S6
I D E 2 0 2
Rabia Peerzada
Exhibition Design
Paul Smith
Apart from coming into contact with
real clients and getting to speak to
brand managers about their percep-
tion of brands, through this assign-
ment I understood how to design
space conceptually.
One important thing that we all
learnt was how clients will speak to
you about their brand/image.
It is upon the designer to potray the
best of the brand through its history.
I also learnt the importance of
branding and how it affects the
overall image of a company.
One of the challenges I faced was
that it was difficult to design in three
dimensions at the begining.
I understood relationships of ob-
jects in space to one another.
There was alot to learn through this
project, and it was a chellenging
task to percieve a brand through an
exhibition space.
Elevation A
Elevation B
PLAN
1:20
Phonebooth
Jukebox
Display
Path
Elevation A
Elevation B
Paint on walls - Grey
Travel AgencyS6
The concept for the exhibition
space for Paul Smith was
derived from their striped
logo. I created a space by
extrapolating a shelving/display
unit from the stripes of a logo.
The idea was to display and
portray the crazy, eccentric and
colorful world of Paul Smith.
The brand represents disregard
to conformity, it represents
the coming together of diverse
cultures, it represents the
eccentric side of people and
hence I tried to depict the brand
image through their beliefs and
the inspirations that drive them.
I created an exhibition space
where the world of Paul Smith
would be displayed for visitors.
exhibition
design
Sketches
15
PLAN
1:20
Elevation B
Paint on walls - Grey
Travel Agency
Typology-
South Pacific
PLAN
Facade Elevation
Scale 1:20
Elevation B
Scale 1:20
Elevation A
Scale 1:20
Meeting
Private Office
Waiting
Area
Pantry
Visitor
Chairs
Printer +
Shelving
on top
Work stations
S1
S4
S2
S3
S5
S6
S - Shelving
Bamboo
PLAN
1:20
Elevation B
Paint on walls - Grey
Travel Agency
Typology-
South Pacific
PLAN
Facade Elevation
Scale 1:20
Elevation B
Scale 1:20
Elevation A
Scale 1:20
Meeting
Private Office
Waiting
Area
Pantry
Visitor
Chairs
Printer +
Shelving
on top
Work stations
S1
S4
S2
S3
S5
S6
S - Shelving
Bamboo
Elevation B
Travel Agency
Typology-
South Pacific
AN
acade Elevation
ale 1:20
Elevation B
Scale 1:20
Elevation A
Scale 1:20
Meeting
Private Office
Waiting
Area
Pantry
Visitor
Chairs
Printer +
Shelving
on top
Work stations
S1
S4
S2
S3
S5
S6
S - Shelving
Bamboo
The travel typology I got was
the South Pacific. I designed
the travel agency and the
logo, “Beyond Horizons”, and
created a space that reflected
what it would feel like to be
in the South Pacific islands. I
used straw and wood to create
a warm space, and reflected
the overall space as a water
bungalow. The idea was that
the customers would feel like
they are inside the space they
would inhabit once they are on
one of the islands.
travel
agency
Branding
16
Working and abstracting from Mondrian’s painting, we developed
compositions that later became space plans. Our agenda was to
create a reading space after the plan had been resolved. I created a
library for designers, and opted for the concept of discontinuity.
library
17
18
These hand-rendered perspectives depict how visitors would
inhabit the space. Here you can see how the shelving units separate
one space from another, creating a hierarchy between function
and space.
Renderings
19
Concept Process
The idea was to celebrate the vastness of the desert, while looking at its dunes and the fragments of
the desert.
Concept Process
The idea was to celebrate the vastness of the desert, while looking at its dunes and the fragments of
the desert.
desert resort
For this project, we were given a master plan of an existing desert
resort, and we were asked to design a concept for a desert resort.
In the initial stages, we were asked to make a case study and
come up with a concept.
The idea was to celebrate the vastness of the desert, while looking
at its dunes and the fragments of the desert.
Business Case Study - Qasar al Sarab
by Anantara, Abu Dhabi
Anantara Suite: 2-3 persons
1 Bedroom Pool Villa: 1-2 persons
2 Bedroom Family Anantara Pool Villa: 2-4 persons
3 Bedroom Family Anantara Pool Villa: 4-6 persons
Concept work
20
AA
A
BB
Double Rooms
Suite
Storage
Kitchen+
Restaurant
Offices
Offices
Lobby
ReceptionMeeting Areas
Common Pool and Showers
Club House
Spa
Section A
Scale 1:400
Master Plan Resort
Scale 1:400
Section B
Scale 1:400
22 Double Rooms for 2 to 3 persons
Desert Resort
AA
A
BB
Double Rooms
Suite
Storage
Kitchen+
Restaurant
Offices
Offices
Lobby
ReceptionMeeting Areas
Common Pool and Showers
Club House
Spa
Section A
Scale 1:400
Master Plan Resort
Scale 1:400
Section B
Scale 1:400
22 Double Rooms for 2 to 3 persons
11 Suits for 3-4 persons
Inspirational Projects
Desert Resort
Master plan
22 Double Rooms for 2-3 persons
11 Suites for 3-4 persons
21
Axonometric
Interior
Wallpaper
Paint
Tile
Dessert Resort - Suite and Double Room Concept
Axonometric
Interior
Wallpaper
Paint
Tile
Wood
Fabrics
Dessert Resort - Suite and Double Room Concept
Axonometric
Interior
Wallpaper
Paint
Dessert Resort - Suite and Double Room Concept
SectionsPlans
22
Axonometric
Exterior
Wallpaper
Paint
Tile
Axonometric
Exterior
Interior
Wallpaper
Paint
Tile
Wood
Fabrics
Exterior
Wood
Bed by Modloft
Citterio ViSofa
Exterior
per
Paint
Tile
Wood
Fabrics
Flexform by ABC
Bed by Modloft
Vases by ASA
Citterio ViSofa
Rabia Peerzada 38617
Axonometric
Exterior
Interior
Wallpaper
Paint
Tile
Wood
Fabrics
Flexform by ABC
Bed by Modloft
Vases by ASA
Citterio ViSofa
Rabia Peerzada 38617
Axonometric
Exterior
Interior
Wallpaper
Paint
Tile
Wood
Fabrics
Flexform by ABC
Bed by Modloft
Vases by ASA
Citterio ViSofa
Axonometric
Exterior
Interior
Wallpaper
Paint
Tile
Wood
Fabrics
Flexform by ABC
Bed by Modloft
Vases by ASA
Citterio ViSofa
Rabia Peerzada 38617
Axonometric
Exterior Citterio ViSofa Flexform by ABC Bed by Modloft Vases by ASA
Interior
Facade
Entry Foyer
Hallway Bedroom
Swimming Pool Area
Swimming Pool Area
Living Room
24
paintings
25
mosaic designs
These mosiac designs are from a Foundations project in
which we had to design for a mosaic that we had to build
with clay. The process involved several iterations and
layering of designs to finally generate a series of mosaics.

Rabia Portfolio (LowRes)

  • 1.
  • 2.
    1 Luminaire . .. . . . . . . . . . . . . . . . . . . . . . . . 1 Kinokuniya . . . . . . . . . . . . . . . . . . . . . . . . . . . . . . 3 Cafe . . . . . . . . . . . . . . . . . . . . . . . . . . . . . . . 7 Residential Bathroom . . . . . . . . . . . . . . . . . . . 11 Entry Foyer. . . . . . . . . . . . . . . . . . . . . . . . . . . . . . . 12 Exhibition Design . . . . . . . . . . . . . . . . . . . . . . . . . 14 Travel Agency . . . . . . . . . . . . . . . . . . . . . . . . . . 15 Library . . . . . . . . . . . . . . . . . . . . . . . . . . . . . 16 Desert Resort . . . . . . . . . . . . . . . . . . . . . . . . . . . . . . 19 Paintings . . . . . . . . . . . . . . . . . . . . . . . . . . . . . . 24 Mosaic Designs . . . . . . . . . . . . . . . . . . . . . . . . . . . . . . 25 CONTENTS
  • 3.
    1 This luminaire iscalled, “Hexacomb”, a word made up of the word ‘hexagon’ and ‘honeycomb’. The idea developed through a process where I first considered diffusing the light through straws, because I was studying what light looks like through a honeycomb. I got infatuated with the concept and I played with Styrofoam cups, straws, and then literally the hexagonal shape and the structure of the honeycomb. The science behind it encouraged me to design three dimensional panels that are enclosed to diffuse light. The panels were a reflection of the grid and pattern of the honeycomb. The sketches illustrate the thought process and the images depict the production of the luminaire. LUMINAIRE Concept sketches
  • 4.
  • 5.
    3 B AA Kinokuniya The Art OfMaking Books Ground Floor & First Floor Floor + Finish Plans Scale 1:75 With advancing technology, the bookstore thrives to give its customers a large variety of books. Kinokuniya is a bookstore for all intellectuals, young and old alike, people who respect diversity in cultures and art enthu- siasts. Kinokuniya also serves specific audiences with seperate branches, hence it has a multiple target audience. Kinokuniya loves art and their first store had a level for an art gallery. Kinokuniya strives for customer satisfaction through thorough improvement in their service (The Spirit of Kaizen); they are very pround of their excellence in serving their clients through a comfort of emotion between customers and employ- ees. The book store also takes pride in actively partici- pating in their customers lives to provide them with a platform to grow. The concept for my store thrives to exhibit these qualities by celebrating the book. The Art Of Book Making is a conceptual book store where people can come and read a book, socialize and also actually get first hand experience in making a book. This concept is based on the appreciation of how much effort, thought and energy goes into making a book. The store has an Atelier where people can work as they are guided into making books. With a beautiful display of art, a cafe , public and private reading spaces, a workshop and books on designing and making books, I intend for people to appreciat the art of making books 19 2 3 4 5 6 7 8 13 9 11 10 14 12 15 16 17 18 1 21 22 19 20 2 3 4 5 6 7 9 8 12 13 14 10 11 15 16 17 18 1 A A B Black Slate White Limestone Glass Rabia Peerzada g00038617 IDE 301 Kinokuniya The Art Of Making Books Reflected Ceiling Plan Lighting Fixtures Scale 1:75 Decorative Pendant Lighting Floor Lamp & General Lighting Rabia Peerzada g00038617 IDE 301 This a design proposal for the bookstore Kinokuniya. The Japanese bookstore takes pride in their excellence in service and provides a platform for individuals of different races, tastes, religion, artistic intellect to share and connect. Kinokuniya has a specific regard for art and design, their first nine level store had a whole floor dedicated to an art gallery, and hence I designed a conceptual store with an atelier, and housed books on the art of making books. “Kinokuniya, The Art Of Making Books” would provide books on fundamentals of designing and making a book. There would be books on typography, printmaking, etc. and I made it an open space that allows transparency and created a space that allows people to feel the experience of picking out books and placing them back. Idesignedglass boxes for people to read inside, so that they feel like they are immersed in a box of books. I wanted a phenomenal space, where people were connected on an hierarchy of levels. The second floor allowed people to read e-books and enjoy a cup of tea/coffee in the café. kinokuniya: the art of making books
  • 6.
    4 Kinokuniya The Art OfMaking Books Axonometric Drawing Showing Glass Rooms and Scale 1:75 Exterior Elevations Showing Facade and Entrance Scale 1:75 Red Mangaris 1. Entrance 2. Typography 3. Color 4. Print Making 5. Art 6. Language 7. Cashier 8. Emergency Exit 9. Art Supplies 10. Storage 11. Common Reading Space with Art Display 12. Seating and Shelving 13. Seating with Art Display 14. Stairs 15. Art Supplies 16. Craft 17. Visual Communication 18. Graphic Designing 19. Entrance 20. Digital Workstations 21. Work stations 22. Entrance/Exit 1. Gallery 2. Typography 3. Color 4. Print Making 5. Art 6. Language 7. Cashier/Kindle Station & E-books 8. Art Supplies 9. Seating Area for Cafe 10. Art Display 11. Cafe Seating/Bar 12. W/C Male & Female 13. Elevator 14. Cafe Counters 15. Art Supplies 16. Craft 17. Visual Communication 18. Graphic Designing 19. Atelier Skylight & Recessed Lighting Glass Rooms Glass Shelving Second Floor Atelier MELROSE AVE LACIENEGAAVE NORLANDOAVE NALFREDST NCROFTAVENUE N CR OFT AV E NORLANDOAVE NKINGSROAD CLINTON ST RA NG EL Y ST NCROFTAVENUE MEL RO SE AV E MELROSE PLACE Glass First Floor Ground Floor Rabia Peerzada g00038617 IDE 301 Showing Facade and Entrance Scale 1:75 Red Mangaris 1. Entrance 2. Typography 3. Color 4. Print Making 5. Art 6. Language 7. Cashier 8. Emergency Exit 9. Art Supplies 10. Storage 11. Common Reading Space with Art Display 12. Seating and Shelving 13. Seating with Art Display 14. Stairs 15. Art Supplies 16. Craft 17. Visual Communication 18. Graphic Designing 19. Entrance 20. Digital Workstations 21. Work stations 22. Entrance/Exit 1. Gallery 2. Typography 3. Color 4. Print Making 5. Art 6. Language 7. Cashier/Kindle Station & E-books 8. Art Supplies 9. Seating Area for Cafe 10. Art Display 11. Cafe Seating/Bar 12. W/C Male & Female 13. Elevator 14. Cafe Counters 15. Art Supplies 16. Craft 17. Visual Communication 18. Graphic Designing 19. Atelier Skylight & Recessed Lighting Glass Rooms Glass Shelving Second Floor Atelier MELROSE AVE LACIENEGAAVE N CROFT AVE NORLANDOAVE NKINGSROAD CLINTON ST RANGELY ST NCROFTAVENUE MELROSE AVE Glass First Floor Ground Floor Rabia Peerzada
  • 7.
  • 8.
    6 Kinokuniya The Art OfMaking Books Perspectives & Art Work for Display. Rabia Peerzada g00038617 IDE 301 Kinokuniya The Art Of Making Books Perspectives & Art Work for Display. Renderings
  • 9.
    7 Plan Sound Diagram forGround Floor Scale 1:75 Plan Sound Diagram for First Floor Scale 1:75 9:17 PM 6:00 PM Talking will be observed mainly in the middle of the ground floor, with more private conversations happen- ing at the back and the front. the counter will have que chit chat. The sound from the machinery is most active when the que is long. It is most loudest near the counter, baffled and diffused towards the entrance, and dies down going back to the kitchen. The dancing fountain starts at 9:17, This will affect the accoustics in the interior greatly. Other sounds from outdoors are relatively mute indoors. The sound baffles help beat this interference Enriching the seeds for tomorrow cafe Sound Diagrams Concept Sketches Concept Model For this project, we were each assigned to make a case study of an existing site at Al-Majaz Waterfront. The site was the Tim Horton's at the waterfront. The idea was to study the site relating to space, sound, or any physical aspects of the space. We were then supposed to use this existing site and cafe to develop our own concept for a coffee house and design it according to our observations of Tim Horton's. My case study included a sound analysis of the cafe which was undertaken by visiting the cafe at different times of the day and night. Following are the sound diagrams and the project drawings.
  • 10.
    8 8714 63601982 Floor and FinishPlan First Floor Scale 1:75 D F G E B A A B Concrete 4886 3514 2862 3000 3300 Floor and Finsh Plan Ground Floor Scale 1:75 AAA B C A B A A B ConcreteCork Section A Scale 1:50 RCP Ground Floor Scale 1:75 Halogen Lamp Fluorescent Tube RCP First Floor Scale 1:75 Halogen Lamp Enriching the seeds for tomorrow Section B Scale 1:50 Circulation Program Diagram N N LEGEND A. Seating (Private) B. Seating (Private) C. Elevator/Stairs D. Shelving E. Shelving F. Seating (Public) G. Counter H. Seating (Semi Private) I. Seating Punlic J. Screen K. Conference Room LEGEND A. Elevator/Stairs B. Seating C. Study Seating D. Open Computer Lab E. Shelving Coffee F. Learning Center G. Learning Center H. Restrooms I. Roastary J. Storage A B J H D I G I H C J F D E G B E F C A K 8714 63601982 Floor and Finish Plan First Floor Scale 1:75 D F G E B A A B Concrete 4886 3514 2862 3000 3300 Floor and Finsh Plan Ground Floor Scale 1:75 AAA B C A B A A B ConcreteCork Section A Scale 1:50 RCP Ground Floor Scale 1:75 Halogen Lamp Fluorescent Tube RCP First Floor Scale 1:75 Halogen Lamp Enriching the seeds for tomorrow Section B Scale 1:50 Circulation Program Diagram N N LEGEND A. Seating (Private) B. Seating (Private) C. Elevator/Stairs D. Shelving E. Shelving F. Seating (Public) G. Counter H. Seating (Semi Private) I. Seating Punlic J. Screen K. Conference Room LEGEND A. Elevator/Stairs B. Seating C. Study Seating D. Open Computer Lab E. Shelving Coffee F. Learning Center G. Learning Center H. Restrooms I. Roastary J. Storage A B J H D I G I H C J F D E G B E F C A K The idea behind this concept is the ‘idea’. I wanted to design a space for philosophers and thinkers who want to escape the outside world and find themselves in a place where they can interact with their like, or simple sit, have a cup of coffee and think about the world they live in. With contemporary news on LED beams, the customers are encouraged to be involved in the world around them. They can simply plug into the beams and get live feed from the class taking place upstairs or just more brain food about coffee and its wonders. The learning center encourages customers to learn about coffee, as customers can choose from a wide variety of coffee beans in house. They are involved in the act of selecting the coffee bean and handing it over to the roaster, or the staff to have it freshly roasted for them. The coffee house truly encourages customers to be active participants of coffee drinking and making, while displaying the love for intellectual conversations over coffee. 63601982 B 3514 B Plan Sound Diagram for Ground Floor Scale 1:75 Plan Sound Diagram for First Floor Scale 1:75 9:17 PM 6:00 PM Talking will be observed mainly in the middle of the ground floor, with more private conversations happen- ing at the back and the front. the counter will have que chit chat. The sound from the machinery is most active when the que is long. It is most loudest near the counter, baffled and diffused towards the entrance, and dies down going back to the kitchen. The dancing fountain starts at 9:17, This will affect the accoustics in the interior greatly. Other sounds from outdoors are relatively mute indoors. The sound baffles help beat this interference Enriching the seeds for tomorrow J Floor and Finish Plan - Ground Floor Floor and Finish Plan - First Floor RCP - Ground Floor Branding RCP - First Floor 63601982 B 3514 B Plan Sound Diagram for Ground Floor Scale 1:75 Plan Sound Diagram for First Floor Scale 1:75 9:17 PM 6:00 PM Talking will be observed mainly in the middle of the ground floor, with more private conversations happen- ing at the back and the front. the counter will have que chit chat. The sound from the machinery is most active when the que is long. It is most loudest near the counter, baffled and diffused towards the entrance, and dies down going back to the kitchen. The dancing fountain starts at 9:17, This will affect the accoustics in the interior greatly. Other sounds from outdoors are relatively mute indoors. The sound baffles help beat this interference Seating Kitchen Seating/Reading/Socializing Conference Room Seating Storage Roastary Area Rest Rooms M/F Learning Center (Machines/Equipment) Learning Center (students) Circulation Program Diagram Enriching the seeds for tomorrow J Plan Sound Diagram for Ground Floor Scale 1:75 Plan Sound Diagram for First Floor Scale 1:75 9:17 PM 6:00 PM Talking will be observed mainly in the middle of the ground floor, with more private conversations happen- ing at the back and the front. the counter will have que chit chat. The sound from the machinery is most active when the que is long. It is most loudest near the counter, baffled and diffused towards the entrance, and dies down going back to the kitchen. The dancing fountain starts at 9:17, This will affect the accoustics in the interior greatly. Other sounds from outdoors are relatively mute indoors. The sound baffles help beat this interference Seating Kitchen Seating/Reading/Socializing Conference Room Seating Storage Roastary Area Rest Rooms M/F Learning Center (Machines/Equipment) Learning Center (students) Circulation Program Di Circulation Diagram
  • 11.
    9 Section A Scale 1:50 ElevationA Scale 1:50 Elevation B Scale 1:50 Elevation C Scale 1:50 RCP Ground Floor Scale 1:75 Halogen Lamp Fluorescent Tube RCP First Floor Scale 1:75 Halogen Lamp Enriching the seeds for tomorrow Section B Scale 1:50 Enriching the seeds for tomorrow Section G Scale 1:50 3500 0 4100 0 Section A Scale 1:50 Elevation A Scale 1:50 Elevation B Scale 1:50 Elevation C Scale 1:50 Halogen Lamp Fluorescent Tube ogen Lamp Enriching the seeds for tomorrow Section B Scale 1:50 Enriching the seeds for tomorrow Section G Scale 1:50 3500 0 4100 4100 0 0 Sections
  • 12.
    10 Elevation A Scale 1:50 ElevationB Scale 1:50 Elevation C Scale 1:50 Enriching the seeds for tomorrow Section D Scale 1:50 Section E Scale 1:50 Section F Scale 1:50 Section G Scale 1:50 Enriching the seeds for tomorrow Enriching the seeds for tomorrow Enriching the seeds for tomorrow Enriching the seeds for tomorrow The idea behind this concept is the‘idea’. I wanted to design a space for philosophers and thinkers who want to escape the outside world and find themselves in a place where they can interact with their like, or simple sit, have a cup of coffee and think about the world they live in. With contemporary news on LED beams, the customers are encouraged to be involved in the world around them. They can simply plug into the beams and get live feed from the class taking place upstairs or just more brain food about coffee and its wonders. The learning center encourages customers to learn about coffee, as customers can choose from a wide variety of coffee beans in house. They are involved in the act of selecting the coffee bean and handing it over to the roaster, or the staff to have it freshly roasted for them. The coffee house truly encourages customers to be active participants of coffee drinking and making, while displaying the love for intellectual conversations over coffee. Cogito Ergo Sum - Rene Descartes 3500 0 4100 4100 4100 4100 4100 0 0 0 0 0 Elevation A Scale 1:50 Elevation B Scale 1:50 Elevation C Scale 1:50 Enriching the seeds for tomorrow Section D Scale 1:50 Section E Scale 1:50 Section F Scale 1:50 Section G Scale 1:50 Enriching the seeds for tomorrow Enriching the seeds for tomorrow Enriching the seeds for tomorrow Enriching the seeds for tomorrow The idea behind this concept is the‘idea’. I wanted to design a space for philosophers and thinkers who want to escape the outside world and find themselves in a place where they can interact with their like, or simple sit, have a cup of coffee and think about the world they live in. With contemporary news on LED beams, the customers are encouraged to be involved in the world around them. They can simply plug into the beams and get live feed from the class taking place upstairs or just more brain food about coffee and its wonders. The learning center encourages customers to learn about coffee, as customers can choose from a wide variety of coffee beans in house. They are involved in the act of selecting the coffee bean and handing it over to the roaster, or the staff to have it freshly roasted for them. The coffee house truly encourages customers to be active participants of coffee drinking and making, while displaying the love for intellectual conversations over coffee. Cogito Ergo Sum - Rene Descartes 3500 0 4100 4100 4100 4100 4100 0 0 0 0 0 A B C Enriching the seeds for tomorrow Section D Scale 1:50 Section E Scale 1:50 Section F Scale 1:50 Enriching the seeds for tomorrow Enriching the seeds for tomorrow Enriching the seeds for tomorrow Enriching the seeds for tomorrow Rabia Peerzada 38617 IDE 401 - Professor Maria Mortera American University of Sharjah AUS The idea behind this concept is the‘idea’. I wanted to design a space for philosophers and thinkers who want to escape the outside world and find themselves in a place where they can interact with their like, or simple sit, have a cup of coffee and think about the world they live in. With contemporary news on LED beams, the customers are encouraged to be involved in the world around them. They can simply plug into the beams and get live feed from the class taking place upstairs or just more brain food about coffee and its wonders. The learning center encourages customers to learn about coffee, as customers can choose from a wide variety of coffee beans in house. They are involved in the act of selecting the coffee bean and handing it over to the roaster, or the staff to have it freshly roasted for them. The coffee house truly encourages customers to be active participants of coffee drinking and making, while displaying the love for intellectual conversations over coffee. Cogito Ergo Sum - Rene Descartes 4100 4100 4100 4100 4100 0 0 0 0 0 Elevations Elevations Elevation D Scale 1:50 Elevation E Scale 1:50 Elevation F Scale 1:50
  • 13.
    11 t- e- ri- s. tc. e- al- e ms l, - es, al Elevation A Tile from Bisazza Paint Ceiling Paint Wall ExtendedCounter Storage Under Counter Shelving - Niche Stepped Counters - Strorage Clothes/Towel Hanging Bars Window over W/C Ventilation above 800 mm 600 mm 800 mm Plan 1:10 Bathing/Showering Bidet W/C Sink 0 2 da l m required at- xture require- duced to vari- loor finishes. gram that bidet, W/C etc. our space given to us aller than pre- it was a chal- or the bath- y informative om fixtures, alled in terms ons. Over all, d us to bath- s such as tiles, the technical xtures for a Elevation A Tile from Bisazza Paint Ceiling Paint Wall Extended Counter Storage Under Counter Shelving - Niche Stepped Counters - Strorage Clothes/Towel Hanging Bars Window over W/C Ventilation above 800 mm 600 mm 800 mm Bathing/Showering Bidet W/C Sink My concept for designing a bathroom came from a glance of a forest. I wanted my bathroom to be a depiction of nature, not literally, but through colors and the illusion of space. I chose green tiling to reflect trees, and blue to reflect infinity and the skies. The blue on the ceiling would also create an illusion of depth. residential bathroom
  • 14.
  • 15.
    12 Residential Foyer/Entrance . 1500mm 2000mm Entrance Niche -Art Work Niche - Art Work Seating/Waiting Area 2000mm Formal Living Room 2000mm Formal Dining Room 800mm Family Living Room Waiting Area Short Visit Console And Mirror In Niche Plaster Mouldings Plaster Cornice 1600mm 3200mm Arte Wood Flooring Azure Blue Paint on walls Marble Flooring Elevation A Scale 1:25 Elevation B Scale 1:25 Elevation C Scale 1:25 Plasterwork, Cornice and Plaster Mouldings Door Specification: Wall scones PLAN Scale 1:25 Residential Foyer/Entrance . 1500mm 2000mm Entrance Niche - Art Work Niche - Art Work Seating/Waiting Area 2000mm Formal Living Room 2000mm Formal Dining Room 800mm Family Living Room Waiting Area Short Visit Console And Mirror In Niche Plaster Mouldings Plaster Cornice 1600mm 3200mm Arte Wood Flooring Azure Blue Paint on walls Marble Flooring Elevation A Scale 1:25 Elevation B Scale 1:25 Elevation C Scale 1:25 Plasterwork, Cornice and Plaster Mouldings Door Specification: Wall scones PLAN Scale 1:25 Residential Foyer/Entrance . 1500mm 2000mm Entrance Niche - Art Work Niche - Art Work Seating/Waiting Area 2000mm Formal Living Room 2000mm Formal Dining Room 800mm Family Living Room Waiting Area Short Visit Console And Mirror In Niche Plaster Mouldings Plaster Cornice 1600mm 3200mm Arte Wood Flooring Azure Blue Paint on walls Marble Flooring Elevation A Scale 1:25 Elevation B Scale 1:25 Elevation C Scale 1:25 Plasterwork, Cornice and Plaster Mouldings Door Specification: Wall scones PLAN Scale 1:25 1500mm 2000mm Entrance Niche - Art Work Niche - Art Work Seating/Waiting Area 2000mm Formal Living Room 2000mm Formal Dining Room 800mm Family Living Room Waiting Area Short Visit Console And Mirror In Niche Plaster Mouldings Plaster Cornice 1600mm 3200mm Arte Wood Flooring Azure Blue Paint on walls Marble Flooring Elevation A Scale 1:25 Plasterwork, Cornice and Plaster Door Specification: PLAN Scale 1:25 Residential Foyer/Entrance . 1500mm 2000mm Entrance Niche - Art Work Niche - Art Work Seating/Waiting Area 2000mm Formal Living Room 2000mm Formal Dining Room 800mm Family Living Room Waiting Area Short Visit Console And Mirror In Niche Plaster Mouldings Plaster Cornice 1600mm 3200mm Arte Wood Flooring Azure Blue Paint on walls Marble Flooring Elevation A Scale 1:25 Elevation B Scale 1:25 Elevation C Scale 1:25 Plasterwork, Cornice and Plaster Mouldings Door Specification: Wall scones PLAN Scale 1:25 Residential Foyer/Entrance . 1500mm 2000mm Entrance Niche - Art Work Niche - Art Work Seating/Waiting Area 2000mm Formal Living Room 2000mm Formal Dining Room 800mm Family Living Room Waiting Area Short Visit Console And Mirror In Niche Plaster Mouldings Plaster Cornice 1600mm 3200mm Arte Wood Flooring Azure Blue Paint on walls Marble Flooring Elevation A Scale 1:25 Elevation B Scale 1:25 Elevation C Scale 1:25 Plasterwork, Cornice and Plaster Mouldings Door Specification: Wall scones PLAN Scale 1:25 Residential Foyer/Entrance . 1500mm 2000mm Entrance Niche - Art Work Niche - Art Work Seating/Waiting Area 2000mm Formal Living Room 2000mm Formal Dining Room 800mm Family Living Room Waiting Area Short Visit Console And Mirror In Niche Plaster Mouldings Plaster Cornice 1600mm 3200mm Arte Wood Flooring Azure Blue Paint on walls Marble Flooring Elevation A Scale 1:25 Elevation B Scale 1:25 Elevation C Scale 1:25 Plasterwork, Cornice and Plaster Mouldings Door Specification: Wall scones PLAN Scale 1:25 This project required us to research and develop an entry foyer based on an architectural period from the past. I chose to design and reflect on ‘Rococo’, from the Renaissance. I separated the meeting area and the entrance to create a threshold where people can either wait, fix their make-up/clothes, etc. The proposed design had marble flooring, moldings and the overall color scheme is Prussian blue and white. entry foyer Aerial view sketch
  • 16.
    13 1500mm 2000mm Entrance Niche -Art Work Niche - Art Work Seating/Waiting Area 2000mm Formal Living Room 2000mm Formal Dining Room 800mm Family Living Room Waiting Area Short Visit Console And Mirror In Niche Plaster Mouldings Plaster Cornice 1600mm 3200mm Arte Wood Flooring Azure Blue Paint on walls Marble Flooring Elevation A Scale 1:25 Elevation B Scale 1:25 Elevation C Scale 1:25 Plasterwork, Cornice and Plaster Mouldings Door Specification: Wall scones PLAN Scale 1:25 1500mm 2000mm Entrance Waiting Area Short Visit Console And Mirror In Niche 1600mm ArteMarble Flooring Elevation A Scale 1:25 Elevation B Scale 1:25 Elevation C Scale 1:25 Plasterwork, Cornice and Plaster Mouldings Door Specification: Wall scones PLAN Scale 1:25 1500mm 2000mm Entrance Niche - Art Work Niche - Art Work Seating/Waiting Area 2000mm Formal Living Room 2000mm Formal Dining Room 800mm Family Living Room Waiting Area Short Visit Console And Mirror In Niche Plaster Mouldings Plaster Cornice 1600mm 3200mm Arte Wood Flooring Azure Blue Paint on walls Marble Flooring Elevation A Scale 1:25 Plasterwork, Cornice and Plaster Mouldings Door Specification: Wall scones PLAN Scale 1:25
  • 17.
    14 I D E2 0 2 Rabia Peerzada Exhibition Design Paul Smith Apart from coming into contact with real clients and getting to speak to brand managers about their percep- tion of brands, through this assign- ment I understood how to design space conceptually. One important thing that we all learnt was how clients will speak to you about their brand/image. It is upon the designer to potray the best of the brand through its history. I also learnt the importance of branding and how it affects the overall image of a company. One of the challenges I faced was that it was difficult to design in three dimensions at the begining. I understood relationships of ob- jects in space to one another. There was alot to learn through this project, and it was a chellenging task to percieve a brand through an exhibition space. Elevation A Elevation B PLAN 1:20 Phonebooth Jukebox Display Path Elevation A Elevation B Paint on walls - Grey I D E 2 0 2 Rabia Peerzada Exhibition Design Paul Smith Apart from coming into contact with real clients and getting to speak to brand managers about their percep- tion of brands, through this assign- ment I understood how to design space conceptually. One important thing that we all learnt was how clients will speak to you about their brand/image. It is upon the designer to potray the best of the brand through its history. I also learnt the importance of branding and how it affects the overall image of a company. One of the challenges I faced was that it was difficult to design in three dimensions at the begining. I understood relationships of ob- jects in space to one another. There was alot to learn through this project, and it was a chellenging task to percieve a brand through an exhibition space. Elevation A Elevation B PLAN 1:20 Phonebooth Jukebox Display Path Elevation A Elevation B Paint on walls - Grey Travel Agency Typology-Visitor Chairs S6 I D E 2 0 2 Rabia Peerzada Exhibition Design Paul Smith Apart from coming into contact with real clients and getting to speak to brand managers about their percep- tion of brands, through this assign- ment I understood how to design space conceptually. One important thing that we all learnt was how clients will speak to you about their brand/image. It is upon the designer to potray the best of the brand through its history. I also learnt the importance of branding and how it affects the overall image of a company. One of the challenges I faced was that it was difficult to design in three dimensions at the begining. I understood relationships of ob- jects in space to one another. There was alot to learn through this project, and it was a chellenging task to percieve a brand through an exhibition space. Elevation A Elevation B PLAN 1:20 Phonebooth Jukebox Display Path Elevation A Elevation B Paint on walls - Grey Travel AgencyS6 The concept for the exhibition space for Paul Smith was derived from their striped logo. I created a space by extrapolating a shelving/display unit from the stripes of a logo. The idea was to display and portray the crazy, eccentric and colorful world of Paul Smith. The brand represents disregard to conformity, it represents the coming together of diverse cultures, it represents the eccentric side of people and hence I tried to depict the brand image through their beliefs and the inspirations that drive them. I created an exhibition space where the world of Paul Smith would be displayed for visitors. exhibition design Sketches
  • 18.
    15 PLAN 1:20 Elevation B Paint onwalls - Grey Travel Agency Typology- South Pacific PLAN Facade Elevation Scale 1:20 Elevation B Scale 1:20 Elevation A Scale 1:20 Meeting Private Office Waiting Area Pantry Visitor Chairs Printer + Shelving on top Work stations S1 S4 S2 S3 S5 S6 S - Shelving Bamboo PLAN 1:20 Elevation B Paint on walls - Grey Travel Agency Typology- South Pacific PLAN Facade Elevation Scale 1:20 Elevation B Scale 1:20 Elevation A Scale 1:20 Meeting Private Office Waiting Area Pantry Visitor Chairs Printer + Shelving on top Work stations S1 S4 S2 S3 S5 S6 S - Shelving Bamboo Elevation B Travel Agency Typology- South Pacific AN acade Elevation ale 1:20 Elevation B Scale 1:20 Elevation A Scale 1:20 Meeting Private Office Waiting Area Pantry Visitor Chairs Printer + Shelving on top Work stations S1 S4 S2 S3 S5 S6 S - Shelving Bamboo The travel typology I got was the South Pacific. I designed the travel agency and the logo, “Beyond Horizons”, and created a space that reflected what it would feel like to be in the South Pacific islands. I used straw and wood to create a warm space, and reflected the overall space as a water bungalow. The idea was that the customers would feel like they are inside the space they would inhabit once they are on one of the islands. travel agency Branding
  • 19.
    16 Working and abstractingfrom Mondrian’s painting, we developed compositions that later became space plans. Our agenda was to create a reading space after the plan had been resolved. I created a library for designers, and opted for the concept of discontinuity. library
  • 20.
  • 21.
    18 These hand-rendered perspectivesdepict how visitors would inhabit the space. Here you can see how the shelving units separate one space from another, creating a hierarchy between function and space. Renderings
  • 22.
    19 Concept Process The ideawas to celebrate the vastness of the desert, while looking at its dunes and the fragments of the desert. Concept Process The idea was to celebrate the vastness of the desert, while looking at its dunes and the fragments of the desert. desert resort For this project, we were given a master plan of an existing desert resort, and we were asked to design a concept for a desert resort. In the initial stages, we were asked to make a case study and come up with a concept. The idea was to celebrate the vastness of the desert, while looking at its dunes and the fragments of the desert. Business Case Study - Qasar al Sarab by Anantara, Abu Dhabi Anantara Suite: 2-3 persons 1 Bedroom Pool Villa: 1-2 persons 2 Bedroom Family Anantara Pool Villa: 2-4 persons 3 Bedroom Family Anantara Pool Villa: 4-6 persons Concept work
  • 23.
    20 AA A BB Double Rooms Suite Storage Kitchen+ Restaurant Offices Offices Lobby ReceptionMeeting Areas CommonPool and Showers Club House Spa Section A Scale 1:400 Master Plan Resort Scale 1:400 Section B Scale 1:400 22 Double Rooms for 2 to 3 persons Desert Resort AA A BB Double Rooms Suite Storage Kitchen+ Restaurant Offices Offices Lobby ReceptionMeeting Areas Common Pool and Showers Club House Spa Section A Scale 1:400 Master Plan Resort Scale 1:400 Section B Scale 1:400 22 Double Rooms for 2 to 3 persons 11 Suits for 3-4 persons Inspirational Projects Desert Resort Master plan 22 Double Rooms for 2-3 persons 11 Suites for 3-4 persons
  • 24.
    21 Axonometric Interior Wallpaper Paint Tile Dessert Resort -Suite and Double Room Concept Axonometric Interior Wallpaper Paint Tile Wood Fabrics Dessert Resort - Suite and Double Room Concept Axonometric Interior Wallpaper Paint Dessert Resort - Suite and Double Room Concept SectionsPlans
  • 25.
    22 Axonometric Exterior Wallpaper Paint Tile Axonometric Exterior Interior Wallpaper Paint Tile Wood Fabrics Exterior Wood Bed by Modloft CitterioViSofa Exterior per Paint Tile Wood Fabrics Flexform by ABC Bed by Modloft Vases by ASA Citterio ViSofa Rabia Peerzada 38617 Axonometric Exterior Interior Wallpaper Paint Tile Wood Fabrics Flexform by ABC Bed by Modloft Vases by ASA Citterio ViSofa Rabia Peerzada 38617 Axonometric Exterior Interior Wallpaper Paint Tile Wood Fabrics Flexform by ABC Bed by Modloft Vases by ASA Citterio ViSofa Axonometric Exterior Interior Wallpaper Paint Tile Wood Fabrics Flexform by ABC Bed by Modloft Vases by ASA Citterio ViSofa Rabia Peerzada 38617 Axonometric Exterior Citterio ViSofa Flexform by ABC Bed by Modloft Vases by ASA Interior
  • 26.
    Facade Entry Foyer Hallway Bedroom SwimmingPool Area Swimming Pool Area Living Room
  • 27.
  • 28.
    25 mosaic designs These mosiacdesigns are from a Foundations project in which we had to design for a mosaic that we had to build with clay. The process involved several iterations and layering of designs to finally generate a series of mosaics.