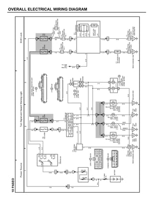
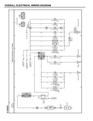
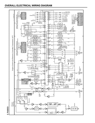
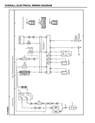
OVERALL ELECTRICAL WIRING DIAGRAM
1234
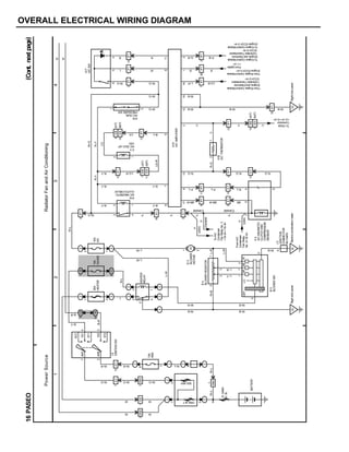
1PASEOELECTRICALWIRINGDIAGRAM
7
ACC
IG1
ST1
IG2
ST2
AM14
32AM2
2
2
2
2
2
7IC112IC1
7EB1
7ID4
12EB1
1G9
10
1A
4
1A
3
2
3
1
4
2
IE
A
EB2
1
4EB1
412
35
13ID1
ID411
13ID3
ID59
1G
L
3
G
1
H
2
G
S
B
IG
1C
1
D
6B
13A
B–W
B–W
B–R
W–G
B–R
B–RB–R
Y–L
W–L
B–Y
W
W–G W–G
W–R
W–G
W–R
B–W
W–G
B–R
W–G
B–R B–R
B–R B–R
B–L
Y–L Y–L
R–LB–Y
Y–L
W–L
W
R–L
BB
W–B
B
B–W
B–W
W–B
LG–Y
LG
B
G
W
R
B B
FromCruise
ControlECU
<13–4>
ToA/CAmplifier<16–4>
ToTachometer
[COMB.METER]<15–3>
ToCheckConnector
<2–2><3–2>
ToEngineControlModule
(EngineandElectronic
ControlledTransmissionECU)<2–4>
TOEngineControlModule
(EngineECU)<3–4>
ToDaytimeRunning
LightRelay<4–3>
I9
IGNITIONSW
BATTERYSTARTER
GENERATOR
(ALTERNATOR)
IGNITIONCOILANDDISTRIBUTOR
CHARGEWARNINGLIGHT
[COMB.METER]
I1
IGNITER
DISTRIBUTOR
S5
STARTERRELAY
15A
AM2
B–O
W–G
FLMAIN
2.0L
B
B
(A/T)
(M/T)
J2
JUNCTION
CONNECTOR
(forEarth)
(A/T)
(M/T)
(*2) (*2)
(*1)
(Canada)
ChargingIgnitionStartingPowerSource*1:(w/TheftDeterrentSystem)
*2:(w/oTheftDeterrentSystem)
100AALT
50AAM1
8
12
2
1
H
GENERATOR
(ALTERNATOR)
CHARGEWARNINGLIGHT
[COMB.METER]
1611109854321121314671513987654321101112
BA
11
CD
STARTER
BLACK
F7
7.5AIGN
[FUSEBOXNo.2]
1F2F3F4F
1
E
2
E
B–R
Behindcombinationmeter
1212
34
EF
IGNITIONCOILANDDISTRIBUTOR
B
W–G
2
2
4
4
W–L
W–L
S1S2
C9,C10B A
S1C,S2D
I2I3
I2E,I3F
C9C10
G1
G1H,G2G
12
15A
GAUGE
1B1
1G
7.5A
ALT–S
2
2
4
3
15
16
W–G W–L
9EB1
A
A
(USA) (USA)
B–O
B–O
(Canada)
J1
JUNCTION
CONNECTOR
123
GG2GRAY
DARKGRAYDARKGRAY
9ID4
ID112
112
(M/T)(M/T)
(A/T)
B–W
(A/T) (A/T)
(A/T)
B
B–R
(A/T)
B–RB–R(M/T)
C8
CLUTCHSTART
SW
(A/T)
B–R
(A/T)
B–R
(M/T)
(A/T)
ToEngineControl
Module(Engineand
ELlectronic
Controlled
TransmissionECU)
<2–2>
ToTheftDeterrent
ECU<11–4>
P1
PARK/NEUTRAL
POSITIONSW
(NEUTRAL
STARTSW)
B–R
(A/T)
7
8ID4
TOEngine
ControlModule
(EngineECU)<3–2>
B–R
(M/T)
BLUE
how about
OVERALL ELECTRICAL WIRING DIAGRAM
1234
2PASEO
1A10
22
1B1
1C8
22
1G9
12IC1
4ID4
13EB1
14EB1
8ID4
6
4
ID4
10
49
2
A
BATT
A
W
C
L
C
2
A
STP
A
OD1
A
NSW
C
#10
C
#20
B
E21
B
E2
B
VF
A
FC
A
+B1
A
+B
A
STA
B
DG
B
T
B
OX
C
E1
C
E01
C
E02
C
SPD2
C
TOV
C
EGR
2
1
2
1
2
1
2
1
1
2
1
2
7
ACC
IG1
ST1
IG2
ST2
AM14
32AM2
9
32
176
3
1
IFEBBH
M
26
ID4
3
13BG1
1
2
181513
541
A
ID
A
ELS
A
OD2
A
AC1
A
ACT
A
SPD
C
S2
C
SL
C
S1
C
TWS
C
FPU
C
DISC
432
1
1
FromIgniter
<1–3>
FromDistributor
<1–3>
2
1
2
11
2
1
2
1321
B
THG
B
THW
B
THA
B
PIM
B
VCC
B
VTA
B
IDL
C
IGF
C
IGT
C
NE
C
NE–
C
G
C
G–
BR
W–R
B–OB–O
B–R
B–RB–RBRBRBR
B–WB–W
W–R
G
B
L–YL–Y
BR
B–OB–OB–O
W–R
G–W
Y–L
O
G–W
R–G
WW
Y
Y
Y
W
BR
BR
L
G–B
LG–B
P
LG–R
Y–G
LG–Y
LG
R
W
G
B
BR
BR BR
LG–R
Y–G
L–RL–R
BR
BR
BR
B–R
B–R
B–R
B–R
B–W
B–Y
W–R
B–R B–R
B–Y
W–R B–O
W–B
B–O
B–R
B–O
B–O
G
G–Y
L
V
BRB B
BR
BR
BR
LG–B
R–G
P–L
G–R
L–W
L
P
P–B
P–G
P–G
P–G
P–B
P
L
B–O
B–O
B–O
B–O
BR
BR
BR
BR
V
Y–B
B–O
W–B
L–Y
W–B
B–R
B–O
W–B
BR
Y
LG–B
P–B
R–W
LG–R
B–R
R–L
BR
I9
IGNITIONSW
W–R
1
5196420221211169
1112131487156141326168
B–W
EFIMAIN
RELAY
15A
GAUGE
C9
MALFUNCTIONINDICATORLAMP
(CHECKENGINEWARNINGLIGHT)
[COMB.METER]
P1
PARK/NEUTRALPOSITIONSW
(NEUTRALSTARTSW)
FromStopLightSW
<7–2>
ToCruiseControlECU
<13–4>
I4INJECTORNo.1
I6INJECTORNo.3
I5INJECTORNo.2
I7INJECTORNo.4
C6
CIRCUITOPENING
RELAY
L–Y
B–O
FP+BTCOPT
VF1TTTE1
E1
FromCruise
ControlECU
<13–4>
J3
JUNCTION
CONNECTOR
(forEarth)
FromPark/Neutral
PositionSW
(NeutralStartSW)<1–2>
D1
DATALINKCONNECTOR1
(CHECKCONNECTOR)
O2
OXYGEN
SENSOR
B–W
10
43211112320417518
23109721159211072
T2
THROTTLEPOSITION
SENSOR
M1
MANIFOLD
ABSOLUTE
PRESSURE
SENSOR
(VACUUM
SENSOR)
E1EGRGASTEMP.SENSOR
E3ENGINECOOLANTTEMP.SENSOR
(EFIWATERTEMP.SENSOR)
I8INTAKEAIRTEMP.SENSOR
(INAIRTEMP.SENSOR)
ENGINECONTROLMODULE(ENGINEANDELECTRONICCONTROLLEDTRANSMISSIONECU)
1
V3
VSV(forThrottleOpener)
V1
VSV(forEGR)
A13
AIRCONTROLVALVE
(forIdleControl)
V2
VSV(forFuelPressureUp)
W2
WATER
TEMP.SW
ToCruiseControl
ECU<13–4>
ToVehicleSpeed
Sensor<15–4>
FromA/CAmplifier
<16–4>
ToA/CAmplifier
<14–4>
ToO/DMainSW<8–1>
ToA/CHighPressureSW
<16–6><16–7>
No.1
No.3
No.2
(*1) (*1)
*1:(California)
Power
Source
EngineControlandElectronicControlledTransmission(A/T)
B–W
23
15
B–R
L2
F10
FUELPUMP
B–O
CDARKGRAY
ENGINECONTROLMODULE
(ENGINEAND
ELECTRONICCONTROLLED
TRANSMISSIONECU)
FromCruise
ControlECU<13–4>
L–R
AB
Frontleftfender
Instrument
panelcenter
braceRH
Undertherear
leftpillar
Leftkickpanel
OX
4
IG–
18
B
FromA/C
Amplifier
<16–4>
FromIgniter
<1–3>
BR
BR
ENGINECONTROLMODULE(ENGINEAND
ELECTRONICCONTROLLEDTRANSMISSIONECU)
DARKGRAYDARKGRAY
ENGINECONTROLMODULE(ENGINEAND
ELECTRONICCONTROLLEDTRANSMISSIONECU)
2
BR
B
27IC1
7EB1
W–R
W–GW–G
W–R
15AAM2
B
BATTERY
FLMAIN
2.0L
8
222
2
2
2
542
4
2
15AEFI
50AAM1 100AALT
7
W–L
W–L
W–G
B–R
1EB2
W–L
A,E9B,E8CE7
E9E8
E7
2
1
1ID4
G–W
G–W
G–W
G–W
2
W
23
LG–R
1234567891011
1213141516171819202122
12345678
910111213141516
12345678910111213
14151617181920212223242526
B–R
G–W
12EB1
B–O
W–R
W
W
W
V4
VEHICLESPEEDSENSOR
(forElectronicControlled
TransmissionSystem)
E2
ELECTRONIC
CONTROLLED
TRANSMISSION
SOLENOID
1 2 3 4
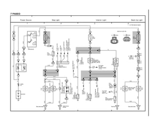
3 PASEO
7
ACC
IG1
ST1
IG2
ST2
AM1 4
32 AM2
2
1
2
1
2
1
2
1
2
1
2
1
2
1
1
2
2
1
2
1
1
2
ECEB IF BH
M
2 6
2 A B20B21B8B9B6B7
A5
B19B17B18B4B5B3B23B16B25A10 B12
11 AA9 A1 A4 A16 A8 B10 B24 B13 B26 A7 B15 B14 B1 B11B2 A13 A14
2 2
1B1
1G9
1C8
2 2
12 IC1
12 EB1
11 ID1
3 ID3
13 EB1
5 ID1 10 ID1
13 BG1
ID1
1
ID1
7
4 IC1
1A10
W–R B–R
B–R
W–R
W Y
BR
BR BR
BR
B
B–O B–O B–OB–OB–O
B–R
B–O
W–R
W–G
B–Y
B–R
B–Y
B–RB–R
B–R
B–R
B–R
BR
BR
BR
BR
BR
P
LG–R
LG–R
Y–G
L–R
BR
B–OB–OB–O
W–B
W–B
L–YB–OB–O
B–O
G
G–Y
V
B
BR
BR
BR
R–G
P–L
G–R
L–W
R–GB–O
B–O
B–O
B–O
LG–R
L
G–B
LG–B
WW
W–R
B–RB–R
G–WR–L
W–RW–R
G–Y
V
L–Y
B–O
B
Y–B
BR
BRBR
W–B
B–R
B
B–R
B–R
Y
LG–B
P–B
LG–Y
LG
B
G
R
W
L–Y
YY
2
151881
2 3
9 6
3
1
1
4
6
4 3 2
1
5 4 1
3 2
A
G
L–Y
B–O
+B +B1 FC VF T OX E1 E01 E02 TOV EGR DISC FPU NSW STA SPD ACT AC1
TCIG–+BFP
BATT W #10 #20 E2 THG THW THA PIM VCC VTA IDL
ELS
IGF IGT G– G1 NE NE–
E1
TE1VF1
I 9
IGNITION SW
15A
GAUGE
C9
MALFUNCTIONINDICATORLAMP
(CHECKENGINEWARNINGLIGHT)
[COMB.METER]
EFIMAINRELAY
I4INJECTORNO.1
I6INJECTORNO.3
I5INJECTORNO.2
I7INJECTORNO.4
E1
EGRGASTEMP.SENSOR
E3ENGINECOOLANTTEMP.SENSOR
(EFIWATERTEMP.SENSOR)
I8INTAKEAIRTEMP.SENSOR
(INAIRTEMP.SENSOR)
C6
CIRCUITOPENING
RELAY
D 1
DATA LINK CONNECTOR 1
(CHECK CONNECTOR)
J 3
JUNCTION
CONNECTOR
(for Earth)
V3
VSV(forThrottleOpener)
V1
VSV(forEGR)
A13
AIRCONTROLVALVE
(forIdleControl)
V2
VSV(forFuelPressureUp)
ToVehicleSpeedSensor
<15–4>
ToA/CAmplifier
<16–4>
FromA/CAmplifier
<16–4>
F10
FUEL PUMP
FromIgniter
<1–3>
FromClutchStartSW
<1–2>
From”10AHEAD(LH)”
Fuse<4–1>
FromIgniter
<1–3>
FromDistributor
<1–3>
T 2
THROTTLE POSITION
SENSOR
M 1
MANIFOLD
ABSOLUTE
PRESSRE
SENSOR
(VACUUM
SENSOR)
A DARK GRAY
ENGINE CONTROL MODULE
(ENGINE ECU)
B DARK GRAY
ENGINE CONTROL MODULE
(ENGINE ECU)
(Ex.California)
(*1)
(*1)
O2
OXYGEN
SENSOR
ENGINE CONTROL MODULE(ENGINE ECU)
Power Source Engine Control (M/T)
*1 : (California)
1 5
2 3
(*1)
(*1)
(*1)
(*1)
B–R
B–R
B–R
Front left fender Instrument
panel center
brace RH
Under the rear
left pillar
Intake manifold
4
OXOPT
13
V
FromCruise
Control
ECU<13–4>
FromA/C
Amplifier
<16–4>
BR
BR
FromCruiseControl
ECU<13–4>
L–R
2 7 IC1
7 EB1
W–R
W–GW–G
W–R
15AAM2
B
BATTERY
FL MAIN
2. 0L
8
2 2 2
2
2
2
5 4 2
4
2
15AEFI
50AAM1100AALT
7
W–L
BR
B
W–L
1 EB2
W–L
A, E 6BE 5
E 6 E 5
LG
14 EB1
G–W
G–W
G–W
W
2
1 2 3 4 5 6 7 8
9 10 1112 13141516
1 2 3 4 5 6 7 8 9 10 11 12 13
14 15 161718 1920 212223 24 25 26
2 ID1
R–LR
(Canada)
(USA)
FromTaillightRelay
<6–2>
G–W
W–R
W
Y
6 ID1
(PuertoRico)
R
OVERALL ELECTRICAL WIRING DIAGRAM
1234
4PASEO
2
2
2
1G5
1B1
2
2
1C2
21C92
21
3
21
3
7
ACC
IG1
ST1
IG2
ST2
AM14
AM2
6IC21IC2
E
E
1EB2
7EB1
7IC1
1214
98184111015
71635
586
9
19
A
IEIEIF
HF
HL
HU
HF
HL
HU
HF
HL
HU
HUEDTELRF
OFF
TAIL
HEAD
HF
HL
HU
HF
HL
HU
HF
HL
HU
HUERF
OFF
TAIL
HEAD
AA
13
22
22
222
2222
2
22
6IC2
17
6
EA
R–W
R–Y
R–W
D6
DIODE
(ForDaytime
RunningLight
System)
BB
W–L
W–GW–GW–G
W–L
B–Y
Y
W–L
W–L
B–Y
W–L
B–W
R
B–Y
R–Y
R–G
R–W
R–L
W–B
W–B
W–B
W–B
W–B
R–G
G–W
R–Y R–Y
R–Y
LG
Y–L
G–R
Y
Y–R
G
R–LR–L
R–L
R
R–YR–Y
R–W
R–L
W–B
L–Y
R–W
R–Y
R–W
I9
IGNITIONSW
100AALT50AAM1
10A
HEAD
LH
10A
HEAD
RH
15A
DOME
HEADLIGHT
H1
LH
H2
RH
FLMAIN
2.0L
BATTERY
C11
LIGHT
CONTROLAND
DIMMERSW
[COMB.SW]
J2
JUNCTION
CONNECTOR
(forEarth)
J2
JUNCTION
CONNECTOR
(forEarth)
J3
JUNCTION
CONNECTOR
(forEarth)
FromEngineControlModule
(EngineECU)<3–4>
C11
LIGHT
CONTROLAND
DIMMERSW
[COMB.SW]
FromTaillight
Relay<6–2>
FromGenerator(Alternator)
<1–4>
FromTaillightRelay<6–1>
FromBrakeWarningLight
[COMB.METER]<15–1>
FromABSECU<14–4>
ToParkingBrakeSW<15–1>
ToIlluminationLight
andClock<6–2>
R–L
R–B
D4
DAYTIMERUNNINGLIGHTRELAY
DIMMER
RELAY
HEADLIGHT
RELAY
HEADLIGHT
H1
LH
H2
RH
15A
GAUGE
10AHEAD(LH–UPR)
10AHEAD(LH–LWR)
10AHEAD(RH–UPR)
10AHEAD(RH–LWR)
33
2121
Power
Source
Headlight(forUSA)Headlight(forCanada)
W–B
2
2
9
7
324
143132
1
41
32
121
HLB1T1
Behindcombinationmeter
3
RightkickpanelInstrumentpanel
centerbraceRH
Frontrightfender
12
1413
2
2
7
7
W–L
W–L(CANADA)
LG
2
2
4
4
W–L
1IC2
22
3
4
2
1
22
Y
W–L
R–L R–L
R–L
W–L
R–Y
R
R
R–W
13
HEADLIGHT
RELAY
ToEngineControlModule
(EngineECU)<3–4>
ToTheft
Deterrent
ECU<11–4>
W–B
W–B
R–W
A
11
2
10
7.5A
DRL
11
2
3
4
2
1
2
3
C10
HIGHBEAMINDICATORLIGHT
[COMB.METER]
2
1
W–B
IG
BR–W
BR–W
BR–WBR
BR–W
W–B
R–G
R
R–B
B–Y
R–B
R
B–Y
R–G
R
12
3
1
2
D2
DAYTIME
RUNNING
LIGHTRELAY
No.4
D3
DAYTIMERUNNING
LIGHTRESISTOR
W–B
R
R
B–Y
R
B
Y
R–L
R–G
C10
HIGHBEAM
INDICATORLIGHT
[COMB.METER]
2
3
W–B
Behind
combination
meter
R–L
R–L
7IC2
(Canada)
(USA)(USA)
C
C
L–Y
J4
JUNCTION
CONNECTOR
No.1
1
2
2
L
S7
SHORTPIN
J5
JUNCTION
CONNECTOR
No.2
7IC2
1 2 3 4
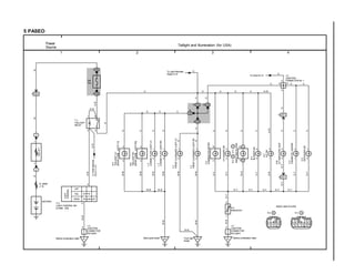
5 PASEO
4
2
3
1
2
1
2
1
3
2
4
1
2
2
1E1
1A7
1G8
1C15
6
1F
6
8
1
3
4
2
1
3
8 IE1
1C16
13 IE1
EAIE BJ
G G G G–W
G G
G G
G
G
G
BW
G–B
G–R
G
W–B
W–B
W–B
W–B
G
G
G
G
GW–B
W–B
G–Y
G–Y
W–G
G–Y
G–R
GG
G
G
G
G
G–W
W–B
W–B
G–Y
W–B
G–YG–Y
G–Y
G–Y
G
G
G
G
G
G
G–B
4 4
1 1
10
2 2
1155
10 A
5 B
100AALT
T 3
TAILLIGHT
RELAY
15A
TAIL
R5
TAILLIGHTLH
[REARCOMB.LIGHTLH]
R6
TAILLIGHTRH
[REARCOMB.LIGHTRH]
L2
LICENSEPLATELIGHTLH
L3
LICENSEPLATELIGHTRH
F3
FRONTCLEARANCELIGHTLH
F4
FRONTCLEARANCELIGHTRH
C9
COMBINATIONMETER
H4HAZARDSW
RADIOANDPLAYER
B5
BLOWERSW
A17
A/CSW
A19
A/TINDICATORLIGHT
C5
CIGARETTELIGHTER
D5
DEFOGGERSW
J 2
JUNCTION
CONNECTOR
(for Earth)
R 4
RHEOSTAT
BATTERY
OFF
TAIL
HEAD
J 4
JUNCTION
CONNECTOR No. 1
C11
LIGHT CONTROL SW
[COMB. SW]
2
2 EB2
W
FL MAIN
2. 0L
A
Power
Source
G
Taillight and Illumination (for USA)
2
1
G
To Clock<8–2>
A
A
A
A
1 2 3 4
5 6 7 8 9 10
1 2
3 4 5 6
AB
RADIO AND PLAYER
1
2
LIGHT
CONTROL
G
Back panel center Front right
fender
Behind combination meter
G–Y G–Y G–Y G–YG–YW–BW–B
R2B,R3A
R 3R 2
IE
W–B J 2
JUNCTION
CONNECTOR
(for Earth)
A
11
To Light Reminder
Relay<9–4>
Behind combination meter
W–B
G–RToTheftDeterrent
ECU<11–4>
OVERALL ELECTRICAL WIRING DIAGRAM
1234
6PASEO
1E1
1C151C16
2
2
1G8
6
1F
2
1
2
1
3
2
3
1
4
2
55
22
11
44
11
10
1A7
2EB2
BJEAEB
61441
83213
13IE1
AA
A
10A
5B
IE
21
A
GGG
GGGGGGG
G–YW–B
G
G
LG
G
W B
G–B
W
W
G–B
G
G
G
G
G G
G
GG
G–W
G
G
G
G
G
G
W–G
G–Y
G–Y
G–Y
G–R
G–Y
G–Y
W–B
W–B
W–B
W–B
W–B
W–B
W–B
LG
BATTERY
FLMAIN
2.0L
G–R
15A
TAIL
T3
TAILLIGHT
RELAY
100AALT
R5
TAILLIGHTLH
[REARCOMB.LIGHTLH]
R6
TAILLIGHTRH
[REARCOMB.LIGHTRH]
ToDaytimeRunning
LightRelay<4–2>
L2
LICENSEPLATE
LIGHTLH
L3
LICENSEPLATE
LIGHTRH
F3
FRONTCLEARANCELIGHTLH
F4
FRONTCLEARANCELIGHTRH
C9
COMBINATIONMETER
H4HAZARDSW
RADIOANDPLAYER
8IE1
G–Y G–Y
FromDaytimeRunning
LightRelay<4–3>
J4
JUNCTION
CONNECTORNo.1
B5BLOWERSW
A17
A/CSW
A19
A/TINDICATORLIGHT
D5
DEFOGGERSW
C5
CIGARETTELIGHTER
J2
JUNCTION
CONNECTOR
(forEarth)
R4
RHEOSTAT
Power
Source
TaillightandIllumination(forCanada)
A
G
ToClock<8–2>
1234
5678910
12
3456
AB
RADIOANDPLAYER
2
1
ToDaytimeRunning
LightRelay<4–3>
BackpanelcenterFrontrightfender
Front
leftfender
Behindcombinationmeter
G–YG–YG–YG–YG–YW–BW–B
R2B,R3A
R3R2
ToLightReminder
Relay<9–4>
G
1 2 3 4
7 PASEO
2
50AAM1
100AALT
2 2
1 EB2 7 EB2 7 EB1
1
2
1A8 2
1C31F8
1F7
1C11 1F10 1C10
1E1 2
1G5
1C1
1C14 1C13
BJ BH
1 1
1
2
2
1
2
1
1B1
1G12
9 EB1
4 BG1
5
1
1D2
1F9
2 B
6 A
5 A
1 B
5
4
5
1
BJBK
1
8 ID3
ID53
1 BJ2
BJ12
2
3
DOOR
OFF
ON
2
1
3
1D
7 IC1
5 5
6 6
FromTheftDeterrent
ECU<11–4>
FromTheft
Deterrent
ECU<11–4>
FromLight
ReminderRelay
<9–4>
FromTheftDeterrent
ECU<11–3>
FromSeatBeltWarning
Relay<9–2>
10A
STOP
15A
DOME
15A
GAUGE
BATTERY
BACK–UP LIGHT
[REAR COMB.
LIGHT]
STOPLIGHT
[REARCOMB.LIGHT]
H6
HIGHMOUNTSTOPLIGHT
(w/oRearSpoiler)
H5
HIGHMOUNTSTOPLIGHT
(w/RearSpoiler)
(A/T)
(M/T)
(A/T)
(M/T)
(A/T)
(M/T)
G–W
G–W
R–W
W–BW–B
G–W
R–L
W–B
R–B
W–L
W
W–G
W
W–G
W–L
BB
W–G
B–Y
W
W–L
B–YR–LR–LR–BR–BR–BR–BW–B
W–BW–B
B–WR–WR–L
R
R
R
R–WR–W
R–W
L–Y
L–YR
W–G
G–W
G–WG–W
G–W
G–WW–B
W–B
W–B
B
G–W
FL MAIN
2. 0L
L6
LUGGAGE
COMPARTMENT
LIGHTSW
D9
DOORCOURTESY
SWFRONTLH
D10
DOOR COURTESY
SW FRONT RH
D 8
DIODE
(for Theft
Deterrent
System)
1
BACK–UP
LIGHT SW
L5
LUGGAGE
COMPARTMENT
LIGHT
C10
OPEN DOOR
WARNING LIGHT
[COMB. METER]
I 9
IGNITION SW
I10
INTERIORLIGHT
Power Source Stop Light Interior Light Back–Up Light
(*1)
1 2
2
9
7
ACC
IG1
ST1
IG2
ST2
AM1 4
AM2
R 6
RH
R 5
LH
R 6
RH
R 5
LH
1 2 3 4
5 6 7 8 9
B AGRAY GRAY
BACK–UP LIGHT SW
From Diode
(for Theft
Deterrent System)
<11–3>
R–W
Back panel center Under the rear
left pillar
Back panel centerRoof front
2
2
4
4 7
G–WS 6
STOP
LIGHT SW
1 IK1
R–Y
B 1 P 1
B 1 B , P 1 A
IK1
2
C
C C C
J 5
JUNCTION
CONNECTOR No. 2
ToABSECU
<14–4>
ToEngineControlModule
(EngineandElectronic
ControlledTransmissionECU)
<2–2>
ToCruiseControlECU
<13–4>
ToShiftLockECU
<10–4>
G–W
G–W
G–W
G–W
R–L
2 1
(*1)
*1 : (w/ Theft Deterrent System)
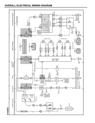
OVERALL ELECTRICAL WIRING DIAGRAM
1234
8PASEO
ACC
IG1
ST1
IG2
ST2
AM1
5
4
AM2
2
1B121A5
1G5
2
1C821A6
1C2
3
1C
1A2
7IC1
3IE1
7EB11EB2
IFID
7IE1
3
1
4
A
1
A
5
A
2
A
6
A
1
B
3
B
2
B
6
B
3A
7A
BI2
11
BI1
BI2
24
BI1
BH2
11
BH1
BH2
24
BH1
1B1
1C20
M
21
EB1
11
5ID3
ID52
10ID3
ID56
9ID3
ID55
4ID3
ID51
EB
2IC2
GR
LG
L
P
V
R
W
B
YY
B
W
R
L
LG
L
LG
11
1G
W–G
W–L
W–G W–G
W–L
B B
R–WR–WR–LB–Y
W–L
L–R
B–Y
W–LW–L
L L
L–W
L–B
L–R
W–B
L–W
L–B
L–R
L
W–B
G
W–B W–B
W–B
W–BGR
L–Y
GR
GR GR
R
L–R
B–Y
L
L–Y
BR
W–L
R–W
344
15
1
1
2
2
4
2
12
1
1
2
25
6
32
I9
IGNITIONSW
100AALT
50AAM1
C9
O/DOFF
INDICATORLIGHT
[COMB.METER]
A19
O/DMAINSW
C7
CLOCKC5
CIGARETTE
LIGHTER
15A
GAUGE
15A
DOME
15A
CIG
J3
JUNCTIONCONNECTOR
(forEarth)
RADIOANDPLAYER
FromEngine
ControlModule
(Engineand
Electronic
Controlled
Transmission
ECU)<2–4>
FRONTSPEAKER REARSPEAKER
R8
RH
R7
LH
F9
RH
F8
LH
20A
WIPERW1
WASHERMOTOR
WIPERAND
WASHERSW
[COMB.SW]
WIPERRELAY
BS+1+2IN1IN2WEW
(A/T)
(M/T)
OFF
INT
LOW
HIGH
WASHER
1234
5678910
12
3456
BAGRAYGRAY
F5
FRONTWIPER
MOTOR
J2
JUNCTION
CONNECTOR
(forEarth)
RADIOANDPLAYER
(*1)(*2)
FromTaillight
Relay(USA)<5–4>
FromDaytime
RunningLight
Relay(Canada)<6–4>
BATTERY
FLMAIN
2.0L
*1:(w/TheftDeterrentSystem)
*2:(w/oTheftDeterrentSystem)
P
V
(*2)
(*2)
(*1)
(*1)
AAAA
D
D
J1
JUNCTION
CONNECTOR
7
L
PowerSourceOverdriveClockCigarette
Lighter
RadioandPlayerFrontWiperandWasher
7
9
M
W–B
2
2
Instrumentpanel
centerbraceRH
Leftkick
panel
Behindcombination
meter
R–W
(*1)(*2)
2
2
4
4
R2B,R3A
R2R3
P–L
(USA)
(USA)
(USA)
B
B
C
C
GR
L–Y
J4
JUNCTION
CONNECTOR
No.1
GR
(Canada)
(Canada)
P–L
C(USA)C12BLACK
B(CANADA)C12BLACK
18D
5C
8D
4C
4D
6C
7D
1C
13D
2C
16D
3C
IE
1
W–B
W–B
(USA)
(Canada)
(USA)
(Canada)
(USA)
(Canada)
191C
C12C,D
123456789
1011121314151617181920
12
3456
Frontleft
fender
BG1
10
BG1
16
BG1
9
BG1
15
1 2 3 4
9 PASEO
1B12
1B2
6
1G5
6 62 2
1E1
2
1C3
1C8 1C9
6
6 6
2
7 IC1
7 BG1
1 EB2 2 EB2 7 EB1
6 IE1
2
1
2
1
IFIE IF BI
AA A
47 1
3
3
A
4
8 9 5
1A5
1A6
2
2 2
6 IC1
3 4
A
1 2
10 1
7 IE1
FromTheftDeterrent
ECU<11–3>
FromTAILFuse(USA)<5–3>
FromDaytimeRunning
LightRelay(Canada)<6–3>
ToDoorCourtesySW
LH<7–3>
ToDoorCourtesySW
LH<7–3>
ToTheftDeterrent
ECU<11–4>
R–LR–L
R–L
R–G
W–L
G–R
R–L
R–L
L–W
GR
R–LG
R
G–Y
G–Y
G–YG–Y
B
G–W
B
W–B
B
R–L
R–L
R–LW–B
R–GR–G
W–B
W–B
W–BW–BG–RG–R
R
L–YR
W–G
W–L
W
W–L
W
W–GW–G
W
W–L
BB
L–R
W
L–R
B–Y
B–Y
15A
DOME
15A
GAUGE
BATTERY
BKL
KSW(USA)
L–SW(Canada) E
FL MAIN
2. 0L
I 9
IGNITION SW
DSWD(USA)
CTY(Canada)
B IG
B6
BUCKLESW
U1
UNLOCK
WARNINGSW
C9
SEATBELT
WARNINGLIGHT
[COMB.METER]
J 3
JUNCTION
CONNECTOR
(for Earth)
D 5
DEFOGGER SW
J 3
JUNCTION
CONNECTOR
(for Earth)
J 2
UNCTION
CONNECTOR
(for Earth)
C11
HORNSW
[COMB.SW]
H3
HORN
REARWINDOW
DEFOGGER
DEFOGGER
RELAY
HORN
RELAY
L 1
LIGHT REMINDER
RELAY
30A
DEF
15A
CIG
J 5
JUNCTION
CONNECTOR
No. 2
S 3
SEAT BELT WARNING RELAY
Power Source Unlock and
Seat Belt Warning
Rear Window
Defogger
H o rn Light Reminder
7
ACC
IG1
ST1
IG2
ST2
AM1
5
4
AM2
100AALT
50AAM1
1 2
2
3 4 1 3
1 2 2
7
9 2
1
W–G
Instrument
panel
center
brace RH
Behind combination
meter
Instrument panel
center brace RH
Under the rear right pillar
2
2
15A
HAZ–HORN
2
W–G
TIMER
CIRCUIT
(w/o Timer)
(w/ Timer)
(w/ Timer)
(w/ Timer)
(w/o Timer)
(w/oTimer)
2
6
1 A
1 B
6 4
4
REAR WINDOW DEFOGGER
1 1
A BBLACK BLACK
R9,R10AB
R 9 R 8
R–L
A
IG
(USA)(USA)
W–BW–B
(Canada)(Canada)
Right
kick
panel
6
P
OVERALL ELECTRICAL WIRING DIAGRAM
1234
10PASEO
21B
2
1C121C18
2
21B
1EB2
7EB1
10IC1
7IC1
7
ACC
IG1
ST1
IG2
ST2
AM1
5
4
AM2
7596
810
3
2
1
ON
OFF
B1FTLB2TBTR
A
A
IEBJEBBJ
16A1B
2B
5
22
5
2
33
2
1F41G11G31F1
4IE15IE1
9IE1
45
A
B
A
B
13
6
1C91A2
1A5
IEIF
10IE17IE1
1
2
AA
W–L
LG
G–RG–R
G–Y
G–B
W–BW–B
G–W
W–B
W–B
W–B
W–B
W–B
G–R
G–B
G–B
G–Y
B B
W–L
W–GW–GW–G
W–L
W–L W–G W–G
L–R
G–Y
G–W
R–L
GRGR
R–L
GR
R–L L–B
W–B
L–B W–B
W–B
G–Y
G–Y
G–B
G–B
W–B
I9
IGNITIONSW
100AALT
50AAM1
G–B
G–Y
L–R
R–Y
5
1
G–B
G–Y
10A
TURN
15A
HAZ–HORN
T5
TURNSIGNAL
FLASHER
H4
HAZARDSW
TURNSIGNALSW
[COMB.SW]
J2
JUNCTION
CONNECTOR
(forEarth)
BATTERY
FLMAIN
2.0L
R5
REARTURN
SIGNALLIGHTLH
[REARCOMB.LIGHTLH]
F3
FRONTTURN
SIGNALLIGHTLH
F4
FRONTTURN
SIGNALLIGHTRH
R6
REARTURN
SIGNALLIGHTRH
[REARCOMB.LIGHTRH]
LHRH
TURNSIGNAL
INDICATORLIGHT
[COMB.METER]
15A
CIG
15A
GAUGE
J5
JUNCTION
CONNECTOR
No.2
S4
SHIFTLOCKECU
FromStop
Light
SW<7–2>
SHIFTLOCK
CONTROLSW
SHIFTLOCK
SOLENOID
J2
JUNCTION
CONNECTOR
(forEarth)
J3
JUNCTION
CONNECTOR
(forEarth)
K1
KEYINTERLOCK
SOLENOID
TURNSIGNALINDICATORLIGHT
[COMB.METER]
A
BBLUE
PowerSourceTurnSignalandHazardWarningLightShiftLock
2
4
2
6
G–R
L–R
R–Y
BehindcombinationmeterBack
panel
center
Front
left
fender
BackpanelcenterBehindcombinationmeterInstrumentpanel
centerbraceRH
C9,C10AB
C9
C10
123456
1011789121314
1234
5678910
C(USA)C10BLACK
D(CANADA)C10BLACK
5C
2D
8C
4D
3D
1C
C
,
DC11
(USA)
(Canada)
(USA)
(Canada)
16111098543211213146715
13987654321101112
J4
JUNCTION
CONNECTOR
No.1
J1
JUNCTION
CONNECTOR
(Canada)
R–L
GR
D
D
(USA)
(USA)
Front
right
fender
EA
W–B
(Canada)
(USA)
G–R
G
G–W
L–R
L–R
1 2 3 4
11 PASEO
7
ACC
IG1
ST1
IG2
ST2
AM1
5
AM2
7 IC1
7 EB11 EB2
2
2 1A5
1G5
2
1C2
2 1A2
2
1
5 BI1 5 BH1
2 BI1 6 BI1 3 BI1 6 BH1 3 BH1 2 BH1
2
1
3 IC1 3 BJ1
2 BJ1
EB BH
3
1
2
1
1 BG2 4 BG2 3 BG2
IF IE
14 A
2 B
W–L
1611109854321 1213146 7 15 13987654321 101112
A B
FOPCTY2BKULCTY1INDFLLKEYLKELUFRLE
7 12 10 11 3 16 14 1 13 4
1819209515617
2
1
3131
22
W–GW–GW–G
W–L
BB
R
L–R
L–Y
GR
W–B
P
W–L
W–G
P
W–L
W–G
W–L
P–L
LG–R
P–B
P–BP–BP–BW–B
W–B
W–BW–B
W–B
W–B
W–B
W–BW–B
W–B
R–W
L
R–W
L
R–W
LW–BW–B
R–G
R
G–Y
R–L
G–R
B–W
R–LR–L
P–L
W–G
B
B
B ACC
W–L
W–G
KSW FOD HORN HEAD TAIL SRLY
A A A A
BATTERY
FL MAIN
2. 0L
J 3
JUNCTION
CONNECTOR
(for Earth)
J 2
JUNCTION
CONNECTOR
(for Earth)
D14
DOORUNLOCK
DETECTIONSWRH
D12
DOORKEYLOCKAND
UNLOCKSWRH
D11
DOORKEYLOCKAND
UNLOCKSWLH
D13
DOORUNLOCK
DETECTIONSWLH
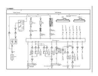
THEFTDETERRENT
INDICATORLIGHT
[COMB.METER]
D7
DIODE
(forTheftDeterrent
System)
E4
ENGINEHOOD
COURTESYSW
L4
LUGGAGECOMPARTMENT
KEYUNLOCKSW
ToLuggageCompartment
LightSW<7–2>
ToDoorCourtesySW
RH<7–3>
FromStarterRelay
<1–2>
FromTaillightRelay
<5–2>
FromHeadlightRelay
<4–2>
FromHornRelay
<9–2>
ToDoorCourtesySW
LH<7–3>
ToUnlockWarningSW
<9–2>
15A
CIG
J 4
JUNCTION
CONNECTOR
No. 1
15A
DOME
I 9
IGNITION SW
100AALT
50AAM1
T 4
THEFT DETERRENT ECU
THEFT DETERRENT INDICATOR LIGHT
[COMB. METER]
BLUE
Power Source Theft Deterrent
ToDoorCourtesy
SW<7–3>
LOCK
UNLOCK
UNLOCK
LOCK
2
9
2
GRL–R
7
Instrument panel
center brace RH
Behind combination meter Front left fender Under the rear left pillar
C9,C10AB
C 9 C10
C
C
L–Y
P–L
D
D
J 1
JUNCTION
CONNECTOR
J 4
JUNCTION
CONNECTOR
No. 1
B
B
B
J 5
JUNCTION
CONNECTOR
2
2 IC1
8
2
1
V–WV–WW–G
SH
T 1
THEFT DETERRENT
HORN
15A
HAZ–HORN
6
2
4
W–L W–L
OVERALL ELECTRICAL WIRING DIAGRAM
1234
12PASEO
7
ACC
IG1
ST1
IG2
ST2
AM1
5
32AM2
12IC1
7IC1
7EB1
1EB2
1A4
2
1A5
2
2
1A10
1A2
2
2
2
2
2
11IC1
3IC2
5EB17ID3
ID54
3A1A6A9A
2B1B1C2C8A7A10A5A
12
SPIRAL
CABLE
11
IGIF
+SL–SL+SR–SRD+D–E1E2
123
7891065
4
AB
21
BA
12
AB
AC3YELLOW
BC2YELLOW
CC4YELLOW
W–R
W–G
W–L
W–L
W–G
W–R
W–G
B–R
W–L
B–R
L–R
P–L
B–O
P–L
B–O
W–L
I9
IGNITIONSW
15A
AM2
50AAM1
2
2
8
7
4
4
CENTERAIRBAGSENSORASSEMBLY
W–LB
FLMAIN
2.0L
BATTERY
B–R
R–G
R–G
B–Y
B–YB–Y
Y–B Y–B Y–B Y–B
B
W
B
W
B
W
W–B
W–B
DACB
10
1215
DACCB
9
ABTC
15A
CIG
F7
7.5AIGN
[FUSEBOX
No.2]
10A
ECU–B
D1
DATALINKCONNECTOR1
(CHECKCONNECTOR)
J1
JUNCTIONCONNECTOR
(forAirbagSystem)
CENTERAIRBAGSENSORASSEMBLY
4
3
7
10
B–Y
C10
SRSWARNINGLIGHT
[COMB.METER] ACCIG2LATC
(A/T)
(M/T)
C2B,C4C,C3A
A
J3
JUNCTION
CONNECTOR
(forEarth)
Instrumentpanel
centerbraceRH
Behindcombination
meter
F1
FRONTAIRBAG
SENSORLH
F2
FRONTAIRBAG
SENSORRH
A22
AIRBAGSQUIB
W–B
W–B
PowerSourceSupplementalRestraintSystem
W–G B
100AALT
L–R
22
SRSS(()
1 2 3 4
13 PASEO
7
ACC
IG1
ST1
IG2
ST2
AM1 4
AM2
7 IC1
1 EB2 7 EB2 7 EB1
2 2
2
1A9 2 1C8
1C2
5 EB1
1 EB1
2 ID4
5 IC24 IC29 IC210 IC211 IC2
1E1 2
M
IF EA IE
3 IC2
8 IC2
1G5
22916205151
1 2 3 7 6
1
13 4 18 24 25 26 11 12 10 2 23
2
4
A A A
3
W–L
W–G B–Y
P–GP–G
R–G
G–W
Y
Y–R
L–R
Y–B
B–W
L–R
Y–B
R–W
R
P–B
P–L
PP
P–L
P–B
R
R–W
R–LV–Y
L–Y
W–G
G–B
G–R
W–B
W–B
BBW
W–GW–G
W–L
W
W–B
W–G
W–B
GND CMS CCS VR1 VR2 VR3 MC MO L N&C TC IDL
W–L
Y–B
L–R
B
ECTODSTP–SPDPKBBBATTSTP+
W
W–L
B–Y
I 9
IGNITION SW
100AALT
50AAM1
10A
STOP
15A
DOME
F 7
7. 5A
ECU–IG
[FUSE BOX
No. 2]
C 9
CRUISE CONTROL
INDICATOR LIGHT
[COMB. METER]
BATTERY
J 3
JUNCTION
CONNECTOR
(for Earth)
CANCEL
SET/
COAST
RESUME/
ACCEL
MAIN
C 1
CRUISE CONTROL ACTUATOR
J 2
JUNCTION
CONNECTOR
(for Earth)
ToEngineControlModule
(EngineandElectronic
ControlledTransmission
ECU)<2–4>
ToEngineControlModule
(EngineECU)<3–4>
ToPark/NeutralPositionSW
(NeutralStartSW)<1–2>
ToParkingBrakeSW
<15–1>
ToVehicleSpeedSensor
<15–3>
FromStopLightSW
<7–1>
FromEngineControlModule
(EngineandElectronic
ControlledTransmissionECU)
<2–2>
FromEngineControlModule
(EngineandElectronic
ControlledTransmissionECU)
<2–4>
C14
CRUISE CONTROL ECU
Power Source Cruise Control
FL MAIN
2. 0L
C13
CRUISECONTROL
CLUTCHSW
2
9
1 2
7
1
4
(A/T)
CRUISECONTROLSW
(M/T)
ToDataLink
Connector1
(CheckConnector)
<2–2><3–2>
(A/T)(A/T)
Instrument panel
center brace RH
Front right fender Behind combination meter
(A/T)
2
2
4
4
R
L–Y
C C
J 4
JUNCTION
CONNECTOR
No. 1
1
15A
GAUGE
1B
PI
B–RL–W
2
1
1 2 3 4 5 6 7 8 9
10 11 12 13 14 15 16 17 18 19 20
1 2 3
4 5 6 7 8
A(USA) C12 BLACK
B(CANADA) C15
1 B
15 A
2 B
5 A
5 B
17 A
(USA)
(Canada)
(USA)
(Canada)
C12A,C15B
B
B
Y–B
(Canada)
(USA)(USA)
Y–B
J1
JUNCTION
CONNECTOR
14
12 IC2
4 IK1
4
3
3 IK1
5
R–YR–YG–BR–YR–B
S 6
STOP
LIGHT
SW
8
OVERALL ELECTRICAL WIRING DIAGRAM
1234
14PASEO
7
ACC
IG1
ST1
IG2
ST2
AM14
AM2
7IC1
2EB2
4IC211IC25IC212IC2
1EB27EB1
1BG15BG12BG16BG1
4
4
2
2222
1
45
23
6
12
34
12
345
1234
5678
2C4C3D1D
2D4D1C5C
18H11H7H20H
1H2H14H15H6G5G12G11G8H26H
4A
12B
1
I
1
J
1B1
2
1C8
IC2
9
6
C
CA9GRAY
DA10GRAY
EA5GRAY
FA6GRAY
2
3F7F4F8F2F6F1F5F3E5E
M
4E2E1E
EA
16111098543211213146715
13987654321101112
F7
7.5A
ECU–IG
[FUSEBOX
No.2]
5H17H12H3H
2
2
8IC2
C
C
24H25H
10EB15EB1
5IC1
1
22H23H21H10H9H
(SHIELDED)
(SHIELDED)
BR
A11
ABSSPEED
SENSORFRONTLH
A12
ABSSPEED
SENSORFRONTRH
BR
Y
P
L
22122
3G2G1G8G9G
(SHIELDED)
(SHIELDED)
BR
A23
ABSSPEED
SENSORREARLH
A24
ABSSPEED
SENSORREARRH
G
R
Y
BR
11
7G10G
BH
123456
789101112
12345678910111213
14151617181920212223242526
11
GA20DARKGRAYHA21DARKGRAYIA7GRAYJA8GRAY
ABSECUABSCHECKCONNECTOR
W–B
W–B
GNDGNDFR–FR+FSSFL–FL+RR–RR+RSSRL–RL+MTASTSRLRSRLASFRRSFRASRRR
IG1BATSTPPKBTSTCR–W
R–W
R–G
BR–W
BR–B
R–W R–W
R–G R–G
BR–W BR–W
BR–BBR–B
LG
R–L
SFRASFRRSRLASRLRASTMT
+BMGND
W–B
L–W
W–B
L–W
G–W
L–B
Y–B
A20G,A21HABSECU
C9A,C10B
A7I,A8J
AC9
BC10BLUE
ABSWARNINGLIGHT
[COMB.METER]
ABSWARNINGLIGHT[COMB.METER]
A9C,A10D
ABSRELAY
G–BG–B
R–L
B–YB–Y
L–W
R
G–WG–W
Y–R
L–B
Y–B
1615
TSTC
D1
DATALINK
CONNECTOR1
(CHECKCONNECTOR)
FromStopLightSW
<7–2>
ToBrakeFulidLevel
SW<15–2>
15A
DOME
J5
JUNCTION
CONNECTORNo.2
W–L
L–B
G–BG–B
15A
GAUGE
2112
2
FLMAIN
2.0L
BATTERY
B B
W–L
W–L
W–L
60AABS
100AALT
50AAM1
W
W
W–GW–G
L–W
L–R
L–R
W–B
P
P–B
GR
GR–G
A5E,A6F
ABSACTUATOR
+BS
SFLASFLRSRRASRRR
SFLASFLRSRRA
SRMR
W–L
W–L
L
I9
IGNITIONSW
ABSRELAY
ABSCHECKCONNECTOR
G
G–R
Power
Source
ABS(Anti–LockBrakeSystem)
W–G
B–Y
G–B
L
L
B–Y
W–B
W–B
27
19
FrontrightfenderUnder
therear
left
pillar
1 2 3 4
15 PASEO
2
1B1
1C5
1C8
2 1C4 1G7
7 IC1
7 EB1
4 A
9 A 13 A 3 A 15 A 1 A 7 A 5 A 2 A 12 A 8 A
8 EB1
11 IE1
11 EB1
EB EC
1
1
6 B
8 ID1
ID45
9 ID1
ID46
14 ID1
ID412
1
12 B 11 B 8 B 3 B10 B 2 B 11 A
7
B
9 B 1 B16 A 14 A 10 A
3 BG1 12 BG1
ID IE
A
11 BG1
4
1 3
7
ACC
IG1
ST1
IG2
ST2
AM1 4
AM2
2
1
(A/T)
(M/T)
15A
GAUGE
B–Y
Y–R
W–GW–GW–G
B
Y–R
Y–R
Y–R
W–BW–B
YY
Y–G
BR
B
BR
Y–B
Y–L
BR
W–BW–B
BR
BR
BR
BR
Y–G
BR
Y–B
Y–L
Y
R–L
I 9
IGNITION SW
50AAM1
100AALT
Y–R
SeeChargingSystem
<1–4>
SeeChargingSystem
<1–4>
SeeSeatBeltWarning
System<9–2>
SeeOverdriveSystem
<8–1>
SeeCruiseControl
System<12–3>
Y–R
BATTERY
BRAKE
CHARGE
SEATBELT
O/DOFF
CRUISECONTROL
OIL
WATERTEMP.
FL MAIN
2. 0L
FromDaytimeRunning
LightRelay<4–3>
FromCruiseControl
ECU<13–3>
P2
PARKING
BRAKESW
O1
OILPRESSURESW
W4
WATERTEMP.
SENDER
FromIgniter
<1–3>
B2
BRAKEFLUID
LEVELSW
F10
FUELSENDER
BRBR
SeeHeadlightSystem
<4–2>(USA)
<4–3>(Canada)
SeeSRSSystem
<12–3>
SeeTaillightandIllumination
System<5–3><6–3>
TACHO
METER
ILLUMINATION
SECURITY
TURNRH
TURNLH
AIRBAG
HIGHBEAM
VEHICLESPEED
SENSOR
FUEL
ABS
SeeTaillightandIllumination
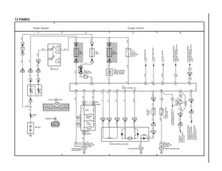
System<5–3><6–3>
SeeTheftDeterrent
System<11–3>
SeeTurnSignaland
HazardWarningLight
System<10–3>
SeeHeadlightand
InteriorLightSystem
<4–2><7–3>
FromEngineControlModule
(EngineandElectronic
ControlledTransmission
ECU)<2–4>
FromEngineControlModule
(EngineECU)<3–4>
Combination MeterPower
Source
(USA)
(Canada)
J 2
JUNCTION
CONNECTOR
(for Earth)
2
1
1611109854321 1213146 7 15 13987654321 101112
B
A
COMBINATION METER
Front left fender Intake manifold Left kick panel Behind
combination meter
COMBINATION METER
C 9 , C10A B
C 9 C102
2
1 EB2
W–L
W–L
B
Y–R
B
B
B
Y–R
(Canada)
J 5
JUNCTION
CONNECTOR
Y–R
From ABS ECU
<14–4>
FUEL
13 B
SeeABS
System<14–3>
4 B
B5
SeeInteriorLight
System<7–3>
DOOR
11 IC1
2
2
R–GR–GW–L
10A
ECU–B
W–L
W–L
4
4
Y–R
7
10
Y
Y
(Canada)
(Canada)
ToDaytimeRunning
LightRelay<4–3>
A6
SeeEngineControlModule
(EngineandElectronic
ControlledTransmission
ECU)<2–2>
SeeEngineControlModule
(EngineECU)<3–2>
MALFUNCTION
INDICATORLAMP
(CHECKENGINE
WARNINGLIGHT)
From Crulse
Control ECU
<13–4>
Y
Y
OVERALL ELECTRICAL WIRING DIAGRAM
1234
16PASEO
22
2
1G941B14
44
2
444
41C84
1A10
3EB21ID27EB1
16IF1
8IF111IF1
12IF1
12IC17IC1
4IF1
8IC1
1
3
4
2
2
EB2
1
7
2
ACC
IG1
ST1
IG2
ST2
AM14
3AM2
2
1
M
3ID3
ID510
17913
67
IGIE
6
5
173
2
254
13IC1
9IC114IC1
153
58
3IF1
13IF1
1IF114IF1
2IF1
11
654
12ID3
ID58
1
2
2
1
7IF1
15IF1
1612
10IF1
IG
11ID3
ID57
W–LW–BL–R
L–R
P
P
LG
R–Y
W–G
LG–R
L–W
B–R
W–L
W
W
W–B
W–B
W–R
L–W
L–W
P
R–Y
R–Y
B–L
W–G
W–G
W–G
W
RR
L
W–G
R–Y
R–Y
R–Y
W–G
B–R
W–G
W
W
W–RW–R
W–G W–G
W
W
B
W–R
W–B
W–B
P–BG–R
W–B
W–B
L–R
R–G
P–L
BR–R BR–R
P–L
R–G
R–L
BR
V
LG–B
V
LG
LG–R
L
R–L
R–G
PP P
100AALT
50AAM1
I9
IGNITIONSW
15A
AM2
HEATER
RELAY
30A
HEATER
15A
GAUGE
10A
A/C
B3
BLOWER
MOTOR
BATTERY
23
41
L–Y
L–B
FromA/C
Condenser
FanRelay
No.3<16–6>
ToA/C
Condenser
FanRelayNo.3
<16–6><16–8>
OFFLOM1M2HI
B5
BLOWERSW
B4
BLOWERRESISTOR
A4
A/CMAGNETIC
CLUTCHAND
COMPRESSOR
SENSOR
(Canada)
A14
A/CAMPLIFIER
A16
A/CMAGNETIC
CLUTCHRELAY
(A/T)
(M/T)
A17
A/CSW
A15
A/CDUAL
PRESSURESW
A3
A/CIDLE–UP
VSV
(A/T)
(M/T)
PowerSourceRadiatorFanandAirConditioning
7
8
12
2
FLMAIN
2.0L
FromEngineControlModule
(EngineandElectronic
ControlledTransmission
ECU)<2–4>
FromEngineControlModule
(EngineECU)<3–4>
(A/T)
(M/T)
1
21
2
B–Y
41
2
53
(Cont.nextpage)
(USA)
ToCheck
Connector
<2–3><3–3>
RightkickpanelBehindcombinationmeterRightkickpanel
9IF1
21
A18
A/CTHERMISTOR
R–GV
W–B
2
2
4
4
W–L
W–L
R–Y
1
20IF1
BB
FromIgniter
<1–3>
ToEngineControlModule
(EngineandElectronic
ControlledTransmission
ECU)<2–4>
ToEngineControlModule
(EngineECU)<3–4>
AJ2
JUNCTION
CONNECTOR
(forEarth)
2
V
(Canada)
(Canada)
(USA)
P
5 6 7 8
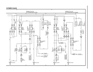
16 PASEO (Cont’d)
Radiator Fan and
Air Conditioning (for Canada)
EB
2 2 2
2 22 2 2 2
2 2 2 2 2
1
2
M
2
1
EB
1
1 IC1
LG–R
LG
L–B
LG
L–B
LG–R
L–BW–B
W–BW–B
W–R
W–B
B–R
W–L
W–R
B–R
W
W–B
2
1
L–B
LG–R
ENGINEMAIN
RELAY
RADIATOR
FANRELAY
No.1
A/CCONDENSER
FANRELAY
No.2
LG–RLG
R1
RADIATOR
FANMOTOR
W 3
WATER
TEMP. SW
A2
SHORTPIN
(w/oA/C)
A2
A/CHIGH
PRESSURESW
(w/A/C)
4 3 3 2 3 5
5
2
1 4 1 1 4
2
2
2 2 5 5
5 5
2 2
2 2 5 5 5
5 5
2
1
3
4
1
3
5
4
2
2
1
4
3
1
2
M
1
2
M
2
1
EA1EA1 EA1 6 EA1
1
2
M
IC1
1
4 EA1
6 EB1
1
EB EB
1
2
5
3
22
22
LG–R
LG
2
1
A2
SHORTPIN
(w/oA/C)
A/C CONDENSER
FAN RELAY
NO. 3
RADIATOR
FANRELAY
NO.1
A/CCONDENSER
FANRELAY
No.2
30A
RADIATOR
FAN
30A
CONDENSER
FAN
A1
A/CCONDENSER
FANMOTOR
R1
RADIATORFAN
MOTOR
A2
A/CHIGH
PRESSURESW
(w/A/C)
A/C CONDEN SER
FAN RELAY
NO. 3
A1
A/CCONDENSER
FANMOTOR
F6
30A
RDIFAN
[FUSEBOXNo.1]
F6
30A
CDSFAN
[FUSEBOXNo.1]
FromMagnetic
Clutch Relay<16–3>
EA1
2
FromEngineControl
Module(Engineand
ElectronicControlled
TransmissionECU)<2–4>
W3
WATERTEMP.SW
Front left fenderFront left fender
FromMagnetic
Clutch Relay<16–3>
To Magnetic Clutch
and Compressor
Sensor<16–2>
FromEngineControl
Module(Engineand
ElectronicControlled
TransmissionECU)<2–4>
W–L
B–R
W–L
W–L
P
P
W–B
W–L
L–B
LG–R
LG–R
L–B
W–B
W–B
LW–L
W–L
P
W–B
LG–R
LG–R
W–G
W–B
W–L
LG–R
L–B
LG–R
L
W–L
P P
P
P
B–RB–R
W–B
W–B
W–B
W–B
Front left fender
(A/T)
(A/T)
W–B
Radiator Fan and
Air Conditioning (for USA)
Front left fender
2 3 4 2
1 3
W–B
W–G
L–B
LG–RLGLG
(A/T)
W–L
W–R
W–R
5 3 1
W–G
B–R
LG–R
EB16
(A/T)
LG–R
B–R
B–R
B–R
(USA)
(USA)
(Canada)
L–B
1
B–R
W–R

Esquemas eléctricos Toyota Paseo 1996

  • 1.
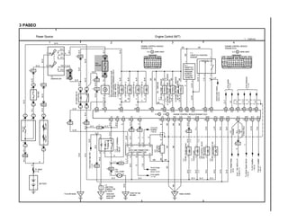
    OVERALL ELECTRICAL WIRINGDIAGRAM 1234 1PASEOELECTRICALWIRINGDIAGRAM 7 ACC IG1 ST1 IG2 ST2 AM14 32AM2 2 2 2 2 2 7IC112IC1 7EB1 7ID4 12EB1 1G9 10 1A 4 1A 3 2 3 1 4 2 IE A EB2 1 4EB1 412 35 13ID1 ID411 13ID3 ID59 1G L 3 G 1 H 2 G S B IG 1C 1 D 6B 13A B–W B–W B–R W–G B–R B–RB–R Y–L W–L B–Y W W–G W–G W–R W–G W–R B–W W–G B–R W–G B–R B–R B–R B–R B–L Y–L Y–L R–LB–Y Y–L W–L W R–L BB W–B B B–W B–W W–B LG–Y LG B G W R B B FromCruise ControlECU <13–4> ToA/CAmplifier<16–4> ToTachometer [COMB.METER]<15–3> ToCheckConnector <2–2><3–2> ToEngineControlModule (EngineandElectronic ControlledTransmissionECU)<2–4> TOEngineControlModule (EngineECU)<3–4> ToDaytimeRunning LightRelay<4–3> I9 IGNITIONSW BATTERYSTARTER GENERATOR (ALTERNATOR) IGNITIONCOILANDDISTRIBUTOR CHARGEWARNINGLIGHT [COMB.METER] I1 IGNITER DISTRIBUTOR S5 STARTERRELAY 15A AM2 B–O W–G FLMAIN 2.0L B B (A/T) (M/T) J2 JUNCTION CONNECTOR (forEarth) (A/T) (M/T) (*2) (*2) (*1) (Canada) ChargingIgnitionStartingPowerSource*1:(w/TheftDeterrentSystem) *2:(w/oTheftDeterrentSystem) 100AALT 50AAM1 8 12 2 1 H GENERATOR (ALTERNATOR) CHARGEWARNINGLIGHT [COMB.METER] 1611109854321121314671513987654321101112 BA 11 CD STARTER BLACK F7 7.5AIGN [FUSEBOXNo.2] 1F2F3F4F 1 E 2 E B–R Behindcombinationmeter 1212 34 EF IGNITIONCOILANDDISTRIBUTOR B W–G 2 2 4 4 W–L W–L S1S2 C9,C10B A S1C,S2D I2I3 I2E,I3F C9C10 G1 G1H,G2G 12 15A GAUGE 1B1 1G 7.5A ALT–S 2 2 4 3 15 16 W–G W–L 9EB1 A A (USA) (USA) B–O B–O (Canada) J1 JUNCTION CONNECTOR 123 GG2GRAY DARKGRAYDARKGRAY 9ID4 ID112 112 (M/T)(M/T) (A/T) B–W (A/T) (A/T) (A/T) B B–R (A/T) B–RB–R(M/T) C8 CLUTCHSTART SW (A/T) B–R (A/T) B–R (M/T) (A/T) ToEngineControl Module(Engineand ELlectronic Controlled TransmissionECU) <2–2> ToTheftDeterrent ECU<11–4> P1 PARK/NEUTRAL POSITIONSW (NEUTRAL STARTSW) B–R (A/T) 7 8ID4 TOEngine ControlModule (EngineECU)<3–2> B–R (M/T) BLUE how about
  • 2.
    OVERALL ELECTRICAL WIRINGDIAGRAM 1234 2PASEO 1A10 22 1B1 1C8 22 1G9 12IC1 4ID4 13EB1 14EB1 8ID4 6 4 ID4 10 49 2 A BATT A W C L C 2 A STP A OD1 A NSW C #10 C #20 B E21 B E2 B VF A FC A +B1 A +B A STA B DG B T B OX C E1 C E01 C E02 C SPD2 C TOV C EGR 2 1 2 1 2 1 2 1 1 2 1 2 7 ACC IG1 ST1 IG2 ST2 AM14 32AM2 9 32 176 3 1 IFEBBH M 26 ID4 3 13BG1 1 2 181513 541 A ID A ELS A OD2 A AC1 A ACT A SPD C S2 C SL C S1 C TWS C FPU C DISC 432 1 1 FromIgniter <1–3> FromDistributor <1–3> 2 1 2 11 2 1 2 1321 B THG B THW B THA B PIM B VCC B VTA B IDL C IGF C IGT C NE C NE– C G C G– BR W–R B–OB–O B–R B–RB–RBRBRBR B–WB–W W–R G B L–YL–Y BR B–OB–OB–O W–R G–W Y–L O G–W R–G WW Y Y Y W BR BR L G–B LG–B P LG–R Y–G LG–Y LG R W G B BR BR BR LG–R Y–G L–RL–R BR BR BR B–R B–R B–R B–R B–W B–Y W–R B–R B–R B–Y W–R B–O W–B B–O B–R B–O B–O G G–Y L V BRB B BR BR BR LG–B R–G P–L G–R L–W L P P–B P–G P–G P–G P–B P L B–O B–O B–O B–O BR BR BR BR V Y–B B–O W–B L–Y W–B B–R B–O W–B BR Y LG–B P–B R–W LG–R B–R R–L BR I9 IGNITIONSW W–R 1 5196420221211169 1112131487156141326168 B–W EFIMAIN RELAY 15A GAUGE C9 MALFUNCTIONINDICATORLAMP (CHECKENGINEWARNINGLIGHT) [COMB.METER] P1 PARK/NEUTRALPOSITIONSW (NEUTRALSTARTSW) FromStopLightSW <7–2> ToCruiseControlECU <13–4> I4INJECTORNo.1 I6INJECTORNo.3 I5INJECTORNo.2 I7INJECTORNo.4 C6 CIRCUITOPENING RELAY L–Y B–O FP+BTCOPT VF1TTTE1 E1 FromCruise ControlECU <13–4> J3 JUNCTION CONNECTOR (forEarth) FromPark/Neutral PositionSW (NeutralStartSW)<1–2> D1 DATALINKCONNECTOR1 (CHECKCONNECTOR) O2 OXYGEN SENSOR B–W 10 43211112320417518 23109721159211072 T2 THROTTLEPOSITION SENSOR M1 MANIFOLD ABSOLUTE PRESSURE SENSOR (VACUUM SENSOR) E1EGRGASTEMP.SENSOR E3ENGINECOOLANTTEMP.SENSOR (EFIWATERTEMP.SENSOR) I8INTAKEAIRTEMP.SENSOR (INAIRTEMP.SENSOR) ENGINECONTROLMODULE(ENGINEANDELECTRONICCONTROLLEDTRANSMISSIONECU) 1 V3 VSV(forThrottleOpener) V1 VSV(forEGR) A13 AIRCONTROLVALVE (forIdleControl) V2 VSV(forFuelPressureUp) W2 WATER TEMP.SW ToCruiseControl ECU<13–4> ToVehicleSpeed Sensor<15–4> FromA/CAmplifier <16–4> ToA/CAmplifier <14–4> ToO/DMainSW<8–1> ToA/CHighPressureSW <16–6><16–7> No.1 No.3 No.2 (*1) (*1) *1:(California) Power Source EngineControlandElectronicControlledTransmission(A/T) B–W 23 15 B–R L2 F10 FUELPUMP B–O CDARKGRAY ENGINECONTROLMODULE (ENGINEAND ELECTRONICCONTROLLED TRANSMISSIONECU) FromCruise ControlECU<13–4> L–R AB Frontleftfender Instrument panelcenter braceRH Undertherear leftpillar Leftkickpanel OX 4 IG– 18 B FromA/C Amplifier <16–4> FromIgniter <1–3> BR BR ENGINECONTROLMODULE(ENGINEAND ELECTRONICCONTROLLEDTRANSMISSIONECU) DARKGRAYDARKGRAY ENGINECONTROLMODULE(ENGINEAND ELECTRONICCONTROLLEDTRANSMISSIONECU) 2 BR B 27IC1 7EB1 W–R W–GW–G W–R 15AAM2 B BATTERY FLMAIN 2.0L 8 222 2 2 2 542 4 2 15AEFI 50AAM1 100AALT 7 W–L W–L W–G B–R 1EB2 W–L A,E9B,E8CE7 E9E8 E7 2 1 1ID4 G–W G–W G–W G–W 2 W 23 LG–R 1234567891011 1213141516171819202122 12345678 910111213141516 12345678910111213 14151617181920212223242526 B–R G–W 12EB1 B–O W–R W W W V4 VEHICLESPEEDSENSOR (forElectronicControlled TransmissionSystem) E2 ELECTRONIC CONTROLLED TRANSMISSION SOLENOID
  • 3.
    1 2 34 3 PASEO 7 ACC IG1 ST1 IG2 ST2 AM1 4 32 AM2 2 1 2 1 2 1 2 1 2 1 2 1 2 1 1 2 2 1 2 1 1 2 ECEB IF BH M 2 6 2 A B20B21B8B9B6B7 A5 B19B17B18B4B5B3B23B16B25A10 B12 11 AA9 A1 A4 A16 A8 B10 B24 B13 B26 A7 B15 B14 B1 B11B2 A13 A14 2 2 1B1 1G9 1C8 2 2 12 IC1 12 EB1 11 ID1 3 ID3 13 EB1 5 ID1 10 ID1 13 BG1 ID1 1 ID1 7 4 IC1 1A10 W–R B–R B–R W–R W Y BR BR BR BR B B–O B–O B–OB–OB–O B–R B–O W–R W–G B–Y B–R B–Y B–RB–R B–R B–R B–R BR BR BR BR BR P LG–R LG–R Y–G L–R BR B–OB–OB–O W–B W–B L–YB–OB–O B–O G G–Y V B BR BR BR R–G P–L G–R L–W R–GB–O B–O B–O B–O LG–R L G–B LG–B WW W–R B–RB–R G–WR–L W–RW–R G–Y V L–Y B–O B Y–B BR BRBR W–B B–R B B–R B–R Y LG–B P–B LG–Y LG B G R W L–Y YY 2 151881 2 3 9 6 3 1 1 4 6 4 3 2 1 5 4 1 3 2 A G L–Y B–O +B +B1 FC VF T OX E1 E01 E02 TOV EGR DISC FPU NSW STA SPD ACT AC1 TCIG–+BFP BATT W #10 #20 E2 THG THW THA PIM VCC VTA IDL ELS IGF IGT G– G1 NE NE– E1 TE1VF1 I 9 IGNITION SW 15A GAUGE C9 MALFUNCTIONINDICATORLAMP (CHECKENGINEWARNINGLIGHT) [COMB.METER] EFIMAINRELAY I4INJECTORNO.1 I6INJECTORNO.3 I5INJECTORNO.2 I7INJECTORNO.4 E1 EGRGASTEMP.SENSOR E3ENGINECOOLANTTEMP.SENSOR (EFIWATERTEMP.SENSOR) I8INTAKEAIRTEMP.SENSOR (INAIRTEMP.SENSOR) C6 CIRCUITOPENING RELAY D 1 DATA LINK CONNECTOR 1 (CHECK CONNECTOR) J 3 JUNCTION CONNECTOR (for Earth) V3 VSV(forThrottleOpener) V1 VSV(forEGR) A13 AIRCONTROLVALVE (forIdleControl) V2 VSV(forFuelPressureUp) ToVehicleSpeedSensor <15–4> ToA/CAmplifier <16–4> FromA/CAmplifier <16–4> F10 FUEL PUMP FromIgniter <1–3> FromClutchStartSW <1–2> From”10AHEAD(LH)” Fuse<4–1> FromIgniter <1–3> FromDistributor <1–3> T 2 THROTTLE POSITION SENSOR M 1 MANIFOLD ABSOLUTE PRESSRE SENSOR (VACUUM SENSOR) A DARK GRAY ENGINE CONTROL MODULE (ENGINE ECU) B DARK GRAY ENGINE CONTROL MODULE (ENGINE ECU) (Ex.California) (*1) (*1) O2 OXYGEN SENSOR ENGINE CONTROL MODULE(ENGINE ECU) Power Source Engine Control (M/T) *1 : (California) 1 5 2 3 (*1) (*1) (*1) (*1) B–R B–R B–R Front left fender Instrument panel center brace RH Under the rear left pillar Intake manifold 4 OXOPT 13 V FromCruise Control ECU<13–4> FromA/C Amplifier <16–4> BR BR FromCruiseControl ECU<13–4> L–R 2 7 IC1 7 EB1 W–R W–GW–G W–R 15AAM2 B BATTERY FL MAIN 2. 0L 8 2 2 2 2 2 2 5 4 2 4 2 15AEFI 50AAM1100AALT 7 W–L BR B W–L 1 EB2 W–L A, E 6BE 5 E 6 E 5 LG 14 EB1 G–W G–W G–W W 2 1 2 3 4 5 6 7 8 9 10 1112 13141516 1 2 3 4 5 6 7 8 9 10 11 12 13 14 15 161718 1920 212223 24 25 26 2 ID1 R–LR (Canada) (USA) FromTaillightRelay <6–2> G–W W–R W Y 6 ID1 (PuertoRico) R
  • 4.
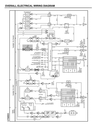
    OVERALL ELECTRICAL WIRINGDIAGRAM 1234 4PASEO 2 2 2 1G5 1B1 2 2 1C2 21C92 21 3 21 3 7 ACC IG1 ST1 IG2 ST2 AM14 AM2 6IC21IC2 E E 1EB2 7EB1 7IC1 1214 98184111015 71635 586 9 19 A IEIEIF HF HL HU HF HL HU HF HL HU HUEDTELRF OFF TAIL HEAD HF HL HU HF HL HU HF HL HU HUERF OFF TAIL HEAD AA 13 22 22 222 2222 2 22 6IC2 17 6 EA R–W R–Y R–W D6 DIODE (ForDaytime RunningLight System) BB W–L W–GW–GW–G W–L B–Y Y W–L W–L B–Y W–L B–W R B–Y R–Y R–G R–W R–L W–B W–B W–B W–B W–B R–G G–W R–Y R–Y R–Y LG Y–L G–R Y Y–R G R–LR–L R–L R R–YR–Y R–W R–L W–B L–Y R–W R–Y R–W I9 IGNITIONSW 100AALT50AAM1 10A HEAD LH 10A HEAD RH 15A DOME HEADLIGHT H1 LH H2 RH FLMAIN 2.0L BATTERY C11 LIGHT CONTROLAND DIMMERSW [COMB.SW] J2 JUNCTION CONNECTOR (forEarth) J2 JUNCTION CONNECTOR (forEarth) J3 JUNCTION CONNECTOR (forEarth) FromEngineControlModule (EngineECU)<3–4> C11 LIGHT CONTROLAND DIMMERSW [COMB.SW] FromTaillight Relay<6–2> FromGenerator(Alternator) <1–4> FromTaillightRelay<6–1> FromBrakeWarningLight [COMB.METER]<15–1> FromABSECU<14–4> ToParkingBrakeSW<15–1> ToIlluminationLight andClock<6–2> R–L R–B D4 DAYTIMERUNNINGLIGHTRELAY DIMMER RELAY HEADLIGHT RELAY HEADLIGHT H1 LH H2 RH 15A GAUGE 10AHEAD(LH–UPR) 10AHEAD(LH–LWR) 10AHEAD(RH–UPR) 10AHEAD(RH–LWR) 33 2121 Power Source Headlight(forUSA)Headlight(forCanada) W–B 2 2 9 7 324 143132 1 41 32 121 HLB1T1 Behindcombinationmeter 3 RightkickpanelInstrumentpanel centerbraceRH Frontrightfender 12 1413 2 2 7 7 W–L W–L(CANADA) LG 2 2 4 4 W–L 1IC2 22 3 4 2 1 22 Y W–L R–L R–L R–L W–L R–Y R R R–W 13 HEADLIGHT RELAY ToEngineControlModule (EngineECU)<3–4> ToTheft Deterrent ECU<11–4> W–B W–B R–W A 11 2 10 7.5A DRL 11 2 3 4 2 1 2 3 C10 HIGHBEAMINDICATORLIGHT [COMB.METER] 2 1 W–B IG BR–W BR–W BR–WBR BR–W W–B R–G R R–B B–Y R–B R B–Y R–G R 12 3 1 2 D2 DAYTIME RUNNING LIGHTRELAY No.4 D3 DAYTIMERUNNING LIGHTRESISTOR W–B R R B–Y R B Y R–L R–G C10 HIGHBEAM INDICATORLIGHT [COMB.METER] 2 3 W–B Behind combination meter R–L R–L 7IC2 (Canada) (USA)(USA) C C L–Y J4 JUNCTION CONNECTOR No.1 1 2 2 L S7 SHORTPIN J5 JUNCTION CONNECTOR No.2 7IC2
  • 5.
    1 2 34 5 PASEO 4 2 3 1 2 1 2 1 3 2 4 1 2 2 1E1 1A7 1G8 1C15 6 1F 6 8 1 3 4 2 1 3 8 IE1 1C16 13 IE1 EAIE BJ G G G G–W G G G G G G G BW G–B G–R G W–B W–B W–B W–B G G G G GW–B W–B G–Y G–Y W–G G–Y G–R GG G G G G G–W W–B W–B G–Y W–B G–YG–Y G–Y G–Y G G G G G G G–B 4 4 1 1 10 2 2 1155 10 A 5 B 100AALT T 3 TAILLIGHT RELAY 15A TAIL R5 TAILLIGHTLH [REARCOMB.LIGHTLH] R6 TAILLIGHTRH [REARCOMB.LIGHTRH] L2 LICENSEPLATELIGHTLH L3 LICENSEPLATELIGHTRH F3 FRONTCLEARANCELIGHTLH F4 FRONTCLEARANCELIGHTRH C9 COMBINATIONMETER H4HAZARDSW RADIOANDPLAYER B5 BLOWERSW A17 A/CSW A19 A/TINDICATORLIGHT C5 CIGARETTELIGHTER D5 DEFOGGERSW J 2 JUNCTION CONNECTOR (for Earth) R 4 RHEOSTAT BATTERY OFF TAIL HEAD J 4 JUNCTION CONNECTOR No. 1 C11 LIGHT CONTROL SW [COMB. SW] 2 2 EB2 W FL MAIN 2. 0L A Power Source G Taillight and Illumination (for USA) 2 1 G To Clock<8–2> A A A A 1 2 3 4 5 6 7 8 9 10 1 2 3 4 5 6 AB RADIO AND PLAYER 1 2 LIGHT CONTROL G Back panel center Front right fender Behind combination meter G–Y G–Y G–Y G–YG–YW–BW–B R2B,R3A R 3R 2 IE W–B J 2 JUNCTION CONNECTOR (for Earth) A 11 To Light Reminder Relay<9–4> Behind combination meter W–B G–RToTheftDeterrent ECU<11–4>
  • 6.
    OVERALL ELECTRICAL WIRINGDIAGRAM 1234 6PASEO 1E1 1C151C16 2 2 1G8 6 1F 2 1 2 1 3 2 3 1 4 2 55 22 11 44 11 10 1A7 2EB2 BJEAEB 61441 83213 13IE1 AA A 10A 5B IE 21 A GGG GGGGGGG G–YW–B G G LG G W B G–B W W G–B G G G G G G G GG G–W G G G G G G W–G G–Y G–Y G–Y G–R G–Y G–Y W–B W–B W–B W–B W–B W–B W–B LG BATTERY FLMAIN 2.0L G–R 15A TAIL T3 TAILLIGHT RELAY 100AALT R5 TAILLIGHTLH [REARCOMB.LIGHTLH] R6 TAILLIGHTRH [REARCOMB.LIGHTRH] ToDaytimeRunning LightRelay<4–2> L2 LICENSEPLATE LIGHTLH L3 LICENSEPLATE LIGHTRH F3 FRONTCLEARANCELIGHTLH F4 FRONTCLEARANCELIGHTRH C9 COMBINATIONMETER H4HAZARDSW RADIOANDPLAYER 8IE1 G–Y G–Y FromDaytimeRunning LightRelay<4–3> J4 JUNCTION CONNECTORNo.1 B5BLOWERSW A17 A/CSW A19 A/TINDICATORLIGHT D5 DEFOGGERSW C5 CIGARETTELIGHTER J2 JUNCTION CONNECTOR (forEarth) R4 RHEOSTAT Power Source TaillightandIllumination(forCanada) A G ToClock<8–2> 1234 5678910 12 3456 AB RADIOANDPLAYER 2 1 ToDaytimeRunning LightRelay<4–3> BackpanelcenterFrontrightfender Front leftfender Behindcombinationmeter G–YG–YG–YG–YG–YW–BW–B R2B,R3A R3R2 ToLightReminder Relay<9–4> G
  • 7.
    1 2 34 7 PASEO 2 50AAM1 100AALT 2 2 1 EB2 7 EB2 7 EB1 1 2 1A8 2 1C31F8 1F7 1C11 1F10 1C10 1E1 2 1G5 1C1 1C14 1C13 BJ BH 1 1 1 2 2 1 2 1 1B1 1G12 9 EB1 4 BG1 5 1 1D2 1F9 2 B 6 A 5 A 1 B 5 4 5 1 BJBK 1 8 ID3 ID53 1 BJ2 BJ12 2 3 DOOR OFF ON 2 1 3 1D 7 IC1 5 5 6 6 FromTheftDeterrent ECU<11–4> FromTheft Deterrent ECU<11–4> FromLight ReminderRelay <9–4> FromTheftDeterrent ECU<11–3> FromSeatBeltWarning Relay<9–2> 10A STOP 15A DOME 15A GAUGE BATTERY BACK–UP LIGHT [REAR COMB. LIGHT] STOPLIGHT [REARCOMB.LIGHT] H6 HIGHMOUNTSTOPLIGHT (w/oRearSpoiler) H5 HIGHMOUNTSTOPLIGHT (w/RearSpoiler) (A/T) (M/T) (A/T) (M/T) (A/T) (M/T) G–W G–W R–W W–BW–B G–W R–L W–B R–B W–L W W–G W W–G W–L BB W–G B–Y W W–L B–YR–LR–LR–BR–BR–BR–BW–B W–BW–B B–WR–WR–L R R R R–WR–W R–W L–Y L–YR W–G G–W G–WG–W G–W G–WW–B W–B W–B B G–W FL MAIN 2. 0L L6 LUGGAGE COMPARTMENT LIGHTSW D9 DOORCOURTESY SWFRONTLH D10 DOOR COURTESY SW FRONT RH D 8 DIODE (for Theft Deterrent System) 1 BACK–UP LIGHT SW L5 LUGGAGE COMPARTMENT LIGHT C10 OPEN DOOR WARNING LIGHT [COMB. METER] I 9 IGNITION SW I10 INTERIORLIGHT Power Source Stop Light Interior Light Back–Up Light (*1) 1 2 2 9 7 ACC IG1 ST1 IG2 ST2 AM1 4 AM2 R 6 RH R 5 LH R 6 RH R 5 LH 1 2 3 4 5 6 7 8 9 B AGRAY GRAY BACK–UP LIGHT SW From Diode (for Theft Deterrent System) <11–3> R–W Back panel center Under the rear left pillar Back panel centerRoof front 2 2 4 4 7 G–WS 6 STOP LIGHT SW 1 IK1 R–Y B 1 P 1 B 1 B , P 1 A IK1 2 C C C C J 5 JUNCTION CONNECTOR No. 2 ToABSECU <14–4> ToEngineControlModule (EngineandElectronic ControlledTransmissionECU) <2–2> ToCruiseControlECU <13–4> ToShiftLockECU <10–4> G–W G–W G–W G–W R–L 2 1 (*1) *1 : (w/ Theft Deterrent System)
  • 8.
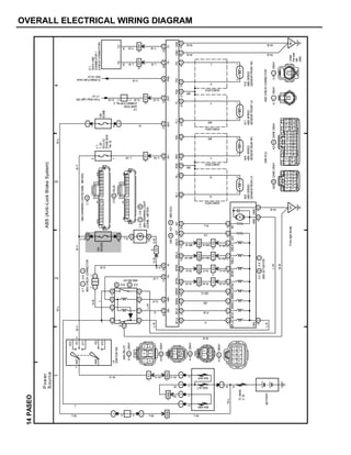
    OVERALL ELECTRICAL WIRINGDIAGRAM 1234 8PASEO ACC IG1 ST1 IG2 ST2 AM1 5 4 AM2 2 1B121A5 1G5 2 1C821A6 1C2 3 1C 1A2 7IC1 3IE1 7EB11EB2 IFID 7IE1 3 1 4 A 1 A 5 A 2 A 6 A 1 B 3 B 2 B 6 B 3A 7A BI2 11 BI1 BI2 24 BI1 BH2 11 BH1 BH2 24 BH1 1B1 1C20 M 21 EB1 11 5ID3 ID52 10ID3 ID56 9ID3 ID55 4ID3 ID51 EB 2IC2 GR LG L P V R W B YY B W R L LG L LG 11 1G W–G W–L W–G W–G W–L B B R–WR–WR–LB–Y W–L L–R B–Y W–LW–L L L L–W L–B L–R W–B L–W L–B L–R L W–B G W–B W–B W–B W–BGR L–Y GR GR GR R L–R B–Y L L–Y BR W–L R–W 344 15 1 1 2 2 4 2 12 1 1 2 25 6 32 I9 IGNITIONSW 100AALT 50AAM1 C9 O/DOFF INDICATORLIGHT [COMB.METER] A19 O/DMAINSW C7 CLOCKC5 CIGARETTE LIGHTER 15A GAUGE 15A DOME 15A CIG J3 JUNCTIONCONNECTOR (forEarth) RADIOANDPLAYER FromEngine ControlModule (Engineand Electronic Controlled Transmission ECU)<2–4> FRONTSPEAKER REARSPEAKER R8 RH R7 LH F9 RH F8 LH 20A WIPERW1 WASHERMOTOR WIPERAND WASHERSW [COMB.SW] WIPERRELAY BS+1+2IN1IN2WEW (A/T) (M/T) OFF INT LOW HIGH WASHER 1234 5678910 12 3456 BAGRAYGRAY F5 FRONTWIPER MOTOR J2 JUNCTION CONNECTOR (forEarth) RADIOANDPLAYER (*1)(*2) FromTaillight Relay(USA)<5–4> FromDaytime RunningLight Relay(Canada)<6–4> BATTERY FLMAIN 2.0L *1:(w/TheftDeterrentSystem) *2:(w/oTheftDeterrentSystem) P V (*2) (*2) (*1) (*1) AAAA D D J1 JUNCTION CONNECTOR 7 L PowerSourceOverdriveClockCigarette Lighter RadioandPlayerFrontWiperandWasher 7 9 M W–B 2 2 Instrumentpanel centerbraceRH Leftkick panel Behindcombination meter R–W (*1)(*2) 2 2 4 4 R2B,R3A R2R3 P–L (USA) (USA) (USA) B B C C GR L–Y J4 JUNCTION CONNECTOR No.1 GR (Canada) (Canada) P–L C(USA)C12BLACK B(CANADA)C12BLACK 18D 5C 8D 4C 4D 6C 7D 1C 13D 2C 16D 3C IE 1 W–B W–B (USA) (Canada) (USA) (Canada) (USA) (Canada) 191C C12C,D 123456789 1011121314151617181920 12 3456 Frontleft fender BG1 10 BG1 16 BG1 9 BG1 15
  • 9.
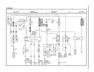
    1 2 34 9 PASEO 1B12 1B2 6 1G5 6 62 2 1E1 2 1C3 1C8 1C9 6 6 6 2 7 IC1 7 BG1 1 EB2 2 EB2 7 EB1 6 IE1 2 1 2 1 IFIE IF BI AA A 47 1 3 3 A 4 8 9 5 1A5 1A6 2 2 2 6 IC1 3 4 A 1 2 10 1 7 IE1 FromTheftDeterrent ECU<11–3> FromTAILFuse(USA)<5–3> FromDaytimeRunning LightRelay(Canada)<6–3> ToDoorCourtesySW LH<7–3> ToDoorCourtesySW LH<7–3> ToTheftDeterrent ECU<11–4> R–LR–L R–L R–G W–L G–R R–L R–L L–W GR R–LG R G–Y G–Y G–YG–Y B G–W B W–B B R–L R–L R–LW–B R–GR–G W–B W–B W–BW–BG–RG–R R L–YR W–G W–L W W–L W W–GW–G W W–L BB L–R W L–R B–Y B–Y 15A DOME 15A GAUGE BATTERY BKL KSW(USA) L–SW(Canada) E FL MAIN 2. 0L I 9 IGNITION SW DSWD(USA) CTY(Canada) B IG B6 BUCKLESW U1 UNLOCK WARNINGSW C9 SEATBELT WARNINGLIGHT [COMB.METER] J 3 JUNCTION CONNECTOR (for Earth) D 5 DEFOGGER SW J 3 JUNCTION CONNECTOR (for Earth) J 2 UNCTION CONNECTOR (for Earth) C11 HORNSW [COMB.SW] H3 HORN REARWINDOW DEFOGGER DEFOGGER RELAY HORN RELAY L 1 LIGHT REMINDER RELAY 30A DEF 15A CIG J 5 JUNCTION CONNECTOR No. 2 S 3 SEAT BELT WARNING RELAY Power Source Unlock and Seat Belt Warning Rear Window Defogger H o rn Light Reminder 7 ACC IG1 ST1 IG2 ST2 AM1 5 4 AM2 100AALT 50AAM1 1 2 2 3 4 1 3 1 2 2 7 9 2 1 W–G Instrument panel center brace RH Behind combination meter Instrument panel center brace RH Under the rear right pillar 2 2 15A HAZ–HORN 2 W–G TIMER CIRCUIT (w/o Timer) (w/ Timer) (w/ Timer) (w/ Timer) (w/o Timer) (w/oTimer) 2 6 1 A 1 B 6 4 4 REAR WINDOW DEFOGGER 1 1 A BBLACK BLACK R9,R10AB R 9 R 8 R–L A IG (USA)(USA) W–BW–B (Canada)(Canada) Right kick panel 6 P
  • 10.
    OVERALL ELECTRICAL WIRINGDIAGRAM 1234 10PASEO 21B 2 1C121C18 2 21B 1EB2 7EB1 10IC1 7IC1 7 ACC IG1 ST1 IG2 ST2 AM1 5 4 AM2 7596 810 3 2 1 ON OFF B1FTLB2TBTR A A IEBJEBBJ 16A1B 2B 5 22 5 2 33 2 1F41G11G31F1 4IE15IE1 9IE1 45 A B A B 13 6 1C91A2 1A5 IEIF 10IE17IE1 1 2 AA W–L LG G–RG–R G–Y G–B W–BW–B G–W W–B W–B W–B W–B W–B G–R G–B G–B G–Y B B W–L W–GW–GW–G W–L W–L W–G W–G L–R G–Y G–W R–L GRGR R–L GR R–L L–B W–B L–B W–B W–B G–Y G–Y G–B G–B W–B I9 IGNITIONSW 100AALT 50AAM1 G–B G–Y L–R R–Y 5 1 G–B G–Y 10A TURN 15A HAZ–HORN T5 TURNSIGNAL FLASHER H4 HAZARDSW TURNSIGNALSW [COMB.SW] J2 JUNCTION CONNECTOR (forEarth) BATTERY FLMAIN 2.0L R5 REARTURN SIGNALLIGHTLH [REARCOMB.LIGHTLH] F3 FRONTTURN SIGNALLIGHTLH F4 FRONTTURN SIGNALLIGHTRH R6 REARTURN SIGNALLIGHTRH [REARCOMB.LIGHTRH] LHRH TURNSIGNAL INDICATORLIGHT [COMB.METER] 15A CIG 15A GAUGE J5 JUNCTION CONNECTOR No.2 S4 SHIFTLOCKECU FromStop Light SW<7–2> SHIFTLOCK CONTROLSW SHIFTLOCK SOLENOID J2 JUNCTION CONNECTOR (forEarth) J3 JUNCTION CONNECTOR (forEarth) K1 KEYINTERLOCK SOLENOID TURNSIGNALINDICATORLIGHT [COMB.METER] A BBLUE PowerSourceTurnSignalandHazardWarningLightShiftLock 2 4 2 6 G–R L–R R–Y BehindcombinationmeterBack panel center Front left fender BackpanelcenterBehindcombinationmeterInstrumentpanel centerbraceRH C9,C10AB C9 C10 123456 1011789121314 1234 5678910 C(USA)C10BLACK D(CANADA)C10BLACK 5C 2D 8C 4D 3D 1C C , DC11 (USA) (Canada) (USA) (Canada) 16111098543211213146715 13987654321101112 J4 JUNCTION CONNECTOR No.1 J1 JUNCTION CONNECTOR (Canada) R–L GR D D (USA) (USA) Front right fender EA W–B (Canada) (USA) G–R G G–W L–R L–R
  • 11.
    1 2 34 11 PASEO 7 ACC IG1 ST1 IG2 ST2 AM1 5 AM2 7 IC1 7 EB11 EB2 2 2 1A5 1G5 2 1C2 2 1A2 2 1 5 BI1 5 BH1 2 BI1 6 BI1 3 BI1 6 BH1 3 BH1 2 BH1 2 1 3 IC1 3 BJ1 2 BJ1 EB BH 3 1 2 1 1 BG2 4 BG2 3 BG2 IF IE 14 A 2 B W–L 1611109854321 1213146 7 15 13987654321 101112 A B FOPCTY2BKULCTY1INDFLLKEYLKELUFRLE 7 12 10 11 3 16 14 1 13 4 1819209515617 2 1 3131 22 W–GW–GW–G W–L BB R L–R L–Y GR W–B P W–L W–G P W–L W–G W–L P–L LG–R P–B P–BP–BP–BW–B W–B W–BW–B W–B W–B W–B W–BW–B W–B R–W L R–W L R–W LW–BW–B R–G R G–Y R–L G–R B–W R–LR–L P–L W–G B B B ACC W–L W–G KSW FOD HORN HEAD TAIL SRLY A A A A BATTERY FL MAIN 2. 0L J 3 JUNCTION CONNECTOR (for Earth) J 2 JUNCTION CONNECTOR (for Earth) D14 DOORUNLOCK DETECTIONSWRH D12 DOORKEYLOCKAND UNLOCKSWRH D11 DOORKEYLOCKAND UNLOCKSWLH D13 DOORUNLOCK DETECTIONSWLH THEFTDETERRENT INDICATORLIGHT [COMB.METER] D7 DIODE (forTheftDeterrent System) E4 ENGINEHOOD COURTESYSW L4 LUGGAGECOMPARTMENT KEYUNLOCKSW ToLuggageCompartment LightSW<7–2> ToDoorCourtesySW RH<7–3> FromStarterRelay <1–2> FromTaillightRelay <5–2> FromHeadlightRelay <4–2> FromHornRelay <9–2> ToDoorCourtesySW LH<7–3> ToUnlockWarningSW <9–2> 15A CIG J 4 JUNCTION CONNECTOR No. 1 15A DOME I 9 IGNITION SW 100AALT 50AAM1 T 4 THEFT DETERRENT ECU THEFT DETERRENT INDICATOR LIGHT [COMB. METER] BLUE Power Source Theft Deterrent ToDoorCourtesy SW<7–3> LOCK UNLOCK UNLOCK LOCK 2 9 2 GRL–R 7 Instrument panel center brace RH Behind combination meter Front left fender Under the rear left pillar C9,C10AB C 9 C10 C C L–Y P–L D D J 1 JUNCTION CONNECTOR J 4 JUNCTION CONNECTOR No. 1 B B B J 5 JUNCTION CONNECTOR 2 2 IC1 8 2 1 V–WV–WW–G SH T 1 THEFT DETERRENT HORN 15A HAZ–HORN 6 2 4 W–L W–L
  • 12.
    OVERALL ELECTRICAL WIRINGDIAGRAM 1234 12PASEO 7 ACC IG1 ST1 IG2 ST2 AM1 5 32AM2 12IC1 7IC1 7EB1 1EB2 1A4 2 1A5 2 2 1A10 1A2 2 2 2 2 2 11IC1 3IC2 5EB17ID3 ID54 3A1A6A9A 2B1B1C2C8A7A10A5A 12 SPIRAL CABLE 11 IGIF +SL–SL+SR–SRD+D–E1E2 123 7891065 4 AB 21 BA 12 AB AC3YELLOW BC2YELLOW CC4YELLOW W–R W–G W–L W–L W–G W–R W–G B–R W–L B–R L–R P–L B–O P–L B–O W–L I9 IGNITIONSW 15A AM2 50AAM1 2 2 8 7 4 4 CENTERAIRBAGSENSORASSEMBLY W–LB FLMAIN 2.0L BATTERY B–R R–G R–G B–Y B–YB–Y Y–B Y–B Y–B Y–B B W B W B W W–B W–B DACB 10 1215 DACCB 9 ABTC 15A CIG F7 7.5AIGN [FUSEBOX No.2] 10A ECU–B D1 DATALINKCONNECTOR1 (CHECKCONNECTOR) J1 JUNCTIONCONNECTOR (forAirbagSystem) CENTERAIRBAGSENSORASSEMBLY 4 3 7 10 B–Y C10 SRSWARNINGLIGHT [COMB.METER] ACCIG2LATC (A/T) (M/T) C2B,C4C,C3A A J3 JUNCTION CONNECTOR (forEarth) Instrumentpanel centerbraceRH Behindcombination meter F1 FRONTAIRBAG SENSORLH F2 FRONTAIRBAG SENSORRH A22 AIRBAGSQUIB W–B W–B PowerSourceSupplementalRestraintSystem W–G B 100AALT L–R 22 SRSS(()
  • 13.
    1 2 34 13 PASEO 7 ACC IG1 ST1 IG2 ST2 AM1 4 AM2 7 IC1 1 EB2 7 EB2 7 EB1 2 2 2 1A9 2 1C8 1C2 5 EB1 1 EB1 2 ID4 5 IC24 IC29 IC210 IC211 IC2 1E1 2 M IF EA IE 3 IC2 8 IC2 1G5 22916205151 1 2 3 7 6 1 13 4 18 24 25 26 11 12 10 2 23 2 4 A A A 3 W–L W–G B–Y P–GP–G R–G G–W Y Y–R L–R Y–B B–W L–R Y–B R–W R P–B P–L PP P–L P–B R R–W R–LV–Y L–Y W–G G–B G–R W–B W–B BBW W–GW–G W–L W W–B W–G W–B GND CMS CCS VR1 VR2 VR3 MC MO L N&C TC IDL W–L Y–B L–R B ECTODSTP–SPDPKBBBATTSTP+ W W–L B–Y I 9 IGNITION SW 100AALT 50AAM1 10A STOP 15A DOME F 7 7. 5A ECU–IG [FUSE BOX No. 2] C 9 CRUISE CONTROL INDICATOR LIGHT [COMB. METER] BATTERY J 3 JUNCTION CONNECTOR (for Earth) CANCEL SET/ COAST RESUME/ ACCEL MAIN C 1 CRUISE CONTROL ACTUATOR J 2 JUNCTION CONNECTOR (for Earth) ToEngineControlModule (EngineandElectronic ControlledTransmission ECU)<2–4> ToEngineControlModule (EngineECU)<3–4> ToPark/NeutralPositionSW (NeutralStartSW)<1–2> ToParkingBrakeSW <15–1> ToVehicleSpeedSensor <15–3> FromStopLightSW <7–1> FromEngineControlModule (EngineandElectronic ControlledTransmissionECU) <2–2> FromEngineControlModule (EngineandElectronic ControlledTransmissionECU) <2–4> C14 CRUISE CONTROL ECU Power Source Cruise Control FL MAIN 2. 0L C13 CRUISECONTROL CLUTCHSW 2 9 1 2 7 1 4 (A/T) CRUISECONTROLSW (M/T) ToDataLink Connector1 (CheckConnector) <2–2><3–2> (A/T)(A/T) Instrument panel center brace RH Front right fender Behind combination meter (A/T) 2 2 4 4 R L–Y C C J 4 JUNCTION CONNECTOR No. 1 1 15A GAUGE 1B PI B–RL–W 2 1 1 2 3 4 5 6 7 8 9 10 11 12 13 14 15 16 17 18 19 20 1 2 3 4 5 6 7 8 A(USA) C12 BLACK B(CANADA) C15 1 B 15 A 2 B 5 A 5 B 17 A (USA) (Canada) (USA) (Canada) C12A,C15B B B Y–B (Canada) (USA)(USA) Y–B J1 JUNCTION CONNECTOR 14 12 IC2 4 IK1 4 3 3 IK1 5 R–YR–YG–BR–YR–B S 6 STOP LIGHT SW 8
  • 14.
    OVERALL ELECTRICAL WIRINGDIAGRAM 1234 14PASEO 7 ACC IG1 ST1 IG2 ST2 AM14 AM2 7IC1 2EB2 4IC211IC25IC212IC2 1EB27EB1 1BG15BG12BG16BG1 4 4 2 2222 1 45 23 6 12 34 12 345 1234 5678 2C4C3D1D 2D4D1C5C 18H11H7H20H 1H2H14H15H6G5G12G11G8H26H 4A 12B 1 I 1 J 1B1 2 1C8 IC2 9 6 C CA9GRAY DA10GRAY EA5GRAY FA6GRAY 2 3F7F4F8F2F6F1F5F3E5E M 4E2E1E EA 16111098543211213146715 13987654321101112 F7 7.5A ECU–IG [FUSEBOX No.2] 5H17H12H3H 2 2 8IC2 C C 24H25H 10EB15EB1 5IC1 1 22H23H21H10H9H (SHIELDED) (SHIELDED) BR A11 ABSSPEED SENSORFRONTLH A12 ABSSPEED SENSORFRONTRH BR Y P L 22122 3G2G1G8G9G (SHIELDED) (SHIELDED) BR A23 ABSSPEED SENSORREARLH A24 ABSSPEED SENSORREARRH G R Y BR 11 7G10G BH 123456 789101112 12345678910111213 14151617181920212223242526 11 GA20DARKGRAYHA21DARKGRAYIA7GRAYJA8GRAY ABSECUABSCHECKCONNECTOR W–B W–B GNDGNDFR–FR+FSSFL–FL+RR–RR+RSSRL–RL+MTASTSRLRSRLASFRRSFRASRRR IG1BATSTPPKBTSTCR–W R–W R–G BR–W BR–B R–W R–W R–G R–G BR–W BR–W BR–BBR–B LG R–L SFRASFRRSRLASRLRASTMT +BMGND W–B L–W W–B L–W G–W L–B Y–B A20G,A21HABSECU C9A,C10B A7I,A8J AC9 BC10BLUE ABSWARNINGLIGHT [COMB.METER] ABSWARNINGLIGHT[COMB.METER] A9C,A10D ABSRELAY G–BG–B R–L B–YB–Y L–W R G–WG–W Y–R L–B Y–B 1615 TSTC D1 DATALINK CONNECTOR1 (CHECKCONNECTOR) FromStopLightSW <7–2> ToBrakeFulidLevel SW<15–2> 15A DOME J5 JUNCTION CONNECTORNo.2 W–L L–B G–BG–B 15A GAUGE 2112 2 FLMAIN 2.0L BATTERY B B W–L W–L W–L 60AABS 100AALT 50AAM1 W W W–GW–G L–W L–R L–R W–B P P–B GR GR–G A5E,A6F ABSACTUATOR +BS SFLASFLRSRRASRRR SFLASFLRSRRA SRMR W–L W–L L I9 IGNITIONSW ABSRELAY ABSCHECKCONNECTOR G G–R Power Source ABS(Anti–LockBrakeSystem) W–G B–Y G–B L L B–Y W–B W–B 27 19 FrontrightfenderUnder therear left pillar
  • 15.
    1 2 34 15 PASEO 2 1B1 1C5 1C8 2 1C4 1G7 7 IC1 7 EB1 4 A 9 A 13 A 3 A 15 A 1 A 7 A 5 A 2 A 12 A 8 A 8 EB1 11 IE1 11 EB1 EB EC 1 1 6 B 8 ID1 ID45 9 ID1 ID46 14 ID1 ID412 1 12 B 11 B 8 B 3 B10 B 2 B 11 A 7 B 9 B 1 B16 A 14 A 10 A 3 BG1 12 BG1 ID IE A 11 BG1 4 1 3 7 ACC IG1 ST1 IG2 ST2 AM1 4 AM2 2 1 (A/T) (M/T) 15A GAUGE B–Y Y–R W–GW–GW–G B Y–R Y–R Y–R W–BW–B YY Y–G BR B BR Y–B Y–L BR W–BW–B BR BR BR BR Y–G BR Y–B Y–L Y R–L I 9 IGNITION SW 50AAM1 100AALT Y–R SeeChargingSystem <1–4> SeeChargingSystem <1–4> SeeSeatBeltWarning System<9–2> SeeOverdriveSystem <8–1> SeeCruiseControl System<12–3> Y–R BATTERY BRAKE CHARGE SEATBELT O/DOFF CRUISECONTROL OIL WATERTEMP. FL MAIN 2. 0L FromDaytimeRunning LightRelay<4–3> FromCruiseControl ECU<13–3> P2 PARKING BRAKESW O1 OILPRESSURESW W4 WATERTEMP. SENDER FromIgniter <1–3> B2 BRAKEFLUID LEVELSW F10 FUELSENDER BRBR SeeHeadlightSystem <4–2>(USA) <4–3>(Canada) SeeSRSSystem <12–3> SeeTaillightandIllumination System<5–3><6–3> TACHO METER ILLUMINATION SECURITY TURNRH TURNLH AIRBAG HIGHBEAM VEHICLESPEED SENSOR FUEL ABS SeeTaillightandIllumination System<5–3><6–3> SeeTheftDeterrent System<11–3> SeeTurnSignaland HazardWarningLight System<10–3> SeeHeadlightand InteriorLightSystem <4–2><7–3> FromEngineControlModule (EngineandElectronic ControlledTransmission ECU)<2–4> FromEngineControlModule (EngineECU)<3–4> Combination MeterPower Source (USA) (Canada) J 2 JUNCTION CONNECTOR (for Earth) 2 1 1611109854321 1213146 7 15 13987654321 101112 B A COMBINATION METER Front left fender Intake manifold Left kick panel Behind combination meter COMBINATION METER C 9 , C10A B C 9 C102 2 1 EB2 W–L W–L B Y–R B B B Y–R (Canada) J 5 JUNCTION CONNECTOR Y–R From ABS ECU <14–4> FUEL 13 B SeeABS System<14–3> 4 B B5 SeeInteriorLight System<7–3> DOOR 11 IC1 2 2 R–GR–GW–L 10A ECU–B W–L W–L 4 4 Y–R 7 10 Y Y (Canada) (Canada) ToDaytimeRunning LightRelay<4–3> A6 SeeEngineControlModule (EngineandElectronic ControlledTransmission ECU)<2–2> SeeEngineControlModule (EngineECU)<3–2> MALFUNCTION INDICATORLAMP (CHECKENGINE WARNINGLIGHT) From Crulse Control ECU <13–4> Y Y
  • 16.
    OVERALL ELECTRICAL WIRINGDIAGRAM 1234 16PASEO 22 2 1G941B14 44 2 444 41C84 1A10 3EB21ID27EB1 16IF1 8IF111IF1 12IF1 12IC17IC1 4IF1 8IC1 1 3 4 2 2 EB2 1 7 2 ACC IG1 ST1 IG2 ST2 AM14 3AM2 2 1 M 3ID3 ID510 17913 67 IGIE 6 5 173 2 254 13IC1 9IC114IC1 153 58 3IF1 13IF1 1IF114IF1 2IF1 11 654 12ID3 ID58 1 2 2 1 7IF1 15IF1 1612 10IF1 IG 11ID3 ID57 W–LW–BL–R L–R P P LG R–Y W–G LG–R L–W B–R W–L W W W–B W–B W–R L–W L–W P R–Y R–Y B–L W–G W–G W–G W RR L W–G R–Y R–Y R–Y W–G B–R W–G W W W–RW–R W–G W–G W W B W–R W–B W–B P–BG–R W–B W–B L–R R–G P–L BR–R BR–R P–L R–G R–L BR V LG–B V LG LG–R L R–L R–G PP P 100AALT 50AAM1 I9 IGNITIONSW 15A AM2 HEATER RELAY 30A HEATER 15A GAUGE 10A A/C B3 BLOWER MOTOR BATTERY 23 41 L–Y L–B FromA/C Condenser FanRelay No.3<16–6> ToA/C Condenser FanRelayNo.3 <16–6><16–8> OFFLOM1M2HI B5 BLOWERSW B4 BLOWERRESISTOR A4 A/CMAGNETIC CLUTCHAND COMPRESSOR SENSOR (Canada) A14 A/CAMPLIFIER A16 A/CMAGNETIC CLUTCHRELAY (A/T) (M/T) A17 A/CSW A15 A/CDUAL PRESSURESW A3 A/CIDLE–UP VSV (A/T) (M/T) PowerSourceRadiatorFanandAirConditioning 7 8 12 2 FLMAIN 2.0L FromEngineControlModule (EngineandElectronic ControlledTransmission ECU)<2–4> FromEngineControlModule (EngineECU)<3–4> (A/T) (M/T) 1 21 2 B–Y 41 2 53 (Cont.nextpage) (USA) ToCheck Connector <2–3><3–3> RightkickpanelBehindcombinationmeterRightkickpanel 9IF1 21 A18 A/CTHERMISTOR R–GV W–B 2 2 4 4 W–L W–L R–Y 1 20IF1 BB FromIgniter <1–3> ToEngineControlModule (EngineandElectronic ControlledTransmission ECU)<2–4> ToEngineControlModule (EngineECU)<3–4> AJ2 JUNCTION CONNECTOR (forEarth) 2 V (Canada) (Canada) (USA) P
  • 17.
    5 6 78 16 PASEO (Cont’d) Radiator Fan and Air Conditioning (for Canada) EB 2 2 2 2 22 2 2 2 2 2 2 2 2 1 2 M 2 1 EB 1 1 IC1 LG–R LG L–B LG L–B LG–R L–BW–B W–BW–B W–R W–B B–R W–L W–R B–R W W–B 2 1 L–B LG–R ENGINEMAIN RELAY RADIATOR FANRELAY No.1 A/CCONDENSER FANRELAY No.2 LG–RLG R1 RADIATOR FANMOTOR W 3 WATER TEMP. SW A2 SHORTPIN (w/oA/C) A2 A/CHIGH PRESSURESW (w/A/C) 4 3 3 2 3 5 5 2 1 4 1 1 4 2 2 2 2 5 5 5 5 2 2 2 2 5 5 5 5 5 2 1 3 4 1 3 5 4 2 2 1 4 3 1 2 M 1 2 M 2 1 EA1EA1 EA1 6 EA1 1 2 M IC1 1 4 EA1 6 EB1 1 EB EB 1 2 5 3 22 22 LG–R LG 2 1 A2 SHORTPIN (w/oA/C) A/C CONDENSER FAN RELAY NO. 3 RADIATOR FANRELAY NO.1 A/CCONDENSER FANRELAY No.2 30A RADIATOR FAN 30A CONDENSER FAN A1 A/CCONDENSER FANMOTOR R1 RADIATORFAN MOTOR A2 A/CHIGH PRESSURESW (w/A/C) A/C CONDEN SER FAN RELAY NO. 3 A1 A/CCONDENSER FANMOTOR F6 30A RDIFAN [FUSEBOXNo.1] F6 30A CDSFAN [FUSEBOXNo.1] FromMagnetic Clutch Relay<16–3> EA1 2 FromEngineControl Module(Engineand ElectronicControlled TransmissionECU)<2–4> W3 WATERTEMP.SW Front left fenderFront left fender FromMagnetic Clutch Relay<16–3> To Magnetic Clutch and Compressor Sensor<16–2> FromEngineControl Module(Engineand ElectronicControlled TransmissionECU)<2–4> W–L B–R W–L W–L P P W–B W–L L–B LG–R LG–R L–B W–B W–B LW–L W–L P W–B LG–R LG–R W–G W–B W–L LG–R L–B LG–R L W–L P P P P B–RB–R W–B W–B W–B W–B Front left fender (A/T) (A/T) W–B Radiator Fan and Air Conditioning (for USA) Front left fender 2 3 4 2 1 3 W–B W–G L–B LG–RLGLG (A/T) W–L W–R W–R 5 3 1 W–G B–R LG–R EB16 (A/T) LG–R B–R B–R B–R (USA) (USA) (Canada) L–B 1 B–R W–R