Matteo Robiglio Architetto, masterplanner. Coordinamento scientifico
e progettuale.
Marco Tabbia Esperto in project management in ambito sociale.
Coordinamento indagine e progettazione sociale.
Daniele Campobenedetto Architetto, Ph.D. Progettazione masterplan.
Il team di lavoro
Enrico Bertoni Direttore generale di Equiter. Coordinamento scenari e
analisi finanziaria.
Luca Rappuoli Analista finanziario senior. Scenari e analisi finanziaria.
Elena Potecchi Analista finanziario senior. Scenari e analisi finanziaria.
C AVA L L E R I Z Z A D I S T R E T T O C U LT U R A L E
M A S T E R P L A N P E R L A R I Q U A L I F I C A Z I O N E , VA L O R I Z Z A Z I O N E E
C O N S E R VA Z I O N E A D U S O P U B B L I C O D E L C O M P L E S S O D E L L A
C AVA L L E R I Z Z A R E A L E I N T O R I N O
Isabelle Toussaint Architetto esperto in restauro. Progettazione
masterplan.
Edoardo Piccoli Storico dell’architettura e della città. Indagine storico-
critica.
Andrea Andrich Architetto esperto in urbanistica e real estate.
Collaboratore alla redazione del masterplan.
Elisa Montervino Dott.ssa in Architettura. Collaborazione alla
redazione del masterplan.
Cecilia Guiglia Professionista esperta nell'ascolto attivo e processi
partecipativi. Interviste agli attori.
Collaboratori - Homers
Paola Sacco Professionista esperta nell'ascolto attivo e processi
partecipativi. Interviste agli attori.
Luna Ambrosino Avvocato civilista esperta in common law e beni
comuni. Aspetti giuridico-legali.
Marco Stranisci Ricercatore ed esperto di social media. Sentiment
Analysis.
Pierluigi Ubezio Professionista esperto in comunicazione e stampa.
Analisi della rassegna stampa.
Giulia Monardo Stagista. Assistente agli aspetti grafici
In concertazione con:
Cavallerizza Distretto Culturale - Masterplan aprile 2016
18
L A C AVA L L E R I Z Z A E L A C I T TÀ
Cavallerizza Distretto Culturale - Masterplan aprile 2016
19
Cavallerizza Distretto Culturale - Masterplan aprile 2016
20
Questa carta riassume gli edifici e le istituzioni principali del sistema
culturale all’interno del centro storico torinese. Il Masterplan individua nella
Cavallerizza uno degli elementi cardine di questo sistema, che, grazie alla
riqualificazione del complesso, viene completato. Nella Cavalerizza infatti
troveranno posto attività ora mancanti nel panorama del “distretto culturale”
(come ad esempio una galleria per le esposizioni temporanee delle istituzioni
museali della città e una sala teatrale), ma anche un sistema di ricettività
rivolto a differenti tipologie di utenti.
Il Masterplan punta a sviluppare in questo quadro l’integrazione di
diverse funzioni (culturali, ricettive, terziarie e commerciali), la loro
complementarietà e diversificazione, l’uso pubblico attraverso la riapertura
degli spazi e infine l’intervento in questo processo di attori diversi: dalle
istituzioni alla società civile, dalla natura pubblica o privata.
I L D I S T R E T T O C U L T U R A L E
Cattedrale di
San Giovanni Battista
Palazzo ChiableseGalleria Sabauda Duomo di San
Giovanni, Cappella
della Santissima Sindone
Palazzo Reale
di Torino
Real Chiesa di
San Lorenzo
Cavallerizza Distretto Culturale - Masterplan aprile 2016
21
Università degli Studi di Torino Biblioteca Nazionale di Torino
Palazzo CarignanoTeatro Carignano Museo EgizioPalazzo Madama Galleria Subalpina
Armeria Reale Teatro Regio Auditorium Rai
Palazzo
Campana
Cavallerizza Distretto Culturale - Masterplan aprile 2016
22
L ’ A R E A D I I N T E R E S S E D E L M A S T E R P L A N
Cavallerizza Distretto Culturale - Masterplan aprile 2016
23
I N D A G I N E S T O R I C O - C R I T I C A
Progetto o palinsesto?
Si è spesso fatto riferimento al complesso dell’ex Reale Accademia e della Cavalle-
rizza come di un tassello di una veduta urbana ideale, in cui Torino si presenta come
una città uniforme, compatta, lineare. Una città interamente progettata, il cui ordine
si identifica con quello dello Stato stesso. Questo punto di vista ha le sue radici nelle
rappresentazioni del Theatrum Sabaudiae : è il prodotto di una strategia politica, e di
una cultura visiva del periodo barocco in cui le immagini urbane avevano innanzitutto
una funzione persuasiva. L’architettura e la città, disegnate, venivano sottratte al tempo
e agli accidenti, diventavano strumenti al servizio dell’affermazione di uno Stato e una
corte in un panorama europeo.
Questa lettura della città di antico regime ha avuto una lunga e duratura fortuna, ed
è stata anche sviluppata e adottata, per ragioni diverse, dalla storiografia del secondo
Novecento: una storiografia che ha visto nella Torino dei grandi progetti ducali e reali,
dove i singoli edifici erano idealmente sottomessi a una regola superiore, un modello
comunque valido di città razionale e ben amministrata. Una città delle regole, in cui
il piano e il progetto erano gli strumenti principali d’intervento sulla realtà fisica e
sociale. Sotto molti aspetti, questa città di regole, progetti e piani rifletteva anche le
ambizioni della cultura della progettazione e pianificazione pubblica dell’Italia con-
temporanea: mostrava ad architetti, amministratori e cittadini una strada difficile ma
percorribile, pur con strumenti operativi e obiettivi rinnovati.
Questa stagione di fiducia nel progetto e nel piano pare oggi conclusa. Tuttavia, con
un salto concettuale, la lettura monolitica della città “di Stato” ha conquistato oggi
altri favori: ci accorgiamo che il mantra della Torino-barocca e della griglia, delle vie
regolari punteggiate da monumenti (da restaurare e presentare in uno stato “al nuovo”)
è un concetto semplice da comunicare e da consumare, e produce una cornice ideale
per il marketing urbano e turistico. Non c’è niente di male: il ridisegno dell’identità
e dell’immagine della città è un processo legittimo, e d’altra parte la competizione tra
aree metropolitane è oggi parte di una lotta per la sopravvivenza non meno importante
che quella tra le capitali nell’Europa del Seicento. Però questa lettura resta pur sempre
una semplificazione, e anche un modo un po’ astratto di guardare a una realtà fisica e
sociale che è il frutto di molti intrecci, e non di una sola intenzionalità. Anche perché
il rischio è poi di voler adeguare la realtà, con le sue imperfezioni, alla “visione”, rime-
diando ex post agli “errori” della storia: allontanandosi da ciò che la città è, ma avvici-
nandosi a ciò che avrebbe dovuto essere.
La zona dell’Accademia reale e delle scuderie e maneggi regi (solo più tardi si può
parlare di “cavallerizza”) si è a lungo prestata alla glorificazione del “progetto unitario”,
qui impersonato dal complesso disegnato dal Castellamonte, che avrebbe dovuto com-
porre un tassello importante di una città di Stato estesa dal palazzo Reale fino quasi al
Po. In effetti, il primo impianto dell’area tendeva a formare un tutto armonico e inte-
grato con gli altri edifici e spazi del potere e della corte; e non c’è dubbio che nonostan-
te la sua realizzazione molto parziale, la grande croce progettata dal Castellamonte si
sia a lungo tramandata sui fogli degli architetti come una presenza implicita, un grande
disegno che fino a metà Settecento almeno nessuno ha voluto, o osato, smentire.
Si dirà che non c’è nulla di strano: quasi tutti i progetti prefigurati dal theatrum sono
stati realizzati in un arco di tempo lunghissimo, spesso plurisecolare. Questo però non
lo è stato e a un certo punto è anche scomparso dalle carte.
Supponiamo ora di ribaltare il punto di vista: accantoniamo i grandi disegni ordi-
natori e interessiamoci, nella storia di quest’area, alle discontinuità, ai frammenti, alla
diversità, ai diritti e usi reali. Il “nodo” della cavallerizza appare allora qualcosa di molto
diverso: non un oggetto unitario, ma un esempio di quei processi incrementali con cui
si è costruita la città europea di età moderna; processi a cui Torino, nonostante la sua
storia relativamente breve e tutte le retoriche dell’autorità e del controllo, non sfugge
affatto. Se adottiamo questa lettura l’area appare innanzitutto come un palinsesto, dove
contano e parlano tutte le tracce lasciate dal tempo e dagli attori di una storia collet-
tiva: le grandi fratture, i corpi interrotti degli edifici, ma anche i piccoli interventi in
autocostruzione, le differenze tra i materiali.
È un punto di vista rovesciato rispetto al primo: ma se ci interessa capire la “città così
com’è” e non “come avrebbe dovuto essere”, dobbiamo partire dalle condizioni attuali
e non dai progetti iniziali, sforzandoci di intravederli, come presenze spettrali, anche
dove non ci sono più o non ci sono mai stati. Secondo questa prospettiva, anzi, i pro-
getti sono dati storici importanti - servono a negoziare la città e a modificarne gli spazi
- ma sono strumenti, come tanti altri. I conflitti, le battute d’arresto, anche i traumi che
segnano gli edifici stratificano tracce altrettanto importanti che devono essere identifi-
cate, raccontate, e non dimenticate. La distinzione tra monumento e detrito, tra sostan-
Ritratto di Vittorio Amedeo II a cavallo con l’edificio dell’Accademia Reale, incisione di Antonio De Pien-
ne, su disegno di Charles Dauphin, 1675; Archivio storico della città di Torino, Coll. Simeom
Il corpo centrale della quadricorte dell’Accademia visto dalla via della Zecca, nel momento in cui si dava il via
al cantiere; sullo sfondo, la manica della grande galleria. Attraverso la figura del giovane sovrano si sottolinea il
legame fisico e funzionale tra la Corte e l’Accademia come “macchina” per l’educazione nobiliare.
Trecento anni di cantieri. Una definizione operativa
Parlare della Cavallerizza oggi significa parlare di un pezzo di città composto da
una varietà di costruzioni di scale e forme diverse, edificate nell’arco di quasi trecento
anni (1675-1955 circa). I corpi di fabbrica più grandiosi, alcuni dei quali sono esito
di progetti di architettura cronicamente e ripetutamente irrisolti, sono mescolati ad
altre costruzioni o parti di costruzioni di scala più modesta: rattoppi, adeguamenti
normativi o distributivi, piccole strutture autoprodotte, sopraelevazioni, e anche alcuni
più consistenti edifici provvisori o precari, diventati permanenti. La rete di spazi aperti
che compone il “negativo” di questo insieme di costruzioni è altrettanto articolata, e
comprende corti dal disegno regolare, accanto a vicoli e spiazzi senza forma e quasi
residuali. In tanta varietà è possibile riconoscere, più che delle tipologie, un principio
distributivo prevalente: al piano di terra troviamo infatti una serie di vaste sale voltate,
destinate in origine a maneggi, scuderie, sale d’esercizi; ai piani superiori prevale, inve-
ce, una organizzazione più minuta per corridoi, cellule e stanze, destinate in genere a
funzioni abitative oppure, nel Novecento, a funzioni terziarie.
Visto nel suo divenire storico, lo stato attuale dell’area è l’esito di un processo quasi
di tipo respiratorio, di lenta crescita e poi di progressiva dismissione; ne riassumiamo
alcune delle tappe principali.
za progettuale e superfetazione dannosa non ha ragion d’essere, perché l’architettura e
il tessuto urbano sono il prodotto di pratiche e attività a volte minime, quotidiane.
Il problema, ora, non è validare una sola delle due letture - raccontate così, sono due
versioni estreme, così come il “tutto Stato” o il “tutto mercato” - ma riconoscere che la
Cavallerizza è un oggetto sfaccettato e ambiguo: da un lato, è il frutto di progetti anche
importanti e ambiziosi, dall’altro li vede tutti interrompere, non finire, o demolire.
Altrettanto si può dire degli usi e delle funzioni. Nato per ospitare funzioni auliche
(l’Accademia e le sue pertinenze) il complesso è stato oggetto di incessanti variazioni e
adattamenti funzionali, e poi di un graduale decadimento di usi e valori, che lo hanno
portato già nell’Ottocento ad ospitare attività più prosaiche e al limite anonime di
quelle previste all’inizio; tanto da essere diventato, insieme ai suoi occupanti, un luogo
densamente abitato e vissuto, ma del tutto opaco rispetto alla città. Sotto certi aspetti
anche un oggetto imbarazzante, di cui non si poteva parlare in termini pienamente po-
sitivi: come giustificare un maneggio costruito a metà? E l’assenza della torre ottagona
senza la quale la quadricorte del Castellamonte non sta insieme? Queste ambiguità, e
il declino funzionale prima ancora che fisico, spiegano in parte anche la storia acciden-
tata della “riscoperta” della Cavallerizza e la sua tardiva presa in carico pubblica e civile
nel secondo Novecento.
[G. B. Ravelli?], Pianta generale delle scuderie, rimesse e maneggio appartenenti a Sua Altezza Reale il signor Duca di Chiablese in Torino, circa 1780; Soprintendenza ai Beni architettonici e paesaggistici per le provin-
ce di Torino, Asti, Cuneo, Biella e Vercelli, fototeca
L’inserimento dei nuovi edifici per il maneggio Chiablese evidenzia una situazione frammentaria nel comparto verso il Po. Da notare l’abbandono, a questa data, del programma di completamento sia della manica lunga verso
i giardini reali sia della cavallerizza di Alfieri. L’edificio delle carrozzere, che fa angolo con il maneggio, insiste sulle fondamenta del padiglione di testata della manica lunga.
L’avvio dell’urbanizzazione dell’area, compresa nel secondo ampliamento di To-
rino, segue un progetto di Amedeo di Castellamonte degli anni 70 del Seicento ed è
imperniato sul grandioso disegno di un’Accademia per nobili. L’edificio, a impianto
rettangolare, suddiviso da maniche interne in una grande corte e una “croce” di 4 cortili
più piccoli, avrebbe dovuto essere connesso al Palazzo reale mediante una lunghissima
galleria. La costruzione della galleria sarà infine abbandonata, ma anche la realizzazio-
ne del complesso accademico sarà molto parziale (seppure sufficiente per avviare con
successo l’istituto); tanto che la torre ottagonale di snodo dei cortili interni, “pièce
maîtresse” della composizione aulica, non verrà mai realizzata, anche se viene tracciata
sul terreno.
La mancata realizzazione del grande progetto si accompagna all’avvio, tra la fine del
Seicento e i primi decenni del Settecento, di altri cantieri. Esigenze pratiche connesse
alle attività della corte porteranno affiancare alle maniche adibite a scuola dei corpi
di fabbrica per scuderie e alloggi militari, lungo l’attuale via Verdi. Oltre i confini del
complesso accademico verso il Po, inoltre, si costruiscono edifici per la Regia zecca, un
maneggio e altre scuderie dal carattere più provvisorio.
Una cavallerizza, prevista inizialmente come edificio isolato, sarà integrata nel siste-
ma a quattro corti dell’Accademia solo nel 1740, quando Benedetto Alfieri predispone
un progetto di grande respiro, aggiornato secondo modelli francesi e mitteleuropei. In
quest’occasione le grandi dimensioni richieste dall’aula portano Alfieri a riprogettare,
ingigantendola, anche la torretta ottagonale già prevista dal Castellamonte.
Efficace sulla carta, il progetto alfieriano naufraga nella pratica: la cavallerizza non
verrà completata e neppure organicamente collegata al resto del complesso; spettacola-
re ed elegante anche nel suo stato frammentario, resterà come sospesa tra il mai realiz-
zato padiglione ottagonale e il cortile del maneggio verso il Po.
La ricostruzione affrettata nelle forme attuali del maneggio del Duca di Chiablese
(1775 circa) spegne ogni velleità di completamento del progetto alfieriano, e stratifica
nel sito una nuova giurisdizione, dopo l’Accademia e le scuderie reali. Oltre al maneg-
gio, che sostituisce una struttura più precaria seicentesca, vengono in quest’occasione
realizzati altri edifici privi di qualità formali (carrozzere, depositi): dietro alla grande
incompiuta dell’Alfieri l’intero comparto delle scuderie assumeva così una configura-
zione priva di qualsiasi ordine.
Su questa situazione davvero problematica - registrata dai disegni dell’architetto
imperiale Piacenza, inviati a Parigi in età napoleonica - interviene dal 1830 un ultimo
grande progetto ordinatore, portatore di un linguaggio e una cultura del costruire del
tutto nuova rispetto alle premesse barocche. L’imponente manica a “F” inserita tra
la Cavallerizza e i giardini Reali e progettata da Carlo Bernardo Mosca nel 1832 è un
edificio solido, massiccio, pienamente razionale: opera di un ingegnere-architetto con-
sapevole di dover rispondere con rigore a un programma (da cui l’eccezionale sistema
distributivo), ma anche di dover dare una soluzione unitaria a un insieme disordinato
di spazi e costruzioni. La grande scuderia voltata sostiene un quasi-falansterio: tre piani
di abitazioni di servizio servite da corridoi centrali, che insieme ai portici, le scale, i
sottotetti, le cantine, compongono un corpo unitario e tutto “in funzione”; allo stesso
tempo, la grande manica si allinea con il complesso delle segreterie e dell’archivio, ri-
proponendo come volumetria, ma non come linguaggio e destinazione d’uso, il proget-
to della grande galleria seicentesca.
P. Foglietti e L. Tonta, Scuderie e Maneggi. Pianta del piano terreno, 28 settembre 1864; Archivio di Stato di Torino, Sez. Riunite, Real Casa
Il complesso delle scuderie ha raggiunto la sua massima densità. “L’Architetto capo dell’Ufficio tecnico della Real Casa” e “L’ingegnere di seconda classe nel Genio Civile pei Fabbricati demaniali in Torino” firmano una plani-
metria che rende conto del riordino portato dalla edificazione della manica “del Mosca” verso i giardini reali e dei corpi più bassi che seguono l’orientamento del maneggio Chiablese. Da notare come la Regia zecca non sia parte
della medesima giurisdizione. In alto a sinistra, la manica verso i giardini Reali non è ancora completata.
Con il completamento della scuderia-residenza di Mosca nel 1836-37, cui si aggiun-
geva la doppia manica bassa delle pagliere, costruita in due fasi separate di pochi de-
cenni, la cui inclinazione segue il filo delle mura, il complesso ora noto come dei “regi
maneggi e scuderie” raggiunge un grado di quasi-saturazione; piccoli interventi edilizi,
strutture di completamento, inspessimenti di maniche o sopralzi aggiunti nei decenni
successivi non modificheranno più sostanzialmente la situazione. A partire da fine Ot-
tocento, anzi, l’area inizia a subire un processo inverso, di impoverimento ed espulsione
di funzioni, connesso prima con il trasferimento della capitale e poi con l’affermarsi di
nuovi mezzi di trasporto e locomozione.
A questo processo resiste in parte l’area dell’Accademia, dove si interviene nel tardo
XIX secolo con il completamento dell’ala lungo i giardini Reali, e con altre opere mi-
nori come la “sala di ginnastica” inserita in uno dei cortili interni. Ma i bombardamenti
della seconda guerra mondiale colpiscono proprio gli edifici accademici, determinando
il trasferimento dell’istituzione e la successiva trasformazione radicale del settore verso
Piazza Castello. È un altro turning point: il dibattito che si innesca negli anni della ri-
costruzione sulla sorte dell’area bombardata, in connessione con il progetto di un nuo-
vo teatro d’opera e di una “area culturale” per la città estesa fino agli isolati della Mole
Antonelliana, è noto, e non vi ritorneremo.
Ricordiamo come, nonostante la grande estensione delle demolizioni, l’installazione
del Genio militare e di alloggi per personale dell’esercito abbia portato a operazioni
piuttosto brutali di sopraelevazione e densificazione sugli edifici superstiti dell’Acca-
demia fino al formarsi, dietro all’attuale teatro Regio, di un piccolo isolato verticale
densamente vissuto e abitato, anche se del tutto chiuso alla città; inaccessibile ai civili,
ma anche privo di quei caratteri di rappresentatività urbana assegnati alle caserme otto-
centesche.
La storia edilizia successiva è fatta da attori a cui solo di recente è stata data una voce:
famiglie, funzionari, tecnici, che un po’ acconsentono, un po’ resistono al progressivo
degrado dell’area, interessata da interventi di manutenzione o di consolidamento e da
parziali restauri, in modo variabile a seconda delle giurisdizioni e delle diverse modalità
di gestione. Solo nel comparto occupato dal genio militare, dietro al teatro molliniano,
si è continuato a intervenire in modo più deciso fino agli anni ’90 del 900, inseguendo
adeguamenti normativi e strutturali e persino ampliando gli spazi da mettere a disposi-
zione di uffici e residenze, al di sopra di una delle scuderie seicentesche. Un accrochage
di passerelle e nuove scale segnala anche all’esterno questi cantieri. La riapertura di al-
cune grandi sale per spettacoli e mostre, il riuso come sala teatrale del maneggio alfieria-
no, e la cessione all’Università di quello ex-Chiablese è ancora più recente, e coincide
con l’abbandono definitivo degli ultimi comparti residenziali in locazione; l’intreccio
tra apertura e svuotamento si intreccia quasi naturalmente con l’occupazione e la riven-
dicazione del valore del complesso come bene comune.
Da “non vi è nulla” al “bene di valore inestimabile”.
La costruzione di una dimensione patrimoniale e pubblica per la cavallerizza è re-
cente. Al di fuori delle incisioni del progetto di Castellamonte, per quasi tre secoli le
immagini pubbliche dell’area sono rarissime, e sono altrettanto scarsi i riferimenti ai
suoi edifici nelle guide e nei testi sulla città. Questo è comprensibile se pensiamo al suo
carattere di zona di servizio, e alla frammentarietà dei suoi edifici-chiave: una condi-
zione che ha impedito persino ai minuziosi disegni di presentazione del grand projet
alfieriano di trovare una traduzione in incisioni. La sostanziale chiusura, alla vista e
alla circolazione, dell’intero comparto, ad eccezione dello scomparso cortile quadrato
dell’Accademia, che si traguardava dai portici del Regio, ha fatto il resto. Tanto che,
dopo che l’incendio del Regio e poi i bombardamenti avevano colpito l’unica parte in
qualche modo nota al pubblico, nei primi anni 50 del Novecento a Torino non sembra
esserci una chiara consapevolezza di cosa rimane dietro all’Accademia.
“Basta guardare da Piazza Castello attraverso i fori del muro dell’ex teatro Regio per
accorgersi che già ora si vede precisamente la Mole, perchè non vi è sul rettilineo della vi-
suale alcuna costruzione da demolire.
Dietro il muro dell’ex teatro Regio (…) non vi è più nulla per circa 300 metri; vi è in-
Carlo Mollino, Studi preliminari alla consegna del progetto per il nuovo Teatro Regio, 1965. Circolazione urbana nella zona tra piazza Castello, Archivio di Stato e Demanio Militare. Politecnico di Torino, Biblioteca
Centrale di Architettura, Archivio Carlo Mollino, P.16B.362.151.
L’estensione delle demolizioni prefigurate negli anni 60, sulla scia dei progetti per la “zona culturale” discussa nel concorso del 1952, è impressionante. Al diradamento si sovrappone l’esaltazione della circolazione automoiblisti-
ca, tipica di quegli anni. Mentre già circolavano gli studi di Passanti sulla Torino barocca, siamo al momento più basso di consapevolezza pubblica del valore degli edifici sull’area della cavallerizza.
fatti l’immenso cortile dell’Accademia Militare circondato dallo stabile semidemolito dai
bombardamenti (…) Se vi è qualche piccola, bassa costruzione tra via Rossini e via Monte-
bello, si tratta di cosa di poco conto” .
(Guido Guidi, rivista Torino, 1952, “La Mole in Piazza Castello”)
“Non vi è più nulla”: giudizio estremo, e orientato a una volontà di rinnovamento,
che però fa capire come in quegli anni si sia potuto intervenire piuttosto pesantemente
sulla parte danneggiata dell’Accademia reale e su alcuni corpi retrostanti (con demoli-
zioni, ma anche con brutali sopraelevazioni), mentre altri edifici e spazi della città già
venivano ricostruiti “com’erano e dov’erano”.
Eppure, già nel 1945 una pubblicazione (dalla limitata diffusione iniziale, ma sarà un
long seller) di Mario Passanti ricominciava a parlare della città barocca nel suo insieme
come di un tessuto che proprio nella continuità e nella forma urbana aveva un suo valo-
re, non solo una sommatoria di monumenti.
Nasceva qui il riconoscimento dell’esistenza di un sistema di edifici interconnessi, che
dal Palazzo Reale attraverso piazza Castello si incuneavano giù da via della Zecca. Con
la sua “universal disciplina” e la sua grande scala, il complesso rispecchiava secondo
Passanti una struttura di potere forte, coesa, ideale. Passanti è il primo a spiegare come
zecca, Cavallerizze (reale e Chiablese) e accademia potessero essere lette come un tutto
unitario, da lui battezzato piuttosto felicemente “zona di comando”:
“Complesso imponente di edifizi, dal quale la Monarchia mostra stendere il suo dominio
sino agli ultimi limiti della città, irregimentando in architetture unitarie le costruzioni
sorgenti lungo le arterie e piazze” (Passanti, 1945).
Lo storico e architetto non scendeva poi più nel dettaglio, ma d’altra parte, secondo
quanto lui stesso affermava, l’individualità dei singoli edifici della “zona di comando”
quasi non contava: ciò che contava era la produzione di una forma urbana di “im-
pressionante unità”. Questa chiave di lettura - che nasce dalla cultura urbanistica di
un architetto tra i più raffinati del Novecento torinese - non sarà mai più sconfessata:
l’etichetta di “zona di comando” accompagna il complesso fino al suo inserimento nel
patrimonio Unesco.
Solo più tardi, con il progredire sistematico degli studi sul barocco, lo sguardo è sceso
alla scala degli edifici; e qui il discorso dell’unitarietà, della completezza, si è un po’
incrinato, perché l’insieme dei corpi di fabbrica dell’Accademia e dei diversi maneggi
- quel “tessuto continuo” che continuo non è affatto - si è palesato come è: un dedalo
di cantieri e corpi di fabbrica differenti, quasi inaccessibile alla cittadinanza e quasi del
tutto trascurato dagli studi fino a pochi anni fa. Solo la fabbrica della Cavallerizza (già
brevemente presentata nella prima monografia dedicata ad Alfieri da Giovanni Cheval-
ley nel 1915) viene riconosciuta come un’architettura di qualità: compare nel monu-
mentale volume di Augusto Cavallari Murat sulla Torino Barocca e poi negli studi di
Amedeo Bellini su Benedetto Alfieri. Questi studi portano - infine - alla pubblicazione
delle prime fotografie della grande aula, allora usata come autorimessa dalla polizia.
È quasi una rivelazione. A fronte dell’anonimato che continua a riguardare altre parti
del complesso, l’edificio di Alfieri, anche se realizzato soltanto a metà, diventa allora
la “parte per il tutto”, il monumento intorno a cui si aggrega l’identità dell’area, e che
assegna il proprio nome all’intero sistema di corpi e costruzioni - ormai privato della
funzione accademica - dietro al teatro Regio.
La storia più recente della conoscenza e patrimonializzazione del complesso è quella
di un processo che sta accelerando. Gran parte dell’area (sono escluse le carrozzere e pa-
gliere ottocentesche) è stata inserita, come parte della “zona di comando”, nella perime-
trazione Unesco delle Residenze sabaude. Nuovi studi hanno chiarito le fasi costruttive
di alcune sue parti. La successiva apertura della cavallerizza alfieriana al pubblico con la
realizzazione di un teatro provvisorio, pur avendone un po’ mortificato il grandioso ef-
fetto di aula voltata, ha avuto una funzione quasi liberatoria, importantissima. Poi l’in-
gresso dell’Università, che ha realizzato la sua Aula Magna nell’ex maneggio Chiablese,
assegnando una funzione pubblica e urbana a un edificio che non l’aveva mai avuta. In-
fine l’occupazione del 2014-15, che ha portato ad aprire al pubblico ancora altre aree,
riscoprendo le qualità abitative dell’edificio del Mosca e riattivando il collegamento
con i giardini Reali.
Il “valore inestimabile” invocato per l’area è ora conteso e attende una sua traduzione
in termini di funzioni, accessi, usi futuri.
Bibliografia essenziale
1675-1975
Joan Blaeu, Theatrum Sabaudiae (Theatrum statuum regiae celsitudinis Sabaudiae
ducis, Pedemontii principis, Cypri regis), Amsterdam 682, 2. v. (ed. a c. di Luigi Firpo,
Città di Torino, Torino 1984)
Mario Passanti, Architettura in Piemonte, Libreria tecnica V. Giorgio, Torino 1945
Nello Renacco, Concorso per la zona culturale di Torino, «Urbanistica», n.10-11,
1952, pp.89-93
Augusto Cavallari Murat, Forma urbana e architettura nella Torino barocca, UTET,
Torino 1968, 3 v.
1975-2015
Amedeo Bellini, Benedetto Alfieri, Electa, Milano 1978
Fabrizio Corrado, Paolo San Martino, Il Palazzo dell’Accademia Reale di Amedeo
di Castellamonte «primum certe ornamentum» di Torino capitale barocca, «Studi pie-
montesi», A. XII, n. 1, 1983, Torino, pp. 93-101
Luciano Tamburini, Storia del Teatro Regio di Torino, L’architettura dalle origini al
1936, Cassa di Risparmio di Torino, Torino 1983
Francesca Bagliani, Paolo Cornaglia, Marco Maderna, Paolo Mighetto, Architettura,
governo e burocrazia in una capitale barocca. La zona di comando di Torino e il piano di
Filippo Juvarra del 1730, Celid, Torino 2000
Michela Comba, Un teatro nell’Accademia Militare. Quarant’anni di ricostruzione del
Teatro Regio di Torino, «Quaderni Storici», vol.125, n.2, 2007, pp.517-548
Silvia Gron, Elena Vigliocco, Intersezione. Più frammenti un unico soggetto, Araba
Fenice, Boves 2009
Pier Giovanni Bardelli (a cura di), Il Teatro Regio di Torino da Carlo Mollino ad oggi:
consistenza materica ed esito architettonico, Flaccovio, Palermo 2010
Fabrizio Corrado, Il duca e lo scalpellino. Potere e mestiere in una fabbrica simbolo
della capitale sabauda, l’Accademia Reale di Amedeo di Castellamonte, in Giorgio Mol-
lisi (a cura di), Svizzeri a Roma nella storia, nell’arte, nella cultura, nell’economia dal
Cinquecento ad oggi, [«Arte&Storia», anno 11, numero 52, ottobre 2011] Edizioni
Ticino Management, Lugano 2011, p. 180-187
Amelio Fara, L’arte della scienza. Architettura e cultura militare a Torino e nello Stato
Sabaudo (1673-1859), Olschki, Firenze, 2014
Andreina Milan (a cura di), Theatrum sapientiæ. La nuova Aula Magna dell’Universi-
tà di Torino negli spazi dell’antico Maneggio Chiablese, Celid, Torino 2014
Nota: un regesto archivistico completo non è tra gli obiettivi di questo testo. Si ri-
manda quindi ai regesti già segnalati nella bibliografia recente (in particolare: Gron-Vi-
gliocco 2009 e Fara 2014) e ai seguenti archivi: Archivio di Stato di Torino (AST),
sezione Corte e sezioni riunite (diverse serie, tra cui Real Casa, Duchi di Genova, etc);
Archivio storico della Città di Torino (ASCT); Archivio edilizio, Torino; Archivio e
fototeca della Soprintendenza Beni Architettonici e Ambientali, Torino; Archivio del
Genio militare, Torino; Biblioteca Reale, Torino (Raccolta Saluzzo); Archivio Carlo
Mollino, Politecnico di Torino; fuori Torino: Archivio Centrale dello Stato, Roma;
Archivio dell’Accademia Militare, Modena; Archives Nationales, Parigi.
Una fruizione pubblica per la documentazione istituzionale e archivistica sulla storia
antica e recente della Cavallerizza è oggi assicurata (aprile 2016), sia pure per parti ed
esempi, da numerosi siti internet: Archivio di Stato di Torino; museotorino; La Stam-
pa; Unesco; cavallerizzareale.org; cavallerizzareale.wordpress.com; youtube.
L E P R O P R I E TÀ
La tavola riassume la suddivisione delle proprietà che insistono
sul complesso della Cavallerizza alla data della redazione di questo
Masterplan.
Il Compendio comprende 20 corpi di fabbrica caratterizzati da periodo di
costruzione, utilizzo e stato di conservazione piuttosto diversificati.
La superficie utile del complesso della Cavallerizza è ripartita tra la società di
Cartolarizzazione el Comune di Torino (di seguito C.C.T. Srl) e FIV - Fondo
Investimenti per la Valorizzazione - Comparto Extra, gestito da C.D.P. Investimenti
Sgr (di seguito C.D.P.I. Sgr), con circa 20.000 mq (superficie lorda) per la prima
proprietà e 16.000 (superficie lorda) per la seconda. C.C.T. Srl dispone, inoltre,
dell’immobile “ex Zecca”, per ulteriori 5.700 mq.
Un terzo soggetto proprietario è costituito dalla Città di Torino che possiede l’ex
Maneggio Chiablese e la porzione a completamento della corte dell’accademia
militare, oggi coincidente con parte della piazzetta Accademia Militare. L’area
corrispondente all’ex Maneggio Chiablese, pari a circa 1.700 mq, è stata concessa
in comodato dal Comune di Torino all’Università degli Studi di Torino che
ha provveduto, con una spesa di € 6 milioni, a realizzare la nuova Aula Magna
dell’Ateneo inaugurata nel 2014.
La porzione ovest del compendio è stata ceduta nel 2014 dal Demanio dello Stato
a FIV/C.D.P.I. Sgr, mentre la restante porzione è di proprietà della società di
cartolarizzazione C.C.T. Srl.
V i a G i u s e p p e V e r d i
L E P R O P R I E TÀ
Proprietà FIV-
CDPI Sgr.
Proprietà CCT
Srl - lotto 2.
Proprietà Città
di Torino,
concesso a
Università di
Torino.
Sovrapposizione
proprietarie ai
piani elevati
(CDPI Sgr su
CCT Srl)
Sovrapposizione
proprietarie ai
piani elevati
(CCT Srl su
CDPI Sgr)
Interferenze
proprietarie tra
CDPI Sgr e CCT
Srl (in questo
caso entrambe
sotto la stessa
proiezione della
copertura)
Proprietà CCT
Srl - lotto 1.
Legenda
ViaGioachinoRossini
Proprietà Città
di Torino.
Organizzazione delle schede
Lo scopo di queste schede è quello di indicare vincoli e possibilità
di trasformazione sugli edifici del complesso della cavallerizza. Queste
indicazioni derivano dall’analisi storico-documentale riportata all’interno del
Masterplan stesso e sono state individuate attraverso un percorso condiviso
con la Soprintendenza per i Beni Storici, Artistici ed Etnoantropologici del
Piemonte. Le schede sono complementari ad altre indicazioni emanate dalla
Soprintendenza, e vogliono costituire la base per una progettazione che possa
garantire la rifunzionalizzazione dei vari edifici della Cavallerizza garantendo la
conservazione e la valorizzazione del patrimonio esistente.
A tal fine, e per agevolare il dialogo tra futuri progettisti e le istituzioni
preposte alla tutela del patrimonio, la Soprintendenza approva il contenuto delle
schede.
Le schede sono state realizzate seguendo allo stesso tempo le unità edilizie
e i comparti proprietari presenti all’atto di redazione di questo Masterplan.
Contengono tre paragrafi - Struttura, Potenziale, Usi Suggeriti- che riportano
indicazioni di massima riguardo all’edificio in esame con livelli di prescrizione
decrescenti. A questi si aggiunge un’assonometria che riporta sinteticamente
l’insieme dei vincoli e delle possibilità di trasformazione a cui sono riferite
paragrafi specifici per ogni vincolo o possibilità. Le schede sono completate
dall’individuazione puntuale di vincoli e possibilità su piante prospetti e sezioni
(riferiti ai rilievi in possesso delle attuali proprietà, comparati con il rilievo
effettuato nel 1999 da Agostino Magnaghi).
Struttura
E’ l’insieme delle indicazioni di massima sull’edificio che hanno valore
prescrittivo. Presentano dati di analisi distributiva e storica di carattere oggettivo.
Potenziale
E’ l’insieme delle indicazioni che indicano le caratteristiche degli usi
compatibili con la struttura, la distribuzione e le necessità di conservazione
dell’edificio.
Usi suggeriti
E’ l’insieme delle indicazioni sulle funzioni che meglio esprimono la vocazione
dei vari corpi di fabbrica. Sono indicativi e non costituiscono prescrizione, ma
hanno la funzione di esemplificare direzioni di intervento possibili.
I V I N C O L I E L E P O S S I B I L I TÀ
Possibilità
Indica gli orientamenti di trasformazione già discussi con la Soprintendenza.
Non è un compendio delle sole operazioni che si possono compiere ma di
operazioni già valutate dalla Soprintendenza. Di conseguenza, in mancanza di
indicazioni sulle possibilità di trasformazione all’interno delle schede, le eventuali
modifiche alla struttura e alla distribuzione degli edifici saranno da concordare
con la Soprintendenza.
Vincoli
Indica gli ambienti, i sistemi strutturali e distributivi degli edifici di cui si
prevede la conservazione o il ripristino. Le eventuali trasformazioni di questi
ambienti saranno oggetto di attenta valutazione da parte della Soprintendenza.
Osservazioni sui soggetti coinvolti nella trasformazione
I soggetti attori delle trasformazioni hanno il compito di effettuare un rilievo
e un’analisi accurata della consistenza fisica dell’edificio, incrociandola con i
dati storici e archivistici, non limitandosi al mero rilievo dei dati dimensionali,
ma rifacendosi alle metodologie della ricerca storica sull’edificato più aggiornate
(bauforschung). Oltre ad anticipare informazioni sulla fabbrica che risulteranno
essenziali in fase di cantiere, l’operazione ha lo scopo di registrare un’immagine e
una descrizione accurata dell’edificio nella sua reale consistenza fisica, precedente
alla sua trasformazione.
L’analisi dovrà fornire dati scientificamente fondati sui materiali attualmente
costituenti l’edificio (da cielo a terra), sulle tecniche costruttive relative alla loro
messa in opera, e nei limiti del possibile approdare a una lettura esaustiva della
successione dei cantieri e delle azioni (anche distruttive) che hanno portato
alla configurazione attuale della fabbrica. Sarà compito soggetti attori delle
trasformazioni allocare a questa operazione le risorse e i tempi sufficienti al suo
buon esito. Gli esiti dell’indagine, infine, dovranno essere quanto prima resi
disponibili, oltre che alla Soprintendenza e ad eventuali altri enti competenti,
nonchè al pubblico.
S h e d e p e r l a t u t e l a d e g l i e d i f i c i .
Linea rossa:
Indicazione di massima del
perimetro o volume sottoposto
al vincolo specificato nel relativo
paragrafo.
Linea verde:
Indicazione di massima del
perimetro o volume che può
contenere la trasformazione
specificata nel paragrafo
corrispondente.
Linea verde puntinata:
Indicazione del volume virtuale
che può contenere addizioni
di volumi minori agli edifici
esistenti.
Linea nera tratteggiata:
Indicazione del volume
dell’edificio esistente.
C O R T E
A C C A D E M I A
Struttura
1.1 - L’edificio presenta nel complesso un sistema
distributivo a manica doppia con corridoio centrale
e vani scala posizionati negli angoli. Nonostante
siano state fortemente danneggiate durante il
secondo conflitto mondiale, le strutture conservano
ancora elementi di interesse, in particolare il
sistema strutturale a fulcri tardo ottocentesco della
manica verso i giardini, le sale auliche e lo scalone
nell’angolo nord e la volta al pian terreno della
manica sud-est. L’ultimo piano e il sottotetto sono
frutto di sopraelevazioni post belliche.
Potenziale
1.2 - Gli ambienti al piano terreno, caratterizzati
da ambienti voltati, presentano un potenziale per
funzioni aperte a pubblico. In particolare la rotonda
centrale è ambiente di distribuzione di tutte le corti
del complesso della Cavallerizza e a tal scopo sarà
conservata. Gli ambienti dei piani superiori risultano
adatti alla funzione di residenza collettiva in ragione
del loro impianto distributivo e della possibilità
di trasformazione dell’ultimo piano e del piano
sottotetto.
Usi suggeriti
1.3 - L’insieme edilizio, a motivo della
sovrapposizione di un sistema cellulare e di un
insieme di grandi aule, offre una vocazione
particolare verso funzioni residenziali temporanee
o funzioni di carattere terziario (quali ad esempio
uffici pbblici e privati, sedi di attività amministrative,
attività culturali, attività per il tempo libero e
l‘istruzione). Gli ambienti del piano terreno, in
particolare le due maniche che si innestano sulla
rotonda centrale e il padiglione della scherma, sono
vocati a funzioni di carattere collettivo.
Vincoli e possibilità
1.4.9
Vincolo di conservazione della
rotonda nel suo insieme.
Possibilità di realizzazione di
volumi minori all’interno del
volume virtuale individuato
dall’estrusione della rotonda.
1.4.7
Possibilità di realizzazione di
un vano scala nella porzione
adiacente alla rotonda della
manica sud-ovest.
1.4.5
Vincolo di ripristino dell’aula
al piano terreno della manica
perpendicolare ai giardini e
conseguente demolizione delle
strutture all’interno del suo
volume con recupero delle
superfici in altre porzioni
dell’immobile
1.4.3
Vincolo di conservazione del sistema strutturale
su fulcri della manica verso i giardini. Possibilità
di realizzare partizioni interne ai vari piani e di
allargare le aperture del piano terreno verso la
corte interna e verso i giardini, nel rispetto della
conformazione della struttura.
Possibilità di realizzare un vano scala nella
porzione della manica a fulcri, in adiacenza ad
uno degli angoli della corte.
1
1.4.1
Vincolo di conservazione del sistema
di aule voltate sovrapposte, nonchè
della scala aulica e della scala di servizio
adiacenti.
Possibilità di aprire un collegamento
dalla corte interna verso la piazzetta
Mollino.
1.4.4
Possibilità di realizzare
abbaini in asse con la
scansione di facciata su tutte
le coperture eccetto le falde
lato giardini.
1.4.6
Vincolo di ripristino
dell’aula voltata al
piano terreno della
manica sud-ovest.
1.4.8
Possibilità di realizzazione di
un volume di collegamento tra
il padiglione della scherma e
il piano terreno della manica
sud-ovest.
Possibilità di modificare le falde
della copertura del padiglione
della scherma.1.4.2
Possibilità di riorganizzazione
della distribuzione degli ultimi
due piani nel rispetto della
volumetria esistente.
Struttura
2.1 - Due sono i corpi edilizi riconoscibili. Il primo,
perpendicolare alla via Verdi è costituito da un’aula
voltata al piano terreno, alla quale si sovrappongono
tre piani la cui distribuzione è scandita tramite
muri portanti perpendicolari alla volta stessa. I
solai e il tetto sono frutto di una ricostruzione
contemporanea. La manica parallela alla via presenta
invece una distribuzione a manica doppia con vano
scala centrale. Lo stato attuale è frutto di diversi
interventi che ne hanno modificato la volumetria e la
distribuzione originaria.
Potenziale
2.2 - Gli ambienti con scansione regolare della manica
perpendicolare a via Verdi presentano potenziale per
attività terziarie, ciò anche in ragione di un possibile
collegamento con la manica minore della corte delle
Guardie (vedi scheda 2). La manica perpendicolare
alla via, in ragione della diversa distribuzione, può
accogliere sia attività terziarie che residenza.
Usi suggeriti
2.3 - Questi edifici offrono una vocazione per
l‘inserimento di uffici e funzioni terziarie in genere
a motivo della loro esposizione sulla via Verdi. In
particolare la manica parallela alla via, al piano
terreno, può accogliere funzioni di front office in
quanto ben collegata alla piazza Castello. Nella stessa
manica l’introduzione di residenza, anche collettiva,
è compatibile con le strutture esistenti.
La grande sala del piano terreno della manica che
si innesta nella rotonda è vocata ad usi di carattere
pubblico ed espositivo.
2.4.3
Possibilità di collegare
attraverso aperture puntuali la
manica perpendicolare alla via
Verdi e la manica minore della
corte delle Guardie ad essa
addossata.
M A N I C A
V I A V E R D I2
Vincoli e possibilità
2.4.2
Possibilità di realizzare abbaini
nel rispetto delle scansione di
facciata su tutte le falde che ne
sono prive.
via
Verdi
2.4.1
Vincolo di conservazione
dell’aula al piano terreno.
In particolare dovrà essere
garantita a lettura unitaria
dell’ambiente.
Struttura
3.1 - L’edificio presenta un’articolazione di ambienti
che ai primi due piani alterna grandi aule ad una
distribuzione centrale a doppia manica. Al terzo
piano viene confermata la distribuzione a corridoio
centrale. L’edificio ha subìto trasformazioni
e sopraelevazioni che ne hanno modificato
sostanzialmente la distribuzione e la volumetria
originale, in particolare ai piani primo e secondo.
Potenziale
3.2 - Gli ambienti ai vari piani sono caratterizzati
dalla serialità del loro impianto distributivo. Le aule
al piano terreno possono accogliere pubblici servizi o
funzioni aperte al pubblico.
Usi suggeriti
3.3 - / Attualmente in uso alle Forze dell’Ordine.
Z E C C A
3
3.4.2
Vincolo di conservazione del
sistema delle aule voltate e dei
sistemi strutturali a fulcri del
piano terreno.
Vincoli e possibilità
3.4.1
Possibilità di collegamento
della corte interna con gli spazi
comuni del complesso della
Cavallerizza.
C AVA L L E R I Z Z A
A L F I E R I A N A
Struttura
4.1 - L’aula alfieriana è parte di un progetto
ampio che, seppur non realizzato, prevedeva il
prolungamento della struttura per una lunghezza
doppia rispetto all’attuale. Si conserverà la lettura
unitaria dell’aula, così come il collegamento con la
rotonda centrale del complesso.
Potenziale
4.2 - Il grande ambiente esprime le sue potenzialità
accogliendo funzioni che non ne prevedano in
nessun modo un frazionamento sistematico o ne
impediscano la lettura d’insieme.
Usi suggeriti
4.3 - L’eccezionalità dello spazio e il collegamento
distributivo con la rotonda centrale esprimono la
vocazione dell’edificio ad ospitare funzioni collettive
di tipo pubblico.
Vincoli e possibilità
4.4.3
Vincolo di conservazione
dell’aula alfieriana.
Possibilità di realizzazione
di volumi minori all’interno
dell’aula, purché questi non ne
impediscano la lettura unitaria
e non si addossino alle pareti.
4.4.2
Vincolo di conservazione
del sistema delle capriate
all’estradosso della volta
alfieriana e delle strutture
murarie sovrastanti a volta
stessa.
4.4.1
Possibilità di realizzare
aperture all’interno delle
cornici sottostanti alle finestre
dell’aula nella quantità di una
per lato e nella posizione che
più si accorda con le necessità
funzionali delle attività interne.
4
C O R T E D E L L E
G U A R D I E
Struttura
5.1 - L’edificio presenta un impianto a “C”. Nella
manica perpendicolare alla via Verdi, al grande
ambiente voltato del piano terreno si sovrappongono
tre piani divisi in grandi appartamenti. L’appartamento
d’angolo presenta volte centinate e particolari storici
che andranno conservati. Nella manica parallela
alla via Verdi i piani sono organizzati attraverso una
distribuzione centrale a ridosso del muro di spina. Una
terza manica minore è stata addossata successivamente
alla cavallerizza castellamontiana. I vani scala sono
posizionati negli angoli della C.
Potenziale
5.2 - Riguardo alla manica perpendicolare alla via
Verdi, l’aula voltata del piano terreno si presta ad
usi che non ne inficino la lettura unitaria. Nei piani
superiori delle due maniche potranno essere accolte
funzioni di residenza di tipo non cellulare.
Usi suggeriti
5.3 - Il complesso edilizio si presta all’impianto
di unità residenziali tradizionali o di residenza
collettiva organizzata per piccoli appartamenti. La
grande aula al piano terreno è vocata a funzioni
collettive e di servizio alla residenza. Il sistema di
ambienti si presta particolarmente all’inserimento di
residenza collettiva di tipo non cellulare.
5.4.2
Vincolo di conservazione
dei solai lignei e delle volte
dell’appartamento al piano
nobile.
Possibilità di trasformazioni
puntuali di carattere
funzionale e conservativo e di
consolidamento delle strutture
dei solai.
5.4.1
Vincolo di conservazione
dell’unitarietà dell’aula al
piano terreno. Possibilità di
realizzazione di volumi minori
all’interno dell’aula.
5
Vincoli e possibilità
via
Verdi
Nota: i vincoli e le possibilità relativi alla
manichetta di completamento della corte
delle Guardie sono indicati per semplicità di
rappresentazione nella scheda 2 (Manica via
Verdi)
M A N I C A
M O S C A
Struttura
6.1 - L’edificio è articolato in una grande aula al
piano terreno (originariamente dedicata agli stalli)
e un sistema cellulare ai piani soprastanti. L’aula
voltata è accessibile dalla corte antistante all’edificio,
mentre il primo piano è raggiunto da una scala a
forbice realizzata nell’avancorpo. I piani soprastanti
all’aula voltata sono distribuiti tramite corridoi
longitudinali e collegati tra di loro da vani scala
posizionati nel corpo principale dell’edificio.
Potenziale
6.2 - Gli ambienti cellulari del primo, secondo, terzo
e quarto piano, risultano adatti alla funzione di
residenza collettiva in ragione della serialità degli
ambienti e del loro impianto distributivo.
L’aula voltata al piano terreno può accogliere servizi
comuni per la residenza e la città, nel rispetto della
sua leggibilità unitaria.
6.4.3
Vincolo di conservazione del
sistema distributivo costituito
dallo scalone a forbice
posizionato nell’avancorpo, dei
vani scala e dei corridoi ai piani
superiori all’aula del piano
terreno.
6.4.2
Possibilità di realizzazione
di volumi minori all’interno
dell’aula al piano terreno. Se
questi volumi sono realizzati
in adiacenza alle pareti non
devono superare in altezza
la quota del davanzale delle
finestre.
Vincoli e possibilità
6.4.1
Possibilità di realizzare ulteriori
vani scala (massimo due) per la
distribuzione ai piani superiori
all’aula voltata, nel rispetto del
sistema distributivo originario.
Possibilità di collegare i vani
scala con la quota del piano
terreno e di realizzare un vano
ascensore in prossimità del
corpo di distribuzione centrale.
6.4.4
Vincolo di conservazione della
scansione di facciata e delle
aperture.
Possibilità di realizzare nuove
aperture a filo sulla falda
dell’avancorpo e abbaini
sulla falda di Sud-Ovest della
copertura del corpo principale.
Usi suggeriti
6.3 - L’insieme edilizio, a motivo della
sovrapposizione di un sistema cellulare e di un
insieme di grandi aule, offre una vocazione
particolare verso funzioni residenziali temporanee
collettive e/o di tipo comunitario.
6
Struttura
7.1 - L’edificio si sviluppa su due maniche parallele,
la cui distribuzione è scandita al piano terreno
da una serie di ambienti di rimessaggio privi di
collegamenti distributivi interni, a cui si sovrappone
un piano privo di partizioni interne nella manica
a nord e suddiviso tramite divisori di più recente
realizzazione nella manica a sud. La manica a sud
presenta per metà della sua lunghezza un piano
in più e una distribuzione a manica doppia con
corridoio centrale.
Potenziale
7.2 - Gli ambienti del piano terreno, in ragione del
facile collegamento e con la via Rossini e dell’accesso
diretto, presentano un potenziale per funzioni aperte
al pubblico. La porzione della manica sud, distribuita
diversamente, presenta un potenziale per attività
terziarie.
Usi suggeriti
7.3 - La scansione degli ambienti del piano terreno,
la distribuzione esterna e la posizione delle Pagliere
all’interno del complesso della Cavallerizza
esprimono una vocazione verso funzioni di
promozione e incubazione culturale anche nella
prospettiva di attivare animazione per la produzione
culturale e per l’imprenditorialità creativa ed
innovativa, con la possibilità di integrare spazi di
lavoro e residenza direttamente connessi con le
attività insediate.
Vincoli e possibilità
7.4.4
Vincolo di conservazione delle
facciate e in particolare delle
aperture carraie.
7.4.3
Possibilità di realizzare una
copertura della strada interna
tra le due maniche. La quota
di colmo della copertura
non potrà superare la minor
quota di colmo delle maniche
adiacenti.
7.4.2
Possibilità di realizzazione
di abbaini su tutte le falde
ad eccezione di quelle verso
i giardini, nel rispetto delle
scansioni di facciata.
7.4.1
Possibilità di riorganizzazione
della distribuzione interna delle
maniche, nel rispetto delle
scansioni di facciata.
PA G L I E R E
7
via Rossini
strada interna della Cavallerizza
S PA Z I
C O M U N I8
Struttura
8.1 - Lo spazio libero tra gli edifici del complesso
della cavallerizza è separato dalle strade che
circondano il complesso stesso da un portale sulla via
Rossini e un cancello sulla via Verdi.
Potenziale
8.2 - La parziale separazione rispetto alla pubblica
via e il collegamento con il tessuto della città
rendono questo spazio adatto ad un uso pubblico.
Usi suggeriti
8.3 - Non sono indicati usi particolari.
8.4.1
Vincolo di sistemazione
unitaria degli spazi comuni
a tutte le unità minime
d’intervento.
Vincoli e possibilità
G I A R D I N I
R E A L I9
Struttura
9.1 - I giardini sono accessibili sia dalla cavallerizza
che dal viale 1° Maggio. Il dislivello del bastione e la
passerella sul viale permettono una gestione separata
di questa parte del complesso dei giardini reali. Il
padiglione posizionato sulla propaggine estrema del
bastione è elemento di spicco nel paesaggio urbano
circostante.
Potenziale
9.2 - La distribuzione degli accessi di questa parte
di giardini permette una loro apertura pubblica
indipendente dalla gestione dei giardini sui bastioni
adiacenti al palazzo Reale.
Usi suggeriti
9.3 - Non sono suggeriti particolari usi per i giardini
se non quelli già previsti. Il padiglione si presta
particolarmente ad accogliere pubblici esercizi e
attività di manutenzione connessi alla fruizione dei
giardini.
Vincoli e possibilità
9.4.1
Vincolo di conservazione del
padiglione e dei giardini.
L E D E S T I N A Z I O N I U R B A N I S T I C H E A M M E S S E
Queste indicazioni riportano il contenuto della variante urbanistica parziale n. 217 del P.R.G unitamente a quanto specificato nella delibera
della Giunta Comunale del 20 Novembre 2012 06298/009. La delibera sopracitata non indica la distribuzione nei vari corpi edilizi delle
destinazioni ammesse, che di conseguenza possono essere individuate nelle loro quantità relative, all’interno di qualsiasi comparto del
complesso.
V i a G i u s e p p e V e r d i
Destinazioni
ammesse:
-residenze (max
50% slp, non
realizzabili al
piano terra)
-servizi pubblici
e universitari
-attività
culturali,
espositive e
museali.
-attività terziarie
-attività
commerciali e
artigianali.
-parcheggi.
Per definizioni e
quantità si faccia
riferimento
alla delibera
della Giunta
Comunale del 20
Novembre 2012
06298/009.
Legenda
ViaGioachinoRossini
G L I U S I S U G G E R I T I
Al fine di precisare gli aspetti individuati nella tavola precedente, il Masterplan individua gli usi suggeriti emersi dal dialogo con gli attori e con il
Tavolo del Protocollo d’Intesa, coerenti con le caratteristiche strutturali e distributive delle diverse parti del complesso (come indicato nella sezione
del Masterplan “I vincoli e le possibilità”) e configuranti nel loro insieme un distretto culturale organico a completamento del sistema cittadino.
B
A
C
D
C’
D’
V i a G i u s e p p e V e r d i
Funzioni residenziali temporanee
e residenze per particolari utenze.
Funzioni terziarie.
Legenda
B’
A’
Funzioni residenziali temporanee
e residenze per particolari utenze o
residenze collettive.
Funzioni di promozione culturale
e materiale ed incubatore di
imprese ed attività innovative con
la possibilità di integrare spazi di
lavoro e residenza direttamente
connessi con le attività insediate.
Funzioni di terziario pubblio o
privato. Residenze collettive o per
particolari utenze.
Funzioni di terziario pubblico o
privato. Residenze collettive o per
particolari utenze.
/ Attualmente in uso alle Forze
dell’Ordine
Istruzione universitaria e relativi
servizi.
Attrezzature per lo spettacolo,
teatri, cinema.
Attività di interesse pubblico
generale.
Attività di interesse pubblico
generale.
Pubblici esercizi.
ViaGioachinoRossini
C O N S I S T E N Z A D E G L I U S I S U G G E R I T I
Nota: tutte le quantità che seguono rappresentano una stima delle superfici di progetto calcolate a partire dai rilievi disponibili e delle trasformazioni ipotizzate. Tutte le superfici
sono lorde e calcolate al filo esterno dei muri perimetrali. Le superfici dei piani sottotetto state ridotte del 30% al fine di ridurle a consistenze utilizzabili nel quadro di trasforma-
zioni future.
(escluso il maneggio Chiablese)
(esclusi i giardini Reali)
275 mq
Servizi
per le
Gallerie
Espositive
500 mq
Pubblici
esercizi
Attività
turistico
ricettive e
terziarie
Uffici
e Front
Office
Esposizioni/
Attività Turi-
stico Ricetti-
ve e terziarie
Attività
turistico
ricettive e
terziarie
8.852 mq
Attività Turi-
stico Ricettive
(Ostello)
1.265 mq
Teatro/
Funzioni collettive
I - L - V
6.300 mq
Residenza
collettiva/
Uffici (V)
Galleria
espositiva /
Uffici
Galleria
espositiva
12.391 mq 3854 mq
Galleria
espositiva /
Attività
Turistico
Ricettive e
terziarie
Istruzione
universitaria
e relativi servizi
Istruzione
universitaria
e relativi servizi
5.773 mq
Attualmente
in uso alle
Forze dell’Or-
dine
S-T
3.594 mq
Laboratori, arti-
gianato
di qualità,
incubatore.
I P O T E S I D I M I X F U N Z I O N A L I I N S E D I A B I L I
Gli schemi e le tabelle che seguono ipotizzano a titolo esemplificativo, una possibile configurazione delle destinazioni d’uso emerse (si veda la tavola “Usi Suggeriti”) in
modo da consentire una valutazione quantitativa delle variabili economiche in gioco.
Le superfici lorde sono tratte dallo studio di fattibilità del Prof. Magnaghi del 1999. Le consistenze dei piani sottotetto sono ridotte del 30%.
F
E
B
D
Z
C
N
M
A
L
I
V
R
Q
P
G
S
H
O
U
T
1.736 mq
Compendio Cavallerizza CCT Srl
Zecca
Totale CCT Srl
Compendio Cavallerizza CDPI Sgr
Totale complessivo
39
18
57
41
99
20.528
5.773
26.301
16.625
42.925
1.908
3.144
2.180
2.487
2.299
CORPI IMMOBILIARI COSTO
TOTALE
€ mln
SUPERFICIE
LORDA
mq
VALORI
UNITARI
€/mq
I costi di ristrutturazione sono stati valutati in misura parametrica in relazione alla
superficie lorda*, come di seguito specificato:
• 500 €/mq per i piani interrati;
• 500-1000 €/mq per i piani sottotetto dedicati a spazi comuni/servizi;
• 1.000 €/mq per gli spazi da sviluppare al grezzo;
• 1.750 €/mq per tutto il resto (€1.600 per i piani superiori della Manica
del Mosca).
* L’analisi fa riferimento alle sole porzioni di proprietà di CCT Srl e CDPI Sgr.
Le superfici sono tratte dallo studio di fattibilità del Prof. Magnaghi del 1999. Ai
fini delle stime di costo la superficie dei piani sottotetto è stata considerata solo in
misura pari al 70% delle consistenze indicate nello studio.
I P O T E S I S U I C O S T I D I T R A S F O R M A Z I O N E P E R
L’ I N T E R O C O M P E N D I O
Sulla base dei costi ipotizzati il rifacimento dell’intero complesso (compresa la
Zecca) comporterebbe oneri di sviluppo di circa 70 milioni di euro (ristruttura-
zione, spese tecniche ed oneri*). Tale investimento, unitamente al valore di acqui-
sto degli immobili**, porta a stimare un impegno finanziario complessivo per i
potenziali investitori dell’ordine di circa 100 milioni di euro, equivalente ad un
costo unitario pari a circa €2.300 per mq di superficie lorda.
Nota: le parti in corso di de-cartolarizzazione (Cavallerizza alfieriana e Salone
delle Guardie) sono incluse nel costo di acquisto ma non nei costi di sviluppo.
* Le spese tecniche e gli oneri sono stati ipotizzati rispettivamente pari al 10% e
al 6% dei costi di ristrutturazione.
** Pari al valore della perizia di conferimento per CCT Srl e al valore di acquisto
per CDPI Sgr.
G L I U S I C O M U N I
La scheda normativa del PRG (NUEA, Titolo II, Art. 10, scheda
Cavallerizza Reale) e il decreto di vincolo della Soprintendenza
(entrambi in appendice) impongono per il complesso della Cavallerizza
limitazioni all’uso privato degli immobili.
La ricerca giuridica, che ha proceduto di pari passo con l’elaborazione
delle proposte di uso e del Masterplan finale, è pertanto stata volta allo
studio dei dispositivi legali che consentiranno di garantire la perenne
e permanente fruizione pubblica, di tutti gli spazi aperti e degli spazi
coperti o chiusi ai piani terreni, indipendentemente dal loro regime
proprietario.
Questo principio regolativo privilegia la regolazione del diritto di uso
rispetto alla regolazione del diritto di proprietà. Esso si radica nella
storia urbana e nella tradizione civica delle città europee, e si ispira
tecnicamente alla giurisdizione anglosassone dei bundle of rights (fasci
di prerogative esclusive) – come per i beni comuni utilizzati ad esempio
in forma di community land trusts – che qui potrà essere interpretata
in modo originale ed appropriato al caso, a tutela della fruizione del
compendio nel tempo da parte della cittadinanza.
I vincoli giuridici che dovranno essere previsti ed imposti sui lotti
d’intervento sono in parte di natura pubblicistica ed in parte di natura
privatistica.
Con riferimento alla prima categoria, quella dei vincoli pubblicistici,
ciascun lotto sarà soggetto a specifiche limitazioni ritenute necessarie
al fine di garantire il godimento pubblico dei relativi spazi aperti, in
ossequio a quanto prescritto dall’autorizzazione all’alienazione resa dalla
Direzione Regionale per i Beni Culturali e Paesaggistici del Piemonte in
data 1° agosto 2005, nonché dalla Deliberazione della Giunta comunale
del 20 novembre 2012.
I vincoli così imposti, quindi, dovranno prevedere la misura minima
della possibilità di godimento da parte del pubblico, che dovrà essere
garantita dai futuri proprietari anche in caso di successive alienazioni;
va da sé che ciascun proprietario sarà libero di ampliare tale godimento
minimo in qualunque momento.
Nel dettaglio, i vincoli che si suggerisce di imporre, riportati nella carta
degli “usi comuni” sono i seguenti:
- Rosso intenso: il proprietario dovrà consentire l’accesso al
pubblico compatibilmente con l’attività commerciale ivi esercitata,
in ogni caso garantendo il pubblico accesso al cortile interno e alle
vie interne almeno 4 ore al giorno, con possibilità di deroga a tale
imposizione in presenza di giustificato motivo;
- Rosso “medio”: il proprietario dovrà consentire l’accesso
pubblico alle corti interne durante le ore diurne, con possibilità
di deroga a tale imposizione solo in casi eccezionali supportati da
giustificato motivo; al proprietario sarà riconosciuta la possibilità di
impedire l’accesso al pubblico durante le ore notturne;
- Rosso chiaro: il proprietario dovrà garantire l’accesso pubblico
durante le ore diurne, senza alcuna possibilità di deroga; al proprietario
sarà riconosciuta la possibilità di impedire l’accesso al pubblico durante
le ore notturne.
Per quanto concerne le forme giuridiche con le quali sarà possibile
imporre i predetti vincoli, essi dovranno essere specificamente
indicati nel Piano Unitario di Riqualificazione, che sarà assunto con
Deliberazione della Giunta Comunale.
Inoltre, si rammenta che, ai sensi della Deliberazione della Giunta
comunale del 20 novembre 2012, le scelte progettuali riguardanti gli
spazi da riservare ad usi pubblici, di interesse pubblico o comunque
tali da garantire l’accessibilità e la fruizione pubblica saranno definite
mediante apposita Convenzione o Atto unilaterale d’obbligo.
Con riferimento ai vincoli privatistici, dovranno essere previste
specifiche servitù di passaggio atte a garantire un più ampio e libero
godimento di ciascun fondo.
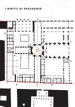
In particolare, osservando la carta delle “I diritti di passaggio”, si
suggerisce di costituire una servitù di passaggio pedonale sulla corte
interna circolare (rotonda) di proprietà CDPI Sgr, in favore di tutti i
lotti che insistono sulla stessa (nella specie, le unità minime d’intervento
Manica via Verdi, Corte delle Guardie, Cavallerizza alfieriana,
Padiglione della Scherma e Manica Mosca) ed eventualmente anche degli
altri lotti, laddove si ritenesse utile per gli stessi utilizzare il suddetto
spazio per far transitare veicoli atti al carico e allo scarico di merci o, più
genericamente, per il passaggio di persone.
Al fine di garantire l’effettiva costituzione dei pesi sopra evidenziati,
ciascun bando dovrà prevedere la costituzione del vincolo quale
condizione per l’aggiudicazione del lotto; nella diversa ipotesi di
compravendita privata, si potrà procedere alla costituzione del diritto di
servitù contestualmente alla vendita del lotto interessato.
G L I A S P E T T I G I U R I D I C I
G L I U S I C O M U N I
Indicazioni per il Progetto Unitario di Riqualificazione ai sensi della Giunta Comunale del 20
Novembre 2012 06298/009.
L A C A R T A
V i a G i u s e p p e V e r d i
Legenda
Suolo di
proprietà privata.
Suolo di
proprietà
condivisa.
Suolo di
proprietà
pubblica.
Accesso
consentito
al pubblico
compatibilmente
con l’attività ivi
esercitata.
Uso pubblico.
Chiusura
notturna e
eccezionalmente
diurna a seconda
di necessità del
gestore.
Uso pubblico,
chiusura
notturna.
Uso pubblico,
nessuna
limitazione
oraria.
ViaGioachinoRossini
I D I R I T T I D I PA S S A G G I O
V i a G i u s e p p e V e r d i
Ingressi ad uso
pubblico
Ingressi ad uso
privato
Passaggi e servitù
Legenda
ViaGioachinoRossini
I P O T E S I D I S E Q U E N Z A D I AT T U A Z I O N E
C A V A L L E R I Z Z A
A L F I E R I A N A
M A N E G G I O
C H I A B L E S E
A U L A
S T U D I O
B A S T I O N E
D E I G I A R D I N I
G A L L E R I A
E S P O S I T I V A
Nota: la realizzazione della galleria espositiva deve tenere conto delle
soggezioni e vincoli provenienti dalla trasformazione dei piani superiori.
L e f a s i p r e f i g u r a t e r a p p r e s e n t a n o u n ’ i p o t e s i
p l a u s i b i l e d e l l a s u c c e s s i o n e d e g l i i n t e r v e n t i d i
r i q u a l i f i c a z i o n e d e l c o m p l e s s o d e l l a C a v l l e r i z z a .
A C C A D E M I A
M I L I T A R E
M A N I C A
M O S C A
Z E C C A
C O R T E D E L L E G U A R D I E E
M A N I C A V I A V E R D I
P A G L I E R E
I L P R O C E S S O AT T U AT I V O E L’ A G E N Z I A
C AVA L L E R I Z Z A
Le tappe verso l’attuazione
1. L’approvazione del Masterplan
Il Masterplan conclude il suo percorso con un atto formale di approvazione da parte
del Tavolo degli Enti del Protocollo di Intesa costituito con DGR 13.04.2015.
Si concretizza in questo modo la natura strategica e non amministrativa del Master-
plan. Esso infatti non ricade tra gli strumenti urbanistici esecutivi e di conseguenza
non ha natura giuridicamente vincolante1
né per i soggetti pubblici o privati parte del
Protocollo di Intesa, né tantomeno per terzi privati che, a seguito di gare o altre forme
di cessione dovessero a titolo provvisorio o permanente entrare ad operare nel perime-
tro del Masterplan stesso.
La sottoscrizione del Masterplan da parte degli Enti ha quindi valore di accordo
strategico tra le parti per il comune perseguimento di una ipotesi di trasformazione
coerente ed il conseguimento di obiettivi condivisi.
Assume invece valore giuridicamente rilevante per i sottoscrittori e per terzi la
contestuale approvazione da parte della Soprintendenza per i Beni Culturali e Pae-
saggistici, con specifica lettera esprimente “parere di massima” nel merito delle scelte
progettuali prefigurate nelle schede I Vincoli e le Possibilità – Schede per la Tutela degli
Edifici contenute nel Masterplan. Essa infatti è trasferibile ai progetti sui singoli lotti
di intervento, costituendo una base di prescrizioni esplicitate in forma grafica che con-
sente agli operatori di muovere i propri passi su basi certe e pre-validate – fatta salva la
loro libertà di proporre anche scelte difformi, ritornando a questo punto ad più ordi-
nario esame progetto in contraddittorio con l’autorità soprintendenziale competente.
2. Il Progetto unitario di Riqualificazione (PUR)
A valle dell’approvazione del Masterplan è possibile procedere alla compartimen-
tazione dei compendi immobiliari secondo le UMI definite nel Masterplan stesso,
ed alla successiva destinazione per parti. Non è però possibile l’intervento diretto
degli operatori privati, in quanto esso richiede, come la Delibera Giunta Comunale
20.11.2012 (in appendice) ha precisato, le modalità attuative delle NTA del PRGC
(in appendice) in questo specifico comparto. Le NTA richiedono che sia preliminar-
mente definito per l’ambito della Cavallerizza e il relativo “Perimetro di Studio” defi-
nito uno strumento specifico denominato Progetto unitario di Riqualificazione (PUR)
in cui siano individuate le Unità Minime di Intervento (UMI) necessarie ad una
attuazione “per parti”. La Delibera 20.11.2015 ne ha definito i contenuti, precisando
quanto già delineato nelle NTA.
I contenuti del Masterplan sviluppano in gran parte quanto richiesto per il PUR. È
quindi possibile, in tempi brevi, e con completamenti e integrazioni opportune, tra-
sformare il Masterplan in PUR facendone uno strumento con valore amministrativo
pieno, attraverso una procedura pubblica ma semplificata, che ha nella Giunta Comu-
nale l’organo di approvazione.
a. Ambito
Il perimetro delineato nel PRGC alla tavola ZUCS – Tipi di intervento (in appen-
dice) ha estensione maggiore di quella del Masterplan; il PUR dovrà di conseguenza
allargare le sue prescrizioni alle parti non comprese nel Masterplan. Trattandosi di spa-
1 Sotto questo profilo, il Masterplan non ricade in alcuna delle procedure approvative
definite dalla legislazione urbanistica in termini di passaggi formali in Giunte e/o Consigli, periodi
e forme di pubblicazione, modalità di osservazione e controdeduzione etc.
Queste potrebbero invece applicarsi al Progetto Unitario di Riqualificazione (PUR), sotto citato,
che per alcuni contenuti appare assimilabile ad un Piano Particolareggiato o Piano di Recupero,
o comunque ad uno strumento urbanistico esecutivo; se così fosse, l’approvazione del PUR dovrà
osservare le specifiche procedure e modalità approvative, con fasi di evidenza e modalità di pubbli-
cizzazione, osservazioni e controdeduzioni.
zi aperti a giardini facenti parte del compendio dei Giardini Reali, e non riguardando
fabbricati o parti di essi (al di fuori dell’auditorium della RAI), ed essendo il tema dei
Giardini e degli spazi aperti già parzialmente affrontato nel Masterplan, questa esten-
sione non appare porre problemi di rilievo.
Andrà opportunamente valutata la possibile estensione del perimetro del PUR ai
Giardini Reali Inferiori o parte di essi, soprattutto in caso si ritenga di localizzarvi una
porzione di parcheggi pertinenziali e/o pubblici a servizio del compendio della Caval-
lerizza, in fregio alla via Rossini.
b. Procedura
Il PUR potrà essere redatto su iniziativa pubblica o privata, non essendo diversa-
mente specificato nelle NTA e nella DGC. Per le sue caratteristiche si regolazione di
attività provate e pubbliche su proprietà diverse, esso assumerà verosimilmente valore
analogo a quello di uno strumento urbanistico esecutivo (ad esempio Piano di Recupe-
ro) e di conseguenza dovrà essere oggetto di adozione ed approvazione da parte della
Giunta Comunale (come da Legge Regionale n. 56/1977 artt. 40 e segg., integrata con
le modifiche introdotte dalla LR n. 3/2013, dalla legge regionale n. 17/2013 e dalla
LR n. 3/2015; anche Decreto Legge 13 maggio 2011, n. 70) con interposta fase di
pubblicazione, osservazioni e controdeduzioni contestuali all’approvazione, ed infine
successiva pubblicazione.
c. Contenuti
Nel passaggio da Masterplan a PUR occorrerà approfondire i seguenti contenuti:
- indicazioni su materiali e colori per le fronti caratterizzanti il com-
plesso
- trattamento del suolo e degli spazi aperti (progetto unitario dello
spazio pubblico e indicazioni per gli spazi pertinenziali: vista l’importanza
assunta dal sistema degli spazi aperti e chiusi al piano terreno, si tratterà vero-
similmente di un unico documento che darà coerenza di trattamento al suolo
dell’intero complesso)
- indicazioni per gli spazi verdi e l’arredo urbano.
Si dovrà inoltre passare da indicazioni di usi “suggeriti” a definizioni specifiche e pre-
scrittive delle destinazioni d’uso ammesse per ogni singola UMI, definendo quindi in
modo conclusivo il calcolo degli standard urbanistici e la loro localizzazione e/o mone-
tizzazione, insieme alla valutazione preventiva degli oneri di urbanizzazione.
3. La realizzazione degli interventi
A valle della pubblicazione del PUR, ogni singola UMI sarà operabile, in coerenza
con le prescrizioni del PUR, attraverso procedure di autorizzazione edilizia che saran-
no definite in base alle specifiche caratteristiche degli interventi proposti.
I nodi dell’attuazione e le ipotesi di soluzione
Nel passaggio da un documento con valore strategico ad un documento che assu-
merà valore amministrativo e di indirizzo conformativo emergeranno due nodi che
discendono da impostazioni normative nazionali, e che vanno attentamente valutati ed
accuratamente impostati per evitare effetti indesiderati, possibili con una applicazione
meccanica di procedure generali ad un caso particolare come quello della Cavallerizza
reale.
Gli oneri
La normativa attuale non distingue per calcolo degli Oneri di Urbanizzazione
(OOUU) tra caso di intervento di recupero ed intervento ex novo, nonostante sia
ormai affermata nella letteratura scientifica e tecnica - e perfino nel sentire comune - la
coscienza che all’obiettivo di contenere il consumo di suolo deve conseguire una più
favorevole e vantaggiosa operatività nel recupero dell’esistente. È attualmente in discus-
sione il disegno di Legge Regionale 177/2015 che all’art. 4.2.a propone la riduzione
- in misura che verrà determinata dai Comuni - degli OOUU in caso di interventi di
recupero.
Per quanto riguarda il Contributo al Costo di Costruzione (CCC), con la legge n°
164 del 11.11.2014, con la quale è stato convertito in legge il DL 12 settembre 2014 n.
133, è stato aggiunto all’art. 17 del DPR n° 380 del 06.06.2001 un parametro minimo
di riduzione del 20% in caso di interventi di recupero e densificazione, delegando agli
Enti Locali la determinazione di parametri favorevoli. Si può perciò considerare una
riduzione minima del 20% per gli interventi sulla Cavallerizza.
Una prima stima degli OOUU e del CCC (a disciplina attuale), ammonta ad un to-
tale di ca. 5,5 M€. Alle condizioni attuali di mercato si tratta di un valore significativo
che potrebbe costituire un elemento critico per la sostenibilità economica degli inter-
venti.
Sono possibili alcune misure correttive, in linea con le sperimentazioni più avanzate a
livello nazionale e internazionale:
- riduzione degli OOUU in misura significativa, considerata la natura degli interven-
ti; una misura presente in alcune normative regionali (es. Regione Puglia) è il 50%.
- riduzione del CCC superiore al 20% minimo nazionale
- finalizzazione delle risorse ad opere di interesse pubblico all’interno del perimetro
del PUR, in modo che queste contribuiscano alla qualità generale dell’intervento ed
alla sua sostenibilità economica generale (ad esempio: spazi esterni, verde pubblico,
edifici pubblici)
- possibilità di esecuzione di opere a scomputo - particolarmente rilevante in questo
perimetro, vista la forte interazione tra parti diverse del complesso della Cavallerizza.
I parcheggi pertinenziali
La normativa attuale lega linearmente superficie edificata o trasformata e dotazione
di parcheggio pertinenziale attraverso un parametro lineare definito dalla L.122/1989
(Tognoli) nella misura di 1 m2 ogni 10 mc, senza distinzioni. Questa semplicità riflette
l’importanza che l’obiettivo di legare edificazione e dotazione di posti auto di perti-
nenza aveva assunto nel dibattito urbanistico italiano a partire dagli anni ‘60.
Una prima stima di massima della dotazione conseguente all’applicazione della nor-
mativa vigente porta a valutare in complessivi 9.000 m2 il totale dei parcheggi perti-
nenziali richiesti (non essendoci ampliamenti volumetrici significativi, possiamo invece
ipotizzare in prima analisi che in base a NTA e DGC citate, non si formino standard
urbanistici di parcheggio pubblico).
Significa una dotazione di circa 360 posti auto.
Le NTA e DGC hanno indicato che tale realizzazione debba avvenire in sottosuolo.
Di conseguenza, considerando un valore parametrico di realizzazione di 800 €/m2,
si tratta di un costo complessivo di intervento di ca. 7,2 M€. Questo senza considerare
le peculiarità del complesso, molto denso e con spazi aperti ristretti, e dei singoli edifici
- dimensione del relativo cortile e altezza delle fronti prospicienti.
La sensibilità attuale è su questo punto profondamente cambiata, e vede la dotazio-
ne di parcheggio come legata alla localizzazione, funzione e relazione con il trasporto
pubblico dell’intervento. L’esperienza ha dimostrato che la dotazione di posti auto in
ambiti storici, monumentali densi, centrali, fortemente serviti dal trasporto pubblico è
negativa non solo per la tutela del patrimonio, ma anche per la stessa mobilità urbana.
Molte città europee hanno adottato norme che spostano l’obiettivo della regolazione
normativa verso la definizione di massimi (anziché minimi) di dotazione, spesso for-
temente restrittivi - a Zurigo, nella zona del centro storico gli standard generali sono
ridotti al 10%, corrispondenti di fatto alla dotazione di posti per veicoli operativi, di
servizio e utenti con mobilità ridotta.
In linea con le politiche urbane della mobilità promosse dalla Città di Torino, il pe-
rimetro del PUR - anche considerate le funzioni ipotizzate nel Masterplan - potrebbe
essere opportunamente individuato come “ambito di sperimentazione” di una politica
innovativa di riduzione delle dotazioni di parcheggio pertinenziale ai minimi funzio-
nalmente necessari per ogni specifica attività, in linea come le migliori best practices
internazionali.
Il soggetto gestore: L’Agenzia Cavallerizza
Questo Masterplan nasce dall’ascolto di diversi attori e dalla costruzione di un
quadro coerente e sinergico dei diversi interessi ed obiettivi emersi in forma di ipotesi
progettuale.
Nella fase attuativa - a valle della condivisione del Masterplan da parte del Tavolo del
Protocollo di Intesa - sarebbe opportuno che si conservasse l’unità di azione costruita
nell’elaborazione del Masterplan.
Per le trasformazioni fisiche, questa unità di azione si manterrà naturalmente attra-
verso il lavoro di traduzione del Masterplan in PUR e il successivo compito di regia
amministrativa e sorveglianza sugli interventi pubblici e privati affidato dalla legge alla
Città e alla Soprintendenza.
Considerato il valore culturale del complesso, il suo ruolo nel quadro del “distretto
culturale” della “zona di comando” e l’identità riconosciuta di luogo di produzione e
fruizione culturale, sarebbe opportuno che il complesso della Cavallerizza avesse una
programmazione unitaria e coerente delle attività e proposte dai diversi attori pubblici
e privati che vi si insedieranno fosse consegnata ad un soggetto incaricato della regia
delle azioni.
Proponiamo che, in linea con le best practices internazionali e con la stessa esperien-
za torinese (accompagnamento sociale alla rigenerazione urbana, case del quartiere,
Rappresentazione di un parcheggio interrato secondo le superfici prescritte dalla L. 122/1989 agenzie di sviluppo locale) nasca una Agenzia della Cavallerizza, soggetto collettivo
attraverso il quale possano essere coordinate tra i vari protagonisti le relazioni, la pro-
grammazione culturale e le attività in genere di tutte le parti del complesso.
L’Agenzia Cavallerizza sarà un gestore sociale e culturale innovativo, che assolverà le
funzioni di: 
• amministrazione del sistema degli spazi aperti comuni, col fine di garantirne nel
tempo la qualità e la piena fruizione; 
• place marketing attraverso l’uso e la promozione del “brand” Cavallerizza al fine
di rafforzare l’acquisita vocazione culturale del distretto nella città; 
• place making attraverso un lavoro di organizzazione e attrazione di eventi e attivi-
tà sia temporanee che stagionali e permanenti, durante e dopo i lavori di trasformazio-
ne dell’area.
Il soggetto gestore (che in ogni caso si sarebbe verosimilmente dovuto costituire,
anche solo in forma di amministratore di “supercondominio”, data la complessa inte-
razione tra le diverse parti del complesso) si dovrà caratterizzare per essere un centro
di attrazione di risorse e non soltanto un centro di spesa, improntando il suo esercizio
all’autosostenibilità: a partire dal nocciolo iniziale, il distretto culturale della Cavalle-
rizza prenderà forma attraendo investimenti e integrando funzioni pubbliche e funzio-
ni private, residenziali e non residenziali, di servizio, temporanee e permanenti. 
Potrebbe ad esempio essere strutturata nella forma di Fondazione di Partecipazione,
essendo partecipato dagli enti del protocollo, dai soggetti acquirenti e conduttori delle
varie porzioni immobiliari e da una rappresentanza della comunità locale attiva.
L A F R U I Z I O N E P U B B L I C A D E I P I A N I T E R R A
Un i n s i e m e a p e r t o , c o e r e n t e e c o n t i n u o d i s p a z i d i i n t e r e s s e e d u s o p u b b l i c o i n c u i c o n v i v o n o
g e s t i o n e p u b b l i c a e g e s t i o n e p r i v a t a
Tutti gli spazi aperti del complesso della Cavalerizza saranno tutti accessibili al pub-
blico con tempi e modi differenti a seconda delle attività insediate (vedi tavola gli Usi
Comuni). Gli spazi interni al piano terra degli edifici che compongono il complesso
saranno fruibili al pubblico per 87% della loro estensione. In particolare, facendo riferi-
mento agli usi ipotizzati:
• il 10,7 % sarà dedicato a galleria espositiva.
• il 2,2 % a servizi per i visitatori.
• il 10,2 % a sala teatrale.
• il 10,6 % ad aule universitarie.
• il 3,4 % ad aula studio.
• il 29,0 % a laboratori, artigianati di qualità o incubatore.
• il 21,1 % a servizi per la ricettività e i visitatori (ristrante - caffetteria)
I l p r o g r e s s i v o r e c u p e r o d e l l a
C a v a l l e r i z z a p e r u n u s o c o m u n e
Delle funzioni precedenti rimane ancora in uso la corte dell’accademia, occupata da uffici militari e l’edifico della Zecca, occupato dalle Forze dell’Ordine (per
un totale di 18.164 mq - 40,6% dell’insieme dei fabbricati).
Entro tre mesi la corte dell’accademia sarà liberata dai militari, mentre le Forze dell’Ordine occuperanno la Zecca per almeno ancora due anni.
Le funzioni culturali del Teatro Stabile Torino, insediatesi nel 2005 nella cavallerizza Alfieriana, sono cessate nel 2013, lasciando inutilizzata l’aula.
Il maneggio Chiablese è stato recuperato a fini universitari e inaugurato nel 2014. (1.736 mq - 3,9% della superficie lorda dell’insieme dei fabbricati).
Nel corso dello stesso anno nasce l’assemblea cavallerizza 14:45 che utilizza per le sue attività parte del piano terra della manica del Mosca e saltuariamente la
cavallerizza Alfieriana.
Tra spazi aperti e spazi coperti la superficie ad uso pubblico prima della redazione del masterplan corrispondeva a 4.374 mq - 10,7% della superficie territoriale
complessiva (compresi i giardini reali).
Nel corso della redazione del Masterplan si sono quindi create le condizioni alla fruizione ad uso pubblico di una superficie pari a 25.590,4 mq - 62,3% della
superficie territoriale complessiva (compresi i giardini reali).
Tra il 2015 e il 2016 la città ha decartolarizzato l’aula alfieriana, e l’ha data in concessione al Teatro Stabile Torino per la riapertura della sala teatrale. La cifra già
investita dalla Città per tale operazione è pari a 1 milione di Euro. Tra 2015 e 2016 la Città ha già investito sulla Cavallerizza complessivamente 1.500.000 €.
La Città ha anche riacquisito il “Salone delle Guardie” per la realizzazione di un’aula studio a servizio del sistema universitario. La cifra già investita dalla Città
per tale operazione è pari a 400.000 Euro.
Nel marzo 2016 è stato aperto gratuitamente al pubblico il bastione dei giardini reali dopo un restauro condotto dalle giardinerie municipali. La cifra già investi-
ta dalla Città per tale operazione è pari a 100.000 Euro.
Il Masterplan prefigura un uso pubblico del complesso della Cavallerizza allargato a 35.191,5 mq - 87% rispetto alla superficie territoriale complessiva (compresi
i giardini reali). La totalità degli spazi aperti sarà ad uso pubblico. Questi usi comprendono attività culturali, espositive, teatrali, di servizio allo studio e ai fruitori
del distretto culturale torinese.
Il Masterplan studia l’inserimento nel complesso della Cavallerizza di una galleria espositiva che possa raccogliere mostre ed esposizioni degli enti museali della
città. La realizzazione di questo spazio è nata dall’interesse congiunto del Polo Reale torinese e dal Ministero dei Beni e le Attività Culturali a seguito della visita
del Ministro Dario Franceschini. Sono attualmente in corso presso il Ministero le procedure necessarie all’ottenimento di fondi per finanziare la trasformazione.
Il Masterplan crea anche le condizioni per l’inserimento nella corte delle Guardie da parte dell’Ente per il Diritto allo Studio del Piemonte (EDISU) di una
residenza universitaria innovativa mista, nella quale coesista una quota di residenza convenzionata e una quota i residenza in libero mercato.
Il finanziamento di questa operazione può avvalersi dei fondi di finanziamento del Ministero dell’Istruzione, dell’Università e della Ricerca.
Il Masterplan crea inoltre le condizioni per l’inserimento nella manica delle Pagliere di una centro di incubazione per imprese innovative. L’interesse verso que-
sta possibilità è stata avanzata dall’Università di Torino.

Masterplan Cavallerizza Reale Torino

  • 1.
    Matteo Robiglio Architetto,masterplanner. Coordinamento scientifico e progettuale. Marco Tabbia Esperto in project management in ambito sociale. Coordinamento indagine e progettazione sociale. Daniele Campobenedetto Architetto, Ph.D. Progettazione masterplan. Il team di lavoro Enrico Bertoni Direttore generale di Equiter. Coordinamento scenari e analisi finanziaria. Luca Rappuoli Analista finanziario senior. Scenari e analisi finanziaria. Elena Potecchi Analista finanziario senior. Scenari e analisi finanziaria. C AVA L L E R I Z Z A D I S T R E T T O C U LT U R A L E M A S T E R P L A N P E R L A R I Q U A L I F I C A Z I O N E , VA L O R I Z Z A Z I O N E E C O N S E R VA Z I O N E A D U S O P U B B L I C O D E L C O M P L E S S O D E L L A C AVA L L E R I Z Z A R E A L E I N T O R I N O Isabelle Toussaint Architetto esperto in restauro. Progettazione masterplan. Edoardo Piccoli Storico dell’architettura e della città. Indagine storico- critica. Andrea Andrich Architetto esperto in urbanistica e real estate. Collaboratore alla redazione del masterplan. Elisa Montervino Dott.ssa in Architettura. Collaborazione alla redazione del masterplan. Cecilia Guiglia Professionista esperta nell'ascolto attivo e processi partecipativi. Interviste agli attori. Collaboratori - Homers Paola Sacco Professionista esperta nell'ascolto attivo e processi partecipativi. Interviste agli attori. Luna Ambrosino Avvocato civilista esperta in common law e beni comuni. Aspetti giuridico-legali. Marco Stranisci Ricercatore ed esperto di social media. Sentiment Analysis. Pierluigi Ubezio Professionista esperto in comunicazione e stampa. Analisi della rassegna stampa. Giulia Monardo Stagista. Assistente agli aspetti grafici In concertazione con:
  • 2.
    Cavallerizza Distretto Culturale- Masterplan aprile 2016 18 L A C AVA L L E R I Z Z A E L A C I T TÀ
  • 3.
    Cavallerizza Distretto Culturale- Masterplan aprile 2016 19
  • 4.
    Cavallerizza Distretto Culturale- Masterplan aprile 2016 20 Questa carta riassume gli edifici e le istituzioni principali del sistema culturale all’interno del centro storico torinese. Il Masterplan individua nella Cavallerizza uno degli elementi cardine di questo sistema, che, grazie alla riqualificazione del complesso, viene completato. Nella Cavalerizza infatti troveranno posto attività ora mancanti nel panorama del “distretto culturale” (come ad esempio una galleria per le esposizioni temporanee delle istituzioni museali della città e una sala teatrale), ma anche un sistema di ricettività rivolto a differenti tipologie di utenti. Il Masterplan punta a sviluppare in questo quadro l’integrazione di diverse funzioni (culturali, ricettive, terziarie e commerciali), la loro complementarietà e diversificazione, l’uso pubblico attraverso la riapertura degli spazi e infine l’intervento in questo processo di attori diversi: dalle istituzioni alla società civile, dalla natura pubblica o privata. I L D I S T R E T T O C U L T U R A L E Cattedrale di San Giovanni Battista Palazzo ChiableseGalleria Sabauda Duomo di San Giovanni, Cappella della Santissima Sindone Palazzo Reale di Torino Real Chiesa di San Lorenzo
  • 5.
    Cavallerizza Distretto Culturale- Masterplan aprile 2016 21 Università degli Studi di Torino Biblioteca Nazionale di Torino Palazzo CarignanoTeatro Carignano Museo EgizioPalazzo Madama Galleria Subalpina Armeria Reale Teatro Regio Auditorium Rai Palazzo Campana
  • 6.
    Cavallerizza Distretto Culturale- Masterplan aprile 2016 22 L ’ A R E A D I I N T E R E S S E D E L M A S T E R P L A N
  • 7.
    Cavallerizza Distretto Culturale- Masterplan aprile 2016 23
  • 8.
    I N DA G I N E S T O R I C O - C R I T I C A Progetto o palinsesto? Si è spesso fatto riferimento al complesso dell’ex Reale Accademia e della Cavalle- rizza come di un tassello di una veduta urbana ideale, in cui Torino si presenta come una città uniforme, compatta, lineare. Una città interamente progettata, il cui ordine si identifica con quello dello Stato stesso. Questo punto di vista ha le sue radici nelle rappresentazioni del Theatrum Sabaudiae : è il prodotto di una strategia politica, e di una cultura visiva del periodo barocco in cui le immagini urbane avevano innanzitutto una funzione persuasiva. L’architettura e la città, disegnate, venivano sottratte al tempo e agli accidenti, diventavano strumenti al servizio dell’affermazione di uno Stato e una corte in un panorama europeo. Questa lettura della città di antico regime ha avuto una lunga e duratura fortuna, ed è stata anche sviluppata e adottata, per ragioni diverse, dalla storiografia del secondo Novecento: una storiografia che ha visto nella Torino dei grandi progetti ducali e reali, dove i singoli edifici erano idealmente sottomessi a una regola superiore, un modello comunque valido di città razionale e ben amministrata. Una città delle regole, in cui il piano e il progetto erano gli strumenti principali d’intervento sulla realtà fisica e sociale. Sotto molti aspetti, questa città di regole, progetti e piani rifletteva anche le ambizioni della cultura della progettazione e pianificazione pubblica dell’Italia con- temporanea: mostrava ad architetti, amministratori e cittadini una strada difficile ma percorribile, pur con strumenti operativi e obiettivi rinnovati. Questa stagione di fiducia nel progetto e nel piano pare oggi conclusa. Tuttavia, con un salto concettuale, la lettura monolitica della città “di Stato” ha conquistato oggi altri favori: ci accorgiamo che il mantra della Torino-barocca e della griglia, delle vie regolari punteggiate da monumenti (da restaurare e presentare in uno stato “al nuovo”) è un concetto semplice da comunicare e da consumare, e produce una cornice ideale per il marketing urbano e turistico. Non c’è niente di male: il ridisegno dell’identità e dell’immagine della città è un processo legittimo, e d’altra parte la competizione tra aree metropolitane è oggi parte di una lotta per la sopravvivenza non meno importante che quella tra le capitali nell’Europa del Seicento. Però questa lettura resta pur sempre una semplificazione, e anche un modo un po’ astratto di guardare a una realtà fisica e sociale che è il frutto di molti intrecci, e non di una sola intenzionalità. Anche perché il rischio è poi di voler adeguare la realtà, con le sue imperfezioni, alla “visione”, rime- diando ex post agli “errori” della storia: allontanandosi da ciò che la città è, ma avvici- nandosi a ciò che avrebbe dovuto essere. La zona dell’Accademia reale e delle scuderie e maneggi regi (solo più tardi si può parlare di “cavallerizza”) si è a lungo prestata alla glorificazione del “progetto unitario”, qui impersonato dal complesso disegnato dal Castellamonte, che avrebbe dovuto com- porre un tassello importante di una città di Stato estesa dal palazzo Reale fino quasi al Po. In effetti, il primo impianto dell’area tendeva a formare un tutto armonico e inte- grato con gli altri edifici e spazi del potere e della corte; e non c’è dubbio che nonostan- te la sua realizzazione molto parziale, la grande croce progettata dal Castellamonte si sia a lungo tramandata sui fogli degli architetti come una presenza implicita, un grande disegno che fino a metà Settecento almeno nessuno ha voluto, o osato, smentire. Si dirà che non c’è nulla di strano: quasi tutti i progetti prefigurati dal theatrum sono stati realizzati in un arco di tempo lunghissimo, spesso plurisecolare. Questo però non lo è stato e a un certo punto è anche scomparso dalle carte. Supponiamo ora di ribaltare il punto di vista: accantoniamo i grandi disegni ordi- natori e interessiamoci, nella storia di quest’area, alle discontinuità, ai frammenti, alla diversità, ai diritti e usi reali. Il “nodo” della cavallerizza appare allora qualcosa di molto diverso: non un oggetto unitario, ma un esempio di quei processi incrementali con cui si è costruita la città europea di età moderna; processi a cui Torino, nonostante la sua storia relativamente breve e tutte le retoriche dell’autorità e del controllo, non sfugge affatto. Se adottiamo questa lettura l’area appare innanzitutto come un palinsesto, dove contano e parlano tutte le tracce lasciate dal tempo e dagli attori di una storia collet- tiva: le grandi fratture, i corpi interrotti degli edifici, ma anche i piccoli interventi in autocostruzione, le differenze tra i materiali. È un punto di vista rovesciato rispetto al primo: ma se ci interessa capire la “città così com’è” e non “come avrebbe dovuto essere”, dobbiamo partire dalle condizioni attuali e non dai progetti iniziali, sforzandoci di intravederli, come presenze spettrali, anche dove non ci sono più o non ci sono mai stati. Secondo questa prospettiva, anzi, i pro- getti sono dati storici importanti - servono a negoziare la città e a modificarne gli spazi - ma sono strumenti, come tanti altri. I conflitti, le battute d’arresto, anche i traumi che segnano gli edifici stratificano tracce altrettanto importanti che devono essere identifi- cate, raccontate, e non dimenticate. La distinzione tra monumento e detrito, tra sostan- Ritratto di Vittorio Amedeo II a cavallo con l’edificio dell’Accademia Reale, incisione di Antonio De Pien- ne, su disegno di Charles Dauphin, 1675; Archivio storico della città di Torino, Coll. Simeom Il corpo centrale della quadricorte dell’Accademia visto dalla via della Zecca, nel momento in cui si dava il via al cantiere; sullo sfondo, la manica della grande galleria. Attraverso la figura del giovane sovrano si sottolinea il legame fisico e funzionale tra la Corte e l’Accademia come “macchina” per l’educazione nobiliare.
  • 9.
    Trecento anni dicantieri. Una definizione operativa Parlare della Cavallerizza oggi significa parlare di un pezzo di città composto da una varietà di costruzioni di scale e forme diverse, edificate nell’arco di quasi trecento anni (1675-1955 circa). I corpi di fabbrica più grandiosi, alcuni dei quali sono esito di progetti di architettura cronicamente e ripetutamente irrisolti, sono mescolati ad altre costruzioni o parti di costruzioni di scala più modesta: rattoppi, adeguamenti normativi o distributivi, piccole strutture autoprodotte, sopraelevazioni, e anche alcuni più consistenti edifici provvisori o precari, diventati permanenti. La rete di spazi aperti che compone il “negativo” di questo insieme di costruzioni è altrettanto articolata, e comprende corti dal disegno regolare, accanto a vicoli e spiazzi senza forma e quasi residuali. In tanta varietà è possibile riconoscere, più che delle tipologie, un principio distributivo prevalente: al piano di terra troviamo infatti una serie di vaste sale voltate, destinate in origine a maneggi, scuderie, sale d’esercizi; ai piani superiori prevale, inve- ce, una organizzazione più minuta per corridoi, cellule e stanze, destinate in genere a funzioni abitative oppure, nel Novecento, a funzioni terziarie. Visto nel suo divenire storico, lo stato attuale dell’area è l’esito di un processo quasi di tipo respiratorio, di lenta crescita e poi di progressiva dismissione; ne riassumiamo alcune delle tappe principali. za progettuale e superfetazione dannosa non ha ragion d’essere, perché l’architettura e il tessuto urbano sono il prodotto di pratiche e attività a volte minime, quotidiane. Il problema, ora, non è validare una sola delle due letture - raccontate così, sono due versioni estreme, così come il “tutto Stato” o il “tutto mercato” - ma riconoscere che la Cavallerizza è un oggetto sfaccettato e ambiguo: da un lato, è il frutto di progetti anche importanti e ambiziosi, dall’altro li vede tutti interrompere, non finire, o demolire. Altrettanto si può dire degli usi e delle funzioni. Nato per ospitare funzioni auliche (l’Accademia e le sue pertinenze) il complesso è stato oggetto di incessanti variazioni e adattamenti funzionali, e poi di un graduale decadimento di usi e valori, che lo hanno portato già nell’Ottocento ad ospitare attività più prosaiche e al limite anonime di quelle previste all’inizio; tanto da essere diventato, insieme ai suoi occupanti, un luogo densamente abitato e vissuto, ma del tutto opaco rispetto alla città. Sotto certi aspetti anche un oggetto imbarazzante, di cui non si poteva parlare in termini pienamente po- sitivi: come giustificare un maneggio costruito a metà? E l’assenza della torre ottagona senza la quale la quadricorte del Castellamonte non sta insieme? Queste ambiguità, e il declino funzionale prima ancora che fisico, spiegano in parte anche la storia acciden- tata della “riscoperta” della Cavallerizza e la sua tardiva presa in carico pubblica e civile nel secondo Novecento. [G. B. Ravelli?], Pianta generale delle scuderie, rimesse e maneggio appartenenti a Sua Altezza Reale il signor Duca di Chiablese in Torino, circa 1780; Soprintendenza ai Beni architettonici e paesaggistici per le provin- ce di Torino, Asti, Cuneo, Biella e Vercelli, fototeca L’inserimento dei nuovi edifici per il maneggio Chiablese evidenzia una situazione frammentaria nel comparto verso il Po. Da notare l’abbandono, a questa data, del programma di completamento sia della manica lunga verso i giardini reali sia della cavallerizza di Alfieri. L’edificio delle carrozzere, che fa angolo con il maneggio, insiste sulle fondamenta del padiglione di testata della manica lunga.
  • 10.
    L’avvio dell’urbanizzazione dell’area,compresa nel secondo ampliamento di To- rino, segue un progetto di Amedeo di Castellamonte degli anni 70 del Seicento ed è imperniato sul grandioso disegno di un’Accademia per nobili. L’edificio, a impianto rettangolare, suddiviso da maniche interne in una grande corte e una “croce” di 4 cortili più piccoli, avrebbe dovuto essere connesso al Palazzo reale mediante una lunghissima galleria. La costruzione della galleria sarà infine abbandonata, ma anche la realizzazio- ne del complesso accademico sarà molto parziale (seppure sufficiente per avviare con successo l’istituto); tanto che la torre ottagonale di snodo dei cortili interni, “pièce maîtresse” della composizione aulica, non verrà mai realizzata, anche se viene tracciata sul terreno. La mancata realizzazione del grande progetto si accompagna all’avvio, tra la fine del Seicento e i primi decenni del Settecento, di altri cantieri. Esigenze pratiche connesse alle attività della corte porteranno affiancare alle maniche adibite a scuola dei corpi di fabbrica per scuderie e alloggi militari, lungo l’attuale via Verdi. Oltre i confini del complesso accademico verso il Po, inoltre, si costruiscono edifici per la Regia zecca, un maneggio e altre scuderie dal carattere più provvisorio. Una cavallerizza, prevista inizialmente come edificio isolato, sarà integrata nel siste- ma a quattro corti dell’Accademia solo nel 1740, quando Benedetto Alfieri predispone un progetto di grande respiro, aggiornato secondo modelli francesi e mitteleuropei. In quest’occasione le grandi dimensioni richieste dall’aula portano Alfieri a riprogettare, ingigantendola, anche la torretta ottagonale già prevista dal Castellamonte. Efficace sulla carta, il progetto alfieriano naufraga nella pratica: la cavallerizza non verrà completata e neppure organicamente collegata al resto del complesso; spettacola- re ed elegante anche nel suo stato frammentario, resterà come sospesa tra il mai realiz- zato padiglione ottagonale e il cortile del maneggio verso il Po. La ricostruzione affrettata nelle forme attuali del maneggio del Duca di Chiablese (1775 circa) spegne ogni velleità di completamento del progetto alfieriano, e stratifica nel sito una nuova giurisdizione, dopo l’Accademia e le scuderie reali. Oltre al maneg- gio, che sostituisce una struttura più precaria seicentesca, vengono in quest’occasione realizzati altri edifici privi di qualità formali (carrozzere, depositi): dietro alla grande incompiuta dell’Alfieri l’intero comparto delle scuderie assumeva così una configura- zione priva di qualsiasi ordine. Su questa situazione davvero problematica - registrata dai disegni dell’architetto imperiale Piacenza, inviati a Parigi in età napoleonica - interviene dal 1830 un ultimo grande progetto ordinatore, portatore di un linguaggio e una cultura del costruire del tutto nuova rispetto alle premesse barocche. L’imponente manica a “F” inserita tra la Cavallerizza e i giardini Reali e progettata da Carlo Bernardo Mosca nel 1832 è un edificio solido, massiccio, pienamente razionale: opera di un ingegnere-architetto con- sapevole di dover rispondere con rigore a un programma (da cui l’eccezionale sistema distributivo), ma anche di dover dare una soluzione unitaria a un insieme disordinato di spazi e costruzioni. La grande scuderia voltata sostiene un quasi-falansterio: tre piani di abitazioni di servizio servite da corridoi centrali, che insieme ai portici, le scale, i sottotetti, le cantine, compongono un corpo unitario e tutto “in funzione”; allo stesso tempo, la grande manica si allinea con il complesso delle segreterie e dell’archivio, ri- proponendo come volumetria, ma non come linguaggio e destinazione d’uso, il proget- to della grande galleria seicentesca. P. Foglietti e L. Tonta, Scuderie e Maneggi. Pianta del piano terreno, 28 settembre 1864; Archivio di Stato di Torino, Sez. Riunite, Real Casa Il complesso delle scuderie ha raggiunto la sua massima densità. “L’Architetto capo dell’Ufficio tecnico della Real Casa” e “L’ingegnere di seconda classe nel Genio Civile pei Fabbricati demaniali in Torino” firmano una plani- metria che rende conto del riordino portato dalla edificazione della manica “del Mosca” verso i giardini reali e dei corpi più bassi che seguono l’orientamento del maneggio Chiablese. Da notare come la Regia zecca non sia parte della medesima giurisdizione. In alto a sinistra, la manica verso i giardini Reali non è ancora completata.
  • 11.
    Con il completamentodella scuderia-residenza di Mosca nel 1836-37, cui si aggiun- geva la doppia manica bassa delle pagliere, costruita in due fasi separate di pochi de- cenni, la cui inclinazione segue il filo delle mura, il complesso ora noto come dei “regi maneggi e scuderie” raggiunge un grado di quasi-saturazione; piccoli interventi edilizi, strutture di completamento, inspessimenti di maniche o sopralzi aggiunti nei decenni successivi non modificheranno più sostanzialmente la situazione. A partire da fine Ot- tocento, anzi, l’area inizia a subire un processo inverso, di impoverimento ed espulsione di funzioni, connesso prima con il trasferimento della capitale e poi con l’affermarsi di nuovi mezzi di trasporto e locomozione. A questo processo resiste in parte l’area dell’Accademia, dove si interviene nel tardo XIX secolo con il completamento dell’ala lungo i giardini Reali, e con altre opere mi- nori come la “sala di ginnastica” inserita in uno dei cortili interni. Ma i bombardamenti della seconda guerra mondiale colpiscono proprio gli edifici accademici, determinando il trasferimento dell’istituzione e la successiva trasformazione radicale del settore verso Piazza Castello. È un altro turning point: il dibattito che si innesca negli anni della ri- costruzione sulla sorte dell’area bombardata, in connessione con il progetto di un nuo- vo teatro d’opera e di una “area culturale” per la città estesa fino agli isolati della Mole Antonelliana, è noto, e non vi ritorneremo. Ricordiamo come, nonostante la grande estensione delle demolizioni, l’installazione del Genio militare e di alloggi per personale dell’esercito abbia portato a operazioni piuttosto brutali di sopraelevazione e densificazione sugli edifici superstiti dell’Acca- demia fino al formarsi, dietro all’attuale teatro Regio, di un piccolo isolato verticale densamente vissuto e abitato, anche se del tutto chiuso alla città; inaccessibile ai civili, ma anche privo di quei caratteri di rappresentatività urbana assegnati alle caserme otto- centesche. La storia edilizia successiva è fatta da attori a cui solo di recente è stata data una voce: famiglie, funzionari, tecnici, che un po’ acconsentono, un po’ resistono al progressivo degrado dell’area, interessata da interventi di manutenzione o di consolidamento e da parziali restauri, in modo variabile a seconda delle giurisdizioni e delle diverse modalità di gestione. Solo nel comparto occupato dal genio militare, dietro al teatro molliniano, si è continuato a intervenire in modo più deciso fino agli anni ’90 del 900, inseguendo adeguamenti normativi e strutturali e persino ampliando gli spazi da mettere a disposi- zione di uffici e residenze, al di sopra di una delle scuderie seicentesche. Un accrochage di passerelle e nuove scale segnala anche all’esterno questi cantieri. La riapertura di al- cune grandi sale per spettacoli e mostre, il riuso come sala teatrale del maneggio alfieria- no, e la cessione all’Università di quello ex-Chiablese è ancora più recente, e coincide con l’abbandono definitivo degli ultimi comparti residenziali in locazione; l’intreccio tra apertura e svuotamento si intreccia quasi naturalmente con l’occupazione e la riven- dicazione del valore del complesso come bene comune. Da “non vi è nulla” al “bene di valore inestimabile”. La costruzione di una dimensione patrimoniale e pubblica per la cavallerizza è re- cente. Al di fuori delle incisioni del progetto di Castellamonte, per quasi tre secoli le immagini pubbliche dell’area sono rarissime, e sono altrettanto scarsi i riferimenti ai suoi edifici nelle guide e nei testi sulla città. Questo è comprensibile se pensiamo al suo carattere di zona di servizio, e alla frammentarietà dei suoi edifici-chiave: una condi- zione che ha impedito persino ai minuziosi disegni di presentazione del grand projet alfieriano di trovare una traduzione in incisioni. La sostanziale chiusura, alla vista e alla circolazione, dell’intero comparto, ad eccezione dello scomparso cortile quadrato dell’Accademia, che si traguardava dai portici del Regio, ha fatto il resto. Tanto che, dopo che l’incendio del Regio e poi i bombardamenti avevano colpito l’unica parte in qualche modo nota al pubblico, nei primi anni 50 del Novecento a Torino non sembra esserci una chiara consapevolezza di cosa rimane dietro all’Accademia. “Basta guardare da Piazza Castello attraverso i fori del muro dell’ex teatro Regio per accorgersi che già ora si vede precisamente la Mole, perchè non vi è sul rettilineo della vi- suale alcuna costruzione da demolire. Dietro il muro dell’ex teatro Regio (…) non vi è più nulla per circa 300 metri; vi è in- Carlo Mollino, Studi preliminari alla consegna del progetto per il nuovo Teatro Regio, 1965. Circolazione urbana nella zona tra piazza Castello, Archivio di Stato e Demanio Militare. Politecnico di Torino, Biblioteca Centrale di Architettura, Archivio Carlo Mollino, P.16B.362.151. L’estensione delle demolizioni prefigurate negli anni 60, sulla scia dei progetti per la “zona culturale” discussa nel concorso del 1952, è impressionante. Al diradamento si sovrappone l’esaltazione della circolazione automoiblisti- ca, tipica di quegli anni. Mentre già circolavano gli studi di Passanti sulla Torino barocca, siamo al momento più basso di consapevolezza pubblica del valore degli edifici sull’area della cavallerizza.
  • 12.
    fatti l’immenso cortiledell’Accademia Militare circondato dallo stabile semidemolito dai bombardamenti (…) Se vi è qualche piccola, bassa costruzione tra via Rossini e via Monte- bello, si tratta di cosa di poco conto” . (Guido Guidi, rivista Torino, 1952, “La Mole in Piazza Castello”) “Non vi è più nulla”: giudizio estremo, e orientato a una volontà di rinnovamento, che però fa capire come in quegli anni si sia potuto intervenire piuttosto pesantemente sulla parte danneggiata dell’Accademia reale e su alcuni corpi retrostanti (con demoli- zioni, ma anche con brutali sopraelevazioni), mentre altri edifici e spazi della città già venivano ricostruiti “com’erano e dov’erano”. Eppure, già nel 1945 una pubblicazione (dalla limitata diffusione iniziale, ma sarà un long seller) di Mario Passanti ricominciava a parlare della città barocca nel suo insieme come di un tessuto che proprio nella continuità e nella forma urbana aveva un suo valo- re, non solo una sommatoria di monumenti. Nasceva qui il riconoscimento dell’esistenza di un sistema di edifici interconnessi, che dal Palazzo Reale attraverso piazza Castello si incuneavano giù da via della Zecca. Con la sua “universal disciplina” e la sua grande scala, il complesso rispecchiava secondo Passanti una struttura di potere forte, coesa, ideale. Passanti è il primo a spiegare come zecca, Cavallerizze (reale e Chiablese) e accademia potessero essere lette come un tutto unitario, da lui battezzato piuttosto felicemente “zona di comando”: “Complesso imponente di edifizi, dal quale la Monarchia mostra stendere il suo dominio sino agli ultimi limiti della città, irregimentando in architetture unitarie le costruzioni sorgenti lungo le arterie e piazze” (Passanti, 1945). Lo storico e architetto non scendeva poi più nel dettaglio, ma d’altra parte, secondo quanto lui stesso affermava, l’individualità dei singoli edifici della “zona di comando” quasi non contava: ciò che contava era la produzione di una forma urbana di “im- pressionante unità”. Questa chiave di lettura - che nasce dalla cultura urbanistica di un architetto tra i più raffinati del Novecento torinese - non sarà mai più sconfessata: l’etichetta di “zona di comando” accompagna il complesso fino al suo inserimento nel patrimonio Unesco. Solo più tardi, con il progredire sistematico degli studi sul barocco, lo sguardo è sceso alla scala degli edifici; e qui il discorso dell’unitarietà, della completezza, si è un po’ incrinato, perché l’insieme dei corpi di fabbrica dell’Accademia e dei diversi maneggi - quel “tessuto continuo” che continuo non è affatto - si è palesato come è: un dedalo di cantieri e corpi di fabbrica differenti, quasi inaccessibile alla cittadinanza e quasi del tutto trascurato dagli studi fino a pochi anni fa. Solo la fabbrica della Cavallerizza (già brevemente presentata nella prima monografia dedicata ad Alfieri da Giovanni Cheval- ley nel 1915) viene riconosciuta come un’architettura di qualità: compare nel monu- mentale volume di Augusto Cavallari Murat sulla Torino Barocca e poi negli studi di Amedeo Bellini su Benedetto Alfieri. Questi studi portano - infine - alla pubblicazione delle prime fotografie della grande aula, allora usata come autorimessa dalla polizia. È quasi una rivelazione. A fronte dell’anonimato che continua a riguardare altre parti del complesso, l’edificio di Alfieri, anche se realizzato soltanto a metà, diventa allora la “parte per il tutto”, il monumento intorno a cui si aggrega l’identità dell’area, e che assegna il proprio nome all’intero sistema di corpi e costruzioni - ormai privato della funzione accademica - dietro al teatro Regio. La storia più recente della conoscenza e patrimonializzazione del complesso è quella di un processo che sta accelerando. Gran parte dell’area (sono escluse le carrozzere e pa- gliere ottocentesche) è stata inserita, come parte della “zona di comando”, nella perime- trazione Unesco delle Residenze sabaude. Nuovi studi hanno chiarito le fasi costruttive di alcune sue parti. La successiva apertura della cavallerizza alfieriana al pubblico con la realizzazione di un teatro provvisorio, pur avendone un po’ mortificato il grandioso ef- fetto di aula voltata, ha avuto una funzione quasi liberatoria, importantissima. Poi l’in- gresso dell’Università, che ha realizzato la sua Aula Magna nell’ex maneggio Chiablese, assegnando una funzione pubblica e urbana a un edificio che non l’aveva mai avuta. In- fine l’occupazione del 2014-15, che ha portato ad aprire al pubblico ancora altre aree, riscoprendo le qualità abitative dell’edificio del Mosca e riattivando il collegamento con i giardini Reali. Il “valore inestimabile” invocato per l’area è ora conteso e attende una sua traduzione in termini di funzioni, accessi, usi futuri. Bibliografia essenziale 1675-1975 Joan Blaeu, Theatrum Sabaudiae (Theatrum statuum regiae celsitudinis Sabaudiae ducis, Pedemontii principis, Cypri regis), Amsterdam 682, 2. v. (ed. a c. di Luigi Firpo, Città di Torino, Torino 1984) Mario Passanti, Architettura in Piemonte, Libreria tecnica V. Giorgio, Torino 1945 Nello Renacco, Concorso per la zona culturale di Torino, «Urbanistica», n.10-11, 1952, pp.89-93 Augusto Cavallari Murat, Forma urbana e architettura nella Torino barocca, UTET, Torino 1968, 3 v. 1975-2015 Amedeo Bellini, Benedetto Alfieri, Electa, Milano 1978 Fabrizio Corrado, Paolo San Martino, Il Palazzo dell’Accademia Reale di Amedeo di Castellamonte «primum certe ornamentum» di Torino capitale barocca, «Studi pie- montesi», A. XII, n. 1, 1983, Torino, pp. 93-101 Luciano Tamburini, Storia del Teatro Regio di Torino, L’architettura dalle origini al 1936, Cassa di Risparmio di Torino, Torino 1983 Francesca Bagliani, Paolo Cornaglia, Marco Maderna, Paolo Mighetto, Architettura, governo e burocrazia in una capitale barocca. La zona di comando di Torino e il piano di Filippo Juvarra del 1730, Celid, Torino 2000 Michela Comba, Un teatro nell’Accademia Militare. Quarant’anni di ricostruzione del Teatro Regio di Torino, «Quaderni Storici», vol.125, n.2, 2007, pp.517-548 Silvia Gron, Elena Vigliocco, Intersezione. Più frammenti un unico soggetto, Araba Fenice, Boves 2009 Pier Giovanni Bardelli (a cura di), Il Teatro Regio di Torino da Carlo Mollino ad oggi: consistenza materica ed esito architettonico, Flaccovio, Palermo 2010 Fabrizio Corrado, Il duca e lo scalpellino. Potere e mestiere in una fabbrica simbolo della capitale sabauda, l’Accademia Reale di Amedeo di Castellamonte, in Giorgio Mol- lisi (a cura di), Svizzeri a Roma nella storia, nell’arte, nella cultura, nell’economia dal Cinquecento ad oggi, [«Arte&Storia», anno 11, numero 52, ottobre 2011] Edizioni Ticino Management, Lugano 2011, p. 180-187 Amelio Fara, L’arte della scienza. Architettura e cultura militare a Torino e nello Stato Sabaudo (1673-1859), Olschki, Firenze, 2014 Andreina Milan (a cura di), Theatrum sapientiæ. La nuova Aula Magna dell’Universi- tà di Torino negli spazi dell’antico Maneggio Chiablese, Celid, Torino 2014 Nota: un regesto archivistico completo non è tra gli obiettivi di questo testo. Si ri- manda quindi ai regesti già segnalati nella bibliografia recente (in particolare: Gron-Vi- gliocco 2009 e Fara 2014) e ai seguenti archivi: Archivio di Stato di Torino (AST), sezione Corte e sezioni riunite (diverse serie, tra cui Real Casa, Duchi di Genova, etc); Archivio storico della Città di Torino (ASCT); Archivio edilizio, Torino; Archivio e fototeca della Soprintendenza Beni Architettonici e Ambientali, Torino; Archivio del Genio militare, Torino; Biblioteca Reale, Torino (Raccolta Saluzzo); Archivio Carlo Mollino, Politecnico di Torino; fuori Torino: Archivio Centrale dello Stato, Roma; Archivio dell’Accademia Militare, Modena; Archives Nationales, Parigi. Una fruizione pubblica per la documentazione istituzionale e archivistica sulla storia antica e recente della Cavallerizza è oggi assicurata (aprile 2016), sia pure per parti ed esempi, da numerosi siti internet: Archivio di Stato di Torino; museotorino; La Stam- pa; Unesco; cavallerizzareale.org; cavallerizzareale.wordpress.com; youtube.
  • 13.
    L E PR O P R I E TÀ La tavola riassume la suddivisione delle proprietà che insistono sul complesso della Cavallerizza alla data della redazione di questo Masterplan. Il Compendio comprende 20 corpi di fabbrica caratterizzati da periodo di costruzione, utilizzo e stato di conservazione piuttosto diversificati. La superficie utile del complesso della Cavallerizza è ripartita tra la società di Cartolarizzazione el Comune di Torino (di seguito C.C.T. Srl) e FIV - Fondo Investimenti per la Valorizzazione - Comparto Extra, gestito da C.D.P. Investimenti Sgr (di seguito C.D.P.I. Sgr), con circa 20.000 mq (superficie lorda) per la prima proprietà e 16.000 (superficie lorda) per la seconda. C.C.T. Srl dispone, inoltre, dell’immobile “ex Zecca”, per ulteriori 5.700 mq. Un terzo soggetto proprietario è costituito dalla Città di Torino che possiede l’ex Maneggio Chiablese e la porzione a completamento della corte dell’accademia militare, oggi coincidente con parte della piazzetta Accademia Militare. L’area corrispondente all’ex Maneggio Chiablese, pari a circa 1.700 mq, è stata concessa in comodato dal Comune di Torino all’Università degli Studi di Torino che ha provveduto, con una spesa di € 6 milioni, a realizzare la nuova Aula Magna dell’Ateneo inaugurata nel 2014. La porzione ovest del compendio è stata ceduta nel 2014 dal Demanio dello Stato a FIV/C.D.P.I. Sgr, mentre la restante porzione è di proprietà della società di cartolarizzazione C.C.T. Srl.
  • 14.
    V i aG i u s e p p e V e r d i L E P R O P R I E TÀ
  • 15.
    Proprietà FIV- CDPI Sgr. ProprietàCCT Srl - lotto 2. Proprietà Città di Torino, concesso a Università di Torino. Sovrapposizione proprietarie ai piani elevati (CDPI Sgr su CCT Srl) Sovrapposizione proprietarie ai piani elevati (CCT Srl su CDPI Sgr) Interferenze proprietarie tra CDPI Sgr e CCT Srl (in questo caso entrambe sotto la stessa proiezione della copertura) Proprietà CCT Srl - lotto 1. Legenda ViaGioachinoRossini Proprietà Città di Torino.
  • 16.
    Organizzazione delle schede Loscopo di queste schede è quello di indicare vincoli e possibilità di trasformazione sugli edifici del complesso della cavallerizza. Queste indicazioni derivano dall’analisi storico-documentale riportata all’interno del Masterplan stesso e sono state individuate attraverso un percorso condiviso con la Soprintendenza per i Beni Storici, Artistici ed Etnoantropologici del Piemonte. Le schede sono complementari ad altre indicazioni emanate dalla Soprintendenza, e vogliono costituire la base per una progettazione che possa garantire la rifunzionalizzazione dei vari edifici della Cavallerizza garantendo la conservazione e la valorizzazione del patrimonio esistente. A tal fine, e per agevolare il dialogo tra futuri progettisti e le istituzioni preposte alla tutela del patrimonio, la Soprintendenza approva il contenuto delle schede. Le schede sono state realizzate seguendo allo stesso tempo le unità edilizie e i comparti proprietari presenti all’atto di redazione di questo Masterplan. Contengono tre paragrafi - Struttura, Potenziale, Usi Suggeriti- che riportano indicazioni di massima riguardo all’edificio in esame con livelli di prescrizione decrescenti. A questi si aggiunge un’assonometria che riporta sinteticamente l’insieme dei vincoli e delle possibilità di trasformazione a cui sono riferite paragrafi specifici per ogni vincolo o possibilità. Le schede sono completate dall’individuazione puntuale di vincoli e possibilità su piante prospetti e sezioni (riferiti ai rilievi in possesso delle attuali proprietà, comparati con il rilievo effettuato nel 1999 da Agostino Magnaghi). Struttura E’ l’insieme delle indicazioni di massima sull’edificio che hanno valore prescrittivo. Presentano dati di analisi distributiva e storica di carattere oggettivo. Potenziale E’ l’insieme delle indicazioni che indicano le caratteristiche degli usi compatibili con la struttura, la distribuzione e le necessità di conservazione dell’edificio. Usi suggeriti E’ l’insieme delle indicazioni sulle funzioni che meglio esprimono la vocazione dei vari corpi di fabbrica. Sono indicativi e non costituiscono prescrizione, ma hanno la funzione di esemplificare direzioni di intervento possibili. I V I N C O L I E L E P O S S I B I L I TÀ Possibilità Indica gli orientamenti di trasformazione già discussi con la Soprintendenza. Non è un compendio delle sole operazioni che si possono compiere ma di operazioni già valutate dalla Soprintendenza. Di conseguenza, in mancanza di indicazioni sulle possibilità di trasformazione all’interno delle schede, le eventuali modifiche alla struttura e alla distribuzione degli edifici saranno da concordare con la Soprintendenza. Vincoli Indica gli ambienti, i sistemi strutturali e distributivi degli edifici di cui si prevede la conservazione o il ripristino. Le eventuali trasformazioni di questi ambienti saranno oggetto di attenta valutazione da parte della Soprintendenza. Osservazioni sui soggetti coinvolti nella trasformazione I soggetti attori delle trasformazioni hanno il compito di effettuare un rilievo e un’analisi accurata della consistenza fisica dell’edificio, incrociandola con i dati storici e archivistici, non limitandosi al mero rilievo dei dati dimensionali, ma rifacendosi alle metodologie della ricerca storica sull’edificato più aggiornate (bauforschung). Oltre ad anticipare informazioni sulla fabbrica che risulteranno essenziali in fase di cantiere, l’operazione ha lo scopo di registrare un’immagine e una descrizione accurata dell’edificio nella sua reale consistenza fisica, precedente alla sua trasformazione. L’analisi dovrà fornire dati scientificamente fondati sui materiali attualmente costituenti l’edificio (da cielo a terra), sulle tecniche costruttive relative alla loro messa in opera, e nei limiti del possibile approdare a una lettura esaustiva della successione dei cantieri e delle azioni (anche distruttive) che hanno portato alla configurazione attuale della fabbrica. Sarà compito soggetti attori delle trasformazioni allocare a questa operazione le risorse e i tempi sufficienti al suo buon esito. Gli esiti dell’indagine, infine, dovranno essere quanto prima resi disponibili, oltre che alla Soprintendenza e ad eventuali altri enti competenti, nonchè al pubblico. S h e d e p e r l a t u t e l a d e g l i e d i f i c i .
  • 17.
    Linea rossa: Indicazione dimassima del perimetro o volume sottoposto al vincolo specificato nel relativo paragrafo. Linea verde: Indicazione di massima del perimetro o volume che può contenere la trasformazione specificata nel paragrafo corrispondente. Linea verde puntinata: Indicazione del volume virtuale che può contenere addizioni di volumi minori agli edifici esistenti. Linea nera tratteggiata: Indicazione del volume dell’edificio esistente.
  • 18.
    C O RT E A C C A D E M I A Struttura 1.1 - L’edificio presenta nel complesso un sistema distributivo a manica doppia con corridoio centrale e vani scala posizionati negli angoli. Nonostante siano state fortemente danneggiate durante il secondo conflitto mondiale, le strutture conservano ancora elementi di interesse, in particolare il sistema strutturale a fulcri tardo ottocentesco della manica verso i giardini, le sale auliche e lo scalone nell’angolo nord e la volta al pian terreno della manica sud-est. L’ultimo piano e il sottotetto sono frutto di sopraelevazioni post belliche. Potenziale 1.2 - Gli ambienti al piano terreno, caratterizzati da ambienti voltati, presentano un potenziale per funzioni aperte a pubblico. In particolare la rotonda centrale è ambiente di distribuzione di tutte le corti del complesso della Cavallerizza e a tal scopo sarà conservata. Gli ambienti dei piani superiori risultano adatti alla funzione di residenza collettiva in ragione del loro impianto distributivo e della possibilità di trasformazione dell’ultimo piano e del piano sottotetto. Usi suggeriti 1.3 - L’insieme edilizio, a motivo della sovrapposizione di un sistema cellulare e di un insieme di grandi aule, offre una vocazione particolare verso funzioni residenziali temporanee o funzioni di carattere terziario (quali ad esempio uffici pbblici e privati, sedi di attività amministrative, attività culturali, attività per il tempo libero e l‘istruzione). Gli ambienti del piano terreno, in particolare le due maniche che si innestano sulla rotonda centrale e il padiglione della scherma, sono vocati a funzioni di carattere collettivo. Vincoli e possibilità 1.4.9 Vincolo di conservazione della rotonda nel suo insieme. Possibilità di realizzazione di volumi minori all’interno del volume virtuale individuato dall’estrusione della rotonda. 1.4.7 Possibilità di realizzazione di un vano scala nella porzione adiacente alla rotonda della manica sud-ovest. 1.4.5 Vincolo di ripristino dell’aula al piano terreno della manica perpendicolare ai giardini e conseguente demolizione delle strutture all’interno del suo volume con recupero delle superfici in altre porzioni dell’immobile 1.4.3 Vincolo di conservazione del sistema strutturale su fulcri della manica verso i giardini. Possibilità di realizzare partizioni interne ai vari piani e di allargare le aperture del piano terreno verso la corte interna e verso i giardini, nel rispetto della conformazione della struttura. Possibilità di realizzare un vano scala nella porzione della manica a fulcri, in adiacenza ad uno degli angoli della corte. 1 1.4.1 Vincolo di conservazione del sistema di aule voltate sovrapposte, nonchè della scala aulica e della scala di servizio adiacenti. Possibilità di aprire un collegamento dalla corte interna verso la piazzetta Mollino. 1.4.4 Possibilità di realizzare abbaini in asse con la scansione di facciata su tutte le coperture eccetto le falde lato giardini. 1.4.6 Vincolo di ripristino dell’aula voltata al piano terreno della manica sud-ovest. 1.4.8 Possibilità di realizzazione di un volume di collegamento tra il padiglione della scherma e il piano terreno della manica sud-ovest. Possibilità di modificare le falde della copertura del padiglione della scherma.1.4.2 Possibilità di riorganizzazione della distribuzione degli ultimi due piani nel rispetto della volumetria esistente.
  • 19.
    Struttura 2.1 - Duesono i corpi edilizi riconoscibili. Il primo, perpendicolare alla via Verdi è costituito da un’aula voltata al piano terreno, alla quale si sovrappongono tre piani la cui distribuzione è scandita tramite muri portanti perpendicolari alla volta stessa. I solai e il tetto sono frutto di una ricostruzione contemporanea. La manica parallela alla via presenta invece una distribuzione a manica doppia con vano scala centrale. Lo stato attuale è frutto di diversi interventi che ne hanno modificato la volumetria e la distribuzione originaria. Potenziale 2.2 - Gli ambienti con scansione regolare della manica perpendicolare a via Verdi presentano potenziale per attività terziarie, ciò anche in ragione di un possibile collegamento con la manica minore della corte delle Guardie (vedi scheda 2). La manica perpendicolare alla via, in ragione della diversa distribuzione, può accogliere sia attività terziarie che residenza. Usi suggeriti 2.3 - Questi edifici offrono una vocazione per l‘inserimento di uffici e funzioni terziarie in genere a motivo della loro esposizione sulla via Verdi. In particolare la manica parallela alla via, al piano terreno, può accogliere funzioni di front office in quanto ben collegata alla piazza Castello. Nella stessa manica l’introduzione di residenza, anche collettiva, è compatibile con le strutture esistenti. La grande sala del piano terreno della manica che si innesta nella rotonda è vocata ad usi di carattere pubblico ed espositivo. 2.4.3 Possibilità di collegare attraverso aperture puntuali la manica perpendicolare alla via Verdi e la manica minore della corte delle Guardie ad essa addossata. M A N I C A V I A V E R D I2 Vincoli e possibilità 2.4.2 Possibilità di realizzare abbaini nel rispetto delle scansione di facciata su tutte le falde che ne sono prive. via Verdi 2.4.1 Vincolo di conservazione dell’aula al piano terreno. In particolare dovrà essere garantita a lettura unitaria dell’ambiente.
  • 20.
    Struttura 3.1 - L’edificiopresenta un’articolazione di ambienti che ai primi due piani alterna grandi aule ad una distribuzione centrale a doppia manica. Al terzo piano viene confermata la distribuzione a corridoio centrale. L’edificio ha subìto trasformazioni e sopraelevazioni che ne hanno modificato sostanzialmente la distribuzione e la volumetria originale, in particolare ai piani primo e secondo. Potenziale 3.2 - Gli ambienti ai vari piani sono caratterizzati dalla serialità del loro impianto distributivo. Le aule al piano terreno possono accogliere pubblici servizi o funzioni aperte al pubblico. Usi suggeriti 3.3 - / Attualmente in uso alle Forze dell’Ordine. Z E C C A 3 3.4.2 Vincolo di conservazione del sistema delle aule voltate e dei sistemi strutturali a fulcri del piano terreno. Vincoli e possibilità 3.4.1 Possibilità di collegamento della corte interna con gli spazi comuni del complesso della Cavallerizza.
  • 21.
    C AVA LL E R I Z Z A A L F I E R I A N A Struttura 4.1 - L’aula alfieriana è parte di un progetto ampio che, seppur non realizzato, prevedeva il prolungamento della struttura per una lunghezza doppia rispetto all’attuale. Si conserverà la lettura unitaria dell’aula, così come il collegamento con la rotonda centrale del complesso. Potenziale 4.2 - Il grande ambiente esprime le sue potenzialità accogliendo funzioni che non ne prevedano in nessun modo un frazionamento sistematico o ne impediscano la lettura d’insieme. Usi suggeriti 4.3 - L’eccezionalità dello spazio e il collegamento distributivo con la rotonda centrale esprimono la vocazione dell’edificio ad ospitare funzioni collettive di tipo pubblico. Vincoli e possibilità 4.4.3 Vincolo di conservazione dell’aula alfieriana. Possibilità di realizzazione di volumi minori all’interno dell’aula, purché questi non ne impediscano la lettura unitaria e non si addossino alle pareti. 4.4.2 Vincolo di conservazione del sistema delle capriate all’estradosso della volta alfieriana e delle strutture murarie sovrastanti a volta stessa. 4.4.1 Possibilità di realizzare aperture all’interno delle cornici sottostanti alle finestre dell’aula nella quantità di una per lato e nella posizione che più si accorda con le necessità funzionali delle attività interne. 4
  • 22.
    C O RT E D E L L E G U A R D I E Struttura 5.1 - L’edificio presenta un impianto a “C”. Nella manica perpendicolare alla via Verdi, al grande ambiente voltato del piano terreno si sovrappongono tre piani divisi in grandi appartamenti. L’appartamento d’angolo presenta volte centinate e particolari storici che andranno conservati. Nella manica parallela alla via Verdi i piani sono organizzati attraverso una distribuzione centrale a ridosso del muro di spina. Una terza manica minore è stata addossata successivamente alla cavallerizza castellamontiana. I vani scala sono posizionati negli angoli della C. Potenziale 5.2 - Riguardo alla manica perpendicolare alla via Verdi, l’aula voltata del piano terreno si presta ad usi che non ne inficino la lettura unitaria. Nei piani superiori delle due maniche potranno essere accolte funzioni di residenza di tipo non cellulare. Usi suggeriti 5.3 - Il complesso edilizio si presta all’impianto di unità residenziali tradizionali o di residenza collettiva organizzata per piccoli appartamenti. La grande aula al piano terreno è vocata a funzioni collettive e di servizio alla residenza. Il sistema di ambienti si presta particolarmente all’inserimento di residenza collettiva di tipo non cellulare. 5.4.2 Vincolo di conservazione dei solai lignei e delle volte dell’appartamento al piano nobile. Possibilità di trasformazioni puntuali di carattere funzionale e conservativo e di consolidamento delle strutture dei solai. 5.4.1 Vincolo di conservazione dell’unitarietà dell’aula al piano terreno. Possibilità di realizzazione di volumi minori all’interno dell’aula. 5 Vincoli e possibilità via Verdi Nota: i vincoli e le possibilità relativi alla manichetta di completamento della corte delle Guardie sono indicati per semplicità di rappresentazione nella scheda 2 (Manica via Verdi)
  • 23.
    M A NI C A M O S C A Struttura 6.1 - L’edificio è articolato in una grande aula al piano terreno (originariamente dedicata agli stalli) e un sistema cellulare ai piani soprastanti. L’aula voltata è accessibile dalla corte antistante all’edificio, mentre il primo piano è raggiunto da una scala a forbice realizzata nell’avancorpo. I piani soprastanti all’aula voltata sono distribuiti tramite corridoi longitudinali e collegati tra di loro da vani scala posizionati nel corpo principale dell’edificio. Potenziale 6.2 - Gli ambienti cellulari del primo, secondo, terzo e quarto piano, risultano adatti alla funzione di residenza collettiva in ragione della serialità degli ambienti e del loro impianto distributivo. L’aula voltata al piano terreno può accogliere servizi comuni per la residenza e la città, nel rispetto della sua leggibilità unitaria. 6.4.3 Vincolo di conservazione del sistema distributivo costituito dallo scalone a forbice posizionato nell’avancorpo, dei vani scala e dei corridoi ai piani superiori all’aula del piano terreno. 6.4.2 Possibilità di realizzazione di volumi minori all’interno dell’aula al piano terreno. Se questi volumi sono realizzati in adiacenza alle pareti non devono superare in altezza la quota del davanzale delle finestre. Vincoli e possibilità 6.4.1 Possibilità di realizzare ulteriori vani scala (massimo due) per la distribuzione ai piani superiori all’aula voltata, nel rispetto del sistema distributivo originario. Possibilità di collegare i vani scala con la quota del piano terreno e di realizzare un vano ascensore in prossimità del corpo di distribuzione centrale. 6.4.4 Vincolo di conservazione della scansione di facciata e delle aperture. Possibilità di realizzare nuove aperture a filo sulla falda dell’avancorpo e abbaini sulla falda di Sud-Ovest della copertura del corpo principale. Usi suggeriti 6.3 - L’insieme edilizio, a motivo della sovrapposizione di un sistema cellulare e di un insieme di grandi aule, offre una vocazione particolare verso funzioni residenziali temporanee collettive e/o di tipo comunitario. 6
  • 24.
    Struttura 7.1 - L’edificiosi sviluppa su due maniche parallele, la cui distribuzione è scandita al piano terreno da una serie di ambienti di rimessaggio privi di collegamenti distributivi interni, a cui si sovrappone un piano privo di partizioni interne nella manica a nord e suddiviso tramite divisori di più recente realizzazione nella manica a sud. La manica a sud presenta per metà della sua lunghezza un piano in più e una distribuzione a manica doppia con corridoio centrale. Potenziale 7.2 - Gli ambienti del piano terreno, in ragione del facile collegamento e con la via Rossini e dell’accesso diretto, presentano un potenziale per funzioni aperte al pubblico. La porzione della manica sud, distribuita diversamente, presenta un potenziale per attività terziarie. Usi suggeriti 7.3 - La scansione degli ambienti del piano terreno, la distribuzione esterna e la posizione delle Pagliere all’interno del complesso della Cavallerizza esprimono una vocazione verso funzioni di promozione e incubazione culturale anche nella prospettiva di attivare animazione per la produzione culturale e per l’imprenditorialità creativa ed innovativa, con la possibilità di integrare spazi di lavoro e residenza direttamente connessi con le attività insediate. Vincoli e possibilità 7.4.4 Vincolo di conservazione delle facciate e in particolare delle aperture carraie. 7.4.3 Possibilità di realizzare una copertura della strada interna tra le due maniche. La quota di colmo della copertura non potrà superare la minor quota di colmo delle maniche adiacenti. 7.4.2 Possibilità di realizzazione di abbaini su tutte le falde ad eccezione di quelle verso i giardini, nel rispetto delle scansioni di facciata. 7.4.1 Possibilità di riorganizzazione della distribuzione interna delle maniche, nel rispetto delle scansioni di facciata. PA G L I E R E 7 via Rossini strada interna della Cavallerizza
  • 25.
    S PA ZI C O M U N I8 Struttura 8.1 - Lo spazio libero tra gli edifici del complesso della cavallerizza è separato dalle strade che circondano il complesso stesso da un portale sulla via Rossini e un cancello sulla via Verdi. Potenziale 8.2 - La parziale separazione rispetto alla pubblica via e il collegamento con il tessuto della città rendono questo spazio adatto ad un uso pubblico. Usi suggeriti 8.3 - Non sono indicati usi particolari. 8.4.1 Vincolo di sistemazione unitaria degli spazi comuni a tutte le unità minime d’intervento. Vincoli e possibilità
  • 26.
    G I AR D I N I R E A L I9 Struttura 9.1 - I giardini sono accessibili sia dalla cavallerizza che dal viale 1° Maggio. Il dislivello del bastione e la passerella sul viale permettono una gestione separata di questa parte del complesso dei giardini reali. Il padiglione posizionato sulla propaggine estrema del bastione è elemento di spicco nel paesaggio urbano circostante. Potenziale 9.2 - La distribuzione degli accessi di questa parte di giardini permette una loro apertura pubblica indipendente dalla gestione dei giardini sui bastioni adiacenti al palazzo Reale. Usi suggeriti 9.3 - Non sono suggeriti particolari usi per i giardini se non quelli già previsti. Il padiglione si presta particolarmente ad accogliere pubblici esercizi e attività di manutenzione connessi alla fruizione dei giardini. Vincoli e possibilità 9.4.1 Vincolo di conservazione del padiglione e dei giardini.
  • 28.
    L E DE S T I N A Z I O N I U R B A N I S T I C H E A M M E S S E Queste indicazioni riportano il contenuto della variante urbanistica parziale n. 217 del P.R.G unitamente a quanto specificato nella delibera della Giunta Comunale del 20 Novembre 2012 06298/009. La delibera sopracitata non indica la distribuzione nei vari corpi edilizi delle destinazioni ammesse, che di conseguenza possono essere individuate nelle loro quantità relative, all’interno di qualsiasi comparto del complesso. V i a G i u s e p p e V e r d i
  • 29.
    Destinazioni ammesse: -residenze (max 50% slp,non realizzabili al piano terra) -servizi pubblici e universitari -attività culturali, espositive e museali. -attività terziarie -attività commerciali e artigianali. -parcheggi. Per definizioni e quantità si faccia riferimento alla delibera della Giunta Comunale del 20 Novembre 2012 06298/009. Legenda ViaGioachinoRossini
  • 30.
    G L IU S I S U G G E R I T I Al fine di precisare gli aspetti individuati nella tavola precedente, il Masterplan individua gli usi suggeriti emersi dal dialogo con gli attori e con il Tavolo del Protocollo d’Intesa, coerenti con le caratteristiche strutturali e distributive delle diverse parti del complesso (come indicato nella sezione del Masterplan “I vincoli e le possibilità”) e configuranti nel loro insieme un distretto culturale organico a completamento del sistema cittadino. B A C D C’ D’ V i a G i u s e p p e V e r d i
  • 31.
    Funzioni residenziali temporanee eresidenze per particolari utenze. Funzioni terziarie. Legenda B’ A’ Funzioni residenziali temporanee e residenze per particolari utenze o residenze collettive. Funzioni di promozione culturale e materiale ed incubatore di imprese ed attività innovative con la possibilità di integrare spazi di lavoro e residenza direttamente connessi con le attività insediate. Funzioni di terziario pubblio o privato. Residenze collettive o per particolari utenze. Funzioni di terziario pubblico o privato. Residenze collettive o per particolari utenze. / Attualmente in uso alle Forze dell’Ordine Istruzione universitaria e relativi servizi. Attrezzature per lo spettacolo, teatri, cinema. Attività di interesse pubblico generale. Attività di interesse pubblico generale. Pubblici esercizi. ViaGioachinoRossini
  • 32.
    C O NS I S T E N Z A D E G L I U S I S U G G E R I T I Nota: tutte le quantità che seguono rappresentano una stima delle superfici di progetto calcolate a partire dai rilievi disponibili e delle trasformazioni ipotizzate. Tutte le superfici sono lorde e calcolate al filo esterno dei muri perimetrali. Le superfici dei piani sottotetto state ridotte del 30% al fine di ridurle a consistenze utilizzabili nel quadro di trasforma- zioni future.
  • 33.
    (escluso il maneggioChiablese) (esclusi i giardini Reali)
  • 34.
    275 mq Servizi per le Gallerie Espositive 500mq Pubblici esercizi Attività turistico ricettive e terziarie Uffici e Front Office Esposizioni/ Attività Turi- stico Ricetti- ve e terziarie Attività turistico ricettive e terziarie 8.852 mq Attività Turi- stico Ricettive (Ostello) 1.265 mq Teatro/ Funzioni collettive I - L - V 6.300 mq Residenza collettiva/ Uffici (V) Galleria espositiva / Uffici Galleria espositiva 12.391 mq 3854 mq Galleria espositiva / Attività Turistico Ricettive e terziarie Istruzione universitaria e relativi servizi Istruzione universitaria e relativi servizi 5.773 mq Attualmente in uso alle Forze dell’Or- dine S-T 3.594 mq Laboratori, arti- gianato di qualità, incubatore. I P O T E S I D I M I X F U N Z I O N A L I I N S E D I A B I L I Gli schemi e le tabelle che seguono ipotizzano a titolo esemplificativo, una possibile configurazione delle destinazioni d’uso emerse (si veda la tavola “Usi Suggeriti”) in modo da consentire una valutazione quantitativa delle variabili economiche in gioco. Le superfici lorde sono tratte dallo studio di fattibilità del Prof. Magnaghi del 1999. Le consistenze dei piani sottotetto sono ridotte del 30%. F E B D Z C N M A L I V R Q P G S H O U T 1.736 mq
  • 35.
    Compendio Cavallerizza CCTSrl Zecca Totale CCT Srl Compendio Cavallerizza CDPI Sgr Totale complessivo 39 18 57 41 99 20.528 5.773 26.301 16.625 42.925 1.908 3.144 2.180 2.487 2.299 CORPI IMMOBILIARI COSTO TOTALE € mln SUPERFICIE LORDA mq VALORI UNITARI €/mq I costi di ristrutturazione sono stati valutati in misura parametrica in relazione alla superficie lorda*, come di seguito specificato: • 500 €/mq per i piani interrati; • 500-1000 €/mq per i piani sottotetto dedicati a spazi comuni/servizi; • 1.000 €/mq per gli spazi da sviluppare al grezzo; • 1.750 €/mq per tutto il resto (€1.600 per i piani superiori della Manica del Mosca). * L’analisi fa riferimento alle sole porzioni di proprietà di CCT Srl e CDPI Sgr. Le superfici sono tratte dallo studio di fattibilità del Prof. Magnaghi del 1999. Ai fini delle stime di costo la superficie dei piani sottotetto è stata considerata solo in misura pari al 70% delle consistenze indicate nello studio. I P O T E S I S U I C O S T I D I T R A S F O R M A Z I O N E P E R L’ I N T E R O C O M P E N D I O Sulla base dei costi ipotizzati il rifacimento dell’intero complesso (compresa la Zecca) comporterebbe oneri di sviluppo di circa 70 milioni di euro (ristruttura- zione, spese tecniche ed oneri*). Tale investimento, unitamente al valore di acqui- sto degli immobili**, porta a stimare un impegno finanziario complessivo per i potenziali investitori dell’ordine di circa 100 milioni di euro, equivalente ad un costo unitario pari a circa €2.300 per mq di superficie lorda. Nota: le parti in corso di de-cartolarizzazione (Cavallerizza alfieriana e Salone delle Guardie) sono incluse nel costo di acquisto ma non nei costi di sviluppo. * Le spese tecniche e gli oneri sono stati ipotizzati rispettivamente pari al 10% e al 6% dei costi di ristrutturazione. ** Pari al valore della perizia di conferimento per CCT Srl e al valore di acquisto per CDPI Sgr.
  • 37.
    G L IU S I C O M U N I La scheda normativa del PRG (NUEA, Titolo II, Art. 10, scheda Cavallerizza Reale) e il decreto di vincolo della Soprintendenza (entrambi in appendice) impongono per il complesso della Cavallerizza limitazioni all’uso privato degli immobili. La ricerca giuridica, che ha proceduto di pari passo con l’elaborazione delle proposte di uso e del Masterplan finale, è pertanto stata volta allo studio dei dispositivi legali che consentiranno di garantire la perenne e permanente fruizione pubblica, di tutti gli spazi aperti e degli spazi coperti o chiusi ai piani terreni, indipendentemente dal loro regime proprietario. Questo principio regolativo privilegia la regolazione del diritto di uso rispetto alla regolazione del diritto di proprietà. Esso si radica nella storia urbana e nella tradizione civica delle città europee, e si ispira tecnicamente alla giurisdizione anglosassone dei bundle of rights (fasci di prerogative esclusive) – come per i beni comuni utilizzati ad esempio in forma di community land trusts – che qui potrà essere interpretata in modo originale ed appropriato al caso, a tutela della fruizione del compendio nel tempo da parte della cittadinanza. I vincoli giuridici che dovranno essere previsti ed imposti sui lotti d’intervento sono in parte di natura pubblicistica ed in parte di natura privatistica. Con riferimento alla prima categoria, quella dei vincoli pubblicistici, ciascun lotto sarà soggetto a specifiche limitazioni ritenute necessarie al fine di garantire il godimento pubblico dei relativi spazi aperti, in ossequio a quanto prescritto dall’autorizzazione all’alienazione resa dalla Direzione Regionale per i Beni Culturali e Paesaggistici del Piemonte in data 1° agosto 2005, nonché dalla Deliberazione della Giunta comunale del 20 novembre 2012. I vincoli così imposti, quindi, dovranno prevedere la misura minima della possibilità di godimento da parte del pubblico, che dovrà essere garantita dai futuri proprietari anche in caso di successive alienazioni; va da sé che ciascun proprietario sarà libero di ampliare tale godimento minimo in qualunque momento. Nel dettaglio, i vincoli che si suggerisce di imporre, riportati nella carta degli “usi comuni” sono i seguenti: - Rosso intenso: il proprietario dovrà consentire l’accesso al pubblico compatibilmente con l’attività commerciale ivi esercitata, in ogni caso garantendo il pubblico accesso al cortile interno e alle vie interne almeno 4 ore al giorno, con possibilità di deroga a tale imposizione in presenza di giustificato motivo; - Rosso “medio”: il proprietario dovrà consentire l’accesso pubblico alle corti interne durante le ore diurne, con possibilità di deroga a tale imposizione solo in casi eccezionali supportati da giustificato motivo; al proprietario sarà riconosciuta la possibilità di impedire l’accesso al pubblico durante le ore notturne; - Rosso chiaro: il proprietario dovrà garantire l’accesso pubblico durante le ore diurne, senza alcuna possibilità di deroga; al proprietario sarà riconosciuta la possibilità di impedire l’accesso al pubblico durante le ore notturne. Per quanto concerne le forme giuridiche con le quali sarà possibile imporre i predetti vincoli, essi dovranno essere specificamente indicati nel Piano Unitario di Riqualificazione, che sarà assunto con Deliberazione della Giunta Comunale. Inoltre, si rammenta che, ai sensi della Deliberazione della Giunta comunale del 20 novembre 2012, le scelte progettuali riguardanti gli spazi da riservare ad usi pubblici, di interesse pubblico o comunque tali da garantire l’accessibilità e la fruizione pubblica saranno definite mediante apposita Convenzione o Atto unilaterale d’obbligo. Con riferimento ai vincoli privatistici, dovranno essere previste specifiche servitù di passaggio atte a garantire un più ampio e libero godimento di ciascun fondo. In particolare, osservando la carta delle “I diritti di passaggio”, si suggerisce di costituire una servitù di passaggio pedonale sulla corte interna circolare (rotonda) di proprietà CDPI Sgr, in favore di tutti i lotti che insistono sulla stessa (nella specie, le unità minime d’intervento Manica via Verdi, Corte delle Guardie, Cavallerizza alfieriana, Padiglione della Scherma e Manica Mosca) ed eventualmente anche degli altri lotti, laddove si ritenesse utile per gli stessi utilizzare il suddetto spazio per far transitare veicoli atti al carico e allo scarico di merci o, più genericamente, per il passaggio di persone. Al fine di garantire l’effettiva costituzione dei pesi sopra evidenziati, ciascun bando dovrà prevedere la costituzione del vincolo quale condizione per l’aggiudicazione del lotto; nella diversa ipotesi di compravendita privata, si potrà procedere alla costituzione del diritto di servitù contestualmente alla vendita del lotto interessato. G L I A S P E T T I G I U R I D I C I
  • 38.
    G L IU S I C O M U N I Indicazioni per il Progetto Unitario di Riqualificazione ai sensi della Giunta Comunale del 20 Novembre 2012 06298/009. L A C A R T A V i a G i u s e p p e V e r d i
  • 39.
    Legenda Suolo di proprietà privata. Suolodi proprietà condivisa. Suolo di proprietà pubblica. Accesso consentito al pubblico compatibilmente con l’attività ivi esercitata. Uso pubblico. Chiusura notturna e eccezionalmente diurna a seconda di necessità del gestore. Uso pubblico, chiusura notturna. Uso pubblico, nessuna limitazione oraria. ViaGioachinoRossini
  • 40.
    I D IR I T T I D I PA S S A G G I O V i a G i u s e p p e V e r d i
  • 41.
    Ingressi ad uso pubblico Ingressiad uso privato Passaggi e servitù Legenda ViaGioachinoRossini
  • 42.
    I P OT E S I D I S E Q U E N Z A D I AT T U A Z I O N E C A V A L L E R I Z Z A A L F I E R I A N A M A N E G G I O C H I A B L E S E A U L A S T U D I O B A S T I O N E D E I G I A R D I N I G A L L E R I A E S P O S I T I V A Nota: la realizzazione della galleria espositiva deve tenere conto delle soggezioni e vincoli provenienti dalla trasformazione dei piani superiori. L e f a s i p r e f i g u r a t e r a p p r e s e n t a n o u n ’ i p o t e s i p l a u s i b i l e d e l l a s u c c e s s i o n e d e g l i i n t e r v e n t i d i r i q u a l i f i c a z i o n e d e l c o m p l e s s o d e l l a C a v l l e r i z z a .
  • 43.
    A C CA D E M I A M I L I T A R E M A N I C A M O S C A Z E C C A C O R T E D E L L E G U A R D I E E M A N I C A V I A V E R D I P A G L I E R E
  • 44.
    I L PR O C E S S O AT T U AT I V O E L’ A G E N Z I A C AVA L L E R I Z Z A Le tappe verso l’attuazione 1. L’approvazione del Masterplan Il Masterplan conclude il suo percorso con un atto formale di approvazione da parte del Tavolo degli Enti del Protocollo di Intesa costituito con DGR 13.04.2015. Si concretizza in questo modo la natura strategica e non amministrativa del Master- plan. Esso infatti non ricade tra gli strumenti urbanistici esecutivi e di conseguenza non ha natura giuridicamente vincolante1 né per i soggetti pubblici o privati parte del Protocollo di Intesa, né tantomeno per terzi privati che, a seguito di gare o altre forme di cessione dovessero a titolo provvisorio o permanente entrare ad operare nel perime- tro del Masterplan stesso. La sottoscrizione del Masterplan da parte degli Enti ha quindi valore di accordo strategico tra le parti per il comune perseguimento di una ipotesi di trasformazione coerente ed il conseguimento di obiettivi condivisi. Assume invece valore giuridicamente rilevante per i sottoscrittori e per terzi la contestuale approvazione da parte della Soprintendenza per i Beni Culturali e Pae- saggistici, con specifica lettera esprimente “parere di massima” nel merito delle scelte progettuali prefigurate nelle schede I Vincoli e le Possibilità – Schede per la Tutela degli Edifici contenute nel Masterplan. Essa infatti è trasferibile ai progetti sui singoli lotti di intervento, costituendo una base di prescrizioni esplicitate in forma grafica che con- sente agli operatori di muovere i propri passi su basi certe e pre-validate – fatta salva la loro libertà di proporre anche scelte difformi, ritornando a questo punto ad più ordi- nario esame progetto in contraddittorio con l’autorità soprintendenziale competente. 2. Il Progetto unitario di Riqualificazione (PUR) A valle dell’approvazione del Masterplan è possibile procedere alla compartimen- tazione dei compendi immobiliari secondo le UMI definite nel Masterplan stesso, ed alla successiva destinazione per parti. Non è però possibile l’intervento diretto degli operatori privati, in quanto esso richiede, come la Delibera Giunta Comunale 20.11.2012 (in appendice) ha precisato, le modalità attuative delle NTA del PRGC (in appendice) in questo specifico comparto. Le NTA richiedono che sia preliminar- mente definito per l’ambito della Cavallerizza e il relativo “Perimetro di Studio” defi- nito uno strumento specifico denominato Progetto unitario di Riqualificazione (PUR) in cui siano individuate le Unità Minime di Intervento (UMI) necessarie ad una attuazione “per parti”. La Delibera 20.11.2015 ne ha definito i contenuti, precisando quanto già delineato nelle NTA. I contenuti del Masterplan sviluppano in gran parte quanto richiesto per il PUR. È quindi possibile, in tempi brevi, e con completamenti e integrazioni opportune, tra- sformare il Masterplan in PUR facendone uno strumento con valore amministrativo pieno, attraverso una procedura pubblica ma semplificata, che ha nella Giunta Comu- nale l’organo di approvazione. a. Ambito Il perimetro delineato nel PRGC alla tavola ZUCS – Tipi di intervento (in appen- dice) ha estensione maggiore di quella del Masterplan; il PUR dovrà di conseguenza allargare le sue prescrizioni alle parti non comprese nel Masterplan. Trattandosi di spa- 1 Sotto questo profilo, il Masterplan non ricade in alcuna delle procedure approvative definite dalla legislazione urbanistica in termini di passaggi formali in Giunte e/o Consigli, periodi e forme di pubblicazione, modalità di osservazione e controdeduzione etc. Queste potrebbero invece applicarsi al Progetto Unitario di Riqualificazione (PUR), sotto citato, che per alcuni contenuti appare assimilabile ad un Piano Particolareggiato o Piano di Recupero, o comunque ad uno strumento urbanistico esecutivo; se così fosse, l’approvazione del PUR dovrà osservare le specifiche procedure e modalità approvative, con fasi di evidenza e modalità di pubbli- cizzazione, osservazioni e controdeduzioni. zi aperti a giardini facenti parte del compendio dei Giardini Reali, e non riguardando fabbricati o parti di essi (al di fuori dell’auditorium della RAI), ed essendo il tema dei Giardini e degli spazi aperti già parzialmente affrontato nel Masterplan, questa esten- sione non appare porre problemi di rilievo. Andrà opportunamente valutata la possibile estensione del perimetro del PUR ai Giardini Reali Inferiori o parte di essi, soprattutto in caso si ritenga di localizzarvi una porzione di parcheggi pertinenziali e/o pubblici a servizio del compendio della Caval- lerizza, in fregio alla via Rossini. b. Procedura Il PUR potrà essere redatto su iniziativa pubblica o privata, non essendo diversa- mente specificato nelle NTA e nella DGC. Per le sue caratteristiche si regolazione di attività provate e pubbliche su proprietà diverse, esso assumerà verosimilmente valore analogo a quello di uno strumento urbanistico esecutivo (ad esempio Piano di Recupe- ro) e di conseguenza dovrà essere oggetto di adozione ed approvazione da parte della Giunta Comunale (come da Legge Regionale n. 56/1977 artt. 40 e segg., integrata con le modifiche introdotte dalla LR n. 3/2013, dalla legge regionale n. 17/2013 e dalla LR n. 3/2015; anche Decreto Legge 13 maggio 2011, n. 70) con interposta fase di pubblicazione, osservazioni e controdeduzioni contestuali all’approvazione, ed infine successiva pubblicazione. c. Contenuti Nel passaggio da Masterplan a PUR occorrerà approfondire i seguenti contenuti: - indicazioni su materiali e colori per le fronti caratterizzanti il com- plesso - trattamento del suolo e degli spazi aperti (progetto unitario dello spazio pubblico e indicazioni per gli spazi pertinenziali: vista l’importanza assunta dal sistema degli spazi aperti e chiusi al piano terreno, si tratterà vero- similmente di un unico documento che darà coerenza di trattamento al suolo dell’intero complesso) - indicazioni per gli spazi verdi e l’arredo urbano. Si dovrà inoltre passare da indicazioni di usi “suggeriti” a definizioni specifiche e pre- scrittive delle destinazioni d’uso ammesse per ogni singola UMI, definendo quindi in modo conclusivo il calcolo degli standard urbanistici e la loro localizzazione e/o mone- tizzazione, insieme alla valutazione preventiva degli oneri di urbanizzazione. 3. La realizzazione degli interventi A valle della pubblicazione del PUR, ogni singola UMI sarà operabile, in coerenza con le prescrizioni del PUR, attraverso procedure di autorizzazione edilizia che saran- no definite in base alle specifiche caratteristiche degli interventi proposti. I nodi dell’attuazione e le ipotesi di soluzione Nel passaggio da un documento con valore strategico ad un documento che assu- merà valore amministrativo e di indirizzo conformativo emergeranno due nodi che discendono da impostazioni normative nazionali, e che vanno attentamente valutati ed accuratamente impostati per evitare effetti indesiderati, possibili con una applicazione meccanica di procedure generali ad un caso particolare come quello della Cavallerizza reale. Gli oneri La normativa attuale non distingue per calcolo degli Oneri di Urbanizzazione (OOUU) tra caso di intervento di recupero ed intervento ex novo, nonostante sia ormai affermata nella letteratura scientifica e tecnica - e perfino nel sentire comune - la coscienza che all’obiettivo di contenere il consumo di suolo deve conseguire una più
  • 45.
    favorevole e vantaggiosaoperatività nel recupero dell’esistente. È attualmente in discus- sione il disegno di Legge Regionale 177/2015 che all’art. 4.2.a propone la riduzione - in misura che verrà determinata dai Comuni - degli OOUU in caso di interventi di recupero. Per quanto riguarda il Contributo al Costo di Costruzione (CCC), con la legge n° 164 del 11.11.2014, con la quale è stato convertito in legge il DL 12 settembre 2014 n. 133, è stato aggiunto all’art. 17 del DPR n° 380 del 06.06.2001 un parametro minimo di riduzione del 20% in caso di interventi di recupero e densificazione, delegando agli Enti Locali la determinazione di parametri favorevoli. Si può perciò considerare una riduzione minima del 20% per gli interventi sulla Cavallerizza. Una prima stima degli OOUU e del CCC (a disciplina attuale), ammonta ad un to- tale di ca. 5,5 M€. Alle condizioni attuali di mercato si tratta di un valore significativo che potrebbe costituire un elemento critico per la sostenibilità economica degli inter- venti. Sono possibili alcune misure correttive, in linea con le sperimentazioni più avanzate a livello nazionale e internazionale: - riduzione degli OOUU in misura significativa, considerata la natura degli interven- ti; una misura presente in alcune normative regionali (es. Regione Puglia) è il 50%. - riduzione del CCC superiore al 20% minimo nazionale - finalizzazione delle risorse ad opere di interesse pubblico all’interno del perimetro del PUR, in modo che queste contribuiscano alla qualità generale dell’intervento ed alla sua sostenibilità economica generale (ad esempio: spazi esterni, verde pubblico, edifici pubblici) - possibilità di esecuzione di opere a scomputo - particolarmente rilevante in questo perimetro, vista la forte interazione tra parti diverse del complesso della Cavallerizza. I parcheggi pertinenziali La normativa attuale lega linearmente superficie edificata o trasformata e dotazione di parcheggio pertinenziale attraverso un parametro lineare definito dalla L.122/1989 (Tognoli) nella misura di 1 m2 ogni 10 mc, senza distinzioni. Questa semplicità riflette l’importanza che l’obiettivo di legare edificazione e dotazione di posti auto di perti- nenza aveva assunto nel dibattito urbanistico italiano a partire dagli anni ‘60. Una prima stima di massima della dotazione conseguente all’applicazione della nor- mativa vigente porta a valutare in complessivi 9.000 m2 il totale dei parcheggi perti- nenziali richiesti (non essendoci ampliamenti volumetrici significativi, possiamo invece ipotizzare in prima analisi che in base a NTA e DGC citate, non si formino standard urbanistici di parcheggio pubblico). Significa una dotazione di circa 360 posti auto. Le NTA e DGC hanno indicato che tale realizzazione debba avvenire in sottosuolo. Di conseguenza, considerando un valore parametrico di realizzazione di 800 €/m2, si tratta di un costo complessivo di intervento di ca. 7,2 M€. Questo senza considerare le peculiarità del complesso, molto denso e con spazi aperti ristretti, e dei singoli edifici - dimensione del relativo cortile e altezza delle fronti prospicienti. La sensibilità attuale è su questo punto profondamente cambiata, e vede la dotazio- ne di parcheggio come legata alla localizzazione, funzione e relazione con il trasporto pubblico dell’intervento. L’esperienza ha dimostrato che la dotazione di posti auto in ambiti storici, monumentali densi, centrali, fortemente serviti dal trasporto pubblico è negativa non solo per la tutela del patrimonio, ma anche per la stessa mobilità urbana. Molte città europee hanno adottato norme che spostano l’obiettivo della regolazione normativa verso la definizione di massimi (anziché minimi) di dotazione, spesso for- temente restrittivi - a Zurigo, nella zona del centro storico gli standard generali sono ridotti al 10%, corrispondenti di fatto alla dotazione di posti per veicoli operativi, di servizio e utenti con mobilità ridotta. In linea con le politiche urbane della mobilità promosse dalla Città di Torino, il pe- rimetro del PUR - anche considerate le funzioni ipotizzate nel Masterplan - potrebbe essere opportunamente individuato come “ambito di sperimentazione” di una politica innovativa di riduzione delle dotazioni di parcheggio pertinenziale ai minimi funzio- nalmente necessari per ogni specifica attività, in linea come le migliori best practices internazionali. Il soggetto gestore: L’Agenzia Cavallerizza Questo Masterplan nasce dall’ascolto di diversi attori e dalla costruzione di un quadro coerente e sinergico dei diversi interessi ed obiettivi emersi in forma di ipotesi progettuale. Nella fase attuativa - a valle della condivisione del Masterplan da parte del Tavolo del Protocollo di Intesa - sarebbe opportuno che si conservasse l’unità di azione costruita nell’elaborazione del Masterplan. Per le trasformazioni fisiche, questa unità di azione si manterrà naturalmente attra- verso il lavoro di traduzione del Masterplan in PUR e il successivo compito di regia amministrativa e sorveglianza sugli interventi pubblici e privati affidato dalla legge alla Città e alla Soprintendenza. Considerato il valore culturale del complesso, il suo ruolo nel quadro del “distretto culturale” della “zona di comando” e l’identità riconosciuta di luogo di produzione e fruizione culturale, sarebbe opportuno che il complesso della Cavallerizza avesse una programmazione unitaria e coerente delle attività e proposte dai diversi attori pubblici e privati che vi si insedieranno fosse consegnata ad un soggetto incaricato della regia delle azioni. Proponiamo che, in linea con le best practices internazionali e con la stessa esperien- za torinese (accompagnamento sociale alla rigenerazione urbana, case del quartiere, Rappresentazione di un parcheggio interrato secondo le superfici prescritte dalla L. 122/1989 agenzie di sviluppo locale) nasca una Agenzia della Cavallerizza, soggetto collettivo
  • 46.
    attraverso il qualepossano essere coordinate tra i vari protagonisti le relazioni, la pro- grammazione culturale e le attività in genere di tutte le parti del complesso. L’Agenzia Cavallerizza sarà un gestore sociale e culturale innovativo, che assolverà le funzioni di:  • amministrazione del sistema degli spazi aperti comuni, col fine di garantirne nel tempo la qualità e la piena fruizione;  • place marketing attraverso l’uso e la promozione del “brand” Cavallerizza al fine di rafforzare l’acquisita vocazione culturale del distretto nella città;  • place making attraverso un lavoro di organizzazione e attrazione di eventi e attivi- tà sia temporanee che stagionali e permanenti, durante e dopo i lavori di trasformazio- ne dell’area. Il soggetto gestore (che in ogni caso si sarebbe verosimilmente dovuto costituire, anche solo in forma di amministratore di “supercondominio”, data la complessa inte- razione tra le diverse parti del complesso) si dovrà caratterizzare per essere un centro di attrazione di risorse e non soltanto un centro di spesa, improntando il suo esercizio all’autosostenibilità: a partire dal nocciolo iniziale, il distretto culturale della Cavalle- rizza prenderà forma attraendo investimenti e integrando funzioni pubbliche e funzio- ni private, residenziali e non residenziali, di servizio, temporanee e permanenti.  Potrebbe ad esempio essere strutturata nella forma di Fondazione di Partecipazione, essendo partecipato dagli enti del protocollo, dai soggetti acquirenti e conduttori delle varie porzioni immobiliari e da una rappresentanza della comunità locale attiva.
  • 47.
    L A FR U I Z I O N E P U B B L I C A D E I P I A N I T E R R A Un i n s i e m e a p e r t o , c o e r e n t e e c o n t i n u o d i s p a z i d i i n t e r e s s e e d u s o p u b b l i c o i n c u i c o n v i v o n o g e s t i o n e p u b b l i c a e g e s t i o n e p r i v a t a Tutti gli spazi aperti del complesso della Cavalerizza saranno tutti accessibili al pub- blico con tempi e modi differenti a seconda delle attività insediate (vedi tavola gli Usi Comuni). Gli spazi interni al piano terra degli edifici che compongono il complesso saranno fruibili al pubblico per 87% della loro estensione. In particolare, facendo riferi- mento agli usi ipotizzati: • il 10,7 % sarà dedicato a galleria espositiva. • il 2,2 % a servizi per i visitatori. • il 10,2 % a sala teatrale. • il 10,6 % ad aule universitarie. • il 3,4 % ad aula studio. • il 29,0 % a laboratori, artigianati di qualità o incubatore. • il 21,1 % a servizi per la ricettività e i visitatori (ristrante - caffetteria)
  • 48.
    I l pr o g r e s s i v o r e c u p e r o d e l l a C a v a l l e r i z z a p e r u n u s o c o m u n e Delle funzioni precedenti rimane ancora in uso la corte dell’accademia, occupata da uffici militari e l’edifico della Zecca, occupato dalle Forze dell’Ordine (per un totale di 18.164 mq - 40,6% dell’insieme dei fabbricati). Entro tre mesi la corte dell’accademia sarà liberata dai militari, mentre le Forze dell’Ordine occuperanno la Zecca per almeno ancora due anni. Le funzioni culturali del Teatro Stabile Torino, insediatesi nel 2005 nella cavallerizza Alfieriana, sono cessate nel 2013, lasciando inutilizzata l’aula. Il maneggio Chiablese è stato recuperato a fini universitari e inaugurato nel 2014. (1.736 mq - 3,9% della superficie lorda dell’insieme dei fabbricati). Nel corso dello stesso anno nasce l’assemblea cavallerizza 14:45 che utilizza per le sue attività parte del piano terra della manica del Mosca e saltuariamente la cavallerizza Alfieriana. Tra spazi aperti e spazi coperti la superficie ad uso pubblico prima della redazione del masterplan corrispondeva a 4.374 mq - 10,7% della superficie territoriale complessiva (compresi i giardini reali).
  • 49.
    Nel corso dellaredazione del Masterplan si sono quindi create le condizioni alla fruizione ad uso pubblico di una superficie pari a 25.590,4 mq - 62,3% della superficie territoriale complessiva (compresi i giardini reali). Tra il 2015 e il 2016 la città ha decartolarizzato l’aula alfieriana, e l’ha data in concessione al Teatro Stabile Torino per la riapertura della sala teatrale. La cifra già investita dalla Città per tale operazione è pari a 1 milione di Euro. Tra 2015 e 2016 la Città ha già investito sulla Cavallerizza complessivamente 1.500.000 €. La Città ha anche riacquisito il “Salone delle Guardie” per la realizzazione di un’aula studio a servizio del sistema universitario. La cifra già investita dalla Città per tale operazione è pari a 400.000 Euro. Nel marzo 2016 è stato aperto gratuitamente al pubblico il bastione dei giardini reali dopo un restauro condotto dalle giardinerie municipali. La cifra già investi- ta dalla Città per tale operazione è pari a 100.000 Euro.
  • 50.
    Il Masterplan prefiguraun uso pubblico del complesso della Cavallerizza allargato a 35.191,5 mq - 87% rispetto alla superficie territoriale complessiva (compresi i giardini reali). La totalità degli spazi aperti sarà ad uso pubblico. Questi usi comprendono attività culturali, espositive, teatrali, di servizio allo studio e ai fruitori del distretto culturale torinese. Il Masterplan studia l’inserimento nel complesso della Cavallerizza di una galleria espositiva che possa raccogliere mostre ed esposizioni degli enti museali della città. La realizzazione di questo spazio è nata dall’interesse congiunto del Polo Reale torinese e dal Ministero dei Beni e le Attività Culturali a seguito della visita del Ministro Dario Franceschini. Sono attualmente in corso presso il Ministero le procedure necessarie all’ottenimento di fondi per finanziare la trasformazione. Il Masterplan crea anche le condizioni per l’inserimento nella corte delle Guardie da parte dell’Ente per il Diritto allo Studio del Piemonte (EDISU) di una residenza universitaria innovativa mista, nella quale coesista una quota di residenza convenzionata e una quota i residenza in libero mercato. Il finanziamento di questa operazione può avvalersi dei fondi di finanziamento del Ministero dell’Istruzione, dell’Università e della Ricerca. Il Masterplan crea inoltre le condizioni per l’inserimento nella manica delle Pagliere di una centro di incubazione per imprese innovative. L’interesse verso que- sta possibilità è stata avanzata dall’Università di Torino.