/ 2015
// TABLE OF CONTENTS
				
Placement Year 		 / 01. Social housing 						
						 	 at the Jericho canal, Oxford		 3
						 / 02. House extension
							 at 287, Cowley Rd. Oxford		4
						 / 03. Detached house
							 at Leyburne gardens, Chinnor	6
						 / 04. Loft conversion
						 at 34, Stanley Rd. Oxford		 7	
						 / 05. House extension
							 at The Lodge, Adderbury		8
Freelance Projects		 / 06. IGES education agency			 9
						 / 07. TwentyTen beauty salon			 10
Year 3 Under - Graduate	 / 08. Blackpool’s tower				11
						 / 09. British abroad / Lanzarote		 14 “A building is not just a place to be. It is a way to be”
				 Frank Lloyd Wright
Portfolio 2015 / 3Placement Year / 01. Social housing at the Jericho canal, Oxford	
Pump
96
86
Weir
102
House
Weir
10
STB
MillStream
OxfordCanal
Castle
Elevation Site plan
Section A-A
Floor plan
Portfolio 2015 / 4Placement Year / 02. House extension at 287, Cowley Rd. Oxford
Portfolio 2015 / 5Placement Year / 02. House extension at 287, Cowley Rd. Oxford
Portfolio 2015 / 6Placement Year / 03. Detached house at Leyburne gardens, Chinnor
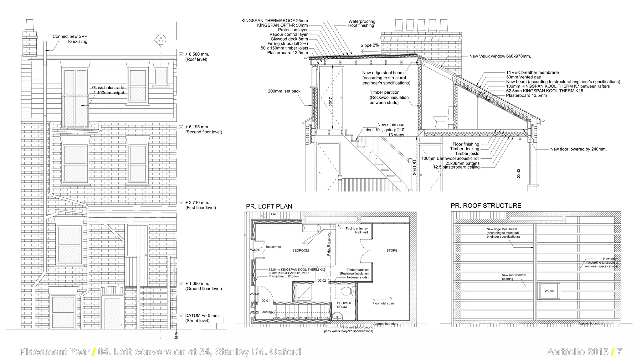
Portfolio 2015 / 7Placement Year / 04. Loft conversion at 34, Stanley Rd. Oxford
Portfolio 2015 / 8Placement Year / 05. House extension at The Lodge, Adderbury
Portfolio 2015 / 9
/ 05 - DESIGN PROJECTS / 01 - IG FOR EDUCATION SERVICES
RECEPTION OFFICE
43
/ 05 - DESIGN PROJECTS / 01 - IG FOR EDUCATION SERVICES
RECEPTION OFFICE
43
COMPUTER ROOM MEETING ROOM
44
Freelance Projects / 06. IGES education agency
Reception
Reception
Meeting roomComputer room Office
Computerroom
Access
17’77M.
4’70M.
Meetingroom
Corridor
Office
2’50M
While doing my under-graduate in architecture at Brookes Univer-
sity I was committed to propose and develope an interior design
project for a private client.
The project consisted in the design of an educational consultancy
agency located in an office building in Cornmarket St. in Oxford.
Portfolio 2015 / 10Freelance Projects / 07. TwentyTen beauty salon
Massageroom
Toilet
Productsunits
Shower
Washingchair
Cuttingchairs
Reception
Waitingarea
Render 1
Render 2 Final space
Interior design project made as freelance while studying
at brookes. The project consisted in the design of a
beauty salon for a private client. The retail shop was
located in Oxford city centre and it gave me the op-
porutnity to materialize an interior design project from
the begining to the end for the firts time.
The proposal renders are shown on the left while the fi-
nal space pictures are shown on the right.
PHISICAL MODEL 1/50
PHYSICAL MODEL AT 1/50
PHISICAL MODEL 1/50
PHYSICAL MODEL AT 1/50
Site
Ramp(Accessforboats)
Stairs(Accessforpeople)
NorthPier
BlackpoolTower
Promenade
Lucid Stead, Phillip K Smith III Lighthouse, Burnham on Sea, Somerset
Sketch drawn from Blackpool’s tower
View of the sketch drawn
My site is located on the beach n
North pier, at 50 meters from the
and following straight the ramp whic
to conect the isoleted building with
high tide.
Portfolio 2015 / 11Year 3 Under - Graduate / 08. Blackpool’s tower
For this project we travelled to Black-
pool to discover a new and unique “Las
Vegas” city in England.
We were encouraged to find and solve a
necessity in Blackpool’s lifestyle. I
choose my site on the beach next to
the north pier. 50 meters away from the
promenade within the projection of the
boat’s ramp access.
I started with initial concept of a
fishing tower restaurant shown on the
right.
SITE PLAN
1/250
Year 3 Under - Graduate / 01. Blackpool’s tower Portfolio 2015 / 12
After visiting Blackpool I found very interesting the
changing topographic conditions along the beach. The dra-
matic rise of the sea level early in the morning that slow-
ly disappears in the afternoon, discovering a huge open
space. On high tide I could see few people fishing next to
the north pier and with plenty of fast food fish and chips,
gave me the inspiration to design a new concept restaurant
of “slow cook” with just cached fresh fish every day for the
use of the citizens.
The tower-restaurant would be accessible from a bridge
connected to the promenade next to the pier on high tide
while on low tide would also be accessible from the beach.
The staircase accommodates fishing platforms on different
levels that can be use as the tide increases.
Roof plan 3rd Floor 2nd Floor 1st Floor 1/100 5 0mRoof plan 3rd Floor 2nd Floor 1st Floor 1/100 5 0m3rd Floor 2nd Floor 1st Floor 1/100 5 0m1st Floor 1/100 5 0m
West Elevation South Elevation East Elevation North Elevation 5 1 0m
14.75
13.75
12.00
9.00
6.00
3.00
0.00
ELEVATIONS
Year 3 Under - Graduate / 01. Blackpool’s tower Portfolio 2015 / 13
For this project we traveled to the island of Lanzarote.
The site chosen was located on the cliff next to Cesar Man-
rique’s restaurant, in the MIAC in Arrecife. The total area
used is of 250 m2 and South-East facing which exposes the
site to the sun for a whole day.
I started placing conceptual volumetries along the cliff,
which then led me to my final proposal of a semi-underground
hotel on different levels.
San Jose’s castle (MIAC)
Cesar Manrique’s restaurant
Site
Year 3 Under - Graduate / 09. British abroad / Lanzarote Portfolio 2015 / 14
Portfolio 2015 / 15
1
2
1
2
2
1
22
4
24
3
+9’20
+9’00
+5’00
+0’80
+5’00
+1’00
+1’00
+0’50
+1’00
+/- 0’00
Year 3 Under - Graduate / 02. British abroad / Lanzarote
/ 2015
/2015

MARCHD_PORTFOLIO_2015_C.FERNANDEZ

  • 1.
  • 2.
    // TABLE OFCONTENTS Placement Year / 01. Social housing at the Jericho canal, Oxford 3 / 02. House extension at 287, Cowley Rd. Oxford 4 / 03. Detached house at Leyburne gardens, Chinnor 6 / 04. Loft conversion at 34, Stanley Rd. Oxford 7 / 05. House extension at The Lodge, Adderbury 8 Freelance Projects / 06. IGES education agency 9 / 07. TwentyTen beauty salon 10 Year 3 Under - Graduate / 08. Blackpool’s tower 11 / 09. British abroad / Lanzarote 14 “A building is not just a place to be. It is a way to be” Frank Lloyd Wright
  • 3.
    Portfolio 2015 /3Placement Year / 01. Social housing at the Jericho canal, Oxford Pump 96 86 Weir 102 House Weir 10 STB MillStream OxfordCanal Castle Elevation Site plan Section A-A Floor plan
  • 4.
    Portfolio 2015 /4Placement Year / 02. House extension at 287, Cowley Rd. Oxford
  • 5.
    Portfolio 2015 /5Placement Year / 02. House extension at 287, Cowley Rd. Oxford
  • 6.
    Portfolio 2015 /6Placement Year / 03. Detached house at Leyburne gardens, Chinnor
  • 7.
    Portfolio 2015 /7Placement Year / 04. Loft conversion at 34, Stanley Rd. Oxford
  • 8.
    Portfolio 2015 /8Placement Year / 05. House extension at The Lodge, Adderbury
  • 9.
    Portfolio 2015 /9 / 05 - DESIGN PROJECTS / 01 - IG FOR EDUCATION SERVICES RECEPTION OFFICE 43 / 05 - DESIGN PROJECTS / 01 - IG FOR EDUCATION SERVICES RECEPTION OFFICE 43 COMPUTER ROOM MEETING ROOM 44 Freelance Projects / 06. IGES education agency Reception Reception Meeting roomComputer room Office Computerroom Access 17’77M. 4’70M. Meetingroom Corridor Office 2’50M While doing my under-graduate in architecture at Brookes Univer- sity I was committed to propose and develope an interior design project for a private client. The project consisted in the design of an educational consultancy agency located in an office building in Cornmarket St. in Oxford.
  • 10.
    Portfolio 2015 /10Freelance Projects / 07. TwentyTen beauty salon Massageroom Toilet Productsunits Shower Washingchair Cuttingchairs Reception Waitingarea Render 1 Render 2 Final space Interior design project made as freelance while studying at brookes. The project consisted in the design of a beauty salon for a private client. The retail shop was located in Oxford city centre and it gave me the op- porutnity to materialize an interior design project from the begining to the end for the firts time. The proposal renders are shown on the left while the fi- nal space pictures are shown on the right.
  • 11.
    PHISICAL MODEL 1/50 PHYSICALMODEL AT 1/50 PHISICAL MODEL 1/50 PHYSICAL MODEL AT 1/50 Site Ramp(Accessforboats) Stairs(Accessforpeople) NorthPier BlackpoolTower Promenade Lucid Stead, Phillip K Smith III Lighthouse, Burnham on Sea, Somerset Sketch drawn from Blackpool’s tower View of the sketch drawn My site is located on the beach n North pier, at 50 meters from the and following straight the ramp whic to conect the isoleted building with high tide. Portfolio 2015 / 11Year 3 Under - Graduate / 08. Blackpool’s tower For this project we travelled to Black- pool to discover a new and unique “Las Vegas” city in England. We were encouraged to find and solve a necessity in Blackpool’s lifestyle. I choose my site on the beach next to the north pier. 50 meters away from the promenade within the projection of the boat’s ramp access. I started with initial concept of a fishing tower restaurant shown on the right.
  • 12.
    SITE PLAN 1/250 Year 3Under - Graduate / 01. Blackpool’s tower Portfolio 2015 / 12 After visiting Blackpool I found very interesting the changing topographic conditions along the beach. The dra- matic rise of the sea level early in the morning that slow- ly disappears in the afternoon, discovering a huge open space. On high tide I could see few people fishing next to the north pier and with plenty of fast food fish and chips, gave me the inspiration to design a new concept restaurant of “slow cook” with just cached fresh fish every day for the use of the citizens. The tower-restaurant would be accessible from a bridge connected to the promenade next to the pier on high tide while on low tide would also be accessible from the beach. The staircase accommodates fishing platforms on different levels that can be use as the tide increases.
  • 13.
    Roof plan 3rdFloor 2nd Floor 1st Floor 1/100 5 0mRoof plan 3rd Floor 2nd Floor 1st Floor 1/100 5 0m3rd Floor 2nd Floor 1st Floor 1/100 5 0m1st Floor 1/100 5 0m West Elevation South Elevation East Elevation North Elevation 5 1 0m 14.75 13.75 12.00 9.00 6.00 3.00 0.00 ELEVATIONS Year 3 Under - Graduate / 01. Blackpool’s tower Portfolio 2015 / 13
  • 14.
    For this projectwe traveled to the island of Lanzarote. The site chosen was located on the cliff next to Cesar Man- rique’s restaurant, in the MIAC in Arrecife. The total area used is of 250 m2 and South-East facing which exposes the site to the sun for a whole day. I started placing conceptual volumetries along the cliff, which then led me to my final proposal of a semi-underground hotel on different levels. San Jose’s castle (MIAC) Cesar Manrique’s restaurant Site Year 3 Under - Graduate / 09. British abroad / Lanzarote Portfolio 2015 / 14
  • 15.
    Portfolio 2015 /15 1 2 1 2 2 1 22 4 24 3 +9’20 +9’00 +5’00 +0’80 +5’00 +1’00 +1’00 +0’50 +1’00 +/- 0’00 Year 3 Under - Graduate / 02. British abroad / Lanzarote
  • 16.