design studio 6
a   g   r   a   p   h   i   c   a   l   j   o   u   r   n   a    l




                                stephan homer - 0803057         as-3
semester 2
basseterre - urban study
The 10 days in St. Kitts spent gathering information, tak-
ing pictures, making sketches or the urban make up of
the capital city Basseterre was possibly one of the better
trips i have taken.

Analysis of this city and its physical, cultural, environ-
mental, and socio-economical structures changed my
aspect on urban planning and raised awareness on the
formalities that were done in the past and how cities
were formed in the past.
site plan




site 4
Preliminary massing model.
                            Main concept: intersection
                            of geometric forms.




Massing model # 2. Con-
tinued development of the
piercing of the drum thru
the box.
massing
Exploration of forms via devel-
opmental models. The notion of
connecting the streets being the
main generator for circulation
through the building creating vi-
sual and spatial continuities from
Cayon St. to Independence Sq.
Ground Floor Plan

The Basseterre Public Library
symbolizes the embrace-
ment of technology with
regards to the building con-
struction and materials as it
adds to the list of civic build-
ings in the historic district a
hint a modernization .

The ground floor accommo-
dates all major public areas
as the entire floor acts a
covered plaza that is de-
signed to be a main gather-
ing space.
First Floor Plan

The first floor houses the
childrens and adolescent
                              final
                              design
collections, a computer lab
and both open and private
reading rooms.
Second Floor Plan
On the second floor is the
adult collections area, with
exterior reading rooms to the
west and north.
Mezzanine Floor Plan
Additional space was
gaine d from the towering
core to create the mez-
zanine level and this was
used to accommodate
staff training facilities/staff
conference area. Also staff
lounge and washrooms
were located on this floor
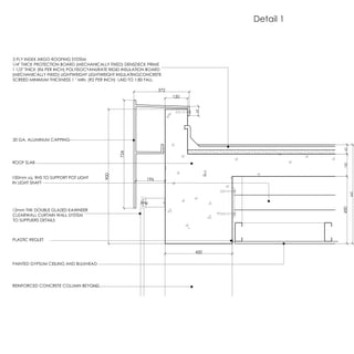
Detail 1
Detail 2
Section B-B




Preliminary Library Logo Design
Section A-A




South Elevation
Library booklet complete
Library booklet complete

Library booklet complete

  • 1.
    design studio 6 a g r a p h i c a l j o u r n a l stephan homer - 0803057 as-3
  • 3.
  • 5.
    basseterre - urbanstudy The 10 days in St. Kitts spent gathering information, tak- ing pictures, making sketches or the urban make up of the capital city Basseterre was possibly one of the better trips i have taken. Analysis of this city and its physical, cultural, environ- mental, and socio-economical structures changed my aspect on urban planning and raised awareness on the formalities that were done in the past and how cities were formed in the past.
  • 9.
  • 10.
    Preliminary massing model. Main concept: intersection of geometric forms. Massing model # 2. Con- tinued development of the piercing of the drum thru the box.
  • 11.
    massing Exploration of formsvia devel- opmental models. The notion of connecting the streets being the main generator for circulation through the building creating vi- sual and spatial continuities from Cayon St. to Independence Sq.
  • 12.
    Ground Floor Plan TheBasseterre Public Library symbolizes the embrace- ment of technology with regards to the building con- struction and materials as it adds to the list of civic build- ings in the historic district a hint a modernization . The ground floor accommo- dates all major public areas as the entire floor acts a covered plaza that is de- signed to be a main gather- ing space.
  • 13.
    First Floor Plan Thefirst floor houses the childrens and adolescent final design collections, a computer lab and both open and private reading rooms.
  • 14.
    Second Floor Plan Onthe second floor is the adult collections area, with exterior reading rooms to the west and north.
  • 15.
    Mezzanine Floor Plan Additionalspace was gaine d from the towering core to create the mez- zanine level and this was used to accommodate staff training facilities/staff conference area. Also staff lounge and washrooms were located on this floor
  • 16.
  • 17.
  • 18.
  • 19.