281092
WALL MOUNDED
BRADLY CORPORATION
STAINLESS STEEL
PAPER TOWEL
DISPENSER
435mmX190mm
DYSON AIRBLADE "V"
WALL MOUNTED HAND
DRYER (DESINED WITH
ASSISBILITY IN MIND)
2300
92 922326
850mmCLEARWIDTH
13mm GYPSUM BOARD
1500mmX1500mm AREA
TO REMAIN
UNOBSTRUCTED FOR
FREEDOM OF MOVEMENT
FOR HANDICAPPED
AROUND TOILET
KOHLER "PINOIR®"
WALL-MOUNTED
BATHROOM SINK WITH
200mm WIDESPREAD
FAUCET HOLES
92mm STEEL STUD'S
@ 600mm O.C.
13mm GYPSUM BOARD
915mmx2150mm SINGLE
FLUSH METRIC HUNG
INTERIOR BARRIER FREE
DOOR WITH HYDRAULIC
SELF OPENING AND
CLOSING MECHANISM
"FROST®" STAINLESS
STEEL TOILET PAPER
DISPENSER
200mmx600mm BRADLEY
CORPORATION
STAINLESS STEEL
SHELF AT AN
ELEVATION OF 900mm
FROM FINISHED FLOOR
KOHLER "REFINIA"
POLISHED CHROME
LAVATORY FAUCET
BRADLEY
CORPORATION
COMMERCIAL
STAINLESS STEEL
ACCESSIBLE MIRROR
ANGLED DOWNWARD
TYP. 760mmX 760mm
INPRO CORPORATION
STAINLESS STEEL
NURLED A.D.A. APROVED
GRAB BARS
"WHITE" CERAMIC
AMERICAN STANDARD
CADET BIDET
TYP. 650mm KOHLOR
STAINLESS STEELNURLED
A.D.A. APROVED GRAB
BAR @ 850mm FROM
FINISHED 1ST FLOOR
1500mm
TURNING
RADIUS FOR
WHEELCHAIR
ACCESSIBILITY
AND FREEDOM
OF MOVEMENT
BRADLEY CORPORATION STAINLESS STEEL
KNURLED GRAB BAR'S 860mm IN ELEV. FROM
FINISHED 1ST FLR. (FASSENED INTO FLOOR SYSTEM
WITH 75mmX75mmø CONCRETE ANCHORES)
AMERICAN STANDARD
STAINLESS STEEL
POLISHED CHROME
BIDET FAUCET
"FROST®" STAINLESS
STEEL WALL MOUNTED
AUTOMATIC SOAP
DISPENSER
460
500
460
"TOTO" WALL HUNG
AUTOMATIC MOVMENT
SENSOR FLUSH WHITE
CERMAMIC TOLIET
AMERICAN STANDARD
STAINLESS STEEL
POLISHED CHROME
BIDET FAUCET
7
J
KAWNEER "1600 L-R Wall®" - 2-1/2"
x 5-3/4" PREFINSIHED ALUMINUM
VERTICAL MULLION
KAWNEER "1600 L-
R Wall®" LOW RISE
COMERCIAL
CURTAIN WALL
CONSTRUCTION
POLISHED PEACH
ALABASTER
WATERABLE SILL @
T/O OF SECOND FLOOR
THERMAL BRAKES BETWEEN
ISOWEB™ GLASS WINDOW
PANES
KAWNEER ISOWEB™ GLASS
FACTORY SEALED DOUBLE GLAZING
13mmX100mm P.LAM PLYWOOD
WINDOW STOOL EDGE
2- 25mm LONG ROUNDED SLOT HEAD
SILICON COATED WOOD SCREWS @
200mm O.C. INTO 2"x 4"x 8' WOODEN
BLOCKING BELOW CUT WHEN
NECESSARY
CUSTOM
146mmx146mm
PREFINISHED
ALUMINUM VERTICAL
CORNOR MULLION
WITH THERMAL
BRAKES TO MATCH
THICKNESS OF
HORIZONTAL
MULLION
DRIP EDGE ON
UNDERSIDE OF
WATERABLE SILL
D-1001 DRYWALL FURRING CHANNELS
@ 600mm O.C. WITH 1-25mm LONG DRYWALL
SCREWS @ 200mm O.C. AND 2-50mm LONG
MASONARY SCREWS @ 200mm O.C.
2-CORE CODE 20
CONCRETE MASONARY
UNIT
190mmx190mmx390mm
25mm THICK
EXTRUDED E.I.F.S.
WINDOW SILL
25mm THICK
EXTRUDED E.I.F.S.
WINDOW SILL
1938 155
13 35 190 32 93 92
1mm BLUE PEEL AND
STICK AIR/VAPOUR
BARRIER
CONTINUOUS
(AROUND CURTAIN
WALL)150mm DIAMETER
STRUCTURAL STEEL COLUMN
SITTING ON 10mm MORTAR
JOINT RESTING ON C.M.U.
95
355
40
63
EXTERIOR EDGE OF
SUPPORTING
FACEBRICK ON
FIRST FLOOR WALL
BELLOW
63
13mmX250MM P.LAM PLYWOOD
WINDOW STOOL EDGE
EXTENDING TO WINDOW PLANE
SEALED WITH 100% SILICONE
CAULKING
458
3507025
9
8
B
D2
KAWNEER "1600 L-R Wall®" - 2-1/2"
x 5-3/4" PREFINSIHED ALUMINUM
VERTICAL MULLION
KAWNEER "1600 L-R Wall®"
LOW RISE COMERCIAL CURTAIN
WALL CONSTRUCTION
13mmX210mm P.LAM
PLYWOOD WINDOW STOOL
THERMAL BRAKE BETWEEN
ISOWEB™ GLASS WINDOW
PANES
KAWNEER ISOWEB™
GLASS FACTORY SEALED
DOUBLE GLAZING
13mmX100mm P.LAM PLYWOOD
WINDOW STOOL EDGE
2- 25mm LONG ROUNDED SLOT
HEAD SILICON COATED WOOD
SCREWS @ 200mm O.C. INTO 2"x
4" WOODEN BLOCKING BELOW
D-1001 DRYWALL FURRING CHANNELS
@ 600mm O.C. WITH 1-25mm LONG DRYWALL
SCREWS @ 200mm O.C. AND 2-50mm LONG
MASONARY SCREWS @ 200mm O.C.
2-CORE CODE 20 CONCRETE
MASONARY UNIT
190mmx190mmx390mm
1mm BLUE PEEL AND STICK
AIR/VAPOUR BARRIER
CONTINUOUS
EXTERIOR EDGE OF
SUPPORTING
FACEBRICK ON
FIRST FLOOR WALL
BELLOW
PRE FINISHED
EXTRUDED ALUMINUM
WINDOW SILL WITH
DRIP EDGE
TYP. STEEL ALLOY CMU TO
BRICK TIE SHEAR @600mm
O.C. HORIZONTALLY AND
EVERY 3 BUILDING STONE
COURSES/ 1 C.M.U. COURSE
50mm LONG ROUNDED
SLOT HEAD SILICON
COATED WOOD
SCREWS @ 200mm
O.C.
2-2"x4" WOODEN BLOCKING
13MM GYPSUM BOARD
10mm STRUCTURAL MORTAR JOINT
75mm RIGID INSULATION
EXTRUDED POLYSTYRENE
ARRISCRAFT "LAUIER- LAU52"
NATURAL BIULDING STONE IN
VARRIOUS SIZED RANGING FROM
190mm-400mm IN LENGTH & 60mm-
133.33mm IN HIGHT WITH A
CONSISTANT BED WITH OF 90mm
22mm DEEP "D-1001" DRYWALL FURRING
CHANNELS
@ 600mm O.C. WITH 1-25mm LONG DRYWALL
SCREWS @ 200mm O.C. AND 2-50mm LONG
MASONARY SCREWS @ 200mm O.C.
592
800
400
200200400300190
90 400 300
64850
990
2X4" WOODEN
BLOCKING NOTCHED
AT VERTICAL MILLIONS
400
992990
Scale
Date
Drawn by
Sheet
No.
KIERAN
TRIMBEE
DESIGN CO.
Ktrimbee-cc@conestogac.on.ca 1-519-377-9876
FUTURE CONESTOGA COLLEGE GRADUATE &
ARCHITECTURE AND CONSTRUCTION ENGINEERING
TECHNOLOGIST
SNIP!!!
SNIP!!!
SNIP!!!
SNIP!!!
SNIP!!!
SNIP!!!
As indicated
12/11/20148:47:53PM
A-7
DETAIL
ENLARGEMENTS
ARCH1030 MAJOR
PROJECT
12/11/2014
KIERAN TRIMBEE
"GO FOR BROKE"
DESIGN GROUP
1 : 25
A-7
ENLARGED WASHROOM PLAN1
1 : 10
A-7
2ND FLOOR CORNER COLUMN DETAIL3
1 : 10
A-7
1ST-FLR. ENTERANCE CORNOR DETAIL5
1 : 100
A-7
O.B.C. B.F. WASHROOM DETAIL4
NOT TO SCALE
A-7
BARRIER FREE 3D ISOM VIEW2

Ktrimbee A-6

  • 1.
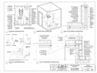
    281092 WALL MOUNDED BRADLY CORPORATION STAINLESSSTEEL PAPER TOWEL DISPENSER 435mmX190mm DYSON AIRBLADE "V" WALL MOUNTED HAND DRYER (DESINED WITH ASSISBILITY IN MIND) 2300 92 922326 850mmCLEARWIDTH 13mm GYPSUM BOARD 1500mmX1500mm AREA TO REMAIN UNOBSTRUCTED FOR FREEDOM OF MOVEMENT FOR HANDICAPPED AROUND TOILET KOHLER "PINOIR®" WALL-MOUNTED BATHROOM SINK WITH 200mm WIDESPREAD FAUCET HOLES 92mm STEEL STUD'S @ 600mm O.C. 13mm GYPSUM BOARD 915mmx2150mm SINGLE FLUSH METRIC HUNG INTERIOR BARRIER FREE DOOR WITH HYDRAULIC SELF OPENING AND CLOSING MECHANISM "FROST®" STAINLESS STEEL TOILET PAPER DISPENSER 200mmx600mm BRADLEY CORPORATION STAINLESS STEEL SHELF AT AN ELEVATION OF 900mm FROM FINISHED FLOOR KOHLER "REFINIA" POLISHED CHROME LAVATORY FAUCET BRADLEY CORPORATION COMMERCIAL STAINLESS STEEL ACCESSIBLE MIRROR ANGLED DOWNWARD TYP. 760mmX 760mm INPRO CORPORATION STAINLESS STEEL NURLED A.D.A. APROVED GRAB BARS "WHITE" CERAMIC AMERICAN STANDARD CADET BIDET TYP. 650mm KOHLOR STAINLESS STEELNURLED A.D.A. APROVED GRAB BAR @ 850mm FROM FINISHED 1ST FLOOR 1500mm TURNING RADIUS FOR WHEELCHAIR ACCESSIBILITY AND FREEDOM OF MOVEMENT BRADLEY CORPORATION STAINLESS STEEL KNURLED GRAB BAR'S 860mm IN ELEV. FROM FINISHED 1ST FLR. (FASSENED INTO FLOOR SYSTEM WITH 75mmX75mmø CONCRETE ANCHORES) AMERICAN STANDARD STAINLESS STEEL POLISHED CHROME BIDET FAUCET "FROST®" STAINLESS STEEL WALL MOUNTED AUTOMATIC SOAP DISPENSER 460 500 460 "TOTO" WALL HUNG AUTOMATIC MOVMENT SENSOR FLUSH WHITE CERMAMIC TOLIET AMERICAN STANDARD STAINLESS STEEL POLISHED CHROME BIDET FAUCET 7 J KAWNEER "1600 L-R Wall®" - 2-1/2" x 5-3/4" PREFINSIHED ALUMINUM VERTICAL MULLION KAWNEER "1600 L- R Wall®" LOW RISE COMERCIAL CURTAIN WALL CONSTRUCTION POLISHED PEACH ALABASTER WATERABLE SILL @ T/O OF SECOND FLOOR THERMAL BRAKES BETWEEN ISOWEB™ GLASS WINDOW PANES KAWNEER ISOWEB™ GLASS FACTORY SEALED DOUBLE GLAZING 13mmX100mm P.LAM PLYWOOD WINDOW STOOL EDGE 2- 25mm LONG ROUNDED SLOT HEAD SILICON COATED WOOD SCREWS @ 200mm O.C. INTO 2"x 4"x 8' WOODEN BLOCKING BELOW CUT WHEN NECESSARY CUSTOM 146mmx146mm PREFINISHED ALUMINUM VERTICAL CORNOR MULLION WITH THERMAL BRAKES TO MATCH THICKNESS OF HORIZONTAL MULLION DRIP EDGE ON UNDERSIDE OF WATERABLE SILL D-1001 DRYWALL FURRING CHANNELS @ 600mm O.C. WITH 1-25mm LONG DRYWALL SCREWS @ 200mm O.C. AND 2-50mm LONG MASONARY SCREWS @ 200mm O.C. 2-CORE CODE 20 CONCRETE MASONARY UNIT 190mmx190mmx390mm 25mm THICK EXTRUDED E.I.F.S. WINDOW SILL 25mm THICK EXTRUDED E.I.F.S. WINDOW SILL 1938 155 13 35 190 32 93 92 1mm BLUE PEEL AND STICK AIR/VAPOUR BARRIER CONTINUOUS (AROUND CURTAIN WALL)150mm DIAMETER STRUCTURAL STEEL COLUMN SITTING ON 10mm MORTAR JOINT RESTING ON C.M.U. 95 355 40 63 EXTERIOR EDGE OF SUPPORTING FACEBRICK ON FIRST FLOOR WALL BELLOW 63 13mmX250MM P.LAM PLYWOOD WINDOW STOOL EDGE EXTENDING TO WINDOW PLANE SEALED WITH 100% SILICONE CAULKING 458 3507025 9 8 B D2 KAWNEER "1600 L-R Wall®" - 2-1/2" x 5-3/4" PREFINSIHED ALUMINUM VERTICAL MULLION KAWNEER "1600 L-R Wall®" LOW RISE COMERCIAL CURTAIN WALL CONSTRUCTION 13mmX210mm P.LAM PLYWOOD WINDOW STOOL THERMAL BRAKE BETWEEN ISOWEB™ GLASS WINDOW PANES KAWNEER ISOWEB™ GLASS FACTORY SEALED DOUBLE GLAZING 13mmX100mm P.LAM PLYWOOD WINDOW STOOL EDGE 2- 25mm LONG ROUNDED SLOT HEAD SILICON COATED WOOD SCREWS @ 200mm O.C. INTO 2"x 4" WOODEN BLOCKING BELOW D-1001 DRYWALL FURRING CHANNELS @ 600mm O.C. WITH 1-25mm LONG DRYWALL SCREWS @ 200mm O.C. AND 2-50mm LONG MASONARY SCREWS @ 200mm O.C. 2-CORE CODE 20 CONCRETE MASONARY UNIT 190mmx190mmx390mm 1mm BLUE PEEL AND STICK AIR/VAPOUR BARRIER CONTINUOUS EXTERIOR EDGE OF SUPPORTING FACEBRICK ON FIRST FLOOR WALL BELLOW PRE FINISHED EXTRUDED ALUMINUM WINDOW SILL WITH DRIP EDGE TYP. STEEL ALLOY CMU TO BRICK TIE SHEAR @600mm O.C. HORIZONTALLY AND EVERY 3 BUILDING STONE COURSES/ 1 C.M.U. COURSE 50mm LONG ROUNDED SLOT HEAD SILICON COATED WOOD SCREWS @ 200mm O.C. 2-2"x4" WOODEN BLOCKING 13MM GYPSUM BOARD 10mm STRUCTURAL MORTAR JOINT 75mm RIGID INSULATION EXTRUDED POLYSTYRENE ARRISCRAFT "LAUIER- LAU52" NATURAL BIULDING STONE IN VARRIOUS SIZED RANGING FROM 190mm-400mm IN LENGTH & 60mm- 133.33mm IN HIGHT WITH A CONSISTANT BED WITH OF 90mm 22mm DEEP "D-1001" DRYWALL FURRING CHANNELS @ 600mm O.C. WITH 1-25mm LONG DRYWALL SCREWS @ 200mm O.C. AND 2-50mm LONG MASONARY SCREWS @ 200mm O.C. 592 800 400 200200400300190 90 400 300 64850 990 2X4" WOODEN BLOCKING NOTCHED AT VERTICAL MILLIONS 400 992990 Scale Date Drawn by Sheet No. KIERAN TRIMBEE DESIGN CO. Ktrimbee-cc@conestogac.on.ca 1-519-377-9876 FUTURE CONESTOGA COLLEGE GRADUATE & ARCHITECTURE AND CONSTRUCTION ENGINEERING TECHNOLOGIST SNIP!!! SNIP!!! SNIP!!! SNIP!!! SNIP!!! SNIP!!! As indicated 12/11/20148:47:53PM A-7 DETAIL ENLARGEMENTS ARCH1030 MAJOR PROJECT 12/11/2014 KIERAN TRIMBEE "GO FOR BROKE" DESIGN GROUP 1 : 25 A-7 ENLARGED WASHROOM PLAN1 1 : 10 A-7 2ND FLOOR CORNER COLUMN DETAIL3 1 : 10 A-7 1ST-FLR. ENTERANCE CORNOR DETAIL5 1 : 100 A-7 O.B.C. B.F. WASHROOM DETAIL4 NOT TO SCALE A-7 BARRIER FREE 3D ISOM VIEW2