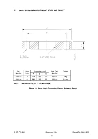
High Pressure
Carbon Dioxide
PRODUCT MANUAL
Contents:
1. Specification
2. Data sheets
3. Design manual
4. Installation, commissioning & maintenance manual
5. Software manual
6. Weight monitoring system
7. Direct Acting Solenoid
8. Owners Manual
9. Approvals
10. Information bulletins
1
High Pressure
Carbon Dioxide
Fire Protection Equipment
SPECIFICATIONSFOR
KIDDE CARBON DIOXIDE
FIRE SUPPRESSION
December 2004
2
PROPRIETARY RIGHTS NOTICE
This document and the information that it contains are the property of Kidde Fire Protection. Rights to
duplicate or otherwise copy this document and rights to disclose the document and the information that
it contains to others and the right to use the information contained therein may be acquired only by written
permission signed by a duly authorised officer of Kidde Fire Protection.
© Copyright Kidde Fire Protection Services Ltd
3
SPECIFICATION FOR KIDDE CARBON DIOXIDE FIRE SUPPRESSION
1.0 General Description
1.1 This specification defines the requirements for a Kidde carbon dioxide fire suppression system. It
shall be used as a standard for equipment, installation and acceptance testing.
2.0 Plans and Specifications
2.1 The carbon dioxide system(s) shall be manufactured by Kidde Fire Protection, Thame Park Road,
Thame, Oxfordshire. OX9 3RT. UK
Major components of the detection and extinguishing control system, valves, cylinders, releasing
devices and nozzles shall be supplied by one manufacturer.
2.2 Major components of the carbon dioxide hardware shall be Factory Mutual approved.
2.3 To ensure system effectiveness, the contractor shall design, install and test the equipment in
accordance with either NFPA 12 or BS 5306, pt 4.
2.4 In addition to this specification, drawings shall be provided showing the general arrangement of
equipment within the protected areas. The contractor shall also provide a hazard analysis of the
individual risk areas.
3.0 Standards, Approvals and Quality Assurance
3.1 The carbon dioxide system shall be designed, installed and tested in accordance with BS 5306
pt4 or NFPA 12, as defined by the client or their insurers. All equipment shall be procured from a
single manufacturer operating a quality scheme to : BS EN ISO 9001:2000.
4.0 Proposals and Submittals
4.1 The contractor shall supply manufacturers sales literature, data sheets and technical information
for each major component of the system.
4.2 The contractor shall submit the following with their proposal:
4.2.1 Evidence of their qualifications (e.g. LPS 1204) to design, install, test, service and recharge
the manufacturers equipment AS APPROVED BY Kidde.
4.2.2 A complete bill of materials and description of the proposed installation including the
manufacturers part number for each major item of equipment.
4.2.3 Evidence of their ability to supply spare parts to maintain the system.
4.3 Upon award of a contract the contractor shall supply the following:
4.3.1 Detailed scaled plans/drawings of the proposed system showing all items of equipment,
routing of all pipes and cables. Flow calculations shall be shown detailing pipe size, nozzle size
flow rate and terminal pressure.
4
This information shall be generated by a suitable software package from the equipment
manufacturer.
Care should be taken in locating the extinguishing agent containers as close as possible to the
hazard to minimise the time for the agent to reach the fire.
4.3.2 Electrical system schematics in accordance with the relevant standard showing safety
interlocks and a description of the sequence of operation.
4.3.3 Full sets of drawings and technical submittals, as required, shall be submitted to the client
and the consultant for approval prior to installation.
5.0 General Requirements
5.1 The carbon dioxide system shall be designed, engineered and installed for the proper protection of
the hazard area(s). All major components shall be supplied by Kidde Fire Protection.
5.2 The design, installation and testing shall be in accordance with: BS5306 pt 4, NFPA 12 or Factory
Mutual standards as appropriate.
In addition, the detection and alarm system shall be designed and installed to the appropriate
standard.
5.3 All major components shall be from one major manufacturer and the carbon dioxide components
shall be Factory Mutual approved.
5.4 Release of the carbon dioxide system shall be possible by electrical solenoid attached to a system
control head operating together to release a pilot nitrogen supply.
The nitrogen pilot gas shall be capable of operating up to 36 Klem valve actuators.
The control head shall also have facilities for manual release locally and remotely by mechanical
pull cable. As an option the control head shall have integral switches to indicate :
Operated - Control head fired.
Isolated - Control head isolating pin inserted.
5.5 The system discharge time shall be designed in accordance with the design code selected for the
project. Particular attention shall be given to determining the classification of the hazard and
protection method employed.
5.6 The carbon dioxide storage cylinders and valves shall be “π“marked in accordance with European
TPED Legislation 99/36/EC. Each cylinder shall be fitted with a Kidde Klem servo assisted valve.
The valves shall be fitted with a safety burst disc designed to operate at 190 bar. The cylinder
shall be painted red. The cylinder assembly shall be Factory Mutual approved.
5.7 Where multiple cylinders are required for one or more hazard areas a common manifold shall be
used. To prevent appreciable loss of gas, in the case of a cylinder being removed and the system
discharging, an approved check valve shall be fitted to prevent loss of gas. Each cylinder
supplying a common manifold shall be of a common size and fill.
5.8 Where more than one risk is protected from a bank of cylinders, consideration shall be given to
supplying a reserve supply of gas suitable to protect the largest risk.
The reserve bank shall be connected to the same manifold as the primary set using Factory
5
Mutual approved check valves.
5.9 System piping shall be in accordance with the requirements of BS 5306 pt 4 (NFPA 12, if
applicable).
5.10 Discharge nozzles shall be selected from the range of Kidde Fire Protection Factory Mutual
Approved designs and shall be suitably sized for the flow rates required.
5.11 System design shall be verified using the Kidde Fire Protection CO2 calculation program. A full
print out shall be submitted for approval.
6.0 System Components
6.1 Cylinders - shall be, filled with 45 kg of carbon dioxide and fitted with the Kidde Klem valve. The
assembly shall be Factory Mutual approved. Valves shall be both proof tested and leak tested as
part of the manufacturing process.
6.2 Valve actuator (K62341) - this is the valve operating device and is attached to the valve by a 'U'
shaped securing pin. The actuators can be removed for system testing without operating the
cylinder valve with the associated risks of losing gas. The actuator is operated by pilot gas
pressure or manually by a lever. The actuator shall be FM (Factory Mutual) approved.
6.3 Copper loop K21578 - provides a solid connection between the Klem valve and manifold check
valve. The copper loop shall be Factory Mutual approved.
6.4 Flexible loop K97112 - an alternative flexible connection between the Klem valve and manifold
check valve.
6.5 Pilot loops K93433 and K93434 - high pressure flexible tube used to connect between the pilot
gas supply and cylinder valve actuators. Pilot loops shall be tested to 210 bar (3000 PSI).
6.6 Pilot vent K24051 - this device is a safety feature designed to slowly relieve pilot gas pressure
following the main CO2 discharge.
6.7 Manifolds - shall be manufactured from schedule 80 pipe , galvanised and tested to 120 bar (2000
PSI). Manifolds shall be FM approved and available in the following sizes for 2,3,4,5 cylinder(s) 1"
nominal bore or 1¼" nominal bore schedule 80 pipe.
6.8 Cylinder racking - shall be formed from steel components designed specifically for supporting CO2
cylinders during a discharge. Where double rows of cylinders are used a wooden central spacer
shall be used. Racking shall be supplied in modules of 2 or 3 cylinder sets. Two sets of racking
shall be used for each bank of cylinders.
6.9 Control heads K62303 and 62304 - provide the electro/mechanical interface between the
detection control panel and CO2 extinguishing hardware. The control head together with the pilot
cylinder K62462, solenoid K62422B and wall mount K62487, forms the system actuator and
provides the pilot gas supply to operate the main cylinder bank. Operation of the control head may
be achieved electrically, pneumatically or mechanically by remote pull cable.
6.10 Push to fire button K62412 - provides direct manual control to fire the CO2 cylinder bank from the
systems actuator.
6.11 Safety pin K62401 - this fits into the control head to reset the device following operation. It also
provides an isolation facility when left in position. Remote indication of the isolated condition is
available via contacts within the control head.
A blanking plug shall be used to prevent ingress of dirt into the control head when the safety pin is
not in situ.
6
6.12 Manual release interface K62478 - allows remote release of the control head by means of a pull
box K1114 and phosphor bronze pre - stretched cable K9002 . To allow easy change of direction
corner pulleys K1122 shall be used. The cable shall be run in ½" o.d. galvanised conduit for
mechanical protection.
6.13 Pressure operated direction valves K24175 - (typical) - This is a 1¼" nominal bore valve and shall
be used to control the flow of carbon dioxide to the specific hazard in a system designed to protect
multiple risks from a common bank of cylinders. The valve shall be capable of opening under full
CO2 pressure. A manual lever shall be supplied for emergency control.
The valve shall be Factory Mutual approved. A switch shall be fitted to the valve where indication
that the valve is open is required (e.g. K24630).
(P.O.D. valves may be provided in sizes: ¾", 1", 1¼", 1½", 2", 3", and 4").
6.14 Safety outlet K 921 - shall be used where gas may be trapped between two closed valves to
prevent a dangerous rupture of the pipework e.g. when directional valves or isolating valves are
used.
6.15 Pressure switch K60218 - shall be used to provide electrical contacts rated at 10amp. To provide
the following facilities:
• Plant shut down
• Remote alarm signalling
• Discharged indication
• Gas in manifold - should direction valve not open.
(The switch shall be Factory Mutual approved).
6.16 Pressure trip K17554 - shall be used to automatically release weight operated dampers, fuel
valves etc upon CO2 discharge. The pressure trip shall be Factory Mutual approved.
6.17 CO2 siren K18307 - shall be used to give audible warning of impending CO2 discharge prior to the
main direction valve opening.
6.18 CO2 discharge delay K23650/30 - shall be used in conjunction with the siren to give a 30 second
pre-alarm to allow safe evacuation of a CO2 protected space. The discharge delay shall be
Factory Mutual approved.
6.19 Time delay by-pass K60736 - shall allow emergency manual control of the CO2 discharge, by-
passing the 30 second delay.
6.20 Odouriser assembly K62586 - shall be used to introduce a pungent lemon smell into a protected
hazard area upon operation of the CO2 extinguishing system. It shall be used in conjunction with a
check valve K22152.
6.21 Continuous weight monitoring unit E8731-402 shall be used to monitor the CO2 cylinders for
weight loss. Should a cylinder lose 5% - 10 % of its weight then this device shall automatically
signal a fault condition to the system control panel via a micro switch.
7.0 System Design
7.1 For total flooding applications care shall be taken to ensure that the room is reasonably gas tight
with all ventilation shut down. Failing this, adequate provision shall be made for leakage
compensation in accordance with the design standard.
7
7.2 All doors or windows which may be open shall be arranged to close automatically upon CO2
discharge to prevent undue loss of gas.
7.3 The carbon dioxide system design shall be based upon accurate drawings of the hazard or in the
absence of drawings a detailed site survey. The hazard analysis shall define the design
concentration used and temperature applicable.
7.4 Warning signs shall be fitted to all appropriate doors into the hazard area and any areas where
CO2 may build up and form a hazardous concentration.
7.5 All equipment shall be installed to the manufacturer's manuals and due consideration for service
and maintenance of the system shall be given.
7.6 The system shall meet the requirements of either BS5306 pt 4 or NFPA 12 as determined by the
client/consultant or their insurers.
8.0 Equipment Manufacturer
The system components, design manuals and flow calculation programme shall be provided by:
Kidde Fire Protection, Thame Park Road, Thame, Oxfordshire, OX9 3RT. UK
High Pressure
Carbon Dioxide
Fire Protection Equipment
CO2 DATA SHEETS
CO2 DATA SHEETS
CO2 Nozzle ........................................................................................................ 418A
Check valve assy ..................................................................................................426
Pressure trip, typical installation...................................................................811-5000
45kg cylinder & klem valve assy...................................................................811-9004
6.8kg cylinder & klem valve assy.......................................................... 811-9004(6.8)
22.7kg cylinder & klem valve assy...................................................... 811-9004(22.7)
¾” Safety Outlet ...........................................................................................811-9016
Multi-container racking .................................................................................811-9020
1” (25mm) bore, cylinder check, valve manifold ...........................................811-9022
11/4” (32mm) bore, cylinder check, valve manifold ......................................811-9023
Flexible loop .................................................................................................811-9026
Valve actuator (pneumatic/manual)..............................................................811 9031
Lever actuator link........................................................................................811-9032
Cable clamp assy.........................................................................................811-9033
Klem valve....................................................................................................811-9038
Pilot loops.....................................................................................................811-9040
Pilot bleed.................................................................................................. 811-9040A
¾” P.O.D. valve............................................................................................811-9067
¾” P.O.D. valve c/w indicator switch ............................................................811-9068
1” P.O.D. valves ...........................................................................................811-9071
1” P.O.D. valve c/w indicator switch .............................................................811-9072
11/4” P.O.D. valve........................................................................................811-9075
11/4” P.O.D. valve c/w indicator switch ........................................................811-9076
11/2”” P.O.D. ................................................................................................811-9079
11/2” P.O.D. valve c/w indicator switch ........................................................811-9080
2” P.O.D. ......................................................................................................811-9083
2” P.O.D. valve c/w indicator switch .............................................................811-9084
3”, 4” & 6” P.O.D. valves ..............................................................................811-9090
CO2 Discharge delay unit .............................................................................811-9112
Universal pressure switch assy ....................................................................811-9119
Pressure Trip................................................................................................811-9123
Nozzle, CO2, flanged horn............................................................................811-9139
Nozzle, CO2, with horn .................................................................................811-9148
Nozzle, CO2, & duct adaptor ........................................................................811-9151
Manual Pull Box assy ...................................................................................811-9220
Manual Pull box instruction plate..................................................................811-9225
CO2 door plate.............................................................................................811-9237
Control head options ....................................................................................823-9250
Electric control head.....................................................................................823-9521
Flameproof solenoid................................................................................. 823-9522/A
Standard solenoid .................................................................................... 823-9522/B
Pneumatic diaphragm ..............................................................................823-9522/C
Safety & Reset pin, Manual release .............................................................823-9523
Pilot valve & cylinder assy......................................................................... 823-9524A
Control head bracket ................................................................................. 823-9524B
Mounting bracket - control head (FM) ....................................................... 823-9524C
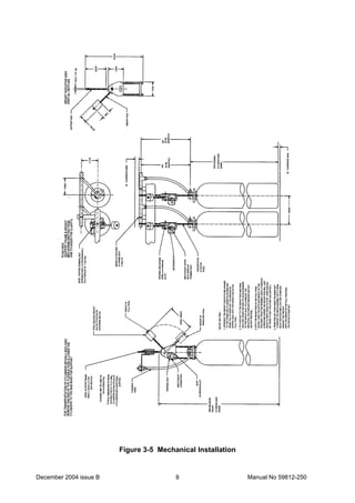
Typical arrangement, 3 cylinders..................................................................841-5025
Typical arrangement, including manual pull .................................................841-5027
Pilot tube connections to inlet of P.O.D. valves............................................841-5036
i Manual No 59812-401
High Pressure
Carbon Dioxide
Fire Protection Equipment
DESIGN MANUAL
Issue 5 December 2004 Manual No 59812-401
ii Manual No 59812-401
PROPRIETARY RIGHTS NOTICE
This document and the information that it contains are the property of Kidde Fire Protection. Rights to
duplicate or otherwise copy this document and rights to disclose the document and the information
that it contains to others and the right to use the information contained therein may be acquired only
by written permission signed by a duly authorised officer of Kidde Fire Protection.
© Copyright Kidde Fire Protection Services Ltd
iii Manual No 59812-401
TABLE OF CONTENTS
Chapter Page
INTRODUCTION ..................................................................................................1
1 TOTAL FLOODING SYSTEMS....................................................................2
1.1 EXAMPLES OF HAZARDS..................................................................2
1.2 TYPE OF FIRES ..................................................................................2
1.3 WHERE CO2 IS NOT EFFECTIVE ......................................................2
2 CO2 REQUIREMENTS FOR SURFACE FIRES...........................................3
2.1 BASIC QUANTITY ...............................................................................3
2.2 UNCLOSEABLE OPENINGS...............................................................3
2.2.1 Limits of Uncloseable Openings ................................................3
2.2.2 Compensation ...........................................................................4
2.3 MATERIAL CONVERSION FACTOR ..................................................4
2.4 TEMPERATURE CORRECTION.........................................................6
2.5 FORCED VENTILATION .....................................................................6
2.6 INTERCONNECTED VOLUMES .........................................................7
2.7 VENTING FOR SURFACE FIRE SYSTEMS .......................................7
3 CO2 REQUIREMENTS FOR DEEP SEATED FIRES...................................8
3.1 BASIC QUANTITY ...............................................................................8
3.2 OPENINGS ..........................................................................................8
3.3 FORCED VENTILATION .....................................................................8
3.4 INTERCONNECTED VOLUMES .........................................................8
3.5 EXTENDED DISCHARGE .................................................................10
3.5.1 Venting for Deep Seated Fire Systems ...................................10
4 DISCHARGE RATES FOR TOTAL FLOODING SYSTEMS......................12
4.1 SURFACE FIRES ..............................................................................12
4.2 DEEP SEATED FIRES ......................................................................12
5 NOZZLE DISTRIBUTION...........................................................................13
6 LOCAL APPLICATION SYSTEMS............................................................14
6.1 EXAMPLES OF HAZARDS................................................................14
6.2 GENERAL..........................................................................................14
6.3 CO2 QUANTITIES..............................................................................14
6.3.1 Duration of Discharge..............................................................15
6.3.2 Material Conversion Factor......................................................15
7 RATE BY AREA METHOD ........................................................................16
iv Manual No 59812-401
7.1 CO2 QUANTITY .................................................................................16
7.2 HORN DISPOSITIONS ......................................................................18
8 RATE BY VOLUME METHOD...................................................................20
8.1 ASSUMED ENCLOSURE ..................................................................20
8.2 CO2 QUANTITY .................................................................................20
8.3 HORN DISPOSITIONS ......................................................................21
9 PIPE SELECTION......................................................................................22
9.1 RATE OF APPLICATION...................................................................22
9.2 PIPE SIZE ESTIMATES.....................................................................22
9.3 NOZZLE SIZES..................................................................................23
10 STORAGE CONTAINER LOCATION........................................................24
11 DISTRIBUTION VALVES...........................................................................25
12 AUTOMATIC OPERATION........................................................................26
13 MANUAL CONTROL .................................................................................27
13.1 MANUAL RELEASE...........................................................................27
14 ALARMS ....................................................................................................28
15 ELECTROSTATIC DISCHARGE...............................................................29
16 DETECTION...............................................................................................30
16.1 PNEUMATIC DETECTION - HEAT ACTUATED DEVICES...............30
16.1.1 General....................................................................................30
16.1.2 Location of HADs on Smooth Flat Ceilings..............................31
16.1.3 Fixed Temperature HAD..........................................................32
17 SAFETY REQUIREMENTS........................................................................33
17.1 TOTAL FLOODING SYSTEMS..........................................................33
17.2 LOCAL APPLICATION SYSTEMS.....................................................33
18 FACTORY MUTUAL RULES.....................................................................34
v Manual No 59812-401
LIST OF ILLUSTRATIONS
Figure Page
Figure 1 Aiming Position for Angled Discharge Horns............................................18
Figure 2 Discharge Rate, per kg per min per m3
....................................................20
LIST OF TABLES
Table Page
Table 1 Volume Factors ..........................................................................................3
Table 2 Minimum Carbon Dioxide Concentration for Extinction ..............................5
Table 3 Hazard Factors...........................................................................................9
Table 4 Extended Discharge Gas Quantities for Enclosed Circulation: Rotating
Electrical Machines...................................................................................11
Table 5 Horn Selection and CO2 Quantity.............................................................17
Table 6 Aiming Factors for Nozzles Installed at an Angle (based on 150 mm
Freeboard)................................................................................................19
Table 7 Pipe Size Estimates..................................................................................22
Issue 5 December 2004 Manual No 59812-4011
INTRODUCTION
This manual describes the design principles to be used on all carbon dioxide (CO2) systems.
General requirements and design criteria are based on British Standard (BS) 5306 Part 4, but on
some occasions National Fire Protection Association (NFPA) 12 may be used as the base document.
Detailed information on components is given in the individual CO2 Engineering Data Sheets.
The importance of proper design cannot be over stressed as design concentrations and application
rates are critical for successful extinguishing.
The recommendations given in this document represent the best known technical data, but while the
aim has been to anticipate all considerations, the recommendations should be applied in practical
situations with discretion and due regard to local circumstances.
Full requirements for the design of CO2 fire fighting systems are given in BS5306 Part 4.
Issue 5 December 2004 Manual No 59812-4012
TOTAL FLOODING SYSTEMS
1 TOTAL FLOODING SYSTEMS
CO2 total flooding systems are based on creating an extinguishing concentration of CO2 within an
enclosed space containing the combustible materials. The quantity of CO2 is determined by applying
an appropriate flooding factor to the volume being protected.
The efficiency of a total flooding system depends upon maintaining the concentration for as long as
possible, so before total flooding can be considered as a method of extinguishing, the protected space
must be reasonably well enclosed. It is always advisable for an integrity test to be conducted to verify
the rate of leakage.
A fixed supply of CO2 is permanently connected to fixed piping and discharge nozzles are arranged to
discharge CO2 into the protected space.
1.1 Examples of Hazards
Rooms, vaults, enclosed machines, ovens, dust collectors, floor and ceiling voids and fume extraction
ducts.
1.2 Type of Fires
Fires that can be extinguished by total flooding methods are:
(a) Surface fires that can be extinguished quickly, such as those involving flammable liquids and
vapours.
(b) Deep seated fires that require cooling time in order to be extinguished, e.g. fires involving bulk
paper and other solids.
1.3 Where CO2 is NOT Effective
(a) Materials that contain their own oxygen supply and liberate oxygen when burning, e.g. cellulose
nitrate.
(b) Reactive metals e.g. sodium, potassium, magnesium, titanium, zirconium, uranium and
plutonium.
(c) Metal hydrides.
While CO2 may not extinguish these fires, it will not react dangerously or increase the burning rate.
CO2 will protect adjacent combustibles and will also extinguish fires of other materials in which the
reactive metals are often stored.
Example:
(a) Sodium stored or used under Kerosene.
(b) Cellulose nitrate in a solvent.
(c) Magnesium chips covered with heavy oil.
Issue 5 December 2004 Manual No 59812-4013
CO2 REQUIREMENTS FOR SURFACE FIRES
2 CO2 REQUIREMENTS FOR SURFACE FIRES
2.1 Basic Quantity
Multiply the volume to be protected (cubic metres) by the appropriate volume factor given in Table 1.
The answer will be in kilograms of CO2. This will protect an enclosure containing materials requiring a
design concentration of up to 34%.
The volume to be used is the gross volume of the enclosure but you are permitted to deduct
permanent, impermeable elements of the building structure i.e. beams, stanchions, solid stairways and
foundations.
Table 1 Volume Factors
Volume of Space Volume Factor Calculated Minimum
m3
kg CO2/m3
kg
<4 1.15
>4 <14 1.07 4.5
>14 <45 1.01 16.0
>45 <126 0.90 45.0
>126 <1400 0.80 110.0
>1400 0.74 1100.0
» NOTE 1 Table 1 Volume Factors, must ONLY be used for SURFACE FIRES.
» NOTE 2 For DEEP SEATED FIRES refer to Chapter 3.
Example:
Room: 6 m x 9 m x 3m = 162 m3
162 m3
x 0.80 kg/m3
= 129.6 kg
2.2 Uncloseable Openings
Openings shall be arranged to close automatically before or simultaneously with the start of the CO2
discharge. This can be done by self-closing door devices, fire curtains or steel shutters, refer to Data
Sheet 811-5000.
If it is not possible to seal the opening it is permissible for small openings to remain open provided
they do not exceed the limits shown below, and are compensated by the addition of extra carbon
dioxide.
2.2.1 Limits of Uncloseable Openings
The maximum area permitted is the smaller result of the following calculations:
(a) An area in square metres, which is numerically equivalent to 10% of the volume in cubic metres.
(b) 10% of the total area of all sides, top and bottom in square metres.
When uncloseable openings exceed this limitation, the system should be designed by a local
application method.
Issue 5 December 2004 Manual No 59812-4014
CO2 REQUIREMENTS FOR SURFACE FIRES
2.2.2 Compensation
Additional gas at the rate of 5 kg/m2
of opening.
Where necessary this quantity should be multiplied by the appropriate Material Conversion
Factor (MCF), refer to Section 2.3.
The additional quantity should be discharged through the regular pipework system and the flow rate
increased accordingly so that the additional quantity is discharged within the time specified in BS5306
Part 4.
2.3 Material Conversion Factor
For materials requiring a design concentration over 34%, the basic quantity of carbon dioxide
calculated, i.e. the result of using Table 1, plus the addition for losses through limited openings, shall
be increased by multiplying this quantity by the appropriate conversion factor in Table 2.
The most hazardous material in the enclosure must be selected no matter what the quantity of that
material.
For materials not listed consult Kidde Fire Protection as the design concentration may have to be
determined by test.
Example:
Room: 6 m x 9 m x 3 m high = 162 m3
162m3
x 0.80kg/m3
= 129.6kg
Uncloseable opening = 1.0 m2
= 5.0 kg
Basic quantity = 134.6 kg
If room contains butadiene as the most hazardous material: MCF = 1.3
134.6 kg x 1.3 = 175kg
Issue 5 December 2004 Manual No 59812-4015
CO2 REQUIREMENTS FOR SURFACE FIRES
Table 2 Minimum Carbon Dioxide Concentration for Extinction
Minimum Material
Material Design CO2 Conversion
Concentration (%) Factor
Acetaldehyde 34 1.0
Acetylene 66 2.5
Amyl Acetate 34 1.0
Acetone 31 1.0
Amyl Alcohol 34 1.0
Benzol, Benzene 37 1.1
Butadiene 41 1.3
Butane 34 1.0
Butyl Acetate 34 1.0
Butyl Alcohol 34 1.0
Carbon Disulphide 66 2.5
Carbon Monoxide 64 2.4
Coal Gas or Natural Gas 37 1.1
Cyclopropane 37 1.1
Diesel Fuel 34 1.0
Dowtherm 46 1.5
Ethane 40 1.2
Ethyl Ether 46 1.5
Ethyl Alcohol 43 1.3
Ethylene 49 1.6
Ethylene Dichloride 25 1.0
Ethylene Oxide 53 1.75
Hexane 35 1.1
Hydrogen 74 3.2
Isobutane 36 1.1
Kerosene 34 1.0
Lube oils 34 1.0
Methane 30 1.0
Methyl Alcohol 40 1.2
Paint 34 1.0
Pentane 35 1.1
Petroleum Spirit 34 1.0
Propane 36 1.1
Propylene 36 1.1
Quench, Lube Oils 34 1.0
Tar 34 1.0
Toluol 34 1.0
Turpentine 34 1.0
Transformer Oil 34 1.0
For materials not listed please contact Kidde Fire Protection
Issue 5 December 2004 Manual No 59812-4016
CO2 REQUIREMENTS FOR SURFACE FIRES
2.4 Temperature Correction
Additional quantities of CO2 are needed to compensate for the effects of abnormal temperature.
Hazards which operate at temperatures above 100°C may be more likely to re-ignite so it is necessary
to hold the extinguishing concentration for a longer period to assist cooling.
Add 2% carbon dioxide for each 5°C above 100°C.
Example:
Oven: 3 m x 1.5 m x 1.8 m = 8.1 m3
If the normal working temperature is 204°C:
204-100 = 104/5 = 20.8
20.8 x 2% = 41.6%
8.1m3
x 1.07 kg/m3
= 8.66 (basic quantity) x 1.416 (temp correction)
= 12.26 kg
CO2 has a lower expansion ratio at lower temperatures so it will be more dense and leakage would be
greater than normal.
Where the normal temperature of the enclosure is below -20°C, add 2% of CO2 for each 1°C below
-20°C.
Example:
Refrigerated space:
3 m x 6 m x 3 m = 54 m3
with a normal operating temperature of -23°C.
23°C - 20°C = 3°C x 2% = 6%
54 m3
x 0.90 kg/m3
= 48.6 kg (basic quantity) x 1.06 (temp correction)
= 51 .5 kg
If an addition has been made to the basic CO2 quantity to compensate for openings or application of
an MCF, the total quantity should be used in place of the basic quantity in the above examples.
2.5 Forced Ventilation
When forced air ventilation systems are used, they shall, if possible, be shutdown before, or
simultaneously, with the start of the CO2 discharge. If this cannot be done, additional CO2 must be
applied.
If there is a short run down time but the quantity of air removed is significant, additional CO2 must be
applied. The additional CO2 must be discharged within the time specified in BS5306 Part 4.
For calculation purposes the volume of air removed in one minute will be replaced with CO2 at the
design concentration being used.
Example:
Refer to the example in Section 2.3.
Assume the room has 30 m3
of air removed by the ventilation system in one minute.
30 m3
x 0.80 kg/m3
= 24 kg x 1.3 (MCF) = 31.2 kg + 175.0 kg (original) = 206.2 kg
Services such as heating, fuel supplies, paint spraying, conveyors etc. must also be shutdown before
or simultaneously, with the CO2 discharge.
Issue 5 December 2004 Manual No 59812-4017
CO2 REQUIREMENTS FOR SURFACE FIRES
2.6 Interconnected Volumes
In two or more interconnected volumes where free flow of CO2 can occur, the CO2 quantity shall be
the sum of the quantities calculated for each volume, using its respective volume factor. If one volume
requires greater than normal concentration, the higher concentration shall be used for all
interconnected volumes.
2.7 Venting for Surface Fire Systems
Leakage around doors and windows often provides sufficient pressure relief without special
arrangements being required. It is possible to calculate the area of free venting needed for very tight
enclosures but it is recommended you provide the customer with the formula and CO2 flow rate so that
his architect can take the responsibility.
P
Q
where:
X is the free venting area (in mm2
).
Q is the calculated carbon dioxide flow rate (in kg/min).
P is the permissible strength (internal pressure) of enclosure (in bar).
X=23.9
Issue 5 December 2004 Manual No 59812-4018
CO2 REQUIREMENTS FOR DEEP SEATED FIRES
3 CO2 REQUIREMENTS FOR DEEP SEATED FIRES
3.1 Basic Quantity
Multiply the volume to be protected (cubic metres) by the flooding factor given in Table 3.
Example:
Paper documents storage room:
6m x 6m x 3m high = 108m3
108 m3
x 2 kg/m3
CO2 = 216 kg
3.2 Openings
Total flooding systems protecting solid materials cannot tolerate the degree of openings permitted for
surface fire protection.
The design concentration must be maintainable over a long period, so low level openings are not
practicable. Small openings at or near the ceiling are ideal because:
(a) Compensation for losses involves only reasonable quantities of additional CO2.
(b) They allow the escape of hot gases.
(c) They prevent pressure increases that can stress the enclosure structure.
Any openings that cannot be closed shall be compensated for by the addition of CO2 equal in volume
to the expected loss during the extinguishing and holding time.
3.3 Forced Ventilation
When forced air ventilation systems are used, they shall, if possible, be shutdown before, or
simultaneously, with the start of the CO2 discharge. If this cannot be done, additional CO2 must be
applied.
If there is a short run down time but the quantity of air removed is significant, additional CO2 must be
applied. The additional CO2 must be discharged within the time specified in BS5306 Part 4.
For calculation purposes the volume of air removed in one minute will be replaced with CO2 at the
design concentration being used.
Example:
Assume the room has 30 m3
of air removed by the ventilation system in one minute:
30 m3
x 2 kg/m3
= 60 kg + 216 kg (original) = 276 kg
Services such as heating, fuel supplies, paint spraying, conveyors etc. must also be shutdown before
or simultaneously, with the CO2 discharge.
3.4 Interconnected Volumes
In two or more interconnected volumes where free flow of CO2 can occur, the CO2 quantity shall be
the sum of the quantities calculated for each volume, using its respective volume factor. If one volume
requires greater than normal concentration, the higher concentration shall be used for all
interconnected volumes.
Issue 5 December 2004 Manual No 59812-4019
CO2 REQUIREMENTS FOR DEEP SEATED FIRES
Table 3 Hazard Factors
Based on an expansion ratio of 0.52 m3
/kg at a temperature of 10°C.
Hazard Design Flooding
Concentration Factors
(%) (kg/m3
)
Electrical equipment.
Enclosed rotating equipment
Dry electrical wiring
Electrical insulating materials 50 1.35
Computer installations *
Central processing areas and equipment 53 1.50
Data processing
Tape controlled machinery
and tape storage 68 2.25
Stores
Record stores and archives for
paper documents
Ducts and covered trenches 65 2.00
Fur storage vaults
Dust collectors 75 2.70
General
Cocoa
Leather
Silk
Wool 63 1.78
Coal
Coffee
Cork
Cotton
Peanuts
Rubber
Soybean
Sugar 75 2.70
* See also BS 6266.
» NOTE 1 Flooding factors for other deep seated fires should be agreed with Kidde Fire Protection.
» NOTE 2 Table 1 Volume Factors, is not applicable for deep seated fires and must not be used.
Issue 5 December 2004 Manual No 59812-40110
CO2 REQUIREMENTS FOR DEEP SEATED FIRES
3.5 Extended Discharge
In some instances it may be necessary to have an extended discharge for leakage compensation with
a rate of flow that is considerably slower than that required for initial fire extinguishing. A typical
example is the protection of rotating electrical machinery, i.e. alternators and generators, where an
initial concentration has to be achieved in a short time and a minimum concentration of 30% during a
specified deceleration period, which should be held for 20 minutes.
Two separate banks of CO2 containers and distribution piping are used in this case, the ‘initial’ bank
discharging at a fast rate and the ‘extended’ bank discharging at a slow rate.
Table 4 is used to determine the quantity of CO2 to maintain minimum concentration.
The quantities are based on the nett internal volume of the machine and the deceleration time
assuming average leakage.
For non re-circulating machines with relief vents, add 35% to the quantities shown in Table 4.
3.5.1 Venting for Deep Seated Fire Systems
Leakage around doors and windows often provides sufficient pressure relief without special
arrangements being required. It is possible to calculate the area of free venting needed for very tight
enclosures but it is recommended you provide the customer with the formula and CO2 flow rate so that
his architect can take the responsibility.
P
Q
where:
X is the free venting area (in mm2
).
Q is the calculated carbon dioxide flow rate (in kg/min).
P is the permissible strength (internal pressure) of enclosure (in bar).
X=23.9
Carbon Dioxide
Required
5 mm 10 mm 15 mm 20 mm 30 mm 40 mm 50 mm 60 mm
kg lb m
3
ft
3
m
3
ft
3
m
3
ft
3
m
3
ft
3
m
3
ft
3
m
3
ft
3
m
3
ft
3
ft
3
45 100 34 1 200 28 1 000 23 800 17 600 14 500 11 400 9 300 6 200
68 150 51 1 800 43 1 500 34 1 200 28 1 000 21 750 17 600 14 500 11 400
91 200 68 2 400 55 1 950 45 1 600 37 1 300 28 1 000 24 850 18 650 14 500
113 250 93 3 300 69 2 450 57 2 000 47 1 650 37 1 300 30 1 050 23 800 17 600
136 300 130 4 600 88 3 100 68 2 400 57 2 000 47 1 650 37 1 300 28 1 000 20 700
159 350 173 6 100 116 4 100 85 3 000 71 2 500 57 2 000 47 1 650 34 1 200 26 900
181 400 218 7 700 153 5 400 108 3 800 89 3 150 71 2 500 57 2 000 45 1 600 34 1 200
204 450 262 9 250 193 6 800 139 4 900 113 4 000 88 3 100 74 2 600 60 2 100 45 1 600
227 500 306 10 800 229 8 100 173 6 100 142 5 000 110 3 900 93 3 300 79 2 800 62 2 200
250 550 348 12 300 269 9 500 210 7 400 173 6 100 139 4 900 119 4 200 102 3 600 88 3 100
272 600 394 13 900 309 10 900 244 8 600 204 7 200 170 6 000 147 5 200 127 4 500 110 3 900
295 650 436 15 400 348 12 300 279 9 850 235 8 300 200 7 050 176 6 200 156 5 500 136 4 800
319 700 479 16 900 385 13 600 314 11 100 266 9 400 230 8 100 204 7 200 181 6 400 159 5 600
340 750 524 18 500 425 15 000 350 12 350 297 10 500 259 9 150 232 8 200 207 7 300 184 6 500
363 800 566 20 000 464 16 400 385 13 600 329 11 600 289 10 200 261 9 200 232 8 200 207 7 300
386 850 609 21 500 503 17 750 421 14 850 360 12 700 320 11 300 289 10 200 258 9 100 229 8 100
408 900 651 23 000 541 19 100 456 16 100 391 13 800 350 12 350 317 11 200 285 10 050 255 9 000
431 950 697 24 600 581 20 500 491 17 350 422 14 900 379 13 400 346 12 200 312 11 000 278 9 800
454 1 000 739 26 100 620 21 900 527 18 600 453 16 000 411 14 500 374 13 200 337 11 900 303 10 700
476 1 050 782 27 600 666 23 300 564 19 900 484 17 100 442 15 600 402 14 200 364 12 850 326 11 500
499 1 100 824 29 100 697 24 600 596 21 050 515 18 200 470 16 600 430 15 200 389 13 750 351 12 400
522 1 150 867 30 600 736 26 000 632 22 300 547 19 300 501 17 700 459 16 200 416 14 700 374 13 200
544 1 200 912 32 200 773 27 300 667 23 550 578 20 400 532 18 800 487 17 200 442 15 600 399 14 100
567 1 250 954 33 700 813 28 700 702 24 800 609 21 500 562 19 850 515 18 200 467 16 500 422 14 900
590 1 300 1 000 35 300 852 30 100 738 26 050 641 22 650 592 20 900 544 19 200 494 17 450 447 15 800
612 1 350 1 042 36 800 889 31 400 773 27 300 673 23 750 623 22 000 572 20 200 521 18 400 472 16 650
635 1 400 1 087 38 400 929 32 800 809 28 550 705 24 900 654 23 100 600 21 200 548 19 350 496 17 500
658 1 450 1 130 39 900 968 34 200 844 29 800 736 26 000 685 24 200 629 22 200 575 20 300 520 18 350
680 1 500 1 172 41 400 1 008 35 600 879 31 050 767 27 100 715 25 250 657 23 200 600 21 200 544 19 200
CO2REQUIREMENTSFORDEEPSEATEDFIRES
Table4ExtendedDischargeGasQuantitiesforEnclosedCirculation:
RotatingElectricalMachines
Issue5December200411ManualNo59812-401
Issue 5 December 2004 Manual No 59812-40112
DISCHARGE RATES FOR TOTAL FLOODING SYSTEMS
4 DISCHARGE RATES FOR TOTAL FLOODING SYSTEMS
The importance of the following calculations is that pipe and nozzle sizes are based on the desired
flow rate, refer to Chapter 9.
0.52 m3
/kg @ 10°C
0.54 m3
/kg @ 20°C
0.56 m3
/kg @ 30°C
4.1 Surface Fires
For surface fires the design concentration will be achieved in one minute.
Example:
Room requiring 1,000 kg of CO2.
This would be the basic quantity calculated, plus all additions but not including
any special addition for cooling purposes, refer to Section 2.4.
1,000 kg of CO2 ÷ by one minute
Flow rate = 1000 kg/min
4.2 Deep Seated Fires
For deep seated fires the design concentration will be achieved within seven minutes but the rate will
not be less than that required to develop a concentration of 30% in two minutes.
This would be the basic quantity calculated, plus all additions but not including an extended discharge.
Example:
Paper documents storage room:
6 m x 6 m x 3 m high = 108 m3
108 m3
x 2 kg/m3
of CO2 = 216 kg
30% Vol = 32.4 m3
32.4 in3
÷ 0.56 m3
/kg (expansion 30°C) = 57.85 kg ÷ 2
Flow rate = 29 kg/min
Flow time = 216 ÷ 29 = 7.45 minutes
To ensure a flow time of 7 minutes
Use 216 ÷ 7 = 31 kg per minute
Most calculations produce a flow time of between four and seven minutes, the last step shows what to
do if seven minutes is exceeded.
Issue 5 December 2004 Manual No 59812-40113
NOZZLE DISTRIBUTION
5 NOZZLE DISTRIBUTION
For flooding rooms use discharge horn nozzles Part No K61793 or K61792, refer to Data Sheet
811-9148, depending upon flow rate required.
Nozzles should spaced approximately 6 m apart.
For rooms up to 5 m high, install nozzles at a height of 2.5 m and angle of 45°. Average throw
approximately 4 m.
For rooms between 5 and 10 m high, install at 2/3 height up from floor.
For rooms with high stacking or rooms over 10 m high, it may be necessary to install at 1/3 and 2/3
levels.
Obstructions: If obstructions interfere with efficient distribution it may be necessary to use more
nozzles than specified above, or even locate nozzles at ceiling level.
To protect the nozzle in dirty conditions use Part No. K5814, refer to Data Sheet 811-9139.
To inject CO2 into ducts use nozzle Part No. K13045, refer to Data Sheet 811-9151.
Issue 5 December 2004 Manual No 59812-40114
LOCAL APPLICATION SYSTEMS
6 LOCAL APPLICATION SYSTEMS
Local application systems are used for extinguishing surface fires in flammable liquids, vapours and
shallow solids, where the hazard is not enclosed or where the degree of enclosure does not conform
to the requirements for total flooding.
In carbon dioxide local application systems, CO2 is discharged directly into the fire. The efficiency of
the system depends on the CO2 contacting the burning surface at the required rate of flow. Correct
discharge horn nozzle positioning is critical.
Quantities of CO2 must not be determined by using Table 1.
6.1 Examples of Hazards
Dip tanks, quench tanks, printing presses, textile machinery, coating machinery, spray booths, kitchen
ranges and hoods etc.
6.2 General
The important point is that the hazard shall be isolated from other hazards and the entire hazard
protected simultaneously, so that fire is prevented from spreading to unprotected areas and a re-flash
from unprotected areas is not possible.
For example, in a six stand printing press simultaneous protection would be given to all printing
stands, the drying boxes, the ink supply containers, and the flammable vapour extract duct. Similarly in
an industrial food processing environment, simultaneous protection is given to the cooking oil
surfaces, the burner compartment, the fume hood and extraction duct.
Any service likely to affect the efficiency of the CO2 discharge must be interlocked with the system so
as to automatically shut down. This would include ventilating fans, conveyors, flammable liquid pumps,
mixers, heaters, dryers, sprayers etc.
6.3 CO2 Quantities
The quantity of CO2 to be used in a local application system can be determined by either of two
methods depending upon the hazard construction, but there are various factors that are common to
both.
The amount of CO2 required is computed by multiplying the total nozzle discharge rate by the time the
discharge is required to be maintained.
For high pressure systems, the computed quantity of CO2 is increased by 40% to compensate for the
fact that only 70% of the cylinder content is discharged as a liquid and considered effective.
If a combination of total flooding and local application protection is being given, this increase is not
needed for the total flooding portion. The discharge rate for the total flooding portion can be calculated
by dividing the quantity required for total flooding by the factor 1.4 and by the time of the local
application discharge in minutes.
Issue 5 December 2004 Manual No 59812-40115
LOCAL APPLICATION SYSTEMS
6.3.1 Duration of Discharge
The minimum, effective liquid discharge time is 30 seconds.
This is increased if inherently hot surfaces or materials require a longer time to assist in cooling and to
prevent re-ignition.
The standard does not specify the prolonged discharge time so this must be decided by the designer
taking into account the temperature involved and local site considerations, but somewhere between
one and three minutes is usually adequate.
The minimum discharge time for Carbon Dioxide being applied to liquids that have an auto-ignition
temperature that is lower than their boiling temperature shall be 3 min.
For example when protecting a kitchen range a prolonged discharge is given to the cooking oil surface
(3 minutes) but only 30 seconds to other associated areas.
6.3.2 Material Conversion Factor
A MCF is applied when appropriate, as specified in Section 2.3. The increased quantity of CO2 has to
be discharged during the 30 second minimum period.
Example:
Local application portion:
Flow rate (kg/min) x discharge time (mins) x 1.4 x MCF = kg of CO2 required
e.g. 100 kg/min x 0.5 x 1.4 x 1.5 (Ethyl Ether)
=100 x 0.7x 1.5
= 105kg
pIus 150 kg for a 90 second discharge for cooling = 315 kg in total and discharged at a
rate of 150 kg/min
Total flooding portion:
Quantity of CO2 required is determined by the total flooding method
Flow rate = Quantity of CO2
1.4 x discharge time
e.g. 14 kg of CO2 is for a Total Flooding portion of a combined Local Application minus
Total Flooding system (discharge time 0.5min)
Flow rate = 14 kg = 14 = 20 kg/min
1.4 x 0.5 0.7
The foregoing information relates to high pressure storage containers of which the majority of systems
comprise.
If a low pressure bulk storage tank is employed, the 1.4 liquid flow factor is omitted.
Also the pre-liquid flow time, which is a feature of low pressure systems must not be included as part
of the 30 second liquid discharge time.
» NOTE Only liquid discharge is effective in a local application system.
Issue 5 December 2004 Manual No 59812-40116
RATE BY AREA METHOD
7 RATE BY AREA METHOD
The area method of system design is used where the fire hazard consists of flat surfaces or low-level
objects associated with flat horizontal surfaces.
When flammable liquid fires are to be extinguished, a minimum freeboard of 150 mm is necessary.
7.1 CO2 Quantity
The maximum area protected by each discharge horn and the amount of CO2 required varies with the
distance of the horn from the surface being protected. The greater the distance, the larger the area
covered and quantity of CO2 required.
The portion of a hazard surface protected by each horn is based on its ‘side of square’ coverage.
Nozzle sizes are selected for their area coverage and flow rate so as to minimise the amount of CO2
required.
See Table 5 for details of horn height, area coverage and CO2 quantity combinations.
Issue 5 December 2004 Manual No 59812-40117
RATE BY AREA METHOD
Table 5 Horn Selection and CO2 Quantity
Part Nos. K5814 up to N8, refer to Data Sheet 811-9139.
Part Nos. K61793 up to N12 and K61792 up to N18, refer to Data Sheet 811-9148.
Coated Surface (m) Discharge Horn Liquid Surface (m)
Area
(m2
)
Side of
Square
Height
(m)
Rate
(kg/min)
Area
(m2
)
Side of
Square
1.17 1.08 0.60 14.0 0.84 0.91
1.23 1.11 0.68 15.7 0.88 0.94
1.30 1.14 0.76 17.3 0.93 0.96
1.36 1.17 0.84 19.3 0.98 0.99
1.43 1.19 0.91 20.5 1.02. 1.01
1.50 1.22 0.99 21.6 1.07 1.03
1.56 1.25 1.07 23.6 1.11 1.05
1.62 1.27 1.14 25.2 1.16 1.08
1.69 1.30 1.22 26.8 1.20 1.09
1.76 1.33 1.30 28.4 1.25 1.12
1.82 1.35 1.37 30.0 1.30 1.14
1.86 1.37 1.45 31.6 1.35 1.16
1.95 1.40 1.52 33.2 1.39 1.18
2.01 1.42 1.60 34.8 1.44 1.20
2.08 1.44 1.67 36.4 1.49 1.22
2.15 1.46 1.75 38.0 1.53 1.23
2.21 1.48 1.83 39.5 1.58 1.26
2.28 1.50 1.90 41.1 1.62 1.27
2.34 1.53 1.98 42.7 1.67 1.29
2.41 1.55 2.06 44.3 1.72 1.31
2.47 1.57 2.13 46.0 1.76 1.33
2.54 1.59 2.21 47.5 1.81 1.34
2.60 1.81 2.29 49.1 1.86 1.36
2.60 1.61 2.36 50.7 1.86 1.36
2.60 1.61 2.44 52.3 1.86 1.36
2.60 1.61 2.51 53.9 1.86 1.36
2.60 1.61 2.59 55.5 1.86 1.36
2.60 1.61 2.67 57.0 1.86 1.36
2.60 1.61 2.74 58.6 1.86 1.36
» NOTE Interpolations are not permitted.
Issue 5 December 2004 Manual No 59812-40118
RATE BY AREA METHOD
7.2 Horn Dispositions
Hazard conditions often restrict the positioning of discharge horns but to use Table 5 accurately, horns
must be installed perpendicular to the hazard and centred over the area to be protected. They may
also be installed at angles between 45 and 90° to the plane of the hazard. The ‘height’ used in
determining the necessary flow rate and area coverage is the distance from the aiming point on the
protected surface to the face of the horn measured along the axis of the horn.
See Figure 1 for a typical example.
Figure 1 Aiming Position for Angled Discharge Horns
Issue 5 December 2004 Manual No 59812-40119
RATE BY AREA METHOD
The aiming point is measured from the near side of the area protected and is located by multiplying
the fractional aiming factor in Table 6 by the width of the area protected by the horn.
Table 6 Aiming Factors for Nozzles Installed at an Angle
(based on 150 mm Freeboard)
Discharge Angle (See Note 1) Aiming Factor (See Note 2)
45 to 60°
60 to 75°
75 to 90°
90° (perpendicular)
174
1/4 to 3/8
3/8 to 1/2
1/2 (centre)
» NOTE 1 Degrees from plane of hazard surface.
» NOTE 2 Fractional amount of nozzle coverage area.
It is important that horns are located so that the discharge is not obstructed and their alignment is not
easily disturbed.
Discharge horns must be located so as to develop an extinguishing concentration over coated stock
that may be extending over a protected surface, e.g. freshly dipped items hanging on a conveyor line.
In these circumstances additional horns may be required for this specific purpose, particularly if stock
extends more than 600 mm above a protected surface.
Note the increase in area coverage that is given in Table 5 for coated surfaces compared with liquid
surfaces.
The effects of severe air currents and draughts shall be compensated for by adjusting horn locations
or by providing additional horns to suit the expected conditions.
Example:
Hazard: Quench Tank
Material: Quench Lube Oil
MCF: 1
Surface dimensions: 0.92 m x 2.13 m
Horn Location. The site survey has shown that discharge horns can be positioned anywhere from 0.92
m to 1.83 m above the liquid surface without interfering with plant operations.
Design Aim. To select a combination of horn height, area coverage and flow rate to adequately cover
the area with the minimum CO2 quantity.
Procedure. Consider the size to be protected. What is the minimum number of horns that could be
used to cover a length of 2.13 m of liquid surface?
Answer. Two horns with a side of square each of 1.08 m. This selection also satisfies a width of 0.92
m since it is less than 1.08 m, and also an area of 1.95 m² since it is less than can be protected by the
two horns selected.
Horns required. Two located centrally above the liquid surface pointing down from a height of 1.14m.
Flow rate. 2 x 25.2 kg per minute = 50.4 kg/min
CO2 required. 50.4 x 1 (MCF) 1 4 (liquid flow for 0.5 min) = 50.4 x 0.7 = 35.3 kg
2
This provides the basic CO2 quantity for the minimum permitted length of time but the discharge time
at the calculated flow rate could be increased for cooling to prevent reignition.
Issue 5 December 2004 Manual No 59812-40120
RATE BY VOLUME METHOD
8 RATE BY VOLUME METHOD
The assumed volume method of system design is used where the fire hazard consists of three
dimensional irregular objects that cannot easily be reduced to equivalent surface areas, or where the
degree of enclosure does not conform to the requirements for total flooding.
8.1 Assumed Enclosure
The total discharge rate of the system is based on the volume of hypothetical enclosure surrounding
the hazard.
The assumed enclosure must have a closed floor.
The assumed walls and ceiling of the ‘enclosure’ shall be at least 0.6 m from the main hazard unless
actual walls are involved, and they must enclose all areas of possible leakage, splashing or spillage.
No deduction from the assumed volume shall be made for solid objects within this volume. A minimum
dimension of 1.2 m shall be used in calculating the assumed volume.
8.2 CO2 Quantity
The total discharge rate for the basic system shall be 16 kg/min per m3
of assumed volume.
If the assumed enclosure is partly defined by permanent continuous walls extending at least 0.6 m
above the hazard, the discharge rate may be proportionately reduced to not less than 4 kg/min per m3
for the actual walls completely surrounding the hazard. See Figure 2 for quickly deciding the
appropriate discharge rate.
Figure 2 Discharge Rate, per kg per min per m3
Issue 5 December 2004 Manual No 59812-40121
RATE BY VOLUME METHOD
8.3 Horn Dispositions
A sufficient number of horns must be used to adequately cover the entire hazard volume and they
must be located and directed so as to retain the CO2 in the hazard volume by suitable co-operation
between horns and objects making up the hazard volume.
If forced draughts or air currents are anticipated they must be compensated for by a suitable
disposition of the discharge horns.
To ensure that discharge horns are not located so remote from the risk as to be ineffective, and not so
close to liquids as to cause splashing, a check can be made by using Table 6.
Example:
If horn, Part No. K61792, with a flow rate of 52.3 kg/min, was selected it should be located
approximately 2.44 m from the surface it is protecting.
Example 1
Hazard: Paint Spray Booth (ignoring extract duct for this calculation)
Actual dimensions: 2.44 m wide (open front) x 2.13 m high x 1.83 m deep
Assumed volume: 2.44 m x 2.13 m x 2.43 m (1.83 m deep + 0.6 m) = 12.63 m3
Percent Perimeter enclosed =
244 + 1.83 + 183 = 6.1 = 71%
2.44 + 2.44 + 1.83 + 1.83 8.54
Discharge rate for 71% enclosure: from Figure 2 = 7.5 kg/min m3
Discharge rate: 12.63 m3
x 7.5 kg/min m3
= 94.73 kg/min
CO2 required: 94.73 kg/min x 0.7 = 66.3 kg x MCF (1.0)
Example 2
Hazard: Printer with 4 sides and top open (no continuous solid walls and ignoring
extract duct for this calculation).
Actual dimensions: 1.22 m wide x 1.52 m long x 1.22 m high (this is the maximum
hazard outline).
Assumed volume: 2.42 m (1.22 + 0.6 + 0.6) x 2.72 m (1.52 + 0.6 + 0.6)
x 1.82 m (1.22 + 0.6) = 11.98 m3
Percent perimeter enclosed: Zero
Discharge rate for 0% enclosure: 16 kg/min m3
Discharge rate: 11.98 m3
x 16 kg/min m3
= 191.7 kg/min
CO2 required: 191.7 kg/min x 0.7 = 134.2 kg x MCF (1.0)
» NOTE The assumed volume method of system design always needs more gas than the rate
by area method, so to be competitive it is always worth considering if the risk can be
protected by the area method. Example 2 can, but Example 1 cannot.
Issue 5 December 2004 Manual No 59812-40122
PIPE SELECTION
9 PIPE SELECTION
The selection of the various grades of pipe and fittings in order to meet the duties imposed by
operating pressures arid temperatures is made by complying with BS 5306 part 4 or NFP A 12 as
appropriate.
9.1 Rate of Application
Also see to Chapter 4.
Where advancement of flame is potentially rapid, as in surface fires, the CO2 discharge must be
comparably fast to minimise damage.
Where the spread of fire is potentially slow, such as deep seated fires in solid materials, more
emphasis is placed on maintaining a fire suppression concentration for a lengthy period of time to
allow time for cooling.
Where the spread of fire may be faster than normal for the type of fire expected, or where high values,
or vital machinery or equipment are involved, rates higher than the stated minimums may be used.
Where a hazard contains materials that will produce both surface and deep seated fires, the rate of
application should be at least the minimum required for surface fires.
9.2 Pipe Size Estimates
Hydraulic pipe size calculations are accurately determined by using the Kidde Fire Protection CO2
Computer Calculation Program. However, for estimating for a quotation, only a reasonably accurate
result is needed and this can be achieved by using Table 7.
Table 7 Pipe Size Estimates
Metric
Flow Rate
(kg/min)
Estimated Pipe Size
Nominal bore (mm)
Up to 123 20
124 to 177 25
178 to 363 32
364 to 545 40
546 to 1045 50
1045 to 1363 65
Imperial
Flow Rate
(lbs/min)
Estimated Pipe Size
Nominal bore (inches)
Up to 270 ¾
271 to 390 1
391 to 800 1¼
801 to 1200 1½
1201 to 2300 2
2300 to 3000 2½
Issue 5 December 2004 Manual No 59812-40123
PIPE SELECTION
Examples
(a) A surface fire where the design concentration has to be achieved in one minute. If a space
requires 300 kg of CO2, the flow rate from the main manifold would be 300 kg/min and the size
of the feed pipe would be 32 mm bore.
If the system used 4 discharge horns in a balanced distribution system, the feed pipe would
branch into two pipes each flowing at 150 kg/min and would be sized 25 mm bore.
» NOTE The design concentration would include any extra CO2 for losses through openings
and that demanded by the MCF but would not include any extra CO2 allowed for
cooling. This would be allowed to discharge at the same rate and would extend the
discharge time beyond one minute.
The same philosophy applies in a local application system except that the minimum discharge
time is 30 seconds, which may be extended beyond this time to discharge any extra CO2 added
for cooling.
(b) A deep seated fire where the design concentration has to be achieved within seven minutes, but
a concentration of 30% (must be achieved within) two minutes.
When an order has been received, a Contract Engineer would calculate the flow rate accurately,
as shown in Section 4.2.
For estimating purposes it is sufficient to adopt a short cut method.
To determine the flow rate divide the volume protected by:
3 if in cubic metres and answer in kg/min.
51 if in cubic feet and answer in lbs/min.
(c) In an extended discharge system where the CO2 quantity is derived from Table 4, it is simply
necessary to divide the quantity of CO2 required by the length of time of the extended discharge
to determine the flow rate.
9.3 Nozzle Sizes
These are determined by use of the Calculation Program, and nozzle orifice sizes are drilled according
to Data Sheet 811-9148.
A point to bear in mind is that the maximum number of discharge horns that can be fed by one
container is 11 – N3.
The larger the nozzle orifice the smaller the number of horns that can be used, i.e. only one N11
Issue 5 December 2004 Manual No 59812-40124
STORAGE CONTAINER LOCATION
10 STORAGE CONTAINER LOCATION
It is important to get a commitment from a prospective client about the location of storage containers
because this will affect the installation of pipe, detection lines and cabling, and remote pull controls.
The containers shall be located in a secure area and arranged so that they are readily accessible for
inspection, testing, recharging and other maintenance.
Containers shall be located as near as possible to the space they protect. They may be located within
the protected space, but must not be exposed to a fire in a manner that is likely to impair system
performance. If located within the protected space the manual/pneumatic actuator can be used to
provide a means of mechanically operating the system from outside the protected space. The chosen
location should provide protection from mechanical, chemical, electrical and other types of damage.
Suitable guards or enclosures should be provided when necessary, as required by an appropriate risk
analysis. The floor at the container location must be suitable for withstanding the loading exerted by
the containers.
The containers must not be exposed to the direct rays of the sun. When excessive temperature
variations are expected, suitable enclosures shall be provided.
The general ambient storage temperatures should not exceed the following:
(a) For total flooding systems:
not greater than 55ºC or less than -18ºC.
(b) For local application systems:
not greater than 46ºC or less than 0ºC.
» NOTE The minimum storage temperature for local application is higher than that allowed for
total flooding systems because the discharge area limit tests were carried out at a
minimum temperature of 0ºC and to operate at lower temperatures would cause the
figures in Table 5 to be incorrectly applied.
Issue 5 December 2004 Manual No 59812-40125
DISTRIBUTION VALVES
11 DISTRIBUTION VALVES
When the multiple hazards are located reasonably close together they can be protected with a single
bank of containers with the CO2 being directed to the hazard on fire by opening the appropriate
distribution valve on a distribution valve manifold.
When using this method it is important to consider the list below:
(a) The amount of CO2 is sufficient for the largest hazard.
(b) There is only one supply of agent so it must not be possible for fire to spread from one zone to
another.
(c) Any number of zones can be protected by a single bank of containers but Insurers’ rules
generally limit the number to 5.
(d) A reserve supply of CO2 should be considered.
Issue 5 December 2004 Manual No 59812-40126
AUTOMATIC OPERATION
12 AUTOMATIC OPERATION
Systems should preferably be operated automatically by a detection system which is appropriate to
the risk.
Where applicable, e.g. slow burning hazards, the requirements of BS5839 should be observed.
Issue 5 December 2004 Manual No 59812-40127
MANUAL CONTROL
13 MANUAL CONTROL
All systems must be fitted with a manual release facility.
Refer to Data Sheet 841-5027.
13.1 Manual Release
When mechanically operated pull-handles are used the following limitations apply:
Maximum length of cable =45 m
Maximum number of corner pulleys = 10
Maximum number of sets = 1
All mechanical functions must be tested upon completion of the installation to ensure proper
performance.
Issue 5 December 2004 Manual No 59812-40128
ALARMS
14 ALARMS
System condition indicators should be provided as appropriate to the surroundings.
(a) A total flooding systems should have indicators located outside the entrance doors to show:
CO2 Discharged - red lamp
Manual Control only - green lamp
Automatic and Manual Control - amber lamp
These indications may not always be necessary for a local application system.
(b) Additional alarms may be needed to be transmitted to remote locations including a Central
Station, and other system conditions may be required such as:
System Totally Disabled - amber lamp
Fire - red flashing lamp
System Operated - red steady lamp
Supply Healthy - green lamp
Warning labels are required to be located alongside manual release points, refer to Data Sheet
811-9225, and located on all entrance doors, refer to Data Sheet 811-9237.
Depending upon the size and complexity of the site or system, instructional wall charts may be
needed.
Operating and Maintenance manuals should always be provided.
Audible alarms should be provided as appropriate to the type of system and protected area, but at
least to the requirements of B5306 Part 4.
Where BS5839 is not a requirement, local alarms may be mains operated provided the supply can be
guaranteed.
Issue 5 December 2004 Manual No 59812-40129
ELECTROSTATIC DISCHARGE
15 ELECTROSTATIC DISCHARGE
WARNING
CO2 FIRE EXTINGUISHING SYSTEMS MUST NOT BE USED
FOR INERTING EXPLOSIVE ATMOSPHERES.
Issue 5 December 2004 Manual No 59812-40130
DETECTION
16 DETECTION
Automatic detection systems used with CO2 extinguishing systems should comply with appropriate
Codes of Practice, these include:
1. BS5839 - Fire Detection and Alarm Systems in Buildings.
2. BS6266 - Data Processing Installations.
3. FOC Rules.
4. This Manual.
» NOTE Attention is drawn to the considerably higher concentration of detectors required by
BS6266 when protecting computer suites.
This philosophy should not be extended into other areas of protection without prior consultation with
Kidde Fire Protection.
The following guidance is given for use when designing systems using pneumatic detection systems.
16.1 Pneumatic Detection - Heat Actuated Devices
16.1.1 General
Heat Actuated Devices (HADs) are heat detectors and the following general points must be
considered before using the devices.
(a) It is always necessary to determine that the minimum expected quantity of fuel is sufficient to
produce a significant rise in the ambient temperature.
(b) Heat detection should never be used where the fire can be of a smouldering, or primarily smoke
producing type.
(c) Height reduces the efficiency of heat detectors: it takes a larger floor level fire to actuate a
detector in a tall room, than a room with a height of only 3 m.
(d) Where the passage of smoke or hot gas from a position to a detector is disturbed by a ceiling
obstruction (such as a beam) having depth greater than 450mm, then the obstruction should be
treated as a wall for the purposes of detector location.
(e) Rate-of-rise systems are recommended only for Class B flammable liquid, or exceptionally fast
burning Class A types of hazards.
(f) Fixed temperature systems should be used where rapid changes in temperature are the norm,
such as forced hot air ovens, kitchens, boiler houses, lantern lights, etc. The operating
temperature of the detector should be about 30ºC above the maximum working temperature. Be
aware that capillary tubing can act as a rate-of-rise detector so routes outside the rapid change
area must be found.
(g) Detectors fitted in lantern lights should be protected from direct sunlight and fitted at least
50 mm below the glass.
Issue 5 December 2004 Manual No 59812-40131
DETECTION
16.1.2 Location of HADs on Smooth Flat Ceilings
(a) Distance between detectors and walls.
(i) HADs shall be spaced no more than 10 m apart.
(ii) Where ceilings are level, the distance between the wall and the nearest detector should not
exceed one half the distance allowed between detectors.
(iii) With sloped ceilings, (slope more than 1 in 10) and apexed ceilings, consult Kidde Fire
Protection.
(b) Height of detector above the hazard.
Where detectors are place more than 7 m above the hazard, consult Kidde Fire Protection for
guidance on the spacing of detectors.
(c) Number of detectors on one circuit:
(i) There shall be no more than six HADs on any one detection circuit or control head.
(ii) The maximum length of 1/8” (3mm) O.D. tube per detection circuit is 210 m.
Each HAD is equivalent to 30 m of 1/8” (3mm) O.D. tube:
1 HAD + 180 m tube
2 HAD + 150 m tube
3 HAD+ 120 m tube
4 HAD + 90 m tube
5 HAD + 60 m tube
6 HAD + 30 m tube
(d) Reducing the risk of accidental discharge:
(i) Care should be taken to prevent unwanted discharges as a result of normal ambient or
operating conditions. This includes most forced air sources such as exhaust systems, unit
heaters and air conditioning systems; as well as the opening of oven or furnace doors,
opening doors from the protected area or a heating system able to rapidly raise the
temperature of the hazard. Similarly consider the effect of locating detectors adjacent to
fresh air inlets that will dilute heat build up.
(ii) Where portions of a single hazard have different temperature characteristics, the HAD’s
in each section shall be installed on a separate cell of a check valve unit.
Issue 5 December 2004 Manual No 59812-40132
DETECTION
16.1.3 Fixed Temperature HAD
(a) Fixed temperature HAD’s employ a meltable alloy slug are available for a limited range, contact
Kidde Fire Protection.
Select an operating temperature that is at least 30ºC above the maximum expected
temperature.
Issue 5 December 2004 Manual No 59812-40133
SAFETY REQUIREMENTS
17 SAFETY REQUIREMENTS
Suitable safeguards are necessary to protect people in areas where the atmosphere may be made
hazardous by a carbon dioxide fire extinguishing system.
The principal risk is from suffocation. The effects of toxicity are usually not considered a life hazard.
17.1 Total Flooding Systems
Entry into a protected space may only be made when the system is on manual control and automatic
release has been prevented.
If a CO2 protected room is normally occupied by people a normally closed valve should be fitted into
the feed pipe so that a malicious or accidental release at the container bank is stopped from
discharging into the room. The valve should only open when demanded by the detectors or by a
manual release unit.
The condition of the valve should be automatically monitored and indicated. CO2 trapped in the feed
pipe should be indicated by means of a pressure switch and a locked closed valve fitted so that the
CO2 can be safely vented to atmosphere.
A time delay may be used, but only in addition to an isolation device, refer to Chapter 14 for alarm
signals.
17.2 Local Application Systems
An isolating device to prevent automatic release is not necessary, if it can be shown that following a
risk analysis a hazardous concentration cannot be created within the total volume of the room
containing the local application system. A time delay and pre-discharge alarm is acceptable to the
Health and Safety Executive in this circumstance.
A concentration in excess of 10% on the nett volume could be considered hazardous to some people.
Concentrations below 5% are harmless to the majority of people.
The facility provided on system actuators and control heads for totally disabling a system are not to be
used as a normal ‘entry to space isolating device’.
Issue 5 December 2004 Manual No 59812-40134
FACTORY MUTUAL RULES
18 FACTORY MUTUAL RULES
Kidde Fire Protection has official approval of its CO2 equipment by Factory Mutual (FM) Insurance.
These are generally similar to NFPA 12 rules, with some variations.
Issue B December 2004 Manual No 59812-400
High Pressure
Carbon Dioxide
Fire Protection Equipment
INSTALLATION,
COMMISSIONING &
MAINTENANCE MANUAL
© K.F.P.S. Ltd December 2004 Manual No 59812-400
ii
PROPRIETARY RIGHTS NOTICE
This document and the information that it contains are the property of Kidde Fire Protection. Rights to
duplicate or otherwise copy this document and rights to disclose the document and the information
that it contains to others and the right to use the information contained therein may be acquired only
by written permission signed by a duly authorised officer of Kidde Fire Protection.
© Copyright Kidde Fire Protection Services Ltd.
© K.F.P.S. Ltd December 2004 Manual No 59812-400
iii
TABLE OF CONTENTS
Chapter Page
FOREWORD.........................................................................................................1
1 GENERAL....................................................................................................2
1.1 SAFETY PRECAUTIONS ....................................................................2
1.2 PRELIMINARY CHECKS.....................................................................3
PART 1 INSTALLATION......................................................................................4
2 CO2 CYLINDERS AND RACKING...............................................................4
2.1 CO2 CYLINDERS .................................................................................4
2.1.1 Klem Cylinder Valves K23521 and K24509.............................5
2.2 INSTALLATION....................................................................................6
2.2.1 Single Cylinder ........................................................................6
2.2.2 Single Row Cylinders ..............................................................7
2.2.3 Double Row Cylinders.............................................................8
3. CO2 MANIFOLD PIPE ................................................................................10
3.1 MANIFOLD BRACKETS, SINGLE ROW ...........................................11
3.2 MANIFOLD BRACKETS, DOUBLE ROW..........................................11
4. DISTRIBUTION PIPING.............................................................................12
4.1. PIPING...............................................................................................12
4.2 ELECTRICAL CLEARANCES............................................................15
4.3 INSTALLATION..................................................................................16
5. PRESSURE OPERATED DIRECTION VALVES.......................................17
5.1 ¾ TO 2 INCH POD VALVES..............................................................18
5.1.1 Pressure Operation ...............................................................19
5.1.2 Manual Operation..................................................................19
5.1.3 Valve Open Indication ...........................................................19
5.2 3 AND 4 INCH POD VALVES ............................................................20
5.2.1 Pressure Operation ...............................................................21
5.2.2 Manual operation...................................................................21
5.2.3 Valve Open Indication ...........................................................21
5.3 3 AND 4 INCH COMPANION FLANGE, BOLTS AND GASKET........22
5.4 SAFETY OUTLETS K 921 AND K22968 ..........................................23
5.5 INSTALLATION..................................................................................26
© K.F.P.S. Ltd December 2004 Manual No 59812-400
iv
6. DISCHARGE LOOPS K21578 AND K97112.............................................27
6.2. RIGID DISCHARGE LOOP K21578...................................................27
6.2 FLEXIBLE DISCHARGE LOOP K97112............................................28
6.3 INSTALLATION..................................................................................29
7. SYSTEM ACTUATOR ASSEMBLY...........................................................30
7.1 NITROGEN PILOT GAS CYLINDER AND VALVE ............................31
7.2 OPTIONAL PRESSURE MONITORING SWITCH.............................32
7.3 CONTROL HEAD K62303 .................................................................33
7.4 CONTROL HEAD WITH SWITCHES K62304 ...................................34
7.5 CONTROL HEAD MOUNTING BRACKET K62487...........................35
7.6 SAFETY AND RESET PIN K62401 ...................................................36
Retain reset pin in safe location for future use. ..................................36
7.7 INSTALLATION..................................................................................37
8. CONTROL HEAD ACTUATING DEVICES................................................39
8.1 MANUAL PUSH-TO-FIRE BUTTON K62412.....................................40
8.2 SOLENOID ACTUATORS K62422B AND K93206/AX ......................41
8.3 FLAMEPROOF 24V D.C SOLENOID K93206/AX .............................42
8.4 INSTALLATION..................................................................................43
8.4.1 Standard Solenoid.................................................................43
8.4.2 Flameproof Solenoid .............................................................44
8.4.3 Control Head and Solenoid Wiring ........................................45
8.4.4 Special Instructions to comply with 94/9/EC (ATEX) .............46
8.5 PNEUMATIC DIAPHRAGM ACTUATOR K62459 .............................47
8.6 PNEUMATIC BREATHER VENTS K62895 .......................................48
8.7 INSTALLATION..................................................................................49
8.8 CABLE RELEASE ASSEMBLY K62478 ............................................49
8.8.1 Installation.................................................................................50
8.9 PULL BOX K 1114 .............................................................................52
8.9.1 Corner Pulley K 1122 ................................................................53
8.9.2 Installation .............................................................................53
9. CYLINDER VALVE PRESSURE/LEVER ACTUATOR K62341 ................55
9.1 INSTALLATION..................................................................................56
10. PILOT GAS FLEXIBLE LOOPS K93433 and K93434 ..............................57
10.1 PILOT GAS VENT K24051 ................................................................57
10.2 PILOT GAS RIGID TUBING AND FITTINGS.....................................59
10.3 INSTALLATION..................................................................................61
11. TIME DELAY UNIT K23650.......................................................................62
© K.F.P.S. Ltd December 2004 Manual No 59812-400
v
11.1 INSTALLATION..................................................................................63
11.2 TESTING............................................................................................63
11.3 TIME DELAY BY-PASS VALVE K60736 ...........................................67
12. CO2 OPERATED PRESSURE SWITCH K60218.......................................69
12.1 INSTALLATION..................................................................................71
13. CO2 OPERATED PRESSURE TRIP K17554.............................................72
13.1 INSTALLATION..................................................................................73
14. CO2 DISCHARGE NOZZLES.....................................................................74
14.1 MULTIJET NOZZLE K61792 AND K61793........................................74
14.2 FLANGED MULTIJET NOZZLE K5814..............................................75
14.3 FLANGED NOZZLE DUCT ADAPTORS K61420A-D........................76
14.4 DUCT NOZZLE K13045.....................................................................77
14.5 FAN TYPE NOZZLE K6490 ...............................................................78
15. PNEUMATIC DETECTION - HEAT ACTUATED DEVICES ......................79
15.1 PNEUMATIC RATE OF RISE DETECTOR K18724 ..........................79
15.2 PNEUMATIC FIXED TEMPERATURE DETECTOR K18689.............80
15.3 PNEUMATIC CHECK UNIT K24412..................................................81
15.4 PNEUMATIC LOCK-OFF UNIT K24300 ............................................82
15.5 BELLOWS AND MICROSWITCH ASSY K20057 ..............................83
15.6 PNEUMATIC CAPILLARY TUBE, CONDUIT AND FITTINGS...........84
15.7 CO2 OPERATED SIREN K18307.......................................................85
16. ODORISER ASSEMBLY K62586..............................................................86
17. CO2 WARNING LABELS ...........................................................................87
PART 2 COMMISSIONING ................................................................................89
18. COMMISSIONING......................................................................................89
18.1 VISUAL CHECKS ..............................................................................89
18.2 MECHANICAL FUNCTION ................................................................90
18.2.1 General..................................................................................90
18.2.2 Manual Push-to Fire ..............................................................90
18.2.3 Pull Box .................................................................................90
18.2.4 Pneumatic System.................................................................91
18.2.5 Pressure/Lever Actuator and POD Valves ............................96
18.2.6 Pressure Trip.........................................................................96
18.2.7 Pressure Switch.....................................................................97
PART 3 MAINTENANCE....................................................................................98
19. MAINTENANCE.........................................................................................98
19.1 PRELIMINARY CHECKS...................................................................98
© K.F.P.S. Ltd December 2004 Manual No 59812-400
vi
19.2 COMPONENT FUNCTION TESTS....................................................99
19.2.1 General..................................................................................99
19.2.2 Control Head .........................................................................99
19.2.3 Pressure/Manual Release Heads and POD Valves.............100
19.2.4 Pressure Trip.......................................................................101
19.2.5 Pressure Switch...................................................................102
19.3 INSTRUCTIONS FOR COMMISSIONING THE SYSTEM AFTER ITS
OPERATION....................................................................................102
PART 4 TERMS AND CONDITIONS................................................................103
20. TERMS AND CONDITIONS.....................................................................103
© K.F.P.S. Ltd December 2004 Manual No 59812-400
vii
LIST OF ILLUSTRATIONS
Figure Page
Figure 1 CO2 Cylinder ................................................................................................4
Figure 2 Klem Cylinder Valves ...................................................................................5
Figure 3 Single Cylinder Racking ...............................................................................6
Figure 4 Single Row Cylinders ...................................................................................7
Figure 5 Additional Centre Racks for Two Rows of Cylinders ....................................9
Figure 6 CO2 Manifold Pipes ....................................................................................10
Figure 7 Manifold Brackets, Single Row...................................................................11
Figure 8 Manifold Brackets, Double Row .................................................................11
Figure 9 POD Valve System.....................................................................................17
Figure 10 ¾ to 2 inch POD Valves ...........................................................................18
Figure 11 Indicator Switch........................................................................................19
Figure 12 3 & 4 inch POD Valves.............................................................................20
Figure 13. 3 and 4 inch Companion Flange, Bolts and Gasket ................................22
Figure 14 Safety Outlets ..........................................................................................23
Figure 15 All CO2 Cylinders discharging to either space ..........................................24
Figure 16 Two Spaces Requiring differing CO2 cylinders .........................................25
Figure 17 Rigid Discharge Loop...............................................................................27
Figure 18 Flexible Discharge Loops.........................................................................28
Figure 19 System Actuator Assembly ......................................................................30
Figure 20 Nitrogen Pilot Gas Cylinder and Valves ...................................................31
Figure 21 Pressure Monitoring Switch......................................................................32
Figure 22 Control Head ............................................................................................33
Figure 23 Control Head with Switches .....................................................................34
Figure 24 Standard Mounting Bracket......................................................................35
Figure 25 Safety and Reset Pin................................................................................36
Figure 26 Control Head Mounting Bracket ...............................................................38
Figure 27 Control Head Actuating Devices...............................................................39
Figure 28 Manual Push-to-Fire Button .....................................................................40
Figure 29 Standard 24V d.c Solenoid.......................................................................41
Figure 30 Flameproof ATEX approved 24V d.c. Solenoid........................................42
Figure 31 Control Head and Solenoid Wiring ...........................................................45
Figure 32 Pneumatic Diaphragm Actuator ...............................................................47
Figure 33 Pneumatic Breather Vents .......................................................................48
Figure 34 Cable Release Assy.................................................................................49
© K.F.P.S. Ltd December 2004 Manual No 59812-400
viii
Figure 35 Cable Pull Ring Connection .....................................................................50
Figure 36 Curvature of Cable ...................................................................................51
Figure 37 Cable Release Assembly, Cover Removed .............................................51
Figure 38 Pull Box....................................................................................................52
Figure 39 Corner Pulley ...........................................................................................53
Figure 40 Cylinder Valve Pressure/Lever Actuator...................................................55
Figure 41 Pilot Gas Flexible Loops...........................................................................57
Figure 42 Pilot Gas Vent ..........................................................................................58
Figure 43 Pilot Gas Rigid Tubing and Fittings ..........................................................59
Figure 44 Single Cylinder Row Pilot Gas Operation.................................................61
Figure 45 Double Cylinder Row Pilot Gas Operation ...............................................61
Figure 46 Time Delay Unit........................................................................................62
Figure 47 Single Protected Space System...............................................................64
Figure 48 Two Protected Spaces System ................................................................65
Figure 49 Two Protected Spaces Requiring Different CO2 Quantities......................66
Figure 50 Time Delay By-Pass Valve.......................................................................67
Figure 51 Installation ................................................................................................68
Figure 52 CO2 Operated Pressure Switch ................................................................69
Figure 53 Pressure Trip............................................................................................72
Figure 54 Installation ................................................................................................73
Figure 55 Multijet Nozzle..........................................................................................74
Figure 56 Flanged Multijet Nozzle............................................................................75
Figure 57 Flanged Nozzle Duct Adaptor ..................................................................76
Figure 58 Duct Nozzle..............................................................................................77
Figure 59 Fan Type Nozzle ......................................................................................78
Figure 60 Pneumatic Rate of Rise Detector .............................................................79
Figure 61 Pneumatic Fixed Temperature Detector...................................................80
Figure 62 Pneumatic Check Unit..............................................................................81
Figure 63 Pneumatic Lock-Off Unit ..........................................................................82
Figure 64 Bellows and Microswitch Assembly..........................................................83
Figure 65 Pneumatic Capillary Tube, Conduit and Fittings ......................................84
Figure 66 CO2 Operated Siren..................................................................................85
Figure 67 Odoriser Assembly...................................................................................86
Figure 68 Odoriser Check Valve ..............................................................................86
Figure 69 Entrance Door Warning Label ..................................................................87
Figure 70 Manual Control Point Label......................................................................88
Figure 71 Manometer Test System ..........................................................................91
© K.F.P.S. Ltd December 2004 Manual No 59812-400
ix
LIST OF TABLES
Table Page
Table 1 CO2 Cylinder Specification............................................................................4
Table 2 Closed and open ended pipework section – High pressure systems..........12
Table 3a Open Ended Pipework................................................................................13
Table 3b Closed Section Pipework……………………………………………………… 13
Table 4 Pipe Support Spacing.................................................................................14
Table 5 Safety Clearances for Pipework .................................................................15
© K.F.P.S. Ltd November 2004 Manual No 59812-400
1
FOREWORD
Kidde Fire Protection recognises its responsibility to ensure that the products it manufactures are, as far
as is reasonably practical, without risk to the health and safety of the users. The following information
should be disseminated to all persons using such products.
The information is furnished in good faith based upon technical data and tests, which are believed to be
reliable. Products undergo rigorous quality control checks during manufacture to ensure that they
present no hazards in the use and application for which they are intended.
Technical data and literature which may assist customers in the discharge of their general duties are
available on request. Should you require further information on this context please contact our sales
office.
Nothing contained in this publication shall form part of any contract made between a customer and
Kidde Fire Protection.
It is of vital importance that the CO2 equipment should be correctly installed. The Installation Engineer
should become fully conversant with the contract files and all installation drawings before going to site.
© K.F.P.S. Ltd December 2004 Manual No 59812-400
2
1 GENERAL
1.1 Safety Precautions
Characteristics of Carbon Dioxide
Carbon Dioxide (CO2) at atmospheric pressure is a colourless, odourless and electrically non-conducting
inert gas which is almost 1.5 times as dense as air.
CO2 extinguishes fire by reducing the oxygen content of the atmosphere to a point where it will not support
combustion. Reducing the oxygen content from the normal 21% in air to 15% will extinguish most surface
fires, though for some materials a greater reduction is necessary. In some applications the cooling effect of
CO2 may assist extinction.
Hazards to personnel
Exposure to atmospheres containing about 5% CO2 leads to shortness of breath and slight headache. At
the 10% level, headache, visual disturbance, ringing in the ears (tinnitus) and tremor are followed by loss of
consciousness.
Fire extinguishing concentrations of CO2, which are normally in excess of 30%, especially near to the point
of discharge from total flooding or local application systems, carry a risk of almost immediate asphyxiation.
The gas is also more dense than air and will drift and accumulate in low spaces, such as cellars, pits and
floor voids, which may be difficult to ventilate effectively.
The rapid expansion of large quantities of CO2 results in a substantial localised cooling of the installation
and of the air surrounding the point of discharge. This can present a frostburn hazard.
Handling and storage of CO2 cylinders
Observe the following precautions to prevent accidental discharge of CO2:
On despatch, all cylinder and valve assemblies are fitted with transport caps which must not be removed
until after the cylinders have been securely restrained, store the transport caps for future use.
Never use the cylinder valve to turn or move the cylinder, this could cause damage or leakage: use a
transport trolley.
Never store cylinders in direct sunlight or in location where the cylinder temperature is likely to exceed
55°C.
© K.F.P.S. Ltd December 2004 Manual No 59812-400
3
Never depress the cylinder valve actuating pin as this action will open the valve and discharge its contents
causing the cylinder, unless securely restrained, to act as a projectile.
Never fit any release device to a cylinder valve until it has been secured in the cylinder rack and connected
to the discharge pipework.
Re-entry into a flooded area
Never enter an area after a CO2 discharge until it has been thoroughly ventilated to external atmosphere.
If it is necessary to enter an area containing CO2 always use self-contained Breathing Apparatus, never use
a filter or canister type mask. As an added precaution the person entering should be tethered by a manned
lifeline.
Dismantling and modifications
It is recommended that Kidde Fire Protection be notified of any intention to alter or extend the system or
areas protected in order that advice be given of any effect that this may have on the original design.
1.2 Preliminary checks
Check that all equipment has been delivered, any damaged equipment must be replace.
Check that the area(s) to be protected agree with the installation drawings.
Check the CO2 cylinder location for ease of access during maintenance; also safety. Check that the
ambient temperature of the cylinder location complies with the following limitations: -
Total flooding systems: -18 to 55°C.
Local Application flooding Systems: Minimum 0°C Maximum 46°C.
© K.F.P.S. Ltd December 2004 Manual No 59812-400
4
PART 1 INSTALLATION
2 CO2 CYLINDERS AND RACKING
2.1 CO2 Cylinders
CO2 is stored in solid drawn steel cylinders containing gas in liquid form equal to two thirds of its water
capacity. The pressure within the cylinder varies with changes in ambient temperature, increasing with
rising temperature. At 21°C the pressure is 58.6 bar.
The cylinder assembly comprises a cylinder, cylinder valve and rigid syphon tube which must ALWAYS be
installed in an upright position.
Figure 1 CO2 Cylinder
Table 1 CO2 Cylinder Specification
Part No Water
Capacity
(Litres)
Fill Weight
(kg)
Total Weight
(kg)
Dimension (mm)
‘A’ ‘B’
E7194-001 67.5 45 120 Approx 267 1515
K24069/FM 67.5 45 120 Approx 267 1531
K24338 34.0 22.6 81 Approx 229 1102
NOTE: All dimensions ‘B’ are ±10mm
Cylinder Specification: 1999/36/EC (TPED)
Material: Steel
Test Pressure: 250 bar
Fill Ratio: 0.661kg/litre
Standard Point Finish: Red
© K.F.P.S. Ltd December 2004 Manual No 59812-400
5
2.1.1 Klem Cylinder Valves K23521 and K24509
The “Klem” cylinder valve is a compact, horizontal servo-assisted valve which can be operated by either
pressure or use of its integral manual lever.
The valve is opened by depressing the actuator rod by applying a force of between 23 and 27kg.
WARNING
The valve will close immediately the force is removed from the actuator rod.
Each cylinder valve incorporates a safety disc designed to rupture and discharge the CO2 cylinder contents
when the ambient temperature reaches approximately 60°C (140°F).
Materials
Body: Brass
Seals: Silicone Rubber Shore 70° -
90°
Actuator Rod: St. Steel
Safety Burst Disc: Ruptures at 179 to 196 bar
Figure 2 Klem Cylinder Valves
© K.F.P.S. Ltd December 2004 Manual No 59812-400
6
2.2 INSTALLATION
2.2.1 Single Cylinder
Storage containers should be located as near as possible to the hazard they protect, but should not be
exposed to the fire in a manner that is likely to impair performance. They should not be exposed to
weather conditions or put in a location where they can be subjected to chemical or other damage. Suitable
guards or enclosures should be provided when necessary.
1. Offer strap up to a suitable structure or wall and mark the hole centres for drilling at an elevation from
ground level, see in Figure 3.
2. Drill appropriate fixing holes.
3. Place and clamp the container in position.
Part No Cyl Size Dim A Fixing
Holes
Materials Weight
(kg)
K16896 6.8 175 9.5mm
Ø
1.0
K4881 22.6 292 10.5mm
Ø
Mild Steel 25mm x 3mm
1.2
K62943 45.0 320 12.7mm
Ø
Nylon Dipped Black 1.5
Figure 3 Single Cylinder Racking
© K.F.P.S. Ltd December 2004 Manual No 59812-400
7
2.2.2 Single Row Cylinders
Storage containers should be located as near as possible to the hazard they protect, but should not be
exposed to the fire in a manner that is likely to impair performance. They should not be exposed to
weather conditions or put in a location where they can be subjected to chemical or other damage. Suitable
guards or enclosures should be provided when necessary.
1. Offer the cylinder back rack up to a suitable structure or wall and mark the hole centres for drilling at
an elevation from the ground as shown in Figure 3. Check that the back rack is correctly offset in
relation to the manifold inlet. See Figure 4.
2. Drill appropriate fixing holes.
3. Fix the back rack to the suitable structure or wall using the bolts.
4. Place the cylinders in position against the cut-outs in the back rack.
5. Hook the rack bolts through the 17.5mm diameter hole(s) in the back rack.
6. Locate the straight end of the rack bolts through the 17.5mm diameter holes in the front strap and
clamp the containers firmly in place using the nuts and washers supplied with the rack bolts.
Part No Material Finish Weight
(kg)
2 Cylinder K17238 MS Angle Paint Black 1.8Steel Back
Racks 3 Cylinder K17235 MS Angle Paint Black 2.7
2 Cylinder K13744 MS Strap 2.7Steel Front
Straps 3 Cylinder K13745 MS Strap
Nylon Dipped
Black 4.5
Single Row Rack Bolt
Assembly
K62752 MS Rod Paint Black 0.4
Figure 4 Single Row Cylinders
© K.F.P.S. Ltd December 2004 Manual No 59812-400
8
2.2.3 Double Row Cylinders
Storage containers should be located as near as possible to the hazard they protect, but should not be
exposed to the fire in a manner that is likely to impair performance. They should not be exposed to
weather conditions or put in a location where they can be subjected to chemical or other damage. Suitable
guards or enclosures should be provided when necessary.
1. Offer the cylinder back rack up to the wall and mark the hole centres for drilling at an elevation from
the ground as shown in Figure 5. Check that the back rack is correctly offset in relation to the
manifold inlet. See Figure 5.
2. Drill appropriate fixing holes.
3. Fix the back rack a suitable structure or wall using the bolts.
4. Place the cylinders in position against the cut-outs in the back rack.
5. Slide the rack bolt through the wood centre rack and hook onto the back rack.
6. Place the front row of cylinders into position.
7. Place the front straps in position and clamp the cylinders firmly in position using the nuts and
washers supplied.
© K.F.P.S. Ltd December 2004 Manual No 59812-400
9
45kg Cylinders
Part No Weight (kg)
2 Cylinder K24334 1.4Cylinder Centre
Racks 3 Cylinder K24335 2.0
Two Row Rack Bolt K62753 1.1
Two Rack Special Rack Bolt K17327 0.7
22.6kg Cylinders
Part No Weight (kg)
2 Cylinder K22654 1.1Cylinder Centre
Racks 3 Cylinder K22655 1.8
Two Row Rack Bolt K17245 1.0
Two Rack Special Rack Bolt K17327 0.7
Figure 5 Additional Centre Racks for Two Rows of Cylinders
© K.F.P.S. Ltd December 2004 Manual No 59812-400
10
3. CO2 MANIFOLD PIPE
On multiple cylinder systems manifold pipes are supplied as a complete assembly including factory
installed check valves.
1” (25mm) NB Manifold 1¼” (32mm) NB Manifold
Assembly
Part No.
Number of
Cylinders
Weight
(kg)
Assembly
Part No.
Number of
Cylinders
Weight
(kg)
K21207 2 2.7 K21215 2 3
K21209 3 3.9 K21217 3 4.5
K21211 4 5.0 K21219 4 5.9
K21213 5 6.3 K21221 5 7.3
Figure 6 CO2 Manifold Pipes
© K.F.P.S. Ltd December 2004 Manual No 59812-400
11
3.1 MANIFOLD BRACKETS, SINGLE ROW
Dimension (mm)Part No Pipe Size
A B
Material - Finish Weight (kg)
K24267D 1” Mild Steel
K24267E 1¼”
101.6 174.5
Painted Black
2.0
Figure 7 Manifold Brackets, Single Row
3.2 MANIFOLD BRACKETS, DOUBLE ROW
Dimension (mm)Part No Pipe Size
A B
Material - Finish Weight (kg)
K24268D 1” Mild Steel
K24268E 1¼”
101.6 479.4
Painted Black
2.5
NOTE: Pipe Clips and Pipe Clip Bolts are supplied with the Brackets.
Figure 8 Manifold Brackets, Double Row
© K.F.P.S. Ltd December 2004 Manual No 59812-400
12
4. DISTRIBUTION PIPING
All the pipework sizes shown in the schematic of the installation have been determined using a computer
programme. It is IMPORTANT that these sizes are used to ensure the correct flow of CO2 within the stated
discharge time.
4.1. PIPING
1. The pipe and fittings materials must conform with the-requirements of BS 5306 Part 4 as shown in
the following tables.
Table 2 Closed and open ended pipework section – High pressure systems
Closed section of pipework
Nominal pipe size Type of fitting Grade or Material Conforms to
WPA or WPB BS 3799:1974Forged steel, screwed,
3000 lb ASTM A105N ANSI B16.11:1996
Up to and including 40mm
Wrought steel, butt
welded
WPA or WPB BS 1640-3:1968
WPA or WPB BS 3799:1974Above 40mm up to 50mm Forged steel, socket
welded, 3,000 lb ASTM A105N ANSI B16.11:1996
Open section of pipework
Nominal pipe size Type of fitting Grade or Material Conforms to
Up to and including 20mm Screwed fittings Malleable iron BS EN
10242:1995a
Screwed fittings Wrought steel BS EN 10241:2000Up to and including 40mm
Wrought steel, butt
welded
WPA or WPB BS 1640-3:1968
WPA or WPB BS 3799:1974Forged steel, screwed,
3000 lb ASTM A105N ANSI B16.11:1996
WPA or WPB BS 3799:1974
All sizes up to 150mm
Forged steel, socket
welded, 3,000 lb ASTM A105N ANSI B16.11:1996
a
Fittings conforming to BS EN 10242 may be used on open section pipework greater than 20 mm provided that they are
suitable certified by the manufacturer for the anticipated pressure
© K.F.P.S. Ltd December 2004 Manual No 59812-400
13
Table 3a Open Ended Pipework
BS1387 BW - Heavy
BS 3601 S 430
BS 3601 ERW 430
BS 3601 BW 320 or 430
BS 3602-1 HFS or CFS 360 or 430
API 5L S or ERW B
Up to & incl 40mm
ASTM A106-77 HF or CD A or B
Schedule 40
BS 3601 S 430
BS 3601 ERW 430
BS 3602-1 HFS or CFS 360 or 430
ASTM A106-77 HF or CD A or B
Over 40mm up to & incl
50mm
API 5L S or ERW B
Schedule 80
* Abbreviations
HF Hot Finished CFS Cold Finished Seamless
CD Cold Drawn HFS Hot Finished Seamless
S Seamless
ERW Electric Resistance Welded & Induction Welded
Flange bolts, studs, nuts and washers
Bolts and studs shall conform to BS EN 1515-1. Nuts shall conform to BS EN 1515-1. Washers shall
conform to BS 3410 or BS 4320
NOTE: Plain washers should be fitted under bolt head and nut. A minimum of two threads should project above the nut when fully
tightened
Gasket for flanged joints
Flanges joints shall be fitted with a gasket
COMMENTARY AND RECOMMENDATIONS ON 19.4: The recommendation of the gasket manufacturer should be followed in
selecting the grade, specification and thickness to be used.
Table 3b Closed Section Pipework
High pressure carbon dioxide systems
Nominal pipe size Conforms to Type of Pipe a
Grade of steel Minimum wall thickness b
BS 3601 S 430
BS 3602-1 HFS or CFS 430
ASTM A106-77 HF or CD B
Up to and including
40mm
API 5L S or ERW B
Schedule 40 (schedule
80 for joints)
BS 3602-1 HFS or CFS 430
ASTM A106-77 HF or CD B
50mm and above
API 5L S or ERW B
Schedule 80
a
For abbreviations see footnote to Table 3 on previous page
b
Schedule numbers determine the minimum wall thickness in accordance with BS 1600. Where the specified pipe is not
obtainable in these dimensions, the next largest thickness should be used.
© K.F.P.S. Ltd December 2004 Manual No 59812-400
14
NOTE: Crosses must not be used.
2. All pipe and fittings shall be galvanised inside and out.
3. Screwed threads shall comply with the dimensions specified in BS21.
4. Use PTFE pipe tape on all pipe screw threads (or other approved thread sealant).
5. The pipework MUST BE FIRMLY SUPPORTED because, in the event of a fire, the discharge will
impose a force on the pipework. If the piping became dislodged, considerable damage could be
caused and the extinguishing system may not function correctly. Allowance must be made for
expansion and contraction of the pipework. See Table 4 for the minimum recommended pipe support
spacing.
Table 4 Pipe Support Spacing
Pipe Size (mm) 15 20 25 32 40 50 80 100 150
Max Spacing (m) 1.5 1.8 2.1 2.4 2.7 3.4 3.7 4.3 5.2
© K.F.P.S. Ltd December 2004 Manual No 59812-400
15
4.2 ELECTRICAL CLEARANCES
Where exposed electrical conductors are present, clearance no smaller than those given in Table 5 shall
be provided where practicable, between the electrical conductors and all parts of the CO2 system that may
be approached during maintenance, where these clearance distances cannot be achieved, warning notices
shall be provided and a safe system of maintenance work shall be adopted.
Minimum clearance from any point on or about the permanent equipment where a man may be required to
stand (measured from position of the feet)
Table 5 Safety Clearances for Pipework
To the nearest
unscreened live
conductor in air
(‘section clearance’)
Metres 2.59 2.59 2.74 2.74 2.89 3.05 3.20 3.35 3.50 3.81 4.27 4.57
To the nearest part
not at earth potential
of an insulator
supporting a live
conductor ('ground
clearance')
Metres 2.44
Max rated Voltage
(XY) 11 15 22 33 44 66 88 110 132 165 220 275
The term insulator includes all forms of insulating supports, such as pedestal and suspension insulators,
bushings, cable sealing ends and the insulating supports of certain types of circuit breaker etc.
IMPORTANT: See qualifying notes of clause 34 and definitions 30 and 31 of BS 7354: 1990 from
which this table is taken.
© K.F.P.S. Ltd December 2004 Manual No 59812-400
16
4.3 INSTALLATION
Piping is normally supplied to site in random lengths. Installation of this pipework must be carried out in
accordance with the site fabrication drawings.
Table 5 shows recommended clearances to enable operation, maintenance and repair work to be carried
out safely.
NOTE: All dirt, swarf and cutting oil must be removed from each section of pipe before
installation. CO2 pressure will remove any debris and may deposit it on valuable
equipment.
Before installation of any pipework check the following:
(a) That all screw threads are clean and free of any damage.
(b) That all flange faces are clean and free of any damage.
(c) That pipe bores are clean and unobstructed.
(d) The route of the piping. Make sure that it is possible to fix the piping securely on the wall and in the
ceiling and floor voids.
(e) That none of the pipe fittings have been used before because of the risk of distortion.
NOTE: Use PTFE pipe tape on all pipe screw threads. (Or other approved thread sealant).
To install the pipework, carry out the following procedure:
(a) Mark the positions of the supports and hangers.
(b) Drill the wall or ceiling and install the required quantity of rawbolts or anchor bolts to suit the type of
support being used.
(C) Install a pipe hangar or clip adjacent to each nozzle in order to prevent movement of the nozzles
during discharge.
(d) All CO2 pipework should be painted signal red to BS 381C ref 537 (equivalent to BS 4800 Ref
04E53)
(e) All exposed metalwork in CO2 systems shall be efficiently earthed to prevent the metal work
becoming electrically charged.
© K.F.P.S. Ltd December 2004 Manual No 59812-400
17
5. PRESSURE OPERATED DIRECTION VALVES
When two or more areas are to be protected using a central bank of CO2 cylinders, a Pressure Operated
Direction (POD) valve is installed in each of the CO2 main feed pipes leading to the designated areas, see
Figure 9.
Figure 9 POD Valve System
© K.F.P.S. Ltd December 2004 Manual No 59812-400
18
5.1 ¾ to 2 INCH POD VALVES
Part
Number
Size
(inch)
With
Switch
Dimension mm
A
Dimension mm
B
Weight
(kg)
K24004 ¾ NO 171 117 3.4
K24628 ¾ YES 216 117 3.5
K24005 1 NO 171 100 3.2
K24629 1 YES 216 100 3.3
K24175 1¼ NO 210 156 5.7
K24630 1¼ YES 255 156 5.8
K24176 1½ NO 210 137 5.4
K24631 1½ YES 255 137 5.5
K24177 2 NO 295 191 17.0
K24632 2 YES 340 191 17.1
Figure 10 ¾ to 2 inch POD Valves
© K.F.P.S. Ltd December 2004 Manual No 59812-400
19
5.1.1 Pressure Operation
Application of Nitrogen pilot gas to the pilot gas inlet port depresses the valve piston. When the valve piston
is at the bottom of its stroke a pilot gas outlet port is uncovered thus allowing the pilot gas to be conveyed,
by the pilot gas line, to the CO2 cylinder pressure release heads.
NOTE: The valve remains open until the pilot gas pressure is vented from the pilot gas line.
5.1.2 Manual Operation
Remove the safety pin and operate lever fully.
NOTE: The valve can be opened while subjected to CO2 pressure.
5.1.3 Valve Open Indication
The indicator switch provides means for operating audible/visual alarms to give warning of a partial or fully
open valve.
Figure 11 Indicator Switch
© K.F.P.S. Ltd December 2004 Manual No 59812-400
20
5.2 3 and 4 INCH POD VALVES
Dimension (mm)Part
Number
Size
inch
With
Switch A B C
Flange
Fixing Holes
Weight
(kg)
K24775 3” YES 330 292 203
8-EQUI spaced
21mm Dia On
165mm PCD
43.3
K24777 4” YES 406 340 241
8-EQUI spaced
25 mm Dia On
197mm PCD
69.5
Figure 12 3 & 4 inch POD Valves
© K.F.P.S. Ltd December 2004 Manual No 59812-400
21
5.2.1 Pressure Operation
Application of Nitrogen pilot gas to the pilot gas inlet port lifts the valve piston. When the valve piston is at
the top of its inlet stroke an outlet port is uncovered thus allowing the pilot gas to be conveyed, by the pilot
gas line, to the CO2 cylinder pressure release heads.
NOTE: The valve remains open until the pilot line is depressurised.
5.2.2 Manual operation
Turn the hand wheel fully anti-clockwise to open the valve.
NOTE: The valve can be opened while subjected to CO2 pressure.
5.2.3 Valve Open Indication
The indicator switch provides means for operating audible/visual alarms to give warning of a partial of fully
open valve, see Figure 11.
© K.F.P.S. Ltd December 2004 Manual No 59812-400
22
5.3 3 and 4 INCH COMPANION FLANGE, BOLTS AND GASKET
Dimension (mm)Part
Number
Size
inch A B C
Bolt Part
Number
Weight
K60103 3 203 165 32 K60101 7 kg
K60104 4 241 197 35 K60102 8.5 kg
NOTE: Use Gasket K60105 (3”) or K60106 (4”)
Figure 13. 3 and 4 inch Companion Flange, Bolts and Gasket
© K.F.P.S. Ltd December 2004 Manual No 59812-400
23
5.4 SAFETY OUTLETS K 921 and K22968
On systems employing normally closed directional/stop valves there is a possibility of CO2 entrapment in
pipework between the CO2 cylinders and the valves therefore a safety outlet must always be fitted. The
indicator sleeve is “blown-off” when the disc ruptures giving a visual indication of operation.
WARNING
THESE DEVICES SHOULD BE FITTED SO THAT THE DISCHARGE IN THE EVENT OF OPERATION
WILL NOT INJURE OR ENDANGER PERSONNEL, IF NECESSARY THE DISCHARGE SHOULD BE
PIPED TO AN AREA WHERE IT WILL NOT BECOME A HAZARD TO PERSONNEL (AS PER THE
REQUIREMENTS OF BS 5306 part 4).
K 921 K22968
Figure 14 Safety Outlets
K 921 Specification: K22968 Specification:
Burst/Opening Pressure: 150 bar ± 5% 126 bar
Material: Brass Brass
Finish: Natural Natural
Weight: 0.35 kg 0.8 kg
Figures 15 and 16 show the Nitrogen pilot gas installation requirements for opening the pressure operated
direction valve prior to operation of the CO2 cylinders.
© K.F.P.S. Ltd December 2004 Manual No 59812-400
24
Figure 15 All CO2 Cylinders discharging to either space
© K.F.P.S. Ltd December 2004 Manual No 59812-400
25
Figure 16 Two Spaces Requiring differing CO2 cylinders
© K.F.P.S. Ltd December 2004 Manual No 59812-400
26
5.5 INSTALLATION
Before installation of POD valves check the following:
1. All screw threads are clean and free of any damage.
2. If using a flanged valve check that all flanges are clean and free of damage.
3. That all flange bolt holes on the valve align with the flange bolt holes on feed pipe.
4. With the Safety Lock pin removed check that the indicator switch clicks into operation.
After the checks have been carried out satisfactorily install the POD valve as follows:-
1. Install the POD valve in the main feed line at a position where access for manual operation of
maintenance/service is unhindered by other obstacles. Where possible install the POD valve at a
height of approximately (1.5 meters) 5’- 0” (maximum). Make sure that the arrow shown on the valve
body to indicate the direction of flow faces away from the CO2 manifold.
2. Connect a nipple and socket union to the outlet side of the POD valve for ease of installation to the
main CO2 feed line.
3. Use PTFE pipe tape on all screwed pipe fittings.
4. To prevent accidental discharge of fire fighting systems during installation work check the following
before connecting the pilot gas lines:
(i) That the Safety and Reset pin is screwed fully home in the control head.
(ii) That all safety pins are fully inserted in the cylinder release heads, and POD valves.
5. Using 3/16” bundy tubing and fittings, see Figure 44, connect the Nitrogen pilot cylinder valve to the
pilot gas inlet port of the POD valves and from the POD valve gas outlet port to the CO2 cylinder
pressure release head as shown in Figure 15 and 16.
NOTES
1. Clip the bundy tube to the wall at approx 457mm centres.
2. ¾ to 2 inch POD valves require adaptors K90220 and K90219 fitted in the pilot gas inlet port and
adaptor K90219 fitted to the pilot gas outlet port. See Datasheet 841-5036
3. 3 and 4 inch POD valves require adaptor K90219 fitted to both inlet and outlet pilot gas ports.
6. A POD valve indicator switch, if fitted, must be wired as shown in Figure 11.
© K.F.P.S. Ltd December 2004 Manual No 59812-400
27
6. DISCHARGE LOOPS K21578 AND K97112
6.2. RIGID DISCHARGE LOOP K21578
The discharge loop is used to convey CO2 from the gas outlet of the cylinder valve to the check valve
manifold above the cylinders.
Figure 17 Rigid Discharge Loop
Materials:
Tube: 12.7mm x 18 SWG Annealed.
Material: Copper
Coupling Nuts: Brass
Thread: W21.8 x 1/14 DIN 477. 30.5mm A/F
Test Pressure: 152 Bar Approx
Weight: 0.3kg
© K.F.P.S. Ltd December 2004 Manual No 59812-400
28
6.2 FLEXIBLE DISCHARGE LOOP K97112
This loop is used when “in-situ” weighing of the cylinders are required. It is also recommended for use on
single cylinder systems for ease of connection to rigid discharge piping. When used for this purpose a loop
to pipe adaptor K62755 is required.
Figure 18 Flexible Discharge Loops
Materials - K97112
Hose: Reinforced Rubber
Connectors: Mild Steel Zinc Plate and Chromate Passivated
Coupling Nuts: Mild Steel Zinc Plate and Chromate Passivated
Test Pressure: 210 bar
Weight: 0.5kg
Adaptor K62755: Brass
© K.F.P.S. Ltd December 2004 Manual No 59812-400
29
6.3 INSTALLATION
Manifold Heights
Height To Underside Of Manifold
Cyl Size (kg) Cyl Part No Copper Loop K21578 Flexible Loop K97112
22.6 K24338 1267 1577
45.0 K24069/FM
45.0 E7194-001
1700 1800 ± 100
NOTE: All dimensions in mm
WARNING
ALWAYS CONNECT THE LOOP TO THE MANIFOLD INLET OR PIPEWORK IF SINGLE CYLINDER,
BEFORE CONNECTING TO THE CYLINDER VALVE OUTLET.
© K.F.P.S. Ltd December 2004 Manual No 59812-400
30
7. SYSTEM ACTUATOR ASSEMBLY
The system actuator assembly incorporates the source of pilot Nitrogen gas supply and the mechanism to
release it either automatically and/manually.
Figure 19 System Actuator Assembly
© K.F.P.S. Ltd December 2004 Manual No 59812-400
31
7.1 NITROGEN PILOT GAS CYLINDER AND VALVE
Figure 20 Nitrogen Pilot Gas Cylinder and Valves
Specification:
Cylinder: CF-CD01 Issue 2
Water Capacity: 0.4 Litres
Material: Steel Test Pressure: 250 bar
Valve: Brass
Charge: Dry Nitrogen to 65 bar at 20 (Recharge required at 55 bar)
Weight: 1.7kg
Finish: Grey Paint
K62462 Standard Assy
K62462A Complete with switch (Factory fitted)
© K.F.P.S. Ltd December 2004 Manual No 59812-400
32
7.2 OPTIONAL PRESSURE MONITORING SWITCH
This switch provides means of signaling low-pressure within the Nitrogen pilot cylinder.
WARNING
PRESSURE HEAD - DO NOT ATTEMPT TO REMOVE FROM CYLINDER.
Figure 21 Pressure Monitoring Switch
Sensor Capacity: Max System Pressure 207 bar
Proof Pressure 621 bar
Electrical Rating: 28 V d.c 5 Amp resistive
3 Amp inductive
Connections: Common - Earth
Open under pressure - 1
Closed under pressure - 2
Temperature Range: -54 to +107°C
Construction: ST.ST Housing, Black Nylon Cap
Operating Pressure: Factory set at 50 bar - decreasing
© K.F.P.S. Ltd December 2004 Manual No 59812-400
33
7.3 CONTROL HEAD K62303
The control head is mounted directly onto the Nitrogen pilot gas cylinder valve and is secured by a coupling
nut. When the control head is operated the firing pin shoots out (extends) by approximately 3mm.
Figure 22 Control Head
Materials:
Body: Brass
Weight: 2.35kg
IP55 Rating
© K.F.P.S. Ltd December 2004 Manual No 59812-400
34
7.4 CONTROL HEAD WITH SWITCHES K62304
As K62303 plus switches to provide remote indication that the safety and reset pin has been inserted and a
second switch to indicate the condition of the control head.
Figure 23 Control Head with Switches
Safety/Reset Pin Switch
Orange - Common
Red - N.O.
Black - N.C.
Control Head Condition Switch
Grey - Common
White - N.O.
Yellow - N.C.
Electrical Rating
250 V a.c - 7A Resistive 7A Inductive
30 V d.c - 4A Resistive 3A Inductive
50 V d.c - 1A Resistive 0.25A Inductive
125 V d.c - 0.4A Resistive 0.3A Inductive
© K.F.P.S. Ltd December 2004 Manual No 59812-400
35
7.5 CONTROL HEAD MOUNTING BRACKET K62487
Figure 24 Standard Mounting Bracket
Material: Mild Steel
Finish: Painted Black
© K.F.P.S. Ltd December 2004 Manual No 59812-400
36
7.6 SAFETY AND RESET PIN K62401
This device, supplied with the control head, when screwed fully home will reset the control head causing
the firing pin to retract to its normal position.
WARNING
DO NOT ATTEMPT TO RESET WHILST STILL ELECTRICALLY OR PNEUMATICALLY ENERGISED.
When carrying out servicing or maintenance, screw the safety/reset pin fully home to inhibit (isolate) the
system.
Retain reset pin in safe location for future use.
Figure 25 Safety and Reset Pin
Body Material: Steel
Weight: 0.1kg
© K.F.P.S. Ltd December 2004 Manual No 59812-400
37
7.7 INSTALLATION
The installation procedure is as follows:-
1. Install the control head mounting bracket.
NOTE: Check the distance to the 1st cylinder valve release head to ensure that the long pilot gas
flexible hose K93434 can be easily coupled to the Nitrogen pilot gas cylinder valve outlet,
see Figures 44 and 45.
2. Lower the control head so that its swivel nut projects through the hole in the mounting bracket and
bolt onto the bracket.
WARNING
DO NOT FIT THE NITROGEN PILOT GAS CYLINDER AT THIS TIME.
3. Check the operation of the control head safety and reset.
(i) Remove the red plastic dust cap from the control head threads.
(ii) Ensure that the Safety and Reset pin is screwed fully in.
(iii) Verify that the actuating pin, see Figures 22 and 23, does not project by more than 3mm.
(iv) Check that when the Safety and Reset pin is screwed FULLY OUT and the Push-to-Fire
button of the control head is operated the actuating pin extends so that it now projects by a
minimum of 6mm. If a Push-to-Fire button is not supplied, remove the port plug, Section 8.1,
and push the pin in. Ensure that no dirt or foreign matter falls into the control head while the
port is open. reconnect the port plug.
(v) Verify that as the Safety and Reset pin is screwed in, the actuating pin retracts, reverting to its
original position when the Safety and Reset pin is FULLY IN.
© K.F.P.S. Ltd December 2004 Manual No 59812-400
38
Figure 26 Control Head Mounting Bracket
TORQUE TO 5/5.5 NO
© K.F.P.S. Ltd December 2004 Manual No 59812-400
39
8. CONTROL HEAD ACTUATING DEVICES
There are various options available for automatically or manually operating the control head as illustrated
below:-
Figure 27 Control Head Actuating Devices
1. Manual Push-to-Fire Button K62412
2. Pneumatic Diaphragm K62459
3. 24V d.c Solenoid K62422B
4. 24V d.c Flameproof Solenoid K93206/AX
5. Remote Cable Release Assy K62489
© K.F.P.S. Ltd December 2004 Manual No 59812-400
40
8.1 MANUAL PUSH-TO-FIRE BUTTON K62412
To manually operate the control head, pull safety pin and operate ‘push to fire’ button
Figure 28 Manual Push-to-Fire Button
Unscrew the port plug on the control head and screw the button fully home, as shown below.
Port Plug
© K.F.P.S. Ltd December 2004 Manual No 59812-400
41
8.2 SOLENOID ACTUATORS K62422B and K93206/AX
Figure 29 Standard 24V d.c Solenoid
K62422B
Designed to meet with BS5490 IP55. The unit is prewired and supplied complete with flexible conduit.
Case Material: Aluminium Alloy.
Finish: Grey Anodise.
Weight: 0.77kg.
Electrical Specification
Cable:. PVC
Coil resistance at 20°C: 64.5 Ohms ± 5% 24V d.c (Nominal) 8.5 Watts.
© K.F.P.S. Ltd December 2004 Manual No 59812-400
42
8.3 FLAMEPROOF 24V d.c SOLENOID K93206/AX
Figure 30 Flameproof ATEX approved 24V d.c. Solenoid
K93206/AX
Designed in accordance with ATEX directive: ATEX 94/9/EC classification: for potentially explosive
atmospheres flameproof enclosure EX II 2 G Eex d II C T6 to T4
II 2 D IP65 T 85 to T135ºC
Case material: Aluminium Alloy.
Finish: Epoxy Gloss Grey/Green
Weight: 1.4kg.
Suitable for offshore and marine conditions.
Electrical Specification
Coil resistance at 20°C: 16 Ohms ± 10% 24V d.c (Nominal), 16.8 Watts.
© K.F.P.S. Ltd December 2004 Manual No 59812-400
43
8.4 INSTALLATION
Before installation of the standard or flameproof solenoid check the following:
1. All screw threads are clean and free of damage.
2. The tip of the plunger does not project by more than 3mm.
8.4.1 Standard Solenoid
1. Make sure that the Safety and Reset pin is screwed fully home into the control head before attaching
the solenoid.
2. Attach the solenoid to the 24mm diameter screwed port on the control head by hand, taking care not
to cross thread the unit. When fully home the solenoid can be finally tightened using an open-ended
spanner (27mm A/F thin section).
3. Insert the 20mm screwed thread of the cable gland, which is attached to the loose end of the flexible
cable of the solenoid, through the 20mm diameter hole located in the junction box and, using a
20mm back nut tighten the gland from inside the junction box.
4. Connect the two crimp terminals to their relevant connections inside the junction box.
WARNING
ENSURE THAT THE NITROGEN PILOT GAS CYLINDER HAS NOT BEEN FITTED.
5. Remove the Safety and Reset pin and energise the solenoid causing the firing pin, see Figures 22
and 23, to operate.
6. To reset de-energise the solenoid and re-insert the Safety and Reset pin.
© K.F.P.S. Ltd December 2004 Manual No 59812-400
44
8.4.2 Flameproof Solenoid
1. Make sure that the Safety and Reset pin is screwed fully home into the control head before attaching
the solenoid.
2. Check the solenoid nameplate for correct voltage, wattage and service. The solenoid must be
installed only in locations covered by group II category 2 G/D enclosures and where the flammable
gases present in the atmosphere have ignition temperatures higher than the temperature
classification stamped on the nameplate. Ambient temperatures must not exceed the value stamped
on the nameplate.
3. Attach the solenoid to the 24mm diameter screwed port on the control head by hand, taking care not
to cross thread the unit. Once fully home the solenoid can be finally tightened using an A/F open-
ended spanner.
4. Connect the solenoid to the control circuit via a ATEX approved junction box or MICC cable gland.
5. Access to the cable terminal connector is achieved by removing the four cap screws and spring
washers and withdrawing the housing cover. It may be necessary to rotate the cover slightly to ease
withdrawal.
6. After the cover has been removed connect the MICC cable into the terminal connector and tighten
the screws.
Operation Check
WARNING
ENSURE THAT THE NITROGEN PILOT GAS CYLINDER HAS NOT BEEN FITTED.
7. Remove the Safety and Reset pin and energise the solenoid causing the firing pin, see Figures 22
and 23, to operate.
8. To Reset de-energise the solenoid and re-insert the Safety and Reset pin.
© K.F.P.S. Ltd December 2004 Manual No 59812-400
45
8.4.3 Control Head and Solenoid Wiring
The internal switches of the control head can be used to indicate whether the ‘Safety and Reset’ pin has
been inserted or the control head has been operated or reset. A suitable junction box should be used for
the connections, see Figure 31. Normally the ‘operate’ switch is not used to signal to the control panel that
the extinguishing system has operated; the manifold mounted pressure switch is utilised instead.
Figure 31 Control Head and Solenoid Wiring
Colour State Terminal
Reset and Safety
pin switch
Red
Black
Orange
NC
NO
Common
1
2
3
Operate Switch Yellow
White
Grey
NO
NC
Common
4
5
6
FROM
CONTROL
HEAD
From Solenoid 7
8
Recommended terminal connections to be made in a junction box.
NOTE: If a solenoid is used, connect the control panel between terminals 5 and 8, and link 6 and
7.
After the control head, K62304, has been operated, the actuation signal is removed if the solenoid is wired
as shown in Figure 31.
© K.F.P.S. Ltd December 2004 Manual No 59812-400
46
8.4.4 Special Instructions to comply with 94/9/EC (ATEX)
1. Area classification
Control Head Basic and Control Head c/w Switches part numbers, K62303 and K62304 respectively.
Control heads are one part of a pneumatic activation system for extinguishers. These Control heads have
been designed and certified as a non-electric equipment for compliance to the following hazardous area
classification:
Group II category 3 GD c T6 X
The user of this equipment should make themselves aware of the following information;
2. Placing the device into service
These Control Heads may be installed in an area classified as Zone 2 or Zone 22 or unclassified.
3. Safe use of Control Heads
Control Heads are for use only as a component of a pneumatic activation system for extinguishers
compatible with the activation pressure (65 bar at 20° C.). The Control Head solenoid activation option is
limited to certified version K93206/AX.
The switched version is to be used with an intrinsically safe supply suitable for the hazard area.
Control Heads are supplied with a resetting tool that also acts as a disable device to allow maintenance on
the extinguishing system.
4. Assembling and dismantling
Control Heads are supplied complete and ready to install in accordance with KFP High Pressure Carbon
Dioxide Fire Protection Equipment Installation, Commissioning and Maintenance Manual 59812-400.
5. Installation
Control Head installation shall be in accordance with KFP High Pressure Carbon Dioxide Fire Protection
Equipment Installation, Commissioning and Maintenance Manual 59812-400, except that for zone 2 or
zone 22 compliance solenoid K62422B SHALL NOT be used.
6. Maintenance (service and emergency repair)
The Safety and Reset Pin must be used to disable the control head before any system maintenance is
performed refer to manual 59812-400. For maintenance of control head refer to this manual.
7. Adjustment
Control Heads have no adjustable components
8. Training
Consult KFP High Pressure Carbon Dioxide Fire Protection Equipment Installation, Commissioning and
Maintenance Manual 59812-400 before use.
9. Limitations of use
Control Heads must only be used within areas specified by the hazardous area certification as indicated on
the equipment label
10. Special Parameters
The ambient temperature for this equipment is –18°C to 55°C.
© K.F.P.S. Ltd December 2004 Manual No 59812-400
47
8.5 PNEUMATIC DIAPHRAGM ACTUATOR K62459
The pneumatic diaphragm actuator is used to operate the control head. The two 1/8” screwed connectors
on the cover plate of the actuator allow connection to a detector line and a breather assembly.
Air pressure from the detectors deflects the diaphragm which moves the firing pin approximately 3mm into
the control head. After operation the firing pin returns to its normal position, assisted by a spring assembly
which is located under the diaphragm.
Figure 32 Pneumatic Diaphragm Actuator
Diaphragm Housing Material: Aluminium Bronze
Finish: Anodised
Connector Material: Brass
Finish: Dull Nickel Plate
Weight: 0.93kg
© K.F.P.S. Ltd December 2004 Manual No 59812-400
48
8.6 PNEUMATIC BREATHER VENTS K62895
The pneumatic breather is a calibrated leak used in pneumatic fire detecting systems.
The purpose of the breather is to relieve slight increases or decreases of air pressure within the detector
circuit caused by normal atmospheric temperature changes or heating of the premises. etc.
Part Number Breather Setting
K62895/5 5 Seconds
K62895/10 10 Seconds
K62895/15 15 Seconds
K62895/20 20 Seconds
K62895/25 25 Seconds
K62895/30 30 Seconds
K62895/100 100 Seconds
Figure 33 Pneumatic Breather Vents
Vent settings to be used (seconds)
Temperature Variation: For 1 & 2
Detectors
For 3 & 4
Detectors
For 5 & 6
Detectors
NORMAL 15 20 25
CONSTANT
(Thermostatically controlled)
25 30 30
RAPID (Ovens, etc) 5 10 10
NOTES:
1. A 100 second breather is used only if a pneumatic check unit is employed.
2. The breather in a lock-off unit must be rated the same as the breather fitted to the
Pneumatic Diaphragm Actuator see Figure 32.
© K.F.P.S. Ltd December 2004 Manual No 59812-400
49
8.7 INSTALLATION
Before installation of the pneumatic diaphragm actuator check the following:
1. That all screw threads are clean and free of damage,
2. The tip of the plunger does not project by more than 3mm,
3. That the Safety and Reset pin is screwed fully home into the control head before attaching the
actuator.
After the above checks have been carried out satisfactorily install the pneumatic actuator as follows:
1. Attach the pneumatic diaphragm actuator to the 24mm diameter screwed port on the control head by
hand, taking care not to cross thread the unit. Once fully home the actuator can be finally tightened
using an open-ended spanner.
2. Attach the breather vent assembly, see Figure 32, to one of the connections on the actuator.
3. Attach the compression coupling on the copper detection tubing to the second connection.
8.8 CABLE RELEASE ASSEMBLY K62478
This device is used in conjunction with a remote pull box and cable system to manually operate the control
head.
Figure 34 Cable Release Assy
Material: Mild steel box painted black
© K.F.P.S. Ltd December 2004 Manual No 59812-400
50
8.8.1 Installation
To install the single release assembly, see Figure 35 and proceed as follows:
1. Unscrew and remove the box lid and gasket. Slacken the cable clamp locking screws and slide
clamp off the inner bowden cable (use a 2.5mm A/F hex wrench).
2. Pull out the inner cable from the release assembly.
NOTE: Do not remove top cover from control head.
3. Unscrew both blanking plugs from the control head body (use a ¼” A/F hex wrench).
NOTE: A manual Push-to-Fire button, if fitted, should be unscrewed.
Figure 35 Cable Pull Ring Connection
Cable Connection Port, see Figure 35.
4. Feed in the inner cable through the blanking plug port on the “Safety and Reset” pin side of the
control head, through the top hole of the cable pull-ring inside the control head and out through the
blanking plug port on the other side of the control head.
5. Slide the outer Bowden cable, complete with box, onto the free end of the inner cable and screw
cable into the blanking port and tighten.
6. Attach the cable box to the wall at a point convenient to the remote pull cable conduit.
© K.F.P.S. Ltd December 2004 Manual No 59812-400
51
Figure 36 Curvature of Cable
Curvature of Cable, see Figure 36
7. Make sure that the control head cable is not forced to bend through a radius of less than 45mm
(approximately 1 ¾”) along its length.
Figure 37 Cable Release Assembly, Cover Removed
8. Slide the cable clamp into the inner cable, loop the inner cable end and feed back through the clamp
as illustrated above.
NOTE: With “Safety and Reset” pin screwed fully home make sure that there is approximately
3mm of slack cable between the cable clamp and the cable attachment nut inside the box.
Adjust if necessary.
9. Feed remote pull cable into the cable clamp and secure with the two locking screws.
10. Test for satisfactory operation with the pilot valve and cylinder assembly removed and adjust tension
of remote cable if necessary. Refit the box lid and gasket.
11. Leave the system in an operable condition.
© K.F.P.S. Ltd December 2004 Manual No 59812-400
52
8.9 PULL BOX K 1114
The pull box is used where remote emergency manual operation of a system is required. The handle is
connected to the gas release device by flexible phosphor bronze cable run in mild steel conduit for
protection. Abrupt changes in direction to the routing of the manual pull line are affected by means of
enclosed brass pulleys. Part No. K 1122.
Pulley can be mounted in 90º increments.
Figure 38 Pull Box
Specification: BS5490 IP40
Materials: Box-Steel painted signal red BS 381C/537
Front Cover - Plastic
Weight: 1.65kg
© K.F.P.S. Ltd December 2004 Manual No 59812-400
53
8.9.1 Corner Pulley K 1122
Figure 39 Corner Pulley
Materials: Brass - Natural
Weight: 0.5kg
8.9.2 Installation
To install the pull box proceed as follows:
WARNING
TO PREVENT ACCIDENTAL DISCHARGE OF THE FIRE FIGHTING SYSTEM DURING INSTALLATION
WORK, MAKE SURE THAT THE SAFETY AND RESET PIN IS SCREWED FULLY HOME INTO THE
CONTROL HEAD OR THE COMPLETE PILOT VALVE AND GAS CYLINDER ASSEMBLY IS
UNSCREWED FROM THE CONTROL HEAD.
1. Attach the pull box using the single 7/16 (11.1mm) diameter fixing hole.
2. With front plate and glass removed, use a slotted screwdriver to remove the 7/16” Whitworth
grubscrew from the centre of the pull handle.
3. Feed the 1/8” diameter bronze cable through the pull handle, steel conduit and pulley assemblies, up
to the cable clamp located inside the cable release box.
4. With the cable protruding inside the cable release box slacken the two cable-clamp locking-screws
and attach the bronze cable as shown for single release mechanism.
5. With approximately 76mm of cable protruding out through the pull handle, tie a single knot in cable.
Solder the knot completely.
6. Slide the cable into the handle recess, tighten and then cut-off excess cable.
7. Re-fit the 7/16” Whitworth grubscrew to the pull handle.
© K.F.P.S. Ltd December 2004 Manual No 59812-400
54
8. With the pilot gas cylinder detached from the control head, remove the Safety and Reset pin, pull the
handle in the pull box and test the system for each operation.
9. Check that the control head operates.
10. Insert the Safety and Reset pin.
11. Refit the pilot cylinder.
12. When satisfied with the operation re-locate glass and front plate and tighten using the four long 2½”
long x 2BA round head screws.
13. Remove the Safety and Reset pin and hand it to a responsible person.
NOTE: All cable runs must be straight. Changes in direction must only be accomplished by the
use of pulleys; bends and dog legs must not be used.
© K.F.P.S. Ltd December 2004 Manual No 59812-400
55
9. CYLINDER VALVE PRESSURE/LEVER ACTUATOR K62341
The release head is a piston device which is fitted to the cylinder valve by means of a “U” pin and can be
operated by means of independent Nitrogen gas pressure and/or by use of the manual lever. Two gas
pressure ports provide the means of interconnecting a series of release heads by using flexible pilot gas
hoses. (K93433 & K93434)
All pilot lines must include a pilot vent (K24051) as part of the assembly.
WARNING
THIS DEVICE IS NOT SELF-RESETTING. AFTER OPERATION THE PISTON MUST BE MANUALLY
RESET BY PUSHING THE PISTON BACK ONTO ITS SEATING.
NOTE: If manually operated the lever must be returned to its original position and secured before
re-setting.
Figure 40 Cylinder Valve Pressure/Lever Actuator
Materials
Body: Brass
Seals: Nitrile
Lever: Plated Steel
Securing Pin: Stainless Steel
Safety Pin: Stainless Steel
Weight: 0.4kg
© K.F.P.S. Ltd December 2004 Manual No 59812-400
56
9.1 INSTALLATION
Before installation check the following:-
1. Remove Safety pin and rotate manual lever for ease of movement of both the lever and piston.
2. Return lever original position and insert Safety pin.
3. Manually reset the piston.
After these checks have been carried out satisfactorily install as follows:
(a) Remove the securing pin.
(b) Slide the release head onto the cylinder valve and refit the securing pin, lightly tap fully home.
Leave safety pin in place until commissioning system. Refer to section 19 – Maintenance.
© K.F.P.S. Ltd December 2004 Manual No 59812-400
57
10. PILOT GAS FLEXIBLE LOOPS K93433 and K93434
The short pilot loop K93433 is used to interconnect the pressure / lever actuator K62341 pressure inlet
ports on multiple cylinder systems.
The long pilot loop K93434 is used to interconnect the release head where the cylinders are installed in a
double row. It is also used to convey the pilot nitrogen gas from a system actuator to the inlet port of the
first release head.
Figure 41 Pilot Gas Flexible Loops
Materials
Hose: Polyamide inner tube, synthetic branding/polyamide cover
End Fittings: Brass - Natural Finish
Minimum Bend Radius: 50mm
Test Pressure: 207 bar
Weight: 50 grammes
10.1 PILOT GAS VENT K24051
This device is fitted in the last unused pressure inlet port of the release head K62341 allowing the pilot gas
pressure to slowly vent (bleed) to atmosphere. The rate at which the pilot gas is vented is slow enough to
maintain adequate operation pressure in the pilot gas line far in excess of the duration of the main CO2
discharge for normal flooding systems. See Datasheet 811-9040A
The bleed valve is factory calibrated to vent at 0.8 litres/min at 750psi.
© K.F.P.S. Ltd December 2004 Manual No 59812-400
58
Figure 42 Pilot Gas Vent
Materials
Body: Brass
Weight: 0.02kg
© K.F.P.S. Ltd December 2004 Manual No 59812-400
59
10.2 PILOT GAS RIGID TUBING AND FITTINGS
On systems where either the system actuator is remote from the CO2 cylinders or when the system
incorporates directional valves the pilot gas line consists of steel (bundy) tubing and compression fittings.
Figure 43 Pilot Gas Rigid Tubing and Fittings
K
K
K K
K K K
K K
K
K
© K.F.P.S. Ltd December 2004 Manual No 59812-400
60
ASSEMBLY
1. Tubing must be cut off square and all burrs and swarf removed as loose particles could damage any
seals used elsewhere in the pipeline.
2. Place tubing nut and sleeve on tube.
3. Offer the tubing to the coupling, pushing it right home so that the tubing bottoms on the tubing stop
inside the fitting.
* This is important as it ensures that the correct amount of tubing projects beyond the sleeve to
give a sound joint.
4. Hold the tubing square to the coupling and screw the tubing nut up finger tight so that the sleeve is
trapped between the tubing nut and the seating radius of the counterbore.
5. While holding the tube firmly in contact with the tubing stop, screw the tubing nut down to a
reasonable spanner tightness. This varies between 3/4 and one full turn. On fittings for tubing sizes
of 12mm outside diameter and over, a smear of lubricant applied to the sleeve and the threads of the
tubing nut will effect a sound joint with the minimum of effort.
6. Slacken off the assembly about a ¼ turn then pinch down once again.
Where an inaccessible fitting would make the assembly of a sound joint difficult, it is recommended
that the sleeve is pre-assembled onto the tubing. This can be done by following the above procedure
but using a fitting of the correct size clamped in a vice. The tubing assembly can then be done and
released and transferred to the final union with the sleeve already correctly positioned.
WARNING
Do not use loctite, adhesive or tape on any part of this assembly.
© K.F.P.S. Ltd December 2004 Manual No 59812-400
61
10.3 INSTALLATION
Install the correct length pilot gas flexible loops as shown in Figure 44 for single row cylinders or Figure 45
for double row cylinders.
Install a pilot gas vent, see Figure 42, in the last open port of the pressure/lever actuator, Figure 40.
NOTES:
1. Do not use PTFE or other pipe sealant.
2. Do not overtighten fittings.
Figure 44 Single Cylinder Row Pilot Gas Operation
Figure 45 Double Cylinder Row Pilot Gas Operation
© K.F.P.S. Ltd December 2004 Manual No 59812-400
62
11. TIME DELAY UNIT K23650
This hydraulic device can be installed in a system to ensure that personnel are given time to evacuate a
protected space following a warning of imminent CO2 discharge. It is fitted in the Nitrogen pilot gas line from
the System Actuator thus delaying the flow of pilot gas to the CO2 cylinder pressure release heads and/or
P.O.D valve for a pre-determined time of 15 or 30 seconds.
This unit is factory pre-set do not adjust. Tampering with this unit could cause failure.
Figure 46 Time Delay Unit
© K.F.P.S. Ltd December 2004 Manual No 59812-400
63
Spec Factory set at 15 or 30 sec.
Material: Brass - Painted Red
Part No: K23650/15 = 15 secs
K23650/30 = 30 secs
Weight: 1.9 kg
11.1 INSTALLATION
1. Install vertically with the pilot gas inlet at the top.
2. Fit adaptor K90219 to both inlet and outlet pilot gas points.
11.2 TESTING
Wait approximately 1 hour before testing.
© K.F.P.S. Ltd December 2004 Manual No 59812-400
64
Figure 47 Single Protected Space System
© K.F.P.S. Ltd December 2004 Manual No 59812-400
65
Figure 48 Two Protected Spaces System
© K.F.P.S. Ltd December 2004 Manual No 59812-400
66
Figure 49 Two Protected Spaces Requiring Different CO2 Quantities
© K.F.P.S. Ltd December 2004 Manual No 59812-400
67
11.3 TIME DELAY BY-PASS VALVE K60736
This device may be used to by-pass the time delay units.
Figure 50 Time Delay By-Pass Valve
Materials: Box Mild Steel
Finish: Hammer Grey
© K.F.P.S. Ltd December 2004 Manual No 59812-400
68
Figure 51 Installation
© K.F.P.S. Ltd December 2004 Manual No 59812-400
69
12. CO2 OPERATED PRESSURE SWITCH K60218
The universal pressure switch is a gas pressure operated device which is connected to the distribution
piping or manifold. A gas pressure of 4 bar - 110 bar is required to operate the piston which makes or
breaks electrical contacts.
When the system is activated, gas pressure forces the piston against the operating rod which moves
across the housing, operating the switch. The switch completes an electrical circuit and illuminates the
system discharged lamp on the indicating lamp panel or operates the alarm etc. The rod extends into the
transparent cover to indicate the switch has operated.
To reset, unscrew re-setting cap (transport cover) from box, - reverse, and screw onto the operating rod.
Press until switch clicks home. Remove resetting cap from rod - reverse and screw back into box.
Refer to Datasheet 811-9119
Figure 52 CO2 Operated Pressure Switch
Materials
Housing: Aluminium Casting
Finish: Red Enamel
Testing: 2KV tested
¾ ” BSPT
© K.F.P.S. Ltd December 2004 Manual No 59812-400
70
Inductive Rating
Power Factor 250 Volts 440 Volts 600 Volts
1 30 Amps 25 Amps 20 Amps
0.74 25 Amps 20 Amps 16 Amps
0.50 17.5 Amps 14 Amps 11.5 Amps
D.C. Rating
Resistance 220 Volts 500 Volts
Loadings 30 Amps 15 Amps
© K.F.P.S. Ltd December 2004 Manual No 59812-400
71
12.1 INSTALLATION
Before installation of the pressure switch (see Figures 52), check the following:
1. The ¾” BSP inlet thread is clean and free of any damage.
2. When manually operated, using the visual indicator and re-setting cap, the switch roller is in the
coupler channel and the operation is smooth with no binding.
After the above checks have been satisfactorily carried out, install the pressure switch as follows:-
1. A ¾” BSP screwed connection is required on the end of the manifold, attach a ¾” BSP galvanised
hexagon nipple.
2. Attach the pressure switch or, wall mount the switch, make up all pipework to suit the site location of
your pressure switch making sure that there is a ¾” BSP galvanised union in this line for each of
installation and/or removal of equipment.
3. To the ¾” BSP outlet connection on the pressure switch attach a ¾ BSP galvanised hexagon nipple
and one half of the union as mentioned in (2) above.
4. Connect the pressure switch to the pipework via the union and hand tighten.
5. Mark the two pressure switch fixing holes on the wall or framework.
6. Loosen the union nut and remove the pressure switch.
7. Drill the two holes.
8. Reconnect the pressure switch to the pipework and tighten the union nut.
9. Fix the pressure switch to the wall or framework.
Alternatively, the switch may be wall mounted by adapting the ¾ threads to 3/16” ENOT and using bundy
tube to connect.
© K.F.P.S. Ltd December 2004 Manual No 59812-400
72
13. CO2 OPERATED PRESSURE TRIP K17554
The pressure trip is fitted into the CO2 distribution piping and is used to automatically release ventilation
shutters, fire curtains, ducting dampers, fuel valves, etc. CO2 pressure of approximately 2 bar is sufficient to
operate the piston and unlatch -the catch mechanism.
Figure 53 Pressure Trip
Materials: Body - Gunmetal
Finish: Nickel Plate
© K.F.P.S. Ltd December 2004 Manual No 59812-400
73
13.1 INSTALLATION
Figure 54 Installation
NOTES:
• Always install the pressure trip in a vertical position as shown.
• Dimension from top of doorframe is typical & should be adhered to where possible.
• Use PTFE tape on all screw threads.
• The maximum load that can be suspended from a pressure trip is 100lb (45kg).
Install the pressure trip as follows:-
1. To the ¾” BSP male screwed connection on the pressure trip attach a ¾” BSP elbow a suitable
length of ¾” BSP galvanised pipe and one half of a ¾” BSP union.
2. Offer the pressure trip assembly up to the CO2 distribution piping and hand tighten the union nut.
3. Making sure that the pressure trip is located in the centre of the doorway and at a suitable vertical
dimension above the door frame so as not to hinder the operation of the equipment mark the one off
fixing hole on the wall.
4. Loosen and disconnect the pressure trip assembly.
5. Drill the pressure trip fixing hole on the wall.
6. Reconnect the pressure trip assembly to the CO2 pipework.
7. Using a adequate wall fixing to attach the pressure trip to the wall.
8. Once attached to the wall finally tighten the union nut.
9. Attached the cable & cable ring to the pressure trip.
© K.F.P.S. Ltd December 2004 Manual No 59812-400
74
14. CO2 DISCHARGE NOZZLES
There are various nozzles suitable for either “total flooding” and/or local application systems. In all cases it
is essential that they are installed in their correct locations as defined by the code number stamped on the
nozzle body.
14.1 MULTIJET NOZZLE K61792 AND K61793
These nozzles are the standard carbon dioxide discharge nozzles. The horn has been developed to
prevent the scattering of burning material that can take place with a high velocity discharge.
Datasheet 811-9148
Figure 55 Multijet Nozzle
Environment: Industrial/Offshore/Marine
Material: Horn - mild steel
Nozzle - brass
Finish: Horn - black paint.
Nozzle - Natural
Weight: K61792 N13 - N18 :- 0.8 kg approx.
K61793 N3 - N12 :- 0.6 kg approx.
© K.F.P.S. Ltd December 2004 Manual No 59812-400
75
14.2 FLANGED MULTIJET NOZZLE K5814
The flanged carbon dioxide horn is designed for use in those areas where the nozzle may become blocked
by dirt or the process being protected. The force of the discharge automatically blows the disc clear. Three
discs are available:-
Refer to Datasheet 811-9139
Figure 56 Flanged Multijet Nozzle
1. Bakelite - temperatures up to 200°C and ambient pressures below 50 psig.
2. Tin Foil - temperatures up to 400°C and ambient pressures below 25 psig. (used where
fragmented pieces cannot be tolerated)
3. Mica - temperatures above 400°C and ambient pressures below 50 psi.
The flanged horn may be fitted to ductwork by the addition of the appropriate adaptor.
Material: Body: Aluminium Nozzle: Brass
Finish: Body: Natural Nozzle: Natural
Weight: 0.9 kg approx.
© K.F.P.S. Ltd December 2004 Manual No 59812-400
76
14.3 FLANGED NOZZLE DUCT ADAPTORS K61420A-D
The range of duct adaptors is designed for those situations where it is required to fit the flanged CO2 nozzle
(K5814 N3 - N8) to circular or square section ductwork.
Figure 57 Flanged Nozzle Duct Adaptor
Material: Cast aluminium.
Finish: Black paint
NOTE: 4 - 5/16" Whit. Hex. Hd. Screws C/W nuts and washers together with joint sealing tape
supplied with each adaptor.
Adaptor Assembly Weight (approx) Ducting Size
K61420A 1.3kg 610mm Dia
K61420B 1.3kg 457mm Dia
K61420C 1.3kg 305mm Dia
K61420D 1.1kg Flat
© K.F.P.S. Ltd December 2004 Manual No 59812-400
77
14.4 DUCT NOZZLE K13045
The CO2 nozzle and duct adaptor is used to protect ductwork in areas where space is limited.
Datasheet 811-9151
Figure 58 Duct Nozzle
Material: Mounting plate : mild steel
Nozzle : brass
Finish: Mounting plate : zinc plated and passivated.
Nozzle : natural
Weight: 0.4kg approx.
© K.F.P.S. Ltd December 2004 Manual No 59812-400
78
14.5 FAN TYPE NOZZLE K6490
Fan type nozzles are designed to be mounted at the sides of the protected equipment and to direct carbon
dioxide across the hazard.
Figure 59 Fan Type Nozzle
Material: Body: Grey cast iron. Nozzle: Brass
Finish: Body: Black paint. Nozzle: Natural
Weight: 2.6kg approx.
© K.F.P.S. Ltd December 2004 Manual No 59812-400
79
15. PNEUMATIC DETECTION - HEAT ACTUATED DEVICES
The “Rate of Rise” system is a thermo-pneumatic system consisting of one or more detectors connected to
a release actuator in which there is a diaphragm and a compensating vent.
15.1 PNEUMATIC RATE OF RISE DETECTOR K18724
The pneumatic detector is a hollow copper chamber of 12cc capacity containing air at normal atmospheric
pressure. It is fixed to the ceiling or in any other positions best suited to site conditions. The function of the
detector is to absorb heat thereby increasing the air pressure within it which is then transmitted through
small bore copper capillary tube running in protective steel conduit to a release actuator. Operation of the
diaphragm in the release actuator will discharge the extinguishing agent or initiate an alarm.
Figure 60 Pneumatic Rate of Rise Detector
© K.F.P.S. Ltd December 2004 Manual No 59812-400
80
15.2 PNEUMATIC FIXED TEMPERATURE DETECTOR K18689
This detector works on the same principle as the Rate of Rise detector but is fitted with a slug assembly
containing a fusible alloy disc which will melt at a predetermined temperature. These are used to protect
areas which are subjected to rapid increases in ambient temperatures such as ovens, kitchens, boiler
houses, lantern lights, etc.
Be aware that capillary tubing can act as a rate-of rise detector so routes outside the rapid change area
must be found.
K18689 = Pneumatic Fire Detector less slug assembly, washers and identification disc.
Order appropriate slug assembly kit for fitting on site and for spares. (see table)
Slug assembly kit comprises - slug assembly, 2 washers, identification disc with fitting screw
and fitting instructions.
Note: Slug assembly kits are available in a limited range of temperatures. Please contact Kidde Fire
Protection for further details.
Figure 61 Pneumatic Fixed Temperature Detector
© K.F.P.S. Ltd December 2004 Manual No 59812-400
81
15.3 PNEUMATIC CHECK UNIT K24412
The pneumatic check is used on pneumatic type fire detection systems incorporating Rate of Rise
detectors.
The checks are used to divide the detectors into groups of no more than six. Each group is, in this way,
isolated, so that air pressure rise caused by a detector sensing fire can pass through the check to the
system actuator etc, without being dissipated into other detector groups.
The pneumatic check is formed by making use of silicone fluid. The unit being filled with fluid at the factory.
No adjustment should be necessary, but check fluid level.
Installation
This unit must be installed in a vertical position as shown above. Fit pneumatic breathers in the two inlet
ports, see Figure 62 for correct setting.
Figure 62 Pneumatic Check Unit
K 6 2 8 9 5
© K.F.P.S. Ltd December 2004 Manual No 59812-400
82
15.4 PNEUMATIC LOCK-OFF UNIT K24300
An extinguishing system utilising non-electrical heat detectors can be fitted with a pneumatic lock-off unit in
order to prevent automatic actuation when the area protected by the system is occupied. With the unit
switched to AUTOMATIC & MANUAL the pneumatic signal from the heat detectors is allowed to pass
through the unit to the extinguishing system.
However, when the unit is switched to MANUAL ONLY the signal is directed to a pneumatic switch fitted
within the Lock-off unit which can thus provide remote indication, and is prevented from actuating the
extinguishing system. A second Pneumatic breather of the same vent setting as the one fitted to the
extinguishing system actuator must be fitted to the pneumatic switch in the Lock-off unit.
Figure 63 Pneumatic Lock-Off Unit
© K.F.P.S. Ltd December 2004 Manual No 59812-400
83
15.5 BELLOWS AND MICROSWITCH ASSY K20057
The bellows and microswitch assembly is used to convert an air pressure signal received from a non-
electrical heat detection device into an electric signal for indication or the operation of a release
mechanism.
The assembly consists of a pair of aluminium castings enclosing a diaphragm and connected to a
microswitch. On receipt of an air pressure signal a spindle housed in the upper casting actuates the
microswitch.
The unit is self-resetting when the air pressure signal is removed. No maintenance is required. Order
appropriate Pneumatic Breather for fitting on site, see Figure 64.
Figure 64 Bellows and Microswitch Assembly
© K.F.P.S. Ltd December 2004 Manual No 59812-400
84
15.6 PNEUMATIC CAPILLARY TUBE, CONDUIT AND FITTINGS
Figure 65 Pneumatic Capillary Tube, Conduit and Fittings
© K.F.P.S. Ltd December 2004 Manual No 59812-400
85
15.7 CO2 OPERATED SIREN K18307
This device can be fitted into the main CO2 feed pipe to provide an audible alarm for the duration of the CO2
discharge.
Figure 66 CO2 Operated Siren
Material: Body - Aluminium Casting
Finish: Painted Red
© K.F.P.S. Ltd December 2004 Manual No 59812-400
86
16. ODORISER ASSEMBLY K62586
At normal atmospheric pressures and temperatures, the extinguishing gas is colourless and odourless. To
enable CO2 to be detected during and following a discharge an odoriser shall be fitted. The unit must be
fitted in the main pipe run so that the pressure of the gas passing through the pipe bursts a seal in the unit
and releases a liquid odorant into the gas system. Burst pressure range 20 to 40 psi.
Each unit contains 30cc of odorant which is sufficient to produce a positive and identifiable lemon smell in a
protected space of up to 1,400 cubic metres volume.
Figure 67 Odoriser Assembly
Material: Aluminium Alloy
Finish: Black anodise
NOTES:
1. This unit must be installed in the vertical position with the cylinder uppermost.
2. Adaptor K22152 can be supplied as an optional fitting, see Figure 68. This incorporates a
check valve so that in the event of the gas being released while the odoriser is removed
there is no loss of gas from the pipe.
Figure 68 Odoriser Check Valve
Material: Brass
© K.F.P.S. Ltd December 2004 Manual No 59812-400
87
17. CO2 WARNING LABELS
MATERIAL:- 22 SWG ALUMINIUM
Figure 69 Entrance Door Warning Label
Part Number K93681
© K.F.P.S. Ltd December 2004 Manual No 59812-400
88
Figure 70 Manual Control Point Label
Part Number K93680
© K.F.P.S. Ltd December 2004 Manual No 59812-400
89
PART 2 COMMISSIONING
18. COMMISSIONING
This chapter described the commissioning procedure under the following headings:
1. Visual Checks
2. Mechanical Function
18.1 VISUAL CHECKS
Before commencement of commissioning tests visually check the following:-
1. Check that the installation conforms to the engineering drawings. Any deviations from drawings must
be reported.
2. All work, e.g. electrical wiring, carried out by other contractors has been completed satisfactorily.
3. Check the protected area for confinement of the extinguishing agent, i.e. that no passage is allowed
to other spaces through floor or ceiling voids, ductwork, holes in partitions or vents, unless allowance
has been made.
4. Check that all manual controls are accessible and correctly identified.
5. Check that the discharge nozzles are unobstructed and are adequately secured. Check that the
nozzles comply with sizes shown on the drawings.
6. Check that the container and valve manifolds are correctly sized, and that check valves and POD
valves are installed for correct directional flow.
7. Check the manifold-to-container installation for undue strain on connecting loops because incorrect
installation can cause service problems.
8. Check the containers are installed in an accessible location, that the area is clean, dry and ventilated
and meets the safe temperature requirements.
9. Check that all system controls, such as valves, lock off, pull boxes, manually or electrically operated
devices, are accessible to operating personnel. If located outdoors ensure that they conform to the
required standards and that adequate shelter has been provided.
10. Check that pipes and fittings are sized in accordance with the drawings and are adequately secured.
All piping must be rigidly secured to the nozzle to prevent damage from recoil.
11. Check that all warning labels and notices give correct information for system operation and that they
are suitably located.
12. Check weigh containers to ensure nett content is in accordance with the requirements.
© K.F.P.S. Ltd December 2004 Manual No 59812-400
90
18.2 MECHANICAL FUNCTION
WARNING
DO NOT PROCEED WITH ANY FUNCTIONAL TESTS UNTIL EVERY PRECAUTION HAS BEEN
TAKEN TO PREVENT ACCIDENTAL DISCHARGE.
18.2.1 General
If the control head is connected to the pilot gas cylinder check as follows:-
1. Make sure that the “Safety and Reset” pin is screwed fully home.
2. Unscrew the pilot gas cylinder from the control head.
3. Remove the “Safety and Reset” pin.
4. Check the distance moved by the firing pin.
5. Energise the solenoid, if fitted, from the control panel. The solenoid operates the control head
thereby causing the control head firing pin to be moved downwards by a minimum distance of 3mm
thus giving a total projection of 6mm. This insures that the solenoid and control head are both
operable and have functioned correctly.
6. After the test has been carried out satisfactorily reset the control head by screwing the “Safety and
Reset” pin fully home and checking that the firing pin does not project more than 3mm.
18.2.2 Manual Push-to Fire
1. Remove the “Safety and Reset” pin.
2. Remove pin from “Push-to Fire” button
3. Manually fire the control head by operating the “Push-to-Fire” button as shown in Section 8.1
4. When the manual operation of the “Push-to-Fire” button has been proved, reset the control head by
screwing the “Safety and Reset” pin fully home.
5. Replace pin into “Push-to fire” button.
18.2.3 Pull Box
WARNING
DO NOT PROCEED WITH ANY FUNCTIONAL TESTS UNTIL EVERY PRECAUTION HAS BEEN
TAKEN TO PREVENT ACCIDENTAL DISCHARGE.
1. Remove the “Safety and Reset” pin from the control head.
2. Remove the front cover and glass from the pull box unit.
3. Pull the handle in the pull box unit and manually fire the control head.
4. When satisfied, reset the control head by screwing the “Safety and Reset” pin fully home.
5. Reset the cable arrangement as described in Section 8.8.
6. Relocate the glass and front cover plate to pull box unit.
© K.F.P.S. Ltd December 2004 Manual No 59812-400
91
18.2.4 Pneumatic System
If the control head is to be operated using a pneumatic diaphragm actuator and HAD detection system, a
manometer test, see Figure 71, shall be carried out.
Figure 71 Manometer Test System
Specification: Designed for pressure or vacuum up to 8” water gauge.
Material: Base and Cover Al. Alloy
Paint: Red Enamel
Part No: K17523
© K.F.P.S. Ltd December 2004 Manual No 59812-400
92
Before testing the pneumatic actuator and HAD system, ensure that the manometer water level is zeroed
and check for leaks as follows:-
1. Compress the rubber bulb slightly and plug both the simplifix coupling and the open end of the glass
tee piece near the bulb - a wetted thumb is usually adequate for this purpose. Release the pressure
on the rubber bulb, thus causing the water to rise up the right hand side of the simplifix coupling tube
until a reading of 6” water gauge is shown and holds level until the pressure is relieved by removing
the thumbs from the open ends.
Test the HADs, if necessary, as follows:-
1. Remove the HAD from the system and immerse it in water the temperature of which is some 10°C
above ambient. but does not exceed 50°C. There must be no air leaking from the HAD.
2. If satisfactory replace the HAD in the system making sure all water has been removed and
connections are tight.
© K.F.P.S. Ltd December 2004 Manual No 59812-400
93
Test that the system is airtight, as follows:-
1. Remove the pneumatic breather from the breather connection on the diaphragm actuator.
2. Connect the manometer to the breather connection on the diaphragm actuator as shown, and create
a vacuum as described above.
© K.F.P.S. Ltd December 2004 Manual No 59812-400
94
3. After an initial pressure drop there should be no further drop for one minute.
4. With the manometer still connected, test that the system is free from blockage, by slightly heating
each HAD in turn and observing that a slight pressure is built up in the system each time; a
displacement of ½” water gauge is sufficient.
After this test has been carried out satisfactorily proceed to check the rating of the pneumatic breather as
follows:-
1. Remove the breather from the pneumatic actuator and connect it to a manometer. Set the water
level in line with the top edge of the metal indicator of the manometer.
NOTE: Before testing ensure that the breather is situated above the level of the manometer to
prevent any possibility of water being blown into the breather.
2. Create a small vacuum (approximately 3” difference in water level in the two limbs of the
manometer). As the water returns slowly to its normal position, note the time taken for the water to
pass through the “visor space” of one inch of the indicator. This is the time taken for the pressure to
drop by 2” of water pressure. The time should be between 5 and 100 seconds depending on the
breather used; the specified time stamped on the breather.
After this test has been carried out satisfactorily re-connect the breather to the pneumatic actuators.
© K.F.P.S. Ltd December 2004 Manual No 59812-400
95
The operation of the system is checked as follows:-
1. Disconnect the pneumatic detector line from the actuator.
2. Connect the manometer to the pneumatic connection on the actuator as shown below:
3. Remove the “Safety and Reset” pin.
4. Using the rubber hand bulb gently pump until the pneumatic actuator operates the control head.
NOTE: The pneumatic actuator should operate the control head only between 1" and 3" of water
gauge, as shown in the manometer operating range above.
© K.F.P.S. Ltd December 2004 Manual No 59812-400
96
5. Re-place the “Safety and Reset” pin, ensuring that it is screwed fully home.
6. Re-connect the pneumatic detection line to the pneumatic actuator.
WARNING
DO NOT ATTEMPT TO RESET THE SYSTEM UNTIL THE PRESSURE IN THE HAD LINE HAS BEEN
RELEASED.
18.2.5 Pressure/Lever Actuator and POD Valves
Details of the pressure/lever actuator are given in Part 1, Chapter 9.
To check the pressure /lever actuator and POD valves as follows:
1. Remove the pressure/lever actuator complete with pilot loops and vents from the container valves
and secure them, making sure that they are clear of the container valves. The entire pilot gas system
must remain intact.
2. Remove the safety lock pin from each actuator and check the manual operation.
3. When satisfied with the manual operation of the release heads check the POD valves, if installed, by
connecting a pilot gas (Nitrogen) test cylinder to the head.
Remove Safety Lock Pin from each POD valve and check for manual operation (Valves up to 2”).
NOTE: If the POD valves are fitted with switches check that the indication has been given at the
control panel that the POD valve is open.
4. When satisfied with the manual operation of the POD valves reset and re-insert the Safety Lock pins.
5. With the pressure/manual release heads still removed, depress the Push-to-Fire button on the
control head thereby releasing the pilot gas (Nitrogen) into the pilot line causing the pressure/manual
release heads to operate.
NOTE: If POD valves are installed in the system check that these have been opened before
checking the pressure/lever actuator
5. After the POD valves and/or pressure/lever actuator have functioned correctly re-set each control
head by screwing the “Safety and Reset” pin fully home.
7. Push piston inside pressure/lever actuator back to set position.
8. Remove the pilot gas (Nitrogen) test cylinder from the control head.
9. Visually check that the plunger assembly has returned to its normal position. When satisfied, re-
connect the pilot cylinder and the pressure/lever actuator to the container valves. Tighten the running
nut at the control head/pilot cylinder interface.
18.2.6 Pressure Trip
Check the pressure trip mechanism, if incorporated in the CO2 system, as follows:-
1. Physically lift the pivoted lever allowing relevant equipment, e.g. fire curtains or dampers, to be
operated.
2. After manual operation of the pressure trip has been carried out successfully, re-set all fire curtains,
dampers etc.
© K.F.P.S. Ltd December 2004 Manual No 59812-400
97
3 To demonstrate operation of the pressure trip assembly, release one container from the main bank.
Disconnect all pressure levers actuators and CO2 outlet hoses from the cylinders not required for the
test.
WARNING
DO NOT DISCHARGE CO2 WHILE THERE ARE PERSONNEL PRESENT IN THE AREA. THE
ENGINEER CARRYING OUT THE TEST MUST OBSERVE THE SAFETY REGULATIONS GOVERNING
THE USE OF CO2.
4. If POD valves are installed in the main distribution line, remove the Safety Lock pins and manually
open.
5. Discharge the CO2 cylinder and check that the trip assemblies have all functioned correctly.
6. Re-insert the Safety Lock pin to the CO2 container.
7. Re-set the pressure trip assemblies.
8. Reconnect cylinders and replace discharged cylinder.
18.2.7 Pressure Switch
If a pressure switch assembly is installed in the main CO2 line check that it has operated as follows:-
1. Check that an alarm signal has been given on the main control.
2. Check that the pressure switch operating rod has extended into the transparent cover.
3. When satisfied re-set the pressure switch.
4. Manually close the POD valves and re-insert the Safety Lock pins.
5. Disconnect the empty CO2 container and reconnect the remaining cylinder and replacement.
© K.F.P.S. Ltd December 2004 Manual No 59812-400
98
PART 3 MAINTENANCE
19. MAINTENANCE
This part of the manual describes procedures which enable a proficient Service Engineer to undertake the
regular inspection and testing of a Kidde Fire Protection CO2 System safely in accordance with the
recommendation of BS 5306 Part 4.
Before going to site the Service Engineer should obtain the relevant details and drawings of the systems to
be serviced and refer to report of previous service visits and of fault call-outs since the last service.
The Engineer’s signature on the Service Report and on the record card after carrying out the work, is
confirmation that the system, on that day, is in complete operational order. It is an advantage to have a
witness to this fact, and he should therefore encourage the Customer’s representative to accompany him
while he does the work.
The first action to take, when arriving at site, is to report to the customer’s representative and to ask if there
are any specific instructions with which to comply.
Ask if any particular problems have arisen since the last service visit.
Ask if any fires have occurred and how the system performed.
Similarly, record any false or accidental operation and get reasons.
If it is necessary to take some action which may cause inconvenience to the Customer, ask his permission
first.
Notify all concerned that the fire protection system is being maintained and may be inoperative.
Work systematically and in a clean, tidy and professional manner.
Consider the possibility of genuine fire alarm occurring while you are working on the system and make
appropriate arrangements.
Prepare a service report. Submit a copy to the Client, one to the Service Manager and retain a copy.
Service visits should be on a six-monthly (minimum) basis.
19.1 PRELIMINARY CHECKS
Before commencement of maintenance work check the following:-
1. Check the installation for any structural alternation that could affect the efficiency of the system.
2. Check the protected area for confinement of the extinguishant. If the system has been altered in any
way, and/or if the customer’s building or plant has been modified since the last inspection visit, this
must be noted on the Service Report. The Client must be informed of any factor jeopardizing the fire
protection system.
Check if doors and windows are being propped open and would not be shut in the event of a system
operation. Report this to the Customer and note it on the report sheet.
© K.F.P.S. Ltd December 2004 Manual No 59812-400
99
3. Check that all manual controls are accessible, correctly identified and have not become obscured.
4. Check that the discharge nozzles are unobstructed and are adequately secured.
5. Check that all warning and instruction labels are clearly visible and legible. Check that all necessary
safety precautions and operational instructions are clearly stated.
6. Check that the paintwork is in good condition.
7. Check that containers are accessible and that the area is clean, dry and ventilated.
8. Check that pipes and fittings are adequately secured. All piping must be rigidly secured at the nozzle
to prevent damage from recoil.
9. Check that all system controls, such as valves, lock-off units, pull boxes, manually or electrically
operated devices, are accessible to operating personnel. Any damage must be noted and rectified
after obtaining the customer’s official order number for the additional work. Rectification work should
be recorded on a report sheet separate from the service report sheet.
19.2 COMPONENT FUNCTION TESTS
WARNING
DO NOT PROCEED WITH ANY FUNCTIONAL TESTS UNTIL EVERY PRECAUTION HAS BEEN
TAKEN TO PREVENT ACCIDENTAL DISCHARGE. ENSURE THAT ALL PERSONNEL IN PROTECTED
AREAS KNOW THAT YOU ARE THERE AND OF THE WORK YOU ARE DOING.
19.2.1 General
1. Check that the manifold bracket fixings are secure.
2. Check that the manifold-to-container discharge valve couplings are tight.
19.2.2 Control Head
Check the control head as follows:-
1. Make sure that the “Safety and Reset” pin is screwed fully home.
2. Unscrew the pilot gas cylinder from the second head.
3. Remove the “Safety and Reset” pin.
4. Energise the solenoid from the control panel or operate the HAD detection system. The solenoid
plunger operates the control head causing the firing pin to be moved downwards by a minimum
distance of 3mm, (6mm projection) proving that the solenoid and control head are both operable and
have functioned correctly.
5. Check the distance moved by the firing pin. Reset the control panel and/or HAD system.
NOTE: The HAD or the solenoid would be damaged if the control head is reset whilst either of
them is in the activated mode.
6. After the test has been carried out satisfactorily, reset the control head by screwing the “Safety and
Reset” pin fully home and checking that the firing pin does not project by more than 3mm.
© K.F.P.S. Ltd December 2004 Manual No 59812-400
100
Push-to-Fire Button
7. Remove the “Safety and Reset” pin.
8. Manually fire the control head by operating the “Push-to- Fire” button.
9. When the manual operation of the “Push-to-Fire” Button has been proved reset the control head by
screwing the “Safety and Reset” pin fully home.
Pull Box
Check the operation of the pull box.
10. Remove the “Safety and Reset” pin.
11. Remove the front cover and glass from the pull box unit.
12. Pull the handle in the pull box firmly and manually fire the control head.
13. Rest the pull cable arrangement.
14. When satisfied reset the control head by screwing the “Safety and Reset” pin fully home.
15. Relocate glass and front cover panel to pull box unit.
Pilot Gas Cylinder
16. Screw the “Safety and Reset” pin fully home.
17. Check the pressure is approx 65 bar. If it is below 55 bar the container should be refilled.
Reinstatement
18. Refit the pilot gas cylinder to the control head.
19.2.3 Pressure/Manual Release Heads and POD Valves
To check the pressure/manual release heads and POD valves proceed as follows:
1. Remove the pressure/manual release heads complete with pilot loops and vents from the CO2
container discharge valves. The entire pilot gas system must remain intact.
2. Remove the Safety Lock pin from each release head and check the manual operation. Manually
reset the release head piston and refit the Safety Lock pins when satisfied.
3. Remove the Safety Lock pin from each POD valve and check for manual operation.
© K.F.P.S. Ltd December 2004 Manual No 59812-400
101
NOTE: If the POD valves are fitted with indicator switched check that the indication has been
given at the control panel that the POD valve is open.
4. When satisfied with the manual operation of the POD valves reset and re-insert the Safety Lock pins.
5. Connect a Nitrogen pilot gas test cylinder to the control head and connect the pilot loop. With the
pressure/manual. release heads still removed from the CO2 cylinder, operate the control head
thereby releasing the pilot gas (Nitrogen) into the pilot causing the pressure/manual release heads to
operate.
NOTE: If POD valves are installed in the system check that these have opened before checking
the pressure/manual release heads.
6. Check that there are no leaks in the pilot gas system and that the pilot vent bleed, K24051, operates
correctly. Sufficient pressure to operate the pressure/manual release heads (and POD valves if
fitted) should be maintained in the system for a MINIMUM OF TEN MINUTES.
7. After the POD valves and/or pressure/manual release heads have functioned correctly re-set the
control head by screwing the “Safety and Reset” pin fully home.
8. Disconnect the pilot line from the pilot gas cylinder and remove the pilot gas cylinder from the control
head. The pilot gas line will now be vented.
9. Manually reset the piston and visually check the plunger in each pressure/manual release head.
10. Reset the control head and replace the test pilot gas cylinder with the full pilot gas cylinder. Tighten
the running nut at the control head/pilot cylinder interface.
11. When satisfied, re-connect the pressure/manual release heads to the CO2 container discharge
valves.
19.2.4 Pressure Trip
The trip may be operated from the pilot line or from the discharge pipework. Check the pressure trip
mechanism if incorporated in the system as follows:-
1. Physically lift the pivoted lever as shown in Figure 53 etc, allowing relevant equipment, e.g. fire
curtains or dampers, to be operated.
2. After manual operation of the pressure trip has been carried out successfully, re-set all fire curtains,
dampers etc.
3. To demonstrate operation of a pressure trip assembly, which is operated from the discharge
pipework, release one CO2 cylinder or connect a portable CO2 extinguisher to the manifold.
Disconnect all other cylinders.
WARNING
DO NOT DISCHARGE CO2 WHILE THERE ARE PERSONNEL IN THE AREA. THE ENGINEER
CARRYING OUT THE TEST MUST OBSERVE THE SAFETY REGULATIONS GOVERNING THE USE
OF CO2.
4. If POD valves are installed in the main distribution line, remove the Safety Lock pins and manually
open.
5. Discharge a CO2 cylinder or portable CO2 extinguisher, and check that the trip assemblies have all
functioned correctly.
© K.F.P.S. Ltd December 2004 Manual No 59812-400
102
6. Re-set the POD valve and re-insert the Safety Lock pin to the CO2 container.
7. Re-set the pressure trip assemblies.
19.2.5 Pressure Switch
If a pressure switch assembly is installed in the main CO2 line, check the correct operation as follows:
1. Remove the clear plastic spindle cover, reverse and screw it onto the spindle.
2. Check that an alarm is given when the spindle is pulled out.
3. When satisfied re-set the pressure switch. Chapter 12.
NOTE: The switch may be pressure tested by connecting a CO2 container onto the distribution
pipework.
19.3 INSTRUCTIONS FOR COMMISSIONING THE SYSTEM AFTER ITS OPERATION
1. Refit the cylinder transport caps. Remove the empty CO2 cylinders.
2. Refill the CO2 cylinders or replace with fully charged cylinder and secure.
3. If distribution valves are fitted check that they are shut.
4. Check nozzles’ orifices for debris; clean if necessary.
5. Re-set all system ancillaries, including pressure switches, pressure trips, dampers, curtains, door or
window shutters, ventilators, remote lock-off services and pull boxes.
6. Reset each control head by screwing the “Safety and Reset” pin fully home. Remove the “Safety and
Reset” pins and leave them in the possession of an authorised person.
7. Replace the empty pilot gas cylinder with a new or refilled assembly.
© K.F.P.S. Ltd December 2004 Manual No 59812-400
103
PART 4 TERMS AND CONDITIONS
20. TERMS AND CONDITIONS
Kidde Fire Protection Services LTD
1.0 In these Conditions, the Seller means KIDDE FIRE PROTECTION SERVICES LTD, the Particulars of Contract
are the details of the Contract set out overleaf, the Buyer and the Goods are respectively the person and the
products specified in the Particulars of Contract as such. Appointed Person means a director or appointed
manager of the Seller, and the Contract means the Contract for the sale of the Goods by the Seller to the Buyer
comprising the Particulars of Contract and these Conditions. These Conditions shall apply to all contracts of sale
with the Seller in relation to the goods and services supplied by the Seller.
Formation and Parties
2.0 No express terms other than those contained in these Conditions and the Particulars of Contract shall be part of
the Contract, and the Contract may only be varied in writing by an Appointed Person. No representations or
warranties relating to the Goods or advice or recommendation on the use of the Goods are binding on the Seller
unless confirmed by the Seller in writing in response to a written request of the Buyer specifically referring to this
Condition.
2.1 The Contract may be cancelled by the Buyer only with the Seller's written consent which, if given, shall be on the
express condition that the Buyer shall pay to the Seller a cancellation charge commensurate with the Seller's
costs incurred up to the date of cancellation plus the Seller's loss of profit or, at the Seller's option, a sum equal to
ten per cent of the Contract Price.
2.2 Unless otherwise specified, quotations made by the Seller shall automatically lapse if no order is received by the
Seller within 30 days of the date of quotation. None of the Seller's distributors, agents or employees are
authorised to conclude contracts orally or over the telephone, and quotations, statements in price lists, or sales
literature and advertisements do not constitute offers. No contract for the sale of Goods shall be concluded until
the Seller has accepted an order of the Buyer by sending to the Buyer an Acknowledgement of Order signed by
an Appointed Person.
2.3 The Buyer warrants that all information which it has given to the Seller prior to entering into the Contract is true
and correct and the Seller reserves all its rights where it subsequently discovers such information is incorrect.
Delivery
3.0 If any delivery time is specified in the Particulars of Contract, this period shall commence on the later of the date
of the Seller's written Acknowledgement of Order and the date the Seller receives all the information necessary to
allow it to proceed without interruption, or if the Buyer requests any variation to the Contract, the date of the
Seller's written confirmation of its agreement to such variation.
3.1 Although the Seller will endeavour to complete the Contract within any specified delivery time or by any specified
delivery date, that time or date is an estimate only and the Seller shall not be liable for any reasonable delay in
delivery.
3.2 Any delivery time specified shall (in any event) be extended by any period or periods of Force Majeure during
which the manufacture or delivery of the goods by the Seller under the Contract is delayed owing to fire,
explosion, flood, storm, sabotage, strikes (official and unofficial), riot, acts of war (whether war be declared or not)
shortage of labour, power, or materials, delay by the Seller's suppliers, civil commotion, accidents, plant
breakdowns, technical difficulties connected with the manufacture or adaptation of the Goods to the Buyer's
design or specification, seizure or other action by or compliance with an order of an apparently competent
authority and any other event or circumstance beyond the control of the Seller.
3.3 The Seller shall be entitled to withhold delivery of any Goods if at the time delivery is to be made payment is due
by the Buyer to the Seller on any account whatsoever.
3.4 The delivery of a greater or lesser quantity of the Goods than the quantity ordered, of other Goods not ordered, or
of Goods only some of which are defective, shall not entitle the Buyer to reject Goods that were ordered and are
not defective.
3.5 Unless otherwise stated, delivery shall be deemed to take place when the Goods are delivered to the delivery
address specified in the Particulars of Contract or if not so specified, at the principal place of business of the
Buyer known to the Seller.
3.6 If the Buyer fails to accept delivery of the Goods in accordance with the Contract the Seller may (without prejudice
to its other rights against the Buyer) store the Goods at the sole risk and cost of the Buyer.
3.7 The Buyer shall inspect the Goods immediately on delivery thereof and shall within five days from such delivery
give notice to the Seller of any matter or thing by reason thereof the Buyer may allege that the goods are not in
accordance with the Contract or are defective in material or workmanship. If the Buyer shall fail to give such
notice the Goods shall be conclusively presumed to be in all respects in accordance with the Contract and free
© K.F.P.S. Ltd December 2004 Manual No 59812-400
104
from any defect which would be apparent on reasonable examination of the Goods and the Buyer shall, as
between the Buyer and the Seller, be deemed to have accepted the Goods accordingly.
3.8 The Seller reserves the right to make delivery by instalments and invoice and be paid for each installment
separately. Each installment shall be deemed to constitute a separate agreement subject to the terms of the
Contract and no failure of or delay in delivery of any installment nor any defect in the contents thereof shall entitle
the Buyer to treat the Contract as repudiated with regard to any remaining instalments.
Retention of Title
4.0 Notwithstanding delivery, title to the Goods shall not pass to the Buyer until all sums due on any account
whatever by the Buyer to the Seller have been paid in full. Until such time the Buyer will hold the Goods as bailee
of and in a fiduciary capacity for the Seller and will:
(i) keep the Goods marked or stored separately from other goods, so as to be identifiable as the property of the
Seller;
(ii) deliver the Goods up to the Seller on demand; and
(iii) permit the Seller or its agents to enter upon the Buyer's premises in order to retake possession of the
Goods.
4.1 Notwithstanding that the property in all Goods to be delivered to the Buyer by the Seller will remain vested as
aforesaid until the Seller has received payment in full therefor, the risk of damage to or loss of all or any such
Goods will pass to the Buyer upon delivery in accordance with the Contract unless the Buyer shall fail to accept
delivery whereupon the risk shall pass to the Buyer on the earliest date on which the delivery could have been
made but for such failure on the part of the Buyer.
Price
5.0 Unless otherwise stated in the Particulars of Contract, the Contract prices for the Goods shall be:
(i) exclusive of VAT, taxes or duties levied on the Seller in the Buyer's country for which the Seller shall be
entitled to make additional charges, and shall be exclusive of the costs of delivery and associated packaging
and insurance costs which shall be charged separately.
(ii) subject to increase by the Seller to reflect any variation in the delivery schedule for or design, quantities or
specifications of the Goods made at the request of the Buyer or any delay caused by the failure of the Buyer
to provide adequate information or instructions to the Seller.
Payment
6.0 Unless otherwise specified in the Particulars of Contract payment for the Goods shall be made in full within 30
days of the date of invoice. Time of payment shall be of the essence. If the Buyer fails to make any payment on
the due date then, without prejudice to any other right or remedy available to the Seller, the Seller shall be entitled
to suspend any further deliveries to the Buyer, appropriate any payment made by the Buyer to such of the Goods
(or the Goods supplied under any other contract between the Buyer and the Seller) as the Seller may think fit
(notwithstanding any purported appropriation by the Buyer) charge the Buyer interest (both before and after any
judgement) on the amount unpaid at the rate of 4 per cent per annum above Barclays Bank plc base rate from
time to time and exercise a lien over any property of the Buyer then in its possession, until payment in full is
made.
6.1 Save as aforesaid payments shall be applied to invoices in the order in which they were issued and to Goods in
the order in which they are listed in invoices.
6.2 The Buyer shall not be entitled to make any deduction or withhold any sum from the payment from time to time
due from it whether by way of set-off, counter claim or otherwise.
Warranty
7.0 The Seller warrants for a period of 12 months from invoice date that, in so far as the Goods are of its own
manufacture, they shall be free from defects in workmanship or materials at the time of delivery. If any Goods do
not conform to that warranty the Seller will at its option:
(a) replace the Goods found not to conform to the warranty and such replacements shall be supplied subject to
these Conditions; or
(b) take such steps as the Seller deems necessary to bring the Goods into a state where they are free from
such defects; or
(c) take back the Goods found not to conform to the warranty and refund the appropriate part of the purchase
price.
PROVIDED THAT:
(i) the liability of the Seller shall not arise unless the Buyer demonstrates to the Seller's reasonable satisfaction
that the Goods have, prior to use, been properly stored and handled and subsequently have not been used
in any unusual or abnormal way or in a manner contrary to any instructions or recommendations for use
provided by the Seller;
(ii) the liability of the Seller shall in no event exceed the purchase price of the Goods;
(iii) performance of any one of the above options (as limited by (ii) above) shall constitute an entire discharge of
the Seller's liability under this warranty.
© K.F.P.S. Ltd December 2004 Manual No 59812-400
105
7.1 The foregoing warranty is conditional upon:
(a) the Buyer giving written notice to the Seller of the alleged defect in the Goods, such notice to be received by
the Seller within 7 days of the time when the Buyer discovers or ought to have discovered the defect and in
any event within one year of delivery of the Goods;
(b) the Buyer affording the Seller a reasonable opportunity to inspect the Goods and, if so requested by the
Seller, returning the allegedly defective Goods to the Seller's works, carriage pre-paid, for inspection to take
place there;
(c) the Buyer making no further use of the Goods that are alleged to be defective after the time at which the
Buyer discovers or ought to have discovered that they are defective.
7.2 The Seller further undertakes that, in so far as the Goods are not of its own manufacture, it will pass on to the
Buyer the benefit of any guarantees or indemnities given to it in respect of such Goods by its own suppliers.
7.3 Save as provided in paragraphs 1 and 3 of this clause, in clause 2 and in section 12 of the Sale of Goods Act
1979:
(i) all conditions and warranties, express or implied, as to the quality or fitness for any purpose of the Goods
are hereby expressly excluded; and
(ii) except in respect of death or personal injury caused by the Seller's negligence, or in respect of liability under
the Consumer Protection Act 1987, the Seller shall not be liable for any loss or damage (whether direct,
indirect or consequential) howsoever arising which may be suffered by the Buyer.
It is hereby expressly declared that any statements as to quality made by the Seller do not form part of the
description of the Goods.
Limits of Liability
8.0 The Buyer must satisfy itself of the suitability of the Goods for the purposes for which they are purchased, and
must comply with any directions, instructions or warnings as to the use storage or handling of the Goods given by
the Seller. The Buyer must also ensure that the Goods comply with all local approvals and standards relating to
the use to which they are to be put, and without prejudice to the generality of paragraph 3 above, all
recommendations and advice given by or on behalf of the Seller to the Buyer as to the methods of storing,
applying or using the Goods the purposes to which the Goods may be applied and the suitability of using the
Goods in any manufacturing process or in conjunction with any other materials are (except when given pursuant
to a request of the Buyer under clause 2) given without liability on the part of the Seller, its servants or agents.
8.1 In the event that, notwithstanding the provisions of paragraphs 7.3 and 8.0 above, the Seller is found liable for any
loss or damage suffered by the Buyer, that liability shall in no event exceed the purchase price of the Goods.
8.2 Nothing in these Conditions or in the Particulars of Contract shall affect or limit the validity or application of any
customer warranty with the benefit of which any of the Goods are sold and if the Buyer, being an end-user, is able
to benefit from such a warranty the terms thereof shall prevail over the terms of these Conditions and the
Particulars of Contract.
Bankruptcy and Liquidation
9.0 This clause applies if the Buyer becomes (or appears to the Seller to be about to become) bankrupt, or goes (or
appears to the Seller to be about to go) into liquidation, has a petition presented or threatened for its winding-up,
suspends payment of debts or makes any arrangement with creditor, fails to pay in accordance with the terms of
the Contract, has an administration order made or a petition for such an order presented or threatened, has a
receiver appointed over all or any part of its assets or is answerable under the law of the country having
jurisdiction over the Buyer or its assets for any of the foregoing, or is in breach of any other term of the Contract.
9.1 If this clause applies, then without prejudice to any other right or remedy available to the Seller, the Seller shall be
entitled to cancel the Contract or suspend any further deliveries under the Contract without liability to the Buyer,
and if the Goods have been delivered but not paid for the price shall become immediately due and payable
notwithstanding any previous agreement or arrangement to the contrary.
Indemnities
10.0 The Buyer shall indemnify the Seller in respect of all damage injury or loss occurring to any person or property
and against all actions, suits, claims, demands, charges or expenses in connection therewith arising from the
condition or use of the Goods in the event that the damage injury or loss shall have been occasioned partly or
wholly by the carelessness of the Buyer and his servants, contractors or agents or by any breach by the Buyer of
either its obligations to the Seller hereunder or of any patent, design or other intellectual property right of a third
party.
10.1 The Buyer undertakes that it shall not solicit purchasers for the Goods outside countries which for the time being
are Member States of the European Economic Area ("EEA State") or sell the Goods to any person who it knows
is intending to use or resell the same outside the EEA States PROVIDED THAT nothing in this clause or
elsewhere in these Conditions shall be construed so as to prevent the Buyer from selling or distributing the Goods
in or to any EEA State to any person intending to use or resell the same in any EEA State.
Notices
11.0 Any notice required or authorised to be given hereunder shall be in writing and shall be served by registered mail
sent to the address given above or any other address notified for the purpose and shall be deemed to be served
© K.F.P.S. Ltd December 2004 Manual No 59812-400
106
seven days after proven despatch, provided that any other mode of service shall be valid if the said notice or
other communication is actually received by the addressee.
Force Majeure
12.0 The Seller shall not be liable to the Buyer if unable to carry out any provision of the Contract for any reason
beyond its control including (but without limitation) Act of God, legislation, war, civil commotion, fire, flood,
drought, failure of power supply, lock out, strike, stoppage or other action by employees or third parties in
contemplation or furtherance of any dispute or owing to any inability to procure parts or materials required for the
performance of the Contract.
Waiver
13.0 Any failure by the Seller to enforce any or all of these conditions shall not be construed as a waiver of the Seller's
rights.
Construction and Jurisdiction
14.0 The proper law of the Contract shall be English law and the English courts shall have jurisdiction over any
disputes arising thereunder. This edition of the Conditions of Sale dated October 2002 supercedes all previous
editions.
© K.F.P.S. Ltd 59812-402 Issue B December 2004 Page ii
High Pressure
Carbon Dioxide
Fire Protection Equipment
Flow Calculation Program
KFP CO2 Version 2.0.3
User’s Manual
Manual No. 59812-402
Issue B December 2004
© K.F.P.S. Ltd 59812-402 Issue B December 2004 Page ii
Contents
COVER..................................................................................................................................................... i
CONTENTS .............................................................................................................................................. ii
FOREWORD ............................................................................................................................................ iii
1 OVERVIEW 1
1.1 Total Flooding.............................................................................................................................. 1
1.2 Local Application.......................................................................................................................... 2
2 HYDRAULIC FLOW CALCULATION PROGRAM (KFP CO2) 3
2.1 Commands Available ................................................................................................................... 4
2.1.1 System Information ...................................................................................................................... 4
2.1.2 Hazard Information....................................................................................................................... 6
2.1.3 Piping Model Data...................................................................................................................... 11
2.1.4 Calculate and Display Results ................................................................................................... 18
2.2 Output / Print Data and Results.................................................................................................. 21
APPENDIX 23
A-1 Equivalent Length Reference Tables ......................................................................................... 23
A-2 KFP CO2 Calculation Example #1.............................................................................................. 24
A-3 KFP CO2 Software Hot Keys Reference List.............................................................................. 31
© K.F.P.S. Ltd 59812-402 Issue B December 2004 Page iii
Foreword
Kidde Fire Protection Services Ltd reserves the right to revise and improve its products as it deems necessary
without notification. This publication is intended to describe the state of this product at the time of its publication,
and may not reflect the product at all times in the future. The software screen prints depicted in this manual are
presented for reference purposes only and may not reflect the most current version of the High Pressure CO2
Flow Calculation Software (KFP CO2 Version 2.0.3).
This technical manual provides the necessary information for designing and performing flow calculations for a
Kidde Fire Protection CO2 Engineered System.
This publication, or parts thereof, may not be reproduced in any form, by any method, for any purpose, without
the express written consent of Kidde Fire Protection Services Ltd.
Any questions concerning the information presented in this manual should be sent to the address below.
Copyright ©2004 Kidde Fire Protection Services Ltd. All Rights Reserved.
Thame Park Road,
Thame,
Oxfordshire,
OX9 3RT,
UK
© K.F.P.S. Ltd 59812-402 Issue B December 2004 Page 1
1 OVERVIEW
Carbon dioxide (CO2) is a universally accepted extinguishing agent for fires involving flammable liquids,
electrical equipment and other special hazards such as record and fur storage vaults, where ordinary
fire protection with water could cause as much or more damage than the fire itself.
Carbon dioxide is an odourless, colourless gas at ordinary temperatures. When used for fire protection,
it is stored under pressure in high pressure cylinders. Under normal conditions, the gas is compressed
into a liquid. The colder the storage temperature, the denser the liquid.
When a carbon dioxide system is released, the gas pressure in the storage container propels the liquid
through pipe lines to discharge nozzles. Carbon dioxide vapour will continue to be expelled from the
storage container after all the liquid is gone. This “gas point” occurs when about 70 percent by weight
of a high pressure cylinder’s contents have been discharged. This is an important feature to keep in
mind when designing a system.
Carbon dioxide extinguishes fires mainly by smothering; that is, by displacing air and its oxygen, which
is needed to sustain burning, or rapid oxidation. An average concentration of 34 percent by volume
will handle fires involving most common materials. Other materials may require an inert atmosphere
of up to 100 percent. Some burning materials, such as stacked paper, furs, non-plastic electrical
insulation and baled cotton, oxidize at very low oxygen levels and there is so much oxygen contained
in pores or other internal spaces that they must be “soaked” in a smothering atmosphere for periods
of from five (5) minutes to hours to allow CO2 to reduce the oxidation level to a point where new heat
generated is less than the heat loss to surrounding material or atmosphere.
There are two basic methods of applying carbon dioxide:
1) Total Flooding
2) Local Application.
1.1 Total Flooding
Total flooding is used when the hazard is enclosed in a room, compartment or other type of housing.
BS5306 Pt 4 / NFPA 12 (2000 edition, Section 2-1.2) states that total flooding shall be used “where
there is permanent enclosure around the hazard that adequately enables the required concentration
of carbon dioxide to be built up and to be maintained for the required period of time.” If the space is
acceptably tight; if openings that can leak carbon dioxide, such as doors, windows and ducts can be
closed; and if forced draft devices, such as fans, can be shut off, the amount of carbon dioxide required
and the duration of discharge are readily calculated on a volume basis for the types of material
involved. The entire contents of the storage container, liquid and vapor, are usable.
There are circumstances, however, wherein some opening, small but critical, cannot be closed. Or,
as with rotating electrical or other motorised equipment, it takes a considerable period of time for the
equipment to come to a stop, during which essential ventilation continues. Total flooding often is used
in these situations, but additional carbon dioxide is applied to “screen” the openings and/or to replace
leakage. With large generators, which may have deceleration times of twenty (20) minutes or more and
hazards with low flash point fuel or lube oil and exposed hot metal surfaces that require a cool down
period, a supplementary extended discharge of carbon dioxide is applied during the period.
© K.F.P.S. Ltd 59812-402 Issue B December 2004 Page 2
1.2 Local Application
Local application is used when the hazard is open or is not enclosed sufficiently for flooding. Rate and
duration of application, positioning of nozzles, arrangement of discharge piping and the usable capacity
of storage containers are critical factors as the discharged carbon dioxide is soon dissipated and has
no continuing effect.
System design for local application is considerably more complex than for flooding an enclosure. The
types of nozzle to be used and their locations must first be determined within accurate limits.
© K.F.P.S. Ltd 59812-402 Issue B December 2004 Page 3
2 HYDRAULIC FLOW CALCULATION PROGRAM (KFP CO2)
The high pressure CO2 calculation program (KFP CO2) has been written within the WindowsTM
environment. Installation procedures will be provided with the CD. (It is our assumption that the user
has a basic knowledge of this operating system and its operation will not be addressed within this
manual.) The computer program will establish pipe sizes as well as calculate terminal pressures,
discharge time, and nozzle drill sizes. The primary requirement for a proper calculation is to insure that
the system is modelled into the computer program correctly. Therefore, the input parameters may be
printed out as well as the calculation results. This makes it possible to verify the input data against the
intended design parameters and/or the actual installation. It is possible to input either kilograms
required for each nozzle fixed flow rate or the existing nozzle drill size (fixed code).
The Kidde Fire Protection Carbon Dioxide Flow calculation program has been divided into three main
areas:
1) Commands Available
2) Output
3) File Utilities.
NOTE
THE CALCULATION INFORMATION CAN BE ENTERED AND DISPLAYED IN METRIC OR IMPERIAL UNITS. IT CAN BE
CONVERTED AT ANY TIME UPON COMMAND BY SIMPLY USING THE METRIC CHECK BOX.
Figure 2.1 – Commands Available
© K.F.P.S. Ltd 59812-402 Issue B December 2004 Page 4
2.1 Commands Available
This area has been subdivided into the following categories:
System Information
Hazard Information
Piping Model data
Calculate and Display Results
Clear All Current Data
2.1.1 System Information
Within the Systems Information screen there are four submenus:
Project Data
Revision
Cylinder Data
Configuration Variables
Figure 2.1.1 – System Information
© K.F.P.S. Ltd 59812-402 Issue B December 2004 Page 5
2.1.1.1 Project Data
The Project Data section consists of the following data:
1. Project Number: Reference number
2. Project Name: Name of project or end user
3. Site Location: Installation location
4. Hazard Name: Name of protected hazard
2.1.1.2 Revision
This data field is used to track versions/changes on a specific data file and/or submittal.
2.1.1.3 Cylinder Data
The Cylinder Data section consists of the following data:
1. Number of Cylinders: The number of cylinders required to contain the amount of CO2 required for
a discharge. This value may be entered by one of two means: the value may be directly entered
into this field or a value may be selected from the pop-down window, which may be accessed by
clicking onto the arrow at the right of the data field.
2. Cylinder Capacity: The CO2 cylinders are available in only 6.8, 22.6, 36.2, and 45 kg capacities.
3. Storage Pressure (BAR): This is a fixed selection. All high
pressure CO2 calculations are based upon an average storage
pressure of 58.6 bar @ 21 deg C (850 psi).
4. Pipe Length Factor: The length of the main piping run affects the
vapour time associated with a CO2 discharge. The longer the run,
the greater the amount of CO2 vaporised within the piping. The
discharge rate of each nozzle must be increased to draw more liquid
CO2 into the piping network to compensate for the vapour. Table
2.1.1.3-D is a guideline for the pipe length factor.
5. Exclude Pipe Size: Occasionally, it is desirable to exclude or inhibit
specific pipe sizes from being selected and used by the calculation
program. To exclude a pipe size from being selected, simply
choose the specific size or “None”. Only a maximum of 2 sizes may
be excluded from the calculation. The sizes in this list represent all
the pipe sizes possible for both steel pipe and tubing.
NOTE
THE USER SHOULD BE AWARE AS TO WHICH PIPE SIZES ARE APPLICABLE TO THE PIPE TYPE THAT WILL BE
UTILIZED IN THE PIPING NETWORK.
6. Pipe Temperature: The initial pipe temperature should be entered here to accurately calculate the
vapor portion of the discharge.
Table 2.1.1.3-D
Pipe Length Factor
Distance Factor
0 - 15 Meters
(0-50 Feet) 1.10
15 - 30 Meters
(50-100 Feet) 1.20
30 - 90 Meters
(101-300 Feet) 1.30
90 - 120 Meters
(301-400 Feet) 1.40
120 - 150 Meters
(401-500 Feet) 1.50
© K.F.P.S. Ltd 59812-402 Issue B December 2004 Page 6
Figure 2.1.1.3 – Exclude pipe sizes
7. Loss Factor (%): To compensate for enclosure tightness or lack thereof, the loss factor (expressed
in percentages) will proportionally increase the amount of CO2 storage required to assure a
minimum concentration. The default value is 10%.
8. Minimum Temperature: For High Pressure CO2 systems where the cylinders may be exposed to
temperatures below 0°C (32°F) for local application systems or -18°C (0°F) for total flooding
systems.
9. Main/Reserve: Adjusts the quantity of equipment for the Bill of Material printout.
2.1.1.4 Configuration Variables
1. Report Title: The data entered here will appear in the general heading area on all printouts. The
intended use is to allow Kidde Fire Protection distributors to incorporate their company name into
the printouts.
2.1.2 Hazard Information
Within the Hazard Information screen there are three subcategories:
Hazard Data
Area
Area Nozzle List
© K.F.P.S. Ltd 59812-402 Issue B December 2004 Page 7
2.1.2.1 Hazard Data
The first section is used to input the hazard area name(s) for reference, type of CO2 protection,
concentration and temperature. More than one area name may be included; however, each area name
must be entered separately.
Figure 2.1.2.1 – Hazard Data
A. Area Name: Enter the name of the specific area - commas are not allowed.
B. Type: Select the appropriate hazard type and the calculation module will perform the necessary cross
checks needed to determine if the calculated system’s discharge performance is satisfactory. See the
chart on the following page for some examples of the cross checks performed.
The latest edition of BS5306 pt 4 / NFPA 12 should be consulted prior to determining the fire type
for each hazard.
© K.F.P.S. Ltd 59812-402 Issue B December 2004 Page 8
Figure 2.1.2.1 – System Type
Extended Discharge
A fifth fire type of “Ext’d Discharge” is for those hazards that require an extended discharge. The
program accommodates this by requesting a few bits of information and then compares the
calculated results to what the calculated requirements are based on the information supplied
to the program.
Fire Type Required Duration Comparison
TF Surface <=60 seconds Did the calculated requirement of gas discharge in time?
TF Deep Seated <=420 seconds Did the hazard achieve 30% concentration in 2 minutes, and
the remainder of gas required in less than 7 minutes?
LA Rate by Area >=30 seconds Was there at least 30 seconds of LIQUID discharge from
each nozzle?
LA Rate by Volume >=30 seconds Was there at least 30 seconds of LIQUID discharge from
each nozzle?
Ext’d Discharge See below
© K.F.P.S. Ltd 59812-402 Issue B December 2004 Page 9
When “Ext’d Discharge” is chosen, the Extended
Discharge Input form is shown.
There are three choices available based on the
hazard:
Dry Electrical Hazard
HydroElectric Generator
Job Specification
1. Dry Electrical Hazard: A typical hazard of
this kind is anything that requires a 30%
concentration held for some period of time,
i.e., a transformer room or a
compartmentalised gas turbine. If this option
is chosen, simply fill in the volume, choose a loss factor per minute (usually between 1% &
3% is sufficient for enclosures that have average leakage), and type in the cool-down (or
hold) time in minutes. After supplying these three pieces of information, press the Compute button.
Next an Extended Discharge Wizard Dialog
box will be shown - fill in the design criteria for
the INITIAL discharge. Based on the
information you supply, the program will be
able to compute the extended discharge CO2
quantity and the rate of discharge per minute.
If the initial discharge design criteria needs to
be modified, simply depress the “Edit Initial
Discharge Information” and the program will
re-compute the requirements for the extended
discharge. When finished, simply press the
Close button and the information from this
form will automatically transfer to the Hazard
Data Screen. Next add the required amount of
discharge nozzles.
2. HydroElectric Generator: If this option is
chosen, simply type in the volume and select
the cool-down time from the drop-down list. After completing this, press the Compute button.
The software will use Table 4 from Design Manual 59812-401 to calculate the amount of gas
required and then calculate the appropriate rate of discharge per minute. After this is
complete, press the Close button and the information from this form will automatically
transfer to the Hazard Data Screen. Then just add the required amount of discharge
nozzles.
3. Job Specification: Sometimes manufacturers supply a specification for how the extended
discharge shall perform. In this case, select this option. You then fill in all the fields, i.e.,
volume, CO2 quantity, rate, and the cool-down time. Next, press Compute so the program
can compute/set the necessary values needed for the calculation module. When this is
complete, press the Close button and the information from this form will automatically
transfer to the Hazard Data Screen. Next, just add the required number of discharge
nozzles.
Figure 2.1.2.1.2
Figure 2.1.2.1.1
© K.F.P.S. Ltd 59812-402 Issue B December 2004 Page 10
C. % (% Concentration): For Total Flooding Systems only, this is the minimum percentage of
CO2 concentration required for this specific area. Refer to BS5306 pt 4 / NFPA12 for further
information.
D. Temperature: For Total Flooding Systems Only, enter the normal ambient temperature for
the area. If the area has a temperature in excess of 100°C (212°F) or below -18°C (0°F), the
program will automatically compensate an additional 2% CO2 Gas for every 5°C above 100°C
and 2% CO2 gas for every 1°C below -20°C.
2.1.2.2 Area
Enter the appropriate values in the Length, Width and Height field and the program will compute the
correct room volume and amount of agent required automatically. As you will note, the Width and
Height fields are both set to a default of 1. If the volume is known, enter it into the Length data field and
leave the Width and Height fields as 1. Once the data has been entered, clicking on the Add button will
assign this data to the current hazard.
2.1.2.3 Area Nozzle List
Each area must have one or more nozzles associated with it. Each nozzle will have a unique ID
number. These numbers are automatically assigned and are incremental, starting with 301. The proper
type of nozzle must be chosen for the type of hazard area being protected. Once a nozzle has been
added, a blank line will appear at the bottom of the nozzle grid. If no blank line appears at the bottom
of the grid, the nozzle has not been added. To change the nozzle type, simply click on the row(s) and
choose the correct nozzle type from the list. To change an existing nozzle number, select the nozzle
to be changed and type in the new nozzle number.
Figure 2.1.2.3 – Area Nozzle List
© K.F.P.S. Ltd 59812-402 Issue B December 2004 Page 11
2.1.3 Piping Model Data
The piping information is the heart of the system model. This area is where the pipe and kgs / nozzles
data is recorded. Several pieces of data are required and Section 2.1.3.2 provides a brief description
of each of the columns.
Figure 2.1.3 – Piping Model Data
2.1.3.1 System Design Considerations for Sectioning of Pipe
The first step is to make an isometric sketch of the system. All rises and drops should be noted, as well
as other known pertinent data such as manifold size and pipe schedule.
A separate pipe section is required for any one of the following conditions:
Change in Pipe Diameter.
Change in Pipe Schedule.
Divisions of Flow (as at a tee).
Rise or drop in elevation greater than 1.52 meters (5 feet).
1. Terminal Points
1. All terminal points should progress in logical numeric succession. The starting point (point 1)
is located at the bottom of the first cylinder’s dip tube. From here the subsequent points are
plotted moving toward the discharge nozzles.
© K.F.P.S. Ltd 59812-402 Issue B December 2004 Page 12
2. A terminal point is placed upstream of (before) a tee where a division of flow occurs. Where
flow is routed through only one branch of a tee, a terminal number can be omitted if none of the
four conditions mentioned above occurs.
3. A Pressure Operated Directional Valve (POD) should be kept as close to the beginning of a
section as possible. A POD valve can begin a section by placing the terminal point at the
valve’s inlet.
4. A terminal point should be located at the start of a rise or drop of greater than five feet.
5. Number the terminal points consecutively to the end of each distribution section. Do not
duplicate numbers on the same calculation.
6. Multi-hazard systems (utilising POD valves) demand close attention. The hazard requiring the
greatest flow rate (not necessarily the greatest quantity of CO2) should be calculated first, since
it will establish the size of the manifold and main discharge header. These sizes must be used
in calculations for the other hazards.
2.1.3.2 Column Headings and Descriptions
1. Nodes: These points identify the section of pipe, nozzle or a cylinder that is being modelled.
2. Start: This indicates the beginning of a pipe, manifold, or
cylinder section.
3. End: This indicates the end of the same section. If this
line is a nozzle, clicking the button that appears in this cell
will cause a Hazard Nozzle Reference Box to be visible.
Here the user can scroll through the hazards and select
the desired nozzle, or simply type in the nozzle number
into the “end” cell.
4. Cylinder Qty: The quantity of cylinders flowing through this specific section of manifold piping.
Enter a quantity of zero (0) to indicate distribution piping.
5. Pipe Len: Length of pipe in feet or meters, as applicable, including all elevation changes.
6. Elev: Change of elevation within the pipe section, expressed in feet or meters.
1. A positive number indicates a rise in elevation.
2. A negative number indicates a drop in elevation.
3. A zero indicates no change in elevation.
Figure 2.1.3.2.C – Hazard nozzle reference box
© K.F.P.S. Ltd 59812-402 Issue B December 2004 Page 13
7. Type: Type of pipe to be installed. There are several types available, accessible through the pop-
down, for use:
1. 40T: Schedule 40 pipe with threaded fittings. Select for BS5306 systems using BS1387 pipe,
up to and including 40mm.
2. 40W/V Schedule 40 pipe with welded or grooved / Victaulic fittings. Select for BS5306 systems
using BS1387 pipe, up to and including 40mm.
3. 80T: Schedule 80 pipe with threaded fittings. Select for BS5306 systems using BS3601 or
API5L pipe.
4. 80W/V: Schedule 80 pipe with welded or grooved / Victaulic fittings. Select for BS5306 systems
using BS3601 or API5L pipe.
5. Tubing: Stainless steel tubing with compression fittings. Not to be used in BS5306 systems
Table 2.1.3.2.G5 - Tubing Chart
Tubing OD
inches mm
Wall
Thickness
(inches)
1/4 8 0.065
5/16 9 0.065
3/8 10 0.065
1/2 15 0.065
5/8 18 0.065
3/4 20 0.095
7/8 22 0.095
1 25 0.095
1-1/4 32 0.188
1-1/2 40 0.188
2 50 0.188
All tubing to be either:
Grade 304 seamless (ASTM A-213, A-269)
Grade 304 welded (ASTM A-129, A-269)
Grade 316 seamless (ASTM A-213, A-269)
Grade 316 welded (ASTM A-249, A-269)
Grade 304L and 316L Tubing is NOT allowed.
© K.F.P.S. Ltd 59812-402 Issue B December 2004 Page 14
Figure 2.1.3.2.7 – Type of Pipe
8. Size: The size of pipe in the section. When a pipe size of “0" is chosen, the program will
automatically calculate the pipe size required. Depending on the type of pipe chosen under the pipe
type column, the appropriate pipe sizes will be displayed in the pipe size drop down list; i.e., if 40T
is chosen, a size of 22 cm (7/8") will not be available.
Figure 2.1.3.2.8 – Pipe Size
© K.F.P.S. Ltd 59812-402 Issue B December 2004 Page 15
9. Fittings 90's: Indicates the number of 90°elbows in the pipe section. When 45° elbows are used,
they are treated as an equivalent number of 90° elbows. In this case, 0.5 would be inserted for
each 45° elbow and included in the 90's field.
Figure 2.1.3.2.10.1 – Tees and Valves
10. Tees/Valves: The default for this section is “None.” For sections where tees or selector valves are
used, the following choices are available:
1. Thru: The beginning of the pipe section begins with a thru tee. If the side branch of a tee is
used to provide pressure for tripping a pressure switch or pressure release, it is treated as an
equivalent number of elbows. In this case, 0.6 would be included in the 90's field.
2. Side: The beginning of the pipe section
begins with side tee. If one of the thru
branches of a tee is used to provide
pressure for tripping a pressure switch or
pressure release, it is treated as an
equivalent number of elbows. In this
case, 2.0 would be included in the 90's
field.
3. Dirt Trap (Blow Out): The equivalent
length of the dirt trap fittings will
automatically be included in the
calculation program. Figure 2.1.3.2.10.2
depicts a typical dirt trap arrangement.
Figure 2.1.3.2.10.2
© K.F.P.S. Ltd 59812-402 Issue B December 2004 Page 16
4. Pressure Operated Directional Valve (POD): The beginning of the pipe section begins with
a POD valve. The equivalent length of the valve will automatically be included in the calculation
program. If a pipe type of “Tubing” was chosen, it will be automatically changed to 40T.
5. Thru & POD: To save time by avoiding additional lines of piping data input, if the pipe section
begins with a thru tee and is followed by a POD selector valve, the pipe modelling can be
configured as one line of input. All fitting equivalent lengths will automatically be included with
the input. If a pipe type of “Tubing” was chosen, it will be automatically changed to 40T.
6. Side & POD: Same as above but using a side tee instead of a thru tee.
7. Ball Valve: When the section of piping contains a ball valve for purposes such as lockout or
isolation, the equivalent length of the valve will automatically be included in the calculation
program. If a pipe type of “Tubing” was chosen, it will be automatically changed to 40T.
8. Check Valve: When the section of piping contains a check valve, i.e., a main with reserve
system, the equivalent length of the check valve will automatically be included in the calculation.
If a pipe type of “Tubing” was chosen, it will be automatically changed to 40T.
11. Fix Code: This default button should be on when the values in the “Kgs Required” column indicate
the actual nozzle code or drill diameter in inches for a particular nozzle.
Flow Rate: This default button should be on when the values in the last column indicate the
discharge rate in kgs (pounds) per minute to be discharged from a nozzle. To set the rate for a
particular nozzle, select the far right cell, click the Flow Rate default button, and then either type
the flow rate in or use the drop down list and select the “Get Rate” option. The computer will
automatically calculate and display the required flow rate needed for that particular nozzle.
Alternatively, you can set all the flow rates simultaneously after finishing the piping model by
following the above steps, but instead of selecting “Get Rate,” select “Set All.”
Figure 2.1.3.2.11 – Flow Rate
© K.F.P.S. Ltd 59812-402 Issue B December 2004 Page 17
NOTE
THE “GET RATE” AND “SET ALL” FUNCTIONS ONLY WORK FOR TOTAL FLOODING HAZARDS AND FOR HAZARDS
THAT UTILIZED THE EXT’D DISCHARGE, THE RATE MUST BE DETERMINED BY THE LOCAL APPLICATION NOZZLE
SELECTOR SLIDE RULE AND INPUTTED MANUALLY.
UNLESS A LOW RATE ORIFICE NOZZLE IS SELECTED FOR A HAZARD, ALL FLOW RATES WILL DEFAULT TO A
MINIMUM OF) 4.54 KG/MIN (10 LBS/MIN). THIS IS TO INSURE THAT THE NOZZLE WILL NOT FREEZE UP AND CLOG
THE DISCHARGE PIPE.
2.1.3.3 Add, Copy & Paste, Insert, and Delete
1. Add: The Add button works similarly to the Add buttons on the previous screens. Clicking the Add
button will add a blank line to the bottom of the data grid. Other ways to “Add”: Function key F5, the
Right Arrow key (if you are in the last column of the last row), or depressing the Shift and Insert
keys simultaneously.
2. Copy & Paste: Click the Copy button. Alternatively, you can depress the F9 key. Select any cell
in the row or rows desired to be copied. To copy multiple rows at one time, simply click on any cell
in the first row to be copied and while continuing to depress the left mouse button, highlight the
remaining rows. Select a cell in the row where you want to paste the copied rows. Press the Paste
button. Alternatively, you can depress the F10 key.
NOTE
ONLY CONSECUTIVE ROWS CAN BE COPIED AT ONCE. THE LINES WILL BE INSERTED STARTING AT THE ROW OF
THE CELL THAT IS HIGHLIGHTED. YOU CAN PASTE THIS INFORMATION AT ANY TIME AND AS MANY TIMES AS
NECESSARY WITHOUT RESELECTING THE ROWS TO BE COPIED.
3. Insert: The Insert button is used to insert a line of data into the data grid in a specific location other
than at the next available position at the bottom of the grid. In order to insert a line, click onto the
highest line in the data grid that must be moved down and depress the Insert button. This can also
be accomplished using function key F7 or by depressing the Insert key.
4. Delete: The Delete button is used to delete a line of data in the data grid. Highlight the data line
within the data grid by clicking on it with the mouse. Click on the delete button. A verification
message will appear to validate the request. Should you confirm the request, the data line will be
deleted and any data lines below it will be moved up to compensate for the deleted line of data.
This can also be accomplished using function key F8 or by depressing the Shift and Delete keys
simultaneously.
2.1.3.4 Fix Pipe
After running a calculation, it is always recommended to Fix Results (see paragraph 2.1.4.1.3). After
this is done, the input data can be fixed to represent the pipe sizes, pipe schedules, and actual nozzle
codes that were determined by the calculation program. This is useful for “as-built” modifications, etc.
NOTE
THIS OPTION IS ONLY AVAILABLE AFTER A “FIX RESULTS” CALCULATION HAS BEEN PERFORMED.
© K.F.P.S. Ltd 59812-402 Issue B December 2004 Page 18
2.1.4 Calculate and Display Results
By clicking on the “Calculate and Display Results” button, the piping data file will be passed on to the
calculation program for processing. Once the processing is completed, the results will be displayed
on four different screens:
Calc Results
Nozzle BOM
Nozzle Info
Discharge Info
2.1.4.1 Calc Results
1. System Information: This section of the Results screen indicates the cylinder quantity, size,
pressure and temperature as entered in the System Information Screen. Inhibited/Excluded pipe
sizes are also noted.
Figure 2.1.4.1 – Calculation Results – System Information
2. Piping:
1. Section Nodes: The starting and ending nodes for a particular section of the pipe model.
2. Nominal Pipe Size: The computed or inputted pipe size and schedule.
© K.F.P.S. Ltd 59812-402 Issue B December 2004 Page 19
NOTE
IF TUBING WAS CHOSEN RATHER THAN PIPE, THE CALCULATION RESULTS PRINTOUT WILL GIVE INFORMATION
ON THE MINIMUM WALL THICKNESS (IN INCHES) THAT IS REQUIRED FOR EACH SIZE OF TUBING.
3. Length: Length of pipe within the section, including elevation changes.
4. Elev: The length of an elevation change within the section of pipe.
5. EQL: Total equivalent length of the section of pipe, including pipe, elbows, tees, couplings
unions, valves, and additional information inputted into the equivalent length column of the data
file.
6. Section Flow: The flow rate through the pipe section.
7. BAR: The pressure at the termination of the section.
8. Nozzle Flow: The flow rate through the pipe section and nozzle.
9. Nozzle Code: The calculated/ideal nozzle code.
3. Fix Results: This will run one additional calculation using the pipe sizes and actual nozzle sizes
available. It is recommended to always use this feature to ensure that the system will be acceptable
and meet code utilising actual available nozzle codes.
Figure 2.1.4.1.C – Fix Results – Nozzle Summary
© K.F.P.S. Ltd 59812-402 Issue B December 2004 Page 20
2.1.4.2 Nozzle BOM
The nozzle bill of materials will provide the ordering Bill of Materials. This will include quantity, nozzle
type(s), code(s) required and the Kidde Fire Protection stock number.
Figure 2.1.4.2 – Nozzle BOM
2.1.4.3 Nozzle Info (Nozzle Summary)
Similar to the Bill of Materials, the nozzle information individually lists each nozzle along with comparing
its calculated code vs. its actual code. The actual code is the closest manufactured code available.
Figure 2.1.4.3 – Nozzle Summary
© K.F.P.S. Ltd 59812-402 Issue B December 2004 Page 21
2.1.4.4 Discharge Information
The discharge information screen provides evaluation data in the form of average vapour and liquid
CO2 discharge times, and weights of CO2 discharged. Also included is the maximum vapour time
achieved by a nozzle within the CO2 system, along with each nozzle’s residual vapour discharge. Here
a comparison is made as to how much gas is required in a given amount of time and how much gas
is discharged at the end of the discharge period for each hazard.
Figure 2.1.4.4 – Discharge Information
2.2 Output/Print Data and Results
This screen will allow the user to send both the results of the calculation and/or the input data used for
the calculation to a selected printer. A Bill of Materials option is also available to provide a basic BOM
based on the flow calculation.
2.2.1 Items to Print
1. Input Data Listing: When this option is selected, the program will output the data file.
2. Calculation Results: The selection of this option will output the results of the calculation.
3. BOM: The mechanical High Pressure CO2 System Bill of Material, including pipe and pipe
fittings. Once the BOM has been printed, the system must be recalculated before printing
the BOM again.
© K.F.P.S. Ltd 59812-402 Issue B December 2004 Page 22
Figure 2.2 –Output/Print Data and Results
4. Print CO2 Requirements: Selecting this option will print the CO2 requirements for each individual
hazard (not applicable to LA Rate by Area and LA Rate by Volume hazard types). A step by
step walk-through of how the requirement was calculated will be printed. This information can be
sent directly to a printer to obtain a hard copy (useful for submitting to authorities having jurisdiction,
etc.) or it can be printed to a text file, which can then be entered into AutoCAD or a word processing
program.
NOTE
IF YOU DO NOT HAVE ANY TOTAL FLOODING HAZARDS DEFINED, THIS OPTION WILL NOT BE AVAILABLE.
2.2.2 Output Units
1. Metric: This selection will produce a metric unit output.
2. Imperial: This option will output the required information with standard English units.
2.2.3 Configure Printer
There are numerous types of printers on the market and the program is designed to incorporate a wide
range of printers. It is advisable to click on Configure Printer to verify the current Windows selected
printer.
There are virtually hundreds of fonts available in the industry today. Even though the program will
accept and use a number of them, the suggested font is ARIAL, which is commonly found within the
Windows list of available fonts. However, there are a number of acceptable fonts and by selecting and
trying these fonts, based on the numerous styles and types of printers, Kidde Fire Protection cannot
assure you of satisfactory results. The printout uses various configurations and sizes to produce its
hard copy printout.
2.2.4 Print
Clicking on this command will start the printing or writing of the selected data.
© K.F.P.S. Ltd 98812-402 Issue B November 2004 Page 23
FLOW CALCULATION SOFTWARE
USER`S MANUAL - APPENDIX
A-1 EQUIVALENT LENGTH
The equivalent length for all components is automatically calculated within Kidde Fire Protection
software.
© K.F.P.S. Ltd 98812-402 Issue B November 2004 Page 24
FLOW CALCULATION SOFTWARE
USER`S MANUAL - APPENDIX
A-2 CO2 Calculation Example #1
The following pages depict an example of a calculation performed using the KFP CO2 software
program.
Example A-2.1 – Isometric Drawing
© K.F.P.S. Ltd 98812-402 Issue B November 2004 Page 25
FLOW CALCULATION SOFTWARE
USER`S MANUAL - APPENDIX
Figure A-2.2 – System Information
© K.F.P.S. Ltd 98812-402 Issue B November 2004 Page 26
FLOW CALCULATION SOFTWARE
USER`S MANUAL - APPENDIX
Figure A-2.3 – Hazard Information
© K.F.P.S. Ltd 98812-402 Issue B November 2004 Page 27
FLOW CALCULATION SOFTWARE
USER`S MANUAL - APPENDIX
Figure A-2.4 – Piping Model Data
© K.F.P.S. Ltd 98812-402 Issue B November 2004 Page 28
FLOW CALCULATION SOFTWARE
USER`S MANUAL - APPENDIX
Figure A-2.5 – Calculate and Display Results
© K.F.P.S. Ltd 98812-402 Issue B November 2004 Page 29
FLOW CALCULATION SOFTWARE
USER`S MANUAL - APPENDIX
Figure A-2.6 – Nozzle Summary
© K.F.P.S. Ltd 98812-402 Issue B November 2004 Page 30
FLOW CALCULATION SOFTWARE
USER`S MANUAL - APPENDIX
Figure A-2.7 – Discharge Information
© K.F.P.S. Ltd 98812-402 Issue B November 2004 Page 31
FLOW CALCULATION SOFTWARE
USER`S MANUAL - APPENDIX
A-3 Software Hot Keys Reference List
Hot Keys Reference List
HOT KEYS
FUNCTION PRIMARY ALTERNATE
PIPING MODEL FUNCTION
Add F5 Key Shift + Insert
Insert Pipe F7 Key Insert Key
Delete F8 Key Shift + Delete
Copy F9 Key
Paste F10 Key
HAZARD DATA FUNCTION
Area Name & Area (Volume) Sections
Add F5 Key Shift + Insert
Delete F8 Key Shift + Delete
Area Nozzle List Section
Add F5 Key Plus Sign (+) Key
Delete F8 Key Shift + Delete
GENERAL FUNCTIONS
Move one cell to the left Left Arrow Key Shift + Tab
Move one cell to the right Right Arrow Key Enter or Tab
Move one cell up Up Arrow
Move one cell down Down Arrow
Drop down a list box Shift + Down Arrow
Go to System Information Screen F1 Key
Go to Hazard Data Screen F2 Key
Go to Piping Model Screen F3 Key
Calculate and Display Results F4 Key
December 2004 issue B Manual No 59812-250i
Weight Indicator
Mechanism
(Part No. E8731-402)
USER'S MANUAL
December 2004 issue B Manual No 59812-250
December 2004 issue B Manual No 59812-250ii
PROPRIETARY RIGHTS NOTICE
This document and the information that it contains are the property of Kidde Fire Protection. Rights
to duplicate or otherwise copy this document and rights to disclose the document and the
information that it contains to others and the right to use the information contained therein may be
acquired only by written permission signed by a duly authorised officer of Kidde Fire Protection.
© Copyright Kidde Fire Protection Services Ltd
December 2004 issue B Manual No 59812-250iii
Amendment Incorporation Record
Amendment
Number
Brief Description
of Content
Name of person
Incorporating
Amendment
1
2
3
4
5
6
7
8
9
10
December 2004 issue B Manual No 59812-250iv
TABLE OF CONTENTS
Chapter Page
1. INTRODUCTION..........................................................................................1
1.1 GENERAL............................................................................................1
1.2 OPERATION........................................................................................1
2. SPECIFICATION..........................................................................................2
3. INSTALLATION ...........................................................................................3
4.1 EVERY SIX MONTHS........................................................................10
4.2 EVERY TWELVE MONTHS...............................................................10
APPENDIX A TESTING......................................................................................11
APPENDIX B ATEX COMPLIANCE...................................................................13
SPECIAL INSTRUCTIONS FOR COMPLIANCE WITH 94/9/EC ...............13
December 2004 issue B Manual No 59812-250v
LIST OF ILLUSTRATIONS
Figure Page
Figure 1-1 Weight Indicator Mechanism.....................................................................1
Figure 2-1 Dimensions ...............................................................................................2
Figure 3-1 Flexible Conduit Installation ......................................................................4
Figure 3-2 Electrical Installation - SERIES Two Wires ...............................................5
Figure 3-3 Electrical Installation - SERIES One Wire.................................................5
Figure 3-4 Electrical Installation - PARALLEL ............................................................6
Figure 3-5 Mechanical Installation..............................................................................8
Figure 3-6 Typical Support Frame..............................................................................9
Figure A-1 Test Kit ...................................................................................................12
December 2004 issue B Manual No 59812-2501
1. INTRODUCTION
1.1 General
The Weight Indicator Mechanism (Part No. E8731-402) is a device used to automatically
monitor the contents of a fixed fire CO2 cylinder. When the contents of the cylinder fall by
a pre-determined amount, typically 10%, the weight drops causing a microswitch to trip
and send a signal to a signal panel.
The components of the weight indicator mechanism are shown in Figure 1-1. The device
is supplied in a kit form, for assembly onto the mounting frame, and comprises: the body,
two hanger rods, neck collar, weight, four off M10 nuts and washers, and one off M12 nut
and washer.
The mounting frame will be supplied by others.
Figure 1-1 Weight Indicator Mechanism
1.2 Operation
When the weight indicator mechanism is set up, the downward force of the cylinder is
greater than the leverage provided by the weight on the weight rod.
As the contents of the cylinder drops through a pre-determined amount, the downward
force of the cylinder becomes less than the leverage of the weight, therefore the weight
rod drops and trips the microswitch sending a signal to a control panel.
December 2004 issue B Manual No 59812-2502
2. SPECIFICATION
Figure 2-1 shows the dimensions (in mm) of the weight indicator mechanism.
Figure 2-1 Dimensions
All screws and steel fittings are zinc plated.
Microswitch details:
Type: Single-pole, volt-free, change-over.
Rating: Maximum current 3 A at 125 or 250 V a.c.
Sealing: Rated at IP 67 to BS5490.
Connections: RED - common.
BLUE - normally open (N/O).
YELLOW - normally closed (N/C).
The customer is to provide protective flexible conduit (rated at IP 65 minimum), wire and
insulated crimp pin or blade terminal connectors.
December 2004 issue B Manual No 59812-2503
3. INSTALLATION
WARNING
THE CO2 CYLINDER IS AT HIGH PRESSURE.
THE ANTI-RECOIL CAP MUST BE FITTED TO THE VALVE OUTLET AND THE
PROTECTION CAP MUST BE FITTED BEFORE MOVING THE CO2 CYLINDER.
NORMAL PRESSURE VESSEL HANDLING PRECAUTIONS MUST BE OBSERVED.
THE WEIGHT INDICATOR MECHANISM, FRAME AND CO2 CYLINDER ARE HEAVY.
SAFETY CLOTHING (FOOTWEAR, GLASSES AND HARD HATS) MUST BE WORN
WHEN CARRYING OUT INSTALLATION AND MAINTENANCE.
CAUTION
The frame must be fixed and all floors and walls must capable of supporting
overall weight loadings.
The weight of the weight indicator mechanism is heavy and may operate at any
time. It is therefore recommended that the weight indicator mechanisms and the
CO2 cylinders are installed in unoccupied areas.
To install the weight indicator mechanism carry out the following procedure and see
Figures 3-1 through 3-6.
(a) Assemble the mounting frame, supplied by others, to comply with Figure 3-6.
(b) If the weight indicator mechanism is outside or in a damp environment, it is
recommended that the threads are sprayed with oil to keep them free of rust.
(c) Using the mounting rod, fit the body to the mounting frame using the M12 nut and
washer, see Figure 3-5.
December 2004 issue B Manual No 59812-2504
(d) Remove the terminal box cover, by undoing the four M4x16 mm screws.
Connect the flexible conduit to each terminal box as shown in Figure 3-1.
Make sure that the flexible conduit, rated at IP 65 minimum, passes underneath the
weight when it is in the down (operated) position and that it does obstruct the
movement of the weight.
Figure 3-1 Flexible Conduit Installation
(e) It is recommended to connect the microswitch in SERIES, this enables the wires to
monitored continuously.
CAUTION
Do not touch the microswitch.
If the microswitch contacts are to be wired in the NORMALLY CLOSED (N/C) position,
i.e. in SERIES, carry out the procedure in steps (i) through (iv) and see Figure 3-2.
(i) Remove the BLUE wire from the terminal block, cut 10 mm from it and electrically
insulate the end with an insulating cap or tape.
(ii) Thread the two core cable through the flexible conduit and connect to the terminal
box as shown in Figure 3-2. Use an insulated crimp pin connector for each wire.
(iii) Replace the terminal box cover.
(iv) On the end/last terminal box, the spare exit hole from the terminal box must be
sealed or blanked off to maintain IP 65.
NOTE A simpler SERIES installation using a single wire is shown in Figure 3-3.
However, the wire will not be monitored continuously.
December 2004 issue B Manual No 59812-2505
Figure 3-2 Electrical Installation - SERIES Two Wires
Figure 3-3 Electrical Installation - SERIES One Wire
December 2004 issue B Manual No 59812-2506
If the microswitch contacts are to be wired in the NORMALLY OPEN (N/O) position, i.e.
in PARALLEL, carry out the procedure in steps (v) through (viii) and see Figure 3-4.
(v) Remove the YELLOW wire from the terminal block, cut 10 mm from it and
electrically insulate the end with an insulating cap or tape.
(vi) Thread the two core cable through the flexible conduit and connect to the terminal
box as shown in Figure 3-4. Where two wires are to be connected into same
terminal outlet, use an insulated blade terminal connector.
(vii) Replace the terminal box cover.
(viii) On the end/last terminal box, the spare exit hole from the terminal box must be
sealed or blanked off to maintain IP 65.
Figure 3-4 Electrical Installation - PARALLEL
December 2004 issue B Manual No 59812-2507
(f) Make sure that the protection cap is fitted and inspect the cylinder for external
damage.
(g) Weigh the cylinder for correct contents using a scale weighing device and record
the weight.
WARNING
IF CYLINDERS ARE TO BE MOVED IN A SKID ASSEMBLY, THEY MUST BE
SECURELY WEDGED IN POSITION TO PREVENT MOVEMENT.
(h) Transport the cylinder to its position at the mounting frame using a suitable trolley.
Remove the securing wedge from the cylinder.
(i) Remove the protection cap from the cylinder and store in a safe place.
(j) Screw the neck collar fully onto the cylinder ensuring that all threads are engaged.
Make sure that the cylinder valve outlet is in the correct position.
(k) Connect the flexible discharge hose to the manifold and torque to between 30 and
40 Nm.
(l) Remove the anti-recoil cap from discharge outlet of the cylinder valve and store in a
safe place.
Connect the other end of the flexible discharge hose to the discharge outlet of the
cylinder valve and torque to between 30 and 40 Nm.
(m) Fit the two hanger rods through the holes in the body and the neck collar. Secure
with an M10 nut and washer on each hanger rod, see Figure 3-5.
Make sure that the M10 nuts are screwed evenly onto the hanger rods by the same
amount.
(n) Tighten the M12 nut, on the mounting rod, until the cylinder is 20 mm from the floor
or mounting frame base.
NOTE Make sure that the cylinder is hanging vertically. If not, carefully adjust the
nuts on the hanger rods until the cylinder is hanging vertically
(o) Fit an M10 nut to the weight rod and wind halfway down the rod. Fit an M10 washer
to the weight rod, followed by the weight, another M10 washer and finally an M10
nut. DO NOT TIGHTEN.
(p) With the weight rod in the “full” (uppermost) position, slowly wind the nuts and
weight up the rod away from the body, until a position is reached where the weight
rod will just begin to drop from its stop.
(q) From this set point, wind the inner nut towards the body by five turns. Hold this
position and lock the other nut against the weight. With the weight in the “full”
position, the indicator is now set.
(r) If required, carry out the testing procedure, refer to Appendix A.
(s) Repeat steps (a) through (r) for each weight indicator mechanism and cylinder.
December 2004 issue B Manual No 59812-2508
Figure 3-5 Mechanical Installation
December 2004 issue B Manual No 59812-2509
Figure 3-6 Typical Support Frame
December 2004 issue B Manual No 59812-25010
4. MAINTENANCE
WARNING
THE CO2 CYLINDER IS AT HIGH PRESSURE.
THE ANTI-RECOIL CAP MUST BE FITTED TO THE VALVE OUTLET AND THE
PROTECTION CAP MUST BE FITTED BEFORE MOVING THE CO2 CYLINDER.
NORMAL PRESSURE VESSEL HANDLING PRECAUTIONS MUST BE OBSERVED.
THE WEIGHT INDICATOR MECHANISM, FRAME AND CO2 CYLINDER ARE HEAVY.
SAFETY CLOTHING (FOOTWEAR, GLASSES AND HARD HATS) MUST BE WORN
WHEN CARRYING OUT INSTALLATION AND MAINTENANCE.
IT IS RECOMMENDED TO MOVE THE WEIGHT ROD TO THE OPERATED (LOWER)
POSITION BEFORE ANY WORK IS CARRIED OUT ON THE CYLINDER AND/OR
VALVE.
4.1 Every Six Months
(a) Check tightness of nuts and bolts.
(b) If required, carry out the testing procedure, refer to Appendix A.
4.2 Every Twelve Months
(a) Check the threads for rust, clean and apply an oil spray if necessary
(b) Carry out the six monthly check.
December 2004 issue B Manual No 59812-25011
APPENDIX A TESTING
WARNING
THE CO2 CYLINDER IS AT HIGH PRESSURE.
THE ANTI-RECOIL CAP MUST BE FITTED TO THE VALVE OUTLET AND THE
PROTECTION CAP MUST BE FITTED BEFORE MOVING THE CO2 CYLINDER.
NORMAL PRESSURE VESSEL HANDLING PRECAUTIONS MUST BE OBSERVED.
THE WEIGHT INDICATOR MECHANISM, FRAME AND CO2 CYLINDER ARE HEAVY.
SAFETY CLOTHING (FOOTWEAR, GLASSES AND HARD HATS) MUST BE WORN
WHEN CARRYING OUT INSTALLATION AND MAINTENANCE.
If the user wishes to confirm that the weight indicator mechanism is functioning correctly,
a test kit can be built, see Figure A-1.
The procedure for testing is given below.
(a) Assemble the test kit as shown in Figure A-1.
(b) With the weight rod in the “FULL” position, carefully lower the test weight, between
3.2 and 4.5 kg, onto the test kit.
NOTE The test weight, between 3.2 and 4.5 kg, represents a weight loss of CO2
corresponding to between 7 and 10%.
(c) When the weight indicator mechanism is set correctly, the mechanism will trip.
December 2004 issue B Manual No 59812-25012
Figure A-1 Test Kit
December 2004 issue B Manual No 59812-25013
APPENDIX B ATEX COMPLIANCE
SPECIAL INSTRUCTIONS FOR COMPLIANCE WITH 94/9/EC
1. Area classification
Weight Indicator Mechanism and Weight Indicator Mechanism Unswitched part numbers,
E8731-402 and E8731-403 respectively.
Weight Indicator Mechanisms are used to monitor the contents of CO2 45kg extinguisher
assemblies. Weight Indicator Mechanisms have been designed and certified as a non-
electric equipment for compliance to the following hazardous area classification:
Group II category 3 GD c T6 X
The user of this equipment should make themselves aware of the following information;
2. Placing the device into service
These Weight Indicator Mechanisms may be installed in an area classified as Zone 2 or
Zone 22 or unclassified.
3. Safe use of Weight Indicator Mechanisms
Weight Indicator Mechanisms are for use only as a contents indicator system for CO2 45
kg extinguishers.
The switched version is to be used with an intrinsically safe supply suitable for the hazard
area.
4. Assembling and dismantling
Weight Indicator Mechanisms are supplied complete and ready to install in accordance
with KFP Weight Indicator Mechanism Users Manual 59812-250.
5. Installation
Weight Indicator Mechanism installation shall be in accordance with KFP Weight
Indicator Mechanism Users Manual 59812-250, except that where fitted the switch circuit
shall be intrinsically safe and appropriate to the hazard.
6. Maintenance (service and emergency repair)
For maintenance of Weight Indicator Mechanisms refer to manual 59812-250.
7. Adjustment
After Installation adjustment of the Weight Indicator Mechanism is not required. For
initial set up follow instructions provided in KFP Weight Indicator Mechanism Users
Manual 59812-250
8. Training
Consult KFP Weight Indicator Mechanism Users Manual 59812-250 before use.
December 2004 issue B Manual No 59812-25014
9. Limitations of use
Weight Indicator Mechanisms must only be used within areas specified by the hazardous
area certification as indicated on the equipment label
10.Special Parameters
The ambient temperature for this equipment is –18°C to 55°C.
Issue A December 2004 59812-403
1 of 17
High Pressure
Carbon Dioxide
Fire Protection Equipment
DIRECT ACTING SOLENOID
Issue A December 2004 Manual No 59812-403
Issue A December 2004 59812-403
2 of 17
PROPRIETARY RIGHTS NOTICE
This document and the information that it contains are the property of Kidde
Fire Protection Services Ltd. The information contained in this manual is
believed to be correct in light of the latest data available.
Rights to duplicate or otherwise copy this document and rights to disclose the
document and the information that it contains to others and the right to use
the information contained therein may be acquired only by written permission
signed by a duly authorised officer of Kidde Fire Protection Services Ltd.
© Copyright 2004 Kidde Fire Protection Services Ltd
Issue A December 2004 59812-403
3 of 17
ASSEMBLY, TEST AND DISASSEMBLY
INSTRUCTIONS FOR DIRECT ACTING
SOLENOID ASSEMBLY
IMPORTANT:-
1. BEFORE PROCEEDING, THE FOLLOWING SHOULD ONLY BE
ATTEMPTED BY TRAINED PERSONNEL WHO ARE FAMILIAR WITH
ALL THE RELEVANT HAZARDS ASSOCIATED WITH CO2 SYSTEMS.
2. ENSURE THAT THE RECOIL CAP IS FITTED TO THE VALVE OUTLET
DURING THE ASSEMBLY OF THE DIRECT ACTING SOLENOID
ASSEMBLY.
3. POSITION CYLINDERS IN DESIGNATED LOCATION AND SECURE
WITH CYLINDER STRAPS AND ATTACHING HARDWARE.
Issue A December 2004 59812-403
4 of 17
ASSEMBLY INSTRUCTIONS
SINGLE CYLINDER INSTALLATION
SPECIFICATION POWER SUPPLY REQUIREMENTS
ENVIRONMENTAL PROTECTION TO BE BS EN 60529 1991 IP65 VOLTAGE RANGE :- 18V DC TO 28V DC
NOMINAL COIL RESISTANCE :- 53.2 OHMS CURRENT AT 18V DC :- -338mA
MINIMUM FIRING PULSE :- 60ms CURRENT AT 28V DC :- -526Ma
MAXIMUM FIRING PULSE :- UNLIMITED
ELECTRICAL CONNECTION :- DIN PLUG TYPE DIN 43650
STORAGE TEMPERATURE RANGE :- -30°C TO +55°C
OPERATING TEMPERATURE RANGE :- -20°C TO +55°C
MAXIMUM WORKING PRESSURE :- 152.5 BAR G
NOTE
ITEMS SHOWN THUS * ARE NOT PART OF THE SOLENOID ACTUATED VALVE AND CYLINDER ASSEMBLIES
– THESE ITEMS ARE PURCHASED SEPARATELY.
Issue A December 2004 59812-403
5 of 17
ASSEMBLY INSTRUCTIONS
MULTI-CYLINDER INSTALLATION
SPECIFICATION POWER SUPPLY REQUIREMENTS
ENVIRONMENTAL PROTECTION TO BE BS EN 60529 1991 IP65 VOLTAGE RANGE :- 18V DC TO 28V DC
NOMINAL COIL RESISTANCE :- 53.2 OHMS CURRENT AT 18V DC :- -338mA
MINIMUM FIRING PULSE :- 60ms CURRENT AT 28V DC :- -526Ma
MAXIMUM FIRING PULSE :- UNLIMITED
ELECTRICAL CONNECTION :- DIN PLUG TYPE DIN 43650A
STORAGE TEMPERATURE RANGE :- -30°C TO +55°C
OPERATING TEMPERATURE RANGE :- -20°C TO +55°C
MAXIMUM WORKING PRESSURE :- 152.5 BAR G
NOTE
THE MASTER CYLINDER PLUS 5 SLAVE CYLINDERS ARE THE MAXIMUM NUMBER OF CYLINDERS
ALLOWED ON ANY ONE SYSTEM.
ITEMS SHOWN THUS * ARE NOT PART OF THE SOLENOID ACTUATED VALVE AND CYLINDER ASSEMBLIES
– THESE ITEMS ARE PURCHASED SEPARATELY.
ITEM SHOWN THUS φ IS SUPPLIED AS 1-OFF WITH THE SOLENOID ACTUATED VALVE. ADDITIONAL
QUANTITIES SHOULD BE PURCHASED SEPARATELY.
Issue A December 2004 59812-403
6 of 17
ASSEMBLY INSTRUCTIONS
VALVE AND CYLINDER ASSEMBLY
REMOVE THE CYLINDER CAP FROM THE VALVE AND CYLINDER ASSEMBLY
Issue A December 2004 59812-403
7 of 17
ASSEMBLY INSTRUCTIONS
CYLINDER VALVE ASSEMBLY
REMOVE THE VALVE PROTECTION CAP FROM THE VALVE AND CYLINDER ASSEMBLY.
CHECK THAT THE SEALING FACE IS UNDAMAGED.
Issue A December 2004 59812-403
8 of 17
ASSEMBLY INSTRUCTIONS
SOLENOID ASSEMBLY
REMOVE THE SOLENOID COIL FROM THE SOLENOID ASSEMBLY.
ENSURE THE SWIVEL NUT ROTATES FREELY.
Issue A December 2004 59812-403
9 of 17
ENSURE THE `O’ RING SEAL IS CORRECTLY POSITIONED.
ASSEMBLY INSTRUCTIONS
CYLINDER VALVE AND
SOLENOID ASSEMBLY
ENSURE RECOIL CAP IS IN POSITION.
ASSEMBLE THE SOLENOID ONTO THE CYLINDER VALVE.
TIGHTEN SWIVEL NUT TO TORQUE 8/10 Nm.
(NOTE – A SHORT BURST OF GAS MAY BE HEARD)
Issue A December 2004 59812-403
10 of 17
ASSEMBLY INSTRUCTIONS
CYLINDER VALVE AND
SOLENOID ASSEMBLY
ASSEMBLE THE FLEXIBLE PILOT LOOP TO THE OUTLET PORT ON THE SOLENOID
ASSEMBLY, TORQUE TO 2/2.5 Nm.
REASSEMBLE THE SOLENOID COIL TO THE SOLENOID AND FIT THE SOLENOID COIL
RETAINING NUT.
Issue A December 2004 59812-403
11 of 17
ASSEMBLY INSTRUCTIONS
PRESSURE ACTUATOR ASSEMBLY
REMOVE THE SAFETY PIN AND MOVE LEVER TO THE ACTUATE POSITION, ENSURE
PISTON MOVES FREELY.
RETURN LEVER TO PARKED POSITION AND REPLACE THE SAFETY PIN.
ASSEMBLE BLEED ASSEMBLY TO PRESSURE ACTUATOR AND TIGHTEN TO TORQUE
2/2.5 Nm.
SUPPORT THE PRESSURE ACTUATOR AND CONNECT THE FREE END OF THE
FLEXIBLE PIPE LOOP (ITEM 3) AND TIGHTEN TO TORQUE 2/2.5 Nm.
DEPRESS THE PISTON OF THE PRESSURE ACTUATOR AND CHECK PISTON
REMAINS IN THE DEPRESSED STATE.
MOVEMENT OF THE PISTON WILL INDICATE A LEAK AT THE SOLENOID – IF
MOVEMENT OCCURS REPLACE THE SOLENOID.
Issue A December 2004 59812-403
12 of 17
ASSEMBLY INSTRUCTIONS
CYLINDER VALVE AND
PRESSURE ACTUATOR ASSEMBLY
ASSEMBLE THE PRESSURE ACTUATOR TO THE CYLINDER VALVE, ENSURING THAT
THE RETENTION PIN IS IN PLACE AND THE FLEXIBLE PILOT LOOP IS FREE OF KINKS.
Issue A December 2004 59812-403
13 of 17
ASSEMBLY INSTRUCTIONS
DIN CONNECTOR PLUG ASSEMBLY
Issue A December 2004 59812-403
14 of 17
DISASSEMBLY INSTRUCTIONS
SOLENOID REMOVAL
REMOVAL OF SOLENOID ASSEMBLY FROM CYLINDER VALVE
DISCONNECT THE DIN PLUG FROM SOLENOID.
DISCONNECT THE PILOT LOOP FROM SOLENOID.
SLOWLY UNSCREW THE SOLENOID SWIVEL NUT (AFTER ONE/TWO REVOLUTIONS A
SHORT DISCHARGE OF GAS WILL BE AUDIBLE) AND FULLY REMOVE THE SOLENOID
AND RETAIN THE `O’ RING SEAL.
CAREFULLY CHECK THE `O’ RING SEAL FOR DAMAGE BEFORE REASSEMBLY.
IF DAMAGED THE SEAL MUST BE REPLACED.
CHECK THAT THE CYLINDER VALVE POPPET HAS RESEALED BY APPLYING LEAK
SEEKING FLUID TO THE POPPET ORIFICE.
IF ANY LEAKAGE OCCURS RESEAT THE POPPET SEAL BY REASSEMBLING THE
SOLENOID (EXCLUDING THE `O’ RING SEAL) UNTIL ESCAPING GAS IS AUDIBLE.
IMMEDIATELY UNSCREW AND REMOVE THE SOLENOID ASSEMBLY.
TO PROTECT THE CYLINDER VALVE SEALING FACE IMMEDIATELY ASSEMBLE THE
PROTECTION CAP TO THE VALVE.
IMPORTANT:- IF THE VALVE CONTINUES TO LEAK, CONTACT THE EQUIPMENT
MANUFACTURER FOR FURTHER INFORMATION.
Issue A December 2004 59812-403
15 of 17
DISASSEMBLY INSTRUCTIONS
PRESSURE ACTUATOR REMOVAL
REMOVAL OF PRESSURE ACTUATOR FROM CYLINDER VALVE
DISCONNECT THE PILOT LOOP/PILOT LOOPS FROM THE PRESSURE ACTUATOR.
REMOVE THE RETENTION PIN.
SLIDE THE PRESSURE ACTUATOR OFF THE CYLINDER VALVE.
IMPORTANT
IF THE PRESSURE ACTUATOR TO BE REMOVED IS MOUNTED ON A SLAVE CYLINDER
IN A MULTI-CYLINDER ASSEMBLY, DISCONNECT THE DIN PLUG AND THE PILOT
LOOP FROM THE SOLENOID ASSEMBLY MOUNTED ON THE MASTER CYLINDER
BEFORE PROCEEDING WITH THE REMOVAL OF THE PRESSURE ACTUATOR.
Issue A December 2004 59812-403
16 of 17
TEST INSTRUCTIONS
SINGLE CYLINDER INSTALLATION
KEEPING THE FLEXIBLE PILOT LOOP ATTACHED TO THE PRESSURE ACTUATOR AND
SOLENOID ASSEMBLY, REMOVE THE PRESSURE ACTUATOR FROM THE CYLINDER
VALVE BY REMOVING THE RETENTION PIN.
APPLY THE CORRECT ELECTRICAL POWER TO THE SOLENOID AND CHECK THAT
THE PISTON IS FULLY EXTENDED FORWARD, CHECK THAT ALL JOINTS (EXCEPT THE
BLEED ASSEMBLY OUTLET) ARE LEAK TIGHT.
TO RESET THE SOLENOID, EITHER REVERSE THE POLARITY OF THE COIL (FOR
APPROXIMATELY ONE SECOND) OR REMOVE THE COIL FROM THE SOLENOID AND
REASSEMBLE IT `IMPORTANT’. THIS SHALL BE CARRIED OUT WITH THE POWER
SUPPLY ISOLATED TO THE COIL. THEN DEPRESS THE BLEED BUTTON UNTIL ALL
GAS HAS VENTED.
FULLY DEPRESS THE PRESSURE ACTUATOR PISTON (BY HAND) AND CHECK THAT
THE PISTON REMAINS IN THE DEPRESSED STATE. MOVEMENT OF THE PISTON WILL
INDICATE A LEAK AT THE SOLENOID.
REASSEMBLE THE PRESSURE ACTUATOR TO THE CYLINDER VALVE USING THE
RETENTION PIN.
Issue A December 2004 59812-403
17 of 17
TEST INSTRUCTIONS
MULTI-CYLINDER INSTALLATION
KEEPING THE FLEXIBLE LOOPS ATTACHED TO ALL THE PRESSURE ACTUATORS
AND THE SOLENOID ASSEMBLY, REMOVE THE PRESSURE ACTUATORS FROM ALL
THE CYLINDER VALVES BY REMOVING THE RETENTION PINS. ADEQUATELY
SUPPORT TO ENSURE PILOT LOOPS ARE KINK FREE.
APPLY THE CORRECT ELECTRICAL POWER TO THE SOLENOID AND CHECK THAT
ALL THE PISTONS ARE FULLY EXTENDED FORWARD, CHECK THAT ALL JOINTS
(EXCEPT THE BLEED ASSEMBLY OUTLET) ARE LEAK TIGHT.
TO REST THE SOLENOID, EITHER REVERSE THE POLARITY OF THE COIL (FOR
APPROXIMATELY ONE SECOND) OR REMOVE THE COIL FROM THE SOLENOID AND
REASSEMBLE IT `IMPORTANT’. THIS SHALL BE CARRIED OUT WITH THE POWER
SUPPLY ISOLATED FROM THE COIL. THEN DEPRESS THE BLEED BUTTON UNTIL ALL
GAS HAS BEEN VENTED.
FULLY DEPRESS ALL THE PRESSURE ACTUATOR PISTONS (BY HAND) AND CHECK
THAT THE PISTONS REMAINED DEPRESSED. MOVEMENT OF THE PISTON WILL
INDICATE A LEAK AT THE SOLENOID.
REASSEMBLE THE PRESSURE ACTUATORS TO THE CYLINDERS VALVES USING THE
RETENTION PINS.
High Pressure
Carbon Dioxide
Fire Protection Equipment
Owners Manual
Manual No. 59812-405
Issue A December 2004
© K.F.P.S. Ltd 59812-405 Issue A December 2004
Page 2 of 10
PROPRIETARY RIGHTS NOTICE
This document and the information that it contains are the property of
Kidde Fire Protection Services Ltd. The information contained in this
manual is believed to be correct in light of the latest data available.
Rights to duplicate or otherwise copy this document and rights to
disclose the document and the information that it contains to others and
the right to use the information contained therein may be acquired only
by written permission signed by a duly authorised officer of Kidde Fire
Protection Services Ltd.
© Copyright 2004 Kidde Fire Protection Services Ltd
© K.F.P.S. Ltd 59812-405 Issue A December 2004
Page 3 of 10
KIDDE FIRE PROTECTION
High Pressure CO2 Fire Protection Equipment
OWNERS MANUAL
This manual is to familiarise you and your personnel with your Kidde Fire Protection
High Pressure CO2 Fire Suppression Equipment.
IMPORTANT
It is your responsibility as the system owner to read this manual to ensure
proper system operation and personnel safety. Follow the instructions in this
manual and on the container nameplates. Review these instructions with your
employees every 6 months or more frequently. Place this manual in an
accessible place near the system for ready reference.
IMPORTANT
This system is made up of units tested within limitations contained in the
design, installation, operation and maintenance manual. The system designer
must be consulted whenever changes are planned for the system or area of
protection. A Kidde distributor must be consulted after the system has
discharged.
IMPORTANT
The technical data contained herein is limited strictly for informational
purposes only. Kidde believes this data to be accurate, but it is published and
presented without any guarantee or warranty whatsoever. Kidde disclaims
any liability for any use that may be made by the data and information
contained herein by any and all other parties.
YOUR KIDDE DISTRIBUTOR IS:
ENTER EMERGENCY NUMBER FOR FIRE BRIGADE HERE:
© K.F.P.S. Ltd 59812-405 Issue A December 2004
Page 4 of 10
ATTENTION INSTALLER
This form must be signed by the system owner indicating that he/she has received a
copy of this Owner’s Manual Part Number 59812-405. Retain a copy of this form for
your records.
1. System Installed:
2. Listing of Major System Components:
3. Description of Hazard Protected by System:
Owner or Authorised Representative Date
© K.F.P.S. Ltd 59812-405 Issue A December 2004
Page 5 of 10
WARNING
PRESSURISED (CHARGED) CONTAINERS ARE EXTREMELY
HAZARDOUS AND IF NOT HANDLED PROPERLY ARE
CAPABLE OF VIOLENT DISCHARGE. THIS MAY RESULT IN
SERIOUS BODILY INJURY, DEATH AND PROPERTY DAMAGE
Before handling Kidde products, all personnel must be thoroughly trained in the safe
handling of pressurised containers as well as in the proper procedures for
installation, removal, filling and connection of other critical devices, such as
solenoids, cable assemblies, pressure switches and safety caps. READ and
UNDERSTAND and ALWAYS FOLLOW: the Kidde Fire Protection High Pressure
CO2 Fire Protection Equipment Installation, Operation, Commissioning and
Maintenance Manual (Part Number 59812-400), that is provided with the individual
systems, or can be obtained from Kidde Fire Protection.
Hazards to personnel
Exposure to atmospheres containing about 5% CO2 leads to shortness of breath and
slight headache. At the 10% level, headache, visual disturbance, ringing in the ears
(tinnitus) and tremor are followed by loss of consciousness.
Fire extinguishing concentrations of CO2, which are normally in excess of 30%,
especially near to the point of discharge from total flooding or local application
systems, carry a risk of almost immediate asphyxiation. The gas is also more dense
than air and will drift and accumulate in low spaces, such as cellars, pits and floor
voids, which may be difficult to ventilate effectively.
The rapid expansion of large quantities of CO2 results in a substantial localised
cooling of the installation and of the air surrounding the point of discharge. This can
present a frostburn hazard.
Moving of Containers
The following safety procedures must be observed at all times:
Handling of cylinders should be conducted by TRAINED AND COMPETENT
personnel only.
Transportation: Containers must be shipped compactly and properly secured in
place. Containers must not be rolled, dragged, or slid nor allowed to be slid from tail-
gates of vehicles. A suitable hand truck, fork truck, roll platform or similar device
must be used.
Rough Handling: Containers must not be dropped or permitted to strike violently
against each other or other surfaces.
Storage: Containers must be stored standing upright where they are not likely to be
knocked over, or the containers must be secured.
© K.F.P.S. Ltd 59812-405 Issue A December 2004
Page 6 of 10
Safety Caps:
THESE INSTRUCTIONS MUST BE FOLLOWED TO PREVENT SERIOUS INJURY,
DEATH OR PROPERTY DAMAGE.
(a) Each CO2 container is factory equipped with a valve protection safety cap.
This device is a safety feature, and is a legislative requirement for
transportation.
(b) Each valve is equipped with a safety cap installed on the container outlet.
This device is a safety feature, and will provide controlled, safe discharge
when installed if the container is actuated accidentally.
(c) These caps must be installed on the container AT ALL TIMES except when
the containers are connected into the system piping. Do not remove safety
caps until the cylinder has been securely fixed / bracketed to a load bearing
structure.
(d) All valve protection caps shall be retained for future transportation
requirements. e.g. when cylinders are returned for refill or service.
For additional information on safe handling of compressed gas containers in the
United Kingdom, the Health and Safety Executive Guidance Notes are applicable.
These are available from: Health and Safety Executive regional offices or HMSO
outlets or online at www.hse.gov.uk/cdg/pdf/safusgc.pdf
All appropriate European Standards that are in force must be satisfied.
Thank you for purchasing a Kidde Fire Protection High Pressure CO2 Fire
Suppression System. This owner’s manual is provided to instruct you and your
employees.
IMPORTANT
This owner’s manual does not cover every detail of step-by-step installation
procedures for the Kidde CO2 system. This information is available in the
Installation, Operation and Maintenance Manual (Part No. 59812-400), which
may be obtained from Kidde Fire Protection.
ABOUT YOUR SYSTEM
Your Kidde CO2 system is designed for either total flooding or local application
suppression. Examples of typical CO2 system applications include:
* Electrical Equipment.
* Dust collectors.
* Computer Installations.
* Flammable Liquid Stores.
* Archives.
© K.F.P.S. Ltd 59812-405 Issue A December 2004
Page 7 of 10
HOW YOUR CO2 SYSTEM OPERATES
Your system is designed to discharge a specific amount of CO2 through nozzles
located within the hazard area. The amount of CO2 necessary for your system has
been carefully calculated to meet strict requirements set by FM Approvals, NFPA 12
and BS 5306 part 4. Additional code requirements may apply depending upon the
application, design specifications, and the authority having jurisdiction.
Basically, your CO2 system consists of:
* High Pressure CO2 container(s), discharge piping and nozzles.
* Actuation devices – electric and mechanical.
* Detection, alarm devices and control panel.
Your system must be provided with means for manual operation using one or both of
the following approved devices:
* Electric actuation station.
* Automatic detector (control panel required).
Automatic system operation (if provided) can be electric using heat detectors,
photoelectric or ionization smoke detectors or optical flame detectors.
An electromechanical actuator is used to operate the first cylinder. Pressure is used
to open the valves on additional cylinders as applicable.
Additional Safety devices (such as lock-off valves) are required for manned areas.
If your system has a control panel, refer to the appropriate Kidde control panel
manual as applicable.
HOW CO2 WORKS
CO2 extinguishes fire by reducing the oxygen content of the atmosphere to a point
where it will not support combustion. Reducing the oxygen content from the normal
21% in air to 15% will extinguish most surface fires, though for some materials a
greater reduction is necessary. In some applications the cooling effect of CO2 may
assist extinction.
INSTALLATION OF YOUR SYSTEM
Your Kidde CO2 fire suppression system must be installed by a Kidde distributor.
Your system must be installed in a professional manner with genuine Kidde
components and installation materials as specified in the CO2 Installation, Operation
and Maintenance Manual (Part No. 59812-400).
DO NOT ACCEPT POOR WORKMANSHIP, MISSING SYSTEM
PARTS, OR SUBSTITUTE SYSTEM COMPONENTS!
© K.F.P.S. Ltd 59812-405 Issue A December 2004
Page 8 of 10
The following items must be checked after the system is installed:
1. All areas requiring protection are protected.
2. A means of manually discharging the CO2 system is provided in a readily
accessible location outside the risk area where it can be operated while
leaving the vicinity of the hazard area. The manual control must be clearly
labelled. The installer of your CO2 system should answer any questions you
have regarding the components and coverage of the system.
The installer must also demonstrate that the installed system conforms to the
requirements of the CO2 Installation, Operation and Maintenance Manual (Part No.
59812-400), the requirements of your insurance carrier and any authorities having
jurisdiction in your area.
INSTRUCTIONS IN CASE OF FIRE
1. Suspend all operations in the fire area. Direct all occupants to leave the fire
area immediately. DO NOT WAIT FOR THE SYSTEM TO OPERATE
AUTOMATICALLY – OPERATE SYSTEM MANUALLY, WHEN
EVACUATION OF ALL OCCUPANTS IS COMPLETE, USING THE
MANUAL RELEASE.
2. Have someone contact the fire brigade immediately, no matter how small the
fire appears to be. Post the fire brigade number and YOUR ADDRESS
beside each telephone. Advise the fire brigade that a CO2 discharge has
occurred.
3. Do not return until the area has been made safe and completely
ventilated to remove all CO2.
POST-FIRE INSTRUCTIONS
After the system has discharged, DO NOT ATTEMPT TO RESUME OPERATIONS
IN THE FIRE AREA. Contact your Kidde distributor to reset and recharge your
system. Insist that the system be recharged immediately and only with the proper
type and quantity of agent.
© K.F.P.S. Ltd 59812-405 Issue A December 2004
Page 9 of 10
INSPECTION AND MAINTENANCE OF YOUR SYSTEM
IMPORTANT
The owner of the Kidde CO2 fire suppression system has the responsibility and
duty to comply with these instructions. Failure to do so may result in
inadequate system performance, property damage and personal injury.
Refer to the Kidde CO2 Installation, Operation and Maintenance Manual (Part No.
59812-400) for additional inspection information.
Weekly
1. Visually inspect the hazard and the integrity of the enclosure for changes
which may effect the performance of the system.
2. Visually inspect the pipework for damage and that all operating controls and
components are properly set and undamaged.
3. Check Nitrogen Pilot cylinder(s) pressure gauge.
4. Check Detectors for signs of damage.
5. Manual Release Points are accessible & clearly labeled
6. Check weight monitoring devices if applicable.
Monthly
1. Make a general inspection of all equipment for damaged or missing parts. If
equipment requires replacement, contact your Kidde distributor.
2. Ensure access to hazard areas, manual pull stations, discharge nozzles, and
cylinders are unobstructed.
CAUTION
Nozzles must never be painted. A part number is located on
each. Nozzles must be replaced by nozzles of the same part
number. They must never be interchanged since random
interchanging of nozzles could adversely affect proper CO2
distribution and concentration level within a hazard area.
3. Check that all personnel who may have to operate the system are properly
trained and authorised to do so. All new employees must be instructed in its
use.
Six (6) Monthly
1 Inspection of all cylinders and equipment by Kidde Distributor per the
procedures detailed in the appropriate Installation, Operation and
Maintenance Manual (Part Number 59812-400).
For more information regarding inspection and maintenance, contact your Kidde
distributor or Kidde Fire Protection.
© K.F.P.S. Ltd 59812-405 Issue A December 2004
Page 10 of 10
YOUR RESPONSIBILITIES AND RELATED EQUIPMENT REQUIREMENTS
1. Ensure an appropriate risk assessment has been conducted to establish the
requirement for additional protection in all areas. Supplementary Portable fire
extinguishers may be required.
2. Read, understand, and follow the instructions in this manual and on the
container nameplates. Review these instructions with your employees every
6 months or more frequently. Place this manual in an accessible area near
the CO2 system for ready reference. Post the name, phone number and
address of your Kidde distributor near your telephone. Also, post the
emergency telephone number of the fire brigade and your address near your
telephones.
3. If any condition exists which would render your CO2 system inoperative or
ineffective, SUSPEND ALL OPERATIONS IN THE PROTECTED AREA
IMMEDIATELY. Have the condition corrected by your Kidde distributor
before resuming operations.
High Pressure
Carbon Dioxide
Fire Protection Equipment
APPROVALS
High Pressure
Carbon Dioxide
Fire Protection Equipment
BULLETINS
Please insert future bulletins in this section

Kidde co2 product manual 050128

  • 1.
    High Pressure Carbon Dioxide PRODUCTMANUAL Contents: 1. Specification 2. Data sheets 3. Design manual 4. Installation, commissioning & maintenance manual 5. Software manual 6. Weight monitoring system 7. Direct Acting Solenoid 8. Owners Manual 9. Approvals 10. Information bulletins
  • 2.
    1 High Pressure Carbon Dioxide FireProtection Equipment SPECIFICATIONSFOR KIDDE CARBON DIOXIDE FIRE SUPPRESSION December 2004
  • 3.
    2 PROPRIETARY RIGHTS NOTICE Thisdocument and the information that it contains are the property of Kidde Fire Protection. Rights to duplicate or otherwise copy this document and rights to disclose the document and the information that it contains to others and the right to use the information contained therein may be acquired only by written permission signed by a duly authorised officer of Kidde Fire Protection. © Copyright Kidde Fire Protection Services Ltd
  • 4.
    3 SPECIFICATION FOR KIDDECARBON DIOXIDE FIRE SUPPRESSION 1.0 General Description 1.1 This specification defines the requirements for a Kidde carbon dioxide fire suppression system. It shall be used as a standard for equipment, installation and acceptance testing. 2.0 Plans and Specifications 2.1 The carbon dioxide system(s) shall be manufactured by Kidde Fire Protection, Thame Park Road, Thame, Oxfordshire. OX9 3RT. UK Major components of the detection and extinguishing control system, valves, cylinders, releasing devices and nozzles shall be supplied by one manufacturer. 2.2 Major components of the carbon dioxide hardware shall be Factory Mutual approved. 2.3 To ensure system effectiveness, the contractor shall design, install and test the equipment in accordance with either NFPA 12 or BS 5306, pt 4. 2.4 In addition to this specification, drawings shall be provided showing the general arrangement of equipment within the protected areas. The contractor shall also provide a hazard analysis of the individual risk areas. 3.0 Standards, Approvals and Quality Assurance 3.1 The carbon dioxide system shall be designed, installed and tested in accordance with BS 5306 pt4 or NFPA 12, as defined by the client or their insurers. All equipment shall be procured from a single manufacturer operating a quality scheme to : BS EN ISO 9001:2000. 4.0 Proposals and Submittals 4.1 The contractor shall supply manufacturers sales literature, data sheets and technical information for each major component of the system. 4.2 The contractor shall submit the following with their proposal: 4.2.1 Evidence of their qualifications (e.g. LPS 1204) to design, install, test, service and recharge the manufacturers equipment AS APPROVED BY Kidde. 4.2.2 A complete bill of materials and description of the proposed installation including the manufacturers part number for each major item of equipment. 4.2.3 Evidence of their ability to supply spare parts to maintain the system. 4.3 Upon award of a contract the contractor shall supply the following: 4.3.1 Detailed scaled plans/drawings of the proposed system showing all items of equipment, routing of all pipes and cables. Flow calculations shall be shown detailing pipe size, nozzle size flow rate and terminal pressure.
  • 5.
    4 This information shallbe generated by a suitable software package from the equipment manufacturer. Care should be taken in locating the extinguishing agent containers as close as possible to the hazard to minimise the time for the agent to reach the fire. 4.3.2 Electrical system schematics in accordance with the relevant standard showing safety interlocks and a description of the sequence of operation. 4.3.3 Full sets of drawings and technical submittals, as required, shall be submitted to the client and the consultant for approval prior to installation. 5.0 General Requirements 5.1 The carbon dioxide system shall be designed, engineered and installed for the proper protection of the hazard area(s). All major components shall be supplied by Kidde Fire Protection. 5.2 The design, installation and testing shall be in accordance with: BS5306 pt 4, NFPA 12 or Factory Mutual standards as appropriate. In addition, the detection and alarm system shall be designed and installed to the appropriate standard. 5.3 All major components shall be from one major manufacturer and the carbon dioxide components shall be Factory Mutual approved. 5.4 Release of the carbon dioxide system shall be possible by electrical solenoid attached to a system control head operating together to release a pilot nitrogen supply. The nitrogen pilot gas shall be capable of operating up to 36 Klem valve actuators. The control head shall also have facilities for manual release locally and remotely by mechanical pull cable. As an option the control head shall have integral switches to indicate : Operated - Control head fired. Isolated - Control head isolating pin inserted. 5.5 The system discharge time shall be designed in accordance with the design code selected for the project. Particular attention shall be given to determining the classification of the hazard and protection method employed. 5.6 The carbon dioxide storage cylinders and valves shall be “π“marked in accordance with European TPED Legislation 99/36/EC. Each cylinder shall be fitted with a Kidde Klem servo assisted valve. The valves shall be fitted with a safety burst disc designed to operate at 190 bar. The cylinder shall be painted red. The cylinder assembly shall be Factory Mutual approved. 5.7 Where multiple cylinders are required for one or more hazard areas a common manifold shall be used. To prevent appreciable loss of gas, in the case of a cylinder being removed and the system discharging, an approved check valve shall be fitted to prevent loss of gas. Each cylinder supplying a common manifold shall be of a common size and fill. 5.8 Where more than one risk is protected from a bank of cylinders, consideration shall be given to supplying a reserve supply of gas suitable to protect the largest risk. The reserve bank shall be connected to the same manifold as the primary set using Factory
  • 6.
    5 Mutual approved checkvalves. 5.9 System piping shall be in accordance with the requirements of BS 5306 pt 4 (NFPA 12, if applicable). 5.10 Discharge nozzles shall be selected from the range of Kidde Fire Protection Factory Mutual Approved designs and shall be suitably sized for the flow rates required. 5.11 System design shall be verified using the Kidde Fire Protection CO2 calculation program. A full print out shall be submitted for approval. 6.0 System Components 6.1 Cylinders - shall be, filled with 45 kg of carbon dioxide and fitted with the Kidde Klem valve. The assembly shall be Factory Mutual approved. Valves shall be both proof tested and leak tested as part of the manufacturing process. 6.2 Valve actuator (K62341) - this is the valve operating device and is attached to the valve by a 'U' shaped securing pin. The actuators can be removed for system testing without operating the cylinder valve with the associated risks of losing gas. The actuator is operated by pilot gas pressure or manually by a lever. The actuator shall be FM (Factory Mutual) approved. 6.3 Copper loop K21578 - provides a solid connection between the Klem valve and manifold check valve. The copper loop shall be Factory Mutual approved. 6.4 Flexible loop K97112 - an alternative flexible connection between the Klem valve and manifold check valve. 6.5 Pilot loops K93433 and K93434 - high pressure flexible tube used to connect between the pilot gas supply and cylinder valve actuators. Pilot loops shall be tested to 210 bar (3000 PSI). 6.6 Pilot vent K24051 - this device is a safety feature designed to slowly relieve pilot gas pressure following the main CO2 discharge. 6.7 Manifolds - shall be manufactured from schedule 80 pipe , galvanised and tested to 120 bar (2000 PSI). Manifolds shall be FM approved and available in the following sizes for 2,3,4,5 cylinder(s) 1" nominal bore or 1¼" nominal bore schedule 80 pipe. 6.8 Cylinder racking - shall be formed from steel components designed specifically for supporting CO2 cylinders during a discharge. Where double rows of cylinders are used a wooden central spacer shall be used. Racking shall be supplied in modules of 2 or 3 cylinder sets. Two sets of racking shall be used for each bank of cylinders. 6.9 Control heads K62303 and 62304 - provide the electro/mechanical interface between the detection control panel and CO2 extinguishing hardware. The control head together with the pilot cylinder K62462, solenoid K62422B and wall mount K62487, forms the system actuator and provides the pilot gas supply to operate the main cylinder bank. Operation of the control head may be achieved electrically, pneumatically or mechanically by remote pull cable. 6.10 Push to fire button K62412 - provides direct manual control to fire the CO2 cylinder bank from the systems actuator. 6.11 Safety pin K62401 - this fits into the control head to reset the device following operation. It also provides an isolation facility when left in position. Remote indication of the isolated condition is available via contacts within the control head. A blanking plug shall be used to prevent ingress of dirt into the control head when the safety pin is not in situ.
  • 7.
    6 6.12 Manual releaseinterface K62478 - allows remote release of the control head by means of a pull box K1114 and phosphor bronze pre - stretched cable K9002 . To allow easy change of direction corner pulleys K1122 shall be used. The cable shall be run in ½" o.d. galvanised conduit for mechanical protection. 6.13 Pressure operated direction valves K24175 - (typical) - This is a 1¼" nominal bore valve and shall be used to control the flow of carbon dioxide to the specific hazard in a system designed to protect multiple risks from a common bank of cylinders. The valve shall be capable of opening under full CO2 pressure. A manual lever shall be supplied for emergency control. The valve shall be Factory Mutual approved. A switch shall be fitted to the valve where indication that the valve is open is required (e.g. K24630). (P.O.D. valves may be provided in sizes: ¾", 1", 1¼", 1½", 2", 3", and 4"). 6.14 Safety outlet K 921 - shall be used where gas may be trapped between two closed valves to prevent a dangerous rupture of the pipework e.g. when directional valves or isolating valves are used. 6.15 Pressure switch K60218 - shall be used to provide electrical contacts rated at 10amp. To provide the following facilities: • Plant shut down • Remote alarm signalling • Discharged indication • Gas in manifold - should direction valve not open. (The switch shall be Factory Mutual approved). 6.16 Pressure trip K17554 - shall be used to automatically release weight operated dampers, fuel valves etc upon CO2 discharge. The pressure trip shall be Factory Mutual approved. 6.17 CO2 siren K18307 - shall be used to give audible warning of impending CO2 discharge prior to the main direction valve opening. 6.18 CO2 discharge delay K23650/30 - shall be used in conjunction with the siren to give a 30 second pre-alarm to allow safe evacuation of a CO2 protected space. The discharge delay shall be Factory Mutual approved. 6.19 Time delay by-pass K60736 - shall allow emergency manual control of the CO2 discharge, by- passing the 30 second delay. 6.20 Odouriser assembly K62586 - shall be used to introduce a pungent lemon smell into a protected hazard area upon operation of the CO2 extinguishing system. It shall be used in conjunction with a check valve K22152. 6.21 Continuous weight monitoring unit E8731-402 shall be used to monitor the CO2 cylinders for weight loss. Should a cylinder lose 5% - 10 % of its weight then this device shall automatically signal a fault condition to the system control panel via a micro switch. 7.0 System Design 7.1 For total flooding applications care shall be taken to ensure that the room is reasonably gas tight with all ventilation shut down. Failing this, adequate provision shall be made for leakage compensation in accordance with the design standard.
  • 8.
    7 7.2 All doorsor windows which may be open shall be arranged to close automatically upon CO2 discharge to prevent undue loss of gas. 7.3 The carbon dioxide system design shall be based upon accurate drawings of the hazard or in the absence of drawings a detailed site survey. The hazard analysis shall define the design concentration used and temperature applicable. 7.4 Warning signs shall be fitted to all appropriate doors into the hazard area and any areas where CO2 may build up and form a hazardous concentration. 7.5 All equipment shall be installed to the manufacturer's manuals and due consideration for service and maintenance of the system shall be given. 7.6 The system shall meet the requirements of either BS5306 pt 4 or NFPA 12 as determined by the client/consultant or their insurers. 8.0 Equipment Manufacturer The system components, design manuals and flow calculation programme shall be provided by: Kidde Fire Protection, Thame Park Road, Thame, Oxfordshire, OX9 3RT. UK
  • 9.
    High Pressure Carbon Dioxide FireProtection Equipment CO2 DATA SHEETS
  • 10.
    CO2 DATA SHEETS CO2Nozzle ........................................................................................................ 418A Check valve assy ..................................................................................................426 Pressure trip, typical installation...................................................................811-5000 45kg cylinder & klem valve assy...................................................................811-9004 6.8kg cylinder & klem valve assy.......................................................... 811-9004(6.8) 22.7kg cylinder & klem valve assy...................................................... 811-9004(22.7) ¾” Safety Outlet ...........................................................................................811-9016 Multi-container racking .................................................................................811-9020 1” (25mm) bore, cylinder check, valve manifold ...........................................811-9022 11/4” (32mm) bore, cylinder check, valve manifold ......................................811-9023 Flexible loop .................................................................................................811-9026 Valve actuator (pneumatic/manual)..............................................................811 9031 Lever actuator link........................................................................................811-9032 Cable clamp assy.........................................................................................811-9033 Klem valve....................................................................................................811-9038 Pilot loops.....................................................................................................811-9040 Pilot bleed.................................................................................................. 811-9040A ¾” P.O.D. valve............................................................................................811-9067 ¾” P.O.D. valve c/w indicator switch ............................................................811-9068 1” P.O.D. valves ...........................................................................................811-9071 1” P.O.D. valve c/w indicator switch .............................................................811-9072 11/4” P.O.D. valve........................................................................................811-9075 11/4” P.O.D. valve c/w indicator switch ........................................................811-9076 11/2”” P.O.D. ................................................................................................811-9079 11/2” P.O.D. valve c/w indicator switch ........................................................811-9080 2” P.O.D. ......................................................................................................811-9083 2” P.O.D. valve c/w indicator switch .............................................................811-9084 3”, 4” & 6” P.O.D. valves ..............................................................................811-9090 CO2 Discharge delay unit .............................................................................811-9112 Universal pressure switch assy ....................................................................811-9119
  • 11.
    Pressure Trip................................................................................................811-9123 Nozzle, CO2,flanged horn............................................................................811-9139 Nozzle, CO2, with horn .................................................................................811-9148 Nozzle, CO2, & duct adaptor ........................................................................811-9151 Manual Pull Box assy ...................................................................................811-9220 Manual Pull box instruction plate..................................................................811-9225 CO2 door plate.............................................................................................811-9237 Control head options ....................................................................................823-9250 Electric control head.....................................................................................823-9521 Flameproof solenoid................................................................................. 823-9522/A Standard solenoid .................................................................................... 823-9522/B Pneumatic diaphragm ..............................................................................823-9522/C Safety & Reset pin, Manual release .............................................................823-9523 Pilot valve & cylinder assy......................................................................... 823-9524A Control head bracket ................................................................................. 823-9524B Mounting bracket - control head (FM) ....................................................... 823-9524C Typical arrangement, 3 cylinders..................................................................841-5025 Typical arrangement, including manual pull .................................................841-5027 Pilot tube connections to inlet of P.O.D. valves............................................841-5036
  • 63.
    i Manual No59812-401 High Pressure Carbon Dioxide Fire Protection Equipment DESIGN MANUAL Issue 5 December 2004 Manual No 59812-401
  • 64.
    ii Manual No59812-401 PROPRIETARY RIGHTS NOTICE This document and the information that it contains are the property of Kidde Fire Protection. Rights to duplicate or otherwise copy this document and rights to disclose the document and the information that it contains to others and the right to use the information contained therein may be acquired only by written permission signed by a duly authorised officer of Kidde Fire Protection. © Copyright Kidde Fire Protection Services Ltd
  • 65.
    iii Manual No59812-401 TABLE OF CONTENTS Chapter Page INTRODUCTION ..................................................................................................1 1 TOTAL FLOODING SYSTEMS....................................................................2 1.1 EXAMPLES OF HAZARDS..................................................................2 1.2 TYPE OF FIRES ..................................................................................2 1.3 WHERE CO2 IS NOT EFFECTIVE ......................................................2 2 CO2 REQUIREMENTS FOR SURFACE FIRES...........................................3 2.1 BASIC QUANTITY ...............................................................................3 2.2 UNCLOSEABLE OPENINGS...............................................................3 2.2.1 Limits of Uncloseable Openings ................................................3 2.2.2 Compensation ...........................................................................4 2.3 MATERIAL CONVERSION FACTOR ..................................................4 2.4 TEMPERATURE CORRECTION.........................................................6 2.5 FORCED VENTILATION .....................................................................6 2.6 INTERCONNECTED VOLUMES .........................................................7 2.7 VENTING FOR SURFACE FIRE SYSTEMS .......................................7 3 CO2 REQUIREMENTS FOR DEEP SEATED FIRES...................................8 3.1 BASIC QUANTITY ...............................................................................8 3.2 OPENINGS ..........................................................................................8 3.3 FORCED VENTILATION .....................................................................8 3.4 INTERCONNECTED VOLUMES .........................................................8 3.5 EXTENDED DISCHARGE .................................................................10 3.5.1 Venting for Deep Seated Fire Systems ...................................10 4 DISCHARGE RATES FOR TOTAL FLOODING SYSTEMS......................12 4.1 SURFACE FIRES ..............................................................................12 4.2 DEEP SEATED FIRES ......................................................................12 5 NOZZLE DISTRIBUTION...........................................................................13 6 LOCAL APPLICATION SYSTEMS............................................................14 6.1 EXAMPLES OF HAZARDS................................................................14 6.2 GENERAL..........................................................................................14 6.3 CO2 QUANTITIES..............................................................................14 6.3.1 Duration of Discharge..............................................................15 6.3.2 Material Conversion Factor......................................................15 7 RATE BY AREA METHOD ........................................................................16
  • 66.
    iv Manual No59812-401 7.1 CO2 QUANTITY .................................................................................16 7.2 HORN DISPOSITIONS ......................................................................18 8 RATE BY VOLUME METHOD...................................................................20 8.1 ASSUMED ENCLOSURE ..................................................................20 8.2 CO2 QUANTITY .................................................................................20 8.3 HORN DISPOSITIONS ......................................................................21 9 PIPE SELECTION......................................................................................22 9.1 RATE OF APPLICATION...................................................................22 9.2 PIPE SIZE ESTIMATES.....................................................................22 9.3 NOZZLE SIZES..................................................................................23 10 STORAGE CONTAINER LOCATION........................................................24 11 DISTRIBUTION VALVES...........................................................................25 12 AUTOMATIC OPERATION........................................................................26 13 MANUAL CONTROL .................................................................................27 13.1 MANUAL RELEASE...........................................................................27 14 ALARMS ....................................................................................................28 15 ELECTROSTATIC DISCHARGE...............................................................29 16 DETECTION...............................................................................................30 16.1 PNEUMATIC DETECTION - HEAT ACTUATED DEVICES...............30 16.1.1 General....................................................................................30 16.1.2 Location of HADs on Smooth Flat Ceilings..............................31 16.1.3 Fixed Temperature HAD..........................................................32 17 SAFETY REQUIREMENTS........................................................................33 17.1 TOTAL FLOODING SYSTEMS..........................................................33 17.2 LOCAL APPLICATION SYSTEMS.....................................................33 18 FACTORY MUTUAL RULES.....................................................................34
  • 67.
    v Manual No59812-401 LIST OF ILLUSTRATIONS Figure Page Figure 1 Aiming Position for Angled Discharge Horns............................................18 Figure 2 Discharge Rate, per kg per min per m3 ....................................................20 LIST OF TABLES Table Page Table 1 Volume Factors ..........................................................................................3 Table 2 Minimum Carbon Dioxide Concentration for Extinction ..............................5 Table 3 Hazard Factors...........................................................................................9 Table 4 Extended Discharge Gas Quantities for Enclosed Circulation: Rotating Electrical Machines...................................................................................11 Table 5 Horn Selection and CO2 Quantity.............................................................17 Table 6 Aiming Factors for Nozzles Installed at an Angle (based on 150 mm Freeboard)................................................................................................19 Table 7 Pipe Size Estimates..................................................................................22
  • 68.
    Issue 5 December2004 Manual No 59812-4011 INTRODUCTION This manual describes the design principles to be used on all carbon dioxide (CO2) systems. General requirements and design criteria are based on British Standard (BS) 5306 Part 4, but on some occasions National Fire Protection Association (NFPA) 12 may be used as the base document. Detailed information on components is given in the individual CO2 Engineering Data Sheets. The importance of proper design cannot be over stressed as design concentrations and application rates are critical for successful extinguishing. The recommendations given in this document represent the best known technical data, but while the aim has been to anticipate all considerations, the recommendations should be applied in practical situations with discretion and due regard to local circumstances. Full requirements for the design of CO2 fire fighting systems are given in BS5306 Part 4.
  • 69.
    Issue 5 December2004 Manual No 59812-4012 TOTAL FLOODING SYSTEMS 1 TOTAL FLOODING SYSTEMS CO2 total flooding systems are based on creating an extinguishing concentration of CO2 within an enclosed space containing the combustible materials. The quantity of CO2 is determined by applying an appropriate flooding factor to the volume being protected. The efficiency of a total flooding system depends upon maintaining the concentration for as long as possible, so before total flooding can be considered as a method of extinguishing, the protected space must be reasonably well enclosed. It is always advisable for an integrity test to be conducted to verify the rate of leakage. A fixed supply of CO2 is permanently connected to fixed piping and discharge nozzles are arranged to discharge CO2 into the protected space. 1.1 Examples of Hazards Rooms, vaults, enclosed machines, ovens, dust collectors, floor and ceiling voids and fume extraction ducts. 1.2 Type of Fires Fires that can be extinguished by total flooding methods are: (a) Surface fires that can be extinguished quickly, such as those involving flammable liquids and vapours. (b) Deep seated fires that require cooling time in order to be extinguished, e.g. fires involving bulk paper and other solids. 1.3 Where CO2 is NOT Effective (a) Materials that contain their own oxygen supply and liberate oxygen when burning, e.g. cellulose nitrate. (b) Reactive metals e.g. sodium, potassium, magnesium, titanium, zirconium, uranium and plutonium. (c) Metal hydrides. While CO2 may not extinguish these fires, it will not react dangerously or increase the burning rate. CO2 will protect adjacent combustibles and will also extinguish fires of other materials in which the reactive metals are often stored. Example: (a) Sodium stored or used under Kerosene. (b) Cellulose nitrate in a solvent. (c) Magnesium chips covered with heavy oil.
  • 70.
    Issue 5 December2004 Manual No 59812-4013 CO2 REQUIREMENTS FOR SURFACE FIRES 2 CO2 REQUIREMENTS FOR SURFACE FIRES 2.1 Basic Quantity Multiply the volume to be protected (cubic metres) by the appropriate volume factor given in Table 1. The answer will be in kilograms of CO2. This will protect an enclosure containing materials requiring a design concentration of up to 34%. The volume to be used is the gross volume of the enclosure but you are permitted to deduct permanent, impermeable elements of the building structure i.e. beams, stanchions, solid stairways and foundations. Table 1 Volume Factors Volume of Space Volume Factor Calculated Minimum m3 kg CO2/m3 kg <4 1.15 >4 <14 1.07 4.5 >14 <45 1.01 16.0 >45 <126 0.90 45.0 >126 <1400 0.80 110.0 >1400 0.74 1100.0 » NOTE 1 Table 1 Volume Factors, must ONLY be used for SURFACE FIRES. » NOTE 2 For DEEP SEATED FIRES refer to Chapter 3. Example: Room: 6 m x 9 m x 3m = 162 m3 162 m3 x 0.80 kg/m3 = 129.6 kg 2.2 Uncloseable Openings Openings shall be arranged to close automatically before or simultaneously with the start of the CO2 discharge. This can be done by self-closing door devices, fire curtains or steel shutters, refer to Data Sheet 811-5000. If it is not possible to seal the opening it is permissible for small openings to remain open provided they do not exceed the limits shown below, and are compensated by the addition of extra carbon dioxide. 2.2.1 Limits of Uncloseable Openings The maximum area permitted is the smaller result of the following calculations: (a) An area in square metres, which is numerically equivalent to 10% of the volume in cubic metres. (b) 10% of the total area of all sides, top and bottom in square metres. When uncloseable openings exceed this limitation, the system should be designed by a local application method.
  • 71.
    Issue 5 December2004 Manual No 59812-4014 CO2 REQUIREMENTS FOR SURFACE FIRES 2.2.2 Compensation Additional gas at the rate of 5 kg/m2 of opening. Where necessary this quantity should be multiplied by the appropriate Material Conversion Factor (MCF), refer to Section 2.3. The additional quantity should be discharged through the regular pipework system and the flow rate increased accordingly so that the additional quantity is discharged within the time specified in BS5306 Part 4. 2.3 Material Conversion Factor For materials requiring a design concentration over 34%, the basic quantity of carbon dioxide calculated, i.e. the result of using Table 1, plus the addition for losses through limited openings, shall be increased by multiplying this quantity by the appropriate conversion factor in Table 2. The most hazardous material in the enclosure must be selected no matter what the quantity of that material. For materials not listed consult Kidde Fire Protection as the design concentration may have to be determined by test. Example: Room: 6 m x 9 m x 3 m high = 162 m3 162m3 x 0.80kg/m3 = 129.6kg Uncloseable opening = 1.0 m2 = 5.0 kg Basic quantity = 134.6 kg If room contains butadiene as the most hazardous material: MCF = 1.3 134.6 kg x 1.3 = 175kg
  • 72.
    Issue 5 December2004 Manual No 59812-4015 CO2 REQUIREMENTS FOR SURFACE FIRES Table 2 Minimum Carbon Dioxide Concentration for Extinction Minimum Material Material Design CO2 Conversion Concentration (%) Factor Acetaldehyde 34 1.0 Acetylene 66 2.5 Amyl Acetate 34 1.0 Acetone 31 1.0 Amyl Alcohol 34 1.0 Benzol, Benzene 37 1.1 Butadiene 41 1.3 Butane 34 1.0 Butyl Acetate 34 1.0 Butyl Alcohol 34 1.0 Carbon Disulphide 66 2.5 Carbon Monoxide 64 2.4 Coal Gas or Natural Gas 37 1.1 Cyclopropane 37 1.1 Diesel Fuel 34 1.0 Dowtherm 46 1.5 Ethane 40 1.2 Ethyl Ether 46 1.5 Ethyl Alcohol 43 1.3 Ethylene 49 1.6 Ethylene Dichloride 25 1.0 Ethylene Oxide 53 1.75 Hexane 35 1.1 Hydrogen 74 3.2 Isobutane 36 1.1 Kerosene 34 1.0 Lube oils 34 1.0 Methane 30 1.0 Methyl Alcohol 40 1.2 Paint 34 1.0 Pentane 35 1.1 Petroleum Spirit 34 1.0 Propane 36 1.1 Propylene 36 1.1 Quench, Lube Oils 34 1.0 Tar 34 1.0 Toluol 34 1.0 Turpentine 34 1.0 Transformer Oil 34 1.0 For materials not listed please contact Kidde Fire Protection
  • 73.
    Issue 5 December2004 Manual No 59812-4016 CO2 REQUIREMENTS FOR SURFACE FIRES 2.4 Temperature Correction Additional quantities of CO2 are needed to compensate for the effects of abnormal temperature. Hazards which operate at temperatures above 100°C may be more likely to re-ignite so it is necessary to hold the extinguishing concentration for a longer period to assist cooling. Add 2% carbon dioxide for each 5°C above 100°C. Example: Oven: 3 m x 1.5 m x 1.8 m = 8.1 m3 If the normal working temperature is 204°C: 204-100 = 104/5 = 20.8 20.8 x 2% = 41.6% 8.1m3 x 1.07 kg/m3 = 8.66 (basic quantity) x 1.416 (temp correction) = 12.26 kg CO2 has a lower expansion ratio at lower temperatures so it will be more dense and leakage would be greater than normal. Where the normal temperature of the enclosure is below -20°C, add 2% of CO2 for each 1°C below -20°C. Example: Refrigerated space: 3 m x 6 m x 3 m = 54 m3 with a normal operating temperature of -23°C. 23°C - 20°C = 3°C x 2% = 6% 54 m3 x 0.90 kg/m3 = 48.6 kg (basic quantity) x 1.06 (temp correction) = 51 .5 kg If an addition has been made to the basic CO2 quantity to compensate for openings or application of an MCF, the total quantity should be used in place of the basic quantity in the above examples. 2.5 Forced Ventilation When forced air ventilation systems are used, they shall, if possible, be shutdown before, or simultaneously, with the start of the CO2 discharge. If this cannot be done, additional CO2 must be applied. If there is a short run down time but the quantity of air removed is significant, additional CO2 must be applied. The additional CO2 must be discharged within the time specified in BS5306 Part 4. For calculation purposes the volume of air removed in one minute will be replaced with CO2 at the design concentration being used. Example: Refer to the example in Section 2.3. Assume the room has 30 m3 of air removed by the ventilation system in one minute. 30 m3 x 0.80 kg/m3 = 24 kg x 1.3 (MCF) = 31.2 kg + 175.0 kg (original) = 206.2 kg Services such as heating, fuel supplies, paint spraying, conveyors etc. must also be shutdown before or simultaneously, with the CO2 discharge.
  • 74.
    Issue 5 December2004 Manual No 59812-4017 CO2 REQUIREMENTS FOR SURFACE FIRES 2.6 Interconnected Volumes In two or more interconnected volumes where free flow of CO2 can occur, the CO2 quantity shall be the sum of the quantities calculated for each volume, using its respective volume factor. If one volume requires greater than normal concentration, the higher concentration shall be used for all interconnected volumes. 2.7 Venting for Surface Fire Systems Leakage around doors and windows often provides sufficient pressure relief without special arrangements being required. It is possible to calculate the area of free venting needed for very tight enclosures but it is recommended you provide the customer with the formula and CO2 flow rate so that his architect can take the responsibility. P Q where: X is the free venting area (in mm2 ). Q is the calculated carbon dioxide flow rate (in kg/min). P is the permissible strength (internal pressure) of enclosure (in bar). X=23.9
  • 75.
    Issue 5 December2004 Manual No 59812-4018 CO2 REQUIREMENTS FOR DEEP SEATED FIRES 3 CO2 REQUIREMENTS FOR DEEP SEATED FIRES 3.1 Basic Quantity Multiply the volume to be protected (cubic metres) by the flooding factor given in Table 3. Example: Paper documents storage room: 6m x 6m x 3m high = 108m3 108 m3 x 2 kg/m3 CO2 = 216 kg 3.2 Openings Total flooding systems protecting solid materials cannot tolerate the degree of openings permitted for surface fire protection. The design concentration must be maintainable over a long period, so low level openings are not practicable. Small openings at or near the ceiling are ideal because: (a) Compensation for losses involves only reasonable quantities of additional CO2. (b) They allow the escape of hot gases. (c) They prevent pressure increases that can stress the enclosure structure. Any openings that cannot be closed shall be compensated for by the addition of CO2 equal in volume to the expected loss during the extinguishing and holding time. 3.3 Forced Ventilation When forced air ventilation systems are used, they shall, if possible, be shutdown before, or simultaneously, with the start of the CO2 discharge. If this cannot be done, additional CO2 must be applied. If there is a short run down time but the quantity of air removed is significant, additional CO2 must be applied. The additional CO2 must be discharged within the time specified in BS5306 Part 4. For calculation purposes the volume of air removed in one minute will be replaced with CO2 at the design concentration being used. Example: Assume the room has 30 m3 of air removed by the ventilation system in one minute: 30 m3 x 2 kg/m3 = 60 kg + 216 kg (original) = 276 kg Services such as heating, fuel supplies, paint spraying, conveyors etc. must also be shutdown before or simultaneously, with the CO2 discharge. 3.4 Interconnected Volumes In two or more interconnected volumes where free flow of CO2 can occur, the CO2 quantity shall be the sum of the quantities calculated for each volume, using its respective volume factor. If one volume requires greater than normal concentration, the higher concentration shall be used for all interconnected volumes.
  • 76.
    Issue 5 December2004 Manual No 59812-4019 CO2 REQUIREMENTS FOR DEEP SEATED FIRES Table 3 Hazard Factors Based on an expansion ratio of 0.52 m3 /kg at a temperature of 10°C. Hazard Design Flooding Concentration Factors (%) (kg/m3 ) Electrical equipment. Enclosed rotating equipment Dry electrical wiring Electrical insulating materials 50 1.35 Computer installations * Central processing areas and equipment 53 1.50 Data processing Tape controlled machinery and tape storage 68 2.25 Stores Record stores and archives for paper documents Ducts and covered trenches 65 2.00 Fur storage vaults Dust collectors 75 2.70 General Cocoa Leather Silk Wool 63 1.78 Coal Coffee Cork Cotton Peanuts Rubber Soybean Sugar 75 2.70 * See also BS 6266. » NOTE 1 Flooding factors for other deep seated fires should be agreed with Kidde Fire Protection. » NOTE 2 Table 1 Volume Factors, is not applicable for deep seated fires and must not be used.
  • 77.
    Issue 5 December2004 Manual No 59812-40110 CO2 REQUIREMENTS FOR DEEP SEATED FIRES 3.5 Extended Discharge In some instances it may be necessary to have an extended discharge for leakage compensation with a rate of flow that is considerably slower than that required for initial fire extinguishing. A typical example is the protection of rotating electrical machinery, i.e. alternators and generators, where an initial concentration has to be achieved in a short time and a minimum concentration of 30% during a specified deceleration period, which should be held for 20 minutes. Two separate banks of CO2 containers and distribution piping are used in this case, the ‘initial’ bank discharging at a fast rate and the ‘extended’ bank discharging at a slow rate. Table 4 is used to determine the quantity of CO2 to maintain minimum concentration. The quantities are based on the nett internal volume of the machine and the deceleration time assuming average leakage. For non re-circulating machines with relief vents, add 35% to the quantities shown in Table 4. 3.5.1 Venting for Deep Seated Fire Systems Leakage around doors and windows often provides sufficient pressure relief without special arrangements being required. It is possible to calculate the area of free venting needed for very tight enclosures but it is recommended you provide the customer with the formula and CO2 flow rate so that his architect can take the responsibility. P Q where: X is the free venting area (in mm2 ). Q is the calculated carbon dioxide flow rate (in kg/min). P is the permissible strength (internal pressure) of enclosure (in bar). X=23.9
  • 78.
    Carbon Dioxide Required 5 mm10 mm 15 mm 20 mm 30 mm 40 mm 50 mm 60 mm kg lb m 3 ft 3 m 3 ft 3 m 3 ft 3 m 3 ft 3 m 3 ft 3 m 3 ft 3 m 3 ft 3 ft 3 45 100 34 1 200 28 1 000 23 800 17 600 14 500 11 400 9 300 6 200 68 150 51 1 800 43 1 500 34 1 200 28 1 000 21 750 17 600 14 500 11 400 91 200 68 2 400 55 1 950 45 1 600 37 1 300 28 1 000 24 850 18 650 14 500 113 250 93 3 300 69 2 450 57 2 000 47 1 650 37 1 300 30 1 050 23 800 17 600 136 300 130 4 600 88 3 100 68 2 400 57 2 000 47 1 650 37 1 300 28 1 000 20 700 159 350 173 6 100 116 4 100 85 3 000 71 2 500 57 2 000 47 1 650 34 1 200 26 900 181 400 218 7 700 153 5 400 108 3 800 89 3 150 71 2 500 57 2 000 45 1 600 34 1 200 204 450 262 9 250 193 6 800 139 4 900 113 4 000 88 3 100 74 2 600 60 2 100 45 1 600 227 500 306 10 800 229 8 100 173 6 100 142 5 000 110 3 900 93 3 300 79 2 800 62 2 200 250 550 348 12 300 269 9 500 210 7 400 173 6 100 139 4 900 119 4 200 102 3 600 88 3 100 272 600 394 13 900 309 10 900 244 8 600 204 7 200 170 6 000 147 5 200 127 4 500 110 3 900 295 650 436 15 400 348 12 300 279 9 850 235 8 300 200 7 050 176 6 200 156 5 500 136 4 800 319 700 479 16 900 385 13 600 314 11 100 266 9 400 230 8 100 204 7 200 181 6 400 159 5 600 340 750 524 18 500 425 15 000 350 12 350 297 10 500 259 9 150 232 8 200 207 7 300 184 6 500 363 800 566 20 000 464 16 400 385 13 600 329 11 600 289 10 200 261 9 200 232 8 200 207 7 300 386 850 609 21 500 503 17 750 421 14 850 360 12 700 320 11 300 289 10 200 258 9 100 229 8 100 408 900 651 23 000 541 19 100 456 16 100 391 13 800 350 12 350 317 11 200 285 10 050 255 9 000 431 950 697 24 600 581 20 500 491 17 350 422 14 900 379 13 400 346 12 200 312 11 000 278 9 800 454 1 000 739 26 100 620 21 900 527 18 600 453 16 000 411 14 500 374 13 200 337 11 900 303 10 700 476 1 050 782 27 600 666 23 300 564 19 900 484 17 100 442 15 600 402 14 200 364 12 850 326 11 500 499 1 100 824 29 100 697 24 600 596 21 050 515 18 200 470 16 600 430 15 200 389 13 750 351 12 400 522 1 150 867 30 600 736 26 000 632 22 300 547 19 300 501 17 700 459 16 200 416 14 700 374 13 200 544 1 200 912 32 200 773 27 300 667 23 550 578 20 400 532 18 800 487 17 200 442 15 600 399 14 100 567 1 250 954 33 700 813 28 700 702 24 800 609 21 500 562 19 850 515 18 200 467 16 500 422 14 900 590 1 300 1 000 35 300 852 30 100 738 26 050 641 22 650 592 20 900 544 19 200 494 17 450 447 15 800 612 1 350 1 042 36 800 889 31 400 773 27 300 673 23 750 623 22 000 572 20 200 521 18 400 472 16 650 635 1 400 1 087 38 400 929 32 800 809 28 550 705 24 900 654 23 100 600 21 200 548 19 350 496 17 500 658 1 450 1 130 39 900 968 34 200 844 29 800 736 26 000 685 24 200 629 22 200 575 20 300 520 18 350 680 1 500 1 172 41 400 1 008 35 600 879 31 050 767 27 100 715 25 250 657 23 200 600 21 200 544 19 200 CO2REQUIREMENTSFORDEEPSEATEDFIRES Table4ExtendedDischargeGasQuantitiesforEnclosedCirculation: RotatingElectricalMachines Issue5December200411ManualNo59812-401
  • 79.
    Issue 5 December2004 Manual No 59812-40112 DISCHARGE RATES FOR TOTAL FLOODING SYSTEMS 4 DISCHARGE RATES FOR TOTAL FLOODING SYSTEMS The importance of the following calculations is that pipe and nozzle sizes are based on the desired flow rate, refer to Chapter 9. 0.52 m3 /kg @ 10°C 0.54 m3 /kg @ 20°C 0.56 m3 /kg @ 30°C 4.1 Surface Fires For surface fires the design concentration will be achieved in one minute. Example: Room requiring 1,000 kg of CO2. This would be the basic quantity calculated, plus all additions but not including any special addition for cooling purposes, refer to Section 2.4. 1,000 kg of CO2 ÷ by one minute Flow rate = 1000 kg/min 4.2 Deep Seated Fires For deep seated fires the design concentration will be achieved within seven minutes but the rate will not be less than that required to develop a concentration of 30% in two minutes. This would be the basic quantity calculated, plus all additions but not including an extended discharge. Example: Paper documents storage room: 6 m x 6 m x 3 m high = 108 m3 108 m3 x 2 kg/m3 of CO2 = 216 kg 30% Vol = 32.4 m3 32.4 in3 ÷ 0.56 m3 /kg (expansion 30°C) = 57.85 kg ÷ 2 Flow rate = 29 kg/min Flow time = 216 ÷ 29 = 7.45 minutes To ensure a flow time of 7 minutes Use 216 ÷ 7 = 31 kg per minute Most calculations produce a flow time of between four and seven minutes, the last step shows what to do if seven minutes is exceeded.
  • 80.
    Issue 5 December2004 Manual No 59812-40113 NOZZLE DISTRIBUTION 5 NOZZLE DISTRIBUTION For flooding rooms use discharge horn nozzles Part No K61793 or K61792, refer to Data Sheet 811-9148, depending upon flow rate required. Nozzles should spaced approximately 6 m apart. For rooms up to 5 m high, install nozzles at a height of 2.5 m and angle of 45°. Average throw approximately 4 m. For rooms between 5 and 10 m high, install at 2/3 height up from floor. For rooms with high stacking or rooms over 10 m high, it may be necessary to install at 1/3 and 2/3 levels. Obstructions: If obstructions interfere with efficient distribution it may be necessary to use more nozzles than specified above, or even locate nozzles at ceiling level. To protect the nozzle in dirty conditions use Part No. K5814, refer to Data Sheet 811-9139. To inject CO2 into ducts use nozzle Part No. K13045, refer to Data Sheet 811-9151.
  • 81.
    Issue 5 December2004 Manual No 59812-40114 LOCAL APPLICATION SYSTEMS 6 LOCAL APPLICATION SYSTEMS Local application systems are used for extinguishing surface fires in flammable liquids, vapours and shallow solids, where the hazard is not enclosed or where the degree of enclosure does not conform to the requirements for total flooding. In carbon dioxide local application systems, CO2 is discharged directly into the fire. The efficiency of the system depends on the CO2 contacting the burning surface at the required rate of flow. Correct discharge horn nozzle positioning is critical. Quantities of CO2 must not be determined by using Table 1. 6.1 Examples of Hazards Dip tanks, quench tanks, printing presses, textile machinery, coating machinery, spray booths, kitchen ranges and hoods etc. 6.2 General The important point is that the hazard shall be isolated from other hazards and the entire hazard protected simultaneously, so that fire is prevented from spreading to unprotected areas and a re-flash from unprotected areas is not possible. For example, in a six stand printing press simultaneous protection would be given to all printing stands, the drying boxes, the ink supply containers, and the flammable vapour extract duct. Similarly in an industrial food processing environment, simultaneous protection is given to the cooking oil surfaces, the burner compartment, the fume hood and extraction duct. Any service likely to affect the efficiency of the CO2 discharge must be interlocked with the system so as to automatically shut down. This would include ventilating fans, conveyors, flammable liquid pumps, mixers, heaters, dryers, sprayers etc. 6.3 CO2 Quantities The quantity of CO2 to be used in a local application system can be determined by either of two methods depending upon the hazard construction, but there are various factors that are common to both. The amount of CO2 required is computed by multiplying the total nozzle discharge rate by the time the discharge is required to be maintained. For high pressure systems, the computed quantity of CO2 is increased by 40% to compensate for the fact that only 70% of the cylinder content is discharged as a liquid and considered effective. If a combination of total flooding and local application protection is being given, this increase is not needed for the total flooding portion. The discharge rate for the total flooding portion can be calculated by dividing the quantity required for total flooding by the factor 1.4 and by the time of the local application discharge in minutes.
  • 82.
    Issue 5 December2004 Manual No 59812-40115 LOCAL APPLICATION SYSTEMS 6.3.1 Duration of Discharge The minimum, effective liquid discharge time is 30 seconds. This is increased if inherently hot surfaces or materials require a longer time to assist in cooling and to prevent re-ignition. The standard does not specify the prolonged discharge time so this must be decided by the designer taking into account the temperature involved and local site considerations, but somewhere between one and three minutes is usually adequate. The minimum discharge time for Carbon Dioxide being applied to liquids that have an auto-ignition temperature that is lower than their boiling temperature shall be 3 min. For example when protecting a kitchen range a prolonged discharge is given to the cooking oil surface (3 minutes) but only 30 seconds to other associated areas. 6.3.2 Material Conversion Factor A MCF is applied when appropriate, as specified in Section 2.3. The increased quantity of CO2 has to be discharged during the 30 second minimum period. Example: Local application portion: Flow rate (kg/min) x discharge time (mins) x 1.4 x MCF = kg of CO2 required e.g. 100 kg/min x 0.5 x 1.4 x 1.5 (Ethyl Ether) =100 x 0.7x 1.5 = 105kg pIus 150 kg for a 90 second discharge for cooling = 315 kg in total and discharged at a rate of 150 kg/min Total flooding portion: Quantity of CO2 required is determined by the total flooding method Flow rate = Quantity of CO2 1.4 x discharge time e.g. 14 kg of CO2 is for a Total Flooding portion of a combined Local Application minus Total Flooding system (discharge time 0.5min) Flow rate = 14 kg = 14 = 20 kg/min 1.4 x 0.5 0.7 The foregoing information relates to high pressure storage containers of which the majority of systems comprise. If a low pressure bulk storage tank is employed, the 1.4 liquid flow factor is omitted. Also the pre-liquid flow time, which is a feature of low pressure systems must not be included as part of the 30 second liquid discharge time. » NOTE Only liquid discharge is effective in a local application system.
  • 83.
    Issue 5 December2004 Manual No 59812-40116 RATE BY AREA METHOD 7 RATE BY AREA METHOD The area method of system design is used where the fire hazard consists of flat surfaces or low-level objects associated with flat horizontal surfaces. When flammable liquid fires are to be extinguished, a minimum freeboard of 150 mm is necessary. 7.1 CO2 Quantity The maximum area protected by each discharge horn and the amount of CO2 required varies with the distance of the horn from the surface being protected. The greater the distance, the larger the area covered and quantity of CO2 required. The portion of a hazard surface protected by each horn is based on its ‘side of square’ coverage. Nozzle sizes are selected for their area coverage and flow rate so as to minimise the amount of CO2 required. See Table 5 for details of horn height, area coverage and CO2 quantity combinations.
  • 84.
    Issue 5 December2004 Manual No 59812-40117 RATE BY AREA METHOD Table 5 Horn Selection and CO2 Quantity Part Nos. K5814 up to N8, refer to Data Sheet 811-9139. Part Nos. K61793 up to N12 and K61792 up to N18, refer to Data Sheet 811-9148. Coated Surface (m) Discharge Horn Liquid Surface (m) Area (m2 ) Side of Square Height (m) Rate (kg/min) Area (m2 ) Side of Square 1.17 1.08 0.60 14.0 0.84 0.91 1.23 1.11 0.68 15.7 0.88 0.94 1.30 1.14 0.76 17.3 0.93 0.96 1.36 1.17 0.84 19.3 0.98 0.99 1.43 1.19 0.91 20.5 1.02. 1.01 1.50 1.22 0.99 21.6 1.07 1.03 1.56 1.25 1.07 23.6 1.11 1.05 1.62 1.27 1.14 25.2 1.16 1.08 1.69 1.30 1.22 26.8 1.20 1.09 1.76 1.33 1.30 28.4 1.25 1.12 1.82 1.35 1.37 30.0 1.30 1.14 1.86 1.37 1.45 31.6 1.35 1.16 1.95 1.40 1.52 33.2 1.39 1.18 2.01 1.42 1.60 34.8 1.44 1.20 2.08 1.44 1.67 36.4 1.49 1.22 2.15 1.46 1.75 38.0 1.53 1.23 2.21 1.48 1.83 39.5 1.58 1.26 2.28 1.50 1.90 41.1 1.62 1.27 2.34 1.53 1.98 42.7 1.67 1.29 2.41 1.55 2.06 44.3 1.72 1.31 2.47 1.57 2.13 46.0 1.76 1.33 2.54 1.59 2.21 47.5 1.81 1.34 2.60 1.81 2.29 49.1 1.86 1.36 2.60 1.61 2.36 50.7 1.86 1.36 2.60 1.61 2.44 52.3 1.86 1.36 2.60 1.61 2.51 53.9 1.86 1.36 2.60 1.61 2.59 55.5 1.86 1.36 2.60 1.61 2.67 57.0 1.86 1.36 2.60 1.61 2.74 58.6 1.86 1.36 » NOTE Interpolations are not permitted.
  • 85.
    Issue 5 December2004 Manual No 59812-40118 RATE BY AREA METHOD 7.2 Horn Dispositions Hazard conditions often restrict the positioning of discharge horns but to use Table 5 accurately, horns must be installed perpendicular to the hazard and centred over the area to be protected. They may also be installed at angles between 45 and 90° to the plane of the hazard. The ‘height’ used in determining the necessary flow rate and area coverage is the distance from the aiming point on the protected surface to the face of the horn measured along the axis of the horn. See Figure 1 for a typical example. Figure 1 Aiming Position for Angled Discharge Horns
  • 86.
    Issue 5 December2004 Manual No 59812-40119 RATE BY AREA METHOD The aiming point is measured from the near side of the area protected and is located by multiplying the fractional aiming factor in Table 6 by the width of the area protected by the horn. Table 6 Aiming Factors for Nozzles Installed at an Angle (based on 150 mm Freeboard) Discharge Angle (See Note 1) Aiming Factor (See Note 2) 45 to 60° 60 to 75° 75 to 90° 90° (perpendicular) 174 1/4 to 3/8 3/8 to 1/2 1/2 (centre) » NOTE 1 Degrees from plane of hazard surface. » NOTE 2 Fractional amount of nozzle coverage area. It is important that horns are located so that the discharge is not obstructed and their alignment is not easily disturbed. Discharge horns must be located so as to develop an extinguishing concentration over coated stock that may be extending over a protected surface, e.g. freshly dipped items hanging on a conveyor line. In these circumstances additional horns may be required for this specific purpose, particularly if stock extends more than 600 mm above a protected surface. Note the increase in area coverage that is given in Table 5 for coated surfaces compared with liquid surfaces. The effects of severe air currents and draughts shall be compensated for by adjusting horn locations or by providing additional horns to suit the expected conditions. Example: Hazard: Quench Tank Material: Quench Lube Oil MCF: 1 Surface dimensions: 0.92 m x 2.13 m Horn Location. The site survey has shown that discharge horns can be positioned anywhere from 0.92 m to 1.83 m above the liquid surface without interfering with plant operations. Design Aim. To select a combination of horn height, area coverage and flow rate to adequately cover the area with the minimum CO2 quantity. Procedure. Consider the size to be protected. What is the minimum number of horns that could be used to cover a length of 2.13 m of liquid surface? Answer. Two horns with a side of square each of 1.08 m. This selection also satisfies a width of 0.92 m since it is less than 1.08 m, and also an area of 1.95 m² since it is less than can be protected by the two horns selected. Horns required. Two located centrally above the liquid surface pointing down from a height of 1.14m. Flow rate. 2 x 25.2 kg per minute = 50.4 kg/min CO2 required. 50.4 x 1 (MCF) 1 4 (liquid flow for 0.5 min) = 50.4 x 0.7 = 35.3 kg 2 This provides the basic CO2 quantity for the minimum permitted length of time but the discharge time at the calculated flow rate could be increased for cooling to prevent reignition.
  • 87.
    Issue 5 December2004 Manual No 59812-40120 RATE BY VOLUME METHOD 8 RATE BY VOLUME METHOD The assumed volume method of system design is used where the fire hazard consists of three dimensional irregular objects that cannot easily be reduced to equivalent surface areas, or where the degree of enclosure does not conform to the requirements for total flooding. 8.1 Assumed Enclosure The total discharge rate of the system is based on the volume of hypothetical enclosure surrounding the hazard. The assumed enclosure must have a closed floor. The assumed walls and ceiling of the ‘enclosure’ shall be at least 0.6 m from the main hazard unless actual walls are involved, and they must enclose all areas of possible leakage, splashing or spillage. No deduction from the assumed volume shall be made for solid objects within this volume. A minimum dimension of 1.2 m shall be used in calculating the assumed volume. 8.2 CO2 Quantity The total discharge rate for the basic system shall be 16 kg/min per m3 of assumed volume. If the assumed enclosure is partly defined by permanent continuous walls extending at least 0.6 m above the hazard, the discharge rate may be proportionately reduced to not less than 4 kg/min per m3 for the actual walls completely surrounding the hazard. See Figure 2 for quickly deciding the appropriate discharge rate. Figure 2 Discharge Rate, per kg per min per m3
  • 88.
    Issue 5 December2004 Manual No 59812-40121 RATE BY VOLUME METHOD 8.3 Horn Dispositions A sufficient number of horns must be used to adequately cover the entire hazard volume and they must be located and directed so as to retain the CO2 in the hazard volume by suitable co-operation between horns and objects making up the hazard volume. If forced draughts or air currents are anticipated they must be compensated for by a suitable disposition of the discharge horns. To ensure that discharge horns are not located so remote from the risk as to be ineffective, and not so close to liquids as to cause splashing, a check can be made by using Table 6. Example: If horn, Part No. K61792, with a flow rate of 52.3 kg/min, was selected it should be located approximately 2.44 m from the surface it is protecting. Example 1 Hazard: Paint Spray Booth (ignoring extract duct for this calculation) Actual dimensions: 2.44 m wide (open front) x 2.13 m high x 1.83 m deep Assumed volume: 2.44 m x 2.13 m x 2.43 m (1.83 m deep + 0.6 m) = 12.63 m3 Percent Perimeter enclosed = 244 + 1.83 + 183 = 6.1 = 71% 2.44 + 2.44 + 1.83 + 1.83 8.54 Discharge rate for 71% enclosure: from Figure 2 = 7.5 kg/min m3 Discharge rate: 12.63 m3 x 7.5 kg/min m3 = 94.73 kg/min CO2 required: 94.73 kg/min x 0.7 = 66.3 kg x MCF (1.0) Example 2 Hazard: Printer with 4 sides and top open (no continuous solid walls and ignoring extract duct for this calculation). Actual dimensions: 1.22 m wide x 1.52 m long x 1.22 m high (this is the maximum hazard outline). Assumed volume: 2.42 m (1.22 + 0.6 + 0.6) x 2.72 m (1.52 + 0.6 + 0.6) x 1.82 m (1.22 + 0.6) = 11.98 m3 Percent perimeter enclosed: Zero Discharge rate for 0% enclosure: 16 kg/min m3 Discharge rate: 11.98 m3 x 16 kg/min m3 = 191.7 kg/min CO2 required: 191.7 kg/min x 0.7 = 134.2 kg x MCF (1.0) » NOTE The assumed volume method of system design always needs more gas than the rate by area method, so to be competitive it is always worth considering if the risk can be protected by the area method. Example 2 can, but Example 1 cannot.
  • 89.
    Issue 5 December2004 Manual No 59812-40122 PIPE SELECTION 9 PIPE SELECTION The selection of the various grades of pipe and fittings in order to meet the duties imposed by operating pressures arid temperatures is made by complying with BS 5306 part 4 or NFP A 12 as appropriate. 9.1 Rate of Application Also see to Chapter 4. Where advancement of flame is potentially rapid, as in surface fires, the CO2 discharge must be comparably fast to minimise damage. Where the spread of fire is potentially slow, such as deep seated fires in solid materials, more emphasis is placed on maintaining a fire suppression concentration for a lengthy period of time to allow time for cooling. Where the spread of fire may be faster than normal for the type of fire expected, or where high values, or vital machinery or equipment are involved, rates higher than the stated minimums may be used. Where a hazard contains materials that will produce both surface and deep seated fires, the rate of application should be at least the minimum required for surface fires. 9.2 Pipe Size Estimates Hydraulic pipe size calculations are accurately determined by using the Kidde Fire Protection CO2 Computer Calculation Program. However, for estimating for a quotation, only a reasonably accurate result is needed and this can be achieved by using Table 7. Table 7 Pipe Size Estimates Metric Flow Rate (kg/min) Estimated Pipe Size Nominal bore (mm) Up to 123 20 124 to 177 25 178 to 363 32 364 to 545 40 546 to 1045 50 1045 to 1363 65 Imperial Flow Rate (lbs/min) Estimated Pipe Size Nominal bore (inches) Up to 270 ¾ 271 to 390 1 391 to 800 1¼ 801 to 1200 1½ 1201 to 2300 2 2300 to 3000 2½
  • 90.
    Issue 5 December2004 Manual No 59812-40123 PIPE SELECTION Examples (a) A surface fire where the design concentration has to be achieved in one minute. If a space requires 300 kg of CO2, the flow rate from the main manifold would be 300 kg/min and the size of the feed pipe would be 32 mm bore. If the system used 4 discharge horns in a balanced distribution system, the feed pipe would branch into two pipes each flowing at 150 kg/min and would be sized 25 mm bore. » NOTE The design concentration would include any extra CO2 for losses through openings and that demanded by the MCF but would not include any extra CO2 allowed for cooling. This would be allowed to discharge at the same rate and would extend the discharge time beyond one minute. The same philosophy applies in a local application system except that the minimum discharge time is 30 seconds, which may be extended beyond this time to discharge any extra CO2 added for cooling. (b) A deep seated fire where the design concentration has to be achieved within seven minutes, but a concentration of 30% (must be achieved within) two minutes. When an order has been received, a Contract Engineer would calculate the flow rate accurately, as shown in Section 4.2. For estimating purposes it is sufficient to adopt a short cut method. To determine the flow rate divide the volume protected by: 3 if in cubic metres and answer in kg/min. 51 if in cubic feet and answer in lbs/min. (c) In an extended discharge system where the CO2 quantity is derived from Table 4, it is simply necessary to divide the quantity of CO2 required by the length of time of the extended discharge to determine the flow rate. 9.3 Nozzle Sizes These are determined by use of the Calculation Program, and nozzle orifice sizes are drilled according to Data Sheet 811-9148. A point to bear in mind is that the maximum number of discharge horns that can be fed by one container is 11 – N3. The larger the nozzle orifice the smaller the number of horns that can be used, i.e. only one N11
  • 91.
    Issue 5 December2004 Manual No 59812-40124 STORAGE CONTAINER LOCATION 10 STORAGE CONTAINER LOCATION It is important to get a commitment from a prospective client about the location of storage containers because this will affect the installation of pipe, detection lines and cabling, and remote pull controls. The containers shall be located in a secure area and arranged so that they are readily accessible for inspection, testing, recharging and other maintenance. Containers shall be located as near as possible to the space they protect. They may be located within the protected space, but must not be exposed to a fire in a manner that is likely to impair system performance. If located within the protected space the manual/pneumatic actuator can be used to provide a means of mechanically operating the system from outside the protected space. The chosen location should provide protection from mechanical, chemical, electrical and other types of damage. Suitable guards or enclosures should be provided when necessary, as required by an appropriate risk analysis. The floor at the container location must be suitable for withstanding the loading exerted by the containers. The containers must not be exposed to the direct rays of the sun. When excessive temperature variations are expected, suitable enclosures shall be provided. The general ambient storage temperatures should not exceed the following: (a) For total flooding systems: not greater than 55ºC or less than -18ºC. (b) For local application systems: not greater than 46ºC or less than 0ºC. » NOTE The minimum storage temperature for local application is higher than that allowed for total flooding systems because the discharge area limit tests were carried out at a minimum temperature of 0ºC and to operate at lower temperatures would cause the figures in Table 5 to be incorrectly applied.
  • 92.
    Issue 5 December2004 Manual No 59812-40125 DISTRIBUTION VALVES 11 DISTRIBUTION VALVES When the multiple hazards are located reasonably close together they can be protected with a single bank of containers with the CO2 being directed to the hazard on fire by opening the appropriate distribution valve on a distribution valve manifold. When using this method it is important to consider the list below: (a) The amount of CO2 is sufficient for the largest hazard. (b) There is only one supply of agent so it must not be possible for fire to spread from one zone to another. (c) Any number of zones can be protected by a single bank of containers but Insurers’ rules generally limit the number to 5. (d) A reserve supply of CO2 should be considered.
  • 93.
    Issue 5 December2004 Manual No 59812-40126 AUTOMATIC OPERATION 12 AUTOMATIC OPERATION Systems should preferably be operated automatically by a detection system which is appropriate to the risk. Where applicable, e.g. slow burning hazards, the requirements of BS5839 should be observed.
  • 94.
    Issue 5 December2004 Manual No 59812-40127 MANUAL CONTROL 13 MANUAL CONTROL All systems must be fitted with a manual release facility. Refer to Data Sheet 841-5027. 13.1 Manual Release When mechanically operated pull-handles are used the following limitations apply: Maximum length of cable =45 m Maximum number of corner pulleys = 10 Maximum number of sets = 1 All mechanical functions must be tested upon completion of the installation to ensure proper performance.
  • 95.
    Issue 5 December2004 Manual No 59812-40128 ALARMS 14 ALARMS System condition indicators should be provided as appropriate to the surroundings. (a) A total flooding systems should have indicators located outside the entrance doors to show: CO2 Discharged - red lamp Manual Control only - green lamp Automatic and Manual Control - amber lamp These indications may not always be necessary for a local application system. (b) Additional alarms may be needed to be transmitted to remote locations including a Central Station, and other system conditions may be required such as: System Totally Disabled - amber lamp Fire - red flashing lamp System Operated - red steady lamp Supply Healthy - green lamp Warning labels are required to be located alongside manual release points, refer to Data Sheet 811-9225, and located on all entrance doors, refer to Data Sheet 811-9237. Depending upon the size and complexity of the site or system, instructional wall charts may be needed. Operating and Maintenance manuals should always be provided. Audible alarms should be provided as appropriate to the type of system and protected area, but at least to the requirements of B5306 Part 4. Where BS5839 is not a requirement, local alarms may be mains operated provided the supply can be guaranteed.
  • 96.
    Issue 5 December2004 Manual No 59812-40129 ELECTROSTATIC DISCHARGE 15 ELECTROSTATIC DISCHARGE WARNING CO2 FIRE EXTINGUISHING SYSTEMS MUST NOT BE USED FOR INERTING EXPLOSIVE ATMOSPHERES.
  • 97.
    Issue 5 December2004 Manual No 59812-40130 DETECTION 16 DETECTION Automatic detection systems used with CO2 extinguishing systems should comply with appropriate Codes of Practice, these include: 1. BS5839 - Fire Detection and Alarm Systems in Buildings. 2. BS6266 - Data Processing Installations. 3. FOC Rules. 4. This Manual. » NOTE Attention is drawn to the considerably higher concentration of detectors required by BS6266 when protecting computer suites. This philosophy should not be extended into other areas of protection without prior consultation with Kidde Fire Protection. The following guidance is given for use when designing systems using pneumatic detection systems. 16.1 Pneumatic Detection - Heat Actuated Devices 16.1.1 General Heat Actuated Devices (HADs) are heat detectors and the following general points must be considered before using the devices. (a) It is always necessary to determine that the minimum expected quantity of fuel is sufficient to produce a significant rise in the ambient temperature. (b) Heat detection should never be used where the fire can be of a smouldering, or primarily smoke producing type. (c) Height reduces the efficiency of heat detectors: it takes a larger floor level fire to actuate a detector in a tall room, than a room with a height of only 3 m. (d) Where the passage of smoke or hot gas from a position to a detector is disturbed by a ceiling obstruction (such as a beam) having depth greater than 450mm, then the obstruction should be treated as a wall for the purposes of detector location. (e) Rate-of-rise systems are recommended only for Class B flammable liquid, or exceptionally fast burning Class A types of hazards. (f) Fixed temperature systems should be used where rapid changes in temperature are the norm, such as forced hot air ovens, kitchens, boiler houses, lantern lights, etc. The operating temperature of the detector should be about 30ºC above the maximum working temperature. Be aware that capillary tubing can act as a rate-of-rise detector so routes outside the rapid change area must be found. (g) Detectors fitted in lantern lights should be protected from direct sunlight and fitted at least 50 mm below the glass.
  • 98.
    Issue 5 December2004 Manual No 59812-40131 DETECTION 16.1.2 Location of HADs on Smooth Flat Ceilings (a) Distance between detectors and walls. (i) HADs shall be spaced no more than 10 m apart. (ii) Where ceilings are level, the distance between the wall and the nearest detector should not exceed one half the distance allowed between detectors. (iii) With sloped ceilings, (slope more than 1 in 10) and apexed ceilings, consult Kidde Fire Protection. (b) Height of detector above the hazard. Where detectors are place more than 7 m above the hazard, consult Kidde Fire Protection for guidance on the spacing of detectors. (c) Number of detectors on one circuit: (i) There shall be no more than six HADs on any one detection circuit or control head. (ii) The maximum length of 1/8” (3mm) O.D. tube per detection circuit is 210 m. Each HAD is equivalent to 30 m of 1/8” (3mm) O.D. tube: 1 HAD + 180 m tube 2 HAD + 150 m tube 3 HAD+ 120 m tube 4 HAD + 90 m tube 5 HAD + 60 m tube 6 HAD + 30 m tube (d) Reducing the risk of accidental discharge: (i) Care should be taken to prevent unwanted discharges as a result of normal ambient or operating conditions. This includes most forced air sources such as exhaust systems, unit heaters and air conditioning systems; as well as the opening of oven or furnace doors, opening doors from the protected area or a heating system able to rapidly raise the temperature of the hazard. Similarly consider the effect of locating detectors adjacent to fresh air inlets that will dilute heat build up. (ii) Where portions of a single hazard have different temperature characteristics, the HAD’s in each section shall be installed on a separate cell of a check valve unit.
  • 99.
    Issue 5 December2004 Manual No 59812-40132 DETECTION 16.1.3 Fixed Temperature HAD (a) Fixed temperature HAD’s employ a meltable alloy slug are available for a limited range, contact Kidde Fire Protection. Select an operating temperature that is at least 30ºC above the maximum expected temperature.
  • 100.
    Issue 5 December2004 Manual No 59812-40133 SAFETY REQUIREMENTS 17 SAFETY REQUIREMENTS Suitable safeguards are necessary to protect people in areas where the atmosphere may be made hazardous by a carbon dioxide fire extinguishing system. The principal risk is from suffocation. The effects of toxicity are usually not considered a life hazard. 17.1 Total Flooding Systems Entry into a protected space may only be made when the system is on manual control and automatic release has been prevented. If a CO2 protected room is normally occupied by people a normally closed valve should be fitted into the feed pipe so that a malicious or accidental release at the container bank is stopped from discharging into the room. The valve should only open when demanded by the detectors or by a manual release unit. The condition of the valve should be automatically monitored and indicated. CO2 trapped in the feed pipe should be indicated by means of a pressure switch and a locked closed valve fitted so that the CO2 can be safely vented to atmosphere. A time delay may be used, but only in addition to an isolation device, refer to Chapter 14 for alarm signals. 17.2 Local Application Systems An isolating device to prevent automatic release is not necessary, if it can be shown that following a risk analysis a hazardous concentration cannot be created within the total volume of the room containing the local application system. A time delay and pre-discharge alarm is acceptable to the Health and Safety Executive in this circumstance. A concentration in excess of 10% on the nett volume could be considered hazardous to some people. Concentrations below 5% are harmless to the majority of people. The facility provided on system actuators and control heads for totally disabling a system are not to be used as a normal ‘entry to space isolating device’.
  • 101.
    Issue 5 December2004 Manual No 59812-40134 FACTORY MUTUAL RULES 18 FACTORY MUTUAL RULES Kidde Fire Protection has official approval of its CO2 equipment by Factory Mutual (FM) Insurance. These are generally similar to NFPA 12 rules, with some variations.
  • 102.
    Issue B December2004 Manual No 59812-400 High Pressure Carbon Dioxide Fire Protection Equipment INSTALLATION, COMMISSIONING & MAINTENANCE MANUAL
  • 103.
    © K.F.P.S. LtdDecember 2004 Manual No 59812-400 ii PROPRIETARY RIGHTS NOTICE This document and the information that it contains are the property of Kidde Fire Protection. Rights to duplicate or otherwise copy this document and rights to disclose the document and the information that it contains to others and the right to use the information contained therein may be acquired only by written permission signed by a duly authorised officer of Kidde Fire Protection. © Copyright Kidde Fire Protection Services Ltd.
  • 104.
    © K.F.P.S. LtdDecember 2004 Manual No 59812-400 iii TABLE OF CONTENTS Chapter Page FOREWORD.........................................................................................................1 1 GENERAL....................................................................................................2 1.1 SAFETY PRECAUTIONS ....................................................................2 1.2 PRELIMINARY CHECKS.....................................................................3 PART 1 INSTALLATION......................................................................................4 2 CO2 CYLINDERS AND RACKING...............................................................4 2.1 CO2 CYLINDERS .................................................................................4 2.1.1 Klem Cylinder Valves K23521 and K24509.............................5 2.2 INSTALLATION....................................................................................6 2.2.1 Single Cylinder ........................................................................6 2.2.2 Single Row Cylinders ..............................................................7 2.2.3 Double Row Cylinders.............................................................8 3. CO2 MANIFOLD PIPE ................................................................................10 3.1 MANIFOLD BRACKETS, SINGLE ROW ...........................................11 3.2 MANIFOLD BRACKETS, DOUBLE ROW..........................................11 4. DISTRIBUTION PIPING.............................................................................12 4.1. PIPING...............................................................................................12 4.2 ELECTRICAL CLEARANCES............................................................15 4.3 INSTALLATION..................................................................................16 5. PRESSURE OPERATED DIRECTION VALVES.......................................17 5.1 ¾ TO 2 INCH POD VALVES..............................................................18 5.1.1 Pressure Operation ...............................................................19 5.1.2 Manual Operation..................................................................19 5.1.3 Valve Open Indication ...........................................................19 5.2 3 AND 4 INCH POD VALVES ............................................................20 5.2.1 Pressure Operation ...............................................................21 5.2.2 Manual operation...................................................................21 5.2.3 Valve Open Indication ...........................................................21 5.3 3 AND 4 INCH COMPANION FLANGE, BOLTS AND GASKET........22 5.4 SAFETY OUTLETS K 921 AND K22968 ..........................................23 5.5 INSTALLATION..................................................................................26
  • 105.
    © K.F.P.S. LtdDecember 2004 Manual No 59812-400 iv 6. DISCHARGE LOOPS K21578 AND K97112.............................................27 6.2. RIGID DISCHARGE LOOP K21578...................................................27 6.2 FLEXIBLE DISCHARGE LOOP K97112............................................28 6.3 INSTALLATION..................................................................................29 7. SYSTEM ACTUATOR ASSEMBLY...........................................................30 7.1 NITROGEN PILOT GAS CYLINDER AND VALVE ............................31 7.2 OPTIONAL PRESSURE MONITORING SWITCH.............................32 7.3 CONTROL HEAD K62303 .................................................................33 7.4 CONTROL HEAD WITH SWITCHES K62304 ...................................34 7.5 CONTROL HEAD MOUNTING BRACKET K62487...........................35 7.6 SAFETY AND RESET PIN K62401 ...................................................36 Retain reset pin in safe location for future use. ..................................36 7.7 INSTALLATION..................................................................................37 8. CONTROL HEAD ACTUATING DEVICES................................................39 8.1 MANUAL PUSH-TO-FIRE BUTTON K62412.....................................40 8.2 SOLENOID ACTUATORS K62422B AND K93206/AX ......................41 8.3 FLAMEPROOF 24V D.C SOLENOID K93206/AX .............................42 8.4 INSTALLATION..................................................................................43 8.4.1 Standard Solenoid.................................................................43 8.4.2 Flameproof Solenoid .............................................................44 8.4.3 Control Head and Solenoid Wiring ........................................45 8.4.4 Special Instructions to comply with 94/9/EC (ATEX) .............46 8.5 PNEUMATIC DIAPHRAGM ACTUATOR K62459 .............................47 8.6 PNEUMATIC BREATHER VENTS K62895 .......................................48 8.7 INSTALLATION..................................................................................49 8.8 CABLE RELEASE ASSEMBLY K62478 ............................................49 8.8.1 Installation.................................................................................50 8.9 PULL BOX K 1114 .............................................................................52 8.9.1 Corner Pulley K 1122 ................................................................53 8.9.2 Installation .............................................................................53 9. CYLINDER VALVE PRESSURE/LEVER ACTUATOR K62341 ................55 9.1 INSTALLATION..................................................................................56 10. PILOT GAS FLEXIBLE LOOPS K93433 and K93434 ..............................57 10.1 PILOT GAS VENT K24051 ................................................................57 10.2 PILOT GAS RIGID TUBING AND FITTINGS.....................................59 10.3 INSTALLATION..................................................................................61 11. TIME DELAY UNIT K23650.......................................................................62
  • 106.
    © K.F.P.S. LtdDecember 2004 Manual No 59812-400 v 11.1 INSTALLATION..................................................................................63 11.2 TESTING............................................................................................63 11.3 TIME DELAY BY-PASS VALVE K60736 ...........................................67 12. CO2 OPERATED PRESSURE SWITCH K60218.......................................69 12.1 INSTALLATION..................................................................................71 13. CO2 OPERATED PRESSURE TRIP K17554.............................................72 13.1 INSTALLATION..................................................................................73 14. CO2 DISCHARGE NOZZLES.....................................................................74 14.1 MULTIJET NOZZLE K61792 AND K61793........................................74 14.2 FLANGED MULTIJET NOZZLE K5814..............................................75 14.3 FLANGED NOZZLE DUCT ADAPTORS K61420A-D........................76 14.4 DUCT NOZZLE K13045.....................................................................77 14.5 FAN TYPE NOZZLE K6490 ...............................................................78 15. PNEUMATIC DETECTION - HEAT ACTUATED DEVICES ......................79 15.1 PNEUMATIC RATE OF RISE DETECTOR K18724 ..........................79 15.2 PNEUMATIC FIXED TEMPERATURE DETECTOR K18689.............80 15.3 PNEUMATIC CHECK UNIT K24412..................................................81 15.4 PNEUMATIC LOCK-OFF UNIT K24300 ............................................82 15.5 BELLOWS AND MICROSWITCH ASSY K20057 ..............................83 15.6 PNEUMATIC CAPILLARY TUBE, CONDUIT AND FITTINGS...........84 15.7 CO2 OPERATED SIREN K18307.......................................................85 16. ODORISER ASSEMBLY K62586..............................................................86 17. CO2 WARNING LABELS ...........................................................................87 PART 2 COMMISSIONING ................................................................................89 18. COMMISSIONING......................................................................................89 18.1 VISUAL CHECKS ..............................................................................89 18.2 MECHANICAL FUNCTION ................................................................90 18.2.1 General..................................................................................90 18.2.2 Manual Push-to Fire ..............................................................90 18.2.3 Pull Box .................................................................................90 18.2.4 Pneumatic System.................................................................91 18.2.5 Pressure/Lever Actuator and POD Valves ............................96 18.2.6 Pressure Trip.........................................................................96 18.2.7 Pressure Switch.....................................................................97 PART 3 MAINTENANCE....................................................................................98 19. MAINTENANCE.........................................................................................98 19.1 PRELIMINARY CHECKS...................................................................98
  • 107.
    © K.F.P.S. LtdDecember 2004 Manual No 59812-400 vi 19.2 COMPONENT FUNCTION TESTS....................................................99 19.2.1 General..................................................................................99 19.2.2 Control Head .........................................................................99 19.2.3 Pressure/Manual Release Heads and POD Valves.............100 19.2.4 Pressure Trip.......................................................................101 19.2.5 Pressure Switch...................................................................102 19.3 INSTRUCTIONS FOR COMMISSIONING THE SYSTEM AFTER ITS OPERATION....................................................................................102 PART 4 TERMS AND CONDITIONS................................................................103 20. TERMS AND CONDITIONS.....................................................................103
  • 108.
    © K.F.P.S. LtdDecember 2004 Manual No 59812-400 vii LIST OF ILLUSTRATIONS Figure Page Figure 1 CO2 Cylinder ................................................................................................4 Figure 2 Klem Cylinder Valves ...................................................................................5 Figure 3 Single Cylinder Racking ...............................................................................6 Figure 4 Single Row Cylinders ...................................................................................7 Figure 5 Additional Centre Racks for Two Rows of Cylinders ....................................9 Figure 6 CO2 Manifold Pipes ....................................................................................10 Figure 7 Manifold Brackets, Single Row...................................................................11 Figure 8 Manifold Brackets, Double Row .................................................................11 Figure 9 POD Valve System.....................................................................................17 Figure 10 ¾ to 2 inch POD Valves ...........................................................................18 Figure 11 Indicator Switch........................................................................................19 Figure 12 3 & 4 inch POD Valves.............................................................................20 Figure 13. 3 and 4 inch Companion Flange, Bolts and Gasket ................................22 Figure 14 Safety Outlets ..........................................................................................23 Figure 15 All CO2 Cylinders discharging to either space ..........................................24 Figure 16 Two Spaces Requiring differing CO2 cylinders .........................................25 Figure 17 Rigid Discharge Loop...............................................................................27 Figure 18 Flexible Discharge Loops.........................................................................28 Figure 19 System Actuator Assembly ......................................................................30 Figure 20 Nitrogen Pilot Gas Cylinder and Valves ...................................................31 Figure 21 Pressure Monitoring Switch......................................................................32 Figure 22 Control Head ............................................................................................33 Figure 23 Control Head with Switches .....................................................................34 Figure 24 Standard Mounting Bracket......................................................................35 Figure 25 Safety and Reset Pin................................................................................36 Figure 26 Control Head Mounting Bracket ...............................................................38 Figure 27 Control Head Actuating Devices...............................................................39 Figure 28 Manual Push-to-Fire Button .....................................................................40 Figure 29 Standard 24V d.c Solenoid.......................................................................41 Figure 30 Flameproof ATEX approved 24V d.c. Solenoid........................................42 Figure 31 Control Head and Solenoid Wiring ...........................................................45 Figure 32 Pneumatic Diaphragm Actuator ...............................................................47 Figure 33 Pneumatic Breather Vents .......................................................................48 Figure 34 Cable Release Assy.................................................................................49
  • 109.
    © K.F.P.S. LtdDecember 2004 Manual No 59812-400 viii Figure 35 Cable Pull Ring Connection .....................................................................50 Figure 36 Curvature of Cable ...................................................................................51 Figure 37 Cable Release Assembly, Cover Removed .............................................51 Figure 38 Pull Box....................................................................................................52 Figure 39 Corner Pulley ...........................................................................................53 Figure 40 Cylinder Valve Pressure/Lever Actuator...................................................55 Figure 41 Pilot Gas Flexible Loops...........................................................................57 Figure 42 Pilot Gas Vent ..........................................................................................58 Figure 43 Pilot Gas Rigid Tubing and Fittings ..........................................................59 Figure 44 Single Cylinder Row Pilot Gas Operation.................................................61 Figure 45 Double Cylinder Row Pilot Gas Operation ...............................................61 Figure 46 Time Delay Unit........................................................................................62 Figure 47 Single Protected Space System...............................................................64 Figure 48 Two Protected Spaces System ................................................................65 Figure 49 Two Protected Spaces Requiring Different CO2 Quantities......................66 Figure 50 Time Delay By-Pass Valve.......................................................................67 Figure 51 Installation ................................................................................................68 Figure 52 CO2 Operated Pressure Switch ................................................................69 Figure 53 Pressure Trip............................................................................................72 Figure 54 Installation ................................................................................................73 Figure 55 Multijet Nozzle..........................................................................................74 Figure 56 Flanged Multijet Nozzle............................................................................75 Figure 57 Flanged Nozzle Duct Adaptor ..................................................................76 Figure 58 Duct Nozzle..............................................................................................77 Figure 59 Fan Type Nozzle ......................................................................................78 Figure 60 Pneumatic Rate of Rise Detector .............................................................79 Figure 61 Pneumatic Fixed Temperature Detector...................................................80 Figure 62 Pneumatic Check Unit..............................................................................81 Figure 63 Pneumatic Lock-Off Unit ..........................................................................82 Figure 64 Bellows and Microswitch Assembly..........................................................83 Figure 65 Pneumatic Capillary Tube, Conduit and Fittings ......................................84 Figure 66 CO2 Operated Siren..................................................................................85 Figure 67 Odoriser Assembly...................................................................................86 Figure 68 Odoriser Check Valve ..............................................................................86 Figure 69 Entrance Door Warning Label ..................................................................87 Figure 70 Manual Control Point Label......................................................................88 Figure 71 Manometer Test System ..........................................................................91
  • 110.
    © K.F.P.S. LtdDecember 2004 Manual No 59812-400 ix LIST OF TABLES Table Page Table 1 CO2 Cylinder Specification............................................................................4 Table 2 Closed and open ended pipework section – High pressure systems..........12 Table 3a Open Ended Pipework................................................................................13 Table 3b Closed Section Pipework……………………………………………………… 13 Table 4 Pipe Support Spacing.................................................................................14 Table 5 Safety Clearances for Pipework .................................................................15
  • 111.
    © K.F.P.S. LtdNovember 2004 Manual No 59812-400 1 FOREWORD Kidde Fire Protection recognises its responsibility to ensure that the products it manufactures are, as far as is reasonably practical, without risk to the health and safety of the users. The following information should be disseminated to all persons using such products. The information is furnished in good faith based upon technical data and tests, which are believed to be reliable. Products undergo rigorous quality control checks during manufacture to ensure that they present no hazards in the use and application for which they are intended. Technical data and literature which may assist customers in the discharge of their general duties are available on request. Should you require further information on this context please contact our sales office. Nothing contained in this publication shall form part of any contract made between a customer and Kidde Fire Protection. It is of vital importance that the CO2 equipment should be correctly installed. The Installation Engineer should become fully conversant with the contract files and all installation drawings before going to site.
  • 112.
    © K.F.P.S. LtdDecember 2004 Manual No 59812-400 2 1 GENERAL 1.1 Safety Precautions Characteristics of Carbon Dioxide Carbon Dioxide (CO2) at atmospheric pressure is a colourless, odourless and electrically non-conducting inert gas which is almost 1.5 times as dense as air. CO2 extinguishes fire by reducing the oxygen content of the atmosphere to a point where it will not support combustion. Reducing the oxygen content from the normal 21% in air to 15% will extinguish most surface fires, though for some materials a greater reduction is necessary. In some applications the cooling effect of CO2 may assist extinction. Hazards to personnel Exposure to atmospheres containing about 5% CO2 leads to shortness of breath and slight headache. At the 10% level, headache, visual disturbance, ringing in the ears (tinnitus) and tremor are followed by loss of consciousness. Fire extinguishing concentrations of CO2, which are normally in excess of 30%, especially near to the point of discharge from total flooding or local application systems, carry a risk of almost immediate asphyxiation. The gas is also more dense than air and will drift and accumulate in low spaces, such as cellars, pits and floor voids, which may be difficult to ventilate effectively. The rapid expansion of large quantities of CO2 results in a substantial localised cooling of the installation and of the air surrounding the point of discharge. This can present a frostburn hazard. Handling and storage of CO2 cylinders Observe the following precautions to prevent accidental discharge of CO2: On despatch, all cylinder and valve assemblies are fitted with transport caps which must not be removed until after the cylinders have been securely restrained, store the transport caps for future use. Never use the cylinder valve to turn or move the cylinder, this could cause damage or leakage: use a transport trolley. Never store cylinders in direct sunlight or in location where the cylinder temperature is likely to exceed 55°C.
  • 113.
    © K.F.P.S. LtdDecember 2004 Manual No 59812-400 3 Never depress the cylinder valve actuating pin as this action will open the valve and discharge its contents causing the cylinder, unless securely restrained, to act as a projectile. Never fit any release device to a cylinder valve until it has been secured in the cylinder rack and connected to the discharge pipework. Re-entry into a flooded area Never enter an area after a CO2 discharge until it has been thoroughly ventilated to external atmosphere. If it is necessary to enter an area containing CO2 always use self-contained Breathing Apparatus, never use a filter or canister type mask. As an added precaution the person entering should be tethered by a manned lifeline. Dismantling and modifications It is recommended that Kidde Fire Protection be notified of any intention to alter or extend the system or areas protected in order that advice be given of any effect that this may have on the original design. 1.2 Preliminary checks Check that all equipment has been delivered, any damaged equipment must be replace. Check that the area(s) to be protected agree with the installation drawings. Check the CO2 cylinder location for ease of access during maintenance; also safety. Check that the ambient temperature of the cylinder location complies with the following limitations: - Total flooding systems: -18 to 55°C. Local Application flooding Systems: Minimum 0°C Maximum 46°C.
  • 114.
    © K.F.P.S. LtdDecember 2004 Manual No 59812-400 4 PART 1 INSTALLATION 2 CO2 CYLINDERS AND RACKING 2.1 CO2 Cylinders CO2 is stored in solid drawn steel cylinders containing gas in liquid form equal to two thirds of its water capacity. The pressure within the cylinder varies with changes in ambient temperature, increasing with rising temperature. At 21°C the pressure is 58.6 bar. The cylinder assembly comprises a cylinder, cylinder valve and rigid syphon tube which must ALWAYS be installed in an upright position. Figure 1 CO2 Cylinder Table 1 CO2 Cylinder Specification Part No Water Capacity (Litres) Fill Weight (kg) Total Weight (kg) Dimension (mm) ‘A’ ‘B’ E7194-001 67.5 45 120 Approx 267 1515 K24069/FM 67.5 45 120 Approx 267 1531 K24338 34.0 22.6 81 Approx 229 1102 NOTE: All dimensions ‘B’ are ±10mm Cylinder Specification: 1999/36/EC (TPED) Material: Steel Test Pressure: 250 bar Fill Ratio: 0.661kg/litre Standard Point Finish: Red
  • 115.
    © K.F.P.S. LtdDecember 2004 Manual No 59812-400 5 2.1.1 Klem Cylinder Valves K23521 and K24509 The “Klem” cylinder valve is a compact, horizontal servo-assisted valve which can be operated by either pressure or use of its integral manual lever. The valve is opened by depressing the actuator rod by applying a force of between 23 and 27kg. WARNING The valve will close immediately the force is removed from the actuator rod. Each cylinder valve incorporates a safety disc designed to rupture and discharge the CO2 cylinder contents when the ambient temperature reaches approximately 60°C (140°F). Materials Body: Brass Seals: Silicone Rubber Shore 70° - 90° Actuator Rod: St. Steel Safety Burst Disc: Ruptures at 179 to 196 bar Figure 2 Klem Cylinder Valves
  • 116.
    © K.F.P.S. LtdDecember 2004 Manual No 59812-400 6 2.2 INSTALLATION 2.2.1 Single Cylinder Storage containers should be located as near as possible to the hazard they protect, but should not be exposed to the fire in a manner that is likely to impair performance. They should not be exposed to weather conditions or put in a location where they can be subjected to chemical or other damage. Suitable guards or enclosures should be provided when necessary. 1. Offer strap up to a suitable structure or wall and mark the hole centres for drilling at an elevation from ground level, see in Figure 3. 2. Drill appropriate fixing holes. 3. Place and clamp the container in position. Part No Cyl Size Dim A Fixing Holes Materials Weight (kg) K16896 6.8 175 9.5mm Ø 1.0 K4881 22.6 292 10.5mm Ø Mild Steel 25mm x 3mm 1.2 K62943 45.0 320 12.7mm Ø Nylon Dipped Black 1.5 Figure 3 Single Cylinder Racking
  • 117.
    © K.F.P.S. LtdDecember 2004 Manual No 59812-400 7 2.2.2 Single Row Cylinders Storage containers should be located as near as possible to the hazard they protect, but should not be exposed to the fire in a manner that is likely to impair performance. They should not be exposed to weather conditions or put in a location where they can be subjected to chemical or other damage. Suitable guards or enclosures should be provided when necessary. 1. Offer the cylinder back rack up to a suitable structure or wall and mark the hole centres for drilling at an elevation from the ground as shown in Figure 3. Check that the back rack is correctly offset in relation to the manifold inlet. See Figure 4. 2. Drill appropriate fixing holes. 3. Fix the back rack to the suitable structure or wall using the bolts. 4. Place the cylinders in position against the cut-outs in the back rack. 5. Hook the rack bolts through the 17.5mm diameter hole(s) in the back rack. 6. Locate the straight end of the rack bolts through the 17.5mm diameter holes in the front strap and clamp the containers firmly in place using the nuts and washers supplied with the rack bolts. Part No Material Finish Weight (kg) 2 Cylinder K17238 MS Angle Paint Black 1.8Steel Back Racks 3 Cylinder K17235 MS Angle Paint Black 2.7 2 Cylinder K13744 MS Strap 2.7Steel Front Straps 3 Cylinder K13745 MS Strap Nylon Dipped Black 4.5 Single Row Rack Bolt Assembly K62752 MS Rod Paint Black 0.4 Figure 4 Single Row Cylinders
  • 118.
    © K.F.P.S. LtdDecember 2004 Manual No 59812-400 8 2.2.3 Double Row Cylinders Storage containers should be located as near as possible to the hazard they protect, but should not be exposed to the fire in a manner that is likely to impair performance. They should not be exposed to weather conditions or put in a location where they can be subjected to chemical or other damage. Suitable guards or enclosures should be provided when necessary. 1. Offer the cylinder back rack up to the wall and mark the hole centres for drilling at an elevation from the ground as shown in Figure 5. Check that the back rack is correctly offset in relation to the manifold inlet. See Figure 5. 2. Drill appropriate fixing holes. 3. Fix the back rack a suitable structure or wall using the bolts. 4. Place the cylinders in position against the cut-outs in the back rack. 5. Slide the rack bolt through the wood centre rack and hook onto the back rack. 6. Place the front row of cylinders into position. 7. Place the front straps in position and clamp the cylinders firmly in position using the nuts and washers supplied.
  • 119.
    © K.F.P.S. LtdDecember 2004 Manual No 59812-400 9 45kg Cylinders Part No Weight (kg) 2 Cylinder K24334 1.4Cylinder Centre Racks 3 Cylinder K24335 2.0 Two Row Rack Bolt K62753 1.1 Two Rack Special Rack Bolt K17327 0.7 22.6kg Cylinders Part No Weight (kg) 2 Cylinder K22654 1.1Cylinder Centre Racks 3 Cylinder K22655 1.8 Two Row Rack Bolt K17245 1.0 Two Rack Special Rack Bolt K17327 0.7 Figure 5 Additional Centre Racks for Two Rows of Cylinders
  • 120.
    © K.F.P.S. LtdDecember 2004 Manual No 59812-400 10 3. CO2 MANIFOLD PIPE On multiple cylinder systems manifold pipes are supplied as a complete assembly including factory installed check valves. 1” (25mm) NB Manifold 1¼” (32mm) NB Manifold Assembly Part No. Number of Cylinders Weight (kg) Assembly Part No. Number of Cylinders Weight (kg) K21207 2 2.7 K21215 2 3 K21209 3 3.9 K21217 3 4.5 K21211 4 5.0 K21219 4 5.9 K21213 5 6.3 K21221 5 7.3 Figure 6 CO2 Manifold Pipes
  • 121.
    © K.F.P.S. LtdDecember 2004 Manual No 59812-400 11 3.1 MANIFOLD BRACKETS, SINGLE ROW Dimension (mm)Part No Pipe Size A B Material - Finish Weight (kg) K24267D 1” Mild Steel K24267E 1¼” 101.6 174.5 Painted Black 2.0 Figure 7 Manifold Brackets, Single Row 3.2 MANIFOLD BRACKETS, DOUBLE ROW Dimension (mm)Part No Pipe Size A B Material - Finish Weight (kg) K24268D 1” Mild Steel K24268E 1¼” 101.6 479.4 Painted Black 2.5 NOTE: Pipe Clips and Pipe Clip Bolts are supplied with the Brackets. Figure 8 Manifold Brackets, Double Row
  • 122.
    © K.F.P.S. LtdDecember 2004 Manual No 59812-400 12 4. DISTRIBUTION PIPING All the pipework sizes shown in the schematic of the installation have been determined using a computer programme. It is IMPORTANT that these sizes are used to ensure the correct flow of CO2 within the stated discharge time. 4.1. PIPING 1. The pipe and fittings materials must conform with the-requirements of BS 5306 Part 4 as shown in the following tables. Table 2 Closed and open ended pipework section – High pressure systems Closed section of pipework Nominal pipe size Type of fitting Grade or Material Conforms to WPA or WPB BS 3799:1974Forged steel, screwed, 3000 lb ASTM A105N ANSI B16.11:1996 Up to and including 40mm Wrought steel, butt welded WPA or WPB BS 1640-3:1968 WPA or WPB BS 3799:1974Above 40mm up to 50mm Forged steel, socket welded, 3,000 lb ASTM A105N ANSI B16.11:1996 Open section of pipework Nominal pipe size Type of fitting Grade or Material Conforms to Up to and including 20mm Screwed fittings Malleable iron BS EN 10242:1995a Screwed fittings Wrought steel BS EN 10241:2000Up to and including 40mm Wrought steel, butt welded WPA or WPB BS 1640-3:1968 WPA or WPB BS 3799:1974Forged steel, screwed, 3000 lb ASTM A105N ANSI B16.11:1996 WPA or WPB BS 3799:1974 All sizes up to 150mm Forged steel, socket welded, 3,000 lb ASTM A105N ANSI B16.11:1996 a Fittings conforming to BS EN 10242 may be used on open section pipework greater than 20 mm provided that they are suitable certified by the manufacturer for the anticipated pressure
  • 123.
    © K.F.P.S. LtdDecember 2004 Manual No 59812-400 13 Table 3a Open Ended Pipework BS1387 BW - Heavy BS 3601 S 430 BS 3601 ERW 430 BS 3601 BW 320 or 430 BS 3602-1 HFS or CFS 360 or 430 API 5L S or ERW B Up to & incl 40mm ASTM A106-77 HF or CD A or B Schedule 40 BS 3601 S 430 BS 3601 ERW 430 BS 3602-1 HFS or CFS 360 or 430 ASTM A106-77 HF or CD A or B Over 40mm up to & incl 50mm API 5L S or ERW B Schedule 80 * Abbreviations HF Hot Finished CFS Cold Finished Seamless CD Cold Drawn HFS Hot Finished Seamless S Seamless ERW Electric Resistance Welded & Induction Welded Flange bolts, studs, nuts and washers Bolts and studs shall conform to BS EN 1515-1. Nuts shall conform to BS EN 1515-1. Washers shall conform to BS 3410 or BS 4320 NOTE: Plain washers should be fitted under bolt head and nut. A minimum of two threads should project above the nut when fully tightened Gasket for flanged joints Flanges joints shall be fitted with a gasket COMMENTARY AND RECOMMENDATIONS ON 19.4: The recommendation of the gasket manufacturer should be followed in selecting the grade, specification and thickness to be used. Table 3b Closed Section Pipework High pressure carbon dioxide systems Nominal pipe size Conforms to Type of Pipe a Grade of steel Minimum wall thickness b BS 3601 S 430 BS 3602-1 HFS or CFS 430 ASTM A106-77 HF or CD B Up to and including 40mm API 5L S or ERW B Schedule 40 (schedule 80 for joints) BS 3602-1 HFS or CFS 430 ASTM A106-77 HF or CD B 50mm and above API 5L S or ERW B Schedule 80 a For abbreviations see footnote to Table 3 on previous page b Schedule numbers determine the minimum wall thickness in accordance with BS 1600. Where the specified pipe is not obtainable in these dimensions, the next largest thickness should be used.
  • 124.
    © K.F.P.S. LtdDecember 2004 Manual No 59812-400 14 NOTE: Crosses must not be used. 2. All pipe and fittings shall be galvanised inside and out. 3. Screwed threads shall comply with the dimensions specified in BS21. 4. Use PTFE pipe tape on all pipe screw threads (or other approved thread sealant). 5. The pipework MUST BE FIRMLY SUPPORTED because, in the event of a fire, the discharge will impose a force on the pipework. If the piping became dislodged, considerable damage could be caused and the extinguishing system may not function correctly. Allowance must be made for expansion and contraction of the pipework. See Table 4 for the minimum recommended pipe support spacing. Table 4 Pipe Support Spacing Pipe Size (mm) 15 20 25 32 40 50 80 100 150 Max Spacing (m) 1.5 1.8 2.1 2.4 2.7 3.4 3.7 4.3 5.2
  • 125.
    © K.F.P.S. LtdDecember 2004 Manual No 59812-400 15 4.2 ELECTRICAL CLEARANCES Where exposed electrical conductors are present, clearance no smaller than those given in Table 5 shall be provided where practicable, between the electrical conductors and all parts of the CO2 system that may be approached during maintenance, where these clearance distances cannot be achieved, warning notices shall be provided and a safe system of maintenance work shall be adopted. Minimum clearance from any point on or about the permanent equipment where a man may be required to stand (measured from position of the feet) Table 5 Safety Clearances for Pipework To the nearest unscreened live conductor in air (‘section clearance’) Metres 2.59 2.59 2.74 2.74 2.89 3.05 3.20 3.35 3.50 3.81 4.27 4.57 To the nearest part not at earth potential of an insulator supporting a live conductor ('ground clearance') Metres 2.44 Max rated Voltage (XY) 11 15 22 33 44 66 88 110 132 165 220 275 The term insulator includes all forms of insulating supports, such as pedestal and suspension insulators, bushings, cable sealing ends and the insulating supports of certain types of circuit breaker etc. IMPORTANT: See qualifying notes of clause 34 and definitions 30 and 31 of BS 7354: 1990 from which this table is taken.
  • 126.
    © K.F.P.S. LtdDecember 2004 Manual No 59812-400 16 4.3 INSTALLATION Piping is normally supplied to site in random lengths. Installation of this pipework must be carried out in accordance with the site fabrication drawings. Table 5 shows recommended clearances to enable operation, maintenance and repair work to be carried out safely. NOTE: All dirt, swarf and cutting oil must be removed from each section of pipe before installation. CO2 pressure will remove any debris and may deposit it on valuable equipment. Before installation of any pipework check the following: (a) That all screw threads are clean and free of any damage. (b) That all flange faces are clean and free of any damage. (c) That pipe bores are clean and unobstructed. (d) The route of the piping. Make sure that it is possible to fix the piping securely on the wall and in the ceiling and floor voids. (e) That none of the pipe fittings have been used before because of the risk of distortion. NOTE: Use PTFE pipe tape on all pipe screw threads. (Or other approved thread sealant). To install the pipework, carry out the following procedure: (a) Mark the positions of the supports and hangers. (b) Drill the wall or ceiling and install the required quantity of rawbolts or anchor bolts to suit the type of support being used. (C) Install a pipe hangar or clip adjacent to each nozzle in order to prevent movement of the nozzles during discharge. (d) All CO2 pipework should be painted signal red to BS 381C ref 537 (equivalent to BS 4800 Ref 04E53) (e) All exposed metalwork in CO2 systems shall be efficiently earthed to prevent the metal work becoming electrically charged.
  • 127.
    © K.F.P.S. LtdDecember 2004 Manual No 59812-400 17 5. PRESSURE OPERATED DIRECTION VALVES When two or more areas are to be protected using a central bank of CO2 cylinders, a Pressure Operated Direction (POD) valve is installed in each of the CO2 main feed pipes leading to the designated areas, see Figure 9. Figure 9 POD Valve System
  • 128.
    © K.F.P.S. LtdDecember 2004 Manual No 59812-400 18 5.1 ¾ to 2 INCH POD VALVES Part Number Size (inch) With Switch Dimension mm A Dimension mm B Weight (kg) K24004 ¾ NO 171 117 3.4 K24628 ¾ YES 216 117 3.5 K24005 1 NO 171 100 3.2 K24629 1 YES 216 100 3.3 K24175 1¼ NO 210 156 5.7 K24630 1¼ YES 255 156 5.8 K24176 1½ NO 210 137 5.4 K24631 1½ YES 255 137 5.5 K24177 2 NO 295 191 17.0 K24632 2 YES 340 191 17.1 Figure 10 ¾ to 2 inch POD Valves
  • 129.
    © K.F.P.S. LtdDecember 2004 Manual No 59812-400 19 5.1.1 Pressure Operation Application of Nitrogen pilot gas to the pilot gas inlet port depresses the valve piston. When the valve piston is at the bottom of its stroke a pilot gas outlet port is uncovered thus allowing the pilot gas to be conveyed, by the pilot gas line, to the CO2 cylinder pressure release heads. NOTE: The valve remains open until the pilot gas pressure is vented from the pilot gas line. 5.1.2 Manual Operation Remove the safety pin and operate lever fully. NOTE: The valve can be opened while subjected to CO2 pressure. 5.1.3 Valve Open Indication The indicator switch provides means for operating audible/visual alarms to give warning of a partial or fully open valve. Figure 11 Indicator Switch
  • 130.
    © K.F.P.S. LtdDecember 2004 Manual No 59812-400 20 5.2 3 and 4 INCH POD VALVES Dimension (mm)Part Number Size inch With Switch A B C Flange Fixing Holes Weight (kg) K24775 3” YES 330 292 203 8-EQUI spaced 21mm Dia On 165mm PCD 43.3 K24777 4” YES 406 340 241 8-EQUI spaced 25 mm Dia On 197mm PCD 69.5 Figure 12 3 & 4 inch POD Valves
  • 131.
    © K.F.P.S. LtdDecember 2004 Manual No 59812-400 21 5.2.1 Pressure Operation Application of Nitrogen pilot gas to the pilot gas inlet port lifts the valve piston. When the valve piston is at the top of its inlet stroke an outlet port is uncovered thus allowing the pilot gas to be conveyed, by the pilot gas line, to the CO2 cylinder pressure release heads. NOTE: The valve remains open until the pilot line is depressurised. 5.2.2 Manual operation Turn the hand wheel fully anti-clockwise to open the valve. NOTE: The valve can be opened while subjected to CO2 pressure. 5.2.3 Valve Open Indication The indicator switch provides means for operating audible/visual alarms to give warning of a partial of fully open valve, see Figure 11.
  • 132.
    © K.F.P.S. LtdDecember 2004 Manual No 59812-400 22 5.3 3 and 4 INCH COMPANION FLANGE, BOLTS AND GASKET Dimension (mm)Part Number Size inch A B C Bolt Part Number Weight K60103 3 203 165 32 K60101 7 kg K60104 4 241 197 35 K60102 8.5 kg NOTE: Use Gasket K60105 (3”) or K60106 (4”) Figure 13. 3 and 4 inch Companion Flange, Bolts and Gasket
  • 133.
    © K.F.P.S. LtdDecember 2004 Manual No 59812-400 23 5.4 SAFETY OUTLETS K 921 and K22968 On systems employing normally closed directional/stop valves there is a possibility of CO2 entrapment in pipework between the CO2 cylinders and the valves therefore a safety outlet must always be fitted. The indicator sleeve is “blown-off” when the disc ruptures giving a visual indication of operation. WARNING THESE DEVICES SHOULD BE FITTED SO THAT THE DISCHARGE IN THE EVENT OF OPERATION WILL NOT INJURE OR ENDANGER PERSONNEL, IF NECESSARY THE DISCHARGE SHOULD BE PIPED TO AN AREA WHERE IT WILL NOT BECOME A HAZARD TO PERSONNEL (AS PER THE REQUIREMENTS OF BS 5306 part 4). K 921 K22968 Figure 14 Safety Outlets K 921 Specification: K22968 Specification: Burst/Opening Pressure: 150 bar ± 5% 126 bar Material: Brass Brass Finish: Natural Natural Weight: 0.35 kg 0.8 kg Figures 15 and 16 show the Nitrogen pilot gas installation requirements for opening the pressure operated direction valve prior to operation of the CO2 cylinders.
  • 134.
    © K.F.P.S. LtdDecember 2004 Manual No 59812-400 24 Figure 15 All CO2 Cylinders discharging to either space
  • 135.
    © K.F.P.S. LtdDecember 2004 Manual No 59812-400 25 Figure 16 Two Spaces Requiring differing CO2 cylinders
  • 136.
    © K.F.P.S. LtdDecember 2004 Manual No 59812-400 26 5.5 INSTALLATION Before installation of POD valves check the following: 1. All screw threads are clean and free of any damage. 2. If using a flanged valve check that all flanges are clean and free of damage. 3. That all flange bolt holes on the valve align with the flange bolt holes on feed pipe. 4. With the Safety Lock pin removed check that the indicator switch clicks into operation. After the checks have been carried out satisfactorily install the POD valve as follows:- 1. Install the POD valve in the main feed line at a position where access for manual operation of maintenance/service is unhindered by other obstacles. Where possible install the POD valve at a height of approximately (1.5 meters) 5’- 0” (maximum). Make sure that the arrow shown on the valve body to indicate the direction of flow faces away from the CO2 manifold. 2. Connect a nipple and socket union to the outlet side of the POD valve for ease of installation to the main CO2 feed line. 3. Use PTFE pipe tape on all screwed pipe fittings. 4. To prevent accidental discharge of fire fighting systems during installation work check the following before connecting the pilot gas lines: (i) That the Safety and Reset pin is screwed fully home in the control head. (ii) That all safety pins are fully inserted in the cylinder release heads, and POD valves. 5. Using 3/16” bundy tubing and fittings, see Figure 44, connect the Nitrogen pilot cylinder valve to the pilot gas inlet port of the POD valves and from the POD valve gas outlet port to the CO2 cylinder pressure release head as shown in Figure 15 and 16. NOTES 1. Clip the bundy tube to the wall at approx 457mm centres. 2. ¾ to 2 inch POD valves require adaptors K90220 and K90219 fitted in the pilot gas inlet port and adaptor K90219 fitted to the pilot gas outlet port. See Datasheet 841-5036 3. 3 and 4 inch POD valves require adaptor K90219 fitted to both inlet and outlet pilot gas ports. 6. A POD valve indicator switch, if fitted, must be wired as shown in Figure 11.
  • 137.
    © K.F.P.S. LtdDecember 2004 Manual No 59812-400 27 6. DISCHARGE LOOPS K21578 AND K97112 6.2. RIGID DISCHARGE LOOP K21578 The discharge loop is used to convey CO2 from the gas outlet of the cylinder valve to the check valve manifold above the cylinders. Figure 17 Rigid Discharge Loop Materials: Tube: 12.7mm x 18 SWG Annealed. Material: Copper Coupling Nuts: Brass Thread: W21.8 x 1/14 DIN 477. 30.5mm A/F Test Pressure: 152 Bar Approx Weight: 0.3kg
  • 138.
    © K.F.P.S. LtdDecember 2004 Manual No 59812-400 28 6.2 FLEXIBLE DISCHARGE LOOP K97112 This loop is used when “in-situ” weighing of the cylinders are required. It is also recommended for use on single cylinder systems for ease of connection to rigid discharge piping. When used for this purpose a loop to pipe adaptor K62755 is required. Figure 18 Flexible Discharge Loops Materials - K97112 Hose: Reinforced Rubber Connectors: Mild Steel Zinc Plate and Chromate Passivated Coupling Nuts: Mild Steel Zinc Plate and Chromate Passivated Test Pressure: 210 bar Weight: 0.5kg Adaptor K62755: Brass
  • 139.
    © K.F.P.S. LtdDecember 2004 Manual No 59812-400 29 6.3 INSTALLATION Manifold Heights Height To Underside Of Manifold Cyl Size (kg) Cyl Part No Copper Loop K21578 Flexible Loop K97112 22.6 K24338 1267 1577 45.0 K24069/FM 45.0 E7194-001 1700 1800 ± 100 NOTE: All dimensions in mm WARNING ALWAYS CONNECT THE LOOP TO THE MANIFOLD INLET OR PIPEWORK IF SINGLE CYLINDER, BEFORE CONNECTING TO THE CYLINDER VALVE OUTLET.
  • 140.
    © K.F.P.S. LtdDecember 2004 Manual No 59812-400 30 7. SYSTEM ACTUATOR ASSEMBLY The system actuator assembly incorporates the source of pilot Nitrogen gas supply and the mechanism to release it either automatically and/manually. Figure 19 System Actuator Assembly
  • 141.
    © K.F.P.S. LtdDecember 2004 Manual No 59812-400 31 7.1 NITROGEN PILOT GAS CYLINDER AND VALVE Figure 20 Nitrogen Pilot Gas Cylinder and Valves Specification: Cylinder: CF-CD01 Issue 2 Water Capacity: 0.4 Litres Material: Steel Test Pressure: 250 bar Valve: Brass Charge: Dry Nitrogen to 65 bar at 20 (Recharge required at 55 bar) Weight: 1.7kg Finish: Grey Paint K62462 Standard Assy K62462A Complete with switch (Factory fitted)
  • 142.
    © K.F.P.S. LtdDecember 2004 Manual No 59812-400 32 7.2 OPTIONAL PRESSURE MONITORING SWITCH This switch provides means of signaling low-pressure within the Nitrogen pilot cylinder. WARNING PRESSURE HEAD - DO NOT ATTEMPT TO REMOVE FROM CYLINDER. Figure 21 Pressure Monitoring Switch Sensor Capacity: Max System Pressure 207 bar Proof Pressure 621 bar Electrical Rating: 28 V d.c 5 Amp resistive 3 Amp inductive Connections: Common - Earth Open under pressure - 1 Closed under pressure - 2 Temperature Range: -54 to +107°C Construction: ST.ST Housing, Black Nylon Cap Operating Pressure: Factory set at 50 bar - decreasing
  • 143.
    © K.F.P.S. LtdDecember 2004 Manual No 59812-400 33 7.3 CONTROL HEAD K62303 The control head is mounted directly onto the Nitrogen pilot gas cylinder valve and is secured by a coupling nut. When the control head is operated the firing pin shoots out (extends) by approximately 3mm. Figure 22 Control Head Materials: Body: Brass Weight: 2.35kg IP55 Rating
  • 144.
    © K.F.P.S. LtdDecember 2004 Manual No 59812-400 34 7.4 CONTROL HEAD WITH SWITCHES K62304 As K62303 plus switches to provide remote indication that the safety and reset pin has been inserted and a second switch to indicate the condition of the control head. Figure 23 Control Head with Switches Safety/Reset Pin Switch Orange - Common Red - N.O. Black - N.C. Control Head Condition Switch Grey - Common White - N.O. Yellow - N.C. Electrical Rating 250 V a.c - 7A Resistive 7A Inductive 30 V d.c - 4A Resistive 3A Inductive 50 V d.c - 1A Resistive 0.25A Inductive 125 V d.c - 0.4A Resistive 0.3A Inductive
  • 145.
    © K.F.P.S. LtdDecember 2004 Manual No 59812-400 35 7.5 CONTROL HEAD MOUNTING BRACKET K62487 Figure 24 Standard Mounting Bracket Material: Mild Steel Finish: Painted Black
  • 146.
    © K.F.P.S. LtdDecember 2004 Manual No 59812-400 36 7.6 SAFETY AND RESET PIN K62401 This device, supplied with the control head, when screwed fully home will reset the control head causing the firing pin to retract to its normal position. WARNING DO NOT ATTEMPT TO RESET WHILST STILL ELECTRICALLY OR PNEUMATICALLY ENERGISED. When carrying out servicing or maintenance, screw the safety/reset pin fully home to inhibit (isolate) the system. Retain reset pin in safe location for future use. Figure 25 Safety and Reset Pin Body Material: Steel Weight: 0.1kg
  • 147.
    © K.F.P.S. LtdDecember 2004 Manual No 59812-400 37 7.7 INSTALLATION The installation procedure is as follows:- 1. Install the control head mounting bracket. NOTE: Check the distance to the 1st cylinder valve release head to ensure that the long pilot gas flexible hose K93434 can be easily coupled to the Nitrogen pilot gas cylinder valve outlet, see Figures 44 and 45. 2. Lower the control head so that its swivel nut projects through the hole in the mounting bracket and bolt onto the bracket. WARNING DO NOT FIT THE NITROGEN PILOT GAS CYLINDER AT THIS TIME. 3. Check the operation of the control head safety and reset. (i) Remove the red plastic dust cap from the control head threads. (ii) Ensure that the Safety and Reset pin is screwed fully in. (iii) Verify that the actuating pin, see Figures 22 and 23, does not project by more than 3mm. (iv) Check that when the Safety and Reset pin is screwed FULLY OUT and the Push-to-Fire button of the control head is operated the actuating pin extends so that it now projects by a minimum of 6mm. If a Push-to-Fire button is not supplied, remove the port plug, Section 8.1, and push the pin in. Ensure that no dirt or foreign matter falls into the control head while the port is open. reconnect the port plug. (v) Verify that as the Safety and Reset pin is screwed in, the actuating pin retracts, reverting to its original position when the Safety and Reset pin is FULLY IN.
  • 148.
    © K.F.P.S. LtdDecember 2004 Manual No 59812-400 38 Figure 26 Control Head Mounting Bracket TORQUE TO 5/5.5 NO
  • 149.
    © K.F.P.S. LtdDecember 2004 Manual No 59812-400 39 8. CONTROL HEAD ACTUATING DEVICES There are various options available for automatically or manually operating the control head as illustrated below:- Figure 27 Control Head Actuating Devices 1. Manual Push-to-Fire Button K62412 2. Pneumatic Diaphragm K62459 3. 24V d.c Solenoid K62422B 4. 24V d.c Flameproof Solenoid K93206/AX 5. Remote Cable Release Assy K62489
  • 150.
    © K.F.P.S. LtdDecember 2004 Manual No 59812-400 40 8.1 MANUAL PUSH-TO-FIRE BUTTON K62412 To manually operate the control head, pull safety pin and operate ‘push to fire’ button Figure 28 Manual Push-to-Fire Button Unscrew the port plug on the control head and screw the button fully home, as shown below. Port Plug
  • 151.
    © K.F.P.S. LtdDecember 2004 Manual No 59812-400 41 8.2 SOLENOID ACTUATORS K62422B and K93206/AX Figure 29 Standard 24V d.c Solenoid K62422B Designed to meet with BS5490 IP55. The unit is prewired and supplied complete with flexible conduit. Case Material: Aluminium Alloy. Finish: Grey Anodise. Weight: 0.77kg. Electrical Specification Cable:. PVC Coil resistance at 20°C: 64.5 Ohms ± 5% 24V d.c (Nominal) 8.5 Watts.
  • 152.
    © K.F.P.S. LtdDecember 2004 Manual No 59812-400 42 8.3 FLAMEPROOF 24V d.c SOLENOID K93206/AX Figure 30 Flameproof ATEX approved 24V d.c. Solenoid K93206/AX Designed in accordance with ATEX directive: ATEX 94/9/EC classification: for potentially explosive atmospheres flameproof enclosure EX II 2 G Eex d II C T6 to T4 II 2 D IP65 T 85 to T135ºC Case material: Aluminium Alloy. Finish: Epoxy Gloss Grey/Green Weight: 1.4kg. Suitable for offshore and marine conditions. Electrical Specification Coil resistance at 20°C: 16 Ohms ± 10% 24V d.c (Nominal), 16.8 Watts.
  • 153.
    © K.F.P.S. LtdDecember 2004 Manual No 59812-400 43 8.4 INSTALLATION Before installation of the standard or flameproof solenoid check the following: 1. All screw threads are clean and free of damage. 2. The tip of the plunger does not project by more than 3mm. 8.4.1 Standard Solenoid 1. Make sure that the Safety and Reset pin is screwed fully home into the control head before attaching the solenoid. 2. Attach the solenoid to the 24mm diameter screwed port on the control head by hand, taking care not to cross thread the unit. When fully home the solenoid can be finally tightened using an open-ended spanner (27mm A/F thin section). 3. Insert the 20mm screwed thread of the cable gland, which is attached to the loose end of the flexible cable of the solenoid, through the 20mm diameter hole located in the junction box and, using a 20mm back nut tighten the gland from inside the junction box. 4. Connect the two crimp terminals to their relevant connections inside the junction box. WARNING ENSURE THAT THE NITROGEN PILOT GAS CYLINDER HAS NOT BEEN FITTED. 5. Remove the Safety and Reset pin and energise the solenoid causing the firing pin, see Figures 22 and 23, to operate. 6. To reset de-energise the solenoid and re-insert the Safety and Reset pin.
  • 154.
    © K.F.P.S. LtdDecember 2004 Manual No 59812-400 44 8.4.2 Flameproof Solenoid 1. Make sure that the Safety and Reset pin is screwed fully home into the control head before attaching the solenoid. 2. Check the solenoid nameplate for correct voltage, wattage and service. The solenoid must be installed only in locations covered by group II category 2 G/D enclosures and where the flammable gases present in the atmosphere have ignition temperatures higher than the temperature classification stamped on the nameplate. Ambient temperatures must not exceed the value stamped on the nameplate. 3. Attach the solenoid to the 24mm diameter screwed port on the control head by hand, taking care not to cross thread the unit. Once fully home the solenoid can be finally tightened using an A/F open- ended spanner. 4. Connect the solenoid to the control circuit via a ATEX approved junction box or MICC cable gland. 5. Access to the cable terminal connector is achieved by removing the four cap screws and spring washers and withdrawing the housing cover. It may be necessary to rotate the cover slightly to ease withdrawal. 6. After the cover has been removed connect the MICC cable into the terminal connector and tighten the screws. Operation Check WARNING ENSURE THAT THE NITROGEN PILOT GAS CYLINDER HAS NOT BEEN FITTED. 7. Remove the Safety and Reset pin and energise the solenoid causing the firing pin, see Figures 22 and 23, to operate. 8. To Reset de-energise the solenoid and re-insert the Safety and Reset pin.
  • 155.
    © K.F.P.S. LtdDecember 2004 Manual No 59812-400 45 8.4.3 Control Head and Solenoid Wiring The internal switches of the control head can be used to indicate whether the ‘Safety and Reset’ pin has been inserted or the control head has been operated or reset. A suitable junction box should be used for the connections, see Figure 31. Normally the ‘operate’ switch is not used to signal to the control panel that the extinguishing system has operated; the manifold mounted pressure switch is utilised instead. Figure 31 Control Head and Solenoid Wiring Colour State Terminal Reset and Safety pin switch Red Black Orange NC NO Common 1 2 3 Operate Switch Yellow White Grey NO NC Common 4 5 6 FROM CONTROL HEAD From Solenoid 7 8 Recommended terminal connections to be made in a junction box. NOTE: If a solenoid is used, connect the control panel between terminals 5 and 8, and link 6 and 7. After the control head, K62304, has been operated, the actuation signal is removed if the solenoid is wired as shown in Figure 31.
  • 156.
    © K.F.P.S. LtdDecember 2004 Manual No 59812-400 46 8.4.4 Special Instructions to comply with 94/9/EC (ATEX) 1. Area classification Control Head Basic and Control Head c/w Switches part numbers, K62303 and K62304 respectively. Control heads are one part of a pneumatic activation system for extinguishers. These Control heads have been designed and certified as a non-electric equipment for compliance to the following hazardous area classification: Group II category 3 GD c T6 X The user of this equipment should make themselves aware of the following information; 2. Placing the device into service These Control Heads may be installed in an area classified as Zone 2 or Zone 22 or unclassified. 3. Safe use of Control Heads Control Heads are for use only as a component of a pneumatic activation system for extinguishers compatible with the activation pressure (65 bar at 20° C.). The Control Head solenoid activation option is limited to certified version K93206/AX. The switched version is to be used with an intrinsically safe supply suitable for the hazard area. Control Heads are supplied with a resetting tool that also acts as a disable device to allow maintenance on the extinguishing system. 4. Assembling and dismantling Control Heads are supplied complete and ready to install in accordance with KFP High Pressure Carbon Dioxide Fire Protection Equipment Installation, Commissioning and Maintenance Manual 59812-400. 5. Installation Control Head installation shall be in accordance with KFP High Pressure Carbon Dioxide Fire Protection Equipment Installation, Commissioning and Maintenance Manual 59812-400, except that for zone 2 or zone 22 compliance solenoid K62422B SHALL NOT be used. 6. Maintenance (service and emergency repair) The Safety and Reset Pin must be used to disable the control head before any system maintenance is performed refer to manual 59812-400. For maintenance of control head refer to this manual. 7. Adjustment Control Heads have no adjustable components 8. Training Consult KFP High Pressure Carbon Dioxide Fire Protection Equipment Installation, Commissioning and Maintenance Manual 59812-400 before use. 9. Limitations of use Control Heads must only be used within areas specified by the hazardous area certification as indicated on the equipment label 10. Special Parameters The ambient temperature for this equipment is –18°C to 55°C.
  • 157.
    © K.F.P.S. LtdDecember 2004 Manual No 59812-400 47 8.5 PNEUMATIC DIAPHRAGM ACTUATOR K62459 The pneumatic diaphragm actuator is used to operate the control head. The two 1/8” screwed connectors on the cover plate of the actuator allow connection to a detector line and a breather assembly. Air pressure from the detectors deflects the diaphragm which moves the firing pin approximately 3mm into the control head. After operation the firing pin returns to its normal position, assisted by a spring assembly which is located under the diaphragm. Figure 32 Pneumatic Diaphragm Actuator Diaphragm Housing Material: Aluminium Bronze Finish: Anodised Connector Material: Brass Finish: Dull Nickel Plate Weight: 0.93kg
  • 158.
    © K.F.P.S. LtdDecember 2004 Manual No 59812-400 48 8.6 PNEUMATIC BREATHER VENTS K62895 The pneumatic breather is a calibrated leak used in pneumatic fire detecting systems. The purpose of the breather is to relieve slight increases or decreases of air pressure within the detector circuit caused by normal atmospheric temperature changes or heating of the premises. etc. Part Number Breather Setting K62895/5 5 Seconds K62895/10 10 Seconds K62895/15 15 Seconds K62895/20 20 Seconds K62895/25 25 Seconds K62895/30 30 Seconds K62895/100 100 Seconds Figure 33 Pneumatic Breather Vents Vent settings to be used (seconds) Temperature Variation: For 1 & 2 Detectors For 3 & 4 Detectors For 5 & 6 Detectors NORMAL 15 20 25 CONSTANT (Thermostatically controlled) 25 30 30 RAPID (Ovens, etc) 5 10 10 NOTES: 1. A 100 second breather is used only if a pneumatic check unit is employed. 2. The breather in a lock-off unit must be rated the same as the breather fitted to the Pneumatic Diaphragm Actuator see Figure 32.
  • 159.
    © K.F.P.S. LtdDecember 2004 Manual No 59812-400 49 8.7 INSTALLATION Before installation of the pneumatic diaphragm actuator check the following: 1. That all screw threads are clean and free of damage, 2. The tip of the plunger does not project by more than 3mm, 3. That the Safety and Reset pin is screwed fully home into the control head before attaching the actuator. After the above checks have been carried out satisfactorily install the pneumatic actuator as follows: 1. Attach the pneumatic diaphragm actuator to the 24mm diameter screwed port on the control head by hand, taking care not to cross thread the unit. Once fully home the actuator can be finally tightened using an open-ended spanner. 2. Attach the breather vent assembly, see Figure 32, to one of the connections on the actuator. 3. Attach the compression coupling on the copper detection tubing to the second connection. 8.8 CABLE RELEASE ASSEMBLY K62478 This device is used in conjunction with a remote pull box and cable system to manually operate the control head. Figure 34 Cable Release Assy Material: Mild steel box painted black
  • 160.
    © K.F.P.S. LtdDecember 2004 Manual No 59812-400 50 8.8.1 Installation To install the single release assembly, see Figure 35 and proceed as follows: 1. Unscrew and remove the box lid and gasket. Slacken the cable clamp locking screws and slide clamp off the inner bowden cable (use a 2.5mm A/F hex wrench). 2. Pull out the inner cable from the release assembly. NOTE: Do not remove top cover from control head. 3. Unscrew both blanking plugs from the control head body (use a ¼” A/F hex wrench). NOTE: A manual Push-to-Fire button, if fitted, should be unscrewed. Figure 35 Cable Pull Ring Connection Cable Connection Port, see Figure 35. 4. Feed in the inner cable through the blanking plug port on the “Safety and Reset” pin side of the control head, through the top hole of the cable pull-ring inside the control head and out through the blanking plug port on the other side of the control head. 5. Slide the outer Bowden cable, complete with box, onto the free end of the inner cable and screw cable into the blanking port and tighten. 6. Attach the cable box to the wall at a point convenient to the remote pull cable conduit.
  • 161.
    © K.F.P.S. LtdDecember 2004 Manual No 59812-400 51 Figure 36 Curvature of Cable Curvature of Cable, see Figure 36 7. Make sure that the control head cable is not forced to bend through a radius of less than 45mm (approximately 1 ¾”) along its length. Figure 37 Cable Release Assembly, Cover Removed 8. Slide the cable clamp into the inner cable, loop the inner cable end and feed back through the clamp as illustrated above. NOTE: With “Safety and Reset” pin screwed fully home make sure that there is approximately 3mm of slack cable between the cable clamp and the cable attachment nut inside the box. Adjust if necessary. 9. Feed remote pull cable into the cable clamp and secure with the two locking screws. 10. Test for satisfactory operation with the pilot valve and cylinder assembly removed and adjust tension of remote cable if necessary. Refit the box lid and gasket. 11. Leave the system in an operable condition.
  • 162.
    © K.F.P.S. LtdDecember 2004 Manual No 59812-400 52 8.9 PULL BOX K 1114 The pull box is used where remote emergency manual operation of a system is required. The handle is connected to the gas release device by flexible phosphor bronze cable run in mild steel conduit for protection. Abrupt changes in direction to the routing of the manual pull line are affected by means of enclosed brass pulleys. Part No. K 1122. Pulley can be mounted in 90º increments. Figure 38 Pull Box Specification: BS5490 IP40 Materials: Box-Steel painted signal red BS 381C/537 Front Cover - Plastic Weight: 1.65kg
  • 163.
    © K.F.P.S. LtdDecember 2004 Manual No 59812-400 53 8.9.1 Corner Pulley K 1122 Figure 39 Corner Pulley Materials: Brass - Natural Weight: 0.5kg 8.9.2 Installation To install the pull box proceed as follows: WARNING TO PREVENT ACCIDENTAL DISCHARGE OF THE FIRE FIGHTING SYSTEM DURING INSTALLATION WORK, MAKE SURE THAT THE SAFETY AND RESET PIN IS SCREWED FULLY HOME INTO THE CONTROL HEAD OR THE COMPLETE PILOT VALVE AND GAS CYLINDER ASSEMBLY IS UNSCREWED FROM THE CONTROL HEAD. 1. Attach the pull box using the single 7/16 (11.1mm) diameter fixing hole. 2. With front plate and glass removed, use a slotted screwdriver to remove the 7/16” Whitworth grubscrew from the centre of the pull handle. 3. Feed the 1/8” diameter bronze cable through the pull handle, steel conduit and pulley assemblies, up to the cable clamp located inside the cable release box. 4. With the cable protruding inside the cable release box slacken the two cable-clamp locking-screws and attach the bronze cable as shown for single release mechanism. 5. With approximately 76mm of cable protruding out through the pull handle, tie a single knot in cable. Solder the knot completely. 6. Slide the cable into the handle recess, tighten and then cut-off excess cable. 7. Re-fit the 7/16” Whitworth grubscrew to the pull handle.
  • 164.
    © K.F.P.S. LtdDecember 2004 Manual No 59812-400 54 8. With the pilot gas cylinder detached from the control head, remove the Safety and Reset pin, pull the handle in the pull box and test the system for each operation. 9. Check that the control head operates. 10. Insert the Safety and Reset pin. 11. Refit the pilot cylinder. 12. When satisfied with the operation re-locate glass and front plate and tighten using the four long 2½” long x 2BA round head screws. 13. Remove the Safety and Reset pin and hand it to a responsible person. NOTE: All cable runs must be straight. Changes in direction must only be accomplished by the use of pulleys; bends and dog legs must not be used.
  • 165.
    © K.F.P.S. LtdDecember 2004 Manual No 59812-400 55 9. CYLINDER VALVE PRESSURE/LEVER ACTUATOR K62341 The release head is a piston device which is fitted to the cylinder valve by means of a “U” pin and can be operated by means of independent Nitrogen gas pressure and/or by use of the manual lever. Two gas pressure ports provide the means of interconnecting a series of release heads by using flexible pilot gas hoses. (K93433 & K93434) All pilot lines must include a pilot vent (K24051) as part of the assembly. WARNING THIS DEVICE IS NOT SELF-RESETTING. AFTER OPERATION THE PISTON MUST BE MANUALLY RESET BY PUSHING THE PISTON BACK ONTO ITS SEATING. NOTE: If manually operated the lever must be returned to its original position and secured before re-setting. Figure 40 Cylinder Valve Pressure/Lever Actuator Materials Body: Brass Seals: Nitrile Lever: Plated Steel Securing Pin: Stainless Steel Safety Pin: Stainless Steel Weight: 0.4kg
  • 166.
    © K.F.P.S. LtdDecember 2004 Manual No 59812-400 56 9.1 INSTALLATION Before installation check the following:- 1. Remove Safety pin and rotate manual lever for ease of movement of both the lever and piston. 2. Return lever original position and insert Safety pin. 3. Manually reset the piston. After these checks have been carried out satisfactorily install as follows: (a) Remove the securing pin. (b) Slide the release head onto the cylinder valve and refit the securing pin, lightly tap fully home. Leave safety pin in place until commissioning system. Refer to section 19 – Maintenance.
  • 167.
    © K.F.P.S. LtdDecember 2004 Manual No 59812-400 57 10. PILOT GAS FLEXIBLE LOOPS K93433 and K93434 The short pilot loop K93433 is used to interconnect the pressure / lever actuator K62341 pressure inlet ports on multiple cylinder systems. The long pilot loop K93434 is used to interconnect the release head where the cylinders are installed in a double row. It is also used to convey the pilot nitrogen gas from a system actuator to the inlet port of the first release head. Figure 41 Pilot Gas Flexible Loops Materials Hose: Polyamide inner tube, synthetic branding/polyamide cover End Fittings: Brass - Natural Finish Minimum Bend Radius: 50mm Test Pressure: 207 bar Weight: 50 grammes 10.1 PILOT GAS VENT K24051 This device is fitted in the last unused pressure inlet port of the release head K62341 allowing the pilot gas pressure to slowly vent (bleed) to atmosphere. The rate at which the pilot gas is vented is slow enough to maintain adequate operation pressure in the pilot gas line far in excess of the duration of the main CO2 discharge for normal flooding systems. See Datasheet 811-9040A The bleed valve is factory calibrated to vent at 0.8 litres/min at 750psi.
  • 168.
    © K.F.P.S. LtdDecember 2004 Manual No 59812-400 58 Figure 42 Pilot Gas Vent Materials Body: Brass Weight: 0.02kg
  • 169.
    © K.F.P.S. LtdDecember 2004 Manual No 59812-400 59 10.2 PILOT GAS RIGID TUBING AND FITTINGS On systems where either the system actuator is remote from the CO2 cylinders or when the system incorporates directional valves the pilot gas line consists of steel (bundy) tubing and compression fittings. Figure 43 Pilot Gas Rigid Tubing and Fittings K K K K K K K K K K K
  • 170.
    © K.F.P.S. LtdDecember 2004 Manual No 59812-400 60 ASSEMBLY 1. Tubing must be cut off square and all burrs and swarf removed as loose particles could damage any seals used elsewhere in the pipeline. 2. Place tubing nut and sleeve on tube. 3. Offer the tubing to the coupling, pushing it right home so that the tubing bottoms on the tubing stop inside the fitting. * This is important as it ensures that the correct amount of tubing projects beyond the sleeve to give a sound joint. 4. Hold the tubing square to the coupling and screw the tubing nut up finger tight so that the sleeve is trapped between the tubing nut and the seating radius of the counterbore. 5. While holding the tube firmly in contact with the tubing stop, screw the tubing nut down to a reasonable spanner tightness. This varies between 3/4 and one full turn. On fittings for tubing sizes of 12mm outside diameter and over, a smear of lubricant applied to the sleeve and the threads of the tubing nut will effect a sound joint with the minimum of effort. 6. Slacken off the assembly about a ¼ turn then pinch down once again. Where an inaccessible fitting would make the assembly of a sound joint difficult, it is recommended that the sleeve is pre-assembled onto the tubing. This can be done by following the above procedure but using a fitting of the correct size clamped in a vice. The tubing assembly can then be done and released and transferred to the final union with the sleeve already correctly positioned. WARNING Do not use loctite, adhesive or tape on any part of this assembly.
  • 171.
    © K.F.P.S. LtdDecember 2004 Manual No 59812-400 61 10.3 INSTALLATION Install the correct length pilot gas flexible loops as shown in Figure 44 for single row cylinders or Figure 45 for double row cylinders. Install a pilot gas vent, see Figure 42, in the last open port of the pressure/lever actuator, Figure 40. NOTES: 1. Do not use PTFE or other pipe sealant. 2. Do not overtighten fittings. Figure 44 Single Cylinder Row Pilot Gas Operation Figure 45 Double Cylinder Row Pilot Gas Operation
  • 172.
    © K.F.P.S. LtdDecember 2004 Manual No 59812-400 62 11. TIME DELAY UNIT K23650 This hydraulic device can be installed in a system to ensure that personnel are given time to evacuate a protected space following a warning of imminent CO2 discharge. It is fitted in the Nitrogen pilot gas line from the System Actuator thus delaying the flow of pilot gas to the CO2 cylinder pressure release heads and/or P.O.D valve for a pre-determined time of 15 or 30 seconds. This unit is factory pre-set do not adjust. Tampering with this unit could cause failure. Figure 46 Time Delay Unit
  • 173.
    © K.F.P.S. LtdDecember 2004 Manual No 59812-400 63 Spec Factory set at 15 or 30 sec. Material: Brass - Painted Red Part No: K23650/15 = 15 secs K23650/30 = 30 secs Weight: 1.9 kg 11.1 INSTALLATION 1. Install vertically with the pilot gas inlet at the top. 2. Fit adaptor K90219 to both inlet and outlet pilot gas points. 11.2 TESTING Wait approximately 1 hour before testing.
  • 174.
    © K.F.P.S. LtdDecember 2004 Manual No 59812-400 64 Figure 47 Single Protected Space System
  • 175.
    © K.F.P.S. LtdDecember 2004 Manual No 59812-400 65 Figure 48 Two Protected Spaces System
  • 176.
    © K.F.P.S. LtdDecember 2004 Manual No 59812-400 66 Figure 49 Two Protected Spaces Requiring Different CO2 Quantities
  • 177.
    © K.F.P.S. LtdDecember 2004 Manual No 59812-400 67 11.3 TIME DELAY BY-PASS VALVE K60736 This device may be used to by-pass the time delay units. Figure 50 Time Delay By-Pass Valve Materials: Box Mild Steel Finish: Hammer Grey
  • 178.
    © K.F.P.S. LtdDecember 2004 Manual No 59812-400 68 Figure 51 Installation
  • 179.
    © K.F.P.S. LtdDecember 2004 Manual No 59812-400 69 12. CO2 OPERATED PRESSURE SWITCH K60218 The universal pressure switch is a gas pressure operated device which is connected to the distribution piping or manifold. A gas pressure of 4 bar - 110 bar is required to operate the piston which makes or breaks electrical contacts. When the system is activated, gas pressure forces the piston against the operating rod which moves across the housing, operating the switch. The switch completes an electrical circuit and illuminates the system discharged lamp on the indicating lamp panel or operates the alarm etc. The rod extends into the transparent cover to indicate the switch has operated. To reset, unscrew re-setting cap (transport cover) from box, - reverse, and screw onto the operating rod. Press until switch clicks home. Remove resetting cap from rod - reverse and screw back into box. Refer to Datasheet 811-9119 Figure 52 CO2 Operated Pressure Switch Materials Housing: Aluminium Casting Finish: Red Enamel Testing: 2KV tested ¾ ” BSPT
  • 180.
    © K.F.P.S. LtdDecember 2004 Manual No 59812-400 70 Inductive Rating Power Factor 250 Volts 440 Volts 600 Volts 1 30 Amps 25 Amps 20 Amps 0.74 25 Amps 20 Amps 16 Amps 0.50 17.5 Amps 14 Amps 11.5 Amps D.C. Rating Resistance 220 Volts 500 Volts Loadings 30 Amps 15 Amps
  • 181.
    © K.F.P.S. LtdDecember 2004 Manual No 59812-400 71 12.1 INSTALLATION Before installation of the pressure switch (see Figures 52), check the following: 1. The ¾” BSP inlet thread is clean and free of any damage. 2. When manually operated, using the visual indicator and re-setting cap, the switch roller is in the coupler channel and the operation is smooth with no binding. After the above checks have been satisfactorily carried out, install the pressure switch as follows:- 1. A ¾” BSP screwed connection is required on the end of the manifold, attach a ¾” BSP galvanised hexagon nipple. 2. Attach the pressure switch or, wall mount the switch, make up all pipework to suit the site location of your pressure switch making sure that there is a ¾” BSP galvanised union in this line for each of installation and/or removal of equipment. 3. To the ¾” BSP outlet connection on the pressure switch attach a ¾ BSP galvanised hexagon nipple and one half of the union as mentioned in (2) above. 4. Connect the pressure switch to the pipework via the union and hand tighten. 5. Mark the two pressure switch fixing holes on the wall or framework. 6. Loosen the union nut and remove the pressure switch. 7. Drill the two holes. 8. Reconnect the pressure switch to the pipework and tighten the union nut. 9. Fix the pressure switch to the wall or framework. Alternatively, the switch may be wall mounted by adapting the ¾ threads to 3/16” ENOT and using bundy tube to connect.
  • 182.
    © K.F.P.S. LtdDecember 2004 Manual No 59812-400 72 13. CO2 OPERATED PRESSURE TRIP K17554 The pressure trip is fitted into the CO2 distribution piping and is used to automatically release ventilation shutters, fire curtains, ducting dampers, fuel valves, etc. CO2 pressure of approximately 2 bar is sufficient to operate the piston and unlatch -the catch mechanism. Figure 53 Pressure Trip Materials: Body - Gunmetal Finish: Nickel Plate
  • 183.
    © K.F.P.S. LtdDecember 2004 Manual No 59812-400 73 13.1 INSTALLATION Figure 54 Installation NOTES: • Always install the pressure trip in a vertical position as shown. • Dimension from top of doorframe is typical & should be adhered to where possible. • Use PTFE tape on all screw threads. • The maximum load that can be suspended from a pressure trip is 100lb (45kg). Install the pressure trip as follows:- 1. To the ¾” BSP male screwed connection on the pressure trip attach a ¾” BSP elbow a suitable length of ¾” BSP galvanised pipe and one half of a ¾” BSP union. 2. Offer the pressure trip assembly up to the CO2 distribution piping and hand tighten the union nut. 3. Making sure that the pressure trip is located in the centre of the doorway and at a suitable vertical dimension above the door frame so as not to hinder the operation of the equipment mark the one off fixing hole on the wall. 4. Loosen and disconnect the pressure trip assembly. 5. Drill the pressure trip fixing hole on the wall. 6. Reconnect the pressure trip assembly to the CO2 pipework. 7. Using a adequate wall fixing to attach the pressure trip to the wall. 8. Once attached to the wall finally tighten the union nut. 9. Attached the cable & cable ring to the pressure trip.
  • 184.
    © K.F.P.S. LtdDecember 2004 Manual No 59812-400 74 14. CO2 DISCHARGE NOZZLES There are various nozzles suitable for either “total flooding” and/or local application systems. In all cases it is essential that they are installed in their correct locations as defined by the code number stamped on the nozzle body. 14.1 MULTIJET NOZZLE K61792 AND K61793 These nozzles are the standard carbon dioxide discharge nozzles. The horn has been developed to prevent the scattering of burning material that can take place with a high velocity discharge. Datasheet 811-9148 Figure 55 Multijet Nozzle Environment: Industrial/Offshore/Marine Material: Horn - mild steel Nozzle - brass Finish: Horn - black paint. Nozzle - Natural Weight: K61792 N13 - N18 :- 0.8 kg approx. K61793 N3 - N12 :- 0.6 kg approx.
  • 185.
    © K.F.P.S. LtdDecember 2004 Manual No 59812-400 75 14.2 FLANGED MULTIJET NOZZLE K5814 The flanged carbon dioxide horn is designed for use in those areas where the nozzle may become blocked by dirt or the process being protected. The force of the discharge automatically blows the disc clear. Three discs are available:- Refer to Datasheet 811-9139 Figure 56 Flanged Multijet Nozzle 1. Bakelite - temperatures up to 200°C and ambient pressures below 50 psig. 2. Tin Foil - temperatures up to 400°C and ambient pressures below 25 psig. (used where fragmented pieces cannot be tolerated) 3. Mica - temperatures above 400°C and ambient pressures below 50 psi. The flanged horn may be fitted to ductwork by the addition of the appropriate adaptor. Material: Body: Aluminium Nozzle: Brass Finish: Body: Natural Nozzle: Natural Weight: 0.9 kg approx.
  • 186.
    © K.F.P.S. LtdDecember 2004 Manual No 59812-400 76 14.3 FLANGED NOZZLE DUCT ADAPTORS K61420A-D The range of duct adaptors is designed for those situations where it is required to fit the flanged CO2 nozzle (K5814 N3 - N8) to circular or square section ductwork. Figure 57 Flanged Nozzle Duct Adaptor Material: Cast aluminium. Finish: Black paint NOTE: 4 - 5/16" Whit. Hex. Hd. Screws C/W nuts and washers together with joint sealing tape supplied with each adaptor. Adaptor Assembly Weight (approx) Ducting Size K61420A 1.3kg 610mm Dia K61420B 1.3kg 457mm Dia K61420C 1.3kg 305mm Dia K61420D 1.1kg Flat
  • 187.
    © K.F.P.S. LtdDecember 2004 Manual No 59812-400 77 14.4 DUCT NOZZLE K13045 The CO2 nozzle and duct adaptor is used to protect ductwork in areas where space is limited. Datasheet 811-9151 Figure 58 Duct Nozzle Material: Mounting plate : mild steel Nozzle : brass Finish: Mounting plate : zinc plated and passivated. Nozzle : natural Weight: 0.4kg approx.
  • 188.
    © K.F.P.S. LtdDecember 2004 Manual No 59812-400 78 14.5 FAN TYPE NOZZLE K6490 Fan type nozzles are designed to be mounted at the sides of the protected equipment and to direct carbon dioxide across the hazard. Figure 59 Fan Type Nozzle Material: Body: Grey cast iron. Nozzle: Brass Finish: Body: Black paint. Nozzle: Natural Weight: 2.6kg approx.
  • 189.
    © K.F.P.S. LtdDecember 2004 Manual No 59812-400 79 15. PNEUMATIC DETECTION - HEAT ACTUATED DEVICES The “Rate of Rise” system is a thermo-pneumatic system consisting of one or more detectors connected to a release actuator in which there is a diaphragm and a compensating vent. 15.1 PNEUMATIC RATE OF RISE DETECTOR K18724 The pneumatic detector is a hollow copper chamber of 12cc capacity containing air at normal atmospheric pressure. It is fixed to the ceiling or in any other positions best suited to site conditions. The function of the detector is to absorb heat thereby increasing the air pressure within it which is then transmitted through small bore copper capillary tube running in protective steel conduit to a release actuator. Operation of the diaphragm in the release actuator will discharge the extinguishing agent or initiate an alarm. Figure 60 Pneumatic Rate of Rise Detector
  • 190.
    © K.F.P.S. LtdDecember 2004 Manual No 59812-400 80 15.2 PNEUMATIC FIXED TEMPERATURE DETECTOR K18689 This detector works on the same principle as the Rate of Rise detector but is fitted with a slug assembly containing a fusible alloy disc which will melt at a predetermined temperature. These are used to protect areas which are subjected to rapid increases in ambient temperatures such as ovens, kitchens, boiler houses, lantern lights, etc. Be aware that capillary tubing can act as a rate-of rise detector so routes outside the rapid change area must be found. K18689 = Pneumatic Fire Detector less slug assembly, washers and identification disc. Order appropriate slug assembly kit for fitting on site and for spares. (see table) Slug assembly kit comprises - slug assembly, 2 washers, identification disc with fitting screw and fitting instructions. Note: Slug assembly kits are available in a limited range of temperatures. Please contact Kidde Fire Protection for further details. Figure 61 Pneumatic Fixed Temperature Detector
  • 191.
    © K.F.P.S. LtdDecember 2004 Manual No 59812-400 81 15.3 PNEUMATIC CHECK UNIT K24412 The pneumatic check is used on pneumatic type fire detection systems incorporating Rate of Rise detectors. The checks are used to divide the detectors into groups of no more than six. Each group is, in this way, isolated, so that air pressure rise caused by a detector sensing fire can pass through the check to the system actuator etc, without being dissipated into other detector groups. The pneumatic check is formed by making use of silicone fluid. The unit being filled with fluid at the factory. No adjustment should be necessary, but check fluid level. Installation This unit must be installed in a vertical position as shown above. Fit pneumatic breathers in the two inlet ports, see Figure 62 for correct setting. Figure 62 Pneumatic Check Unit K 6 2 8 9 5
  • 192.
    © K.F.P.S. LtdDecember 2004 Manual No 59812-400 82 15.4 PNEUMATIC LOCK-OFF UNIT K24300 An extinguishing system utilising non-electrical heat detectors can be fitted with a pneumatic lock-off unit in order to prevent automatic actuation when the area protected by the system is occupied. With the unit switched to AUTOMATIC & MANUAL the pneumatic signal from the heat detectors is allowed to pass through the unit to the extinguishing system. However, when the unit is switched to MANUAL ONLY the signal is directed to a pneumatic switch fitted within the Lock-off unit which can thus provide remote indication, and is prevented from actuating the extinguishing system. A second Pneumatic breather of the same vent setting as the one fitted to the extinguishing system actuator must be fitted to the pneumatic switch in the Lock-off unit. Figure 63 Pneumatic Lock-Off Unit
  • 193.
    © K.F.P.S. LtdDecember 2004 Manual No 59812-400 83 15.5 BELLOWS AND MICROSWITCH ASSY K20057 The bellows and microswitch assembly is used to convert an air pressure signal received from a non- electrical heat detection device into an electric signal for indication or the operation of a release mechanism. The assembly consists of a pair of aluminium castings enclosing a diaphragm and connected to a microswitch. On receipt of an air pressure signal a spindle housed in the upper casting actuates the microswitch. The unit is self-resetting when the air pressure signal is removed. No maintenance is required. Order appropriate Pneumatic Breather for fitting on site, see Figure 64. Figure 64 Bellows and Microswitch Assembly
  • 194.
    © K.F.P.S. LtdDecember 2004 Manual No 59812-400 84 15.6 PNEUMATIC CAPILLARY TUBE, CONDUIT AND FITTINGS Figure 65 Pneumatic Capillary Tube, Conduit and Fittings
  • 195.
    © K.F.P.S. LtdDecember 2004 Manual No 59812-400 85 15.7 CO2 OPERATED SIREN K18307 This device can be fitted into the main CO2 feed pipe to provide an audible alarm for the duration of the CO2 discharge. Figure 66 CO2 Operated Siren Material: Body - Aluminium Casting Finish: Painted Red
  • 196.
    © K.F.P.S. LtdDecember 2004 Manual No 59812-400 86 16. ODORISER ASSEMBLY K62586 At normal atmospheric pressures and temperatures, the extinguishing gas is colourless and odourless. To enable CO2 to be detected during and following a discharge an odoriser shall be fitted. The unit must be fitted in the main pipe run so that the pressure of the gas passing through the pipe bursts a seal in the unit and releases a liquid odorant into the gas system. Burst pressure range 20 to 40 psi. Each unit contains 30cc of odorant which is sufficient to produce a positive and identifiable lemon smell in a protected space of up to 1,400 cubic metres volume. Figure 67 Odoriser Assembly Material: Aluminium Alloy Finish: Black anodise NOTES: 1. This unit must be installed in the vertical position with the cylinder uppermost. 2. Adaptor K22152 can be supplied as an optional fitting, see Figure 68. This incorporates a check valve so that in the event of the gas being released while the odoriser is removed there is no loss of gas from the pipe. Figure 68 Odoriser Check Valve Material: Brass
  • 197.
    © K.F.P.S. LtdDecember 2004 Manual No 59812-400 87 17. CO2 WARNING LABELS MATERIAL:- 22 SWG ALUMINIUM Figure 69 Entrance Door Warning Label Part Number K93681
  • 198.
    © K.F.P.S. LtdDecember 2004 Manual No 59812-400 88 Figure 70 Manual Control Point Label Part Number K93680
  • 199.
    © K.F.P.S. LtdDecember 2004 Manual No 59812-400 89 PART 2 COMMISSIONING 18. COMMISSIONING This chapter described the commissioning procedure under the following headings: 1. Visual Checks 2. Mechanical Function 18.1 VISUAL CHECKS Before commencement of commissioning tests visually check the following:- 1. Check that the installation conforms to the engineering drawings. Any deviations from drawings must be reported. 2. All work, e.g. electrical wiring, carried out by other contractors has been completed satisfactorily. 3. Check the protected area for confinement of the extinguishing agent, i.e. that no passage is allowed to other spaces through floor or ceiling voids, ductwork, holes in partitions or vents, unless allowance has been made. 4. Check that all manual controls are accessible and correctly identified. 5. Check that the discharge nozzles are unobstructed and are adequately secured. Check that the nozzles comply with sizes shown on the drawings. 6. Check that the container and valve manifolds are correctly sized, and that check valves and POD valves are installed for correct directional flow. 7. Check the manifold-to-container installation for undue strain on connecting loops because incorrect installation can cause service problems. 8. Check the containers are installed in an accessible location, that the area is clean, dry and ventilated and meets the safe temperature requirements. 9. Check that all system controls, such as valves, lock off, pull boxes, manually or electrically operated devices, are accessible to operating personnel. If located outdoors ensure that they conform to the required standards and that adequate shelter has been provided. 10. Check that pipes and fittings are sized in accordance with the drawings and are adequately secured. All piping must be rigidly secured to the nozzle to prevent damage from recoil. 11. Check that all warning labels and notices give correct information for system operation and that they are suitably located. 12. Check weigh containers to ensure nett content is in accordance with the requirements.
  • 200.
    © K.F.P.S. LtdDecember 2004 Manual No 59812-400 90 18.2 MECHANICAL FUNCTION WARNING DO NOT PROCEED WITH ANY FUNCTIONAL TESTS UNTIL EVERY PRECAUTION HAS BEEN TAKEN TO PREVENT ACCIDENTAL DISCHARGE. 18.2.1 General If the control head is connected to the pilot gas cylinder check as follows:- 1. Make sure that the “Safety and Reset” pin is screwed fully home. 2. Unscrew the pilot gas cylinder from the control head. 3. Remove the “Safety and Reset” pin. 4. Check the distance moved by the firing pin. 5. Energise the solenoid, if fitted, from the control panel. The solenoid operates the control head thereby causing the control head firing pin to be moved downwards by a minimum distance of 3mm thus giving a total projection of 6mm. This insures that the solenoid and control head are both operable and have functioned correctly. 6. After the test has been carried out satisfactorily reset the control head by screwing the “Safety and Reset” pin fully home and checking that the firing pin does not project more than 3mm. 18.2.2 Manual Push-to Fire 1. Remove the “Safety and Reset” pin. 2. Remove pin from “Push-to Fire” button 3. Manually fire the control head by operating the “Push-to-Fire” button as shown in Section 8.1 4. When the manual operation of the “Push-to-Fire” button has been proved, reset the control head by screwing the “Safety and Reset” pin fully home. 5. Replace pin into “Push-to fire” button. 18.2.3 Pull Box WARNING DO NOT PROCEED WITH ANY FUNCTIONAL TESTS UNTIL EVERY PRECAUTION HAS BEEN TAKEN TO PREVENT ACCIDENTAL DISCHARGE. 1. Remove the “Safety and Reset” pin from the control head. 2. Remove the front cover and glass from the pull box unit. 3. Pull the handle in the pull box unit and manually fire the control head. 4. When satisfied, reset the control head by screwing the “Safety and Reset” pin fully home. 5. Reset the cable arrangement as described in Section 8.8. 6. Relocate the glass and front cover plate to pull box unit.
  • 201.
    © K.F.P.S. LtdDecember 2004 Manual No 59812-400 91 18.2.4 Pneumatic System If the control head is to be operated using a pneumatic diaphragm actuator and HAD detection system, a manometer test, see Figure 71, shall be carried out. Figure 71 Manometer Test System Specification: Designed for pressure or vacuum up to 8” water gauge. Material: Base and Cover Al. Alloy Paint: Red Enamel Part No: K17523
  • 202.
    © K.F.P.S. LtdDecember 2004 Manual No 59812-400 92 Before testing the pneumatic actuator and HAD system, ensure that the manometer water level is zeroed and check for leaks as follows:- 1. Compress the rubber bulb slightly and plug both the simplifix coupling and the open end of the glass tee piece near the bulb - a wetted thumb is usually adequate for this purpose. Release the pressure on the rubber bulb, thus causing the water to rise up the right hand side of the simplifix coupling tube until a reading of 6” water gauge is shown and holds level until the pressure is relieved by removing the thumbs from the open ends. Test the HADs, if necessary, as follows:- 1. Remove the HAD from the system and immerse it in water the temperature of which is some 10°C above ambient. but does not exceed 50°C. There must be no air leaking from the HAD. 2. If satisfactory replace the HAD in the system making sure all water has been removed and connections are tight.
  • 203.
    © K.F.P.S. LtdDecember 2004 Manual No 59812-400 93 Test that the system is airtight, as follows:- 1. Remove the pneumatic breather from the breather connection on the diaphragm actuator. 2. Connect the manometer to the breather connection on the diaphragm actuator as shown, and create a vacuum as described above.
  • 204.
    © K.F.P.S. LtdDecember 2004 Manual No 59812-400 94 3. After an initial pressure drop there should be no further drop for one minute. 4. With the manometer still connected, test that the system is free from blockage, by slightly heating each HAD in turn and observing that a slight pressure is built up in the system each time; a displacement of ½” water gauge is sufficient. After this test has been carried out satisfactorily proceed to check the rating of the pneumatic breather as follows:- 1. Remove the breather from the pneumatic actuator and connect it to a manometer. Set the water level in line with the top edge of the metal indicator of the manometer. NOTE: Before testing ensure that the breather is situated above the level of the manometer to prevent any possibility of water being blown into the breather. 2. Create a small vacuum (approximately 3” difference in water level in the two limbs of the manometer). As the water returns slowly to its normal position, note the time taken for the water to pass through the “visor space” of one inch of the indicator. This is the time taken for the pressure to drop by 2” of water pressure. The time should be between 5 and 100 seconds depending on the breather used; the specified time stamped on the breather. After this test has been carried out satisfactorily re-connect the breather to the pneumatic actuators.
  • 205.
    © K.F.P.S. LtdDecember 2004 Manual No 59812-400 95 The operation of the system is checked as follows:- 1. Disconnect the pneumatic detector line from the actuator. 2. Connect the manometer to the pneumatic connection on the actuator as shown below: 3. Remove the “Safety and Reset” pin. 4. Using the rubber hand bulb gently pump until the pneumatic actuator operates the control head. NOTE: The pneumatic actuator should operate the control head only between 1" and 3" of water gauge, as shown in the manometer operating range above.
  • 206.
    © K.F.P.S. LtdDecember 2004 Manual No 59812-400 96 5. Re-place the “Safety and Reset” pin, ensuring that it is screwed fully home. 6. Re-connect the pneumatic detection line to the pneumatic actuator. WARNING DO NOT ATTEMPT TO RESET THE SYSTEM UNTIL THE PRESSURE IN THE HAD LINE HAS BEEN RELEASED. 18.2.5 Pressure/Lever Actuator and POD Valves Details of the pressure/lever actuator are given in Part 1, Chapter 9. To check the pressure /lever actuator and POD valves as follows: 1. Remove the pressure/lever actuator complete with pilot loops and vents from the container valves and secure them, making sure that they are clear of the container valves. The entire pilot gas system must remain intact. 2. Remove the safety lock pin from each actuator and check the manual operation. 3. When satisfied with the manual operation of the release heads check the POD valves, if installed, by connecting a pilot gas (Nitrogen) test cylinder to the head. Remove Safety Lock Pin from each POD valve and check for manual operation (Valves up to 2”). NOTE: If the POD valves are fitted with switches check that the indication has been given at the control panel that the POD valve is open. 4. When satisfied with the manual operation of the POD valves reset and re-insert the Safety Lock pins. 5. With the pressure/manual release heads still removed, depress the Push-to-Fire button on the control head thereby releasing the pilot gas (Nitrogen) into the pilot line causing the pressure/manual release heads to operate. NOTE: If POD valves are installed in the system check that these have been opened before checking the pressure/lever actuator 5. After the POD valves and/or pressure/lever actuator have functioned correctly re-set each control head by screwing the “Safety and Reset” pin fully home. 7. Push piston inside pressure/lever actuator back to set position. 8. Remove the pilot gas (Nitrogen) test cylinder from the control head. 9. Visually check that the plunger assembly has returned to its normal position. When satisfied, re- connect the pilot cylinder and the pressure/lever actuator to the container valves. Tighten the running nut at the control head/pilot cylinder interface. 18.2.6 Pressure Trip Check the pressure trip mechanism, if incorporated in the CO2 system, as follows:- 1. Physically lift the pivoted lever allowing relevant equipment, e.g. fire curtains or dampers, to be operated. 2. After manual operation of the pressure trip has been carried out successfully, re-set all fire curtains, dampers etc.
  • 207.
    © K.F.P.S. LtdDecember 2004 Manual No 59812-400 97 3 To demonstrate operation of the pressure trip assembly, release one container from the main bank. Disconnect all pressure levers actuators and CO2 outlet hoses from the cylinders not required for the test. WARNING DO NOT DISCHARGE CO2 WHILE THERE ARE PERSONNEL PRESENT IN THE AREA. THE ENGINEER CARRYING OUT THE TEST MUST OBSERVE THE SAFETY REGULATIONS GOVERNING THE USE OF CO2. 4. If POD valves are installed in the main distribution line, remove the Safety Lock pins and manually open. 5. Discharge the CO2 cylinder and check that the trip assemblies have all functioned correctly. 6. Re-insert the Safety Lock pin to the CO2 container. 7. Re-set the pressure trip assemblies. 8. Reconnect cylinders and replace discharged cylinder. 18.2.7 Pressure Switch If a pressure switch assembly is installed in the main CO2 line check that it has operated as follows:- 1. Check that an alarm signal has been given on the main control. 2. Check that the pressure switch operating rod has extended into the transparent cover. 3. When satisfied re-set the pressure switch. 4. Manually close the POD valves and re-insert the Safety Lock pins. 5. Disconnect the empty CO2 container and reconnect the remaining cylinder and replacement.
  • 208.
    © K.F.P.S. LtdDecember 2004 Manual No 59812-400 98 PART 3 MAINTENANCE 19. MAINTENANCE This part of the manual describes procedures which enable a proficient Service Engineer to undertake the regular inspection and testing of a Kidde Fire Protection CO2 System safely in accordance with the recommendation of BS 5306 Part 4. Before going to site the Service Engineer should obtain the relevant details and drawings of the systems to be serviced and refer to report of previous service visits and of fault call-outs since the last service. The Engineer’s signature on the Service Report and on the record card after carrying out the work, is confirmation that the system, on that day, is in complete operational order. It is an advantage to have a witness to this fact, and he should therefore encourage the Customer’s representative to accompany him while he does the work. The first action to take, when arriving at site, is to report to the customer’s representative and to ask if there are any specific instructions with which to comply. Ask if any particular problems have arisen since the last service visit. Ask if any fires have occurred and how the system performed. Similarly, record any false or accidental operation and get reasons. If it is necessary to take some action which may cause inconvenience to the Customer, ask his permission first. Notify all concerned that the fire protection system is being maintained and may be inoperative. Work systematically and in a clean, tidy and professional manner. Consider the possibility of genuine fire alarm occurring while you are working on the system and make appropriate arrangements. Prepare a service report. Submit a copy to the Client, one to the Service Manager and retain a copy. Service visits should be on a six-monthly (minimum) basis. 19.1 PRELIMINARY CHECKS Before commencement of maintenance work check the following:- 1. Check the installation for any structural alternation that could affect the efficiency of the system. 2. Check the protected area for confinement of the extinguishant. If the system has been altered in any way, and/or if the customer’s building or plant has been modified since the last inspection visit, this must be noted on the Service Report. The Client must be informed of any factor jeopardizing the fire protection system. Check if doors and windows are being propped open and would not be shut in the event of a system operation. Report this to the Customer and note it on the report sheet.
  • 209.
    © K.F.P.S. LtdDecember 2004 Manual No 59812-400 99 3. Check that all manual controls are accessible, correctly identified and have not become obscured. 4. Check that the discharge nozzles are unobstructed and are adequately secured. 5. Check that all warning and instruction labels are clearly visible and legible. Check that all necessary safety precautions and operational instructions are clearly stated. 6. Check that the paintwork is in good condition. 7. Check that containers are accessible and that the area is clean, dry and ventilated. 8. Check that pipes and fittings are adequately secured. All piping must be rigidly secured at the nozzle to prevent damage from recoil. 9. Check that all system controls, such as valves, lock-off units, pull boxes, manually or electrically operated devices, are accessible to operating personnel. Any damage must be noted and rectified after obtaining the customer’s official order number for the additional work. Rectification work should be recorded on a report sheet separate from the service report sheet. 19.2 COMPONENT FUNCTION TESTS WARNING DO NOT PROCEED WITH ANY FUNCTIONAL TESTS UNTIL EVERY PRECAUTION HAS BEEN TAKEN TO PREVENT ACCIDENTAL DISCHARGE. ENSURE THAT ALL PERSONNEL IN PROTECTED AREAS KNOW THAT YOU ARE THERE AND OF THE WORK YOU ARE DOING. 19.2.1 General 1. Check that the manifold bracket fixings are secure. 2. Check that the manifold-to-container discharge valve couplings are tight. 19.2.2 Control Head Check the control head as follows:- 1. Make sure that the “Safety and Reset” pin is screwed fully home. 2. Unscrew the pilot gas cylinder from the second head. 3. Remove the “Safety and Reset” pin. 4. Energise the solenoid from the control panel or operate the HAD detection system. The solenoid plunger operates the control head causing the firing pin to be moved downwards by a minimum distance of 3mm, (6mm projection) proving that the solenoid and control head are both operable and have functioned correctly. 5. Check the distance moved by the firing pin. Reset the control panel and/or HAD system. NOTE: The HAD or the solenoid would be damaged if the control head is reset whilst either of them is in the activated mode. 6. After the test has been carried out satisfactorily, reset the control head by screwing the “Safety and Reset” pin fully home and checking that the firing pin does not project by more than 3mm.
  • 210.
    © K.F.P.S. LtdDecember 2004 Manual No 59812-400 100 Push-to-Fire Button 7. Remove the “Safety and Reset” pin. 8. Manually fire the control head by operating the “Push-to- Fire” button. 9. When the manual operation of the “Push-to-Fire” Button has been proved reset the control head by screwing the “Safety and Reset” pin fully home. Pull Box Check the operation of the pull box. 10. Remove the “Safety and Reset” pin. 11. Remove the front cover and glass from the pull box unit. 12. Pull the handle in the pull box firmly and manually fire the control head. 13. Rest the pull cable arrangement. 14. When satisfied reset the control head by screwing the “Safety and Reset” pin fully home. 15. Relocate glass and front cover panel to pull box unit. Pilot Gas Cylinder 16. Screw the “Safety and Reset” pin fully home. 17. Check the pressure is approx 65 bar. If it is below 55 bar the container should be refilled. Reinstatement 18. Refit the pilot gas cylinder to the control head. 19.2.3 Pressure/Manual Release Heads and POD Valves To check the pressure/manual release heads and POD valves proceed as follows: 1. Remove the pressure/manual release heads complete with pilot loops and vents from the CO2 container discharge valves. The entire pilot gas system must remain intact. 2. Remove the Safety Lock pin from each release head and check the manual operation. Manually reset the release head piston and refit the Safety Lock pins when satisfied. 3. Remove the Safety Lock pin from each POD valve and check for manual operation.
  • 211.
    © K.F.P.S. LtdDecember 2004 Manual No 59812-400 101 NOTE: If the POD valves are fitted with indicator switched check that the indication has been given at the control panel that the POD valve is open. 4. When satisfied with the manual operation of the POD valves reset and re-insert the Safety Lock pins. 5. Connect a Nitrogen pilot gas test cylinder to the control head and connect the pilot loop. With the pressure/manual. release heads still removed from the CO2 cylinder, operate the control head thereby releasing the pilot gas (Nitrogen) into the pilot causing the pressure/manual release heads to operate. NOTE: If POD valves are installed in the system check that these have opened before checking the pressure/manual release heads. 6. Check that there are no leaks in the pilot gas system and that the pilot vent bleed, K24051, operates correctly. Sufficient pressure to operate the pressure/manual release heads (and POD valves if fitted) should be maintained in the system for a MINIMUM OF TEN MINUTES. 7. After the POD valves and/or pressure/manual release heads have functioned correctly re-set the control head by screwing the “Safety and Reset” pin fully home. 8. Disconnect the pilot line from the pilot gas cylinder and remove the pilot gas cylinder from the control head. The pilot gas line will now be vented. 9. Manually reset the piston and visually check the plunger in each pressure/manual release head. 10. Reset the control head and replace the test pilot gas cylinder with the full pilot gas cylinder. Tighten the running nut at the control head/pilot cylinder interface. 11. When satisfied, re-connect the pressure/manual release heads to the CO2 container discharge valves. 19.2.4 Pressure Trip The trip may be operated from the pilot line or from the discharge pipework. Check the pressure trip mechanism if incorporated in the system as follows:- 1. Physically lift the pivoted lever as shown in Figure 53 etc, allowing relevant equipment, e.g. fire curtains or dampers, to be operated. 2. After manual operation of the pressure trip has been carried out successfully, re-set all fire curtains, dampers etc. 3. To demonstrate operation of a pressure trip assembly, which is operated from the discharge pipework, release one CO2 cylinder or connect a portable CO2 extinguisher to the manifold. Disconnect all other cylinders. WARNING DO NOT DISCHARGE CO2 WHILE THERE ARE PERSONNEL IN THE AREA. THE ENGINEER CARRYING OUT THE TEST MUST OBSERVE THE SAFETY REGULATIONS GOVERNING THE USE OF CO2. 4. If POD valves are installed in the main distribution line, remove the Safety Lock pins and manually open. 5. Discharge a CO2 cylinder or portable CO2 extinguisher, and check that the trip assemblies have all functioned correctly.
  • 212.
    © K.F.P.S. LtdDecember 2004 Manual No 59812-400 102 6. Re-set the POD valve and re-insert the Safety Lock pin to the CO2 container. 7. Re-set the pressure trip assemblies. 19.2.5 Pressure Switch If a pressure switch assembly is installed in the main CO2 line, check the correct operation as follows: 1. Remove the clear plastic spindle cover, reverse and screw it onto the spindle. 2. Check that an alarm is given when the spindle is pulled out. 3. When satisfied re-set the pressure switch. Chapter 12. NOTE: The switch may be pressure tested by connecting a CO2 container onto the distribution pipework. 19.3 INSTRUCTIONS FOR COMMISSIONING THE SYSTEM AFTER ITS OPERATION 1. Refit the cylinder transport caps. Remove the empty CO2 cylinders. 2. Refill the CO2 cylinders or replace with fully charged cylinder and secure. 3. If distribution valves are fitted check that they are shut. 4. Check nozzles’ orifices for debris; clean if necessary. 5. Re-set all system ancillaries, including pressure switches, pressure trips, dampers, curtains, door or window shutters, ventilators, remote lock-off services and pull boxes. 6. Reset each control head by screwing the “Safety and Reset” pin fully home. Remove the “Safety and Reset” pins and leave them in the possession of an authorised person. 7. Replace the empty pilot gas cylinder with a new or refilled assembly.
  • 213.
    © K.F.P.S. LtdDecember 2004 Manual No 59812-400 103 PART 4 TERMS AND CONDITIONS 20. TERMS AND CONDITIONS Kidde Fire Protection Services LTD 1.0 In these Conditions, the Seller means KIDDE FIRE PROTECTION SERVICES LTD, the Particulars of Contract are the details of the Contract set out overleaf, the Buyer and the Goods are respectively the person and the products specified in the Particulars of Contract as such. Appointed Person means a director or appointed manager of the Seller, and the Contract means the Contract for the sale of the Goods by the Seller to the Buyer comprising the Particulars of Contract and these Conditions. These Conditions shall apply to all contracts of sale with the Seller in relation to the goods and services supplied by the Seller. Formation and Parties 2.0 No express terms other than those contained in these Conditions and the Particulars of Contract shall be part of the Contract, and the Contract may only be varied in writing by an Appointed Person. No representations or warranties relating to the Goods or advice or recommendation on the use of the Goods are binding on the Seller unless confirmed by the Seller in writing in response to a written request of the Buyer specifically referring to this Condition. 2.1 The Contract may be cancelled by the Buyer only with the Seller's written consent which, if given, shall be on the express condition that the Buyer shall pay to the Seller a cancellation charge commensurate with the Seller's costs incurred up to the date of cancellation plus the Seller's loss of profit or, at the Seller's option, a sum equal to ten per cent of the Contract Price. 2.2 Unless otherwise specified, quotations made by the Seller shall automatically lapse if no order is received by the Seller within 30 days of the date of quotation. None of the Seller's distributors, agents or employees are authorised to conclude contracts orally or over the telephone, and quotations, statements in price lists, or sales literature and advertisements do not constitute offers. No contract for the sale of Goods shall be concluded until the Seller has accepted an order of the Buyer by sending to the Buyer an Acknowledgement of Order signed by an Appointed Person. 2.3 The Buyer warrants that all information which it has given to the Seller prior to entering into the Contract is true and correct and the Seller reserves all its rights where it subsequently discovers such information is incorrect. Delivery 3.0 If any delivery time is specified in the Particulars of Contract, this period shall commence on the later of the date of the Seller's written Acknowledgement of Order and the date the Seller receives all the information necessary to allow it to proceed without interruption, or if the Buyer requests any variation to the Contract, the date of the Seller's written confirmation of its agreement to such variation. 3.1 Although the Seller will endeavour to complete the Contract within any specified delivery time or by any specified delivery date, that time or date is an estimate only and the Seller shall not be liable for any reasonable delay in delivery. 3.2 Any delivery time specified shall (in any event) be extended by any period or periods of Force Majeure during which the manufacture or delivery of the goods by the Seller under the Contract is delayed owing to fire, explosion, flood, storm, sabotage, strikes (official and unofficial), riot, acts of war (whether war be declared or not) shortage of labour, power, or materials, delay by the Seller's suppliers, civil commotion, accidents, plant breakdowns, technical difficulties connected with the manufacture or adaptation of the Goods to the Buyer's design or specification, seizure or other action by or compliance with an order of an apparently competent authority and any other event or circumstance beyond the control of the Seller. 3.3 The Seller shall be entitled to withhold delivery of any Goods if at the time delivery is to be made payment is due by the Buyer to the Seller on any account whatsoever. 3.4 The delivery of a greater or lesser quantity of the Goods than the quantity ordered, of other Goods not ordered, or of Goods only some of which are defective, shall not entitle the Buyer to reject Goods that were ordered and are not defective. 3.5 Unless otherwise stated, delivery shall be deemed to take place when the Goods are delivered to the delivery address specified in the Particulars of Contract or if not so specified, at the principal place of business of the Buyer known to the Seller. 3.6 If the Buyer fails to accept delivery of the Goods in accordance with the Contract the Seller may (without prejudice to its other rights against the Buyer) store the Goods at the sole risk and cost of the Buyer. 3.7 The Buyer shall inspect the Goods immediately on delivery thereof and shall within five days from such delivery give notice to the Seller of any matter or thing by reason thereof the Buyer may allege that the goods are not in accordance with the Contract or are defective in material or workmanship. If the Buyer shall fail to give such notice the Goods shall be conclusively presumed to be in all respects in accordance with the Contract and free
  • 214.
    © K.F.P.S. LtdDecember 2004 Manual No 59812-400 104 from any defect which would be apparent on reasonable examination of the Goods and the Buyer shall, as between the Buyer and the Seller, be deemed to have accepted the Goods accordingly. 3.8 The Seller reserves the right to make delivery by instalments and invoice and be paid for each installment separately. Each installment shall be deemed to constitute a separate agreement subject to the terms of the Contract and no failure of or delay in delivery of any installment nor any defect in the contents thereof shall entitle the Buyer to treat the Contract as repudiated with regard to any remaining instalments. Retention of Title 4.0 Notwithstanding delivery, title to the Goods shall not pass to the Buyer until all sums due on any account whatever by the Buyer to the Seller have been paid in full. Until such time the Buyer will hold the Goods as bailee of and in a fiduciary capacity for the Seller and will: (i) keep the Goods marked or stored separately from other goods, so as to be identifiable as the property of the Seller; (ii) deliver the Goods up to the Seller on demand; and (iii) permit the Seller or its agents to enter upon the Buyer's premises in order to retake possession of the Goods. 4.1 Notwithstanding that the property in all Goods to be delivered to the Buyer by the Seller will remain vested as aforesaid until the Seller has received payment in full therefor, the risk of damage to or loss of all or any such Goods will pass to the Buyer upon delivery in accordance with the Contract unless the Buyer shall fail to accept delivery whereupon the risk shall pass to the Buyer on the earliest date on which the delivery could have been made but for such failure on the part of the Buyer. Price 5.0 Unless otherwise stated in the Particulars of Contract, the Contract prices for the Goods shall be: (i) exclusive of VAT, taxes or duties levied on the Seller in the Buyer's country for which the Seller shall be entitled to make additional charges, and shall be exclusive of the costs of delivery and associated packaging and insurance costs which shall be charged separately. (ii) subject to increase by the Seller to reflect any variation in the delivery schedule for or design, quantities or specifications of the Goods made at the request of the Buyer or any delay caused by the failure of the Buyer to provide adequate information or instructions to the Seller. Payment 6.0 Unless otherwise specified in the Particulars of Contract payment for the Goods shall be made in full within 30 days of the date of invoice. Time of payment shall be of the essence. If the Buyer fails to make any payment on the due date then, without prejudice to any other right or remedy available to the Seller, the Seller shall be entitled to suspend any further deliveries to the Buyer, appropriate any payment made by the Buyer to such of the Goods (or the Goods supplied under any other contract between the Buyer and the Seller) as the Seller may think fit (notwithstanding any purported appropriation by the Buyer) charge the Buyer interest (both before and after any judgement) on the amount unpaid at the rate of 4 per cent per annum above Barclays Bank plc base rate from time to time and exercise a lien over any property of the Buyer then in its possession, until payment in full is made. 6.1 Save as aforesaid payments shall be applied to invoices in the order in which they were issued and to Goods in the order in which they are listed in invoices. 6.2 The Buyer shall not be entitled to make any deduction or withhold any sum from the payment from time to time due from it whether by way of set-off, counter claim or otherwise. Warranty 7.0 The Seller warrants for a period of 12 months from invoice date that, in so far as the Goods are of its own manufacture, they shall be free from defects in workmanship or materials at the time of delivery. If any Goods do not conform to that warranty the Seller will at its option: (a) replace the Goods found not to conform to the warranty and such replacements shall be supplied subject to these Conditions; or (b) take such steps as the Seller deems necessary to bring the Goods into a state where they are free from such defects; or (c) take back the Goods found not to conform to the warranty and refund the appropriate part of the purchase price. PROVIDED THAT: (i) the liability of the Seller shall not arise unless the Buyer demonstrates to the Seller's reasonable satisfaction that the Goods have, prior to use, been properly stored and handled and subsequently have not been used in any unusual or abnormal way or in a manner contrary to any instructions or recommendations for use provided by the Seller; (ii) the liability of the Seller shall in no event exceed the purchase price of the Goods; (iii) performance of any one of the above options (as limited by (ii) above) shall constitute an entire discharge of the Seller's liability under this warranty.
  • 215.
    © K.F.P.S. LtdDecember 2004 Manual No 59812-400 105 7.1 The foregoing warranty is conditional upon: (a) the Buyer giving written notice to the Seller of the alleged defect in the Goods, such notice to be received by the Seller within 7 days of the time when the Buyer discovers or ought to have discovered the defect and in any event within one year of delivery of the Goods; (b) the Buyer affording the Seller a reasonable opportunity to inspect the Goods and, if so requested by the Seller, returning the allegedly defective Goods to the Seller's works, carriage pre-paid, for inspection to take place there; (c) the Buyer making no further use of the Goods that are alleged to be defective after the time at which the Buyer discovers or ought to have discovered that they are defective. 7.2 The Seller further undertakes that, in so far as the Goods are not of its own manufacture, it will pass on to the Buyer the benefit of any guarantees or indemnities given to it in respect of such Goods by its own suppliers. 7.3 Save as provided in paragraphs 1 and 3 of this clause, in clause 2 and in section 12 of the Sale of Goods Act 1979: (i) all conditions and warranties, express or implied, as to the quality or fitness for any purpose of the Goods are hereby expressly excluded; and (ii) except in respect of death or personal injury caused by the Seller's negligence, or in respect of liability under the Consumer Protection Act 1987, the Seller shall not be liable for any loss or damage (whether direct, indirect or consequential) howsoever arising which may be suffered by the Buyer. It is hereby expressly declared that any statements as to quality made by the Seller do not form part of the description of the Goods. Limits of Liability 8.0 The Buyer must satisfy itself of the suitability of the Goods for the purposes for which they are purchased, and must comply with any directions, instructions or warnings as to the use storage or handling of the Goods given by the Seller. The Buyer must also ensure that the Goods comply with all local approvals and standards relating to the use to which they are to be put, and without prejudice to the generality of paragraph 3 above, all recommendations and advice given by or on behalf of the Seller to the Buyer as to the methods of storing, applying or using the Goods the purposes to which the Goods may be applied and the suitability of using the Goods in any manufacturing process or in conjunction with any other materials are (except when given pursuant to a request of the Buyer under clause 2) given without liability on the part of the Seller, its servants or agents. 8.1 In the event that, notwithstanding the provisions of paragraphs 7.3 and 8.0 above, the Seller is found liable for any loss or damage suffered by the Buyer, that liability shall in no event exceed the purchase price of the Goods. 8.2 Nothing in these Conditions or in the Particulars of Contract shall affect or limit the validity or application of any customer warranty with the benefit of which any of the Goods are sold and if the Buyer, being an end-user, is able to benefit from such a warranty the terms thereof shall prevail over the terms of these Conditions and the Particulars of Contract. Bankruptcy and Liquidation 9.0 This clause applies if the Buyer becomes (or appears to the Seller to be about to become) bankrupt, or goes (or appears to the Seller to be about to go) into liquidation, has a petition presented or threatened for its winding-up, suspends payment of debts or makes any arrangement with creditor, fails to pay in accordance with the terms of the Contract, has an administration order made or a petition for such an order presented or threatened, has a receiver appointed over all or any part of its assets or is answerable under the law of the country having jurisdiction over the Buyer or its assets for any of the foregoing, or is in breach of any other term of the Contract. 9.1 If this clause applies, then without prejudice to any other right or remedy available to the Seller, the Seller shall be entitled to cancel the Contract or suspend any further deliveries under the Contract without liability to the Buyer, and if the Goods have been delivered but not paid for the price shall become immediately due and payable notwithstanding any previous agreement or arrangement to the contrary. Indemnities 10.0 The Buyer shall indemnify the Seller in respect of all damage injury or loss occurring to any person or property and against all actions, suits, claims, demands, charges or expenses in connection therewith arising from the condition or use of the Goods in the event that the damage injury or loss shall have been occasioned partly or wholly by the carelessness of the Buyer and his servants, contractors or agents or by any breach by the Buyer of either its obligations to the Seller hereunder or of any patent, design or other intellectual property right of a third party. 10.1 The Buyer undertakes that it shall not solicit purchasers for the Goods outside countries which for the time being are Member States of the European Economic Area ("EEA State") or sell the Goods to any person who it knows is intending to use or resell the same outside the EEA States PROVIDED THAT nothing in this clause or elsewhere in these Conditions shall be construed so as to prevent the Buyer from selling or distributing the Goods in or to any EEA State to any person intending to use or resell the same in any EEA State. Notices 11.0 Any notice required or authorised to be given hereunder shall be in writing and shall be served by registered mail sent to the address given above or any other address notified for the purpose and shall be deemed to be served
  • 216.
    © K.F.P.S. LtdDecember 2004 Manual No 59812-400 106 seven days after proven despatch, provided that any other mode of service shall be valid if the said notice or other communication is actually received by the addressee. Force Majeure 12.0 The Seller shall not be liable to the Buyer if unable to carry out any provision of the Contract for any reason beyond its control including (but without limitation) Act of God, legislation, war, civil commotion, fire, flood, drought, failure of power supply, lock out, strike, stoppage or other action by employees or third parties in contemplation or furtherance of any dispute or owing to any inability to procure parts or materials required for the performance of the Contract. Waiver 13.0 Any failure by the Seller to enforce any or all of these conditions shall not be construed as a waiver of the Seller's rights. Construction and Jurisdiction 14.0 The proper law of the Contract shall be English law and the English courts shall have jurisdiction over any disputes arising thereunder. This edition of the Conditions of Sale dated October 2002 supercedes all previous editions.
  • 217.
    © K.F.P.S. Ltd59812-402 Issue B December 2004 Page ii High Pressure Carbon Dioxide Fire Protection Equipment Flow Calculation Program KFP CO2 Version 2.0.3 User’s Manual Manual No. 59812-402 Issue B December 2004
  • 218.
    © K.F.P.S. Ltd59812-402 Issue B December 2004 Page ii Contents COVER..................................................................................................................................................... i CONTENTS .............................................................................................................................................. ii FOREWORD ............................................................................................................................................ iii 1 OVERVIEW 1 1.1 Total Flooding.............................................................................................................................. 1 1.2 Local Application.......................................................................................................................... 2 2 HYDRAULIC FLOW CALCULATION PROGRAM (KFP CO2) 3 2.1 Commands Available ................................................................................................................... 4 2.1.1 System Information ...................................................................................................................... 4 2.1.2 Hazard Information....................................................................................................................... 6 2.1.3 Piping Model Data...................................................................................................................... 11 2.1.4 Calculate and Display Results ................................................................................................... 18 2.2 Output / Print Data and Results.................................................................................................. 21 APPENDIX 23 A-1 Equivalent Length Reference Tables ......................................................................................... 23 A-2 KFP CO2 Calculation Example #1.............................................................................................. 24 A-3 KFP CO2 Software Hot Keys Reference List.............................................................................. 31
  • 219.
    © K.F.P.S. Ltd59812-402 Issue B December 2004 Page iii Foreword Kidde Fire Protection Services Ltd reserves the right to revise and improve its products as it deems necessary without notification. This publication is intended to describe the state of this product at the time of its publication, and may not reflect the product at all times in the future. The software screen prints depicted in this manual are presented for reference purposes only and may not reflect the most current version of the High Pressure CO2 Flow Calculation Software (KFP CO2 Version 2.0.3). This technical manual provides the necessary information for designing and performing flow calculations for a Kidde Fire Protection CO2 Engineered System. This publication, or parts thereof, may not be reproduced in any form, by any method, for any purpose, without the express written consent of Kidde Fire Protection Services Ltd. Any questions concerning the information presented in this manual should be sent to the address below. Copyright ©2004 Kidde Fire Protection Services Ltd. All Rights Reserved. Thame Park Road, Thame, Oxfordshire, OX9 3RT, UK
  • 221.
    © K.F.P.S. Ltd59812-402 Issue B December 2004 Page 1 1 OVERVIEW Carbon dioxide (CO2) is a universally accepted extinguishing agent for fires involving flammable liquids, electrical equipment and other special hazards such as record and fur storage vaults, where ordinary fire protection with water could cause as much or more damage than the fire itself. Carbon dioxide is an odourless, colourless gas at ordinary temperatures. When used for fire protection, it is stored under pressure in high pressure cylinders. Under normal conditions, the gas is compressed into a liquid. The colder the storage temperature, the denser the liquid. When a carbon dioxide system is released, the gas pressure in the storage container propels the liquid through pipe lines to discharge nozzles. Carbon dioxide vapour will continue to be expelled from the storage container after all the liquid is gone. This “gas point” occurs when about 70 percent by weight of a high pressure cylinder’s contents have been discharged. This is an important feature to keep in mind when designing a system. Carbon dioxide extinguishes fires mainly by smothering; that is, by displacing air and its oxygen, which is needed to sustain burning, or rapid oxidation. An average concentration of 34 percent by volume will handle fires involving most common materials. Other materials may require an inert atmosphere of up to 100 percent. Some burning materials, such as stacked paper, furs, non-plastic electrical insulation and baled cotton, oxidize at very low oxygen levels and there is so much oxygen contained in pores or other internal spaces that they must be “soaked” in a smothering atmosphere for periods of from five (5) minutes to hours to allow CO2 to reduce the oxidation level to a point where new heat generated is less than the heat loss to surrounding material or atmosphere. There are two basic methods of applying carbon dioxide: 1) Total Flooding 2) Local Application. 1.1 Total Flooding Total flooding is used when the hazard is enclosed in a room, compartment or other type of housing. BS5306 Pt 4 / NFPA 12 (2000 edition, Section 2-1.2) states that total flooding shall be used “where there is permanent enclosure around the hazard that adequately enables the required concentration of carbon dioxide to be built up and to be maintained for the required period of time.” If the space is acceptably tight; if openings that can leak carbon dioxide, such as doors, windows and ducts can be closed; and if forced draft devices, such as fans, can be shut off, the amount of carbon dioxide required and the duration of discharge are readily calculated on a volume basis for the types of material involved. The entire contents of the storage container, liquid and vapor, are usable. There are circumstances, however, wherein some opening, small but critical, cannot be closed. Or, as with rotating electrical or other motorised equipment, it takes a considerable period of time for the equipment to come to a stop, during which essential ventilation continues. Total flooding often is used in these situations, but additional carbon dioxide is applied to “screen” the openings and/or to replace leakage. With large generators, which may have deceleration times of twenty (20) minutes or more and hazards with low flash point fuel or lube oil and exposed hot metal surfaces that require a cool down period, a supplementary extended discharge of carbon dioxide is applied during the period.
  • 222.
    © K.F.P.S. Ltd59812-402 Issue B December 2004 Page 2 1.2 Local Application Local application is used when the hazard is open or is not enclosed sufficiently for flooding. Rate and duration of application, positioning of nozzles, arrangement of discharge piping and the usable capacity of storage containers are critical factors as the discharged carbon dioxide is soon dissipated and has no continuing effect. System design for local application is considerably more complex than for flooding an enclosure. The types of nozzle to be used and their locations must first be determined within accurate limits.
  • 223.
    © K.F.P.S. Ltd59812-402 Issue B December 2004 Page 3 2 HYDRAULIC FLOW CALCULATION PROGRAM (KFP CO2) The high pressure CO2 calculation program (KFP CO2) has been written within the WindowsTM environment. Installation procedures will be provided with the CD. (It is our assumption that the user has a basic knowledge of this operating system and its operation will not be addressed within this manual.) The computer program will establish pipe sizes as well as calculate terminal pressures, discharge time, and nozzle drill sizes. The primary requirement for a proper calculation is to insure that the system is modelled into the computer program correctly. Therefore, the input parameters may be printed out as well as the calculation results. This makes it possible to verify the input data against the intended design parameters and/or the actual installation. It is possible to input either kilograms required for each nozzle fixed flow rate or the existing nozzle drill size (fixed code). The Kidde Fire Protection Carbon Dioxide Flow calculation program has been divided into three main areas: 1) Commands Available 2) Output 3) File Utilities. NOTE THE CALCULATION INFORMATION CAN BE ENTERED AND DISPLAYED IN METRIC OR IMPERIAL UNITS. IT CAN BE CONVERTED AT ANY TIME UPON COMMAND BY SIMPLY USING THE METRIC CHECK BOX. Figure 2.1 – Commands Available
  • 224.
    © K.F.P.S. Ltd59812-402 Issue B December 2004 Page 4 2.1 Commands Available This area has been subdivided into the following categories: System Information Hazard Information Piping Model data Calculate and Display Results Clear All Current Data 2.1.1 System Information Within the Systems Information screen there are four submenus: Project Data Revision Cylinder Data Configuration Variables Figure 2.1.1 – System Information
  • 225.
    © K.F.P.S. Ltd59812-402 Issue B December 2004 Page 5 2.1.1.1 Project Data The Project Data section consists of the following data: 1. Project Number: Reference number 2. Project Name: Name of project or end user 3. Site Location: Installation location 4. Hazard Name: Name of protected hazard 2.1.1.2 Revision This data field is used to track versions/changes on a specific data file and/or submittal. 2.1.1.3 Cylinder Data The Cylinder Data section consists of the following data: 1. Number of Cylinders: The number of cylinders required to contain the amount of CO2 required for a discharge. This value may be entered by one of two means: the value may be directly entered into this field or a value may be selected from the pop-down window, which may be accessed by clicking onto the arrow at the right of the data field. 2. Cylinder Capacity: The CO2 cylinders are available in only 6.8, 22.6, 36.2, and 45 kg capacities. 3. Storage Pressure (BAR): This is a fixed selection. All high pressure CO2 calculations are based upon an average storage pressure of 58.6 bar @ 21 deg C (850 psi). 4. Pipe Length Factor: The length of the main piping run affects the vapour time associated with a CO2 discharge. The longer the run, the greater the amount of CO2 vaporised within the piping. The discharge rate of each nozzle must be increased to draw more liquid CO2 into the piping network to compensate for the vapour. Table 2.1.1.3-D is a guideline for the pipe length factor. 5. Exclude Pipe Size: Occasionally, it is desirable to exclude or inhibit specific pipe sizes from being selected and used by the calculation program. To exclude a pipe size from being selected, simply choose the specific size or “None”. Only a maximum of 2 sizes may be excluded from the calculation. The sizes in this list represent all the pipe sizes possible for both steel pipe and tubing. NOTE THE USER SHOULD BE AWARE AS TO WHICH PIPE SIZES ARE APPLICABLE TO THE PIPE TYPE THAT WILL BE UTILIZED IN THE PIPING NETWORK. 6. Pipe Temperature: The initial pipe temperature should be entered here to accurately calculate the vapor portion of the discharge. Table 2.1.1.3-D Pipe Length Factor Distance Factor 0 - 15 Meters (0-50 Feet) 1.10 15 - 30 Meters (50-100 Feet) 1.20 30 - 90 Meters (101-300 Feet) 1.30 90 - 120 Meters (301-400 Feet) 1.40 120 - 150 Meters (401-500 Feet) 1.50
  • 226.
    © K.F.P.S. Ltd59812-402 Issue B December 2004 Page 6 Figure 2.1.1.3 – Exclude pipe sizes 7. Loss Factor (%): To compensate for enclosure tightness or lack thereof, the loss factor (expressed in percentages) will proportionally increase the amount of CO2 storage required to assure a minimum concentration. The default value is 10%. 8. Minimum Temperature: For High Pressure CO2 systems where the cylinders may be exposed to temperatures below 0°C (32°F) for local application systems or -18°C (0°F) for total flooding systems. 9. Main/Reserve: Adjusts the quantity of equipment for the Bill of Material printout. 2.1.1.4 Configuration Variables 1. Report Title: The data entered here will appear in the general heading area on all printouts. The intended use is to allow Kidde Fire Protection distributors to incorporate their company name into the printouts. 2.1.2 Hazard Information Within the Hazard Information screen there are three subcategories: Hazard Data Area Area Nozzle List
  • 227.
    © K.F.P.S. Ltd59812-402 Issue B December 2004 Page 7 2.1.2.1 Hazard Data The first section is used to input the hazard area name(s) for reference, type of CO2 protection, concentration and temperature. More than one area name may be included; however, each area name must be entered separately. Figure 2.1.2.1 – Hazard Data A. Area Name: Enter the name of the specific area - commas are not allowed. B. Type: Select the appropriate hazard type and the calculation module will perform the necessary cross checks needed to determine if the calculated system’s discharge performance is satisfactory. See the chart on the following page for some examples of the cross checks performed. The latest edition of BS5306 pt 4 / NFPA 12 should be consulted prior to determining the fire type for each hazard.
  • 228.
    © K.F.P.S. Ltd59812-402 Issue B December 2004 Page 8 Figure 2.1.2.1 – System Type Extended Discharge A fifth fire type of “Ext’d Discharge” is for those hazards that require an extended discharge. The program accommodates this by requesting a few bits of information and then compares the calculated results to what the calculated requirements are based on the information supplied to the program. Fire Type Required Duration Comparison TF Surface <=60 seconds Did the calculated requirement of gas discharge in time? TF Deep Seated <=420 seconds Did the hazard achieve 30% concentration in 2 minutes, and the remainder of gas required in less than 7 minutes? LA Rate by Area >=30 seconds Was there at least 30 seconds of LIQUID discharge from each nozzle? LA Rate by Volume >=30 seconds Was there at least 30 seconds of LIQUID discharge from each nozzle? Ext’d Discharge See below
  • 229.
    © K.F.P.S. Ltd59812-402 Issue B December 2004 Page 9 When “Ext’d Discharge” is chosen, the Extended Discharge Input form is shown. There are three choices available based on the hazard: Dry Electrical Hazard HydroElectric Generator Job Specification 1. Dry Electrical Hazard: A typical hazard of this kind is anything that requires a 30% concentration held for some period of time, i.e., a transformer room or a compartmentalised gas turbine. If this option is chosen, simply fill in the volume, choose a loss factor per minute (usually between 1% & 3% is sufficient for enclosures that have average leakage), and type in the cool-down (or hold) time in minutes. After supplying these three pieces of information, press the Compute button. Next an Extended Discharge Wizard Dialog box will be shown - fill in the design criteria for the INITIAL discharge. Based on the information you supply, the program will be able to compute the extended discharge CO2 quantity and the rate of discharge per minute. If the initial discharge design criteria needs to be modified, simply depress the “Edit Initial Discharge Information” and the program will re-compute the requirements for the extended discharge. When finished, simply press the Close button and the information from this form will automatically transfer to the Hazard Data Screen. Next add the required amount of discharge nozzles. 2. HydroElectric Generator: If this option is chosen, simply type in the volume and select the cool-down time from the drop-down list. After completing this, press the Compute button. The software will use Table 4 from Design Manual 59812-401 to calculate the amount of gas required and then calculate the appropriate rate of discharge per minute. After this is complete, press the Close button and the information from this form will automatically transfer to the Hazard Data Screen. Then just add the required amount of discharge nozzles. 3. Job Specification: Sometimes manufacturers supply a specification for how the extended discharge shall perform. In this case, select this option. You then fill in all the fields, i.e., volume, CO2 quantity, rate, and the cool-down time. Next, press Compute so the program can compute/set the necessary values needed for the calculation module. When this is complete, press the Close button and the information from this form will automatically transfer to the Hazard Data Screen. Next, just add the required number of discharge nozzles. Figure 2.1.2.1.2 Figure 2.1.2.1.1
  • 230.
    © K.F.P.S. Ltd59812-402 Issue B December 2004 Page 10 C. % (% Concentration): For Total Flooding Systems only, this is the minimum percentage of CO2 concentration required for this specific area. Refer to BS5306 pt 4 / NFPA12 for further information. D. Temperature: For Total Flooding Systems Only, enter the normal ambient temperature for the area. If the area has a temperature in excess of 100°C (212°F) or below -18°C (0°F), the program will automatically compensate an additional 2% CO2 Gas for every 5°C above 100°C and 2% CO2 gas for every 1°C below -20°C. 2.1.2.2 Area Enter the appropriate values in the Length, Width and Height field and the program will compute the correct room volume and amount of agent required automatically. As you will note, the Width and Height fields are both set to a default of 1. If the volume is known, enter it into the Length data field and leave the Width and Height fields as 1. Once the data has been entered, clicking on the Add button will assign this data to the current hazard. 2.1.2.3 Area Nozzle List Each area must have one or more nozzles associated with it. Each nozzle will have a unique ID number. These numbers are automatically assigned and are incremental, starting with 301. The proper type of nozzle must be chosen for the type of hazard area being protected. Once a nozzle has been added, a blank line will appear at the bottom of the nozzle grid. If no blank line appears at the bottom of the grid, the nozzle has not been added. To change the nozzle type, simply click on the row(s) and choose the correct nozzle type from the list. To change an existing nozzle number, select the nozzle to be changed and type in the new nozzle number. Figure 2.1.2.3 – Area Nozzle List
  • 231.
    © K.F.P.S. Ltd59812-402 Issue B December 2004 Page 11 2.1.3 Piping Model Data The piping information is the heart of the system model. This area is where the pipe and kgs / nozzles data is recorded. Several pieces of data are required and Section 2.1.3.2 provides a brief description of each of the columns. Figure 2.1.3 – Piping Model Data 2.1.3.1 System Design Considerations for Sectioning of Pipe The first step is to make an isometric sketch of the system. All rises and drops should be noted, as well as other known pertinent data such as manifold size and pipe schedule. A separate pipe section is required for any one of the following conditions: Change in Pipe Diameter. Change in Pipe Schedule. Divisions of Flow (as at a tee). Rise or drop in elevation greater than 1.52 meters (5 feet). 1. Terminal Points 1. All terminal points should progress in logical numeric succession. The starting point (point 1) is located at the bottom of the first cylinder’s dip tube. From here the subsequent points are plotted moving toward the discharge nozzles.
  • 232.
    © K.F.P.S. Ltd59812-402 Issue B December 2004 Page 12 2. A terminal point is placed upstream of (before) a tee where a division of flow occurs. Where flow is routed through only one branch of a tee, a terminal number can be omitted if none of the four conditions mentioned above occurs. 3. A Pressure Operated Directional Valve (POD) should be kept as close to the beginning of a section as possible. A POD valve can begin a section by placing the terminal point at the valve’s inlet. 4. A terminal point should be located at the start of a rise or drop of greater than five feet. 5. Number the terminal points consecutively to the end of each distribution section. Do not duplicate numbers on the same calculation. 6. Multi-hazard systems (utilising POD valves) demand close attention. The hazard requiring the greatest flow rate (not necessarily the greatest quantity of CO2) should be calculated first, since it will establish the size of the manifold and main discharge header. These sizes must be used in calculations for the other hazards. 2.1.3.2 Column Headings and Descriptions 1. Nodes: These points identify the section of pipe, nozzle or a cylinder that is being modelled. 2. Start: This indicates the beginning of a pipe, manifold, or cylinder section. 3. End: This indicates the end of the same section. If this line is a nozzle, clicking the button that appears in this cell will cause a Hazard Nozzle Reference Box to be visible. Here the user can scroll through the hazards and select the desired nozzle, or simply type in the nozzle number into the “end” cell. 4. Cylinder Qty: The quantity of cylinders flowing through this specific section of manifold piping. Enter a quantity of zero (0) to indicate distribution piping. 5. Pipe Len: Length of pipe in feet or meters, as applicable, including all elevation changes. 6. Elev: Change of elevation within the pipe section, expressed in feet or meters. 1. A positive number indicates a rise in elevation. 2. A negative number indicates a drop in elevation. 3. A zero indicates no change in elevation. Figure 2.1.3.2.C – Hazard nozzle reference box
  • 233.
    © K.F.P.S. Ltd59812-402 Issue B December 2004 Page 13 7. Type: Type of pipe to be installed. There are several types available, accessible through the pop- down, for use: 1. 40T: Schedule 40 pipe with threaded fittings. Select for BS5306 systems using BS1387 pipe, up to and including 40mm. 2. 40W/V Schedule 40 pipe with welded or grooved / Victaulic fittings. Select for BS5306 systems using BS1387 pipe, up to and including 40mm. 3. 80T: Schedule 80 pipe with threaded fittings. Select for BS5306 systems using BS3601 or API5L pipe. 4. 80W/V: Schedule 80 pipe with welded or grooved / Victaulic fittings. Select for BS5306 systems using BS3601 or API5L pipe. 5. Tubing: Stainless steel tubing with compression fittings. Not to be used in BS5306 systems Table 2.1.3.2.G5 - Tubing Chart Tubing OD inches mm Wall Thickness (inches) 1/4 8 0.065 5/16 9 0.065 3/8 10 0.065 1/2 15 0.065 5/8 18 0.065 3/4 20 0.095 7/8 22 0.095 1 25 0.095 1-1/4 32 0.188 1-1/2 40 0.188 2 50 0.188 All tubing to be either: Grade 304 seamless (ASTM A-213, A-269) Grade 304 welded (ASTM A-129, A-269) Grade 316 seamless (ASTM A-213, A-269) Grade 316 welded (ASTM A-249, A-269) Grade 304L and 316L Tubing is NOT allowed.
  • 234.
    © K.F.P.S. Ltd59812-402 Issue B December 2004 Page 14 Figure 2.1.3.2.7 – Type of Pipe 8. Size: The size of pipe in the section. When a pipe size of “0" is chosen, the program will automatically calculate the pipe size required. Depending on the type of pipe chosen under the pipe type column, the appropriate pipe sizes will be displayed in the pipe size drop down list; i.e., if 40T is chosen, a size of 22 cm (7/8") will not be available. Figure 2.1.3.2.8 – Pipe Size
  • 235.
    © K.F.P.S. Ltd59812-402 Issue B December 2004 Page 15 9. Fittings 90's: Indicates the number of 90°elbows in the pipe section. When 45° elbows are used, they are treated as an equivalent number of 90° elbows. In this case, 0.5 would be inserted for each 45° elbow and included in the 90's field. Figure 2.1.3.2.10.1 – Tees and Valves 10. Tees/Valves: The default for this section is “None.” For sections where tees or selector valves are used, the following choices are available: 1. Thru: The beginning of the pipe section begins with a thru tee. If the side branch of a tee is used to provide pressure for tripping a pressure switch or pressure release, it is treated as an equivalent number of elbows. In this case, 0.6 would be included in the 90's field. 2. Side: The beginning of the pipe section begins with side tee. If one of the thru branches of a tee is used to provide pressure for tripping a pressure switch or pressure release, it is treated as an equivalent number of elbows. In this case, 2.0 would be included in the 90's field. 3. Dirt Trap (Blow Out): The equivalent length of the dirt trap fittings will automatically be included in the calculation program. Figure 2.1.3.2.10.2 depicts a typical dirt trap arrangement. Figure 2.1.3.2.10.2
  • 236.
    © K.F.P.S. Ltd59812-402 Issue B December 2004 Page 16 4. Pressure Operated Directional Valve (POD): The beginning of the pipe section begins with a POD valve. The equivalent length of the valve will automatically be included in the calculation program. If a pipe type of “Tubing” was chosen, it will be automatically changed to 40T. 5. Thru & POD: To save time by avoiding additional lines of piping data input, if the pipe section begins with a thru tee and is followed by a POD selector valve, the pipe modelling can be configured as one line of input. All fitting equivalent lengths will automatically be included with the input. If a pipe type of “Tubing” was chosen, it will be automatically changed to 40T. 6. Side & POD: Same as above but using a side tee instead of a thru tee. 7. Ball Valve: When the section of piping contains a ball valve for purposes such as lockout or isolation, the equivalent length of the valve will automatically be included in the calculation program. If a pipe type of “Tubing” was chosen, it will be automatically changed to 40T. 8. Check Valve: When the section of piping contains a check valve, i.e., a main with reserve system, the equivalent length of the check valve will automatically be included in the calculation. If a pipe type of “Tubing” was chosen, it will be automatically changed to 40T. 11. Fix Code: This default button should be on when the values in the “Kgs Required” column indicate the actual nozzle code or drill diameter in inches for a particular nozzle. Flow Rate: This default button should be on when the values in the last column indicate the discharge rate in kgs (pounds) per minute to be discharged from a nozzle. To set the rate for a particular nozzle, select the far right cell, click the Flow Rate default button, and then either type the flow rate in or use the drop down list and select the “Get Rate” option. The computer will automatically calculate and display the required flow rate needed for that particular nozzle. Alternatively, you can set all the flow rates simultaneously after finishing the piping model by following the above steps, but instead of selecting “Get Rate,” select “Set All.” Figure 2.1.3.2.11 – Flow Rate
  • 237.
    © K.F.P.S. Ltd59812-402 Issue B December 2004 Page 17 NOTE THE “GET RATE” AND “SET ALL” FUNCTIONS ONLY WORK FOR TOTAL FLOODING HAZARDS AND FOR HAZARDS THAT UTILIZED THE EXT’D DISCHARGE, THE RATE MUST BE DETERMINED BY THE LOCAL APPLICATION NOZZLE SELECTOR SLIDE RULE AND INPUTTED MANUALLY. UNLESS A LOW RATE ORIFICE NOZZLE IS SELECTED FOR A HAZARD, ALL FLOW RATES WILL DEFAULT TO A MINIMUM OF) 4.54 KG/MIN (10 LBS/MIN). THIS IS TO INSURE THAT THE NOZZLE WILL NOT FREEZE UP AND CLOG THE DISCHARGE PIPE. 2.1.3.3 Add, Copy & Paste, Insert, and Delete 1. Add: The Add button works similarly to the Add buttons on the previous screens. Clicking the Add button will add a blank line to the bottom of the data grid. Other ways to “Add”: Function key F5, the Right Arrow key (if you are in the last column of the last row), or depressing the Shift and Insert keys simultaneously. 2. Copy & Paste: Click the Copy button. Alternatively, you can depress the F9 key. Select any cell in the row or rows desired to be copied. To copy multiple rows at one time, simply click on any cell in the first row to be copied and while continuing to depress the left mouse button, highlight the remaining rows. Select a cell in the row where you want to paste the copied rows. Press the Paste button. Alternatively, you can depress the F10 key. NOTE ONLY CONSECUTIVE ROWS CAN BE COPIED AT ONCE. THE LINES WILL BE INSERTED STARTING AT THE ROW OF THE CELL THAT IS HIGHLIGHTED. YOU CAN PASTE THIS INFORMATION AT ANY TIME AND AS MANY TIMES AS NECESSARY WITHOUT RESELECTING THE ROWS TO BE COPIED. 3. Insert: The Insert button is used to insert a line of data into the data grid in a specific location other than at the next available position at the bottom of the grid. In order to insert a line, click onto the highest line in the data grid that must be moved down and depress the Insert button. This can also be accomplished using function key F7 or by depressing the Insert key. 4. Delete: The Delete button is used to delete a line of data in the data grid. Highlight the data line within the data grid by clicking on it with the mouse. Click on the delete button. A verification message will appear to validate the request. Should you confirm the request, the data line will be deleted and any data lines below it will be moved up to compensate for the deleted line of data. This can also be accomplished using function key F8 or by depressing the Shift and Delete keys simultaneously. 2.1.3.4 Fix Pipe After running a calculation, it is always recommended to Fix Results (see paragraph 2.1.4.1.3). After this is done, the input data can be fixed to represent the pipe sizes, pipe schedules, and actual nozzle codes that were determined by the calculation program. This is useful for “as-built” modifications, etc. NOTE THIS OPTION IS ONLY AVAILABLE AFTER A “FIX RESULTS” CALCULATION HAS BEEN PERFORMED.
  • 238.
    © K.F.P.S. Ltd59812-402 Issue B December 2004 Page 18 2.1.4 Calculate and Display Results By clicking on the “Calculate and Display Results” button, the piping data file will be passed on to the calculation program for processing. Once the processing is completed, the results will be displayed on four different screens: Calc Results Nozzle BOM Nozzle Info Discharge Info 2.1.4.1 Calc Results 1. System Information: This section of the Results screen indicates the cylinder quantity, size, pressure and temperature as entered in the System Information Screen. Inhibited/Excluded pipe sizes are also noted. Figure 2.1.4.1 – Calculation Results – System Information 2. Piping: 1. Section Nodes: The starting and ending nodes for a particular section of the pipe model. 2. Nominal Pipe Size: The computed or inputted pipe size and schedule.
  • 239.
    © K.F.P.S. Ltd59812-402 Issue B December 2004 Page 19 NOTE IF TUBING WAS CHOSEN RATHER THAN PIPE, THE CALCULATION RESULTS PRINTOUT WILL GIVE INFORMATION ON THE MINIMUM WALL THICKNESS (IN INCHES) THAT IS REQUIRED FOR EACH SIZE OF TUBING. 3. Length: Length of pipe within the section, including elevation changes. 4. Elev: The length of an elevation change within the section of pipe. 5. EQL: Total equivalent length of the section of pipe, including pipe, elbows, tees, couplings unions, valves, and additional information inputted into the equivalent length column of the data file. 6. Section Flow: The flow rate through the pipe section. 7. BAR: The pressure at the termination of the section. 8. Nozzle Flow: The flow rate through the pipe section and nozzle. 9. Nozzle Code: The calculated/ideal nozzle code. 3. Fix Results: This will run one additional calculation using the pipe sizes and actual nozzle sizes available. It is recommended to always use this feature to ensure that the system will be acceptable and meet code utilising actual available nozzle codes. Figure 2.1.4.1.C – Fix Results – Nozzle Summary
  • 240.
    © K.F.P.S. Ltd59812-402 Issue B December 2004 Page 20 2.1.4.2 Nozzle BOM The nozzle bill of materials will provide the ordering Bill of Materials. This will include quantity, nozzle type(s), code(s) required and the Kidde Fire Protection stock number. Figure 2.1.4.2 – Nozzle BOM 2.1.4.3 Nozzle Info (Nozzle Summary) Similar to the Bill of Materials, the nozzle information individually lists each nozzle along with comparing its calculated code vs. its actual code. The actual code is the closest manufactured code available. Figure 2.1.4.3 – Nozzle Summary
  • 241.
    © K.F.P.S. Ltd59812-402 Issue B December 2004 Page 21 2.1.4.4 Discharge Information The discharge information screen provides evaluation data in the form of average vapour and liquid CO2 discharge times, and weights of CO2 discharged. Also included is the maximum vapour time achieved by a nozzle within the CO2 system, along with each nozzle’s residual vapour discharge. Here a comparison is made as to how much gas is required in a given amount of time and how much gas is discharged at the end of the discharge period for each hazard. Figure 2.1.4.4 – Discharge Information 2.2 Output/Print Data and Results This screen will allow the user to send both the results of the calculation and/or the input data used for the calculation to a selected printer. A Bill of Materials option is also available to provide a basic BOM based on the flow calculation. 2.2.1 Items to Print 1. Input Data Listing: When this option is selected, the program will output the data file. 2. Calculation Results: The selection of this option will output the results of the calculation. 3. BOM: The mechanical High Pressure CO2 System Bill of Material, including pipe and pipe fittings. Once the BOM has been printed, the system must be recalculated before printing the BOM again.
  • 242.
    © K.F.P.S. Ltd59812-402 Issue B December 2004 Page 22 Figure 2.2 –Output/Print Data and Results 4. Print CO2 Requirements: Selecting this option will print the CO2 requirements for each individual hazard (not applicable to LA Rate by Area and LA Rate by Volume hazard types). A step by step walk-through of how the requirement was calculated will be printed. This information can be sent directly to a printer to obtain a hard copy (useful for submitting to authorities having jurisdiction, etc.) or it can be printed to a text file, which can then be entered into AutoCAD or a word processing program. NOTE IF YOU DO NOT HAVE ANY TOTAL FLOODING HAZARDS DEFINED, THIS OPTION WILL NOT BE AVAILABLE. 2.2.2 Output Units 1. Metric: This selection will produce a metric unit output. 2. Imperial: This option will output the required information with standard English units. 2.2.3 Configure Printer There are numerous types of printers on the market and the program is designed to incorporate a wide range of printers. It is advisable to click on Configure Printer to verify the current Windows selected printer. There are virtually hundreds of fonts available in the industry today. Even though the program will accept and use a number of them, the suggested font is ARIAL, which is commonly found within the Windows list of available fonts. However, there are a number of acceptable fonts and by selecting and trying these fonts, based on the numerous styles and types of printers, Kidde Fire Protection cannot assure you of satisfactory results. The printout uses various configurations and sizes to produce its hard copy printout. 2.2.4 Print Clicking on this command will start the printing or writing of the selected data.
  • 243.
    © K.F.P.S. Ltd98812-402 Issue B November 2004 Page 23 FLOW CALCULATION SOFTWARE USER`S MANUAL - APPENDIX A-1 EQUIVALENT LENGTH The equivalent length for all components is automatically calculated within Kidde Fire Protection software.
  • 244.
    © K.F.P.S. Ltd98812-402 Issue B November 2004 Page 24 FLOW CALCULATION SOFTWARE USER`S MANUAL - APPENDIX A-2 CO2 Calculation Example #1 The following pages depict an example of a calculation performed using the KFP CO2 software program. Example A-2.1 – Isometric Drawing
  • 245.
    © K.F.P.S. Ltd98812-402 Issue B November 2004 Page 25 FLOW CALCULATION SOFTWARE USER`S MANUAL - APPENDIX Figure A-2.2 – System Information
  • 246.
    © K.F.P.S. Ltd98812-402 Issue B November 2004 Page 26 FLOW CALCULATION SOFTWARE USER`S MANUAL - APPENDIX Figure A-2.3 – Hazard Information
  • 247.
    © K.F.P.S. Ltd98812-402 Issue B November 2004 Page 27 FLOW CALCULATION SOFTWARE USER`S MANUAL - APPENDIX Figure A-2.4 – Piping Model Data
  • 248.
    © K.F.P.S. Ltd98812-402 Issue B November 2004 Page 28 FLOW CALCULATION SOFTWARE USER`S MANUAL - APPENDIX Figure A-2.5 – Calculate and Display Results
  • 249.
    © K.F.P.S. Ltd98812-402 Issue B November 2004 Page 29 FLOW CALCULATION SOFTWARE USER`S MANUAL - APPENDIX Figure A-2.6 – Nozzle Summary
  • 250.
    © K.F.P.S. Ltd98812-402 Issue B November 2004 Page 30 FLOW CALCULATION SOFTWARE USER`S MANUAL - APPENDIX Figure A-2.7 – Discharge Information
  • 251.
    © K.F.P.S. Ltd98812-402 Issue B November 2004 Page 31 FLOW CALCULATION SOFTWARE USER`S MANUAL - APPENDIX A-3 Software Hot Keys Reference List Hot Keys Reference List HOT KEYS FUNCTION PRIMARY ALTERNATE PIPING MODEL FUNCTION Add F5 Key Shift + Insert Insert Pipe F7 Key Insert Key Delete F8 Key Shift + Delete Copy F9 Key Paste F10 Key HAZARD DATA FUNCTION Area Name & Area (Volume) Sections Add F5 Key Shift + Insert Delete F8 Key Shift + Delete Area Nozzle List Section Add F5 Key Plus Sign (+) Key Delete F8 Key Shift + Delete GENERAL FUNCTIONS Move one cell to the left Left Arrow Key Shift + Tab Move one cell to the right Right Arrow Key Enter or Tab Move one cell up Up Arrow Move one cell down Down Arrow Drop down a list box Shift + Down Arrow Go to System Information Screen F1 Key Go to Hazard Data Screen F2 Key Go to Piping Model Screen F3 Key Calculate and Display Results F4 Key
  • 252.
    December 2004 issueB Manual No 59812-250i Weight Indicator Mechanism (Part No. E8731-402) USER'S MANUAL December 2004 issue B Manual No 59812-250
  • 253.
    December 2004 issueB Manual No 59812-250ii PROPRIETARY RIGHTS NOTICE This document and the information that it contains are the property of Kidde Fire Protection. Rights to duplicate or otherwise copy this document and rights to disclose the document and the information that it contains to others and the right to use the information contained therein may be acquired only by written permission signed by a duly authorised officer of Kidde Fire Protection. © Copyright Kidde Fire Protection Services Ltd
  • 254.
    December 2004 issueB Manual No 59812-250iii Amendment Incorporation Record Amendment Number Brief Description of Content Name of person Incorporating Amendment 1 2 3 4 5 6 7 8 9 10
  • 255.
    December 2004 issueB Manual No 59812-250iv TABLE OF CONTENTS Chapter Page 1. INTRODUCTION..........................................................................................1 1.1 GENERAL............................................................................................1 1.2 OPERATION........................................................................................1 2. SPECIFICATION..........................................................................................2 3. INSTALLATION ...........................................................................................3 4.1 EVERY SIX MONTHS........................................................................10 4.2 EVERY TWELVE MONTHS...............................................................10 APPENDIX A TESTING......................................................................................11 APPENDIX B ATEX COMPLIANCE...................................................................13 SPECIAL INSTRUCTIONS FOR COMPLIANCE WITH 94/9/EC ...............13
  • 256.
    December 2004 issueB Manual No 59812-250v LIST OF ILLUSTRATIONS Figure Page Figure 1-1 Weight Indicator Mechanism.....................................................................1 Figure 2-1 Dimensions ...............................................................................................2 Figure 3-1 Flexible Conduit Installation ......................................................................4 Figure 3-2 Electrical Installation - SERIES Two Wires ...............................................5 Figure 3-3 Electrical Installation - SERIES One Wire.................................................5 Figure 3-4 Electrical Installation - PARALLEL ............................................................6 Figure 3-5 Mechanical Installation..............................................................................8 Figure 3-6 Typical Support Frame..............................................................................9 Figure A-1 Test Kit ...................................................................................................12
  • 257.
    December 2004 issueB Manual No 59812-2501 1. INTRODUCTION 1.1 General The Weight Indicator Mechanism (Part No. E8731-402) is a device used to automatically monitor the contents of a fixed fire CO2 cylinder. When the contents of the cylinder fall by a pre-determined amount, typically 10%, the weight drops causing a microswitch to trip and send a signal to a signal panel. The components of the weight indicator mechanism are shown in Figure 1-1. The device is supplied in a kit form, for assembly onto the mounting frame, and comprises: the body, two hanger rods, neck collar, weight, four off M10 nuts and washers, and one off M12 nut and washer. The mounting frame will be supplied by others. Figure 1-1 Weight Indicator Mechanism 1.2 Operation When the weight indicator mechanism is set up, the downward force of the cylinder is greater than the leverage provided by the weight on the weight rod. As the contents of the cylinder drops through a pre-determined amount, the downward force of the cylinder becomes less than the leverage of the weight, therefore the weight rod drops and trips the microswitch sending a signal to a control panel.
  • 258.
    December 2004 issueB Manual No 59812-2502 2. SPECIFICATION Figure 2-1 shows the dimensions (in mm) of the weight indicator mechanism. Figure 2-1 Dimensions All screws and steel fittings are zinc plated. Microswitch details: Type: Single-pole, volt-free, change-over. Rating: Maximum current 3 A at 125 or 250 V a.c. Sealing: Rated at IP 67 to BS5490. Connections: RED - common. BLUE - normally open (N/O). YELLOW - normally closed (N/C). The customer is to provide protective flexible conduit (rated at IP 65 minimum), wire and insulated crimp pin or blade terminal connectors.
  • 259.
    December 2004 issueB Manual No 59812-2503 3. INSTALLATION WARNING THE CO2 CYLINDER IS AT HIGH PRESSURE. THE ANTI-RECOIL CAP MUST BE FITTED TO THE VALVE OUTLET AND THE PROTECTION CAP MUST BE FITTED BEFORE MOVING THE CO2 CYLINDER. NORMAL PRESSURE VESSEL HANDLING PRECAUTIONS MUST BE OBSERVED. THE WEIGHT INDICATOR MECHANISM, FRAME AND CO2 CYLINDER ARE HEAVY. SAFETY CLOTHING (FOOTWEAR, GLASSES AND HARD HATS) MUST BE WORN WHEN CARRYING OUT INSTALLATION AND MAINTENANCE. CAUTION The frame must be fixed and all floors and walls must capable of supporting overall weight loadings. The weight of the weight indicator mechanism is heavy and may operate at any time. It is therefore recommended that the weight indicator mechanisms and the CO2 cylinders are installed in unoccupied areas. To install the weight indicator mechanism carry out the following procedure and see Figures 3-1 through 3-6. (a) Assemble the mounting frame, supplied by others, to comply with Figure 3-6. (b) If the weight indicator mechanism is outside or in a damp environment, it is recommended that the threads are sprayed with oil to keep them free of rust. (c) Using the mounting rod, fit the body to the mounting frame using the M12 nut and washer, see Figure 3-5.
  • 260.
    December 2004 issueB Manual No 59812-2504 (d) Remove the terminal box cover, by undoing the four M4x16 mm screws. Connect the flexible conduit to each terminal box as shown in Figure 3-1. Make sure that the flexible conduit, rated at IP 65 minimum, passes underneath the weight when it is in the down (operated) position and that it does obstruct the movement of the weight. Figure 3-1 Flexible Conduit Installation (e) It is recommended to connect the microswitch in SERIES, this enables the wires to monitored continuously. CAUTION Do not touch the microswitch. If the microswitch contacts are to be wired in the NORMALLY CLOSED (N/C) position, i.e. in SERIES, carry out the procedure in steps (i) through (iv) and see Figure 3-2. (i) Remove the BLUE wire from the terminal block, cut 10 mm from it and electrically insulate the end with an insulating cap or tape. (ii) Thread the two core cable through the flexible conduit and connect to the terminal box as shown in Figure 3-2. Use an insulated crimp pin connector for each wire. (iii) Replace the terminal box cover. (iv) On the end/last terminal box, the spare exit hole from the terminal box must be sealed or blanked off to maintain IP 65. NOTE A simpler SERIES installation using a single wire is shown in Figure 3-3. However, the wire will not be monitored continuously.
  • 261.
    December 2004 issueB Manual No 59812-2505 Figure 3-2 Electrical Installation - SERIES Two Wires Figure 3-3 Electrical Installation - SERIES One Wire
  • 262.
    December 2004 issueB Manual No 59812-2506 If the microswitch contacts are to be wired in the NORMALLY OPEN (N/O) position, i.e. in PARALLEL, carry out the procedure in steps (v) through (viii) and see Figure 3-4. (v) Remove the YELLOW wire from the terminal block, cut 10 mm from it and electrically insulate the end with an insulating cap or tape. (vi) Thread the two core cable through the flexible conduit and connect to the terminal box as shown in Figure 3-4. Where two wires are to be connected into same terminal outlet, use an insulated blade terminal connector. (vii) Replace the terminal box cover. (viii) On the end/last terminal box, the spare exit hole from the terminal box must be sealed or blanked off to maintain IP 65. Figure 3-4 Electrical Installation - PARALLEL
  • 263.
    December 2004 issueB Manual No 59812-2507 (f) Make sure that the protection cap is fitted and inspect the cylinder for external damage. (g) Weigh the cylinder for correct contents using a scale weighing device and record the weight. WARNING IF CYLINDERS ARE TO BE MOVED IN A SKID ASSEMBLY, THEY MUST BE SECURELY WEDGED IN POSITION TO PREVENT MOVEMENT. (h) Transport the cylinder to its position at the mounting frame using a suitable trolley. Remove the securing wedge from the cylinder. (i) Remove the protection cap from the cylinder and store in a safe place. (j) Screw the neck collar fully onto the cylinder ensuring that all threads are engaged. Make sure that the cylinder valve outlet is in the correct position. (k) Connect the flexible discharge hose to the manifold and torque to between 30 and 40 Nm. (l) Remove the anti-recoil cap from discharge outlet of the cylinder valve and store in a safe place. Connect the other end of the flexible discharge hose to the discharge outlet of the cylinder valve and torque to between 30 and 40 Nm. (m) Fit the two hanger rods through the holes in the body and the neck collar. Secure with an M10 nut and washer on each hanger rod, see Figure 3-5. Make sure that the M10 nuts are screwed evenly onto the hanger rods by the same amount. (n) Tighten the M12 nut, on the mounting rod, until the cylinder is 20 mm from the floor or mounting frame base. NOTE Make sure that the cylinder is hanging vertically. If not, carefully adjust the nuts on the hanger rods until the cylinder is hanging vertically (o) Fit an M10 nut to the weight rod and wind halfway down the rod. Fit an M10 washer to the weight rod, followed by the weight, another M10 washer and finally an M10 nut. DO NOT TIGHTEN. (p) With the weight rod in the “full” (uppermost) position, slowly wind the nuts and weight up the rod away from the body, until a position is reached where the weight rod will just begin to drop from its stop. (q) From this set point, wind the inner nut towards the body by five turns. Hold this position and lock the other nut against the weight. With the weight in the “full” position, the indicator is now set. (r) If required, carry out the testing procedure, refer to Appendix A. (s) Repeat steps (a) through (r) for each weight indicator mechanism and cylinder.
  • 264.
    December 2004 issueB Manual No 59812-2508 Figure 3-5 Mechanical Installation
  • 265.
    December 2004 issueB Manual No 59812-2509 Figure 3-6 Typical Support Frame
  • 266.
    December 2004 issueB Manual No 59812-25010 4. MAINTENANCE WARNING THE CO2 CYLINDER IS AT HIGH PRESSURE. THE ANTI-RECOIL CAP MUST BE FITTED TO THE VALVE OUTLET AND THE PROTECTION CAP MUST BE FITTED BEFORE MOVING THE CO2 CYLINDER. NORMAL PRESSURE VESSEL HANDLING PRECAUTIONS MUST BE OBSERVED. THE WEIGHT INDICATOR MECHANISM, FRAME AND CO2 CYLINDER ARE HEAVY. SAFETY CLOTHING (FOOTWEAR, GLASSES AND HARD HATS) MUST BE WORN WHEN CARRYING OUT INSTALLATION AND MAINTENANCE. IT IS RECOMMENDED TO MOVE THE WEIGHT ROD TO THE OPERATED (LOWER) POSITION BEFORE ANY WORK IS CARRIED OUT ON THE CYLINDER AND/OR VALVE. 4.1 Every Six Months (a) Check tightness of nuts and bolts. (b) If required, carry out the testing procedure, refer to Appendix A. 4.2 Every Twelve Months (a) Check the threads for rust, clean and apply an oil spray if necessary (b) Carry out the six monthly check.
  • 267.
    December 2004 issueB Manual No 59812-25011 APPENDIX A TESTING WARNING THE CO2 CYLINDER IS AT HIGH PRESSURE. THE ANTI-RECOIL CAP MUST BE FITTED TO THE VALVE OUTLET AND THE PROTECTION CAP MUST BE FITTED BEFORE MOVING THE CO2 CYLINDER. NORMAL PRESSURE VESSEL HANDLING PRECAUTIONS MUST BE OBSERVED. THE WEIGHT INDICATOR MECHANISM, FRAME AND CO2 CYLINDER ARE HEAVY. SAFETY CLOTHING (FOOTWEAR, GLASSES AND HARD HATS) MUST BE WORN WHEN CARRYING OUT INSTALLATION AND MAINTENANCE. If the user wishes to confirm that the weight indicator mechanism is functioning correctly, a test kit can be built, see Figure A-1. The procedure for testing is given below. (a) Assemble the test kit as shown in Figure A-1. (b) With the weight rod in the “FULL” position, carefully lower the test weight, between 3.2 and 4.5 kg, onto the test kit. NOTE The test weight, between 3.2 and 4.5 kg, represents a weight loss of CO2 corresponding to between 7 and 10%. (c) When the weight indicator mechanism is set correctly, the mechanism will trip.
  • 268.
    December 2004 issueB Manual No 59812-25012 Figure A-1 Test Kit
  • 269.
    December 2004 issueB Manual No 59812-25013 APPENDIX B ATEX COMPLIANCE SPECIAL INSTRUCTIONS FOR COMPLIANCE WITH 94/9/EC 1. Area classification Weight Indicator Mechanism and Weight Indicator Mechanism Unswitched part numbers, E8731-402 and E8731-403 respectively. Weight Indicator Mechanisms are used to monitor the contents of CO2 45kg extinguisher assemblies. Weight Indicator Mechanisms have been designed and certified as a non- electric equipment for compliance to the following hazardous area classification: Group II category 3 GD c T6 X The user of this equipment should make themselves aware of the following information; 2. Placing the device into service These Weight Indicator Mechanisms may be installed in an area classified as Zone 2 or Zone 22 or unclassified. 3. Safe use of Weight Indicator Mechanisms Weight Indicator Mechanisms are for use only as a contents indicator system for CO2 45 kg extinguishers. The switched version is to be used with an intrinsically safe supply suitable for the hazard area. 4. Assembling and dismantling Weight Indicator Mechanisms are supplied complete and ready to install in accordance with KFP Weight Indicator Mechanism Users Manual 59812-250. 5. Installation Weight Indicator Mechanism installation shall be in accordance with KFP Weight Indicator Mechanism Users Manual 59812-250, except that where fitted the switch circuit shall be intrinsically safe and appropriate to the hazard. 6. Maintenance (service and emergency repair) For maintenance of Weight Indicator Mechanisms refer to manual 59812-250. 7. Adjustment After Installation adjustment of the Weight Indicator Mechanism is not required. For initial set up follow instructions provided in KFP Weight Indicator Mechanism Users Manual 59812-250 8. Training Consult KFP Weight Indicator Mechanism Users Manual 59812-250 before use.
  • 270.
    December 2004 issueB Manual No 59812-25014 9. Limitations of use Weight Indicator Mechanisms must only be used within areas specified by the hazardous area certification as indicated on the equipment label 10.Special Parameters The ambient temperature for this equipment is –18°C to 55°C.
  • 271.
    Issue A December2004 59812-403 1 of 17 High Pressure Carbon Dioxide Fire Protection Equipment DIRECT ACTING SOLENOID Issue A December 2004 Manual No 59812-403
  • 272.
    Issue A December2004 59812-403 2 of 17 PROPRIETARY RIGHTS NOTICE This document and the information that it contains are the property of Kidde Fire Protection Services Ltd. The information contained in this manual is believed to be correct in light of the latest data available. Rights to duplicate or otherwise copy this document and rights to disclose the document and the information that it contains to others and the right to use the information contained therein may be acquired only by written permission signed by a duly authorised officer of Kidde Fire Protection Services Ltd. © Copyright 2004 Kidde Fire Protection Services Ltd
  • 273.
    Issue A December2004 59812-403 3 of 17 ASSEMBLY, TEST AND DISASSEMBLY INSTRUCTIONS FOR DIRECT ACTING SOLENOID ASSEMBLY IMPORTANT:- 1. BEFORE PROCEEDING, THE FOLLOWING SHOULD ONLY BE ATTEMPTED BY TRAINED PERSONNEL WHO ARE FAMILIAR WITH ALL THE RELEVANT HAZARDS ASSOCIATED WITH CO2 SYSTEMS. 2. ENSURE THAT THE RECOIL CAP IS FITTED TO THE VALVE OUTLET DURING THE ASSEMBLY OF THE DIRECT ACTING SOLENOID ASSEMBLY. 3. POSITION CYLINDERS IN DESIGNATED LOCATION AND SECURE WITH CYLINDER STRAPS AND ATTACHING HARDWARE.
  • 274.
    Issue A December2004 59812-403 4 of 17 ASSEMBLY INSTRUCTIONS SINGLE CYLINDER INSTALLATION SPECIFICATION POWER SUPPLY REQUIREMENTS ENVIRONMENTAL PROTECTION TO BE BS EN 60529 1991 IP65 VOLTAGE RANGE :- 18V DC TO 28V DC NOMINAL COIL RESISTANCE :- 53.2 OHMS CURRENT AT 18V DC :- -338mA MINIMUM FIRING PULSE :- 60ms CURRENT AT 28V DC :- -526Ma MAXIMUM FIRING PULSE :- UNLIMITED ELECTRICAL CONNECTION :- DIN PLUG TYPE DIN 43650 STORAGE TEMPERATURE RANGE :- -30°C TO +55°C OPERATING TEMPERATURE RANGE :- -20°C TO +55°C MAXIMUM WORKING PRESSURE :- 152.5 BAR G NOTE ITEMS SHOWN THUS * ARE NOT PART OF THE SOLENOID ACTUATED VALVE AND CYLINDER ASSEMBLIES – THESE ITEMS ARE PURCHASED SEPARATELY.
  • 275.
    Issue A December2004 59812-403 5 of 17 ASSEMBLY INSTRUCTIONS MULTI-CYLINDER INSTALLATION SPECIFICATION POWER SUPPLY REQUIREMENTS ENVIRONMENTAL PROTECTION TO BE BS EN 60529 1991 IP65 VOLTAGE RANGE :- 18V DC TO 28V DC NOMINAL COIL RESISTANCE :- 53.2 OHMS CURRENT AT 18V DC :- -338mA MINIMUM FIRING PULSE :- 60ms CURRENT AT 28V DC :- -526Ma MAXIMUM FIRING PULSE :- UNLIMITED ELECTRICAL CONNECTION :- DIN PLUG TYPE DIN 43650A STORAGE TEMPERATURE RANGE :- -30°C TO +55°C OPERATING TEMPERATURE RANGE :- -20°C TO +55°C MAXIMUM WORKING PRESSURE :- 152.5 BAR G NOTE THE MASTER CYLINDER PLUS 5 SLAVE CYLINDERS ARE THE MAXIMUM NUMBER OF CYLINDERS ALLOWED ON ANY ONE SYSTEM. ITEMS SHOWN THUS * ARE NOT PART OF THE SOLENOID ACTUATED VALVE AND CYLINDER ASSEMBLIES – THESE ITEMS ARE PURCHASED SEPARATELY. ITEM SHOWN THUS φ IS SUPPLIED AS 1-OFF WITH THE SOLENOID ACTUATED VALVE. ADDITIONAL QUANTITIES SHOULD BE PURCHASED SEPARATELY.
  • 276.
    Issue A December2004 59812-403 6 of 17 ASSEMBLY INSTRUCTIONS VALVE AND CYLINDER ASSEMBLY REMOVE THE CYLINDER CAP FROM THE VALVE AND CYLINDER ASSEMBLY
  • 277.
    Issue A December2004 59812-403 7 of 17 ASSEMBLY INSTRUCTIONS CYLINDER VALVE ASSEMBLY REMOVE THE VALVE PROTECTION CAP FROM THE VALVE AND CYLINDER ASSEMBLY. CHECK THAT THE SEALING FACE IS UNDAMAGED.
  • 278.
    Issue A December2004 59812-403 8 of 17 ASSEMBLY INSTRUCTIONS SOLENOID ASSEMBLY REMOVE THE SOLENOID COIL FROM THE SOLENOID ASSEMBLY. ENSURE THE SWIVEL NUT ROTATES FREELY.
  • 279.
    Issue A December2004 59812-403 9 of 17 ENSURE THE `O’ RING SEAL IS CORRECTLY POSITIONED. ASSEMBLY INSTRUCTIONS CYLINDER VALVE AND SOLENOID ASSEMBLY ENSURE RECOIL CAP IS IN POSITION. ASSEMBLE THE SOLENOID ONTO THE CYLINDER VALVE. TIGHTEN SWIVEL NUT TO TORQUE 8/10 Nm. (NOTE – A SHORT BURST OF GAS MAY BE HEARD)
  • 280.
    Issue A December2004 59812-403 10 of 17 ASSEMBLY INSTRUCTIONS CYLINDER VALVE AND SOLENOID ASSEMBLY ASSEMBLE THE FLEXIBLE PILOT LOOP TO THE OUTLET PORT ON THE SOLENOID ASSEMBLY, TORQUE TO 2/2.5 Nm. REASSEMBLE THE SOLENOID COIL TO THE SOLENOID AND FIT THE SOLENOID COIL RETAINING NUT.
  • 281.
    Issue A December2004 59812-403 11 of 17 ASSEMBLY INSTRUCTIONS PRESSURE ACTUATOR ASSEMBLY REMOVE THE SAFETY PIN AND MOVE LEVER TO THE ACTUATE POSITION, ENSURE PISTON MOVES FREELY. RETURN LEVER TO PARKED POSITION AND REPLACE THE SAFETY PIN. ASSEMBLE BLEED ASSEMBLY TO PRESSURE ACTUATOR AND TIGHTEN TO TORQUE 2/2.5 Nm. SUPPORT THE PRESSURE ACTUATOR AND CONNECT THE FREE END OF THE FLEXIBLE PIPE LOOP (ITEM 3) AND TIGHTEN TO TORQUE 2/2.5 Nm. DEPRESS THE PISTON OF THE PRESSURE ACTUATOR AND CHECK PISTON REMAINS IN THE DEPRESSED STATE. MOVEMENT OF THE PISTON WILL INDICATE A LEAK AT THE SOLENOID – IF MOVEMENT OCCURS REPLACE THE SOLENOID.
  • 282.
    Issue A December2004 59812-403 12 of 17 ASSEMBLY INSTRUCTIONS CYLINDER VALVE AND PRESSURE ACTUATOR ASSEMBLY ASSEMBLE THE PRESSURE ACTUATOR TO THE CYLINDER VALVE, ENSURING THAT THE RETENTION PIN IS IN PLACE AND THE FLEXIBLE PILOT LOOP IS FREE OF KINKS.
  • 283.
    Issue A December2004 59812-403 13 of 17 ASSEMBLY INSTRUCTIONS DIN CONNECTOR PLUG ASSEMBLY
  • 284.
    Issue A December2004 59812-403 14 of 17 DISASSEMBLY INSTRUCTIONS SOLENOID REMOVAL REMOVAL OF SOLENOID ASSEMBLY FROM CYLINDER VALVE DISCONNECT THE DIN PLUG FROM SOLENOID. DISCONNECT THE PILOT LOOP FROM SOLENOID. SLOWLY UNSCREW THE SOLENOID SWIVEL NUT (AFTER ONE/TWO REVOLUTIONS A SHORT DISCHARGE OF GAS WILL BE AUDIBLE) AND FULLY REMOVE THE SOLENOID AND RETAIN THE `O’ RING SEAL. CAREFULLY CHECK THE `O’ RING SEAL FOR DAMAGE BEFORE REASSEMBLY. IF DAMAGED THE SEAL MUST BE REPLACED. CHECK THAT THE CYLINDER VALVE POPPET HAS RESEALED BY APPLYING LEAK SEEKING FLUID TO THE POPPET ORIFICE. IF ANY LEAKAGE OCCURS RESEAT THE POPPET SEAL BY REASSEMBLING THE SOLENOID (EXCLUDING THE `O’ RING SEAL) UNTIL ESCAPING GAS IS AUDIBLE. IMMEDIATELY UNSCREW AND REMOVE THE SOLENOID ASSEMBLY. TO PROTECT THE CYLINDER VALVE SEALING FACE IMMEDIATELY ASSEMBLE THE PROTECTION CAP TO THE VALVE. IMPORTANT:- IF THE VALVE CONTINUES TO LEAK, CONTACT THE EQUIPMENT MANUFACTURER FOR FURTHER INFORMATION.
  • 285.
    Issue A December2004 59812-403 15 of 17 DISASSEMBLY INSTRUCTIONS PRESSURE ACTUATOR REMOVAL REMOVAL OF PRESSURE ACTUATOR FROM CYLINDER VALVE DISCONNECT THE PILOT LOOP/PILOT LOOPS FROM THE PRESSURE ACTUATOR. REMOVE THE RETENTION PIN. SLIDE THE PRESSURE ACTUATOR OFF THE CYLINDER VALVE. IMPORTANT IF THE PRESSURE ACTUATOR TO BE REMOVED IS MOUNTED ON A SLAVE CYLINDER IN A MULTI-CYLINDER ASSEMBLY, DISCONNECT THE DIN PLUG AND THE PILOT LOOP FROM THE SOLENOID ASSEMBLY MOUNTED ON THE MASTER CYLINDER BEFORE PROCEEDING WITH THE REMOVAL OF THE PRESSURE ACTUATOR.
  • 286.
    Issue A December2004 59812-403 16 of 17 TEST INSTRUCTIONS SINGLE CYLINDER INSTALLATION KEEPING THE FLEXIBLE PILOT LOOP ATTACHED TO THE PRESSURE ACTUATOR AND SOLENOID ASSEMBLY, REMOVE THE PRESSURE ACTUATOR FROM THE CYLINDER VALVE BY REMOVING THE RETENTION PIN. APPLY THE CORRECT ELECTRICAL POWER TO THE SOLENOID AND CHECK THAT THE PISTON IS FULLY EXTENDED FORWARD, CHECK THAT ALL JOINTS (EXCEPT THE BLEED ASSEMBLY OUTLET) ARE LEAK TIGHT. TO RESET THE SOLENOID, EITHER REVERSE THE POLARITY OF THE COIL (FOR APPROXIMATELY ONE SECOND) OR REMOVE THE COIL FROM THE SOLENOID AND REASSEMBLE IT `IMPORTANT’. THIS SHALL BE CARRIED OUT WITH THE POWER SUPPLY ISOLATED TO THE COIL. THEN DEPRESS THE BLEED BUTTON UNTIL ALL GAS HAS VENTED. FULLY DEPRESS THE PRESSURE ACTUATOR PISTON (BY HAND) AND CHECK THAT THE PISTON REMAINS IN THE DEPRESSED STATE. MOVEMENT OF THE PISTON WILL INDICATE A LEAK AT THE SOLENOID. REASSEMBLE THE PRESSURE ACTUATOR TO THE CYLINDER VALVE USING THE RETENTION PIN.
  • 287.
    Issue A December2004 59812-403 17 of 17 TEST INSTRUCTIONS MULTI-CYLINDER INSTALLATION KEEPING THE FLEXIBLE LOOPS ATTACHED TO ALL THE PRESSURE ACTUATORS AND THE SOLENOID ASSEMBLY, REMOVE THE PRESSURE ACTUATORS FROM ALL THE CYLINDER VALVES BY REMOVING THE RETENTION PINS. ADEQUATELY SUPPORT TO ENSURE PILOT LOOPS ARE KINK FREE. APPLY THE CORRECT ELECTRICAL POWER TO THE SOLENOID AND CHECK THAT ALL THE PISTONS ARE FULLY EXTENDED FORWARD, CHECK THAT ALL JOINTS (EXCEPT THE BLEED ASSEMBLY OUTLET) ARE LEAK TIGHT. TO REST THE SOLENOID, EITHER REVERSE THE POLARITY OF THE COIL (FOR APPROXIMATELY ONE SECOND) OR REMOVE THE COIL FROM THE SOLENOID AND REASSEMBLE IT `IMPORTANT’. THIS SHALL BE CARRIED OUT WITH THE POWER SUPPLY ISOLATED FROM THE COIL. THEN DEPRESS THE BLEED BUTTON UNTIL ALL GAS HAS BEEN VENTED. FULLY DEPRESS ALL THE PRESSURE ACTUATOR PISTONS (BY HAND) AND CHECK THAT THE PISTONS REMAINED DEPRESSED. MOVEMENT OF THE PISTON WILL INDICATE A LEAK AT THE SOLENOID. REASSEMBLE THE PRESSURE ACTUATORS TO THE CYLINDERS VALVES USING THE RETENTION PINS.
  • 288.
    High Pressure Carbon Dioxide FireProtection Equipment Owners Manual Manual No. 59812-405 Issue A December 2004
  • 289.
    © K.F.P.S. Ltd59812-405 Issue A December 2004 Page 2 of 10 PROPRIETARY RIGHTS NOTICE This document and the information that it contains are the property of Kidde Fire Protection Services Ltd. The information contained in this manual is believed to be correct in light of the latest data available. Rights to duplicate or otherwise copy this document and rights to disclose the document and the information that it contains to others and the right to use the information contained therein may be acquired only by written permission signed by a duly authorised officer of Kidde Fire Protection Services Ltd. © Copyright 2004 Kidde Fire Protection Services Ltd
  • 290.
    © K.F.P.S. Ltd59812-405 Issue A December 2004 Page 3 of 10 KIDDE FIRE PROTECTION High Pressure CO2 Fire Protection Equipment OWNERS MANUAL This manual is to familiarise you and your personnel with your Kidde Fire Protection High Pressure CO2 Fire Suppression Equipment. IMPORTANT It is your responsibility as the system owner to read this manual to ensure proper system operation and personnel safety. Follow the instructions in this manual and on the container nameplates. Review these instructions with your employees every 6 months or more frequently. Place this manual in an accessible place near the system for ready reference. IMPORTANT This system is made up of units tested within limitations contained in the design, installation, operation and maintenance manual. The system designer must be consulted whenever changes are planned for the system or area of protection. A Kidde distributor must be consulted after the system has discharged. IMPORTANT The technical data contained herein is limited strictly for informational purposes only. Kidde believes this data to be accurate, but it is published and presented without any guarantee or warranty whatsoever. Kidde disclaims any liability for any use that may be made by the data and information contained herein by any and all other parties. YOUR KIDDE DISTRIBUTOR IS: ENTER EMERGENCY NUMBER FOR FIRE BRIGADE HERE:
  • 291.
    © K.F.P.S. Ltd59812-405 Issue A December 2004 Page 4 of 10 ATTENTION INSTALLER This form must be signed by the system owner indicating that he/she has received a copy of this Owner’s Manual Part Number 59812-405. Retain a copy of this form for your records. 1. System Installed: 2. Listing of Major System Components: 3. Description of Hazard Protected by System: Owner or Authorised Representative Date
  • 292.
    © K.F.P.S. Ltd59812-405 Issue A December 2004 Page 5 of 10 WARNING PRESSURISED (CHARGED) CONTAINERS ARE EXTREMELY HAZARDOUS AND IF NOT HANDLED PROPERLY ARE CAPABLE OF VIOLENT DISCHARGE. THIS MAY RESULT IN SERIOUS BODILY INJURY, DEATH AND PROPERTY DAMAGE Before handling Kidde products, all personnel must be thoroughly trained in the safe handling of pressurised containers as well as in the proper procedures for installation, removal, filling and connection of other critical devices, such as solenoids, cable assemblies, pressure switches and safety caps. READ and UNDERSTAND and ALWAYS FOLLOW: the Kidde Fire Protection High Pressure CO2 Fire Protection Equipment Installation, Operation, Commissioning and Maintenance Manual (Part Number 59812-400), that is provided with the individual systems, or can be obtained from Kidde Fire Protection. Hazards to personnel Exposure to atmospheres containing about 5% CO2 leads to shortness of breath and slight headache. At the 10% level, headache, visual disturbance, ringing in the ears (tinnitus) and tremor are followed by loss of consciousness. Fire extinguishing concentrations of CO2, which are normally in excess of 30%, especially near to the point of discharge from total flooding or local application systems, carry a risk of almost immediate asphyxiation. The gas is also more dense than air and will drift and accumulate in low spaces, such as cellars, pits and floor voids, which may be difficult to ventilate effectively. The rapid expansion of large quantities of CO2 results in a substantial localised cooling of the installation and of the air surrounding the point of discharge. This can present a frostburn hazard. Moving of Containers The following safety procedures must be observed at all times: Handling of cylinders should be conducted by TRAINED AND COMPETENT personnel only. Transportation: Containers must be shipped compactly and properly secured in place. Containers must not be rolled, dragged, or slid nor allowed to be slid from tail- gates of vehicles. A suitable hand truck, fork truck, roll platform or similar device must be used. Rough Handling: Containers must not be dropped or permitted to strike violently against each other or other surfaces. Storage: Containers must be stored standing upright where they are not likely to be knocked over, or the containers must be secured.
  • 293.
    © K.F.P.S. Ltd59812-405 Issue A December 2004 Page 6 of 10 Safety Caps: THESE INSTRUCTIONS MUST BE FOLLOWED TO PREVENT SERIOUS INJURY, DEATH OR PROPERTY DAMAGE. (a) Each CO2 container is factory equipped with a valve protection safety cap. This device is a safety feature, and is a legislative requirement for transportation. (b) Each valve is equipped with a safety cap installed on the container outlet. This device is a safety feature, and will provide controlled, safe discharge when installed if the container is actuated accidentally. (c) These caps must be installed on the container AT ALL TIMES except when the containers are connected into the system piping. Do not remove safety caps until the cylinder has been securely fixed / bracketed to a load bearing structure. (d) All valve protection caps shall be retained for future transportation requirements. e.g. when cylinders are returned for refill or service. For additional information on safe handling of compressed gas containers in the United Kingdom, the Health and Safety Executive Guidance Notes are applicable. These are available from: Health and Safety Executive regional offices or HMSO outlets or online at www.hse.gov.uk/cdg/pdf/safusgc.pdf All appropriate European Standards that are in force must be satisfied. Thank you for purchasing a Kidde Fire Protection High Pressure CO2 Fire Suppression System. This owner’s manual is provided to instruct you and your employees. IMPORTANT This owner’s manual does not cover every detail of step-by-step installation procedures for the Kidde CO2 system. This information is available in the Installation, Operation and Maintenance Manual (Part No. 59812-400), which may be obtained from Kidde Fire Protection. ABOUT YOUR SYSTEM Your Kidde CO2 system is designed for either total flooding or local application suppression. Examples of typical CO2 system applications include: * Electrical Equipment. * Dust collectors. * Computer Installations. * Flammable Liquid Stores. * Archives.
  • 294.
    © K.F.P.S. Ltd59812-405 Issue A December 2004 Page 7 of 10 HOW YOUR CO2 SYSTEM OPERATES Your system is designed to discharge a specific amount of CO2 through nozzles located within the hazard area. The amount of CO2 necessary for your system has been carefully calculated to meet strict requirements set by FM Approvals, NFPA 12 and BS 5306 part 4. Additional code requirements may apply depending upon the application, design specifications, and the authority having jurisdiction. Basically, your CO2 system consists of: * High Pressure CO2 container(s), discharge piping and nozzles. * Actuation devices – electric and mechanical. * Detection, alarm devices and control panel. Your system must be provided with means for manual operation using one or both of the following approved devices: * Electric actuation station. * Automatic detector (control panel required). Automatic system operation (if provided) can be electric using heat detectors, photoelectric or ionization smoke detectors or optical flame detectors. An electromechanical actuator is used to operate the first cylinder. Pressure is used to open the valves on additional cylinders as applicable. Additional Safety devices (such as lock-off valves) are required for manned areas. If your system has a control panel, refer to the appropriate Kidde control panel manual as applicable. HOW CO2 WORKS CO2 extinguishes fire by reducing the oxygen content of the atmosphere to a point where it will not support combustion. Reducing the oxygen content from the normal 21% in air to 15% will extinguish most surface fires, though for some materials a greater reduction is necessary. In some applications the cooling effect of CO2 may assist extinction. INSTALLATION OF YOUR SYSTEM Your Kidde CO2 fire suppression system must be installed by a Kidde distributor. Your system must be installed in a professional manner with genuine Kidde components and installation materials as specified in the CO2 Installation, Operation and Maintenance Manual (Part No. 59812-400). DO NOT ACCEPT POOR WORKMANSHIP, MISSING SYSTEM PARTS, OR SUBSTITUTE SYSTEM COMPONENTS!
  • 295.
    © K.F.P.S. Ltd59812-405 Issue A December 2004 Page 8 of 10 The following items must be checked after the system is installed: 1. All areas requiring protection are protected. 2. A means of manually discharging the CO2 system is provided in a readily accessible location outside the risk area where it can be operated while leaving the vicinity of the hazard area. The manual control must be clearly labelled. The installer of your CO2 system should answer any questions you have regarding the components and coverage of the system. The installer must also demonstrate that the installed system conforms to the requirements of the CO2 Installation, Operation and Maintenance Manual (Part No. 59812-400), the requirements of your insurance carrier and any authorities having jurisdiction in your area. INSTRUCTIONS IN CASE OF FIRE 1. Suspend all operations in the fire area. Direct all occupants to leave the fire area immediately. DO NOT WAIT FOR THE SYSTEM TO OPERATE AUTOMATICALLY – OPERATE SYSTEM MANUALLY, WHEN EVACUATION OF ALL OCCUPANTS IS COMPLETE, USING THE MANUAL RELEASE. 2. Have someone contact the fire brigade immediately, no matter how small the fire appears to be. Post the fire brigade number and YOUR ADDRESS beside each telephone. Advise the fire brigade that a CO2 discharge has occurred. 3. Do not return until the area has been made safe and completely ventilated to remove all CO2. POST-FIRE INSTRUCTIONS After the system has discharged, DO NOT ATTEMPT TO RESUME OPERATIONS IN THE FIRE AREA. Contact your Kidde distributor to reset and recharge your system. Insist that the system be recharged immediately and only with the proper type and quantity of agent.
  • 296.
    © K.F.P.S. Ltd59812-405 Issue A December 2004 Page 9 of 10 INSPECTION AND MAINTENANCE OF YOUR SYSTEM IMPORTANT The owner of the Kidde CO2 fire suppression system has the responsibility and duty to comply with these instructions. Failure to do so may result in inadequate system performance, property damage and personal injury. Refer to the Kidde CO2 Installation, Operation and Maintenance Manual (Part No. 59812-400) for additional inspection information. Weekly 1. Visually inspect the hazard and the integrity of the enclosure for changes which may effect the performance of the system. 2. Visually inspect the pipework for damage and that all operating controls and components are properly set and undamaged. 3. Check Nitrogen Pilot cylinder(s) pressure gauge. 4. Check Detectors for signs of damage. 5. Manual Release Points are accessible & clearly labeled 6. Check weight monitoring devices if applicable. Monthly 1. Make a general inspection of all equipment for damaged or missing parts. If equipment requires replacement, contact your Kidde distributor. 2. Ensure access to hazard areas, manual pull stations, discharge nozzles, and cylinders are unobstructed. CAUTION Nozzles must never be painted. A part number is located on each. Nozzles must be replaced by nozzles of the same part number. They must never be interchanged since random interchanging of nozzles could adversely affect proper CO2 distribution and concentration level within a hazard area. 3. Check that all personnel who may have to operate the system are properly trained and authorised to do so. All new employees must be instructed in its use. Six (6) Monthly 1 Inspection of all cylinders and equipment by Kidde Distributor per the procedures detailed in the appropriate Installation, Operation and Maintenance Manual (Part Number 59812-400). For more information regarding inspection and maintenance, contact your Kidde distributor or Kidde Fire Protection.
  • 297.
    © K.F.P.S. Ltd59812-405 Issue A December 2004 Page 10 of 10 YOUR RESPONSIBILITIES AND RELATED EQUIPMENT REQUIREMENTS 1. Ensure an appropriate risk assessment has been conducted to establish the requirement for additional protection in all areas. Supplementary Portable fire extinguishers may be required. 2. Read, understand, and follow the instructions in this manual and on the container nameplates. Review these instructions with your employees every 6 months or more frequently. Place this manual in an accessible area near the CO2 system for ready reference. Post the name, phone number and address of your Kidde distributor near your telephone. Also, post the emergency telephone number of the fire brigade and your address near your telephones. 3. If any condition exists which would render your CO2 system inoperative or ineffective, SUSPEND ALL OPERATIONS IN THE PROTECTED AREA IMMEDIATELY. Have the condition corrected by your Kidde distributor before resuming operations.
  • 298.
    High Pressure Carbon Dioxide FireProtection Equipment APPROVALS
  • 299.
    High Pressure Carbon Dioxide FireProtection Equipment BULLETINS Please insert future bulletins in this section