1.0

INTRODUCTION
A winch is a mechanical device that is used to pull in (wind up) or let out (wind out) or

otherwise adjust the "tension" of a rope or wire rope (also called "cable" or "wire cable"). In its
simplest form it consists of a spool and attached hand crank.
In larger forms, winches stand at the heart of machines as diverse as ;
-

Tow trucks, steam shovels and elevators.

-

The spool can also be called the winch drum.

-

Can be powered by electric, hydraulic, pneumatic or internal combustion drives.

-

Some may include a solenoid brake or a mechanical brake or ratchet and pawl device that
prevents it from unwinding unless the pawl is retracted.

In the operation system, it can be conducted by using convention or non-convention system.
Convention system consist of mainly human effort or force distributed by human and the cost of
operation is cheaper because it does not consist of high tech equipment and also low in
maintenance.
Non-convention system is for most technologies that we see today which the entire burden is
been carried out by a machine. Efficiencies rate are also greater then convention system but the
maintenance can be high due to the system it have.
Example that we can take is such as elevator that can carried passengers more than 1 ton
(1000 kg) and the system is more into non-conventional because it uses motorized engine to
carry passengers. Other example that we can take is like steam shovel. Used in lifting and
moving material such as rock and soil. It is the earliest type of power shovel or excavator.
For our project, we are required to design a winch according to the specification given.
The first requirement is to design a winch that can withstand maximum load of 15kN. The
second requirement is we need to use cable of 14mm diameter.

2.0

WINCH

EMM 3506 – GROUP 3

Page 1
2.1

PROBLEM STATEMENT

A boat without an anchor is like a kite without thread. The boat will be drifting due to the
wind and wave. So, having an anchor is a must for every boat. If using bare hand to pull up the
anchor, it will make the job tiring and complicated. In order to overcome the problem, they will
need a very useful mechanical device to help them pulling up the anchor to the boat and to
unload from the boat.
The very best way to overcome this problem is by installing a winch to the boat.
Winch was widely used to pull in ( wind up) or let out ( wind out) or otherwise adjust the
tension of a rope either it wire or nylon, but in this case, we used wire cable. In its simplest form,
it is consists of a pool ad attached hand crank that can help and overcomes those:
o
o
o
o

Wear on boat’s body which is lead to corrosion
Conserve human energy
Keep the wire cable last longer
Wire cable stored in good manner and keeps the safety environment on the boat

That problem that we need to overcome and to achieve is the main reason why the
application of winch is suitable for anchor problem, which is suitable case for our product to be
used widely in this sector.

Figure 1: problem overview scope
2.2

FEATURES AND APPLICATION

EMM 3506 – GROUP 3

Page 2
As a project that must be conduct by a group of student, the requirement for a winch to be
consider as a winch in real words was be given out. Refer on the design factors that already be
listed and was mention in characteristic of the winch, we, group 3 come out with rough features
and the application for the winch based on design factors listed below:
Design Factors
o
o
o
o
o
o
o

Economic, environmental and safety toward users
Ergonomic
Ease to assembly
Ease of fabrication
Energy efficiency
Maintenance requirements
Environmentally friendly

Components
o
o
o
o
o
o
o

Wire rope ( 14mm in diameter )
Drum
Ratchet wheel and Pawl
Bearing
Frame
Gear / speed ratio
Brake

Features
7. Stainless steel drive shaft and ball bearing.
8. Lightweight stainless steel drum with large diameter to reduce wire rope wear.
9. Ergonomic handle for easy and good grip for handling.
10. Drum is located horizontal to ensure less wire rope wear.
Applications
 Anchor pulley

2.3

DESIGN REQUIREMENT

Corrosion-resistant is must in this case study, which is corrosion easily happen due to sea water.
EMM 3506 – GROUP 3

Page 3
For easy handling during wind up and out, this design come out with 2 speeds for easy
control and constant power required for anchor to be pulled. However, the neutral gear also been
consider for safety factor. Freewheeling position for fast line payout.
All these requirement and features are great for marine application precisely.
Features:
o Freewheeling winch is ideal for boat trailers.
o 2 speed to fit application in marine
 Fast speed
– lets you have full speed to pull up anchor quickly.
 Lower speed – offers an increase in mechanical advantages.
o New features, shift lock design – lets you change gears without having to pull out the
handle.
 The mechanism based on slide along the shaft.
 Hold the shaft in gears position.
o Drum – the drum is design to withstand load up to 15kN and can store about 50m in
length of wire cable.
o Wire cable – the selection of wire are been consider for marine used and can be withstand
natural phenomena.

3.0

COMPONENTS

EMM 3506 – GROUP 3

Page 4
3.1

WIRE ROPE SPECIFICATION

Figure 2: wire selection table

Length of rope: 50000 mm
Nominal breaking load : 133 kN
Weight: 0.86 kg/m
Rope construction: 6 x 26 RRL(right regular lay) rope
Safety factor of rope =

(
(

)

)

=
=8.87

3.2

HOOK SPECIFICATION

EMM 3506 – GROUP 3

Page 5
Figure 3: table of selection of hook

4.0

DRUM

4.1

CALCULATIONS

EMM 3506 – GROUP 3

Page 6
Parameter required




Maximum load
Diameter of rope
Length of rope

=15 kN
= 14 mm
= 50000mm

Calculation
1. Diameter of drum
Ddrum = (ratio between 20 to 25) x drope
=20 x 14
=280 mm
2. Groove radius,
r

3. Groove diameter,
d

= 0.53 x d

= groove radius x 2

= 0.53 x 14mm

= 7.4mm x 2

= 7.4mm

= 14.8mm

4. Pitch diameter,
p

5. Groove depth

= 2.065 x groove radius

h

= 0.374 x d

= 2.065 x 7.4mm

= 0.374 x 14.8

= 15.281mm

= 5.5352mm

6. Thickness
tx

7.
8.
9.
10.

= P/kp
= 15000/(210000000 x 0.0148)

Y= 520 mm
L5 = L6 = 20 mm
Number of layer = 3
Number of groove = 20

= 4.826mm
11. Drum grooved length,L3
L3

= (n - 1)P

= (20 – 1) 15.281

= 290.24 mm

12. Drum un-grooved length,L1=L2
L1 = L2
EMM 3506 – GROUP 3

= 1/2 diameter of hook + radius of rope
Page 7
= 47.13 mm
13. Safe Factor
4.2

=6

SPECIFICATION OF DRUM

L1

L3 = (n – 1) P

L2

y

Ddrum

L6

L5

Figure 4: drum legend for revise

EMM 3506 – GROUP 3

Page 8
Figure 5: groove overview

EMM 3506 – GROUP 3

Page 9
4.3

DRAWING 2D

Figure 6: isometric drawing
EMM 3506 – GROUP 3

Page 10
5.0

GEAR

5.1

DESIGN OVERVIEW

Figure 8: gear mechanism with legend

EMM 3506 – GROUP 3

Page 11
5.2

CALCULATION FOR GEARS

For a single handle winch,
P=150N
a=350mm
D=280mm
W=15kN

Efficiency of gears and Drum,
n1 (G1, G2) =0.97
n2 (G3, G4) =0.97
n3 (drum) =0.96
n = n 1 x n2 x n 3
= 0.9033
Calculating for speed ratio, i,

(

)(
(

EMM 3506 – GROUP 3

)(
)(

)
)

Page 12
Calculating suitable speed ratio for gear teeth,

*The highest speed ratio is taken to determine gear teeth.

Hence, calculating for the number of teeth of each gear,

EMM 3506 – GROUP 3

Page 13
Calculating for new speed ratio value, i

By using new i value,

(

)(
( )(

)(
)(

)
)

 So these set of gear teeth is suitable for our winch design.

EMM 3506 – GROUP 3

Page 14
Speed ratio:

Number of teeth (n) of gears:
Number of teeth of gear 1, Z1

=

11

Number of teeth of gear 2, Z2

=

70

Number of teeth of gear 3, Z3

=

11

Number of teeth of gear 4, Z4

=

77

*no. of teeth obtained by comparing with speed ratio
Efficiency of gear:
n1 [G1, G2] = 0.97
n2 [G3, G4] = 0.97
n3 [drum] = 0.96
n=n1 x n2 x n3

=0.9033

Pressure angle, Φ:
Φ = 20˚ (commonly used for designer)
Pitch diameter (D) of gears:
relationship:

Pitch diameter of gear 1, D1 = 66mm
Pitch diameter of gear 2, D2 = 420mm
Pitch diameter of gear 3, D3 = 66mm
Pitch diameter of gear 4, D4 = 462mm
Diametral Pitch (P):
EMM 3506 – GROUP 3

Page 15
Example gear 1,= 11/ (66 x 0.0394)
For gear 1= 4.23 / inch
For gear 2= 4.23/ inch
For gear 3= 4.23/ inch
For gear 4= 4.23/ inch
Metric Module (m):

Applied for all gears, m = 6mm
Addendum (20o) (a):

Applied for all gears, a = 6.57mm
Dedendum (20o) (d):

Applied for all gears, b = 8.21mm
Outside Diameter (Do):
(

)

Gear 2 as example, Do = 432mm

EMM 3506 – GROUP 3

Page 16
Torque, T
-applied to all gear

(

)(

)

P – obtained from the new i value.
a – length of handle.

Material:
Applied to all gear = AISI 1020 Steel
AISI 1020 Steel properties:

Figure 9: table properties of AISI 1020

EMM 3506 – GROUP 3

Page 17
Face width (b):
By using Lewis Equation:
σ = (FtP)/(bY)
where,
σ - the allowable bending stress of the gear material
Y - the Lewis form factor which can be obtained from the standard charts with certain
pressure
angle, Φ
Ft - the tangential force applied to the gear tooth as show in the Figure 2.1 above
P - the diametral pitch
b – the face width
Rearranging the equation,
b=
Ft = F cos Φ

(F = 10 kN )

Ft = 15000 cos 20˚ = 14095.39 N. (apply to all gear)
P = 4.23 (apply to all gear)
σ = 124.2 MPa (For AISI 1020 steel)

Figure 10: Standard Lewis Form Factor chart
EMM 3506 – GROUP 3

Page 18
Figure 11: lewis factor, Y table selection

For gear 1 & 3,
No. of teeth = 11, Y= 0.226

For gear 2,
No. of teeth = 70, Y= 0.429

For gear 4,
No. of teeth = 77, Y = 0.434
In order to have standard values of tooth width (b), we pick the smallest value of Lewis Form
factor Y = 0.226
b=
=
= 2.12mm
Take the value safety factor of 6 into considerations, the tooth width becomes 2.12 x 6 = 12.7mm
EMM 3506 – GROUP 3

Page 19
5.3

TABLE OF OVERVIEW FOR GEARS
Detail

Gear 1 (Pinion)

Gear 2(Gear)

Gear 3 (Pinion)

Gear 4 (Gear)

Metric module (m)

6mm

6mm

6mm

6mm

Number of teeth (z)

11

70

11

77

Pressure angle (Φ)

20˚

20˚

20˚

20˚

Pitch Diameter (D)

66mm

420mm

66mm

462mm

Diametral Pitch (P)

4.23

4.23

4.23

4.23

Addendum (a)

6.57mm

6.57mm

6.57mm

6.57mm

Dedendum (d)

8.21mm

8.21mm

8.21mm

8.21mm

Efficiency (n)

0.9033

0.9033

0.9033

0.9033

Outside Diameter (Do)

78mm

432mm

78mm

474mm

AISI 1020 Steel

AISI 1020 Steel

Thickness

30mm

Material used
Speed ratio
Face width (b)

AISI 1020 Steel

AISI 1020 Steel

1/6.3267

1/7
12.7mm

Torque

Figure 12: Table showing the overview of the whole gear system

5.4

DRAWING 2D

EMM 3506 – GROUP 3

Page 20
Figure 13: isometric view for gear one

Page 21

EMM 3506 – GROUP 3
Figure 14: isometric view for gear two

Page 22

EMM 3506 – GROUP 3
Figure 15: isometric view for gear three

Page 23

EMM 3506 – GROUP 3
Figure 16: isometric view for gear four

Page 24

EMM 3506 – GROUP 3
6.0

HANDLE

6.1

SPECIFICATIONS

Mechanical Properties
The mechanical properties of annealed AISI 1340 alloy steel are displayed in the following
table.
Properties

Metric

Imperial

Tensile strength

703 MPa

102000 psi

Yield strength

434 MPa

62900 psi

Bulk modulus (typical for steel)

140 GPa

20300 ksi

Shear modulus (typical for steel)

80.0 GPa

11600 ksi

190-210 GPa

27557-30458 ksi

0.27-0.30

0.27-0.30

Elongation at break (in 50 mm)

25.50%

25.50%

Reduction of area

57.30%

57.30%

46.0 J

33.9 ft-lb

Hardness, Brinell

207

207

Hardness, Knoop (converted from Brinell hardness)

207

207

Hardness, Rockwell B (converted from Brinell hardness)

93

93

Hardness, Rockwell C (converted from Brinell hardness)

15

15

217

217

50

50

Elastic modulus
Poisson's ratio

Izod Impact

Hardness, Vickers (converted from Brinell hardness)
Machinability (based on 100 machinability for AISI 1212 steel)

Figure 20: mechanical properties table for AISI 1340 alloy steel

Figure 21: element on handle
EMM 3506 – GROUP 3

Page 25
6.2

Calculation

Tensile strength, Su

= 702 MPa

Yield strength , Sy

= 434 MPa

Design Factor = Safety Factor = 6

length, L = 300 mm

Maximum bending stress
μ = F.L = (150 N)(0.3m)
= 45 Nm
Compute the desire stress from;
σd = Sy / N
= 434 MPa / 6
= 72.333 MPa
Based on formula ; σ = μ / S

;

S=μ/σ
= 45Nm / 72.333MPa
= 6.2212 x 10 -7 m3
In realtionship between S, t and h is

; and h = 3t

S = (t.h2 ) / 6
= 9t3 / 6
= 1.5 t3
1.5 t3 = 6.2212 x 10 -7 m3
t = 7.4575 x 10 -3 m

therefore; h = 3t = 3(7.4575 x 10 -3 m) = 22.372 x 10 -3 m

EMM 3506 – GROUP 3

Page 26
Figure 22: handle with labelling

ALL THE DATA;
t = 7.4575 x 10 -3 m

F = 0.30 m

h= 22.372 x 10 -3 m

E = 0.127 m

EMM 3506 – GROUP 3

Page 27
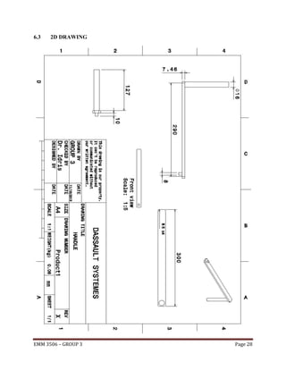
6.3

2D DRAWING

EMM 3506 – GROUP 3

Page 28
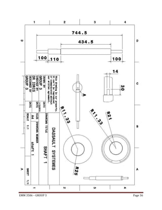
7.0

SHAFT

7.1

INTRODUCTION

In this project, we are focusing in winch to be able withstand load about 15kN. Other
than gears, bearings, drum, and other winch component. Shaft also plays as important factor to
increase efficiency and durability of winch.
In this report, we are discussed and find out the ideal diameter for shaft. For our winch we use 3
shafts to hold gears and transmit power

7.2

CALCULATION FOR SPEED 1

7.2.1 CALCULATION FOR SHAFT 1 AND DRAWING

Material selection

Referred back to the Stainless Steel 304, the material has possessed two properties which is
chemical and mechanical. In this scope, we more likely to know its mechanical properties which
are main reason due to the all the information that lead to the shaft requirement and can be
calculated based on formula that can be used. All the data for the chemical and mechanical
properties of the Stainless Steel 304can be summarize as seen in next page;

EMM 3506 – GROUP 3

Page 29
Chemistry % by Weight
Element
Type 302

Type 304

Type 304L

Type 305

Fe

64.99-74%

Cr

17%

18%

18%

17%

Ni

8%

8%

8%

10.50%

Mn

2%

2%

2%

2%

N

0.10%

0.10%

0.10%

-

S

0.03%

0.03%

0.03%

0.03%

C

0.15%

0.08%

0.03%

0.12%

Si

0.75%

0.75%

0.75%

0.75%

P

0.045%

0.045%

0.045%

0.045%

Properties
Properties
Physical Properties
Density
Mechanical properties
Hardness, Rockwell B
Tensile Strength, Ultimate
Tensile Strength, Yield

Value

Comment

8.03 g/cc
82
621 Mpa (=90100psi)
290 Mpa (=42100psi)

0.2% YS

Elongation at Break

55%

in 2 inches

Modulus of Elasticity
Modulus of Elasticity
Electrical properties
Electrical Resistivity
Electrical Resistivity
Magenetic permeability
Thermal properties
CTE, linear 20°C
CTE, linear 20°C
Heat Capacity
Thermal Conductivity
Thermal Conductivity
Processing properties
Melt temperature

193 Gpa
78 Gpa

tension
torsion

0.000116 ohm-cm
7.2e-005 ohm-cm
Max 1.02

659 °C

16.9 µm/m-°C
18.7 µm/m-°C
0.5 J/g-°C
16.2 W/m-K
21.4 W/m-K

0 to 100°C
to 649°C
0°C to 100°
100°C
500°C

EMM 3506 – GROUP 3

H = 200 Oersteds, Annealed

1371- 1399 °C

Page 30
Endurance strength, Sn
Endurance strength, Sn

= 0.5 Su
=0.5(621)
=310.50M Pa

Actual Endurance Strength, Sn'
Actual Endurance Strength, Sn’

= Sn (Cm) (Cst) (CR) (CS)

Cm = 1.0 (Since the material we used is steel)
Cst = 1.0 (Type of loading is bending)
CR = 0.81 (The shaft is designed to has reliability of 0.99)
CS = 0.75 (We assume it as we do not know the actual size yet)
Actual Endurance Strength, Sn’

=310.50 (1.0) x (1.0) x (0.81) x (0.75)
= 188.63MPa

Average force applied on handle is 150N, and the length of handle is 0.3m
Therefore, Torque, T = 150 x (0.3)
= 45N.m
Force on the Pinion 1, Tangential force, Wt =

=

= 1363.64 N

EMM 3506 – GROUP 3

Page 31
Radial force, Wr
=Wt tan
=1363.64 tan 20 º
=496.32N

r1 is a sharp fillet, then a stress concentration factor of 2.5 should be used.
Safety Factor of 6 is used as the shaft is expected to withstand unusual shock or impact.
D1

=[

(

)

√(

)

( )

(

)

But the moment at point A is zero, thus
EMM 3506 – GROUP 3

Page 32
D1

=[

( )

√( )

(

=20.17 mm = D4
D3

=[

(

)

√(

)

(

)

(this are due to the zero moment at both ends)
)

( )

(

)

Referring to the bending moment diagram above,
MBX = 42.42N m
MBY = 116.54 N m
Applying Pythagoras’s theorem, M = √
=√
= 124.02 N m

D3

=[

( )

√(

)

(

)

(

)

= 39.33 mm
D2 will be larger than D3 and D1 in order to provide a shoulder for the gear. The actual value of
D2 will be specified after the analysis has been completed.

Fillet designs for shaft 1
There are three fillets for shaft 1 which two of them are sharp and one of them is wellrounded. The value of Kt is 2.5 for sharp fillet and 1.5 for well-rounded fillet. For shaft 1, r1 and
r3 are shaft fillets while r2 is well-rounded fillet. By referring to figure below,

EMM 3506 – GROUP 3

Page 33
Figure 1.2: Reference diagram used in determining the fillet radius

Stressconcentration

D/d

r/d

Fillet Radius

d (mm)

(mm)

factor, Kt
r1

2.5

2.27

0.015

22

0.33

r3

1.5

1.19

0.06

42

2.52

r4

2.5

1.91

0.015

22

0.33

Summary for shaft

1
EMM 3506 – GROUP 3

Page 34
The calculated minimum required diameters for various parts of the shaft 1 are as follows:
D1

= 20.17 mm

D2

= 50.00 mm (D2 must be larger than D1 and D3 to provide shoulders for them)

D3

= 39.33 mm

D4

= 20.17 mm

The dimensions above are minimum diameters for various parts, to ease manufacturing process
and provide extra safety, rounded-off and larger diameters are used:
D1

= 22.00 mm

D2

= 50.00mm

D3

= 42.00mm

D4

= 22.00mm

Fillet Radius

Dimension (mm)

r1

0.33

r3

2.52

r4

0.33

EMM 3506 – GROUP 3

Page 35
EMM 3506 – GROUP 3

Page 36
7.2.2 CALCULATION FOR SHAFT 2 AND DRAWING

Gear 4 on shaft 2 receive the torque from pinion 1 on shaft 1.

Force on the Gear 4,
Tangential force, Wt(c)

=

=
= 1363.64 N

EMM 3506 – GROUP 3

Page 37
Radial force, Wr (c)

=Wt tan
=1363.64 tan 20 º
=496.32 N

Force exerted by drum
WDrum = ρVg
= 8030 kg/m3 x 9.7839 x 10-3 m3 x 9.81 m/s2
= 770.72 N

EMM 3506 – GROUP 3

Page 38
D1

=[

(

)

√(

)

( )

(

)

Moment is zero at both ends

D1

=[

( )

√( )

(

)

(

)

= 38.59 mm = D3

At point B, where there is a profile keyset at the gear 4.
Thus by calculation the theoretical Db is 45.64 mm
Diameter for 2 must be larger than D1 and D3. It also must exceed Db which is theoretical value
if gear is apart from the drum.

Fillet designs for shaft 2
There are 2 fillets for shaft 2 which both are sharp. The value of Kt is 2.5 for sharp fillet.
For shaft 3, r1 and r3 are shaft fillets. By referring to figure below,

EMM 3506 – GROUP 3

Page 39
Figure 3.1: Reference diagram used in determining the fillet radius

Table 3.1: Fillet radius calculated based on the figure 3.1.
Stressconcentration

D/d

r/d

d (mm)

factor, Kt

Fillet Radius
(mm)

r1

2.5

1.5

0.015

40

0.6

r3

2.5

1.5

0.015

40

0.6

EMM 3506 – GROUP 3

Page 40
Summary for shaft 2

The calculated minimum required diameters for various parts of the shaft 1 are as follows:
D1

= 38.59mm

D2

= 60.00mm (D2 must be larger than D1 and D3 to provide shoulders for them)

D3

= 38.59mm

Also, on the left side of the Gear 4, there is where the drum placed. The drum exerts a force to
the shaft in vertical plane. Thus, D2 has to be increased again to ensure the force exerted from the
drum does not fail the shaft. All the dimensions above are then enlarged with certain ratio such
that the D2 has the same value as the hollow hole in the drum as what is in Drum Specification.
The values are the rounded-off in order the ease the manufacturing process.
D1

= 40.00mm

D2

= 60.00mm

D3

= 40.00mm
Fillet Radius

Dimension (mm)

r1

0.6

r3

0.6

EMM 3506 – GROUP 3

Page 41
EMM 3506 – GROUP 3

Page 42
7.2.3 CALCULATION FOR SHAFT 3 AND DRAWING

Torque was transmitted from gear 4 to the gear 3.

Force on the Gear 3,
Tangential force, Wt(c)

=

= 1363.63 N
EMM 3506 – GROUP 3

Page 43
Radial force, Wr (c)

=Wt tan
=1363.63 tan 20 º
=496.32 N

Force on the Gear 2,
Tangential force, Wt(c)

=

= 214.29 N
Radial force, Wr (c)

=Wt tan
=214.29 tan 20 º
=77.994 N

EMM 3506 – GROUP 3

Page 44
D1

=[

(

)

√(

)

( )

(

)

There has no moment at both ends

=[

( )

√( )

(

)

(

)

= 20.17 mm = D5
Referring to the bending moment diagram above,
MBX = 44.64 N m
MBY = 122.69 N m

Applying Pythagoras’s theorem, M = √
=√

)

(

)

= 130.56 N m

D3

=[

( )

√(

)

(

)

(

)

= 40.00 mm

Referring to the bending moment diagram above,
McX = 16.698 N m
McY = 45.93 N m

EMM 3506 – GROUP 3

Page 45
Applying Pythagoras’s theorem, Mc = √
)

= √(

(

)

= 48.87 N m

D4

=[

( )

√(

)

(

)

(

)

= 29.29 mm
Fillet designs for shaft 3
There are four fillets for shaft 3 which two of them are sharp and two of them are wellrounded. The value of Kt is 2.5 for sharp fillet and 1.5 for well-rounded fillet. For shaft 2, r1 and
r4 are shaft fillets while r2 and r3 are well-rounded fillets. By referring to figure below,

Figure 2.1: Reference diagram used in determining the fillet radius

EMM 3506 – GROUP 3

Page 46
Table 2.1: Fillet radius calculated based on the Figure 2.1.
Stressconcentration

D/d

r/d

d (mm)

factor, Kt

Fillet Radius
(mm)

r1

2.5

2.5

0.015

22

0.33

r3

1.5

1.25

0.07

44

3.08

r4

1.5

1.33

0.08

33

2.64

r5

2.5

1.5

0.015

22

0.33

Summary for shaft 3

The calculated minimum required diameters for various parts of the shaft 2 are as follows:

EMM 3506 – GROUP 3

Page 47
D1

= 20.17mm

D2

= 55.00 mm (D2 must be larger than D1 and D3 to provide shoulders for them)

D3

= 40.00 mm

D4

= 29.29mm

D5

= 20.17mm

The dimensions above are minimum diameters for various parts, to ease manufacturing process
and provide extra safety, rounded-off and larger diameters are used:
D1

= 22.00 mm

D2

= 55.00mm

D3

= 44.00mm

D4

= 33.00mm

D5

= 22.00mm
Table 2.2: Fillet radii used for shaft 2
Fillet Radius

Dimension (mm)

r1

0.33

r3

3.08

r4

2.64

r5

0.33

EMM 3506 – GROUP 3

Page 48
EMM 3506 – GROUP 3

Page 49
7.3

KEY AND KEYSEATS CALCULATIONS
In order to allow the gear transmit its rotational power to the shaft effectively and without

any slipping, keys are used for all the pinions and gears in our design. In our design, profile
rectangular keys are used as they are most common used keys in industry as well as due to a
lower cost required. Profile rectangular keys can ensure that the shaft and gear interlock each
other in all direction, which is better to prevent the gear from moving in any direction.

EMM 3506 – GROUP 3

Page 50
EMM 3506 – GROUP 3

Page 51
Shaft 1, for gear 1

H = 9mm

W = 14mm

Shaft 2, for gear 4

H = 11mm

W = 18mm

Shaft 3, for gear 3and 2

H = 9mm

W = 14mm

Gear 3

H = 8mm

W = 10mm

Gear 2

EMM 3506 – GROUP 3

Page 52
Key for gear 1
Bearing and Shear Stress Analysis
Since for gear 1, the diameter of shaft where the gear mounted on it is 42.00mm. From Appendix
in page 23, the standard width and height of the key are 14.00mm and 9.00mm respectively.
Width of the key, W = 14.00mm
Diameter of the shaft, D = 42.00mm
The key is expected to withstand sudden shock or impact, thus the safety factor used is 6.
From calculation for shaft 1, the torque transmitted is 45.0 N m
Tensile strength of shaft 1, Su = 621 M Pa.
The minimum required key length can be calculated using the formula as below:

Ls

=
= 2.96 mm

Key for gear 2
Bearing and Shear Stress Analysis
For gear 2, the diameter of shaft where the gear 2 mounted on it is 33.00mm. From Appendix in
page 23, the standard width and height of the key are 10.00mm and 8.00mm respectively. Width
of the key, W = 10.00mm
Diameter of the shaft, D = 33.00mm
The key is expected to withstand sudden shock or impact, thus the safety factor used is 6.
From calculation for shaft 1, the torque transmitted is 45.0N m
Tensile strength of shaft 1, Su = 621 M Pa.

EMM 3506 – GROUP 3

Page 53
The minimum required key length can be calculated using the formula as below:

Ls

=
= 5.27 mm

Key for gear 3
Bearing and Shear Stress Analysis
For gear 3, the diameter of shaft where the gear 3 mounted on it is 44.00mm. From Appendix in
page 23, the standard width and height of the key are 14.00mm and 9.00mm respectively. Width
of the key, W = 14.00mm
Diameter of the shaft, D = 44.00mm
The key is expected to withstand sudden shock or impact, thus the safety factor used is 6.
From calculation for shaft 3, the torque transmitted is 45 N m
Tensile strength of shaft 1, Su = 621 M Pa.
The minimum required key length can be calculated using the formula as below:

Ls

=
= 2.82 mm

Key for gear 4
Bearing and Shear Stress Analysis
For gear 4, the diameter of shaft where the gear 4 mounted on it is 60.00mm. From Appendix in
page 23, the standard width and height of the key are 18.00mm and 11 mm respectively. Width
of the key, W = 18.00mm
EMM 3506 – GROUP 3

Page 54
Diameter of the shaft, D = 60.00mm
The key is expected to withstand sudden shock or impact, thus the safety factor used is 6.
From calculation for shaft 2, the torque transmitted is 315 N m
Tensile strength of shaft 1, Su = 621 M Pa.

The minimum required key length can be calculated using the formula as below:

Ls

=
= 11.27 mm

The values of required length above are the minimum lengths required for every single key. The
values are enlarged to ease the manufacturing process and provide extra safety.

Summary
Table 3.1: Dimensions of keys used
Torque

Required

Transmitted

length of key

(N m)

(mm)

14.00

45.0

2.96

30.00

33.00

10.00

45.0

5.27

30.00

Gear 3

44.00

14.00

45.0

2.82

30.00

Gear 4

60.00

18.00

315.0

11.27

30.00

Diameter of

Width of key

Shaft (mm)

(mm)

Gear 1

42.00

Gear 2

EMM 3506 – GROUP 3

Actual length
of key (mm)

Page 55
7.4

CALCULATION FOR SPEED 2

7.4.1 CALCULATION FOR SHAFT 1 AND DRAWING

Material selection
Referred back to the Stainless Steel 304, the material has possessed two properties which is
chemical and mechanical. In this scope, we more likely to know its mechanical properties which
are main reason due to the all the information that lead to the shaft requirement and can be
calculated based on formula that can be used. All the data for the chemical and mechanical
properties of the Stainless Steel 304can be summarize as seen in next page;

Chemistry % by Weight
Element
Type 302

Type 304

Type 304L

Type 305

Fe

64.99-74%

Cr

17%

18%

18%

17%

Ni

8%

8%

8%

10.50%

Mn

2%

2%

2%

2%

N

0.10%

0.10%

0.10%

-

EMM 3506 – GROUP 3

Page 56
S

0.03%

0.03%

0.03%

0.03%

C

0.15%

0.08%

0.03%

0.12%

Si

0.75%

0.75%

0.75%

0.75%

P

0.045%

0.045%

0.045%

0.045%

Properties
Properties
Physical Properties
Density
Mechanical properties
Hardness, Rockwell B
Tensile Strength, Ultimate
Tensile Strength, Yield

Value

Comment

8.03 g/cc
82
621 Mpa (=90100psi)
290 Mpa (=42100psi)

0.2% YS

Elongation at Break

55%

in 2 inches

Modulus of Elasticity
Modulus of Elasticity
Electrical properties
Electrical Resistivity
Electrical Resistivity
Magenetic permeability
Thermal properties
CTE, linear 20°C
CTE, linear 20°C
Heat Capacity
Thermal Conductivity
Thermal Conductivity
Processing properties
Melt temperature

193 Gpa
78 Gpa

tension
torsion

0.000116 ohm-cm
7.2e-005 ohm-cm
Max 1.02

659 °C

16.9 µm/m-°C
18.7 µm/m-°C
0.5 J/g-°C
16.2 W/m-K
21.4 W/m-K

0 to 100°C
to 649°C
0°C to 100°
100°C
500°C

H = 200 Oersteds, Annealed

1371- 1399 °C

Endurance strength, Sn
Endurance strength, Sn

= 0.5 Su
=0.5(621)
=310.50M Pa

EMM 3506 – GROUP 3

Page 57
Actual Endurance Strength, Sn'
Actual Endurance Strength, Sn’

= Sn (Cm) (Cst) (CR) (CS)

Cm = 1.0 (Since the material we used is steel)
Cst = 1.0 (Type of loading is bending)
CR = 0.81 (The shaft is designed to has reliability of 0.99)
CS = 0.75 (We assume it as we do not know the actual size yet)
Actual Endurance Strength, Sn’

=310.50 (1.0) x (1.0) x (0.81) x (0.75)
= 188.63MPa

Average force applied on handle is 150N, and the length of handle is 0.3m
Therefore, Torque, T = 150 x (0.3)
= 45N.m
Force on the Pinion 1, Tangential force, Wt =

=
= 1363.64 N

Radial force, Wr

=Wt tan
=1363.64 tan 20 º
=496.32N

EMM 3506 – GROUP 3

Page 58
r1 is a sharp fillet, then a stress concentration factor of 2.5 should be used.
Safety Factor of 6 is used as the shaft is expected to withstand unusual shock or impact.
D1

=[

(

)

√(

)

( )

(

)

(

)

But the moment at point A is zero, thus

D1

=[

( )

√( )

(

=20.17 mm = D4
D3

=[

(

)

√(

EMM 3506 – GROUP 3

)

(this are due to the zero moment at both ends)
)

( )

(

)

Page 59
Referring to the bending moment diagram above,
MBX = 16.29N m
MBY = 44.77 N m
Applying Pythagoras’s theorem, M = √
=√
= 47.64 N m

D3

=[

( )

√(

)

(

)

(

)

= 29.07 mm
D2 will be larger than D3 and D1 in order to provide a shoulder for the gear. The actual value of
D2 will be specified after the analysis has been completed.

Fillet designs for shaft 1
There are three fillets for shaft 1 which two of them are sharp and one of them is wellrounded. The value of Kt is 2.5 for sharp fillet and 1.5 for well-rounded fillet. For shaft 1, r1 and
r3 are shaft fillets while r2 is well-rounded fillet. By referring to figure below,

EMM 3506 – GROUP 3

Page 60
Figure 1.2: Reference diagram used in determining the fillet radius
Stressconcentration

D/d

r/d

d (mm)

factor, Kt

Fillet Radius
(mm)

r1

2.5

2.27

0.015

22

0.33

r3

1.5

1.21

0.06

33

1.98

r4

2.5

1.91

0.015

22

0.33

Summary for shaft 1

The calculated minimum required diameters for various parts of the shaft 1 are as follows:
D1

= 20.17 mm

D2

= 40.00 mm (D2 must be larger than D1 and D3 to provide shoulders for them)

D3

= 29.07 mm

D4

= 20.17 mm

EMM 3506 – GROUP 3

Page 61
The dimensions stated previous page are minimum diameters for various parts, to ease
manufacturing process and provide extra safety, rounded-off and larger diameters are used:
D1

= 22.00 mm

D2

= 40.00mm

D3

= 33.00mm

D4

= 22.00mm

Fillet Radius

Dimension (mm)

r1

0.33

r3

1.98

r4

0.33

EMM 3506 – GROUP 3

Page 62
EMM 3506 – GROUP 3

Page 63
7.4.2 CALCULATION FOR SHAFT 2 AND DRAWING

Gear 4 on shaft 2 receive the torque from pinion 1 on shaft 1.

Force on the Gear 4,
Tangential force, Wt(c)

=

=
= 8677.58 N

EMM 3506 – GROUP 3

Page 64
Radial force, Wr (c)

=Wt tan
=8677.58 tan 20 º
=3158.38 N

Force exerted by drum
WDrum = ρVg
= 8030 kg/m3 x 9.7839 x 10-3 m3 x 9.81 m/s2
= 770.72 N

D1

=[

(

)

√(

EMM 3506 – GROUP 3

)

( )

(

)

Page 65
Moment is zero at both ends

D1

=[

( )

√( )

(

)

(

)

= 71.52 mm = D3

At point B, where there is a profile keyset at the gear 4.
Thus by calculation the theoretical Db is 73.62 mm
Diameter for 2 must be larger than D1 and D3. It also must exceed Db which is theoretical value
if gear is apart from the drum.

Fillet designs for shaft 2
There are 2 fillets for shaft 2 which both are sharp. The value of Kt is 2.5 for sharp fillet.
For shaft 3, r1 and r3 are shaft fillets. By referring to figure below,

Figure 3.1: Reference diagram used in determining the fillet radius

EMM 3506 – GROUP 3

Page 66
Table 3.1: Fillet radius calculated based on the figure 3.1.
Stressconcentration

D/d

r/d

d (mm)

Fillet Radius

factor, Kt

(mm)

r1

2.5

1.13

0.01

75

0.75

r3

2.5

1.13

0.01

75

0.75

Summary for shaft 2

The calculated minimum required diameters for various parts of the shaft 1 are as follows:
D1

= 71.52mm

D2

= 85.00mm (D2 must be larger than D1 and D3 to provide shoulders for them)

D3

= 71.52mm

EMM 3506 – GROUP 3

Page 67
Also, on the left side of the Gear 4, there is where the drum placed. The drum exerts a force to
the shaft in vertical plane. Thus, D2 has to be increased again to ensure the force exerted from the
drum does not fail the shaft. All the dimensions above are then enlarged with certain ratio such
that the D2 has the same value as the hollow hole in the drum as what is in Drum Specification.
The values are the rounded-off in order the ease the manufacturing process.
D1

= 75.00mm

D2

= 85.00mm

D3

= 75.00mm
Fillet Radius

Dimension (mm)

r1

0.75

r3

0.75

EMM 3506 – GROUP 3

Page 68
EMM 3506 – GROUP 3

Page 69
7.4.3 CALCULATION FOR SHAFT 3 AND DRAWING

Torque was transmit from gear 1 to the gear 2.

Force on the Gear 2,
Tangential force, Wt(c)

=

= 1363.63 N
EMM 3506 – GROUP 3

Page 70
Radial force, Wr (c)

=Wt tan
=1363.63 tan 20 º
=496.32 N

Force on the Gear 3,
Tangential force, Wt(c)

=

= 8677.57 N
Radial force, Wr (c)

=Wt tan
=8677.57 tan 20 º
=3158.38 N

EMM 3506 – GROUP 3

Page 71
D1

=[

(

)

√(

)

( )

(

)

There has no moment at both ends

=[

( )

√( )

(

)

(

)

= 37.39 mm = D5
Referring to the bending moment diagram above, for at point gear 3
MBX = 284.52N m
MBY = 780.52 N m

Applying Pythagoras’s theorem, M = √
= √(

)

(

)

= 830.76 N m

D3

=[

( )

√(

)

(

)

= 74.09 mm

Referring to the bending moment diagram above, at point gear 2
McX = 106.78 N m
McY = 291.99 N m

EMM 3506 – GROUP 3

Page 72
Applying Pythagoras’s theorem, Mc = √
= √(

)

(

)

= 310.90 N m

D4

=[

( )

√(

)

(

)

= 54.26 mm
Fillet designs for shaft 3
There are four fillets for shaft 3 which two of them are sharp and two of them are wellrounded. The value of Kt is 2.5 for sharp fillet and 1.5 for well-rounded fillet. For shaft 2, r1 and
r4 are shaft fillets while r2 and r3 are well-rounded fillets. By referring to figure below,

Figure 2.1: Reference diagram used in determining the fillet radius

EMM 3506 – GROUP 3

Page 73
Table 2.1: Fillet radius calculated based on the Figure 2.1.
Stressconcentration

D/d

r/d

d (mm)

factor, Kt

Fillet Radius
(mm)

r1

2.5

2.0

0.015

40

0.6

r3

1.5

1.067

0.025

75

1.875

r4

1.5

1.36

0.075

55

4.125

r5

2.5

1.375

0.015

40

0.6

Summary for shaft 3

EMM 3506 – GROUP 3

Page 74
The calculated minimum required diameters for various parts of the shaft 2 are as follows:

D1

= 37.39mm

D2

= 80.00 mm (D2 must be larger than D1 and D3 to provide shoulders for them)

D3

= 74.09 mm

D4

= 54.26mm

D5

= 37.39mm

The dimensions above are minimum diameters for various parts, to ease manufacturing process
and provide extra safety, rounded-off and larger diameters are used:
D1

= 40.00 mm

D2

= 80.00mm

D3

= 75.00mm

D4

= 55.00mm

D5

= 40.00 mm
Table 2.2: Fillet radii used for shaft 2
Fillet Radius

Dimension (mm)

r1

0.6

r3

1.875

r4

4.125

r5

0.6

EMM 3506 – GROUP 3

Page 75
EMM 3506 – GROUP 3

Page 76
7.5

KEY AND KEYSEATS CALCULATIONS
In order to allow the gear transmit its rotational power to the shaft effectively and without

any slipping, keys are used for all the pinions and gears in our design. In our design, profile
rectangular keys are used as they are most common used keys in industry as well as due to a
lower cost required. Profile rectangular keys can ensure that the shaft and gear interlock each
other in all direction, which is better to prevent the gear from moving in any direction.

EMM 3506 – GROUP 3

Page 77
EMM 3506 – GROUP 3

Page 78
Shaft 1, for gear 1

H = 8mm

W = 10mm

Shaft 2, for gear 4

H = 14mm

W = 25mm

Shaft 3, for gear 3and 2

H = 14mm

W = 22mm

Gear 3

H = 10mm

W = 16mm

Gear 2

EMM 3506 – GROUP 3

Page 79
Key for gear 1
Bearing and Shear Stress Analysis
Since for gear 1, the diameter of shaft where the pinion 1 mounted on it is 33.00mm. From
Appendix in page 23, the standard width and height of the key are 10.00mm and 8.00mm
respectively.
Width of the key, W = 10.00mm
Diameter of the shaft, D = 33.00mm
The key is expected to withstand sudden shock or impact, thus the safety factor used is 6.
From calculation for shaft 1, the torque transmitted is 45.0 N m
Tensile strength of shaft 1, Su = 621 M Pa.
The minimum required key length can be calculated using the formula as below:

Ls

=
= 5.27 mm

Key for gear 2
Bearing and Shear Stress Analysis
Since for gear 2, the diameter of shaft where the gear 2 mounted on it is 55.00mm. From
Appendix in page 23, the standard width and height of the key are 16.00mm and 10.00mm
respectively. Width of the key, W = 16.00mm
Diameter of the shaft, D = 55.00mm
The key is expected to withstand sudden shock or impact, thus the safety factor used is 6.
From calculation for shaft 1, the torque transmitted is 286.36 N m
Tensile strength of shaft 1, Su = 621 M Pa.

EMM 3506 – GROUP 3

Page 80
The minimum required key length can be calculated using the formula as below:

Ls

=
= 12.58 mm

Key for gear 3
Bearing and Shear Stress Analysis
For gear 3, the diameter of shaft where the gear 3 mounted on it is 75.00mm. From Appendix in
page 23, the standard width and height of the key are 22.00mm and 14.00mm respectively.
Width of the key, W = 22.00mm
Diameter of the shaft, D = 75.00mm
The key is expected to withstand sudden shock or impact, thus the safety factor used is 6.
From calculation for shaft 3, the torque transmitted is 286.36 N m
Tensile strength of shaft 1, Su = 621 M Pa.
The minimum required key length can be calculated using the formula as below:

Ls

=
= 6.71 mm

Key for gear 4
Bearing and Shear Stress Analysis
For gear 4, the diameter of shaft where the gear 4 mounted on it is 85.00mm. From Appendix in
page 23, the standard width and height of the key are 25.00mm and 14 mm respectively. Width
of the key, W = 25.00mm
EMM 3506 – GROUP 3

Page 81
Diameter of the shaft, D = 85.00mm
The key is expected to withstand sudden shock or impact, thus the safety factor used is 6.
From calculation for shaft 2, the torque transmitted is 2004.52 N m
Tensile strength of shaft 1, Su = 621 M Pa.

The minimum required key length can be calculated using the formula as below:

Ls

=
= 36.46 mm

The values of required length above are the minimum lengths required for every single key. The
values are enlarged to ease the manufacturing process and provide extra safety.

Summary
Table 3.1: Dimensions of keys used
Torque

Required

Transmitted

length of key

(N m)

(mm)

10.00

45.0

5.27

30.00

55.00

16.00

286.36

12.58

30.00

Gear 3

75.00

22.00

286.36

6.71

30.00

Gear 4

85.00

25.00

2004.52

36.46

30.00

Diameter of

Width of key

Shaft (mm)

(mm)

Gear 1

33.00

Gear 2

EMM 3506 – GROUP 3

Actual length
of key (mm)

Page 82
7.6

CONCLUSION OF SHAFT

From the calculation for both speed as we calculated as shown in previous page, the shaft
diameter calculated give the difference between both speeds. Therefore, we are considering the
shaft with bigger diameter for our selection due to safety reason.
In comparison, shaft 1 for speed one is bigger than diameter of shaft for speed 2. Thus we
are select diameter in calculation for speed 1. For shaft 2, diameter calculated for speed 1 smaller
than diameter calculated for speed 2. The diameter calculated for speed 2 is selected. For the
third shaft, the diameter calculated for speed 1 also smaller than diameter for shaft calculated
from speed 2. Thus we select diameter calculated for the speed 2.
The final selection of the shaft is listed as below for our design of winch.
SHAFT NO.
1

Diameter 1
(mm)
22.00

Diameter 2
(mm)
50.00

Diameter 3
(mm)
42.00

Diameter 4
(mm)
22.00

Diameter
5(mm)
-

2

75.00

85.00

75.00

-

-

3

40.00

80.00

75.00

55.00

40.00

EMM 3506 – GROUP 3

Page 83
8.0

LUBRICATION

8.1

INTRODUCTION OF LUBRICATION
Lubrication is simply the use of a material to improve the smoothness if movement of

one surface over another; the material which is used in this way is called a lubricant. Lubricants
are usually liquids or semi-liquids, but may be solids or gases or any combination of solids,
liquids, and gases. The smoothness of movement is improved by reducing friction. This is not,
however, always the case, and there may be situations in which it is more important to maintain
steady friction than to obtain the lowest possible friction. In addition to reducing or controlling
friction, lubricants are usually expected to reduce wear and often to prevent overheating and
corrosion.
TYPES OF LUBRICANT
Lubricants are usually divided into four basic classes.
No.
1

Type
Oils

Description
A general term used to cover all liquid lubricants, whether they are
mineral oils, natural oils, synthetics, emulsions, or even process fluids.

2

Greases

Technically these are oils, which contain a thickening agent to make
them semi-solid. It is convenient, however, to include the anti-seize
pastes and the semi-fluid greases under the same heading.

3

Dry lubricant

These include any lubricants, which are used in solid form, and may be
bulky solids, paint-like coatings, or loose powders.

4

Gases

The gas usually used in gas bearings is air, but any gas can be used
which will not attack the bearings, or itself decompose.
Table 1: type of lubricant in industry

OIL LUBRICATION

Oils are used in journal bearings when cooling is required or contaminants or debris need to be
EMM 3506 – GROUP 3

Page 84
flushed away from the bearing. High-speed journal bearings are always lubricated with oil rather
than grease. Oil is supplied to the bearing by either a pressurized oil pump system, an oil ring or
collar or a wick. Grooves in the bearing shell are used to distribute the oil throughout the
bearings’ surfaces.
The viscosity grade required is dependent upon bearing RPM, oil temperature and load. The
bearing speed is often measured strictly by the revolutions per minute of the shaft, with no
consideration of the surface speed of the shaft.
Bearing Speed
(rpm)

Bearing / Oil Temperature (°C)
0 to 50

60

75

90

-

68

100 to 150

-

~1,800

32

32 to 46

68 to 100

100

~3,600

32

32

46 to 68

68 to 100

~10,000

32

32

32

32 to 46

300 to 1,500

Table 2: Journal Bearing ISO Viscosity Grade Selection

EMM 3506 – GROUP 3

Page 85
9.0

BEARING

9.1

INTRODUCTION OF BEARING
Bearing is machine element that constrains relative motion and reduces friction

between moving parts to only the desired motion. The design of the bearing may, for example,
provide for free linear movement of the moving part or for free rotation around a fixed axis; or, it
may prevent a motion by controlling the vectors of normal forces that bear on the moving parts.
Many bearings also facilitate the desired motion as much as possible, such as by minimizing
friction. Bearings are classified broadly according to the type of operation, the motions allowed,
or to the directions of the loads (forces) applied to the parts.
TYPES OF BEARING
Type
Plain bearing

Description
Rubbing surfaces, usually with lubricant; some bearings use pumped
lubrication and behave similarly to fluid bearings.

Rolling element

Ball or rollers are used to prevent or minimize rubbing

bearing
Jewel bearing

Off-center bearing rolls in seating

Fluid bearing

Fluid is forced between two faces and held in by edge seal

Magnetic bearing

Faces of bearing are kept separate by magnets

Flexure bearing

Material flexes to give and constrain movement
Table 3: type of bearing in industry

For our design we are focusing in using plain bearing which is journal type, straight
journal bearing. This type of journal bearing operates in the boundary regime (metal-to-metal
contact) only during the startup and shutdown of the equipment when the rotational speed of the
shaft (journal) is insufficient to create an oil film. As we known, this type of journal is selflubricate.

EMM 3506 – GROUP 3

Page 86
It is important to understand that the rotating shaft is not centered in the bearing shell during
normal operation. This offset distance is referred to as the eccentricity of the bearing and creates
a unique location for the minimum oil film thickness, as shown in next page.

Figure 1: operation of lubricant and journal bearing

EMM 3506 – GROUP 3

Page 87
9.2

DESIGN OF BEARING
To get optimal performance from the bearing, designer must pay special attention to

design as regards the fit between the inner ring, outer ring, and the housing. This fit and design
must be suitable for the specific equipment involved in the application. For example, too loose a
fit could result in a corroded or scored bearing bore and shaft; while too tight a fit could result in
unnecessarily large mounting and dismounting forces and too great a reduction in internal
bearing clearance.
All rolling bearing manufacturers make bearings to standardized tolerances set forth by
the Anti-Friction Bearing Manufacturers Association (AFBMA) and the International Standards
Organization (ISO). The proper fits can only be obtained by selecting the proper tolerances for
the shaft. Each tolerance is designated by a letter and a numeral. The small letter is for shaft fits
and the capital letter is for housing bores, and together they locate the tolerance zone in relation
to the nominal dimensions. The numeral designation gives the magnitude of the tolerance zone.
Shaft and Housing
Finish precision of bearing shaft and housing:
After bearing installation, degradation will occur in the roundness of the bearings if the
design and fit of the shaft and housing are not appropriate. The precision and surface roughness
of the shaft and housing must be at satisfactory levels to protect the bearings and optimize their
performance.
Fillet radii of corners of shaft and housing:
The design of the side faces of bearing shafts and housings, or the area contact the
bearing side face, causes them to come to the shaft center and fit surface at right angles. The
fillet radii of the shaft and housing corners have a maximum permissible radius (ras max) is
smaller than minimum permissible chamfer dimensions of the bearings.

EMM 3506 – GROUP 3

Page 88
Height of shoulder:
The design of the shaft and housing shoulders must include a height that is taller than
minimum permissible chamfer dimensions. The shoulders also must be designed to contact the
side faces of the inner and outer rings.
To design shoulders properly, ensure that the minimum height of shoulders is four times
taller than minimum permissible chamfer dimensions. The table and figure on this page provide
additional insight into the dimension specifics of this bearing design requirement.
Referred from JIS B 1566

Figure 3: shaft housing and chamfer

EMM 3506 – GROUP 3

Page 89
Bearing Material
Bearing materials constitute an import part of any bearing. Their significance is at the start of the
hydro-dynamic lubrication when metal to metal contact occurs or during mixed and boundary
lubrication period.
Desirable properties of good bearing material are;1. Conformability (low elastic modulus) and deformability (plastic flow) to relieve local
high pressures caused by misalignment and shaft deflection.
2. Embeddability or indentation softness, to permit small foreign particles to become
safely embedded in the material, thus protecting the journal against wear.
3. Low shear strength for easy smoothing of surface asperities.
4. Adequate compressive strength and fatigue strength for supporting the load and for
enduring the cyclic loading as with engine bearings under all operating conditions.
5. Should have good thermal conductivity to dissipate the frictional heat and coefficient
of thermal expansion similar to the journal and housing material.
6. It should be compatible with journal material to resist scoring, welding and seizing.
7. Should have good corrosion resistance against the lubricant and engine combustion
products.
Babbits are the most commonly used bearing materials. Babbitts have excellent
conformability and embeddability, but have relatively low compressive and fatigue
strength.Other materials such as tin bronze, leaded bronze, copper lead alloy, aluminium bronze,
aluminium alloys and cast iron are also used in many applications. Widely used bearing material
compositions are given below:
a.Tin-base babbitts with 89% Sn, 8% Pb and 3% Cu,
b. Lead- base babbitts with 75% Pb, 15% Sb and 10% Sn,
c. Copper alloys such as Cu- 10% to 15% Pb.

EMM 3506 – GROUP 3

Page 90
Bimetal and trimetal bearings are used in engine application to reduce the size of the
bearing and obtain good compatibility and more load capacity. The bearings can be of solid
bushings or lined bushings. Sometimes two piece with or without flanges are also used. These
are shown in Fig.4.1. The inner surfaces of the bearings are grooved to facilitate the supply of
lubricant to the surface of the journal. Various groove pattern used in industry are shown in Fig.
4.2.

a) Solid bushing

b) Fanged

c) Lined bushing

d) Straight
Figure 4.1: various types of bush bearing

EMM 3506 – GROUP 3

Page 91
Figure 4.2: developed views of typical groove patterns

Bearing Life
Generally, a rolling bearing cannot rotate forever. Unless operating conditions are ideal
and the fatigue load limit is not reached, sooner or later material fatigue will occur. The period
until the first sign of fatigue appears is a function of the number of revolutions performed by the
bearing and the magnitude of the load. Fatigue is the result of shear stresses cyclically appearing
immediately below the load carrying surface. After a time these stresses cause cracks which
gradually extend up to the surface. As the rolling elements pass over the cracks fragments of
material break away and this is known as flaking or spalling.
The flaking progressively increases in extent and eventually makes the bearing unserviceable (fig
5.1, fig 5.2, fig 5.3, fig 5.4)

fig 5.1

EMM 3506 – GROUP 3

fig 5.2

fig 5.3

fig 5.4

Page 92
The life of a rolling bearing is defined as the number of revolutions the bearing can perform
before incipient flaking occurs. This does not mean to say that the bearing cannot be used after
then. Flaking is a relatively long, drawn-out process and makes its presence known by increasing
noise and vibration levels in the bearing. Therefore, as a rule, there is plenty of time to prepare
for a change of bearing.

EMM 3506 – GROUP 3

Page 93
9.3

BEARING SELECTION

EMM 3506 – GROUP 3

Page 94
9.4

2D DRAWING
The bearing was selected by refereed to the diameter of shaft. The diameter that was used

the bearing was the diameter of the ends of every shaft, which is the required internal diameter
for the bearing. The picture only show one drawing due to the same design, but only the inner
and outer diameter is different for every shaft.

EMM 3506 – GROUP 3

Page 95
10.0

FRAME

10.1

INTRODUCTION
The Stainless Steel 304, the material has possessed two properties which is chemical and

mechanical. In this scope, we more likely to know its mechanical properties which are main
reason due to the all the information that lead to the shaft requirement and can be calculated
based on formula that can be used. All the data for the chemical and mechanical properties of the
Stainless Steel 304can be summarize as seen below;
The selection was influenced by the material shaft, this are due to the safety issues, which
is the component will hold the same strain and the limit also same, thus the safety issue does be
easier to counter.

Chemistry % by Weight
Element
Type 302

Type 304

Type 304L

Type 305

Fe

64.99-74%

Cr

17%

18%

18%

17%

Ni

8%

8%

8%

10.50%

Mn

2%

2%

2%

2%

N

0.10%

0.10%

0.10%

-

S

0.03%

0.03%

0.03%

0.03%

C

0.15%

0.08%

0.03%

0.12%

Si

0.75%

0.75%

0.75%

0.75%

P

0.045%

0.045%

0.045%

0.045%

EMM 3506 – GROUP 3

Page 96
Properties
Properties
Physical Properties
Density
Mechanical properties
Hardness, Rockwell B
Tensile Strength, Ultimate
Tensile Strength, Yield

Value

Comment

8.03 g/cc
82
621 Mpa (=90100psi)
290 Mpa (=42100psi)

0.2% YS

Elongation at Break

55%

in 2 inches

Modulus of Elasticity
Modulus of Elasticity
Electrical properties
Electrical Resistivity
Electrical Resistivity
Magenetic permeability
Thermal properties
CTE, linear 20°C
CTE, linear 20°C
Heat Capacity
Thermal Conductivity
Thermal Conductivity
Processing properties
Melt temperature

193 Gpa
78 Gpa

tension
torsion

0.000116 ohm-cm
7.2e-005 ohm-cm
Max 1.02

659 °C

16.9 µm/m-°C
18.7 µm/m-°C
0.5 J/g-°C
16.2 W/m-K
21.4 W/m-K

0 to 100°C
to 649°C
0°C to 100°
100°C
500°C

EMM 3506 – GROUP 3

H = 200 Oersteds, Annealed

1371- 1399 °C

Page 97
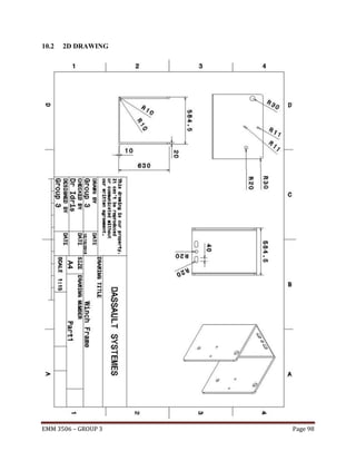
10.2

2D DRAWING

EMM 3506 – GROUP 3

Page 98
11.0

RATCHET AND PAWL

11.1

INTRODUCTION
Ratchets and pawls are mechanical assemblies allowing a shaft to rotate in one direction

and not the other. Ratchets are commonly known as ratchet wheels, because they consist of a
rotational gear (or rack) with angled teeth. Pawls are thin pieces of metal which rest against
ratchets to restrict the ratchet's motion. When the ratchet is rotated in one direction, the pawl is
raised and moves smoothly between the ratchet's teeth. When the ratchet's rotation stops, the
pawl drops between the ratchet teeth and makes clicking noises.
Ratchets can operate quietly and smoothly or be harsh and jarring, depending on the installation
of the ratchet teeth and pawl. Common applications for ratchets and pawls include use in
spanners, turnstiles, winders and jacks.

Figure 1: Ratchet and Pawl
In our winch design, ratchet will attach to Gear B (refer Figure 2). The force manually
applied on handle will be transmitted to gear A, which is 150N. The efficiency of Gear A and B
is 97%. So the force generated on Gear B as well as the ratchet is 150N x 0.97 = 145.5N.

EMM 3506 – GROUP 3

Page 99
A

D

B

C

Figure 2: Gears Design
Referring to website catalogue KHK STOCK GEARS, ratchet (SRTB3-40) is selected.
The pitch for the ratchet is 9.42. The selection criteria are based on calculation below:
Allowable Torque = Allowable Force x Distance
Allowable Force = Allowable Torque / Distance = 157.52/0.3 = 525.07
Safety Factor = 525.07 / 145.2 = 3.61
Pawl model SRT-2C is selected as it works together with ratchet SRTB3-40. As refer to
the catalogue, the material for both ratchet and pawl is carbon steel S45C. The material
properties for S45C are shown below:
1. S45C Mechanical properties:
a) Density: 7700 – 8030 kg/m³
b) Young’s Modulus: 190-210 GPa
c) Tensile strength: 569MPa (Standard), 686MPa (Quenching, Tempering)
d) Yield Strength: 343MPa (Standard), 490MPa (Quenching, Tempering)
e) Poisson’s ratio: 0.27-0.30

EMM 3506 – GROUP 3

Page 100
11.2

CATALOG

Catalog No.
Angle of
jaw
or teeth
Material
Heat
treatment
Surface
hardness
Surface
treatment
Surface
finish
Datum
reference
surface
for teeth
cutting

EMM 3506 – GROUP 3

Specifications
SRT-C

SRT/SRTB

60

60

S45C (Carbon steel) **
Induction hardened
teeth
HRC48 53

S45C (Carbon steel)
Induction hardened
teeth
HRC48 53

Black oxide

Black oxide

Cut

Cut

Bore

Bore

Page 101
Pawls
Catalog No.
SRT2/3-C

J
5

K
8

L
38

M
30

N
6

Shape Weight(kgf)
T5
0.02

8

10

49

39 12

T5

0.05

10 12.5 67.5 55 15

T5

0.12

12

15

80

65 20

T5

0.22

13

18

98

80 25

T5

0.3

[DXF | DWG | 3D CAD]

SRT1-C
[DXF | DWG | 3D CAD]

SRT2-C
[DXF | DWG | 3D CAD]

SRT3-C
[DXF | DWG | 3D CAD]

SRT4-C
[DXF | DWG | 3D CAD]

Ratchets

Catalog
No.

Pit
ch

P

SRT1-50
[DXF | DW
G | 3D
CAD]

SRT1-60
[DXF | DW
G | 3D
CAD]

SRT1-80
[DXF | DW
G | 3D
CAD]

SRT1-90
[DXF | DW
G | 3D
CAD]

SRT1100

3.
14

No
.
of
te
et
h
z

B
or
e

Outsi
de
dia.

Face
widt
h

Dep
th
of
teet
h

Mou
ntin
g
dista
nce

Center
distanc
e

A

C

F

G

H

I

50

1
2

50

12

1.6

23.4

45.5

60

28.4

80

60
80
90
10
0

We
igh
t
(kg
f)

Catal
og
No.

0.1
6

SRT150

0.2
4

SRT160

0.4
4

SRT180

1
5

0.5
6

SRT190

1
5

0.7

SRT1100

1
5
1
5

Sh
ap
e

Allowa
ble
torque
(kgf-m)

Allow
able
torqu
e (Nm)

Bendin
g
strengt
h
1.5

Bendi
ng
streng
th
14.69

48.2

1.99

19.5

38.4

54.7

3

29.37

90

43.4

58.3

3.52

34.47

100

48.4

62.2

4.02

39.4

T4

[DXF | DW
G | 3D
CAD]

EMM 3506 – GROUP 3

Page 102
SRT2-30
[DXF | DW
G | 3D
CAD]

6.
28

SRT2-40

30
40
50

[DXF | DW
G | 3D
CAD]

60

SRT2-50
[DXF | DW
G | 3D
CAD]
[DXF | DW
G | 3D
CAD]
[DXF | DW
G | 3D
CAD]

9.
42

SRT3-40

30
40
50

[DXF | DW
G | 3D
CAD]
[DXF | DW
G | 3D
CAD]
[DXF | DW
G | 3D
CAD]

SRT4-40
[DXF | DW
G | 3D
CAD]

SRT4-50
[DXF | DW
G | 3D
CAD]

1
5

15

3.1

26.9

61.2

80

36.9

100
120

T4

2.96

29.03

66.2

5.02

49.22

46.9

72.3

7.22

70.82

56.9

79.1

9.61

94.28

0.2
8

SRT230

0.5
3

SRT240

0.8
6

SRT250

1.2
4

1
5
2
0

90

20

5

40

76.3

120

55

150

70

T4

SRT260

0.8
6

SRT330

1.5
8

SRT340

2.5
4

SRT350

225.9
2

1.9
1

SRT430

385.1
4

3.5
4

SRT440

559.4

5.6
8

SRT450

9.44

92.56

85.1

16.06

95.5

23.31

157.5
2
228.6
2

2
0

SRT3-50

SRT4-30

1
5

60

1
5

SRT2-60

SRT3-30

1
5

12
.5
6

30
40
50

2
0
2
0
2
0

EMM 3506 – GROUP 3

120

25

7.4

52.6

95.7

T4

23.04

160

72.6

108

39.27

200

92.6

122.4

57.04

Page 103
Ratchets with Hubs

Catalo
g No.

[DXF | D
WG | 3D
CAD]

N
o.
of
te
et
h

B
o
r
e

Hu
b
dia
.

Out
side
dia.

Fac
e
wid
th

Hu
b
wid
th

Tot
al
leng
th

De
pth
of
tee
th

Mo
unt
ing
dist
anc
e

Cent
er
dista
nce

P

SRTB2
/3-50

Pi
tc
h

z

A

B

C

D

E

F

G

H

I

2.
0
9

5
0

1
0

25

33.3

6

10

16

1

33.8

30

40

15.
5

6
0

1
0

8
0

1
2

9
0

1
2

1
0
0

1
2

SRTB2
/3-60
[DXF | D
WG | 3D
CAD]

SRTB2
/3-80
[DXF | D
WG | 3D
CAD]

SRTB2
/3-90

35

19

53.3

40

60

25.
5

40

66.6

29

35.5

S
h
a
p
e

T
9

Allo
wabl
e
torq
ue
(kgfm)
Bend
ing
stren
gth
0.31
0.42

Allo W Cata
wabl ei
log
e
gh No.
torq t
ue
(k
(N- gf)
m)
Ben
ding
stre
ngth
3.07 0. SRT
06 B2/3
4.1 7
-50

39.4

0.61

6

41.7

0.73

7.11

43.9

0.84

8.24

32

0.
1
0.
16
0.
21
0.
24

[DXF | D
WG | 3D
CAD]

SRT
B2/3
-60
SRT
B2/3
-80
SRT
B2/3
-90
SRT
B2/3
-100

SRTB2
/3100
[DXF | D
WG | 3D
CAD]

SRTB1
-50
[DXF | D
WG | 3D
CAD]

SRTB1
-60

3.
1
4

5
0

1
2

6
0

1
5

35

50

40

60

50

80

50

EMM 3506 – GROUP 3

90

12

12

24

1.6

23.
4
28.
4

45.5
48.2
54.7
58.3

T
9

1.5
1.99
3
3.52

14.6
9

0.
24

19.5

0.
34

29.3

SRT
B150
SRT
B1-

Page 104
[DXF | D
WG | 3D
CAD]

8
0
9
0

[DXF | D
WG | 3D
CAD]

SRTB1
-90
[DXF | D
WG | 3D
CAD]

1
5

43.
4

1
0
0

SRTB1
-80

1
5

1
5

48.
4

50

38.
4

100

62.2

4.02

7
34.4
7
39.4

0.
61
0.
73
0.
87

[DXF | D
WG | 3D
CAD]

[DXF | D
WG | 3D
CAD]

6.
2
8

SRTB2
-50

1
5

4
0

1
5
1
5

6
0

[DXF | D
WG | 3D
CAD]

3
0

5
0

SRTB2
-40

50

60

60

80

1
5

60

14

29

3.1

26.
9
36.
9

100

65

15

120

46.
9

61.2

2.96
5.02

72.3

7.22

79.1

9.61

56.
9

29.0
3

0.
48

49.2
2

0.
82

70.8
2

1.
14

94.2
8

66.2

T
9

1.
59

[DXF | D
WG | 3D
CAD]

[DXF | D
WG | 3D
CAD]

[DXF | D
WG | 3D
CAD]

9.
4
2

[DXF | D
WG | 3D
CAD]

3
0

1
5

4
0

2
0

5
0

SRTB3
-40

75

90

80
85

20

16

36

5

40

76.3

120

55

85.1

150

70

T
9

95.5

2
0

9.44
16.0
6
23.3
1

92.5
6

1.
4

157.
52

2.
17

228.
62

3.
21

[DXF | D
WG | 3D
CAD]

[DXF | D
WG | 3D
CAD]

SRTB4
-40
[DXF | D

SRT
B230
SRT
B240
SRT
B250

SRT
B330
SRT
B340
SRT
B350

SRTB3
-50

SRTB4
-30

SRT
B190

SRT
B260

SRTB2
-60

SRTB3
-30

SRT
B180

SRT
B1100

SRTB1
-100

SRTB2
-30

60

1
2.
5
6

3
0

2
0

4
0

2
0

5

90

120

90

160

10
0

200

2

EMM 3506 – GROUP 3

25

18

43

7.4

52.
6
72.
6
92.

95.7
108
122.4

T
9

23.0
4

225.
92

2.
76

39.2
7

385.
14

4.
4

57.0

559.

6.

SRT
B430
SRT
B440

Page 105
WG | 3D
CAD]

0

0

SRTB4
-50
[DXF | D
WG | 3D
CAD]

EMM 3506 – GROUP 3

6

4

4

74

SRT
B450

Page 106
11.3

2D DRAWING RATCHET AND PAWL

EMM 3506 – GROUP 3

Page 107
EMM 3506 – GROUP 3

Page 108
12.0

FASTENERS AND BOLT

12.1

INTRODUCTION

1. Types of thread fasteners and gasket

Thread fasteners are reversible strengthening materials. This implies that they can be used and reused
again in a separate material that requires threading. There are several types of fastener threads. This
depends on the type and texture of the threads in the fasteners. You use fastener threads because they
are cost efficient and they are readily available in most tool shops and supermarkets. Most fasteners
require re-tightening as they, at times, fall off due to vibrations.

A thread is a ridge of uniform section in the form of a helix on the internal or external surface of a
cylinder (IFI description) or it could be described as a sloping plane curled around a cylinder.

External threads are on bolts or screws.
Internal threads are on nuts.
There are many forms of threads but two types are in common use on fasteners.
Machine Screw Threads - used on bolts, setscrews, machine screws and designed to mate with
preformed threads in nuts or tapped holes.
Exceptions may be thread forming screws like Taptite or self-drilling screws like Teksor thread cutters
like Type 23's, which form or cut their own machine screw thread.
Spaced Threads - used on woodscrews, self-tapping screws, coach screws and Type 25 thread cutters.
Designed to form its own thread, usually in a pre-drilled hole.
Exceptions may be self-piercing screws such as needle points or self-drilling screws like Type 17's
which create their own hole; some Teksmay also have spaced threads.

EMM 3506 – GROUP 3

Page 109
There is a wide array of threaded fastener types, including:



Unified National Coarse Threads



UNC threads are the most common general fastener thread. Their fit is deeper and more
generic than that of a fine thread, allowing for easy removal. Generally, they have a
higher tolerance for manufacturing and plating, and do not need cross threading to
assemble.



Unified National Fine Threads



UNF threads have better torque-locking and load-carrying ability than UNC threads
because of their larger minor diameter. Because of their more specific fit, they have
tighter tolerances, finer tension adjustment, and can carry heavier loads. They are most
commonly found in the aerospace industry.



United National Extra Fine Threads



UNEF threads are finer than UNF threads; they are used in applications with tapped
holes in hard material, thin threaded walls, and tapped holes in thin material. As with
UNF threads, UNEF threads are common in the aerospace industry.



UNJC and UNJF Threads



There are two types of ―J‖ threads: external and internal. External UNJC and UNJF
threads have a larger root radius than the corresponding part (UNC, UNR, UNK, or UNF
threads). The larger root radius results in a larger tensile area than the corresponding
thread, and smaller stress concentration—bolts that carry heavy loads usually use ―J‖
threads.



UNR and UNK Threads



A UNR external thread is the same as a UNC thread, only the root radius is rounded.
There is no internal UNR thread. UNK threads resemble UNR threads, but the root radius
and minor diameter require inspection.



Constant-Pitch Threads



These threads come in a variety of diameters to fit a given application—bolts with
diameters of 1 in. and above commonly use pitches of 8, 12, or 16 threads per inch.

EMM 3506 – GROUP 3

Page 110
2. Stress on threads, static loading on tensioned joint, gasket joint

The critical areas of stress of mating screw threads are


The effective cross section area, or tensile area, of the external thread.



The shear area of the external thread which depends upon minor diameter of the tapped
hole



The shear area of the internal thread which depends on the major diameter of the external
thread

The allowable stresses are reflected towards the surface of the material itself. We can see that it
is on full stresses as the shape started to change. From start, the material will started to
experience sheer stress, on that part, yield strength of the material can be return to its original
shape as it stores energy on the material itself, after a while, material will start to come into
maximum tensile limit where necking usually occur at that time. As time goes, ultimate tensile
stress will occur and the material will snap into 2 and that significant to failure.

EMM 3506 – GROUP 3

Page 111
Stress, static and tension formulae.

D = Basic Diameter.
p = Screw Thread Pitch
Le = Length of Thread Engagement
A t = the screw thread tensile stress area
d p = Pitch circle diameter of thread
A ss =the thread shear area
The following formula for the Tensile Stress Area of the (male) screw

This is based on ISO 898 Part 1. See calculation below...
d p = Pitch circle diameter of thread
dp = (D - 0.64952.p )

The thread shear area = Ass
When the female and male threads are the same material.
Ass = 0.5. π. dp. Le = 0.5 π (D - 0.64952.p). Le
To ensure that the screw fails before the thread strips it is necessary the shear
area is at least 2 times the tensile area. i.e.

EMM 3506 – GROUP 3

Page 112
Le (min) = 2 . A t / [0.5 .π .(D - 0.64952.p )]
This assumes that the male and female thread materials have the same
strength. If the Female Material strength is lower i.e J as calculated below is
greater than 1 then the length of engagement must be increased to prevent the
female thread stripping

If the value of J is greater than 1 then the length of engagement must be
increased to at least

Thus from above method of calculation, we can see that is proven shows on how the calculation
is been made from one parts to another. This can also be applied to other parts regarding the
shapes and sizes. For certain cases, we need to consider the material use for the parts as it
involved the modulus young’s of that material. Everything can be found in any references book
and it is helpful in solving any problems.

EMM 3506 – GROUP 3

Page 113
3. Shear loading on bolted and riveted joints


The bolts are loaded in shear. Depending on the joint design the bolt can be in single or
double shear...



The bolt interface with the hole is compressively loaded. ( Crushing )

Single Shear..
Shear Stress = 4 . F / π. d 2
Compressive Stress = F / (d . t)
Plate Shear Stress = F / (2.c.t)
Double Shear..
Shear Stress = 2 . F / π. d 2
Compressive Stress = F / (d . t)
Plate Shear Stress = F / (2.c.t)
The stresses are adjusted based on the number of bolts / screws used for the
joint..

EMM 3506 – GROUP 3

Page 114
Strength of bolts withstanding torsion generated shear loading

Consider a bracket taking an offset load F (N) at a radius R (m). The bracket
is secure using a number of bolts each with a Area A(m2 ). The bolts are
located around a centroid position each with a radius from the centroid of
rn(m) and a horizontal/vertical position relative to the centroid of hn /vn (m) . (
bolt is designated by the subscript "n". )

Location of Centroid...
The location of the centroid of the bolts can often be determined by inspection as in figure
above. If the bolts are not arranged around a convenient center then the centroid is determined
by..
X position = sum of the moments of area of all the holes about a fixed horizontal position
divided by the total hole area
y position = sum of the moments of area of all the holes about a fixed vertical position divided
by the total hole area

EMM 3506 – GROUP 3

Page 115
The offset load is equivalent to a vertical force (F) + moment (F. R) at the
centroid of the bolts...

Each bolt is withstands a vertical shear force

Fnv = F / No of Bolts.

Each bolt also withstands a shear load

Fnm = F.R. rn / (r12 + r22...rn2)

The total horizontal force on each bolt

Fth= Fnm . vn / Sqrt(hn2 + vn2 )

The total vertical force on each bolt

Ft= Sqrt (Fth2 + Ftv2)

The total shear load on each bolt
The resulting bolt shear stress

Ftv= Fnv + Fnm . hn / Sqrt(hn2 + vn2 )

τ t = Ft /A

The shear stress in each bolt is calculated to ensure the design is safe..

Strength of bolt joints withstanding bending forces

EMM 3506 – GROUP 3

Page 116
Each Bolt withstands a shear Force
The resulting shear bolt stress

Fs = Fv / (Number of bolts)

τ n = Fs /A

Note: Each bolt is assumed to withstand the same shear force.

If there are x bolts( numbered n = 1 to x). Then the tensile force withstood be
each bolt is designated Fnt i.e F1t,F2t, F3t....Fxt
A selected bolt (n) withstands a tensile force of
2

Vn / (V1 +

V22....Vx2

Fnt = ( Fv. Rv + Fh. Rh) .

)

The resulting tensile bolt stress

sn = Fnt /A

Maximum principals stresses in the bolt resulting from combined loading

The notes on this page Assuming all stresses developed only as a result of
bracket loading i.e zero preload and zero residual bolt torque...

Maximum principal tensile stress in the bolt

Maximum principal compressive stress in the bolt
EMM 3506 – GROUP 3

Page 117
Maximum shear stress in the bolt

Failure criteria: Refer to page Failure Modes

The notes on this page In order to estimate the design factors of safety it is
necessary to consider the failure modes.

The preferred failure criteria for

ductile metals are the "Shear Strain Energy Theory" (Von Mises-Hencky
theory). For a stress regime associated with a bolt i.e pure tensile
stress sx combined with shear stress τ xy. The Factor of safety relative to the
material tensile strength Sy..Is calculated as follows

Factor of Safety = Sy / ( sx2 + 3 .τ xy2 ) 1/2

EMM 3506 – GROUP 3

Page 118
4. Asymmetrical loading on bolted and riveted joints

Bolted and riveted connections are quite commonly encountered in various design problems.
Many trials have been carried out recently to determine the stress distribution in bolted and
riveted joints which is of extreme importance in the design of such joints. Effect of many
parameters has been investigated; however effect of thickness ratio of the joint plates did not
take too much attention. In this analytic work the effect of various plate thicknesses on the load
and stress distribution in cylindrical bolted joints has been investigated using the finite element
technique. Computed results show that the loads as well as the stress or pressure distribution
under bolt-head or nut are neither constant nor uniform. Whatever the thickness ratio of the two
plates (I1 /L2), constant load and stress occurred across the joint under the bolt-head end.
Maximum stress on surface and up to the mid plane level showed an increase with the thickness
ratio. However the maximum stress on interface decreases with the thickness ratio to reach its
lowest at L1 /L2 = 1. End of loading on surface or at mid plane increases with the increase in
thickness ratio, and tends to approach a constant value at L1 /L2 equals 10 or more—on interface
the opening position—represented by diameter of joint to bolt diameter D/d, reaches a maximum
value of 3.5 then decreases rapidly to reach a constant value of about 2.5 for L1 /L2 = 10 or
more. Also the thickness of the plate (L1) has a pronounced effect on the opening position.
The stress and shear in a rivet is analyzed like a bolted joint. However, it is not wise to combine
rivets with bolts and screws in the same joint. Rivets fill the hole where they are installed to
establish a very tight fit (often called interference fit). It is difficult or impossible to obtain such a
tight fit with other fasteners. The result is that rivets in the same joint with loose fasteners carry
more of the load—they are effectively stiffer. The rivet can then fail before it can redistribute
load to the other loose fit fasteners like bolts and screws. This often causes catastrophic failure of
the joint when the fasteners unzip. In general, a joint composed of similar fasteners is the most
efficient because all fasteners reach capacity simultaneously.

EMM 3506 – GROUP 3

Page 119
5. Strength of welded joints

An accurate theoretical solution to force and strength conditions is an extremely complicated
problem for welded connections, even for welds with simple shapes. That is why common
technical calculations are based on a range of conventions and simplified premises. In view of
the strength checks, welded parts are usually considered a single compact part with a dangerous
spot (section) in the welded area. On the grounds that there is an even distribution of stress in the
active weld section, only theoretical rated stress in the specified section is specified for the
respective load, regardless of the technological workmanship of the weld or potential internal
tension. For connections with multiple welds, an even load on individual welds is assumed.
The strength checks of the connection are performed by simple comparison of the calculated
rated stress with the permissible stress in the weld. Permissible weld stress "SwA" is usually
specified from the value of the yield strength of the basic material "Re" based on the required
safety.

EMM 3506 – GROUP 3

Page 120
6. Symmetrical loading on welded joints, brazing and soldering

Metalworking is the process of working with metals to create individual parts, assemblies, or
large-scale structures. The term covers a wide range of work from large ships and bridges to
precise engine parts and delicate jewelry. It therefore includes a correspondingly wide range of
skills, processes, and tools.
Metalworking is a science, art, hobby, industry and trade. Its historical roots span cultures,
civilizations, and millennia. Metalworking has evolved from the discovery
of smelting various ores, producing malleable and ductile metal useful for tools and adornments.
Modern metalworking processes, though diverse and specialized, can be categorized as forming,
cutting, or joining processes. Today's machine shop includes a number of machine tools capable
of creating a precise, useful work piece.
Here are some of the method of calculating load:

Load Rated stress [MPa, psi] Tensile/Press.

Shear

Bend

EMM 3506 – GROUP 3

Page 121
Bend

Twist

Tensile

Tensile/Press.

Shear

Bend
EMM 3506 – GROUP 3

Page 122
Tensile/Press.

Shear

Bend

Twist

EMM 3506 – GROUP 3

Page 123
13.0

ASSEMBLY PART

Figure 13.1: assembly 2D and 3D drawing
EMM 3506 – GROUP 3

Page 124
14.0

SIMULATION

14.1

INTRODUCTION
Simulation is the imitation of the operation of a real-world process or system over time.

The act of simulating something first requires that a model be developed; this model represents
the key characteristics or behaviors/functions of the selected physical or abstract system or
process. The model represents the system itself, whereas the simulation represents the operation
of the system over time.
Simulation is used in many contexts, such as simulation of technology for performance
optimization, safety engineering, testing, training, education, and video games. Often, computer
experiments are used to study simulation models. Simulation is also used with scientific
modeling of natural systems or human systems to gain insight into their functioning. Simulation
can be used to show the eventual real effects of alternative conditions and courses of action.
Simulation is also used when the real system cannot be engaged, because it may not be
accessible, or it may be dangerous or unacceptable to engage, or it is being designed but not yet
built, or it may simply not exist.
In this simulation for the one of design report requirement, we are focusing on ratchet and
pawl. The load that wills the ratchet accounted is 150N, by fixed a axis nodal at center of pawl.
All of this step are use simulation that known as ABAQUS.

EMM 3506 – GROUP 3

Page 125
14.2

PICTURES

Figure 14.1 : ABAQUS simulation
EMM 3506 – GROUP 3

Page 126
Figure 14.2 : full view of ratchet simulation

Page 127

EMM 3506 – GROUP 3
Figure 14.3 : closed up simulation

Page 128

EMM 3506 – GROUP 3
15.0

REFERENCES

15.1

WINCH


General information for winch: http://en.wikipedia.org/wiki/Winch



Design selection are from this website
http://www.etrailer.com/Winches/Fulton/FT20250301.html



http://www.pacifichoists.com.au/our-products/categories/winches/handwinches/pacific-brake-winches/



http://www.pacificmarine.net/marine-deck/winches-and-hoists/how-to-size-awinch.htm

15.2

COMPONENT


http://www.facebook.com/l.php?u=http%3A%2F%2Fwww.wirerope.com%2FPD
F%2Fsurelift_ctg_s.pdf&h=FAQHeW3ET


15.3

http://www.h-lift.com/eyehook.htm

DRUM



15.4

http://en.wikipedia.org/wiki/Winch
http://www.ingersollrandproducts.com/lifting/winches/drum.htm

GEAR


http://www.roymech.co.uk/Useful_Tables/Drive/Gears.html#Module



http://www.scribd.com/doc/15742009/DESIGNING-GEAR-IN-CATIA-V5R14HOWTO

15.5

HANDLE


http://www.westmarine.com/webapp/wcs/stores/servlet/WestAdvisorView?langId
=-1&storeId=11151&catalogId=10001&page=Winch Handles#.Uq9jSvQW1mw



http://en.wikipedia.org/wiki/Winch



http://www.freepatentsonline.com/4883255.html

EMM 3506 – GROUP 3

Page 129
15.6

SHAFT


Dr. Mohd Idris Shah Bin Ismail, lecturer EMM 3506 Engineering Design I,
Mechanical and Manufacturing Department, Faculty Engineering, UPM



EMM 3506 Shaft Design Lecture Note by Dr. MohdIdris Shah Bin Ismail



EMM 3506 Different Types of Loading Lecture Note by Dr. MohdIdris Shah Bin
Ismail



S45C mild steel overview, Retrieved on 6th December 2013, 8.40pm, from
http://www.meadinfo.org/2010/03/s45c-jis-mechanical-properties.html



Shaft

key

design,

Retrieved

on

7

December

2013,

12.13am,

from

http://engineering.union.edu/~tchakoa/mer419/MER419_keys-and_couplings.pdf


Shaft Key cross sectional dimensions, Retrieved on 8th December 3.11pm, from
http://www.roymech.co.uk/Useful_Tables/Keyways/keyways.htm

15.7

LUBRICANT



http://en.wikipedia.org/wiki/Plain_bearing#Lubrication


15.8

http://en.wikipedia.org/wiki/Bearing_(mechanical)#Maintenance_and_lubrication

http://www.mecheng.iisc.ernet.in/~bobji/funtri/assign/Lubricants.htm

BEARING


http://www.rbcbearings.com/bushings/



http://www.nmbtc.com/bearings/engineering/design-shaft-housing.html

EMM 3506 – GROUP 3

Page 130
15.9

FRAME


http://en.wikipedia.org/wiki/Stainless_steel



http://asm.matweb.com/search/SpecificMaterial.asp?bassnum=MQ304A

15.10 RATCHET AND PAWL




Pawl and Ratchet, Kohara Gear Industry Co. Ltd., retrieved
http://www.qtcgears.com/khk/newgears/khk316.html
Ratchets·Pawls, Kohara Gear Industry Co. Ltd
Model:
N01
Ratchet
and
Pawl
Mechanism,
retrieved
http://kmoddl.library.cornell.edu/model.php?m=247&movie=hide

from

from

15.11 FASTENERS AND BOLTS


http://www.ehow.com/info_8630066_types-fastener-thread.html



http://www.roymech.co.uk/Useful_Tables/Screws/Thread_Calcs.html



http://www.mitcalc.com/doc/welding/help/en/welding.htm



http://connection.ebscohost.com/c/articles/45037993/strength-stressed-stateasymmetric-mechanically-inhomogeneous-welded-joints-incomplete-fusioncenter-weld-under-biaxial-loading



http://avstop.com/ac/flighttrainghandbook/asymmetricloading.html



http://www.iso.org/iso/catalogue_detail.htm?csnumber=4736



https://www.excelcalcs.com/site-news/excelcalcs-news/built%11in-beam-with-2symmetric-point-loads/



http://en.wikipedia.org/wiki/Metalworking



http://www.slideshare.net/donalsyahrial/asm-metals-handbook-volume-6welding-brazing-and-soldering



http://www.aws.org/w/a/associations/bsmc/brazing_qa.html

EMM 3506 – GROUP 3

Page 131
16.0
APPENDIX

EMM 3506 – GROUP 3

Page 132

introduction, drawing, calculation for winch design

  • 1.
    1.0 INTRODUCTION A winch isa mechanical device that is used to pull in (wind up) or let out (wind out) or otherwise adjust the "tension" of a rope or wire rope (also called "cable" or "wire cable"). In its simplest form it consists of a spool and attached hand crank. In larger forms, winches stand at the heart of machines as diverse as ; - Tow trucks, steam shovels and elevators. - The spool can also be called the winch drum. - Can be powered by electric, hydraulic, pneumatic or internal combustion drives. - Some may include a solenoid brake or a mechanical brake or ratchet and pawl device that prevents it from unwinding unless the pawl is retracted. In the operation system, it can be conducted by using convention or non-convention system. Convention system consist of mainly human effort or force distributed by human and the cost of operation is cheaper because it does not consist of high tech equipment and also low in maintenance. Non-convention system is for most technologies that we see today which the entire burden is been carried out by a machine. Efficiencies rate are also greater then convention system but the maintenance can be high due to the system it have. Example that we can take is such as elevator that can carried passengers more than 1 ton (1000 kg) and the system is more into non-conventional because it uses motorized engine to carry passengers. Other example that we can take is like steam shovel. Used in lifting and moving material such as rock and soil. It is the earliest type of power shovel or excavator. For our project, we are required to design a winch according to the specification given. The first requirement is to design a winch that can withstand maximum load of 15kN. The second requirement is we need to use cable of 14mm diameter. 2.0 WINCH EMM 3506 – GROUP 3 Page 1
  • 2.
    2.1 PROBLEM STATEMENT A boatwithout an anchor is like a kite without thread. The boat will be drifting due to the wind and wave. So, having an anchor is a must for every boat. If using bare hand to pull up the anchor, it will make the job tiring and complicated. In order to overcome the problem, they will need a very useful mechanical device to help them pulling up the anchor to the boat and to unload from the boat. The very best way to overcome this problem is by installing a winch to the boat. Winch was widely used to pull in ( wind up) or let out ( wind out) or otherwise adjust the tension of a rope either it wire or nylon, but in this case, we used wire cable. In its simplest form, it is consists of a pool ad attached hand crank that can help and overcomes those: o o o o Wear on boat’s body which is lead to corrosion Conserve human energy Keep the wire cable last longer Wire cable stored in good manner and keeps the safety environment on the boat That problem that we need to overcome and to achieve is the main reason why the application of winch is suitable for anchor problem, which is suitable case for our product to be used widely in this sector. Figure 1: problem overview scope 2.2 FEATURES AND APPLICATION EMM 3506 – GROUP 3 Page 2
  • 3.
    As a projectthat must be conduct by a group of student, the requirement for a winch to be consider as a winch in real words was be given out. Refer on the design factors that already be listed and was mention in characteristic of the winch, we, group 3 come out with rough features and the application for the winch based on design factors listed below: Design Factors o o o o o o o Economic, environmental and safety toward users Ergonomic Ease to assembly Ease of fabrication Energy efficiency Maintenance requirements Environmentally friendly Components o o o o o o o Wire rope ( 14mm in diameter ) Drum Ratchet wheel and Pawl Bearing Frame Gear / speed ratio Brake Features 7. Stainless steel drive shaft and ball bearing. 8. Lightweight stainless steel drum with large diameter to reduce wire rope wear. 9. Ergonomic handle for easy and good grip for handling. 10. Drum is located horizontal to ensure less wire rope wear. Applications  Anchor pulley 2.3 DESIGN REQUIREMENT Corrosion-resistant is must in this case study, which is corrosion easily happen due to sea water. EMM 3506 – GROUP 3 Page 3
  • 4.
    For easy handlingduring wind up and out, this design come out with 2 speeds for easy control and constant power required for anchor to be pulled. However, the neutral gear also been consider for safety factor. Freewheeling position for fast line payout. All these requirement and features are great for marine application precisely. Features: o Freewheeling winch is ideal for boat trailers. o 2 speed to fit application in marine  Fast speed – lets you have full speed to pull up anchor quickly.  Lower speed – offers an increase in mechanical advantages. o New features, shift lock design – lets you change gears without having to pull out the handle.  The mechanism based on slide along the shaft.  Hold the shaft in gears position. o Drum – the drum is design to withstand load up to 15kN and can store about 50m in length of wire cable. o Wire cable – the selection of wire are been consider for marine used and can be withstand natural phenomena. 3.0 COMPONENTS EMM 3506 – GROUP 3 Page 4
  • 5.
    3.1 WIRE ROPE SPECIFICATION Figure2: wire selection table Length of rope: 50000 mm Nominal breaking load : 133 kN Weight: 0.86 kg/m Rope construction: 6 x 26 RRL(right regular lay) rope Safety factor of rope = ( ( ) ) = =8.87 3.2 HOOK SPECIFICATION EMM 3506 – GROUP 3 Page 5
  • 6.
    Figure 3: tableof selection of hook 4.0 DRUM 4.1 CALCULATIONS EMM 3506 – GROUP 3 Page 6
  • 7.
    Parameter required    Maximum load Diameterof rope Length of rope =15 kN = 14 mm = 50000mm Calculation 1. Diameter of drum Ddrum = (ratio between 20 to 25) x drope =20 x 14 =280 mm 2. Groove radius, r 3. Groove diameter, d = 0.53 x d = groove radius x 2 = 0.53 x 14mm = 7.4mm x 2 = 7.4mm = 14.8mm 4. Pitch diameter, p 5. Groove depth = 2.065 x groove radius h = 0.374 x d = 2.065 x 7.4mm = 0.374 x 14.8 = 15.281mm = 5.5352mm 6. Thickness tx 7. 8. 9. 10. = P/kp = 15000/(210000000 x 0.0148) Y= 520 mm L5 = L6 = 20 mm Number of layer = 3 Number of groove = 20 = 4.826mm 11. Drum grooved length,L3 L3 = (n - 1)P = (20 – 1) 15.281 = 290.24 mm 12. Drum un-grooved length,L1=L2 L1 = L2 EMM 3506 – GROUP 3 = 1/2 diameter of hook + radius of rope Page 7
  • 8.
    = 47.13 mm 13.Safe Factor 4.2 =6 SPECIFICATION OF DRUM L1 L3 = (n – 1) P L2 y Ddrum L6 L5 Figure 4: drum legend for revise EMM 3506 – GROUP 3 Page 8
  • 9.
    Figure 5: grooveoverview EMM 3506 – GROUP 3 Page 9
  • 10.
    4.3 DRAWING 2D Figure 6:isometric drawing EMM 3506 – GROUP 3 Page 10
  • 11.
    5.0 GEAR 5.1 DESIGN OVERVIEW Figure 8:gear mechanism with legend EMM 3506 – GROUP 3 Page 11
  • 12.
    5.2 CALCULATION FOR GEARS Fora single handle winch, P=150N a=350mm D=280mm W=15kN Efficiency of gears and Drum, n1 (G1, G2) =0.97 n2 (G3, G4) =0.97 n3 (drum) =0.96 n = n 1 x n2 x n 3 = 0.9033 Calculating for speed ratio, i, ( )( ( EMM 3506 – GROUP 3 )( )( ) ) Page 12
  • 13.
    Calculating suitable speedratio for gear teeth, *The highest speed ratio is taken to determine gear teeth. Hence, calculating for the number of teeth of each gear, EMM 3506 – GROUP 3 Page 13
  • 14.
    Calculating for newspeed ratio value, i By using new i value, ( )( ( )( )( )( ) )  So these set of gear teeth is suitable for our winch design. EMM 3506 – GROUP 3 Page 14
  • 15.
    Speed ratio: Number ofteeth (n) of gears: Number of teeth of gear 1, Z1 = 11 Number of teeth of gear 2, Z2 = 70 Number of teeth of gear 3, Z3 = 11 Number of teeth of gear 4, Z4 = 77 *no. of teeth obtained by comparing with speed ratio Efficiency of gear: n1 [G1, G2] = 0.97 n2 [G3, G4] = 0.97 n3 [drum] = 0.96 n=n1 x n2 x n3 =0.9033 Pressure angle, Φ: Φ = 20˚ (commonly used for designer) Pitch diameter (D) of gears: relationship: Pitch diameter of gear 1, D1 = 66mm Pitch diameter of gear 2, D2 = 420mm Pitch diameter of gear 3, D3 = 66mm Pitch diameter of gear 4, D4 = 462mm Diametral Pitch (P): EMM 3506 – GROUP 3 Page 15
  • 16.
    Example gear 1,=11/ (66 x 0.0394) For gear 1= 4.23 / inch For gear 2= 4.23/ inch For gear 3= 4.23/ inch For gear 4= 4.23/ inch Metric Module (m): Applied for all gears, m = 6mm Addendum (20o) (a): Applied for all gears, a = 6.57mm Dedendum (20o) (d): Applied for all gears, b = 8.21mm Outside Diameter (Do): ( ) Gear 2 as example, Do = 432mm EMM 3506 – GROUP 3 Page 16
  • 17.
    Torque, T -applied toall gear ( )( ) P – obtained from the new i value. a – length of handle. Material: Applied to all gear = AISI 1020 Steel AISI 1020 Steel properties: Figure 9: table properties of AISI 1020 EMM 3506 – GROUP 3 Page 17
  • 18.
    Face width (b): Byusing Lewis Equation: σ = (FtP)/(bY) where, σ - the allowable bending stress of the gear material Y - the Lewis form factor which can be obtained from the standard charts with certain pressure angle, Φ Ft - the tangential force applied to the gear tooth as show in the Figure 2.1 above P - the diametral pitch b – the face width Rearranging the equation, b= Ft = F cos Φ (F = 10 kN ) Ft = 15000 cos 20˚ = 14095.39 N. (apply to all gear) P = 4.23 (apply to all gear) σ = 124.2 MPa (For AISI 1020 steel) Figure 10: Standard Lewis Form Factor chart EMM 3506 – GROUP 3 Page 18
  • 19.
    Figure 11: lewisfactor, Y table selection For gear 1 & 3, No. of teeth = 11, Y= 0.226 For gear 2, No. of teeth = 70, Y= 0.429 For gear 4, No. of teeth = 77, Y = 0.434 In order to have standard values of tooth width (b), we pick the smallest value of Lewis Form factor Y = 0.226 b= = = 2.12mm Take the value safety factor of 6 into considerations, the tooth width becomes 2.12 x 6 = 12.7mm EMM 3506 – GROUP 3 Page 19
  • 20.
    5.3 TABLE OF OVERVIEWFOR GEARS Detail Gear 1 (Pinion) Gear 2(Gear) Gear 3 (Pinion) Gear 4 (Gear) Metric module (m) 6mm 6mm 6mm 6mm Number of teeth (z) 11 70 11 77 Pressure angle (Φ) 20˚ 20˚ 20˚ 20˚ Pitch Diameter (D) 66mm 420mm 66mm 462mm Diametral Pitch (P) 4.23 4.23 4.23 4.23 Addendum (a) 6.57mm 6.57mm 6.57mm 6.57mm Dedendum (d) 8.21mm 8.21mm 8.21mm 8.21mm Efficiency (n) 0.9033 0.9033 0.9033 0.9033 Outside Diameter (Do) 78mm 432mm 78mm 474mm AISI 1020 Steel AISI 1020 Steel Thickness 30mm Material used Speed ratio Face width (b) AISI 1020 Steel AISI 1020 Steel 1/6.3267 1/7 12.7mm Torque Figure 12: Table showing the overview of the whole gear system 5.4 DRAWING 2D EMM 3506 – GROUP 3 Page 20
  • 21.
    Figure 13: isometricview for gear one Page 21 EMM 3506 – GROUP 3
  • 22.
    Figure 14: isometricview for gear two Page 22 EMM 3506 – GROUP 3
  • 23.
    Figure 15: isometricview for gear three Page 23 EMM 3506 – GROUP 3
  • 24.
    Figure 16: isometricview for gear four Page 24 EMM 3506 – GROUP 3
  • 25.
    6.0 HANDLE 6.1 SPECIFICATIONS Mechanical Properties The mechanicalproperties of annealed AISI 1340 alloy steel are displayed in the following table. Properties Metric Imperial Tensile strength 703 MPa 102000 psi Yield strength 434 MPa 62900 psi Bulk modulus (typical for steel) 140 GPa 20300 ksi Shear modulus (typical for steel) 80.0 GPa 11600 ksi 190-210 GPa 27557-30458 ksi 0.27-0.30 0.27-0.30 Elongation at break (in 50 mm) 25.50% 25.50% Reduction of area 57.30% 57.30% 46.0 J 33.9 ft-lb Hardness, Brinell 207 207 Hardness, Knoop (converted from Brinell hardness) 207 207 Hardness, Rockwell B (converted from Brinell hardness) 93 93 Hardness, Rockwell C (converted from Brinell hardness) 15 15 217 217 50 50 Elastic modulus Poisson's ratio Izod Impact Hardness, Vickers (converted from Brinell hardness) Machinability (based on 100 machinability for AISI 1212 steel) Figure 20: mechanical properties table for AISI 1340 alloy steel Figure 21: element on handle EMM 3506 – GROUP 3 Page 25
  • 26.
    6.2 Calculation Tensile strength, Su =702 MPa Yield strength , Sy = 434 MPa Design Factor = Safety Factor = 6 length, L = 300 mm Maximum bending stress μ = F.L = (150 N)(0.3m) = 45 Nm Compute the desire stress from; σd = Sy / N = 434 MPa / 6 = 72.333 MPa Based on formula ; σ = μ / S ; S=μ/σ = 45Nm / 72.333MPa = 6.2212 x 10 -7 m3 In realtionship between S, t and h is ; and h = 3t S = (t.h2 ) / 6 = 9t3 / 6 = 1.5 t3 1.5 t3 = 6.2212 x 10 -7 m3 t = 7.4575 x 10 -3 m therefore; h = 3t = 3(7.4575 x 10 -3 m) = 22.372 x 10 -3 m EMM 3506 – GROUP 3 Page 26
  • 27.
    Figure 22: handlewith labelling ALL THE DATA; t = 7.4575 x 10 -3 m F = 0.30 m h= 22.372 x 10 -3 m E = 0.127 m EMM 3506 – GROUP 3 Page 27
  • 28.
    6.3 2D DRAWING EMM 3506– GROUP 3 Page 28
  • 29.
    7.0 SHAFT 7.1 INTRODUCTION In this project,we are focusing in winch to be able withstand load about 15kN. Other than gears, bearings, drum, and other winch component. Shaft also plays as important factor to increase efficiency and durability of winch. In this report, we are discussed and find out the ideal diameter for shaft. For our winch we use 3 shafts to hold gears and transmit power 7.2 CALCULATION FOR SPEED 1 7.2.1 CALCULATION FOR SHAFT 1 AND DRAWING Material selection Referred back to the Stainless Steel 304, the material has possessed two properties which is chemical and mechanical. In this scope, we more likely to know its mechanical properties which are main reason due to the all the information that lead to the shaft requirement and can be calculated based on formula that can be used. All the data for the chemical and mechanical properties of the Stainless Steel 304can be summarize as seen in next page; EMM 3506 – GROUP 3 Page 29
  • 30.
    Chemistry % byWeight Element Type 302 Type 304 Type 304L Type 305 Fe 64.99-74% Cr 17% 18% 18% 17% Ni 8% 8% 8% 10.50% Mn 2% 2% 2% 2% N 0.10% 0.10% 0.10% - S 0.03% 0.03% 0.03% 0.03% C 0.15% 0.08% 0.03% 0.12% Si 0.75% 0.75% 0.75% 0.75% P 0.045% 0.045% 0.045% 0.045% Properties Properties Physical Properties Density Mechanical properties Hardness, Rockwell B Tensile Strength, Ultimate Tensile Strength, Yield Value Comment 8.03 g/cc 82 621 Mpa (=90100psi) 290 Mpa (=42100psi) 0.2% YS Elongation at Break 55% in 2 inches Modulus of Elasticity Modulus of Elasticity Electrical properties Electrical Resistivity Electrical Resistivity Magenetic permeability Thermal properties CTE, linear 20°C CTE, linear 20°C Heat Capacity Thermal Conductivity Thermal Conductivity Processing properties Melt temperature 193 Gpa 78 Gpa tension torsion 0.000116 ohm-cm 7.2e-005 ohm-cm Max 1.02 659 °C 16.9 µm/m-°C 18.7 µm/m-°C 0.5 J/g-°C 16.2 W/m-K 21.4 W/m-K 0 to 100°C to 649°C 0°C to 100° 100°C 500°C EMM 3506 – GROUP 3 H = 200 Oersteds, Annealed 1371- 1399 °C Page 30
  • 31.
    Endurance strength, Sn Endurancestrength, Sn = 0.5 Su =0.5(621) =310.50M Pa Actual Endurance Strength, Sn' Actual Endurance Strength, Sn’ = Sn (Cm) (Cst) (CR) (CS) Cm = 1.0 (Since the material we used is steel) Cst = 1.0 (Type of loading is bending) CR = 0.81 (The shaft is designed to has reliability of 0.99) CS = 0.75 (We assume it as we do not know the actual size yet) Actual Endurance Strength, Sn’ =310.50 (1.0) x (1.0) x (0.81) x (0.75) = 188.63MPa Average force applied on handle is 150N, and the length of handle is 0.3m Therefore, Torque, T = 150 x (0.3) = 45N.m Force on the Pinion 1, Tangential force, Wt = = = 1363.64 N EMM 3506 – GROUP 3 Page 31
  • 32.
    Radial force, Wr =Wttan =1363.64 tan 20 º =496.32N r1 is a sharp fillet, then a stress concentration factor of 2.5 should be used. Safety Factor of 6 is used as the shaft is expected to withstand unusual shock or impact. D1 =[ ( ) √( ) ( ) ( ) But the moment at point A is zero, thus EMM 3506 – GROUP 3 Page 32
  • 33.
    D1 =[ ( ) √( ) ( =20.17mm = D4 D3 =[ ( ) √( ) ( ) (this are due to the zero moment at both ends) ) ( ) ( ) Referring to the bending moment diagram above, MBX = 42.42N m MBY = 116.54 N m Applying Pythagoras’s theorem, M = √ =√ = 124.02 N m D3 =[ ( ) √( ) ( ) ( ) = 39.33 mm D2 will be larger than D3 and D1 in order to provide a shoulder for the gear. The actual value of D2 will be specified after the analysis has been completed. Fillet designs for shaft 1 There are three fillets for shaft 1 which two of them are sharp and one of them is wellrounded. The value of Kt is 2.5 for sharp fillet and 1.5 for well-rounded fillet. For shaft 1, r1 and r3 are shaft fillets while r2 is well-rounded fillet. By referring to figure below, EMM 3506 – GROUP 3 Page 33
  • 34.
    Figure 1.2: Referencediagram used in determining the fillet radius Stressconcentration D/d r/d Fillet Radius d (mm) (mm) factor, Kt r1 2.5 2.27 0.015 22 0.33 r3 1.5 1.19 0.06 42 2.52 r4 2.5 1.91 0.015 22 0.33 Summary for shaft 1 EMM 3506 – GROUP 3 Page 34
  • 35.
    The calculated minimumrequired diameters for various parts of the shaft 1 are as follows: D1 = 20.17 mm D2 = 50.00 mm (D2 must be larger than D1 and D3 to provide shoulders for them) D3 = 39.33 mm D4 = 20.17 mm The dimensions above are minimum diameters for various parts, to ease manufacturing process and provide extra safety, rounded-off and larger diameters are used: D1 = 22.00 mm D2 = 50.00mm D3 = 42.00mm D4 = 22.00mm Fillet Radius Dimension (mm) r1 0.33 r3 2.52 r4 0.33 EMM 3506 – GROUP 3 Page 35
  • 36.
    EMM 3506 –GROUP 3 Page 36
  • 37.
    7.2.2 CALCULATION FORSHAFT 2 AND DRAWING Gear 4 on shaft 2 receive the torque from pinion 1 on shaft 1. Force on the Gear 4, Tangential force, Wt(c) = = = 1363.64 N EMM 3506 – GROUP 3 Page 37
  • 38.
    Radial force, Wr(c) =Wt tan =1363.64 tan 20 º =496.32 N Force exerted by drum WDrum = ρVg = 8030 kg/m3 x 9.7839 x 10-3 m3 x 9.81 m/s2 = 770.72 N EMM 3506 – GROUP 3 Page 38
  • 39.
    D1 =[ ( ) √( ) ( ) ( ) Moment iszero at both ends D1 =[ ( ) √( ) ( ) ( ) = 38.59 mm = D3 At point B, where there is a profile keyset at the gear 4. Thus by calculation the theoretical Db is 45.64 mm Diameter for 2 must be larger than D1 and D3. It also must exceed Db which is theoretical value if gear is apart from the drum. Fillet designs for shaft 2 There are 2 fillets for shaft 2 which both are sharp. The value of Kt is 2.5 for sharp fillet. For shaft 3, r1 and r3 are shaft fillets. By referring to figure below, EMM 3506 – GROUP 3 Page 39
  • 40.
    Figure 3.1: Referencediagram used in determining the fillet radius Table 3.1: Fillet radius calculated based on the figure 3.1. Stressconcentration D/d r/d d (mm) factor, Kt Fillet Radius (mm) r1 2.5 1.5 0.015 40 0.6 r3 2.5 1.5 0.015 40 0.6 EMM 3506 – GROUP 3 Page 40
  • 41.
    Summary for shaft2 The calculated minimum required diameters for various parts of the shaft 1 are as follows: D1 = 38.59mm D2 = 60.00mm (D2 must be larger than D1 and D3 to provide shoulders for them) D3 = 38.59mm Also, on the left side of the Gear 4, there is where the drum placed. The drum exerts a force to the shaft in vertical plane. Thus, D2 has to be increased again to ensure the force exerted from the drum does not fail the shaft. All the dimensions above are then enlarged with certain ratio such that the D2 has the same value as the hollow hole in the drum as what is in Drum Specification. The values are the rounded-off in order the ease the manufacturing process. D1 = 40.00mm D2 = 60.00mm D3 = 40.00mm Fillet Radius Dimension (mm) r1 0.6 r3 0.6 EMM 3506 – GROUP 3 Page 41
  • 42.
    EMM 3506 –GROUP 3 Page 42
  • 43.
    7.2.3 CALCULATION FORSHAFT 3 AND DRAWING Torque was transmitted from gear 4 to the gear 3. Force on the Gear 3, Tangential force, Wt(c) = = 1363.63 N EMM 3506 – GROUP 3 Page 43
  • 44.
    Radial force, Wr(c) =Wt tan =1363.63 tan 20 º =496.32 N Force on the Gear 2, Tangential force, Wt(c) = = 214.29 N Radial force, Wr (c) =Wt tan =214.29 tan 20 º =77.994 N EMM 3506 – GROUP 3 Page 44
  • 45.
    D1 =[ ( ) √( ) ( ) ( ) There hasno moment at both ends =[ ( ) √( ) ( ) ( ) = 20.17 mm = D5 Referring to the bending moment diagram above, MBX = 44.64 N m MBY = 122.69 N m Applying Pythagoras’s theorem, M = √ =√ ) ( ) = 130.56 N m D3 =[ ( ) √( ) ( ) ( ) = 40.00 mm Referring to the bending moment diagram above, McX = 16.698 N m McY = 45.93 N m EMM 3506 – GROUP 3 Page 45
  • 46.
    Applying Pythagoras’s theorem,Mc = √ ) = √( ( ) = 48.87 N m D4 =[ ( ) √( ) ( ) ( ) = 29.29 mm Fillet designs for shaft 3 There are four fillets for shaft 3 which two of them are sharp and two of them are wellrounded. The value of Kt is 2.5 for sharp fillet and 1.5 for well-rounded fillet. For shaft 2, r1 and r4 are shaft fillets while r2 and r3 are well-rounded fillets. By referring to figure below, Figure 2.1: Reference diagram used in determining the fillet radius EMM 3506 – GROUP 3 Page 46
  • 47.
    Table 2.1: Filletradius calculated based on the Figure 2.1. Stressconcentration D/d r/d d (mm) factor, Kt Fillet Radius (mm) r1 2.5 2.5 0.015 22 0.33 r3 1.5 1.25 0.07 44 3.08 r4 1.5 1.33 0.08 33 2.64 r5 2.5 1.5 0.015 22 0.33 Summary for shaft 3 The calculated minimum required diameters for various parts of the shaft 2 are as follows: EMM 3506 – GROUP 3 Page 47
  • 48.
    D1 = 20.17mm D2 = 55.00mm (D2 must be larger than D1 and D3 to provide shoulders for them) D3 = 40.00 mm D4 = 29.29mm D5 = 20.17mm The dimensions above are minimum diameters for various parts, to ease manufacturing process and provide extra safety, rounded-off and larger diameters are used: D1 = 22.00 mm D2 = 55.00mm D3 = 44.00mm D4 = 33.00mm D5 = 22.00mm Table 2.2: Fillet radii used for shaft 2 Fillet Radius Dimension (mm) r1 0.33 r3 3.08 r4 2.64 r5 0.33 EMM 3506 – GROUP 3 Page 48
  • 49.
    EMM 3506 –GROUP 3 Page 49
  • 50.
    7.3 KEY AND KEYSEATSCALCULATIONS In order to allow the gear transmit its rotational power to the shaft effectively and without any slipping, keys are used for all the pinions and gears in our design. In our design, profile rectangular keys are used as they are most common used keys in industry as well as due to a lower cost required. Profile rectangular keys can ensure that the shaft and gear interlock each other in all direction, which is better to prevent the gear from moving in any direction. EMM 3506 – GROUP 3 Page 50
  • 51.
    EMM 3506 –GROUP 3 Page 51
  • 52.
    Shaft 1, forgear 1 H = 9mm W = 14mm Shaft 2, for gear 4 H = 11mm W = 18mm Shaft 3, for gear 3and 2 H = 9mm W = 14mm Gear 3 H = 8mm W = 10mm Gear 2 EMM 3506 – GROUP 3 Page 52
  • 53.
    Key for gear1 Bearing and Shear Stress Analysis Since for gear 1, the diameter of shaft where the gear mounted on it is 42.00mm. From Appendix in page 23, the standard width and height of the key are 14.00mm and 9.00mm respectively. Width of the key, W = 14.00mm Diameter of the shaft, D = 42.00mm The key is expected to withstand sudden shock or impact, thus the safety factor used is 6. From calculation for shaft 1, the torque transmitted is 45.0 N m Tensile strength of shaft 1, Su = 621 M Pa. The minimum required key length can be calculated using the formula as below: Ls = = 2.96 mm Key for gear 2 Bearing and Shear Stress Analysis For gear 2, the diameter of shaft where the gear 2 mounted on it is 33.00mm. From Appendix in page 23, the standard width and height of the key are 10.00mm and 8.00mm respectively. Width of the key, W = 10.00mm Diameter of the shaft, D = 33.00mm The key is expected to withstand sudden shock or impact, thus the safety factor used is 6. From calculation for shaft 1, the torque transmitted is 45.0N m Tensile strength of shaft 1, Su = 621 M Pa. EMM 3506 – GROUP 3 Page 53
  • 54.
    The minimum requiredkey length can be calculated using the formula as below: Ls = = 5.27 mm Key for gear 3 Bearing and Shear Stress Analysis For gear 3, the diameter of shaft where the gear 3 mounted on it is 44.00mm. From Appendix in page 23, the standard width and height of the key are 14.00mm and 9.00mm respectively. Width of the key, W = 14.00mm Diameter of the shaft, D = 44.00mm The key is expected to withstand sudden shock or impact, thus the safety factor used is 6. From calculation for shaft 3, the torque transmitted is 45 N m Tensile strength of shaft 1, Su = 621 M Pa. The minimum required key length can be calculated using the formula as below: Ls = = 2.82 mm Key for gear 4 Bearing and Shear Stress Analysis For gear 4, the diameter of shaft where the gear 4 mounted on it is 60.00mm. From Appendix in page 23, the standard width and height of the key are 18.00mm and 11 mm respectively. Width of the key, W = 18.00mm EMM 3506 – GROUP 3 Page 54
  • 55.
    Diameter of theshaft, D = 60.00mm The key is expected to withstand sudden shock or impact, thus the safety factor used is 6. From calculation for shaft 2, the torque transmitted is 315 N m Tensile strength of shaft 1, Su = 621 M Pa. The minimum required key length can be calculated using the formula as below: Ls = = 11.27 mm The values of required length above are the minimum lengths required for every single key. The values are enlarged to ease the manufacturing process and provide extra safety. Summary Table 3.1: Dimensions of keys used Torque Required Transmitted length of key (N m) (mm) 14.00 45.0 2.96 30.00 33.00 10.00 45.0 5.27 30.00 Gear 3 44.00 14.00 45.0 2.82 30.00 Gear 4 60.00 18.00 315.0 11.27 30.00 Diameter of Width of key Shaft (mm) (mm) Gear 1 42.00 Gear 2 EMM 3506 – GROUP 3 Actual length of key (mm) Page 55
  • 56.
    7.4 CALCULATION FOR SPEED2 7.4.1 CALCULATION FOR SHAFT 1 AND DRAWING Material selection Referred back to the Stainless Steel 304, the material has possessed two properties which is chemical and mechanical. In this scope, we more likely to know its mechanical properties which are main reason due to the all the information that lead to the shaft requirement and can be calculated based on formula that can be used. All the data for the chemical and mechanical properties of the Stainless Steel 304can be summarize as seen in next page; Chemistry % by Weight Element Type 302 Type 304 Type 304L Type 305 Fe 64.99-74% Cr 17% 18% 18% 17% Ni 8% 8% 8% 10.50% Mn 2% 2% 2% 2% N 0.10% 0.10% 0.10% - EMM 3506 – GROUP 3 Page 56
  • 57.
    S 0.03% 0.03% 0.03% 0.03% C 0.15% 0.08% 0.03% 0.12% Si 0.75% 0.75% 0.75% 0.75% P 0.045% 0.045% 0.045% 0.045% Properties Properties Physical Properties Density Mechanical properties Hardness,Rockwell B Tensile Strength, Ultimate Tensile Strength, Yield Value Comment 8.03 g/cc 82 621 Mpa (=90100psi) 290 Mpa (=42100psi) 0.2% YS Elongation at Break 55% in 2 inches Modulus of Elasticity Modulus of Elasticity Electrical properties Electrical Resistivity Electrical Resistivity Magenetic permeability Thermal properties CTE, linear 20°C CTE, linear 20°C Heat Capacity Thermal Conductivity Thermal Conductivity Processing properties Melt temperature 193 Gpa 78 Gpa tension torsion 0.000116 ohm-cm 7.2e-005 ohm-cm Max 1.02 659 °C 16.9 µm/m-°C 18.7 µm/m-°C 0.5 J/g-°C 16.2 W/m-K 21.4 W/m-K 0 to 100°C to 649°C 0°C to 100° 100°C 500°C H = 200 Oersteds, Annealed 1371- 1399 °C Endurance strength, Sn Endurance strength, Sn = 0.5 Su =0.5(621) =310.50M Pa EMM 3506 – GROUP 3 Page 57
  • 58.
    Actual Endurance Strength,Sn' Actual Endurance Strength, Sn’ = Sn (Cm) (Cst) (CR) (CS) Cm = 1.0 (Since the material we used is steel) Cst = 1.0 (Type of loading is bending) CR = 0.81 (The shaft is designed to has reliability of 0.99) CS = 0.75 (We assume it as we do not know the actual size yet) Actual Endurance Strength, Sn’ =310.50 (1.0) x (1.0) x (0.81) x (0.75) = 188.63MPa Average force applied on handle is 150N, and the length of handle is 0.3m Therefore, Torque, T = 150 x (0.3) = 45N.m Force on the Pinion 1, Tangential force, Wt = = = 1363.64 N Radial force, Wr =Wt tan =1363.64 tan 20 º =496.32N EMM 3506 – GROUP 3 Page 58
  • 59.
    r1 is asharp fillet, then a stress concentration factor of 2.5 should be used. Safety Factor of 6 is used as the shaft is expected to withstand unusual shock or impact. D1 =[ ( ) √( ) ( ) ( ) ( ) But the moment at point A is zero, thus D1 =[ ( ) √( ) ( =20.17 mm = D4 D3 =[ ( ) √( EMM 3506 – GROUP 3 ) (this are due to the zero moment at both ends) ) ( ) ( ) Page 59
  • 60.
    Referring to thebending moment diagram above, MBX = 16.29N m MBY = 44.77 N m Applying Pythagoras’s theorem, M = √ =√ = 47.64 N m D3 =[ ( ) √( ) ( ) ( ) = 29.07 mm D2 will be larger than D3 and D1 in order to provide a shoulder for the gear. The actual value of D2 will be specified after the analysis has been completed. Fillet designs for shaft 1 There are three fillets for shaft 1 which two of them are sharp and one of them is wellrounded. The value of Kt is 2.5 for sharp fillet and 1.5 for well-rounded fillet. For shaft 1, r1 and r3 are shaft fillets while r2 is well-rounded fillet. By referring to figure below, EMM 3506 – GROUP 3 Page 60
  • 61.
    Figure 1.2: Referencediagram used in determining the fillet radius Stressconcentration D/d r/d d (mm) factor, Kt Fillet Radius (mm) r1 2.5 2.27 0.015 22 0.33 r3 1.5 1.21 0.06 33 1.98 r4 2.5 1.91 0.015 22 0.33 Summary for shaft 1 The calculated minimum required diameters for various parts of the shaft 1 are as follows: D1 = 20.17 mm D2 = 40.00 mm (D2 must be larger than D1 and D3 to provide shoulders for them) D3 = 29.07 mm D4 = 20.17 mm EMM 3506 – GROUP 3 Page 61
  • 62.
    The dimensions statedprevious page are minimum diameters for various parts, to ease manufacturing process and provide extra safety, rounded-off and larger diameters are used: D1 = 22.00 mm D2 = 40.00mm D3 = 33.00mm D4 = 22.00mm Fillet Radius Dimension (mm) r1 0.33 r3 1.98 r4 0.33 EMM 3506 – GROUP 3 Page 62
  • 63.
    EMM 3506 –GROUP 3 Page 63
  • 64.
    7.4.2 CALCULATION FORSHAFT 2 AND DRAWING Gear 4 on shaft 2 receive the torque from pinion 1 on shaft 1. Force on the Gear 4, Tangential force, Wt(c) = = = 8677.58 N EMM 3506 – GROUP 3 Page 64
  • 65.
    Radial force, Wr(c) =Wt tan =8677.58 tan 20 º =3158.38 N Force exerted by drum WDrum = ρVg = 8030 kg/m3 x 9.7839 x 10-3 m3 x 9.81 m/s2 = 770.72 N D1 =[ ( ) √( EMM 3506 – GROUP 3 ) ( ) ( ) Page 65
  • 66.
    Moment is zeroat both ends D1 =[ ( ) √( ) ( ) ( ) = 71.52 mm = D3 At point B, where there is a profile keyset at the gear 4. Thus by calculation the theoretical Db is 73.62 mm Diameter for 2 must be larger than D1 and D3. It also must exceed Db which is theoretical value if gear is apart from the drum. Fillet designs for shaft 2 There are 2 fillets for shaft 2 which both are sharp. The value of Kt is 2.5 for sharp fillet. For shaft 3, r1 and r3 are shaft fillets. By referring to figure below, Figure 3.1: Reference diagram used in determining the fillet radius EMM 3506 – GROUP 3 Page 66
  • 67.
    Table 3.1: Filletradius calculated based on the figure 3.1. Stressconcentration D/d r/d d (mm) Fillet Radius factor, Kt (mm) r1 2.5 1.13 0.01 75 0.75 r3 2.5 1.13 0.01 75 0.75 Summary for shaft 2 The calculated minimum required diameters for various parts of the shaft 1 are as follows: D1 = 71.52mm D2 = 85.00mm (D2 must be larger than D1 and D3 to provide shoulders for them) D3 = 71.52mm EMM 3506 – GROUP 3 Page 67
  • 68.
    Also, on theleft side of the Gear 4, there is where the drum placed. The drum exerts a force to the shaft in vertical plane. Thus, D2 has to be increased again to ensure the force exerted from the drum does not fail the shaft. All the dimensions above are then enlarged with certain ratio such that the D2 has the same value as the hollow hole in the drum as what is in Drum Specification. The values are the rounded-off in order the ease the manufacturing process. D1 = 75.00mm D2 = 85.00mm D3 = 75.00mm Fillet Radius Dimension (mm) r1 0.75 r3 0.75 EMM 3506 – GROUP 3 Page 68
  • 69.
    EMM 3506 –GROUP 3 Page 69
  • 70.
    7.4.3 CALCULATION FORSHAFT 3 AND DRAWING Torque was transmit from gear 1 to the gear 2. Force on the Gear 2, Tangential force, Wt(c) = = 1363.63 N EMM 3506 – GROUP 3 Page 70
  • 71.
    Radial force, Wr(c) =Wt tan =1363.63 tan 20 º =496.32 N Force on the Gear 3, Tangential force, Wt(c) = = 8677.57 N Radial force, Wr (c) =Wt tan =8677.57 tan 20 º =3158.38 N EMM 3506 – GROUP 3 Page 71
  • 72.
    D1 =[ ( ) √( ) ( ) ( ) There hasno moment at both ends =[ ( ) √( ) ( ) ( ) = 37.39 mm = D5 Referring to the bending moment diagram above, for at point gear 3 MBX = 284.52N m MBY = 780.52 N m Applying Pythagoras’s theorem, M = √ = √( ) ( ) = 830.76 N m D3 =[ ( ) √( ) ( ) = 74.09 mm Referring to the bending moment diagram above, at point gear 2 McX = 106.78 N m McY = 291.99 N m EMM 3506 – GROUP 3 Page 72
  • 73.
    Applying Pythagoras’s theorem,Mc = √ = √( ) ( ) = 310.90 N m D4 =[ ( ) √( ) ( ) = 54.26 mm Fillet designs for shaft 3 There are four fillets for shaft 3 which two of them are sharp and two of them are wellrounded. The value of Kt is 2.5 for sharp fillet and 1.5 for well-rounded fillet. For shaft 2, r1 and r4 are shaft fillets while r2 and r3 are well-rounded fillets. By referring to figure below, Figure 2.1: Reference diagram used in determining the fillet radius EMM 3506 – GROUP 3 Page 73
  • 74.
    Table 2.1: Filletradius calculated based on the Figure 2.1. Stressconcentration D/d r/d d (mm) factor, Kt Fillet Radius (mm) r1 2.5 2.0 0.015 40 0.6 r3 1.5 1.067 0.025 75 1.875 r4 1.5 1.36 0.075 55 4.125 r5 2.5 1.375 0.015 40 0.6 Summary for shaft 3 EMM 3506 – GROUP 3 Page 74
  • 75.
    The calculated minimumrequired diameters for various parts of the shaft 2 are as follows: D1 = 37.39mm D2 = 80.00 mm (D2 must be larger than D1 and D3 to provide shoulders for them) D3 = 74.09 mm D4 = 54.26mm D5 = 37.39mm The dimensions above are minimum diameters for various parts, to ease manufacturing process and provide extra safety, rounded-off and larger diameters are used: D1 = 40.00 mm D2 = 80.00mm D3 = 75.00mm D4 = 55.00mm D5 = 40.00 mm Table 2.2: Fillet radii used for shaft 2 Fillet Radius Dimension (mm) r1 0.6 r3 1.875 r4 4.125 r5 0.6 EMM 3506 – GROUP 3 Page 75
  • 76.
    EMM 3506 –GROUP 3 Page 76
  • 77.
    7.5 KEY AND KEYSEATSCALCULATIONS In order to allow the gear transmit its rotational power to the shaft effectively and without any slipping, keys are used for all the pinions and gears in our design. In our design, profile rectangular keys are used as they are most common used keys in industry as well as due to a lower cost required. Profile rectangular keys can ensure that the shaft and gear interlock each other in all direction, which is better to prevent the gear from moving in any direction. EMM 3506 – GROUP 3 Page 77
  • 78.
    EMM 3506 –GROUP 3 Page 78
  • 79.
    Shaft 1, forgear 1 H = 8mm W = 10mm Shaft 2, for gear 4 H = 14mm W = 25mm Shaft 3, for gear 3and 2 H = 14mm W = 22mm Gear 3 H = 10mm W = 16mm Gear 2 EMM 3506 – GROUP 3 Page 79
  • 80.
    Key for gear1 Bearing and Shear Stress Analysis Since for gear 1, the diameter of shaft where the pinion 1 mounted on it is 33.00mm. From Appendix in page 23, the standard width and height of the key are 10.00mm and 8.00mm respectively. Width of the key, W = 10.00mm Diameter of the shaft, D = 33.00mm The key is expected to withstand sudden shock or impact, thus the safety factor used is 6. From calculation for shaft 1, the torque transmitted is 45.0 N m Tensile strength of shaft 1, Su = 621 M Pa. The minimum required key length can be calculated using the formula as below: Ls = = 5.27 mm Key for gear 2 Bearing and Shear Stress Analysis Since for gear 2, the diameter of shaft where the gear 2 mounted on it is 55.00mm. From Appendix in page 23, the standard width and height of the key are 16.00mm and 10.00mm respectively. Width of the key, W = 16.00mm Diameter of the shaft, D = 55.00mm The key is expected to withstand sudden shock or impact, thus the safety factor used is 6. From calculation for shaft 1, the torque transmitted is 286.36 N m Tensile strength of shaft 1, Su = 621 M Pa. EMM 3506 – GROUP 3 Page 80
  • 81.
    The minimum requiredkey length can be calculated using the formula as below: Ls = = 12.58 mm Key for gear 3 Bearing and Shear Stress Analysis For gear 3, the diameter of shaft where the gear 3 mounted on it is 75.00mm. From Appendix in page 23, the standard width and height of the key are 22.00mm and 14.00mm respectively. Width of the key, W = 22.00mm Diameter of the shaft, D = 75.00mm The key is expected to withstand sudden shock or impact, thus the safety factor used is 6. From calculation for shaft 3, the torque transmitted is 286.36 N m Tensile strength of shaft 1, Su = 621 M Pa. The minimum required key length can be calculated using the formula as below: Ls = = 6.71 mm Key for gear 4 Bearing and Shear Stress Analysis For gear 4, the diameter of shaft where the gear 4 mounted on it is 85.00mm. From Appendix in page 23, the standard width and height of the key are 25.00mm and 14 mm respectively. Width of the key, W = 25.00mm EMM 3506 – GROUP 3 Page 81
  • 82.
    Diameter of theshaft, D = 85.00mm The key is expected to withstand sudden shock or impact, thus the safety factor used is 6. From calculation for shaft 2, the torque transmitted is 2004.52 N m Tensile strength of shaft 1, Su = 621 M Pa. The minimum required key length can be calculated using the formula as below: Ls = = 36.46 mm The values of required length above are the minimum lengths required for every single key. The values are enlarged to ease the manufacturing process and provide extra safety. Summary Table 3.1: Dimensions of keys used Torque Required Transmitted length of key (N m) (mm) 10.00 45.0 5.27 30.00 55.00 16.00 286.36 12.58 30.00 Gear 3 75.00 22.00 286.36 6.71 30.00 Gear 4 85.00 25.00 2004.52 36.46 30.00 Diameter of Width of key Shaft (mm) (mm) Gear 1 33.00 Gear 2 EMM 3506 – GROUP 3 Actual length of key (mm) Page 82
  • 83.
    7.6 CONCLUSION OF SHAFT Fromthe calculation for both speed as we calculated as shown in previous page, the shaft diameter calculated give the difference between both speeds. Therefore, we are considering the shaft with bigger diameter for our selection due to safety reason. In comparison, shaft 1 for speed one is bigger than diameter of shaft for speed 2. Thus we are select diameter in calculation for speed 1. For shaft 2, diameter calculated for speed 1 smaller than diameter calculated for speed 2. The diameter calculated for speed 2 is selected. For the third shaft, the diameter calculated for speed 1 also smaller than diameter for shaft calculated from speed 2. Thus we select diameter calculated for the speed 2. The final selection of the shaft is listed as below for our design of winch. SHAFT NO. 1 Diameter 1 (mm) 22.00 Diameter 2 (mm) 50.00 Diameter 3 (mm) 42.00 Diameter 4 (mm) 22.00 Diameter 5(mm) - 2 75.00 85.00 75.00 - - 3 40.00 80.00 75.00 55.00 40.00 EMM 3506 – GROUP 3 Page 83
  • 84.
    8.0 LUBRICATION 8.1 INTRODUCTION OF LUBRICATION Lubricationis simply the use of a material to improve the smoothness if movement of one surface over another; the material which is used in this way is called a lubricant. Lubricants are usually liquids or semi-liquids, but may be solids or gases or any combination of solids, liquids, and gases. The smoothness of movement is improved by reducing friction. This is not, however, always the case, and there may be situations in which it is more important to maintain steady friction than to obtain the lowest possible friction. In addition to reducing or controlling friction, lubricants are usually expected to reduce wear and often to prevent overheating and corrosion. TYPES OF LUBRICANT Lubricants are usually divided into four basic classes. No. 1 Type Oils Description A general term used to cover all liquid lubricants, whether they are mineral oils, natural oils, synthetics, emulsions, or even process fluids. 2 Greases Technically these are oils, which contain a thickening agent to make them semi-solid. It is convenient, however, to include the anti-seize pastes and the semi-fluid greases under the same heading. 3 Dry lubricant These include any lubricants, which are used in solid form, and may be bulky solids, paint-like coatings, or loose powders. 4 Gases The gas usually used in gas bearings is air, but any gas can be used which will not attack the bearings, or itself decompose. Table 1: type of lubricant in industry OIL LUBRICATION Oils are used in journal bearings when cooling is required or contaminants or debris need to be EMM 3506 – GROUP 3 Page 84
  • 85.
    flushed away fromthe bearing. High-speed journal bearings are always lubricated with oil rather than grease. Oil is supplied to the bearing by either a pressurized oil pump system, an oil ring or collar or a wick. Grooves in the bearing shell are used to distribute the oil throughout the bearings’ surfaces. The viscosity grade required is dependent upon bearing RPM, oil temperature and load. The bearing speed is often measured strictly by the revolutions per minute of the shaft, with no consideration of the surface speed of the shaft. Bearing Speed (rpm) Bearing / Oil Temperature (°C) 0 to 50 60 75 90 - 68 100 to 150 - ~1,800 32 32 to 46 68 to 100 100 ~3,600 32 32 46 to 68 68 to 100 ~10,000 32 32 32 32 to 46 300 to 1,500 Table 2: Journal Bearing ISO Viscosity Grade Selection EMM 3506 – GROUP 3 Page 85
  • 86.
    9.0 BEARING 9.1 INTRODUCTION OF BEARING Bearingis machine element that constrains relative motion and reduces friction between moving parts to only the desired motion. The design of the bearing may, for example, provide for free linear movement of the moving part or for free rotation around a fixed axis; or, it may prevent a motion by controlling the vectors of normal forces that bear on the moving parts. Many bearings also facilitate the desired motion as much as possible, such as by minimizing friction. Bearings are classified broadly according to the type of operation, the motions allowed, or to the directions of the loads (forces) applied to the parts. TYPES OF BEARING Type Plain bearing Description Rubbing surfaces, usually with lubricant; some bearings use pumped lubrication and behave similarly to fluid bearings. Rolling element Ball or rollers are used to prevent or minimize rubbing bearing Jewel bearing Off-center bearing rolls in seating Fluid bearing Fluid is forced between two faces and held in by edge seal Magnetic bearing Faces of bearing are kept separate by magnets Flexure bearing Material flexes to give and constrain movement Table 3: type of bearing in industry For our design we are focusing in using plain bearing which is journal type, straight journal bearing. This type of journal bearing operates in the boundary regime (metal-to-metal contact) only during the startup and shutdown of the equipment when the rotational speed of the shaft (journal) is insufficient to create an oil film. As we known, this type of journal is selflubricate. EMM 3506 – GROUP 3 Page 86
  • 87.
    It is importantto understand that the rotating shaft is not centered in the bearing shell during normal operation. This offset distance is referred to as the eccentricity of the bearing and creates a unique location for the minimum oil film thickness, as shown in next page. Figure 1: operation of lubricant and journal bearing EMM 3506 – GROUP 3 Page 87
  • 88.
    9.2 DESIGN OF BEARING Toget optimal performance from the bearing, designer must pay special attention to design as regards the fit between the inner ring, outer ring, and the housing. This fit and design must be suitable for the specific equipment involved in the application. For example, too loose a fit could result in a corroded or scored bearing bore and shaft; while too tight a fit could result in unnecessarily large mounting and dismounting forces and too great a reduction in internal bearing clearance. All rolling bearing manufacturers make bearings to standardized tolerances set forth by the Anti-Friction Bearing Manufacturers Association (AFBMA) and the International Standards Organization (ISO). The proper fits can only be obtained by selecting the proper tolerances for the shaft. Each tolerance is designated by a letter and a numeral. The small letter is for shaft fits and the capital letter is for housing bores, and together they locate the tolerance zone in relation to the nominal dimensions. The numeral designation gives the magnitude of the tolerance zone. Shaft and Housing Finish precision of bearing shaft and housing: After bearing installation, degradation will occur in the roundness of the bearings if the design and fit of the shaft and housing are not appropriate. The precision and surface roughness of the shaft and housing must be at satisfactory levels to protect the bearings and optimize their performance. Fillet radii of corners of shaft and housing: The design of the side faces of bearing shafts and housings, or the area contact the bearing side face, causes them to come to the shaft center and fit surface at right angles. The fillet radii of the shaft and housing corners have a maximum permissible radius (ras max) is smaller than minimum permissible chamfer dimensions of the bearings. EMM 3506 – GROUP 3 Page 88
  • 89.
    Height of shoulder: Thedesign of the shaft and housing shoulders must include a height that is taller than minimum permissible chamfer dimensions. The shoulders also must be designed to contact the side faces of the inner and outer rings. To design shoulders properly, ensure that the minimum height of shoulders is four times taller than minimum permissible chamfer dimensions. The table and figure on this page provide additional insight into the dimension specifics of this bearing design requirement. Referred from JIS B 1566 Figure 3: shaft housing and chamfer EMM 3506 – GROUP 3 Page 89
  • 90.
    Bearing Material Bearing materialsconstitute an import part of any bearing. Their significance is at the start of the hydro-dynamic lubrication when metal to metal contact occurs or during mixed and boundary lubrication period. Desirable properties of good bearing material are;1. Conformability (low elastic modulus) and deformability (plastic flow) to relieve local high pressures caused by misalignment and shaft deflection. 2. Embeddability or indentation softness, to permit small foreign particles to become safely embedded in the material, thus protecting the journal against wear. 3. Low shear strength for easy smoothing of surface asperities. 4. Adequate compressive strength and fatigue strength for supporting the load and for enduring the cyclic loading as with engine bearings under all operating conditions. 5. Should have good thermal conductivity to dissipate the frictional heat and coefficient of thermal expansion similar to the journal and housing material. 6. It should be compatible with journal material to resist scoring, welding and seizing. 7. Should have good corrosion resistance against the lubricant and engine combustion products. Babbits are the most commonly used bearing materials. Babbitts have excellent conformability and embeddability, but have relatively low compressive and fatigue strength.Other materials such as tin bronze, leaded bronze, copper lead alloy, aluminium bronze, aluminium alloys and cast iron are also used in many applications. Widely used bearing material compositions are given below: a.Tin-base babbitts with 89% Sn, 8% Pb and 3% Cu, b. Lead- base babbitts with 75% Pb, 15% Sb and 10% Sn, c. Copper alloys such as Cu- 10% to 15% Pb. EMM 3506 – GROUP 3 Page 90
  • 91.
    Bimetal and trimetalbearings are used in engine application to reduce the size of the bearing and obtain good compatibility and more load capacity. The bearings can be of solid bushings or lined bushings. Sometimes two piece with or without flanges are also used. These are shown in Fig.4.1. The inner surfaces of the bearings are grooved to facilitate the supply of lubricant to the surface of the journal. Various groove pattern used in industry are shown in Fig. 4.2. a) Solid bushing b) Fanged c) Lined bushing d) Straight Figure 4.1: various types of bush bearing EMM 3506 – GROUP 3 Page 91
  • 92.
    Figure 4.2: developedviews of typical groove patterns Bearing Life Generally, a rolling bearing cannot rotate forever. Unless operating conditions are ideal and the fatigue load limit is not reached, sooner or later material fatigue will occur. The period until the first sign of fatigue appears is a function of the number of revolutions performed by the bearing and the magnitude of the load. Fatigue is the result of shear stresses cyclically appearing immediately below the load carrying surface. After a time these stresses cause cracks which gradually extend up to the surface. As the rolling elements pass over the cracks fragments of material break away and this is known as flaking or spalling. The flaking progressively increases in extent and eventually makes the bearing unserviceable (fig 5.1, fig 5.2, fig 5.3, fig 5.4) fig 5.1 EMM 3506 – GROUP 3 fig 5.2 fig 5.3 fig 5.4 Page 92
  • 93.
    The life ofa rolling bearing is defined as the number of revolutions the bearing can perform before incipient flaking occurs. This does not mean to say that the bearing cannot be used after then. Flaking is a relatively long, drawn-out process and makes its presence known by increasing noise and vibration levels in the bearing. Therefore, as a rule, there is plenty of time to prepare for a change of bearing. EMM 3506 – GROUP 3 Page 93
  • 94.
    9.3 BEARING SELECTION EMM 3506– GROUP 3 Page 94
  • 95.
    9.4 2D DRAWING The bearingwas selected by refereed to the diameter of shaft. The diameter that was used the bearing was the diameter of the ends of every shaft, which is the required internal diameter for the bearing. The picture only show one drawing due to the same design, but only the inner and outer diameter is different for every shaft. EMM 3506 – GROUP 3 Page 95
  • 96.
    10.0 FRAME 10.1 INTRODUCTION The Stainless Steel304, the material has possessed two properties which is chemical and mechanical. In this scope, we more likely to know its mechanical properties which are main reason due to the all the information that lead to the shaft requirement and can be calculated based on formula that can be used. All the data for the chemical and mechanical properties of the Stainless Steel 304can be summarize as seen below; The selection was influenced by the material shaft, this are due to the safety issues, which is the component will hold the same strain and the limit also same, thus the safety issue does be easier to counter. Chemistry % by Weight Element Type 302 Type 304 Type 304L Type 305 Fe 64.99-74% Cr 17% 18% 18% 17% Ni 8% 8% 8% 10.50% Mn 2% 2% 2% 2% N 0.10% 0.10% 0.10% - S 0.03% 0.03% 0.03% 0.03% C 0.15% 0.08% 0.03% 0.12% Si 0.75% 0.75% 0.75% 0.75% P 0.045% 0.045% 0.045% 0.045% EMM 3506 – GROUP 3 Page 96
  • 97.
    Properties Properties Physical Properties Density Mechanical properties Hardness,Rockwell B Tensile Strength, Ultimate Tensile Strength, Yield Value Comment 8.03 g/cc 82 621 Mpa (=90100psi) 290 Mpa (=42100psi) 0.2% YS Elongation at Break 55% in 2 inches Modulus of Elasticity Modulus of Elasticity Electrical properties Electrical Resistivity Electrical Resistivity Magenetic permeability Thermal properties CTE, linear 20°C CTE, linear 20°C Heat Capacity Thermal Conductivity Thermal Conductivity Processing properties Melt temperature 193 Gpa 78 Gpa tension torsion 0.000116 ohm-cm 7.2e-005 ohm-cm Max 1.02 659 °C 16.9 µm/m-°C 18.7 µm/m-°C 0.5 J/g-°C 16.2 W/m-K 21.4 W/m-K 0 to 100°C to 649°C 0°C to 100° 100°C 500°C EMM 3506 – GROUP 3 H = 200 Oersteds, Annealed 1371- 1399 °C Page 97
  • 98.
    10.2 2D DRAWING EMM 3506– GROUP 3 Page 98
  • 99.
    11.0 RATCHET AND PAWL 11.1 INTRODUCTION Ratchetsand pawls are mechanical assemblies allowing a shaft to rotate in one direction and not the other. Ratchets are commonly known as ratchet wheels, because they consist of a rotational gear (or rack) with angled teeth. Pawls are thin pieces of metal which rest against ratchets to restrict the ratchet's motion. When the ratchet is rotated in one direction, the pawl is raised and moves smoothly between the ratchet's teeth. When the ratchet's rotation stops, the pawl drops between the ratchet teeth and makes clicking noises. Ratchets can operate quietly and smoothly or be harsh and jarring, depending on the installation of the ratchet teeth and pawl. Common applications for ratchets and pawls include use in spanners, turnstiles, winders and jacks. Figure 1: Ratchet and Pawl In our winch design, ratchet will attach to Gear B (refer Figure 2). The force manually applied on handle will be transmitted to gear A, which is 150N. The efficiency of Gear A and B is 97%. So the force generated on Gear B as well as the ratchet is 150N x 0.97 = 145.5N. EMM 3506 – GROUP 3 Page 99
  • 100.
    A D B C Figure 2: GearsDesign Referring to website catalogue KHK STOCK GEARS, ratchet (SRTB3-40) is selected. The pitch for the ratchet is 9.42. The selection criteria are based on calculation below: Allowable Torque = Allowable Force x Distance Allowable Force = Allowable Torque / Distance = 157.52/0.3 = 525.07 Safety Factor = 525.07 / 145.2 = 3.61 Pawl model SRT-2C is selected as it works together with ratchet SRTB3-40. As refer to the catalogue, the material for both ratchet and pawl is carbon steel S45C. The material properties for S45C are shown below: 1. S45C Mechanical properties: a) Density: 7700 – 8030 kg/m³ b) Young’s Modulus: 190-210 GPa c) Tensile strength: 569MPa (Standard), 686MPa (Quenching, Tempering) d) Yield Strength: 343MPa (Standard), 490MPa (Quenching, Tempering) e) Poisson’s ratio: 0.27-0.30 EMM 3506 – GROUP 3 Page 100
  • 101.
    11.2 CATALOG Catalog No. Angle of jaw orteeth Material Heat treatment Surface hardness Surface treatment Surface finish Datum reference surface for teeth cutting EMM 3506 – GROUP 3 Specifications SRT-C SRT/SRTB 60 60 S45C (Carbon steel) ** Induction hardened teeth HRC48 53 S45C (Carbon steel) Induction hardened teeth HRC48 53 Black oxide Black oxide Cut Cut Bore Bore Page 101
  • 102.
    Pawls Catalog No. SRT2/3-C J 5 K 8 L 38 M 30 N 6 Shape Weight(kgf) T5 0.02 8 10 49 3912 T5 0.05 10 12.5 67.5 55 15 T5 0.12 12 15 80 65 20 T5 0.22 13 18 98 80 25 T5 0.3 [DXF | DWG | 3D CAD] SRT1-C [DXF | DWG | 3D CAD] SRT2-C [DXF | DWG | 3D CAD] SRT3-C [DXF | DWG | 3D CAD] SRT4-C [DXF | DWG | 3D CAD] Ratchets Catalog No. Pit ch P SRT1-50 [DXF | DW G | 3D CAD] SRT1-60 [DXF | DW G | 3D CAD] SRT1-80 [DXF | DW G | 3D CAD] SRT1-90 [DXF | DW G | 3D CAD] SRT1100 3. 14 No . of te et h z B or e Outsi de dia. Face widt h Dep th of teet h Mou ntin g dista nce Center distanc e A C F G H I 50 1 2 50 12 1.6 23.4 45.5 60 28.4 80 60 80 90 10 0 We igh t (kg f) Catal og No. 0.1 6 SRT150 0.2 4 SRT160 0.4 4 SRT180 1 5 0.5 6 SRT190 1 5 0.7 SRT1100 1 5 1 5 Sh ap e Allowa ble torque (kgf-m) Allow able torqu e (Nm) Bendin g strengt h 1.5 Bendi ng streng th 14.69 48.2 1.99 19.5 38.4 54.7 3 29.37 90 43.4 58.3 3.52 34.47 100 48.4 62.2 4.02 39.4 T4 [DXF | DW G | 3D CAD] EMM 3506 – GROUP 3 Page 102
  • 103.
    SRT2-30 [DXF | DW G| 3D CAD] 6. 28 SRT2-40 30 40 50 [DXF | DW G | 3D CAD] 60 SRT2-50 [DXF | DW G | 3D CAD] [DXF | DW G | 3D CAD] [DXF | DW G | 3D CAD] 9. 42 SRT3-40 30 40 50 [DXF | DW G | 3D CAD] [DXF | DW G | 3D CAD] [DXF | DW G | 3D CAD] SRT4-40 [DXF | DW G | 3D CAD] SRT4-50 [DXF | DW G | 3D CAD] 1 5 15 3.1 26.9 61.2 80 36.9 100 120 T4 2.96 29.03 66.2 5.02 49.22 46.9 72.3 7.22 70.82 56.9 79.1 9.61 94.28 0.2 8 SRT230 0.5 3 SRT240 0.8 6 SRT250 1.2 4 1 5 2 0 90 20 5 40 76.3 120 55 150 70 T4 SRT260 0.8 6 SRT330 1.5 8 SRT340 2.5 4 SRT350 225.9 2 1.9 1 SRT430 385.1 4 3.5 4 SRT440 559.4 5.6 8 SRT450 9.44 92.56 85.1 16.06 95.5 23.31 157.5 2 228.6 2 2 0 SRT3-50 SRT4-30 1 5 60 1 5 SRT2-60 SRT3-30 1 5 12 .5 6 30 40 50 2 0 2 0 2 0 EMM 3506 – GROUP 3 120 25 7.4 52.6 95.7 T4 23.04 160 72.6 108 39.27 200 92.6 122.4 57.04 Page 103
  • 104.
    Ratchets with Hubs Catalo gNo. [DXF | D WG | 3D CAD] N o. of te et h B o r e Hu b dia . Out side dia. Fac e wid th Hu b wid th Tot al leng th De pth of tee th Mo unt ing dist anc e Cent er dista nce P SRTB2 /3-50 Pi tc h z A B C D E F G H I 2. 0 9 5 0 1 0 25 33.3 6 10 16 1 33.8 30 40 15. 5 6 0 1 0 8 0 1 2 9 0 1 2 1 0 0 1 2 SRTB2 /3-60 [DXF | D WG | 3D CAD] SRTB2 /3-80 [DXF | D WG | 3D CAD] SRTB2 /3-90 35 19 53.3 40 60 25. 5 40 66.6 29 35.5 S h a p e T 9 Allo wabl e torq ue (kgfm) Bend ing stren gth 0.31 0.42 Allo W Cata wabl ei log e gh No. torq t ue (k (N- gf) m) Ben ding stre ngth 3.07 0. SRT 06 B2/3 4.1 7 -50 39.4 0.61 6 41.7 0.73 7.11 43.9 0.84 8.24 32 0. 1 0. 16 0. 21 0. 24 [DXF | D WG | 3D CAD] SRT B2/3 -60 SRT B2/3 -80 SRT B2/3 -90 SRT B2/3 -100 SRTB2 /3100 [DXF | D WG | 3D CAD] SRTB1 -50 [DXF | D WG | 3D CAD] SRTB1 -60 3. 1 4 5 0 1 2 6 0 1 5 35 50 40 60 50 80 50 EMM 3506 – GROUP 3 90 12 12 24 1.6 23. 4 28. 4 45.5 48.2 54.7 58.3 T 9 1.5 1.99 3 3.52 14.6 9 0. 24 19.5 0. 34 29.3 SRT B150 SRT B1- Page 104
  • 105.
    [DXF | D WG| 3D CAD] 8 0 9 0 [DXF | D WG | 3D CAD] SRTB1 -90 [DXF | D WG | 3D CAD] 1 5 43. 4 1 0 0 SRTB1 -80 1 5 1 5 48. 4 50 38. 4 100 62.2 4.02 7 34.4 7 39.4 0. 61 0. 73 0. 87 [DXF | D WG | 3D CAD] [DXF | D WG | 3D CAD] 6. 2 8 SRTB2 -50 1 5 4 0 1 5 1 5 6 0 [DXF | D WG | 3D CAD] 3 0 5 0 SRTB2 -40 50 60 60 80 1 5 60 14 29 3.1 26. 9 36. 9 100 65 15 120 46. 9 61.2 2.96 5.02 72.3 7.22 79.1 9.61 56. 9 29.0 3 0. 48 49.2 2 0. 82 70.8 2 1. 14 94.2 8 66.2 T 9 1. 59 [DXF | D WG | 3D CAD] [DXF | D WG | 3D CAD] [DXF | D WG | 3D CAD] 9. 4 2 [DXF | D WG | 3D CAD] 3 0 1 5 4 0 2 0 5 0 SRTB3 -40 75 90 80 85 20 16 36 5 40 76.3 120 55 85.1 150 70 T 9 95.5 2 0 9.44 16.0 6 23.3 1 92.5 6 1. 4 157. 52 2. 17 228. 62 3. 21 [DXF | D WG | 3D CAD] [DXF | D WG | 3D CAD] SRTB4 -40 [DXF | D SRT B230 SRT B240 SRT B250 SRT B330 SRT B340 SRT B350 SRTB3 -50 SRTB4 -30 SRT B190 SRT B260 SRTB2 -60 SRTB3 -30 SRT B180 SRT B1100 SRTB1 -100 SRTB2 -30 60 1 2. 5 6 3 0 2 0 4 0 2 0 5 90 120 90 160 10 0 200 2 EMM 3506 – GROUP 3 25 18 43 7.4 52. 6 72. 6 92. 95.7 108 122.4 T 9 23.0 4 225. 92 2. 76 39.2 7 385. 14 4. 4 57.0 559. 6. SRT B430 SRT B440 Page 105
  • 106.
    WG | 3D CAD] 0 0 SRTB4 -50 [DXF| D WG | 3D CAD] EMM 3506 – GROUP 3 6 4 4 74 SRT B450 Page 106
  • 107.
    11.3 2D DRAWING RATCHETAND PAWL EMM 3506 – GROUP 3 Page 107
  • 108.
    EMM 3506 –GROUP 3 Page 108
  • 109.
    12.0 FASTENERS AND BOLT 12.1 INTRODUCTION 1.Types of thread fasteners and gasket Thread fasteners are reversible strengthening materials. This implies that they can be used and reused again in a separate material that requires threading. There are several types of fastener threads. This depends on the type and texture of the threads in the fasteners. You use fastener threads because they are cost efficient and they are readily available in most tool shops and supermarkets. Most fasteners require re-tightening as they, at times, fall off due to vibrations. A thread is a ridge of uniform section in the form of a helix on the internal or external surface of a cylinder (IFI description) or it could be described as a sloping plane curled around a cylinder. External threads are on bolts or screws. Internal threads are on nuts. There are many forms of threads but two types are in common use on fasteners. Machine Screw Threads - used on bolts, setscrews, machine screws and designed to mate with preformed threads in nuts or tapped holes. Exceptions may be thread forming screws like Taptite or self-drilling screws like Teksor thread cutters like Type 23's, which form or cut their own machine screw thread. Spaced Threads - used on woodscrews, self-tapping screws, coach screws and Type 25 thread cutters. Designed to form its own thread, usually in a pre-drilled hole. Exceptions may be self-piercing screws such as needle points or self-drilling screws like Type 17's which create their own hole; some Teksmay also have spaced threads. EMM 3506 – GROUP 3 Page 109
  • 110.
    There is awide array of threaded fastener types, including:  Unified National Coarse Threads  UNC threads are the most common general fastener thread. Their fit is deeper and more generic than that of a fine thread, allowing for easy removal. Generally, they have a higher tolerance for manufacturing and plating, and do not need cross threading to assemble.  Unified National Fine Threads  UNF threads have better torque-locking and load-carrying ability than UNC threads because of their larger minor diameter. Because of their more specific fit, they have tighter tolerances, finer tension adjustment, and can carry heavier loads. They are most commonly found in the aerospace industry.  United National Extra Fine Threads  UNEF threads are finer than UNF threads; they are used in applications with tapped holes in hard material, thin threaded walls, and tapped holes in thin material. As with UNF threads, UNEF threads are common in the aerospace industry.  UNJC and UNJF Threads  There are two types of ―J‖ threads: external and internal. External UNJC and UNJF threads have a larger root radius than the corresponding part (UNC, UNR, UNK, or UNF threads). The larger root radius results in a larger tensile area than the corresponding thread, and smaller stress concentration—bolts that carry heavy loads usually use ―J‖ threads.  UNR and UNK Threads  A UNR external thread is the same as a UNC thread, only the root radius is rounded. There is no internal UNR thread. UNK threads resemble UNR threads, but the root radius and minor diameter require inspection.  Constant-Pitch Threads  These threads come in a variety of diameters to fit a given application—bolts with diameters of 1 in. and above commonly use pitches of 8, 12, or 16 threads per inch. EMM 3506 – GROUP 3 Page 110
  • 111.
    2. Stress onthreads, static loading on tensioned joint, gasket joint The critical areas of stress of mating screw threads are  The effective cross section area, or tensile area, of the external thread.  The shear area of the external thread which depends upon minor diameter of the tapped hole  The shear area of the internal thread which depends on the major diameter of the external thread The allowable stresses are reflected towards the surface of the material itself. We can see that it is on full stresses as the shape started to change. From start, the material will started to experience sheer stress, on that part, yield strength of the material can be return to its original shape as it stores energy on the material itself, after a while, material will start to come into maximum tensile limit where necking usually occur at that time. As time goes, ultimate tensile stress will occur and the material will snap into 2 and that significant to failure. EMM 3506 – GROUP 3 Page 111
  • 112.
    Stress, static andtension formulae. D = Basic Diameter. p = Screw Thread Pitch Le = Length of Thread Engagement A t = the screw thread tensile stress area d p = Pitch circle diameter of thread A ss =the thread shear area The following formula for the Tensile Stress Area of the (male) screw This is based on ISO 898 Part 1. See calculation below... d p = Pitch circle diameter of thread dp = (D - 0.64952.p ) The thread shear area = Ass When the female and male threads are the same material. Ass = 0.5. π. dp. Le = 0.5 π (D - 0.64952.p). Le To ensure that the screw fails before the thread strips it is necessary the shear area is at least 2 times the tensile area. i.e. EMM 3506 – GROUP 3 Page 112
  • 113.
    Le (min) =2 . A t / [0.5 .π .(D - 0.64952.p )] This assumes that the male and female thread materials have the same strength. If the Female Material strength is lower i.e J as calculated below is greater than 1 then the length of engagement must be increased to prevent the female thread stripping If the value of J is greater than 1 then the length of engagement must be increased to at least Thus from above method of calculation, we can see that is proven shows on how the calculation is been made from one parts to another. This can also be applied to other parts regarding the shapes and sizes. For certain cases, we need to consider the material use for the parts as it involved the modulus young’s of that material. Everything can be found in any references book and it is helpful in solving any problems. EMM 3506 – GROUP 3 Page 113
  • 114.
    3. Shear loadingon bolted and riveted joints  The bolts are loaded in shear. Depending on the joint design the bolt can be in single or double shear...  The bolt interface with the hole is compressively loaded. ( Crushing ) Single Shear.. Shear Stress = 4 . F / π. d 2 Compressive Stress = F / (d . t) Plate Shear Stress = F / (2.c.t) Double Shear.. Shear Stress = 2 . F / π. d 2 Compressive Stress = F / (d . t) Plate Shear Stress = F / (2.c.t) The stresses are adjusted based on the number of bolts / screws used for the joint.. EMM 3506 – GROUP 3 Page 114
  • 115.
    Strength of boltswithstanding torsion generated shear loading Consider a bracket taking an offset load F (N) at a radius R (m). The bracket is secure using a number of bolts each with a Area A(m2 ). The bolts are located around a centroid position each with a radius from the centroid of rn(m) and a horizontal/vertical position relative to the centroid of hn /vn (m) . ( bolt is designated by the subscript "n". ) Location of Centroid... The location of the centroid of the bolts can often be determined by inspection as in figure above. If the bolts are not arranged around a convenient center then the centroid is determined by.. X position = sum of the moments of area of all the holes about a fixed horizontal position divided by the total hole area y position = sum of the moments of area of all the holes about a fixed vertical position divided by the total hole area EMM 3506 – GROUP 3 Page 115
  • 116.
    The offset loadis equivalent to a vertical force (F) + moment (F. R) at the centroid of the bolts... Each bolt is withstands a vertical shear force Fnv = F / No of Bolts. Each bolt also withstands a shear load Fnm = F.R. rn / (r12 + r22...rn2) The total horizontal force on each bolt Fth= Fnm . vn / Sqrt(hn2 + vn2 ) The total vertical force on each bolt Ft= Sqrt (Fth2 + Ftv2) The total shear load on each bolt The resulting bolt shear stress Ftv= Fnv + Fnm . hn / Sqrt(hn2 + vn2 ) τ t = Ft /A The shear stress in each bolt is calculated to ensure the design is safe.. Strength of bolt joints withstanding bending forces EMM 3506 – GROUP 3 Page 116
  • 117.
    Each Bolt withstandsa shear Force The resulting shear bolt stress Fs = Fv / (Number of bolts) τ n = Fs /A Note: Each bolt is assumed to withstand the same shear force. If there are x bolts( numbered n = 1 to x). Then the tensile force withstood be each bolt is designated Fnt i.e F1t,F2t, F3t....Fxt A selected bolt (n) withstands a tensile force of 2 Vn / (V1 + V22....Vx2 Fnt = ( Fv. Rv + Fh. Rh) . ) The resulting tensile bolt stress sn = Fnt /A Maximum principals stresses in the bolt resulting from combined loading The notes on this page Assuming all stresses developed only as a result of bracket loading i.e zero preload and zero residual bolt torque... Maximum principal tensile stress in the bolt Maximum principal compressive stress in the bolt EMM 3506 – GROUP 3 Page 117
  • 118.
    Maximum shear stressin the bolt Failure criteria: Refer to page Failure Modes The notes on this page In order to estimate the design factors of safety it is necessary to consider the failure modes. The preferred failure criteria for ductile metals are the "Shear Strain Energy Theory" (Von Mises-Hencky theory). For a stress regime associated with a bolt i.e pure tensile stress sx combined with shear stress τ xy. The Factor of safety relative to the material tensile strength Sy..Is calculated as follows Factor of Safety = Sy / ( sx2 + 3 .τ xy2 ) 1/2 EMM 3506 – GROUP 3 Page 118
  • 119.
    4. Asymmetrical loadingon bolted and riveted joints Bolted and riveted connections are quite commonly encountered in various design problems. Many trials have been carried out recently to determine the stress distribution in bolted and riveted joints which is of extreme importance in the design of such joints. Effect of many parameters has been investigated; however effect of thickness ratio of the joint plates did not take too much attention. In this analytic work the effect of various plate thicknesses on the load and stress distribution in cylindrical bolted joints has been investigated using the finite element technique. Computed results show that the loads as well as the stress or pressure distribution under bolt-head or nut are neither constant nor uniform. Whatever the thickness ratio of the two plates (I1 /L2), constant load and stress occurred across the joint under the bolt-head end. Maximum stress on surface and up to the mid plane level showed an increase with the thickness ratio. However the maximum stress on interface decreases with the thickness ratio to reach its lowest at L1 /L2 = 1. End of loading on surface or at mid plane increases with the increase in thickness ratio, and tends to approach a constant value at L1 /L2 equals 10 or more—on interface the opening position—represented by diameter of joint to bolt diameter D/d, reaches a maximum value of 3.5 then decreases rapidly to reach a constant value of about 2.5 for L1 /L2 = 10 or more. Also the thickness of the plate (L1) has a pronounced effect on the opening position. The stress and shear in a rivet is analyzed like a bolted joint. However, it is not wise to combine rivets with bolts and screws in the same joint. Rivets fill the hole where they are installed to establish a very tight fit (often called interference fit). It is difficult or impossible to obtain such a tight fit with other fasteners. The result is that rivets in the same joint with loose fasteners carry more of the load—they are effectively stiffer. The rivet can then fail before it can redistribute load to the other loose fit fasteners like bolts and screws. This often causes catastrophic failure of the joint when the fasteners unzip. In general, a joint composed of similar fasteners is the most efficient because all fasteners reach capacity simultaneously. EMM 3506 – GROUP 3 Page 119
  • 120.
    5. Strength ofwelded joints An accurate theoretical solution to force and strength conditions is an extremely complicated problem for welded connections, even for welds with simple shapes. That is why common technical calculations are based on a range of conventions and simplified premises. In view of the strength checks, welded parts are usually considered a single compact part with a dangerous spot (section) in the welded area. On the grounds that there is an even distribution of stress in the active weld section, only theoretical rated stress in the specified section is specified for the respective load, regardless of the technological workmanship of the weld or potential internal tension. For connections with multiple welds, an even load on individual welds is assumed. The strength checks of the connection are performed by simple comparison of the calculated rated stress with the permissible stress in the weld. Permissible weld stress "SwA" is usually specified from the value of the yield strength of the basic material "Re" based on the required safety. EMM 3506 – GROUP 3 Page 120
  • 121.
    6. Symmetrical loadingon welded joints, brazing and soldering Metalworking is the process of working with metals to create individual parts, assemblies, or large-scale structures. The term covers a wide range of work from large ships and bridges to precise engine parts and delicate jewelry. It therefore includes a correspondingly wide range of skills, processes, and tools. Metalworking is a science, art, hobby, industry and trade. Its historical roots span cultures, civilizations, and millennia. Metalworking has evolved from the discovery of smelting various ores, producing malleable and ductile metal useful for tools and adornments. Modern metalworking processes, though diverse and specialized, can be categorized as forming, cutting, or joining processes. Today's machine shop includes a number of machine tools capable of creating a precise, useful work piece. Here are some of the method of calculating load: Load Rated stress [MPa, psi] Tensile/Press. Shear Bend EMM 3506 – GROUP 3 Page 121
  • 122.
  • 123.
  • 124.
    13.0 ASSEMBLY PART Figure 13.1:assembly 2D and 3D drawing EMM 3506 – GROUP 3 Page 124
  • 125.
    14.0 SIMULATION 14.1 INTRODUCTION Simulation is theimitation of the operation of a real-world process or system over time. The act of simulating something first requires that a model be developed; this model represents the key characteristics or behaviors/functions of the selected physical or abstract system or process. The model represents the system itself, whereas the simulation represents the operation of the system over time. Simulation is used in many contexts, such as simulation of technology for performance optimization, safety engineering, testing, training, education, and video games. Often, computer experiments are used to study simulation models. Simulation is also used with scientific modeling of natural systems or human systems to gain insight into their functioning. Simulation can be used to show the eventual real effects of alternative conditions and courses of action. Simulation is also used when the real system cannot be engaged, because it may not be accessible, or it may be dangerous or unacceptable to engage, or it is being designed but not yet built, or it may simply not exist. In this simulation for the one of design report requirement, we are focusing on ratchet and pawl. The load that wills the ratchet accounted is 150N, by fixed a axis nodal at center of pawl. All of this step are use simulation that known as ABAQUS. EMM 3506 – GROUP 3 Page 125
  • 126.
    14.2 PICTURES Figure 14.1 :ABAQUS simulation EMM 3506 – GROUP 3 Page 126
  • 127.
    Figure 14.2 :full view of ratchet simulation Page 127 EMM 3506 – GROUP 3
  • 128.
    Figure 14.3 :closed up simulation Page 128 EMM 3506 – GROUP 3
  • 129.
    15.0 REFERENCES 15.1 WINCH  General information forwinch: http://en.wikipedia.org/wiki/Winch  Design selection are from this website http://www.etrailer.com/Winches/Fulton/FT20250301.html  http://www.pacifichoists.com.au/our-products/categories/winches/handwinches/pacific-brake-winches/  http://www.pacificmarine.net/marine-deck/winches-and-hoists/how-to-size-awinch.htm 15.2 COMPONENT  http://www.facebook.com/l.php?u=http%3A%2F%2Fwww.wirerope.com%2FPD F%2Fsurelift_ctg_s.pdf&h=FAQHeW3ET  15.3 http://www.h-lift.com/eyehook.htm DRUM   15.4 http://en.wikipedia.org/wiki/Winch http://www.ingersollrandproducts.com/lifting/winches/drum.htm GEAR  http://www.roymech.co.uk/Useful_Tables/Drive/Gears.html#Module  http://www.scribd.com/doc/15742009/DESIGNING-GEAR-IN-CATIA-V5R14HOWTO 15.5 HANDLE  http://www.westmarine.com/webapp/wcs/stores/servlet/WestAdvisorView?langId =-1&storeId=11151&catalogId=10001&page=Winch Handles#.Uq9jSvQW1mw  http://en.wikipedia.org/wiki/Winch  http://www.freepatentsonline.com/4883255.html EMM 3506 – GROUP 3 Page 129
  • 130.
    15.6 SHAFT  Dr. Mohd IdrisShah Bin Ismail, lecturer EMM 3506 Engineering Design I, Mechanical and Manufacturing Department, Faculty Engineering, UPM  EMM 3506 Shaft Design Lecture Note by Dr. MohdIdris Shah Bin Ismail  EMM 3506 Different Types of Loading Lecture Note by Dr. MohdIdris Shah Bin Ismail  S45C mild steel overview, Retrieved on 6th December 2013, 8.40pm, from http://www.meadinfo.org/2010/03/s45c-jis-mechanical-properties.html  Shaft key design, Retrieved on 7 December 2013, 12.13am, from http://engineering.union.edu/~tchakoa/mer419/MER419_keys-and_couplings.pdf  Shaft Key cross sectional dimensions, Retrieved on 8th December 3.11pm, from http://www.roymech.co.uk/Useful_Tables/Keyways/keyways.htm 15.7 LUBRICANT   http://en.wikipedia.org/wiki/Plain_bearing#Lubrication  15.8 http://en.wikipedia.org/wiki/Bearing_(mechanical)#Maintenance_and_lubrication http://www.mecheng.iisc.ernet.in/~bobji/funtri/assign/Lubricants.htm BEARING  http://www.rbcbearings.com/bushings/  http://www.nmbtc.com/bearings/engineering/design-shaft-housing.html EMM 3506 – GROUP 3 Page 130
  • 131.
    15.9 FRAME  http://en.wikipedia.org/wiki/Stainless_steel  http://asm.matweb.com/search/SpecificMaterial.asp?bassnum=MQ304A 15.10 RATCHET ANDPAWL    Pawl and Ratchet, Kohara Gear Industry Co. Ltd., retrieved http://www.qtcgears.com/khk/newgears/khk316.html Ratchets·Pawls, Kohara Gear Industry Co. Ltd Model: N01 Ratchet and Pawl Mechanism, retrieved http://kmoddl.library.cornell.edu/model.php?m=247&movie=hide from from 15.11 FASTENERS AND BOLTS  http://www.ehow.com/info_8630066_types-fastener-thread.html  http://www.roymech.co.uk/Useful_Tables/Screws/Thread_Calcs.html  http://www.mitcalc.com/doc/welding/help/en/welding.htm  http://connection.ebscohost.com/c/articles/45037993/strength-stressed-stateasymmetric-mechanically-inhomogeneous-welded-joints-incomplete-fusioncenter-weld-under-biaxial-loading  http://avstop.com/ac/flighttrainghandbook/asymmetricloading.html  http://www.iso.org/iso/catalogue_detail.htm?csnumber=4736  https://www.excelcalcs.com/site-news/excelcalcs-news/built%11in-beam-with-2symmetric-point-loads/  http://en.wikipedia.org/wiki/Metalworking  http://www.slideshare.net/donalsyahrial/asm-metals-handbook-volume-6welding-brazing-and-soldering  http://www.aws.org/w/a/associations/bsmc/brazing_qa.html EMM 3506 – GROUP 3 Page 131
  • 132.