ANALYSIS OF A TYPICAL OFFSHORE BRIDGE
CONNECTING ADJACENT OFFSHORE PLATFORMS
SUMMER INTERNSHIP
AT
L&T VALDEL ENGINEERING LIMITED
SUBMITTED BY
CHINMOY PATHAK CHOUDHURY
27th
JUNE, 2012 – 26th
JULY, 2012
DEPARTMENT OF CIVIL ENGINEERING
ASSAM ENGINEERING COLLEGE, JALUKBARI
GUWAHATI – 781013
Table of Contents
1. INTRODUCTION 1
2. EXPLORATION, DRILLING AND EXTRACTION 2
3. OFFSHORE DEVELOPMENT 5
4. TYPES OF OFFSHORE STRUCTURES 7
5. PRELIMINARY REQUIREMENTS FOR DESIGNING 11
6. TYPES OF LOAD ON PLATFORM 12
7. INSTALLATION OF FEXED STEEL STRUCTURES 13
8. TYPES OF ANALYSIS 15
9. LOADOUT ANALYSIS 17
10. LIFT ANALYSIS 19
11. TRANSPORTATION ANALYSIS 22
12. DESIGN CONSIDERATIONS 26
13. APPENDIX A - PLATFORM POSITIONING AND BRIDGE SPECIFICATIONS 27
14. APPENDIX B - CODES, STANDARDS AND REFERENCE DOCUMENTS 34
15. APPENDIX C - DESIGN CALCULATIONS AND COMPUTER MODEL FOR IMPLACE AND
LIFT ANALYSIS 36
16. APPENDIX D - BASIC LOADING AND LOAD CASE SUMMARY 45
P a g e | 1
Chinmoy Pathak Choudhury
Assam Engineering College, Jalukbari
Guwahati - 781013
1. INTRODUCTION
Oil a d gas a e o side ed to e a o g the o ld s ost i po ta t esou es. The oil a d gas
industry plays a crucial role in driving the global economy. Oil is not only an essential raw material to
over 2,000 end products but also useful for transportation, heating, electricity and lubrication. It
supplies a out 5 % of the o ld s total e e g e ui e e ts. Deep ate oil ese es a e e pe ted
to play an important role in the future of the world oil and gas energy. So, intensive activities for
exploration and exploitation of the oceans, especially the growing demands for hydrocarbons led to the
development of wide range of offshore structure during the last decades.
Throughout the world, estimated proved reserves of petroleum have been reported to be about
1.29 trillion barrels of oil and about 6,110 trillion cubic feet of natural gas. More than 90 percent of
reserves were based on land or near shore. About 90 countries produce oil, although a few major
producers account for the bulk of world output. Oil reserves are heavily concentrated in the Middle East
while gas reserves in the Russian Federation.
The variety of Offshore structure concerning the function, size, geometrical configuration and
material selection as well as the variability of the environment factors complicate the development of
a unique design procedure. Therefore, a separate investigation of the interaction between the actual
structure and the environment is necessary.
On the other hand, Offshore structures must have an acceptable margin of safety during all phases
of their life i.e. construction, transportation, installation, operation, and retrieval. The most adverse
conditions during the entire life of the structure have to be taken into consideration in its design
process.
P a g e | 2
Chinmoy Pathak Choudhury
Assam Engineering College, Jalukbari
Guwahati - 781013
2. EXPLORATION, DRILLING AND EXTRACTION
The petroleum industry comprises of upstream and downstream sectors. The Upstream sector
involves exploration, development and production of oil and gas; Downstream sector covers transport,
refining petrochemicals, distribution and retail.
Oil and gas consists of the processes and methods involved in locating and discovering potential
sites for oil and gas drilling and extraction. This is the first stage of oil and gas production. Production
Platforms may have separate drilling platforms nearby while large production platforms may have their
own production drilling equipment. The different forms of drill rigs are as follows –
2.1. Jack-up Drill Rig – A Jack-up drill rig or a self elevating unit is a type of mobile platform that consists
of a buoyant hull fitted with a number of movable legs capable of raising its hull over the surface
of sea. These platforms are designed to move, under its own power or using tugboats, from place
to place and then anchor themselves by deploying the legs that are driven into the sea bed using
motors. Then the derrick slides outward into position and the drilling operation begins. There are
two ways to mount the drilling equipment on the hull which can be further categorized as –
 Cantilevered Type - This is the most
popular design of jack-up platform.
The drilling derrick is mounted on
two arms, or cantilevers, that
extend away from the platform and
over the sea surface. This design
provides the derrick with a large
range of motion and therefore can
operate in a considerable area at
some instance of leg positioning.
Fig 1. A Model of Cantilevered type Jack-up Drill Rig
 Slot-Type - In a slot-type jack-up, the platform has a slot through the floor of the hull. A drilling
derrick is positioned over it during operations. When the platform moves to another location,
the derrick is lifted above it before the transportation operation is started.
P a g e | 3
Chinmoy Pathak Choudhury
Assam Engineering College, Jalukbari
Guwahati - 781013
2.2. Semi-submersible Drill Rig – These are rigs having legs of sufficient buoyancy to the structure to
float but of weight sufficient to keep the structure upright. It can be moved from place to place
and can be ballasted up and down by altering the amount of flooding in buoyancy tanks. They are
generally anchored by cable anchors during drilling operations. Semi-submersible drill rigs are the
most stable of any floating rig and chosen mainly for harsh conditions because of their ability to
withstand rough waters. Based on the way the rig is submerged in the water, there are two main
types of semi-submersibles.
 Bottle-type – It consist of bottle-shaped hulls below the drilling deck that can be submerged by
filling the hulls with water.
 Column-stabilized – Here, two horizontal hulls are connected via cylindrical or rectangular
columns to the drilling deck above the water. Smaller diagonal columns are used to support the
structure.
Fig 2. Semi-submersible Drill Rig Fig 3. A 3D model of Semi-submersible Drill Rig
P a g e | 4
Chinmoy Pathak Choudhury
Assam Engineering College, Jalukbari
Guwahati - 781013
2.3. Drillships – It is a marine vessel that has
been fitted with drilling apparatus. It is
most often used for exploratory offshore
drilling of new oil or gas wells in deep
water but can also be used for scientific
drilling. It can conduct drilling operations
upto 2500 m deep. Drillships have
extensive mooring or positioning
equipment, as well as a helipad to receive
supplies and transport staff. Drillships are
differentiated from other offshore drilling
units by their easy mobility. However, they
are susceptible to being agitated by waves,
wind and currents.
Fig 4. A Typical Drillship
Fig 5. A 3D Model of Drillship
P a g e | 5
Chinmoy Pathak Choudhury
Assam Engineering College, Jalukbari
Guwahati - 781013
3. OFFSHORE DEVELOPMENT
In Offshore development, different types of structures are used depending on the size and water
depth. Typical Offshore platforms consist of a substructure called Jackets supporting processing
facilities referred to as Topsides. Such Offshore platforms are installed offshore in water depths ranging
from 8 m to 600 m. Offshore platforms can be classified as below based on their purpose:
1. Wellhead Platforms - It is an offshore structure which is an assembly of fittings, valves and
controls providing facilities for the extraction of crude oil, gas and water composite from the sea
which is then transported by risers (pipelines) to the process platform. It stands either on a
tripod (3 legged) or a 4 legged jacket arrangements. The wellhead operation can be conducted
either on the process platform or underwater which feeds into the Process plants from where
the crude oil and gas composites are sent into separators.
2. Process platforms - It is a processing plant which generally stands on a 6 legged or 8 legged
jacket arrangements located on the sea which partially processes the crude oil and gas before
exporting the hydrocarbon onshore by means of pipelines or are stored so that it can be loaded
on tankers for transportation to onshore production facilities. Generally, there are 3 levels of a
Central Processing Plant viz. Cellar, Mezzanine and Main Deck.
3. Living Quarters Platforms – It is built to house personnel working on those Offshore platforms.
A typical Offshore complex consists of Process platforms and several Wellheads underwater
connected to the process platforms by risers or pipelines.
Fig 6. A Typical Process Complex
P a g e | 6
Chinmoy Pathak Choudhury
Assam Engineering College, Jalukbari
Guwahati - 781013
Offshore structures can be classified into 3 broad categories based on their foundation concepts as –
3.1. Bottom Fixed Structures
 Jacket
 Compliant Tower
 Gravity based Structures
3.2. Floating Type Structures
 Tension Leg Platforms
 Floating Production, Storage and Off-loading (FPSO)
 Floating Production Systems (FPS), etc.
3.3. Subsea Systems
Each type of platforms carries some advantages and disadvantages. However, the foundation
concept selection depends upon various factors such as depth of installment, purpose of installment,
Topside information, Intensity of Environmental Loads, etc.
P a g e | 7
Chinmoy Pathak Choudhury
Assam Engineering College, Jalukbari
Guwahati - 781013
4. TYPES OF OFFSHORE STRUCTURES
4.1. Bottom Fixed Structures
 Fixed Platform (FP) is a platform extending above the water surface and supported at the sea bed
by means of piles, spread footings, etc. It consists of a jacket (a tall vertical section made of
tubular steel members) with a deck placed on top, providing space for crew quarters, a drilling
rig and production facilities. The fixed platform is economically feasible for installation in water
depths upto 500 m deep.
 Compliant Tower (CT) consists of a narrow, flexible tower and a piled foundation that can support
a deck for drilling and production operations. Unlike the fixed platform, the compliant tower
withstands large lateral forces by sustaining significant lateral deflections by flexible legs to
reduce resonance and de-amplify wave forces, and is usually used in water depths between 300
m and 600 m.
Fig 7. A Fixed Platform Fig 8. A Compliant Tower
P a g e | 8
Chinmoy Pathak Choudhury
Assam Engineering College, Jalukbari
Guwahati - 781013
 Gravity-based Structure (GBS) is a support structure held in place by gravity. It is constructed of
steel reinforced concrete often with tanks to control the buoyancy of the finished structure.
Fig 9. A Gravity-based structure
Fig 10. Bottom Supported and Vertically Moored Structures
P a g e | 9
Chinmoy Pathak Choudhury
Assam Engineering College, Jalukbari
Guwahati - 781013
4.2. Floating Type Structures
 SPAR Platform (SP) consists of a large diameter single vertical cylinder supporting a deck. It has
typical fixed platform topside (surface deck with drilling and production equipment), the three
types of risers (production, drilling and export) and a hull. These are presently used in water
depths upto 1000 m, although existing technologies can extend its use to water depths as great
as 2500 m.
 Tension Leg Platform (TLP) is a vertically moored floating structure held in place by vertical and
tensioned tendons of relatively high axial stiffness (low elasticity) connected to the sea floor by
pile-secured templates. While a uo a t hull suppo ts the platfo s topsides, a i t i ate
mooring system keeps the structure in place. The tension leg mooring system allows for
horizontal movement with wave disturbances, but does not permit vertical movement. The
larger TLPs have been successfully deployed in water depths approaching 1200 m.
 Floating Production System (FPS) consists of a semi-submersible unit which is equipped with
drilling and production equipment. It is anchored in place with wire rope and chain. Production
from the subsea wells is transported to the surface deck through the risers. It can be used in a
water depth ranging from 600 to 7,500 feet.

Fig 11. A Tension-Leg Platform ` Fig 12. Floating, Production, Storage and Offloading
P a g e | 10
Chinmoy Pathak Choudhury
Assam Engineering College, Jalukbari
Guwahati - 781013
 Floating, Production, Storage and Off-Loading (FPSO) consist of a large tanker type vessel
moored to the seafloor and designed to process and stow production from nearby subsea wells.
It periodically offloads the stored oil to a smaller shuttle tanker which then transports the oil to
an onshore facility for further processing.
4.3. Subsea Systems – These can have single or multiple wellheads on the seafloor connected directly
to a subsea manifold. The systems include connection by flowlines and risers to fixed or floating
systems. It can be set at large depths.
Fig 13. Subsea Systems
Fig 14. Floating Type Structures
P a g e | 11
Chinmoy Pathak Choudhury
Assam Engineering College, Jalukbari
Guwahati - 781013
5. PRELIMINARY REQUIREMENTS FOR DESIGNING
5.1. Platform Geometry – The geometry of the platform is influenced by -
1. Topsides Information
2. Geotechnical Data
3. Environmental Data
4. Seismic Data
5. Installation Equipments
The equipment layout is an engineering drawing representing the general layout of a platform viz.
pipelines, electrical wires, equipments, etc. which helps the structural engineers to formulate the
structural framework for achieving the required design particulars. It includes descriptions of Piping
equipments, Mechanical equipments and Electrical wiring.
5.2. Concept Selection
1. Selection of Topside Layouts – The layout will be greatly influenced by the type of facility such
as wellheads, processes, living quarters, bridge landing location, etc.
2. Selection Of Jacket Geometry – It will be Influenced by –
 The water depth which will determine the number of legs.
 Installation Methods such as lift or launch.
 Geographical Location.
3. Evaluation of Gravity Loads such as structural dead loads, facility loads, etc
4. Evaluation of Environmental Loads such as Wind loads, Wave or Current Induced loads, etc.
5. Evaluation of Seismic Activity to determine the level of earthquake proneness of the area.
6. Evaluation of Geotechnical Parameters such as hardrock depth, borehole information, axial pile
capacity, etc.
7. Availability of Installation Equipments such as transportation and launch barges, lifting cranes,
grouting and leveling equipment etc.
8. Availability of Fabrication Facilities such as Yard Cranes, quality manpower, steel supply, etc.
P a g e | 12
Chinmoy Pathak Choudhury
Assam Engineering College, Jalukbari
Guwahati - 781013
6. TYPES OF LOADS ON PLATFORM
Offshore structures are subjected to severe loading conditions. The different types of loads can be
classified as –
6.1. Gravity Loads
 Structural Dead Loads – It includes all the fixed items in the platform deck, jacket, etc. which
includes all primary structural members, secondary structural items such as handrails, stiffeners,
etc.
 Facility Dead Loads – The structure built either for drilling or wellhead type platform or for
process type platform supports various equipments like mechanical equipment, electrical
equipment, etc.
 Fluid Loads – The loads of the fluid which are in the pipelines and equipments.
 Live Loads – These are moving loads and are temporary in nature.
 Drilling Loads – It includes the reaction from Jack-up Cantilever type rigs or Deck mounted rigs.
 Setback Load – It is the weight of drill string pipes hanging from drill mast side before placing into
the drill assembly.
 Hook Load – It is the weight of the drill string hanging from the drill mast during every stage of
the drilling.
6.2. Environmental Loads
 Wind Loads
 Wave and Current Induced Loads
 Buoyancy Loads
 Ice Loads
 Seismic Loads
P a g e | 13
Chinmoy Pathak Choudhury
Assam Engineering College, Jalukbari
Guwahati - 781013
7. INSTALLATION OF FIXED STEEL STRUCTURES
The Components of a Fixed Steel structure are described below –
7.1. Subsea Template – The first installation operation involves piling of the subsea template on the sea
bed in a location most favourable for extracting the hydrocarbon deposits. The templates provide
a guide frame through which wells can be drilled prior to the arrival of the jackets and it also assists
the accurate positioning of the jackets.
Fig 15. A Subsea Template
7.2. Jacket – Jacket is a structural framework which transfers the load of the topside/ deck to the
supporting sea floor. These are completely fabricated in a yard (onshore) from where it is transported
to the installation site (offshore) on a barge/ship. The jackets can be classified based on their depth
–
 Shallow Water Jacket (<500 m) – These are lifted, due to their less weight within the carrying
capacity of cranes, and then installed vertically in the sea bed.
 Deep Water Jacket (500-1500 m) – These may be either lifted or launched from barge depending
upon their weight and the installed accordingly.
 Ultra Deep Water Jacket (>1500 m) – These are launched from a barge due to its high weight
beyond the lifting capacity of crane and then installed by upending supported by ballasting the
tanks.
P a g e | 14
Chinmoy Pathak Choudhury
Assam Engineering College, Jalukbari
Guwahati - 781013
Fig 16. A Fixed Jacket Fig 17. A Topside
7.3. Topside – It is the upper part of a fixed installation which sits on top of the jacket and consists of
the decks, accommodation and process equipments. The weight of the topside may be as low as
1500 tonnes to as high as 35000 tonnes. The latter is clearly beyond the lifting capacity of any
crane. The lifting capacity that has been achieved till date is 14000 tonnes. Consequently, the larger
constraints must be constructed within the constraints of the lifting capacities available. Therefore,
the platform is divided into liftable packages which can be secured and welded one at a time. The
heavy lift cranes used for installing the rigs are mounted on semi-submersible barges which have
been built for offshore work.
P a g e | 15
Chinmoy Pathak Choudhury
Assam Engineering College, Jalukbari
Guwahati - 781013
8. TYPES OF ANALYSES
8.1. Pre-service analysis – These are the analysis carried out on a jacket before it is welded to the
topside/deck. Assuming the following cases -
Case A -Shallow Water Jacket (<500 m)
Case B - Deep Water Jacket (500-1500 m)
Case C – Ultra Deep Water Jacket (>1500 m)
 Yard Reaction – The jacket is placed horizontally and is simply supported. The supporting
members are to be analysed for bending moments, shear and deflection. (Required for Case A,
B and C)
 Roll Out – The components of the jacket is lifted one by one in a specified sequence and welded
together to form the jacket. It is done in case of heavy jackets which cannot be manufactured in
one go. (Required for Case B and C)
 Load Out – This analysis is done to determine the optimal method for loading the structure from
the fabrication yard to the transportation barge. (Required for Case A, B and C)
 Transportation – It is to be checked whether the assemblage/assembly to be transported on the
barge/ ship is safe against severe environmental conditions that develops transportation forces.
The various transportation forces can produce motions such as Heave, Sway, Surge, Yaw, Pitch
and Roll. (Required for Case A, B and C).
 Lift (Offshore) – Light Jackets are lifted by a barge crane and is installed vertically on the site.
The lift points shall be selected such that the Centre of Gravity of the structure is at the middle
of the lift points. This will give equal sling loads on the slings. (Required for Case A and B)
 Launching (Offshore) – Heavy Jackets are mechanically pushed from the barge using mechanical
jacks/hydraulic jacks such that it floats on the water. It is to be analysed for coefficient of friction,
winch speed, etc. (Required for Case B and C)
 Floatation (Offshore) – Heavier Jackets are often slided to the oceans from the barge by
ballasting one end of the ship with water. Buoyancy tanks are provided to enhance the floatation
properties of the jacket. (Required for Case B and C)
 Upending (Offshore) – The floating jacket is lifted by a crane to install the jacket vertically on the
site. (Required for Case B and C)
 On-Bottom Stability – Stability of the jacket after upending and before driving the piles into the
seabed is to be analysed.
P a g e | 16
Chinmoy Pathak Choudhury
Assam Engineering College, Jalukbari
Guwahati - 781013
8.2. In-service Analysis – These are the analyses which are required to be carried out on the structure
by simulating the behavior of structure after its construction.
 In-place Analysis
o Local – This is carried out to simulate the behavior of structures as close as possible and to
obtain the response of the structural members locally to individual or combined action of
different forces during its service.
o Global – This is carried out also to simulate the behavior of structures as close as possible and
to obtain the response of the entire structure as a whole due to service load conditions and
environmental forces during its service. In other words, these analyses are to check the global
integrity of the structure against premature failure.
 Fatigue Analysis – Due to stress range and repeated loading and unloading operations, a
material loses its property which is called fatigue. For example – due to wave, ocean currents,
wind, etc.
 Earthquake/ Seismic Analysis – This analysis is imperative to be carried out in areas of high
earthquake magnitude zone and the structure is designed for seismic load also.
 Pushover Analysis – The structure is analysed and designed for safety against water current and
wave forces and wind forces on the jacket and topside/ deck so that it does not generate an
overturning moment on the entire structure.
P a g e | 17
Chinmoy Pathak Choudhury
Assam Engineering College, Jalukbari
Guwahati - 781013
9. LOADOUT ANALYSIS
Loadout Analysis is done to safely transfer structure from the fabrication yard to the
transportation barge .The purposes of Loadout analysis are the following –
1. To determine the allowed displacement between the fabrication yard and the transportation
barge.
2. To determine the reactions at various support conditions during the operation.
3. To check the members and joints against the loads that they are carrying and transmitting to
the barge.
4. To simulate the inertial effects of motion due to movements of structure and barge system and
to obtain the motion induced loads.
The following are the methods of loading out of a structure/ jacket from the yard on to the
transportation barge -
1. Lifted Loadout - The jacket is lifted and is placed on the barge/ship for transportation and
installation in the site. It is only feasible in case of light jacket such that its weight is less than the
lifting capacity of the crane.
2. Skidded Loadout - When the jacket is too heavy to be lifted by the crane as its lifting capacity is
limited, it is made to slide along the yard over skid beams, which can be continuous or discrete,
using hydraulic or mechanical jacks to the barge for transportation. The surface of the barge is
brought to the same elevation as the yard by ballasting the tanks with water.
Fig 18. Skidded Loadout of a Jacket (Plan view)
P a g e | 18
Chinmoy Pathak Choudhury
Assam Engineering College, Jalukbari
Guwahati - 781013
3. Trailer Loadout – The structure is loaded on a trailer which carries it to the barge and then the
trailer is removed from the barge.
Fig 19. Trailer Loadout of a Jacket
During Loadout, the barge is moored and the elevation of the skid rails on the barge is leveled
with the elevation of the yard by adequate ballasting of tanks so that there is no risk of uncontrolled
sliding and the load gradually increases on the barge. Launch Jackets will have launch truss and cradle
at predetermined spacing and hence Loadout is done only by skidding the jacket from the yard onto the
barge using pull wires and winches. For deck trailer Loadout, the deck is provided with temporary braces
to provide a suitable carrying point on a deck over a trailer.
The barge is loaded with the following equipments –
1. Crane – It is a lifting machinery which is used to displace structure which is to be installed in site. It
is to be considered that the weight of the structure to be displaced is within the safe lifting capacity
of the crane.
2. Trailer - Trailers are multi-axle load balancing wheels with appropriate spreader girders on top.
3. Ballast Pump – Its purpose is to pump water into the barge to control barge submergence.
4. Mooring – It is done to anchor the barge or ship so that its position does not change due to currents
and hence enabling it to operate in deep water.
Topsides and Jackets which are light in weight are only feasible to be displaced by lifting. If these
are heavy, skidded loadout or trailer loadout can be adopted.
P a g e | 19
Chinmoy Pathak Choudhury
Assam Engineering College, Jalukbari
Guwahati - 781013
10. LIFT ANALYSIS
The purposes of carrying out Lift Analysis are as follows –
1. To safely lift the structure from the yard to the barge or from the barge to the installation site.
2. For selecting suitable lifting gears such as shackles, slings and its attachments with adequate factor
of safety.
3. To check the global integrity of the structure against premature failure.
4. To simulate the inertial effects of motion due to movements of structure and barge system and to
obtain the motion induced loads.
The various equipments for Lifting are as follows –
1. Crane – It is a lifting machinery which is used to move a structure. It is to be seen that the weight of
the structure to be moved is within the safe lifting capacity of the crane.
2. Sling – It is a high tension rope attachment between the crane and the structure to be lifted.
3. Shackle – It is an attachment enabling the sling to handle smoothly and transfer the loads without
damage.
4. Padeyes – These are plates welded and sufficiently stiffened to primary members at suitable location
to distribute the loads to the slings.
Fig 20. A Lifting Operation (Elevation View)
P a g e | 20
Chinmoy Pathak Choudhury
Assam Engineering College, Jalukbari
Guwahati - 781013
Lift points are suitably selected points on the module by which the module can be safely lifted by
a crane. It is generally selected at a distance of 0.2 – 0.3 times the longitudinal length of the module
from each end longitudinally depending on the feasibility and weight distribution of the module. It is
done to decouple or nullify the moment generated due to bending between the supports. Lifting is done
such that the main hook is directly above the Centre of Gravity of the structure to distribute the loads
equally to the slings. The purpose of lift points can pointed out as follows –
1. To lift jacket or deck fabricated in a yard and install padeyes.
2. Upending is required for jackets fabricated in horizontal condition and it is required to be made
vertical either in the yard or in the final installation site. Usually at site, upending is done in water
but small water jacket may be upended in the yard and transported vertically.
Fig 21. Side Lift Operation (Plan View)
The lift capacity of the crane depends on –
1. Lift radius – As the lift radius increases, lift capacity decreases.
2. Lift Hook Height – Lift Hook height increases with decreases in lift radius. Emphasis should be such
that the radius selected brings the main hook directly above the Centre of Gravity of the module to
be lifted. It is to be ensured that the minimum angle between the slings and the horizontal is 60° so
that the beams connected to padeyes are subjected to lesser minor axis moments.
3. Lift Method – Whether the method is a side lift or a stern lift.
4. Sea-state – Whether the surface of the sea with respect to the wind and wave motions favour the
lifting operation in the site.
P a g e | 21
Chinmoy Pathak Choudhury
Assam Engineering College, Jalukbari
Guwahati - 781013
For most of the time during lifting, the tensile stresses in the slings are the same during the
operation but during upending of jacket, the stresses in the sling changes due to the rotation of the
jacket.
Design Dynamic Factors for lift analysis as suggested by API RP 2A guidelines
Condition Members connected to
Padeyes
Other Members
Open Water 2 1.35
Shielded Water 1.5 1.15
On Shore 1 1
It is used to account for the following eccentricities –
1. Centre of Gravity Shift – When there is difference in position of the main hook and the Centre of
Gravity of the module in the X-Y plane, a moment is generated. Hence an allowance is made in the
initial design to account for the change.
2. Weight Variation – Similarly, a variation in weight is also expected from the calculated weight due to
acceleration/ deceleration of the barge. Allowance is also provided to account for this variation.
3. Sling Length – The Length of the Slings provided is not equal to the ideal sling length for equal load
distribution and therefore an allowance is provided to account for this difference.
4. Skew Load Effects – It distributes the loads of the module to the slings artificially.
P a g e | 22
Chinmoy Pathak Choudhury
Assam Engineering College, Jalukbari
Guwahati - 781013
11. TRANSPORTATION ANALYSIS
The purposes of transportation analysis –
1. To check whether the barge is safe against stability, strength and is adequate to carry the structure
during its voyage.
2. To obtain the motion induced loads during its Tow from the yard to the final location.
3. To satisfy the code requirements against safety of the structure and supporting foundation on the
barge.
Transportation of the structure is done by different tow methods. There are 3 different Tow methods
which can be listed as the following –
1. Dry Tow – This is the most common method of towing. The structure is loaded on a dump barge and
then towed by a tug which normally moves at a speed of about 6 knots.
2. Wet Tow – In this method, self propelled vessels transport the structure without having the need of
a tug separately. The speed at which the vessel moves can reach upto 12 knots reducing the time of
transportation and risk during the voyage. Hence, this method is normally employed for trans-
continental tow.
3. Self Tow – In this method, the structure itself is towed directly i.e. without any barge support. Hence,
special care is taken for this method.
Fig 22. A Jacket being Dry towed
P a g e | 23
Chinmoy Pathak Choudhury
Assam Engineering College, Jalukbari
Guwahati - 781013
Fig 23. Topside being Dry towed
The Tow route shall be selected such that the distance travelled is small. It is preferable that the tow
route is along the coast line. Therefore, barge selected for transportation and the environment must
also fulfill some criteria as the following –
1. Adequate space for the cargo items and sufficient stability during tow for the seastate during that
period.
2. The water depth at the quayside should be sufficient for the barge to approach the yard and to carry
out the Loadout operation.
3. The barge must not deflect excessively due to the cargo.
4. It must have the necessary emergency equipment and documents for certification.
For the purpose of spreading the large vertical load of the structure/ cargo directly of the barge,
grillage are used which acts like support stubs providing a larger surface area. The location of the grillage
is determined such that the barge does not deflect excessively. The structure is held by sea-fasteners
connecting it to the barge deck for translational restraining of the structure during transportation.
P a g e | 24
Chinmoy Pathak Choudhury
Assam Engineering College, Jalukbari
Guwahati - 781013
Fig 24. Grillage for Deck Structure
Fig 25. Sea-fastening Details
Transportation is the most delicate operation as the barge carries the structure under severe
environmental condition and therefore a proper transportation analysis is imperative. In sea, it is
difficult to control the motion of a body than in land. Due to the various environmental forces in open
water, the most critical condition is developed mainly by roll motion of the barge.
P a g e | 25
Chinmoy Pathak Choudhury
Assam Engineering College, Jalukbari
Guwahati - 781013
The motion of the barge can be defined in 6 parameters as follows.
Barge Motion Parameter Movement and Direction
Surge Translation along X - axis
Sway Translation along Y - axis
Heave Translation along Z - axis
Roll Rotation along X - axis
Pitch Rotation along Y - axis
Yaw Rotation along Z - axis
Fig 26. Barge Motion Parameters Definition
Fatigue occurs when a body is subjected to repeated loads depending on the intensity and direction
of load. Sea-fastenings are subjected to repeated loads of varying intensity and direction during
transportation. Hence for long tow periods, it is recommended that the critical joints should be checked
for fatigue.
P a g e | 26
Chinmoy Pathak Choudhury
Assam Engineering College, Jalukbari
Guwahati - 781013
12. DESIGN CONSIDERATIONS
1. Marine Growth – Marine growth around the submerged structural members increases the wave/
current loads as the diameter increases adding to the total weight. The density of marine growth is
around 1300 kg/m3. The structure is to be analysed taking this consideration into account.
2. Cathodic Protection – Corrosion protection relying on sacrificial anodes to protect submerged steel
jacket components from corrosion by electrolytic action.
3. Corrosion Allowance – In addition to the cathodic protection to the jacket members, the corrosion
allowance shall also be provided. This is required since the cathodic protection does not protect the
structure effectively in the splash zone where the structure is not continuously submerged. Hence
sacrificial thickness shall be provided in addition to the design wall thickness of the member.
Typically, corrosion allowance is in the range of 6 mm to 12 mm depending upon the locality and
corrosiveness of the sea water.
4. Hydrodynamics factors
 Wave Kinematics factor – This varies between 0.8 to 0.95. This is to be applied since the calculated
wave factor is based on 2-dimensional wave theory while the actual loading is from 3-dimensional
wave conditions.
 Conductor Shielding factor – The presence of rows of conductors provide a shielding effect to the
conductors behind them. It depends on the spacing and number of conductors.
5. Dead Weight of Non-Structural members – It shall be calculated for each item and applied to the
deck/ jacket at appropriate locations. Since most of the values will not be available initially, their
reasonable values are needed to be assumed at the start of the analysis. Some examples of non-
structural members are Monorails, Handrails, Walkways, Grating, Piping, etc.
6. Buoyancy tanks - These are not required after the installation of the jacket is complete. But it is not
always possible to remove and if left permanently, the wave loads on these tanks shall be considered.
7. Load Combinations – The load combinations shall be formed such that the most critical section during
the design life of the structure covers maximum compression loads, maximum tension loads and
maximum moment.
8. Environmental loading – Offshore structures are subjected to considerable lateral and overturning
loads from the winds, waves and currents. Therefore, they are required to carry general load
combination of moment, horizontal and vertical loads.
P a g e | 27
Chinmoy Pathak Choudhury
Assam Engineering College, Jalukbari
Guwahati - 781013
APPENDIX A - PLATFORM POSITIONING AND BRIDGE SPECIFICATIONS
P a g e | 28
Chinmoy Pathak Choudhury
Assam Engineering College, Jalukbari
Guwahati - 781013
P a g e | 29
Chinmoy Pathak Choudhury
Assam Engineering College, Jalukbari
Guwahati - 781013
P a g e | 30
Chinmoy Pathak Choudhury
Assam Engineering College, Jalukbari
Guwahati - 781013
P a g e | 31
Chinmoy Pathak Choudhury
Assam Engineering College, Jalukbari
Guwahati - 781013
P a g e | 32
Chinmoy Pathak Choudhury
Assam Engineering College, Jalukbari
Guwahati - 781013
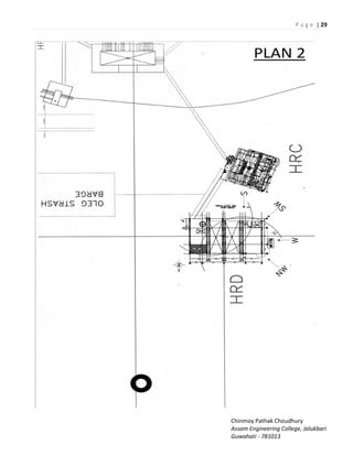
The above diagrams show a number of plans for the positioning of the non-existing HRD platform
with respect to the existing HRC platform. The direction of the prevailing wind is towards North. A
bridge will connect the two platforms in order to assist movement of personnel and to fulfill
departmental requirements. Each of the plans is observed and the plan which is found most suitable
for installation is accepted. The summary of the observations are tabulated below.
Plan 1 1. The installation of a bridge is not feasible.
2. The exhaust from the PCG modules on HRD platform will return back to the
modules due to the wind.
Plan 2 1. The exhaust from the PCG modules on HRD platform will return back to the
modules due to the wind.
2. The exhaust from the PCG modules on HRC platform will interfere with the crane
operation in HRD platform.
3. It will be inconvenient for supply boats to access the platforms as the clearance
line will be too narrow.
Plan 3 1. The installation of a bridge will be obstructed by the PCG module on HRC
platform.
2. The exhaust from the PCG modules on HRC platform will interfere with the crane
operation in HRD platform.
3. There will be an insufficient clearance for the barge crane to approach and install
the bridge in position. Moreover, the barge crane cannot approach from the
West as it cannot be moored.
Plan 4 No disadvantage
Thus, Plan 4 is adopted as it does not have any disadvantage. The bridge span is found as 64.5 m.
However for design purpose, the span of the bridge is considered as 74m. It will be pinned at the HRC
platform as there is a risk that it may collide with the PCG module on HRC platform if longitudinal
translation is allowed; and sliding at the HRD platform as there is some free space. It is designed to
carry, Piping, Electrical and Instrumentation cable trays and equipped with 2 monorails to assist
material movement. The bridge designed is a two level rectangular structure with the following
dimensions.
 Length - 74.00 m
 Height - 10.00 m
 Width - 7.50 m
P a g e | 33
Chinmoy Pathak Choudhury
Assam Engineering College, Jalukbari
Guwahati - 781013
It is to be installed by single crane lift (conventional four point lifting arrangement) and is simply
supported on the two platforms by support stubs of 0.5 m each. The bridge geometry includes
horizontal framings at:
Main Level - I - EL (+) 28.150 m (TOS)
Main Level - II - EL (+) 33.150 m (TOS)
Bridge Roof - EL (+) 38.150 m (TOS)
Note: All elevations are with respect to Chart Datum EL (+) 0.0. Chart datum in this case corresponds to
Mean Sea Level.
The Bridge is essentially made of tubular sections because of the following reasons.
 These are comparatively lighter in weight than other sections. It is desirable that the self - weight
of the structure should be kept minimum as possible.
 These have the same moment capacity in both x and y – axis. As the bridge will have to endure
environmental forces such as wind, it must have a high moment capacity in the minor axis.
P a g e | 34
Chinmoy Pathak Choudhury
Assam Engineering College, Jalukbari
Guwahati - 781013
APPENDIX B –CODES, STANDARDS AND REFERENCE DOCUMENTS
P a g e | 35
Chinmoy Pathak Choudhury
Assam Engineering College, Jalukbari
Guwahati - 781013
CODES AND STANDARDS
The bridge structure has been analysed and designed in accordance with the current editions and
related amendments of the following codes and documents:
1. API-‘P A, ‘e o e ded P a ti e fo Pla i g, Desig i g & Co st u ti g Fi ed Offsho e Platfo s
W“D , 21st Edition ERRATA and Supplement 3, October 2007.
2. SACS (Structural Analysis Computer Software) Release 5.3 SP2.
. Desig of Tu ula Joi ts fo Offsho e “t u tu es –UEG
P a g e | 36
Chinmoy Pathak Choudhury
Assam Engineering College, Jalukbari
Guwahati - 781013
APPENDIX C –
DESIGN CALCULATIONS AND COMPUTER MODEL FOR INPLACE AND LIFT ANALYSIS
P a g e | 37
Chinmoy Pathak Choudhury
Assam Engineering College, Jalukbari
Guwahati - 781013
In order to arrive at the member sizes to be utilized in the computer model, a preliminary hand
calculation has been performed. This calculation has been based on the assumption that the bridge
operating weight (structure self-weight, discipline loading and live load) can be idealized as a uniformly
distributed load of intensity 13.5 MT/m. This loading is not sacrosanct but is typically between 10 – 15
MT/m for most bridges connecting Offshore platforms. The design calculations are summarized below.
Bridge Top and Bottom Chord : OD 660 x 20 WT
Elevation Bracing : OD 508 x 20 WT
Plan Brace : OD 406 x 12.7 WT
C.1. CALCULATIONS
Given, Span of the bridge = 74 m
Uniformly distributed load = 13.5 MT/m2
Width = 7.5 m
Height = 10 m
Fig 1. Bridge Elevation
Maximum bending moment on the two longitudinal frames, Momax = wL2/8
= (13.5 x 9.81 x 742)/8
= 90651 KNm
Maximum bending moment on each frame, Mmax = Momax /2
= 90651 /2 KNm
= 45325.5 KNm
Axial Compression on Top chord or Axial Tension on Bottom chord = Mmax /e
= 45325 /10
= 4532.5 KN
P a g e | 38
Chinmoy Pathak Choudhury
Assam Engineering College, Jalukbari
Guwahati - 781013
Design of Top Chord
The Top chord is in compression
Therefore, assuming kL /r = 80 Cl. E.2 AISC
Critical Slenderness Ratio, Cc =�(2E/fy)0.5
= �(2 x 2 x 105 / 345)
= 106.97
Now, R = (kL /r)/Cc = 0.748
Since, R < 1
Therefore ,allowable stress, fa = (1 – R2 /2)fy ____
(5/3) + (3R /8) – (R3 /8)
= 131.16 N /mm2
Now, Cross – sectional area required = P /fa
= 4532.5 x 103 / 131.16
= 34557 mm2
Adopting ∅660 x 25.4, D/t = 25.98
Area provided = �(D – t)t
= �(660 – 25.4) x 25.4
= 50638.83 mm2 > 34557 mm2 Hence, it can be adopted.
Now, shear on each end on each member = (W/2)/2
= 9990 /4 = 2497.5 KN
Shear stress = V/(0.5A) Cl. 3.2.4-1 API-RP 2A
= 2497.5 x 103 /(0.5 x 50638.83)
= 98.64 N/mm
Allowable shear stress = 0.4fy
= 0.4 x 345
= 138 N/mm > 98.64 N/mm
Slenderness ratio is given by kL/r, where r = (I/A)0.5
For Tubular sections, I = �(Do
4 – Di
4)/64
= �(6604 – (2 x25.4)4)/64
Therefore, Slenderness ratio = kL /r L = 7400 mm
= 32.95 < 80 Hence, it is safe.
For the bottom chords which will be in tension, the allowable stress is more as there is no
buckling. Therefore, we can adopt a smaller section than the top chord. However in design practice,
we provide the same section as the top chord.
P a g e | 39
Chinmoy Pathak Choudhury
Assam Engineering College, Jalukbari
Guwahati - 781013
Design of Elevation Braces
Fig 2. Shear force description (Bridge Elevation)
α = tan-1 (7.4/10)
= 36.5°
We k o , ƩV =
 Fcos 36.5°= 2497.5 KN
 F = 3106. 9KN
which is the axial compression.
Therefore, Area required
= F/fa
= 3106.9 x 1000 /131.16
= 23687.86 mm2
Adopting ∅508 x 25.4,
Area provided = �(508 – 25.4) x 25.4
= 38509.77 mm2 > 23687.86 mm2
Similarly Slenderness ratio, kL/r = (74002 + 100002)0.5
(I/A)0.5
= 72.71 < 80
Calculation of Wind Forces (for extreme storm condition)
Maximum elevation of platform (HRD and HRC) = 27650 + Bridge Height Refer. Mumbai High
= 27650 + 10000 Field
= 37650 mm
= 123.492 ft
Extreme Wind Speed at 10 metres above sea level = 161.39 Km/hr
= (161.39 x 1000)/(3600 x 32.8) ft/s
= 147.04 ft/s
For bridge more than 50 m span, averaging tome period = 15 sec gust
C = 5.73 x 10-2 (1 + 0.0457 x Uo)0.5 Cl. 2.3.2-2 API-RP 2A
= 5.73 x 10-2 (1 + 0.0457 x 147.04)0.5
= 0.1592
P a g e | 40
Chinmoy Pathak Choudhury
Assam Engineering College, Jalukbari
Guwahati - 781013
1 hour mean wind speed at elevation of z ft,
U(z) = Uo(1 + C.ln(z/32.8))
= 147.04 (1 + 0.1592 ln (123.492/32.8))
= 178.1 ft/s
Turbulence intensity, Iu(z) = 0.06 (1 + 0.0131 x Uo) x (z/32.8)-0.22 Cl. 2.3.2-2 API-RP 2A
= 0.06 (1 + 0.0131 x 147.04) x (123.492/32.8)-0.22
= 0.131157
Design Wind Speed, Cl. 2.3.2-1 API-RP 2A
u(z,t) = U(z) x [1 – 0.41 x Iu(z) x ln (t/to)]
= 178.1 [1 - 0.41 x 0.131157 x ln (15/3600)]
= 230.59 ft/s = 70.3 m/s
Now, wind force, Cl. 2.3.2-8 API-RP 2A
F = (ρ/2)μ2CsA = (0.0023668/2) x 230.592 x 3.282 [0.5(59.2 + 74) x 10]
= 450852.44 slug ft s-2
= 4.4482 x 450852.44 N
= 2005481.82 N = 2005.48 KN
Therefore, Total Force at each end = 2005.48/2 = 1002.74 KN
Fig 3. Shear force description (Bridge Bottom Plan)
β = tan-1 (7.4/7.5)
= 44.62°
Axial Compression of the bracing member
F = 1002.74 /cos 44.62°
= 1408.78 KN
Therefore, area required = 1408.78 x
1000/131.16
= 10740.93 mm2
P a g e | 41
Chinmoy Pathak Choudhury
Assam Engineering College, Jalukbari
Guwahati - 781013
Adopting ∅406 x 12.7, D/t = 31.97
Area provided = �(406 – 12.7) x 12.7
= 15691.97 mm2 > 10740.93 mm2
Slenderness ratio = (74002 + 75002)
(I/A)0.5
= 75.73 < 80 which is provided to the Top and Bottom braces.
Check for Lateral Bending
As UDL = 2005.48 /74
= 27.1 KN/m
Maximum bending moment = wL2/8
= 27.1 x 742/8
= 18549.95 KNm
Axial Compression on Bottom Chord of the frame facing the wind = P /e
= 18549.95 /7.5
= 2473.32 KN
Area required = 2473.32 x 1000 /131.16
= 18857.324 mm2
Area provided = 50958 mm2 > 18857.324 mm2 Hence, it is safe.
Fig 4. Bottom Plan
Fig 5. Top Plan
P a g e | 42
Chinmoy Pathak Choudhury
Assam Engineering College, Jalukbari
Guwahati - 781013
A 3D space frame model of the bridge utilizing the members mentioned above has been generated
for the Inplace and Lift analysis of the bridge with respective boundary conditions and loading. The
bridge structure has been analysed for different load combinations with applicable contingencies. The
structural analysis of the Bridge has been performed using SACS suite of programs. Isometric Views
of the bridge under consideration has been included in the figures below.
Fig 6. A 3D model of Bridge for Inplace Analysis
Fig 7. A 3D model of Bridge for Lift Analysis
P a g e | 43
Chinmoy Pathak Choudhury
Assam Engineering College, Jalukbari
Guwahati - 781013
Material Properties
Material properties for tubular members are specified below:
You g s Modulus : 2x 105 MPa
Yield Strength : 345 MPa (for tubular with diameter >= 457 mm)
248 MPa (for tubular with diamater < 457 mm)
Shear modulus (G) : 0.8 x 105 MPa
Poisso s ‘atio : 0.30
Steel Density in air : 7850 kg/m3
The Inplace weight of the Bridge is 695 MT whereas the Lift weight of the bridge is 676 MT. The Bridge
structure has been analysed for the Inplace conditions during the extreme storm (100 year return period),
operating storm (1 year return period) with the pertinent loads envisaged during the operation of the
structure. ;a d fo the lift o ditio s ith the ele a t loads a d D a i A plifi atio Fa to s DAF s . The
following cases have been analysed during lifting of the module.
 Balanced sling load distribution (50:50) with COG shift.
 Skew sling load distribution-1 (75:25) with COG shift.
 Skew sling load distribution-2 (25:75) with COG shift.
Codal and installation contractor requirements stipulate that the structure being lifted be analysed
for equal sling load distribution.
C.2. SOFTWARE USED
The structural analysis of the Bridge has been performed using SACS suite of programs.
Following SACS Program Modules have been used:
 The `SACINP` input file, which contains model information of the analyzed structure viz., the geometry,
member sizes, materials, loads and load combinations and analysis options. The input file is generated
usi g the `P‘ECEDE a d DATAGEN odules i `“AC“`.
 The `SEASTATE` module has been used to generate dead weight of the modelled members. It also
computes the environmental loads (wind) on the structure. This module will combine basic loads (user
input or generated) to form various load combinations specified in the input file.
 SACS IV Module is used for the linear static analyses of the model.
P a g e | 44
Chinmoy Pathak Choudhury
Assam Engineering College, Jalukbari
Guwahati - 781013
 The `JOINT-CAN` module has been used to perform the joint punching shear checks according to API-
‘P A, ‘e o e ded P a ti e fo Pla i g, Desig i g & Co st u ti g Fixed Offshore Platforms
W“D , st Editio E‘‘ATA a d “upple e t , O to e 7.
 The `PO“TVUE odule has ee used fo e ie i g the a al sis esults.
C.3. METHODOLOGY FOR LIFT ANALYSIS
Codal and installation contractor requirements stipulate that the structure being lifted be analyzed
for equal and skew sling load distribution. The equal sling load distribution requirement stipulates that
diagonally opposite pairs of slings carry equal loads. This is generally referred to as the 50:50 case in
offshore design practice. The skew sling load distribution requirement stipulates and diagonally opposite
pairs of slings carry 75% of the total load while the remaining pair carry the balance. This load
distribution is reversed as an additional load case for lift analysis. These two distributions are generally
referred to as the 75:25 and 25:75 case.
The distributions described above are simulated as follows.
One diagonally opposite pair of slings connects a diagonally opposite pair of lift points on the top
chord of the bridge to the hook with fixed (111111) boundary conditions (generally named HUK1). The
second hook joint (named HUK2) is created at the same location as the first (co-incident joint). The
remaining diagonally opposite pair of lift points are connected with slings to this hook joint. The
boundary conditions for this second co-incident joint are 110111.
To simulate the 25:75 load distribution, 25% of the lift weight of the bridge is applied to HUK2 in the
upward direction. This load is combined with the gravity load combination Since two diagonally opposite
slings are connected to this joint (HUK2), this sling pair will carry 25% of the bridge lift weight. By
equilibrium the other sling pair connected to HUK1 will carry the balance 75% of the lift weight.
To simulate the 50:50 load case, the gravity load combination is combined with two times the Hook
Load basic case. Since two diagonally opposite slings are connected to this joint (HUK2), this sling pair
will carry 50% of the bridge lift weight. By equilibrium the other sling pair connected to HUK1 will carry
the balance 50% of the lift weight.
To simulate the 75:25 load case, the gravity load combination is combined with three times the
Hook Load basic case. Since two diagonally opposite slings are connected to this joint (HUK2), this sling
pair will carry 75% of the bridge lift weight. By equilibrium the other sling pair connected to HUK1 will
carry the balance 25% of the lift weight.
Each of these load combinations is generated using the applicable Dynamic Amplification Factors
described in Section D.3.
P a g e | 45
Chinmoy Pathak Choudhury
Assam Engineering College, Jalukbari
Guwahati - 781013
APPENDIX D – BASIC LOADING AND LOAD CASE SUMMARY
P a g e | 46
Chinmoy Pathak Choudhury
Assam Engineering College, Jalukbari
Guwahati - 781013
D.1. BASIC LOADING
1. Computer Generated Loads
These loads account for the weight of the modelled primary and secondary members.
2. Module Non-Generated Dead Loads NGDL’s
These loads account for the weight of the non-modelled secondary and tertiary structural
items/appurtenances on the Bridge including grating, handrails, monorails, etc. These loads are applied
on the corresponding joints/members where they are supported.
3. Discipline Loads
Bridges carry piping, electrical and instrumentation cable trays. The Load intensities depend largely
on the extent to which the facilities on the two platforms are inter-connected. A typical weight summary
of individual discipline loads is included below for reference. These loads are applied on the
corresponding members/ joints where they are supported.
Piping (Dry) : 145 MT
Piping (Content) : 39 MT (applied only in Inplace analysis)
Electrical : 18 MT
Instrumentation : 102 MT
4. Live Loads (applied only in Inplace analysis)
Each level is designed to carry a Live load of 150 Kg/m2 on walkway area and is considered for the
analysis. The loading intensities are based on the values typically used in Offshore industry practice.
5. Environmental Loads
The parameters for the environmental loading for Bridge Inplace analysis are specified below.
Extreme Wind (all directions) : 161.39 Km/hr
Operating Wind (all directions) : 99 Km/hr
Wind velocity based on a 15 seconds gust period and eight (8) approach directions is considered for
the B idge I pla e a al sis. The elo it at the desig ele atio is auto ati all al ulated the “AC“
“EA“TATE odule. The fa es of the B idge ha e ee ep ese ted as projected areas with respect to the
principal directions (Global X and Y directions). Wind load in each direction is calculated based on
projected areas with the appropriate wind velocities. A sample calculation for wind loading included in
Appendix C for reference.
P a g e | 47
Chinmoy Pathak Choudhury
Assam Engineering College, Jalukbari
Guwahati - 781013
6. Hook Load
This load is applied to the free hook joint in order to simulate the equal and skew sling load
distributions described in Appendix C.3 of this report. The magnitude of this load is 25% of the lift weight
applied at the free hook joint applied in the positive Z direction (upward).
7. COG Shift Load (applied only in Lift Analysis)
A 2% COG shift is simulated by vertically applying 132.63 KN load and opposite in direction to each other
at two diagonally opposite lift points.
Table 1. Basic Load Case Summary (Inplace)
BASIC LOAD CASES
LOAD CASE DESCRIPTION LOAD SUM (KN)
LL Live Load 359.34
611 Piping Dry Load 1422.43
612 Piping Dry Load 382.54
621 Electrical Load 176.97
625 Instrumentation Load 1001.44
NGDL Non-Generated Dead Load 468.43
101 Self Weight 2999.56
201 Extreme Wind Load at 0˚ 222.60
202 Extreme Wind Load at 45˚ 1405.28
203 Extreme Wind Load at 90˚ 1974.85
204 Extreme Wind Load at 135˚ 1405.28
205 Extreme Wind Load at 180˚ 222.60
206 Extreme Wind Load at 225˚ 1405.27
207 Extreme Wind Load at 270˚ 1974.88
208 Extreme Wind Load at 315˚ 1405.27
301 Operating Wind Load at 0˚ 69.80
302 Operating Wind Load at 45˚ 440.70
303 Operating Wind Load at 90˚ 619.32
304 Operating Wind Load at 135˚ 440.70
305 Operating Wind Load at 180˚ 69.80
306 Operating Wind Load at 225˚ 440.69
307 Operating Wind Load at 270˚ 619.32
308 Operating Wind Load at 315˚ 440.70
P a g e | 48
Chinmoy Pathak Choudhury
Assam Engineering College, Jalukbari
Guwahati - 781013
Table 2. Basic Load Case Summary (Lift)
D.2. BOUNDARY CONDITIONS
For Inplace analysis, the bridge model is pinned at one platform end and sliding at the other platform
end. The plot below indicates the boundary conditions. The bridge is allowed to slide on one of the
platforms to account for relative platform movement.
For Lift analysis, the bridge model is connected at 4 conventional lift points at the top chord to the
hook point by means of slings. The hook is generally given fixed boundary conditions with releases
provided to the modelled slings so that they do not carry any moments. An additional hook point is
modelled and fixed in two translations and three rotations. It is left free in the vertical direction. This
second hook is used to simulate the equal sling load distribution and skew sling load distribution.
Table 3. Contingency applied in Loadings
CONTINGENCY FACTORS
BASIC LOAD CONTINGENCY
Structural modelled weight 13%
Non-Generated Dead Loads 13%
Piping 20%
Electrical 20%
Instrumentation 20%
Live Load No contingency (Applied only for Inplace Analysis)
BASIC LOAD CASES
LOAD CASE DESCRIPTION LOAD SUM (KN)
611 Piping Dry Load 1422.43
621 Electrical Load 176.97
625 Instrumentation Load 1001.44
NGDL Non-Generated Dead Load 468.43
HUK 25% of the Total Load 1660.17
101 Self Weight 2990.38
P a g e | 49
Chinmoy Pathak Choudhury
Assam Engineering College, Jalukbari
Guwahati - 781013
D.3. LOAD COMBINATIONS
FOR INPLACE ANALYSIS
Table 4. Design Load Combinations Summary
DESIGN LOAD COMBINATIONS
LOAD CASE DESCRIPTION
CE1 to CE8 Self Weight + NGDL + Piping + E&I + Live Load + Extreme storm condition
CO1 to CO8 Self Weight + NGDL + Piping + E&I + Live Load + Operating storm condition.
FOR LIFT ANALYSIS
Table 5. Dynamic Amplification Factors
DYNAMIC AMPLIFICATION FACTORS
LOAD CASE DESCRIPTION
Skew Load
distribution
1.35 – Lift point connected members
1.15 – Other members
Equal Load
distribution
2.00 – Lift point connected members
1.35 – Other members
Using the above Dynamic Amplification Factors, the load combinations for Lift analysis is formed
accordingly.
Table 6: Design Load Combinations Summary
DESIGN LOAD COMBINATIONS
LOAD CASE DESCRIPTION
1000 Self Weight + Piping Dry Weight + E&I + NGDL
2575 1000*1.35 + Hook Load*1.35 + COG Shift Load* 1.35
2676 1000*1.15 + Hook Load*1.15 + COG Shift Load*1.15
5050 1000*2 + Hook Load*4 + COG Shift Load*2
5151 1000*1.35 + Hook Load*2.7 + COG Shift Load*1.35
7525 1000*1.35 + Hook Load*4.05 + COG Shift Load*1.35
7626 1000*1.15 + Hook Load*3.45 + COG Shift Load*1.15
Member Check Parameters
The effective buckling length of the member used in the calculation of axial allowable compressive
stresses is in accordance with the recommendation of API-RP 2A. These factors are input relative to
member local axes. The allowable stresses are also in accordance with API –RP 2A. An extract of the
allowable stresses has been included in the Appendix B for reference.

Chinmoy Pathak Choudhury_LTV Internship report

  • 1.
    ANALYSIS OF ATYPICAL OFFSHORE BRIDGE CONNECTING ADJACENT OFFSHORE PLATFORMS SUMMER INTERNSHIP AT L&T VALDEL ENGINEERING LIMITED SUBMITTED BY CHINMOY PATHAK CHOUDHURY 27th JUNE, 2012 – 26th JULY, 2012 DEPARTMENT OF CIVIL ENGINEERING ASSAM ENGINEERING COLLEGE, JALUKBARI GUWAHATI – 781013
  • 2.
    Table of Contents 1.INTRODUCTION 1 2. EXPLORATION, DRILLING AND EXTRACTION 2 3. OFFSHORE DEVELOPMENT 5 4. TYPES OF OFFSHORE STRUCTURES 7 5. PRELIMINARY REQUIREMENTS FOR DESIGNING 11 6. TYPES OF LOAD ON PLATFORM 12 7. INSTALLATION OF FEXED STEEL STRUCTURES 13 8. TYPES OF ANALYSIS 15 9. LOADOUT ANALYSIS 17 10. LIFT ANALYSIS 19 11. TRANSPORTATION ANALYSIS 22 12. DESIGN CONSIDERATIONS 26 13. APPENDIX A - PLATFORM POSITIONING AND BRIDGE SPECIFICATIONS 27 14. APPENDIX B - CODES, STANDARDS AND REFERENCE DOCUMENTS 34 15. APPENDIX C - DESIGN CALCULATIONS AND COMPUTER MODEL FOR IMPLACE AND LIFT ANALYSIS 36 16. APPENDIX D - BASIC LOADING AND LOAD CASE SUMMARY 45
  • 3.
    P a ge | 1 Chinmoy Pathak Choudhury Assam Engineering College, Jalukbari Guwahati - 781013 1. INTRODUCTION Oil a d gas a e o side ed to e a o g the o ld s ost i po ta t esou es. The oil a d gas industry plays a crucial role in driving the global economy. Oil is not only an essential raw material to over 2,000 end products but also useful for transportation, heating, electricity and lubrication. It supplies a out 5 % of the o ld s total e e g e ui e e ts. Deep ate oil ese es a e e pe ted to play an important role in the future of the world oil and gas energy. So, intensive activities for exploration and exploitation of the oceans, especially the growing demands for hydrocarbons led to the development of wide range of offshore structure during the last decades. Throughout the world, estimated proved reserves of petroleum have been reported to be about 1.29 trillion barrels of oil and about 6,110 trillion cubic feet of natural gas. More than 90 percent of reserves were based on land or near shore. About 90 countries produce oil, although a few major producers account for the bulk of world output. Oil reserves are heavily concentrated in the Middle East while gas reserves in the Russian Federation. The variety of Offshore structure concerning the function, size, geometrical configuration and material selection as well as the variability of the environment factors complicate the development of a unique design procedure. Therefore, a separate investigation of the interaction between the actual structure and the environment is necessary. On the other hand, Offshore structures must have an acceptable margin of safety during all phases of their life i.e. construction, transportation, installation, operation, and retrieval. The most adverse conditions during the entire life of the structure have to be taken into consideration in its design process.
  • 4.
    P a ge | 2 Chinmoy Pathak Choudhury Assam Engineering College, Jalukbari Guwahati - 781013 2. EXPLORATION, DRILLING AND EXTRACTION The petroleum industry comprises of upstream and downstream sectors. The Upstream sector involves exploration, development and production of oil and gas; Downstream sector covers transport, refining petrochemicals, distribution and retail. Oil and gas consists of the processes and methods involved in locating and discovering potential sites for oil and gas drilling and extraction. This is the first stage of oil and gas production. Production Platforms may have separate drilling platforms nearby while large production platforms may have their own production drilling equipment. The different forms of drill rigs are as follows – 2.1. Jack-up Drill Rig – A Jack-up drill rig or a self elevating unit is a type of mobile platform that consists of a buoyant hull fitted with a number of movable legs capable of raising its hull over the surface of sea. These platforms are designed to move, under its own power or using tugboats, from place to place and then anchor themselves by deploying the legs that are driven into the sea bed using motors. Then the derrick slides outward into position and the drilling operation begins. There are two ways to mount the drilling equipment on the hull which can be further categorized as –  Cantilevered Type - This is the most popular design of jack-up platform. The drilling derrick is mounted on two arms, or cantilevers, that extend away from the platform and over the sea surface. This design provides the derrick with a large range of motion and therefore can operate in a considerable area at some instance of leg positioning. Fig 1. A Model of Cantilevered type Jack-up Drill Rig  Slot-Type - In a slot-type jack-up, the platform has a slot through the floor of the hull. A drilling derrick is positioned over it during operations. When the platform moves to another location, the derrick is lifted above it before the transportation operation is started.
  • 5.
    P a ge | 3 Chinmoy Pathak Choudhury Assam Engineering College, Jalukbari Guwahati - 781013 2.2. Semi-submersible Drill Rig – These are rigs having legs of sufficient buoyancy to the structure to float but of weight sufficient to keep the structure upright. It can be moved from place to place and can be ballasted up and down by altering the amount of flooding in buoyancy tanks. They are generally anchored by cable anchors during drilling operations. Semi-submersible drill rigs are the most stable of any floating rig and chosen mainly for harsh conditions because of their ability to withstand rough waters. Based on the way the rig is submerged in the water, there are two main types of semi-submersibles.  Bottle-type – It consist of bottle-shaped hulls below the drilling deck that can be submerged by filling the hulls with water.  Column-stabilized – Here, two horizontal hulls are connected via cylindrical or rectangular columns to the drilling deck above the water. Smaller diagonal columns are used to support the structure. Fig 2. Semi-submersible Drill Rig Fig 3. A 3D model of Semi-submersible Drill Rig
  • 6.
    P a ge | 4 Chinmoy Pathak Choudhury Assam Engineering College, Jalukbari Guwahati - 781013 2.3. Drillships – It is a marine vessel that has been fitted with drilling apparatus. It is most often used for exploratory offshore drilling of new oil or gas wells in deep water but can also be used for scientific drilling. It can conduct drilling operations upto 2500 m deep. Drillships have extensive mooring or positioning equipment, as well as a helipad to receive supplies and transport staff. Drillships are differentiated from other offshore drilling units by their easy mobility. However, they are susceptible to being agitated by waves, wind and currents. Fig 4. A Typical Drillship Fig 5. A 3D Model of Drillship
  • 7.
    P a ge | 5 Chinmoy Pathak Choudhury Assam Engineering College, Jalukbari Guwahati - 781013 3. OFFSHORE DEVELOPMENT In Offshore development, different types of structures are used depending on the size and water depth. Typical Offshore platforms consist of a substructure called Jackets supporting processing facilities referred to as Topsides. Such Offshore platforms are installed offshore in water depths ranging from 8 m to 600 m. Offshore platforms can be classified as below based on their purpose: 1. Wellhead Platforms - It is an offshore structure which is an assembly of fittings, valves and controls providing facilities for the extraction of crude oil, gas and water composite from the sea which is then transported by risers (pipelines) to the process platform. It stands either on a tripod (3 legged) or a 4 legged jacket arrangements. The wellhead operation can be conducted either on the process platform or underwater which feeds into the Process plants from where the crude oil and gas composites are sent into separators. 2. Process platforms - It is a processing plant which generally stands on a 6 legged or 8 legged jacket arrangements located on the sea which partially processes the crude oil and gas before exporting the hydrocarbon onshore by means of pipelines or are stored so that it can be loaded on tankers for transportation to onshore production facilities. Generally, there are 3 levels of a Central Processing Plant viz. Cellar, Mezzanine and Main Deck. 3. Living Quarters Platforms – It is built to house personnel working on those Offshore platforms. A typical Offshore complex consists of Process platforms and several Wellheads underwater connected to the process platforms by risers or pipelines. Fig 6. A Typical Process Complex
  • 8.
    P a ge | 6 Chinmoy Pathak Choudhury Assam Engineering College, Jalukbari Guwahati - 781013 Offshore structures can be classified into 3 broad categories based on their foundation concepts as – 3.1. Bottom Fixed Structures  Jacket  Compliant Tower  Gravity based Structures 3.2. Floating Type Structures  Tension Leg Platforms  Floating Production, Storage and Off-loading (FPSO)  Floating Production Systems (FPS), etc. 3.3. Subsea Systems Each type of platforms carries some advantages and disadvantages. However, the foundation concept selection depends upon various factors such as depth of installment, purpose of installment, Topside information, Intensity of Environmental Loads, etc.
  • 9.
    P a ge | 7 Chinmoy Pathak Choudhury Assam Engineering College, Jalukbari Guwahati - 781013 4. TYPES OF OFFSHORE STRUCTURES 4.1. Bottom Fixed Structures  Fixed Platform (FP) is a platform extending above the water surface and supported at the sea bed by means of piles, spread footings, etc. It consists of a jacket (a tall vertical section made of tubular steel members) with a deck placed on top, providing space for crew quarters, a drilling rig and production facilities. The fixed platform is economically feasible for installation in water depths upto 500 m deep.  Compliant Tower (CT) consists of a narrow, flexible tower and a piled foundation that can support a deck for drilling and production operations. Unlike the fixed platform, the compliant tower withstands large lateral forces by sustaining significant lateral deflections by flexible legs to reduce resonance and de-amplify wave forces, and is usually used in water depths between 300 m and 600 m. Fig 7. A Fixed Platform Fig 8. A Compliant Tower
  • 10.
    P a ge | 8 Chinmoy Pathak Choudhury Assam Engineering College, Jalukbari Guwahati - 781013  Gravity-based Structure (GBS) is a support structure held in place by gravity. It is constructed of steel reinforced concrete often with tanks to control the buoyancy of the finished structure. Fig 9. A Gravity-based structure Fig 10. Bottom Supported and Vertically Moored Structures
  • 11.
    P a ge | 9 Chinmoy Pathak Choudhury Assam Engineering College, Jalukbari Guwahati - 781013 4.2. Floating Type Structures  SPAR Platform (SP) consists of a large diameter single vertical cylinder supporting a deck. It has typical fixed platform topside (surface deck with drilling and production equipment), the three types of risers (production, drilling and export) and a hull. These are presently used in water depths upto 1000 m, although existing technologies can extend its use to water depths as great as 2500 m.  Tension Leg Platform (TLP) is a vertically moored floating structure held in place by vertical and tensioned tendons of relatively high axial stiffness (low elasticity) connected to the sea floor by pile-secured templates. While a uo a t hull suppo ts the platfo s topsides, a i t i ate mooring system keeps the structure in place. The tension leg mooring system allows for horizontal movement with wave disturbances, but does not permit vertical movement. The larger TLPs have been successfully deployed in water depths approaching 1200 m.  Floating Production System (FPS) consists of a semi-submersible unit which is equipped with drilling and production equipment. It is anchored in place with wire rope and chain. Production from the subsea wells is transported to the surface deck through the risers. It can be used in a water depth ranging from 600 to 7,500 feet.  Fig 11. A Tension-Leg Platform ` Fig 12. Floating, Production, Storage and Offloading
  • 12.
    P a ge | 10 Chinmoy Pathak Choudhury Assam Engineering College, Jalukbari Guwahati - 781013  Floating, Production, Storage and Off-Loading (FPSO) consist of a large tanker type vessel moored to the seafloor and designed to process and stow production from nearby subsea wells. It periodically offloads the stored oil to a smaller shuttle tanker which then transports the oil to an onshore facility for further processing. 4.3. Subsea Systems – These can have single or multiple wellheads on the seafloor connected directly to a subsea manifold. The systems include connection by flowlines and risers to fixed or floating systems. It can be set at large depths. Fig 13. Subsea Systems Fig 14. Floating Type Structures
  • 13.
    P a ge | 11 Chinmoy Pathak Choudhury Assam Engineering College, Jalukbari Guwahati - 781013 5. PRELIMINARY REQUIREMENTS FOR DESIGNING 5.1. Platform Geometry – The geometry of the platform is influenced by - 1. Topsides Information 2. Geotechnical Data 3. Environmental Data 4. Seismic Data 5. Installation Equipments The equipment layout is an engineering drawing representing the general layout of a platform viz. pipelines, electrical wires, equipments, etc. which helps the structural engineers to formulate the structural framework for achieving the required design particulars. It includes descriptions of Piping equipments, Mechanical equipments and Electrical wiring. 5.2. Concept Selection 1. Selection of Topside Layouts – The layout will be greatly influenced by the type of facility such as wellheads, processes, living quarters, bridge landing location, etc. 2. Selection Of Jacket Geometry – It will be Influenced by –  The water depth which will determine the number of legs.  Installation Methods such as lift or launch.  Geographical Location. 3. Evaluation of Gravity Loads such as structural dead loads, facility loads, etc 4. Evaluation of Environmental Loads such as Wind loads, Wave or Current Induced loads, etc. 5. Evaluation of Seismic Activity to determine the level of earthquake proneness of the area. 6. Evaluation of Geotechnical Parameters such as hardrock depth, borehole information, axial pile capacity, etc. 7. Availability of Installation Equipments such as transportation and launch barges, lifting cranes, grouting and leveling equipment etc. 8. Availability of Fabrication Facilities such as Yard Cranes, quality manpower, steel supply, etc.
  • 14.
    P a ge | 12 Chinmoy Pathak Choudhury Assam Engineering College, Jalukbari Guwahati - 781013 6. TYPES OF LOADS ON PLATFORM Offshore structures are subjected to severe loading conditions. The different types of loads can be classified as – 6.1. Gravity Loads  Structural Dead Loads – It includes all the fixed items in the platform deck, jacket, etc. which includes all primary structural members, secondary structural items such as handrails, stiffeners, etc.  Facility Dead Loads – The structure built either for drilling or wellhead type platform or for process type platform supports various equipments like mechanical equipment, electrical equipment, etc.  Fluid Loads – The loads of the fluid which are in the pipelines and equipments.  Live Loads – These are moving loads and are temporary in nature.  Drilling Loads – It includes the reaction from Jack-up Cantilever type rigs or Deck mounted rigs.  Setback Load – It is the weight of drill string pipes hanging from drill mast side before placing into the drill assembly.  Hook Load – It is the weight of the drill string hanging from the drill mast during every stage of the drilling. 6.2. Environmental Loads  Wind Loads  Wave and Current Induced Loads  Buoyancy Loads  Ice Loads  Seismic Loads
  • 15.
    P a ge | 13 Chinmoy Pathak Choudhury Assam Engineering College, Jalukbari Guwahati - 781013 7. INSTALLATION OF FIXED STEEL STRUCTURES The Components of a Fixed Steel structure are described below – 7.1. Subsea Template – The first installation operation involves piling of the subsea template on the sea bed in a location most favourable for extracting the hydrocarbon deposits. The templates provide a guide frame through which wells can be drilled prior to the arrival of the jackets and it also assists the accurate positioning of the jackets. Fig 15. A Subsea Template 7.2. Jacket – Jacket is a structural framework which transfers the load of the topside/ deck to the supporting sea floor. These are completely fabricated in a yard (onshore) from where it is transported to the installation site (offshore) on a barge/ship. The jackets can be classified based on their depth –  Shallow Water Jacket (<500 m) – These are lifted, due to their less weight within the carrying capacity of cranes, and then installed vertically in the sea bed.  Deep Water Jacket (500-1500 m) – These may be either lifted or launched from barge depending upon their weight and the installed accordingly.  Ultra Deep Water Jacket (>1500 m) – These are launched from a barge due to its high weight beyond the lifting capacity of crane and then installed by upending supported by ballasting the tanks.
  • 16.
    P a ge | 14 Chinmoy Pathak Choudhury Assam Engineering College, Jalukbari Guwahati - 781013 Fig 16. A Fixed Jacket Fig 17. A Topside 7.3. Topside – It is the upper part of a fixed installation which sits on top of the jacket and consists of the decks, accommodation and process equipments. The weight of the topside may be as low as 1500 tonnes to as high as 35000 tonnes. The latter is clearly beyond the lifting capacity of any crane. The lifting capacity that has been achieved till date is 14000 tonnes. Consequently, the larger constraints must be constructed within the constraints of the lifting capacities available. Therefore, the platform is divided into liftable packages which can be secured and welded one at a time. The heavy lift cranes used for installing the rigs are mounted on semi-submersible barges which have been built for offshore work.
  • 17.
    P a ge | 15 Chinmoy Pathak Choudhury Assam Engineering College, Jalukbari Guwahati - 781013 8. TYPES OF ANALYSES 8.1. Pre-service analysis – These are the analysis carried out on a jacket before it is welded to the topside/deck. Assuming the following cases - Case A -Shallow Water Jacket (<500 m) Case B - Deep Water Jacket (500-1500 m) Case C – Ultra Deep Water Jacket (>1500 m)  Yard Reaction – The jacket is placed horizontally and is simply supported. The supporting members are to be analysed for bending moments, shear and deflection. (Required for Case A, B and C)  Roll Out – The components of the jacket is lifted one by one in a specified sequence and welded together to form the jacket. It is done in case of heavy jackets which cannot be manufactured in one go. (Required for Case B and C)  Load Out – This analysis is done to determine the optimal method for loading the structure from the fabrication yard to the transportation barge. (Required for Case A, B and C)  Transportation – It is to be checked whether the assemblage/assembly to be transported on the barge/ ship is safe against severe environmental conditions that develops transportation forces. The various transportation forces can produce motions such as Heave, Sway, Surge, Yaw, Pitch and Roll. (Required for Case A, B and C).  Lift (Offshore) – Light Jackets are lifted by a barge crane and is installed vertically on the site. The lift points shall be selected such that the Centre of Gravity of the structure is at the middle of the lift points. This will give equal sling loads on the slings. (Required for Case A and B)  Launching (Offshore) – Heavy Jackets are mechanically pushed from the barge using mechanical jacks/hydraulic jacks such that it floats on the water. It is to be analysed for coefficient of friction, winch speed, etc. (Required for Case B and C)  Floatation (Offshore) – Heavier Jackets are often slided to the oceans from the barge by ballasting one end of the ship with water. Buoyancy tanks are provided to enhance the floatation properties of the jacket. (Required for Case B and C)  Upending (Offshore) – The floating jacket is lifted by a crane to install the jacket vertically on the site. (Required for Case B and C)  On-Bottom Stability – Stability of the jacket after upending and before driving the piles into the seabed is to be analysed.
  • 18.
    P a ge | 16 Chinmoy Pathak Choudhury Assam Engineering College, Jalukbari Guwahati - 781013 8.2. In-service Analysis – These are the analyses which are required to be carried out on the structure by simulating the behavior of structure after its construction.  In-place Analysis o Local – This is carried out to simulate the behavior of structures as close as possible and to obtain the response of the structural members locally to individual or combined action of different forces during its service. o Global – This is carried out also to simulate the behavior of structures as close as possible and to obtain the response of the entire structure as a whole due to service load conditions and environmental forces during its service. In other words, these analyses are to check the global integrity of the structure against premature failure.  Fatigue Analysis – Due to stress range and repeated loading and unloading operations, a material loses its property which is called fatigue. For example – due to wave, ocean currents, wind, etc.  Earthquake/ Seismic Analysis – This analysis is imperative to be carried out in areas of high earthquake magnitude zone and the structure is designed for seismic load also.  Pushover Analysis – The structure is analysed and designed for safety against water current and wave forces and wind forces on the jacket and topside/ deck so that it does not generate an overturning moment on the entire structure.
  • 19.
    P a ge | 17 Chinmoy Pathak Choudhury Assam Engineering College, Jalukbari Guwahati - 781013 9. LOADOUT ANALYSIS Loadout Analysis is done to safely transfer structure from the fabrication yard to the transportation barge .The purposes of Loadout analysis are the following – 1. To determine the allowed displacement between the fabrication yard and the transportation barge. 2. To determine the reactions at various support conditions during the operation. 3. To check the members and joints against the loads that they are carrying and transmitting to the barge. 4. To simulate the inertial effects of motion due to movements of structure and barge system and to obtain the motion induced loads. The following are the methods of loading out of a structure/ jacket from the yard on to the transportation barge - 1. Lifted Loadout - The jacket is lifted and is placed on the barge/ship for transportation and installation in the site. It is only feasible in case of light jacket such that its weight is less than the lifting capacity of the crane. 2. Skidded Loadout - When the jacket is too heavy to be lifted by the crane as its lifting capacity is limited, it is made to slide along the yard over skid beams, which can be continuous or discrete, using hydraulic or mechanical jacks to the barge for transportation. The surface of the barge is brought to the same elevation as the yard by ballasting the tanks with water. Fig 18. Skidded Loadout of a Jacket (Plan view)
  • 20.
    P a ge | 18 Chinmoy Pathak Choudhury Assam Engineering College, Jalukbari Guwahati - 781013 3. Trailer Loadout – The structure is loaded on a trailer which carries it to the barge and then the trailer is removed from the barge. Fig 19. Trailer Loadout of a Jacket During Loadout, the barge is moored and the elevation of the skid rails on the barge is leveled with the elevation of the yard by adequate ballasting of tanks so that there is no risk of uncontrolled sliding and the load gradually increases on the barge. Launch Jackets will have launch truss and cradle at predetermined spacing and hence Loadout is done only by skidding the jacket from the yard onto the barge using pull wires and winches. For deck trailer Loadout, the deck is provided with temporary braces to provide a suitable carrying point on a deck over a trailer. The barge is loaded with the following equipments – 1. Crane – It is a lifting machinery which is used to displace structure which is to be installed in site. It is to be considered that the weight of the structure to be displaced is within the safe lifting capacity of the crane. 2. Trailer - Trailers are multi-axle load balancing wheels with appropriate spreader girders on top. 3. Ballast Pump – Its purpose is to pump water into the barge to control barge submergence. 4. Mooring – It is done to anchor the barge or ship so that its position does not change due to currents and hence enabling it to operate in deep water. Topsides and Jackets which are light in weight are only feasible to be displaced by lifting. If these are heavy, skidded loadout or trailer loadout can be adopted.
  • 21.
    P a ge | 19 Chinmoy Pathak Choudhury Assam Engineering College, Jalukbari Guwahati - 781013 10. LIFT ANALYSIS The purposes of carrying out Lift Analysis are as follows – 1. To safely lift the structure from the yard to the barge or from the barge to the installation site. 2. For selecting suitable lifting gears such as shackles, slings and its attachments with adequate factor of safety. 3. To check the global integrity of the structure against premature failure. 4. To simulate the inertial effects of motion due to movements of structure and barge system and to obtain the motion induced loads. The various equipments for Lifting are as follows – 1. Crane – It is a lifting machinery which is used to move a structure. It is to be seen that the weight of the structure to be moved is within the safe lifting capacity of the crane. 2. Sling – It is a high tension rope attachment between the crane and the structure to be lifted. 3. Shackle – It is an attachment enabling the sling to handle smoothly and transfer the loads without damage. 4. Padeyes – These are plates welded and sufficiently stiffened to primary members at suitable location to distribute the loads to the slings. Fig 20. A Lifting Operation (Elevation View)
  • 22.
    P a ge | 20 Chinmoy Pathak Choudhury Assam Engineering College, Jalukbari Guwahati - 781013 Lift points are suitably selected points on the module by which the module can be safely lifted by a crane. It is generally selected at a distance of 0.2 – 0.3 times the longitudinal length of the module from each end longitudinally depending on the feasibility and weight distribution of the module. It is done to decouple or nullify the moment generated due to bending between the supports. Lifting is done such that the main hook is directly above the Centre of Gravity of the structure to distribute the loads equally to the slings. The purpose of lift points can pointed out as follows – 1. To lift jacket or deck fabricated in a yard and install padeyes. 2. Upending is required for jackets fabricated in horizontal condition and it is required to be made vertical either in the yard or in the final installation site. Usually at site, upending is done in water but small water jacket may be upended in the yard and transported vertically. Fig 21. Side Lift Operation (Plan View) The lift capacity of the crane depends on – 1. Lift radius – As the lift radius increases, lift capacity decreases. 2. Lift Hook Height – Lift Hook height increases with decreases in lift radius. Emphasis should be such that the radius selected brings the main hook directly above the Centre of Gravity of the module to be lifted. It is to be ensured that the minimum angle between the slings and the horizontal is 60° so that the beams connected to padeyes are subjected to lesser minor axis moments. 3. Lift Method – Whether the method is a side lift or a stern lift. 4. Sea-state – Whether the surface of the sea with respect to the wind and wave motions favour the lifting operation in the site.
  • 23.
    P a ge | 21 Chinmoy Pathak Choudhury Assam Engineering College, Jalukbari Guwahati - 781013 For most of the time during lifting, the tensile stresses in the slings are the same during the operation but during upending of jacket, the stresses in the sling changes due to the rotation of the jacket. Design Dynamic Factors for lift analysis as suggested by API RP 2A guidelines Condition Members connected to Padeyes Other Members Open Water 2 1.35 Shielded Water 1.5 1.15 On Shore 1 1 It is used to account for the following eccentricities – 1. Centre of Gravity Shift – When there is difference in position of the main hook and the Centre of Gravity of the module in the X-Y plane, a moment is generated. Hence an allowance is made in the initial design to account for the change. 2. Weight Variation – Similarly, a variation in weight is also expected from the calculated weight due to acceleration/ deceleration of the barge. Allowance is also provided to account for this variation. 3. Sling Length – The Length of the Slings provided is not equal to the ideal sling length for equal load distribution and therefore an allowance is provided to account for this difference. 4. Skew Load Effects – It distributes the loads of the module to the slings artificially.
  • 24.
    P a ge | 22 Chinmoy Pathak Choudhury Assam Engineering College, Jalukbari Guwahati - 781013 11. TRANSPORTATION ANALYSIS The purposes of transportation analysis – 1. To check whether the barge is safe against stability, strength and is adequate to carry the structure during its voyage. 2. To obtain the motion induced loads during its Tow from the yard to the final location. 3. To satisfy the code requirements against safety of the structure and supporting foundation on the barge. Transportation of the structure is done by different tow methods. There are 3 different Tow methods which can be listed as the following – 1. Dry Tow – This is the most common method of towing. The structure is loaded on a dump barge and then towed by a tug which normally moves at a speed of about 6 knots. 2. Wet Tow – In this method, self propelled vessels transport the structure without having the need of a tug separately. The speed at which the vessel moves can reach upto 12 knots reducing the time of transportation and risk during the voyage. Hence, this method is normally employed for trans- continental tow. 3. Self Tow – In this method, the structure itself is towed directly i.e. without any barge support. Hence, special care is taken for this method. Fig 22. A Jacket being Dry towed
  • 25.
    P a ge | 23 Chinmoy Pathak Choudhury Assam Engineering College, Jalukbari Guwahati - 781013 Fig 23. Topside being Dry towed The Tow route shall be selected such that the distance travelled is small. It is preferable that the tow route is along the coast line. Therefore, barge selected for transportation and the environment must also fulfill some criteria as the following – 1. Adequate space for the cargo items and sufficient stability during tow for the seastate during that period. 2. The water depth at the quayside should be sufficient for the barge to approach the yard and to carry out the Loadout operation. 3. The barge must not deflect excessively due to the cargo. 4. It must have the necessary emergency equipment and documents for certification. For the purpose of spreading the large vertical load of the structure/ cargo directly of the barge, grillage are used which acts like support stubs providing a larger surface area. The location of the grillage is determined such that the barge does not deflect excessively. The structure is held by sea-fasteners connecting it to the barge deck for translational restraining of the structure during transportation.
  • 26.
    P a ge | 24 Chinmoy Pathak Choudhury Assam Engineering College, Jalukbari Guwahati - 781013 Fig 24. Grillage for Deck Structure Fig 25. Sea-fastening Details Transportation is the most delicate operation as the barge carries the structure under severe environmental condition and therefore a proper transportation analysis is imperative. In sea, it is difficult to control the motion of a body than in land. Due to the various environmental forces in open water, the most critical condition is developed mainly by roll motion of the barge.
  • 27.
    P a ge | 25 Chinmoy Pathak Choudhury Assam Engineering College, Jalukbari Guwahati - 781013 The motion of the barge can be defined in 6 parameters as follows. Barge Motion Parameter Movement and Direction Surge Translation along X - axis Sway Translation along Y - axis Heave Translation along Z - axis Roll Rotation along X - axis Pitch Rotation along Y - axis Yaw Rotation along Z - axis Fig 26. Barge Motion Parameters Definition Fatigue occurs when a body is subjected to repeated loads depending on the intensity and direction of load. Sea-fastenings are subjected to repeated loads of varying intensity and direction during transportation. Hence for long tow periods, it is recommended that the critical joints should be checked for fatigue.
  • 28.
    P a ge | 26 Chinmoy Pathak Choudhury Assam Engineering College, Jalukbari Guwahati - 781013 12. DESIGN CONSIDERATIONS 1. Marine Growth – Marine growth around the submerged structural members increases the wave/ current loads as the diameter increases adding to the total weight. The density of marine growth is around 1300 kg/m3. The structure is to be analysed taking this consideration into account. 2. Cathodic Protection – Corrosion protection relying on sacrificial anodes to protect submerged steel jacket components from corrosion by electrolytic action. 3. Corrosion Allowance – In addition to the cathodic protection to the jacket members, the corrosion allowance shall also be provided. This is required since the cathodic protection does not protect the structure effectively in the splash zone where the structure is not continuously submerged. Hence sacrificial thickness shall be provided in addition to the design wall thickness of the member. Typically, corrosion allowance is in the range of 6 mm to 12 mm depending upon the locality and corrosiveness of the sea water. 4. Hydrodynamics factors  Wave Kinematics factor – This varies between 0.8 to 0.95. This is to be applied since the calculated wave factor is based on 2-dimensional wave theory while the actual loading is from 3-dimensional wave conditions.  Conductor Shielding factor – The presence of rows of conductors provide a shielding effect to the conductors behind them. It depends on the spacing and number of conductors. 5. Dead Weight of Non-Structural members – It shall be calculated for each item and applied to the deck/ jacket at appropriate locations. Since most of the values will not be available initially, their reasonable values are needed to be assumed at the start of the analysis. Some examples of non- structural members are Monorails, Handrails, Walkways, Grating, Piping, etc. 6. Buoyancy tanks - These are not required after the installation of the jacket is complete. But it is not always possible to remove and if left permanently, the wave loads on these tanks shall be considered. 7. Load Combinations – The load combinations shall be formed such that the most critical section during the design life of the structure covers maximum compression loads, maximum tension loads and maximum moment. 8. Environmental loading – Offshore structures are subjected to considerable lateral and overturning loads from the winds, waves and currents. Therefore, they are required to carry general load combination of moment, horizontal and vertical loads.
  • 29.
    P a ge | 27 Chinmoy Pathak Choudhury Assam Engineering College, Jalukbari Guwahati - 781013 APPENDIX A - PLATFORM POSITIONING AND BRIDGE SPECIFICATIONS
  • 30.
    P a ge | 28 Chinmoy Pathak Choudhury Assam Engineering College, Jalukbari Guwahati - 781013
  • 31.
    P a ge | 29 Chinmoy Pathak Choudhury Assam Engineering College, Jalukbari Guwahati - 781013
  • 32.
    P a ge | 30 Chinmoy Pathak Choudhury Assam Engineering College, Jalukbari Guwahati - 781013
  • 33.
    P a ge | 31 Chinmoy Pathak Choudhury Assam Engineering College, Jalukbari Guwahati - 781013
  • 34.
    P a ge | 32 Chinmoy Pathak Choudhury Assam Engineering College, Jalukbari Guwahati - 781013 The above diagrams show a number of plans for the positioning of the non-existing HRD platform with respect to the existing HRC platform. The direction of the prevailing wind is towards North. A bridge will connect the two platforms in order to assist movement of personnel and to fulfill departmental requirements. Each of the plans is observed and the plan which is found most suitable for installation is accepted. The summary of the observations are tabulated below. Plan 1 1. The installation of a bridge is not feasible. 2. The exhaust from the PCG modules on HRD platform will return back to the modules due to the wind. Plan 2 1. The exhaust from the PCG modules on HRD platform will return back to the modules due to the wind. 2. The exhaust from the PCG modules on HRC platform will interfere with the crane operation in HRD platform. 3. It will be inconvenient for supply boats to access the platforms as the clearance line will be too narrow. Plan 3 1. The installation of a bridge will be obstructed by the PCG module on HRC platform. 2. The exhaust from the PCG modules on HRC platform will interfere with the crane operation in HRD platform. 3. There will be an insufficient clearance for the barge crane to approach and install the bridge in position. Moreover, the barge crane cannot approach from the West as it cannot be moored. Plan 4 No disadvantage Thus, Plan 4 is adopted as it does not have any disadvantage. The bridge span is found as 64.5 m. However for design purpose, the span of the bridge is considered as 74m. It will be pinned at the HRC platform as there is a risk that it may collide with the PCG module on HRC platform if longitudinal translation is allowed; and sliding at the HRD platform as there is some free space. It is designed to carry, Piping, Electrical and Instrumentation cable trays and equipped with 2 monorails to assist material movement. The bridge designed is a two level rectangular structure with the following dimensions.  Length - 74.00 m  Height - 10.00 m  Width - 7.50 m
  • 35.
    P a ge | 33 Chinmoy Pathak Choudhury Assam Engineering College, Jalukbari Guwahati - 781013 It is to be installed by single crane lift (conventional four point lifting arrangement) and is simply supported on the two platforms by support stubs of 0.5 m each. The bridge geometry includes horizontal framings at: Main Level - I - EL (+) 28.150 m (TOS) Main Level - II - EL (+) 33.150 m (TOS) Bridge Roof - EL (+) 38.150 m (TOS) Note: All elevations are with respect to Chart Datum EL (+) 0.0. Chart datum in this case corresponds to Mean Sea Level. The Bridge is essentially made of tubular sections because of the following reasons.  These are comparatively lighter in weight than other sections. It is desirable that the self - weight of the structure should be kept minimum as possible.  These have the same moment capacity in both x and y – axis. As the bridge will have to endure environmental forces such as wind, it must have a high moment capacity in the minor axis.
  • 36.
    P a ge | 34 Chinmoy Pathak Choudhury Assam Engineering College, Jalukbari Guwahati - 781013 APPENDIX B –CODES, STANDARDS AND REFERENCE DOCUMENTS
  • 37.
    P a ge | 35 Chinmoy Pathak Choudhury Assam Engineering College, Jalukbari Guwahati - 781013 CODES AND STANDARDS The bridge structure has been analysed and designed in accordance with the current editions and related amendments of the following codes and documents: 1. API-‘P A, ‘e o e ded P a ti e fo Pla i g, Desig i g & Co st u ti g Fi ed Offsho e Platfo s W“D , 21st Edition ERRATA and Supplement 3, October 2007. 2. SACS (Structural Analysis Computer Software) Release 5.3 SP2. . Desig of Tu ula Joi ts fo Offsho e “t u tu es –UEG
  • 38.
    P a ge | 36 Chinmoy Pathak Choudhury Assam Engineering College, Jalukbari Guwahati - 781013 APPENDIX C – DESIGN CALCULATIONS AND COMPUTER MODEL FOR INPLACE AND LIFT ANALYSIS
  • 39.
    P a ge | 37 Chinmoy Pathak Choudhury Assam Engineering College, Jalukbari Guwahati - 781013 In order to arrive at the member sizes to be utilized in the computer model, a preliminary hand calculation has been performed. This calculation has been based on the assumption that the bridge operating weight (structure self-weight, discipline loading and live load) can be idealized as a uniformly distributed load of intensity 13.5 MT/m. This loading is not sacrosanct but is typically between 10 – 15 MT/m for most bridges connecting Offshore platforms. The design calculations are summarized below. Bridge Top and Bottom Chord : OD 660 x 20 WT Elevation Bracing : OD 508 x 20 WT Plan Brace : OD 406 x 12.7 WT C.1. CALCULATIONS Given, Span of the bridge = 74 m Uniformly distributed load = 13.5 MT/m2 Width = 7.5 m Height = 10 m Fig 1. Bridge Elevation Maximum bending moment on the two longitudinal frames, Momax = wL2/8 = (13.5 x 9.81 x 742)/8 = 90651 KNm Maximum bending moment on each frame, Mmax = Momax /2 = 90651 /2 KNm = 45325.5 KNm Axial Compression on Top chord or Axial Tension on Bottom chord = Mmax /e = 45325 /10 = 4532.5 KN
  • 40.
    P a ge | 38 Chinmoy Pathak Choudhury Assam Engineering College, Jalukbari Guwahati - 781013 Design of Top Chord The Top chord is in compression Therefore, assuming kL /r = 80 Cl. E.2 AISC Critical Slenderness Ratio, Cc =�(2E/fy)0.5 = �(2 x 2 x 105 / 345) = 106.97 Now, R = (kL /r)/Cc = 0.748 Since, R < 1 Therefore ,allowable stress, fa = (1 – R2 /2)fy ____ (5/3) + (3R /8) – (R3 /8) = 131.16 N /mm2 Now, Cross – sectional area required = P /fa = 4532.5 x 103 / 131.16 = 34557 mm2 Adopting ∅660 x 25.4, D/t = 25.98 Area provided = �(D – t)t = �(660 – 25.4) x 25.4 = 50638.83 mm2 > 34557 mm2 Hence, it can be adopted. Now, shear on each end on each member = (W/2)/2 = 9990 /4 = 2497.5 KN Shear stress = V/(0.5A) Cl. 3.2.4-1 API-RP 2A = 2497.5 x 103 /(0.5 x 50638.83) = 98.64 N/mm Allowable shear stress = 0.4fy = 0.4 x 345 = 138 N/mm > 98.64 N/mm Slenderness ratio is given by kL/r, where r = (I/A)0.5 For Tubular sections, I = �(Do 4 – Di 4)/64 = �(6604 – (2 x25.4)4)/64 Therefore, Slenderness ratio = kL /r L = 7400 mm = 32.95 < 80 Hence, it is safe. For the bottom chords which will be in tension, the allowable stress is more as there is no buckling. Therefore, we can adopt a smaller section than the top chord. However in design practice, we provide the same section as the top chord.
  • 41.
    P a ge | 39 Chinmoy Pathak Choudhury Assam Engineering College, Jalukbari Guwahati - 781013 Design of Elevation Braces Fig 2. Shear force description (Bridge Elevation) α = tan-1 (7.4/10) = 36.5° We k o , ƩV =  Fcos 36.5°= 2497.5 KN  F = 3106. 9KN which is the axial compression. Therefore, Area required = F/fa = 3106.9 x 1000 /131.16 = 23687.86 mm2 Adopting ∅508 x 25.4, Area provided = �(508 – 25.4) x 25.4 = 38509.77 mm2 > 23687.86 mm2 Similarly Slenderness ratio, kL/r = (74002 + 100002)0.5 (I/A)0.5 = 72.71 < 80 Calculation of Wind Forces (for extreme storm condition) Maximum elevation of platform (HRD and HRC) = 27650 + Bridge Height Refer. Mumbai High = 27650 + 10000 Field = 37650 mm = 123.492 ft Extreme Wind Speed at 10 metres above sea level = 161.39 Km/hr = (161.39 x 1000)/(3600 x 32.8) ft/s = 147.04 ft/s For bridge more than 50 m span, averaging tome period = 15 sec gust C = 5.73 x 10-2 (1 + 0.0457 x Uo)0.5 Cl. 2.3.2-2 API-RP 2A = 5.73 x 10-2 (1 + 0.0457 x 147.04)0.5 = 0.1592
  • 42.
    P a ge | 40 Chinmoy Pathak Choudhury Assam Engineering College, Jalukbari Guwahati - 781013 1 hour mean wind speed at elevation of z ft, U(z) = Uo(1 + C.ln(z/32.8)) = 147.04 (1 + 0.1592 ln (123.492/32.8)) = 178.1 ft/s Turbulence intensity, Iu(z) = 0.06 (1 + 0.0131 x Uo) x (z/32.8)-0.22 Cl. 2.3.2-2 API-RP 2A = 0.06 (1 + 0.0131 x 147.04) x (123.492/32.8)-0.22 = 0.131157 Design Wind Speed, Cl. 2.3.2-1 API-RP 2A u(z,t) = U(z) x [1 – 0.41 x Iu(z) x ln (t/to)] = 178.1 [1 - 0.41 x 0.131157 x ln (15/3600)] = 230.59 ft/s = 70.3 m/s Now, wind force, Cl. 2.3.2-8 API-RP 2A F = (ρ/2)μ2CsA = (0.0023668/2) x 230.592 x 3.282 [0.5(59.2 + 74) x 10] = 450852.44 slug ft s-2 = 4.4482 x 450852.44 N = 2005481.82 N = 2005.48 KN Therefore, Total Force at each end = 2005.48/2 = 1002.74 KN Fig 3. Shear force description (Bridge Bottom Plan) β = tan-1 (7.4/7.5) = 44.62° Axial Compression of the bracing member F = 1002.74 /cos 44.62° = 1408.78 KN Therefore, area required = 1408.78 x 1000/131.16 = 10740.93 mm2
  • 43.
    P a ge | 41 Chinmoy Pathak Choudhury Assam Engineering College, Jalukbari Guwahati - 781013 Adopting ∅406 x 12.7, D/t = 31.97 Area provided = �(406 – 12.7) x 12.7 = 15691.97 mm2 > 10740.93 mm2 Slenderness ratio = (74002 + 75002) (I/A)0.5 = 75.73 < 80 which is provided to the Top and Bottom braces. Check for Lateral Bending As UDL = 2005.48 /74 = 27.1 KN/m Maximum bending moment = wL2/8 = 27.1 x 742/8 = 18549.95 KNm Axial Compression on Bottom Chord of the frame facing the wind = P /e = 18549.95 /7.5 = 2473.32 KN Area required = 2473.32 x 1000 /131.16 = 18857.324 mm2 Area provided = 50958 mm2 > 18857.324 mm2 Hence, it is safe. Fig 4. Bottom Plan Fig 5. Top Plan
  • 44.
    P a ge | 42 Chinmoy Pathak Choudhury Assam Engineering College, Jalukbari Guwahati - 781013 A 3D space frame model of the bridge utilizing the members mentioned above has been generated for the Inplace and Lift analysis of the bridge with respective boundary conditions and loading. The bridge structure has been analysed for different load combinations with applicable contingencies. The structural analysis of the Bridge has been performed using SACS suite of programs. Isometric Views of the bridge under consideration has been included in the figures below. Fig 6. A 3D model of Bridge for Inplace Analysis Fig 7. A 3D model of Bridge for Lift Analysis
  • 45.
    P a ge | 43 Chinmoy Pathak Choudhury Assam Engineering College, Jalukbari Guwahati - 781013 Material Properties Material properties for tubular members are specified below: You g s Modulus : 2x 105 MPa Yield Strength : 345 MPa (for tubular with diameter >= 457 mm) 248 MPa (for tubular with diamater < 457 mm) Shear modulus (G) : 0.8 x 105 MPa Poisso s ‘atio : 0.30 Steel Density in air : 7850 kg/m3 The Inplace weight of the Bridge is 695 MT whereas the Lift weight of the bridge is 676 MT. The Bridge structure has been analysed for the Inplace conditions during the extreme storm (100 year return period), operating storm (1 year return period) with the pertinent loads envisaged during the operation of the structure. ;a d fo the lift o ditio s ith the ele a t loads a d D a i A plifi atio Fa to s DAF s . The following cases have been analysed during lifting of the module.  Balanced sling load distribution (50:50) with COG shift.  Skew sling load distribution-1 (75:25) with COG shift.  Skew sling load distribution-2 (25:75) with COG shift. Codal and installation contractor requirements stipulate that the structure being lifted be analysed for equal sling load distribution. C.2. SOFTWARE USED The structural analysis of the Bridge has been performed using SACS suite of programs. Following SACS Program Modules have been used:  The `SACINP` input file, which contains model information of the analyzed structure viz., the geometry, member sizes, materials, loads and load combinations and analysis options. The input file is generated usi g the `P‘ECEDE a d DATAGEN odules i `“AC“`.  The `SEASTATE` module has been used to generate dead weight of the modelled members. It also computes the environmental loads (wind) on the structure. This module will combine basic loads (user input or generated) to form various load combinations specified in the input file.  SACS IV Module is used for the linear static analyses of the model.
  • 46.
    P a ge | 44 Chinmoy Pathak Choudhury Assam Engineering College, Jalukbari Guwahati - 781013  The `JOINT-CAN` module has been used to perform the joint punching shear checks according to API- ‘P A, ‘e o e ded P a ti e fo Pla i g, Desig i g & Co st u ti g Fixed Offshore Platforms W“D , st Editio E‘‘ATA a d “upple e t , O to e 7.  The `PO“TVUE odule has ee used fo e ie i g the a al sis esults. C.3. METHODOLOGY FOR LIFT ANALYSIS Codal and installation contractor requirements stipulate that the structure being lifted be analyzed for equal and skew sling load distribution. The equal sling load distribution requirement stipulates that diagonally opposite pairs of slings carry equal loads. This is generally referred to as the 50:50 case in offshore design practice. The skew sling load distribution requirement stipulates and diagonally opposite pairs of slings carry 75% of the total load while the remaining pair carry the balance. This load distribution is reversed as an additional load case for lift analysis. These two distributions are generally referred to as the 75:25 and 25:75 case. The distributions described above are simulated as follows. One diagonally opposite pair of slings connects a diagonally opposite pair of lift points on the top chord of the bridge to the hook with fixed (111111) boundary conditions (generally named HUK1). The second hook joint (named HUK2) is created at the same location as the first (co-incident joint). The remaining diagonally opposite pair of lift points are connected with slings to this hook joint. The boundary conditions for this second co-incident joint are 110111. To simulate the 25:75 load distribution, 25% of the lift weight of the bridge is applied to HUK2 in the upward direction. This load is combined with the gravity load combination Since two diagonally opposite slings are connected to this joint (HUK2), this sling pair will carry 25% of the bridge lift weight. By equilibrium the other sling pair connected to HUK1 will carry the balance 75% of the lift weight. To simulate the 50:50 load case, the gravity load combination is combined with two times the Hook Load basic case. Since two diagonally opposite slings are connected to this joint (HUK2), this sling pair will carry 50% of the bridge lift weight. By equilibrium the other sling pair connected to HUK1 will carry the balance 50% of the lift weight. To simulate the 75:25 load case, the gravity load combination is combined with three times the Hook Load basic case. Since two diagonally opposite slings are connected to this joint (HUK2), this sling pair will carry 75% of the bridge lift weight. By equilibrium the other sling pair connected to HUK1 will carry the balance 25% of the lift weight. Each of these load combinations is generated using the applicable Dynamic Amplification Factors described in Section D.3.
  • 47.
    P a ge | 45 Chinmoy Pathak Choudhury Assam Engineering College, Jalukbari Guwahati - 781013 APPENDIX D – BASIC LOADING AND LOAD CASE SUMMARY
  • 48.
    P a ge | 46 Chinmoy Pathak Choudhury Assam Engineering College, Jalukbari Guwahati - 781013 D.1. BASIC LOADING 1. Computer Generated Loads These loads account for the weight of the modelled primary and secondary members. 2. Module Non-Generated Dead Loads NGDL’s These loads account for the weight of the non-modelled secondary and tertiary structural items/appurtenances on the Bridge including grating, handrails, monorails, etc. These loads are applied on the corresponding joints/members where they are supported. 3. Discipline Loads Bridges carry piping, electrical and instrumentation cable trays. The Load intensities depend largely on the extent to which the facilities on the two platforms are inter-connected. A typical weight summary of individual discipline loads is included below for reference. These loads are applied on the corresponding members/ joints where they are supported. Piping (Dry) : 145 MT Piping (Content) : 39 MT (applied only in Inplace analysis) Electrical : 18 MT Instrumentation : 102 MT 4. Live Loads (applied only in Inplace analysis) Each level is designed to carry a Live load of 150 Kg/m2 on walkway area and is considered for the analysis. The loading intensities are based on the values typically used in Offshore industry practice. 5. Environmental Loads The parameters for the environmental loading for Bridge Inplace analysis are specified below. Extreme Wind (all directions) : 161.39 Km/hr Operating Wind (all directions) : 99 Km/hr Wind velocity based on a 15 seconds gust period and eight (8) approach directions is considered for the B idge I pla e a al sis. The elo it at the desig ele atio is auto ati all al ulated the “AC“ “EA“TATE odule. The fa es of the B idge ha e ee ep ese ted as projected areas with respect to the principal directions (Global X and Y directions). Wind load in each direction is calculated based on projected areas with the appropriate wind velocities. A sample calculation for wind loading included in Appendix C for reference.
  • 49.
    P a ge | 47 Chinmoy Pathak Choudhury Assam Engineering College, Jalukbari Guwahati - 781013 6. Hook Load This load is applied to the free hook joint in order to simulate the equal and skew sling load distributions described in Appendix C.3 of this report. The magnitude of this load is 25% of the lift weight applied at the free hook joint applied in the positive Z direction (upward). 7. COG Shift Load (applied only in Lift Analysis) A 2% COG shift is simulated by vertically applying 132.63 KN load and opposite in direction to each other at two diagonally opposite lift points. Table 1. Basic Load Case Summary (Inplace) BASIC LOAD CASES LOAD CASE DESCRIPTION LOAD SUM (KN) LL Live Load 359.34 611 Piping Dry Load 1422.43 612 Piping Dry Load 382.54 621 Electrical Load 176.97 625 Instrumentation Load 1001.44 NGDL Non-Generated Dead Load 468.43 101 Self Weight 2999.56 201 Extreme Wind Load at 0˚ 222.60 202 Extreme Wind Load at 45˚ 1405.28 203 Extreme Wind Load at 90˚ 1974.85 204 Extreme Wind Load at 135˚ 1405.28 205 Extreme Wind Load at 180˚ 222.60 206 Extreme Wind Load at 225˚ 1405.27 207 Extreme Wind Load at 270˚ 1974.88 208 Extreme Wind Load at 315˚ 1405.27 301 Operating Wind Load at 0˚ 69.80 302 Operating Wind Load at 45˚ 440.70 303 Operating Wind Load at 90˚ 619.32 304 Operating Wind Load at 135˚ 440.70 305 Operating Wind Load at 180˚ 69.80 306 Operating Wind Load at 225˚ 440.69 307 Operating Wind Load at 270˚ 619.32 308 Operating Wind Load at 315˚ 440.70
  • 50.
    P a ge | 48 Chinmoy Pathak Choudhury Assam Engineering College, Jalukbari Guwahati - 781013 Table 2. Basic Load Case Summary (Lift) D.2. BOUNDARY CONDITIONS For Inplace analysis, the bridge model is pinned at one platform end and sliding at the other platform end. The plot below indicates the boundary conditions. The bridge is allowed to slide on one of the platforms to account for relative platform movement. For Lift analysis, the bridge model is connected at 4 conventional lift points at the top chord to the hook point by means of slings. The hook is generally given fixed boundary conditions with releases provided to the modelled slings so that they do not carry any moments. An additional hook point is modelled and fixed in two translations and three rotations. It is left free in the vertical direction. This second hook is used to simulate the equal sling load distribution and skew sling load distribution. Table 3. Contingency applied in Loadings CONTINGENCY FACTORS BASIC LOAD CONTINGENCY Structural modelled weight 13% Non-Generated Dead Loads 13% Piping 20% Electrical 20% Instrumentation 20% Live Load No contingency (Applied only for Inplace Analysis) BASIC LOAD CASES LOAD CASE DESCRIPTION LOAD SUM (KN) 611 Piping Dry Load 1422.43 621 Electrical Load 176.97 625 Instrumentation Load 1001.44 NGDL Non-Generated Dead Load 468.43 HUK 25% of the Total Load 1660.17 101 Self Weight 2990.38
  • 51.
    P a ge | 49 Chinmoy Pathak Choudhury Assam Engineering College, Jalukbari Guwahati - 781013 D.3. LOAD COMBINATIONS FOR INPLACE ANALYSIS Table 4. Design Load Combinations Summary DESIGN LOAD COMBINATIONS LOAD CASE DESCRIPTION CE1 to CE8 Self Weight + NGDL + Piping + E&I + Live Load + Extreme storm condition CO1 to CO8 Self Weight + NGDL + Piping + E&I + Live Load + Operating storm condition. FOR LIFT ANALYSIS Table 5. Dynamic Amplification Factors DYNAMIC AMPLIFICATION FACTORS LOAD CASE DESCRIPTION Skew Load distribution 1.35 – Lift point connected members 1.15 – Other members Equal Load distribution 2.00 – Lift point connected members 1.35 – Other members Using the above Dynamic Amplification Factors, the load combinations for Lift analysis is formed accordingly. Table 6: Design Load Combinations Summary DESIGN LOAD COMBINATIONS LOAD CASE DESCRIPTION 1000 Self Weight + Piping Dry Weight + E&I + NGDL 2575 1000*1.35 + Hook Load*1.35 + COG Shift Load* 1.35 2676 1000*1.15 + Hook Load*1.15 + COG Shift Load*1.15 5050 1000*2 + Hook Load*4 + COG Shift Load*2 5151 1000*1.35 + Hook Load*2.7 + COG Shift Load*1.35 7525 1000*1.35 + Hook Load*4.05 + COG Shift Load*1.35 7626 1000*1.15 + Hook Load*3.45 + COG Shift Load*1.15 Member Check Parameters The effective buckling length of the member used in the calculation of axial allowable compressive stresses is in accordance with the recommendation of API-RP 2A. These factors are input relative to member local axes. The allowable stresses are also in accordance with API –RP 2A. An extract of the allowable stresses has been included in the Appendix B for reference.