Embed presentation
Download to read offline
![BUILDING STRUCTURES (ARC 2522/2523)
PROJECT 2 EXTENSION OF A R.C. BUNGALOW
CHEW WOAN CHYIN [0310797]
CHUAH WEI HONG [0310900]
KRISTINE YONG [0311297]
TOH CHEE CHENG [0311122]
YAP ZHI JUN [0310738]
YAP ZHONG LIN [0310557]](https://image.slidesharecdn.com/buildingstructures1-150707122618-lva1-app6891/75/Building-structures-Group-1-2048.jpg)












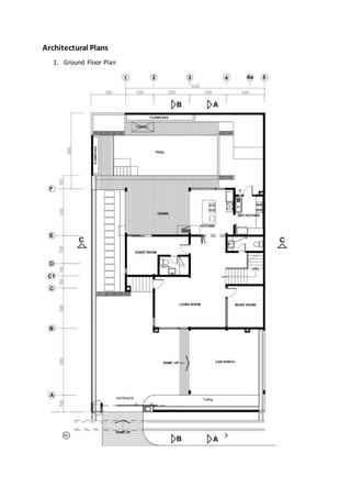
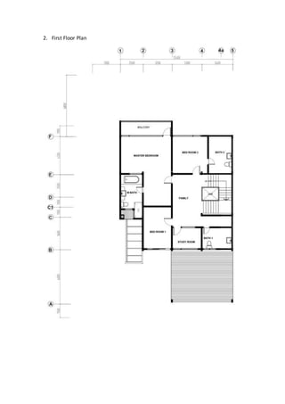
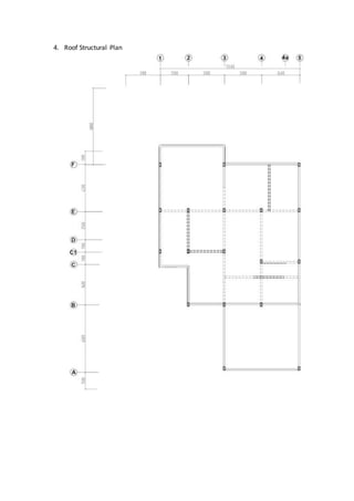
This document outlines the plans for a project to extend an existing reinforced concrete bungalow, including an introduction, architectural plans showing the ground floor, first floor, roof, elevations and sections at a scale of 1:150, structural plans of the foundation, ground floor, first floor and roof at 1:150, and 3D model perspectives. The plans include a ground floor plan, first floor plan, roof plan, and elevations and sections of the extended bungalow.
![BUILDING STRUCTURES (ARC 2522/2523)
PROJECT 2 EXTENSION OF A R.C. BUNGALOW
CHEW WOAN CHYIN [0310797]
CHUAH WEI HONG [0310900]
KRISTINE YONG [0311297]
TOH CHEE CHENG [0311122]
YAP ZHI JUN [0310738]
YAP ZHONG LIN [0310557]](https://image.slidesharecdn.com/buildingstructures1-150707122618-lva1-app6891/75/Building-structures-Group-1-2048.jpg)











