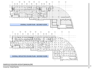
FAIRFIELD GOLDEN HEIGHT,BANGALORE
Created by : Vivek Parcha
BUILDING INFORMATION MODELING (BIM)
Building Information Modeling is an intelligent model–based design process that adds value across the entire lifecycle of building
and infrastructure projects.
 BIM represents the process of development and use of a computer generated model to simulate the planning, design, construction
and operation of a facility .
 BIM helps architecture, engineering, and construction (AEC) service providers apply the same approach to building and infrastructure
projects.
 BIM facilitates a new way of working: creating designs with intelligent objects.
 Models created using this software are intelligent because of the relationships and information that are automatically built into the
model.
 With BIM, the model is a complex database and the room is a database element that contains both geometric information and non
graphic data.
 If designers change a model element, the BIM software automatically coordinates the change in all views that display that element.
 A BIM carries all information related to the building, including its physical and functional characteristics and project life cycle info.
FAIRFIELD GOLDEN HEIGHT,BANGALORE
Created by : Vivek Parcha
BUILDING INFORMATION MODELING (BIM)
BIM Applications-
A building information model can be used for the following purposes:
 Visualization: 3D renderings can be easily generated in-house with little additional effort.
 Facilities management: facilities management departments can use BIM for renovations, space planning, and maintenance operations.
 Cost estimating: BIM software have built-in cost estimating features.
 Construction sequencing: BIM can be effectively used to create material ordering, fabrication, and delivery schedules.
 Conflict, interference and collision detection: This process can verify that piping does not intersect with steel beams, ducts or walls.
BIM Benefits –
The key benefit of BIM is its accurate geometrical representation of the parts of a building in an integrated data environment.
 Faster and more effective processes – information is more easily shared, can be value-added and reused.
 Better design – building proposals can be rigorously analyzed, simulations can be performed quickly and performance benchmarked,
enabling improved and innovative solutions.
 Environmental performance is more predictable, lifecycle costs are better understood.
 Better production quality – documentation output is flexible and exploits automation.
 Better customer service – proposals are better understood through accurate visualization.
 Lifecycle data – requirements, design, construction and operational information can be used in facilities management.
FAIRFIELD GOLDEN HEIGHT,BANGALORE
Created by : Vivek Parcha
PROJECT FACTS
PROJECT NAME- FAIRFIELD GOLDEN HEIGHT
CLIENT NAME- SAMHI GROUP
LOCATION – RAJAJINAGAR ,BANGALORE KARNATAKA
OPERATOR- MARRIOTT
NUMBER OF KEYS- 148
STRUCTURE- 3 BASEMENT AND GROUND + 9
CASE STUDY
FAIRFIELD GOLDEN HEIGHT AT RAJAJINAGAR
BANGALORE KARNATAKA
FAIRFIELD GOLDEN HEIGHT,BANGALORE
Created by : Vivek Parcha
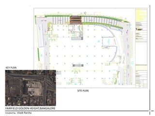
SITE PLAN
KEY PLAN
FAIRFIELD GOLDEN HEIGHT,BANGALORE
Created by : Vivek Parcha
3D VISULAIZING A BIM
EXTERIOR-
FRONT FAÇADE
SIDE ELEVATION
FAIRFIELD GOLDEN HEIGHT,BANGALORE
Created by : Vivek Parcha
FLOOR PLAN - GROUND FLOOR
REFLECTED CEILING PLAN - GROUND FLOOR
FAIRFIELD GOLDEN HEIGHT,BANGALORE
Created by : Vivek Parcha
ELECTRICAL PLAN - GROUND FLOOR
PLUMBING PLAN - GROUND FLOOR
FAIRFIELD GOLDEN HEIGHT,BANGALORE
Created by : Vivek Parcha
HVAC PLAN - GROUND FLOOR
FIRE FIGHTING PLAN - GROUND FLOOR
FAIRFIELD GOLDEN HEIGHT,BANGALORE
Created by : Vivek Parcha
GROUND FLOOR: 3D VIEW - SERVICES
FAIRFIELD GOLDEN HEIGHT,BANGALORE
Created by : Vivek Parcha
FLOOR PLAN - UPPER BASEMENT
REFLECTED CEILING PLAN - UPPER BASEMENT
FAIRFIELD GOLDEN HEIGHT,BANGALORE
Created by : Vivek Parcha
ELECTRICAL PLAN - UPPER BASEMENT
PLUMBING PLAN - UPPER BASEMENT
FAIRFIELD GOLDEN HEIGHT,BANGALORE
Created by : Vivek Parcha
HVAC PLAN - UPPER BASEMENT
FIRE FIGHTING PLAN - UPPER BASEMENT
FAIRFIELD GOLDEN HEIGHT,BANGALORE
Created by : Vivek Parcha
UPPER BASEMENT : 3D VIEW - SERVICES
FAIRFIELD GOLDEN HEIGHT,BANGALORE
Created by : Vivek Parcha
FLOOR PLAN - SECOND FLOOR - PART 1
REFLECTED CEILING PLAN - SECOND FLOOR - PART 1
FAIRFIELD GOLDEN HEIGHT,BANGALORE
Created by : Vivek Parcha
ELECTRICAL PLAN - SECOND FLOOR - PART 1
PLUMBING PLAN - SECOND FLOOR - PART 1
FAIRFIELD GOLDEN HEIGHT,BANGALORE
Created by : Vivek Parcha
HVAC PLAN - SECOND FLOOR - PART 1
FIRE FIGHTING PLAN - SECOND FLOOR - PART 1
FAIRFIELD GOLDEN HEIGHT,BANGALORE
Created by : Vivek Parcha
SECOND FLOOR -1: 3D VIEW - SERVICES
FAIRFIELD GOLDEN HEIGHT,BANGALORE
Created by : Vivek Parcha
FLOOR PLAN - SECOND FLOOR - PART 2 REFLECTED CEILING PLAN - SECOND FLOOR - PART 2
FAIRFIELD GOLDEN HEIGHT,BANGALORE
Created by : Vivek Parcha
ELECTRICAL PLAN - SECOND FLOOR - PART 2 PLUMBING PLAN - SECOND FLOOR - PART 2
FAIRFIELD GOLDEN HEIGHT,BANGALORE
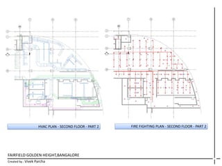
Created by : Vivek Parcha
HVAC PLAN - SECOND FLOOR - PART 2 FIRE FIGHTING PLAN - SECOND FLOOR - PART 2
FAIRFIELD GOLDEN HEIGHT,BANGALORE
Created by : Vivek Parcha
SECOND FLOOR-2: 3D VIEW - SERVICES
FAIRFIELD GOLDEN HEIGHT,BANGALORE
Created by : Vivek Parcha
OVERALL FLOOR PLAN - SECOND FLOOR
OVERALL REFLECTED CEILING PLAN - SECOND FLOOR
FAIRFIELD GOLDEN HEIGHT,BANGALORE
Created by : Vivek Parcha
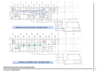
OVERALL ELECTRICAL PLAN – SECOND FLOOR
OVERALL PLUMBING PLAN - SECOND FLOOR
FAIRFIELD GOLDEN HEIGHT,BANGALORE
Created by : Vivek Parcha
OVERALL HVAC PLAN - SECOND FLOOR
OVERALL FIRE FIGHTING PLAN - SECOND FLOOR
FAIRFIELD GOLDEN HEIGHT,BANGALORE
Created by : Vivek Parcha
OVERALL SECOND FLOOR: 3D VIEW- SERVICES
FAIRFIELD GOLDEN HEIGHT,BANGALORE
Created by : Vivek Parcha
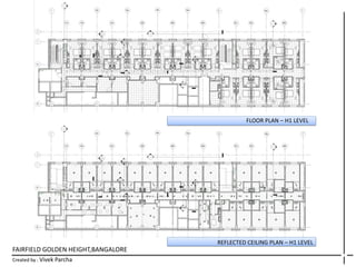
FLOOR PLAN – H1 LEVEL
REFLECTED CEILING PLAN – H1 LEVEL
FAIRFIELD GOLDEN HEIGHT,BANGALORE
Created by : Vivek Parcha
ELECTRICAL PLAN – H1 LEVEL
PLUMBING PLAN – H1 LEVEL
FAIRFIELD GOLDEN HEIGHT,BANGALORE
Created by : Vivek Parcha
HVAC PLAN – H1 LEVEL
FIRE FIGHTING PLAN – H1 LEVEL
FAIRFIELD GOLDEN HEIGHT,BANGALORE
Created by : Vivek Parcha
H1 LEVEL: 3D VIEW- SERVICES
FAIRFIELD GOLDEN HEIGHT,BANGALORE
Created by : Vivek Parcha
FRONT ELEVATION
LEFT SIDE ELEVATION
FAIRFIELD GOLDEN HEIGHT,BANGALORE
Created by : Vivek Parcha
TYPICAL GUEST ROOM LAYOUT
SECTION A
SECTION B
FAIRFIELD GOLDEN HEIGHT,BANGALORE
Created by : Vivek Parcha
FLOOR PLAN H1- MEP-SERVICES
COORDINATION IN VARIOUS SERVICES
Electrical, HVAC, plumbing and fire protection
FAIRFIELD GOLDEN HEIGHT,BANGALORE
Created by : Vivek Parcha
TYPICAL GUEST ROOM LAYOUT –
CORDINATION BETWEEN MEP SERVICES , ARCHITECTURE AND STRUCTURE
FAIRFIELD GOLDEN HEIGHT,BANGALORE
Created by : Vivek Parcha
HOT WATER
COLD WATER
WASTE PIPE
SOIL PIPE
CHILLED & HOT WATER RETURN
FLUSH WATER PIPE
DOMESTIC COLD WATER
HOT WATER SUPPLY
HOT WATER RETURN
CHILLED & HOT WATER SUPPLY
SUPPLY AIR DUCT
A.C. UNIT
RETURN AIR DUCT
FIRE PORTECTION PIPE
EXHAUST DUCT
FAIRFIELD GOLDEN HEIGHT,BANGALORE
Created by : Vivek Parcha
SECTION – MEP SERVICES
SUPPLY AIR DUCT
CABLE TRAYFIRE PROTECTION PIPE
SPRINKLER
RETURN AIR DUCT
FAIRFIELD GOLDEN HEIGHT,BANGALORE
Created by : Vivek Parcha
CLASH DETECTION IN VARIOUS SERVICES
CLASH BETWEEN CABLE TRAY AND DUCT
FAIRFIELD GOLDEN HEIGHT,BANGALORE
Created by : Vivek Parcha
CLASH IDENTIFIED AND RESOLVED
THROUGH BIM
FAIRFIELD GOLDEN HEIGHT,BANGALORE
Created by : Vivek Parcha
CABLE TRAY=B
A B
1 AC_S.A_Duct : Ducts : Rectangular Duct : Default - Mark 77 : id 111349
EL_MV cable tray : Cable Trays : Cable Tray with Fittings : Channel Cable Tray -
Mark 1 : id 38109
2 AC_S.A_Duct : Ducts : Rectangular Duct : Default - Mark 131 : id 115028
EL_MV cable tray : Cable Trays : Cable Tray with Fittings : Channel Cable Tray -
Mark 1 : id 38109
3 AC_S.A_Duct : Ducts : Rectangular Duct : Default - Mark 140 : id 115099
EL_MV cable tray : Cable Trays : Cable Tray with Fittings : Channel Cable Tray -
Mark 1 : id 38109
4 AC_S.A_Duct : Ducts : Rectangular Duct : Default - Mark 149 : id 115117
EL_MV cable tray : Cable Trays : Cable Tray with Fittings : Channel Cable Tray -
Mark 1 : id 38109
5 AC_S.A_Duct : Ducts : Rectangular Duct : Default - Mark 158 : id 115176
EL_MV cable tray : Cable Trays : Cable Tray with Fittings : Channel Cable Tray -
Mark 4 : id 48696
6 AC_S.A_Duct : Ducts : Rectangular Duct : Default - Mark 167 : id 115194
EL_MV cable tray : Cable Trays : Cable Tray with Fittings : Channel Cable Tray -
Mark 4 : id 48696
7 AC_S.A_Duct : Ducts : Rectangular Duct : Default - Mark 176 : id 115251
EL_MV cable tray : Cable Trays : Cable Tray with Fittings : Channel Cable Tray -
Mark 5 : id 48851
8 AC_S.A_Duct : Ducts : Rectangular Duct : Default - Mark 185 : id 115269
EL_MV cable tray : Cable Trays : Cable Tray with Fittings : Channel Cable Tray -
Mark 5 : id 48851
9 AC_S.A_Duct : Ducts : Rectangular Duct : Default - Mark 194 : id 115684
EL_MV cable tray : Cable Trays : Cable Tray with Fittings : Channel Cable Tray -
Mark 5 : id 48851
10 AC_S.A_Duct : Ducts : Rectangular Duct : Default - Mark 203 : id 115870
EL_MV cable tray : Cable Trays : Cable Tray with Fittings : Channel Cable Tray -
Mark 5 : id 48851
11 AC_S.A_Duct : Ducts : Rectangular Duct : Default - Mark 222 : id 117228
EL_MV cable tray : Cable Trays : Cable Tray with Fittings : Channel Cable Tray -
Mark 6 : id 49117
12 AC_S.A_Duct : Ducts : Rectangular Duct : Default - Mark 231 : id 118162
EL_MV cable tray : Cable Trays : Cable Tray with Fittings : Channel Cable Tray -
Mark 6 : id 49117
13 AC_S.A_Duct : Ducts : Rectangular Duct : Default - Mark 212 : id 115968
EL_MV cable tray : Cable Tray Fittings : Channel Reducer : Standard - Mark 7 : id
49127
14 AC_S.A_Duct : Ducts : Rectangular Duct : Default - Mark 37 : id 92685
EL_LV cable tray : Cable Trays : Cable Tray with Fittings : Channel Cable Tray -
Mark 13 : id 49425
15 AC_S.A_Duct : Ducts : Rectangular Duct : Default - Mark 38 : id 92763
EL_LV cable tray : Cable Trays : Cable Tray with Fittings : Channel Cable Tray -
Mark 13 : id 49425
16 AC_S.A_Duct : Ducts : Rectangular Duct : Default - Mark 39 : id 92874
EL_LV cable tray : Cable Trays : Cable Tray with Fittings : Channel Cable Tray -
Mark 13 : id 49425
17 AC_S.A_Duct : Ducts : Rectangular Duct : Default - Mark 53 : id 102809
EL_LV cable tray : Cable Tray Fittings : Channel Horizontal Bend : Standard -
Mark 28 : id 50199
18
AC_S.A_Duct : Duct Fittings : Rectangular Elbow - Radius : 1 W - Mark
214 : id 102826
EL_LV cable tray : Cable Tray Fittings : Channel Horizontal Bend : Standard -
Mark 28 : id 50199
19 AC_S.A_Duct : Ducts : Rectangular Duct : Default - Mark 53 : id 102809
EL_LV cable tray : Cable Tray Fittings : Channel Reducer : Standard - Mark 30 :
id 50253
20 AC_S.A_Duct : Ducts : Rectangular Duct : Default - Mark 241 : id 118402
EL_LV cable tray : Cable Trays : Cable Tray with Fittings : Channel Cable Tray -
Mark 21 : id 51444
21 AC_S.A_Duct : Ducts : Rectangular Duct : Default - Mark 247 : id 118448
EL_LV cable tray : Cable Trays : Cable Tray with Fittings : Channel Cable Tray -
Mark 21 : id 51444
22
AC_S.A_Duct : Duct Fittings : Rectangular Elbow - Radius : 1 W - Mark
619 : id 118458
EL_LV cable tray : Cable Trays : Cable Tray with Fittings : Channel Cable Tray -
Mark 21 : id 51444
23 AC_S.A_Duct : Ducts : Rectangular Duct : Default - Mark 251 : id 118600
EL_LV cable tray : Cable Trays : Cable Tray with Fittings : Channel Cable Tray -
Mark 21 : id 51444
24 AC_S.A_Duct : Ducts : Rectangular Duct : Default - Mark 259 : id 119032
EL_LV cable tray : Cable Trays : Cable Tray with Fittings : Channel Cable Tray -
Mark 21 : id 51444
25 AC_S.A_Duct : Ducts : Rectangular Duct : Default - Mark 267 : id 120000
EL_LV cable tray : Cable Trays : Cable Tray with Fittings : Channel Cable Tray -
Mark 21 : id 51444
26 AC_S.A_Duct : Ducts : Rectangular Duct : Default - Mark 275 : id 120097
EL_LV cable tray : Cable Trays : Cable Tray with Fittings : Channel Cable Tray -
Mark 21 : id 51444
27 AC_S.A_Duct : Ducts : Rectangular Duct : Default - Mark 53 : id 102809
EL_LV cable tray : Cable Trays : Cable Tray with Fittings : Channel Cable Tray -
Mark 22 : id 67372
28
AC_S.A_Duct : Duct Fittings : Rectangular Wye - Curved - Transition :
Standard - Mark 191 : id 100128
EL_LV cable tray : Cable Tray Fittings : Channel Horizontal Bend : Standard -
Mark 44 : id 67382
29 AC_S.A_Duct : Ducts : Rectangular Duct : Default - Mark 53 : id 102809
EL_LV cable tray : Cable Tray Fittings : Channel Horizontal Bend : Standard -
Mark 44 : id 67382
30
AC_S.A_Duct : Duct Fittings : Rectangular Elbow - Radius : 1 W - Mark
214 : id 102826
EL_LV cable tray : Cable Tray Fittings : Channel Horizontal Bend : Standard -
Mark 44 : id 67382
31 AC_S.A_Duct : Ducts : Rectangular Duct : Default - Mark 54 : id 103036
EL_LV cable tray : Cable Tray Fittings : Channel Horizontal Bend : Standard -
Mark 44 : id 67382
Interference Report
DUCT =A
FAIRFIELD GOLDEN HEIGHT,BANGALORE
Created by : Vivek Parcha
BOQ SCHEDULE
QUANTITY SCHEDULE EXTRACT DIRECTLY FROM BIM MODEL
1). FLOOR SCHEDULE
2). WALL SCHEDULE
FAIRFIELD GOLDEN HEIGHT,BANGALORE
Created by : Vivek Parcha
3). DOOR SCHEDULE
4). WINDOW SCHEDULE

BIM_Presentation

  • 2.
    FAIRFIELD GOLDEN HEIGHT,BANGALORE Createdby : Vivek Parcha BUILDING INFORMATION MODELING (BIM) Building Information Modeling is an intelligent model–based design process that adds value across the entire lifecycle of building and infrastructure projects.  BIM represents the process of development and use of a computer generated model to simulate the planning, design, construction and operation of a facility .  BIM helps architecture, engineering, and construction (AEC) service providers apply the same approach to building and infrastructure projects.  BIM facilitates a new way of working: creating designs with intelligent objects.  Models created using this software are intelligent because of the relationships and information that are automatically built into the model.  With BIM, the model is a complex database and the room is a database element that contains both geometric information and non graphic data.  If designers change a model element, the BIM software automatically coordinates the change in all views that display that element.  A BIM carries all information related to the building, including its physical and functional characteristics and project life cycle info.
  • 3.
    FAIRFIELD GOLDEN HEIGHT,BANGALORE Createdby : Vivek Parcha BUILDING INFORMATION MODELING (BIM) BIM Applications- A building information model can be used for the following purposes:  Visualization: 3D renderings can be easily generated in-house with little additional effort.  Facilities management: facilities management departments can use BIM for renovations, space planning, and maintenance operations.  Cost estimating: BIM software have built-in cost estimating features.  Construction sequencing: BIM can be effectively used to create material ordering, fabrication, and delivery schedules.  Conflict, interference and collision detection: This process can verify that piping does not intersect with steel beams, ducts or walls. BIM Benefits – The key benefit of BIM is its accurate geometrical representation of the parts of a building in an integrated data environment.  Faster and more effective processes – information is more easily shared, can be value-added and reused.  Better design – building proposals can be rigorously analyzed, simulations can be performed quickly and performance benchmarked, enabling improved and innovative solutions.  Environmental performance is more predictable, lifecycle costs are better understood.  Better production quality – documentation output is flexible and exploits automation.  Better customer service – proposals are better understood through accurate visualization.  Lifecycle data – requirements, design, construction and operational information can be used in facilities management.
  • 4.
    FAIRFIELD GOLDEN HEIGHT,BANGALORE Createdby : Vivek Parcha PROJECT FACTS PROJECT NAME- FAIRFIELD GOLDEN HEIGHT CLIENT NAME- SAMHI GROUP LOCATION – RAJAJINAGAR ,BANGALORE KARNATAKA OPERATOR- MARRIOTT NUMBER OF KEYS- 148 STRUCTURE- 3 BASEMENT AND GROUND + 9 CASE STUDY FAIRFIELD GOLDEN HEIGHT AT RAJAJINAGAR BANGALORE KARNATAKA
  • 5.
    FAIRFIELD GOLDEN HEIGHT,BANGALORE Createdby : Vivek Parcha SITE PLAN KEY PLAN
  • 6.
    FAIRFIELD GOLDEN HEIGHT,BANGALORE Createdby : Vivek Parcha 3D VISULAIZING A BIM EXTERIOR- FRONT FAÇADE SIDE ELEVATION
  • 7.
    FAIRFIELD GOLDEN HEIGHT,BANGALORE Createdby : Vivek Parcha FLOOR PLAN - GROUND FLOOR REFLECTED CEILING PLAN - GROUND FLOOR
  • 8.
    FAIRFIELD GOLDEN HEIGHT,BANGALORE Createdby : Vivek Parcha ELECTRICAL PLAN - GROUND FLOOR PLUMBING PLAN - GROUND FLOOR
  • 9.
    FAIRFIELD GOLDEN HEIGHT,BANGALORE Createdby : Vivek Parcha HVAC PLAN - GROUND FLOOR FIRE FIGHTING PLAN - GROUND FLOOR
  • 10.
    FAIRFIELD GOLDEN HEIGHT,BANGALORE Createdby : Vivek Parcha GROUND FLOOR: 3D VIEW - SERVICES
  • 11.
    FAIRFIELD GOLDEN HEIGHT,BANGALORE Createdby : Vivek Parcha FLOOR PLAN - UPPER BASEMENT REFLECTED CEILING PLAN - UPPER BASEMENT
  • 12.
    FAIRFIELD GOLDEN HEIGHT,BANGALORE Createdby : Vivek Parcha ELECTRICAL PLAN - UPPER BASEMENT PLUMBING PLAN - UPPER BASEMENT
  • 13.
    FAIRFIELD GOLDEN HEIGHT,BANGALORE Createdby : Vivek Parcha HVAC PLAN - UPPER BASEMENT FIRE FIGHTING PLAN - UPPER BASEMENT
  • 14.
    FAIRFIELD GOLDEN HEIGHT,BANGALORE Createdby : Vivek Parcha UPPER BASEMENT : 3D VIEW - SERVICES
  • 15.
    FAIRFIELD GOLDEN HEIGHT,BANGALORE Createdby : Vivek Parcha FLOOR PLAN - SECOND FLOOR - PART 1 REFLECTED CEILING PLAN - SECOND FLOOR - PART 1
  • 16.
    FAIRFIELD GOLDEN HEIGHT,BANGALORE Createdby : Vivek Parcha ELECTRICAL PLAN - SECOND FLOOR - PART 1 PLUMBING PLAN - SECOND FLOOR - PART 1
  • 17.
    FAIRFIELD GOLDEN HEIGHT,BANGALORE Createdby : Vivek Parcha HVAC PLAN - SECOND FLOOR - PART 1 FIRE FIGHTING PLAN - SECOND FLOOR - PART 1
  • 18.
    FAIRFIELD GOLDEN HEIGHT,BANGALORE Createdby : Vivek Parcha SECOND FLOOR -1: 3D VIEW - SERVICES
  • 19.
    FAIRFIELD GOLDEN HEIGHT,BANGALORE Createdby : Vivek Parcha FLOOR PLAN - SECOND FLOOR - PART 2 REFLECTED CEILING PLAN - SECOND FLOOR - PART 2
  • 20.
    FAIRFIELD GOLDEN HEIGHT,BANGALORE Createdby : Vivek Parcha ELECTRICAL PLAN - SECOND FLOOR - PART 2 PLUMBING PLAN - SECOND FLOOR - PART 2
  • 21.
    FAIRFIELD GOLDEN HEIGHT,BANGALORE Createdby : Vivek Parcha HVAC PLAN - SECOND FLOOR - PART 2 FIRE FIGHTING PLAN - SECOND FLOOR - PART 2
  • 22.
    FAIRFIELD GOLDEN HEIGHT,BANGALORE Createdby : Vivek Parcha SECOND FLOOR-2: 3D VIEW - SERVICES
  • 23.
    FAIRFIELD GOLDEN HEIGHT,BANGALORE Createdby : Vivek Parcha OVERALL FLOOR PLAN - SECOND FLOOR OVERALL REFLECTED CEILING PLAN - SECOND FLOOR
  • 24.
    FAIRFIELD GOLDEN HEIGHT,BANGALORE Createdby : Vivek Parcha OVERALL ELECTRICAL PLAN – SECOND FLOOR OVERALL PLUMBING PLAN - SECOND FLOOR
  • 25.
    FAIRFIELD GOLDEN HEIGHT,BANGALORE Createdby : Vivek Parcha OVERALL HVAC PLAN - SECOND FLOOR OVERALL FIRE FIGHTING PLAN - SECOND FLOOR
  • 26.
    FAIRFIELD GOLDEN HEIGHT,BANGALORE Createdby : Vivek Parcha OVERALL SECOND FLOOR: 3D VIEW- SERVICES
  • 27.
    FAIRFIELD GOLDEN HEIGHT,BANGALORE Createdby : Vivek Parcha FLOOR PLAN – H1 LEVEL REFLECTED CEILING PLAN – H1 LEVEL
  • 28.
    FAIRFIELD GOLDEN HEIGHT,BANGALORE Createdby : Vivek Parcha ELECTRICAL PLAN – H1 LEVEL PLUMBING PLAN – H1 LEVEL
  • 29.
    FAIRFIELD GOLDEN HEIGHT,BANGALORE Createdby : Vivek Parcha HVAC PLAN – H1 LEVEL FIRE FIGHTING PLAN – H1 LEVEL
  • 30.
    FAIRFIELD GOLDEN HEIGHT,BANGALORE Createdby : Vivek Parcha H1 LEVEL: 3D VIEW- SERVICES
  • 31.
    FAIRFIELD GOLDEN HEIGHT,BANGALORE Createdby : Vivek Parcha FRONT ELEVATION LEFT SIDE ELEVATION
  • 32.
    FAIRFIELD GOLDEN HEIGHT,BANGALORE Createdby : Vivek Parcha TYPICAL GUEST ROOM LAYOUT SECTION A SECTION B
  • 33.
    FAIRFIELD GOLDEN HEIGHT,BANGALORE Createdby : Vivek Parcha FLOOR PLAN H1- MEP-SERVICES COORDINATION IN VARIOUS SERVICES Electrical, HVAC, plumbing and fire protection
  • 34.
    FAIRFIELD GOLDEN HEIGHT,BANGALORE Createdby : Vivek Parcha TYPICAL GUEST ROOM LAYOUT – CORDINATION BETWEEN MEP SERVICES , ARCHITECTURE AND STRUCTURE
  • 35.
    FAIRFIELD GOLDEN HEIGHT,BANGALORE Createdby : Vivek Parcha HOT WATER COLD WATER WASTE PIPE SOIL PIPE CHILLED & HOT WATER RETURN FLUSH WATER PIPE DOMESTIC COLD WATER HOT WATER SUPPLY HOT WATER RETURN CHILLED & HOT WATER SUPPLY SUPPLY AIR DUCT A.C. UNIT RETURN AIR DUCT FIRE PORTECTION PIPE EXHAUST DUCT
  • 36.
    FAIRFIELD GOLDEN HEIGHT,BANGALORE Createdby : Vivek Parcha SECTION – MEP SERVICES SUPPLY AIR DUCT CABLE TRAYFIRE PROTECTION PIPE SPRINKLER RETURN AIR DUCT
  • 37.
    FAIRFIELD GOLDEN HEIGHT,BANGALORE Createdby : Vivek Parcha CLASH DETECTION IN VARIOUS SERVICES CLASH BETWEEN CABLE TRAY AND DUCT
  • 38.
    FAIRFIELD GOLDEN HEIGHT,BANGALORE Createdby : Vivek Parcha CLASH IDENTIFIED AND RESOLVED THROUGH BIM
  • 39.
    FAIRFIELD GOLDEN HEIGHT,BANGALORE Createdby : Vivek Parcha CABLE TRAY=B A B 1 AC_S.A_Duct : Ducts : Rectangular Duct : Default - Mark 77 : id 111349 EL_MV cable tray : Cable Trays : Cable Tray with Fittings : Channel Cable Tray - Mark 1 : id 38109 2 AC_S.A_Duct : Ducts : Rectangular Duct : Default - Mark 131 : id 115028 EL_MV cable tray : Cable Trays : Cable Tray with Fittings : Channel Cable Tray - Mark 1 : id 38109 3 AC_S.A_Duct : Ducts : Rectangular Duct : Default - Mark 140 : id 115099 EL_MV cable tray : Cable Trays : Cable Tray with Fittings : Channel Cable Tray - Mark 1 : id 38109 4 AC_S.A_Duct : Ducts : Rectangular Duct : Default - Mark 149 : id 115117 EL_MV cable tray : Cable Trays : Cable Tray with Fittings : Channel Cable Tray - Mark 1 : id 38109 5 AC_S.A_Duct : Ducts : Rectangular Duct : Default - Mark 158 : id 115176 EL_MV cable tray : Cable Trays : Cable Tray with Fittings : Channel Cable Tray - Mark 4 : id 48696 6 AC_S.A_Duct : Ducts : Rectangular Duct : Default - Mark 167 : id 115194 EL_MV cable tray : Cable Trays : Cable Tray with Fittings : Channel Cable Tray - Mark 4 : id 48696 7 AC_S.A_Duct : Ducts : Rectangular Duct : Default - Mark 176 : id 115251 EL_MV cable tray : Cable Trays : Cable Tray with Fittings : Channel Cable Tray - Mark 5 : id 48851 8 AC_S.A_Duct : Ducts : Rectangular Duct : Default - Mark 185 : id 115269 EL_MV cable tray : Cable Trays : Cable Tray with Fittings : Channel Cable Tray - Mark 5 : id 48851 9 AC_S.A_Duct : Ducts : Rectangular Duct : Default - Mark 194 : id 115684 EL_MV cable tray : Cable Trays : Cable Tray with Fittings : Channel Cable Tray - Mark 5 : id 48851 10 AC_S.A_Duct : Ducts : Rectangular Duct : Default - Mark 203 : id 115870 EL_MV cable tray : Cable Trays : Cable Tray with Fittings : Channel Cable Tray - Mark 5 : id 48851 11 AC_S.A_Duct : Ducts : Rectangular Duct : Default - Mark 222 : id 117228 EL_MV cable tray : Cable Trays : Cable Tray with Fittings : Channel Cable Tray - Mark 6 : id 49117 12 AC_S.A_Duct : Ducts : Rectangular Duct : Default - Mark 231 : id 118162 EL_MV cable tray : Cable Trays : Cable Tray with Fittings : Channel Cable Tray - Mark 6 : id 49117 13 AC_S.A_Duct : Ducts : Rectangular Duct : Default - Mark 212 : id 115968 EL_MV cable tray : Cable Tray Fittings : Channel Reducer : Standard - Mark 7 : id 49127 14 AC_S.A_Duct : Ducts : Rectangular Duct : Default - Mark 37 : id 92685 EL_LV cable tray : Cable Trays : Cable Tray with Fittings : Channel Cable Tray - Mark 13 : id 49425 15 AC_S.A_Duct : Ducts : Rectangular Duct : Default - Mark 38 : id 92763 EL_LV cable tray : Cable Trays : Cable Tray with Fittings : Channel Cable Tray - Mark 13 : id 49425 16 AC_S.A_Duct : Ducts : Rectangular Duct : Default - Mark 39 : id 92874 EL_LV cable tray : Cable Trays : Cable Tray with Fittings : Channel Cable Tray - Mark 13 : id 49425 17 AC_S.A_Duct : Ducts : Rectangular Duct : Default - Mark 53 : id 102809 EL_LV cable tray : Cable Tray Fittings : Channel Horizontal Bend : Standard - Mark 28 : id 50199 18 AC_S.A_Duct : Duct Fittings : Rectangular Elbow - Radius : 1 W - Mark 214 : id 102826 EL_LV cable tray : Cable Tray Fittings : Channel Horizontal Bend : Standard - Mark 28 : id 50199 19 AC_S.A_Duct : Ducts : Rectangular Duct : Default - Mark 53 : id 102809 EL_LV cable tray : Cable Tray Fittings : Channel Reducer : Standard - Mark 30 : id 50253 20 AC_S.A_Duct : Ducts : Rectangular Duct : Default - Mark 241 : id 118402 EL_LV cable tray : Cable Trays : Cable Tray with Fittings : Channel Cable Tray - Mark 21 : id 51444 21 AC_S.A_Duct : Ducts : Rectangular Duct : Default - Mark 247 : id 118448 EL_LV cable tray : Cable Trays : Cable Tray with Fittings : Channel Cable Tray - Mark 21 : id 51444 22 AC_S.A_Duct : Duct Fittings : Rectangular Elbow - Radius : 1 W - Mark 619 : id 118458 EL_LV cable tray : Cable Trays : Cable Tray with Fittings : Channel Cable Tray - Mark 21 : id 51444 23 AC_S.A_Duct : Ducts : Rectangular Duct : Default - Mark 251 : id 118600 EL_LV cable tray : Cable Trays : Cable Tray with Fittings : Channel Cable Tray - Mark 21 : id 51444 24 AC_S.A_Duct : Ducts : Rectangular Duct : Default - Mark 259 : id 119032 EL_LV cable tray : Cable Trays : Cable Tray with Fittings : Channel Cable Tray - Mark 21 : id 51444 25 AC_S.A_Duct : Ducts : Rectangular Duct : Default - Mark 267 : id 120000 EL_LV cable tray : Cable Trays : Cable Tray with Fittings : Channel Cable Tray - Mark 21 : id 51444 26 AC_S.A_Duct : Ducts : Rectangular Duct : Default - Mark 275 : id 120097 EL_LV cable tray : Cable Trays : Cable Tray with Fittings : Channel Cable Tray - Mark 21 : id 51444 27 AC_S.A_Duct : Ducts : Rectangular Duct : Default - Mark 53 : id 102809 EL_LV cable tray : Cable Trays : Cable Tray with Fittings : Channel Cable Tray - Mark 22 : id 67372 28 AC_S.A_Duct : Duct Fittings : Rectangular Wye - Curved - Transition : Standard - Mark 191 : id 100128 EL_LV cable tray : Cable Tray Fittings : Channel Horizontal Bend : Standard - Mark 44 : id 67382 29 AC_S.A_Duct : Ducts : Rectangular Duct : Default - Mark 53 : id 102809 EL_LV cable tray : Cable Tray Fittings : Channel Horizontal Bend : Standard - Mark 44 : id 67382 30 AC_S.A_Duct : Duct Fittings : Rectangular Elbow - Radius : 1 W - Mark 214 : id 102826 EL_LV cable tray : Cable Tray Fittings : Channel Horizontal Bend : Standard - Mark 44 : id 67382 31 AC_S.A_Duct : Ducts : Rectangular Duct : Default - Mark 54 : id 103036 EL_LV cable tray : Cable Tray Fittings : Channel Horizontal Bend : Standard - Mark 44 : id 67382 Interference Report DUCT =A
  • 40.
    FAIRFIELD GOLDEN HEIGHT,BANGALORE Createdby : Vivek Parcha BOQ SCHEDULE QUANTITY SCHEDULE EXTRACT DIRECTLY FROM BIM MODEL 1). FLOOR SCHEDULE 2). WALL SCHEDULE
  • 41.
    FAIRFIELD GOLDEN HEIGHT,BANGALORE Createdby : Vivek Parcha 3). DOOR SCHEDULE 4). WINDOW SCHEDULE