CONSERVANCY
TANK
1m Ø
MARULA
TREE
400mm Ø
RAIN
TREE
800mm Ø
MARULA
TREE
TREES
+
BUSHES
CAMPSITE
1
CAMPSITE
2
CAMPSITE
3
CAMPSITE
4
CAMPSITE
5
CAMPSITE
6
CAMPSITE
7
CAMPSITE
8
CAMPSITE
9
CAMPSITE
10
TENT
1
TENT
2
TENT
3
TENT
4
POOL
BAR
+
TOILETS
DINING
+
KITCHEN
ADMIN
+
SERVICES
PAVED
TERRACE
LAWN
LAWN
ABLUTIONS
LOADING
TREES
+
BUSHES
TREES
+
BUSHES
TREES
+
BUSHES
WASTE
AREA
MAIN GATE
1m Ø
MARULA
TREE
400mm Ø
RAIN
TREE
path
2
0
m
R
O
A
D
5
PARKING
PARKING
PARKING
PARKING
PARKING
PARKING
RAMP
RAMP
RAMP
RAMP
RAMP
PARKING
PARKING
PARKING PARKING
PARKING
PARKING
PARKING
PARKING
PARKING
PARKINGPARKING
fire
place
fire
place
DATE: PROJECT: DRAWING: SCALE:
DRAWN BY:CLIENT/APPLICANT:
PLOT: SIGNED:
APPROVAL DRAWINGS
LOCATION PLAN
SITE PLAN
1: 200/1:10000
G H
PAGE #:
CLIENT ADDRESS: PAGE FORMAT: A1P
DRAWING NUMBER:
/
SUBMITTED:
P.O. BOX 744
KASANE
AREAS
SITE 4071 sqm
ADMIN/ABLUTION 156 sqm
DINING/KITCHEN 91 sqm
BAR/TOILETS 30 sqm
MERU TENTS 50 sqm X4 (200 sqm)
CAMPSITE UNITS 13 sqm X9 (117 sqm)
TOTAL 594 sqm (14.6% COVERAGE)
SETBACKS
-A 2.5m SETBACK HAS BEEN MAINTAINED ON ALL
SIDE BOUNADRIES,
-A 5m SETBACK HAS BEEN MAINTAINED ON FRONT
BOUNDARY
CHECKED:
ADAM YOUNG
JULY 2014
164-RO, KAZUNGULA
KWENA CAMP SITE
-
10 CAMPSITES
4 MERU TENTS
KWC/001/01
 
TO KASANE
KAZUNGULA
FAP
NOTES + SPECIFICATIONS
PARKING
REQUIRED (75% per number of rooms OR 1
parking per 40 m² )
-> 14 X 0.75 = 10.5 (11)
-> 594 m² / 40 m² = 14.85 (15)
REQUIRED = 15
PROVIDED = 21
-STANDARD x 19
-DISABLED x 2
-LOADING x 1
SITE SHOWN IN RED ON LOCATION PLAN
S
H
B
FIRE EXTINGUISHER
HOSE REEL
LIGHTENING CONDUCTOR
FIRE ASSEMBLY POINTFAP
FIRE LEGEND
SMOKE DETECTOR
HEAT DETECTOR
S
H
-FIRE SYSTEM TO BE REVIEWED AND INSTALLED
BY QUALIFIED SPECIALIST .
-KITCHEN TO HAVE AT LEAST ONE CO2 FIRE
EXTINGUISHER INSTALLED INSIDE.
FIRE BLANKETB
REVISIONS
A ARECEPTION
SHOP
OFFICE
STORE
ROOM
MENS
ABLUTIONS
WOMENS
ABLUTIONS
basins
ramp
STAFF TOILETS +
SHOWERS
300 THATCH ON 50 Ø GUM LATS NAILED @ MAX
400 CS TO 150 Ø GUMPOLE TRUSSES BOLTED @
MAX 900 CS TO 200 Ø GUMPOLE RINGBEAM.
NGL 0000
FFL +0200
-0900
-1200
+2700
+3478
+4391
MAX +6399
200 Ø GUMPOLE
COLUMNS @ 2750
CS
200 CONC BLOCK WALLS
WITH BAG WASH FINISH ON
BOTH SIDES
250x700 RC STRIP FOUNDATION
@ MIN DEPTH 900 BELOW NGL
PRECAST RC
LINTEL
50 Ø LATS FIXED @ 50 CS TO 75x50
TIMBER BRANDERS FIXED @ 500 CS
MAX TO GP TIE BEAM
TIMBER
COUNTER
85 SMOOTH FLOATED RC FLOOR
SLAB ON COMPACTED EARTH FILL TO
SUIT
100 CONC BLOCK
WALL ON THICKENED
SLAB TO SUIT
s
h
o
w
e
r
s
t
o
r
e
r
o
o
m
+2300
600x1100 CONC COLUMN FOOTING
@ MIN DEPTH 110O BELOW NGL ON
COMPACTED BASE LAYER TO SUIT
KITCHEN
SEATING
ENTRANCE
ramp
B B
300 THATCH @ 45° ON 50 Ø GUM LATS NAILED
@ MAX 400 CS TO 150 Ø GUMPOLE TRUSSES
BOLTED @ MAX 900 CS TO 200 Ø GUMPOLE
RINGBEAM.
200 CONC BLOCK WALLS
WITH BAG WASH FINISH ON
BOTH SIDES
200 Ø GUMPOLE
COLUMNS @ 2750
CS
9mm GYPSUM CEILING BOARD NAILED
TO 75x50 TIMBER BRANDERS SCREWED
@ 400 CS TO U/SIDE OF 150 Ø GP TIE
BEAMS
85 SMOOTH FLOATED RC
FLOOR SLAB ON
COMPACTED EARTH FILL
TO SUIT
NGL 0000
FFL +0200
-0900
-1200
+2700
+3591
MAX +6399
250x700 RC STRIP FOUNDATION
@ MIN DEPTH 900 BELOW NGL
+2300
+4291
600x1100 CONC COLUMN FOOTING
@ MIN DEPTH 110O BELOW NGL ON
COMPACTED BASE LAYER TO SUIT
DATE: PROJECT: DRAWING: SCALE:
DRAWN BY:CLIENT:
PLOT: CHECKED:
APPROVAL PLANS
ADMIN+ABLUTION
-PLAN/SECTION/ELEVATIONS
DINING+KITCHEN
-PLAN/SECTION/ELEVATIONS
1:75/1:200
G HADAM YOUNG
CLIENT ADDRESS:
JULY 2014
164-RO, KAZUNGULA
KWENA CAMP SITE
SUBMITTED:REVISIONS
PAGE #:
KWC/002/01
PAGE FORMAT: A1L
DRAWING NUMBER:
/
ADMINISTRATION + ABLUTION S DINING + KITCHEN
P.O. BOX 744
KASANE
C C
NGL 0000
FFL +0200
-0900
-1200
+2700
+3591
MAX +6399
+2300
W.C.
W.C.
BAR
300 THATCH ON 50 Ø GUM LATS NAILED @ MAX
400 CS TO 150 Ø GUMPOLE TRUSSES BOLTED @
MAX 900 CS TO 200 Ø GUMPOLE RINGBEAM.
200 Ø GUMPOLE
COLUMNS @ 2750 CS
200 CONC BLOCK WALLS
WITH BAG WASH FINISH ON
BOTH SIDES
250x700 RC STRIP FOUNDATION
@ MIN DEPTH 900 BELOW NGL
85 SMOOTH FLOATED RC FLOOR
SLAB ON COMPACTED EARTH FILL TO
SUIT
100 CONC BLOCK WALL ON
THICKENED SLAB TO SUIT
600x1100 CONC COLUMN FOOTING
@ MIN DEPTH 110O BELOW NGL ON
COMPACTED BASE LAYER TO SUIT
200 Ø GUMPOLE
RINGBEAM
ramp
 
 
 
 
D D
NGL 0000
FFL +0200
-0900
-1200
+2300
+2500
+2915
+3250
MAX +5066
W.C.
SHOWER
250x700 RC STRIP FOUNDATION
@ MIN DEPTH 900 BELOW NGL
100 Ø
GUMPOLE
COLUMN
250 THATCH ON 50 Ø GUM LATS NAILED @
MAX 400 CS TO 100 Ø GUMPOLE TRUSSES
BOLTED @ MAX 900 CS TO 100 Ø GUMPOLE
RINGBEAM.
conc.
counter
100 CONC BLOCK WALL
ON THICKENED SLAB
85 SMOOTH FLOATED RC FLOOR SLAB
ON COMPACTED EARTH FILL TO SUIT
200 CONC BLOCK
WALLS WITH BAG WASH
FINISH ON BOTH SIDES
   
  
CONC FOOTING @ MIN
900 DEPTH BELOW NGL
FACTORY MADE CANVAS +
SHADECLOTH MERU TENT +
FLYSHEET
FACTORY MADE
STEEL TENT FRAME
LAT SCREEN
84 RC FLOORSLAB ON DPC ON
COMPACTED EARTH FILL TO SUIT
200 CONC BLOCK
RETAINING WALL
150 GUMPOLE PILES
CUSTOM WOODEN
DOOR FRAME
600X200 RC STRIP FOUNDATION
FOR PLINTH RETAINING WALLS
E
E
NGL 0000
FFL +0400
MAX +3847
+3443
+3000
+2150
-0400
+1050
BEDROOM
SHOWER
+
TOILET
PORCH
 
   
 
DATE: PROJECT: DRAWING: SCALE:
DRAWN BY:CLIENT:
PLOT: CHECKED:
APPROVAL PLANS
BAR+TOILETS
-PLAN/SECTION/ELEVATIONS
CAMPSITE UNIT
-PLAN/SECTION/ELEVATIONS
MERU TENTS
-PLAN/SECTION/ELEVATIONS
1:50/1:75/1:100/1:200
G HADAM YOUNG
CLIENT ADDRESS:
JULY 2014
164-RO, KAZUNGULA
KWENA CAMP SITE
SUBMITTED:REVISIONS
PAGE #:
KWC/003/01
PAGE FORMAT: A1L
DRAWING NUMBER:
/
BAR + TOILETS CAMPSITE UNIT MERU TENT
P.O. BOX 744
KASANE

Kwena Camping Proposal

  • 1.
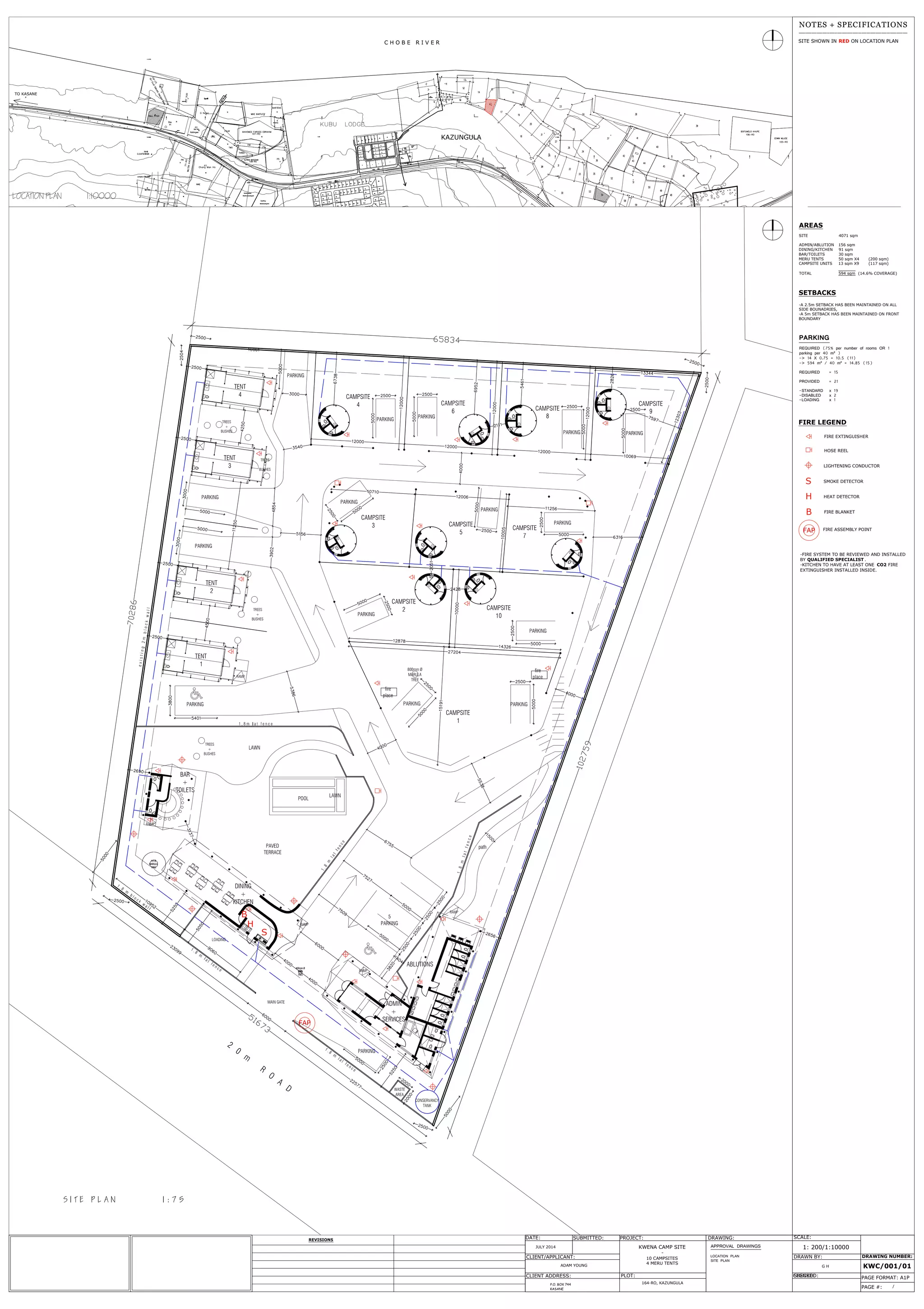
    CONSERVANCY TANK 1m Ø MARULA TREE 400mm Ø RAIN TREE 800mmØ MARULA TREE TREES + BUSHES CAMPSITE 1 CAMPSITE 2 CAMPSITE 3 CAMPSITE 4 CAMPSITE 5 CAMPSITE 6 CAMPSITE 7 CAMPSITE 8 CAMPSITE 9 CAMPSITE 10 TENT 1 TENT 2 TENT 3 TENT 4 POOL BAR + TOILETS DINING + KITCHEN ADMIN + SERVICES PAVED TERRACE LAWN LAWN ABLUTIONS LOADING TREES + BUSHES TREES + BUSHES TREES + BUSHES WASTE AREA MAIN GATE 1m Ø MARULA TREE 400mm Ø RAIN TREE path 2 0 m R O A D 5 PARKING PARKING PARKING PARKING PARKING PARKING RAMP RAMP RAMP RAMP RAMP PARKING PARKING PARKING PARKING PARKING PARKING PARKING PARKING PARKING PARKINGPARKING fire place fire place DATE: PROJECT: DRAWING: SCALE: DRAWN BY:CLIENT/APPLICANT: PLOT: SIGNED: APPROVAL DRAWINGS LOCATION PLAN SITE PLAN 1: 200/1:10000 G H PAGE #: CLIENT ADDRESS: PAGE FORMAT: A1P DRAWING NUMBER: / SUBMITTED: P.O. BOX 744 KASANE AREAS SITE 4071 sqm ADMIN/ABLUTION 156 sqm DINING/KITCHEN 91 sqm BAR/TOILETS 30 sqm MERU TENTS 50 sqm X4 (200 sqm) CAMPSITE UNITS 13 sqm X9 (117 sqm) TOTAL 594 sqm (14.6% COVERAGE) SETBACKS -A 2.5m SETBACK HAS BEEN MAINTAINED ON ALL SIDE BOUNADRIES, -A 5m SETBACK HAS BEEN MAINTAINED ON FRONT BOUNDARY CHECKED: ADAM YOUNG JULY 2014 164-RO, KAZUNGULA KWENA CAMP SITE - 10 CAMPSITES 4 MERU TENTS KWC/001/01   TO KASANE KAZUNGULA FAP NOTES + SPECIFICATIONS PARKING REQUIRED (75% per number of rooms OR 1 parking per 40 m² ) -> 14 X 0.75 = 10.5 (11) -> 594 m² / 40 m² = 14.85 (15) REQUIRED = 15 PROVIDED = 21 -STANDARD x 19 -DISABLED x 2 -LOADING x 1 SITE SHOWN IN RED ON LOCATION PLAN S H B FIRE EXTINGUISHER HOSE REEL LIGHTENING CONDUCTOR FIRE ASSEMBLY POINTFAP FIRE LEGEND SMOKE DETECTOR HEAT DETECTOR S H -FIRE SYSTEM TO BE REVIEWED AND INSTALLED BY QUALIFIED SPECIALIST . -KITCHEN TO HAVE AT LEAST ONE CO2 FIRE EXTINGUISHER INSTALLED INSIDE. FIRE BLANKETB REVISIONS
  • 2.
    A ARECEPTION SHOP OFFICE STORE ROOM MENS ABLUTIONS WOMENS ABLUTIONS basins ramp STAFF TOILETS+ SHOWERS 300 THATCH ON 50 Ø GUM LATS NAILED @ MAX 400 CS TO 150 Ø GUMPOLE TRUSSES BOLTED @ MAX 900 CS TO 200 Ø GUMPOLE RINGBEAM. NGL 0000 FFL +0200 -0900 -1200 +2700 +3478 +4391 MAX +6399 200 Ø GUMPOLE COLUMNS @ 2750 CS 200 CONC BLOCK WALLS WITH BAG WASH FINISH ON BOTH SIDES 250x700 RC STRIP FOUNDATION @ MIN DEPTH 900 BELOW NGL PRECAST RC LINTEL 50 Ø LATS FIXED @ 50 CS TO 75x50 TIMBER BRANDERS FIXED @ 500 CS MAX TO GP TIE BEAM TIMBER COUNTER 85 SMOOTH FLOATED RC FLOOR SLAB ON COMPACTED EARTH FILL TO SUIT 100 CONC BLOCK WALL ON THICKENED SLAB TO SUIT s h o w e r s t o r e r o o m +2300 600x1100 CONC COLUMN FOOTING @ MIN DEPTH 110O BELOW NGL ON COMPACTED BASE LAYER TO SUIT KITCHEN SEATING ENTRANCE ramp B B 300 THATCH @ 45° ON 50 Ø GUM LATS NAILED @ MAX 400 CS TO 150 Ø GUMPOLE TRUSSES BOLTED @ MAX 900 CS TO 200 Ø GUMPOLE RINGBEAM. 200 CONC BLOCK WALLS WITH BAG WASH FINISH ON BOTH SIDES 200 Ø GUMPOLE COLUMNS @ 2750 CS 9mm GYPSUM CEILING BOARD NAILED TO 75x50 TIMBER BRANDERS SCREWED @ 400 CS TO U/SIDE OF 150 Ø GP TIE BEAMS 85 SMOOTH FLOATED RC FLOOR SLAB ON COMPACTED EARTH FILL TO SUIT NGL 0000 FFL +0200 -0900 -1200 +2700 +3591 MAX +6399 250x700 RC STRIP FOUNDATION @ MIN DEPTH 900 BELOW NGL +2300 +4291 600x1100 CONC COLUMN FOOTING @ MIN DEPTH 110O BELOW NGL ON COMPACTED BASE LAYER TO SUIT DATE: PROJECT: DRAWING: SCALE: DRAWN BY:CLIENT: PLOT: CHECKED: APPROVAL PLANS ADMIN+ABLUTION -PLAN/SECTION/ELEVATIONS DINING+KITCHEN -PLAN/SECTION/ELEVATIONS 1:75/1:200 G HADAM YOUNG CLIENT ADDRESS: JULY 2014 164-RO, KAZUNGULA KWENA CAMP SITE SUBMITTED:REVISIONS PAGE #: KWC/002/01 PAGE FORMAT: A1L DRAWING NUMBER: / ADMINISTRATION + ABLUTION S DINING + KITCHEN P.O. BOX 744 KASANE
  • 3.
    C C NGL 0000 FFL+0200 -0900 -1200 +2700 +3591 MAX +6399 +2300 W.C. W.C. BAR 300 THATCH ON 50 Ø GUM LATS NAILED @ MAX 400 CS TO 150 Ø GUMPOLE TRUSSES BOLTED @ MAX 900 CS TO 200 Ø GUMPOLE RINGBEAM. 200 Ø GUMPOLE COLUMNS @ 2750 CS 200 CONC BLOCK WALLS WITH BAG WASH FINISH ON BOTH SIDES 250x700 RC STRIP FOUNDATION @ MIN DEPTH 900 BELOW NGL 85 SMOOTH FLOATED RC FLOOR SLAB ON COMPACTED EARTH FILL TO SUIT 100 CONC BLOCK WALL ON THICKENED SLAB TO SUIT 600x1100 CONC COLUMN FOOTING @ MIN DEPTH 110O BELOW NGL ON COMPACTED BASE LAYER TO SUIT 200 Ø GUMPOLE RINGBEAM ramp         D D NGL 0000 FFL +0200 -0900 -1200 +2300 +2500 +2915 +3250 MAX +5066 W.C. SHOWER 250x700 RC STRIP FOUNDATION @ MIN DEPTH 900 BELOW NGL 100 Ø GUMPOLE COLUMN 250 THATCH ON 50 Ø GUM LATS NAILED @ MAX 400 CS TO 100 Ø GUMPOLE TRUSSES BOLTED @ MAX 900 CS TO 100 Ø GUMPOLE RINGBEAM. conc. counter 100 CONC BLOCK WALL ON THICKENED SLAB 85 SMOOTH FLOATED RC FLOOR SLAB ON COMPACTED EARTH FILL TO SUIT 200 CONC BLOCK WALLS WITH BAG WASH FINISH ON BOTH SIDES        CONC FOOTING @ MIN 900 DEPTH BELOW NGL FACTORY MADE CANVAS + SHADECLOTH MERU TENT + FLYSHEET FACTORY MADE STEEL TENT FRAME LAT SCREEN 84 RC FLOORSLAB ON DPC ON COMPACTED EARTH FILL TO SUIT 200 CONC BLOCK RETAINING WALL 150 GUMPOLE PILES CUSTOM WOODEN DOOR FRAME 600X200 RC STRIP FOUNDATION FOR PLINTH RETAINING WALLS E E NGL 0000 FFL +0400 MAX +3847 +3443 +3000 +2150 -0400 +1050 BEDROOM SHOWER + TOILET PORCH         DATE: PROJECT: DRAWING: SCALE: DRAWN BY:CLIENT: PLOT: CHECKED: APPROVAL PLANS BAR+TOILETS -PLAN/SECTION/ELEVATIONS CAMPSITE UNIT -PLAN/SECTION/ELEVATIONS MERU TENTS -PLAN/SECTION/ELEVATIONS 1:50/1:75/1:100/1:200 G HADAM YOUNG CLIENT ADDRESS: JULY 2014 164-RO, KAZUNGULA KWENA CAMP SITE SUBMITTED:REVISIONS PAGE #: KWC/003/01 PAGE FORMAT: A1L DRAWING NUMBER: / BAR + TOILETS CAMPSITE UNIT MERU TENT P.O. BOX 744 KASANE