BAHAA ABO IBRAHIM
INTERIOR DESIGN
PORTFOLIO
ABOUT ME
I am a graphic and interior designer with more than 15 years of
experience in the industry. In this portfolio, I have curated a selection
of my best and most representative works, which showcase my skills
and creativity in Interior design.
As an interior designer, I have a passion for creating spaces that are
both functional and aesthetically pleasing. My design philosophy is to
create spaces that reflect the personality and lifestyle of my clients
while maximizing their comfort and usability.
I hope you enjoy browsing through my portfolio, and I look forward to
discussing how I can help bring your design vision to life!
PROJECTS
RESIDENTIAL
COMMERCIAL
LANDSCAPE
ARCHITECTURAL
MODELING
3D RENDERING
01.
02.
03.
04.
05.
RESIDENTIAL
PROJECTS
01.
01.A
CHALET
ABOUTTHE CONCEPT
Mood Board
The inspiration is space.
The concept is ORBITS
Applying curvy and circular furniture and items
flowing in the interior space reflecting the main
concept.
Skylight is the main feature of the project
Feeling of the outer space
Star gazing, a very important
feature where researches shows Stargazing
would:
1. Reconnects You with Nature.
2. It Is a Perfect Stress Reliever.
3. And Can Spark Your Creative Mind.
01.A
CHALET
ABOUTTHE CONCEPT
Mood Board
The inspiration is space.
The concept is ORBITS
Applying curvy and circular furniture and items
flowing in the interior space reflecting the main
concept.
Skylight is the main feature of the project
Feeling of the outer space
Star gazing, a very important
feature where researches shows Stargazing
would:
1. Reconnects You with Nature.
2. It Is a Perfect Stress Reliever.
3. And Can Spark Your Creative Mind.
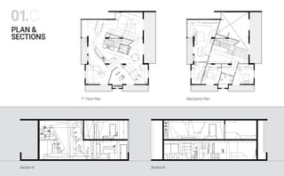
PLAN &
SECTIONS
01.A
Plan
Section A Section B
& RENDERING
Sketches
01.A
01.B
LEBANESE
HOUSE
The Phoenix, the firebird that comes from Para-
dise, lives five hundred years feeding on aromatic
herbs and filling the air with its heavenly voice,
before it perishes and burns in fire. It would then
rebirth and rise from the ashes to live another five
hundred years.
What does it mean to go through a rebirth?
Reincarnation, also known as rebirth or transmi-
gration, is the philosophical or religious concept
that the non-physical essence of a living being
begins a new life in a different physical form or
body after biological death.
The concept is: Rebirth
To reflect the concept of rebirth in the look and
feel of the interior I’ve adapted Transitional Design
style.
Mood Board
PLAN &
SECTIONS
01.B
Plan
Section A Section B
01.B
3D VISUALIZATION
01.B
3D VISUALIZATION
01.C
PRIVATE
HOUSE
A Remote Working Professional , within this type
of work there are many challenges to be faced
such as spending all the time at home, so it
becomes challenging to separate work life from
family, also the need of a private space to focus
and get work done, so from this kind of lifestyle i
cameup with the concept of Schizophrenia that
reflects this dual life that my client living.
REMOTE WORKING
CHALLENGES
- Social Isolation
- Different time zones
- Lack of a proper routine
- Lack of personal interaction
- Work hours not defined
- Loneliness
- Communication
- Distractions at home
- Physical problems
- Too much screen time
SOLUTIONS
- Create an isolated working space.
- Adding greenery, offering both psychological and physical health
benefits that include: Improving mood, Lowering stress and anxiety
- Creating a gym areato help release the tension from too much
screen time.
- Creating a gaming area
- Creating different seating and lounging areas
Inspirations
PLAN &
SECTIONS
1ST
Floor Plan Mezzanine Plan
01.C
1
2
3
4
5
6
7
8
9
10
11
12
13
14
15
16
17
18
1
2
5
3
16
4
7
6
8
10
9
11
13
14
12
18
15
17
Section A Section B
01.C
Detailed Section 1
Isometric View
Detailed Section 2 Detailed Section 3
01.C
3D VISUALIZATION
01.C
3D VISUALIZATION
COMMERCIAL
PROJECTS
02.
RESTAURANT
SPORTS CAFE
ABOUTTHE CONCEPT
Mood Board
The project is a sports café, where people can
come watch their favorite games, eat, drink and
cheer for their favorite teams.
The café serves drinks and beer, wings and
burgers.
- Layout inspiration is the Football field.
- A center focal area as a private area /
competitions area (eating wings, PlayStation
tournaments, etc..)
- A shop area at the entrance to increase revenue
Shop area with fan’s equipment
- A playing area to reflect the competitive ambi-
ance of the space
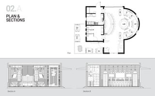
02.A
PLAN &
SECTIONS
02.A
Plan
Section A Section B
2 3
4
5
6
7
8
1
12
9
10
11
02.A
& RENDERING
Sketches
02.A
OPHTHALMOLOGIST
CLINIC
ABOUTTHE CONCEPT
Light enters the eye through the cornea. ...
The cornea bends the light, it passes through the
pupil, and then it hits the lens. ...
Next, light passes through the vitreous humor. ...
Finally, the light reaches the retina. When light hits
the retina (a light-sensitive layer of tissue at the
back of the eye), special cells called photore-
ceptors turn light into electrical signals. These
electrical signals travel from the retina through the
optic nerve to the brain. Then the brain turns the
signals into the images we see.
The process of bending light to produce a focused
image on the retina is called “refraction”..
The concept is: Refraction
To reflect the concept of refraction in the look and
feel of the interior
I’ve adapted Deconstructivism Design style.
02.B
Inspirations
PLAN &
SECTIONS
01.B
1ST
Floor Plan Mezzanine Plan
01.B
Section B
Section A
01.B
3D VISUALIZATION
01.B
3D VISUALIZATION
LANDSCAPE
PROJECTS
03.
FOCAL POINT
RACHAYA
ABOUTTHE CONCEPT
The Rashaya Citadel, also known as the Citadel of
Independence, has been declared a national
monument, having been first built as a palace by
the Shihab family in the 18th century.
Under the French Mandate and on 11 November
1943, Rachaya witnessed the arrest and the
imprisonment of the Lebanese national leaders in
its citadel by the Free French troops Bechara El
Khoury (later the first post-independence presi-
dent of Lebanon), Riad El-Solh (later the prime
minister), Salim Takla, Camille Chamoun, Adel
Osseiran and Abdelhamid Karameh. This led to a
national and international pressure in demand for
their release, and eventually obliging France to
obey. On November 22, 1943, the prisoners were
released, and that day was declared the Lebanese
Independence Day.
03.A
PLAN &
ELEVATIONS
03.A
Plan
PLAN &
ELEVATIONS
03.A
Columns directed and aligned with the location of
the citadel so at an exact point of view you see the
citadel as it is behind the bars.
From the side we see the name of Rachaya in
Arabic incorporated within focal point
From the opposite side we see the look and feel of
the prison bars
From this side we see the shape of Haramoun
mountain represented in the middle three columns
on the focal point and it symbolizes the three
highest peaks of the mountain.
From this side and from an exact point of view we
see the cedar incorporated in the middle of the
focal point
6 lights between the columnsrepresenting the
Lebanese national leaders that got imprisoned in
the citadel Bechara El Khoury, Riad El-Solh, Salim
Takla, Camille Chamoun, Adel Osseiran and
Abdelhamid Karameh
Integration of fire pits at the top of each column to
be lit on the 11th of November of each month the
date the Lebanese national leaders got prisoned
until thee 22nd of the month, the day of independ-
ence.
Planting Dwarf Bay plants that symbolizes victory
and triumph.
FOCAL POINT SYMBOLISM
AND FEATURES
03.A
3D VISUALIZATION
PRIVATE
GARDEN
ABOUTTHE CONCEPT
Client: Pilot
Location: Chouit – Mount Lebanon
On a cliff viewing Beirut
The concept is: Flow
Taking the shape and the feel of
the movement of the air and
integrate it into the layout of the
design
Garden Style: To fit with the house
style and the area, I chose Mediter-
ranean style Garden to represent
my concept
03.B
Plan
Sketches
03.B
Sketches
03.B
Sketches
03.B
Sketches
03.B
ARCHITECTURAL
MODELING
04.
TREE HOUSE
ABOUTTHE CONCEPT
Starting from one of the most important and
famous symbols of yoga which is the lotus flower.
To a yogi, the Lotus flower symbolizes the expan-
sion of the soul and spiritual awakening. The roots
of a lotus are grounded in the mud (earth/materi-
alism). The stem grows up through the water
(growth/life experience) and blooms above the
water, in the sunlight (awakening/enlightenment).
Also the Lotus flower is regarded in many differ-
ent cultures, especially in eastern religions, as a
symbol of purity, enlightenment, self-regeneration
and rebirth. Its characteristics are a perfect
analogy for the human condition: even when its
roots are in the dirtiest waters, the Lotus produces
the most beautiful flower.
The concept is Rebirth
04.A
PLAN &
FACADE
02.A
02.A
Plan Elevation
02.A
02.A
Sketches
02.A
02.A
ARCHITECTURAL
MODEL
CONTAINER
HOUSE
04.B
Open Bed
Coffee table hides
under sofa
Open Sofa
Space for hidden bed
Hidden dining
table and chairs,
goes under
countertop
Hidden bar, it hides within the closet door
Bathroom door / shelving system when closed
Ceiling
mounted
ressesed
TV
Plan
PLAN &
ELEVATION
02.A
02.A
Elevation 1 Elevation 2
Elevation 3 Elevation 4
ARCHITECTURAL
MODEL
02.A
02.A
02.A
02.A
ARCHITECTURAL
MODEL
02.A
02.A
SOFA BED
CABINET TABLE
DOOR SHELVES
ARCHITECTURAL
MODEL
3D RENDERING
05.
CHALET
04.A
3D VISUALIZATION
04.A
3D VISUALIZATION
04.A
3D VISUALIZATION
04.A
3D VISUALIZATION
OFFICE
04.B
3D VISUALIZATION
04.B
3D VISUALIZATION
04.B
3D VISUALIZATION
04.B
3D VISUALIZATION
04.B
3D VISUALIZATION
Bahaa Abo Ibrahim
Graphic & Interior Designer
00961 3 133390
bahaa.ai@gmail.com
www.bahaa.ai
DID YOU LIKE
WHAT YOU SAW?
GIVE ME A CALL!

Bahaa_ai_Interior Designer_Portfolio.pdf

  • 1.
  • 2.
    ABOUT ME I ama graphic and interior designer with more than 15 years of experience in the industry. In this portfolio, I have curated a selection of my best and most representative works, which showcase my skills and creativity in Interior design. As an interior designer, I have a passion for creating spaces that are both functional and aesthetically pleasing. My design philosophy is to create spaces that reflect the personality and lifestyle of my clients while maximizing their comfort and usability. I hope you enjoy browsing through my portfolio, and I look forward to discussing how I can help bring your design vision to life!
  • 3.
  • 4.
  • 5.
    01.A CHALET ABOUTTHE CONCEPT Mood Board Theinspiration is space. The concept is ORBITS Applying curvy and circular furniture and items flowing in the interior space reflecting the main concept. Skylight is the main feature of the project Feeling of the outer space Star gazing, a very important feature where researches shows Stargazing would: 1. Reconnects You with Nature. 2. It Is a Perfect Stress Reliever. 3. And Can Spark Your Creative Mind. 01.A CHALET ABOUTTHE CONCEPT Mood Board The inspiration is space. The concept is ORBITS Applying curvy and circular furniture and items flowing in the interior space reflecting the main concept. Skylight is the main feature of the project Feeling of the outer space Star gazing, a very important feature where researches shows Stargazing would: 1. Reconnects You with Nature. 2. It Is a Perfect Stress Reliever. 3. And Can Spark Your Creative Mind.
  • 6.
  • 7.
  • 8.
    01.B LEBANESE HOUSE The Phoenix, thefirebird that comes from Para- dise, lives five hundred years feeding on aromatic herbs and filling the air with its heavenly voice, before it perishes and burns in fire. It would then rebirth and rise from the ashes to live another five hundred years. What does it mean to go through a rebirth? Reincarnation, also known as rebirth or transmi- gration, is the philosophical or religious concept that the non-physical essence of a living being begins a new life in a different physical form or body after biological death. The concept is: Rebirth To reflect the concept of rebirth in the look and feel of the interior I’ve adapted Transitional Design style. Mood Board
  • 9.
  • 10.
  • 11.
  • 12.
    01.C PRIVATE HOUSE A Remote WorkingProfessional , within this type of work there are many challenges to be faced such as spending all the time at home, so it becomes challenging to separate work life from family, also the need of a private space to focus and get work done, so from this kind of lifestyle i cameup with the concept of Schizophrenia that reflects this dual life that my client living. REMOTE WORKING CHALLENGES - Social Isolation - Different time zones - Lack of a proper routine - Lack of personal interaction - Work hours not defined - Loneliness - Communication - Distractions at home - Physical problems - Too much screen time SOLUTIONS - Create an isolated working space. - Adding greenery, offering both psychological and physical health benefits that include: Improving mood, Lowering stress and anxiety - Creating a gym areato help release the tension from too much screen time. - Creating a gaming area - Creating different seating and lounging areas Inspirations
  • 13.
    PLAN & SECTIONS 1ST Floor PlanMezzanine Plan 01.C 1 2 3 4 5 6 7 8 9 10 11 12 13 14 15 16 17 18 1 2 5 3 16 4 7 6 8 10 9 11 13 14 12 18 15 17 Section A Section B
  • 14.
    01.C Detailed Section 1 IsometricView Detailed Section 2 Detailed Section 3
  • 15.
  • 16.
  • 17.
  • 18.
    RESTAURANT SPORTS CAFE ABOUTTHE CONCEPT MoodBoard The project is a sports café, where people can come watch their favorite games, eat, drink and cheer for their favorite teams. The café serves drinks and beer, wings and burgers. - Layout inspiration is the Football field. - A center focal area as a private area / competitions area (eating wings, PlayStation tournaments, etc..) - A shop area at the entrance to increase revenue Shop area with fan’s equipment - A playing area to reflect the competitive ambi- ance of the space 02.A
  • 19.
    PLAN & SECTIONS 02.A Plan Section ASection B 2 3 4 5 6 7 8 1 12 9 10 11 02.A
  • 20.
  • 21.
    OPHTHALMOLOGIST CLINIC ABOUTTHE CONCEPT Light entersthe eye through the cornea. ... The cornea bends the light, it passes through the pupil, and then it hits the lens. ... Next, light passes through the vitreous humor. ... Finally, the light reaches the retina. When light hits the retina (a light-sensitive layer of tissue at the back of the eye), special cells called photore- ceptors turn light into electrical signals. These electrical signals travel from the retina through the optic nerve to the brain. Then the brain turns the signals into the images we see. The process of bending light to produce a focused image on the retina is called “refraction”.. The concept is: Refraction To reflect the concept of refraction in the look and feel of the interior I’ve adapted Deconstructivism Design style. 02.B Inspirations
  • 22.
  • 23.
  • 24.
  • 25.
  • 26.
  • 27.
    FOCAL POINT RACHAYA ABOUTTHE CONCEPT TheRashaya Citadel, also known as the Citadel of Independence, has been declared a national monument, having been first built as a palace by the Shihab family in the 18th century. Under the French Mandate and on 11 November 1943, Rachaya witnessed the arrest and the imprisonment of the Lebanese national leaders in its citadel by the Free French troops Bechara El Khoury (later the first post-independence presi- dent of Lebanon), Riad El-Solh (later the prime minister), Salim Takla, Camille Chamoun, Adel Osseiran and Abdelhamid Karameh. This led to a national and international pressure in demand for their release, and eventually obliging France to obey. On November 22, 1943, the prisoners were released, and that day was declared the Lebanese Independence Day. 03.A
  • 28.
  • 29.
    Plan PLAN & ELEVATIONS 03.A Columns directedand aligned with the location of the citadel so at an exact point of view you see the citadel as it is behind the bars. From the side we see the name of Rachaya in Arabic incorporated within focal point From the opposite side we see the look and feel of the prison bars From this side we see the shape of Haramoun mountain represented in the middle three columns on the focal point and it symbolizes the three highest peaks of the mountain. From this side and from an exact point of view we see the cedar incorporated in the middle of the focal point 6 lights between the columnsrepresenting the Lebanese national leaders that got imprisoned in the citadel Bechara El Khoury, Riad El-Solh, Salim Takla, Camille Chamoun, Adel Osseiran and Abdelhamid Karameh Integration of fire pits at the top of each column to be lit on the 11th of November of each month the date the Lebanese national leaders got prisoned until thee 22nd of the month, the day of independ- ence. Planting Dwarf Bay plants that symbolizes victory and triumph. FOCAL POINT SYMBOLISM AND FEATURES
  • 30.
  • 31.
    PRIVATE GARDEN ABOUTTHE CONCEPT Client: Pilot Location:Chouit – Mount Lebanon On a cliff viewing Beirut The concept is: Flow Taking the shape and the feel of the movement of the air and integrate it into the layout of the design Garden Style: To fit with the house style and the area, I chose Mediter- ranean style Garden to represent my concept 03.B Plan
  • 32.
  • 33.
  • 34.
  • 35.
  • 36.
  • 37.
    TREE HOUSE ABOUTTHE CONCEPT Startingfrom one of the most important and famous symbols of yoga which is the lotus flower. To a yogi, the Lotus flower symbolizes the expan- sion of the soul and spiritual awakening. The roots of a lotus are grounded in the mud (earth/materi- alism). The stem grows up through the water (growth/life experience) and blooms above the water, in the sunlight (awakening/enlightenment). Also the Lotus flower is regarded in many differ- ent cultures, especially in eastern religions, as a symbol of purity, enlightenment, self-regeneration and rebirth. Its characteristics are a perfect analogy for the human condition: even when its roots are in the dirtiest waters, the Lotus produces the most beautiful flower. The concept is Rebirth 04.A
  • 38.
  • 39.
  • 40.
  • 41.
    CONTAINER HOUSE 04.B Open Bed Coffee tablehides under sofa Open Sofa Space for hidden bed Hidden dining table and chairs, goes under countertop Hidden bar, it hides within the closet door Bathroom door / shelving system when closed Ceiling mounted ressesed TV Plan
  • 42.
    PLAN & ELEVATION 02.A 02.A Elevation 1Elevation 2 Elevation 3 Elevation 4
  • 43.
  • 44.
  • 45.
    02.A 02.A SOFA BED CABINET TABLE DOORSHELVES ARCHITECTURAL MODEL
  • 46.
  • 47.
  • 48.
  • 49.
  • 50.
  • 51.
  • 52.
  • 53.
  • 54.
  • 55.
  • 56.
    Bahaa Abo Ibrahim Graphic& Interior Designer 00961 3 133390 bahaa.ai@gmail.com www.bahaa.ai DID YOU LIKE WHAT YOU SAW? GIVE ME A CALL!