METRA




               CTA




          PORTFOLIO -                         MICHAEL MALLOY
 RESIDENTIAL


                                                               CATALOG OF MOVEMENTS




                      RETAIL
                       E
                       ETAI                                    ABSORBTION




               CTA




RESIDEN

                      R A
                      RETAIL
                      RETAI




                               PUBLIC SPACE



                     RETAIL
Michael P Malloy                                                                                                          STATEMENT
                                                      19801 116th Street                        email : mpm898@yahoo.com
                                                      Bristol, WI 53014                         phone : 847.845.7306       My work is about space, experience, atmosphere.
                                                                                                                           Space is explored sectionally, atmospherically, and topo-
                                                                                                                           logically. Space is not always about the boundaries or
Objective:
                                                                                                                           enclosures of the built form. Rather, is generally about
To work for a progressive architectural firm that will further my education and experience in
architecture.
                                                                                                                           the combination, blurring, or collision between enclosure
                                                                                                                           and non-enclosure. This idea is often examined through
                                                                                                                           the use of programming in order to articulate or force
Education:                                                                                                                 new conditions through a previously unknown or unused
                                                                                                                           space.
Master’s Degree of Architecture : M ARCH
2009 University of Illinois at Chicago, Chicago, Il


Dual Bachelor’s Degree : Sociology and English Literature                                                                  This portfolio combines both my academic
2006 University of Illinois at Chicago, Chicago, Il                                                                        and professional work, creating an interesting cross-sec-
                                                                                                                           tion through my development as an architect. Among
                                                                                                                           these pages is everything from Avant Garde urban
Professional Experience:                                                                                                   proposals, to a residential remodel, to a detail oriented
Project Architect, North Shore Design-Build firm (name withheld)                                                            window proposal. The portfolio should showcase my
10.02 - Current (full-time)                                                                                                versatility, flexibility, and design aspirations. For example,
        • Design                                                                                                           my design aesthetic is often buried in my professional
        • Construction Documentation                                                                                       work, but apparent in my academic work.
        • Plan Review
        • Bid Coordination
        • Permitting Process
        • Assist in Project Management

Intern Architect, Paul Ettington & Associates, Highland Park, IL.
10.01 - 10.02
        • Design
        • Construction Documentation


Computer Skills:
Revit, Autocad, Rhino, Maya, Photoshop, Illustrator, InDesign, Power Point,
and Excel.



Assistantships:
Teaching Assistant, Arch 414 - Professional Practice
2008 Fall Semester, Professor Elva Rubio



Awards Received:
Selected for UIC “Year End Show” 2007
Juried exhibition of the school’s top work.


Portfolio and References available upon request.
PORTFOLIO               -     MICHAEL MALLOY




section 1                                      section 2
ACADEMIC: M ARCH                               PROFESSIONAL: SELECTIONS

PERSONIFIED ATMOSPHERES                        OFFICE DESIGN
AN URBAN TEST SITE - SPRING ‘09                FLEXIBLE - FUNCTIONAL - PLAYFUL - FORM -


MONOLITH- MONADNOCK 2                          CRUCIFORM HOUSE
SELF-JUXTAPOSITION - FALL ‘09                  TYPOLOGY TWIST -



HOUSING -                                      RESTRAINED OPULENCE
PUBLIC SPACE CONNECTED - SPRING ‘08            A HOME DESIGNED AND ENGINEERED TO BE UNDERSTATED


OLYMPIC AQUATIC CENTER -                       MORE WITH LESS
ADJACENT EXPERIENCES - FALL ‘07                A BASEMENT DESIGNED WITH CUSTOM CABINETS



FIRE STATION -                                 VERNACULAR DOWNTOWN
TRANSPARENT COMMUNITY - SPRING ‘07             A DOWNTOWN REDEVELOPMENT PROPOSAL



WINDOW DESIGN -                                REDEFINING THROUGH REWORK -
A NEW PROPOSAL - SPRING ‘07                    A MAJOR REWORKING, CREATES A NEW HOME



SKATE PARK -                                   SELECTED SKETCHES -
SITE SPECIFICITY - FALL ‘06
3.X
PERSONIFIED ATMOSPHERES

My focus as a result from a semester long research
seminar: technology’s effect on society and built form.

This focus became my Master’s thesis and final studio
project, which culminated into a chapter in our studio’s
book.


PROJECT DESCRIPTION:

This urbanism imagines an island not surrounded by water,
but surrounded by society. Within this island individual

                                                                   BE
thoughts are materialized in temporal atmospheric forms.
Ideas are realized and experienced in real time through the
use of five compoents: the carpet, the pod, the network,
and virtual meadow. These components are facilitators           EVERYONE
and extensions of the human mind. They are the new
atmopshere producing computers that are nested into this          YOU
interactive landscape. There are no buildings, no roads, no
stores; in fact you cannot buy anything here. You are asked      CAN BE
to experience other’s creations and upload your own, if you
feel so inclined. The normal social currents are suspended.
Life waits outside for you. Within the premise is simple;
create, experience, and be inspired by the bubbling potential
and curious overlap of new thought based architectures.


SPRING 09:
THESIS STUDIO
GAROFALO




   RESIDENTIAL                                     COMMERCIAL   SITE       COMMERCIAL   RESIDENTIAL
TECHNOLOGY’S SOCIAL EFFECTS
                                                                                                                        




                                     SOCIAL PROXIMITY




                                                        INDIVIDUALITY
                                                                                                                                                                    MY SPACE MY SPACE MY SPACE
                                                                                                                                                                    FACE BOOK FACE BOOK
                                                                                                                                                                    MOVEON.ORG MOVEON.ORG
                                                                                                                                                                    LINKEDIN LINKEDIN LINKEDIN




POST-CONSUMERISM




      individual             individual completely saturated                                the realization of material branding            corporate delousing                                    emancipation
                                                                                            (lost identity)




HYPER - INDIVIDUALISM




pre-digital person      digital preparation                             individual upload                        virtual world propagated          virtual world ready for harvest               virtual world manifested
MONADNOCK 2: HERNIATION
THROUGH CONTORTION
This project seeks to become a monolith through its            CATALOG OF MOVEMENTS

formidable massing of tightly compressed contortions and
subsequent herniations.

The near expressionless facade is contrasted by the interior
herniated forms.

FALL 08:
TOPIC STUDIO                                                   ABSORBTION             COMPOUND FOLD
ZAGO, CLUTTER




                                                               HERNIA - IMPRINT       HERNIA - PUNCTURE
Monadnock Elevation
section
sectional model
PUBLIC SPACE: LAYERED AND
CONNECTED
                                                                            METRA
This project is redesigns two under utilitzed city blocks near
the intersection of Grand and Milwaukee Ave. This dense
neighborhood is re-imagined to create a dynamic public
space centered around existing transit infrastructure.

New public space is created through the connection of two
existing datums, -25’-0” Subway and the +25’-0” Metra
line. A large public plaza is constructed around the exca-
vated and exposed subway line and alternatively the above                       CTA
grade Metra line featues an above grade plaza. All of these
new spaces are infused with housing and retail, as well as
uninterrupted public walkways.

The project is invested in creating a new vertical articulation   RESIDENTIAL

of space which encourages exploration and public traffic.                              PARKING

The consquential layering of public and private space con-                               RETAIL

nects existing urban datums and develops the in-between                                RETAIL
                                                                                         T


space through programmed collision.


                                                                  RESIDEN
                                                                     IDEN
                                                                       EN              RETAIL
                                                                                        E
                                                                                        ETAI

                                                                            RETAIL




                                                                                                  ARTICULATION OF THE IN-BETWEEN



                                                                  RETAIL




                                                                                CTA




                                                                  RESIDENTIAL

                                                                                      PARKING

                                                                                         RETAIL

SPRING 08:                                                                             RETAIL
                                                                                         T

HOUSING STUDIO                                                              METRA

CLUTTER, LYSTER, DEJONG

                                                                  R
                                                                  RESIDEN
                                                                        N              RETAIL
                                                                                        E
                                                                                        ETAI




                                                                  RETAIL              RETAIL




                                                                                CTA
OLYMPIC AQUATIC CENTER:
ADJACENT EXPERIENCES
Autonomous and self-referential, this aquatic center derives
its form from the diagram of its users. Through the articula-
tion of circulation both in plan and section, an adjacency and
multiplicity of experience occurs.




FALL 07:
PREISSNER




                                                                 STAFF
                                                                 ATHLETE
                                                                 SPECTATOR
                                                                 PUBLIC




MOVEMENT FLOW
MOVEMENT FLOW IS ACHIEVED THRU THE USE
OF CONTROLLED ZONES THAT CREATE SEPERATION
AND PROGRAMMATIC ADJACENCIES
CURTAIN WALL
PRE-CAST SEATING
MTL PANELING
DRAIN AT BASE
POOL
ACID ETCHED CONC. SLAB
METAL DECK
HSS BEAM
CONCRETE SLAB
CONCRETE CASSONS




                            Section Perspective                 Mike Malloy
                                                                Bldg Science




                 PRE-CAST SEATING

                 POOL
                 ACID ETCHED CONC. SLAB

                 METAL DECK

                 HSS BEAM

                 CONCRETE SLAB

                 CONCRETE CASSONS




                                          Section Perspective     Mike Malloy
                                                                  Bldg Science
FIRE STATION:
TRANSPARENT COMMUNITY
Transparent and inviting, this fire station acts as a symbol of
the community.

It is designed to provide residents an intimate view of the fire
house, while encouraging the public to take advantage of its
integral public plazas. This building sits as a proud symbol
nested with a public space.




SPRING 07:
VENDRELL, ROBINSON
WINDOW DESIGN:
A NEW PROPOSAL
A proposal where the window becomes the project. It is
variable, expansive, and atmospheric.

The window wall has two suspended and overlapping stone
panels. The operable panel slides on a steel frame which
can modulate the amount of light and privacy.

The walls and the ceiling are sloped to conceal the window
frame and allowing light to wash against the bounding
surfaces and creating an endless feel to the room.




SPRING 07:
VENDRELL, ROBINSON
SKATE PARK:
SITE SPECIFICITY
An architecture of choreographed space. This project
carefully programs binary opposites,skaters and pedestrians,
through topography, pathways, and the occasional building.
Through the layering of these techniques, a once bleak site
becomes a vibrant, interactive enviroment.




FALL 07:
GAROFALO
PROFESSIONAL WORK : SELECTIONS

ALL WORK INCLUDED IN THE FOLLOWING
PAGES IS MY OWN WITH .
OFFICE DESIGN:
ENGAGING FORMS
THE PLAYFUL FORMS OF THE LAYOUT CREATE
FUNCTIONAL VOLUMES THAT DEFINE THE SPACES WHILE
EMBEDDING CIRCULATION AND MUCH NEEDED GALLERY
SPACE.
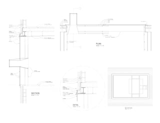
CRUCIFORM HOUSE:
TYPOLOGY TWIST

A TAKE ON THE CLASSIC CRUCIFORM PLAN. THIS
HOUSE ROTATES THE CENTRAL AXIS 45 DEGREES AND
SUBTLY MANIPULATES THE GRADE AND SECTION TO
OBTAIN A SUBTERRANEAN GARAGE AND STONE AN
ELEVATED STONE PATIO OFF OF THE BREAKFAST ROOM.
RESTRAINED OPULANCE:
AN ELABORATE AND LARGE HOME, DESIGNED TO FEEL
AND APPEAR MODEST DESPITE ITS SIZE AND
ATTRIBUTES.
MORE WITH LESS:
AN EXISTING BASEMENT DESIGNED
WITH CUSTOM CABINETS

THE BASEMENT ASSUMES A NEW CHARACTER
THROUGH THE DEFINING USE OF NEW BUILT-IN
CABINETRY. THE CABINETRY RE-DEFINES EXISTING
SPACES WHILE ALLOWING THE BASEMENT TO REMAIN
VISUALLY OPEN.
VERNACULAR DOWNTOWN:
THE VILLAGE OF LAKE BLUFF HELD A OPEN
COMPETITION FOR THEIR DOWNTOWN REDEVELOPMENT.

OUR PROPOSAL WAS TO ENHANCE THE EXISTING
VERNACULAR CHARACTER OF THE TOWN THROUGH A
DENSE MIX OF COMMERCIAL AND RESIDENTIAL
BUILDINGS.
REDEFINING THROUGH
A MAJOR REWORK
MANY OF THE PROJECTS THAT I HAVE BEEN INVOLVED
WITH IN MY PROFESSIONAL CAREER HAVE BEEN MAJOR
ADDITION / REMODELS.

THIS PROCESS IS ALWAYS A UNIQUE CHALLENGE. IT
REQUIRES WORKING WITH THE EXISTING STRUCTURE,
DESIGN, AND SITE CONSTRAINTS - NOT TO MENTION THE
CLIENT’S EXPECTATIONS.
VARIOUS SKETCHES
THESE QUICK PERSPECTIVE DRAWINGS I HAVE FOUND
VERY EFFECTIVE - THEY HELP CLIENTS VISUALIZE
DESIGN CONCEPTS AND MAKE IMPORTANT DECISIONS
WITH CONFIDENCE.
METRA




               CTA




                                              PORTFOLIO -           MICHAEL MALLOY
 RESIDENTIAL


                                                      CATALOG OF MOVEMENTS




                      RETAIL
                       E
                       ETAI                            ABSORBTION




               CTA




RESIDEN

                      R A
                      RETAIL
                      RETAI




                               PUBLIC SPACE



                     RETAIL

Malloy Architecture Portfolio 2010

  • 1.
    METRA CTA PORTFOLIO - MICHAEL MALLOY RESIDENTIAL CATALOG OF MOVEMENTS RETAIL E ETAI ABSORBTION CTA RESIDEN R A RETAIL RETAI PUBLIC SPACE RETAIL
  • 2.
    Michael P Malloy STATEMENT 19801 116th Street email : mpm898@yahoo.com Bristol, WI 53014 phone : 847.845.7306 My work is about space, experience, atmosphere. Space is explored sectionally, atmospherically, and topo- logically. Space is not always about the boundaries or Objective: enclosures of the built form. Rather, is generally about To work for a progressive architectural firm that will further my education and experience in architecture. the combination, blurring, or collision between enclosure and non-enclosure. This idea is often examined through the use of programming in order to articulate or force Education: new conditions through a previously unknown or unused space. Master’s Degree of Architecture : M ARCH 2009 University of Illinois at Chicago, Chicago, Il Dual Bachelor’s Degree : Sociology and English Literature This portfolio combines both my academic 2006 University of Illinois at Chicago, Chicago, Il and professional work, creating an interesting cross-sec- tion through my development as an architect. Among these pages is everything from Avant Garde urban Professional Experience: proposals, to a residential remodel, to a detail oriented Project Architect, North Shore Design-Build firm (name withheld) window proposal. The portfolio should showcase my 10.02 - Current (full-time) versatility, flexibility, and design aspirations. For example, • Design my design aesthetic is often buried in my professional • Construction Documentation work, but apparent in my academic work. • Plan Review • Bid Coordination • Permitting Process • Assist in Project Management Intern Architect, Paul Ettington & Associates, Highland Park, IL. 10.01 - 10.02 • Design • Construction Documentation Computer Skills: Revit, Autocad, Rhino, Maya, Photoshop, Illustrator, InDesign, Power Point, and Excel. Assistantships: Teaching Assistant, Arch 414 - Professional Practice 2008 Fall Semester, Professor Elva Rubio Awards Received: Selected for UIC “Year End Show” 2007 Juried exhibition of the school’s top work. Portfolio and References available upon request.
  • 3.
    PORTFOLIO - MICHAEL MALLOY section 1 section 2 ACADEMIC: M ARCH PROFESSIONAL: SELECTIONS PERSONIFIED ATMOSPHERES OFFICE DESIGN AN URBAN TEST SITE - SPRING ‘09 FLEXIBLE - FUNCTIONAL - PLAYFUL - FORM - MONOLITH- MONADNOCK 2 CRUCIFORM HOUSE SELF-JUXTAPOSITION - FALL ‘09 TYPOLOGY TWIST - HOUSING - RESTRAINED OPULENCE PUBLIC SPACE CONNECTED - SPRING ‘08 A HOME DESIGNED AND ENGINEERED TO BE UNDERSTATED OLYMPIC AQUATIC CENTER - MORE WITH LESS ADJACENT EXPERIENCES - FALL ‘07 A BASEMENT DESIGNED WITH CUSTOM CABINETS FIRE STATION - VERNACULAR DOWNTOWN TRANSPARENT COMMUNITY - SPRING ‘07 A DOWNTOWN REDEVELOPMENT PROPOSAL WINDOW DESIGN - REDEFINING THROUGH REWORK - A NEW PROPOSAL - SPRING ‘07 A MAJOR REWORKING, CREATES A NEW HOME SKATE PARK - SELECTED SKETCHES - SITE SPECIFICITY - FALL ‘06
  • 4.
  • 5.
    PERSONIFIED ATMOSPHERES My focusas a result from a semester long research seminar: technology’s effect on society and built form. This focus became my Master’s thesis and final studio project, which culminated into a chapter in our studio’s book. PROJECT DESCRIPTION: This urbanism imagines an island not surrounded by water, but surrounded by society. Within this island individual BE thoughts are materialized in temporal atmospheric forms. Ideas are realized and experienced in real time through the use of five compoents: the carpet, the pod, the network, and virtual meadow. These components are facilitators EVERYONE and extensions of the human mind. They are the new atmopshere producing computers that are nested into this YOU interactive landscape. There are no buildings, no roads, no stores; in fact you cannot buy anything here. You are asked CAN BE to experience other’s creations and upload your own, if you feel so inclined. The normal social currents are suspended. Life waits outside for you. Within the premise is simple; create, experience, and be inspired by the bubbling potential and curious overlap of new thought based architectures. SPRING 09: THESIS STUDIO GAROFALO RESIDENTIAL COMMERCIAL SITE COMMERCIAL RESIDENTIAL
  • 6.
    TECHNOLOGY’S SOCIAL EFFECTS      SOCIAL PROXIMITY INDIVIDUALITY MY SPACE MY SPACE MY SPACE FACE BOOK FACE BOOK MOVEON.ORG MOVEON.ORG LINKEDIN LINKEDIN LINKEDIN POST-CONSUMERISM individual individual completely saturated the realization of material branding corporate delousing emancipation (lost identity) HYPER - INDIVIDUALISM pre-digital person digital preparation individual upload virtual world propagated virtual world ready for harvest virtual world manifested
  • 9.
    MONADNOCK 2: HERNIATION THROUGHCONTORTION This project seeks to become a monolith through its CATALOG OF MOVEMENTS formidable massing of tightly compressed contortions and subsequent herniations. The near expressionless facade is contrasted by the interior herniated forms. FALL 08: TOPIC STUDIO ABSORBTION COMPOUND FOLD ZAGO, CLUTTER HERNIA - IMPRINT HERNIA - PUNCTURE
  • 10.
  • 11.
  • 12.
  • 15.
    PUBLIC SPACE: LAYEREDAND CONNECTED METRA This project is redesigns two under utilitzed city blocks near the intersection of Grand and Milwaukee Ave. This dense neighborhood is re-imagined to create a dynamic public space centered around existing transit infrastructure. New public space is created through the connection of two existing datums, -25’-0” Subway and the +25’-0” Metra line. A large public plaza is constructed around the exca- vated and exposed subway line and alternatively the above CTA grade Metra line featues an above grade plaza. All of these new spaces are infused with housing and retail, as well as uninterrupted public walkways. The project is invested in creating a new vertical articulation RESIDENTIAL of space which encourages exploration and public traffic. PARKING The consquential layering of public and private space con- RETAIL nects existing urban datums and develops the in-between RETAIL T space through programmed collision. RESIDEN IDEN EN RETAIL E ETAI RETAIL ARTICULATION OF THE IN-BETWEEN RETAIL CTA RESIDENTIAL PARKING RETAIL SPRING 08: RETAIL T HOUSING STUDIO METRA CLUTTER, LYSTER, DEJONG R RESIDEN N RETAIL E ETAI RETAIL RETAIL CTA
  • 21.
    OLYMPIC AQUATIC CENTER: ADJACENTEXPERIENCES Autonomous and self-referential, this aquatic center derives its form from the diagram of its users. Through the articula- tion of circulation both in plan and section, an adjacency and multiplicity of experience occurs. FALL 07: PREISSNER STAFF ATHLETE SPECTATOR PUBLIC MOVEMENT FLOW MOVEMENT FLOW IS ACHIEVED THRU THE USE OF CONTROLLED ZONES THAT CREATE SEPERATION AND PROGRAMMATIC ADJACENCIES
  • 23.
    CURTAIN WALL PRE-CAST SEATING MTLPANELING DRAIN AT BASE POOL ACID ETCHED CONC. SLAB METAL DECK HSS BEAM CONCRETE SLAB CONCRETE CASSONS Section Perspective Mike Malloy Bldg Science PRE-CAST SEATING POOL ACID ETCHED CONC. SLAB METAL DECK HSS BEAM CONCRETE SLAB CONCRETE CASSONS Section Perspective Mike Malloy Bldg Science
  • 25.
    FIRE STATION: TRANSPARENT COMMUNITY Transparentand inviting, this fire station acts as a symbol of the community. It is designed to provide residents an intimate view of the fire house, while encouraging the public to take advantage of its integral public plazas. This building sits as a proud symbol nested with a public space. SPRING 07: VENDRELL, ROBINSON
  • 26.
    WINDOW DESIGN: A NEWPROPOSAL A proposal where the window becomes the project. It is variable, expansive, and atmospheric. The window wall has two suspended and overlapping stone panels. The operable panel slides on a steel frame which can modulate the amount of light and privacy. The walls and the ceiling are sloped to conceal the window frame and allowing light to wash against the bounding surfaces and creating an endless feel to the room. SPRING 07: VENDRELL, ROBINSON
  • 28.
    SKATE PARK: SITE SPECIFICITY Anarchitecture of choreographed space. This project carefully programs binary opposites,skaters and pedestrians, through topography, pathways, and the occasional building. Through the layering of these techniques, a once bleak site becomes a vibrant, interactive enviroment. FALL 07: GAROFALO
  • 33.
    PROFESSIONAL WORK :SELECTIONS ALL WORK INCLUDED IN THE FOLLOWING PAGES IS MY OWN WITH .
  • 35.
    OFFICE DESIGN: ENGAGING FORMS THEPLAYFUL FORMS OF THE LAYOUT CREATE FUNCTIONAL VOLUMES THAT DEFINE THE SPACES WHILE EMBEDDING CIRCULATION AND MUCH NEEDED GALLERY SPACE.
  • 37.
    CRUCIFORM HOUSE: TYPOLOGY TWIST ATAKE ON THE CLASSIC CRUCIFORM PLAN. THIS HOUSE ROTATES THE CENTRAL AXIS 45 DEGREES AND SUBTLY MANIPULATES THE GRADE AND SECTION TO OBTAIN A SUBTERRANEAN GARAGE AND STONE AN ELEVATED STONE PATIO OFF OF THE BREAKFAST ROOM.
  • 39.
    RESTRAINED OPULANCE: AN ELABORATEAND LARGE HOME, DESIGNED TO FEEL AND APPEAR MODEST DESPITE ITS SIZE AND ATTRIBUTES.
  • 41.
    MORE WITH LESS: ANEXISTING BASEMENT DESIGNED WITH CUSTOM CABINETS THE BASEMENT ASSUMES A NEW CHARACTER THROUGH THE DEFINING USE OF NEW BUILT-IN CABINETRY. THE CABINETRY RE-DEFINES EXISTING SPACES WHILE ALLOWING THE BASEMENT TO REMAIN VISUALLY OPEN.
  • 43.
    VERNACULAR DOWNTOWN: THE VILLAGEOF LAKE BLUFF HELD A OPEN COMPETITION FOR THEIR DOWNTOWN REDEVELOPMENT. OUR PROPOSAL WAS TO ENHANCE THE EXISTING VERNACULAR CHARACTER OF THE TOWN THROUGH A DENSE MIX OF COMMERCIAL AND RESIDENTIAL BUILDINGS.
  • 45.
    REDEFINING THROUGH A MAJORREWORK MANY OF THE PROJECTS THAT I HAVE BEEN INVOLVED WITH IN MY PROFESSIONAL CAREER HAVE BEEN MAJOR ADDITION / REMODELS. THIS PROCESS IS ALWAYS A UNIQUE CHALLENGE. IT REQUIRES WORKING WITH THE EXISTING STRUCTURE, DESIGN, AND SITE CONSTRAINTS - NOT TO MENTION THE CLIENT’S EXPECTATIONS.
  • 47.
    VARIOUS SKETCHES THESE QUICKPERSPECTIVE DRAWINGS I HAVE FOUND VERY EFFECTIVE - THEY HELP CLIENTS VISUALIZE DESIGN CONCEPTS AND MAKE IMPORTANT DECISIONS WITH CONFIDENCE.
  • 48.
    METRA CTA PORTFOLIO - MICHAEL MALLOY RESIDENTIAL CATALOG OF MOVEMENTS RETAIL E ETAI ABSORBTION CTA RESIDEN R A RETAIL RETAI PUBLIC SPACE RETAIL