A L E X A N D E R Z ATA R A I N
MLA PORTFOLIO OF SELECTED WORKS
University of Oregon
Master of Landscape Architecture
2014
The Evergreen State College
Bachelor of Fine Art
2009
Kyoto, Japan
2013
Uzbekistan & Kyrgyzstan
2009
Merit Award, ASLA Oregon Chapter
2014
Betty Marie Laudahl Johnson Memorial
Traveling Scholarship
2013
Dorothy Martone Scholarship
2012
Experience
Skills
Education
Study Abroad
Honors + Awards
Designer
Sustainable Cities Initiative
2014
Graduate Research Assistant
University of Oregon
2012
Intern
Rick Mather Architects
2005
AutoCAD
Adobe Photoshop
Adobe Illustrator
Adobe InDesign
Google Sketchup
Microsoft Suite
Hand Drafting
Sketching
Model building
MLA Portfolio of Selected Works
2011 - 2014
ALEXANDER ZATARAIN
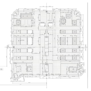
The concept is to revitalize the Sanjo-Keihan multi-modal station
and to provide an exceptional public greenspace in the heart of
Kyoto. This gateway to Japan’s “Garden City” is a place to gather,
grab a bite to eat, enjoy a beverage or just watch people going to
and from transit lines.
The present station’s inward-looking shopping center is replaced
with a new building at the eastern edge of the site. Its structure
recalls the shape of an Ogi,or Japanese fan.The building overlooks
a large reflecting pool whose waters cascade into an amphitheater
below. The sound of the falls masks the busy traffic of the nearby
boulevard. Japanese hydrangea softens the amphitheater’s
hardscape. Cryptomeria and Japanese maples serve as vertical
accents to the horizontal pathways that pass over the amphitheater
and reflecting pond to the building.
To create the station’s pathway, lines are drawn from the
center of the site to surrounding areas of interest. In this way
the paths act as way-finding guides for travelers emerging
from underground station, directing them toward notable
sights and districts.The gently curving road serves as a transit
center for several bus lines and is a unique feature in a city
otherwise dominated by an unrelenting orthogonal grid.
Garden Gateway
KYOTO, JAPAN
Sanjo Keihan StationSanjo Keihan Station
Garden Gateway
Sanjo Keihan Station
Garden Gateway
K
Sanjo Keihan Station
KYOTO, JAPAN
Sanjo Keihan Station
YOTO, JAPAN
Sanjo Keihan Station
shrine
shopping district
Kamo River
Gion district
CURVED BUS LANE
The gently curving road behind the
site serves as bus lane and is a unique
feature in a city otherwise organized in
an orthogonal grid.
ICONIC STRUCTURE
The building recalls the shape of an
Ogi, or Japanese fan and captures the
activity and energy from the nearby
intersection
VERTICAL CONNECTION
A sunken amphitheater creates
a vertical connection and active
communication with the existing
underground mall and subway.
WAYFINDING PATHWAYS
The main circulation paths radiate
outward, leading travelers emerging
The main circulation paths radiate
outward, leading travelers emerging
The main circulation paths radiate
from the subway towards surrounding
outward, leading travelers emerging
from the subway towards surrounding
outward, leading travelers emerging
areas of interest.
from the subway towards surrounding
areas of interest.
from the subway towards surrounding
amphitheaterexisting underground mall
reflecting pool existing subway mixed-use building
Booth Kelly District
On the Edge
Booth Kelly District
On the Edge
Booth Kelly DistrictS
Booth Kelly DistrictS
Booth Kelly DistrictPRINGFIELD, OR
Booth Kelly DistrictPRINGFIELD, OR
Booth Kelly District
Located at the nexus of the Booth Kelly Natural
Area and a proposed mixed-use development,
Springfield’s back porch overlooks a vernal pool
in the Natural Area. One of the primary design
goals is to soften the edge between the built
and natural environments, thereby increasing
urban residents’ access to nature. A large wooden
deck overlooks the vernal pool while wooden
boardwalks link the natural and urban areas.
This design is a civic place for the public to relax,
take lunch, or spend a quiet moment and move
through.
The form of the deck is configured to reflect
the historic circulation patterns and building
footprints of the sawmill that used to occupy
the site. The vernal pool references the historic
log pond and is located where logs were pulled
from the water into the debarker and sawmill.
Plantings of Douglas fir around the pool’s shore
imagine a new function for the site while paying
homage to the timber industry that helped
Springfield flourish.
1907
1936
1951
2012
1907
1936
1951
2012
DETAIL
PERSPECTIVE
GROVEALLÉE
CULTURAL
URBAN
NATURALISTIC
NATURAL
ECOLOGICAL
MATERIALS AND PLANTING
The site is located at the confluence of Springfield’s
downtown, millrace, and nature park. This is
reflected in weaving of disparaate materials and
planting styles.
The planting and site materials work together to
both honor the site’s past and eork to empahsize
the site’s new function as a trasition and gateway
from the cultural to the natural realm. Moving
west to east, tree plantings transition from an
allée to groves of trees and finally to natural
clumps and groupings. The path transitions from
concrete paving to wood to dirt trails, reflecting the
movement from the urban to natural environment.
DOUGLAS FIR
Reflects the site’s past as a
sawmill.‘Natural’ material
signals entry to the conservation
area.
CULTURAL
URBAN
NATURAL
ECOLOGICAL
CONCRETE PAVERS
Signify the urban realm. Dark
colored adds visual interest.
CONCRETE PLANK PAVERS
Long plank pavers reminiscent
of the doug fir planks, serve as
a transition between the urban
and ecological realms.
STACKED LUMBER BENCHES
Rising seamlessly from the boardwalk, these benches constructed of
stacked 3x6 lumber evoke memories of the site’s past use.
Kimball Avenue Park is one of five parks
along the Bloomingdale Trail, an abandoned
elevated railway that is being transformed
into a 2.7-mile linear park. The challenge:
to provide ramp access to the Bloomingdale
trail while also creating a welcoming street
level park for the surrounding neighborhood.
Rather than merely providing an access
point,the ramp is designed to be a procession
-- a series of choreographed experiences.
First, the ramp gently curves around the
park boundary, embracing a lower courtyard
and fountain. Finally, a small earthen mound
at the top obscures the view until the path
wraps around it to reveal a unique, elevated
perspective of the neighborhood.
The shape of the ramp informs the site’s
cross-section. The change in elevation is
exaggerated by pushing a segment of the
courtyard down to form a small pool with
a fountain and by raising the upper lawn to
form a grassy rise.
Park
Kimball Ave.
CHICAGO, IL
This temporary parklet was designed for the City’s South Willamette
ArtWalk in partnership with the City of Eugene and the bicycle shop
Arriving By Bike. The parklet was sited in front of the popular bicycle
shop. The shop owner requested a pleasing space for activities, such
as bicycle repair, and small workshops, but one that did not obscure
the storefront. The design-build team identified the need not only for
a functional gathering place, but a more welcoming pedestrian space
protected from the noisy traffic and summer sun.
Built entirely from donated materials, the final design “pulls” the
storefront out to the sidewalk, providing a refuge that also serves as
display space. It is a unique landmark on an otherwise bland and auto-
centric street.
Pop-up Parklet
Eugene ArtWalk
Pop-up Parklet
Eugene ArtWalk
Pop-up Parklet
EUGENE, OR
strong vertical element serves as landmark
on treeless street
concept drawing
awning provides shade
display space “pulls” storefront out to the
street
plants soften the
extensive hardscape
beforebefore
displaydisplay noticenotice
gathergather
Details andTechnical
Drawings
The visualization of landscape – how landscapes are seen,
imagined, and drawn – underlies all of design and planning.
Through traditional research, as well as the creation of
several art pieces, this project explores the assumptions and
limitations of the visualization and representational modes
of idealized landscape images that designers have inherited.
It is an attempt to see around and behind the singular
romanticized landscape image in order to uncover the ideals
and beliefs at the root of our landscape understanding.
Revealing a Trashed Landscape
Master’s Thesis
Awarded the Oregon ASLA
2014 Merit Award
Zatarain_MLAPortfolio

Zatarain_MLAPortfolio

  • 1.
    A L EX A N D E R Z ATA R A I N MLA PORTFOLIO OF SELECTED WORKS
  • 3.
    University of Oregon Masterof Landscape Architecture 2014 The Evergreen State College Bachelor of Fine Art 2009 Kyoto, Japan 2013 Uzbekistan & Kyrgyzstan 2009 Merit Award, ASLA Oregon Chapter 2014 Betty Marie Laudahl Johnson Memorial Traveling Scholarship 2013 Dorothy Martone Scholarship 2012 Experience Skills Education Study Abroad Honors + Awards Designer Sustainable Cities Initiative 2014 Graduate Research Assistant University of Oregon 2012 Intern Rick Mather Architects 2005 AutoCAD Adobe Photoshop Adobe Illustrator Adobe InDesign Google Sketchup Microsoft Suite Hand Drafting Sketching Model building MLA Portfolio of Selected Works 2011 - 2014 ALEXANDER ZATARAIN
  • 5.
    The concept isto revitalize the Sanjo-Keihan multi-modal station and to provide an exceptional public greenspace in the heart of Kyoto. This gateway to Japan’s “Garden City” is a place to gather, grab a bite to eat, enjoy a beverage or just watch people going to and from transit lines. The present station’s inward-looking shopping center is replaced with a new building at the eastern edge of the site. Its structure recalls the shape of an Ogi,or Japanese fan.The building overlooks a large reflecting pool whose waters cascade into an amphitheater below. The sound of the falls masks the busy traffic of the nearby boulevard. Japanese hydrangea softens the amphitheater’s hardscape. Cryptomeria and Japanese maples serve as vertical accents to the horizontal pathways that pass over the amphitheater and reflecting pond to the building. To create the station’s pathway, lines are drawn from the center of the site to surrounding areas of interest. In this way the paths act as way-finding guides for travelers emerging from underground station, directing them toward notable sights and districts.The gently curving road serves as a transit center for several bus lines and is a unique feature in a city otherwise dominated by an unrelenting orthogonal grid. Garden Gateway KYOTO, JAPAN Sanjo Keihan StationSanjo Keihan Station Garden Gateway Sanjo Keihan Station Garden Gateway K Sanjo Keihan Station KYOTO, JAPAN Sanjo Keihan Station YOTO, JAPAN Sanjo Keihan Station
  • 6.
    shrine shopping district Kamo River Giondistrict CURVED BUS LANE The gently curving road behind the site serves as bus lane and is a unique feature in a city otherwise organized in an orthogonal grid. ICONIC STRUCTURE The building recalls the shape of an Ogi, or Japanese fan and captures the activity and energy from the nearby intersection VERTICAL CONNECTION A sunken amphitheater creates a vertical connection and active communication with the existing underground mall and subway. WAYFINDING PATHWAYS The main circulation paths radiate outward, leading travelers emerging The main circulation paths radiate outward, leading travelers emerging The main circulation paths radiate from the subway towards surrounding outward, leading travelers emerging from the subway towards surrounding outward, leading travelers emerging areas of interest. from the subway towards surrounding areas of interest. from the subway towards surrounding
  • 8.
  • 9.
    reflecting pool existingsubway mixed-use building
  • 10.
    Booth Kelly District Onthe Edge Booth Kelly District On the Edge Booth Kelly DistrictS Booth Kelly DistrictS Booth Kelly DistrictPRINGFIELD, OR Booth Kelly DistrictPRINGFIELD, OR Booth Kelly District Located at the nexus of the Booth Kelly Natural Area and a proposed mixed-use development, Springfield’s back porch overlooks a vernal pool in the Natural Area. One of the primary design goals is to soften the edge between the built and natural environments, thereby increasing urban residents’ access to nature. A large wooden deck overlooks the vernal pool while wooden boardwalks link the natural and urban areas. This design is a civic place for the public to relax, take lunch, or spend a quiet moment and move through. The form of the deck is configured to reflect the historic circulation patterns and building footprints of the sawmill that used to occupy the site. The vernal pool references the historic log pond and is located where logs were pulled from the water into the debarker and sawmill. Plantings of Douglas fir around the pool’s shore imagine a new function for the site while paying homage to the timber industry that helped Springfield flourish. 1907 1936 1951 2012 1907 1936 1951 2012
  • 11.
  • 12.
    GROVEALLÉE CULTURAL URBAN NATURALISTIC NATURAL ECOLOGICAL MATERIALS AND PLANTING Thesite is located at the confluence of Springfield’s downtown, millrace, and nature park. This is reflected in weaving of disparaate materials and planting styles. The planting and site materials work together to both honor the site’s past and eork to empahsize the site’s new function as a trasition and gateway from the cultural to the natural realm. Moving west to east, tree plantings transition from an allée to groves of trees and finally to natural clumps and groupings. The path transitions from concrete paving to wood to dirt trails, reflecting the movement from the urban to natural environment.
  • 13.
    DOUGLAS FIR Reflects thesite’s past as a sawmill.‘Natural’ material signals entry to the conservation area. CULTURAL URBAN NATURAL ECOLOGICAL CONCRETE PAVERS Signify the urban realm. Dark colored adds visual interest. CONCRETE PLANK PAVERS Long plank pavers reminiscent of the doug fir planks, serve as a transition between the urban and ecological realms. STACKED LUMBER BENCHES Rising seamlessly from the boardwalk, these benches constructed of stacked 3x6 lumber evoke memories of the site’s past use.
  • 17.
    Kimball Avenue Parkis one of five parks along the Bloomingdale Trail, an abandoned elevated railway that is being transformed into a 2.7-mile linear park. The challenge: to provide ramp access to the Bloomingdale trail while also creating a welcoming street level park for the surrounding neighborhood. Rather than merely providing an access point,the ramp is designed to be a procession -- a series of choreographed experiences. First, the ramp gently curves around the park boundary, embracing a lower courtyard and fountain. Finally, a small earthen mound at the top obscures the view until the path wraps around it to reveal a unique, elevated perspective of the neighborhood. The shape of the ramp informs the site’s cross-section. The change in elevation is exaggerated by pushing a segment of the courtyard down to form a small pool with a fountain and by raising the upper lawn to form a grassy rise. Park Kimball Ave. CHICAGO, IL
  • 18.
    This temporary parkletwas designed for the City’s South Willamette ArtWalk in partnership with the City of Eugene and the bicycle shop Arriving By Bike. The parklet was sited in front of the popular bicycle shop. The shop owner requested a pleasing space for activities, such as bicycle repair, and small workshops, but one that did not obscure the storefront. The design-build team identified the need not only for a functional gathering place, but a more welcoming pedestrian space protected from the noisy traffic and summer sun. Built entirely from donated materials, the final design “pulls” the storefront out to the sidewalk, providing a refuge that also serves as display space. It is a unique landmark on an otherwise bland and auto- centric street. Pop-up Parklet Eugene ArtWalk Pop-up Parklet Eugene ArtWalk Pop-up Parklet EUGENE, OR
  • 20.
    strong vertical elementserves as landmark on treeless street concept drawing awning provides shade display space “pulls” storefront out to the street plants soften the extensive hardscape
  • 21.
  • 22.
  • 25.
    The visualization oflandscape – how landscapes are seen, imagined, and drawn – underlies all of design and planning. Through traditional research, as well as the creation of several art pieces, this project explores the assumptions and limitations of the visualization and representational modes of idealized landscape images that designers have inherited. It is an attempt to see around and behind the singular romanticized landscape image in order to uncover the ideals and beliefs at the root of our landscape understanding. Revealing a Trashed Landscape Master’s Thesis Awarded the Oregon ASLA 2014 Merit Award